Skip to main content

The Psychology of Home

Page 1


The PsychologyOF HOME

Why Smarter Unit Design Supports Well-Being and Strengthens Communities

Follow the sun. This age-old practice for the orientation of rooms in residential settings aligned daily life with natural systems. But indoor environmental controls altered our relationship with sunlight long ago. Window placement became more of a function of views, façade composition, fire code, or construction economics than human biology. In pursuing efficiency and flexibility, a critical foundation for our well-being was removed.

The Psychology OF HOME

Environmental psychologists, who explore the relationship between people and the built and natural worlds, have shown that shifts in light—its warmth, intensity, and color—affect our sleep cycles, mood, cognition, and health. Our bodies are entrained to the sun. In practice, environmental psychology is advancing our understanding of how light influences comfort, spatial behavior, and social connection. It is providing a framework for the design of environments that support how we think, feel, and engage with the world around us. And as we spend more hours indoors—and at home—these insights are transforming what housing must deliver.

2BD+ / 2.5 BA

What if homes were crafted not only with access to light, but also in partnership with the sun? Imagine how residents might thrive if their dwellings supported their bodies and minds throughout the day. To explore this question, we applied environmental psychology methods to two residential typologies—Cello Tower, a condominium high-rise anchoring Symphony Park Parcel E in Las Vegas, and Western Supply, a multifamily talent village in Tulsa. Rather than reusing unit plans based on past leasing performance, as is common practice, we arranged their interiors using natural light patterns.

Life on the Façade

The edge creates the opportunity to have a presence in the moment, through connections to view and nature.

Procession

The progression through the unit emphasizes the socialization spaces and creates opportunities for adaptable spatial configurations.

Our goal to create a “Life on the Façade,” emphasizes the connection to daylight and view. Our approach to balconies and details allowed the units to be seamlessly stitched.

A Light-Led Residential Strategy for Modern Urban Living

Cello Tower is a 32-story 240 unit condominium tower in Symphony Park, a walkable downtown Las Vegas neighborhood attracting young professionals, families, and active empty nesters, supports residents’ biological and cognitive needs throughout the day. The most active and social spaces—the living room and kitchen—are placed along punched exterior windows that each feature a Juliet balcony, so residents can start their day with morning sun, enjoy their coffee bathed in natural light, and stay visually and physically connected with the Las Vegas skyline and Red Rock Mountain range.

Bedrooms also benefit from an exterior adjacency to maintain outdoor views while utilizing a combination of self-shading integrated within the façade system and window screens to shield sleepers from evening glare that can disrupt circadian rhythms. The secondary bedroom, which opens to the living room, is designed for flexibility—to extend the social space, support focused remote work, or offer respite within a shared home.

A remote working population meant more time spent at home. This drove our concept to place active spaces along the glass and to emphasize the connections between spaces.

Large windows were the focus of the design, providing ample daylight throughout the day. Above all, for a majority remoteworking population, the windows serve as an orientation to the city.

Quick vignettes were created to convey the unit concepts. This vignette speaks to the framed moments created within the units, where the surrounding Arts District becomes a material.

Support Program
Resident Path
Spatial Linkages

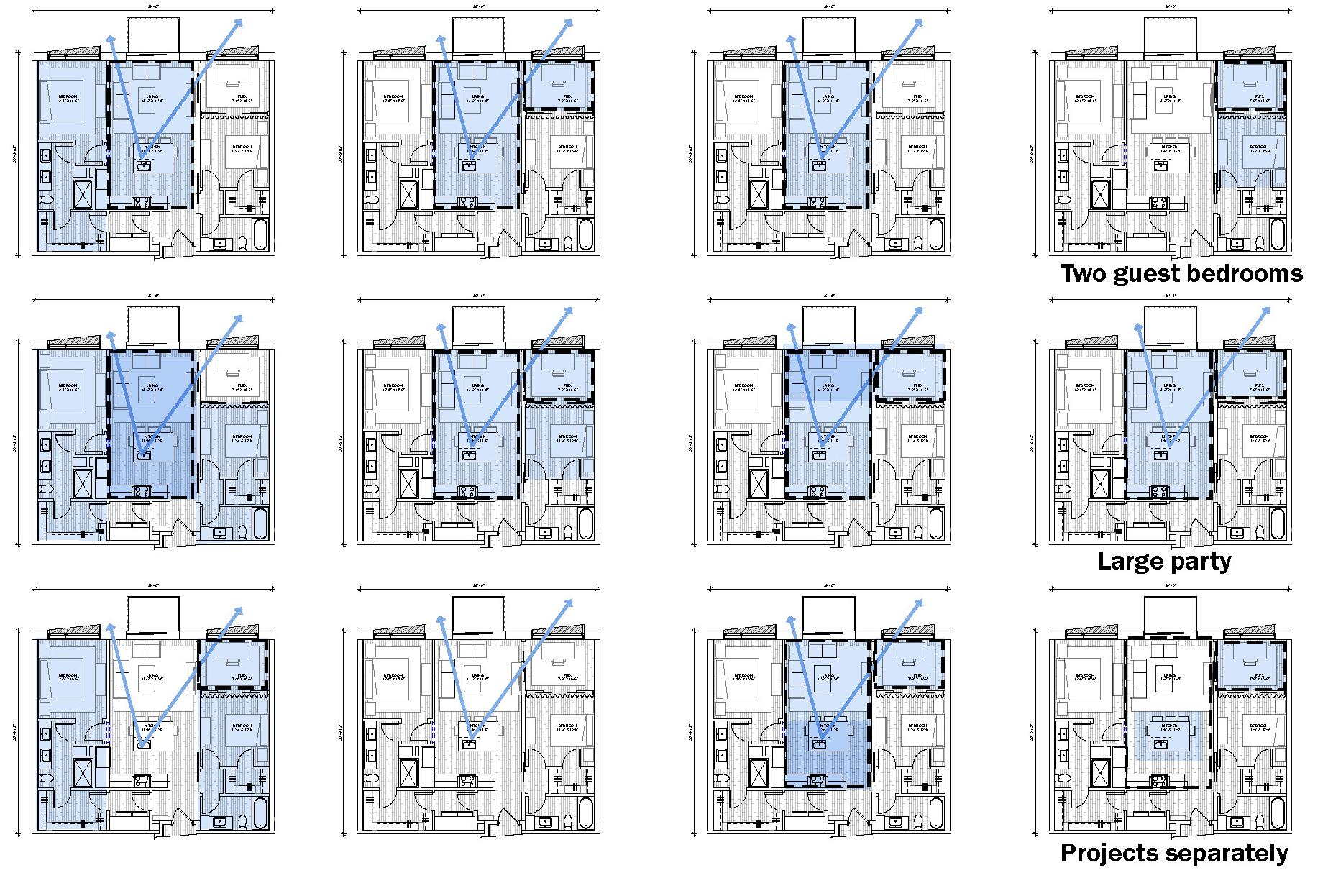
Roommates

Units were developed as a series of flexible conditions, expressing how residents could come together throughout the day in a socially-focused living space. Remote Worker Families

Strategy-Driven Design for Daily Rhythms and Community Connection

Located in the walkable and vibrant Arts District of Tulsa, OK, the 320-unit Western Supply is designed for people relocating to the city to engage with budding entrepreneurial innovation programs and established nonprofits. Here, too, the active and social rooms are oriented to the windows, which offer a daily visual greeting from the city. As the day progresses and the sun moves across the sky, residents loop through the rooms: they wake to the rising sun as they move from bedroom to kitchen, are energized to work in the den by the midday light, and prepare for rest by the setting sun as they transition to the living room and bedroom.

The positioning of the den between the windows and the bedroom provides a sense of separation from neighbors in this dense environment, while offering views to the activity on the street or Western Supply’s outdoor amenities when they feel less sensitive to exposure, which is during the day. This arrangement fosters community within and around the building.

The Benefits of Environmental Psychology

While natural light is widely valued and large windows are an obvious solution, people who feel overexposed will simply close the blinds. This negates the benefits—and the cost—of such design decisions. Understanding the sun’s relationship to daily routines and comfort levels elevates the residential experience. Embracing the role of environmental psychology in unit design is a future-forward strategy for improving well-being and strengthening community.

Level 2 Plan

The project is shaped around a continuous courtyard thread. The unit plans, shown here, stack on upper levels.

N. BOULDER AVENUE
W. EASTON STREET

Turn static files into dynamic content formats.

Create a flipbook
The Psychology of Home by Perkins Eastman - Issuu