Skip to main content

Gallerie e grandi opere sotterranee n. 155

Page 1


tunnels & UNDERGROUND WORKS

Intervista a Renato Casale

TBM: cambio cutter in condizioni iperbariche

Innovazione nei conci prefabbricati

Metropolitana di Milano: passato e futuro

Allarme energia

Dai cantieri: il Giornale dei Lavori

Convegni e visite tecniche

Buone notizie SIG/ITA

YMs SIG: il board si rinnova

Depolveratori e ventilatori

Tappeti per nastri trasportatori

Controllo accessi in galleria

Veicoli speciali per gallerie

Casseri e impianti di produzione a carosello per conci

Impianti di separazione

Impianti bicomponente

SOLUZIONI INNOVATIVE PER LO SCAVO DI OGNI GALLERIA

Schiume e grassi

Locomotori e rolling stock

Passerelle pedonali per gallerie

Ponti prefabbricati

Gallerie e Grandi Opere Sotterranee

Anno XLVII - N. 155 - Settembre 2025

Periodico trimestrale, riconosciuto dal C.N.R., della Società Italiana Gallerie – Italian Tunnelling Society – Member of ITA/AITES

ISSN: 0393-1641/S. Anagrafe Naz. delle Ricerche: cod. 318915PS

Direttore Responsable: Enrico Maria Pizzarotti

Direttrice Editoriale: Daniela Boldini

Caporedattore: Renzo Bindi

Comitato di Redazione: Lorenzo Batocchioni, Andrea Carigi, Remo Di Lorenzi, Chiara Spaggiari

Responsabile Gestione Editoriale: Diego Sebastiani

Segretaria di Redazione: Ludovica Roda

Hanno collaborato a questo numero:

Ettore Accenti, Rocco Amodeo, Antonella Antonelli, Tommaso Barrasso, Adamo Bruni, Andrea Bruschi, Aristodemo Busillo, Carmelo Calabrò, Andrea Carigi, Stefano Decarli, Claudio De Giudici, Marco Depretis, Vito Di Piazza, Francesco Ippolito, Virginio Leone, Antonella Marinelli, Luca Perazzoni, Marco Ricci, Diego Sebastiani, Valentino Sevino, Ubaldo Stefanelli, Flora Zotti.

Editore:

S.I.G. Società di Servizi S.r.l. Via Giovanni da Procida, 7 – 20149 Milano, (MI) Tel.: +39 02 25715805; Tel./Fax: +39 02 25708152 www.societaitalianagallerie.com

e-mail: info@societaitalianagallerie.it

Gestione editoriale abbonamenti e pubblicità: Casa Editrice Prof. Riccardo Pàtron & C. S.r.l. Via Marsala, 31 – 40126 Bologna, (BO) Tel. 051 767003 www.patroneditore.com

e-mail: info@patroneditore.com

Grafica e Impaginazione: Exegi Snc - Bologna Stampa: Tipografia Negri, Bologna - Novembre 2025

SommarioSommario Sommario Sommario

EDITORIALI

3

Autorizzazione del Tribunale di Torino no 2638 del 25.11.76

Pubblicazione trimestrale ai soci della Società Italiana Gallerie

Le opinioni espresse dagli Autori non impegnano la Direzione. Tutti i diritti di riproduzione sono riservati. Abbonamenti 2025

Abbonamento cartaceo Italia € 100,00

Abbonamento cartaceo estero € 150,00

Abbonamenti on-line € 80,00

Abbonamenti on-line Enti, Biblioteche, Università € 140,00

Fascicoli singoli cartacei Italia € 30,00

Fascicoli singoli cartacei estero € 40,00

PDF singoli articoli Italia/estero € 20,00 Per abbonamenti e ordini di arretrati, rivolgersi all’Ufficio Abbonamenti: abbonamenti@patroneditore.com o collegarsi al sito www.patroneditore.com/riviste.html Per ricevere i pdf dell’intera Rivista può essere inoltrata richiesta alla Segreteria della Società Italiana Gallerie (segreteria@societaitalianagallerie.it)

I pdf dei singoli articoli e gli abbonamenti online possono essere richiesti solo collegandosi al sito www.patroneditore.com/riviste.html Gli abbonamenti hanno decorrenza gennaio-dicembre, con diritto di ricevimento dei fascicoli già pubblicati, se sottoscritti in corso d’anno. I fascicoli cartacei non pervenuti vengono reintegrati non oltre 30 giorni dopo la spedizione del numero successivo. Modalità di pagamento: Versamento anticipato adottando una delle seguenti soluzioni: – c.c.p. n. 000016141400 intestato a Casa Editrice Prof. Riccardo Pàtron & C. S.r.l. - via Badini 12 - Quarto Inferiore - 40057 Granarolo dell’Emilia - Bologna - Italia – bonifico bancario a INTESA SAN PAOLO SPA, Agenzia: Castenaso, Via XXV aprile 10-D, 40057 Granarolo dell’Emilia – Bologna – Italia

IBAN: IT98M0306936767100000008509

BIC: BCITITMM – carta di credito o carta prepagata a mezzo PAYPAL (www.paypal.it) specificando l’indirizzo e-mail amministrazione@patroneditore.com nel modulo di compilazione per l’invio della conferma di pagamento all’Editore.

Per pubblicare un articolo sulla Rivista Gallerie e Grandi Opere Sotterranee occorre inviare il manoscritto all’indirizzo redazione@societaitalianagallerie.it redatto secondo il format scaricabile dal sito www.societaitalianagallerie.it La revisione degli articoli è a cura del Comitato Editoriale della rivista, che si avvale di revisori anonimi. Le opinioni dell’Autore non impegnano l’Editorial Board, ma esclusivamente la responsabilità dell’Autore stesso che garantisce l’originalità del proprio manoscritto e l’assenza di vincoli e di licenze per la pubblicazione, lasciando indenne la rivista da qualsiasi onere presente e futuro.

E. Pizzarotti

Nuovi incarichi, rinnovata passione

S. Miliziano

Passando ad occuparmi di altro…

INTERVISTA A:

5

Renato Casale

Consigliere e past-President S.I.G.

7 A. BUSILLO, M. RICCI, V. DI PIAZZA, T. BARRASSO, F. ZOTTI, V. LEONE

EPB-TBM cutterhead maintenance in hyperbaric conditions with potential income of methane gas

15 C. DE GIUDICI, A. MARINELLI, M. DEPRETIS, U. STEFANELLI, S. DECARLI, A. BRUNI

Advancing sustainable mobility: design and construction innovations in lot 1 of the Fortezza-Ponte Gardena section of the new Brenner railway

29 A. ANTONELLI, A. BRUSCHI, C. CALABRÒ

Milan Metro: from its origins to the present day, looking to the future

GEEG,startupdiSapienza,UniversitàdiRoma,affianca grandisocietàdiIngegneria,Imprese,fornitoriditecnologiee materialineiprocessidiRicercaeSviluppomediante proceduresperimentalieprotocolliinnovativiutiliinognifase, dal progetto fino ai controlli in corso d’opera.

Cerchi uno spazio in cui informarti su cosa succedenel mondo del sotterraneo? Iscriviti alla newsletter

Terra Terra - Down to Earth Tutto l'underground in un unico posto

Nuovi incarichi, rinnovata passione

Cari amici, mi sembra doveroso scrivervi nella doppia veste di nuovo Direttore Responsabile della Rivista e di nuovo Presidente.

Per prima cosa, desidero ringraziare Andrea Pigorini, Totò Miliziano, Renzo Bindi e tutto il Comitato di Redazione uscente per il lavoro svolto in questi ultimi tre anni. Ringrazio anche Daniela Boldini per aver accettato di assumere il nuovo ruolo di Direttrice Editoriale. Daniela sarà anche coordinatrice di un Comitato Tecnico-Scientifico composto da Lorenzo Brino, Totò Miliziano, Daniele Peila, Alessandra Sciotti e Antonio Voza, e sarà coadiuvata da un Comitato di Redazione con Renzo Bindi (Caporedattore), Diego Sebastiani (Responsabile Gestione Editoriale), Lorenzo Batocchioni, Andrea Carigi, Remo Di Lorenzo e Chiara Spaggiari (Redattori). A tutti loro vanno i miei ringraziamenti e auguri di buon lavoro: la Rivista è un organo fondamentale della nostra Associazione, indispensabile per la diffusione delle conoscenze del settore, per la visibilità di SIG in ambito nazionale e internazionale e per aumentare l’interesse e il coinvolgimento di tutti i Soci, anche attraverso la sinergia con gli altri canali di comunicazione (sito web, news, social).

Come neoeletto Presidente devo innanzi tutto ringraziare il past-President Renato Casale e tutto il Consiglio Direttivo del precedente mandato: hanno trasferito a me e al nuovo Consiglio una SIG attiva, solida, ricca di competenze e, soprattutto, dell’affezione dei Soci, in numero sempre crescente, in particolare tra i giovani. Un sincero augurio anche ad Andrea Pigorini, recentemente eletto Presidente di ITA: un grande risultato per lui e per SIG, di cui dobbiamo essere tutti orgogliosi e da cui aspettarci molte ricadute positive. Personalmente, sono onorato di essere il successore di precedenti Presidenti con molto maggiori merito ed esperienza, sento una grande responsabilità e prevedo un intenso impegno. Avrò, quindi, la necessità del supporto fattivo di tutto il Consiglio Direttivo e di tutti i Soci, che ringrazio per la fiducia e per la considerazione dimostratami. Gli obiettivi principali che vogliamo perseguire durante questo mandato sono:

l’incremento del numero dei Soci attraverso attività di promozione e di comunicazione; – Il rafforzamento della presenza in campo internazionale (ITA ed EUTF);

la migliore organizzazione e lo sviluppo dei Gruppi di Lavoro; – l’introduzione di particolari aree di attenzione su Sostenibilità e Innovazione e Responsabilità Sociale; oltre che, naturalmente, la prosecuzione dell’organizzazione di visite ai cantieri, di eventi (seminari, convegni, webinar, …) e di nuove iniziative editoriali.

A quest’ultimo riguardo, ho proposto a Daniela Boldini, che ha accettato, di aggiungere alla Rivista un nuovo contenuto che esuli da quelli consueti a cui tutti i Soci sono abituati. Ho la fortuna, o la sfortuna “anagrafica”, di possedere le copie della Rivista dal n. 30 circa in poi e ho sempre ricordato che l’allora Direttore Responsabile Alberto Motta era solito redigere il suo editoriale sotto forma di un breve ma gustoso racconto riguardante la vita e l’attualità nel campo delle opere sotterranee. Recentemente, poi, un caro amico mi ha “fulminato” con un’affermazione epigrammatica, che mi ha convinto che, forse, la mia proposta non era del tutto fuori luogo e che vi riporto: fare una cosa che sembra vecchia, vuol dire avere fiducia nel futuro. È con questa fiducia, che, essendo il promotore dell’iniziativa, ho trovato corretto espormi come apripista e, quindi, troverete in queste pagine un mio racconto. Spero che il mio esempio possa essere accolto favorevolmente e seguito da molti di voi, e vi invito a sottoporre a redazione@societaitalianagallerie.it i vostri racconti, ricordi, fotografie, documenti, …, in modo che la Rivista possa arricchirsi anche di contributi personali, intimi, emozionali e storici.

Enrico Maria Pizzarotti

Enrico Maria Pizzarotti.

Gallerie e Grandi Opere Sotterranee n. 155 – settembre 2025

Passando ad occuparmi di altro…

Cari soci, dopo due mandati nei quali ho ricoperto il ruolo di responsabile della nostra Rivista Gallerie e Grandi Opere Sotterranee per quanto attiene agli articoli tecnico-scientifici, è arrivato il momento di passare la mano. È stata una bella esperienza, impegnativa, a volte difficile, ma che mi ha dato belle soddisfazioni. Lascio una rivista alla quale oggi contribuisce attivamente la quasi totalità della comunità scientifica nazionale: praticamente tutti i professori che insegnano temi che hanno a che fare con la progettazione e la realizzazione delle gallerie sono coinvolti e svolgono un ruolo attivo per la nostra rivista. È stato potenziato il Comitato Editoriale e la numerosità e la qualità dei Revisori, la cui identità è stata scrupolosamente mantenuta riservata (blind review), hanno acquisito un ruolo centrale nel processo editoriale e grazie al loro lavoro la qualità degli articoli è migliorata sensibilmente. Dal luglio dello scorso anno abbiamo cominciato a pubblicare solo articoli in lingua inglese: un passo essenziale per la diffusione a livello internazionale della Rivista e per ottenere l’indicizzazione. Lascio una rivista modificata nella sua veste editoriale, oggi l’aspetto grafico è decisamente più gradevole.

Tanto è stato fatto ma tanto c’è ancora da fare. La nostra Rivista, infatti, non ha ancora acquisto il respiro internazionale che le manca e che ormai merita tenuto conto della qualità degli articoli che pubblica. Ancora oggi, però, sono troppo pochi gli articoli pubblicati da autori stranieri (al netto dei numeri speciali) e molto poche sono anche le citazioni che gli articoli pubblicati ricevono. Sarà compito di Daniela Boldini, che ha avuto l’incarico di proseguire il mio lavoro dal rinnovato Consiglio Direttivo della SIG per il triennio 2025-2027 nella sua prima riunione tenutasi a Bologna il 7 luglio 2025, a completare l’opera. A Daniela, Direttrice Editoriale della Rivista, auguro un buon lavoro e le garantisco tutto il supporto di cui avrà bisogno soprattutto nella fase di passaggio di consegne.

Nel salutarvi voglio ringraziare innanzi tutto il Comitato Editoriale che ho avuto il piacere e l’onore di coordinare, senza il lavoro del quale tutto ciò che è successo non sarebbe accaduto. In primis, Stefania Fabozzi per l’impegno profuso e anche per la delicatezza con la quale mi ha richiamato qualche volta all’ordine, nei momenti nei quali preso da mille cose non sono stato adeguatamente reattivo. Remo di Lorenzi, entrato nel gruppo in corsa, per la preziosa collaborazione. Lorenzo Batocchioni, l’ultimo acquisto in ordine di tempo. E, ovviamente, Renzo Bindi e Diego Sebastiani, che in qualitò di Advisory Editor e co-Advisory Editor si sono dedicati con impegno, competenza e passione a coordinare tutte le altre rubriche che completano la nostra Rivista. Un ringraziamento speciale va a Massimo Tognetti della Patron, che con competenza, dedizione ed entusiasmo ha accompagnato il processo di crescita della nostra Rivista e anche per avere dato la disponibilità, in qualche caso, a implementare le modifiche richieste all’ultima ora, a numero ormai quasi chiuso. Colgo l’occasione per ringraziare i 176 soci che mi hanno voluto nel Consiglio Direttivo del prossimo triennio, nel quale continuerò a dare un contributo alla nostra Associazione partecipando attivamente al Comitato Tecnico-Scientifico permanente che si occuperà di garantire la qualità tecnica e scientifica di tutti gli eventi organizzati dalla SIG e che supporterà Daniela nella gestione della Rivista. Sono stato onorato dalla richiesta fattami dal Presidente Enrico Maria Pizzarotti, attuale Direttore Responsabile della Rivista, di far parte di questo Comitato: lavorerò con impegno ed entusiasmo per il bene della nostra Associazione.

I tre articoli stampati in questo numero completano la pubblicazione degli articoli della serie “Tunnelling Projects in Italy” che trovate nei numeri speciali della rivista austriaca Geomechanics and Tunnelling (n. 4/25) e di Gallerie e Grandi Opere Sotterranee (n. 154), disponibili in modalità di accesso libero sui rispettivi siti web.

Per concludere, come già fatto in passato, in un periodo di intense attività progettuali e di realizzazione di importanti infrastrutture con tante gallerie, colgo l’occasione per rinnovare ai lettori gli auguri di buon lavoro, oltre ad augurare a tutti una buona vita e un lieto vivere!

prof. ing. Salvatore Miliziano

Salvatore Miliziano.

L’ing. Renato Casale non ha certo bisogno di presentazioni su queste pagine. Nel corso del suo recente mandato triennale alla presidenza della SIG ha saputo guidare l’Associazione con competenza, visione strategica e spirito di servizio, rafforzandone il ruolo nel contesto nazionale e internazionale. Il suo contributo, tuttavia, va ben oltre la carica istituzionale: con un’esperienza tecnica e gestionale tra le più rilevanti nel panorama delle infrastrutture sotterranee, ha lasciato un’impronta profonda nello sviluppo e nell’innovazione del settore.

In questa intervista, raccolta al termine del suo mandato, ripercorriamo alcuni passaggi salienti di un triennio intenso e stimolante, riflettendo con lui sulle prospettive future della nostra Associazione, sulle sfide che attendono il mondo delle opere in sotterraneo e sul senso di una professione che continua a evolvere, pur restando saldamente ancorata a solide competenze e a una visione di lungo periodo.

Caro Presidente, sei arrivato alla fine del tuo mandato in un momento decisamente straordinario per il nostro settore: se dovessi raccontarci questi tre anni, cosa diresti?

Si è appena concluso il mio mandato triennale di Presidente della Società Italiana Gallerie, piuttosto impegnativo perché inserito in un contesto straordinario del tunnelling infrastrutturale italiano, ma pieno di soddisfazioni per gli obiettivi raggiunti.

Una caratteristica di tale periodo è stata la necessità di governare almeno quattro temi particolarmente rilevanti: – la sostenibilità ambientale complessiva, di breve e lungo termine; – l’industrializzazione dei processi, che garantisca affidabilità di tempi, costi, qualità e durabilità delle opere; – la sicurezza delle persone, sia in fase di costruzione sia in quella di esercizio;

l’enorme quantità di materiali, macchine e risorse umane necessarie in un periodo di tempo molto limitato.

Una simile complessità, soprattutto in relazione a una notevole molteplicità di dati da governare, può essere gestita compiutamente solo da sistemi basati, almeno parzialmente ma progressivamente, su una spinta automazione dei processi.

Occorre intervenire su tutta la filiera dell’intero processo, quindi: – ottimizzare la progettazione, anche attraverso la simulazione e i gemelli digitali; – pianificare e gestire i singoli progetti, anche con tecniche evolute di risk management; – implementare e gestire piattaforme di monitoraggio e sorveglianza strutturale in tempo reale; – governare la manutenzione di opere complesse attraverso l’interpretazione tempestiva dei dati di monitoraggio.

Quali vantaggi e opportunità può offrire questo sistema? I vantaggi che tale sistema può offrire sono:

– elevatissima affidabilità di processi produttivi e di controllo, connotati da una completa definizione degli ambiti applicativi; – straordinaria rapidità di verifiche a elevata connotazione compilativa e ripetitiva; – recupero di risorse da dedicare ad attività che richiedono elevate competenze ingegneristiche creative.

Occorre quindi passare rapidamente a una completa integrazione dei processi, mettendo a frutto appieno tutti i livelli funzionali dell’automazione e riservando ai progettisti e al personale tecnico quelle operazioni ad altissimo valore specifico.

Consideri questo un periodo favorevole per cambiamenti così importanti?

Il periodo che viviamo si presenta particolarmente denso di progettazione e costruzione di opere in sotterraneo, dedicate prevalentemente alle infrastrutture di trasporto ferroviario, stradale e metropolitano, che coinvolgeranno a breve in modo massiccio anche il recupero e l’upgrading funzionale dell’enorme patrimonio di gallerie esistenti nel nostro Paese.

Ci sono pertanto tutte le condizioni economiche, programmatiche, ambientali e tecniche necessarie per uno sviluppo deciso dell’automazione, la quale potrebbe nel giro di una sola decade portare addirittura alla realizzazione di gallerie e opere accessorie completamente da remoto, con evidenti e innegabili benefici per la sicurezza e la qualità del lavoro.

La progettazione nelle opere in sotterraneo riveste certamente un ruolo di primissimo rilievo nel dare compiutezza allo sviluppo dei grandi temi cardine ai quali prima accennavo.

Il grande e rapido sviluppo tecnologico, l’attenzione alla necessità di garantire condizioni di sicurezza per le persone e per l’ambiente in contesti complessi, la necessità di una spinta industrializzazione e l’importanza degli aspetti logistici sono sicuramente tutte sfide pienamente accettate da chi oggi progetta gallerie in Italia.

Il numero e la complessità delle opere in fase di progettazione e realizzazione oggi, insieme alle tempistiche particolarmente sfidanti dettate dagli impegni presi a livello europeo, rendono necessario fare ricorso al meglio delle competenze e dell’esperienza che oggi l’Italia ha da mettere a disposizione.

Renato Casale.

Intervista Intervista

Cosa puoi dirci su tema della sostenibilità?

I temi della sostenibilità sono temi coi quali il settore è chiamato a confrontarsi in ambito sia internazionale sia nazionale. In particolare, quello della sostenibilità ambientale è ormai generalmente considerato indissolubile da quelli della realizzazione delle opere in sotterraneo.

Queste, rispetto ad altre tipologie di infrastrutture, si trovano già in una posizione estremamente privilegiata per ottemperare ai criteri ESG (Environmental – Social – Governance), dato il loro ridottissimo o del tutto assente impatto visivo sul paesaggio e la possibilità da loro offerta di liberare la superficie del territorio, naturale o urbanizzato, dalla congestione del traffico privato, dei trasporti di merci, dei servizi, dei depositi, della veicolazione di fluidi, dell’energia e delle comunicazioni (acqua, gas, cavi, linee e utilities in genere).

Scendendo nel concreto, credo che gli approcci più significativi siano quelli legati a: – la gestione dei materiali di scavo, nei riguardi della loro corretta messa a dimora dal punto di vista paesaggistico e, se possibile, addirittura risolutiva per rimarginare le ferite esistenti nel territorio; – il trattamento dei materiali di scavo additivati con polimeri e/o schiumogeni in caso di scavo meccanizzato;

la gestione corretta delle acque di cantiere per evitare inquinamenti e di quelle drenate dall’ammasso, nella misura minima possibile per evitare il depauperamento delle falde;

l’attenzione per le installazioni di cantiere inserite nell’ambiente e facenti affidamento il più possibile sulle energie alternative;

l’ottimizzazione dei trasporti e della logistica di cantiere, prediligendo quelli su ferro e l’impiego di veicoli elettrici e di nastri trasportatori;

– la rinaturalizzazione delle aree di cantiere a seguito del completamento dei lavori e l’attenzione all’inserimento delle opere nel paesaggio;

– la gestione della ventilazione sia in fase di costruzione sia in fase di esercizio per ridurre l’inquinamento atmosferico;

– la riduzione dell’impatto acustico sia in fase di costruzione sia in esercizio;

– l’utilizzo di materiali di riciclo, la massimizzazione dell’impiego di manufatti prefabbricati e di impianti a basso consumo energetico; – il coinvolgimento delle popolazioni dei territori interessati fin dalle origini del progetto (stakeholder engagement);

– la costante attenzione all’innovazione e alla ricerca di soluzioni più sicure e responsabili sia in fase di costruzione sia in fase di esercizio.

Potresti proporci una riflessione su una materia così delicata come la sicurezza?

Certamente, la cultura della sicurezza nell’ingegneria italiana, che, in ogni settore e in particolare in quello del tunnelling, è sempre stata a un livello corrispondente ai più elevati standard internazionali, merita una riflessione particolare.

Negli ultimi anni si è dovuto affrontare con urgenza il progressivo e incrementale deterioramento delle gallerie esistenti, con inevitabili criticità sul fronte della loro fruibilità in condizioni ottimali.

Il sistema dei gestori, dei progettisti e delle imprese ha tuttavia reagito con prontezza, impegno, professionalità e capacità gestionali, avviando un massiccio intervento di radicale riqualificazione delle gallerie esistenti, tuttora in atto, con l’obiettivo comune di un completamento a breve scadenza, che ridarà nuova vita utile a un patrimonio infrastrutturale inestimabile,

in grado di generare un importante ritorno in termini di sostenibilità ambientale ed economica.

Per quanto riguarda le gallerie in costruzione, le metodologie progettuali ed esecutive sono da tempo a elevatissimo livello per tutti i fattori della costruzione e, in particolare, anche per quello legato alla sicurezza, giovandosi dei sempre più efficienti sistemi di automazione dei processi costruttivi, i quali tendono a sottrarre le maestranze dai luoghi sensibili, posti prevalentemente a ridosso del fronte di scavo.

A ciò si aggiunge il trasferimento della gestione della sicurezza dal controllo procedurale affidato all’uomo a quello affidato ai sistemi automatici, di per sé caratterizzati da elevati standard internazionali.

Chiuderei questa breve riflessione con un cenno alle relazioni che la Società Italiana Gallerie ha con le Istituzioni.

Certamente, come vedi il rapporto della SIG con le istituzioni?

La SIG si confronta spesso con le istituzioni, soprattutto con quelle componenti rappresentate dalle principali committenze pubbliche e dalle più importanti università italiane, in occasione di eventi scientifici e didattici. Il confronto riguarda essenzialmente la condivisione di esperienze, l’impulso alla ricerca e all’innovazione, lo sviluppo di note tecniche, di raccomandazioni a carattere procedurale e contrattuale e best practice di riferimento nazionale e internazionale.

In relazione a ciò auspichiamo l’intensificazione di tali iniziative, con l’obiettivo principale di diventare un interlocutore strategico e affidabile, che pone al servizio di tutti i player del mondo del tunnelling la propria conoscenza ed esperienza, maturata durante i cinquant’anni trascorsi dalla propria fondazione (1974), e soprattutto quella che acquisisce quotidianamente nel proprio continuo sforzo di diffusione della cultura dell’ingegneria delle opere in sotterraneo.

Caro Presidente, grazie per aver condiviso con noi riflessioni così lucide, ricche di esperienza e animate da una profonda passione. Chi ti conosce sa infatti con quanta dedizione e competenza hai vissuto questi tre anni alla guida della SIG. È stato un piacere, oltre che un onore, poterne parlare insieme, ancora una volta, da colleghi e da amici.

Tunnel di Base del Brennero – Caverna logistica e di lancio TBM.

EPB-TBM cutterhead maintenance in hyperbaric conditions with potential income of methane gas

EPB-TBM manutenzione della testa fresante in condizioni iperbariche con potenziale presenza di gas metano

Aristodemo Busillo a Marco Ricci a, *

Vito Di Piazza a

Tommaso Ba RR asso a Flora zotti a

Virginio leone b

Paolo RomualDi c

a Hirpinia AV

b Collins srl

b Webuild SpA

* corresponding author: m.ricci@hirpinia-av.it

Abstract

EPB (Earth Pressure Balance)-TBM (Tunnel Boring Machines) are widely used in the excavation process of modern projects because they offer several advantages compared to the traditional methods, such as increase of efficiency, precision and safety of the workers involved. Nevertheless, during maintenance activities on the TBM cutterhead, personnel is forced to work from the inside of the excavation chamber, with potential over-pressure needed to face instability of the soil and water income. During the excavation of Grottaminarda tunnel, located through the Apennines in Italy, various maintenance interventions in hyperbaric conditions were carried out. Severe safety procedures were observed before and during these activities because the geology presented the risk of methane gas dissolved in the soil. This critical aspect paved the way for new standards of safety and efficiency in the maintenance of large underground excavation machines.

Sommario

Le TBM-EPB (Tunnel Boring Machine-Earth Pressure Balance) sono macchine ampiamente utilizzate nei processi di scavo dei progetti moderni perché offrono numerosi vantaggi rispetto ai metodi tradizionali, come l’aumento dell’efficienza, della precisione e della sicurezza degli operatori coinvolti. Tuttavia, durante le attività di manutenzione sulla testa fresante della TBM, il personale è costretto a lavorare dall’interno della camera di scavo, con potenziale presenza di sovrapressioni quando necessario per far fronte all’instabilità del terreno e all’afflusso idrico. Durante lo scavo della galleria di Grottaminarda, situata attraverso gli Appennini in Italia, sono stati eseguiti diversi interventi di manutenzione in condizioni iperbariche. Si sono osservate rigorose procedure di sicurezza prima e durante queste attività, poiché la geologia presentava il rischio di gas metano disciolto nel terreno. Questo aspetto critico ha aperto la strada a nuovi standard di sicurezza ed efficienza nella manutenzione delle grandi macchine per il tunnelling.

Keywords: methane gas, maintenance, hyperbarism, cutterhead wear, EPB-TBM maintenance. Parole chiave: Gas metano, manutenzione, iperbarismo, usura della testa fresante, manutenzione delle TBM-EPB.

1. Gas risk management during the hyperbaric maintenance

1.1. introduction

The advancing phase of TBMs implicates the progressive wear of the excavation tools placed on the cutting wheel. This means that maintenance operations need to be scheduled periodically to check and replace the tools, if necessary. The maintenance work carried out during the construction of the

Grottaminarda tunnel took place in hyperbaric conditions. Maintenance on the cutterhead is never a simple operation because it requires a series of preliminary operations, which become even more delicate under hyperbaric conditions, considering the combination of risks related to working in a hyperbaric environment with those related to the potential presence of explosive mixtures, imposing the adoption of technical solutions, specific skills and advanced technologies dedicated to minimising the firedamp risk and safeguarding personnel working inside the excavation chamber under

hyperbaric conditions. Such experience provides information that can be used for future operations in similar conditions, with the aim of improving safety in the working environment and the reliability of the equipment used.

1.2. Introduction and description of case study

The case study to be represented concerns the Grottaminarda tunnel, included in Apice – Hirpinia Section of new Naples-Bari HS/HC (High-Speed/High Capacity) Railway Line. This tunnel, excavated between September 20th 2023 and September 5th 2024, is 1966,25 m long and is inserted in a lithological context known as red flysch, a formation characterized by high compositional variability. Red flysch (FYRcc) consists of clays and marly clays with silty-arenitic intervals with angular elements from centimeters to multi-decimeters and in some cases metric/multimetric. The knowledge on the presence of methane in this formation, and more generally on the entire tunnel section, are summarized in the following points:

the monitoring campaign carried out during the surveys, before the construction of the tunnel, identified the presence of methane in the Apice-Hirpinia construction site. – The geological context is characterized by a rather irregular and heterogeneous structure, as evident from the geological-geomechanical profile shown in figure 1. The maintenance activity in the excavation chamber began on January 22nd 2024, when the excavation chainage was 3387.942 m, corresponding to ring built No.374 (Figure 2).

2. Technical and technological solutions for safe excavation in gassy rock masses

The TBM and the tunnel were compartmentalized by separated volumes, with physical and hydraulic barriers, each of which had different explosiveness alarm trigger values de-

pending on the presence of workers and the function performed.

The design of the TBM-EPB in firedamp formations is based on the principle of managing emission sources and confining the air-methane mixture through an ATEX volume. The general concepts of the TBM are in accordance with EN16191, EN 80079-38 (Explosive atmospheres - Part 38: Equipment and components intended for explosive atmospheres in underground mines) [2] and Interregional Note No. 44 (NIR 44). NIR 44 introduces the concept of compartmentalization in volumes of the TBM, the layout of which is shown in figure 3, establishing four volumes characterized by different risk assessments and different solutions aimed

Busillo - Ricci - Di Piazza - Barrasso - Zotti - Leone - Romualdi
Figure 1. Grottaminarda Tunnel geological - geomechanical profile.
Figure 2. Grottaminarda Tunnel geological profile at chainage 3387,94m: FYRcc - Ruditic lithofacies with a clayey marly matrix.

at mitigating the risk of explosive atmospheres [1]:

Volume 1 – The excavation chamber and the screw conveyor belong to this volume. The presence of explosive mixtures is possible while the inhibition of ignition sources, especially frictional, is not feasible Risk minimization is achieved by requiring that this volume is always filled with excavated material mixed with fluids such as water, tensid or bentonite, preventing the formation of methane-air volumes. During maintenance, when the excavation chamber must be emptied, access to personnel is restricted to the absence of methane concentrations.

For excavation chamber accesses (e.g. for maintenance work) a distinction must be made between two different types:

– normobaric conditions. Measures for minimizing the danger are ventilation with healthy air, monitoring and use of materials and equipment in ATEX trim.

– hyperbaric conditions, for which it is necessary to support the dedicated procedures to manage methane income risk with the procedures dictated by hyperbarism, described above.

Volume 2 – Volume of the TBM outside Volume 1 and Volume 3 where emissions are possible only due to the lack of efficiency of the containment systems of Volume 1 and 3 or the inefficiency of the sealing elements, such as tail brushes seal system located on the tail shield. Risk minimization is achieved through the adoption of dedicated ventilation, advanced gas and ventilation monitoring systems, the adoption of ATEX emergency equipment, automatic disconnecting systems and work procedures.

Volume 3 – Volume dedicated to the confinement of emissions from the screw conveyor. The volume is geometrically

limited by a compartment that encloses the screw discharge and the TBM conveyor belt. Ventilation inside the compartment is ensured by a dedicated ATEX ventilation system that allows the flow of incoming air from the end of the compartment, conveying the volumes potentially polluted by methane to the back of the TBM.

Risk minimization is achieved by:

– providing the possibility of stopping emissions by closing the screw conveyor;

– providing an effective and highly reliable ventilation system;

– the presence of a methane monitoring system; – alarm and emergency procedures;

– ATEX plants and equipment.

Volume 4 – Volume situated backwards Volume 3. Methane emissions that can reach this volume can come from volume 3 or can be carried by the pressure ventilation in the event of decay of the sealing elements (tail brushes).

The monitoring system and the related alarm and signaling systems must detect the presence of methane-air mixtures. In case of methane concentrations evidence, alarm conditions must be activated, associated with optical and acoustic signals and procedures for electrical disconnection and evacuation from the excavation chamber [3]. The monitoring system must be characterized by high reliability and efficiency; they must comply with EN 61508 and are intrinsically safe. The transducers detect potential methane concentrations through specific tap points inside the excavation chamber conveying air to sensors placed externally, in normobaric conditions. The values detected by the sensors are recorded and then visualized in a diagram.

Figure 3. Volume Breakdown.

3. Safety procedures and protocols developed in Grottaminarda tunnel for TBM cutterhead maintenance operations in hyperbaric conditions

The certain presence of gas in the ground has made it necessary, before the excavation start, to redefine the risk assessment and the safety system by referring to the technical standards of the sector and adopting interventions aimed at minimizing the dangers associated with the presence of explosive mixtures.

The parameters to be adopted during the TBM excavation at the chainage corresponding to the cutterhead maintenance (Ch. 3387.942 m), according to the geo-mechanical studies, suggested a pressure range between 1.4÷2.3 bar in the excavation chamber crown, which was measured at the top pressure cell, sensor #11 (Table 1). The position of each pressure cell on the TBM bulkhead, providing the pressure inside the excavation chamber, is illustrated in figure 4.

In general, the safety protocol applied to minimize the risks associated with the presence of methane in tunnels, in nor-

mobaric conditions, includes certain requirements:

– ventilation capable of ensuring a minimum speed of 0.3 m/s and a rapid exchange of air in the work areas;

– use of ATEX (ATmospherès EXposibles) equipment, i.e. without ignition sources;

– presence of methane monitoring system, consisting of fixed equipment and manual monitoring;

– safety procedures involving ATEX monitoring and equipment;

– alarm procedures involving shutdown of activities and evacuation of the underground.

The hyperbaric pressure added to the presence of a potentially grisly environment required the adoption of strict safety protocols, introducing specific precautions to protect the workers.

When in hyperbaric conditions, in presence of explosive atmospheres, it must be considered:

– for certain values of the pressure-time binomial to which workers in the excavation chamber are exposed, it is very complicated to foresee a safe evacuation from the underground due to the physiological effects linked to a sudden passage of personnel from working pressure to atmospheric pressure;

– the non-feasibility of ventilation systems capable of ensuring adequate air movement and exchange;

– the need to use equipment without ignition sources in hyperbaric conditions, since ATEX equipment is only safe and certified at atmospheric pressure. ATEX tools are free of ignition sources in normobaric conditions but not necessarily so in hyperbaric conditions;

– the need for the definition of reliable monitoring systems capable of operating in hyperbaric conditions.

The meticulous safety procedures and protocols implemented to deal with the gas risk in a hyperbaric environment, such as TBM cutterhead maintenance operations of Grottaminarda tunnel, are described below.

Before the intervention, the following preliminary activities need to be necessarily performed:

– Preliminary Study: a meticulous analysis is carried out to identify all risks associated with this type of activity, according to the expected geological characteristics, and is supplemented by constant monitoring of gas levels in the hyperbaric work environment.

The hyperbaric environment in TBM is composed of three volumes, which can be segregated from each other:

Busillo - Ricci - Di Piazza - Barrasso - Zotti - Leone - Romualdi
Table 1 . Pressure range to be kept in the excavation chamber referred to the cell #11.
Figure 4. Schematization of the position of the pressure gauges in the excavation chamber (from #2 to #11).

1. Excavation chamber;

2. Working chamber, adjacent to the first;

3. Hyperbaric chamber.

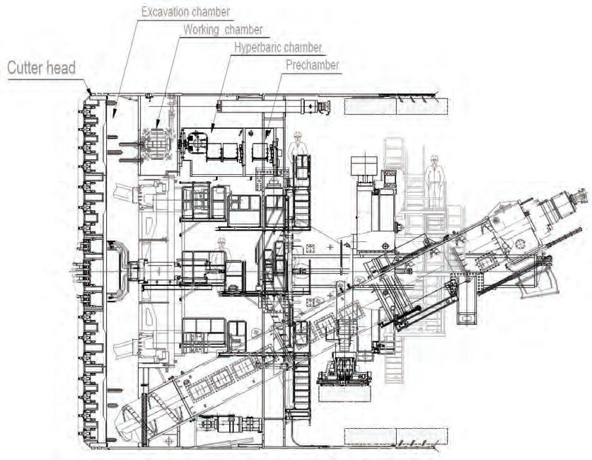
Prechamber is generally used for assistance and can be pressurized in case tools and other materials are required from the personnel working in hyperbaric environment. In figure 5 a scheme of the TBM Main Machine is shown, highlighting the location of the areas described.

Penetrations with dedicated collection probes capture the air in the excavation chamber and convey it into a box with 4 transducers of the gas monitoring system inside. If the alarm condition is detected, the evacuation procedure contemplates the abandonment of the excavation chamber, the refuge in the hyperbaric chamber, and the closure of both the door between the excavation chamber and the working chamber, and that of the hyperbaric chamber.

– Verification of equipment: the correct functioning of hyperbaric chambers must be verified before each use as it is essential to continuously guarantee safety standards for the personnel involved. Hyperbaric chambers, therefore, are subjected to scheduled maintenance, calibration or, if necessary, repair interventions, in order to always maintain high levels of safety as a priority. The main maintenance interventions are: leak assessment, control and calibration of monitoring instruments, main -

tenance of access doors, control of the electrical system and emergency and communication systems, air quality checks and wear monitoring with replacement of parts subject to deterioration.

Furthermore, outside the tunnel there is always a medical hyperbaric chamber to guarantee decompression interventions in case of critical conditions or emergency that lead to sudden evacuation from the hyperbaric environment (Figure 6).

Figure 5. TBM Main Machine scheme.
Figure 6. Mobile Emergency Hyperbaric Chamber.

All equipment used for the maintenance of the cutter head is carefully inspected before use.

The entire ventilation system is checked to ensure its functionality and continuous air exchange.

In addition to the automatic gas monitoring system, there are also gas-monitoring supervisors, personnel trained in the detection of air composition inside the TBM and able to express an initial assessment of the measured values in relation to the explosion risk. Each gas-monitoring supervisor is equipped with a portable detector, which is checked every day and calibrated every month. During maintenance activities under hyperbaric conditions, a gas-monitoring supervisor is always present in the working chamber, which communicates with the excavation chamber, to constantly assess gas levels.

– Emergency protocol: An emergency plan has been prepared to handle gas emissions related incidents or equipment malfunctions that include rapid escape routes, first aid, and access to specialized teams for critical situations. Qualified personnel who can intervene quickly is crucial. For this purpose, emergency simulations were organized and carried out together with firefighters and the national emergency department, with the aim of testing emergency procedures and training all workers involved. During all the activities, an emergency vehicle is positioned at the end of the TBM Backup (Figure 7).

– Training and preparation of personnel: the operators involved in the maintenance of the cutterhead have been adequately trained and informed on the safety procedures to be implemented to work in hyperbaric envi-

ronments and with the risk of formation of explosive gas atmospheres. Each operator has been subjected to a specific medical protocol (specialist medical examinations, preliminary immersion test in an external hyperbaric chamber for suitability) for the achievement of suitability and qualification to work in hyperbaric environments.

– Significant surveillance : gas sensors have constantly monitored methane gas levels, ensuring the safety of operators and the success of the intervention. Each entrance to the excavation chamber was also supervised by specialized medical personnel and hyperbaric technicians ready to intervene in case of emergency (Figure 8).

4. Description of the maintenance intervention

The working pressure adopted for maintenance in the excavation chamber was 1.65 bar.

In these pressure conditions, the maintenance intervention lasted a total of 19 days, i.e. from January 22nd to February 09th 2024.

Before entering the excavation chamber, a tapping probe was installed, connected to a transducer of the automatic monitoring system which allows manual detection, in order to hydraulically connect the TBM work-environment with the excavation chamber (Volume 1).

In the diagrams below are shown the methane gas evidence from volumes 2, 3 and 4 during the days in which the main-

Busillo - Ricci - Di Piazza - Barrasso - Zotti - Leone - Romualdi
Figure 7. Emergency vehicle.
Figure 8. Maintenance activities surveillance: pressure detection system in front of hyperbaric chamber.

EPB-TBM cutterhead maintenance in hyperbaric conditions with potential income of methane gas

seconds).

tenance activity was carried out in hyperbaric conditions. From the graph shown in figure 9 it is possible to see how, during the day of January 23rd 2024, the sensors TM1-5 screw conveyor 2, TM3-2 tunnel belt conveyor detected methane concentration above the pre-alarm trigger value. The sensor TM1-8 inner tunnel belt conveyor, located in Vol-

ume 3, detected the presence of gas above the warning trigger value on January 22nd 2024 (Figure 10).

As for Volume 4, on January 22nd and 25th the sensors TM36 rear intake duct. and TM3-7 front intake duct, recorded the presence of gas with a content substantially below the prealarm trigger (Figure 11).

Figure 9. Continuous monitoring system recordings in Volume 2 (Maximum values detected in ten
Figure 10. Continuous monitoring system recordings in Volume 3 (Maximum values detected in ten seconds).

During the operations, as shown in the diagram of the figure 9, a sudden gas injection forced the operators involved in the work to evacuate the excavation chamber and to carry out the decompression by passing through the hyperbaric chamber, as there was an exceedance of the pre-alarm trigger defined by the operating procedure (CH4 concentration >0.15% by volume).

In order to allow a quick resumption of maintenance activities, fresh air intake and polluted mixture aspiration provided the drainage of the excavation chamber, as per the operating procedure.

In other words, the reduction of the CH4 concentration in the excavation chamber took place by insufflation of clean air from outside, through the dedicated ducts, and the air aspiration from the top of the pressurized environment, conveying it towards the ATEX TBM belt. Thanks to the automatic pressure compensation system in the excavation chamber, it was possible to guarantee the stability of the pressure itself.

This procedure lasted until the methane concentration reduced below the warning trigger value, so that maintenance activities could go on safely.

5. Conclusion

The intervention, as it was a clear success of the applied technologies and procedures implemented, represents an

innovative approach of TBM maintenance to be adopted in similar projects.

Work in a hyperbaric environment with the potential presence of gas represents a turning point for TBM-EPB maintenance. This project, with the procedures designed and implemented, opens up cutting-edge scenarios for the safe management of methane risk, in the hyperbaric field, during maintenance activities.

References

[1] Bandini, Berry Cormio, Colaiori, Lisardi. (2017) – Safe excavation of large section tunnels with Earth Pressure Balance Tunnel Boring Machine in gassy rock masses: The Sparvo tunnel case study. In: Tunnelling and Underground Space Technology 67: 85-97. DOI: 10.1016/j. tust.2017.05.001

[2] EN ISO/IEC 80079-38:2016 Explosive atmospheres - Part 38: Equipment and components in explosive atmospheres in underground mines. CEN, the European Committee for Standardization En 1127-2:2014, Explosive atmospheres - Explosion prevention and protection - Part 2: Basic concepts and methodology for mining. CEN, the European Committee for Standardization.

[3] EN 60079-29-1:2016 Explosive atmospheres - Part 29-1: Gas detectors - Performance requirements of detectors for flammable gases.

Busillo - Ricci - Di Piazza - Barrasso - Zotti - Leone - Romualdi
Figure 11. Continuous monitoring system recordings in Volume 4 (Maximum values detected in ten seconds).

Advancing sustainable mobility: design and construction innovations in lot 1 of the Fortezza–Ponte Gardena section of the new Brenner railway

Promuovere la mobilità sostenibile: innovazioni progettuali e costruttive nel lotto 1 della tratta Fortezza–Ponte Gardena della nuova ferrovia del Brennero

Claudio De GiuDici a, *

Antonella m a Rinelli a

Marco DePRetis a

Ubaldo stefanelli a

Stefano Deca Rli a

Adamo BRuni a

a Dolomiti Webuild Implenia Consortium site technical department

* corresponding author: c.degiudici@consorziodolomiti.it

Abstract

The Brenner corridor is one of the most important routes for carrying goods between Mediterranean and northern Europe, but nowadays, just under 30% of freight is transported by rail. The remaining travels along the Brenner motorway A22 which suffers from congestion and overload problems, with consequent significant environment impacts. The current EU strategy aims therefore to eliminate bottlenecks and to develop the transport network, to reduce road traffic and making rail transport more competitive. In this scenario, the new railway construction line to cross the Brenner pass has been planned and with this line it will be connected the southern access route and the Italian high-speed and high-capacity network. The first lot, designed and built by the Italian Consortium Dolomiti, a JV between Webuild S.p.A. and Implenia GbMh, leads from Ponte Gardena to Fortezza entirely in Alto Adige. It consists in a new railway approximately 23 km long, of which 15.4 and 6.3 km respectively for the two doubletube and single-track tunnels Scaleres and Gardena. The two tunnels will be connected by a viaduct section over the Isarco River. During the design study the Joint Venture proposed several improvements aimed to mitigate the executive delay risks during execution. The most significant one was the increase, from the 40% up to the 80%, of the share of mechanized excavation. For the first time in Italy the adoption of steel fiber reinforcement was implemented for the precast segments.

Sommario

Il corridoio del Brennero rappresenta una delle tratte più importanti per il trasporto delle merci tra il Mediterraneo e l’Europa settentrionale; tuttavia, attualmente meno del 30% del traffico merci via terra avviene su rotaia in quanto la maggior parte impiega la rete locale e, soprattutto, l’autostrada del Brennero A22, con conseguenti gravi problemi di sovraccarico, congestione della linea autostradale e aumento dell’impatto ambientale. L’attuale strategia dell’UE mira a eliminare i colli di bottiglia e sviluppare una rete di trasporti sostenibile, riducendo il traffico stradale e rendendo il trasporto ferroviario più competitivo, implementando la rete ferroviaria. Alla luce di ciò, è in fase di completamento l’attraversamento transfrontaliero del Brennero tra Fortezza e Innsbruck ed è stata pianificata, da parte di RFI (Rete Ferroviaria Italiana), la costruzione di una nuova linea ferroviaria per l’attraversamento del confine del Brennero, per collegare l’accesso sud del Tunnel di Base del Brennero al nodo di Verona e alla rete italiana ad alta velocità e alta capacità. Il primo lotto, progettato e realizzato dal Consorzio italiano Dolomiti, una joint venture tra Webuild S.p.A. e Implenia GmbH su progetto definitivo di Italferr, si estende da Ponte Gardena a Fortezza, interamente in Alto Adige. Si tratta di una nuova linea ferroviaria a doppia canna singolo binario lunga circa 23 km, di cui rispettivamente 15,4 km e 6,3 km per i due tunnel Scaleres e Gardena; questi saranno collegati da un ponte che sovrappasserà il fiume Isarco. Durante la fase di progettazione, la joint venture ha proposto diversi miglioramenti al fine di limitare i possibili rischi di ritardi nell’esecuzione. Il più significativo è stato l’aumento della percentuale di scavo meccanizzato, portata dal 40% all’80%; inoltre, per la prima volta in Italia è stato impiegato il calcestruzzo armato fibrorinforzato in assenza di armatura tradizionale per la costruzione dei conci delle gallerie di linea.

Keywords: Tunnelling; mechanical-excavation, SFRC; BIM, digitalization, sustainability, TEN-T, insubric-line. Parole chiave: Tunnelling, scavo meccaniczzato, SFRC, BIM, digitalizzazione, sostenibilità, TEN-T, linea insubrica.

1. Introduction

1.1. TEN-T and general project overview

In 1992, in order to reduce increasingly heavy road traffic in favour of rail transport, to support the single market, to guarantee free circulation of goods and people on a reliable and high-performing infrastructure and to strengthen the economic growth and the competitiveness of the Union, the EU promoted, designed and developed a brand new rail transport network, the TEN-T (Trans European NetworkTransport) (Figure 1).

The core network consists of nine corridors which have been defined to cover all EU Member States. By crossing borders, they will connect major cities to the most important airports and seaports through railway infrastructure and related access points to main roads.

The Scandinavian - Mediterranean corridor is the longest of the nine connections and represents a key infrastructure for both Italian and European economy as well. It is aligned along a North-South axis and it will link the cities of Helsinki in Finland and Valletta in Malta, covering a total length of around 4,800 km. Nowadays it is the busiest Alpine corridor, with more than 50 million tonnes of freight and around 14 million vehicles per year, including 2.5 million heavy goods vehicles.

The central element of this corridor, along the Munich - Verona segment, is represented by the Brenner Base Tunnel, which will allow to overcome the natural barrier formed by the Alps, and by its Southern access route, which is entirely located in Italy along the Isarco and Adige valleys. This southern access route involves the quadrupling of the current railway line often carried out outside the current track and implemented in four priority lots. The first one, from north to south, is Lot 1: Fortezza – Ponte Gardena.

The project is expected to contribute significantly to the decarbonization of Alpine transport by shifting freight traffic from road to rail and it will help reduce greenhouse gas emissions, noise pollution, and air quality impacts in ecologically sensitive mountain areas.

The project of the Fortezza - Ponte Gardena section involves the design and the construction of a new high - speed and high - capacity railway line, accessing the Brenner Base Tunnel from the Italian side with a length of approximately 23.0 kilometres.

The line will connect Fortezza station to Ponte Gardena station and its route is divided in two double - bore and single - track tunnels, Scaleres 15.4 km and Gardena 6.1 km respectively. Between the two tunnels a pair of viaducts with a span of approximatively 270 m will be built, passing over the Isarco River, the A22 Brenner motorway, the SS 12 Brenner State Road and the historic Brenner railway line.

Near Ponte Gardena station two underground interconnection will be excavated allowing trains to stop and switch between the historical and the new line.

The project will quadruple, mostly underground, the Verona - Fortezza line, significantly reducing travel times for passengers and freight trains. It will also reduce the maximum gradient from the current 23‰ to 12.5 ‰ allowing the passage of heavier freight trains.

The design of a track with a wide bending radius greater than 2.500 m, allows trains to travel at the speed of up to 225 km/h.

1.2. Fortezza – Ponte Gardena: executive design optimizations

During the Executive Design phase, the Joint Venture, composed by Webuild S.p.A and Implenia GbmH, proposed several improvements aimed at mitigating executive delay risks while ensuring equivalent performance and features compared to the Preliminary Design, as well as improved sustainability. The most impactful modification is related to the extension of mechanized excavation, increased from the 40% up to the 80%. The preliminary design foresees the use of three TBMs: two Single Shield TBMs should have excavated the Scaleres line tunnels from Forch adit to Albes adit and the one EPB TBM was planned to excavate the Interconnection tunnels from Chiusa adit till the end point in Ponte Gardena Station. The remaining line tunnels should have been realized by traditional excavation methods such as drill & blast. Moreover, the geotechnical survey campaign conducted during the preliminary design phase showed the possibility to extend the use of TBMs due to quite the same geological context already object of mechanical excavation. As the result, nowadays almost the entire Scaleres tunnel lines (24,8 km) will be excavated simultaneously by the two Single Shield from the Forch adit to the end on the Isarco bridges, while the Gardena and the Interconnection tunnel lines will imply a Dual Mode EPM TBM (17 km). Consequently, the traditional excavation methods will only be adopted in limited sections such as the construction of the Scaleres tunnel lines towards the Fortezza access (6 km), where the tunnels will then be connected to the Brenner Basis Tunnel and the Chiusa adit (1,8 km).

The adoption of mechanical excavation enhances safety and improves sustainability. The TBMs enable industrialization of the tunnelling process allowing for more accurate scheduling and reduced construction time, as they can continuously excavate and install precast segment rings at the same time without stopping.

Therefore, the Joint Venture proposed to the Client the modification of excavation methods for the major access tunnels: Forch adit (1,3 km) will be excavated using an additional EPB TBM (the fourth one) and Funes adit (0,6 km) will be excavated using the same Dual Mode TBM as the Gardena and Interconnection line.

As far as the Funes adit excavation method concerned, it allows the Gardena Tunnel line excavation to begin directly from the Funes construction site. This choice changed the logistics of the entire Lot 1 upgrading the Funes construc-

De Giudici - Marinelli - Depretis - Stefanelli - Decarli - Bruni

tion site to become the second most important area for the mechanical excavation management of the Dual Model EPB machine. Consequently, the Chiusa job site is now only in service of the Chiusa access tunnel and the Interconnection’s chambers excavation by traditional methods. During the integrative geological survey campaign, the last probing S21/10, 230 m deep whom the first 150 m with core destruction and the last 80 m with continuous coring, showed a different geotechnical context compared to the preliminary design hypothesis. This finding required further investigations carried out by another survey, called S21/10A, 230 m deep whom the first 160 m with core destruction and the last 70 m with continuous coring, that identified a potential tunnel line interaction with glacial fluvial deposit. After an accurate geotechnical and ideological modelling of the affected section, it was concluded that an extensive timeconsuming drainage and heavy face and surrounding con-

finement should have been realized to proceed with TBM. Consequently, the Joint Venture proposed a 340 m westward realignment of the railway track in order to avoid cost increase. This realignment would have required also the extension and steepening of the Albes adit. Considering that the Albes Adit was originally intended to be used for the TBM extraction during the construction and then it had to host technological plants, the JV proposed to eliminate this access point and instead constructing five technological cross passages to host the plant equipment.

1.3. Tunnels systems overview

In order to assure operational railway safety and functionality, the natural Scaleres and Gardena tunnels are realized by two double-bore single track parallel tunnels with an interaxis distance of 40 m and 47 cross passages located every 500 m along the entire line, in compliance with European

Figure 1. TEN-T Corridors.

STI (Technical Specifications for Interoperability) for safety regulation and technology plants’ hosting system. The interconnecting tunnels leading to Ponte Gardena Station consists of two tunnels crossed by 6 passages. The excavation diameter of tunnel is 9,68 m while the internal precast segment ring is 45 cm thick which results in an internal diameter of 8,40 m. In the following, a tunnel systems overview is proposed (Figure 4):

1.3.1. Scaleres tunnels system:

– Scaleres tunnel lines: double bore single track each15,4 km long.

– Forch tunnel adit: it is a construction tunnel of 1,4 km fits in correspondence of Scaleres odd tunnel and propaedeutic for the lines’ excavations work while during regular operations it will serve as an emergency exit for the passengers. The excavation tunnel section (Figure 2) is 11,05 m, larger compared to the size of the lines one to allow TBMs part to be transported inside the chambers where they will be assembled.

– Communication point: Communication system between a single-track tunnel and two communication chambers.

– Technological Albes node: cross passages systems between Scaleres tunnel lines.

– Cross passages: located every 500 m ensure safe evacuation according to European railway tunnel safety regulation.

– Other functional space: technical rooms close to grafting areas between tunnel adits and lines, maneuver chambers and other areas for plant hosting.

1.3.2. Gardena tunnels system

– Gardena tunnel lines: double bore single tack 5,5 km for the odd track and 5,8 km for even one.

– FFP Evacuation tunnel at Isarco Bridge: evacuation tunnels 0.2 km long with three transversal connection tunnels with the lines.

– Funes tunnel adit: construction tunnel of 0,6 km. During regular operations (Figure 3), the tunnel will be an emergency exit.

– Chiusa tunnel adit: the tunnel will be used as an emergency exit (1.8 km).

– Double communication points : Communication system between a singletrack tunnel and two communication chambers.

– Interconnection chambers: enlarge tunnel sections enabling trains to switch between lines to change the route.

– Interconnection tunnel lines: single bore track of 2,2 km for the even track and 2,9 km for the odd one which connect the lines with the Ponte Gardena Station.

– Cross passages: located every 500 m ensure safe evacuation according to European railway tunnel safety regulation.

– Other functional space: technical rooms close to grafting areas between tunnel adits and lines, manoeuvre chambers and other areas for plant hosting.

De Giudici - Marinelli - Depretis - Stefanelli - Decarli - Bruni
Figure 2. Forch adit cutter head.
Figure 3. Funes adit cutter head.

Advancing sustainable mobility: design and construction innovations in lot 1 of the Fortezza...

2. Geological framework

The double bore single track tunnels’ systems will be connected by two separate bridges for each line crossing the Isarco River, the A22 Brenner motorway and the SS12 State Road. Each viaduct is a continuous span bridge supported by three piers; the right abutment is collocated within the last tunnel part while the left one is placed against the mountain side. The bridge will be built adopting incremental lunching methods whom steel-concrete deck will be assembled inside the Gardena tunnel.

Lot 1 of the Fortezza–Ponte Gardena railway line quadrupling project is located within the tectonic zone marked by the Insubric Line of the Eastern Alpine Arc, where the African plate collides with the Eurasian plate. This region is characterized by a complex system of faults that separate the north-verging Alpine units, which propagate and bend towards Europe, from the south-verging units, which move towards the Po Valley. The latter, having not been deeply

Figure 4. Lot 1 Fortezza-Ponte Gardena tunnels systems.
Figure 5. Geological framework area.

subducted during the Alpine orogeny and lacking Alpineage metamorphic rocks, exposes the ancient and wonderful carbonate basement that forms the Dolomites.

The project alignment develops south of the Insubric Line, within the domain of the Southern Alps, a geological province characterized by the Hercynian basement overlain by volcanic and sedimentary successions of Permian-Mesozoic age. The route passes over a metamorphic basement primarily composed of phyllitic formations belonging to the Bressanone Group, locally interbedded with porphyroids, consisting of acid metavolcanic and metavolcaniclastic rocks. During the Permian, the emplacement of large plutonic bodies – such as the Chiusa Diorites and the Bressanone Granites – triggered intense contact metamorphism, producing mineral assemblages in the surrounding phyllites including cordierite cornubianites, static biotite, and andalusite like those observed in the Forch adit which is the access portal of the Scaleres tunnel.

In the southernmost sector of the railway line, particularly in the Val di Funes, the lithological sequence includes Atesina volcanosedimentary units, which coexist with the intrusive bodies of Chiusa and Bressanone but show no evidence of metamorphism attributable to the Hercynian orogeny. The bedrock

is variably overlain by Quaternary deposits, mainly consisting of colluvial materials in valley-bottom areas along the main drainage axes, such as that of the Isarco River (Figure 5a).

2.1. Hercynian metamorphic basement

This is a unit made up of phyllite rocks characterized by portions richer in quartz and phyllosilicates with leucratic veins of remobilized white quartz interspersed with schistosity. The rock generally appears leaden grey, with abundant muscovite and scattered garnet crystals aligned along the foliation. A secondary phyllitic variety, referred to as quartzphyllite, shows weaker schistosity, giving the rock a more massive aspect compared to the finer phyllite varieties. Within the phyllites richer in quartz, there are lenses and bodies of porphyroids, interpreted as acid metavolcanic and metavolcaniclastic rocks, likely derived from rhyolitic or rhyodacitic protoliths. These display either massive or weakly foliated structures and sometimes resemble granitoid textures, with variable mineralogy.

The lithotypes included in the Quartz phyllites of Bressanone (Auct.) are made up of phyllites characterized by variable percentages of quartz, passing to facies with prevalent phyllosilicates with veins/beds of white quartz remobilized

De Giudici - Marinelli - Depretis - Stefanelli - Decarli - Bruni
Figure 5. Geological maps produced by ENSER s.r.l. based on a detailed survey at a scale of 1:5,000.

Advancing sustainable mobility: design and construction innovations in lot 1 of the Fortezza...

in ductile phase during Hercynian deformations, intercalated with mica schists.

Cornubianitic schists, phyllitic cornubianites, massive cornubianites given by variation of the metamorphic grade as a function of the distance from the magmatic contact are the product of thermal metamorphism within an area, called contact aureole, which surrounds a magmatic intrusion.

2.2. Quaternary deposits

The Quaternary includes units resulting from mass movements (landslides) and traction phenomena (fluvial deposits, fluvio-glacial deposits, alluvial terraces) (Figure 5b).

Glaciolacustrine deltaic deposits (Dlt): these deposits are attributable to the fluvial delta that partly filled the Bressanone basin in the Pleistocene (Castiglioni, 1964). They are represented by a succession consisting upwards of predominantly sandy facies with gravel in transition downwards to laminated sandy silts with pebbles. These deposits can be attributed to a glacio-lacustrine environment due to the presence of numerous dropstones found both in the laminated silts (bottomset) and in the graded sandy facies (foreset). These deposits were also observed in the Sciaves quarries by Castiglioni (1), who attributed them to a glacio-lacustrine delta preceding the Last Glacial Maximum.

Fluvio-glacial, glacio-lacustrine, moraine deposits (df): these deposits are to be referred to the glacial phenomena that affected the entire Alpine arc, significantly modifying its morphology, in the Pleistocene era. In accordance with the typologies of the exogenous phenomena from which they derive, they are characterized by significant granulometric and lithological variability. The deposits mainly present characteristics of fluvial reworking; only in limited outcrops are the sedimentological characteristics relating to moraine deposits recognized.

– Ancient alluvial deposits of first (at1) and second order (at2): these are deposits mapped mainly in the northern portion of the study area, near the confluence of the rivers, they include strips of medium-coarse gravel with sandy intercalations and emerge in orders of terraces at a higher altitude than the current valley floor, with which they cannot be correlated.

– Current (aa) and recent (ar) alluvial deposits: These appear discontinuously along the main valley floors and represent the active or recently deposited alluvium.

2.3. Forch Adit

The mechanized excavation of the Forch window initially cuts through fluvio-glacial and glaciolacustrine deltaic deposits attributed to Middle Pleistocene glacial phases. From approximately pk 0+700, the tunnel reaches bedrock, which continues up to its connection with the main line tunnels. The rock mass is initially made up of cornubianitic schists (MPC) forming part of the metamorphic aureole of the underlying

Bressanone Granite up to the contact with the phyllites not affected by thermal metamorphism. Excavation through the hornfelses was carried out using precast segmental linings made of steel fiber-reinforced concrete (SFRC).

3. First Italian adoption of steel fiber-reinforced concrete (SFRC) for precast tunnel lining

The use of precast concrete segments for the construction of tunnels excavated by Tunnel Boring Machines (TBMs) is a well-established practice worldwide. In recent years, however, the use of steel fiber-reinforced concrete (SFRC) is gaining increasing interest as a viable alternative to traditional reinforced concrete due to its numerous advantages. Although internationally recognized, the use of SFRC for tunnel linings in Italy has been adopted only sporadically. This is partly due to national regulations that, until recently, did not allow for the use of this materials on permanent tunnel linings for which a harmonized European standard was not available.

The design of Lot 1 of the Fortezza-Verona Railway Line Quadruplication, “Fortezza - Ponte Gardena” section, represents a pioneering case in Italy for the large-scale application of SFRC in precast tunnel segments. In this project, so far SFRC segments are approved to be used for a portion of the Forch adit, for 64 rings (1.8m large tunnel section), corresponding to 115 m of the tunnel.

The tunnel lining is constructed using prefabricated segments made of steel fiber reinforced concrete (SFRC). These segments have a thickness of 40 cm. The ring has an inner radius of 4.95 meters and an outer diameter of 10.70 meters, resulting in an excavation diameter of 11.05 meters. The segments are trapezoidal or rhomboidal in shape, with an average length of 1.8 meters.

The concrete mix is a C45/55 4c with a post-cracking tensile strength, expressed as fR1k which must be more 4.0 MPa. The chosen steel fibers have a lenght (l) of 60 mm and a diameter (d) of 0.75 mm, corresponding to the design dimension ratio (l/d) egual to 80; their tensile strength of 1800 MPa. The chosen dosage of steel fibers which guarantees the requested performance is 40 kg/m3

3.1. Advantages of SFRC

SFRC offers several advantages over traditional reinforced concrete with bars (2), including:

1. Increased ductility and flexural strength: Fiber-reinforced concrete (SFRC) exhibits a unique tensile behaviour compared to plain concrete, particularly in the post-cracking phase. The addition of fibers, typically steel, significantly enhances the tensile response of the cementitious matrix after cracking.

Pre-Cracking Phase: SFRC behaves similarly to nonreinforced concrete up to the point of reaching the cracking stress.

– Post-Cracking Phase : The fibers become active, transferring stresses across the cracks and improving the material’s ability to resist tensile forces. In this phase, the behaviour can be strain-hardening, with an increase in tensile strength after cracking, or strain-softening, with a gradual decrease in strength. The choice of behaviour (hardening or softening) is linked to the mix design composition. To classify SFRC according to the (3), the residual strength parameters fR1k and fR3k are used. These values are determined through experimental tests, typically threepoint bending tests according to EN 14651.

2. Improved durability: the uniform distribution of steel fibers in the cement matrix improves the post-cracking behaviour of concrete, ensuring greater crack control and greater resistance to aggressive environments.

3. Reduced construction time and sustainability: the use of steel fibers reduces segment construction time as there is no need to assembly and store traditional reinforcement bars. The production of steel fibers has also a lower environmental impact due to the lower steel amount inside the concrete.

3.2. Structural checks

The segments are designed to withstand various load types during distinct stages, including production, thrust, permanent, seismic, and exceptional loads, such as fire. The structural design verifications of SFRC segments must consider the various temporary phases, from fabrication to installation, such as form stripping, handling, transport, and erection inside the tunnel. Verifications during all these phases are crucial for assessing the segments’ resistance to induced stresses (4) (5)

The main aspects to be considered in structural checks are: – Contact pressures: The thrust cylinders generate high contact pressures on the segments, which must be veri-

fied at both the Ultimate Limit State (ULS) and the Serviceability Limit State (SLS) (6) (5).

– Tension: The thrust also generates radial and circumferential tensile stresses in the segments, which must be verified at both ULS and SLS.

– Bursting: Bursting is a concrete failure phenomenon due to the high tensile stresses generated near concentrated load application points, such as under the TBM thrust pads. The SFRC’s ability to resist bursting is a key aspect of joint safety.

To ensure safe tunnel excavation, it is essential to define thrust thresholds on the thrust pads and not only on the overall thrust force. These thresholds must be defined according to the (4), which has been previously agreed with the Client; for Forch adit the resultants are the (5):

De Giudici - Marinelli - Depretis - Stefanelli - Decarli - Bruni
Figure 6. Compression test – Application Force areas (F1, F2, F3).
Figure 7. Load-vertical displacement charts: a) potentiometers placed under load shoe 1.

Table 1. Crack Widths at Different Load Levels (Pre-existing cracks marked with *).

5*

6*

7*

2

4

5

6

Note: Le fessure pre-esistenti sono segnate con (*)

Attention threshold: 2650 KN - It represents the segment’s structural capacity at SLS under irregular support conditions.

– Alert threshold: 2650 KN - It represents the segment’s structural capacity at SLS under regular support conditions.

– Alarm threshold: 5042 KN - It represents the segment’s structural capacity at ULS under regular support conditions.

3.3. Full-scale test laboratory

At the University of Rome “Tor Vergata” – Tunneling Engineering Research Centre (TERC), full-scale tests were carried out to confirm the design assumptions and verify the actual behavior under design loads.

The compression test (Figures 6, 7, 8, 9) simulates the transient condition during jacking, while the bending test (Figure 10) partially simulates the final condition under geostatic loads.

8. Load-vertical displacement charts: b) potentiometers placed under load shoe 2.

Figure

De Giudici - Marinelli - Depretis - Stefanelli - Decarli - Bruni

For both tests, potentiometers were installed in the most significant areas to measure displacements. Additionally, the intrados and extrados surfaces of the segments were painted white in advance to better detect and record the development of the crack pattern as loading increased. For each load step, the cracks were recorded in specific tables and physically highlighted on the segment using different colors corresponding to the increasing load levels.

– COMPRESSION TEST

For each load step, the crack widths were recorded in the table 1.

Once the load was removed, all new cracks had an opening width less than or equal to 0.05 mm, indicating that the segment remained in the elastic range.

Potentiometers placed under the jacking shoes (three shoes on each side – both intrados and extrados) also showed ela-

stic behavior, with very small residual displacements. This confirms that the segment’s behavior remained within the elastic domain.

The maximum crack width under the maximum load (ULS) was 0.15 mm.

– 4 POINT BENDING TEST

The development of the crack pattern is summarized in the table 2, while the maximum crack widths for each load step were recorded in similar tables.

The results of the load tests conducted on the SFRC (Steel Fiber Reinforced Concrete) segments of the Forch tunnel, in terms of crack patterns and ultimate load (Figure 11), demonstrate that the assumptions made in the design analysis were conservative (with first cracking moment +10% and ultimate moment +40%). The experimental behavior showed additional capacity beyond what ana -

Figure 9. Load-vertical displacement charts: c) potentiometers placed under load shoe 3.
Table 2. Crack Widths at Different Load Levels.

lytical formulations and numerical analyses are typically able to capture.

4. BIM and digitalization applications for the construction site

4.1. Introduction

The construction industry is undergoing a significant transformation driven by the introduction of Building Information Modelling (BIM) and other advanced digital technologies. This evolution marks a departure from traditional methods that relied mainly on paper-based 2D drawings and is motivated by the growing need to optimize efficiency, reduce operating costs, and promote environmental sustainability in construction projects. BIM, in particular, stands out as a key tool in this shift, enabling the creation of threedimensional digital models of buildings and infrastructure. These models are not merely graphic representations, but true information platforms that integrate an extensive database containing crucial details about the materials used, the scheduled construction times, and estimated costs. The BIM approach allows for a holistic view of the project, promoting better planning and management throughout a construction’s lifecycle (7) (8).

In the specific context of the Fortezza - Ponte Gardena project, presented in this article, several digital innovations have been implemented, particularly the adoption of a 3D construction model. The digital model focused on the modelling of the Funes construction site, where preparatory activities for the tunnel excavation with the Tunnel Boring Machine (TBM) will be carried out. This model was developed with the primary goal of improving the realistic visualization of the construction site, offering all involved stakeholders an accurate and detailed representation of the project. This advanced visualization tool facilitates the decision-making process, enabling designers, engineers, builders, and clients to better understand the complexities of the project and evaluate the various available options more effectively. The implementation of this model is therefore intended to facilitate communication and collaboration among all parties involved in the project.

The following paragraph aims to delve into the implementation methods of this 3D site model, exploring the technologies and processes used for its creation and maintenance. The various uses and applications of the model will also be described in detail, highlighting how this innovative tool contributes to improving the efficiency and quality of the project.

4.2. Construction site 3D model

4.2.1.

Implementation

The implementation of the model was carried out using an approach based on the integration of multiple models from

Figure 10. 4 Point Bending Test.
Figure 11. Crack Pattern at the End of the Test:a) left side; b) right side; c) left side detail; d) right side detail; e) inside.

different disciplines into a single federated model. Specifically, the final model was created by combining four distinct models, described below:

– Civil Model (Figure 13): This model includes all the civil works essential for the proper management and development of the construction site, such as foundations, buildings, roads, water treatment plants, and containers. Each component was modelled with the goal of creating a functional and detailed representation of the construction site, useful for planning and coordinating activities. The entire modelling process was carried out using the (9)

authoring software, which allowed for the generation of an accurate and detailed three-dimensional representation of each element.

– MEP Model (Mechanical, Electrical, and Plumbing) (Figure 14): This model concerns all the system installations fundamental to the correct operation of the construction site, including water disposal systems, electrical installations, sewage systems, stormwater disposal, water supply, and distribution, etc. The modelling was conducted with particular attention to the integration of various networks and the management of potential interferences. Again,

De Giudici - Marinelli - Depretis - Stefanelli - Decarli - Bruni
Figure 13. Funes construction site Civil Model.
Figure 14. Funes construction site MEP Model.

Advancing sustainable mobility: design and construction innovations in lot 1 of the Fortezza...

the modelling process was carried out using the Autodesk Revit authoring software, which enabled the creation of a detailed and coordinated three-dimensional representation of the systems, optimizing the control and management of resources during the design phase.

– Topographic Model: This model represents the terrain of the entire work area, including elements such as contour lines, rivers, and other landscape features. It is essential for understanding how the infrastructure relates to the environmental context. The topographic model allowed for proper planning of excavation, earth-moving operations, and the assessment of the project’s impact on the surrounding environment. The modelling process was carried out using (10) software, which is suitable for managing topographic data.

– Machinery and Equipment Model: This model focuses on modelling the main machinery and equipment used on the construction site, including Tunnel Boring Machine (TBM) rigs, cranes, truck cranes, trucks, elevators, and other devices necessary for daily operations. Each piece of machinery was modelled to ensure proper planning of material handling activities. The integration of these elements into the federated model enabled the simulation of their use and the analysis of possible interferences with other disciplines, thus optimizing workflows.

The federation of all the models was made possible through the sharing of a common reference system, which allowed for an overall and coordinated view aimed at identifying any conflicts or interferences between the models.

Additionally, the entire modelling process was carefully designed, considering the different operational phases anticipated during the evolution of the construction site. The division of work into phases, developed in close collaboration with the various stakeholders of the project, enabled the optimal management of resources, machinery, and available spaces. This approach ensured not only strict adherence to the planned timelines and costs but also a significant improvement in overall efficiency through more precise planning and continuous monitoring. Additionally, this organization considerably reduced operational conflicts, enhanced site safety, and improved the management of activities throughout all phases of the construction process, from start to finish.

4.2.2.

Use of the 3D Construction Site Model

The implemented model is applied to a wide range of activities. Thanks to its ability to integrate and manage information collaboratively, the model has become an indispensable tool for optimizing decision-making processes and improving management efficiency. Below are the main uses of the 3D construction model, highlighting how this technology can be applied to support every phase of the project, from planning to post-construction management.

– 3D Visualization: The BIM model provides a complete visualization of the project from different angles, allowing

professionals to fully understand how the elements integrate with each other. This visualization enhances communication among the various stakeholders involved in the project, increasing the understanding of the construction site’s layout. Thanks to this visualization, potential issues can be anticipated, and design modifications can be made during the planning stage, avoiding costly delays during construction.

– Quantity Extraction: BIM models contain detailed information about the materials and components of the project. This feature allows for the automatic extraction of quantities required for construction, facilitating purchase planning and reducing the risk of errors in estimates. Accurate quantity extraction is crucial for proper cost and resource management, helping to keep the project on schedule and within budget.

– Temporal Visualization of Elements: BIM models not only represent geometry and materials but, by linking the model to the working schedule, they enable visualization of how the project will develop over time. This helps identify potential conflicts between different stages and optimize the workflow. Temporal visualization is a powerful tool for site planning, time management, and resource optimization.

– Extraction of 2D Drawings: In addition to 3D visualization, BIM models can be used to automatically generate 2D drawings such as floor plans, sections, and elevations. This process simplifies the creation of accurate and consistent construction documents, reducing the time required to prepare project documentation and minimizing errors caused by misinterpretations of 2D representations. 3D models provide a clearer visualization of the project, making it easier to extract 2D drawings with representations that are clearer and easier to interpret for different operators.

4.3. Other innovative digital applications useful on the construction site

In addition to three-dimensional modelling, the digitalization process of the construction site is further enriched through the adoption of innovative methodologies aimed at improving operational efficiency, work quality, and information management. These digital solutions address various aspects of project management, contributing to greater integration between the design, execution, and monitoring phases. In this paragraph, we will describe two of the various activities used.

4.3.1. Digital Validation of Construction Documents through using QR Codes

One application involves the validation of project documents through the use of QR codes applied to the title blocks of drawings. A smartphone app has been developed that utilizes the phone’s built-in QR code scanner to read the code on each

Conclusion

The Fortezza-Ponte Gardena project marks a significant step for the use of mechanized excavation, about 80% of the whole work and, mostly for the adoption of SFRC in Italy. The use of properly designed and verified SFRC segments can contribute to safer, more durable, and sustainable TBM tunnels. The potential expansion of SFRC usage to cover 80% of the main tunnel length of the project (corresponding to 30 Km of tunnel) underscores the growing confidence in this innovative technology. Then the experience gained from this project will serve as a valuable reference for future applications of SFRC in Italy.

project document. The QR code contains a unique code associated with the document, allowing the app to match it against a database containing a complete list of documents and their approval statuses. This enables the app to provide real-time confirmation of the document’s validity. If the document is not valid, the app allows users to automatically download the latest version available in the archive. This system ensures that only updated and certified documents are used on-site, significantly reducing the risk of errors and improving the reliability of shared information. Additionally, the app can be downloaded and installed on any smartphone, providing an accessible and versatile solution for all project stakeholders.

4.3.2. Interference Management between Civil Works and Utilities Using a Federated Model

A second area of intervention concerns the management of interferences between the various works and the underground utilities present on the construction site. Thanks to the creation of a federated model, which includes both civil works and existing utilities, it is possible to simulate the interaction between the different components already during the design phase, allowing for the early identification of potential spatial conflicts between the structures under construction and the existing utilities.

In particular, a detailed modelling of the utilities — including water supply, sewage, gas, electrical networks, and telecommunications — was carried out based on topographic surveys conducted directly on site. These utilities were modelled using specific authoring software tools [9] [10].

The resulting federated model (Figure 15) allows for the identification and resolution of interferences already in the design phase, thereby avoiding potential delays during construction. The utility models are constantly updated based on the surveys carried out throughout the project, ensuring a consistently accurate and up-to-date view of the progress. This approach makes it possible to promptly identify issues and address them with targeted corrective actions, optimizing site management and improving both the safety and efficiency of construction operations.

At the same time several digital innovations were implemented, particularly the adoption of a 3D construction model implementation carried out using an approach based on the integration of multiple models from different disciplines into a single federated model for a direct use in site.

References

[1] Castiglioni, Giovanni Battista. Osservazioni morfologiche nella conca di Bressanone. Padova: Mem. Acc. Patavina SS.LL. AA, 1964.

[2] 83, fib Bullet. Precast tunnel segments in fibre-reinforced concrete.

[3] Federation internationale du beton (fib). Model Code for Concrete Structures 2010. Lusanne, Switzerland : Ernest&Sohn, 2013.

[4] WeBuild Engineering Design Services. ED-TR-G-21-05_CProgettazione di conci di galleria in calcestruzzo fibro-rinforzato (SFRC). 2023.

[5] WeBuild Engineering Design Services. ED-TR-G-21-07_ELinee guida per il calcolo della spinta e le verifiche del giunto circonferenziale. 2024.

[6] Trabucchi, Tiberti, Plizzari. A model for predicting the splitting bearing capacity of Fiber Reinforced. 2022.

[7] UNI, UNI 11337-1:2017 – Gestione digitale dei processi informativi delle costruzioni – Parte 1: Modelli, elaborati e oggetti informativi per prodotti e processi, Ente Italiano di Normazione. 2017.

[8] UNI, UNI 11337-5:2017 – Gestione digitale dei processi informativi delle costruzioni – Parte 5: Flussi informativi nei processi digitalizzati, Ente Italiano di Normazione. 2017.

[9] Simone Pozzoli, Marco Bonazza, Werner Stefano Villa. Autodesk® Revit 2023 per l’Architettura. 2022.

[10] Stephen Walz, Tony Sabat. Autodesk Civil 3D 2024 from Start to Finish: A practical guide to civil infrastructure design, modeling, and analysis. s.l.: packt, 2024.

[11] C.S.LL.PP. Linee guida per la progettazione, messa in opera, controllo e collaudo di elementi strutturali in calcestruzzo fibrorinforzato con fibre di acciaio o polimeriche. 2022.

[12] Linee guida per l’identificazione, la qualificazione, la certificazione di valutazione tecnica ed il controllo di accettazione dei calcestruzzi fibro-rinforzati FRC (Fiber Reinforced Concrete). 2021.

De Giudici - Marinelli - Depretis - Stefanelli - Decarli - Bruni
Figure 15. Interference management between federated model.

Milan Metro: from its origins to the present day, looking to the future

Metropolitana di Milano: dalle origini a oggi, guardando al futuro

Antonella a ntonelli a Andrea BRuschi a, * Carmelo c ala BRò a

a Metropolitana Milanese S.p.A. * corresponding author: a.bruschi@mmspa.eu

Abstract

Milan’s metro network recently celebrated its 60th birthday, having been inaugurated on 1 November 1964. Today, 5 lines are operational for a total extension of 116 km and 134 stations, and a feasibility study is underway for the 6th. In each new line, important construction innovations have been studied and implemented, due to the deepened routes to allow intersections and the more severe water table levels resulting from the deeper track. The greater complexity of construction has enhanced the application of technological innovations of the period with the purpose on one hand of allowing an increasingly rapid and safe construction and on the other of reducing the impacts of working sites on citizens and activities as a response to the change in sensitivity in different historical periods. In fact, if during the construction of M1 inconveniences of construction were largely repaid by the innovative mode of transport that the city was equipped with, in the most recent projects construction technologies are increasingly guided by minimizing impacts, improving speed and executive safety and providing to citizens real time construction site information.

MM S.p.A., once Metropolitana Milanese, was founded in 1955 by the owner Milan Municipality to design and build Milan’s metro system. Over its 70 years of activity, MM S.p.A. has not only achieved this goal but has also expanded its skills and services ranging from urban planning to water resource and building management.

Sommario

La rete metropolitana di Milano ha recentemente festeggiato il suo 60° anniversario, essendo stata inaugurata il 1° novembre 1964. Oggi sono operative 5 linee per un’estensione totale di 116 km e 134 stazioni, ed è in corso uno studio di fattibilità per la sesta. In ogni nuova linea sono state studiate e implementate importanti innovazioni costruttive, dovute all’approfondimento dei tracciati per consentire le intersezioni e ai livelli di falda freatica più elevati derivanti dalla profondità del binario. La maggiore complessità costruttiva ha favorito l’applicazione delle innovazioni tecnologiche dell’epoca, con l’obiettivo da un lato di consentire una costruzione sempre più rapida e sicura e dall’altro di ridurre l’impatto dei cantieri su cittadini e attività, in risposta al mutare della sensibilità nei diversi periodi storici. Infatti, se durante la costruzione della M1 i disagi di cantiere sono stati ampiamente compensati dall’innovativa modalità di trasporto di cui la città si è dotata, nei progetti più recenti le tecnologie costruttive sono sempre più orientate alla minimizzazione degli impatti, al miglioramento della velocità e della sicurezza esecutiva e alla fornitura ai cittadini di informazioni in tempo reale sui cantieri. MM S.p.A., già Metropolitana Milanese, fu fondata nel 1955 dal Comune di Milano, proprietario della rete metropolitana, per progettare e costruire la rete metropolitana di Milano. Nel corso dei suoi 70 anni di attività, MM S.p.A. non solo ha raggiunto questo obiettivo, ma ha anche ampliato le proprie competenze e servizi, spaziando dalla pianificazione urbanistica alla gestione delle risorse idriche e degli edifici.

Keywords: Milan Metro, Tunnelling, Construction Method, MM S.p.A. Parole chiave: Metropolitana di Milano, Gallerie, Metodologia di costruzione, MM S.p.A.

1. The evolution of tunnel construction methods in the Milan metro system

1.1. M1 Line

When the first historic Sesto Marelli - Lotto segment of M1 line was built, between the mid-1950s and the beginning of the 1960s, the Second World War had just ended and the

main priority was reconstruction (buildings, factories, offices, infrastructures). The construction methodology of the tunnels was therefore focused on rationality and execution speed to minimize impacts on the surface. This is how the ‘Milan Method’ (subsequently also called cut & cover worldwide) was born [8]; [10] (MM, 1980&2004). In such method perimeter diaphragm walls are built first, the covering slab

cast against the ground is placed on them and then the lowering excavations and the construction of the internal structures proceeds. This method has the advantage of allowing the rapid reopening of surface traffic without waiting for the completion of the excavations. It was the main construction method for most of the M1 segments and subsequently also for some of M2. Naturally, this involved excavating the entire area of the tunnels and stations from above, making it necessary to follow the road alignments, centering the stations on squares or streets of sufficient width as illustrated in figure 1a/b/c.

In some cases, it was also necessary to demolish pre-existing buildings to gain enough space.

As shown in figure 2, referring to the first stretch built in the ’60s, the track alignment was shallow and involved the landfill layer and the natural superficial incoherent soil, consisting of slightly dense sands and gravels. The water table was below the excavation level therefore no soil grouting was necessary. The alignment shows the maximum water table recorded between ’70s and 2000s, corresponding to the level in 1998, and in any case not interfering with the bottom of the line (in more recent years this level was only exceeded in 2014). Geotechnical investigations were already carried out at the time, such as penetrometric tests and surveys that detected the soil stratigraphy consisting of alternating sands and gravels. Figure 3 shows the first test results in 1959 near Castello

Figure 1a. Cut&cover tunnel excavation in Corso Venezia, Milan 1961.
Figure 2. M1 Track alignment with opening segments.
Figure 1b. Cut&cover tunnel excavation in C.so Venezia, in P.za S. Babila, Milan.
Figure 1c. Station excavation in P.za Duomo, Milan 1960.

Milan Metro: from its origins to the present day, looking to the future

square in which the poor, superficial landfill soil and the increasing soil density near the bottom of the tunnel can be observed [3].

1.2. M2 Line

In the 1970s the atmosphere was already different. The inner city had reached its historic population peak, the urbanization of metropolitan areas was exploding, traffic was skyrocketing. Engineers had to think of a new solution. The conventional tunneling method was introduced in the loose soils of Milan, typically sand and gravel [8]; [10] (MM, 1980&2004). The advancement methodology consisted of the preliminary consolidation of the ground with cement mixtures, the excavation at reduced depths, the immediate installation of the first phase lining (ribs and shotcrete) and the subsequent casting of the final lining. The M2 was built mostly in this decade and with this method, also adopting double single-track tunnels, to simplify the execution, with a traditional mining tunnel section with inverted arch. Figure 4 shows construction phases of tunnels in the Garibaldi-Cadorna segment while figure 5 represents a historical drawing with first phase and final lining of the tunnel. The method allowed to save surface occupation and to underpass buildings, limiting cut and cover excavations to stations and shafts. The reduction in temporary urban land occupation was over 50% compared to the Milan Method. It also provided greater flexibility to the alignment. Of course, not for free: conventional tunneling was longer and more expensive than cut & cover and in fact it was – and still is –

the most expensive excavation method.

The first section of the line, between Cimiano and Caiazzo stations, opened in 1969. This included the construction of two single-track tunnels with conventional excavation method between Lambrate and Loreto stations, while the rest of the line was built using the cut-and-cover method. In this section, the tunnels were built without waterproofing because at that time the groundwater level in Milan had reached an all-time low due to the massive withdrawals associated with the intense industrial activity outside the city. In the following years the water table began to rise and therefore the subsequent metropolitan extensions provided the first waterproofing systems in the deepest segments. Figure 6 shows the track alignment depth and the opening periods of the central segments of the line, the maximum water table level before 2000s and the position of some geotechnical surveys used to define the soil stratigraphy and to carry out soil analysis.

Figure 3. Penetrometric Test - M1 “Castello” square (1959).
Figure 4. Garibaldi – Cadorna segment single track twin galleries construction, Milan 1973.

1.3. M3 Line

Then came the exuberant and ambitious 80s, society had definitely become wealthy, the city had transformed from an industry to a business one, focused on finance, services, media, fashion and design. In this context, the design choices

and construction methods of the subways were oriented to limit the impacts on buildings, roads, underground utilities and other existing metro lines. These needs influenced the new methodologies for M3, built mostly in the 80s [9] (MM, 1995). The line crosses the city from north to south for a current extension of about 17 km; the first section built, starting from 1981, was the one between the cathedral and the central station, that passes through densely built-up areas, with buildings of historical and monumental value and a dense presence of important commercial and tertiary activities. For these reasons, for the first time in Italy, a segment of line (including stations) was built with stacked bored tunnels (Fig. 7a/b/c/d) due to the limited space available on the surface associated with narrow streets and interferences with building foundations. The cut and cover excavations were limited to the construction of structures lateral to the line for the location of the exit routes and technical rooms (Antonelli et al., 2024). Figure 8 shows the track alignment depth and the opening periods, water table levels and the position of some geotechnical surveys used to define the soil stratigraphy and to carry out soil analysis.

With a view to minimizing impacts on the surface and speeding up construction times, mechanized excavation was used for the first time on the M3. In fact the execution phases for the construction of the stacked bored tunnel include the construction of a pilot pre-advance tunnel of approximately

Figure 5. Single track typical cross section.
Figure 6. M2 Track alignment with opening segments.

Milan Metro: from its origins to the present day, looking to the future

10 square meters in cross-section between Turati and Duomo station, one of the most difficult sections as it was in the center of the city. The excavation of this pilot tunnel was carried out using a mechanized circular shield with a diameter of 3.30m (Fig. 9) and primary lining with metal ribs and larch benches (Fig. 10). The shield consisted of a steel cylinder to ensure the safety of the operators inside, and a boring head at one end, weighing 82 tons.

During construction works, several technical problems were faced, including the excavation under the water table in fine soils difficult to inject, solved by MM S.p.A. by developing sophisticated techniques, including soil freezing.

Due to the variability of the alluvial soil and to its discontinuity, the preliminary exploratory borings did not detect a par-

ticular clayey-silty layer (1.0m thick at about 20/25m from surface) in the bottom of the tunnel near Lamarmora and S. Nazaro shaft, in Lot 2B. This layer caused the collapse of the cement&sodium consolidation invert (generally used in the rest of the line for ground consolidation under the water table) and the piping effect, as shown in figure 11 (Colombo et al., 1988) [5].

The collapse was caused by a series of factors such as the reduced thickness of the consolidated soil arch due to the presence of silt, the increase of uplift pressures due to the impermeability of the clayey-silty layer and the strain of the silty layer once the excavation was completed.

So, in order to avoid further piping and damages to the buildings above, freezing of the soil had to be adopted to assure

Figure 7a. Typical line tunnel section with stacked bored tunnel.
Figure 7c. Lower part of the tunnel between Missori and Crocetta stations (1989).
Figure 7d. Upper tunnel of Duomo Station and descent to the lower tunnel. (1988).
Figure 7b. Typical station tunnel with stacked.platforms.
Figure 8. M3 Track alignment with opening segments.
Figure 9. Mechanized circular shield.

Milan Metro: from its origins to the present day, looking to the future

1.4. M5 Line

In more recent times, early 2000s, the City Municipality launched an ambitious plan to extend the MRTS network and regenerate the city, primarily with the purpose of recovering public spaces by removing them from traffic and discouraging the use of cars. In those years, projects for two new light metro lines (M4 and M5) were born, with long and ambitious alignments, completely automated (driverless) network management and the adoption of mechanized excavation to bore the tunnels. This methodology, now the most widespread worldwide, had already been adopted in Milan in the extension of the M1 line to Rho Fiera Station, but it was applied extensively almost to the entire line for the first time in these two projects.

The first line to be built using mechanized excavation (TBMEPB) was the M5 line, 4th city line to be built but first ‘light’ metro line, i.e. equipped with smaller trains and stations (50 m platforms instead of 110 m), automatic screen doors in the stations, and fully automated driverless trains.

the necessary high degree of consolidation to the clayeysilty layer.

The ground freezing was achieved using liquid nitrogen that vaporized in freezing probes placed in special boreholes according to pre-determined design geometry (‘direct method’ or open-cycle).

Historical photos of ground freezing for tunnel excavation near Crocetta Station are shown in figure 12.

The choice of this method was due to the limited space available (incompatible with the installation of refrigeration systems used in the indirect closed-cycle method), to the required continuity of the excavations and to the technical necessity of reaching very low temperature levels (-196°C) to guarantee high mechanical resistance of the ground [1].

In addition to introducing full automation to Milan, M5 line was the first in the city’s history to be built in project financing with a concession contract, following a tender, to Metro 5 Spa, the concessionaire company for the design, construction and management of the new line.

As shown in fig. 13, the line crosses the city from the north (Bignami terminus) to the west (San Siro terminus) for a total of approximately 13 km and 19 stations. The works, divided in two sections (first section between the Bignami – Garibaldi stations is approximately 5.5 km long, the second section between the Garibaldi – S. Siro stations is approximately 7.5 km long), officially began in 2007 and concluded in 2015 with the inauguration of the last stations of the second section. From the constructive point of view M5 line is divided in three parts, corresponding to the three openings of the line:

Figure 10. Primary lining with metal ribs and larch benches.
Figure 11. Location of the clayey-silty layer and piping effect in the invert area (source Colombo et al., 1988).

1. Bignami – Zara, 4,1 km ad 7 stations, opened on February 10th 2013;

2. Zara – Garibaldi, 1,4 km and 2 stations, opened on March, 1st 2014;

3. Garibaldi – S.Siro, 7,4 km and 10 stations, opened on from April to November, 2015. These sections have been realized for most of their length with different constructive methodologies, and respectively:

1. Single 9.40m diameter TBM-EPB excavated two tracks gallery. The lining of the tunnel is 0.40m thick, the internal diameter is 8.30m (Fig. 14);

2. Mix of cut and cover and conventional tunnelling were adopted to excavate two tracks and one track tunnels;

3. Twin 6.70 m diameter TBM-EPB excavated single track tunnels. The lining of the tunnel is 0.30m thick, the internal diameter is 5.80m (Fig. 16);

Figure 12. Ground freezing for tunnel excavation near Crocetta Station.
Figure 13. M5 Line chorography with construction sections and methods.

Milan Metro: from its origins to the present day, looking to the future

Such a methodology diversification is based on urban, functional and technical reasons, in particular:

1. Bignami – Zara segment is a straight path below Zara –Testi axis, a three carriages and two parterres main road easy to combine with the single TBM choice. Line, stations and shafts are located along central carriage, with no buildings above and therefore the single TBM facilitates a scale-economy solution.

2. Zara – Garibaldi metro line segment is by far most complicated, underpassing several buildings and infrastructures (Railways, underground railway, metro M2 line and station) next to center business district at that time interested by expansion and urban regeneration plan Porta Nuova, with several skyscrapers under construction (including UniCredit Tower today Italy’s tallest standing at 231 m). These factors led to the necessity of maximum flexibility even if at higher costs.

The route was built with an alternation of artificial tunnels, single-track conventional tunnels and double-track conventional tunnels. Before arriving at Zara station, the line shifts to a double single-track tunnel. The line continuation was conditioned by the Garibaldi FS station position (oriented in a west-east direction) and the requirement to extend towards west. These factors determined curves with tight radius to realize the connection between the two sections allowing the change of direction within a densely built-up the area (Fig. 15).

3. Garibaldi Station on the M5 line is located in the only remaining available space, bounded to the north by the underground station of the Passante, to the east by the station of the M2 line and to the south by a series of buildings with three or four underground floors. Garibaldi M5 station is 120m long, between 15 and 22m wide and 23m

deep to allow the underpassing of the M2 station. The M5 line enters the station with two single-track tunnels underpassing the M2 and exits with a double track tunnel excavated with conventional method.

Garibaldi – S. Siro metro line segment mostly follows road alignments characterized by two carriages roads with central parterre, occasionally underpassing buildings. This context is easy to combine with twin single track TBM tunnels located mostly along carriages with parterres used as starting excavation points for stations and shafts. In addiction smaller TBM diameter facilitates buildings underpassing.

Therefore most of the second section of the M5, consisting of twin tunnels, was excavated using 4 EPBs of 6.70 m diameter. Two EPBs started from Monumentale station while the remaining ones from the San Siro Stadio station, to be extracted from two shafts within City Life redevelopment area.

From a geological point of view, the Bignami-Garibaldi section consists of predominantly gravelly soils with a silty sandy fraction in subordinate percentages.

The Garibaldi-S. Siro section is characterized by a heterogeneous anthropic fill material on the surface varying in thickness between 1 and 3 meters. However, the line mainly affects soils consisting of sands and gravels; discontinuous and moderately thick levels of sandy and clayey silt are also present.

The geognostic investigations consisted of drilling survey and related borehole tests (SPT, Lefranc-tests, pressometric tests), and laboratory tests (granulometric analysis and volume weight determination).

As the granular nature of the interested soil, they are characterized by primary permeability with a medium-high value between 1x10-5 and 2x10-4 m/s.

Figure 14. Lot 1 - Tunnel cross section and TBM-EPB φ = 9.40m.

Figure 17 and figure 18 show the geological profile of the Bignami-Garibaldi and Garibaldi-S.Siro sections with indications of the groundwater levels. One of the most significant interventions of M5 project is

the undercrossing of the M5 metro line to the existing FNM underground railway line near Domodossola station in the Garibaldi-S.Siro section [2] (Balossi Restelli, 2014). The two tunnels of the Metro 5 line needed to be deep enough

Figure 15. Garibaldi Station node. In pink on the left and on the top garibaldi and Isola M5 stations. In green in the center Garibaldi M2 station. In Grey Milan Porta Garibaldi railway station.
Figure 16. Lot 2 - Tunnel cross section and 2 TBM-EPB φ=6.70m.

Milan Metro: from its origins to the present day, looking to the future

to cross the lines of FNM at a safe distance underneath, but not too deep in order to avoid to have the full face of the excavation below the water table. The two tunnels passed close to the 4 railway tracks, with a clearance of about 4.50 meters between the crown arch of M5 tunnel and the railway tracks. Upon the execution of the works, the water table fluctuated around 108 m a.s.l., so that the bench and invert excavations were performed below the water table. The two tunnels were excavated in conventional method with soil consolidation starting from M5 Domodossola station for approximately 90 meters. The support of the top heading excavations was realized with double crowns of mono-fluid jet grouting executed from the face of each span while the bench, under the water table, was excavated with soil consolidation and waterproofing through classic cement and silica injections. In order to prevent convergences, n. 11 additional jet columns were performed for

nucleus stabilization. Figure 19 and figure 20 show respectively a longitudinal and transversal section of M5 tunnels with FNM railway tracks above and the ground consolidation system adopted for excavation. The first phase lining consisted of HEA180/0.50m steel ribs and spritz-beton 20cm thick.

The two TBMs crossed “empty” after the completion of the conventional tunnels, still assembling the pre-casted rings. The final lining was then completed filling the back void with cement injections as shown in figure 21.

Figure 22 shows a construction phase of the tunnel. The excavation under the railway was successfully completed thanks also to the railway track and station monitoring system: uplifts and subsequent subsidence were continuously controlled and almost always contained within the limits imposed by the railways management (FNM).

Figure 17. M5 Bignami-Garibaldi Station - Track alignment with opening segments.
Figure 18. M5 Garibaldi-S.Siro Station - Track alignment with opening segments.

2. M4 line recent experience

New M4 line connects the city along tHe East/South-West axis, crossing its historic center, stretching for about 15 km from San Cristoforo terminus in the southwest to the Linate Airport stop, the eastern terminus, with an interchange with Milan-Linate Airport (Fig. 23). It is composed of 21 stations, 30 shafts and a workshop provided depot. It is the 5th metro line to be built in Milan and the second – after the M5 line –conceived as a fully automated light metro without a driver on board (driverless) and equipped with automatic platform screen doors.

M4 Concessionary Company was responsible for the executive project, construction and management. MM S.p.A. was responsible for detailed design and construction management for the entire duration of the construction sites and, partially, for safety coordination. The construction began in 2012; in November 2022 the first section of 6 stations from Linate Airport to Dateo station was inaugurated for a length of 5.7 km; in July 2023 the Dateo - San Babila section was opened with 2 stations for a length of 1.6 km while the complete opening of the line took place in October 2024 with the remaining 13 stations for a length of 7.8 km.

Figure 19. Longitudinal section of one of the two M5 tunnels with the subsequent overlapping jet grouting canopy (source Balossi Restelli, 2014).
Figure 20. Cross section of Domodossola underpass (source Balossi Restelli, 2014).

Milan Metro: from its origins to the present day, looking to the future

2.1. General features of the project

The M4 line, except for the depot area, runs underground and includes two single-track tunnels.

The tunnels were excavated using six TBMs: two with a smaller excavation diameter, 6.36 m, adopted in the external East section (Linate station - Tricolore station) for a length

of about 5.2 km, two with an excavation diameter of 9.15 m used in the Central section (Tricolore station - Coni Zugna station) for a length of about 4.7 km and finally two with an excavation diameter equal to 6.70 m for a length of about 3.1 km in the external West section (San Cristoforo FS stationConi Zugna station). Tunnel geometry and TBM parameters are summarized in table 1.

The TBMs with the largest excavation diameter (9.15 m) were used to realize large tunnel capable to accommodate platforms at the stations of the historic center, thus limiting the footprint of cut&cover stations to reduce the surface

Figure 21. M5 tunneling - Transversal section.
Figure 22. M5 tunnel excavation phase.
Figure 23. M4 line layout. Grey squares represent stations, yellow squares represent shafts. GWL lines indicate Ground Water Level (source Rigamonti et al., 2025).

impact of the construction site. The connection between the station body, located centrally between the two tunnels, and the platforms was created using three connecting tunnels excavated in conventional method after consolidating the ground with injection of cement mixtures from the surface. The stations located in the external sections, which are less critical from surface impact point of view, are larger enough to contain the platforms. In these sections the two small TBMs entered directly inside the main body.

Figure 24 shows a comparison between typological station in the external and central segments.

2.2. Geological context

The geological and geotechnical subsurface characterization was substantiated by lithostratigraphic and geotechnical data from 97 boreholes and hundreds of tests performed; the analysis of the numerous stratigraphies has allowed the definition of the geological model [7] (M4 S.p.A et al., 2020).

Table 1. Tunnel geometry and TBM-EPB parameters.
Figure 24. Comparison between stations in the external and central segments.

Milan Metro: from its origins to the present day, looking to the future

Under a surface layer of heterogeneous anthropic fill material, averagely coarse-grained, with a thickness varying between 1 to 3 meters, the M4 line involves exclusively soils characterized by gravel and sand with local and thin lenses of sandy silt. The analysis of the stratigraphies made it possible

to identify the following units:

– UNIT R: Anthropogenic fill soil – UNIT A: Gravel and silty sands

Within the unit of silty gravels and sands, there are local lenses with a predominantly silty grain size. These lenses, however,

Figure 25. M4 Line - Geological model in the central part of the city (source M4 S.p.A et al., 2020).
Figure 26. M4 Line – Geological vertical alignments (source Rigamonti et al., 2025).

are discontinuous and thin. Figure 25 shows the 3D geological model in the central part of the line while figure 26 shows the vertical alignment of the line with both the soil type classification according to the ASTM standard and Nspt values, as well as the water table level during construction. [11]

2.3. Ground freezing to excavate connecting tunnels

The decision to limit conventional tunneling in the central segment of the line, using large TBMs with internal platforms, proved to be a winning one in terms of safety and continuity of operations. This was due to the difficulties encountered

during the construction of the connecting tunnels between the TBMs and the station building, caused by high groundwater levels and the presence of fine material that was difficult to consolidate. In fact, the preventive consolidation of the ground with injections, due to the local presence of very fine materials, was not always effective and significant water inflows occurred during the tunnel excavation phase. Figure 27 shows the preventive ground consolidation according to executive design in San Damiano shaft. Therefore, it was decided to turn to subsequent freezing of the ground (Fig. 28). This process was particularly complicated due to the small size of the construction sites located in the historic center, their diffusion and the difficulty in finding liquid nitrogen, also used as a medical gas during the Covid emergency period.

2.4. Connections to other lines

Line M4 tunnels route, in order to improve the network effect of the infrastructure system and increase the interchanges between the various modes of transport, has interchanges with three of the four other metro lines in three points and with the railways in three others. In these intersections M4 tunnels underpass the metro lines in operations maintaining a clearance between the two infrastructures as small as possible to guarantee shallow infrastructures with economic and transport benefits. The most complicated intersection realized was the underpass of the underground railway link (a.k.a. “Passante”) close to Dateo station. The intersection between M4 tunnels and railway link is shown figure 29a/b. It is characterized by a minimum vertical distance with the existing tunnel of only 3.05 m and a particularly complex planimetric-altimetric conformation of the tunnels of Line M4. We are in fact in one of the deepest sections of the M4

Figure 28. Ground freezing for TBM tunnel connection excavation - San Damiano construction site. .
Figure 27. Preventive ground consolidation according to executive design - San Damiano shaft.

Milan Metro: from its origins to the present day, looking to the future

Line, with a strong hydrostatic pressure and with a bend, right at the crossing, between two planimetric curves with reduced radii [12] (Venza et al., 2018).

This interference was examined in the detailed design through analyses to define the advancement machine pressures both below the railway tunnel (1.3 bar) and before and after the intersection (2-2.1 bar) with a linear increase/decrease trend of 0.1 bar/ring. The pressure trend at the TBM face during undercrossing railway link is shown in fig. 30. Given the complexity and delicacy of the underpass and in order to guarantee the continuity of the railway service during

the excavations and, if necessary, act quickly on the machine parameters, an accurate automatic monitoring system of the deformations of underground railway tunnel, of the tracks, of Dateo railway station and of the surrounding buildings was set up. The monitoring system consists of optical sights and clinometers on tunnels, stations and buildings, digital RDS systems (railway deformation system) for the control of twist. The instrumentation installed inside the Railway tunnel did not register any appreciable alteration, as can be seen from the graph in figure 31, remaining below the pre-attention thresholds.

The detailed design analysis, the continuous monitoring and the operational measures implemented during the executive phase allowed the underpass to be carried out without creating any subsidence of the existing tunnels or deformation of the tracks, and continuity of the railway service was guaranteed for the entire duration of the operations.

2.5. Monitoring data

During the excavation of the M4 line tunnels a specific monitoring of all existing underground and surface structures/infrastructures falling within the subsidence basin was developed, both during the excavation phases and for a significant time interval before and after the passage of the TBMs, with the purpose of ensuring the safety of these structures and of calibrating in real time the TBM excavation parameters (M4 S.p.A, 2020).

The instruments used in the monitoring of existing structures included both manual and automatic systems (leveling stirrups and surface stakes, mini-prisms for the assessment of subsidence, strain gauge bars for monitoring deformations of existing structures, and RDS systems for checking the twist of existing line tracks).

Figure 29a. Intersection of M4 tunnels with Dateo railway link – Planimetry.
Figure 29b. Cross section of M4 galleries below underground railway link (‘Passante’).

The most closely monitored section of the entire line was the central part, both because of the numerous buildings of historical-monumental value, commercial and tertiary activities, and because of the greater excavation diameter of TBMs. Some results relating to surface settlements for sub-section S. Babila station to Augusto artifact are presented below. As shown in figure 32, the measured subsidence for the monitoring sections was always contained within the expected scenarios, i.e. close to the Volume loss VL=0.5% forecasts, and only occasionally slightly higher close to the VL=0.7% threshold. In any case, it was never above the warning threshold. The graph in figure 33 shows that settlements mainly develop at the shield and at the tail of the TBM during the backfill injection, the settlement period can be considered concluded at about 5 diameters from the excavation front.

The analysis of ground settlements in the central segment of the line was further investigated by a recent study ( Rigamonti et al., 2025) based on data collected through the European Ground Motion Service (EGMS) InSAR [11]. Interferometric Synthetic Aperture Radar is a remote sensing technique that involves the acquisition of radar images by sensor mounted on satellite or airborne system over a specific area at different times: by measuring the signal’s phase shift between two acquired images, it can detect small displacements.

One of the targets of this study was to compare the final cumulative displacement registered on site by ground monitoring and the values estimated by InSAR measurements in the central part of M4 alignment.

The analysis shows a good match of results as many of the monitored buildings exhibited absolute difference below

Figure 30. Average pressure trend at the TBM face during undercrossing Milan’s “Passante” (underground railway link).
Figure 31. Twist odd track railway tunnel during TBM undercrossing.

Milan Metro: from its origins to the present day, looking to the future

5mm between ground and InSAR final cumulative displacement. Figures 34a/b show the comparison of final cumulative displacement between ground-based and remotely sensed measurements in the central sector.

The study also reconstructed the asymmetric distribution of settlements above the first tunnel resulting from the excavation of a second tunnel due to the deterioration of soil properties after the first excavation. These reconstructions were carried out through a modified Gaussian function by using a consistent number of satellite measurements, considering uncertainty by a Leave One Out Cross Validation (LOOCV). Figure 35 shows the settlement profiles in the transverse direction for six cross-sections, obtained by fitting the filtered InSAR displacement data using the modified Peck’s equation.

The back analysis derived the mean volume loss and the mean value of k parameter respectively equal to 0.33% and

0.44, thus providing useful data for improving deformation prediction.

The results of this study successfully demonstrated the potential of using InSAR data to analyses ground movements induced by TBM tunnel excavation phases. InSAR technique represents a new reliable method for surface monitoring that overcome the limitation of conventional topographic monitoring which is generally associated with a limited number of measurements. However, InSAR can’t be useful for real time and detailed monitoring because of the satellite revisit time (generally 6 to 12 days) and the disturbances associated with thermal response and structural behavior of the buildings that hosts targets on top. InSAR can retrospectively provide a general description of the phenomenon, identify its extent, the period in which the subsidence developed and can provide a useful source of data for subsidence forecasts in subsequent excavation sections or to settle disputes.

Figure 32. Example of monitoring section.
Figure 33. Development of longitudinal subsidence in axis to the odd track.

Figure 34. Comparison of final cumulative displacement between ground (on-site) monitoring and InSAR measurements in the central sector. (a) Map of the absolute displacement difference for each mapped building; (b) frequency distribution of the absolute difference (deviations) between on-site and vertical InSAR final cumulative displacement. (source Rigamonti et al., 2025).

2.6. A new archaeological conception

M4 route runs alongside ancient buildings and monuments of high artistic and cultural value. The excavations for its construction proved to be a precious opportunity for the rediscovery of the “Hidden Milan”.

Central section of M4 line, between San Babila and S. Ambrogio stations, reaches in facts sites of great importance for the historical memory of the city of Milan.

In and around San Babila station, corresponding with metro line M1, an entire necropolis has been found, belonging between I and III century A.D., in the Roman period.

The excavations along the so called “Cerchia dei Navigli” corresponding to the medieval city wall along artificial canals, revealed the complex hydraulic system that has characterized the city since Roman times, expanding and transforming over the centuries. The most important findings were made at Santa Sofia station, artefact San Calimero, Vetra station and above all at Piazza Resistenza Partigiana (De Amicis station), where were found and relocated inside the station the remains of the bridge and the “Pusterla dei Fabbri”, belonging to defensive system prepared in the medieval age. In addition to valuable medieval, Roman and Celtic findings brought to light during the excavation of S. Ambrogio station, the peculiarity of this station is related to the M4-M2 connection which entrance has been planned encompassing the medieval “Pusterla”, a tower integrated fortified accesses to the city across XII century walls. Moreover, the monumental embankment found during the excavation has been preserved and enhanced and is now visible beneath a transparent floor inside the corridor connecting M2 and M4 lines. With the inclusion of medieval Pusterla in the M4-M2 con-

nection the archaeological findings have a new, active, lively role: the remains participate directly in the spatial definition of functional areas and even if protected from consumption, they are part of the station architecture. Milanese people are today passing by the Pusterla to switch between metro lines M4 and M2 like their ancestors did in the Middle Ages, about 900 years ago [6] (Cooperativa Archeologica, 2024).

3. Milan Metro Network future

Milan metro network continues to expand with MM S.p.A. always a protagonist in the development of projects from the initial concept to the tender project. In particular, among the projects under development, the extension of the M5 line to Monza, the extension of the M4 line eastwards to new Segrate terminus and the construction of the new M6 line that will constitute a sub-central ring of the city are particularly interesting [4].

3.1. M5 extension to Monza

To overcome the lack of a line depot and the burdensome temporary alternative as well as to naturally extend the service towards the outskirts of the urban area, MM S.p.A. has developed since 2005 a series of studies for the extension of the M5 line from the current Bignami terminus to Monza, providing for an interchange with the M1 line in Bettola and the construction of a depot-workshop in the Monza Casignolo area. Current project is developed almost entirely underground within the municipalities of Milan, Sesto San Giovanni, Cinisello Balsamo and Monza. The length of the extension is approximately 13 km and includes 11 stations and a depot

Milan Metro: from its origins to the present day, looking to the future

Figure 35. Settlement profiles in transverse direction for six cross-sections. The black dots represent the measurement points (MPs), with the Y-axis indicating vertical displacement and the X-axis showing the lateral distance from tunnel A axis. The red dashed line illustrates the total settlement profile fitted using all MPs, while the grey lines represent the multiple profiles obtained from the LOOCV procedure, where one MP was excluded in each run. The red and blue curves represent the 95th and 5th percentiles, respectively, of the LOOCV profiles (source Rigamonti et al., 2025).

for storage and maintenance of rolling stock. The planimetric alignment of M5 line extension is shown in figure 37. The extension of the M5 line to Monza is planned mainly in mechanized excavation with the construction of a single double-track tunnel with an internal diameter of 8.80 m. The excavation is planned with the use of 2 TBMs that will start from the central section (where the rail level is higher to reach the depot) towards the ends of the line. The stations, with lateral platforms and typically organized on 3 levels, will be built in cut&cover with the TBM passing empty; 10 inter-section shafts are planned with a fire department access/safety exit/drainage function. The greatest construction complexities are related to the intersections with line 1 at the Cinisello station, to the construction

of the A52 overpass bridge with a span of 56 m, to the crossing of the densely populated center of Monza, rich in important historical buildings, to the construction of a station inside the park of the Villa Reale as well as to some geological peculiarities which could affect the northern section of the excavations.

3.2. M4 extension to Segrate

The extension of the M4 line from the current terminus located at Linate airport to the future hub railway station “Segrate Porta Est” (Segrate gateway) is currently being studied. Planimetric alignment of M4 line extension is shown in figure 38. The route runs underground for 3.1 km with a depth varying from about – 11m to – 24m from surface, underpassing Idroscalo basin, existing railway tracks and the area

of the future HSR/commuter/suburban services. In addition, the extension of the M4 will have to coordinate with the future Westfield multifunctional center for the definition of the urban regeneration of the area in the north-east terminus. The double single-track tunnels will have an internal diameter of 5.50 m and will be built with mechanized excavation using two TBMs with an estimated diameter of 6.40 m which will pass under the ‘Idroscalo’ basin, with a variable coverage of approximately 8 to 10 meters. The extension also includes two sections of cut and cover tunnel located at the ends of the route, two stations, three cut&cover structures and a single bypass tunnel between the two tubes, all to be built with excavations in the groundwater with water table level varying from 9m to 27m from the bottom of the excavation. The experiences of excavation in the groundwater inherited from the recent construction of the M4 line are guiding the design both in terms of functional choices and construction technologies. The jet-grouting technique performed from the ground level will be applied both for the construction of the bottom plug of the cut and cover structures and for the ground consolidation for conventional tunneling (by-pass between the tunnels). This technique gives greater guarantees of reliability compared to cement injections in heterogeneous soils and under high water tables.

3.3. Future M6 line

Milan’s new M6 line, whose feasibility study is soon to be delivered, is a new automated underground metro line, 25-30 km long with, 20-25 stations with sub-central, orbital (ring) or semi-orbital route still to be decided in multi-scenario approach. Independently of the route, line crosses high density context, up to 15.000 inhabitants per km² and interests several TOD (Transit Oriented Development) regeneration urban projects. Construction will have to deal with a dense, very dynamic contest, an existing 5 lines network plus an underground railway link and the increasing sensitivity of residents and activities. New metro under planning should consequently reduce construction impacts adopting all the

Figure 37. Chorography from north Milan to Monza. Yellow/purple line represents future M5 extension. Red continuous line represents existing M1 line. Red dashed line represents future M1 extension. Orange contour represents Milan’s Municipality border.

Figure 36. M2-M4 corridor entrance render.
Figure 38. M4 line extension (blu dashed line) from Linate Airport to Segrate.

Milan Metro: from its origins to the present day, looking to the future

strategies that the technological improvement can offer. TBM technology is today fundamental in metro construction, but most of its advantages are lost because of cut&cover excavation for stations and shafts that interrupt the road alignment too frequently. The way out could be based on the possibility of a single huge TBM tunnel to incorporate tracks, platforms, technical rooms, concourse and way-out paths. Nowadays this solution is partially adopted by operating lines only in Barcelona’s metros L9 and L10 lines in which a single TBM tunnel 11,95m wide enough to stack two tracks along the line and to allow for the integration of the station platform without need of further widening at stations. Accesses to tunnel enclosed stations are located in cut and

cover excavated side shafts.

Even if this solution reduces excavation from above compared to traditional entirely cut&cover excavated stations, and make the location of excavated areas more flexible, this cut&cover excavated access shafts are nevertheless kind of massive. BART metro line extension under planning, located in the heart of Silicon Valley, had a different approach adopting a single large tunnel both for the running tunnel and for the stations with siding tracks. Also in this case massive side access shafts are foreseen but these side station shafts are combined with urban regeneration project in TOD logic. Compared to stacked-track plan side-by-side track with central platform logic has several advantages: (facilitates

Figure 39. Barcelona’s metros (source vinals/TMB).
Figure 40. Planimetric layout of Milan metro system. Green contour represents Milan’s municipality border.

Antonelli - Bruschi - Calabrò

T.O.R.

Prevalent geological context

Water table level during construction

Sand and gravel

Below excavation level

Sand and gravel

Below excavation level for the oldest stretch; above excavation level in later extensions

smaller adits, reducing construction risk and extent and cost of ground treatment, enhances passenger experience by reducing vertical access, eases central platform and switches as well) and involve a slight increase in tunnel diameter to 14-16 m, according to system size. Due to the tunnel depth, arguably higher on average than other metro lines, bored stations would have accesses on surface up to 2-300 m far from each other. Combining the large TBM tunnel solution with bored access tunnels could give the opportunity to eliminate the main cut&cover excavation limiting the open excavation only to elevators and ventilation vertical shafts and reducing impacts on traffic and utilities diversion. Feasibility of such an evolution is mostly based on the possibility to easily bore inclined tunnels (trough “conventional” tunnelling, Pipe jacking or Micro-tunnelling machine) starting from the TBM main large tunnel or from the surface and to place systems in the main tunnel exceeding spaces (below the platforms and beyond them in both directions). Such a further development would regard next project steps of Milan’s new M6 line.

Conclusions

The paper provides a description of the history of Milan subway lines from M1 to M5 dealing with several aspects such as the construction techniques adopted over the years, the technical motivations behind design solutions and the challenges faced, also looking to the future with a brief description of some planned extensions.

Table 2 shows a comparison between the lines in terms of construction periods, construction techniques, line depths, geological context and influence of water table. In conclusion, the expertise achieved in the design and construction of Milan Metro Lines, from the “Milan Method” later called cut&cover, to the stacked bored tunnels and ground freezing techniques in densely urbanized areas (first time in Italy) has significantly contributed to the development of underground engineering practices, serving as a benchmark

Sand and gravel with local thin clayey-silty layers

Mainly above excavation level

Sand and gravel with local thin lenses of sandy silt

Mainly above the top of the tunnel

Sandy gravel with thin local lenses of fine silty sand

Mainly below excavation level for the first stretch; above excavation level in the second stretch

for future infrastructure projects both domestically and internationally.

References

[1] Antonelli A., Carbone I. (2004) – Milan Metro line 3: design and construction innovations. Tunnels and Underground Works: over the last 5 decades and onwards, SIG Conference.

[2] Balossi Restelli A. (2014) – “Sottopasso delle 2 gallerie metropolitane M5 alle 4 linee delle Ferrovie Nord Milano in corrispondenza della Stazione Domodossola” Gallerie e grandi opere sotterranee, n° 112.

[3]Bruschi A. (2018) – Milan’s Metros: underground roots for urban revamping. ITA-AITES WTC, Dubai.

[4]Bruschi A., (2023) – Case Example: Milan: Learning by Doing to Shape a Better Future. ITA Working Group 20: Urban Problems, Underground Solutions, Report n° 2, 2023.

[5] Colombo A., Arini E., Gervaso F., Balossi Restelli A., Mongilardi E. (1988) – Problems caused by water table in lot 2B of line 3 of the Milan Subway. International Congress on Tunnels and Water, Madrid.

[6] Cooperativa ArcHeologia (2024) – Testimonianze archeologiche – Il Naviglio e la Pusterla di Sant’Ambrogio. Intervento di archeologia preventiva, sorveglianza archeologica alle operazioni di movimento terra e scavo stratigrafico delle emergenze rinvenute, Milano.

[7] M4 S.p.A, Consorzio MM4, Rocksoil S.p.a, (2020) – Linea Metropolitana 4 di Milano, Lorenteggio-Linate. Progetto As Built.

[8] MM. (1980) – Venticinque anni della Metropolitana Milanese spa. Milano: CO.P.E.CO.

[9] MM. (1995) – Linea 3. Milano: Mediaprint.

[10] MM. (2004) – 1964-2004 Quarant’anni di Metrò . Milan: M&B Publishing.

[11] Rigamonti S., Previati A., Dattola G., Crosta G.B. (2025) – Assessing twin tunnel-induced ground settlements in alluvial deposits by InSAR data. Engineering Geology, n° 352.

[12] Venza F. (2018) – Le talpe milanesi corrono veloci. Strade e Autostrade – Ferrovie e metropolitane, n° 1.

Table 2. Milan’s Metro Network main features.

FIBROrinforziamo conciprefabbricati

Energia, come ci vedono da Marte

Il tema dell’energia resta sottovalutato dai decisori politici, mentre l’industria – inclusa quella delle gallerie, tra le più energivore – dovrebbe mobilitarsi. Il sottosuolo può offrire soluzioni decisive, dal nucleare sicuro alla geotermia profonda. In questo contributo, Accenti ci scuote lanciando un forte grido d’allarme.

Premessa

Sono pienamente consapevole che riscrivere il passato, per sua natura immodificabile, potrebbe sembrare un esercizio futile. Tuttavia, dopo i miei numerosi scritti sull’argomento, ho deciso di fare un’eccezione, perché nel campo dell’energia noto che spesso sfuggono proprio gli ordini di grandezza in gioco, sia riguardo al passato sia, cosa ben più grave, rispetto a ciò che stiamo pianificando di fare, senza comprenderne l’insufficienza o l’inutilità.

Immagino che, se Marte fosse abitato da intelligenze superiori che ci osservassero da tempo con un potente cannocchiale, non potrebbero fare altro che considerarci degni di un enorme manicomio planetario. Non mi riferisco tanto alle nostre guerre, sempre più insensate e pericolose, quanto al modo in cui, da tempo, affrontiamo il tema universale dell’energia. Sicuramente, non potrebbero che ammirare come, in un secolo e mezzo, siamo riusciti a domare la forza dell’energia, indirizzandola verso un incremento del nostro benessere collettivo, tanto da passare dal miliardo di abitanti della fine del XIX secolo agli oltre otto miliardi attuali: un risultato davvero notevole! Questo è stato possibile soprattutto grazie all’energia che attingiamo voracemente dalle immense riserve di carbone, gas e petrolio, che il Sole ha generosamente immagazzinato nel corso di milioni di anni. Dopo un possibile compiacimento per i nostri progressi, avranno certamente notato che, a un certo punto, ci siamo resi conto non solo che queste risorse fossili si stanno esaurendo, ma anche che il loro utilizzo eccessivo provoca effetti negativi sull’atmosfera. Avranno osservato i nostri numerosi test nucleari, deducendone la nostra indiscussa capacità di dominare l’atomo, e ammirato come da quell’attività distruttiva siamo passati a mettere a frutto l’energia nucleare per produrre energia, risparmiando così le risorse fossili.

Improvvisamente, però, vedono che ci strappiamo le vesti per il riscaldamento globale e, invece di continuare a puntare sull’atomo per ridurre l’uso dei fossili più responsabili di tale riscaldamento, abbiamo deviato verso altre fonti. “ Nulla di male ”, si saranno detti, “ scelte interessanti. Forse hanno avuto qualche problema con l’energia atomica e per questo hanno optato per altre soluzioni ”. Tuttavia, potrebbe essere loro poco chiaro perché una parte dell’umanità abbia abbracciato con decisione l’energia nucleare, mentre altre comunità l’abbiano altrettanto decisamente abbandonata. Se poi, oltre a osservarci, ci ascoltassero in tempo reale con i loro avanzati sistemi di traduzione istantanea, probabilmente in questo momento non potrebbero fare altro che isolare il nostro pianeta dal resto del sistema solare, per evitare di contagiare gli altri mondi. Vediamo il perché di questa considerazione catastrofica attraverso le loro analisi e i loro calcoli.

Per motivi che da Marte risulterebbero difficili da comprendere, avranno notato che l’umanità, sempre desiderosa di incrementare il proprio PIL e quindi i consumi, ha dirottato immense risorse economiche verso forme di energia variabili, come quella solare ed eolica, tornando di fatto agli albori della nostra civiltà, che già utilizzava queste fonti. Tuttavia, tali scelte non hanno ridotto minimamente l’inquinamento derivante dai fossili; al contrario, l’inquinamento è aumentato, e di molto.

Analisi della situazione di decarbonizzazione del pianeta Terra

I nostri osservatori marziani, grazie alla loro capacità di accedere a tutti i nostri dati, li analizzano con la freddezza di chi si trova a milioni di chilometri di distanza. Comprendono chiaramente i nostri sinceri sforzi per non danneggiare l’atmosfera e li ritengono assolutamente giusti, ma del tutto inefficaci alla luce dei numeri e delle ingenti spese che collettivamente investiamo per mantenere la nostra atmosfera pulita.

Esaminiamo i numeri. Nei primi dieci anni del XXI secolo, l’umanità ha speso 1.500 miliardi di dollari per le energie rinnovabili; nei successivi dieci anni, 4.000 miliardi; e, proseguendo con questa lodevole volontà di ridurre le

Tecnologia Tecnologia

Tipo energia

Confronto situazione energia nel mondo tra 2019 e 2024

emissioni di anidride carbonica, nei cinque anni successivi, inclusa la previsione per il 2025, spenderà ulteriori 9.000 miliardi. Dal loro pianeta, i marziani comprendono che noi consideriamo questo sforzo decisamente insufficiente e che alcuni di noi pianificano di investire altri 35.000 miliardi entro il 2030, con l’obiettivo di azzerare le emissioni nette entro il 2050.

Dallo spazio, lo spettro dei componenti della nostra atmosfera è misurabile con precisione. I nostri osservatori rilevano che nel 2000 le emissioni antropiche di CO2 ammontavano a 25 miliardi di tonnellate, nel 2010 a 33 miliardi, nel 2020 a 35 miliardi e nel 2024 hanno superato i 38 miliardi. Queste emissioni umane si aggiungono al ciclo naturale di circa 300 miliardi di tonnellate all’anno, contribuendo a un incremento medio della temperatura atmosferica di circa 0,3 °C ogni dieci anni.

Analizzando questi dati macro, i nostri amici marziani osservano che, con un investimento complessivo di 49.500 miliardi di dollari tra il 2000 e il 2030, nel migliore dei casi nel 2030 le emissioni antropiche supereranno quelle del 2024, cioè oltre 40 miliardi di tonnellate, con mezzo pianeta coperto di pannelli fotovoltaici e turbine eoliche. Sicuramente, gli astronomi marziani passerebbero questi dati al loro reparto di ingegneria per valutare cosa sarebbe potuto accadere se noi terrestri, un po’ confusionari, avessimo puntato sulla decarbonizzazione attraverso l’energia nucleare. Il calcolo approssimativo degli ingegneri è semplice: conoscendo il costo medio di un gigawatt di centrale nucleare sulla Terra tra il 2000 e il 2030, pari a circa 3,5 miliardi di dollari per gigawatt, si ottiene quanto segue.

Dividendo 49.500 miliardi di dollari per 3,5 miliardi di dollari per gigawatt, si ottiene una potenza totale disponibile di 14.143 GW che, operando per almeno 8.000 ore all’anno, produrrebbe 113.000 terawattora di energia ogni anno. Considerando che le proiezioni del consumo energetico globale per il 2030 si attestano intorno ai 190.000 terawattora, con quell’investimento in energia nucleare l’umanità coprirebbe il 60% del fabbisogno energetico annuale con zero emissioni. Inoltre, sostituirebbe circa il 50% dell’energia fossile attualmente utilizzata, riducendo drasticamente le emissioni stesse.

Questi acuti osservatori non potrebbero fare a meno di notare la nostra collettiva ingenuità, osservando come il nostro pianeta, a differenza del loro, disponga di un’energia infinita e pulita appena sotto i nostri piedi, disponibile da miliardi di anni. L’energia geotermica, con gli opportuni investimenti, potrebbe rappresentare una soluzione sicura per tutti gli anni a venire. Ci confonderebbero certamente in un angolo per manifesta follia, avendo constatato che, da eccellenti scienziati, abbiamo padroneggiato l’energia termonucleare e la prima cosa che abbiamo fatto è stata costruire un arsenale di bombe, che custodiamo gelosamente per farci, prima o poi, un gran male. Nel frattempo, disperdiamo quelle stesse conoscenze in una miriade di esperimenti inutili, invece di concentrare collettivamente gli sforzi per sviluppare rapidamente un sistema che replichi la fusione nucleare del nostro Sole, che generosamente ci invia la sua energia.

Quei bravi marziani, che a volte ci guardano persino con ammirazione, non possono però ascoltare il brusio di fondo che rappresenta la nostra contraddittoria realtà di homo quasi sapiens, incline al chiacchiericcio facile e a combattersi incessantemente.

Ritorniamo a Terra e salutiamo i marziani!

Abbandoniamo il ragionamento fantascientifico di un’ipotetica prospettiva marziana, pur plausibile nella sua logica, e torniamo a fare il punto sulla situazione reale, analizzando i numeri a nostra disposizione.

Da terrestre, voglio solo aggiungere che tendiamo spesso a giustificare le nostre “défaillance” attribuendo ogni colpa alla politica, dimenticando che la politica, in qualsiasi sistema, non è altro che un’intermediazione tra noi cittadini e chi prende le decisioni. Parafrasando i marziani, se l’umanità nel suo insieme non riesce a gestirsi adeguatamente, questo ci rende tutti, nessuno escluso, degni di un manicomio planetario.

Di seguito, presento la prima tabella con i dati ricavati dalle statistiche ufficiali disponibili, che possiamo analizzare per chiarire alcuni aspetti della nostra realtà globale sull’utilizzo dell’energia.

La tabella 1 confronta l’andamento globale del consumo di energia primaria (espressa in terawattora) tra il 2019 e il 2024, evidenziando il contributo di energia solare ed eolica. Nel 2019, solare ed eolico rappresentavano l’1,3% del consumo globale, mentre nel 2024 questa quota è salita al 2,5%. In termini assoluti, la produzione di queste fonti è più che raddoppiata in cinque anni, ma rimane una frazione modesta rispetto all’incremento totale del consumo energetico nello stesso periodo.

Tra il 2019, prima della pandemia, e il 2024, ultimo anno con dati consuntivi disponibili, il consumo globale di energia primaria è aumentato di 12.376 terawattora. Nello stesso periodo, la produzione di solare ed eolico è cresciuta di 2.368 terawattora, coprendo solo il 20% dell’incremento totale. In altre parole, nonostante gli ingenti investimenti in molti Paesi, queste fonti rinnovabili rappresentano appena il 2,5% del consumo energetico mondiale nel 2024. Questo evidenzia un paradosso: l’incremento del consumo di energia fossile cresce molto più rapidamente rispetto a quello delle rinnovabili, rendendo l’idea di una loro sostituzione completa una prospettiva, per usare un eufemismo, “da marziani”. Ciò non significa che le rinnovabili siano inutili, tutt’altro. Tuttavia, i numeri sono inesorabili: pianificare un futuro ecologico basandosi su ideologie, senza considerare i dati, è un errore fatale, come un osservatore extraterrestre potrebbe facilmente notare.

Con uno sguardo da “modesto tecnico terrestre” che si affida ai numeri, ho esaminato rapporti e previsioni di enti come IEA, IRENA, UN World Population Prospects, World Bank, IMF e i grafici delle conferenze COP. Devo dire che le traduzioni dei papiri egizi trovati nelle tombe dei faraoni mi sono parse più coerenti e comprensibili. Per questo, ho deciso di creare una tabella che proietta linearmente i dati attuali nel futuro, per capire cosa potrebbe emergere. Ecco i risultati (Tabella II):

Tabella I.

Nota alla Tabella II. I valori per il 2030 e il 2050 sono calcolati linearmente sulla base dei dati consuntivi forniti per il 2019 e il 2024, prescindendo da modifiche programmate o che si realizzeranno in futuro. Ad esempio, il piano europeo Net Zero per il 2030, pur rilevante, incide relativamente sulle previsioni globali di questa tabella, data la predominanza di altre regioni nei consumi energetici e nelle emissioni globali. Fonti: IEA (World Energy Outlook 2024, Global Energy Review 2025), Ember (Global Electricity Review 2024), Energy Institute (Statistical Review of World Energy 2024), UN World Population Prospects 2024, World Bank, IMF.

Figura 1. ITER (International Thermonuclear Experimental Reactor) si trova a Saint-Paul-lèsDurance, vicino a Cadarache, nel sud della Francia. Occupa 180 ettari ed è il più grande progetto dell’umanità dopo la stazione spaziale in orbita. Il suo Tokamak, del peso di 23.000 tonnellate, occupa un edificio alto 73 metri ed è dimensionato per contenere oltre 800 metri cubi di plasma, almeno 10 volte del più vicino concorrente. Vi partecipano 35 nazioni tra cui EU, Cina, India, Russia, Giappone, Svizzera e UK con costi che sono passati dai 6 miliardi di euro nel progetto iniziale agli attuali 22 miliardi. Le previsioni sono che l’intero progetto possa arrivare a costare 65 miliardi di euro per raggiungere tutti i suoi obiettivi.

Energia e proiezioni future: uno sguardo terrestre e marziano

Proiezioni dei dati energetici

La Tabella II è volutamente semplice: i dati consuntivi del 2019 e del 2024 sono stati proiettati linearmente al 2030 e al 2050. Sorprendentemente, alcune proiezioni al 2050 coincidono con le previsioni ufficiali, come la popolazione mondiale, il PIL globale (previsto raddoppiare) e l’aumento del consumo energetico globale. Tuttavia, le previsioni ufficiali spesso sembrano riflettere un ottimismo irrealistico, promettendo riduzioni del consumo pro capite e delle emissioni di CO2 attraverso soluzioni improbabili, come efficienze individuali o tecnologie miracolose, senza richiedere

2. La Geotermia di profondità mette a frutto il calore presente ovunque nel sottosuolo scavando al di sotto dei 2 km dalla superficie terrestre ed arrivando anche ad oltrepassare i 10 km. A questo proposito diversi metodi e progetti tra cui quello attualmente più utilizzato consiste nel creare serbatoi d’acqua calda in profondità, tra le rocce calde, per poi estrarne il vapore per alimentare turbine e alternatori. Siamo solo all’inizio, ma là sotto di energia da mettere a frutto ce n’è veramente tanta! Altri metodi recenti consistono nel perforare le rocce calde molto profonde, anche oltre 10 km, con metodi non meccanici, impiegando l’energia concentrata di microonde convogliate.

veri sacrifici all’umanità intera. I numeri, però, parlano chiaro: un futuro ecologico basato su ideologie rischia di essere illusorio, come l’ipotizzato osservatore marziano potrebbe facilmente notare.

Soluzioni meno ideologiche e sicuramente più efficaci?

Alcune ci sono già (nucleare tradizionale in sotterraneo), altre potrebbero essere pronte relativamente a breve, dipende da quanto ci impegniamo. Ne abbiamo già parlato anche su questa rivista, il tempo stringe ed è fondamentale investire al più presto ingenti risorse.

Tabella II.
Figura

Tecnologia Tecnologia

Fusione nucleare

La fusione nucleare, diversamente dalla fissione che “spezza” gli atomi, li unisce, replicando il processo che alimenta il Sole. Se la fissione è relativamente semplice (usata nelle bombe atomiche e nelle odierne centrali nucleari), la fusione sulla Terra è una sfida colossale, che richiede temperature di almeno 150 milioni di gradi centigradi, contro i 15 milioni del nucleo solare. La bomba all’idrogeno, inventata negli anni ’50, ottiene la fusione tramite l’esplosione di una bomba atomica, ma controllarla per produrre energia pulita è un’altra storia.

Negli anni ’50, scienziati come Andrei Sakharov idearono il Tokamak, una macchina per fondere isotopi dell’idrogeno (deuterio e trizio). Oggi, il progetto internazionale ITER, che coinvolge una trentina di Paesi, rappresenta la principale speranza per raggiungere questo obiettivo. Tuttavia, la fusione è diventata un tema politico, associata all’idea di “energia pulita”, scatenando una corsa a finanziamenti e startup che spesso mancano delle competenze necessarie. Tra queste: Commonwealth Fusion Systems, TAE Technologies, Helion Energy, General Fusion, Zap Energy, Tokamak Energy, Proxima Fusion, Thea Energy, OpenStar Technologies e Pacific Fusion. In Cina, si esplorano alternative come il Tokamak HH70 e la fusione con elio-3, presente sulla Luna, ma ancora teorica. Nonostante l’entusiasmo, il progetto ITER, con le sue dimensioni mastodontiche necessarie per soddisfare i requisiti fisici della fusione, rimane l’opzione più credibile, sebbene rallentato da difficoltà tecniche e gestionali.

Geotermia

La geotermia, che sfrutta il calore terrestre, è una delle fonti energetiche più antiche, utilizzata già secoli prima di Cristo. Dal 1904, a Larderello (Italia), si produce elettricità da questa fonte, e oggi Paesi come USA, Indonesia, Filippine, Turchia, Nuova Zelanda, Kenya, Islanda, El Salvador e Costa Rica generano complessivamente 92 TWh/anno nel 2024, conteggiati tra le energie rinnovabili.

La tecnologia per convertire il calore geotermico in elettricità è consolidata, ma limitata a zone dove le rocce calde si trovano entro 3 km di profondità. Tuttavia, i dati geologici indicano che a 10 km di profondità, praticamente ovunque sulle terre emerse, si potrebbe accedere a calore inesauribile per

centrali elettriche. Tecniche innovative, come la fusione delle rocce (illustrata in un articolo dl Paul Woskow del MIT Plasma Science and Fusion Center), permettono di superare questa barriera. Esperimenti in Texas stanno esplorando questa possibilità, eppure la geotermia riceve meno attenzione rispetto alla fusione nucleare, benché sia più vicina alla realizzabilità. Forse i nostri ipotetici marziani hanno ragione a guardarci con scetticismo.

Ettore Accenti http://ettoreaccenti.blogspot.ch/

Per ulteriori informazioni o approfondimenti scriveteci a: redazione@societaitalianagallerie.it

Sitografia

Ansaldo Energia: https://www.ansaldoenergia.com/ ENEA: www.enea.it Associazione Italiana Nucleare; https://associazioneitaliananucleare.it/ Agenzia Internazionale per l’Energia Atomica (IAEA); https://www.iaea.org/ ITER disputes DOE’s cost estimate of fusion project: https://pubs.aip.org/ physicstoday/online/4990/ITER-disputes-DOE-s-cost-estimate-of-fusion World’s Largest Fusion Project Is in Big Trouble, New Documents Reveal: https://www.scientificamerican.com/article/worlds-largest-fusionproject-is-in-big-trouble-new-documents-reveal/ ITER’s proposed new timeline - initial phase of operations in 2035: https:// www.world-nuclear-news.org/articles/iter-s-proposed-new-timelineinitial-phase-of-oper

Bibliografia

Accenti E. Gyrotron ... e il geotermico profondo salverà il mondo. Gallerie e Grandi Opere Sotterranee n. 143.

Accenti E. Natrium, la più avanzata centrale nucleare sotterranea in costruzione. Gallerie e Grandi Opere Sotterranee n. 144.

Accenti E. È arrivata l’ora degli SMRs? Gallerie e Grandi Opere Sotterranee n. 149.

Giornale dei lavori – settembre 2025

Ecco gli ultimi aggiornamenti dai cantieri di TELT, BBT, COCIV e ITALFERR & RFI

Tunnel di base del Moncenisio

1. Mappa dei cantieri d’attacco per i lavori del tunnel di base.

Avanza la realizzazione della sezione transfrontaliera della nuova linea ferroviaria Torino-Lione. A settembre 2025 gli scavi hanno raggiunto i 44,6 km di gallerie realizzate di cui oltre 19 km di tunnel di base. L’approfondimento di questo numero è dedicato alle operazioni di rotazione della fresa Viviana nella galleria di Saint-Martin-la-Porte.

– Saint-Jean-de-Maurienne: SNCF Réseau prosegue i grandi lavori per l’interconnessione ferroviaria nella Piana di Saint-Jean-de-Maurienne dove sorgerà anche la nuova stazione internazionale. E’ in corso la posa dell’armamento e della catenaria di Fase 2, per l’attrezzaggio del rilevato ferroviario a partire dal viadotto di Longefan, estremità occidentale del progetto.

– Saint-Julien-Montdenis: prosegue lo scavo con esplosivo sui due fronti dall’imbocco ovest del Tunnel di base con i primi 2000m superati su entrambi gli avanzamenti delle due canne, mentre il getto dell’arco rovescio in calcestruzzo armato della canna pari ha raggiunto al 31 luglio la progressiva 339 metri. Terminato l’ottavo ramo di comunicazione, è iniziato anche il ramo n° 9 di tipo R0 lungo 40 m a 2280 m dall’imbocco, con lo scavo dei primi 29 m a partire dalla canna dispari.

– Saint-Martin-la-Porte/La Praz: mentre è stata completata la rotazione della fresa Viviana nella sua posizione finale, procede lo scavo sui diversi fronti sia di tratti di tunnel di base, sia delle caverne tecniche e

logistiche necessarie allo scavo, sia di rami di comunicazione per un totale di 130 metri scavati durante il mese di luglio. In particolare, verso Torino, terminato lo scavo nelle rocce carbonatiche sulla canna dispari alla pK 10+230, è stato attraversato in sezione ridotta per mezzo di un cunicolo pilota il Front houiller. Si è quindi entrati per la terza volta negli scisti neri carboniferi dell’Unité des Encombres, con un avanzamento di 18 metri.

In parallelo, a La Praz il 4 luglio è terminato lo scavo della galleria logistica 6 tra le canne pari e dispari del tunnel di base nella futura area di sicurezza, iniziata a fine marzo, con una lunghezza di 87 metri. A partire da quest’ultima sono iniziati gli scavi a specchio sia della galleria intertubo (la futura sala d’accoglienza in caso di incidente ed evacuazione) che della canna ferroviaria pari. In questa zona a luglio sono stati scavati un totale di 158 metri, compreso l’avanzamento della caverna tecnica e della canna pari del tunnel di base verso Torino.

– Villarodin-Bourget/Modane e Avrieux: ad Avrieux proseguono dal sotterraneo verso la superficie le operazioni di impermeabilizzazione, armatura e rivestimento definitivo del primo dei quattro pozzi di ventilazione del tunnel di base, che ha superato la metà della realizzazione. Terminati intanto gli apprestamenti del sarcophage tra le profondità di -339 e -395 m del pozzo 4. I getti per il completamento del sostegno

Figura

Dai cantieri Dai cantieri

sono iniziati dal basso verso l’alto a partire dal 18 luglio, con un impiego di 350 m3 di calcestruzzo sui primi 53 metri. In sotterraneo, sulla piattaforma di Villarodin-Bourget, sono stati scavati nel mese 137 metri: è terminato lo scavo dei locali tecnici del ramo n° 89 alla pK 32+840, sono in corso il prolungamento della discenderia e lo scavo di un ramo di connessione logistica per il collegamento diretto con la canna dispari bypassando la caverna tecnica. Partito anche a inizio luglio, in direzione Torino, lo scavo della canna pari tra la caverna tecnica e la Caverna d’intersezione n° 8.

Chiomonte: sono state eseguite le prove di carico per il collaudo statico dell’impalcato di discesa del nuovo svincolo autostradale di Chiomonte sulla A32 Torino-Bardonecchia, opera in cessione di committenza alla concessionaria autostradale Sitaf, che servirà alla movimentazione dei mezzi del cantiere del tunnel di base, evitando di impattare sulla viabilità locale.

L’approfondimento

La rotazione di Viviana in galleria Il 16 maggio, dopo oltre due anni di lavori, nel cuore della montagna a SaintMartin-la-Porte è stato completato lo scavo della caverna tecnica. Questa caverna, larga 22 metri, collega la galleria di accesso alle due gallerie del tunnel di base. La fresa meccanica Viviana ha quindi iniziato la traslazione di questa zona, che richiede uno spostamento di circa 30 metri per attraversare la galleria pari (canna sud, già realizzata) e raggiungere la galleria dispari (canna nord).

Salbertrand: proseguono le operazioni preliminari sull’area dove verrà costruita la fabbrica dei conci e il sito per la valorizzazione del materiale di scavo proveniente dai lavori del tunnel di base lato Italia.

La Galleria di Base del Brennero

La Galleria di Base del Brennero (Brenner Basis Tunnel – BBT) costituisce un’infrastruttura chiave del tratto di corridoio ferroviario transeuropeo Scandinavo-Mediterraneo (SCAN-MED) che collega Monaco di Baviera a Verona. L’intero complesso di tunnel che costituisce il BBT, attualmente in una fase avanzata di realizzazione, si estende per quasi 230 chilometri di cui, alla fine di luglio, risultavano già scavati oltre 200 chilometri. L’articolata rete

Nel fine settimana del 28 giugno, lo scudo della fresa meccanica, del peso di oltre 1.200 tonnellate e corrispondente ai primi 10 metri della macchina, compresi tutti i motori, è stato ruotato di 90° per essere posizionato nella camera di lancio, in direzione di La Praz. Allo stesso tempo, l’arrivo e il trasferimento dei primi rimorchi del back-up nel sottosuolo hanno segnato una nuova fase logistica. Dopo il preassemblaggio in superficie, i primi tre rimorchi hanno percorso quasi 2 chilometri nella galleria di accesso in quattro ore, prima di essere assemblati e preparati per essere agganciati alla testa della fresa che è partita per il suo viaggio di 9 km mercoledì 17 settembre. a cura di TELT

di opere sotterranee che costituisce il BBT, oltre alle gallerie di linea destinate al passaggio dei treni e alle relative interconnessioni con la rete ferroviaria esistente, include il cunicolo esplorativo, le finestre di accesso, i cunicoli trasversali lungo le gallerie di linea, quelli relativi alle fermate di emergenza e numerose altre gallerie e pozzi con funzioni logistiche e operative. Per la realizzazione della Galleria di Base del Brennero è stata necessaria

Figura 2. Le operazioni per la rotazione della TBM Viviana in galleria a Saint-Martin-la-Porte.

l’attivazione di sette lotti di costruzione principali, quattro dei quali risultano già conclusi mentre i tre di seguito descritti sono al momento operativi, uno in Italia e due in Austria.

Sul lato italiano, nel tratto compreso tra il confine di Stato ed lotto più meridionale “H71 Sottoattraversamento Isarco”, concluso nel dicembre 2023, proseguono le lavorazioni del lotto costruttivo “H61 Mules 2-3”, affidato alla società consortile BTC S.c.r.l, composta da Webuild S.p.A., Ghella S.p.A.,

Cogeis S.p.A. e PAC S.p.A.. Questo lotto rappresenta il più grande lotto costruttivo di tutto il BBT.

I lavori sono stati avviati nel settembre 2016 e, alla fine di agosto 2025, è stato raggiunto un avanzamento complessivo degli scavi di oltre il 99,8% dei circa 64,9 km da scavare.

Attualmente proseguono le attività di scavo con metodo tradizionale dei cunicoli tecnologici trasversali e dei pozzi, mentre, per quanto riguarda la

Figura 1. Stato di avanzamento lavori a tutto agosto 2025.
Figura 2. Schema lotti costruttivi principali del BBT.

Dai cantieri Dai cantieri

realizzazione dei rivestimenti definitivi in calcestruzzo proseguono i getti nei cunicoli tecnologici trasversali e nel cunicolo esplorativo mentre sono terminati nello scorso mese di maggio quelli nella fermata di emergenza di Trens e nella relativa galleria di accesso.

Per quanto concerne le gallerie realizzate con metodo meccanizzato, gli scavi si sono conclusi il 2 maggio 2025, con l’arrivo della TBM “1071-Flavia” al confine di Stato, dopo uno scavo di 14,3 km e la posa complessiva di 8.142 anelli di rivestimento in conci prefabbricati.

La TBM “1054-Serena”, impiegata per lo scavo del cunicolo esplorativo, aveva già raggiunto il Brennero nel novembre 2021, seguita dalla TBM “1072-Virginia”, impiegata per lo scavo della galleria di linea Est e giunta al confine di Stato nel marzo 2023.

Per quanto riguarda i tratti del BBT a nord del confine di Stato, il lotto costruttivo “H53 Pfons – Brennero” interessa la sezione compresa tra la località di Pfons e il valico del Brennero ed è il più ampio lotto previsto in territorio austriaco. L’appalto è stato aggiudicato al raggruppamento temporaneo formato da Porr Bau GmbH, Marti GmbH Austria e Marti Tunnel AG Svizzera. La durata complessiva dei lavori prevista per questa sezione è di 70,5 mesi.

I lavori sono stati avviati nel maggio 2023 e alla fine di luglio 2025, è stato raggiunto un avanzamento pari a circa 49% dei circa 28,5 km di scavi previsti. È stato completato circa il 64% dei 13,4 km di scavi da realizzarsi con metodo tradizionale mentre, per quanto riguarda lo scavo con metodo meccanizzato, le frese a doppio scudo “Olga” e “Wilma”, avviate in data 18/09/2024, hanno completato lo scavo di circa il 36% dei circa 7,5 km di gallerie previsti per ciascuna canna in direzione nord, per ottenere il collegamento con l’adiacente lotto H41.

Il lotto costruttivo “H41 Gola del Sill – Pfons”, realizza il collegamento tra la Gola del Sill e la località di “Pfons” ed è stato affidato all’ATI “H41 Sillschlucht-Pfons”, composta dalle società Implenia Österreich GmbH, Implenia Schweiz AG, Webuild S.p.A., CSC costruzioni SA, per un importo pari a 651 milioni di euro. I lavori iniziati nel gennaio 2022 si concluderanno ad oggi entro il 2028.

Alla fine di luglio 2025 è stato raggiunto un avanzamento pari a 95% dei circa 26 km di scavi previsti. È stato completato il 96% circa dei 9,5 km di scavi da realizzarsi con metodo tradizionale. A seguito dell’abbattimento dei rispettivi diaframmi, avvenuti in data 17/09/2024 per la galleria Est e in data 20/05/2025 per la galleria Ovest, entrambe risultano collegate al confinante lotto H21. Per quanto riguarda lo scavo in direzione sud con metodo meccanizzato, sono state impiegate due frese a singolo scudo. La TBM “Lilia”, che ha completato oltre l’96% degli 8,1 km di scavo previsti e la TBM “Ida” che, dopo circa 26 mesi di avanzamento, ha raggiunto il proprio traguardo il 22/08/2025 portando a termine lo scavo di un tratto di 8,4 km della galleria ovest, nella zona del comune di Navis (Wipptal) al confine nord con il lotto di costruzione “H53 Pfons-Brennero e nei pressi dell’intersezione con la galleria logistica denominata “Iris”, realizzata per il superamento dell’omonima zona di faglia.

Il presente articolo si focalizza sul completamento dello scavo con metodo meccanizzato di questo tratto della galleria di linea del binario pari (ovest). La cerimonia ufficiale di conclusione dello scavo si è svolta il 22/08/2025, alla presenza di Martin Gradnitzer, amministratore di parte austriaca di BBT, Judith Engel, componente del Consiglio di Sorveglianza di BBT SE e CEO di ÖBB-Infrastruktur AG e di Arthur Göbl, direttore tecnico dell’impresa Implenia, che hanno avviato la TBM per lo scavo dell’ultimo tratto, culminato con l’abbattimento del diaframma.

Grande soddisfazione è stata espressa da entrambi i componenti del Consiglio di Gestione di BBT SE, Martin Gradnitzer e Gilberto Cardola, per il nuovo e importante traguardo raggiunto.

Judith Engel, in qualità di madrina della fresa “Ida”, ha evidenziato come questo traguardo rappresenti un ulteriore passo avanti per uno dei più importanti assi di trasporto europei. Ha rivolto le proprie congratula -

zioni al team di progetto per l’ottimo lavoro svolto ed ha sottolineato come, con la Galleria di Base del Brennero e le sue tratte di accesso, si stia realizzando un’infrastruttura affidabile e duratura a beneficio delle generazioni future.

La fresa TBM “Ida”, al pari della fresa “Lilia”, impegnata nell’ambito dello stesso lotto costruttivo “H41-Gola del Sill-Pfons” nel completamento dello scavo della galleria di linea Est, è stata appositamente progettata e realizzata per conto dell’impresa esecutrice dalla ditta Herrenknecht AG, presso lo stabilimento di Schwanau (Germania).

Si tratta di una fresa a singolo scudo, particolarmente adatta allo scavo di gallerie di lunga estensione in roccia compatta. In questo tipo di TBM ad ogni spinta viene montato un anello che va a realizzare il rivestimento della galleria ed è costituito da elementi prefabbricati denominati “conci”. La spinta verso il fronte per l’avanzamento dello scavo avviene esclusivamente mediante contrasto sull’ultimo anello di conci posato. Per tale motivo il ciclo di lavoro è discontinuo e prevede le seguenti 2 fasi esecutive principali: scavo per una lunghezza pari alla corsa utile (stroke) e riposizionamento attraverso i martinetti longitudinali di spinta con la contemporanea posa del rivestimento della galleria con conci prefabbricati.

Lo scavo di questo tratto della galleria di linea ovest è stato effettuato partendo da Ahrental in direzione sud, ed ha attraversato zone geologicamen-

Figura 3. Avvio della TBM “Ida” per l’abbattimento del diaframma.
Figura 4. Vista della TMB assemblata presso lo stabilimento Herrenknecht AG di Schwanau (Germania) nel dicembre 2023.

te molto complesse in particolare le zone di faglia “Viggartal”, “Walzn” e “Werner”, quest’ultima con sviluppo pari a circa 35 m. Di seguito si riportano i dati tecnici principali della TBM:

– Diametro nominale della testa fresante (area di scavo): 10.370 mm (89,92 m2)

– Peso complessivo della TBM (incl. main drive e back-up): 2.420 t

– Lunghezza dello scudo (compreso lo scudo di coda): 10.500 mm

Lunghezza totale (TBM incl. main drive): circa 160 m

Potenza elettrica totale main drive: 4.550 kW

La testa fresante è composta da 5 elementi dotati di utensili da taglio (cutter) costituti da dischi da 19 pollici; in dettaglio sono presenti n. 4 cutter centrali a doppio disco, n. 43 face cutters, 11 gouge cutters sul contorno e 10 bocche di carico. Si riportano di seguito le caratteristiche tecniche principali della testa fresante:

– Dia metro di scavo con cutter nuovi (usurati): 10.400 mm (10.370mm)

– Azionamento: n. 13 motori elettrici

– Velocità di rotazione: 0÷5,0 rpm

– Coppia nominale: 8.195 ÷ 26.550 kNm

– Coppia di spunto: 30.975 kNm

I 18 pistoni principali a doppio cilindro garantiscono una spinta nominale pari a 128.250 kN circa e una spinta massima pari a circa 183.200 kN. Il rivestimento messo in opera dalla TMB durante l’avanzamento è costi-

tuito da anelli composti da conci di calcestruzzo armato prefabbricato che presentano le seguenti caratteristiche principali:

– Diametro esterno anello: 9.840 mm

– Diametro interno anello: 9.040 mm (spessore: 40 cm)

– Lunghezza dell’anello: 1.950 mm

– Tipo di concio/schema di posa dei conci: universale/ 6+0

– Peso massimo del concio: 9,8 t circa

– Peso dell’anello completo: 58,2 t circa

– Classe di resistenza del calcestruzzo: C50/60

La messa in opera dei conci è stata possibile mediante un erettore in grado di sollevare i conci mediante un sistema di presa vacuum, mentre il riempimento del gap anulare tra l’estradosso dei conci e l’ammasso roccioso è stato realizzato mediante malta a presa rapida, per il concio inferiore e mediante pea-gravel sulla restante porzione del contorno

La produzione dei 59.066 conci, necessari alla realizzazione degli 8.438 anelli per il rivestimento della galleria scavata dalla TBM “Ida” è avvenuta presso lo stabilimento situato nell’area di cantiere all’imbocco della finestra di Ahrental. Il trasporto dei conci dal sito di produzione fino alla TBM è stato effettuato tramite veicoli speciali e poi con un treno di servizio, riducendo al minimo l’impatto ambientale e senza interferenze con la viabilità locale dell’area di progetto.

Progetto Unico Terzo Valico dei Giovi – Nodo di Genova

Avanzamenti nella Zona Sestri Voltaggio Proseguono gli avanzamenti sui vari fronti della galleria di Valico. Lungo la tratta Cravasco e Castagnola 3 dei 4 fronti attivi richiedono attualmente l’utilizzo di sezioni “tettoniche”, che prevedono l’utilizzo di centine semiautomatiche. Tali centine permettono l’installazione al fronte del puntone contestualmente alla posa dell’intera centina per la porzione di calotta e piedritti.

Situazioni analoghe si riscontrano nei fronti attivi tra le finestre Cravasco e Vallemme. Anche queste gallerie presentano condizioni d’ammasso tali da richiedere, in 3 fronti su 4, l’utilizzo di sezioni particolarmente pesanti, caratterizzate dall’utilizzo di centine semiautomatiche e profilati HEB 300. Il fronte pari della galleria Vallemme verso Milano, interessato da venute significative di gas naturale, è ripartito negli scorsi mesi, mediante particolari

accorgimenti volti a contenere il rischio di emissioni in galleria, garantendo le indispensabili condizioni di sicurezza per i lavoratori.

Sono anche ripartiti gli scavi dall’imbocco nord, dove le 2 TBM che avevano operato fino all’anno scorso sono state smontate. Anche qui, l’avanzamento in tradizionale interessa argilloscisti estremamente tettonizzati e scadenti, richiedendo l’utilizzo di sezioni fortemente consolidate e caratterizzate dall’utilizzo di centine semiautomatiche e profilati HEB 300.

Avanzamenti Variante STI

Le opere a servizio delle gallerie di linea che rientrano nell’adeguamento sicurezza Gallerie procedono con 3 fronti attivi sulla Galleria di Ventilazione GNVS, 1 fronte attivo sulla GN17 e 1 fronte attivo sul Camerone GN15E propedeutico alla realizzazione del locale tecnologico.

a cura di BBT
Figura 5. Fase di abbattimento del diaframma.
Figura 6. Foto di gruppo davanti alla tasta fresante dopo il completamento dello scavo.

Dai cantieri Dai cantieri

Nel contempo stanno procedendo le attività per l’area sicura di Polcevera, le quali prevedono la realizzazione di 11 by-pass di collegamento con il cunicolo di esodo sia sul binario pari Dir. GE che sul binario dispari Dir. MI. Il pozzo di ventilazione GN2R è completo per la parte di cunicolo di collegamento alla linea, mentre il pozzo vero e proprio è in corso di completamento con le operazioni di scavo a piena sezione, dopo aver concluso l’alesaggio del foro pilota eseguito con la tecnologia raise-boring.

Interconnessione di Novi Ligure

Nell’ambito dei lavori per l’Interconnessione di Novi Ligure, è stato completato il rivestimento del camerone GNVA, lungo 400 metri e

Linea Ferroviaria A.V./A.C. Napoli-Bari

Da Agosto 2022 risultano in fase realizzativa tutti i cantieri della nuova linea ferroviaria Napoli-Bari.

Facendo riferimento a quanto già pubblicato nelle precedenti puntate di questa rubrica, qui di seguito si riporta un aggiornamento sullo stato di avanzamento delle principali opere in sotterraneo presenti nei vari lotti:

Napoli-Cancello

Galleria artificiale Casalnuovo (2,3 km): A luglio 2025 è stato completato lo scavo dell’intera galleria, mentre a settembre 2025 risultano in via di completamento le opere interne di rivestimento definitivo (Figura 4).

Cancello – Frasso Telesino

Galleria naturale Monte Aglio (4 km), a singola canna e doppio binario. A settembre 2025 i lavori risultano ultimati. La galleria è pronta per l’attivazione della tratta, che risulta imminente.

Frasso Telesino – Telese

Galleria artificiale Telese (2,8 km)

Ad aprile 2025 è stato completato lo scavo dell’intera galleria. Sono in via di completamento le opere interne di rivestimento definitivo.

Telese – S. Lorenzo – Vitulano

In questa tratta è prevista la realizzazione di 7 gallerie, tutte a singola

situato in corrispondenza dell’Interconnessione Pari. Sono tuttora in corso gli scavi delle gallerie di interconnessione: la galleria GNVB sul binario dispari presenta un avanzamento pari all’88,4%, mentre la galleria GN41 sul binario pari ha raggiunto un avanzamento del 91,36%. È inoltre iniziato lo scavo del pozzo di uscita di Sicurezza della GN41, mentre lo scavo del pozzo della GNVB è in avanzamento e ha raggiunto circa il 50%. Per la galleria artificiale GAVA resta da scavare il 37,30% dell’opera. Lo scavo delle zone in trincea è stato completato ed è attualmente in corso il rivestimento.

a cura del General Contractor guidato da Webuild

4. Galleria artificiale Casalnuovo: completamento opere interne.

canna (doppio binario) ed in scavo tradizionale: Gallerie Tuoro S. Antuono (1,6 km), Cantone (1,0 km), Limata (0,35 km), S. Lorenzo (1,7 km), Ponte (0,45 km), Reventa (0,2 km), Le Forche (2,2 km). Sono inoltre previste 4 gallerie (sempre con scavo tradizionale) per realizzare le uscite/accessi

Figura 3. Messa in opera di centine semiautomatiche nel cantiere di Cravasco (courtesy of Webuild image library).
Figura 2. Istallazione del puntone semiautomatico nel cantiere di Cravasco (courtesy of Webuild image library).
Figura

intermedi di emergenza, che svolgono in alcuni casi anche il ruolo di finestre costruttive.

Facendo seguito al completamento dello scavo della galleria Reventa nello scorso mese di aprile, a giugno è stato completato lo scavo della galleria Limata (Figura 5) e nel mese di luglio quello della galleria Ponte (Figura 6). Complessivamente, a settembre 2025, dei 7,9km totali di gallerie, risultano scavati più di 6,5 km (più dell’80%).

Apice – Hirpinia

Gallerie Rocchetta (6,5 km), Melito (4,4 km), e Grottaminarda (2 km), tutte a singola canna a doppio binario con scavo meccanizzato (2 TBM). A settembre 2025, prosegue – con buone produzioni – lo scavo della galleria Rocchetta ad opera della seconda TBM (“Futura”). Attualmente la TBM si trova nel tratto caratterizzato dalle massime coperture (circa 400 m), e l’avanzamento complessivo è superiore al 50%, essendo stati completati circa 3,5 km sui 6,5 km totali. Contestualmente, è stato avviato il monitoraggio del carico idraulico a tergo del rivestimento della galleria in corrispondenza di opportune sezioni di controllo nelle quali verrà poi realizzato un sistema di drenaggio.

In parallelo (Figura 7), procedono le attività di realizzazione della culla per

consentire l’uscita e lo smontaggio della prima TBM (“Aurora”) - che ha completato lo scavo della galleria Grottaminarda a settembre 2024 - per il successivo trasporto sul versante opposto e l’avvio dello scavo della galleria Melito.

Hirpinia – Orsara

La galleria Hirpinia (27 km a doppia canna) si contenderà con la galleria di

Valico a Genova il primato di galleria più lunga d’Italia.

A settembre 2025 procede – a partire dall’imbocco lato NA – lo scavo in tradizionale (avviato a gennaio 2025) della singola canna a doppio binario (Figura 8) verso il pozzo di lancio delle 2 TBM lato NA, con un avanzamento complessivo di circa 115 m (su un totale di circa 300 m)

Contestualmente, è stata avviata l’esecuzione del quarto scavo di ribasso del pozzo rettangolare (circa 70m x 22m) per il lancio delle 2 TBM lato NA (Figura 9).

Intanto, prosegue lo scavo in tradizionale della finestra carrabile F1 (avviato a luglio 2024) che garantirà l’accesso alla fermata di emergenza intermedia in sotterraneo. Complessivamente, risultano scavati circa 350 m (Figura 10).

Figura 6. Galleria Ponte: completamento scavo.
Figura 5. Galleria Limata: completamento scavo.
Figura 7. Galleria Grottaminarda: attività propedeutiche allo smontaggio della TBM.
Figura 8. Galleria Hirpinia: scavo in tradizionale a partire dall’imbocco lato Napoli.

Dai cantieri Dai cantieri

Infine, è in fase di realizzazione l’imbocco lato BA a ridosso del torrente Cervaro (Figura 11).

Orsara – Bovino

La galleria Orsara (9,8km a doppia canna) viene realizzata con 2 TBM EPB (Figura 12).

A settembre 2024 è stato avviato lo scavo della prima TBM (“ Marina”) a partire dall’imbocco lato BA. A Settembre 2025 l’avanzamento complessivo è di circa 1650 m.

Ad aprile 2025 è stato avviato lo scavo della seconda TBM (“Lucia”, Figura 12) sempre a partire dall’imbocco lato BA, il cui avanzamento complessivo a settembre 2025 è di circa 380m.

In corrispondenza dell’imbocco lato NA (a valle della SS90) è in fase di realizzazione il quarto ordine di tiranti funzionale al successivo – ed ultimo – scavo di ribasso (Figura 13).

a cura di ITALFERR & RFI

Figura 9. Galleria Hirpinia: pozzo di lancio delle TBM lato NA (4° scavo di ribasso).
Figura 10. Galleria Hirpinia: scavo finestra di emergenza F1.
Figura 12. Galleria Orsara: logistica di cantiere all’imbocco di Bovino (lato Bari) a servizio delle 2 TBM.
Figura 13. Galleria Orsara: realizzazione 4° ordine di tiranti all’imbocco lato Napoli.
Figura 11. Galleria Hirpinia: realizzazione dell’imbocco lato BA a ridosso del torrente Cervaro.

Visita tecnica al cantiere della nuova galleria

S. Donato (ampliamento dell’autostrada A1)

Committente: Autostrade per l’Italia S.p.A.

Direzione lavori: RTI Rothpletz Lienhard Srl (mandataria), Exenet Srl, Technical S.p.A. e Build. Ing. Srl (mandanti)

Contraente generale ed esecutore lavori: Amplia Infrastructrures S.p.A.

Progettista: Tecne Gruppo Autostrade per l’Italia S.p.A.

Martedì 27 maggio 2025 si è svolta la seconda visita tecnica dell’anno organizzata dalla Società Italiana Gallerie. L’iniziativa ha riguardato i cantieri della nuova galleria San Donato, opera inserita nel piano di potenziamento della rete autostradale promosso da Autostrade per l’Italia S.p.A., nell’ambito dei 12 km di nuova terza corsia previsti per il Lotto 2B+1Sud della tratta Firenze Sud–Incisa Valdarno.

La giornata ha avuto inizio presso il casello A1 di Villa Costanza, dove i 30 soci partecipanti sono stati accolti da una navetta messa a disposizione da Amplia Infrastructures S.p.A., società del gruppo Autostrade per l’Italia incaricata della realizzazione della galleria. Il mezzo ha condotto i visitatori

fino al campo base, dove hanno ricevuto i saluti dell’ing. Luca Giacomini, RUP per conto di Autostrade per l’Italia S.p.A., che ha illustrato il quadro generale del Lotto 2B+1Sud.

L’intervento si sviluppa interamente nei territori comunali di Bagno a Ripoli, Rignano sull’Arno e Figline e Incisa Valdarno. In particolare, la parte 2B del lotto comprende la costruzione della nuova galleria San Donato, del viadotto Ribuio e il completamento del Rimodellamento Morfologico di San Donato, mentre la parte 1Sud riguarda il nuovo viadotto Massone e l’adeguamento dell’area di parcheggio di Rignano (Figura 1).

I lavori, avviati nell’aprile 2022, hanno raggiunto circa il 50% del loro avanzamento.

La nuova galleria naturale, completamente in variante rispetto al tracciato esistente, è scavata accanto all’attuale galleria a doppio fornice San Donato, oggi in esercizio, e si sviluppa al di sotto del centro abitato di San Donato in Collina. L’opera presenta uno sviluppo in naturale di circa 930 m e una sezione di scavo di circa 220 m².

Attualmente sono in corso le attività di scavo, che hanno raggiunto un avanzamento di circa 300 m dall’imbocco nord e 60 m dall’imbocco sud.

L’ing. Antonio Bifano, Direttore di Cantiere per Amplia Infrastructures S.p.A., ha illustrato l’organizzazione del cantiere, che impiega oltre 100

Figura 1. Tracciato e principali opere Lotto 2B+1Sud.

Visita tecnica Visita tecnica

maestranze con turni continuativi 24 ore su 24, 7 giorni su 7. Ha inoltre presentato in dettaglio l’innovativa centina tubolare meccanizzata, detta “sicura”, utilizzata per la stabilizzazione dello scavo. Questo sistema richiede un intervento minimo delle maestranze in prossimità del fronte, poiché la quasi totalità delle operazioni di movimentazione e posa viene effettuata tramite automatismi (figura 2) o con l’ausilio di mezzi meccanici.

L’ing. Andrea Zambon, in rappresentanza di Tecne — società del Gruppo Autostrade per l’Italia S.p.A. che, sotto la direzione tecnica dell’ing. Andrea Magliocchetti , ha curato lo sviluppo del progetto esecutivo — ha illustrato (Figura 3) le principali peculiarità della galleria, evidenziando in particolare:

– lo scavo in adiacenza alle gallerie esistenti in esercizio, senza interruzione del traffico, con un setto minimo di circa 15 m in prossimità degli imbocchi;

– la presenza di frane e di edifici in superficie lungo il tracciato, con una copertura massima di circa 80 m;

– lo scavo a piena sezione, caratterizzato da un fronte di circa 220 m²;

– la complessità degli ammassi rocciosi attraversati (Sillano, GSI = 25), contraddistinti da comportamento fragile.

Per lo scavo della galleria, il progetto esecutivo iniziale prevedeva l’impiego sistematico di sezioni troncoconiche con interventi di presostegno al contorno e consolidamento sia al fronte sia al contorno (Figura 4 – C2V). Nelle tratte caratterizzate da ammassi con migliori caratteristiche geotecniche e in assenza di frane o manufatti in superficie, erano invece previste sezioni con consolidamento limitato al fronte (Figura 4 – B2V).

A seguito della campagna di indagini di assessment sulle gallerie esistenti, il progetto della nuova galleria è stato aggiornato, con particolare attenzione alle tratte in prossimità degli imbocchi, dove l’interasse con la canna destra della galleria San Donato esistente si riduce fino a 15 m.

Sulla base dei dati raccolti sono state condotte analisi numeriche 2D e 3D per studiare l’interazione tra il nuovo scavo e il fornice esistente in esercizio. Queste analisi sono risultate fondamentali per il dimensionamento degli interventi di consolidamento da piano campagna e per la definizione delle soglie da assegnare alla strumentazione di monitoraggio. È stato quindi previsto un consolidamento dall’alto mediante pali di calcestruzzo magro, disposti al contorno della nuova galleria (anche al fronte nel tratto di setto minimo) con geometrie tali da creare un “guscio” continuo in calcestruzzo C8/10 attorno all’area di scavo, al fine di minimizzare le variazioni tenso-deformative nel setto di terreno interposto e proteggere la struttura esistente.

Il piano di monitoraggio geotecnico-strutturale è stato sviluppato secondo i principi del Metodo Osservazionale (NTC 2018 & EC7) e prevede una piattaforma in grado di restituire in tempo reale le principali grandezze indice della risposta tenso-deformativa del terreno e delle strutture, nuove ed esistenti. I dati raccolti dagli scavi già eseguiti mostrano valori di convergenza ampiamente contenuti entro le soglie di progetto.

Il professor Salvatore Miliziano e l’ing. Lorenzo Reali, per conto di Geotechnical Design Group, hanno illustrato le ottimizzazioni introdotte rispetto al progetto esecutivo. In particolare, sulla base dei riscontri dei primi 120 m di scavo dall’imbocco nord — caratterizzati da materiale compatto, fratture chiuse o riempite da calcite (Figura 5) e da monitoraggi che evidenziavano spostamenti molto inferiori alle soglie di progetto — sono state introdotte nuove sezioni cilindriche, eliminando il presostegno e ottimizzando gli interventi di preconsolidamento al contorno. Queste

Figura 2. Automatismi centina tubolare meccanizzata.
Figura 3. Presentazione del progetto da parte dell’ing. Andrea Zambon.

modifiche hanno consentito di incrementare le produzioni mantenendo ampi margini di sicurezza.

Terminata la parte di presentazioni, i partecipanti — dopo aver ricevuto dal responsabile della sicurezza, ing. Filippo Pandolfi (Tecne), le informazioni necessarie — sono stati accompagnati in cantiere. Inizialmente hanno assistito alle operazioni di getto dell’arco rovescio presso il fronte lato imbocco nord (figura 6).

Quindi si sono spostati all’imbocco sud, dove erano in corso le attività di consolidamento del fronte di scavo della sezione B2V (figura 7), che prevede consolidamenti al fronte mediante barre in vetroresina cementate, oltre agli interventi di presostegno al contorno.

La visita si è conclusa con il rientro dei partecipanti al campo base e, successivamente, al casello A1 di Villa Costanza. Un sentito ringraziamento ad Autostrade per l’Italia e ad Amplia Infrastructures S.p.A. per l’ospitalità e l’organizzazione impeccabile dell’iniziativa.\

Figura 4. Sezioni di scavo previste dal Progetto Esecutivo della nuova galleria San Donato.
Figura 5. Fronte di scavo da imbocco nord.
Figura 7. Consolidamento del fronte in prossimità dell’imbocco sud della nuova galleria San Donato.
Figura 6. Getto arco rovescio in prossimità dell’imbocco nord della nuova galleria San Donato.

Visita tecnica al cantiere dell’impianto

idroelettrico di S.

Pancrazio in

Val d’Ultimo

Committente: Alperia S.p.A.

Direzione lavori: Hydrodata S.p.A.

Progetto Esecutivo (PE): Alperia S.p.A.

Progetto Esecutivo di Dettaglio (PED): Pro Iter S.r.l.

Appaltatore: A.C. S.p.A.

La terza visita tecnica del 2025 della Società Italiana Gallerie si è svolta venerdì 4 luglio presso i cantieri dell’impianto idroelettrico di San Pancrazio, situato in Val d’Ultimo. Alla visita hanno partecipato 15 soci.

L’impianto idroelettrico (anni di costruzione 1955 ÷ 1963) utilizza le acque del torrente Valsura, accumulate nell’invaso della diga di Zoccolo (circa 35 milioni di m3) e convogliate nella centrale di San Pancrazio, con un salto di circa 340 m e una portata massima di circa 12 m3. La potenza installata in centrale è pari a 35 MW e la produzione annua media è di 87.800.000 kWh (87,8 GWh).

I lavori di rinnovamento riguardano tutta la porzione di impianto a valle della galleria di derivazione in pressione (L = 5.600 m, D = 2,5 m) e consistono nella sostituzione della camera valvole, del pozzo piezometrico e della condotta forzata (L = 600 m, D = 1,85 ÷ 2,15 m) esistenti con opere completamente in sotterraneo. La condotta forzata e il pozzo piezometrico esistenti, superficiali e parzialmente interrati, risentono infatti di movimenti di versante più o meno profondi.

La giornata è iniziata alla stazione ferroviaria di Bolzano, punto di ritrovo per i partecipanti, i quali sono stati accompagnati alla Casa della Cultura nella località di Santa Valburga mediante una navetta messa a disposizione da P.A.C. S.p.A, appaltatore che si occupa della realizzazione del nuovo impianto idroelettrico. All’arrivo, i Soci sono stati accolti dal saluto dell’ing. Alessandra Sciotti, membro del Consiglio Direttivo della Società Italiana Gallerie. A seguire, l’ing. Enrico Maria Pizzarotti – Direttore Tecnico di Pro Iter S.r.l., società responsabile dello sviluppo del Progetto Esecutivo di Dettaglio ha fornito un approfondito inquadramento tecnico dell’opera. Il Progetto Esecutivo (PE) di ALPERIA (Figura 2) prevedeva l’esecuzione di: – un nuovo collegamento sotterraneo tra la galleria di derivazione in

Figura 1. Corografia impianto di San Pancrazio.

pressione e la centrale, lungo un pozzo di circa 7 m di diametro e 200 m di profondità e di una galleria di circa 6 m di diametro e 750 m di lunghezza;

un nuovo pozzo piezometrico di circa 9÷13 m di diametro (scavo) e 100 m di profondità;

una nuova camera valvole (circa 10 m di diametro e 50 m di lunghezza);

due finestre di circa 100 m di lunghezza ciascuna, per raggiungere i punti di attacco degli scavi in sotterraneo della camera valvole (discenderia superiore) e della galleria principale (rampa inferiore).

Il Progetto Esecutivo di Dettaglio (PED) P.A.C.-PRO ITER ha introdotto una sostanziale variante, consistente nella realizzazione in continuità verticale del pozzo piezometrico e del pozzo della condotta forzata (Figura 3), per una profondità complessiva di circa 300 m, eseguiti per i primi 150 m con scavo convenzionale e per i 150 m più profondi con raise borer, diametro 3,1 m.

Dal punto di vista geologico, l’area ricade nell’unità d’Ultimo della falda

del Tonale (basamento Austroalpino) che, nel settore di progetto (Figura 4), è costituita prevalentemente da filladi e paragneiss con migmatiti (UCS = 20 MPa) e presenta evidenze di disturbo tettonico e cataclasi rilevanti, con settori fortemente disgregati (GSI = 15 ÷ 60, Classe = III ÷ IV), per la prossimità con la Linea delle Giudicarie, faglia regionale fragile inversa transpressiva, che ha portato al sovrascorrimento dell’Austroalpino sul Sudalpino.

Terminata la sessione di presentazione del Progetto, i partecipanti si sono spostati in cantiere, guidati dall’ing. David Battiato di P.A.C. S.p.A. e dallo stesso ing. Pizzarotti. La prima tappa della visita ha interessato la nuova camera valvole che intercetta il pozzo piezometrico a una profondità di circa 100 metri. La camera valvole, nella quale è attualmente presente la condotta forzata esistente in esercizio provvisorio, è collegata con il pozzo forzato attraverso un camerone di servizio (Figura 5).

Da questo punto, la condotta forzata esistente sarà disconnessa dall’attuale impianto per essere reindirizzata nel nuovo pozzo piezometrico, tramite

Figura 2. Lay-out rinnovamento impianto secondo PE HYDRODATA.
Figura 3. Lay-out rinnovamento impianto secondo PED P.A.C.-Pro Iter.

Visita tecnica Visita tecnica

un by-pass, e proseguire per i restanti 200 metri nel nuovo pozzo forzato (Figura 6).

Successivamente, i partecipanti sono stati accompagnati in superficie dove è presente il cantiere per la realizzazione dei pozzi. Salendo sul carroponte utilizzato per la realizzazione dei pozzi è stato possibile osservare la porzione iniziale del pozzo piezometrico avente diametro di circa 13 m. L’ultima tappa della visita in cantiere ha riguardato la galleria di accesso inferiore (rampa inferiore) e la galleria principale di derivazione nella quale arriva il pozzo della condotta forzata. Qui i partecipanti (Figura 8) hanno potuto raggiungere la base del pozzo forzato nella quale è visibile la condotta forzata già installata nel pozzo e dalla quale questa proseguirà fino a raggiungere la centrale esistente dopo aver percorso un ultimo tratto all’aperto, con interramento della condotta a lavori ultimati.

La visita si è conclusa con un pranzo conviviale offerto da P.A.C. S.p.A., al termine del quale i partecipanti sono stati riaccompagnati alla stazione ferroviaria di Bolzano.

Un sentito ringraziamento a P.A.C. S.p.A., per l’ospitalità e l’organizzazione impeccabile, e all’ing. Enrico Maria Pizzarotti per la chiara e approfondita illustrazione del progetto dell’impianto idroelettrico di San Pancrazio.

Figura 4. Carta geologica dell’area (cerchiato in rosso il settore di interesse).
Figura 5. Camera valvole con condotta forzata esistente e camerone di servizio con pozzo forzato.
Figura 7. Carroponte e tratto iniziale pozzo.
Figura 6. Layout camera valvole.
Figura 8. Partecipanti alla visita tecnica.

Società Italiana Gallerie

“Control, Maintenance and Refurbishment of Tunnels”

Politecnico di torino, aula MaGna - sede del linGotto

5 GiuGno 2025

Il 5 giugno 2025 si è svolta presso il Politecnico di Torino la giornata di studio “Control, Maintenance and Refurbishment of Tunnels”, organizzata dalla Società Italiana Gallerie in collaborazione con il Politecnico di Torino e con il patrocinio di ITACET e dell’ordine degli Ingegneri di Torino.

L’iniziativa ha rappresentato un importante momento di confronto e aggiornamento professionale, caratterizzata da un’ampia partecipazione che ha visto affiancare nel pubblico numerosi studenti universitari ai professionisti del settore, tutti interessati ad approfondire le tematiche più attuali della gestione e manutenzione delle gallerie esistenti.

L’evento ha offerto una panoramica completa e multidisciplinare grazie al contributo di esperti provenienti dai principali operatori del settore nazionale.

Le relazioni hanno coperto un ampio spettro di argomenti, dagli aspetti storici, normativi e metodologici fino alle applicazioni pratiche più innovative, fornendo ai partecipanti una visione aggiornata delle sfide e delle opportunità nel campo della manutenzione delle opere sotterranee.

La giornata si è aperta con l’inquadramento storico dell’evoluzione progettuale e costruttiva delle gallerie, presentato dal prof. Peila del Politecnico di Torino, che ha illustrato come le tecniche costruttive e i criteri progettuali si siano sviluppati nel tempo, influenzando direttamente le attuali problematiche di manutenzione e gestione. A seguire, l’ing. Carigi, Assegnista di Ricerca al Politecnico di Torino, ha fornito un’analisi dettagliata del qua-

dro legislativo italiano aggiornato alle Linee Guida 2022, approfondendo le nuove procedure per le ispezioni periodiche, i criteri di valutazione delle condizioni strutturali e i protocolli di intervento preventivo.

La sezione centrale dell’evento ha visto protagonisti i gestori delle principali reti infrastrutturali nazionali, con un focus particolare sulle strategie operative concrete. L’ing. Bordi di SINA SpA ha condiviso l’esperienza maturata nel monitoraggio continuo e nella riqualificazione delle gallerie della rete ASTM, presentando metodologie innovative per la diagnosi preventiva e le tecniche di intervento meno invasive. L’ing. Baccolini di TECNE SpA e l’ing. Di Fiore di Autostrade per l’Italia S.p.A., hanno illustrato le strategie multilivello adottate per la rete ASPI, con particolare attenzione ai sistemi di monitoraggio strutturale automatizzato e alle procedure di risk assessment. Il contributo del settore ferroviario è stato portato dagli ingg. Pranno e Cesi di RFI SpA, che hanno presentato casi studio significativi relativi alla rete nazionale, analizzando le specificità delle gallerie ferroviarie in termini di carichi dinamici, problematiche di drenaggio e requisiti di sicurezza operativa. Particolare attenzione è stata dedicata alle tecniche di intervento durante i limitati tempi di interruzione del servizio.

La sessione si è conclusa con l’intervento dell’ing. Michelis di MAPEI SpA, focalizzato sulle tecnologie emergenti per il risanamento e l’impermeabilizzazione delle strutture sotterranee. Sono stati presentati materiali innovativi per il restauro strutturale, sistemi avanzati di impermeabilizzazione e tecniche di iniezione per il consolidamento dei terreni, offrendo una prospettiva tecnologica all’avanguardia sulle soluzioni disponibili per il settore. Il feedback raccolto dai partecipanti, tra i giovani studenti del Corso di Tunnelling del Politecnico di Torino e di altre università collegati in remoto ha dimostrato l’interesse per le tematiche trattate, nonché testimonia l’elevato gradimento dell’iniziativa formativa che consente di mettere in contatto il mondo industriale con il mondo accademico che è uno degli scopi statutari della SIG.

L’evento ha dimostrato come solo dalla collaborazione tra mondo accademico, gestori infrastrutturali e fornitori di tecnologie sia possibile fornire una formazione aggiornata e robusta dei futuri ingegneri.

Questo tipo di eventi formativi si rivela strategico per mantenere viva l’attenzione delle nuove generazioni verso un settore che, pur attraversando sfide importanti in termini di attrattività professionale, continua a offrire opportunità di sviluppo tecnico e professionale di grande rilievo.

L’iniziativa della Società Italiana Gallerie conferma il ruolo centrale dell’associazione nella promozione della cultura tecnica e nella diffusione delle migliori pratiche nel settore delle infrastrutture sotterranee.

a cura di Andrea Carigi

Giornata di studio
Il prof. Daniele Peila presenta la propria relazione d’inquadramento storico.

PERSONAL TECH - ADVISOR

WATERPROOFING YOUR PROJECTS SINCE 1908

Soprema, world leader in waterproofing solutions, offers a wide range of systems, products and services for large civil engineering, underground and water projects. . Whether it’s a bridge, a tunnel, a basin, a foundation or a subway, in Soprema, we always have the know-how and the solution for the most complex works, ensuring both product safety and sustainability.

Contact one of our experts through the free consultancy service Personal-Tech Advisor by scanning the Qr-Code with the smartphone.

SYNTHETIC AND BITUMINOUS MEMBRANES

WATERPROOFING SYSTEMS

WATERPROOFING AND EROSION CONTROL PROTECTION SYSTEMS

LIQUID WATERPROOFING SYSTEMS

Message from Andrea Pigorini ITA President Messaggio di Andrea Pigorini

Dear colleagues and friends,

As mentioned in my first speech I am truly honored to have been electted as the 18th ITA President for the 2025-2028 term. It is indeed a great responsibility one that I feel ready to take on, thanks also to the support of my company, Italferr (Italian State Railway Group), which is providing me with time and resources.

Over the years and through numerous WTCs, I have had the pleasure of getting to know the ITA Family, starting with the WTC 1989 in Toronto, where I participated as a newly graduate mining engineer. I have always admired the competence, passion, and strong commitment of the ITA family to sharing experiences, knowledge, and best practices among experts coming from all other the world. This voluntary exchange has played a vital role in promoting the use of the underground, in advancing know-how related to the design and construction of underground infrastructure, and for the betterment of human civilisation and the protecting our home, planet Earth.

Presidente ITA

Care colleghe e cari colleghi, come ho già avuto modo di dire nel mio primo intervento, sono veramente onorato di essere stato eletto 18° Presidente dell’ITA per il triennio 2025–2028. Si tratta di una grande responsabilità, che sento di essere pronto ad assumere anche grazie al supporto della mia azienda, Italferr (Gruppo Ferrovie dello Stato Italiane), che mi sta mettendo a disposizione tempo e risorse. Nel corso degli anni, attraverso i numerosi WTC, ho avuto il piacere di conoscere la “famiglia ITA”, a partire dal WTC 1989 di Toronto, al quale partecipai come giovane ingegnere minerario neolaureato. Ho sempre ammirato la competenza, la passione e il forte impegno della comunità ITA nel condividere esperienze, conoscenze e buone pratiche tra esperti provenienti da tutto il mondo. Questo scambio volontario ha avuto un ruolo fondamentale nel promuovere l’utilizzo del sottosuolo, nel far progredire il know-how legato alla progettazione e costruzione delle infrastrutture sotterranee, e nel contribuire al miglioramento della civiltà umana e alla protezione della nostra casa comune, il pianeta Terra.

With these lines, I would like to briefly recap the leadership priorities I intend to pursue with the new Executive Council.

Designing and constructing complex projects requires leading by example and working as part of a motivated, multidisciplinary team. The same principle can be applied to leading the ITA, and I will ensure effective coordination of the ITA team, starting with the newly appointed Executive Director, Helen Roth, who is already demonstrating leadership, great skill and commitment to the modernisation of the ITA.

In this light, I have also begun delegating significant areas of responsa bility to the Vice Presidents.

I believe ITA should engage more actively with underrepresented stakeholders, such as contractors, and clients of underground projects, by promoting the benefits of being an active member of ITA. Together with the Executive Director, Klaus Rieker as 1st VP, and our Treasurer Gerard Seingre, we are developing a plan to implement this strategy with the intent of broadening our sponsor base.

Another key area of focus is our Member Nations which reached total of 81 during the Stockholm WTC (a warm welcome to Papua New Guinea!)

Each Member Nation has its own structure, with varying levels of maturity and development, yet all are united by the understanding that utilising underground space for transportation infrastructure, utilities, and storage, is an intelligent choice to liberate surface area for more valuable human activities. Member Nations are the lifeblood of the ITA — they are the connection between global expertise and national decision-makers, the conduit through which we influence real-world outcomes. Member Nations are the ITA’s veins, connecting the countries of the world. In this spirit, I fully support the formation of regional groupings of Member Nations to amplify the voice to and from ITA and to create a better ecosystem for knowledge sharing. Lastly, I would like to highlight the many colleagues and ITA members who dedicate their time, passion, and expertise — voluntarily— to the growth of the Association and the broader tunnelling knowledge base. I am referring particularly to the dedicated members of the Working Groups and ITA Committees, both current and past ExCo members, and especially those like you who have contributed to the growth of National Tunneling Societies. We must remember that we are all volunteers driven by our passion for underground works, and we deserve to find fulfillment through public recognition, moments of fellowship at congresses, and international relationships — all aspects that should be nurtured and expanded. I am committed, together with the Executive Director and the newly elected ExCo, to building on the work that has been done and to shaping a more modern, structured and connected ITA.

Con queste righe desidero riassumere brevemente le priorità che intendo perseguire insieme al nuovo Executive Council.

Progettare e realizzare opere complesse significa guidare con l’esempio e lavorare come parte di un team multidisciplinare motivato. Lo stesso principio può essere applicato alla guida dell’ITA, e assicurerò un coordinamento efficace della squadra, a partire dalla nuova Executive Director, Helen Roth, che già sta dimostrando capacità di leadership, grande competenza e impegno nella modernizzazione dell’Associazione. In quest’ottica, ho anche iniziato a delegare aree significative di responsabilità ai Vicepresidenti. Ritengo che l’ITA debba impegnarsi in modo più attivo con stakeholder oggi poco rappresentati, come le imprese di costruzione e i committenti dei progetti in sotterraneo, promuovendo i vantaggi di essere membri attivi dell’Associazione. Insieme all’Executive Director, a Klaus Rieker (1° Vicepresidente) e al nostro Tesoriere Gerard Seingre, stiamo sviluppando un piano per attuare questa strategia, con l’obiettivo di ampliare la base degli sponsor. Un’altra area chiave di attenzione sono le nostre Nazioni Membro, che hanno raggiunto quota 81 in occasione del WTC di Stoccolma (un caloroso benvenuto alla Papua Nuova Guinea!). Ogni Nazione Membro ha la propria struttura, con diversi livelli di maturità e sviluppo, ma tutte condividono la consapevolezza che l’utilizzo dello spazio sotterraneo per le infrastrutture di trasporto, di servizio e di stoccaggio, rappresenti una scelta intelligente per liberare superficie da destinare ad attività umane di maggior valore. Le Nazioni Membro sono la linfa vitale dell’ITA: sono il collegamento tra le competenze globali e i decisori nazionali, il canale attraverso il quale influenziamo i risultati concreti. Sono le vene dell’ITA, che connettono i Paesi del mondo. In questo spirito, sostengo pienamente la formazione di gruppi regionali di Nazioni Membro, per amplificare la voce dell’Associazione e creare un ecosistema migliore per la condivisione della conoscenza. Vorrei infine sottolineare l’impegno di tanti colleghi e membri dell’ITA che dedicano tempo, passione e competenza — su base volontaria — alla crescita dell’Associazione e del patrimonio di conoscenze nel campo del tunnelling. Mi riferisco in particolare ai membri dei Working Groups e dei Comitati ITA, agli attuali e passati membri dell’ExCo, e soprattutto a coloro che, come voi, hanno contribuito allo sviluppo delle Società Nazionali del Tunnelling. Dobbiamo ricordare che siamo tutti volontari mossi dalla passione per le opere in sotterraneo, e che meritiamo di trovare soddisfazione attraverso il riconoscimento pubblico, i momenti di incontro ai congressi e le relazioni internazionali — aspetti che vanno coltivati e rafforzati. Insieme all’Executive Director e al nuovo ExCo eletto, sono impegnato a valorizzare il lavoro già svolto e a dare forma a un’ITA più moderna, strutturata e connessa.

Andrea Pigorini Presidente ITA 2025–2028

Andrea Pigorini.

Notizie SIG/ITA Notizie SIG/ITA

ITA Tunnelling Awards 2025: annunciati i finalisti

Sono stati resi noti i finalisti della 11ª edizione degli ITA Tunnelling Awards, che si terranno dall’1 al 3 ottobre 2025 a Belgrado (Serbia), all’interno della Southeastern European Tunnelling Conference (SETC-2025) ospitata presso il Sava Center e organizzata in collaborazione con l’Associazione Serba per le Gallerie e le Strutture Sotterranee. Dopo un processo di selezione che ha visto 51 candidature provenienti da 27 Paesi, la giuria ha individuato 25 finalisti di eccellenza distribuiti in sette categorie, a testimonianza della vitalità e della qualità dell’ingegneria sotterranea a livello mondiale:

Le categorie e i finalisti

Major Project of the Year (oltre 500 milioni di euro)

– Shanghai Suburban Railway Airport Link Line, Cina

– Shanghai Urban Core Area Ultra-Long and Mega Northern Cross Passage Project, Cina

– Shenzhen-Zhongshan Link Immersed Tunnel, Cina

Project of the Year (100–500 milioni di euro)

– Highspeed railway – Long Itchington Wood twin bored tunnels, Regno Unito

Washington Metropolitan Area Transit Authority (WMATA) Yellow Line Tunnel Rehabilitation Project, USA

Yangzong Tunnel of the Kunming (Fude Overpass) – Yiliang Expressway, Provincia di Yunnan, Cina

Project of the Year (fino a 100 milioni di euro)

– Hongyancun Station della Chongqing Rail Transit Line 9, Cina

– Shield tunnel project della Macau Light Rail Extension to Hengqin Line, Cina

– Subsea tunnel construction off western Singapore, Singapore

Technical Innovation of the Year

– A world first on Toulouse Metro Line B: very low-carbon concrete segments with metakaolin, Francia

– Photomonitoring for Tunnel Convergence Monitoring with IRIS Software, Italia

Tun.Re.Fit. – Renewable energy retrofitting for existing tunnels, Italia

Product/Equipment Innovation of the Year

2-boom full automated shotcrete machine for drill+blast tunnelling, Giappone

– Polymer innovation: A new water treatment plant and site wide recycled water, Regno Unito

– High-pressure abrasive water jet-mechanical combined rock-breaking shield TBM (AWJ-STBM), Cina

– Trackless transportation system for large-diameter and super-long TBM-bored tunnels, Cina

Elevated Thinking Underground: Shaping the Future

– Vinnie and the metro – Inspiring the next generation of tunnel builders through storytelling, Svezia

Tunnelling for a better life in poor regions: Daliangshan No.1 super long highway tunnel, Cina

Venizelou Metro Station, Salonicco, Grecia

Young Tunneller of the Year

– Aida Santos Santamaria, Spagna

– Akx Malik, India – Andrea Marchioni, Italia – Fang Lin, Cina – Helena Castellvi Linde, Spagna – Patricia Lamas, Belgio

L’Italia può essere orgogliosa di una doppia presenza tra i finalisti: due progetti innovativi concorrenti per il titolo di Technical Innovation of the Year e un giovane professionista che si affaccia sulla scena internazionale. I progetti selezionati sono: – Photomonitoring for Tunnel Convergence Monitoring with IRIS Software – un sistema avanzato di monitoraggio fotogrammetrico delle deformazioni in galleria;

– Tun.Re.Fit. – Renewable energy retrofitting for existing tunnels – un’iniziativa che mira all’efficientamento energetico e alla sostenibilità nelle infrastrutture esistenti.

Sul piano individuale, l’Italia sarà rappresentata da Andrea Marchioni, finalista nella categoria Young Tunneller of the Year, dedicata ai giovani ingegneri e professionisti del settore. Un riconoscimento che sottolinea la qualità della formazione e della ricerca italiane nel campo del tunnelling. L’appuntamento di Belgrado si preannuncia come un’occasione unica di confronto: simposi tecnici, tavole rotonde, presentazioni progettuali e visite tecniche si alterneranno, culminando nella cerimonia di premiazione e gala dinner del 2 ottobre 2025.

Con la partecipazione di esperti, committenti e leader del settore, la conferenza offrirà una panoramica sui grandi progetti europei in arrivo, molti dei quali sostenuti dall’Unione Europea, nei campi della mobilità urbana, delle reti ferroviarie e stradali e delle infrastrutture idriche ed energetiche

In questa prestigiosa competizione promossa dall’ITA, la presenza italiana tra i finalisti rappresenta motivo di orgoglio e uno stimolo per continuare a innovare. Facciamo quindi i nostri migliori auguri ai due progetti selezionati e ad Andrea Marchioni, giovane talento del tunnelling, che porteranno a Belgrado l’eccellenza e la creatività del nostro Paese.

La “Lecture Adolfo Colombo 2025” al prof. ing. Kalman Kovari

Siamo lieti d’informare che il prof. ing. Kalman Kovari sarà il relatore della “Lecture Adolfo Colombo 2025”, il prestigioso riconoscimento che ogni anno, in memoria del suo indimenticato past-President Adolfo Colombo, la Società Italiana Gallerie assegna a una personalità di spicco del settore delle costruzioni in sotterraneo.

La decisione è stata presa all’unanimità dalla commissione giudicatrice composta dai membri del Comitato Esecutivo dell’Associazione, riunitasi lo scorso 6 giugno 2025. La motivazione sottolinea come la carriera professionale del prof. Kovari incarni pienamente lo spirito e i valori che la Colombo Lecture intende celebrare.

L’appuntamento è fissato per il 2 dicembre 2025 a Milano, nell’ambito del tradizionale convegno in onore di Santa Barbara, occasione sempre molto attesa dalla comunità tecnica e scientifica del settore.

Al prof. Kovari vanno le più vive congratulazioni da parte della Società Italiana Gallerie, di tutti i suoi soci e di tutta la redazione di Gallerie e Grandi Opere Sotterranee, con l’auspicio di una Lecture che si preannuncia di altissimo profilo tecnico-scientifico e culturale.

Tutti i Soci sono invitati a intervenire iscrivendosi direttamente sul sito www.societaitalianagallerie.it

Consiglio Direttivo e nomine per il triennio 2025–2027

Nel corso della sua prima riunione del 7 luglio 2025 a Bologna, il neoeletto Consiglio Direttivo della Società Italiana Gallerie ha provveduto, come previsto dallo Statuto, alla nomina delle cariche sociali per il triennio 2025–2027. Successivamente, nell’Assemblea Ordinaria del 23 luglio 2025, i Soci hanno approvato le proposte avanzate dal Consiglio Direttivo nella riunione di Bologna, completando ufficialmente, con la nomina dei Membri Associati del Consiglio Direttivo 2025-2027, l’organigramma della Società per il nuovo triennio:

Consiglio Direttivo

– Presidente: Dott. Ing. Enrico Maria Pizzarotti – Past President: Dott. Ing. Renato Casale – Presidente Onorario: Prof. Ing. Pietro Lunardi – Vicepresidenti:

▶ Dott. Ing. Lorenzo Brino (TELT – SAS)

▶ Dott.ssa Ing. Alessandra Sciotti (ITALFERR S.p.A)

– Segretario Generale: Dott.ssa Ing. Anna Bortolussi

– Tesoriere: Dott. Ing. Giuseppe Lunardi (Rapp.te ROCKSOIL S.p.A. )

– Consiglieri:

▶ ARX Italia – Dott.ssa Ing. Stefania Stefanizzi

▶ Prof.ssa Ing. Daniela Boldini

▶ Dott. Ing. Massimiliano Bringjotti

▶ DIATI – Prof. Ing. Daniele Peila

▶ DIGITALNOLOGY – Dott. Ing. Giuliano Faini

▶ GHELLA – Dott. Ing. Giovanni Giacomin

▶ Prof. Ing. Salvatore Miliziano

▶ Dott. Ing. Diego Sebastiani

▶ SYSTRA – Dott. Ing. Michele Palomba

▶ TECNE – Dott. Ing. Andrea Magliocchetti

▶ Consiglieri Associati:

▶ ANAS S.p.A. – Dott. Ing. Angelo Dandini

▶ Brenner Base Tunnel – BBT SE – Dott. Ing. Giuseppe Venditti

▶ FRABE S.r.l. – Dott. Ing. Francesco Bellone

▶ MAPEI S.p. A. – Geom. Enrico Dal Negro

▶ PWC Business Services S.r.l. – Dott. Ing. Marco Ranieri

▶ ROCKSOIL S.p.A. – Dott. Ing. Giuseppe Lunardi

▶ WEBUILD S.p.A. – Dott. Ing. Nicola Meistro

Collegio dei Revisori dei Conti

– Dott. Ing. Claudio Ancetti

– Dott. Ing. Ignazio Carbone – Dott. Ing. Luca Perazzoni

– Dott. Ing. Renzo Bindi (supplente)

– Dott.ssa Ing. Ludovica Pizzarotti (supplente)

Collegio dei Probiviri

Prof. Ing. Pietro Lunardi (Presidente)

– Dott. Ing. Renato Casale

– Dott. Ing. Andrea Pigorini

– Dott. Ing. Enrico Arini

– Prof. Ing. Sebastiano Pelizza

– Dott. Bruno Pigorini

Il Consiglio ha inoltre approvato la nomina dell’Ing. Enrico Maria Pizzarotti a Direttore Responsabile della Rivista Gallerie e Grandi Opere Sotterranee e del sito web dell’Associazione, nonché della Prof.ssa Daniela Boldini a Direttrice Editoriale della Rivista, e ha confermato l’Ing. Renzo Bindi Caporedattore della medesima. Inoltre, ha approvato i seguenti organi, nomine e compiti particolari:

Notizie SIG/ITA Notizie SIG/ITA

Comitato Tecnico-Scientifico (rivista Gallerie e Grandi Opere Sotterranee)

Prof.ssa Ing. Daniela Boldini – Coordinatrice

Dott. Ing. Lorenzo Brino

Prof. Ing. Salvatore Miliziano

Prof. Ing. Daniele Peila

Dott.ssa Ing. Alessandra Sciotti

Dott. Ing. Antonio Voza

Compiti Particolari

Dott. Ing. Anna Bortolussi: Organizzazione Eventi, Responsabilità Sociale, Rapporti con Enti (ad interim)

Dott. Ing. Massimiliano Bringiotti: Rapporti con Società non associate Dott.ssa Ing. Elena Consoli: Rappresentante Young Members

Dott. Ing. Giuliano Faini: Advisor su Sostenibilità ed Innovazione, Team Comunicazione (sito web, newsletter, social)

Dott. Ing. Federico Foria: Rappresentante Young Members ITA – EUTF

Dott. Ing. Giuseppe Lunardi: Rappresentante in ITA, EUTF e Member Nation ITA

Prof. Ing. Daniele Peila: Rapporti con Università ed Istituti di Formazione

Dott. Ing. Alessandra Sciotti: Organizzazione Visite Tecniche

Dott. Ing. Diego Sebastiani: Rapporti con i Soci, Tutor Young Members, Team Comunicazione (sito web, newsletter, social)

Il Consiglio ha infine designato la seguente composizione dell’Organo Amministrativo della Controllata S.I.G. S.r.l.

Consiglio di Amministrazione S.I.G. S.r.l.

Dott. Ing. Giuseppe Venditti: Presidente

Dott.ssa Ing. Alessandra Sciotti: Consigliere

Dott. Ing. Giuseppe Lunardi: Consigliere con incarico di Tesoriere

Dott.ssa Ing. Anna Bortolussi: Segretario Generale

Young Members group Young Members

Il gruppo YM della SIG si rinnova ecco il nuovo board…

Cari Young Members, Lo scorso 4 luglio si è tenuta l’Assemblea elettiva del Gruppo YMs durante la quale, oltre alla candidatura dei nuovi Coordinatori Federico Foria per le attività internazionali ed Elena Consoli per quelle lato Italia, sono stati nominati cinque nuovi componenti del Board per mezzo di una votazione on-line aperta a tutto il nostro Gruppo, i cui risultati sono riportati nella seguente Figura 1.

Annunciamo, pertanto, con grande piacere ed entusiasmo il nuovo Board dando il caloroso benvenuto ad Andrea Marchioni, Andrea Carigi, Federico Bergamo, Francesco Ippolito e Antonio Chianese, certi che il loro contributo porterà un rinnovato valore e nuove straordinarie energie all’intero Gruppo Young Member

Cogliamo l’occasione per informarvi che, nella prima riunione del Board successiva all’Assemblea, sono stati confermati i Coordinatori candidati e proposta la cooptazione di ulteriori membri, al fine di garantire una rappresentanza più ampia ed inclusiva. Il Board YMs, riunitosi il 31 luglio, ha accolto di buon grado queste indicazioni ed ha avviato la discussione sulle future cooptazioni previste nel corso dell’anno.

Per il triennio 2025–2027, dunque, saranno i componenti del nuovo Board a coordinare l’intero Gruppo, ed in questo numero della Rivista abbiamo deciso di raccontare per ciascuno di loro le proprie esperienze professionali, entusiasmo, aspettative ed emozioni:

“Sono Andrea Marchioni e durante la mia carriera professionale mi sono occupato principalmente della progettazione di gallerie e opere sotterranee. Anche durante il dottorato, mi sono concentrato su tematiche legate allo scavo di gallerie e proprio in quegli anni ho iniziato a partecipare attivamente alle iniziative organizzate dalla Società Italiana Gallerie e dagli Young Members.

Negli ultimi anni mi sono occupato del

coordinamento del WG14 della SIG e sono molto attivo nella pubblicazione di linee guida nell’ITA (International Tunnelling Association). In SIG e ITA ho avuto la fortuna di presentare a convegni nazionali ed internazionali ma anche di incontrare molti professionisti ed esperti del settore. Sto imparando molto da questo confronto continuo e ho intenzione di continuare a dare il mio contributo all’interno dei gruppi di lavoro e nell’organizzazione di eventi mirati al network e ad accrescere la comunità del tunnelling!”

“Mi chiamo Andrea Carigi, dopo aver conseguito un dottorato di ricerca sullo scavo con EPB al Politecnico di Torino ho continuato la mia attività in accademia dove sono assegnista di ricerca senior e mi dedico a tematiche che spaziano dal condizionamento per scavo con EPB alle bicomponenti per backfilling, fino alla manutenzione delle gallerie esistenti. Ho anche contribuito alla redazione delle “Linee Guida Gallerie 2022”, un’esperienza durante la quale ho compreso più a fondo la complessità gestionale delle opere in sotterraneo. Entrato nella SIG nel 2019, ho trovato in questa associazione un ambiente stimolante dove poter crescere professionalmente.

Attualmente ricopro il ruolo di Co-animatore del WG6 “Maintenance and Repair” e ho avuto modo di contribuire anche al WG14 “Mechanised Tunnelling”. La SIG rappresenta per me un contesto dinamico e con tanto da offrire, specialmente a chi si affaccia per la prima volta in un mondo così ricco di innovazioni, complessità e responsabilità.”

“Mi chiamo Federico Bergamo, ho 31 anni e sono un ingegnere civile-geotecnico. La mia passione per le opere in sotterraneo è nata all’università, durante il lavoro di tesi sulla progettazione e lo scavo di gallerie. Dopo la laurea magistrale in ingegneria civile-geotecnica alla Sapienza di Roma, ho iniziato a lavorare in progetti complessi sia in Italia che all’estero. Oggi sono progettista geotecnico in Italferr e mi occupo di gallerie, con esperienze che includono anche progetti internazionali come la Ontario Line di Toronto. Negli anni ho contribuito a studi e pubblicazioni scientifiche

Figura 1 – Risultati Votazioni.

Young Members group Young Members group

sul tunnelling, convinto che innovazione e condivisione delle competenze siano fondamentali per far crescere la nostra professione. Come membro del Board YMs SIG, mi impegno a promuovere la cultura delle opere in sotterraneo e a creare occasioni di confronto e collaborazione tra giovani ingegneri. Ci vediamo in galleria!”

“Sono Francesco Ippolito , ingegnere civile strutturista. Mi sono formato al Politecnico di Bari e la mia tesi magistrale ha riguardato l’applicazione del machine learning al rilevamento del danno nei ponti: un lavoro che mi ha avvicinato alla diagnostica e alla manutenzione delle infrastrutture. La mia passione abbraccia tutto il mondo delle opere d’ingegneria: sono partito dai ponti per approdare poi alle gallerie. Oggi lavoro in Impresa Pizzarotti & C. SpA come ingegnere TBM sulla linea AV/AC Napoli–Bari, nell’ufficio tecnico delle commesse Bovino-Orsara e Hirpinia-Orsara, dove seguo da vicino lo scavo meccanizzato e il coordinamento tecnico di cantiere. Accanto a progettazione e cantiere, la mia passione per la scrittura mi ha portato a diventare un creator: racconto ponti, gallerie e grandi opere con linguaggio semplice e contenuti digitali. Sono giornalista e autore di un libro bestseller sulle maglie dell’Inter, convinto che una buona divulgazione possa avvicinare tutti al valore delle infrastrutture. Sono appena entrato nel Board degli Young Members della Società Italiana Gallerie: metterò a disposizione la mia esperienza nei social network e mi occuperò in particolare della comunicazione e della Rivista “Gallerie e Grandi Opere Sotterranee”, per creare spazi di confronto tra accademia, imprese e progettazione, e per raccontare in modo chiaro e coinvolgente il valore delle nostre opere. Proprio nel 2024 sono stato protagonista di una puntata di Pillole di Tunnelling dedicata all’Ingegnere TBM: ruoli, compiti e opportunità dello scavo meccanizzato. È stata l’occasione per raccontare, con esempi concreti, quanto la sinergia tra progettazione e campo sia decisiva per il successo degli scavi. Non vedo l’ora di mettermi al lavoro: ci vediamo in galleria!”

“ Antonio Chianese , laureato in Ingegneria Edile con specializzazione in strutture; dopo le prime esperienze lavorative ho iniziato a volerci vedere chiaro nel mondo delle infrastrutture ed infatti ho iniziato a passare le mie giornate al buio delle gallerie della Metropolitana di Napoli - linea 1, dove ho avuto l’occasione di lavorare per una impresa del Consorzio Integra prima nell’ambito della qualità e poi come responsabile dell’ufficio tecnico ed ingegnere TBM della talpa Adriana. Da studente ho sempre avuto la ferma idea di voler contribuire a lasciare il mondo come un posto migliore rispetto a come l’ho trovato e da subito ho avuto la sensazione che il mondo del tunneling fosse il luogo giusto dove provarci con passione e dedizione. In seguito, ho lavorato come ispettore di gallerie e progettista per Lombardi Ingegneria per poi iniziare a lavorare per Mapei – divisione gallerie (UTT), come specialista tecnico nell’ambito dello scavo meccanizzato e tradizionale. In questa realtà, ho avuto la possibilità di avvicinarmi al mondo della SIG, partecipando a diverse attività ed a far parte del WG 14. La più grande fortuna lavorativa che ritengo di aver avuto è di aver visto il nostro mondo da diversi punti di vista: sia dell’impresa che del progettista e del fornitore e di conseguenza vorrei provare a condividere il più possibile esperienze e dinamiche avvicinando quanti più giovani professionisti al nostro mondo oltre a poter imparare ancora tanto in prima persona: ritengo che la nostra associazione sia perfetta per favorire questi processi.”

A tutto il nuovo Board auguriamo Buona Fortuna e un grande in Bocca al Lupo!

Se anche tu voi essere maggiormente coinvolto nelle attività del Gruppo YMs, può seguirci sui nostri canali ufficiali e scriverci all’indirizzo e-mail: ym@societaitalianagallerie.it.

Team Comunicazione YMs

Francesco Ippolito

Rocco Amodeo

Paure infondate, pericoli invisibili

Torna Il Gallerista, lo spazio creativo di Gallerie e Grandi Opere Sotterranee dove i lettori possono dare voce, con racconti, testimonianze, dipinti, fotografie o altre forme artistiche, alle emozioni e alle esperienze vissute nei cantieri. Ad aprire questa nuova stagione, un’esperienza adrenalinica raccontata dal nostro Direttore Responsabile e Presidente SIG, Enrico Maria Pizzarotti.

La fresa a testa rotante, ordigno meccanico che scava nella roccia, deve avanzare continuamente. Il costo di questo mostro d’acciaio deve essere ammortizzato al meglio: non esistono sabati e domeniche per la fresa. Il lavoro si ferma soltanto per le festività importanti, segnate in rosso sul calendario. Per svolgere il mio compito indisturbato dal continuo passaggio dei treni che trasportano all’esterno il materiale scavato e ritornano vuoti per il carico successivo, devo profittare di questi giorni di festa. Oggi, Primo Maggio, sono entrato nel cunicolo di tre metri e cinquanta di diametro accompagnato in treno da De Col che mi guarda in tralice: a causa mia deve restare in cantiere quando tutti gli altri se ne vanno a casa e mal sopporta di far da balia a un pivello come me. Mi lascia alla fine del foro. Il locomotore scompare nel buio, inghiottito dai sette chilometri che mi separano dall’imbocco e dalla luce del sole. Sono solo con la macchina inanimata, col fascio di luce della frontale, col gocciolio dell’acqua e col soffio della ventilazione. Mi metto lentamente in cammino a ritroso verso la direzione dove è scomparso il treno con De Col, studiando le pareti concave che mi racchiudono e raccogliendo le osservazioni che mi consentiranno di completare il progetto. Ogni tanto spengo la lampada e resto immobile al buio: ascolto il silenzio; ora che mi sono allontanato dalla fine del tubo dell’aria, non si sente neppure il sussurro della ventilazione che pure percepisco spingere l’aria fresca dal fronte verso l’uscita.

Lavoro al ritmo di circa un chilometro all’ora; voglio cercare di completare l’analisi di questo tratto entro stasera poi mi infilerò nel letto e buona notte al Primo Maggio. Camminare nel cunicolo è reso faticoso dalla presenza dei binari: devo procedere a piccoli balzi da una traversina all’altra, se non voglio affondare nel letto di melma che si è formato sul fondo. Alle dodici in punto percepisco il rumore del locomotore e poco dopo vedo la luce del faro che avanza verso di me. De Col mi porta due panini, mi dà appuntamento all’uscita verso le diciotto e mi dice che, appena fuori, dovrà spegnere la ventilazione per circa mezz’ora. Se ne va sferragliando. Sto ricominciando ad arrancare verso la luce naturale che ancora non vedrò per altre cinque ore almeno, quando il tubo della ventilazione si affloscia: De Col ha spento i ventilatori. So che non c’è problema: l’ossigeno non mi mancherà ma in pochi minuti l’aria diventa umida e calda. Sto procedendo nell’atmosfera quasi tropicale, quando sento un rumore nuovo. E’ un rombo sordo, remoto ma persistente. Il rumore aumenta e viene verso di me dall’imbocco, lo percepisco avanzare rapidamente e intensificarsi come se il cunicolo si fosse trasformato in una canna di fucile, qualcuno avesse tirato il grilletto e l’ogiva mi stesse raggiungendo. Sono preso dal panico: in questa canna di fucile ci sono io, perdiana! Punto la frontale verso l’uscita ma non vedo nulla a parte il buio. Il rombo aumenta, come i battiti del mio cuore, come quando anni fa sentii il terremoto e mi assalì una paura animale. Ma il terremoto dura pochi istanti: questo rumore ormai assordante come la cavalcata di un branco di animali impazziti, mi schiaccia contro la roccia ormai da dieci secondi e rimbomba sulle pareti, con una eco perfida. Ormai è qui, lo sento addosso, ma non vedo ancora nulla. Quando mi sembra che mi stia per raggiungere come un pugno invisibile, mi getto a terra terrorizzato. Il boato mi sorpassa, prosegue verso il fronte della galleria a velocità incredibile, compie in po-

chi secondi la distanza che stamani ho percorso in alcune ore, smorzandosi lentamente. Infine si spegne.

Alzo la testa adagio. Ho perso il casco, la frontale si è spenta. Ho il sangue ghiacciato, la pelle d’oca da fare invidia a un cappone spennato, il ritmo cardiaco a centocinquanta. Sono senza respiro, anche perché ho affondato la faccia nella melma. Mi alzo adagio e mi ricompongo raccogliendo quello che ho perso, a parte qualche anno di vita che nessuno mi ridarà più. Infangato come un porcellino, comincio a chiedermi cosa sia successo. Mi accorgo dai brividi di freddo che mi attraversano che l’aria fresca ha ricominciato a pompare dal fronte e mi sta alitando addosso, bagnato come sono. Vedo il tubo blu della ventilazione gonfio come un bel salsicciotto e capisco tutto in un istante. Uno di quegli istanti in cui la pietà verso noi stessi ci spingerebbe ad abbracciarci e carezzarci come bambini e che sono subito seguiti da una reazione contraria di uguale intensità che ci spinge invece a sibilare tra i denti al nostro stesso indirizzo: - Pezzo di cretino, meno male che non ti ha visto nessuno.

La spiegazione è semplice: quando la ventilazione viene spenta, il tubo di plastica appeso alla volta della galleria si sgonfia e l’umidità fa aderire i lembi opposti che penzolano flosci come due foglie di lattuga bagnate. Nel momento in cui i ventilatori spingono nuovamente l’aria, questa si deve aprire la strada nel tubo e ciò produce uno schiocco come quello del sacchetto di plastica riempito col fiato e fatto scoppiare dal bambino rompiscatole. Le frustate si susseguono per quanto è lungo il tubo, a grande velocità. Se vi trovate a qualche chilometro dall’origine dei botti, li sentirete arrivare alla velocità di qualche centinaio di chilometri all’ora e già vi sembreranno un treno in corsa. Ma la velocità del suono nell’aria è dieci volte maggiore e il rumore di un certo schiocco arriverà sommato a quelli di schiocchi successivi che hanno impiegato meno tempo del primo a raggiungervi. Come accade per un treno in corsa che fischia passando dalla stazione, sentirete la somma di tanti piccoli scoppi di innocui palloncini diventare un rombo assordante, moltiplicata dal rimbalzo del suono sulle pareti di roccia. Alle undici sono sotto le coperte e dormo il sonno del giusto. La mattina dopo il radiogiornale mi informa che alcuni giorni fa, il reattore di una decrepita centrale nucleare sovietica è esploso in Ucraina. Il disastro è enorme. Gli isotopi invisibili si stanno spargendo nell’atmosfera terrestre trasportati dalle correnti. Il pennacchio radioattivo ha interessato i cieli del nord Italia nella giornata di ieri. Il massimo pericolo di contaminazione si è avuto verso l’una. All’una di ieri ero sdraiato nel fango, sotto centocinquanta metri di roccia che mi proteggevano dalle radiazioni, in preda al panico.

Enrico Maria Pizzarotti

Partecipa anche tu a Il Gallerista, invia il tuo contributo a: redazione@societaitalianagallerie.it

Abbiamo letto Abbiamo letto

UNDERLAND

Un viaggio nel tempo profondo

Robert Macfarlane

Einaudi

Robert Macfarlane, in Underland: un viaggio nel tempo profondo, esplora il sottosuolo non soltanto come spazio fisico, ma come luogo di conoscenza, memoria e sperimentazione scientifica. L’autore intraprende un viaggio attraverso siti naturali e artificiali che rappresentano esempi emblematici delle interazioni tra l’uomo e le profondità della Terra, con il supporto di guide locali e comunità scientifiche.

I capitoli del volume descrivono casi studio significativi:

– Mendip Hills (Regno Unito): siti archeologici e stratificazioni storiche legate all’Età del Bronzo.

– Boulby Underground Laboratory (Yorkshire): centro di ricerca situato a quasi un chilometro di profondità, dedicato allo studio della materia oscura e delle scienze geologiche.

– Catacombe di Parigi: esempio di utilizzo urbano del sottosuolo, oggi oggetto di indagini di “urban exploration” ma anche di studi sulla resilienza strutturale.

– Carso (Italia-Slovenia): sistemi fluviali sotterranei in rocce calcaree, di interesse idrogeologico e geomorfologico.

– Isole Lofoten (Norvegia): grotte marine decorate con pitture rupestri, testimonianza di interazioni antropiche millenarie con ambienti estremi.

– Groenlandia: osservazioni sui processi di fusione glaciale e sulle conseguenze del cambiamento climatico sugli ecosistemi sotterranei di ghiaccio.

– Olkiluoto (Finlandia): deposito geologico profondo per rifiuti nucleari, uno dei casi più avanzati di gestione a lungo termine di materiali ad alta radioattività.

Macfarlane combina osservazioni dirette, dati scientifici e riflessioni culturali, trasformando il sottosuolo in un laboratorio di analisi multidisciplinare. Il testo, pur con un linguaggio narrativo, fornisce spunti di interesse per chi si occupa di geotecnica, ingegneria ambientale, gestione del rischio e pianificazione territoriale, mostrando come lo spazio ipogeo rappresenti una risorsa, una sfida e un archivio di informazioni utili alla comprensione del futuro.

Il libro ha ricevuto numerosi riconoscimenti, tra cui: New York Times “100 Notable Books of the Year”, NPR “Favorite Books of 2019”, Guardian “100 Best Books of the 21st Century”, Kirkus Reviews “Best Books of the 21st Century (So Far)”, Winner of the National Outdoor Book Award, del Wainwright Prize e Stanford Dolman Travel Book.

Biografia dell’autore

Robert Macfarlane (Nottingham, 15 agosto 1976) è uno scrittore, accademico e critico letterario britannico, noto a livello internazionale per i suoi libri dedicati al paesaggio, alla natura, all’alpinismo e al rapporto tra esseri umani e ambiente.

Macfarlane ha studiato letteratura inglese a Cambridge e in seguito a Oxford come borsista.

Ha intrapreso la carriera accademica come docente di letteratura inglese all’Emmanuel College di Cambridge, dove insegna tuttora.

Le sue ricerche si sono concentrate soprattutto sul Romanticismo, sulla scrittura di viaggio e sul legame tra letteratura e natura.

Nella sua carriera è stato Eletto Fellow della Royal Society of Literature, ha vinto numerosi premi, tra cui il E. M. Forster Award dell’American Academy of Arts and Letters. Underland è stato inserito tra i migliori libri dell’anno da diverse testate internazionali, tra cui il New York Times e il Guardian.

Link utili:

https://www.einaudi.it/catalogo-libri/narrativa-straniera/narrativa-dilingua-inglese/underland-robert-macfarlane-9788806244507/

a cura di Diego Sebastiani

Singapore – Cross Island Line (CRL)

Avviati i lavori della fase 2

La Land Transport Authority (LTA) ha dato ufficialmente inizio alla costruzione della fase 2 della Cross Island Line (CRL), con una cerimonia tenutasi presso il cantiere della futura stazione CRL Clementi. La CRL2 aggiungerà 15 km alla linea, con sei stazioni sotterranee – due delle quali (King Albert Park e Clementi) fungeranno da interscambio con altre linee MRT.

Tra le novità, la stazione King Albert Park sarà la più profonda di Singapore, con cinque livelli interrati a 50 metri sotto terra. L’intera linea, una volta completata, migliorerà in modo significativo l’efficienza e la resilienza del sistema ferroviario urbano.

India - Metropolitana di Hyderabad

Approvati progetti per tre nuovi corridoi

Il 5 giugno 2025 il Consiglio dei Ministri ha approvato i progetti per tre nuovi corridoi della metropolitana di Hyderabad, estesi per 86,1 km, con finanziamenti congiunti statali e centrali per circa 2 miliardi di euro.

Le tratte – JBS–Medchal, JBS–Shameerpet e RGIA–Future City – prevedono sezioni sopraelevate, sotterranee e a raso, con gare d’appalto previste entro fine anno e inizio lavori civili a inizio 2026. L’infrastruttura mira a rafforzare la mobilità sostenibile in un’area urbana in rapida espansione.

Brasile - Tunnel immerso Santos-Guaruja

Ripubblicato il bando di gara

Il governo di San Paolo ha ripubblicato il bando di gara per il tunnel immerso Santos–Guarujá, dopo aver raccolto osservazioni da contractor internazionali durante un roadshow europeo.

Il tunnel, lungo 1,5 km di cui 870 m immersi, sarà il primo in Brasile realizzato con questa tecnica. Ospiterà tre corsie per senso di marcia (una per il LRV) e una galleria ciclopedonale.

La concessione da 1,7 miliardi di euro prevede progettazione, costruzione, gestione e manutenzione per 30 anni. Le offerte saranno aperte il 5 settembre 2025.

Regno Unito – Progetto HS2

Completato lo scavo del tunnel Northolt sotto Londra

Il 26 giugno 2025 la TBM Anne ha completato lo scavo del tunnel Northolt, lungo 13,5 km, tra West Ruislip e la nuova stazione di Old Oak Common, installando l’ultimo anello di rivestimento nel pozzo di Greenford.

La macchina – 1.700 tonnellate per 9,11 metri di diametro – ha scavato 5,5 km in 14 mesi. Il tunnel, tra i più lunghi del progetto HS2, è stato costruito dalla joint venture SCS (Skanska–Costain–Strabag) e prevede ora la costruzione di 34 collegamenti trasversali tra le due canne, oltre agli impianti antincendio e di ventilazione.

Svizzera - Tunnel autostradale del San Gottardo, seconda canna

Sostituito su un tratto di 500 m l’avanzamento con TBM dall’avanzamento con metodo tradizionale Il 23 giugno 2025 è stato interrotto lo scavo con TBM sul versante sud del secondo tunnel autostradale del San Gottardo, a causa di condizioni geologiche complesse emerse dopo circa 190 metri.

Le analisi hanno rilevato la presenza di un tratto di roccia fratturata e instabile, per cui l’Ufficio federale delle strade (USTRA), in accordo con esperti e imprese, ha deciso di proseguire i lavori con metodo tradizionale (mediante esplosivi) su un tratto di 500 metri.

Per limitare i ritardi, sarà realizzato un cunicolo d’accesso per procedere anche in controavanzamento per circa 300 m. I lavori proseguiranno 24 ore su 24 con turnazione continua.

L’intervento comporterà un aumento dei costi tra i 16 e i 21 milioni di euro, ma non inciderà sul cronoprogramma generale: l’apertura del tunnel è confermata per il 2030.

Norvegia – Tunnel stradale Floyfjell (E39) a Bergen

Proposta per accelerare i lavori

L’Amministrazione Stradale norvegese ha presentato una proposta per ridurre i tempi di costruzione del prolungamento del tunnel stradale Floyfjell (E39) a Bergen.

La nuova idea prevede rampe di accesso indipendenti da/per Sandviken, consentendo di iniziare i lavori anche da questo lato e ridurre sensibilmente le deviazioni. Il tempo di costruzione stimato potrebbe così ridursi di diversi anni rispetto ai 12 inizialmente previsti.

Annullata invece la prevista galleria di servizio verso il deposito di Saltimport, per motivi di impatto ambientale e costi.

Belgio – Tangenziale R1 di Anversa, collegamento Oosterweel

Iniziata la costruzione del tunnel sotto la Schelda

Il 4 luglio è stato immerso con successo il primo degli otto enormi elementi prefabbricati che formeranno il tunnel stradale di 1,8 km sotto il fiume Schelda ad Anversa, parte centrale del progetto Oosterweel che completerà l’anello viario R1 della città.

Notizie flash Notizie flash

Ogni sezione da 60.000 tonnellate viene posata con precisione millimetrica grazie ai catamarani affondanti Asterix e Obelix, e al sistema di ancoraggio su entrambe le rive. La tenuta stagna tra gli elementi è garantita da un giunto in gomma e il completamento strutturale avviene con l’iniezione di sabbia sotto il tunnel.

Francia - Grand Paris Express, linea 15

Consegnata una nuova TBM

Il 26 maggio 2025 è stata consegnata presso il pozzo Agnes di Aubervilliers la TBM S-1422, destinata allo scavo della tratta SaintDenis – Bobigny della linea 15 Est del Grand Paris Express. Il consorzio IRIS (guidato da Bouygues) realizzerà 5,5 km di tunnel nuovo, 2,5 km di gallerie da ammodernare, quattro nuove stazioni e tre strutture di servizio rinnovate. Lo scavo inizierà nei prossimi mesi verso Normandie Niemen.

Francia – Metropolitana di Tolosa, linea C

Abbattuto il diaframma della futura stazione Côte Pavée

Il 24 luglio, la TBM Marguerite de Catellan ha completato con successo l’abbattimento del diaframma della futura stazione Côte Pavée, nell’ambito del Lotto 4 della linea C della metropolitana di Tolosa. Partita nell’agosto 2024 dalla stazione Montaudran – Piste des Géants, la macchina ha scavato oltre 3 km, attraversando le stazioni Ormeau (ottobre 2024) e Limayrac – Cité de l’Espace (marzo 2025). Ora affronterà l’ultimo tratto da 750 m per raggiungere il pozzo di Saint Sauveur, nel cuore della città, dove verrà smontata ed estratta. Il Lotto 4 è stato affidato al consorzio Horizon, composto da Bouygues Travaux Publics, Soletanche Bachy e Bessac, e prevede la costruzione di 4.160 metri di tunnel con un diametro interno di 8,5 m, oltre alle stazioni Montaudran Gare, L’Ormeau, Limayrac – Cité de l’Espace e Côte Pavée.

Francia/Italia – TAV Torino Lione

Porte aperte sul cantiere Saint-Martin-la-Porte alla scoperta della TBM Viviana Il 14 e 15 giugno 2025 il cantiere del tunnel di base del Moncenisio ha aperto le porte al pubblico a Saint-Martin-la-Porte, in Francia.

Visitatori francesi e italiani hanno potuto scendere nel cuore della montagna per scoprire Viviana, la prima delle sette TBM che scaveranno il tunnel di base verso l’Italia, e conoscere da vicino tecnologie e processi costruttivi. Particolare attenzione è stata dedicata alla gestione delle risorse idriche e dei materiali di scavo.

Austria/Italia – Tunnel di Base del Brennero (BBT)

Abbattuto un diaframma nella galleria ovest

Il 31 maggio 2025 è stato completato un nuovo tratto della galleria principale ovest del Brenner Base Tunnel, con l’abbattimento del diaframma nel lotto H53 Pfons–Brennero, a nord della zona di Hochstegen.

Superata l’area geologicamente complessa, lo scavo tradizionale prosegue ora verso sud. Restano da scavare meno di 400 metri del cunicolo esplorativo, che collegherà Austria e Italia nel primo traforo ferroviario sotterraneo transfrontaliero del progetto.

Italia/Abruzzo - Traforo del Gran Sasso

Approvate le misure per l’accelerazione delle attività di adeguamento

Le Commissioni Ambiente e Trasporti della Camera hanno approvato un emendamento al Decreto Infrastrutture che consente di accelerare i lavori di adeguamento del Traforo del Gran Sasso alle normative europee TEN-T.

La gestione degli interventi passa ora al Commissario straordinario per la sicurezza del sistema idrico del Gran Sasso, unificando così le competenze su idrogeologia e sicurezza sismica. Questo accorpamento permetterà una maggiore rapidità esecutiva, riducendo l’impatto per gli utenti dell’autostrada A24.

Italia/Lazio – Metropolitana di Roma, linea C

Al via la progettazione esecutiva della tratta T2

Con l’approvazione del progetto definitivo della tratta T2 della Linea C (27 giugno 2025), prende il via la progettazione esecutiva del segmento tra Clodio/Mazzini e Chiesa Nuova, con quattro nuove stazioni su 4 km di tracciato. Le stazioni presenteranno profondità di scavo considerevoli (fino a 48 m per San Pietro) e complesse integrazioni con l’ambiente urbano, in particolare per le stazioni Ottaviano (interconnessione con la Linea A) e Chiesa Nuova. Parallelamente, prosegue la progettazione del prolungamento T1 fino a Farnesina, da cui inizierà lo scavo delle gallerie verso il centro storico.

Italia/Umbria - SS 318 di Valfabbrica, ampliamento a quattro corsie

Abbattuto l’ultimo diaframma della galleria Casacastalda Il 12 giugno 2025 è stato completato lo scavo della galleria Casacastalda (1.545 m), parte dell’ampliamento a quattro corsie della SS 318 di Valfabbrica (Perugia–Ancona).

La nuova carreggiata, parallela a quella aperta nel 2016, sarà operativa entro marzo 2026 e migliorerà sensibilmente sicurezza e tempi di percorrenza. Il tratto include anche il tunnel Picchiarella (874 m) e due viadotti in corso di completamento.

Turn static files into dynamic content formats.

Create a flipbook