

PENAR QANBAR
American University of Sharjah B.Arch 2024 | Selected Works
Plug & Play
ARC 502 | Spring 2024
In-Between Housing
ARC 501 | Fall 2023
Sharjah Film Center
ARC 402 | Spring 2023
Fujairah Terminal Station
ARC 401 | Fall 2022
Shell & Core
ARC 302 | Spring 2022
Shelf Window
ARC 581 | Fall 2023
Golden Monuments
ARC 311 | Fall 2023
Robotic Pine
IDE 335 | Fall 2024 01 02 03 04 05 06 07 08 09
ARC 433 | Spring 2024
Loop Bench
01. PLUG & PLAY
ARC 502: Design Studio VIII - Spring 2024
Professor Kenneth Tracy | Partner: Tala Amini
“Plug & Play” is conceived as a site-less system composed of three different sizes of cubic volumes, their edges defined by mass-engineered timber structural segments. These cubes are aggregated to create various spatial configurations, connected together using “Universal Joints” that allow the differently sized cubes and segments to “plug-into” each other. The system’s ability to be assembled and disassembled, combined with its discrete granular nature, establishes a shapeless megastructure that is spatially adaptive to the specificities of its location, and temporally adaptive to our changing urban needs.



WORKING IN THE CITY

WORKING AMONG THE GREENS
Positioned in a future-planned urban park, this instance of the system serves as an office building that acts as a playful backdrop, creating elevated public pockets and pathways, integrating work with play.
THE BOSPORUS
KADIKÖY
Water Body
Greenscape Urban Walkway Train Station



KURBAĞALIDERE VALLEY
The site’s geometry is adapted from the winning proposal of the Kurbağalıdere Valley Redesign competition, hosted by the Kadıköy Municipality.
SITE COORDINATES: Kadikoy, Istanbul, Turkey. 40.990212, 29.034668
PLUG & PLAY |PART 2:


UNIVERSAL JOINTS


CHANNEL TYPES








Physical model exploring assembly and disassembly logic.
(A)-(B)-(A)-(B)-(A)-(A)-(A)-(A) corner condition.





PLUG & PLAY |PART 3: DROPPING ONTO (A) SITE
The development of a shapeless system is followed by dropping it onto a site. The system then adapts itself to the specificities of its location.

Fenerbahçe park will have a direct connection to the Istanbul rail network, making the urban structure a public amenity that dynamically responds to the city’s needs.
PLUG & PLAY |PART 4:
FUNCTIONS








A continuous path lined with pluggedin public functions runs along the top of the building, with vertical cores providing periodic access at intervals no more than 70 meters.

INSIDE UNIT C

A VIEW FROM THE PATH

02. IN-BETWEEN HOUSING
ARC 501: Design Studio VII - Fall 2023
Professor Camilo Cerro | Individual Work
Situated on Al Saadiyat Island in Abu Dhabi, “In-Between housing” aims to adapt the cohousing typology to fit cultural norms in the UAE, where privacy is key. The proposal reinterprets how privacy is typically created in nearby developments, where units are enclosed within walled plots. Instead of using walls as add-on elements, they become the primary architectural language. Between these walls, the internal volumes and private courtyards of each unit are clearly defined, and between the units themselves, a linear residual space is delineated, housing communal functions and encouraging social interactions between the residents.









The design studio defines a series of 25m x 70m plots, each bordered by a mangrove wetland to the east and an access road to the west.
Each plot hosts a co-housing compound designed by a different student or team.
In my approach, the compound operates at three scales, each responding to specific problems and forces.


URBAN SCALE:
Houses are arranged linearly along the east-west axis. Other functions break the rule.
WHY LINEARLY?
A response to site proportions and an attempt to create central spaces shaded from southern sun.

ARCHITECTURAL SCALE:
Houses are sandwiched between walls that extend beyond their volumes to define private exterior spaces.
WHY WALLS?
A reinterpretation of how private exterior spaces are typically created in nearby housing developments.

INTERIOR SCALE:
Each house is an enclosed volume that contains another volume/box within.
WHY NESTED VOLUMES?
The boxes divide the interior in response to the private and public functions of a house.

INTEGRATED SYSTEMS
All physical elements on site are conceived as systems. An element qualifies as a system if it appears three times at least. Complexity emerges from the integration of multiple simple systems.
INDIAN LAUREL TREE
- A singularity rather than a system.
- Becomes a unique focal point.
- A drought and heat resistant species.
CURTAIN WALLS
- Always looking into a private courtyard.
- Always protected with breeze block walls.

BREEZE BLOCK WALLS
- Usually perpendicular to concrete walls.
- Usually enclosing each unit’s private courtyard.



METAL WINDOW BOXES
METAL CLAD WALLS
- Occasionally sandwiched between concrete walls as conceptual spacers.
CONCRETE WALLS
- The main architectural language.
- They delineate and shade the shared central space.
- Constructed using carbon sequestering concrete.

CORRUGATED ALUMINUM WALLS
- They are always parallel to concrete walls.
- They introduce a second material to break monotony.


- Painted pink to match the color of bougainvillea flowers.
- Their lower edges are always higher than 2m to prevent passers from peeking in.


PLANTERS
- Usually sandwiched between concrete walls as conceptual spacers.
BENCHES
- Clad with WPC Panels.
SEATING NICHES
- They utilize the space under each unit’s interior staircase by giving it back to the exterior.


BRIDGES
- They appear do be connecting unit rooftops, but serve purely as visual and shading elements.
- They also serve as planters for bougainvillea flowers.

SECTION AA - LOOKING WEST
NTS

SECTION BB - LOOKING EAST
NTS








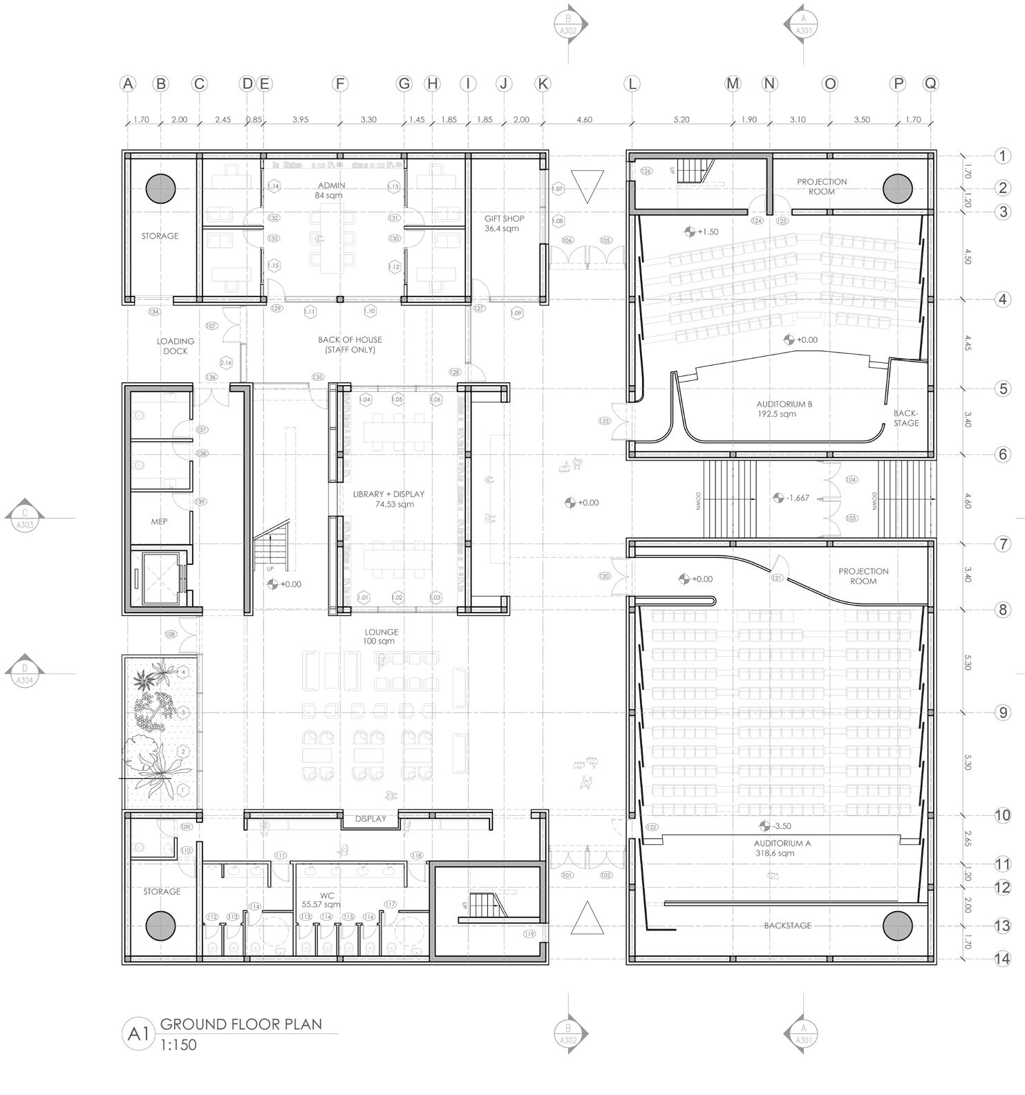
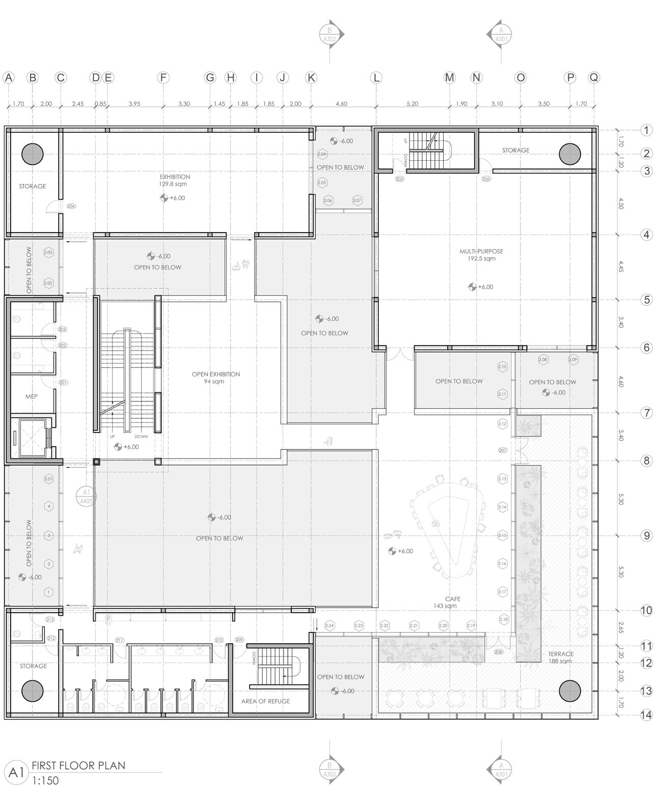
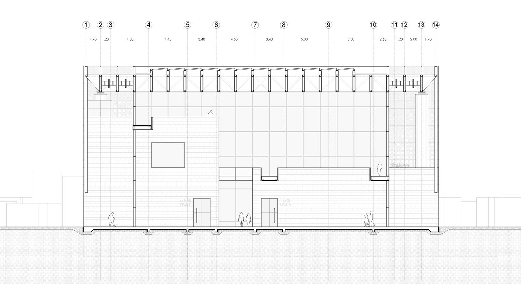
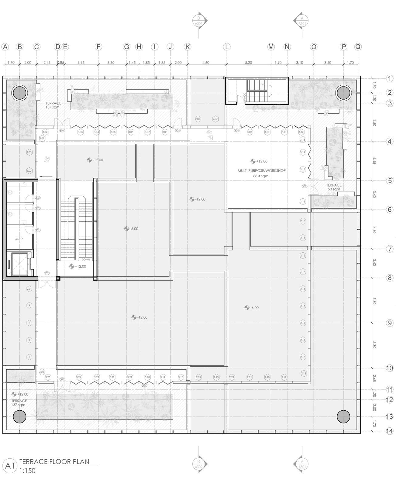
03. SHARJAH FILM CENTER
ARC 402: Design Studio VI - Spring 2023
Professor Roberto Castillo | Partner: Sara Suliman
The building is conceived as a blank canvas for light projections and media, both inside and out. Architecturally, this translates into a series of sandstone-clad volumes with large uninterrupted surfaces. A square-shaped steel roof spans over the volumes, creating an enclosed central space for viewing displayed media.



Al Riqa Neighborhood, Sharjah, UAE

The film & media center is situated in a calm, conservative residential neighborhood. The program and its immediate surroundings seemed at odds, a challenge addressed through the design of an introverted building with simple facades that prioritize the privacy of the residents.
A series of greenscapes serve as mediating buffers between the film center and the nearby houses.

Site Coordinates: 25.382943, 55.442515
Perforated aluminum panels create a micro climate and a layered facade protecting glass from harsh sunlight. They also contrast the heavy opaque volumes with the lightness of perforated panels.
Sandstone-clad volumes house major programs. At nigh, these volumes serve as projection surfaces on the building’s exterior. Sandstone was chosen for its local availability.

A 42x42m roof, with 2m-deep trusses spaced at 2m intervals, spans the volumes and is supported by 4 concrete columns at the building’s corners. The roof establishes a grid that organizes the sandstone volumes below.
Curtain walls feature operable glass on the second floor, allowing the central space to be naturally ventilated during winter, limiting air-conditioning to the interiors of the sandstone volumes.
A stepped landscape creates an outdoor theatre that doubles as a gathering space for neighborhood residents.















04. FUJAIRAH TERMINAL STATION
Architectural Design Studio V - Fall 2022
Professor Gregory Watson | Individual Work
Etihad Railway is a passenger and freight transportation network connecting the seven Emirates of the UAE, with potential extensions to the GCC countries. This studio focused on selecting a speculative site for an Etihad Rail passenger station and subsequently designing it. Both the siting and design of the station served as a framework for theoretically defining and testing the values, responsibilities, and urban issues that shape architectural thinking and form.


Site Coordinates:

1- Site in relation to rail path. Industrial landscape to the north, undeveloped land to the south, port to the east, the mountains of Fujairah to the west.


2- Zoomed in view of the site. Rail track is 10 meters elevated above ground.

5- Terminal stations are used to store trains and rolling stock. The platforms are therefore 400 meters long to be able to house two 180m trains in a row.

7- The pick-up/drop-off area is located between the platforms and the core, with direct connection to the parking spaces.

8- The three layers are pierced and subtracted to frame mountain views to the north.

3- Three tracks and six platforms in relation to the site.

6- Two layers of walls create framed vistas of the port to the east and of the mountains to the west. A third layer houses cores, services, hotels and offices.

9- A primary headhouse and two secondary ones, or “parasites,” are nested within the walls. The parasites are the only air-conditioned spaces.
4- Zoomed in view.



10- A fourth layer of steel framing enables circulation between the three headhouse volumes and creates waiting areas along the connection. The train station functions are confined to these volumes.
11- Additional parasite volumes are inserted to accommodate public amenities within the train station, accessible to both passengers and the general public.



15- A public plaza is created in response to the potential lack of public spaces within the urban fabric of Fujairah.


17 - An orthogonal grid is created.

18- A rough projection of inevitable future development. As the city expands to the edge of the plaza, it becomes another spatial vista that frames views to the east and west.
12- Zoomed in view.
13- A layer of translucent fabric partially allows diffused light.
14- Zoomed out view.
16 - Zoomed out view.




05. SHELL & CORE
Architectural Design Studio IV - Spring 2022
Professor Camilo Cerro | Individual Work
The project involves designing an empty shell/envelope that is mirrored four times, creating an urban impact on the campus of the American University of Sharjah (AUS). Out of the four shells, the one adjacent to the College of Architecture, Art, and Design (CAAD) building is filled in with program to serve as an extension to it. The other three shells remain empty, ready to receive new programs as needed in the future.











06. SHELF WINDOW
ARC 581: Critical Practice - Fall 2023
Professor Michael Hues | Partners Sara.S & Manar.M
The course addresses issues of tolerance, fabrication, and steel detailing through the design and construction of a steel window mock-up that doubles as a display shelf. Constructed with a steel tube frame and a series of metal plates, the process involved miter sawing, MIG welding, and magnetic drilling. The main takeaway is the inevitable discrepancy between drawing and physical construction, a factor rarely considered when designing in an ideal digital space.

1"x1" Tube Steel, 2.5mm
5mm Steel Plate
Rockwool Insulation

07. GOLDEN MONUMENTS
ARC 311: Illustration & Rendering - Fall 2023
Professor George Katodrytis | Individual Work
“Golden Monuments” draws inspiration from Minoru Nomata’s series of paintings titled “Monuments for a Future Civilization”. The orthographic projection envisions a distant future where civilization and technology as we know of today is set to its starting point and has emerged again. This reemergence takes a different trajectory due to either the rediscovery or concealment of the scientific knowledge underlying our modern-day technologies. The golden towers thus allude to the monumental technological developments of this civilization amid a landscape of mutated and newly evolved forms of life.



08. ROBOTIC PINE
ARC 433: Advanced Topics in Digital Fabrication - Spring 2024
Professor Ammar Kalo | Individual Work
“Robotic Pine” is a series of explorations based on the abstracted and manipulated geometry of a pine cone, realized using a small six-axis robotic arm (Universal Robot 5e). The explorations begin with a light drawing that involves zero contact between the TCP (tool center point) and any physical material. They progress to a pen drawing that features two-dimensional contact, and culminate with three-dimensional contact by displacing/stamping petroleum sand to create a mold for casting plaster panels.



*To be documented
09. LOOP BENCH
IDE 335: Furniture Design Basics - Fall 2024 Professor Ammar Kalo | Individual Work
“Loop Bench” features 8 veneer pressed loops that support a series of solid wood rods to create a seating surface. Its concept revolves around creating a playful contrast between the light appearance of the loops and the heavy feel of the solid top. The loops derive their strength from their form, which was determined through a series of small scale veneer pressing experiments.



American University of Sharjah B.Arch 2024