

![]()


Fall2025 Individual Columbia University
Instructor Gary Bates


Fall 2024 Collaborative Columbia University
Instructor: Berardo Matalucci


Spring2023 Individual TexasTech University
InstructorJimmyJohnson

Fall 2024 Collabrative Columbia University
Instructor Galia Solomonoff


Spring2024 Individual Columbia University
Instructor: ReginaTeng



Summer2022 Collabrative TexasTech University
Instructor Neal Lucas Hitch



Fall 2025 | Individual | Columbia University | Instructor: Gary
Bates
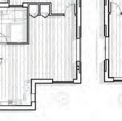
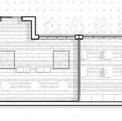
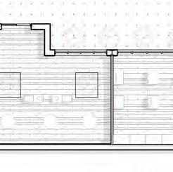
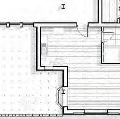
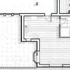
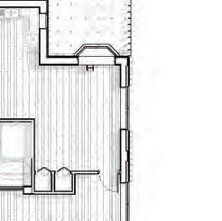
Harlem Performance Center is an adaptive reuse project based on the United House of Prayer, reimagining the performance building through the spatial logic of positive and negative space. Located on 125th Street in Harlem, a commercial corridor and emerging innovative district, the project engages the street as an active public interface.
Positive space is defined by highly controlled environments—including two theaters and a gallery—where acoustics, audience relationships, and technical demands require precision. In contrast, negative space is intentionally shaped as a spatial void of equal architectural quality, accommodating public performance, gathering, civic use, and everyday life. Rather than residual space, this void operates as a flexible public field where performance extends beyond the stage.
The juxtaposition of positive and negative space creates a productive tension between focus and openness. Lobbies, circulation, and shared areas form a continuous system of negative space that supports movement, pause, rehearsal, and informal assembly.
Interior and exterior are treated with the same spatial value, forming a civic continuum that keeps the building active and publicly legible during both performance and non-performance time. The project is conceived not as a monumental object, but as a public apparatus embedded in the everyday life of Harlem.


Zoning code–informed mass articulation
Circulation and service-based spatial structuring
















Fall 2024 | Collabrative | Columbia University
Located at the intersection of Covent St, 127th, and 128th, this multigenerational housing project explores the ideology of intimacy through architectural space. Comprising 103 apartments across 10 floors, it is situated in a diverse, multi-ethnic, and multi-generational neighborhood.
The design embraces various shared spaces at different scales— both within individual apartments and the broader community—to foster interaction among residents and cultivate a strong sense of belonging. By integrating “ping feng” as a soft barrier, the project dynamically balances the interplay between private and public spaces, enhancing both spatial and visual connectivity.






















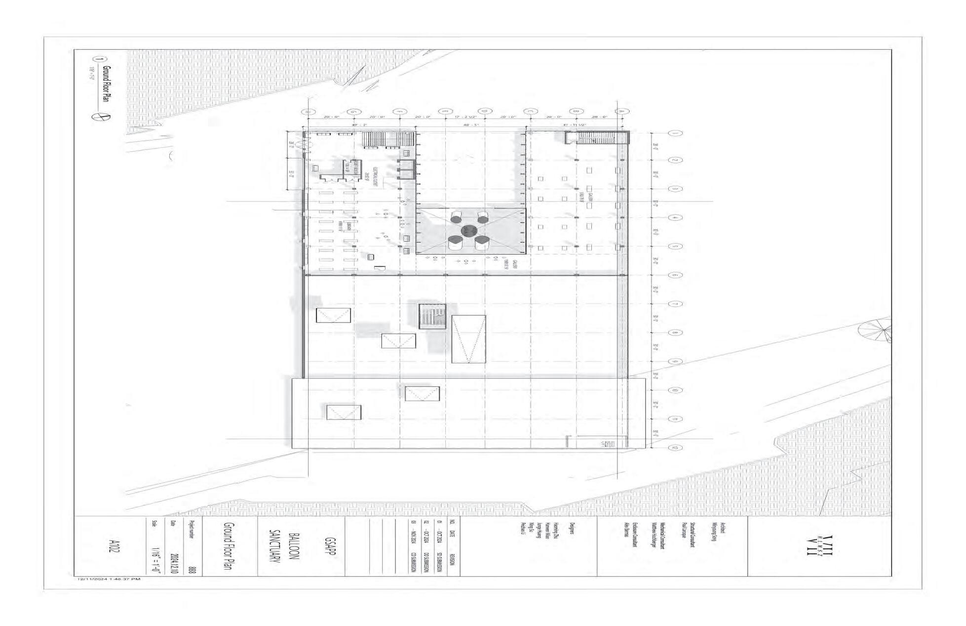
Fall 2024 | Collaborative | Columbia University
Instructor: Berardo Matalucci

Located across from the American Museum of Natural History, this project reimagines a previous student proposal originally conceived as an extension of the Macy’s Thanksgiving Day Parade. Our team retained the central idea of a glass pavilion and deflation basement for balloon storage and display, while redesigning the scheme to better integrate with the park’s topography and public circulation. By excavating and partially submerging the building, the design preserves unobstructed park views and reuses the displaced soil to create a 46,000-square-foot green roof that functions as a public playground. I contributed comprehensively across concept development, spatial organization, environmental strategy, and technical detailing. The final proposal features a hybrid structural system combining steel, concrete, and CLT columns, optimizing material performance and visual warmth. To test construction logic and spatial proportion, our team fabricated a half-scale physical model of the key structural bay. Through this integration of environmental systems, tectonic precision, and civic programming, the project transforms a piece of parade infrastructure into a sustainable urban landscape of celebration and renewal.
Every November, the Macy’s Thanksgiving Day Parade transforms New York’s streets into a stage of color, scale, and collective joy. Gigantic inflatables drift down Central Park West, embodying both engineering precision and ephemeral spectacle. This project begins where the parade ends—imagining an architectural home for these floating icons, a place where the backstage of celebration becomes a public landscape that merges performance, infrastructure, and memory.











Bamboo Lumber (1/2”-3/4”)
Fir Lumber (2 x 6 x 10)
24” x 24” x 1/4” Steel Plate
#9 X 2-1/2” Construction Wood Screws
Carriage Screws with 1/2” Nuts & Washers
Fir Lumber (2 x 6 x 8)
1/2” Threaded Rods
Quikrete






Spring 2024 | Individual | Columbia University
Instructor: Regina Teng
This project investigates damage control through the lens of sensory restoration and urban transformation. It begins with an experiential study of the visually impaired, translating their perception of space into sound. Through experimental walks and audio mapping, the city is reinterpreted as a musical composition—one where footsteps, ambient noise, and tactile navigation form a sensory score.
From this foundation, the project moves into the urban fabric at varying scales. Everyday city elements—scaffolding, subway entrances, ventilation grilles—are subtly transformed into musical interfaces, inviting public interaction while generating a distinctive urban soundscape. These adaptive interventions aim not only to enrich the environment, but to challenge how we experience the city beyond the visual.
The proposal culminates at the 125th Street elevated subway bridge in Harlem. Reimagined as a controlled sound park, the structure becomes both a refuge and an acoustic filter. Instead of silencing the city, it reshapes its noise—turning chaotic vibration into rhythm, and disruption into design. Here, sound becomes a tool for both expression and healing, offering a new way to inhabit, understand, and repair the urban environment.






















An elongated sound-absorbing passage runs along the track wall, redirecting subway noise into a controlled flow of resonance and silence — turning disruption into rhythm.
Located near the station entrance, this landscape-based intervention filters and diffuses ground vibration through layered materials and topography, creating a transitional acoustic buffer between the subway and the city.

Using CLT panels and micro-perforated acoustic boards, this intervention forms an adjustable resonance cavity within the tunnel wall, reorganizing sound reflection and absorption.
A lightweight bridge spans across the tracks, serving as both a pedestrian connection and an “auditory stage” where one can experience the sound waves of passing trains.
Existing ventilation shafts are transformed into vertical light-and-sound wells, guiding both airflow and resonance between the underground and street level.
At the end of the subway platform, an extended volume becomes a semi-public performance zone, transforming waiting time into collective spatial experienc











































































































































































SIXTH FLOOR






















FIRST FLOOR

































SECOND FLOOR























































































































































THIRD FLOOR



















FOURTH FLOOR







FIFTH FLOOR





SIXTH FLOOR





ROOF LEVEL



Fall 2023 | Individual | Texas Tech University
Summer 2022 | Collaborative | Team | Texas Tech University
Instructor Neal Lucas Hitch
Instructor Jimmy Johnson
Peeking out from among the trees on the historic grounds of the 1969 Woodstock Music and Art Fair, Peak-A-Boo takes shape as a continuous series of wood-laminate arches and decks which form a pavilion and flexible performance space. The project is collaborated between the Tex as Tech Student teams and i/thee. I lead the grasshopper team engaging in the prototype design and active bending analysis for different form iterations. I also participated in the construction and installation process.
Peak-A-Boo peeks out from among the trees on the historic grounds of the 1969 Woodstock Music and Art Fair at Bethel Woods, taking shape as a continuous series of wood-laminate arches and decks that together form a pavilion and flexible performance space. The project was a collaboration between Texas Tech University student teams and i/thee, exploring architecture as a device for framing landscape, movement, and performance. I led the Grasshopper-based computational team, developing prototype geometries and conducting active bending analysis across multiple form iterations, and also participated directly in the construction and on-site installation process. The project was published on ArchDaily and Dezeen, and was nominated for ArchDaily’s Building of the Year TAwards 2022 (Installation / Temporary Architecture category).






































Active Bending Analysis Through Grasshopper
Bending Analysis Through Grasshopper


Diagram






























Summer 2024 | Collab rative | CO-Ordinate & Bethel Woods Center for the Arts Instructor Peizhao Li
Collaborated with the Bethel Woods Local Museum and the Architecture Build Festival as a representative and coordinator. Assisted in organizing events, designed architectural installations and websites, and led a videography team. Conducted interviews with participating university teams, captured photographs for Dezeen Magazine, and documented the event.








PROFESSIONAL WORK SAMPLE
Summer 2025 | BIAD

AIR CHINA BASE AT DAXING INTERNATIONAL
AIRPORT
Summer 2025 | Internship | BIAD Wuchen Studio
Collaborated with the China Academy of Building Research (CABR) Interior Department on the China Airlines Terminal at Beijing Daxing International Airport.
Developed digital twin models using Rhino, SketchUp, and 3ds Max to produce high-quality renderings, walkthrough animations, and immersive presentations via the 720 Cloud Platform.
Assisted in refining AutoCAD construction drawings and supported the design development and construction coordination phases.


Link: https://www.720yun.com/vr/12djtdwksm4



















PROFESSIONAL WORK SAMPLE
Winter 2025 | GDAD

Xinfeng River Riverside Master Planning Project
Winter 2025 | Urban Planning Intern |
Architectural Design and Research Institute of Guangdong Province (GDAD)

Assisted planners with site research and contextual analysis, including existing conditions, land use, and broader urban relationships.
Contributed to the early-stage design development of the master plan, supporting the exploration of spatial structure, zoning strategies, and planning concepts.
Produced CAD-based master plan drawings and coordinated graphic documentation across design phases.
Supported the refinement of renderings and visual materials, translating planning strategies into clear and communicable design representations.




