Interior design portfolio

Page 1

PORTFOLIO interior design

working experience
Peggy Katsavou
CONTENTS 4 BROWN LIMASSOL HOTEL 10 LAW FIRM IN PAROS 12 RESIDENCE IN VRILISSIA 16 APARTMENT IN ATHENS 18 RESIDENCE IN NEA SMYRNI

BROWN LIMASSOL HOTEL

Elastic Αrchitects, Mockup room

4
5
6 0.90 0.55 2.17 2 1 4 3 2 1 4 3 1.20 1.20 1.43 ENTRANCE FIN 01 FLOOR TYPE FAUX TADELAKT +2.35 CENTER LINE C. L. NIGHT STAND CF 04 D.1.4 WALL TYPE FAUX TADELAKT FIN 01 DOUBLE BED FUR 01 C. L. 2 1 4 3 MEZZANINE PROJECTION TV EQU 01 SOFA FUR 04 STOOL 2 FUR 03 0.52 1.82 0.83 2.12 0.05 0.30 0.90 0.71 WARDROBE CF 01 D.1.1 SAFE BOX EQU 03 MINI BAR EQU 02 METAL FIN 06 STOOL 1 FUR 02 2.10 0.10 0.78 Ø0.30 0.01 2.85 2.24 2.89 STORAGE CABINET CF 05 D.1.5 PRECAST COLORED CONCRETE FIN 09 FLOOR TYPE FAUX TADELAKT FIN 01 1.45 COFFEE TABLE CF 03 D.1.3 SHEER CURTAIN FAB 01 BLACKOUT CURTAIN FAB 03 Ø0.50 FIN 08 FLOOR TYPE FAUX TADELAKT LED LIGHT RECESS DOOR STOP HDW 03 1 2 3 4 5 6 7 8 9 10 11 CARPET DEC 01 CARPET DEC 08 CURTAIN RAILING 1 CF 06 D.1.6 METAL FIN 06 MB FLOOR LAMPS LG 07 ±0.00m ±0.00m ±0.00m STAIRCASE D.4.2 FLUTTED GLASS FIN 02 D.4.1 0.96 1.32 0.65 READING LIGHT LG 08 1.20 1.19 0.23 0.23 1.30 2 3 4 5 6 7 8 9 10 11 ROOM FLOOR PLAN SCALE 1 : 20 MEZZANINE PLAN SCALE 1 : 20 0.30 DESK CF 02 D.1.2 WASTE BASKET EQU 08 0.55 SHAFT SHAFT 0.25 0.40 FIN 01 FLOOR TYPE FAUX TADELAKT FIN 01 FLOOR TYPE FAUX TADELAKT OUTOOR CHAIR FUR 05 OUTOOR TABLE FUR 06 Ø0.75 Ø0.75 FIN 01 FLOOR TYPE FAUX TADELAKT 2.90 2.90 HIDDEN CEILING TV EQU 09 WC FLOOR PLAN WC.2.1
7 SLAB +4.70m RECOMMENDED POSITION OF SWITCHES DOOR HANDLE HDW 01 FIN 12 DOOR FINISH ELEVATION 2 CARD READER ELE 08 PENDANT LIGHT 2 LG 04 LED LIGHT RECESS LED LIGHT RECESS DOOR FINISH FIN 01 FIN 01 WALL TYPE FAUX TADELAKT FIN 01 WALL TYPE FAUX TADELAKT DOOR HANDLE HDW 02 STORAGE CABINET CF 05 D.1.5 PENDANT LIGHT 1 LG 03 SHEER CURTAIN FAB 01 SOFA FUR 04 FFL ±0.00m FCL +4.35m FALSE CEILING LOWER LEVEL MEZ +2.20m SCALE 1 : 20 BLACKOUT CURTAIN 1 FAB 03 DOUBLE BED FUR 01 READING LIGHT LG 08 TERMOSTAT ELE 06 MS FCL +4.55m FALSE CEILING LOWER LEVEL 1.50 0.15 SUGGESTED VENTILATION SLOT PLACEMENT LED LIGHT RECESS & CURTAINS D.2.2 SUGGESTED VENTILATION SLOT PLACEMENT 4 SWITCH PRODUCT ELE 09 EMERGENCY LIGHT 1.10 4.70 0.40 0.196 1.10 1.10 0.90 0.15 2.20 1.00 2.20 0.15 0.35 0.30 1.55 0.40 0.25 E.Q. E.Q. E.Q. E.Q. 2.24 0.10 1.74 1.21 0.65 0.15 0.95 0.70 0.55 NIGHT STAND CF 04 D.1.4 HIDDEN CEILING TV EQU 09 LED LIGHT RECESS D.2.1 SLAB +4.70m FFL ±0.00m FINISHED FLOOR LEVEL ELEVATION 4 SCALE 1 20 FCL +4.35m MEZ +2.20m MEZZANINE LOWER LEVEL FIN 01 WALL TYPE FAUX TADELAKT LED LIGHT RECESS D.2.4 DOUBLE BED FUR 01 RECOMMENDED POSITION OF SWITCHES TV EQU 01 0.95 METAL FIN 06 DOOR HANDLE HDW 01 0.05 0.78 0.45 1.00 STOOL 1 FUR 02 STOOL 2 FUR 03 2.15 0.85 0.02 2.00 WARDROBE CF 17 D.1.1 RECOMMENDED POSITION OF LINEAR LIGHT 0.25 0.40 1.55 FIN 01 WALL TYPE FAUX TADELAKT FIN 02 FLUTTED GLASS FIN 02 FLUTTED GLASS FLUTTED GLASS FIN 02 NIGHT STAND CF 04 D.1.4 DESK CF 02 D.1.2 STORAGE CABINET CF 05 D.1.5 PENDANT LIGHT 2 LG 04 PENDANT LIGHT LG 03 SHEER CURTAIN FAB 01 FLOOR LAMP LG 07 BLACKOUT CURTAIN 1 FAB 03 SHEER CURTAIN 1 FAB 01 1.00 READING LIGHT LG 08 1.10 4.70 1.20 0.40 SUGGESTED VENTILATION SLOT PLACEMENT LED LIGHT RECESS & CURTAINS D.2.2 SUGGESTED VENTILATION SLOT PLACEMENT 0.15 1.75 0.75 2.20 0.15 2.20 0.15 0.35 HIDDEN CEILING TV EQU 09 PROJECT BROWN HOTELS LIMASSOL, CYPRUS DESIGN DEVELOPMENT Do not scale from document. Use provided dimensions or ask. Any discrepancy to be brought to the notice consultant prior to commencement work Drawings be read in conjunction with relevant architectural, structural, interior, lighting, MEP and landscape consultants' packages. ELE.1.4 BRL_INT_DD_RM_DOUBLE TYPE A DOUBLE ROOM LED LIGHT RECESS D.2.3 SLAB +4.70m LOWER SLAB LEVEL FFL ±0.00m ELEVATION 3 SCALE 1 20 FCL +4.35m FALSE CEILING LOWER LEVEL MEZ +2.20m MEZZANINE LOWER LEVEL METAL FRAME FIN 06 FIN 12 DOOR FINISH 2.35 MEZ +2.35m 0.15 2.20 0.02 1.30 0.10 0.85 0.55 0.02 2.85 FIN 02 FLUTTED GLASS 0.01 FCL +4.55m FALSE CEILING LOWER LEVEL 0.09 0.11 METAL PIPES SUGGESTED VENTILATION SLOT PLACEMENT SHADOW GAP DOOR STOP HDW 03 DOOR HANDLE HDW 01 FIN 02 FLUTTED GLASS GLASS SLAB +4.70m LOWER SLAB LEVEL FFL ±0.00m ELEVATION 3 SCALE : 1 20 MEZ +2.20m MEZZANINE LOWER LEVEL RECOMMENDED POSITION OF SWITCHES FIN 01 WALL TYPE FAUX TADELAKT DOUBLE BED FUR 01 METAL FRAME FIN 06 0.60 2.35 MEZ +2.35m 0.15 2.20 0.02 1.30 0.10 0.85 0.55 0.02 2.85 SHADOW GAP 0.01 2.17 0.015 NIGHT STAND CF 04 D.1.4 2.05 0.95 READING LIGHT LG 08 0.28 DOOR STOP HDW 03 MS MS 0.24 FIN 12 DOOR FINISH FIN 02 FLUTTED GLASS FIN 02 FLUTTED GLASS GLASS 1.50 0.02 0.53 0.53 SUGGESTED VENTILATION SLOT PLACEMENT 0.24 FCL +4.35m FALSE CEILING LOWER LEVEL 0.35 FAB 06 BED HEADBOARD DOOR HANDLE HDW 01 0.015 SCALE PROJECT CLIENT BROWN HOTELS DRAWING_NUMBER DRAWING_CODE REVISION NOTES LOCATION LIMASSOL, CYPRUS DESIGN STAGE DESIGN DEVELOPMENT Do not scale from document. Use provided dimensions or ask. Any discrepancy conjunction with relevant architectural, structural, interior, lighting, MEP and landscape consultants' packages. 2/12/21 1:20 01 ELE.1.3 BRL_INT_DD_RM_DOUBLE TYPE A DOUBLE ROOM FFL ±0.00m ELEVATION 1 SCALE 1 20 SLAB +4.70m FCL +4.35m FALSE CEILING LOWER LEVEL LED LIGHT RECESS D.2.3 SHEER CURTAIN FAB 01 0.07 2.71 0.07 0.35 4.35 2.85 0.02 0.01 3.10 1.60 PROJECT CLIENT BROWN HOTELS REV No LIMASSOL, CYPRUS DESIGN STAGE DESIGN DEVELOPMENT 2/12/21 1:20 ELE.1.1 BRL_INT_DD_RM_DOUBLE TYPE A DOUBLE ROOM
8
9 INCLINATION 1.5% 1.30 1.42 2 1 4 3 SCALE : 1 20 FIN 08 FLOOR TYPE FAUX TADELAKT BATHROOM PLAN C. L. C. L. 0.60 0.70 0.60 0.03 0.40 0.90 0.43 0.07 0.75 1.00 C. L. 0.10 1.20 0.37 0.37 0.65 C. L. 0.70 FLUTTED GLASS FIN 02 D.4.1 0.16 0.15 0.07 0.60 0.07 DOOR STOP HDW 03 WALL-HUNG TOILET SAN 01 FLUSH PLATE SAN 02 TOILET BRUSH SAN 09 PAPER HOLDER SAN 07 BATHROOM WASTE BIN SAN 08 FLOOR DRAIN SAN 06 WASHBASIN TAP WALL MOUNTED SAN 05 LINEAR DRAIN SAN 15 SHOWER SET SAN 16 GLASS PARTITION FIN 05 D.3.5 MIRROR IN RECESS 1 CM DEPTH FIN 04 CONCEALED CISTERN SAN 03 METAL SHELF CF 09 D.3.2 WASHBASIN CF 08 D.3.1 WALL FINISH FIN 08 SHAFT 0.25 OVERHEAD SHOWER SAN 09 ROBE HOOK SAN 11 WALL RECESS D.3.3 0.40 C. L. ELEVATION 3 SCALE : 1 : 20 DOOR HANDLE HDW 02 TOILET BRUSH SAN 09 WALL-HUNG TOILET SAN 01 FCL +2.20m FALSE CEILING LEVEL FLUSH PLATE SAN 02 BATHROOM WASTE BIN SAN 08 FFL ±0.00m FINISHED FLOOR LEVEL MIRROR IN RECESS FIN 04 WATERPROOF ELECTRICAL OUTLET WATERPROOF CEILING SPOT FCL +2.25m FALSE CEILING RECESS CONCEALED CISTERN SAN 03 DOOR FINISH FIN 12 DOOR FINISH FIN 13 WASHBASIN TAP WALL MOUNTED SAN 05 0.20 FIN 08 WALL FINISH METAL FIN 06 LED LIGHT RECESS D.3.4 0.90 0.40 0.77 1.00 1.10 WASHBASIN CF 08 D.3.1 ELEVATION 4 SCALE 1 20 ROBE HOOK SAN 11 1.80 FLUSH PLATE SAN 02 PAPER HOLDER SAN 07 FCL +2.20m FALSE CEILING LEVEL WALL-HUNG TOILET SAN 01 BATHROOM WASTE BIN SAN 08 FFL ±0.00m FINISHED FLOOR LEVEL 0.40 0.90 FIN 13 DOOR FINISH 0.60 0.70 0.12 0.75 DOOR STOP HDW 03 DOOR HANDLE HDW 02 FLUTTED GLASS FIN 02 ALUMINIUM PROFILE HDW 04 0.79 FFL -0.02m SHOWER LEVEL FIN 08 WALL FINISH FIN 08 WALL FINISH 0.25 0.70 1.10 0.23 0.87 0.17 0.10 0.49 C. L. WATERPROOF CEILING SPOT 0.03 2.17 0.03 0.02 WALL RECESS D.3.3 ELEVATION 2 SCALE : 1 20 FCL +2.20m FALSE CEILING LEVEL SHOWER SET SAN 16 FFL ±0.00m FINISHED FLOOR LEVEL METAL FIN 05 FIN 04 MIRROR METAL SHELF CF 09 D.3.2 FLUTTED GLASS FIN 02 D.4.1 C. L. FFL -0.02m SHOWER LEVEL 1.10 C. L. GLASS PARTITION FIN 05 D.3.5 LED LIGHT RECESS D.3.4 0.42 1.10 0.05 1.43 OVERHEAD SHOWER SAN 09 FCL +2.25m FALSE CEILING RECESS FIN 08 WALL FINISH FIN 08 WALL FINISH METAL JOINT HDW 05 0.77 WASHBASIN CF 08 D.3.1 WASHBASIN TAP WALL MOUNTED SAN 05 E.Q. E.Q. 0.43 0.65 0.07 0.75 1.40 0.03 0.24 WALL MIRROR WSE01 1.50 ELEVATION 1 SCALE 1 20 ROBE HOOK SAN 11 FCL +2.20m FALSE CEILING LEVEL FFL ±0.00m FINISHED FLOOR LEVEL METAL JOINT HDW 05 ALUMINIUM PROFILE HDW 04 FCL +2.25m FALSE CEILING RECESS LED LIGHT RECESS D.3.4 FLUTTED GLASS FIN 02 D.4.1 0.05 0.60 0.70 0.15 0.03 0.35 0.03 0.15 2.20 1.80 GLASS PARTITION FIN 05 D.3.5 0.40 C. L. ELEVATION 3 SCALE : 1 : 20 DOOR HANDLE HDW 02 TOILET BRUSH SAN 09 WALL-HUNG TOILET SAN 01 FCL +2.20m FALSE CEILING LEVEL FLUSH PLATE SAN 02 BATHROOM WASTE BIN SAN 08 FFL ±0.00m FINISHED FLOOR LEVEL MIRROR IN RECESS FIN 04 WATERPROOF ELECTRICAL OUTLET WATERPROOF CEILING SPOT FCL +2.25m FALSE CEILING RECESS CONCEALED CISTERN SAN 03 DOOR FINISH FIN 12 DOOR FINISH FIN 13 WASHBASIN TAP WALL MOUNTED SAN 05 0.20 FIN 08 WALL FINISH METAL FIN 06 LED LIGHT RECESS D.3.4 0.90 0.40 0.77 1.00 1.10 WASHBASIN CF 08 D.3.1 ELEVATION 4 SCALE 1 20 ROBE HOOK SAN 11 1.80 FLUSH PLATE SAN 02 PAPER HOLDER SAN 07 FCL +2.20m FALSE CEILING LEVEL WALL-HUNG TOILET SAN 01 BATHROOM WASTE BIN SAN 08 FFL ±0.00m FINISHED FLOOR LEVEL 0.40 0.90 FIN 13 DOOR FINISH 0.60 0.70 0.12 0.75 DOOR STOP HDW 03 DOOR HANDLE HDW 02 FLUTTED GLASS FIN 02 ALUMINIUM PROFILE HDW 04 0.79 FFL -0.02m SHOWER LEVEL FIN 08 WALL FINISH FIN 08 WALL FINISH 0.25 0.70 1.10 0.23 0.87 0.17 0.10 0.49 C. L. WATERPROOF CEILING SPOT 0.03 2.17 0.03 0.02 WALL RECESS D.3.3 ELEVATION 2 SCALE : 1 : 20 FCL +2.20m FALSE CEILING LEVEL SHOWER SET SAN 16 FFL ±0.00m FINISHED FLOOR LEVEL METAL FIN 05 FIN 04 MIRROR METAL SHELF CF 09 D.3.2 FLUTTED GLASS FIN 02 D.4.1 C. L. FFL -0.02m SHOWER LEVEL 1.10 C. L. GLASS PARTITION FIN 05 D.3.5 LED LIGHT RECESS D.3.4 0.42 1.10 0.05 1.43 OVERHEAD SHOWER SAN 09 FCL +2.25m FALSE CEILING RECESS FIN 08 WALL FINISH FIN 08 WALL FINISH METAL JOINT HDW 05 0.77 WASHBASIN CF 08 D.3.1 WASHBASIN TAP WALL MOUNTED SAN 05 E.Q. E.Q. 0.43 0.65 0.07 0.75 1.40 0.03 0.24 WALL MIRROR WSE01 1.50 ELEVATION 1 SCALE 1 20 ROBE HOOK SAN 11 FCL +2.20m FALSE CEILING LEVEL FFL ±0.00m FINISHED FLOOR LEVEL METAL JOINT HDW 05 ALUMINIUM PROFILE HDW 04 FCL +2.25m FALSE CEILING RECESS LED LIGHT RECESS D.3.4 FLUTTED GLASS FIN 02 D.4.1 0.05 0.60 0.70 0.15 0.03 0.35 0.03 0.15 2.20 1.80 GLASS PARTITION FIN 05 D.3.5

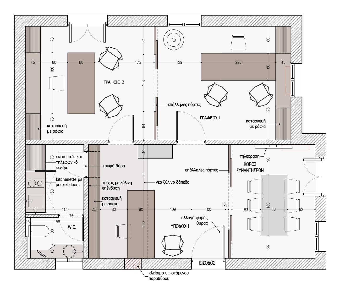
LAW FIRM IN PAROS DO designers

10
11

RESIDENCE IN VRILISSIA DO designers

12
13
14
15

APARTMENT IN ATHENS DO designers

16
17

RESIDENCE IN NEA SMYRNI

DO designers

18
19
2023 ATHENS

Turn static files into dynamic content formats.

Create a flipbook
Issuu converts static files into: digital portfolios, online yearbooks, online catalogs, digital photo albums and more. Sign up and create your flipbook.