POR TFOLIO

![]()


03/26/1998
Contact Information:
Broomfield | Colorado | United States
High School Diploma
Blaine High School 2012-2016
Associate of Applied Science in Architecture
Dunwoody College of Technology 2020-2022
Bachelors in Architecture
Dunwoody College of Technology 2023-2025
Year One (2020-2021)
Sky Pesher
Walker Art Center
Brunsfield
Year Two (2021-2022)
Apple Valley Firehall
Cassatt Residence
Email: Gallegos.pedro2@gmail.com
Phone: (651)-315-3178
LinkedIn www.linkedin.com/in/pedro-gallegos-71bbb01a5 Intro
Hello, I am an architecture graduate from Dunwoody College of Technology in Minneapolis, Minnesota, where I earned my Bachelor’s degree in Spring 2025.
I am passionate about beginning my career in architecture and continuing to grow as a designer. My goal is to gain hands-on experience, develop design maturity, and refine my skills to meet professional standards within the field.
The Hex - Dunwoody Student
Housing Project
Year Three (2022-2023)
Powderhorn
Helpful Places - Dog Rescue Center
Year Four (2023-2024)
Immokalee - Community Project
Newark Downtown Canal Project
Year Five (2024-2025)
Thesis Project - Addressing homeless in Denver, CO.
The Nest - On-Campus Student Housing Project
Verbal &






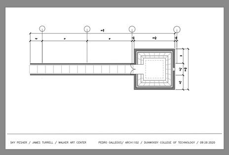
Sky Pesher (2005) by American artist James Turrell is a room-sized installation located within the Walker Art Center’s expanded garden. The project consists of a modest, enclosed chamber with a square aperture at the apex of its curved ceiling, framing the sky above. Influenced by perceptual psychology, Turrell uses both natural and artificial light—controlled through programmed sensors at sunrise and sunset—to alter the viewer’s perception of space. As the light shifts, the boundaries of the room appear to dissolve, creating the illusion of infinite depth and bringing attention to the relationship between architecture, light, and perception.
This project emphasizes experience over form, inviting visitors to pause, observe, and engage with light as an active architectural element. Turrell’s work demonstrates how minimal spatial interventions can profoundly influence human perception and emotional response




The Sky Pesher project served as my introduction to architectural design during my first semester at Dunwoody College of Technology. Through this project, I developed foundational skills with a professional focus, including the importance of hand drafting as a design tool. The project also provided hands-on experience with industry-standard software such as AutoCAD and Adobe Photoshop, strengthening my technical and visual communication abilities.

of my first semester at Dunwoody College of Technology explored the chitectural illustration of the Sky Pesher in Minneapolis, Minnesota. https //alliiance.com/finding-s te-sourced-design/





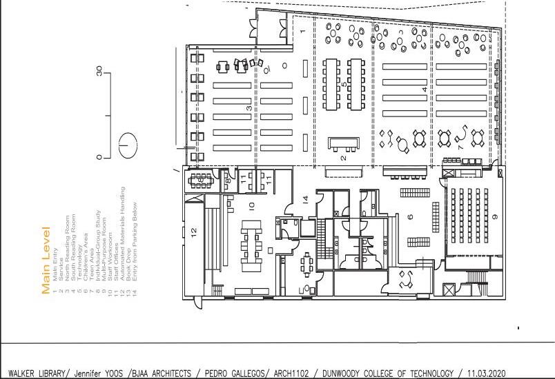
The Walker Art Center was the final Spring 2021 project of my first year at Dunwoody College of Technology. This project served as a continuation of the Sky Pesher project completed in Fall 2020, building upon the concepts and skills developed during the previous semester

This project introduced me to a range of foundational skills and software and marked the beginning of my architectural journey Through this work, I strengthened my hand-drafting abilities and gained my first experience using AutoCAD, SketchUp, and Photoshop It served as a critical step in developing both my technical and design skill set
Powderhorn was a mixed-use design project completed during my third year at Dunwoody College of Technology. The assignment required selecting a site from several options provided by the instructor, followed by comprehensive site research and design development. I selected the Powderhorn location at 2015–2031 38th Street E, Minneapolis, MN 55407, a site defined by its cultural diversity and strong community history. The design proposal emphasizes mixed-use programming, with commercial space at the ground level and residential units above The building accommodates 20 residential units, offering a range of one- and two-bedroom layouts The ground floor is activated by a small café and an art studio, intended to support local businesses and foster community engagement while contributing to the neighborhood’s existing character.










This project was completed during my third year at Dunwoody College of Technology. The studio was led by a professor with strong ties to Immokalee, Florida, who challenged students to approach the project from an outside perspective while designing a proposal that would meaningfully benefit the local community using a predetermined site.
Due to the project’s scale, the work was divided into two phases, each guided by three core principles: Empower, Expose, and Educate. These concepts informed the design approach and served as the foundation for decisions related to program, spatial organization, and community impact



The overall goal for this project is to EMPOWER, EXPOSE, AND EDUCATE the Unincorporated by lending hand to help start their journey in Immokalee, Florida


EMPOWER:
Provide dwellings that are not only affordable but inspire those who live here.
EDUCATE:
Provide settings to learn life skills and post secondary education.
EXPOSE:
Provide a space for members skills can be shown off.


3D Renders of
















This project was completed during my fourth year at Dunwoody College of Technology and focused on designing an intervention along the Newark Village Canal that would directly benefit the local community The goal was to leverage the canal as a civic and social asset while responding to the needs of Newark residents Research conducted during the project revealed that zoning within the village is highly flexible, with significant decision-making authority held by the community. The site is bordered by General Business and Planned Unit Development (PUD) zones, offering opportunities for a range of programmatic uses. Located within walking distance of nearby businesses and residential areas, the canal is supported by ample surrounding parking, reinforcing its potential as an accessible and community-oriented destination.

To establish the canal as a vibrant destination and draw attention to downtown Newark, several key interventions were identified These include increasing electric vehicle parking infrastructure, reimagining docks as multi-use spaces for people rather than solely for boats, and introducing seating along the canal to encourage gathering and social interaction. Additional priorities include creating safe, engaging spaces for children near the water, enhancing the canal edge with vegetation and landscaped areas, and providing flexible open spaces capable of hosting large community events.






The final design proposal for the Newark Canal Downtown reimagines the canal as a public, people-centered destination, expanding its use beyond boat access to serve the broader community. The project introduces a series of docks along both sides of the canal, supporting boating activity while also creating continuous pedestrian circulation along the water’s edge The southern portion of the site features floating docks designed for public use, including lounge areas with mesh hammock structures suspended over the water, offering spaces for rest and interaction with the canal. A designated children’s swimming area, complete with slides, is introduced adjacent to the existing park, enhancing recreational opportunities for families while maintaining safety. Significant upgrades were also made to the parking area and surrounding parkland, transforming the site into an elevated canal park with overlooks and integrated seating. New trails and walkways were added throughout the park to improve circulation and provide a cohesive experience, allowing visitors to fully engage with the canal and its surrounding landscape.






This project focuses on addressing homelessness in Denver, Colorado through an architectural approach centered on dignity, opportunity, and long-term stability. Two sites located within 500 feet of one another were identified as ideal for a coordinated intervention, allowing each to support a distinct yet complementary program. Together, these sites form a unified framework designed to provide individuals with a second chance at stability and success, integrating housing with supportive resources and opportunities. By distributing services across two closely connected programs, the project promotes accessibility, community reintegration, and a clear pathway toward independence


The goal of The Doorway project is to provide transitional housing for young adults experiencing homelessness, specifically individuals between the ages of 18 and 29, in Denver, Colorado. The project is designed to offer a stable and supportive environment where residents can rebuild their lives and work toward long-term independence. The Doorway operates as a program-based housing model, allowing residents to stay for one to three years a timeframe intended to provide meaningful stability while they develop the skills, resources, and support systems necessary for success The building integrates a range of on-site resources and is envisioned to collaborate with volunteers and local universities to provide additional services, educational opportunities, and mentorship for residents.

The goal of New Horizons is to provide an affordable, fully furnished housing option for individuals completing their stay at The Doorway, creating a clear and supportive next step toward independent living Located within close proximity to The Doorway, the project is intended to ease the transition between programs and maintain continuity of support. Residency at New Horizons includes ongoing reviews and program guidelines to ensure participants remain focused on personal growth, stability, and long-term success. Housing terms range from one to five years, allowing residents the time and flexibility needed to plan for the future. The ultimate goal of the project is to support residents as they work toward full independence and the ability to secure permanent housing on their own













