PORFOLIO MARIA PAZ ROBINO FEERREYRA

Page 1


/portfolio

01

PROCREAR

Tipologia Residencial NOV 2022

02

Tipologia Cultural NOV 2024

03 FOCO

Tipologia Microarquitectura JUN 2024

CENTRO CULTURAL

M.U.H

Tipologia Residencial. MAY 2022

Tipologia CoWorking. OCT 2024 04

PLANO COMPARTIDO

06

PARQUE UNIVERSITARIO

Tipologia Arq. Paisajistica. NOV 2023

07 M.I.C

Tipologia Cultural. NOV 2023

[ ]01 pro cre ar

Tipología : Residencial

Estado : Proyecto 2023. Ubicación : Córdoba.

El proyecto PH Mediterráneo busca densificar los bordes del río Suquía y atraer más personas a vivir cerca del centro, manteniendo la calidad espacial del entorno exterior. Nos ubicamos en Parque del Este, a orillas del río Suquía El proyecto comenzó con objetivos claros por cumplir, cubriendo 160 unidades habitacionales, 100 plazas de estacionamiento, un Factor de Ocupación Total de Suelo (FOT) de 3 y un Factor de Ocupación del Suelo (FOS) entre 50% y 75%

PLANTA BAJA

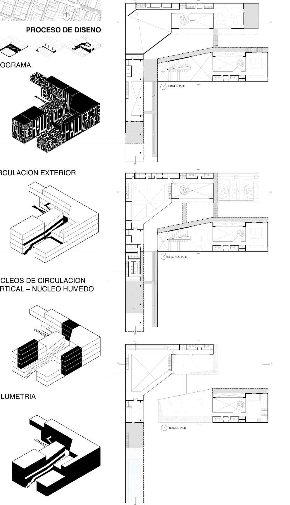
[ ]02 centro cultural

Tipología : Cultural

Estado : Proyecto 2024.

Ubicación : Córdoba.

Este proyecto se encuentra en el centro de Córdoba, a pocos pasos del Mercado Norte, y propone la revitalización de un pasaje urbano en desuso. La intervención transforma este espacio en un edificio de equipamiento público que se adapta a las características y proporciones del contexto urbano. Con esta renovación, el pasaje cobra vida como un punto de encuentro accesible y dinámico, integrándose visualmente con los edificios de la zona y añadiendo valor al tejido urbano del área

El diseño está organizado en diferentes volúmenes interconectados que generan un recorrido continuo a través del edificio, formando un paseo público que invita a la interacción y al disfrute del espacio. Estos volúmenes crean una secuencia de áreas abiertas y cubiertas, ofreciendo tanto zonas de descanso como espacios para exposiciones y ocio, respondiendo a la necesidad de equipamientos comunitarios y revitalizando un sector central de la ciudad

DESCRIPTIVE MEMORY

The in interconnected that continuous through forming promenade interaction and enjoyment These sequence covered both exhibition spaces, the need for community revitalizing sector of the city.

PRE-EXISTINGEQUIPMENTINTHEAREA

SCALE

ACTUAL ESTRUCTURE

20 Centro cultural.

fo co

Tipología : Micro-arquitectura

Estado : Proyecto 2024.

Ubicación : Quebrada del Condorito, Córdoba

¡Bienvenido a Foco! Una microarquitectura ubicada en el corazón del Parque Nacional Quebrada Condorito, diseñada especialmente para fotógrafos amantes de la naturaleza. Foco es un espacio dinámico y en constante transformación, adaptado a las necesidades de los fotógrafos Es un refugio que también invita a la contemplación de la naturaleza desde una perspectiva privilegiada.

m.u.h _

Tipología : Residencial

Estado : Proyecto 2022

Ubicación : Córdoba

Es una pequeña intervención, donde el desafío consiste en proyectar una unidad residencial para una o dos personas sobre una preexistencia Sin embargo, se deben considerar múltiples relaciones con su entorno, lograr la máxima habitabilidad en un área mínima y desarrollar una alta definición técnica y material.

Mueble Urbano Habitable.
PROPUESTA GENERAL.

PROPUESTA INDIVIDUAL.

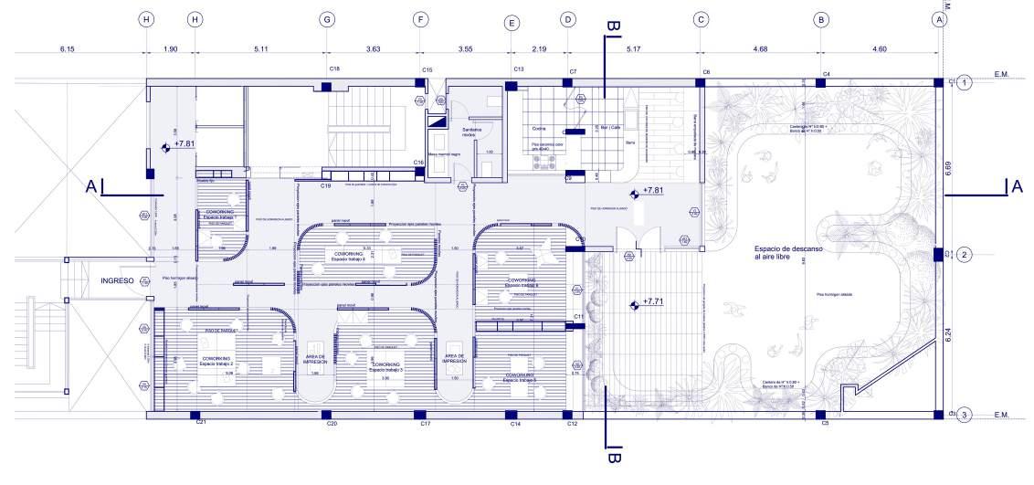
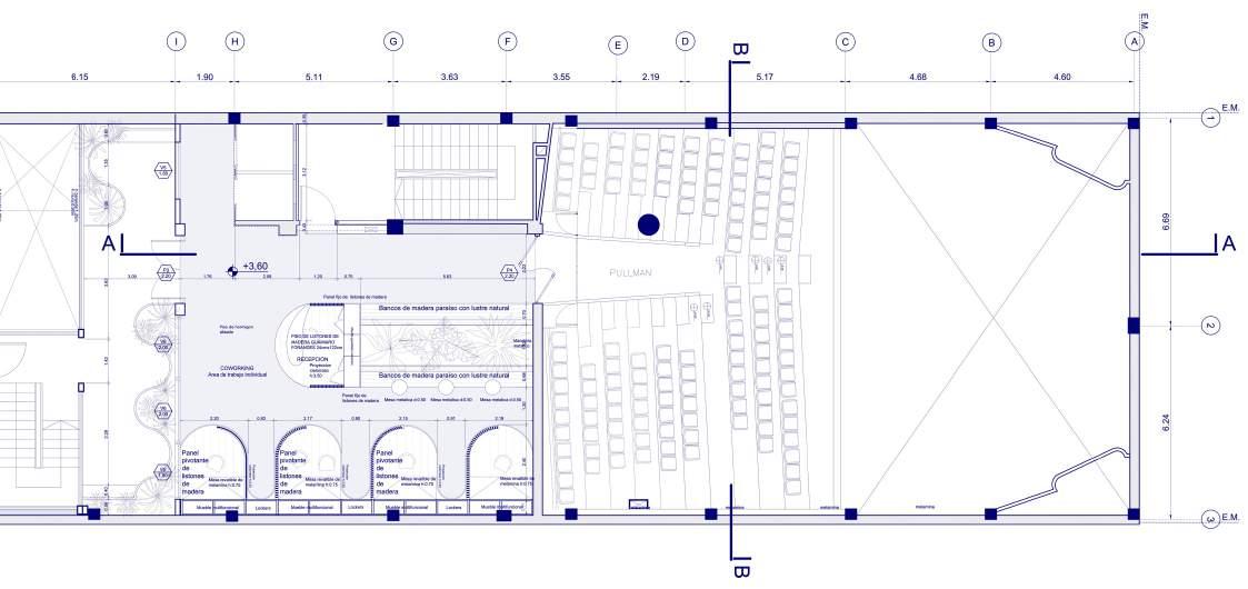
plano compartido_

Tipología : CoWorking.

Estado : Proyecto 2024.

Ubicación : FAUD sede centro, Córdoba

Plano compartido es una intervención realizada en la Facultad de Arquitectura sede Centro. Se busca generar una comunidad vibrante diseñada para aquellos que recién comienzan en el mundo laboral Aquí, cada encuentro es una oportunidad para compartir ideas, colaborar en proyectos y forjar relaciones que impulsan tu carrera.

Este es un lugar donde la arquitectura se vive en cada detalle, pensado para inspirar y facilitar el trabajo en equipo

ORGANIZACION ESPACIAL PLANTA PRIMER PISO

ISLASDETRABAJO INDIVIDUALES

AREA DE TRABAJO INDIVIDUAL CON PANELES PARA REGULAR EL GRADO DE PRIVACIDAD DE CADA ISLA CUENTA CON AREA DE LOCKERS Y UN MUEBLE MODULARMULTIFUNCIONAL

ISLAVERDE

MACETERO QUE ACTUA COMO DIVISOR ENTRE EL FLUJO DE PERSONAS QUE SE D JIREN HACIA EL AUDITORIO Y EL AREA DE TRABAJO INDIVIDUAL CUENTA CON BANCOS DE MADERA DE UN LADO DESTINADOS A LA ESPERA Y DEL LADO CONTRARIO, SE LE INCORPORAN MESAS, GENERANDOLUGARESDETRABAJO

RECEPCION

AREA DE NFORME Y ORGANIZACION SOBRE EL ESPACIO COWORKING / AUDITORIO

PATIODEINGRESO

HALL AL A RE DE LIBRE QUE ACTUA COMO RECIBIDOR CUENTA CON CANTEROS CON VEGETACION Y BANCOS QUE TAMBIEN PERMITE UTILIZARLO COMOESPACIODERECREACION

TERRAZA EXTERIOR QUE PERMITE GRANDES ESPACIOS DE REUNION Y OCIO, EN RELACION CON VEGETACION COMO BORDE Y DESMATERIALIZACION DE LAS ENVOLVENTES CONSTRUIDAS

ESPACIOBAR

BAR-CAFE, CON CONECCIONES VISUALES AL EXTERIOR, Y RAPIDO ACCESO DESDE AMBOS SECTORES DEL COWORRKING.

SE USAN TEXTURAS Y MATERIALES CALIDOS, CON GRAN PRESENCIA DE PLANTAS ESPACIOTERRAZA

ORGANIZACIONESPACIALPLANTASEGUNDOPISO

ESPACIOCOWORKING

PLANOS MOVILES CAPACES DE CONFIGURAR EL ESPACIO DE TRABAJO ACORDE A LAS NECESIDADES DEL USUARIO, EN BASE A MEDIDAS, EQUIPAMIENTO, PRIVACIDAD.

PLANTA SEGUNDO PISO
CORTE B - B

[ ]06 parque universitario _

Tipología : Arquitectura Paisajista

Estado : Proyecto 2023

Ubicación : Ciudad Universitaria, Córdoba

El proyecto tiene como objetivo renovar el vínculo entre Ciudad Universitaria y los sectores que la rodean. La propuesta aborda, a nivel macro, la creación de tres accesos a Ciudad Universitaria como parques que faciliten la conexión peatonal, tomando como referencia las vías internas más transitadas.

Parque Universitario
CORTE
CORTE C-C
CORTE FUGADO

m.i.c _

Tipología :Institucional

Estado : Proyecto 2023.

Ubicación : Alta Gracia, Córdoba.

El proyecto se encuentra en Alta Gracia, en medio de una zona urbana que está en constante crecimiento y busca expandirse más allá de sus límites actuales.

En este contexto, surge el MIC, un proyecto que busca promover la conexión y la integración de las diversas dinámicas sociales, influenciadas por el desarrollo del espacio público y peatonal.

CONTACTO

Córdoba, Argentina

Whatsapp: +54 9 351 333 0978

pazrobinoferreyra@gmail com

Turn static files into dynamic content formats.

Create a flipbook
Issuu converts static files into: digital portfolios, online yearbooks, online catalogs, digital photo albums and more. Sign up and create your flipbook.
PORFOLIO MARIA PAZ ROBINO FEERREYRA by paz robino - Issuu