PROYECTO AMPLIACIÓN PLANTA ESTAMPADO TEXTIL

Page 1


PROYECTO AMPLIACIÓN TALLER ESTAMPADO TEXTIL

INMUEBLES SANTIAGO CONCHA 1324-1330 - COMUNA DE SANTIAGO

ZONA TÍPICA ´BARRIO MATTA SUR´

ZONA DE CONSERVACIÓN HISTÓRICA E8 SAN BORJA ARRIARÁN +

ESTAMPADOS LIDI

MEMORIA DEL PROYECTO ESPECIFICACIONES TÉCNICAS

REGISTRO FOTOGRÁFICO DEL ENTORNO REGISTRO FOTOGRÁFICO SITUACIÓN ACTUAL PROPIEDAD

arquitectura

TÍPICA ´BARRIO MATTA SUR´

FICHA TÉCNICA

Dirección: Santiago Concha N° 13241330, comuna de Santiago

Rol de avalúo: 3073-33 / 3073-34

Fecha de Construcción Santiago Concha N° 1324: 1936 (inf. según plano de agua potable)

Fecha de Construcción Santiago Concha N° 1330: 1933 (inf. según plano de agua potable)

Arquitecto o Constructor: sin inf.

Propietario original

Santiago Concha N° 1324: 1936-fecha desconocida: Máximo Avendaño fecha desconocida-1994: Isidoro Avayú Sabah 1994-1999: Isaac y Jaime Avayu Eidelstein 1999 hasta la fecha: Sociedad Comercial Lidi Limitada - Jorge Shehadeh Nazal George Shehadeh Abuid

Propietario original

Santiago Concha N° 1330: 1933-fecha desconocida:Manuel María Fernández (plano Aguas Andinas) fecha desconocida:Ramón Rodríguez (escritura)

fecha desconocida-1972 Osvaldo Raimundo Santis Venegas. (escritura)

1972-2005: Mafalda Donatila Von Muhlenbrock Lira (viuda de Santis Venega) (escritura)

2005-2020: Fernando Osvaldo Orlando Santis Von Muhlenbrock, Oriana María Francisca Santis Von Muhlenbrock. (escritura)

2020:Fernando Osvaldo Orlando Santis Von Muhlenbrock, Cristián Marcelo Acosta Santis, Claudia Andrea Acosta Santis. (escritura)

2020 a la fecha: Sociedad Comercial Lidi Limitada - George Shehadeh Abuid (escritura)

USO DE LAS PROPIEDADES

Santiago Concha N° 1324: entre 1933 y 1990: residencial. entre 1991 a 2021: taller de estampado textil. Santiago Concha N° 1330: entre 1933 y 2020: residencial. a partir de 2021: taller estampado textil.

VALOR ARQUITECTÓNICO

Representatividad, estos inmuebles son representativos del tipo de vivienda de un piso construida entre medianeros con cimiento de albañilería de ladrillos de arcilla cocida. Sus fachadas en muro de albañilería de ladrillos y los muros interiores de la propiedad, algunos en tabiquería de estructura de madera rellena con adobillo y otros en albañilería de ladrillos cocidos.

Además, a nivel constructivo la materialidad de tabiquería de adobe las hace pertenecer al conjunto de viviendas más antiguas del sector. Estas viviendas de fecha 1933 y 1936 fueron construidas con posterioridad a los años, 1913 al 1924, en que fue construido el Pabellón Valentín Errázuriz del Hospital San Borja Arriarán.

Morfología, volumen compacto de un piso, con un ancho de 10 m (norte - sur) y una longitud de fondo de sitio de 40 m aprox ( dirección orienteponiente). Con una altura total de la edificación de 5 m.

19S / Predio 009

VALOR HISTÓRICO - SOCIAL

Reconocimiento de la comunidad La valoración de estos inmuebles, por parte de la comunidad, se desprende del hecho que ella misma impulsó su protección legal a través de la Ley de Monumentos Nacionales, el año 2016 (Decreto N° 210), en la categoría de ´Zona Típica´.

Reconocimiento especializado Si bien, no se ha encontrado documentación de carácter académica o histórica que reconozca en esta propiedad su valor patrimonial, este estudio puede ser una oportunidad para ser incorporado en un documento especializado en arquitectura y construcción de viviendas de la corriente Bauhaus, en Santiago de Chile.

Protección legal

Forma parte del conjunto de edificaciones protegidas por la Ley de Monumentos Nacionales 17.288 en la categoría de Zona Típica ´BARRIO MATTA SUR´. Además de ubicarse en la zona E8 del Plan Regulador de Santiago, que define esta zona en la Categoría de ´Zona de Conservación Histórica´.

Estado de conservación N° 1324: bueno N° 1330: regular - malo

Estado de conservación del entorno Regular

VALOR URBANO IMAGEN

La volumetría y composición de ambas fachadas destaca por la austeridad y simpleza del tratamiento de sus elementos ornamentales como funcionales. El mayor valor de estas dos fachadas es que se integran en forma armónica a la fachada continua de la cuadra, aportando a la estructura del paisaje urbano un conjunto arquitectónico consolidado.

En ambas fachadas se aprecia un portón de acceso vehicular, que da cuenta de la incorporación del vehículo a la vida familiar de la clase media de los años 30.

ENTORNO PATRIMONIAL

El inmueble se encuentra a 70 metros del Monumento Histórico ´Pabellón Valentín Errázuriz, otros pabellones y otras construcciones del Hospital San Borja Arriarán´ D-246 / 01.09.2016. Además, se encuentra inserto en la Zona Típica ´Barrio Matta Sur´y en la Zona de Conservación Histórica E8 - ´San Borja Arriarán´ categoría otorgada por parte del Plan Regulador de la Comuna de Santiago.

SANTIAGO CONCHA

Zona 3
Barrio Hospital San Borja
Subzona 03A Hospital
Manzana 004A

DESARROLLO DE PROYECTO

DE

1. SITUACIÓN ACTUAL DE LAS DOS EDIFICACIONES

Las edificaciones motivo del desarrollo de este proyecto datan del año 1936 y 1933 según consta en plano de Aguas Andinas mostrado en pág. 18-19 y 20-21 respectivamente. Ambos inmuebles fueron construidos para otorgar el uso de vivienda unifamiliar. El año 2009 la familia Shehadeh de orígen palestino adquirió la propiedad correspondiente al N° 1324 para instalar allí su taller de estampado textil. No se realizaron cambios significativos a la arquitectura original del inmueble dado que éste cuenta con un área libre hacia el fondo del sitio dónde se construyó un galpón de estructura metálica para el funcionamiento del taller. La casa existente con su arquitectura original albergó, desde ese entonces hasta la actualidad, en sus recintos las oficinas adiministrativas y algunos sectores de bodegaje. Con fecha desconocida y fruto del crecimiento de las actividades del taller de impresión textil, se construyó un segundo piso sobre la construcción original y parte del galpón de estructura metálica.

El año 2019, el señor Shehadeh adquiere la propiedad vecina con la finalidad de ampliar nuevamente las dependencias del taller. Dicha propiedad tiene las mismas características de ocupación del predio, la vivienda ocupa el 40% del total del largo del sitio, dejando un área libre disponible para construir allí una estructura metálica de tipo galpón con planta libre para dar cabida a la extensión del taller existente (en el ex 1324) hacia esa zona.

Estos dos lotes han sido recientemente fusionados legalmente en un solo lote predial (se adjunta Certificado de Fusión - julio 2021-) , por lo tanto desde ahora será mencionado como una unidad arquitectónica.

2. PROPUESTA ARQUITECTÓNICA

2.1 Introducción

Conceptualmente la propuesta busca la revitalización del inmueble con lel mínimo grado de intervención y obtener el máximo grado de integración de ambas edificaciones.

2.2 La Propuesta

Ambas fachadas tienen una altura similar, aunque en la fachada del número 1324, en su costado norte sufrió una modificación que significó la construcción de un muro ciego de albañilería elevando el muro de la fachada. En el resto de la fachada se observa un buen estado de conservación que no ha sufrido modificaciones.

Las intervenciones de la fachada abordarán:

a. Modificación del muro ciego de albañilería en segundo piso: Se propone abrir rasgos a todo lo ancho de este muro e instalar ventanas de cristal transparente, para que el ´volumen agregado´ dé cuenta, a través de la transparencia, de un elemento introducido liviano y no perteneciente a la arquitectura original del inmueble. Así, generar un contraste con la opacidad de la fachada original.

b. Ampliación del rasgo de entrada al estacionamiento de la fachada del ex N° 1330. Por una necesidad exclusivamente funcional, se propone la ampliación de este rasgo para dar facilidades para el ingreso de un vehículo de carga y descarga del taller de estampado textil.

c. Eliminación del alero existente sobre la puerta de acceso al ex N° 1330, y construcción de un nuevo alero que cubra el acceso al ex N° 1330 y el acceso vehicular al estacionamiento contiguo.

d. Propuesta cromática para la fachada: La estrategia utilizada para la unificación de las dos fachadas es a través del color. Se estudió una propuesta cromática de 3 colores: para los muros, SW 6071 popular gray y SW 6075 garret gray; para los elementos metálicos , puertas y ventanas, SW 6236 grays harbor.

Intervenciones al interior:

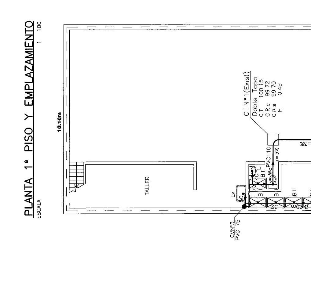
a. Circulaciones verticales: las escaleras actuales (2) no cumplen con lo indicado en la Ordenanza General de Urbanismo y Construcción, por ello el proyecto considera su demolición y se proyectan 3 escaleras de estructura metálica detalladas en plano de escaleras.

b. Demolición de losa fuera de norma: actualmente el casino del personal se encuentra en un recinto que deja una altura en la circulación que es vía de evacuación insuficiente. Se proyecta la demolición de dicha losa y la construcción de una losa al mismo nivel del piso 2, permitiendo así una altura olgada en la vía de evacuación que pasa debajo de este recinto que en el actual proyecto parará a formar parte del área de impresión textil del piso 2.

c. Traslado de Casino del Personal: actualmente el casino de personal se encuentra en un recinto

sin ventilación ni luz natural. Este recinto será trasladado a una sala en la ex vivienda del ex N° 1330. Dicha sala cuenta con luz y ventilación natural además de tener vista hacia la calle. Con esto, el recinto conservará su arquitectura original al igual que el zaguán y la circulación 1 de dicha vivienda.

d. Demolición de muro medianero entre edificaciones: El proyecto considera la conexión funcional y espacial entre las dos edificaciones como parte escencial del funcionamiento del taller de impresión textil. Para ello se proyecta la demolición del muro medianero en el tramo comprendido entre los ejes 11 y 20-a graficado en los planos de Situación Propuesta Piso 1.

e. Demoliciones Tabiquería interior: el tamaño de la maquinaria de impresión textil hace necesaria la demolición de parte de la tabiquería inteiror de la ex vivienda en el ex N° 1330. Sin embargo, el proyecto considera relevante la consolidación de la pagoda al centro del espacio de dicha vivienda, como elemento protagónico de la arquitectura del inmueble intervenido.

f. Construcción de Galpón estructura metálica: Para dar cabida al recinto que formará parte de la ampliación del galpón existente, se proyecta un galpón de estructura metálica de planta libre con pilarización en el perímetro. Tal como se muestra en la planimetría, el galpón se inscribe en la altura actual de la vivienda del ex 1330.

Proyecto

Calle Santiago Concha

MONUMENTO HISTÓRICO

´PABELLÓN VALENTÍN ERRÁZURIZ, OTROS PABELLONES Y OTRAS

CONSTRUCCIONES DEL HOSPITAL SAN BORJA ARRIARÁN´ D-246/01.09.2016

MONUMENTO HISTÓRICO

´PABELLÓN VALENTÍN ERRÁZURIZ, OTROS PABELLONES Y OTRAS CONSTRUCCIONES DEL HOSPITAL SAN BORJA ARRIARÁN´ DS 521 DEL 30.12.2009 calle Amazonas

MONUMENTO HISTÓRICO

ASILO DE ANCIANOS DE LA CONGREGACIÓN DE LAS HERMANITAS DE LOS POBRES DS 151 DEL 19.03.2012 calle Carmen 1243

DOCUMENTACIÓN HISTÓRICA

Planimetría Aguas Andinas

Santiago Concha N° 1324

Proyecto Ampliación Inmueble Calle Santiago Concha 1330 - ZONA TÍPICA ´BARRIO MATTA SUR´
Proyecto Ampliación Inmueble Calle Santiago Concha 1330 - ZONA TÍPICA ´BARRIO MATTA SUR´

Planimetría Aguas Andinas

Santiago Concha N° 1330

deslinde norte antes de la FUSIÓN DE LOTES 2021

deslinde sur de la edificación

Proyecto Ampliación Inmueble Calle
Proyecto Ampliación Inmueble Calle Santiago Concha 1330 - ZONA TÍPICA ´BARRIO MATTA SUR´
Proyecto Ampliación Inmueble Calle Santiago Concha 1330 - ZONA TÍPICA ´BARRIO MATTA SUR´
Proyecto Ampliación Inmueble Calle Santiago Concha 1330 - ZONA TÍPICA ´BARRIO MATTA SUR´
Proyecto Ampliación Inmueble Calle Santiago Concha 1330 - ZONA TÍPICA ´BARRIO MATTA SUR´
Proyecto Ampliación Inmueble Calle Santiago Concha 1330 - ZONA TÍPICA ´BARRIO MATTA SUR´
Proyecto Ampliación Inmueble Calle Santiago Concha 1330 - ZONA TÍPICA ´BARRIO MATTA SUR´

Arquitecta

Arquitecta colaboradora

Proyecto Ampliación Inmueble Calle Santiago Concha 1330 - ZONA TÍPICA ´BARRIO MATTA SUR´
Proyecto Ampliación Inmueble Calle Santiago Concha 1330 - ZONA TÍPICA ´BARRIO MATTA SUR´
Patricia Ojeda del Rio
Daniela Basauri Zincke

Turn static files into dynamic content formats.

Create a flipbook
Issuu converts static files into: digital portfolios, online yearbooks, online catalogs, digital photo albums and more. Sign up and create your flipbook.