Parade of Homes Real Estate Magazine, June 2024

Page 1

REAL ESTATE VOL 38, ISSUE 6 ONLINE & PRINT MAGAZINE JUNE 2024 FREE ISSUE Home Services Directory Page 36 Premier Realtors Listing Page 43

CROWNE VIEW ESTATES

The developer is slashing prices for a Quick Sale. Come on down to Indian Point! Home of Table Rock Lake Marina, some of the area’s best-floating restaurants, nightlife, and Silver Dollar City! Vacation Rental Approved 5 Bedroom 4 Bath New Construction Lodges boasts three levels for you, your friends, family, and guests to spread out! . The Lodges at Table Rock Lake have fire pits, playgrounds, pools, water slide, walking trails, an exercise room, and a new state of the art indoor pool for you and your guest to use. Not only would this be a great second home, but this beauty is also an approved Vacation Rental to add to your portfolio.

LIGHTFOOT&YOUNGBLOOD LIVE | VACATION | INVEST 2023 & 2024 WINNER! Best Real Estate Company MLS# 60256673 www.BransonHomeFinder.com 417-213-5516
HUGE PRICE REDUCTION $599,000
June 2024 2 Parade of Homes
June 2024 3 Parade of Homes ONLINE & PRINT REAL ESTATE MAGAZINE www.parade-homes.com Publisher .................. Real Estate Publishing LLC Graphic Designer ........................... Gabriel Jones Layout/Pre-Press ............................. Brian O’Neill Distribution ....................................... Rick Rueter 417-294-8013 Parade of Homes Online & Print Real Estate Magazine 8953 State Hwy 76, Branson West, MO 65737 info@parade-homes.com www.parade-homes.com Neither Publisher nor listing Broker are responsible for accuracy, misrepresentation or typographical errors, or page placement herein contained. No part of this magazine should be reproduced or republished without written consent of the Real Estate Publishing LLC. LISTINGS & ADVERTISERS SPECIAL SECTIONS Home Services Directory Page 36 Premier Realtors Listing Page 43 JOIN US ONLINE! • 417 REMODELING .............................................................. 36 BERKSTRESSER FAMILY REALTY ................................... 14-15 • BETTER BUILT CONSTRUCTION & MAINTENANCE ............... 39 • BRANSON REGIONAL ARTS COUNCIL ..................................19 • BRANSON BLIND & WINDOW COVERINGS ......................... 38 • BRANSON REGIONAL ARTS ................................................ 20 • BRAZEALE LAW FIRM (LAW ARTICLE) .......................... 28, 48 • DYNAMIC EVC ................................................................... 40 • EAGLE ROCK CONSTRUCTION LLC ..................................... 39 • ELITE GENERAL CONTRACTING & RESTORATION LLC .......... 49 • FOGGY RIVER REALTY LLC .............................................. 8-10 • HIGH TECH SERVICE ............................................................41 • JERRY JACKSON REALTY - MARCIE ESTES ............................ 11 • KELLER WILLIAMS - CAROLYN BOSS....................................19 LIGHTFOOT & YOUNGBLOOD .................................. 2, 30-33 OZARK COUNTRY REALTY .................................................16 • PARADE OF HOMES - DISTRIBUTION ............................ 34-35 • PARADE OF HOMES - HOME SERVICES DIRECTORY ........ 36-42 • R & L ENVIROCARE ........................................................... 39 • RDU EXCAVATING .............................................................. 42 • REECENICHOLS - ROB ELLERMAN TEAM ..............................18 • REECENICHOLS - RON NEWMAN .................................. 21, 27 • RODMAN REALTY & INVESTMENTS .................................... 20 • RUSTIC TIMBERS ................................................................ 17 • SHO-ME CLEAN ................................................................ 37 • SHO-ME FLOORING ........................................... BACK COVER • STEP ABOVE REALTY ...................................................... 12-13 • STORAGE VAULT LLC .......................................................... 26 • TABLE ROCK SUNSET PROPERTIES ..................................... 29 • TIMBER VALLEY RUSTIC FURNITURE ............................. 24-25
VILLAGE AT INDIAN POINT .............................. COVER, 22-23 WHITETAIL PROPERTIES ............................................4-7, 27

UTECHT LAND TEAM

MISSOURI’S TOP LAND SPECIALIST SINCE 2014

Some of our transactions this year have included the Wallace Ranch, Dr.Jeff Gower’s farm on East Sunshine

Dear Friends,

He was honored as the top agent in the nation and state of Missouri at the 2023 national sales meeting, compliments of his leadership of our amazing team. Brian also achieved his ALC (Accredited Land Consultant) in 2023, adding to his arsenal for offering our clients the best possible representation with buying and selling land. Brian and his wife, Jill, have purchased a new farm on Table Rock Lake where they are building a home. They greatly enjoy family time with their son, Brock, and daughter, Brianna, at the lake and their farm. They also continue to have fun traveling and watching their daughter compete in college track and field.

OUR TERRITORY

BRIAN UTECHT: Brian continues to lead his team with passion and innovation. He was honored as the top agent in the nation and state of Missouri at the 2023 national sales meeting, compliments of his leadership of our amazing team. Brian also achieved his ALC (Accredited Land Consultant) in 2023, adding to his arsenal for offering our clients the best possible representation with buying and selling land. Brian and his wife, Jill, have purchased a new farm on Table Rock Lake where they ar building a home. They greatly enjoy family time with their son, Brock, and daughter, Brianna, at the lake and their farm. They also continue to have fun traveling and watching their daughter compete in college track and field.

We hope this letter finds you well. As we reflect on 2023 and look forward to 2024, we want to let you know that we are thinking of you and thankful for what God is doing in all our lives. Our team has had a fulfilling year with many exciting updates we would like to share with you. Here is a snapshot of what’s been happening with the Utecht Land Team.

MIKE HARRIS: Mike has been integral with helping Brian get the auction side of the business up and running this past year. We have had several successful land auctions in 2023 coordinated by Mike and featured Ranch & Farm Auctions, a division of Whitetail Properties. Mike and his wife, Beth, are enjoying time with their family, especially their beautiful new granddaughter. Mike continues to work with his Hereford cows and enjoys watching the herd grow. He just wrapped up his 11th year as a volunteer outfitter for Cross Trail Outfitters, taking kids on hunting and fishing trips throughout the year.

MIKE HARRIS: Mike has been integral with helping Brian get the auction side of the business up and running this past year. We have had several successful land auctions in 2023 coordinated by Mike and featured Ranch & Farm Auctions, a division of Whitetail Properties. Mike and his wife, Beth, are enjoying time with their family, especially their beautiful new granddaughter. Mike continues to work with his Hereford cows and enjoys watching the herd grow. He just wrapped up his 11th year as a volunteer outfitter for Cross Trail Outfitters, taking kids on hunting and fishing trips throughout the year.

LAND TEAM SPECIALIST SINCE 2014

BROCK UTECHT: With an unwavering enthusiasm that resonates throughout our team, Brock wraps up the year with a remarkable achievement—45 land sales that reflect his dedication and passion. With strong roots in Marshfield, MO, where he acquired his first home, Brock thoughtfully positions himself closer to both family and our Whitetail Properties office. Beyond his professional endeavors, Brock finds joy working on our farms and sharing moments at Mizzou football games with his family—a tradition that holds special significance since his graduation in 2022 with a Bachelor’s degree in business. Committed to ongoing growth, he is currently pursuing an MBA at Missouri State, with anticipated completion this August.

Some of our transactions this year have included the Wallace Ranch, Dr.Jeff Gower’s farm on East Sunshine

BROCK UTECHT: With an unwavering enthusiasm that resonates throughout our team, Brock wraps up the year with a remarkable achievement—45 land sales that reflect his dedication and passion. With strong roots in Marshfield, MO, where he acquired his first home, Brock thoughtfully positions himself closer to both family and our Whitetail Properties office. Beyond his professional endeavors, Brock finds joy working on our farms and sharing moments at Mizzou football games with his family - a tradition that holds special significance since his graduation in 2022 with a Bachelor ’s degree in business. Committed to ongoing growth, he is currently pursuing an MBA at Missouri State, with anticipated completion this August.

BRIAN UTECHT: Brian continues to lead his team with passion and innovation. He was honored as the top agent in the nation and state of Missouri at the 2023 national sales meeting, compliments of his leadership of our amazing team. Brian also achieved his ALC (Accredited Land Consultant) in 2023, adding to his arsenal for offering our clients the best possible representation with buying and selling land. Brian and his wife, Jill, have purchased a new farm on Table Rock Lake where they are building a home. They greatly enjoy family time with their son, Brock, and daughter, Brianna, at the lake and their farm. They also continue to have fun traveling and watching their daughter compete in college track and field.

TERRITORY

240 TRANSACTIONS & 35,000 ACRES SOLD IN LAST 3 YEARS OVER

$188 MILLION

MIKE HARRIS: Mike has been integral with helping Brian get the auction side of the business up and running this past year. We have had several successful land auctions in 2023 coordinated by Mike and featured Ranch & Farm Auctions, a division of Whitetail Properties. Mike and his wife, Beth, are enjoying time with their family, especially their beautiful new granddaughter. Mike continues to work with his Hereford cows and enjoys watching the herd grow. He just wrapped up his 11th year as a volunteer outfitter for Cross Trail Outfitters, taking kids on hunting and fishing trips throughout the year.

UTECHT LAND TEAM

JILL UTECHT: After retiring from 25 years as an occupational therapist, Jill has been a welcomed member of our team behind the scenes, helping with advertising and office work. She is greatly enjoying her new position. She also enjoys spending time with her family and riding her horses. Friends, this letter finds you well. As we reflect and look forward to 2024, we want to let know that we are thinking of you and thankful God is doing in all our lives. Our team has fulfilling year with many exciting updates we like to share with you. Here is a snapshot of been happening with the Utecht Land Team.

DARIN JENKINS: Darin has been excited to take on the role of representing the sales of luxury, country and waterfront homes. He and his wife, Alicia, enjoy spending time in the great outdoors with their two wonderful children.

DARIN JENKINS: Darin has been excited to take on the role of representing the sales of luxury, country and waterfront homes. He and his wife, Alicia, enjoy spending time in the great outdoors with their two wonderful children.

GORDON CLIFT: Gordon continues to bring our team success with his knowledge and expertise of habitat management, exceptional hunting properties across the state of Missouri and experience as a general contractor for new construction. He has enjoyed another successful deer season and is already thinking about putting in spring food plots for clients.

GORDON CLIFT: Gordon continues to bring our team success with his knowledge and expertise of habitat management, exceptional hunting properties across Missouri and experience as a general contractor for new construction. He has enjoyed another successful deer season and is already thinking about putting in spring food plots for clients.

JILL UTECHT: After retiring from 25 years as an occupational therapist, Jill has been a welcomed member of our team behind the scenes, helping with advertising and office work. She is greatly enjoying her new position. She also enjoys spending time with her family and riding her horses.

BROCK UTECHT: With an unwavering enthusiasm that resonates throughout our team, Brock wraps up the year with a remarkable achievement—45 land sales that reflect his dedication and passion. With strong roots in Marshfield, MO, where he acquired his first home, Brock thoughtfully positions himself closer to both family and our Whitetail Properties office. Beyond his professional endeavors, Brock finds joy working on our farms and sharing moments at Mizzou football games with his family—a tradition that holds special significance since his graduation in 2022 with a Bachelor’s degree in business. Committed to ongoing growth, he is currently pursuing an MBA at Missouri State, with anticipated completion this August.

We have had another record year and anticipate 2024 to be an abundantly blessed year as we continue to work hard for

our clients. We wish you a Happy and Healthy 2024

$188 MILLION OVER
HICKORY POLK GREENE CHRISTIAN BARRY STONE TANEY CAMDEN DALLAS WEBSTER LACLEDE PULASKI WRIGHT DOUGLAS OZARK TEXAS HOWELL SHANNON OREGON
OUR
HICKORY POLK GREENE CHRISTIAN BARRY STONE TANEY CAMDEN DALLAS WEBSTER LACLEDE PULASKI WRIGHT DOUGLAS OZARK TEXAS HOWELL SHANNON OREGON
JENKINS FAMILY GORDON CLIFT
MISSOURI’S TOP LAND SPECIALIST SINCE 2014 OUR
HICKORY POLK GREENE CHRISTIAN BARRY STONE TANEY CAMDEN DALLAS WEBSTER LACLEDE PULASKI WRIGHT DOUGLAS OZARK TEXAS HOWELL SHANNON OREGON of our transactions this year have included the Wallace Ranch, Dr.Jeff Gower’s farm on WHITETAIL PROPERTIES.COM June 2024 4 Parade of Homes
TERRITORY

MISSOURI’S TOP LAND SPECIALIST FOR THE LAST 10 YEARS

INCREDIBLE OPPORTUNITY TO OWN A LARGE RECREATIONAL TRACT IN THE HEART OF THE OZARKS. Incredible all timber tract with outstanding hunting opportunities. Furnished 2 bed, 1 bath home with natural springs. Extensive trail system to access the property. Massive ridges loaded with game trails. Excellent deer and turkey populations and a well known hot spot area for black bear.

PRICE REDUCED! • WITH 2 MILES OF PRIVATE ACCESS TO THE OSAGE FORK of the Gasconade River, Riverbend Farm is one of the most enchanting and productive farms in Webster County. Just under 20 miles from Marshfield, MO. Countless recreational activities while reaping the rewards of the income-producing ground. Barndominium, a modern rustic cabin, multiple large barns, Grain bin w/dryer, working corrals, fencing, fuel tanks, other outbuildings. Set against the backdrop of the beautiful rolling Ozark Mountains.

WELCOME TO THE LODGES ON TABLE ROCK LAKE, A GATED COMMUNITY ON THE BEAUTIFUL JAMES RIVER arm awaiting your future home on one or multiple of the incredible lots that are being offered on the market for the first time. This is your invitation to own a prestigious building site in an exclusive lakeside retreat that is in an ideal area for lake recreation.

EXCELLENT OPPORTUNITY TO BUILD A PRIVATE ESTATE ON HIGHLY DESIRABLE LAND NEAR TABLE ROCK LAKE. Located just outside of Lampe, the outdoor and lake lifestyles are alive and well. Gently rolling terrain allows for multiple building sites for your dream home, with choices of open views or quiet seclusion tucked back in the woods.

SITUATED RIGHT OUTSIDE OF OZARK CITY LIMITS you will find this secluded and beautiful piece of the Ozark hills that has so much to offer the next owner. This property has great views from atop the wooded ridge of the land where your dream home or cabin can be built.

HUNTING PROPERTY LOCATED IN A HIGH DEER DENSITY AREA NEAR TRUMAN LAKE. Easy rolling terrain and 3 food plots have a steady flow of wildlife utilizing the property. The seller has documented very well the quality whitetail deer, turkeys, black bears and small game galore that call this place home. A new cabin was brought in for the 2021 hunting season. The cabin measures 16 x 42 with the front porch. It has 2 loft areas, an open kitchen and living area, and a plumbed-in bathroom. TOP-NOTCH HABITAT HUNTING FARM IN SO MO Spring Creek Ranch is ready, set, hunt, and fish! The hard work is already done on this very nice property and it has all the elements to grow and hold the wildlife you dream about. Food, water, and shelter boxes are all checked. This Ozark rolling tract has an excellent trail system, food plots, nice timber, pockets of brushy thickets, pinch points, draws and the list goes on.

LISTED HICKORY CO.
AC± $235,000
44
LISTED STONE CO. 5.05 AC± $140,000 LISTED WEBSTER CO. 363 AC± $2,699,000 LISTED DOUGLAS CO. 540 AC± $1,500,000 LISTED STONE CO. 155 AC± $2,900,000 LISTED CHRISTIAN CO. 25 AC± $199,000 LISTED OZARK CO. 72 AC± $190,000
Whitetail Properties Real Estate, LLC DBA Whitetail Properties, DBA Whitetail Properties Real Estate. In the States of Nebraska & North Dakota DBA Whitetail Trophy Properties Real Estate LLC. In Ohio, DBA Whitetail Properties Ranch & Farm Auctions. Licensed in CO, MN, ND, SD, TN & WI - Jeff Evans, Broker. Licensed in FL, KS & MO - Jefferson Kirk Gilbert, Broker. Licensed in TX & NM - Joey Bellington, Broker. Licensed in IN - Bill Minor, Broker. Licensed in AL, GA, LA, & MS - Sybil Stewart, Broker. Licensed in TN - Tim Burnette, Broker. Licensed in TN & MS- Josh Monk, Broker. Licensed in AR - Anthony Chrisco, Broker. Licensed in NC, SC, VA - Chip Camp, Broker. Licensed in IA, NC - Richard F. Baugh, Broker. Licensed in MI - Edmund Joel Nogaski, Broker. Licensed in IL, MD, WV - Debbie S. Laux, Broker. Licensed in ID, MT, OR, UT, WA, WY & NV - Aaron Milliken, Broker. Licensed in NY - John Myers, Real Estate Broker. Licensed in OK - Dean Anderson, Broker. Licensed in KY - Derek Fisher, Broker. Licensed in OH - Jeremy Schaefer, Principal Broker. Licensed in NE & SD - Jason Schendt, Broker. Licensed in MS - Chipper Gibbs, Broker. Licensed in PA - Jack Brown, Broker WHITETAIL PROPERTIES.COM 417.766.5595 brian.utecht@whitetailproperties.com BRIAN UTECHT LAND TEAM SOUTHWEST MISSOURI LAND SPECIALISTS WILDWOOD WILDLIFE RANCH This sprawling hunting ranch stands as a testament to over 50 years of strong management and strategic planning from the owner. With a thriving population of mature whitetail deer and large turkey populations, this turnkey property is a hunter’s paradise. Conveniently located near the Rockbridge Trout Ranch for fishing and casual fine dining, and within a half-hour drive of Bull Shoals Lake, this hunting ranch offers a wealth of recreational opportunities beyond the boundaries. LISTED OZARK CO. 471 AC± $1,399,000 June 2024 5 Parade of Homes

MISSOURI’S TOP LAND SPECIALIST

LISTED

GREEN CO. 113 AC±

$2,999,000

REC TRACT ON THE JAMES RIVER NEAR SPRINGFIELD Over a half mile of phenomenal accessible James River water frontage. Two miles from East Springfield and all amenities the city offers. Great location for building your future home with a picturesque landscape. Close proximity to city but secluded and quiet atmosphere. Amazing views from every inch of property

LISTED GREENE CO. 42.7 AC±

$2,135,000

PRIME COMMERCIAL AND DEVELOPMENT TRACT EAST OF SPRINGFIELD Location, Location!! This Greene County land parcel is located under two miles from the growing area of East Springfield. The land topography lays very nicely and is in a great location for housing development and commercial plans. This is one of the last properties to develop in the area and it is located on a four-way corner with traffic counts around 40,000 ± cars daily.

FOR THE LAST 10 YEARS WHITETAIL PROPERTIES.COM June 2024 6 Parade of Homes

M3 Hilltop Ranch is a sprawling property meticulously designed and optimized for high-caliber cattle operations in Marshfield. Located in an idyllic setting, this ranch boasts a thriving registered Beef Masters herd, contributing significantly to its income generation. The property encompasses an impressive 800 acres of class 2 soils, with 85 acres dedicated to conventional alfalfa and the remainder utilized for highoutput hay production and 400 pairs on a rotational grazing system.

Water features play a prominent role in the landscape, enhancing the ranch’s allure. Multiple lakes dot the property, with the largest one stretching over 10 acres, providing both a scenic backdrop and practical water resources for the ranch. The ranch’s infrastructure is unparalleled, featuring state-of-the-art cattle handling facilities that ensure efficient and effective management of the livestock.

Additionally, M3 Hilltop Ranch includes a comfortable 4 bedroom 3 bathroom house, complemented by quality barns and silage pits, further enhancing its operational capabilities.

• Nice Ranch house that is tucked into the heart of the ranch with incredible views of the cattle herd & beautiful lakes

• Ranch house is 4 bed, 3 bath, open layout with rustic features and all of the beautiful rustic furniture conveys

• Over 10 barns and shops for hay storage, plentiful equipment storage, ranch maintenance, offices and vet room, and more

• Ranch has a Registered Beef Master operation and can comfortably run 400+ cow-calf pairs.

Overall, M3 Hilltop Ranch is a stunning and income-producing property that offers the next owner not only a picturesque and serene environment but also a turnkey setup for continued success and rewards in the realm of cattle operations.

Whitetail Properties Real Estate, LLC DBA Whitetail Properties, DBA Whitetail Properties Real Estate. In the States of Nebraska & North Dakota DBA Whitetail Trophy Properties Real Estate LLC. In Ohio, DBA Whitetail Properties Ranch & Farm Auctions. Licensed in CO, MN, ND, SD, TN & WI - Jeff Evans, Broker. Licensed in FL, KS & MO - Jefferson Kirk Gilbert, Broker. Licensed in TX & NM - Joey Bellington, Broker. Licensed in IN - Bill Minor, Broker. Licensed in AL, GA, LA, & MS - Sybil Stewart, Broker. Licensed in TN - Tim Burnette, Broker. Licensed in TN & MS- Josh Monk, Broker. Licensed in AR - Anthony Chrisco, Broker. Licensed in NC, SC, VA - Chip Camp, Broker. Licensed in IA, NC - Richard F. Baugh, Broker. Licensed in MI - Edmund Joel Nogaski, Broker. Licensed in IL, MD, WV - Debbie S. Laux, Broker. Licensed in ID, MT, OR, UT, WA, WY & NV - Aaron Milliken, Broker. Licensed in NY - John Myers, Real Estate Broker. Licensed in OK - Dean Anderson, Broker. Licensed in KY - Derek Fisher, Broker. Licensed in OH - Jeremy Schaefer, Principal Broker. Licensed in NE & SD - Jason Schendt, Broker. Licensed in MS - Chipper Gibbs, Broker. Licensed in PA - Jack Brown, Broker WHITETAIL PROPERTIES.COM 417.766.5595 brian.utecht@whitetailproperties.com BRIAN UTECHT LAND TEAM SOUTHWEST MISSOURI LAND SPECIALISTS M3 HILLTOP RANCH | WEBSTER CO. 1356 AC± | $10,170,000
June 2024 7 Parade of Homes

WELCOME TO POINTE ROYALE!

$149,900

WELCOME TO POINTE ROYALE, A WELLESTABLISHED GATED, GOLF COMMUNITY just minutes from Table Rock Lake! This furnished 1 bedroom, 1 bath pristine condo located on Hole #10 provides cozy and low-maintenance living! Enjoy Gorgeous Golf Front Views and conveniently located steps away from world-class Amenities including Championship Golf Course, Clubhouse, Pro Shop, Restaurant, Pools, Tennis/Pickleball & more! This is Perfect for a vacation home, primary residence or nightly rental!

TO R Cell: 417-335-0475 | Office: 417-334-5433 | Email: Booker@FoggyRiver.com | We bsite: FoggyRiver. com TY, LLC TABLE ROCK LAKEFRONT 7 BEDS 11 BATHS LUXURY ESTATE! THIS INCREDIBLE GATED
SQ. FT. HOME features 7 bed
11 baths,
26’ wall of glass showcasing main channel views
breathtaking
Formal
room,
office,
laundry rooms,
massive master suite, movie theater, wine cellar, private entrance, outdoor full bath, hot tub,
car garage.
slips
MLS# 60246621 $3,450,000 START LIVING THE HIGH LIFE! SPECTACULAR PENTHOUSE CONDO WITH PANORAMIC LAKE VIEWS! Located on the 12th floor offering gorgeous city & lake views for miles! 1260 sq. ft., 1 bedroom, 1 1/2 bath, open living, kitchen with stainless appliances & granite counters, master suite with walk-in shower, garden tub & walk-in closet and more! Hilton amenities indoor & outdoor pools, exercise room, parking garage, Unlimited valet parking at no charge & on-site upscale dining at Level 2 Steakhouse! In the heart of downtown Branson, this is everything you’ve been looking for! MLS #60261776 $375,000
13,000
(all en-suites)
a Great Room with
and
sunsets.
dining
elevator, stately
2
a
4
4 boat
available
$499,900
MLS #60261776
June 2024 8 Parade of Homes

$599,000

AT GRAND CRU LANDING, a private soughtafter gated community on Table Rock Lake! Gentle-to-the-watersedge frontage and nice lake views! Stone exterior with copper accents, 2644 SF, 3 bdrm, 2.5 baths, 2-car garage. Huge great room w/ fireplace, Chef’s kitchen with upgraded appliances, granite & custom cabinets throughout. Courtyard entrance and wonderful deck ideal for entertaining overlooking the lake! Community swimming pool! 20 minutes to Branson! MLS# 60246581

$399,900

THE COTTAGES AT GRAND CRU ESTATES! Big lake views yet tucked away in the trees. Open and bright floorplan. This new construction features beautiful hand-hewn beams, fireplace, 4 Bedrooms including Master suite and covered deck. Community pool just a short golf cart ride away. MLS# 60200512

INCREDIBLE LAKEFRONT ESTATE WITH 34 ACRES

$1,950,000 COTTAGES AT GRAND CRU ESTATES!

34 ACRES, PRIVATE DOCK, APARTMENT & SHOP! This Gated luxury estate offers 6bed, 9baths, multiple living areas, lake views, fireplaces & firepits, John Deere Room, 2 car detached Garage with half bath, as well as covered Pergola! The large deck for outdoor entertaining and watching wildlife! The ADDITIONAL APARTMENT provides extra room for family & guests! A 40 x 60 shop is perfect “man cave”. Private 2 stall dock! This is a lake lover’s dream and a must see to believe! MLS #60265548

PEEK-A-BOO TABLE ROCK LAKE

$479,900

CUSTOM BUILT HOME IN POPULAR TABLE ROCK LAKE COMMUNITY! Peek-a-Boo Lakeview Too! This home features 5 bedrooms, 3 full baths, 2 living areas, large master suite with jetted tub, light & bright rooms, lower family room with fireplace & potential 2nd kitchen, rec area, 2 non-conforming bedrooms, workshop & tons of storage! There’s also a 2 car detached garage & 17 x 19 shed! A short walk to swimming, fishing & boat ramp! Close to Top of the Rock and downtown Branson! MLS# 60265837

UNBELIEVABLE PROPERTY, MUST-SEE TO BELIEVE!

SPECTACULAR DOUG PITTS CONSTRUCTION & RON HILL OF EURO WORLD DESIGNS BUILT ESTATE ON 38 ACRES! 6 bed, 6 baths, 7768 sq. ft., wood floors, wood beams, great room & heart room with double-sided rock fireplace, a chef’s dream eat-in kitchen with large island & granite counters, mud room, enormous master suite with his & her walk-in closets, heated floors, tiled walkin shower, jetted tub, double vanities & private veranda, screened-in porch, the finished basement features a bar made of an antique wood beam, a built-in bistro dining area, a billiard room, game room, cozy family room, additional bar seating, office, safe room, 2nd laundry and much more! Conveniently located close to Big Cedar, Top of the Rock & Hwy 65. MLS #60264618

$1,799,999

YO UR HOME TO WN RE ALTO R Cell: 417-335-0475 | Office: 417-334-5433 | Email: Booker@FoggyRiver.com | We bsite: FoggyRiver. com FOGGY
RE ALTY, LLC A BRANSON GEM! EXCELLENT DOWNTOWN BRANSON LOCATION! This one level, all brick house located in prominent Lakeview Terrace neighborhood features 3 bedrooms + office, 2 baths, 2000 sq. ft., formal living with fireplace, formal dining, family room, 2 car garage, large patio area & more! There’s even a little fenced area for the pup! Located Steps from Lake Taneycomo, Cox Hospital, Branson Community Center & Branson Landing, this location can not be beat! MLS #60260578 $329,900 NIGHTLY RENTAL / POPULAR GOLF COMMUNITY GOLF COMMUNITY OF POINTE ROYALE! This fully furnished 2 bed, 2 bath is the perfect vacation spot for you and your family! This walk-out unit provides easy access to the pool & playground! Also enjoy all the amenities at Pointe Royale including indoor/outdoor pool, clubhouse, tennis/pickleball, world class golf, Lake Taneycomo access and the peace of mind of 24/7 security in this gated community! Conveniently located minutes from Table Rock Lake and Branson Strip! MLS #60260329 $249,900 LOCATED AT GRAND CRU LANDING GORGEOUS
HOME!
RIVER
FRENCH COUNTRY LAKEFRONT
LOCATED
June 2024 9 Parade of Homes

Stunning Main Home, Pool House & Guest House! Long landscaped driveway to the most beautiful custom built homes you will ever see! You will be immediately impressed by the classy and modern style upon entering the main house! Just a few of the amazing features include 3 bedrooms, 2 full baths, 2 half baths - 1 off the outdoor kitchen, a lavish kitchen with Woodmode custom cabinets, built-in coffee maker, Wolf Stove/ovens & subzero fridge, enormous pantry, heated travertine floors through out, built-in cabinetry & fireplace in Living Room, A Master Suite fit for a queen! The cozy guest house offers 1 bedroom, 1 bath & laundry closet & 1 car garage. The pool house has heated pool. The Outdoor kitchen is the ultimate for entertaining Located close to Buffalo National River, Dogpatch & downtown Harrison. 30 minutes to Branson! This is a piece of Heaven on Earth that needs to be seen to believe! Can also be purchased as 34 Acres

MLS# 60237540

UNIQUE, RURAL BUT ALSO GATED PROPERTY

$475,000

UNIQUE BLEND OF RURAL

$2,950,000

LIVING & ACREAGE? This 30 Acres, with Barndominium & Outbuilding! This gated property features a 50 x 30 outbuilding currently used as a Rustic Barndominium with 1 bedroom, 1 full bath, kitchen with stainless appliances, dining area, living area with wood fireplace, bonus room & 1 garage bay! The 60 x 40 shop building has electric, water, workshop areas with workbenches, sink & 2 garage bays! There’s also a RV spot & hookup and a beautiful orchard with Cherry, Peach, Red Mulberry & Whiteash Trees! Don’t forget about the Deer & Turkey! Think outside the Barn, this property can be Residential, Recreational or Commercial! Frontage on Highway 14 ensures easy access to amenities and commuting to Hwy 65!

MLS# 60262612

$750,000

CALLING ALL LAKE LOVERS!!

LAKEFRONT BEAUTY! NIGHTLY RENTAL APPROVED! STEPS TO THE WATER! This charming 4 bedroom, 3 1/2 bath rustic cabin located in Swiss Villa Subvivision is the perfect spot for your second home or investment. Nestled in a quiet cove of Table Rock Lake, this is the ultimate spot for relaxation & FUN! Bring the entire family, this cabin sleeps 10 (6 adults, 4 kids) comfortably with 3 levels, cozy living room with fireplace & beamed ceilings, two master suites & patio with hot tub & large deck perfect for gazing at the water! The kids will absolutely love the privacy of the lower level rec room, theater room with six stadium seats & surround sound & bunkroom! Two minutes from Black Oak Amphitheater, close to Dogwood Canyon & 30 minutes to Silver Dollar City! Community Boat Launch nearby! This is the perfect lake getaway! Furniture package available for $45,000.

MLS# 60261195

YO UR HOME TO WN RE ALTO R Cell: 417-335-0475 | Office: 417-334-5433 | Email: Booker@FoggyRiver.com | We bsite: FoggyRiver. com FOGGY RIVER RE ALTY, LLC • 30 ACRE PARCEL WITH TABLE ROCK LAKE VIEWS! CITY SEWER/WATER. PAVED HWY 265 FRONTAGE. .....$645,000 #60265493 • 11 DEV. ACRES W/ ROARK VALLEY RD. FRONTAGE! ADJACENT TO STOCKSTILL PARK! DEV. OPP. FANTASTIC LOCATION ......$275,000 #60261730 • BUILD YOUR DREAM HOME! IN SOUGHT-AFTER SADDLEBROOKE! 15 MIN TO BRANSON OR 20 TO SGF ................$49,900 #60259123
96 ACRES IN PRIME BRANSON LOCATION! PERFECT SITE FOR HOTE OR MULTI-FAMILY RESIDENCES .....................$1,995,000 #60257227 • 10 LAKEFRONT ACRES ON BULL SHOALS LAKE! .....................................................................................................$249,900 #60251818
4.84 COMMERCIAL ACRES IN BRANSON! HIGH TRAFFIC & VERY LEVEL CLEARED LOT, ALL UTILITIES ON SITE! ..... $559,900 #60239140
READY TO BUILD YOUR DREAM HOUSE? GENTLE LAKEFRONT LOT, GORGEOUS LAKE VIEWS! ................. $139,000 #60236368
ALMOST 10 ACRES IN BRANSON AT PRIME INTERSECTION OF ROARK VALLEY AND EPPS ROAD ...................... $245,000 #60056949 OWN A PEACE OF THE OZARKS! LAND FOR SALE!
SPRINGS ESTATE • 132AC • GUEST HOUSE • POOL HOUSE
BUBBLING
June 2024 10 Parade of Homes

JERRY JACKSON REALTY | 1309 N. MAIN

HARRISON, AR 72601 | (870) 391-9544

JERRYJACKSONREALTY.COM

Home at Tablerock Lake!

MLS #148566 $449,900 - 3 bds | 2 ba | 2160 sqft | 3 acres

Looking for a home with a few acres and a beautiful lake view? Here it is! This log sided home on 3 acres m/l is approx 30 minutes from Branson, MO, 20 minutes from Big Cedar Lodge and Long Creek Marina, and 40 minutes from Harrison AR, with gorgeous view of Tablerock Lake! 3 bedrooms, 2 baths, large den with fireplace, updated kitchen. Beautiful view of the lake from the large windows in living room. The large deck is roofed and also has the gorgeous view. There is also a large detached workshop/garage with 3 overhead doors, and a storm cellar. Home is very well maintained, with newer HVAC and deck. Sq footage is per assessors office.

444 CR 629 - Green Forest, AR

Executive Broker MARCIE ESTES
June 2024 11 Parade of Homes
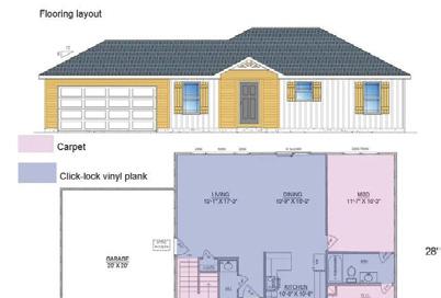
New Construction Specialist Katrina Creedon .com 417-294-7393 | OFFICE: 417-699-1157 | KATRINA@STEPABOVEREALTY.COM FOR SALE $349,900 140 Sunset Cove Lot 2 Branson, MO 3bd 2.5ba 2,160sqft MLS# 60260361 4/11/24, 12:04 PM flexmls Web Customer Only Report 160 Blue Spruce Drive Unit #: Lot 66 Hollister, MO 65672 60262091 Residential For Sale Single Family Residence Agreement Type: Exclusive Right To Sell Co Su To Ba Ba Ba Si Ap St Ba Ga To # A # D # A # D List Price: $259 900 7/2024 7 qFt: 174 78 qFt (All Lev n SqFt: 1 48 nFin SqFt: 0 n SqFt: 0 Fin SqFt: 0 y: Building P cres): 0 218 k: None : None El Mi Hi s: Yes onstruction pletion Date ort Sale: No Directions: From Hollister: Take BB-Hwy to left on White River Mountain to left on Evergreen to right on Anher to left on Blue Spruce 4th home on the Left Legal Description: EVERGREEN RIDGE-PH 4:; LOT 66 ** Legal on Title to Govern ** Marketing Remarks:New Construction Home: HOLLISTER!! Coming this SUMMER!! This Cozy Weatherwood Slab offers 3 Bedrooms 2 Bath Room Kitchen w/ Granite Countertops & Breakfast Bar Master & 2nd Bedrooms have Walk-In-Closets Click-Lock Vinyl Plank Flooring in Kitch F C d F t P h U d P ti d 2 C G ge !! This q aint home is located near area Shopping Resta rants and The Bra Rem Remarks 12' wide by 1 & Uti Fees and H Flooring: Carpet; Vinyl; Other See Remarks Green Energy Efficient: Lighting Interior Features: Smoke Detector(s); W/D Hookup; Walk-In Closet(s); Carbon Monoxide Detector(s); Cultured Marble Counters; Granite Counters Master (Main ay; Garage es Front s: Covered; e Pane Shop Ran ls: C ame yl; Ot t Pum tric Heating: Central; Forced A Pump Heating Source: Electric Lot Features: Paved Frontage; Wooded/Cleared Combo Roofing Material: Composition Road Surface: Street - Asphalt; Drive - Concrete F P S W Tax Year: 2022 Tax ID: 17-2 0-03-003-001-004 006 Real Estate Tax: 36 33 Docks/Slips: No Vacation Rental: No wners/Cond tion: None P and Q 1157 1157 y com ealty com FOR SALE $259,900 160 Blue Spruce Dr, Lot 66, Hollister, MO 65672 3bd 2ba 1,487sqft MLS# 60262091 FOR SALE $24,900 Romans/Wright Road Lot 38 Reeds Spring 105 x 105 MLS# 60243001 $699,900 530 Black Forest Lane, Branson West 5bd 3ba 3,446sqft MLS# 60258903 REDUCED $399,900 554 Emory Creek Boulevard Unit #: Lot 4 Branson, MO 3bd 2ba 3,206sqft MLS# 60255437 UNDER CONTRACT FOR SALE $297,900 592 Pine Woods Village Drive Lot 16 Hollister, MO 3bd 2ba 1,630sqft MLS# 60263212 FOR SALE $369,900 591 Pine Woods Village Drive Lot 15b Hollister, MO 3bd 2ba 3,286sqft MLS# 60262105 UNDER CONTRACT FOR SALE $319,900 150 Blue Spruce Drive Lot 65, Hollister, MO 3bd 2ba 1,722sqft MLS# 60262019 UNDER CONTRACT June 2024 12 Parade of Homes

Attic:

Fireplace

No

Flooring: Carpet; Vinyl; Other - See Remarks

Green Energy Efficient: Lighting

Interior Features: Smoke Detector(s); W/D Hookup; Walk-In Closet(s); Tray

Ceiling(s); Vaulted Ceiling(s); Cultured

Marble Counters; Granite Counters

Other Rooms: Bedroom-Master (Main

Floor); Great Room; Pantry

Parking Features: Driveway; Garage

Door Opener; Garage Faces Front

Patio and Porch Features: Covered; Deck; Front Porch; Patio

Road Frontage: City Street

Section: 3 Township:

FOR SALE $15,000 000 Apostle/Wright Unit #4 Lots, Reeds Spring, MO Residential Lot(s): 1.13acres MLS# 60242835 flexmls W C Spruce Drive Unit #: 60262251 Residential Agreement Type: Exclus County: Taney Subdivision: Evergreen R Total Bedrooms: 4 Baths - Total: 2 Baths - Full: 2 Baths - Half: 0 Sign on Property: Yes Aprx Year Built: 2024 Stories: 1 Basement: No Garage/Carport: Yes Total Garage/Carport Sta # Attached Garage Spac # Detached Garage Spac # Attached Carport Spac # Detached Carport Spa Elementary School: Holl Middle School: Hollister High School: Hollister Directions: From Hollister: Take BB-Hwy to left on White River Mountain to left on Evergree Legal Description: EVERGREEN RIDGE -PH 4 LT 67 **Legal on title to Govern** Marketing Remarks:New Construction Home: HOLLISTER This Southwood 2 Slab is a be Great Room w/ Vaulted Ceilings, Kitchen with Granite Countertops and Breakfast Bar, Mast Flooring in Kitchen, Foyer & Bathrooms, Covered Front Porch, Patio & 2 Car Garage!! This to all area amenities this gem won't last long!! Room Name Level Dimensions Remarks Great Room First 14 17 x 23 9 Kitchen First 10 5 x 9 9 Dining Area First 10 67 x 10 9 Master Bedroom First 11 83 x 14 7 Garage First 21 5 x 20 Room Name Bedroom 2 Bedroom 3 Bedroom 4 Patio Features Construction & Utilities Appliances: Dishwasher; Disposal; Free Standing Stove: Electric; Microwave; Electric Water Heater Attic: Access Only:No Stairs Dining: Dining Room; Kitchen Bar; Kitchen Firepla e: No Floorin - See Remark Green ting Interior Detecto k-In Closet( lted Ceiling(s); Cultured Marble Counters; Granite Counters Other Rooms: Bedroom-Master (Main Floor); Foyer; Great Room; Pantry Parking Features: Driveway; Garage Door Opener; Garage Faces Front Architecture: 1 Story; Ranch Construction Materials: Concrete; Vinyl Siding; Wood Frame Flooring: Carpet; Vinyl; Other - See Remarks C Central; Heat P C ic H d Air; Heat P H c L ontage R position Road Surface: Street Asphalt; Drive - Concrete Foundation: Permanent Foundation; Poured Concrete; Slab; Vapor Barrier Sewer: Public Sewer Water: City Water Green Energ Documents A Disclosure - M Disclosure; Ta Fire District: Possession: Will Sell: Cas FHA; USDA/R Warranty Typ Tax Year: 202 Tax ID: 17-2.0 Additional Pa Real Estate T Docks/Slips: Vacation Ren FOR SALE $264,900 170 Blue Spruce Drive Lot 67 Hollister, MO 4bd 2ba 1,545 sqft MLS# 60262251 .com Thanks for all your help in making our “dream home” a reality. We really appreciated that you went the extra mile to get us the best price for our home. You are truly a professional. — John & Rhonda FOR SALE $349,900 124 Sunset Cove Lot 1 Branson, MO 4bd 2.5ba 2,252sqft MLS# 60260352 ruce Drive D $384,900 60264828 Residential For Sale Single Family Residence Active Agreement Type: Exclusive Right To Sell County: Taney Subdivision: Evergreen Ridge Total Bedrooms: 3 Baths - Total: 2 Baths - Full: 2 Baths - Half: 0 Sign on Property: Yes Aprx Year Built: 2024 Stories: 2 Basement: Yes Garage/Carport: Yes Total Garage/Carport Stalls: 2 # Attached Garage Spaces: 2 # Detached Garage Spaces: 0 # Attached Carport Spaces: 0 # Detached Carport Spaces: 0 List Price: $384,900 Begin Date: 04/03/2024 Total SqFt: 3,450 List Price/Fin SqFt: 223 13 Total Finished SqFt (All Levels): 1,725 Above Grade Fin SqFt: 1 725 Above Grade UnFin SqFt: 0 Below Grade Fin SqFt: 0 Below Grade UnFin SqFt: 1,725 Aprx Lot Size (Acres): 0 34 Lot Size Provided By: Beacon Lake/River/Creek: None Waterfront/View: None Elementary School: Hollister Middle School: Hollister High School: Hollister Inside City Limits: Yes New or Under Construction: Yes Estimated Completion Date: 07/15/2024 Foreclosure/Short Sale: No Directions: From Hollister: Take BB-Hwy to left on White River Mountain to left on Evergreen to right on Anher to left on Blue Spruce, home will be 6th lot on the left on the Cul De Sak Legal Description: EVERGREEN RIDGE -PH 4 EVERGREEN RIDGE- PH 4; LOT 64 **Legal on title to govern** Marketing Remarks:New Construction Home : Hollister This Bradford Unfinished Basement Floorplan offers 3 Bedrooms, 2 Bathrooms, Great Room with Vaulted Ceiling, Master Bedroom with Pan Ceiling and Walk-In-Closet, 2nd Bedroom also has a Walk-In-Closet, Open Kitchen with Granite Countertops, Island with Breakfast Bar, and a Walk-In Pantry!! Click- Lock Vinyl Plank in Dining, Bathrooms and Entry, Covered Front Porch, Patio, Back Deck, 2 Car Garage, and an Unfinished Basement with endless possibilities!! This Beautiful Spacious home is located in The Evergreen Ridge Subdivision Close to area ammenties and all that Branson has to offer!! Come check it out, this home is sure tp please!! Room Name Level Dimensions Remarks Great Room First 13 5 x 22 25 Kitchen First 8 83 x 13 83 Dining Area First 14 67 x 13 83 Master Bedroom First 16 58 x 12 83 Garage First 24 x 24 Deck First 10 x 12 Room Name Level Dimensions Remarks Bedroom 2 First 11 x 12 08 Bedroom 3 First 10 5 x 11 9 Patio Basement 10 x 12 Features Construction & Utilities Other Fees and HOA Info Appliances: Dishwasher; Disposal; Free Standing Stove: Electric; Microwave; Electric Water Heater
Access Only:No Stairs
Full Basement Type: Unfinished Dining: Dining Room; Island; Kitchen/Dining Combo
Basement:
Features: Fireplace:
22 Utility Room: Main Floor Window Features: Double
Windows;
Shop Building Features: Shop
No Architecture: 2 Story; Ranch Construction Materials: Concrete; Vinyl Siding; Wood Frame Flooring: Carpet; Vinyl; Other - See Remarks Cooling: Ceiling Fans; Central; Heat Pump Cooling Source: Electric Heating: Central; Forced Air; Heat Pump Heating Source: Electric Lot Features: Cul-De-Sac Roofing Material: Composition Road Surface: Street - Asphalt; Drive - Concrete Foundation: P t F d ti Poured Concr Sewer: Public Water: City W Green Energy Efficient: Lighting Documents Available: Aerial Map; Seller Disclosure; Tax Receipt Possession: At Closing Will Sell: Cash; Conventional; FHA; USDA/Rural Dev Warranty Type: Builder Warranty Tax Year: 2022 Tax ID: 17-2.0-03-003-001-004.004 Real Estate Tax: 36 33 Docks/Slips: No Vacation Rental: No Home Owners/Condo Owners Association: None Presented by Rejeana Cross Step Above Realty LLC 101 State Drive Suite P and Q Owner Agent: Yes $384,900 140 Blue Spruce Drive Lot 64, Hollister, MO 3bd 2ba 3,450 sqft MLS# 60264828 FOR SALE $399,900 141 Blue Spruce Drive, Hollister, MO 3bd 2ba 4,016 sqft MLS# 60258034 FOR SALE $339,900 151 Blue Spruce Drive Lot # 62 Hollister, MO 3bd 2ba 3,086 sqft MLS# 60258035 UNDER CONTRACT SHAWN MATHENIA 417-230-2990 SHAWN@STEPABOVEREALTY.COM ELESHIA ALLISON 417-699-9119 ELESHIA@STEPABOVEREALTY.COM TERRI LYNN CRISLER 417-559-0669 TERRI@STEPABOVEREALTY.COM UNDER CONTRACT June 2024 13 Parade of Homes
Pane
Tilt-In
Building:
WANT YOUR OWN PLACE ON THE QUIET SIDE OF TABLE ROCK LAKE? • 3Bed 2Bath • 1556 Sq Ft • Panoramic Table Rock Lake views outside and inside • Roomy open floor plan • Wood burning fireplace • Composite front deck • 30x18 garage/shop for your lake toys • There are two slips available for extra $ ▫ Slip #2 10x24 w/lift $60,000 Slip #3 10x27 no/lift $55,000 143 BIG BLUFF RD SHELL KNOB, MO MLS# 60261525 $ 441,000 Quiet Ranch Lake House 16282-MO Hwy. 13 Suite F Branson West MO 65737 Allen Berkstresser propertyguyallen@gmail.com Judy Berkstresser propertygal16@gmail.com 417-294-1162 bfamilyrealty.com 417-294-1142 RANCH HOUSE WITH A FULL WALK OUT BASEMENT • 3Bed 3Bath • 3,240sqft • Full walk out basement • Covered back decks and front porch • Large garage • Minutes away from Table Rock Lake • Updated and very clean! Some home furnishings are included 10 Summit Dr, Kimberling City, MO MLS# 60261543 TWO STORY HOME LOCATED .4 MILES FROM TABLE ROCK LAKE • 4Bed 3 1/2Bath • All new kitchen • Wood-burning free standing fireplace • Bonus room • Spacious enclosed back porch • A boat launch is 3/4 of a mile away • A large storage building near the house 1068 Gobblers Mountain Rd, Branson West, MO MLS# 60265103 $ 439,500 $ 469,300 Spacious! Ranch house Lovely country two story home June 2024 14 Parade of Homes

$4,000,000 COMMERCIAL PROPERTY HAS 85 ACRES IN A PRIME LOCATION
East State Hwy. 76, 1-1/2 from Silver Dollar City
New traffic light installed at west end of property
Former Arvest Bank building (5,160 sqft) • 85 acres total on either side of State Hwy. 76
4,347 feet of highway frontage. 19,846 cars pass by daily • Seller will survey, divide and excavate for the buyer • Branson West City utilities available • Branson West has constructed a water tower on property 9748 E. STATE HWY. 76 MLS #60209028 High Traffic Location 16282-MO Hwy. 13 Suite F Branson West MO 65737 Allen Berkstresser propertyguyallen@gmail.com Judy Berkstresser propertygal16@gmail.com 417-294-1162 bfamilyrealty.com 417-294-1142 COMMERCIAL INVESTMENT 6+ ACRES ADJACENT TO THE KIMBERLING CITY CENTER
Near Kimberling City Methodist Church, Port Holiday Condominiums, Rapid Roberts, and Big Buoy's Restaurant
790 feet of lakefront • Kimberling City C2 zoning • City utilities are available MLS #60230773 $1,319,000 GREAT AREA FOR COMMERCIAL OPPORTUNITIES
Located on Hwy. 76 adjacent to Silver Dollar City theme park
Branson West water and sewer will be available
Lots of commercial and development opportunities
Location is three miles from Branson • On the market for the first time in over one hundred years 8393 E. STATE HWY. 76 MLS #60203153 DEVELOPMENT LAND LOCATED ON TABLE ROCK LAKE • Located in Kimberling City • The land is zoned C2 • The property has a lake view and is ready for development • Excellent commercial (nightly rentals) property is offered here. MLS #60263790 $499,500 $2,950,000 Adjacent to Silver Dollar City Development Land on the lake Development Property EXCELLENT COMMERCIAL PROPERTIES LOCATED IN KIMBERLING CITY • Table Rock Lake with views of the Kimberling City Bridge • MLS listings (child) 60189942, 60189943, 60192322 that can be sold together or separately
Parking • Current Kimberling City zoning C2
Lake views • Lakefront MLS #60197463 $3,411,250 Own a Part of Kimberling City FORMERLY LEONA’S RESTAURANT
Has the ability for a Restaurant (seating for 100) • Concrete slab building with large insulated windows • Outside covered seating around the front and south side • Large open dining room with extra dining space available or display room retail • Fire suppressant system • Back access and storage with 2 garage doors 14981 MO-13 BUS MLS# 60234909 Lease to Purchase Option $269,900 Retail, Restaurant, Commercial Retail, Restaurant, Commercial June 2024 15 Parade of Homes

Rocky Comfort Missouri

Home on 1.9 acres. Country living indeed. Located just off Hwy 76 in McDonald County, is this nicely situated 3 bedroom two bath brick home. The home features central heat and air, a fireplace, and a detached two car garage with a small workshop inside. This is an older home that was remodeled years ago. Very livable, but somewhat dated styling, (what some Real Estate Agents call “Classic Style”). Septic tank reported to be 5 years old. There is a well on the place, but the home is attached to a Rural Water district. About 35 miles from Bentonville Arkansas. Priced to sell at $159,900

38,000 Square Foot Building on about 3 1/2 Acres

Former Nursing Home needs some TLC to turn it into whatever You can think of. 51 hospital type rooms, large common area, offices, former kitchen area etc..

Bring Your Ideas, Your Dreams and $279,000

Country Life in Town

22 acres on Business US 60 in Aurora Missouri. Woods and open land. Mostly level. City water and sewer next door. Front part zoned commercial, remainder zoned agricultural. Where else can You find this type of Property for $100,000?

Hwy 76 Former Flea Market

10,000 sq ft building was used as a flea market for about 15 years. It is a former poultry house that was added onto. Has water, half bath, wood heat in need of repair. Insulation. Older septic. Sits on 1.6 acres with Hwy 76 entrance and frontage. Use as flea market, storage, or what ever. Located next to 3 bedroom home also for sale at Rocky Comfort Missouri. Needs some TLC, which is why it is Priced at $89,900

Clever Missouri Home On 2 Acres

Remodeled 3 bed 2 bath manufactured home on 2 acres. New septic, community well. Has metal roof, and outbuilding barn/shop Located close to Nixa or Clever $139,900

Build Your Dreams

5.65 acres Near Fordland Missouri, Large pond. Mature trees. County Road Frontage on 2 sides. electric on Property Priced at $59.900

OVER 20 YEARS HELPING FOLKS FIND RURAL PROPERTIES IN THE MISSOURI OZARKS
For more information on any of these properties call Paul at 417-818-0210 June 2024 16 Parade of Homes
June 2024 17 Parade of Homes
June 2024 18 Parade of Homes

Step into a world of timeless charm and sophistication with this homestead on 10-acres, featuring French country design elements that evoke a sense of rustic elegance. From the inviting wrap-around deck to the interior adorned with beautiful lighting, gorgeous windows, hard wood floors and ceiling; every corner exudes warmth and character. Walk in the front door into the custom-built kitchen with tall, soft close cabinetry and a one-of-a-kind island re-purposed from an antique piece. The kitchen flows into the great room with 10’ ceilings giving a sense of spatial ambiance for any furniture ensemble. Step into the Main Bedroom, a tranquil sanctuary, huge custom walk-in closet, custom made vanity and a walk-in shower to relax & unwind. The split floor-plan allows for privacy, as the other rooms can be a nice office or welcoming guest bedrooms.

The home sits on 10-acres, mostly flat, a small pond, mature trees, a garden area & fruit trees, where the landscaping elements have been done for you. With 8 water spigots throughout the estate, energize your inner outdoor enthusiast. The entrance is welcoming with a circular driveway and the workshop/garage has 16’ ceilings, heated and cooled, 6-8’’ of concrete to park heavy vehicles or equipment or your favorite cars or boats that need to be protected. With 2 distinct living areas, the possibilities are endless. The apartment has 1 bedroom/1 bathroom, heated & cooled, full kitchen, full bathroom & appliances. Welcome to a home where every aspect has been thoughtfully designed and the attention to detail is amazing. So close to the Table Rock Lake you have access to 4 public boat ramps- putting your boat into the Lake anytime you desire as you can walk to the water within the subdivision on the Kings River. Bring your fishing rods, reels, boats, kayaks, 4-wheelers or horses. You will be amazed when you see this property and what is has to offer and SO MUCH MORE!!! Check it out and experience it!

28864 Hunter Lane, Shell Knob, MO 65747

$699,000 MLS #60267839

Carolyn Boss 667-201-8374 Office 417-336-4999 propertybosscarolyn@gmail.com
Timeless Homestead on 10-acres PropertyBoss.ky.com 10 Acres!! June 2024 19 Parade of Homes
118 W HENSLEY ST (CONDO) BRANSON MO $195,000 Prime location / walking distance to Branson Landing! This 2 Bed 2 Bath condo is private but overlooks Lake TaneyComo! Enjoy Large deck, sunroom, and centrally located. This condo is one of the few that even has COVERED PARKING! Will make a great weekend getaway, vacation condo or permanent residence. Some furnishing will be included! 5AC. available in HICKORY HILLS for $99,500.00 Several LOTS for sale in SADDLEBROOKE! $CALL Tammy Rodman (417) 699-0108 OFFICE: (417) 620-3150 • 215 W COLLEGE ST, BRANSON, MO 65616 •TAMMYRODMAN.COM 133 ARABIAN WAY SADDLEBROOKE MO $839,400 4 Bed / 4.5 Bath Pool & Pool House on 1.18 Acres. This exquisite property boasts an in-ground pool and a pool house with living quarters and 3 car garage located in the soughtafter community of Saddlebrooke with amenities like a pool, pickleball courts, tennis courts, playground, creekside parks, and hiking trails. 101 APPALOOSA TRAIL SADDLEBROOKE MO $749,900 This stunning property offers the perfect blend of modern luxury and serene natural beauty. With spacious living areas, and breathtaking views, this is the perfect retreat for those seeking comfort and style. This 4-bedroom, 3-bathroom home has a large deck that spans 100 feet, and a screened in porch for watching the deer! 416 W EVERWOOD WAY, NIXA MO $725,000 This property is coming soon! Located in the very desirable Kelby Creek subdivision. This custom built home has 4 Bedrooms, 2.5 Baths, and 3 car garage. Walk into the bright foyer and enter into this open concept luxury home. You’ll find a custom built kitchen, vaulted ceilings, large living room and large master bedroom with ensuite! The large covered back porch and custom built stone fire pit are the perfect place for entertaining! Don’t miss the beautiful gem! It won’t last long! June 2024 20 Parade of Homes
1-571-329-0644 (cell) 1-417-335-5950 (office) E-mail: ronnewman@reecenichols.com Ron Newman “Ultimate Living in the Ozarks” ► “Walk-in” Level Condominium ► Rural Ozarks Atmosphere in the “heart” of Branson Entertainment & City Services ► Clubhouse with Outdoor Pool and 13-Acre Nature Park: ■ Boat Dock with Canoes ■ Covered Cook-out Shelter ■ Playground Equipment ■ Walking/Hiking Trails ■ Dog Leash-Free Park ► Enclosed Single-Car Garage ► Close to Schools, Hospitals, Shopping & Restaurants ► Low COA and Taxes 2 Bdr, 2Baths, 1,633 SqFt $ 275,500 78 Cozy Cove Road - Unit 30 - Branson MLS 60265917 Right Home, Right Price, Right Now Serenity & Privacy of Scenic “Cozy Cove” Townhome 13-Acre Cozy Cove - Lake Taneycomo Nature Park June 2024 21 Parade of Homes
This Incredible 1,800sf 4 Bedroom (incl. Loft) Condo is now available in the new Building 14. This Unit has every Upgrade possible INCLUDING A GARAGE!! Go to www.VillageatIndianPoint.com for more Info. IF YOU’VE BEEN WAITING FOR A CUSTOM 3, 4 OR 5 BEDROOM LAKEFRONT CONDO AT THE VILLAGE - HERE IT IS !! June 2024 22 Parade of Homes

THE VILLAGE AT INDIAN POINT TRULY IS THE BEST OF BOTH WORLDS... BRANSON AND THE LAKE IN ONE MAGIC LOCATION.

“MISSOURI'S

TOP FAMILY AIRBNB DESTINATION LOCATION!”

June 2024 23 Parade of Homes
(417) 272-1200 TimberValleyRustics.com Over 10,000 SQ.FT. Showroom!!! June 2024 24 Parade of Homes
Mon - Sat 9:00am - 5:00pm Sun 9:00am - 3:00pm 18192 Business 13, Branson West, MO 65737 We deliver to the following states WI, IA, IL, MO, AR, TX, LA, MS, TN, KY, IN, AL, GA, FL June 2024 25 Parade of Homes
NEW IN 417BRANSON! 337-2969 24 HR GATED ACCESS SECURITY CAMERAS RENT/PAY ONLINE MONTH TO MONTH LEASE PAVED LOT 175 Walkington Lane, Branson MO • Across From Snapp-Bearden Cemetery June 2024 26 Parade of Homes

► Creek, Bluffs & Forest Throughout Property Located Just Off 4-Lane Expressway

► Ideal for Development Ozark Residence, Vacation Rentals, RV Park, Cabins, etc.

► Adjacent Branson Entertainment District - 10 Million+ Visitors Per Yr - Sight & Sound Theater Across the street

► Expressway-side of Property Ideal Location for Electronic Signboard (revenue generator)

► Near Shopping, Restaurants, Taneycomo and Table Rock lakes

Right Development Property, Right Price, Right Now Located in the “Heart” of the Branson Entertainment District 1-571-329-0644 (Cell) 1-417-335-5950 (Office) E-mail: ronnewman@reecenichols.com Ron Newman “Ultimate Living” - Building in the Ozarks
Scenic 10 Acres Located at 502 Shephard Of The Hills, Branson MLS 60257142 Sale Price $198,500 June 2024 27 Parade of Homes

My Contract is Going South. Now What?

People who enter into real estate contracts want those contracts to close, but that doesn’t always happen. Sometimes the buyer can’t obtain financing, the property appraises for less than the sale price, or an inspection reveals a heretofore unseen problem with the property that is a deal-breaker. The standard real estate sale contract anticipates these potential problems and contains contingency provisions to deal with them. Bigger problems arise when one party wants out of the contract for a different reason or for no good reason at all.

The standard contract contains provisions that give the parties options in the event of a default. The non-defaulting parties has the following options against the defaulting party:

1) specific performance

to deposit earnest money with a designated escrow agent to give the seller assurance that the buyer is ready, willing, and able to buy the property. If the buyer defaults, the seller has the option to retain the earnest money as liquated damages. If the seller defaults, the buyer is entitled to the return of his earnest money and liquidated damages consisting of his actual costs (e.g. inspection fees, appraisal fees, loan fees, etc.).

2) termination of the contract with liquidated damages

3) any other remedies available at law or equity

Specific Performance

Specific performance means that the non-defaulting party can take the defaulting party to court and seek a judgment that compels the defaulting party to perform. This remedy is rarely used but can be effective in the event of a seller default. In this case, if the buyer can demonstrate that he is ready, willing and able to close the sale, the court can order the seller to accept the sale price and deed the property to the buyer. A seller attempting to compel a buyer to perform has a more difficult task. The seller can seek the court order directing the buyer to pay and accept a deed to the property, but this may not be feasible if the buyer is unable to come up with the funds.

Liquidated Damages

The most common remedy in the event of a default is to terminated the contract and seek liquidated damages. Liquated damages means that it would be difficult or impossible to put a dollar amount on the non-defaulting party’s actual damages, so that party’s damages are liquidated (i.e. agreed upon in advance) at the amount of the earnest money or some other amount set forth in the contract. Most real estate contracts provide for the buyer

Any Other Remedies Available at Law or Equity

If specific performance is impractical and liquidated damages are unsatisfying, a nondefaulting party may pursue any other remedies available at law or equity. This means filing suit for breach of contract or for any other cause of action (e.g. fraud) that may fit the particular fact pattern. In these cases, the facts are rarely one-sided, so both sides usually hire counsel, the defendant files a counterclaim accusing the plaintiff of default, and they fight it out in court. Litigation gets very expensive very quickly, and a responsible attorney should be asking the client at the beginning if a broken contract is worth the expense of litigation.

If you see your contract going south and you’re not sure what to do, consult a real estate attorney regarding your options. In addition to sound legal advice, a good attorney can be a voice of reason when emotions are running high.

Diana Brazeale is a real estate attorney and the owner of Brazeale Law Firm, LLC in Branson, Missouri. She has over twenty-five years’ experience in the practice of law, and has drafted and litigated many real estate contacts in her career. She can be reached at (417) 334-7494.

June 2024 28 Parade of Homes

• 1.26 acres w/4 BR, 3BA & a circle drive & FULLY FURNISHED w/pad poured for a garage

• Golf cart included AND, a 12X30 slip w/lift available to purchase

• Just bring your toothbrush & suitcase and enjoy living at Table Rock Lake.!!

• One lot two houses. One with view of lake

• Adorable 2BR/1BA with wood flooring, New windows, Washer & Dryer, Kitchen appliance, Screened front porch

• Second house, is currently rented, is 1BR/1BA with open plan & a stone fireplace & screened porch

Outstanding home in the 55+ Community

• Beautiful tile flooring through out with Gas Fireplace w/lovely mantel & stone sets of the living room

• Hickory cabinets, granite counter-tops, awesome back-splash, built in China Closet, island bar w/storage, upgraded appliances, walk-in pantry

• Large Master Suite w/shower & tub & separate closets, 2 Guest Bedrooms & Baths

• Large covered patio, a 25X15 workshop or Man Cave & landscaped beautifully. 2 car oversized garage

• 3 Bedroom/1 Full Bath

• FULLY FURNISHED!!

• 1 mile to Flat Creek Resort, Boat Launch & Restaurant & about 2 1/2 miles to the Marina & Corps Recreation Area

• 2BR/1 1/2BA home with an outstanding lake view with Large screened deck

• ALL furniture & furnishings stay, New metal roof, new septic

• Central Heating along with electric stove, dishwasher, refrigerator, washer & dryer, microwave

Kathy & Gary Clark Husband and Wife, Selling the Lake Life! Kathy@KathyJClark.com 103 Crevis Rd, Branson West, MO, 65737 www.BransonHomeGallery.com Search it • Find it • Love
Ronda
660-623-0516 Vlcki Sprague 573-434-4761 Michelle Ross 918-640-0156 $187,400 $89,700 $347,700 $ 284,700 MLS#60267400 MLS#60262642 MLS#60267394 MLS#60267323
Watson
$352,400 MLS#60266617 Just Run to the Lake Adorable Lake view Home Log House with OUTSTANDING front & back LAKE VIEWS LAKEVIEWS
from this Lake Home on
1/2 acres 417-597-4148 June 2024 29 Parade of Homes
ARE AWESOME
2
BEST DEALS OF THE MONTH LIGHTFOOT&YOUNGBLOOD LIVE | VACATION | INVEST www.BransonHomeFinder.com 417-213-5516 4BED/3BATH 2,465 SQFT MLS#60259549 NO HOA TURN KEY VACATION RENTAL EXPANSIVE LIVING ROOM 982 INDIAN POINT ROAD, INDIAN POINT 1 & 2 BED AVAIL | 287 SQFT | WHITE WING RESORT ESTATES AT MAJESTIC POINTE MOONSHINE BEACH TABLE ROCK STATE PARK MARINA THE 76 STRIP AND SILVER DOLLAR CITY MLS# 60259549 $797,000 STARTING AT $49,500 1MIN FROM SILVER DOLLAR CITY / FREE SHUTTLE PERFECT STR/VACATION RENTAL! IDIAN POINT LISTED AS TOP MO DESTINATION MLS# 60253994 2023 & 2024 WINNER! Best Real Estate Company June 2024 30 Parade of Homes
VACATION RENTAL PROPERTIES LIGHTFOOT&YOUNGBLOOD LIVE | VACATION | INVEST www.BransonHomeFinder.com 417-213-5516 10 GREENVIEW DR, KIMBERLING CITY, MO 4BED 3.5BATH 2,970SQFT | TABLE ROCK LAKE | VACATION RENTAL APPROVED MLS# 60256082 10 GREEN VIEW $645,000 Motivated! 64 DAYBREAK LANE, CAPE FAIR, MO 4 BED 5 BATH | 3,150 SQFT TABLE ROCK LAKE FRONT | VACATION RENTAL APPROVED MLS# 60249680 64 DAY BREAK LAKE FRONT $494,500 Lakefront! 210 POOLSIDE PASS ROAD, #210, HOLLISTER, MO 9BED 9BATH | 4,032 SQFT TABLE ROCK LAKE FRONT | VACATION RENTAL APPROVED | 2 MASTER SUITES MLS# 60246963 210 POOLSIDE $1,125,000 FinancingOptions! 168 JAX TRAIL BRANSON, MO 5 BED 3.5 BATH | 2,533 SQFT TABLE ROCK LAKE VACATION RENTAL APPROVED BOAT SLIP LEASE INCLUDED MLS# 60268125 JAX CREEK DEVELOPMENT $929,900 12 WOODPECKER LANE, UNIT 2, INDIAN POINT 4 BED 4.5 BATH | 3,150 SQFT | VACATION RENTAL APPROVED | PRIME LOCATION MLS# 60261646 12 WOODPECKER UNIT 2 $250,000 Next to SDC! VINYARDS TERRACE, BRANSON, MO 3-4 BED 2-4 BATH | VACATION RENTAL APPROVED | ACTIVE REVENUE GENERATORS MLS# 60265958 VINYARD TERRACE STARTING AT $244,500 NewDevelopment 2023 & 2024 WINNER! Best Real Estate Company
LIGHTFOOT&YOUNGBLOOD LIVE | VACATION | INVEST www.BransonHomeFinder.com 417-213-5516 COMMERCIAL PROPERTIES 25 BAY BREEZE LANE, LAMPE, MO (2) 1BED & (1) 3BED CABINS CHARMING A-FRAME CABINS | MINI-RESORT MLS# 60261840 6 A FRAME CABINS! $725,000 261 DAWN ROAD BRANSON, MO 2.46 ACRES SPACIOUS SHOP | 3BED 2BATH DBL WIDE ON-SITE | PREVIOUS TOW TRUCK OPERATIONS MLS# 60263950 COMMERCIAL OPPORTUNITY! $625,000 120 NORTH 4TH ST BRANSON, MO 6BED 6BATH 3,103 SQFT | BUILT IN 1923 ACTIVE BUSINESS BNB| DOWNTOWN BRANSON MLS# 60260755 THE BRANSON HOUSE! $1,200,000 143 ARIZONA DRIVE, BRANSON MO 7 ACRES | ESTABLISHED EMORY CREEK BNB MINUTES FROM THE BRANSON LANDING & THE STRIP MLS# 60241710 ANTIQUE VICTORIAN DECOR $980,000 839 SHADRACK RD, CAPE FAIR, MO (4) 1BED 1BATH (1) 3 BED UNIT LAUNDRY FACILITY | 1/4 MILE TO CAPE FAIR MARINA MLS# 60260449 CAPE FAIR MO! $600,000 468&480 TANEYCOMO HILL DRIVE, HOLLISTER, MO 4BED 4BATH | 3,033 SQFT 2 STORY BUNGALOW /CABIN/COTTAGE| ENDLESS OPPORTUNITIES MLS# 60263925 VACATION RENTAL APPROVED $750,000 7+ Acres New! 5 Units 6 Units RareFind! 2 Houses! 2023 & 2024 WINNER! Best Real Estate Company June 2024 32 Parade of Homes
LIGHTFOOT&YOUNGBLOOD LIVE | VACATION | INVEST 2023 & 2024 WINNER! Best Real Estate Company www.BransonHomeFinder.com 417-213-5516 RESIDENTIAL & COMMERCIAL LAND FALL CREEK ROAD, BRANSON, MO 2.4 ACRES DREAM HOME LOCATION MLS# 60258194 FALL CREEK ROAD $119,000 LOT 16 MULE BARN DRIVE, CAPE FAIR, MO 1.75 ACRES GREAT BUILDING SITE | ACCESS TO TABLE ROCK LAKE | UNDERGROUND UTILITIES MLS# 60130799 LOT 16 MULE BARN $26,777 HANGING BRANCH RIDGE RD CAPE FAIR, MO 1.03 ACRES SUBDIVISION EDGEWATER VILLAGE READY WITH SEWER, WATER, AND ELECTRIC MLS# 60240434 LOT 25 HANGING BRANCH $78,500 SHEPHERD OF THE HILLS EXP BRANSON, MO 24 ACRES NEXT TO SIGHT AND SOUND THEATRE | BUSY SHEPHERD OF THE HILLS EXPRESSWAY MLS# 60220595 COMMERCIAL S.O.T.H. $370,000 DEER LANE, THEODOSIA, MO 25 RESIDENTIAL LOTS LOTS ARE IN MULTIPLE SUBDIVISIONS | GREAT OPPORTUNITY MLS# 60253310 BUILDER PACKAGE $250,000 HANGING BRANCH RIDGE RD CAPE FAIR, MO 1.67 ACRES SUBDIVISION EDGEWATER VILLAGE READY WITH SEWER, WATER, AND ELECTRIC MLS# 60240884 LOT 26/27 HANGING BRANCH $124,900 25 Residential Lots! Pending

ALPENA, AR.

• Top Rock Drive-in - 314 US 62

• Shell Station - 15899 Hyw 62 / US 412

AURORA, MO.

• Casey’s - 820 S Elliott Ave

• Coldwell Banker Show-me properties - 1630 S. Elliott, Ste A

• Aurora Family Restaurant - 627 E. Church Street

○ Price Cutter - 708 S. Elliott Ave.

BERRYVILLE, AR.

• The Outpost -1927 US-62

• Harter House - 326 Eureka Ave.

○ Kings River Realty - 702 Eureka Ave

• Ozark Cafe - 208 Public Square

BLUE EYE, MO.

○ JJ Junction Convenience Store - 104 State Hwy. JJ

• West-side Gas Station - 1836 MO- 13

• Twin Island Gas - 4833 MO-86

BRANSON, MO.

• 76 Express Conoco - 3305 W. 76 Country Blvd.

• AJ’s One Stop - 2652 Shepherd of the Hills Expy.

○ Accucare Medical Clinic - 280 Wintergreen Rd,

• Antiques Treasures - 9 Treasure Lake Road

• Apple Tree Mall - 1830 W. 76 Country Blvd.

○ Bart & Brown Realty - 204 S. 3rd Street

• Billy Gail’s - 5291 MO - 265

• Billy Gail’s - 3300 Gretna Rd

• Branson 1 st Stop - 220 Branson Hills Pkwy.

○ Branson Auto Museum1335 W. 76 Country Blvd.

• Branson Cafe -120 W. Main St.

○ Branson Chamber of Commerce - 269 M0-248

○ Branson Hills/HCW - Branson Landing

○ Branson Lakes Realty - 211 S. Commercial St

• Branson Post Office - 320 S. Commercial Street

○ Branson Travel Office - 118 N. Commercial Street

○ Branson Welcome Cent. - 921 W. Main St

○ Brazeale Law Firm, LLC- 201 Buccaneer Blvd B

• Bob Evans - 801 W Main St

○ Celebrity Car Museum -1600 MO-76

○ Country Mart -1447 MO-248

○ Dairy Queen -1530 MO-248

• Dalton’s Express - 1130 W. 76 Country Blvd.

• Dear Run Groceries - 1056 Indian Point Rd

○ Dick Clarks - 1600 W 76 Country Blvd

○ Dutton theater - 3454 W 76 Country Blvd

• EZ Center - 1901 W 76 Country Blvd

○ Fuddruckers -1615 Hwy. 76

• Grand Country Music Hall - 1945 W. 76 Country Blvd.

○ Green Gables Inn - 2400 Green Mtn. Drive

• H&R Block -1447 D State Hwy. 248

• Indian Point Floating Cafe - 3443 Indian Point Rd

• Hungry Hunter - 5753 Hwy 165

○ Keller Williams - 714 MO-248

• Lakeside RV Park -300 Boxcar Willie Drive

• Lightfoot & Youngblood Investment Real

Magazine Rack Locations

Estate - 701 S Sycamore St

• Little Hacienda - 3375 Little Pete Rd

○ Natures Wonders - 1601 State Hwy 248

○ New View Realty - 220 Branson Hills Pkwy Suite L

○ Outback Steakhouse - 1914 W 76 Country Blvd

○ Pizza World - 225 Cross Creek Blvd Suite F

• Pointe Royale Info Center -100 Pointe Royale Drive

• Price Chopper -2210 W. 76 Country Blvd.

• Prime Time Convenience Store - 945 E. Hwy. 76

• Quik Mart -802 E. Hwy. 76

○ ReeceNichols - 590 W Pacific St

○ RE/MAX - 215 S. 2nd Street #2-C

• Silliman Realty - 3027 W 76 Country Blvd.

• Shoney’s - 1950 W 76 Country Blvd

• Sho-Me Flooring - 225 Cross Creek Blvd STE A

• Stone Castle - 3050 Green Mtn. Dr.

• Sugar Leaf Treats - 2800 W. 76 Country Blvd.

○ Super 8 - 2490 Green Mountain Drive

○ Treasure Lake - 1 Treasure Lake Drive

• Turkey Creek Market - 200 State Hwy F

• The Pantry - 164 Fall Creek Drive

• Victorian Village - 3042 Shepherd of the Hills Expy.

○ Vintage Vault - 204 Veterans Blvd

○ Young’s Lakeside Tire - 947 E. State Hwy. 76

• Wal-Mart - 2050 W. Hwy. 76

○ Worley & Associates Realty1159 Bee Creek Rd

• Willow Tree Inn & RV Park 3381 Shepherd of the Hills Expy.

• White Oak Station - 3200 Green Mountain Dr

• White Oak Conoco - 4017 State Hwy 76

○ White Magnolia Real Estate 547 Branson Landing Blvd.

BRANSON WEST, MO.

• Bag A Bargain - 18062 Business 13

○ Bistro 58 Vino cellars - 15038 MO-13

• Berkstresser Family Realty - 16282 MO-13 SUITE F

• El Lago Mexican Restaurant - 18942 Bus. Hwy. 13

• Keller Williams Realty -16208 MO-13

• King Food Saver - 18128 State Hwy. 13

• Lakeland Pharmacy -18565 Bus. 13

○ ReeceNickels Stonebridge - 50 Stonebridge Pkwy

○ Rustic Timbers Furniture -8847 MO-76

• Perfect Signs - 8953 State Hwy 76

• Phillips’ 66 - 17993 Hwy. 13

• Sportsman’s One Stop & Deli -14351 MO-13

○ Sweet and smiles - 14965 Bus. 13

• Table Rock’s Best, REALTORS - 45 Notch Shopping Center Lane

• Table Rock sunset properties - 103 Crevis Rd

• Timber Valley - 18192 Business 13

○ Valvoline Express Care - 7171 Business 13

CAPE FAIR, MO.

• Cape Fair post office8089 W State Hwy 76 Ste D

• Flatcreek Restaurant - 7847 MO-173

CASSVILLE, MO.

○ Fistrip - 104 Main St

• King Food Saver - 91 Main St

• Subway - 53 Main St

• Sunrise Family Restaurant - 400 S Main St

• White Oak Station - 86 S. Main

EAGLE ROCK, MO.

• L&L Stores -32435 MO-86

• Office Pub & Steak House -34218 MO-86

• Uncle Roy’s One Stop -29539 M0-86

EUREKA SPRINGS, AR.

• All Season Real Estate - 106 A W. Van Buren

○ Bubba’s Barbecue - 166 W. Van Buren

• Bunches quick check - 134 E Van Buren

• Coldwell Banker K - C Realty 183 W. Van Buren

• Hart’s Family Center Inc. - 131 E. Van Buren

○ Pizza Hut - 2048 E. Van Buren

• River Lake Outdoor Center - 14735 US-62

○ Rowdy Beaver - 417 W. Van Buren

• United Country Little Switzerland Realty 2039 B. E. Van Buren

FORSYTH, MO.

○ Caseys - 15581 Hwy 160

• Country Mart - 15720 US-160

• Dollar General - 14974 US-160

• Family Dollar - Hwy 160 &, Coy Blvd

• Forsyth Chamber of Commerce16075 US-160

• White Oak Station -15932 U.S. 160

GOLDEN, MO.

○ Ball & Prier Tire & Wheel - 35838 MO-86

○ Lake Homes Realty - FR1255

GRANBY, MO.

• Fastrip - 107 N Main St

• Ramey Market - 469 W Valley St

GREEN FOREST, AR.

• Harp’s Food Store - 703 W. Main

HARRISON, AR.

• Big Lots - 617 Hwy 62 65 N

○ Cash Saver 870 - 719 E Stephenson Ave

○ Hampton Inn - 121 AR 43

○ Holiday Inn - 117 AR 43

• Hudson’s Supermarket - 609 N. Main St.

○ Little Caesars Pizza - 814 U.S. 62

○ Lovejoy Collectibles - 3220 U.S. 62

• Maurices - 1428C US-62

○ Rust Dust and Wanderlust 1307 N Main St

○ Super 8 Motel - 1330 U.S. 62

○ T’s BBQ - 108 Lakeshore Dr

○ Western Sizzlin Steak House - 905 U.S. 62

• White Oak Station - 1413 U.S. 62/65

HIGHLANDVILLE, MO.

○ Welcome center - 422 Burk Rd

HOLIDAY ISLAND, AR.

○ Coldwell Banker K-C Realty

2 Holiday Island Dr.

June 2024 34 Parade of Homes

○ Sunfest Market - 1 Forest Park Drive

• White Oak Station - 2 Parkwood Drive

HOLLISTER, MO.

○ Country Mart - 200 Southtowne Blvd.

• Dollar General - 160 Southtown Blvd

• El Patio - 165 Southtowne Boulevard

○ El Poblano - 215 Gage Dr A

• Foggy River Realty - 5 Downing Street

• Harter House - 175 Gage Drive

• Hollister Chamber of Commerce - 2527 South Business Hwy 65, Suite A

○ Hollister Coffee Co. - 2004 Bus. Hwy. 65 S.

• Hollister Food Mart - 1600 State Hwy. BB

○ Hollister Post Office - 1980 S. Bus. 65

○ Hook & Ladder Pizza - 26 Downing Street

• Hungry Hunters - 5753 Historic Hwy 165

• Little Hacienda - 9 Downing St

• Lowe’s - 165 Mall Rd

• Pizza By The Chef - 180 Mall Road

• Spirit Shop - 2909 U.S. 65

• Shell Turkey Creek Express

- 18 Industrial Park Drive

○ Step Above Realty - 101 State Dr Suite P

JOPLIN, MO.

○ Food 4 Less - 2800 E. 32nd St

○ 1710 E 32nd St

• Maria’s Mexican Grill - 2850 S Rangeline Rd

• Petsmart - 520 Range Line Rd

• Phillips 66 - 3308 E 32nd St

• Realty Executives - 2302 E 32nd St

• Zipz - 1902 E. 32nd St

KIMBERLING CITY MO.

• Duckees drive thru - 12042 MO-13

• Harter House - 11798 MO-13

• Joe Bald Market - 4047 Joe Bald Road

• Kimberling City Post office 38A Kimberling, C

• Ma’s Place - 13317 M0-13

○ Outdoor Rooms by Design 11966 MO-13

○ ReeceNichols - 13367 MO-13 suite B

• Table Rock Art Guild & Gallery 11863 MO-13

• Table Rock Chamber of Commerce - 14226 MO-13

KIRBYVILLE, MO.

○ Kim’s BBQ Shack - 7930 MO-76

• MM Mini Mart - 134 State Hwy. MM

MARSHFIELD, MO.

• Whitetail Properties - 1201 Banning St

○ White Oak station - 1305 Spur Dr

MONETT, MO.

• Acambaro Mexican Restaurant

• Big Baldy’s Barbque - 814 US 60

• Happy house Chinese buffet - 840 US 60

• Lai Lai - 601 bridle Ln

• Plaza Mexico - 1200 E Broadway St.

• Phillips 66 - 310 S Kyler

• Price Cutter - 2150 E Cleveland

• Race Brothers Farm & Home supply 210 RT -37

• RE/MAX - 855 US 60

NIXA, MO.

• El Lago’s - 461 Aldersgate Dr

• Harter House - 815 N. Kenneth Street

○ Keller Williams - The Massengale Group201 Village Center St

○ Murney REALTORS® - 485 Aldersgate

• Price Cutter - 400 N Massey Blvd

○ Signal Food & Gas - 402 W. Mt. Vernon Street

• Tony’s Place - 550 West Mount Vernon Street

OMAHA, AR.

• Charlies Cafe - 28783 Old Highway 65

• Roberson Orchards - 11680 AR-14

OZARK, MO.

○ El Charro - 1721 S. 20th Street

○ El Taco -1595 W. Jackson

• Huckabella Boutique - 101 S. 3rd Street

○ Price Cutter - 5504 N. 17th Street

○ Rosie Jo’s Cafe - 1711 S. 15th Street

• Sport Clips - 1507 W. State Hwy. J

• Twisted-E-Liquid - 1423 W State Hwy J

PURDY, MO.

• Adelita’s Mexican Restaurant - 201 N City Hwy 37

• Country Corner - 405 State Hwy C

REEDS SPRING, MO.

• Fuel-R-Up Conoco - 21209 Main Street

• Rantz Country Express3583 State Hwy. 160

• Reeds Spring Pizza Co. - 22065 Main Street

• Reeds Spring Post Office 22153 Main Street

• Table Rock Lake Chamber of Commerce - 14226 MO-13

REPUBLIC, MO.

• Better Homes & Garden Real Estate 954 N Oakwood Ave

• El Charro - 1668 US-60

• Flat Creek - 772 East Hwy 60

• Price Cutter - 1013 East Hwy 60

RIDGEDALE, MO.

• Cedar junction general store - 1225 Ridgedale Rd

• Log Cabin Cafe - 3799 Ridgedale Rd

• Wild Bill’s Travel Center - 3799 Ridgedale Road

SADDLEBROOKE, MO.

• Phillips 66 Convenience Store - 103 Brookside

SARCOXIE, MO.

• Ozarkland Village - 2521 Cimarron Rd

SHELL KNOB, MO.

• Century 21 Properties Unlimited -

Bridgeway Plz, 24927 Sta Hwy 39

• Harter House - 24988 MO-39

○ Pizza Hut - 25562 M0-39

○ Rapid Roberts - 24755 State Hwy 39

• RE/MAX Lakeside - 24923 MO-39

SPRINGFIELD, MO.

○ Asian King Buffet - 3130 S. Glenstone

○ Big Mamma’s Coffee - 217 E. Commercial

• Cook’s Appliance - 1826 S Glenstone Ave

○ Cricket Wireless - 3867 S Campbell Ave.

• Enhanced Hearing Center 3829 S Campbell Ave

• Greater Springfield Board of Realtors 1310 E. Primrose

• H&R Block - 312 W. Commercial

○ Imber Pools - 4411 E Sunshine St Suite A

○ Leong’s Asian Diner - 1540 W Republic Rd

• McAllisters - 1711 W Battlefield Rd Suite M

• Metro by T-mobile - 1926 S Glenstone Ave

○ Mumey Associates, Realtors® 1625 East Primrose

○ Phillips 66 - 2540 N. Glenstone

○ Price Cutter Plus - 4228 S. National

○ Price Cutter - 3260 E. Battlefield

○ Price Cutter - 2021 W. Republic Road

○ Price Cutter - 712 W. Commercial

○ RE/MAX - 37 45 S. Fremont, Ste A

○ ReeceNichols - 3626 S Campbell Ave

○ Signal Food & Gas - 2810 E. Battlefield

○ Signal Food & Gas - 960 S. Glenstone

• Team Ozark Realty - 3433-D S. Campbell Blvd

• Tropical Smoothie Cafe - 3811 S. Campbell

○ Whole Hog Cafe - 224 W. Sunshine

• outdoor rack ○ indoor rack • sponsored rack Our new locations this month BRANSON, MO. • Lightfoot & Youngblood Investment Real Estate - 701 S Sycamore St Call 417-294-8013 To place a rack at you location
Home Services Directory Carpet Cleaning • Sho-Me Clean (417) 263-1963 www.BransonCarpetCleaning.com Concrete and Paving • Buchanan Materials/Tri Lakes Redi-Mix (417) 337-7625 • Table Rock Asphalt Construction (TRAC Materials) (417) 334-2144 ca l l Online and Print Magazine Join Our Directory Call (417) 294-8013 Home Services Directory Carpet CleaningClean (417) 263-1 ansonC petCleaning. Next Carpet ervice (417) 365-4475 Cleaning and Management Bug est (417) 831-7378 Crystal 545-0449 Anchor Property Management 213-0634 Maintenanc Concrete and Paving Mate Lakes (417) Rock onsruction Materials) (417) Construction Better Construction Maintenance 699-0345 Dec Garages Barn Remodel Built Right Affordable Homes (417) Construction Co., 331-3580 Heritage Construction Services, LLC 598-9402 294-7686 call Online and Print Magazine To be included Home Services Directory (417) 337-7446 SCAN AND SUBSCRIBE TO ONLINE MAGAZINE PARADE-HOMES.COM Position Your Business For Success! Over 12,000 monthly printed Magazines. Reach more customers with 100s of locations. Get seen by those that matter with over 3000 monthly email subscribers. June 2024 36 Parade of Homes
To be included in our Home Services Directory call: (417) 294-8013 Home Services Directory June 2024 37 Parade of Homes
To be included in our Home Services Directory call: (417) 294-8013 Home Services Directory Fashions For Your Windows, Comfort For Your Home 417-251-8535 Schedule a Free Consultation Visit our Website BransonBlinds.com Schedule a Free Consultation Quality Blinds, Shades, Shutters & Drapes for Any Window, Door or Style Free! Cordless Lift On Graber Pleated, Natural, Solar, Roller, Classic & Tailered Roman Shades Valid in the month of June 5 Blind Minimum. June 2024 53 Parade of Homes 38
To be included in our Home Services Directory call: (417) 294-8013 Home Services Directory Construction Swimming Pools and Hot Tubs • Imber Pool & Outdoor (417) 771-7552 Welders • Rabideau Fabrication (417) 213-1204 • Rodger’s welding and fencing (417) 294-4358 July 2023 27 Parade of Homes 417-942-2451 To Breathe Healthy Air Call: www.rlenvirocare.com Ask about our FreshAir Personal Special! EMERGENCY SERVICES AVAILABLE 4 1 7- 5 5 9 - 3 3 2 3 Z a n e June 2024 39 Parade of Homes
To be included in our Home Services Directory call: (417) 294-8013 Home Services Directory June 2024 40 Parade of Homes
To be included in our Home Services Directory call: Home Services Directory Heating and Air • Igloo Heating & Air (417) 231-6748 • Patriot Heating & Air (417) 320-6444 • R & L Envirocare (417) 942-2451 Home Inspections • Clear Inspections LLC (417) 294-7656 Kitchen & Bath • Kitchen Works LLC (417) 251-8535 www.kitchenworksllc.com Landscapers • Patriot Lawn Care (417) 880-9220 • The Garden Center by Zanescapes (417) 338-1111 Law Firms • Diana Brazeale - Brazeale Law Firm, LLC (417) 334-7494 www.Brazealelaw.com • Ozarks Legacy Law (417) 719-1199 Mortgage & Title Services • First Community Bank (417) 553-2106 • Branson Bank (417) 334-9696 • Generations Bank (417) 739-2201 • Great American Title - Branson West (417) 272-1450 • Table Rock Community Bank (417) 272-9300 June 2024 41 Parade of Homes Spider Bed Bug Fast, Effective, & Guaranteed Pest Control For Your Home Or Business We offer a variety of services customized to fit every client’s needs. We have the best solutions for eliminating pests in your home or business. With our top-notch services, we want to be your partner in protecting your family and property! Call Today! There’s never just one... SERVING NORTHWEST ARKANSAS

Home Services Directory

Self-protection for Real Estate Agents

Real Estate agents work hard to get listings, market properties for sale, and bring sales to fruition. They often do so with no money up front, but with the expectation that their reward will come at closing with the payment of their commissions. If the closing does not happen, an agent who has fronted money for marketing expenses may suffer financially.

An established agent may consider this situation a cost of doing business, take the loss, and move on to other sales. Sometimes, however, an agent will go to great lengths to market a unique property, and end up liable for considerable expense when the owner decides not to sell after all.

Pest control

• High Tech Service LLC (870) 741-5200 www.hightechservicellc.com

Plumbing

• DeLong Plumbing (417) 883-3535

• Kimberling City Plumbing Inc. (417) 272-6000

• L & J Plumbing Supply (417) 334-3107

Roofing

• Elite General Contracting & Restoration, (417) 593-1897

The standard form listing contract for Missouri agents provides that if an agent procures a “ready, willing, and able buyer,” for the listed property, the agent is entitled to the agreed upon fee in the contract. That sounds good, but it is rarely so simple. The term “ready, willing, and able buyer” can be construed many different ways by many different courts and attorneys, and it may not be worthwhile for an agent to sue an owner who decides not to sell. Lawsuits are never a sure thing, legal fees are not cheap, and an agent may not want to have a reputation as someone who sues. There is also the practical consideration of collecting the fee when there is no closing. So what is an agent to do? Consider asking for money up front or for reimbursement for expenses exceeding a

• Integrity Roofing & Renovations, LLC (417) 766-2825

certain amount. The standard listing contract has no provision for this, but agents can write their own language in the “Special Agreements” section of the contract. For example, “Owner agrees to reimburse Agent for marketing expenses exceeding $___,” or “Owner agrees to deposit $____ with Agent’s Broker for marketing expenses.”

Some owners may balk at the prospect of paying expenses up front or at the suggestion that they might decide to take a property off the market, and look for another agent. At that point, the agent needs to make a decision. Is this owner worth the risk? If the answer is yes, understand that you may take a loss. If the answer is no, let the owner go elsewhere. Keep in mind an old expression: “It is better to not do the work and not get paid than it is to do the work and not get paid.” --Jay Foonberg, Esq.

If you need help drafting a contract to ensure you get paid, call the number at the bottom of this article.

Diana Brazeale is a real estate attorney and the owner of Brazeale Law Firm, LLC in Branson, Missouri. She has twenty-five years’ experience in the practice of law. She can be reached at (417) 334-7494.

Tel.: 417-334-7494

Fax: 417-334-7405

Email: diana@brazealelaw.com

201 Buccaneer Blvd, Suite B Branson, MO 65616

To be included in our Home Services Directory call: (417) 294-8013
SCAN AND SUBSCRIBE TO ONLINE MAGAZINE PARADE-HOMES.COM
Eagle Rock Construction LLC (417) 271-3333
Hot Tubs
Imber Pool & Outdoor (417) 771-7552 Welders
Rodger’s welding and fencing (417) 294-4358 May 2023 40 Parade of Homes
Septic Service •
Swimming Pools and
contact: June 2024 42 Parade of Homes
For all your real estate law questions, please
Paul & Patsy Sidio 417-818-0210 Kathy & Gary Clark 417-597-4148 Kathy@KathyJClark.com 103 Crevis Rd Branson West, MO 65737 Ron Newman ReeceNichols 571-329-0644 E-mail: ronnewman@reecenichols.com Brian W. Utecht 417-766-5595 Brian.Utecht@White TailProperties.com 1201 Banning Street Marshfield, MO 65706 Tracey Lightfoot Operating Broker/Owner 417-251-1946 traceysellsbranson@gmail.com 701 S. Sycamore St. Branson, MO 65616 Premier REALTORS® Judy & Allen Berkstresser 417-294-1142 417-294-1162 PropertyGal16@gmail.com PropertyGuyAllen@gmail.com 16282-MO Hwy. 13, Suite F, Branson West, MO 56737 If you would like to have a spot in our REALTOR® Directory Call us at 417-294-8013 Off: 417-213-5516 Subscribe Online Parade-Homes.com Whitetail Properties Real Estate June 2024 43 Parade of Homes

*Of fer not good with any other of fer s or sales

Turn static files into dynamic content formats.

Create a flipbook
Issuu converts static files into: digital portfolios, online yearbooks, online catalogs, digital photo albums and more. Sign up and create your flipbook.