PORT FOLIO

Interior Design







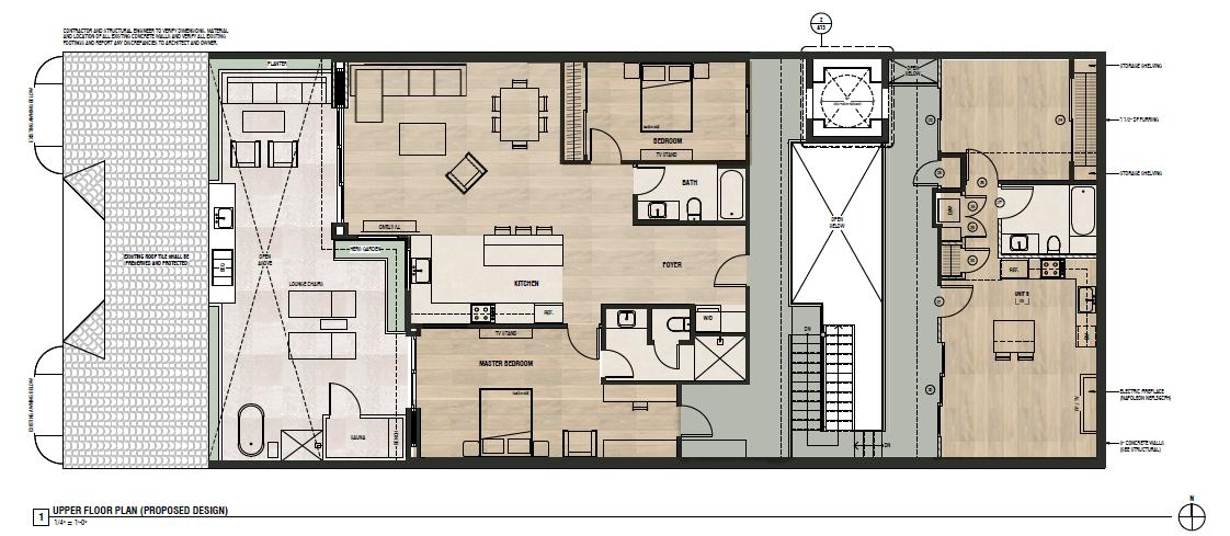
THIS PROJECT IS BEING DEVELOPED IN COLLABORATION WITH ECOLOGIC ARCHITECTS. THE GOAL IS TO REMODEL 2 COMMERCIAL SPACES AND ADD RENTAL APARTMENTS. EVERYTHING IS ORGANIZED AROUND THE DESIGN OF A CENTRAL GARDEN THAT SERVES AS A LOBBY AND CONNECTOR.



































FRESH, YOUNG, GREEN CAFÉ WAS SOLICITED TO BE PRESENTED TO THE TENANT IN ORDER TO GET APPROVAL OF RENT. MAIN IDEA WAS TO BRING A GARDEN INSIDE, PLACED IN A WAY THAT ENVOLVES YOU, IN METAL RACKS THAT ALSO SERVE AS VENDING POINTS. INTERIOR DESIGN, COLOR PALETTE, FINISHES, AND FURNITURE WAS SELECTED.
CALLAN CAFÉ


















































