CV+Portfolio Barbiani Paola

Page 1

PORTFOLIO
Barbiani Paola

Febbraio 2022 - Presente

PAOLA BARBIANI

08/06/1996, Trieste

Via N. Cozzi, 4 Trieste

+39 3396095616

paolabarbiani96@gmail.com

P. IVA n. 01362860320

Patente A1, B

Luglio 2021 - Presente

ESPERIENZE LAVORATIVE

Collaboratrice

Studio B&P | Arch. Paolo Mascarello

Progettazione architettonica e di interni | Rilievi e restituzioni grafiche | Rendering | Dettagli esecutivi di cantiere | Redazione pratiche edilizie | Computi Metrici Estimativi | Gestione delle maestranze e delle forniture

Professionista autonoma

PB | Interior

Progettazione di interni | Rilievi e restituzioni grafiche | Rendering | Dettagli esecutivi

Agosto 2020 - Marzo 2022

Collaboratrice

mM Archi Studio | Monica Maraspin Architetto

Progettazione di interni | Rilievi e restituzioni grafiche | Rendering | Dettagli esecutivi di cantiere | Redazione pratiche edilizie

Giugno 2014

Stagista

Geometra Andrea Miccoli

Rilievi e restituzione grafica | Computi metrici | Back office

FORMAZIONE

Settembre 2015 - Maggio 2021

Università degli Studi di Trieste

Corso di Laurea Magistrale a Ciclo Unico in Architettura

Tesi: "Tra terra e acqua: strategie di adattamento ai cambiamenti climatici per la città di Trieste"

Votazione finale: 110/110

Settembre 2010 - Giugno 2015

I.T.S. Deledda - Fabiani, Trieste

Perito in Costruzioni, Ambiente e Territorio

Votazione finale: 76/100

Aprile 2019

Progetto Paese Città accessibili a tutti con UNITS e INU (Istituto Nazionale di Urbanistica) | atlantecittaccessibili.inu.it | Trieste

Giugno 2018

Thinking Architecture - International Workshop con Enota, Hérault Arnod Architectures, Pinearq, Frediani+Gasser, Monochrome Arhitekti, Ordine degli Architetti PPC di Gorizia | Gorizia

Giugno 2017

Marzo 2014

Coffee Tales - Interior Design for coffee spaces con Arch. Maria Rita Baragiotta | Gorizia

Una ristrutturazione dallo sviluppo sostenibile con Agenda 21 | Trieste

Luglio 2020

Giugno 2020

Dicembre 2019

CORSI

UI/UX Design Specialization

Coursera | California Institute of the Arts (14h)

Making Architecture

Coursera | IE School of Architecture & Design (14h)

Revit avanzato

Revit Architecture 2020 | Autodesk (40h)

Gennaio 2014

Progettazione architettura tridimensionale liv. B (AutoCad 3D) ENAIP (120 h)

Marzo 2013

Elaborazioni tecniche per materiali edili EDILMASTER

Febbraio 2012

16 ore prima dell'assunzione - corso per la sicurezza all'interno del cantiere EDILMASTER (16 h)

COMPETENZE PROFESSIONALI

COMPETENZE COMUNICATIVE

INTERESSI PERSONALI

AutoCad 2D e 3D| Sketchup | Revit | Twinmotion | ArchiCAD | Illustrator | Photoshop | Indesign | Lightroom | Premiere PRO | Pacchetto Office

Italiano (Lingua madre) Inglese (Livello B1)

Interior Design | Fotografia minimalista | Postproduzione | Fotomontaggi | Disegno digitale | Montaggio video

WORKSHOP
Autorizzo il trattamento dei miei dati personali presenti nel curriculum vitae ai sensi del Decreto Legislativo 30 giugno 2003, n. 196 e del GDPR (Regolamento UE 2016/679).

Social Housing Gorizia

Il percorso delle statue

Tra terra e acqua: strategie di adattamento ai cambiamenti climatici per la città di Trieste

Casa DZ

Casa BS

Casa SP Casa

CONTENUTI
05 04 03 02 01 06 07
ST 08 Lavori personali

Social Housing Gorizia

2016

Laboratorio di Progettazione Architettonica Gorizia

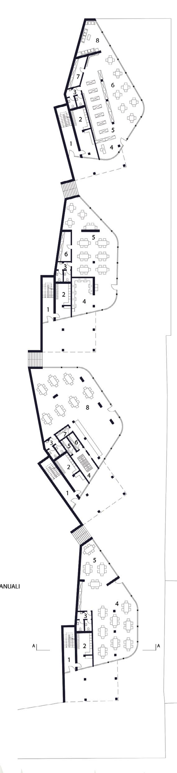
L’area di progetto è situata nel quartiere della Campagnuzza, a Gorizia. Obiettivo progettuale è quello di riqualificare questo spazio definendo una struttura adibita a social housing. Il processo ha avuto inizio suddividendo l’area in tre spazi: il primo destinato alla funzione di giardino comune; il secondo alla costruzione delle residenze e delle strutture collettive; ed il terzo principalmente come carrabile.

Gli edifici abitativi, di tre piani fuoriterra, si compongono di alloggi trilocali; mentre le strutture collettive ospitano spazi dedicati a laboratori, biblioteche, aree di studio e lavanderie. La facciata interamente vetrata di quest'ultimi permette di avere un rapporto tra interno ed esterno, e allo stesso tempo di avere uno spazio luminoso.

01 Progetto Accademico
Trieste Monfalcone Slovenia Austria Venezia Palmanova San Giovanni al Natisone Cividale del Friuli Gorizia Udine

Area di progetto Fiume Isonzo Aree verdi Nuove aree verdi Pista ciclabile esistente Nuova pista ciclabile Asse da potenziare Aree di sosta Fermate autobus Strada provinciale Strada regionale Strada di quartiere Ferrovia

1 0 m ni Rotazione
Processo
degli edifici residenziali
progettuale delle strutture collettive

Alloggi Spazi di aggregazione

1 Acesso residenze

2 Lavanderia

3 Servizi igienici

4 Assistenza

5 Biblioteca

6 Sala lettura

7 Deposito libri

8 Area relax

1 Accesso residenze

2 Lavanderia

3 Servizi igienici

4 Area computer

5 Aula studio

6 Deposito

1 Accesso residenze

2 Lavanderia

3 Servizi igienici

4 Cucina comune

5 Deposito

6 Celle frigorifere

7 Ripostiglio

8 Sala da pranzo

1 Accesso residenze

2 Lavanderia

3 Servizi igienici

4 Laboratorio attivi-

tà manuali

5 Area relax

Attacco a terra
Planimetria piano terra Planimetria piano primo
01 25 m
Planimetria piano secondo

Il percorso delle statue 2019

Allestimento e museografia Gorizia

L’area di progetto si inserisce nel Comune di Venzone (Udine), in un contesto religioso, caratterizzato dalla presenza del Duomo, dalla Cappella di San Michele, dalla Cripta e dalla Canonica. Lo spazio stesso risulta essere parte integrante del percorso di visita a questo contesto.

L’obiettivo del progetto è quello di proporre un luogo che abbia il compito sia di esporre le statue originali appartenenti al Duomo, che

di conservarle, conferendo a questo contesto religioso un ulteriore approccio culturale. I temi affrontati sono la relazione compositiva e visiva al Duomo di Venzone e al luogo circostante, il percorso e le connessioni visive.

L’edificio viene pensato come una struttura propria nel rispetto della preesistenza del muro in pietra; il muro perimetrale infatti segue la forma di quest’ultimo, generando una tensione fra i due.

02 Progetto Accademico
Cappella di San Michele Cripta esposizione mummie Duomo di Venzone Canonica Aula parrocchiale Via Glizolo di Mels ViaStella Palazzo Sormani

10

11

12

A’ A 1 2 3 4 5 6 7 9 8 10 11 12 -0,70 -0,80 ±0,00
1 San Michele 2 Adamo 3 San Giacomo 4 Angelo avancorpo Nord 5 Madonna dell’Annunciazione Est 6 Madonna avancorpo Nord 7 Eva 8 Angelo dell’annunciazione Est 9 San Giorgio Madonna Dolente Cristo San Giovanni
-0,70 -0,80 ±0,00 0,00
Sezione AA
Prospetto Nord-Ovest Vista dall'esterno

Il racconto inciso

Rame Parete in pietra

Profili in rame

Tensione tra nuovi elementi sospesi e preesistenze

Profilo in rame

Luci a LED

Copertura in calcestruzzo

Sostegno in acciaio

Parete in calcestruzzo

Copertura in calcestruzzo

Sostegno in acciaio

L’esposizione viene introdotta da pannelli descrittivi che descrivono le opere e le tematiche. La copertura sospesa e le pareti perimetrali tendono verso il muro di pietra preesistente, generando una tensione tra elementi di tempi storici diversi.

Calcestruzzo

Profili in rame

Parete in calcestruzzo

Parete in calcestruzzo

Il percorso assume un senso di dinamicità, ed inoltre è caratterizzato dalla presenza di un’apertura vetrata che si relaziona con l’interno dell’esposizione.

Sostegno in acciaio

in
Profili
rame Calcestruzzo

Calcestruzzo

Profili in rame Profili in rame

Rame Parete in pietra

Profilo in rame Luci a LED Parete in calcestruzzo Profilo in rame Luci a LED Parete in calcestruzzo

Copertura in calcestruzzo Sostegno in acciaio

Parete in calcestruzzo

un percorso libero. La spirale prodotta dai basamenti e dalle pareti raggiunge la statua del Cristo, la quale viene abbracciata da uno sfondo in rame, e la sua posizione è in funzione sia di darle importanza e di sacralizzarla, sia di creare un Profilo in rame Luci a LED Parete in calcestruzzo

La sala espositiva si apre con uno spazio fluido in cui il muro perimetrale si smaterializza in elementi verticali puntuali che ospitano le statue, le quali diventano parte integrante dell’architettura. La disposizione nello spazio dei cubi permette di osservare la statua da ogni angolatura secondo Parete in pietra

Tra

terra e acqua: strategie di adattamento ai cambiambienti climatici per la città di Trieste

2021

Tesi di Laurea Magistrale a Ciclo Unico Gorizia

L’articolo 1 della Convenzione Quadro delle Nazioni Unite (UNFCCC) del 1992 definisce

“cambiamento climatico qualsiasi cambiamento di clima attribuito direttamente o indirettamente ad attività umane, il quale altera la composizione dell’atmosfera mondiale e si aggiunge alla variabilità naturale del clima osservata in periodi di tempo comparabili.”

La tesi si sviluppa a partire dalla necessità di adattamento antropico

conseguente al cambiamento climatico in atto. Essendo Trieste una città che si affaccia sul mare é doveroso predisporre una serie di pianificazioni in virtù dell’imminente innalzamento del livello marino, che inevitabilmente coinvolgerà le nostre coste, in modo da essere pronti ad attuare sia delle contromisure, che soprattutto un riadeguamento del disegno costiero. Il progetto quindi mette in luce una serie di possibili opportunità di adattamento per quanto riguarda l’urbanizzazione del territorio e la relativa riprogettazione di alcune infrastrutture.

03 Progetto Accademico
Por to Vecchio Centro Storico Campo Marzio Por to Nuovo Lanterna

Una città di diversi paesaggi: la corona ambientale e sequenze

Una mobilità difficile: rete di infrastrutture

Trieste città soggetta ai cambiamenti climatici

Dal Porto Nuovo all altopiano Dal tessuto urbano all altopiano Bosco Bovedo Dalla spiaggia urbana all altopiano Bosco del Farneto Parco del Farneto Bosco di Trebiciano Pastini di Longera Parco della Rimembranza Pastini di Altura Pastini sul mare Campi agricoli Profondità del ma e 15 m P dità del ma 20 m P f dità del ma e < 5 m Tor en e Re e ambientale boschiva Mosai o delle g ole Pastini a e razze Pa chi pubblici Fila esis enti Pe co si di inte esse paesaggistico Iti io ci -pedonale ede e e punti p amici Confine comunale Miramare Porto Nuovo Impermeabilità visiva e fisica Permeabilità visiva e fisica R do au dale Strada statale sop aelevata Strade d accesso alla città P heggi scambia eggi di a Pis e ciclabili Iti pedonali T via esis Fer ovia Collega t ti T minal C ocie isti Confine comunale P o ondità del mare > 0 m P dità del ma e < m Innalzamento del livello del mare di m E osio e delle t To renti A da F via Livello attuale del mare Innalzamento del livello del mare di tre metri

Masterplan: sistemi interconnessi

Dalle analisi emergono delle criticità riguardanti i temi sviluppati, le quali conducono a definire delle macrostrategie progettuali in grado di risolverle. Il masterplan si pone l’obiettivo di far emergere la presenza di aree di interesse strategico.

Gli spazi di relazione con l'acqua

Avvicinarsi all'acqua

Un nuovo affaccio urbano per Trieste
Proteggersi dall'acqua Muoversi sull'acqua Drenaggio dell'acqua Stare sull'acqua Assorbire l'acqua Il rapporto con la strada pedonale Sezione A-A' Sezione B-B' Prospetto Nord Un sistema di piazze affacciate sul mare Lo sguardo verso il mare La piazza rialzata affacciata sul mare

Gestione dei diversi tipi di acqua

Deflusso e drenaggio dell'acqua piovana

EVAPORAZIONE

PRECIPITAZIONE

EVAPORAZIONE

DEFLUSSO

DEFLUSSO

Canale di drenaggio Alberature sempreverdi Tappeto erboso composto da specie microterme

TRATTAMENTO

TRATTAMENTO

Il prato drenante sulle rive cittadine

Tappeto erboso Specie arboree macroterme

La superficie ombreggiata drenante

INFILTRAZIONE

INFILTRAZIONE

EVAPORAZIONE

INNALZAMENTO

RILASCIO

INFILTRAZIONE

EVAPORAZIONE

INFILTRAZIONE RILASCIO

Superficie ombreggiata e di assorbimento Specie arboree macroterme

Freschezza e accoglienza sono le parole chiave che contraddistinguono l'intervento, accompagnate da un tocco di stile retro-chic. I maggiori cambiamenti comprendono lo spostamento della cucina, in modo tale da ottenere uno spazio continuo e comunicante con la zona living, la quale è presentata da un portale definito

da due librerie realizzate su misura. E' stata utilizzata una scelta cromatica che distingue le zone della casa tra loro. In particolare, in cucina è presente una predominanza del colore Bordeaux, mentre la zona living è caratterizzata da colori tenui e neutri, ed infine nel bagno è stato utilizzato il colore rosa con diversi tipi di finiture

Casa DZ 2021 | Trieste 04 Progetto di interni in collaborazione
Brand di progetto: 41zero42, Mirage, Gessi, Flos, Key Cucine, Photowall, Sklum, Muuto, Novamobili

Cucina lineare con isola e tavolo allungabile affiancato

Camera doppia Bagno con doccia walk-in con angolo lavanderia

Camera matrimoniale con letto ‘King Size’ e parete con carta da parati

Veranda/Studio con scrivania

Cabina armadio con armadiatura su misura

Living con divano componibile e parete TV dipinta con motivo geometrico

con librerie realizzate su misura

Guardaroba
Portale
ATRIO STANZA STANZA BAGNO STANZA STANZA CUCINA H 3.00 VERANDA TERRAZZO H 2.85 PLAFONIERA STRIP LED INTERNO ARMADIATURA (Da verificare con falegname per amadio su misura ed illuminazione) GOLA LED H 2.70 STRIP LED SOTTO PENSILI (INTEGRATI) H 3.00 H 2.85 SOSPENSIONI SOSPENSIONE 7 7 PLAFONIERA APPLIQUE CON BRACCIO STRIP LED SOTTO PENSILI (INTEGRATI) TERRAZZO CONTATORI LAV. 70 210 80 210 80 210 80 210 MADIA H 2.85 80 210 FORNO +MICRO LAVAST. H 2.85 H 3.00 H 3.00 LETTO KING SIZE TV SOSPESA POLTRONCINA SOSPESA LIBRERIA LIBRERIA H 2.85 MENSOLE PIANO COTTURA CON CAPPA INTEGRATA SCALDASALV. CANTINA FRIGO SCRIVANIA CONSOLLE Planimetria
Stato
Fatto Planimetria Progertuale
dello
di
Planimetria dell'Illuminazione
0.97 0.47 1.50 0.60 2.85 0.15 0.44 0.60 0.30 0.60 0.30 0.30 0.67 0.67 0.67 0.67 Color
Applique a globo Applique
metallo
Ottery//Maison Du Monde Mensole
LIBRERIA 1.80 3.00
Blocking di colore tortora
con braccio in
nero
in legno
Parete
soggiorno Leo Savanna -
Peach//Photowall Consolle
in legno e metallo Console in legno riciclato PEK// SKLUM Libreria passante in legno con ‘accesso’ frontale Libreria passante in legno con mensole e ancorate alla parete Specchio da parete in metallo Astrid//SKLUM
SPLIT
Illuminazione verticale con LED incassato

Rivestimento mix 41zero42 // Rose Hologram + Glossy + Matte 5x25 cm

Pavimento in gres Mirage // Glocal 60x60 cm

Casa BS

Contemporaneità ed eleganza per un appartamento ricercato. Il progetto prevede lo studio e la ridistribuzione degli spazi rendendoli più funzionali. E' stato realizzato un open-space tra la zona della cucina a U con penisola e la zona giorno, in modo tale da ottenere uno spazio ampio

continuo. Nella camera matrimoniale è stata ricavata una cabina armadio, attraverso una quinta posta dietro alla testata del letto. Infine i due bagni sono stati organizzati al fine di ricavare uno spazio nascosto dove poter disporre la lavatrice.

ELEGANTE CONTEMPORANEO RICERCATO

Trieste 05 Progetto di interni in collaborazione
2021 |
Brand di progetto: Mirage, Bontempi, Saba, Villeroy&Boch, Gessi, Gubi

Abbassamento H10 cm interno alla cabina armadio con spottini ad incasso

Abbassamento H14 cm sopra la TV e libreria con spottini ad incasso

PIANTANA PLAFONIERA SPECCHIO RETROILLUMINATO SPECCHIO RETROILLUMINATO PLAFONIERA PLAFONIERA PLAFONIERA H2.74 H2.60 H2.60 H2.90
H14
e LED sotto ai pensili Abbassamento interno doccia H20 cm con coppia di spottini ad incasso Abbassamento interno doccia H20 cm con gola LED 160 150 160 150 160 150 F 160 150 F 90 150 F 140 150 F 80 233 PF 148 148 F 72 148 F 53 148 F H3.00 H2.74 LAV. ASCIUG. TV SOSPESA 70 210 80 80 95 210 LAVAST. FRIGO 70 210 DIVANO LETTO LIBRERIA SCRIVANIA VETRATA 90 260 CONSOLLE SPECCHIERA LIBRERIA H74 DISPENSA LIBRERIA CAMINO BIOETANOLO H2.60 SCALDASALV. SCALDASALV. TV SOSPESA POUF BEAUTY MENSOLE Camera studio/ ospiti con divano letto Bagno con doccia a filo pavimento Camera matrimoniale con cabina armadio e angolo beauty Camera figlio con letto ad una piazza Angolo relax/lettura con poltroncine e ‘color blocking’ tortora Penisola con piano snack e tavolo affiancato alllungabile Bagno con angolo lavanderia Parete vetrata di separazione giorno/notte con porta battente e due fisse laterali Cucina a C con colonna frigo e dispensa integrati 160 150 F 160 150 F 160 150 F 160 150 F 90 150 F 140 150 F 80 233 PF 148 148 F 72 148 F 53 148 F CAMINO CALDAIA H3.00 H2.74 ARCO 100 85 210 80 210 80 210 70 210 80 210 70 210 95 210 CAMERA MATRIMONIALE CUCINA SOGGIORNO CAMERA CAMERA BAGNO WC DOCCIA BAGNO WC VASCA Planimetria dello Stato di Fatto Planimetria Progertuale Planimetria dell'Illuminazione
Abbassamento
cm con spottini ad incasso

Casa SP 2021

Un ampio e luminoso open-space e uno stile moderno e lineare era l'obiettivo da raggiungere per questa ristrutturazione. Attraverso pochi e semplici gesti di abbattimento dei tramezzi è stato possibile ottenere spazi ben definiti e continui.

L'ampia cucina con penisola comunica

direttamente con la zona living e pranzo, quest'ultima caratterizzata da una parete attrezzata per la TV su misura.

E' stato inoltre ricavato un vano lavanderia con accesso diretto al bagno principale, e modificato l'accesso al secondo bagno direttamente dalla camera matrimoniale.

Trieste 06 Progetto di interni
Brand di progetto: Mirage, Gessi, Veneta Cucine, Ikea, Maison Du Monde, Villeroy&Boch, Pergo, Inkiostro Bianco, Bontempi, Ceramica Cielo
SOGGIORNO CUCINA RIP BAGNO WC BAGNO WC CAMERA MATRIMONIALE CAMERA SINGOLA ATRIO LAVAST. FRIGO Camera matrimoniale con boiserie colorata di grigio
Zona
TV Bagno completo
zona lavanderia Bagno in camera da letto Cucina con penisola con colonna frigo e forno integrati FRIGO SOSPENSIONI SOSPENSIONI SOSPENSIONI SOSPENSIONE LAMPADA DA TERRA STRIP LED GOLA LED GOLA LED PLAFONIERA PLAFONIERA PLAFONIERA APPLIQUE APPLIQUE H2.70 *L’intero appartamento viene abbassato di 15 cm Planimetria dello Stato di Fatto Planimetria Progertuale Planimetria dell'Illuminazione
Camera singola Ingresso con armadio a muro su misura
living con tavolo da pranzo e parete
con

Rivestimenti

Soggiorno - Pranzo

Camera

Pareti color grigio tortora

Bagno doccia ospiti

Pareti color grigio tortora Carta da parati Inkiostro Bianco // Haru Paraschizzi e piano cucina in gres effetto marmo Mirage // Cosmopolitan // Calacatta Gold

Bagno doccia camera

Gres effetto resina Serenissima // Metallo Titanio

Gres effetto resina Serenissima // Metallo Bianco

Gres effetto cemento Marazzi // Alchimia

Gres effetto cemento Ceramica rondine // Concrete Sand

Pavimenti

Gres effetto cemento Ceramica Rondine // Concrete White

Laminato in rovere PERGO // Rovere moderno grigio

SCALDASALVIETTE 0.20 0.20 0.36 0.53 1.08 0.40 0.40 0.30 0.67 0.44 MOBILE LAVABO INTEGRATO 0.80 0.60 1.48 0.80 1.65 0.89 PORTA FILO MURO BIANCA 70 210 0.20 0.40 0.50 PORTA SCORREVOLE BIANCA 70 210 SANITARI SOSPESI 0.40 0.22 H CASSETTA WC 0.36 0.53 1.08 2.65 0.15 H BOX DOCCIA 2.20 H SOFFIONE ABBASSAMENTO CON GOLA LED PERIMETRALE SPECCHIO RETROILLUMINATO 0.60 0.80 0.12 0.40 1.05 0.90 H SOPRA MOBILE H MISCELATORE 1.50 1.26 2.00 1.10 0.30 0.40 0.50 1.10 H GRUPPO MISCELATORI 0.40 2.65 0.15 ABBASSAMENTO CON GOLA LED PERIMETRALE 1.38 SCORREVOLE INTEGRATO
Scelta dei materiali
Disegni esecutivi per il bagno principale

Casa SP

Il progetto prevede la ristrutturazione di una villetta con uno stile elegante e moderno dai toni neutri. Da un accogliente ingresso si entra in un ampio open-space con una cucina a U con penisola e la zona giorno, in modo tale da

ottenere uno spazio ampio continuo. La camera matrimoniale è caratterizzata da una decorazione a boiserie dietro al letto, mentre una delle due stanze singole è stata adibita a cabina armadio.

ELEGANTE MODERNO ACCOGLIENTE
2021 | Staranzano 07 Progetto di interni
Brand di progetto: Orac Decor, Mirage, Treemme, Veneta Cucine, Maison Du Monde, Villeroy&Boch, Pergo, Bontempi, Ceramica Cielo
TAVOLO ALLUNGABILE 16 px PANCA CAMINO PORTA FILO MURO DIPINTA COLONNA LAV. +ASCIUG. RIPIANI MENSOLE COLONNA FRIGO COLONNA FORNO LAVAST. TAVOLO ALLUNGABILE 6 px LIBRERIA APPENDIABITI DA PARETE Planimetria Primo Piano Planimetria Piano Terra Planimetria Piano Interrato

Disegni esecutivi per l'ingresso

Disegni esecutivi per la camera matrimoniale

1.10 2.60 Ø 120 cm 0.20
Pittura color tortora (Sikkens - ZN.00.81) Pannelli 3D in poliuretano bianchi (Orac Decor - Valley) Specchio rotondo retroilluminato
0.70 2.60 0.80 0.66 1.20
Battiscopa bianco H6 cm Pittura color tortora (Sikkens - ZN.00.81) Pannelli 3D in poliuretano dipinti (Orac Decor - Valley; Sikkens - ZN.01.71) Specchio rotondo retroilluminato Mobile Beauty in rovere Ø 80 cm

Immaginare la città

Storie d'interni
E se...?

Quotidianità

Turn static files into dynamic content formats.

Create a flipbook
Issuu converts static files into: digital portfolios, online yearbooks, online catalogs, digital photo albums and more. Sign up and create your flipbook.