EDUCATION
Savannah College of Art & Design
Bachelor of Arts / Interior Design
Minor in Fibers
Graduation Year: 2026
• AutoCad
• Revit
• Enscape
• Lumion
• Presentation Skills
• Project management
• Collaboration and Communication
• Adaptability and Creativity
• Color theory
• Hand Rendering
• Material Selection
EXPERIENCE ANALOGUE SKILL
Internship at Volante Studio Caracas, Venezuela ( Jun 2024- Aug 2024)
• Photoshop
• MicrosoftOffice
• Procreate
• Illustrator
• InDesign
LANGUAGES SOFTWARE SKILL
• Spanish / Native
• English / Bilingual proficiency
Design Support: Assist senior designers with mood boards, sketches, and presentations.
Research: Gather information on materials, furnishings, and trends.
Drafting & Renderinvg: Create floor plans and 3D visuals using design software (Revit, AutoCAD, SketchUp).
Site Visits: Observe installations, assess spaces, and track project progress.
Collaboration: Contribute ideas and participate in team brainstorming.
Retail Sales Associate
GAP Inc; Savannah, GA (Jan 2023 - Nov 2024)
Customer Service: Greet customers warmly and assist with inquiries.
Spatial Planning: Arrange store layout to enhance flow and create an intuitive shopping experience.
Visual Merchandising: Design product displays that highlight key pieces and seasonal trends.
Organization & Maintenance: Ensure shelves, fixtures, and displays remain tidy and well-stocked.
01 02 03 04 05
SENSCAPE
HOSPITALITY
VESTER HEADQUARTERS
WORKPLACE
FRANK CALLEN BOYS & GIRLS CLUB
ASSEMBLY / EDUCATIONAL
ENCHANTED ABOVE
RESIDENTIAL
PHOTOGRAPHY
A collection of Architectual photography





Senscape goes beyond traditional spa experiences by offering a holistic approach to wellness that nurtures both the body and mind. Through sensory engagement, individuals are encouraged to slow down, breathe deepvly, and embrace the present moment. This intentional design not only provides physical relaxation but also supports mental clarity and emotional balance, making Senscape a sanctuary for inner peace and rejuvenation.

Senscape is designed as an experiential sensory escape, drawing inspiration from the restorative qualities of nature. The spa creates an immersive environment where visitors can engage with their surroundings through a curated blend of natural elements.
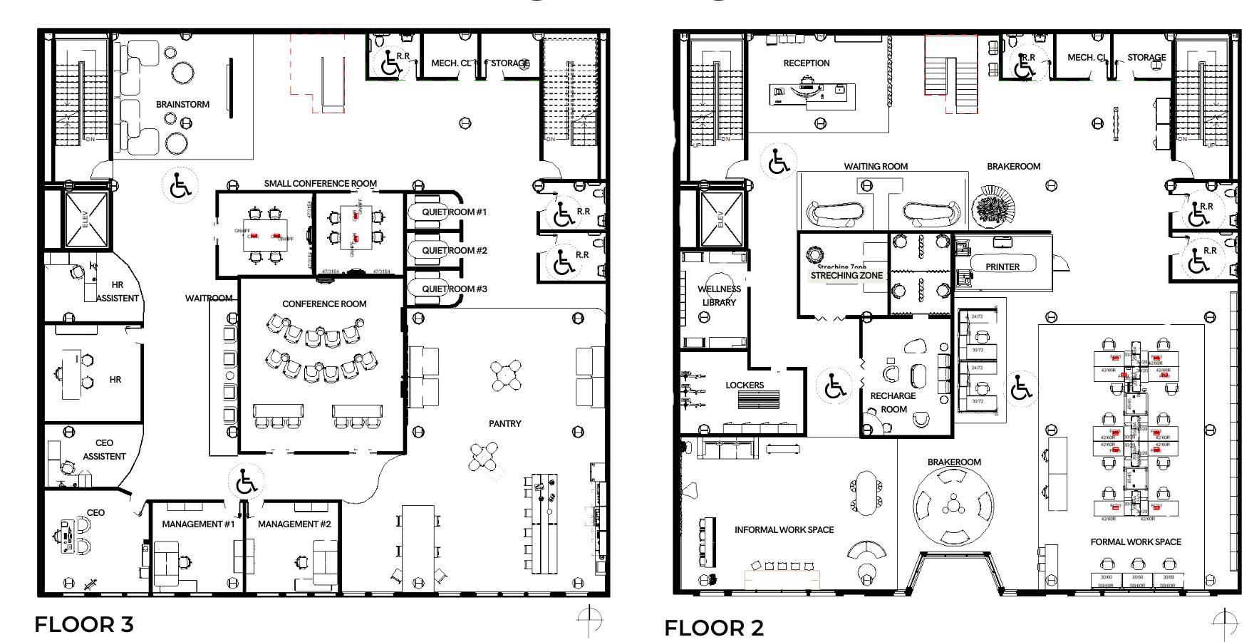
FLOOR PLAN

A clearly defined zoning strategy ensures logical and intuitive movement through the space. Public, semi-private, and private zones are seamlessly connected, allowing employees and visitors to navigate without disruption. Circulation paths are open yet guided, creating a fluid and focused environment.


The Vetster office is designed to reflect the company’s dual focus on cutting-edge virtual care and compassionate service. Through a thoughtful mix of adaptable zones and intuitive design, the space enhances productivity while staying rooted in warmth and empathy.



Recognizing the need for both collaboration and focused individual work, the office features flexible layouts that support various working styles. Movable partitions, soft seating areas, and modular desks encourage seamless transitions between tasks.
Every design decision reflects Vetster’s mission: connecting people and pets with expert care. From the welcoming reception area to collaborative lounges and private zones, the office reinforces the company’s values of well-being, trust, and connection.

FUTURE PLANS

FUTURE PLANS


COLOR SCHEME

FUTURE PLANS

LONG TERM GOALS

ENCHANTED ABODE
Project Type: Residential– Interior Design
Client: Jonathan & Jeremy
Focus: Personalized Living Space
Tools Used: Hand Rendering, Marker, Pencil, Ink, Photoshop
This space will create a vibrant atmosphere by implementing exuberant colors, unique patterns, and amusing textures. Vibrant hues like yellows, oranges, and blues will infuse the space with vitality and excitement. Visual appeal will be enhanced through the incorporation of texture and vibrant colors. Natural light will optimize through windows and open floor plans to foster a zestful atmosphere, while indoor plants will bring freshness and vigor. Unique shapes, blending of materials, and textures will further contribute to the whimsical ambiance. The whimsical accent will add a touch of fun and creativity, with eccentric art installations, unusual furniture, and distinctive decor creating a playful and enjoyable environment.
WHIMSICAL

ZESTFULL EXUBERANT










PHOTOGRAPHY







