Skip to main content

Architecture Portfolio 2026

Page 1


owen kinyua

born in kiambu, kenya based in biel, Switzerland

murtenstrasse 14

2502 biel CH

atelier | bureau

murtenstrasse 14

2502 biel CH

Mixologist & Senior Service Person - KafKaf Biel

2025 - current Biel - Be 2025 - 2026

Barista & Salesperson - Edu’s Coffee and Clothes

Architect in Training - ellipsearchitecture 2024 - 2025

Foodrunner - JustEat Switzerland 2023 - 2024

Animation Team Leader - Migros Conthey

Barista & Salesperson - Coffee Coaching Club

Aide de Cuisine All-rounder - Culinary Artist 2023

Playwright Play Director - Alliance Francaise

Cinematographer - Department of Film at 2020 - 2022 2021

Kenyatta University

Film Director - Department of Film at

Kenyatta University

Translator EN-SW-KY at Kenyatta University

Bachelor of Cinema - Kenyatta University

Baccalaureat Gymnasium KCSE - Magereza Academy

Draughtsperson apprenticeship - CEPM

Professional Mixologist and Barkeeping/Bartending

ECUS preparation for BA of Law at UNIFR - PrEP

Barista training - Coffee Coaching Club

Martinet

Lieu

architectural projects

Renovation and transformation of a villa.

Renovation of a Chalet.

Stabio

Mollens

Polny

Champs-Soleil

Chantemerle

Rama

Valmont

Becque

Malvaglia

Trefle Blanc

contact information +41 79 910 56 83 arbeit@owenkinyua.ch

home address www.owenkinyua.ch

A poet-artist trainee architect - trainee designer based in Biel switzerland. With experience in cinematography and photography, my creations, designs and ideas are deeply rooted in emotional clarity, refined aesthetic and liminal undertones. My practice is designed to support thoughtful and philosophic introspection through the intentional conceptualisation of space and objects. Anchored by my obsession with sound and light, how they interact and are intertwined, my productions and photographs reflect the minimalism discovered through the exploration of sound, light and space.

I’m a great lover of the outdoors and travelling with deep knowledge of different types of coffee as I grew around coffee farms in Kenya as a child. I enjoy taking photos of everything that makes me feel like a poet, making good food at home as well as exploring all different kinds of cultures through their cuisine, and most importantly being around people and sharing what we know and understand about the world around us.

MS Office Suite

Extension and renovation of a villa into student accommodation. Renovation and transformation of the Chateau de Mollens

Transformation of a villa into apartements.

Transformation of a discontinued motocycle parking lot into apartments. Transformation of a parking lot for the Ecole de Chantemerle. Fiscal calculations for an annexed grange in the North of Lausanne. Renovation and transformation for the Ecole Francaise de Valmont. Construction and execution for a luxury villa at the shores of the Leman. Feasibility study of a villa in Ticino.

Designs for materials presentation for the City of Geneva at the MUDAC.

relevant competences

& More than 5 years of experience with MS Word, MS Excel & MS PowerPoint.

Adobe Creative Suite

& More than 3 years of professional experience and expertise with a Adobe Indesign, Adobe Photoshop, Adobe Lightroom and professional familiarity with Adobe Premiere Pro.

Architectural Software

& More than 2 years of professional experience and expertise with 3D modeling software

for architecture and object design - VectorWorks, Rhinoceros 3D Blender.

Photography and Cinematography

& expertise in film-composition and image-composition in addition to colour correction, video editing and colour-grading on the DaVinci Resolve software for film editing.

other relevant skills

& trained and certified mixologist - bartender by Barfachschule Remo Thorig.

& expertise and professional sales knowledge of coffee machines from coffee machine brands La Marzocco and Flair Espresso. trained barista by Coffee Coaching Club.

& expertise in gastronomy with training and experience in a high-end restaurant.

english kiswahili

natiVe speaKer + Mother tongue natiVe speaKer + Mother tongue kikuyu french natiVe speaKer + Mother tongue

fluent - polyglot leVel c2 german japanese

conVersational leVel a2

Beginner leVel n5 languages spoken

exploring different materiality. architecture, paintings, different media. renditions of objective subjectivity.

verre brut. verre.

art in architecture. exploring forms in art. architecture thru art.

concrete in architecture as a statement against itself.

exploring different materiality. architecture, paintings, different media. renditions of objective subjectivity.

verre brut.

verre.

art in architecture. exploring forms in art. architecture thru art.

concrete in architecture as a statement against itself.

exploring different materiality. architecture, paintings, different media. renditions of objective subjectivity.

verre brut. verre.

art in architecture. exploring forms in art. architecture thru art.

concrete in architecture as a statement against itself.

exploring different materiality. architecture, paintings, different media. renditions of objective subjectivity.

verre brut. verre.

art in architecture. exploring forms in art. architecture thru art.

concrete in architecture as a statement against itself.

select projects

Martinet

Schematic Design

Design Development

Construction Documents

Bidding and Negotiations

The Martinet is a project situated in the city of renens, part of the bigger agglomeration of the city of lausanne, capital of the Canton of Vaud, switzerland

A villa located in the lush green neighbhourhood located next to a park and a school, Martinet is defined by its zone and the architectural challenge was didacted by the Zone d’habitation de faible densite A - ZHFD A.

My participation and individual contributions to Martinet were to design several contributions that made the bigger part of the project that being sketching and designing the project phase drawings, making of calls to tender for different sections of the project and the conceptualisation and designing of the execution phase elements.

The contributions include the renovation project drawings for the garage and the windows on each of the facades - execution drawings in addition to the call for tender for the annexed garage, the conceptualisation and execution phase design for a new bathroom on the renovated first floor, the detailed execution drawings for the stairwell leading from the exisiting ground floor to the new first floor, detailed execution drawings for the balcony guardrail on the new volume, and the execution drawings for a new roof structure with attention to the timber cladding that encompassed the new volume that was the focal point of the project. These contributions were finalised by the 3D visualisation of the entire villa structure with a focus on the new volume in 3D for client and enterprise presentation.

The drawings sketches and designs made for this project include 2D drawings from the architectural modeling software Vectorworks. The 3D drawings were achieved with the use of the 3D modeling software Rhinoceros. The axonometries shown were sketched and designed on the Vectorworks program as well.

Ville de renens
Martinet
ZHFD A
northern facade at a hundreth scale
eastern facade at a hundreth scale
southern facade at a hundreth scale
western facade at a hundreth scale

general section aa at a hundreth scale

general section bb at a hundreth scale

3d render of the northern facade
3d render of the eastern facade
3d render of the southern facade
3d render of the western facade

axonometric 3d render of the project

axonometric 3d render of the project

axonometric 3d render of the project inclusiVe of the new Volume with details of the timber cladding, new windows and the roof structure
axonometric 3d render of the project inclusiVe of the new Volume with details of the timber cladding, new windows and guard-rail
axonometric 3d render of the project inclusiVe of the new Volume with details of the timber cladding, new windows and the roof structure
axonometric 3d render of the project inclusiVe of the new Volume with details of the timber cladding and a new window

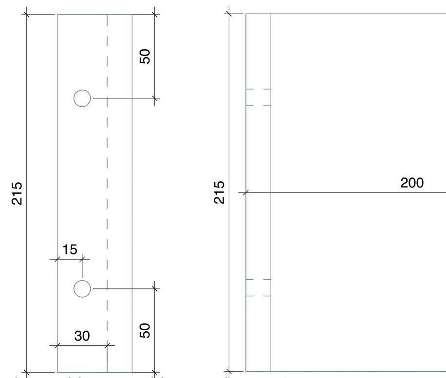
These 2D drawings pertain to the detailed execution drawings that were designed on the Vectorworks software. They entail general and detailed plans of the new beams to be put into place during renovations. The drawings specify the relationships between the new beams A and B and the existing beams that were found in the existing structure.

These details allowed for the designing and implementing on the Rhinoceros 3D software. This enabled the comprehensible client and enterprise presentation of the execution of the project as well as the challenges that would occur during the transformation. These 2D drawings made on Vectorworks were imported on to Rhinoceros for 3D visualisation.

axonometric 3d render of the proposed stairwell
axonometric 3d render of the proposed stairwell
3d render from rhinoceros of the guard-rail on the first floor on the southern facade
eleVation 01 of the proposed bathroom on the first floor
eleVation 02 of the proposed bathroom on the first floor
eleVation 03 of the proposed bathroom on the first floor
axonometry 01 of the proposed bathroom on the first floor
axonometry 02 of the proposed bathroom on the first floor

Lieu

Schematic Design

Design Development Building Permitting Construction Documents

The Lieu is a project located on the side of the Jura mountain range overlooking the lac de Joux situated in the Jura-Vaudois region of the Canton of Vaud, switzerland

Lieu is a project that constitutes a chalet in a zone where external construction is not permitted. This is because there are railway tracks nearby and this is a challenge that dictated the amount of exterior renovation works that could be done on the project. This limitation means that the transformation and the renovation of the chalet was limited to the interior of the building.

My participation and contributions include taking of measurements of the existing structure in situ and the sketching and designing the floor plans, the sections and facades from the measurements taken. These drawings and designs allowed for the laying out of the proposed renovation works which include the redesigning of the upper floors and the staircases leading to them, as well as a laying the groundwork for the renovation of the insulation around the building. In addition to the new proposed layout that was submitted for official review by the municipal authorities of the Municipality of Lieu, the fire escape plans were also established.

The drawings, sketches and designs made for this project include 2D drawings from the architectural modelling software Vectorworks.

eastern facade at a hundred and tenth scale
southern facade at a hundred and tenth scale
western facade at a hundred and tenth scale

Stabio

Schematic Design

Design Development

The Stabio is an architectural project situated in the italian speaking Canton of ticino in the southeastern part of switzerland. The project is situated a few kilometres from the swiss italian border.

Stabio is a villa situated in zone with less density and this fact allowed for the conceptualisation of the transformation and renovation of the villa into student accommodation. The existing structure is a 2-floor family villa with no basement and the idea of the project revolved around the addition of a new floor on the existing structure and through interconnected balconies and terrace, connect a new conjoined villa to the existing structure. This would allow the floor space of each apartment, one on each floor, to span across both villas, enabling the space to cater for its new tenants, those being students ideally from the main university of the italian speaking part of switzerland

My role in the project was to collaborate with the architect in-charge in finding the layout of the new garage in the new second villa, as well as finding a solution for roof of the newly renovated structures. This was accomplished by sketching and designing several variations of the model of the project until we found one that was validated by the clients. My participation in the project also involved brainstorming to find ideal natural material that would be used in the execution of the project.

Drawings, sketches and designs made for this project include hand-drawn sketches as well as 2D drawings from the architectural modelling software Vectorworks.

northern facade at a hundreth scale
eastern facade at a two hundreth scale
southern facade at a two hundreth scale
western facade at a two hundreth scale

Mollens

2024 - 2025

Schematic Design

Design Development

Building Permitting

Construction Documents

Bidding and Negotiations

Construction Administration

The Mollens is an architectural project situated in the Jura-Vaudois region in the municipality of Montrichier, in the Canton of Vaud, switzerland

Mollens constitutes of a castle dating from the 15th Century AD and the project comprises of several structures on the parcel, two northern and southern wings, an annexed rural space, a pigsty as well as the primary castle. Mollens is an interesting project in all as it involved several parties that participated in the feasibility studies, the conceptualisation and visualisation of the space as well as and not limited to determining the limitations of the project that lay ahead due to its Level 2 Architectural Protection Heritage. This challenge posed limitations to the architects in-charge of the project and increased delivery deadlines as this elevated status required some back and forth communication between the office and the DGIP - direction generale des iMMeuBles et du patriMoine

My participation in Mollens involved discussing and collaborating with the architects in-charge of the different sections of the project. I participated in the taking of measurements in situ and visual documentation for the creation of an explicative dossier for the DGIP, the direction generale des iMMeuBles et de patriMoine, updating, sketching as well as designing the facades of the building on the parcel, conceptualising and designing the execution of a chimney for the heating renovation of the main castle. My primary focus however was collaborating and working on the southern wing of the castle. This involved taking measurements and photographic documentation of the carpentry of the wing, the designing and creation of the model at a 1 to 33 scale and designing the stairwell propositions for the southern wing.

The high level of Architectural Heritage of the buildings required sourcing of floor plans and elevation drawings as well as all sorts of media of all the structures on the parcel. This challenge required me to spend a good amount of time, around 9 hours, in the Cantonal Archives of the Canton of Vaud at the University of Lausanne in order to prepare the project presentations for the Cantonal authorities as well as helping the clients understand the limitations that the project produced on the execution of their visions.

The drawings sketches and designs made for this project include 2D drawings from the architectural modelling software Vectorworks. The 3D drawings were achieved with the use of the 3D modelling software Rhinoceros.

ensemble one of facade of the chateau de mollens at a two hundred and fiftieth scale
ensemble two of facade of the chateau de mollens at a two hundred and fiftieth scale
north-western facade of the rural at a hundreth scale
north-western facade of the southern wing at a seVenty fifth scale
south-eastern facade of the southern wing at a hundreth scale
south-western facade of the southern wing at a hundred and fiftieth scale
south-western facade of the rural at a hundreth scale
south-eastern facade of the rural at a hundreth scale
north-eastern facade of the rural at a hundred and thirty fifth scale
north-eastern facade of the chateau de mollens at a hundred and thirty fifth scale
north-eastern facade of the southern wing at a hundred and tenth scale
eastern facade of the pigsty at a seVenty fifth scale
western facade of the pigsty at a seVenty fifth scale
southern facade of the pigsty at a seVenty fifth scale

This specific section entails the execution level detail drawings of the renovated chimney that pertained the transformation and renovation works of the heating of the main castle.

The challenge was to preserve as much of the roofing tiles as possible in order to meet requirements of the dgip. The patterns in the roofing tiles had to remain as original as found, in order to preserve the visual integrity of a structure with such degrees of protection.

My contribution was to sketch and design the new chimney all while working with the existing structure, as well as guaranteeing the waterproofness of the roof where the chimney protudes from the roof.

All the detailed drawings shown except the 3D render from Rhinoceros are at a scale of a twentieth.

northern facade of the pigsty at a seVenty fifth scale
detailed
3d render of the proposed chimney
section drawing of the southern wing with the proposed spiral stairwell
3d sketch of the spiral stairwell from rhinoceros
section drawing of the southern wing with
stairwell
sketch of the landing stairwell from rhinoceros
Polny

Polny

Schematic Design

Design Development Construction Administration

The Polny is a project situated in the municipality of epalinges, located in the northern part of the greater agglomeration of lausanne, the capital of the Canton of Vaud, switzerland

Polny is a project that involved schematic design of the renovation and transformation of a villa into two apartments and the fiscal evaluation and estimation of the transformation works involved during the renovation. Polny constituted of a villa for sale and my role under the supervision of the architect in-charge of the project was to define the value of the property according to the value added during the planned construction for when the clients purchased the project.

My participation and contributions to the project include the taking of measurements of the existing structure in situ, the visual documentation of the existing structure, the sketching and designing of the proposed layouts of the inferior ground floor to be renovated and transformed into an apartment with access to a terrace, and the designing of the elevator adapted to persons with reduced mobility.

The drawings, sketches and designs made for this project include 2D drawings from the architectural modelling software Vectorworks.

north-eastern facade with the proposed eleVator at a hundred and fiftieth scale

first layout proposition of the renoVated inferior ground floor at a scale of a hundred and fiVe

second layout proposition of the renoVated inferior ground floor at a scale of a hundred and fiVe

third layout proposition of the renoVated inferior ground floor at a scale of a hundred and fiVe

Champs-Soleil

Pre-design Development

Bidding and Negotiations

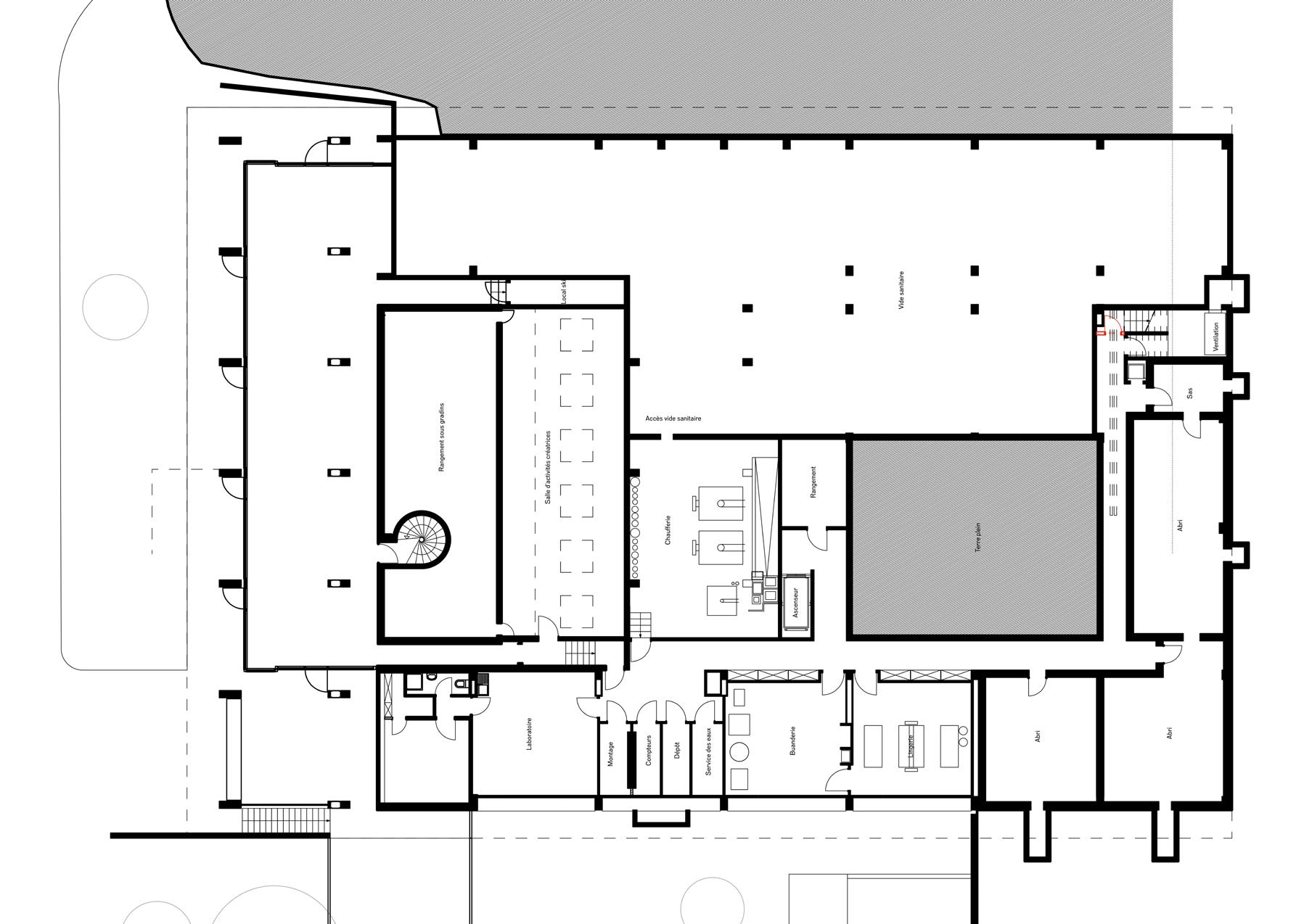
The Champs-Soleil is a project situated on a slope in the north of the city of lausanne, the capital of the Canton of Vaud, switzerland. Mandated by the Retraites Populaires to architecture offices with experience with renovations, our architecture office participated in the call to tender.

The Champs-Soleil as an architectural project is constituted of a commercial building with a discontinued parking lot for motorcycles on the third basement floor. The goal of the project was to design and create solutions for the discontinued space and take advantage of the lushness of the surroundings around the project as well as the abundant surface on the floor.

The architectural challenge of the Champs-Soleil project was to design the conversion, renovationtransformation of the space into liveable quarters with great attention paid to the lack of natural luminosity due to the surface area of the small existing windows of the parking lot. The four apartments were an obligation for this project and my contributions to finding the solutions for these problems were to arrange and collaborate with the architect in-charge of the call to tender in finding suitable surface areas of the proposed apartments, calculating the surface areas of the windows and the designing of these windows that would luminate the apartments with regards to the surface areas of the apartments and coming up with solutions for the balconies and or terraces that we proposed for each apartment in addition to finding the materials that would be constituted in the construction of the apartments.

My participation and contributions were spread across 2D and 3D presentation of the proposed solutions for the transformation and renovation of the space to the Retraites Populaires through the Vectorworks software and the Rhinoceros software, as well as assisting in the drafting of the call to tender application.

render of the proposed fourth appartment from rhinoceros
render of the proposed second appartment from rhinoceros
render of the proposed fourth appartment from rhinoceros
render of the proposed second appartment from rhinoceros

Chantemerle

Design Development

Building Permitting

The Chantemerle project is situated in the eastern part of the agglomeration of the city of lausanne the capital of the Canton of Vaud, switzerland. The project is a private educational institution called the chanteMerle international school

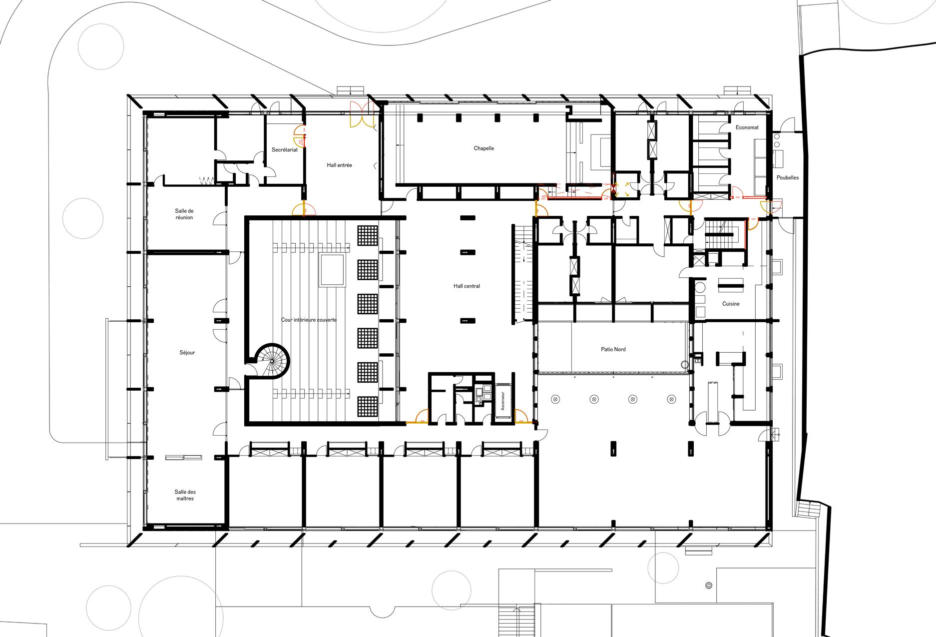
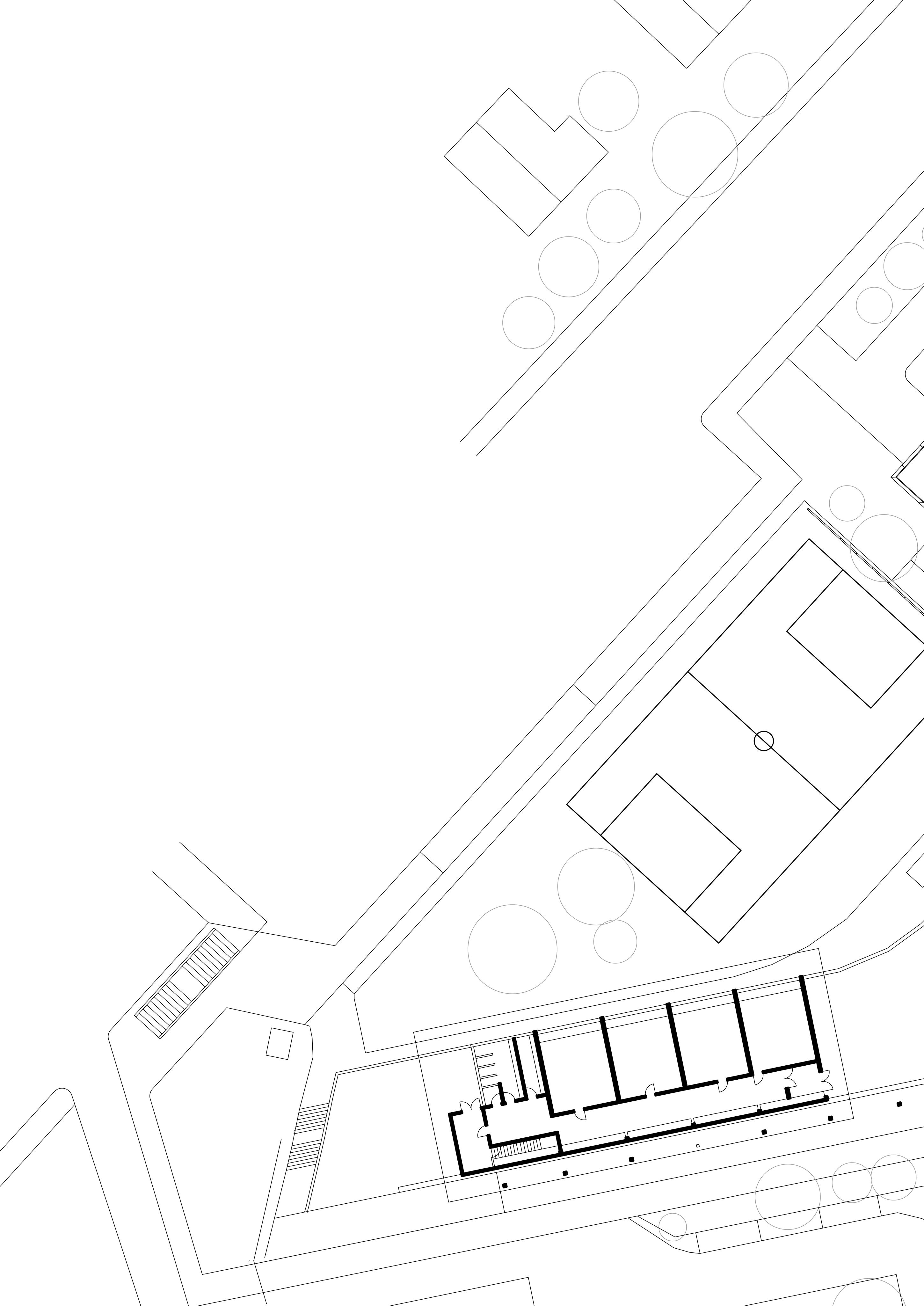
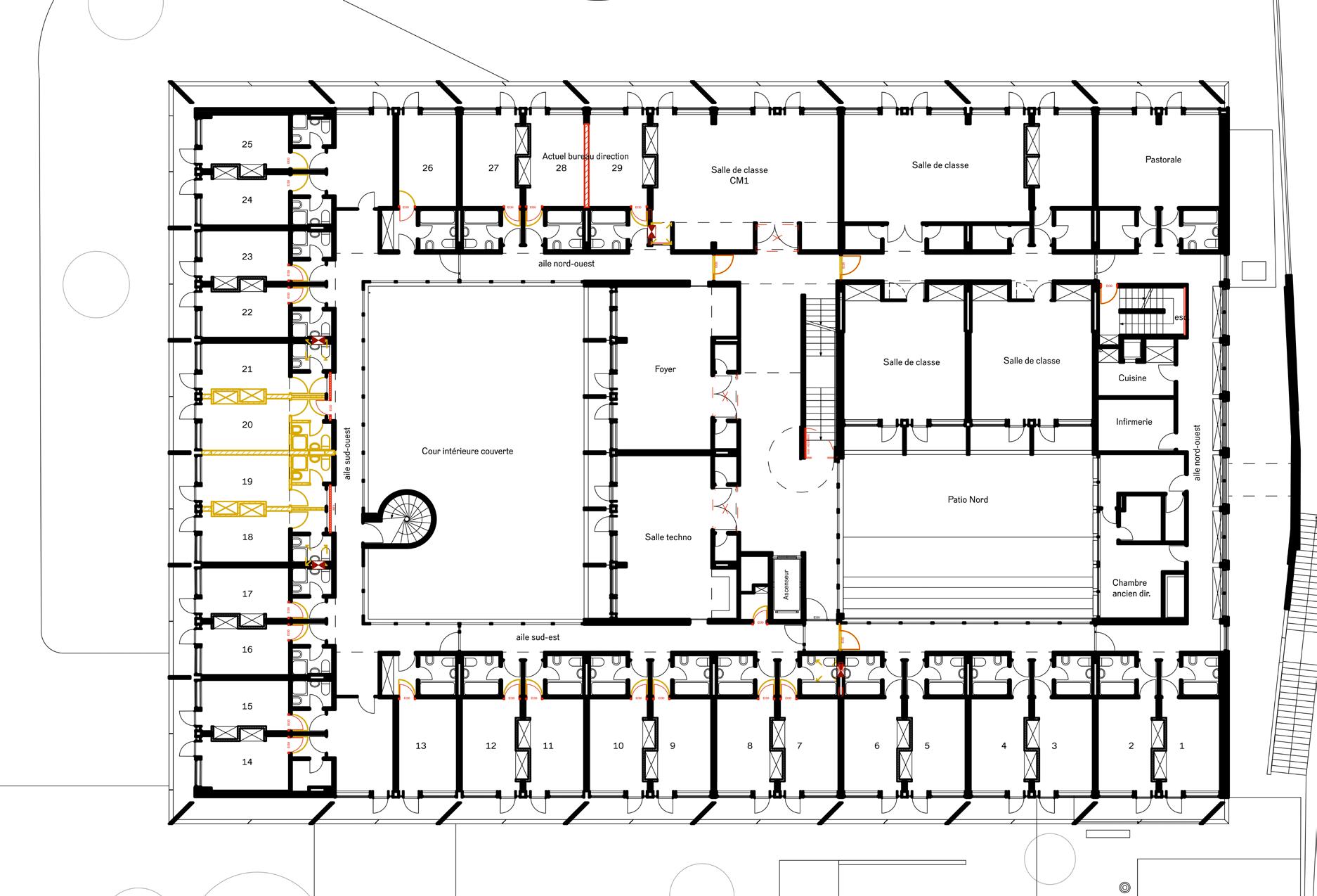
The Chantemerle is an architectural project that consists the renovation and transformation of the school that was awaiting permissions and official building permits from the municipality of the city of lausanne. The project not only involved the transformation of the building but also the renovation of the landscape on which the school is situated. The school is located on a parcel on a slope, and it possesses a particularly abundant portion of land through which a secondary road runs, as well as a parking lot that was the focal point of my contributions to this project.

My participation in this project was to update the situational plan by sketching the measurements taken by the architect in-charge of the project in 2D on Vectorworks as well as designing the sections drawings and landscape plan drawings of the parking lot using the land surveyor’s data. This data provided information of the severity of the slope which was crucial in the understanding of how many more parking spaces we could add to the existing parking lot, how much land we would have to excavate and how much and what kind of material we would use to make the parking lot structurally sound.

Some challenges that arose during the designing of the project were those of the protection status of some of the trees situated on the parcel next to the existing parking lot, and the existence of the secondary road that is falls under municipal protection since the road sits on the municipality’s parcel. The solution to these problems were found by limiting the number of parking spaces that could be added on the parcel.

The architectural landscape situational plan and the sections were provided to the municipality of the city of lausanne and an official request for the construction permit was made.

landscape plan of the project with the proposed renoVated parking lot in focus at a scale of a hundred and seVenty fiVe

section drawing cc of the proposed parking lot at a scale of a hundred and twenty fiVe

section drawing bb of the proposed parking lot at a scale of a hundred and fifty

Valmont

Pre-design Development

Design Development

The Valmont architectural project is situated in the north-eastern part of the city of lausanne, the capital of the Canton of Vaud, switzerland. The project is a private educational institution under the name institut sainte-Marcelline

Valmont is a project that was mandated to the architecture office to upgrade the outdated fire safety standards and update the fire compliance measures according to the new measures. These improvements to the Valmont project included the renovation and transformation of the doors of the existing classrooms of the school. These specific changes fell under the design development phase of the project that ongoing when the task of updating the architectural outdated floor plans was mandated to me by the architect in-charge of the project.

My participation and contributions to Valmont involve the updating of the architectural floor plans by finding the structural axes and drawing the existing doors on the floor plans that were to be upgraded to match the updated fire safety norms. My contributions to these floor plans also provided the commencement of the Pre-design Development phase of the project that was being organised. The Pre-design Development phase would involve the renovation and transformation of the classrooms on select floors of the building into dormitories for the students that would live on the school premises. My updated floor plans facilitated the discussions with the clients about the future transformation of the school as well the zonal, budgetary and structural limitations that the project would face during the transformation and renovation.

These architectural floor plans were drawn and updated in 2D on the Vectorworks software.

Trefle Blanc — Cooperative Origo

Schematic Design

Design Development Construction Documents

The Trefle Blanc is a design project mandated to ellipsearchitecture sarl by Cooperative Origo, a cooperative that the architecture bureau is a part of.

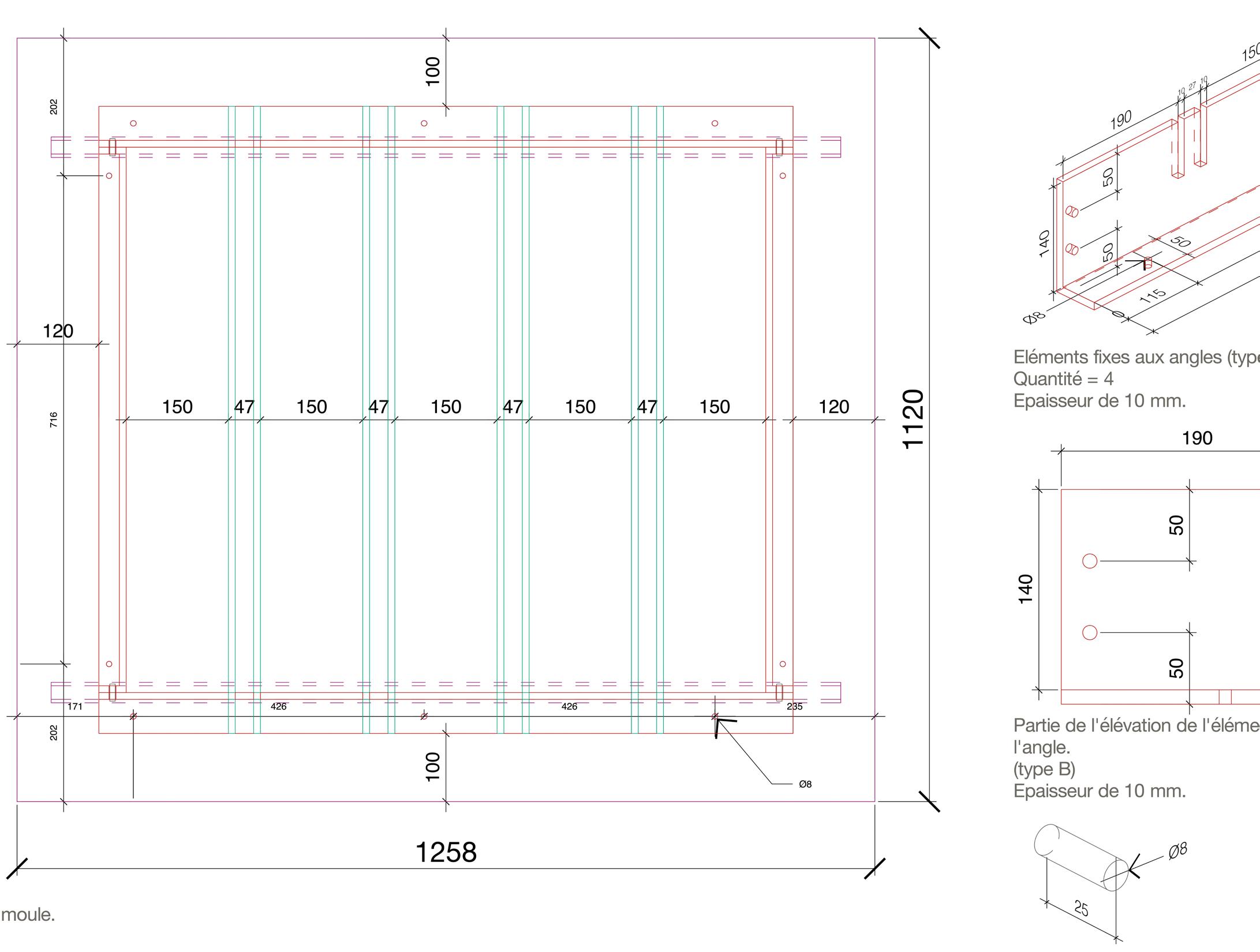
Trefle Blanc as a project constitutes the sketching and designing of mock-ups and formworks for the presentation of materials for a competition held by the City of Geneva for the renovation of a sports hall. The materials that the Cooperative Origo proposed for the project were the following

& Earth Bricks & Hempcrete & Rammed Earth

My role and participation in this project was to design the mock-ups and the formwork for the mentioned materials for their presentation at the Musee de Design et d’Art Contemporain Mudac in Lausanne in November 2025. This role also comprised of organising and coordinating with the enterprise mandated with the construction of the formworks.

The drawings, sketches and designs made for this project include 3D drawings and renders from the architectural modelling software Rhinoceros.

detailed plans, element specifications, eleVations, and axonometries of the designed metallic piece for the transportable formwork from rhinoceros

detailed rendered axonometries of the designed mockup-framework for the rammed earth and the hempcrete formwork from rhinoceros
hempcrete framework at the museum of contemporary design and applied arts in autumn of 2025.
hempcrete framework at the museum of contemporary design and applied arts in autumn of 2025.
hempcrete framework at the museum of contemporary design and applied arts in autumn of 2025.
unwavering, and shaped by a love of humanity, and has nothing whatsoever to do with exterior forms and formalist acrobatics.
quote by Lina Bo Bardi, 1976.

Turn static files into dynamic content formats.

Create a flipbook