Franklin | Alder & Tweed | Cool Scheme

Page 1

*Designer Renderings are purely conceptual and are intended to represent design intent and imagery of hard finishes and hardwired decorative lighting that are provided by the developer.The designer has the ability to make changes to the furnishing packages for items that may be discontinued.The developer has the ability to make changes to the finishes/lighting package as needed.

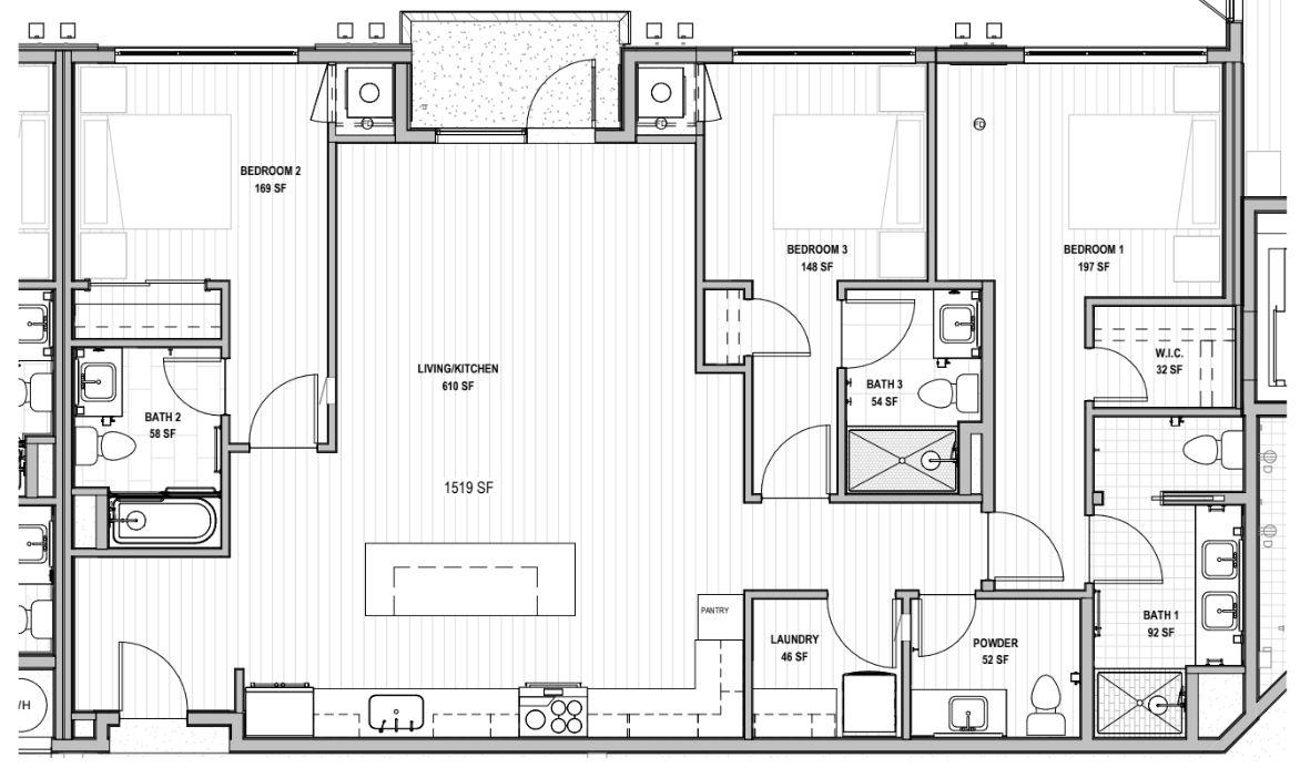
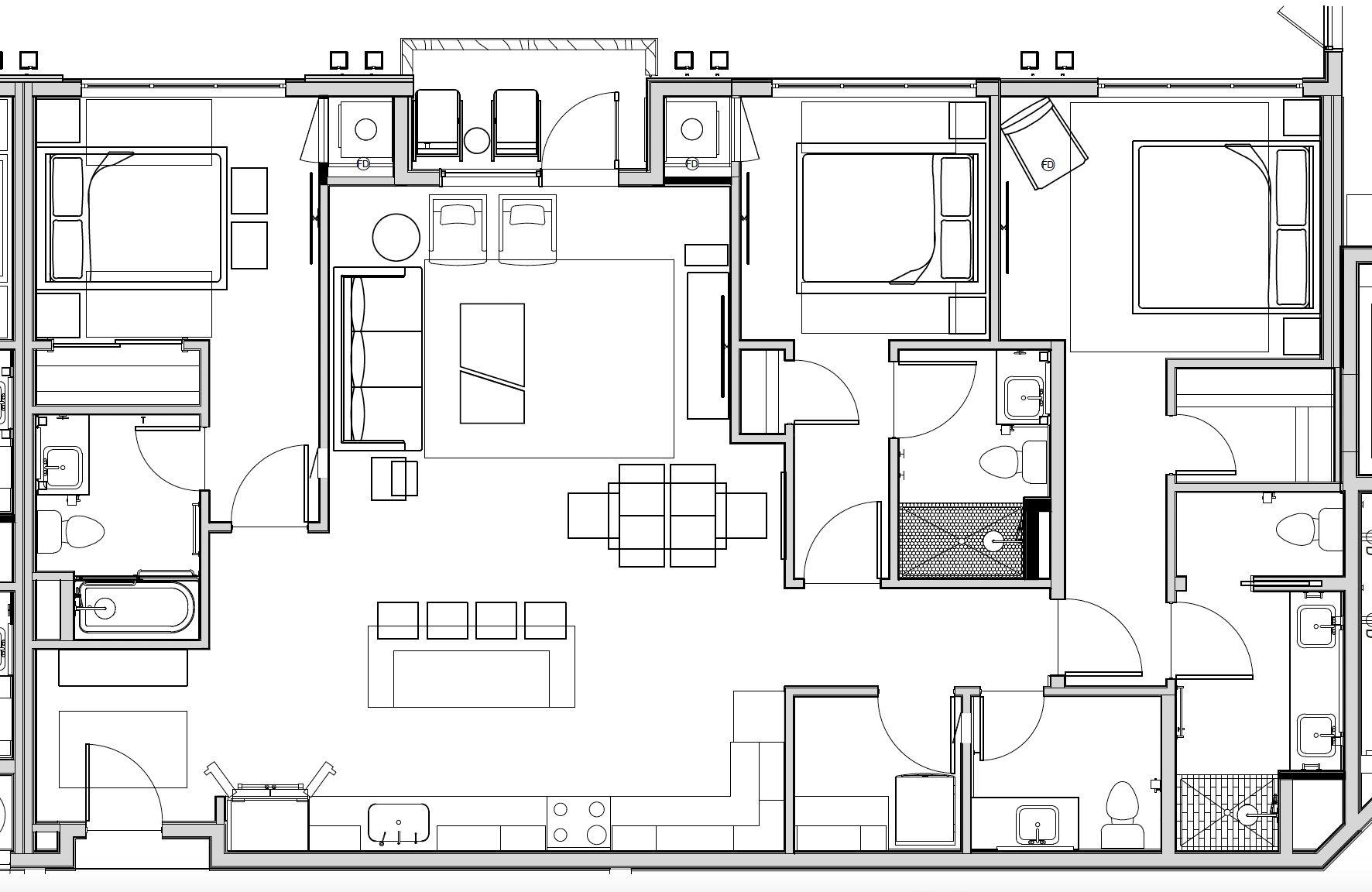
PG.3 FRANKLIN RESIDENCES | UNIT 2B OVERALL FLOOR PLAN

FOYER | FLOOR PLAN, FINISHES & FURNITURE

A. CONSOLE FINISH

B. MIRROR FINISH

C. AREA RUG

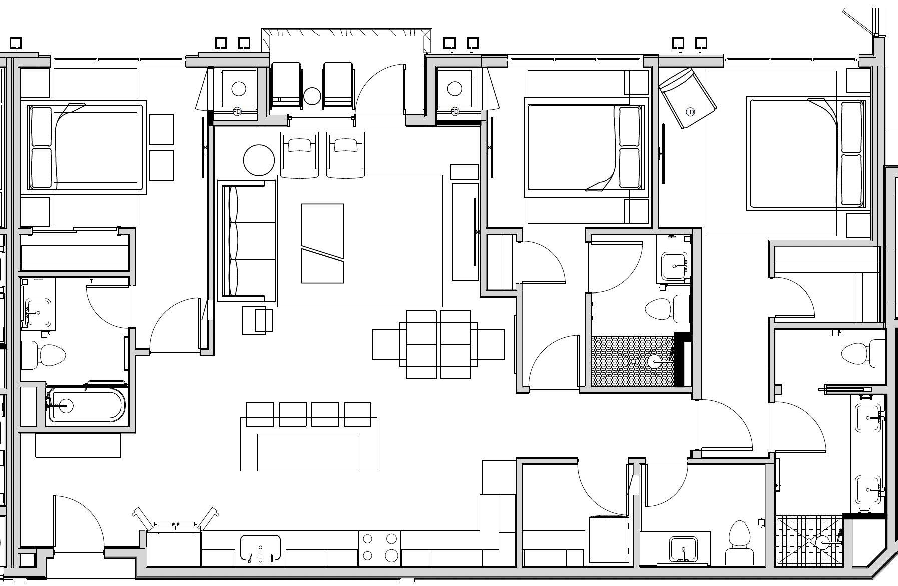
FRANKLIN RESIDENCES | UNIT 2B
PG.4
B.
MIRROR
KITCHEN | FLOOR PLAN & FURNISHINGS PG.5
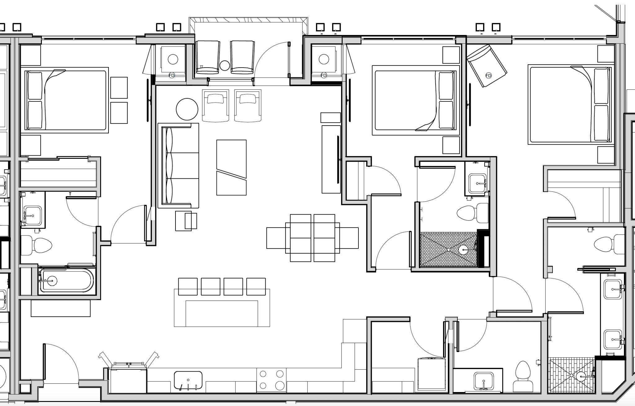
FRANKLIN RESIDENCES | UNIT 2B
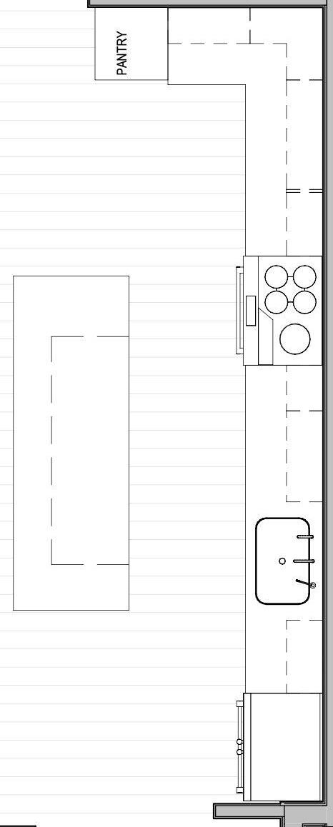
KITCHEN | FLOOR PLAN, FINISHES & FURNITURE PG.6
FRANKLIN RESIDENCES | UNIT 2B A. B.

DINING ROOM | FLOOR PLAN, FINISHES &

A. DINING TABLE FINISH

B. DINING CHAIR FINISH

PG.7
ART
FRANKLIN RESIDENCES | UNIT 2B A. B.

LIVING ROOM | FLOOR PLAN & FURNISHINGS

PG.8 FRANKLIN RESIDENCES | UNIT 2B
FRANKLIN RESIDENCES | UNIT 2B LIVING ROOM | FURNITURE
PG.9

LIVING ROOM | FABRICS & FINISHES

A. SOFA FABRIC

B. SOFA WOOD FINISH

C. SOFA PILLOW

D. SOFA PILLOW

E. SOFA PILLOW

F. SOFA PILLOW

G. LOUNGE CHAIR FABRIC

H. LOUNGE CHAIR FINISH

I. MEDIA CABINET FINISH

J. COFFEE TABLE FINISH

K. ROUND TABLE FINISH

L. NESTING TABLE FINISH

M. ART

N. AREA RUG

O. TABLE LAMP FINISH

P. *DRAPERY FABRIC

*NOT INCLUDED IN BASE PACKAGE

FRANKLIN RESIDENCES | UNIT 2B

M. K. B. A. H. N. C. F. O. E. D. G. I. J. L.
K. *P.

A. LOUNGE CHAIR FINISH

B. LOUNGE CHAIR ROOPING FABRIC

C. LOUNGE CHAIR CUSHION FINISH

D. DRINKS TABLE FINISH

OUTDOOR PATIO | FLOOR PLAN, FINISHES & FURNITURE FRANKLIN RESIDENCES | UNIT 2B
A B D.

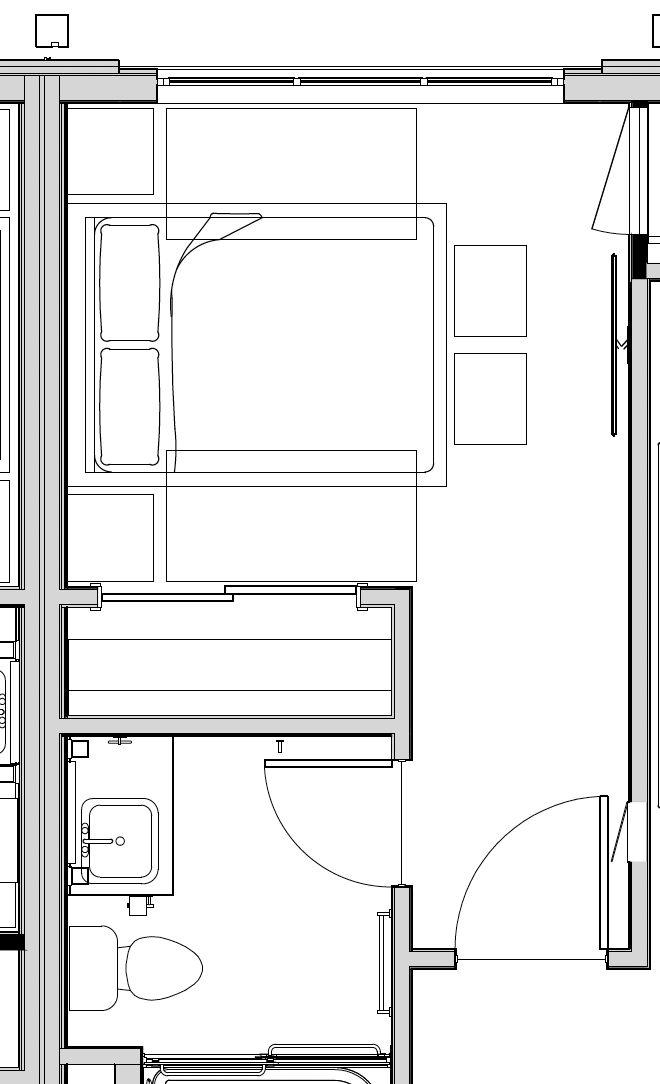
MASTER BEDROOM #1 | FLOOR PLAN & FURNISHINGS

PG.12 FRANKLIN RESIDENCES | UNIT 2B

MASTER BEDROOM #1 | FURNITURE (KING BED)

PG.13 FRANKLIN RESIDENCES | UNIT 2B

K. *DRAPERY FABRIC

L. *ACCENT WALLCOVERING

*NOT INCLUDED IN BASE PACKAGE

FRANKLIN RESIDENCES | UNIT 2B

PG.14
H.
MASTER BEDROOM #1 | FABRICS & FINISHES
J. I. A. B. C. D. G. F.
*K. *L.
E.
PG.15 FRANKLIN RESIDENCES | UNIT 2B
| FLOOR PLAN
MASTER BATHROOM #1
BEDROOM #2 | FLOOR PLAN PG.16 FRANKLIN RESIDENCES | UNIT 2B

BEDROOM #2 | FURNITURE (QUEEN BED)

PG.17 FRANKLIN RESIDENCES | UNIT 2B

L. *ACCENT WALLCOVERING

*NOT INCLUDED IN BASE PACKAGE

FRANKLIN RESIDENCES | UNIT 2B

B. PG.18
A. BEDROOM #2 | FABRICS & FINISHES
C. D. I. J. H. G. F. E. *K. *L.
PG.19

BEDROOM #3 | FURNITURE (QUEEN BED)

PG.20 FRANKLIN RESIDENCES | UNIT 2B

A. BED FABRIC

B. BED FINISH

C. BED PILLOW

D. BED PILLOW

E. BED THROW

F. NIGHTSTAND FINISH

G. ART

H. BED DETAIL

I. RUNNERS

J. *DRAPERY FABRIC

K. *ACCENT WALLCOVERING

*NOT INCLUDED IN BASE PACKAGE

PG.21 FRANKLIN RESIDENCES | UNIT 2B
G.
BEDROOM #3 | FABRICS & FINISHES
H. F. I. E.
*J. *K.
C. D. A. B.

HOUSEWARES | KITCHENWARES

PG.22 FRANKLIN RESIDENCES | UNIT 2B

HOUSEWARES | KITCHEN & GENERAL

PG.23 FRANKLIN RESIDENCES | UNIT 2B

HOUSEWARES | BATHWARES - POWDER BATH

PG.24 FRANKLIN RESIDENCES | UNIT 2B

HOUSEWARES | BATHWARES - FULL BATHS

PG.25 FRANKLIN RESIDENCES | UNIT 2B

HOUSEWARES | BED LINENS & MATTRESSES

PG.26 FRANKLIN RESIDENCES | UNIT 2B | 3 BEDROOM | HOUSEWARES

*WINDOW TREATMENTS AND WALLCOVERINGS ARE NOT INCLUDED IN THE BASE PACKAGE PRICING, DESIGNER MAY PROVIDE ADDITIONAL PRICING PER CLIENT REQUEST PER UNIT.

Order Authorization

Designer and Client have finalized Client’s selections and corresponding invoice (Invoice # ), hereinafter the “Invoice”. Client hereby confirms that they have chosen the attached selections of their own volition after consulting with Designer. Client hereby further confirms that the Invoice Designer has presented to Client accurately reflects the agreed upon price between Designer and Client for the selected products. Therefore, Client hereby authorizes Designer to proceed with ordering the selected products and to bill the Client for the price reflected in the Invoice.

Client Signature:

Home Owner

Date:________________

BY: ___________________________________
PG.27 FRANKLIN RESIDENCES | UNIT 2B | 3 BEDROOM

Turn static files into dynamic content formats.

Create a flipbook
Issuu converts static files into: digital portfolios, online yearbooks, online catalogs, digital photo albums and more. Sign up and create your flipbook.
Franklin | Alder & Tweed | Cool Scheme by Outlaw Partners - Issuu