

Olusegun Sowunmi
Olusegun John
I am an emerging architectural designer with a strong interest in the intersection of design, technology, and environmental responsibility. My work is driven by a belief that architecture should be both performative and meaningful, with all intention geared towards a better human experience. Through my academic training, I have developed strong skills in conceptual thinking, spatial organization, digital modeling, and visual communication, using tools such as BIM softwares and diagrammatic analysis to translate ideas into clear architectural propositions. value architecture as a process of inquiry, one that balances research, iteration, and precision and I approach each project with a commitment to clarity, sustainability, and thoughtful integration of systems, structure, and context.

About Me
Olusegun Sowunmi John
University of Ilorin Bachelor of Architecture l 2015-2020
P.V.A.M.U Master of Architecture l 2024-2026
April 7th
johnolu489@gmail.com osowunmi1@pvamu.edu
Skillets
Conceptual Freehand Sketching
Design Communication & Diagrammatic Translation
BIM Modeling & Documentation (Rhino, Auto-desk Revit)
Collaboration & Team-Based Design
3DS Max (Corona)
Analytical Design Thinking
Graphic Layout & Visual Storytelling
Role Models
Mr. Taiye Sowunmi
Francis Kéré
David Chipperfield

The Great Green Centre
Brief Overview The Great Green Center is a research-driven architectural project exploring the translation of biological morphology into structural and spatial systems. Through analytical studies of avian skeletal and feather structures, the design establishes a cohesive framework that integrates form, structure, and environmental performance.
Site Sarapiqui, Heredia Costa-Rica
Type Research & Environmental Center
Floor Area 21,360m 2
Height 45ft Aviary Enclosed
Project Academic Studio Project
Skill Research-to-Design Translation & System-Based Architectural Thinking


Morphological Analysis: Avian Wing Structure
This project begins with a focused study of the avian wing skeletal system, specifically examining the relationship between three primary structural bones. Rather than replicating the literal form of the wing, the analysis extracts underlying principles of articulation, hierarchy, and structural continuity. These principles were abstracted into a series of linear structural bands that organize the building’s form, circulation, and spatial rhythm. The resulting architecture is not symbolic, but system-driven, translating biological efficiency into a coherent architectural framework.
The design process began with a series of parti studies exploring different ways the structural band system could organize the building. Each parti tested variations in band alignment, spacing, and articulation in order to evaluate their impact on structural clarity, spatial hierarchy, and circulation efficiency.
Early parti options emphasized formal expression but resulted in fragmented circulation and reduced structural legibility. Subsequent iterations refined the relationship between the bands, prioritizing continuity, repetition, and directional clarity.
The final parti was selected for its ability to unify form, structure, and circulation under a single organizing logic. By aligning the structural bands to reinforce primary movement paths and programmatic zones, the chosen parti provides a clear spatial hierarchy while maintaining flexibility across different research and support spaces. This decision ensures that the building’s form remains a direct outcome of its structural system rather than an applied gesture.
Parti Development: Band Structure
Site Analysis: Environmental Context
Building Analysis: Program Context
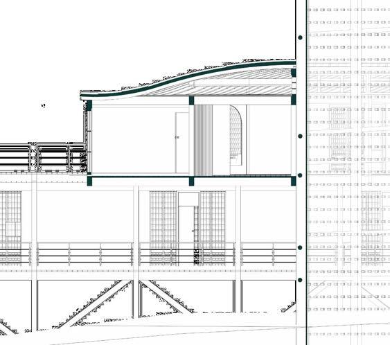
The axonometric illustrates the building as an integrated structural system organized by the three primary bands. To clarify how this system operates across scales, a portion of the building is extracted to examine the relationship between structure, enclosure, and spatial organization.
This extracted segment is further isolated into a single module, allowing for a focused study of the structural framework and its repeatability. The modular investigation demonstrates how the structural logic established at the building scale is consistently applied at the component level, ensuring coherence between overall form and localized construction strategies.
Envelope Strategy: Feather Morphology
In addition to the skeletal analysis, the project incorporates a morphological study of avian feathers to inform the building envelope. The study focused on the layered organization and directional overlap of feathers, extracting principles of filtration, modulation, and controlled permeability rather than literal form.
These principles were translated into a jalousie-based louver system that regulates light, airflow, and visual permeability along the façade. The exploded diagram illustrates how individual louver elements aggregate into a patterned system, while the final rendering demonstrates the envelope’s environmental performance and visual depth when applied at the building scale. This approach allows the façade to operate as an adaptive environmental filter directly derived from the project’s broader research framework.



Structural System and Modular Study


Billie Park
Brief Overview This hospital project explores how environmental responsiveness and functional clarity can enhance healthcare environments. The design originates from a single mass strategically divided into three volumes to improve breath-ability, daylight penetration, and spatial efficiency. Integrated shading devices with planter systems further support thermal comfort and patient well-being, ensuring that sustainability is embedded within both form and operation.
Site Awolowo Road, Ikoyi Lagos.
Type Healthcare Facility
Floor Area 91,360m 2
Height 60m l 6 Storeys
Project Public BID
Partner Daniel



An Infield site
This site sits on a big parking lot across the Lagos Lagoon that runs through Third Mainland Bridge. This part of the city has been dealing with a rise in Urban Heat Island (UHI) Index which is caused by the annual growth of the city.
This is worsen by Lagos Island lack of open green spaces, with only 4.65m2 of open green spaces per capita. As a comparison, Singapore has 60.0m2 of open green spaces per capita and Vienna has 120.0m2
Institutional mixed use
The idea is to transform this sea of concrete into a downtown oasis.
To do so this project tries to revive the area by adding new pedestrian activities, and programs such as commercial, retail and cafes.
Form and Environmental Concept
The hospital massing is derived from a single volume divided into three parts to improve breathability, daylight access, and environmental performance. The resulting voids and shaded transitions reduce bulk while enhancing airflow and user comfort.

PHARMACY
The hospital integrates sustainable strategies and locally sourced materials as fundamental design drivers. Environmental considerations inform spatial organization, material selection, and façade performance, ensuring that sustainability directly enhances patient experience and building efficiency.



MADENO
Brief Overview This residential project explores the role of light, shadow, and material layering in shaping interior experience. The design is organized around dominant window openings that introduce controlled daylight into the space, allowing illumination to define spatial hierarchy and texture. Exterior glazing strategies and carefully selected materials work together to create a refined, contemporary interior grounded in subtle cultural expression.
Site Central Business District, FCT Abuja.
Type Residential Building
Project Residential Project
Skill Client Intent Translation & Atmospheric Design Strategy



The interior strategy begins with the identification of primary window openings that anchor the spatial experience. These major apertures establish the dominant direction of daylight and define focal moments within the interior.

The exterior glazing system further reinforces this concept by allowing a concentrated ray of light to penetrate deeply into the space. This controlled entry of light becomes a defining element, shaping shadow patterns, material contrast, and visual rhythm throughout the interior.

Building upon this framework, the atmospheric direction explores how light interacts with texture, neutral materials, and subtle cultural references. The resulting environment is guided by luminosity and shadow rather than ornamentation, allowing natural light to articulate space, depth, and identity.





Lamingo
Brief Overview
This golf course proposal was envisioned as both a recreational destination and a landscape-integrated design study. The layout balances challenging fairways with accessible play, weaving natural topography, water features, and native planting into a cohesive experience. Clubhouse facilities, practice areas, and pedestrian pathways are positioned to optimize views and circulation, creating a tranquil environment that enhances player engagement while respecting the site’s ecological character.
Site Jos, Nigeria
Type Resort
Floor Area 1.4 Acres
Height 2 Floors
Theme Revitalization
Partner Daniel




Olusegun Sowunmi
RESUME
Architecture Portfolio
Selected Works 2020 - 2025
Version 2.0 (PDF)
johnolu489@gmail.com