
THE ASCENT
ECO LAB
CULINARY CRAFT





![]()

THE ASCENT
ECO LAB
CULINARY CRAFT





2025, 7 WEEKS

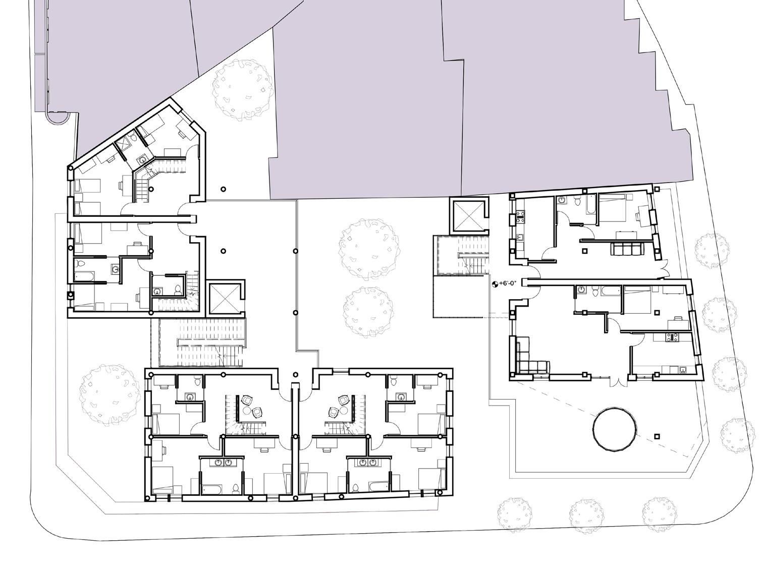
The Gateway Gardens reframes affordable housing through spatial thresholds. Inspired by the historic babs of Tétouan, The Gateway Gardens uses hovering volumes to frame a free-plan ground floor with cafes, markets, and intergenerational housing above. Courtyards, mashrabiya-screened circulation, and passive ventilation shape a climate-responsive environment, while the massing wraps an existing building fragment to connect past and present through contrasting tectonic and stereotomic forms.











LONGITUDINAL SECTION




SECOND FLOOR

FIRST FLOOR
2024, 10 WEEKS

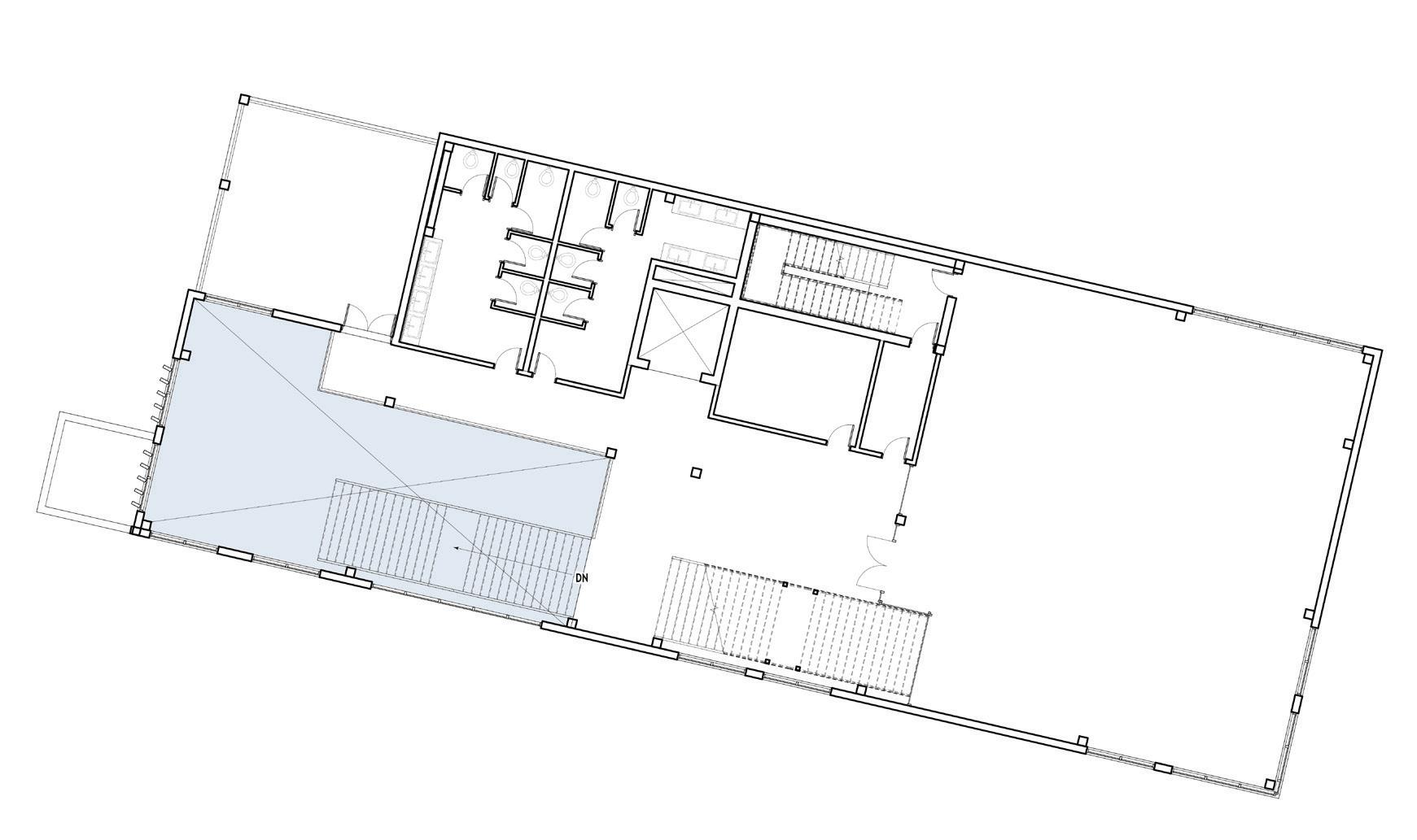
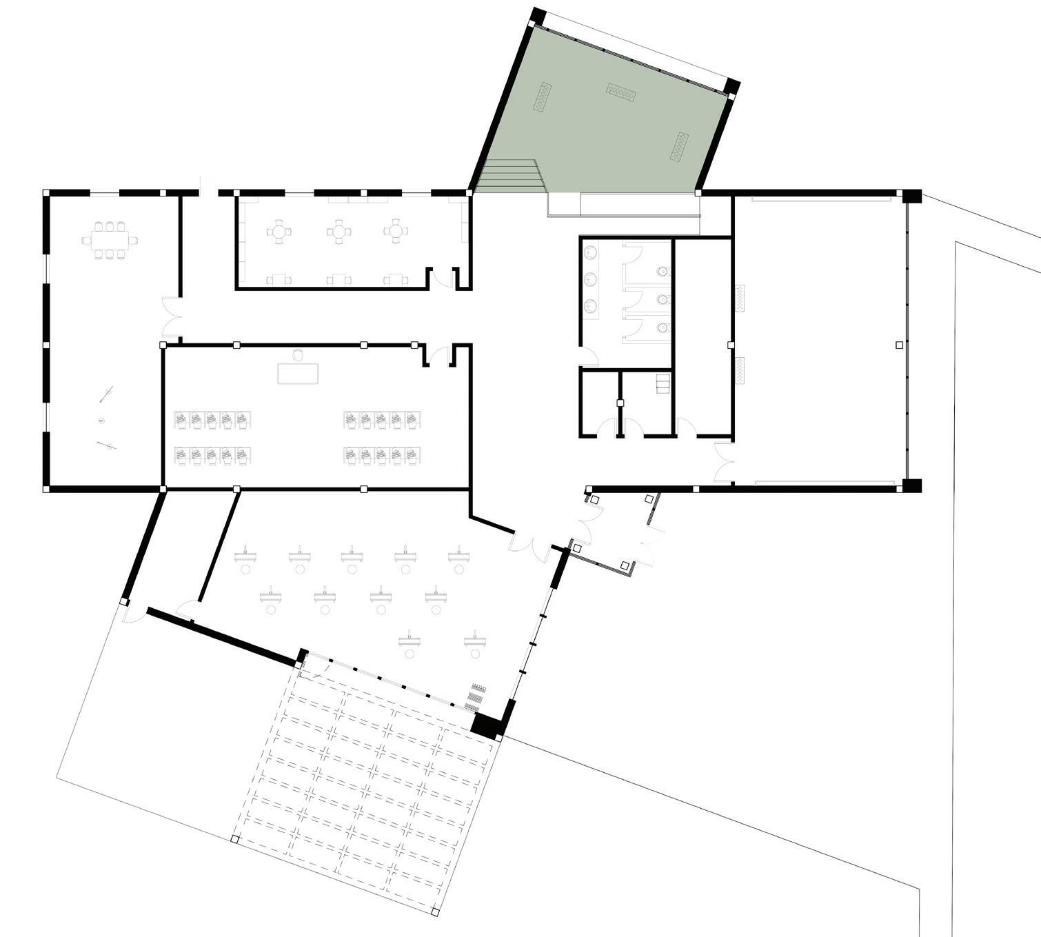
Architecture becomes a physical act of ascent. Designed for the New Building Institute, The Ascent is an office and community assembly space organized around a processional stair that culminates in a double-height event hall spanned by expressive king post trusses. Transparent curtain walls reveal moments of movement and gathering, while daylight-driven planning, integrated shading, and a subtle interior response to site grade reinforce hierarchy, performance, and experience.






GROUND FLOOR
SECOND FLOOR


FIRST FLOOR



2023, 7 WEEKS







SECTION
Environmental performance becomes legible through form and movement. Green Haven is an environmental arts campus organized by intersecting axes around a shared lawn. South-facing sloped roofs and vertically louvered glazing modulate light while emphasizing spatial hierarchy. Stadium seating and an elevated gallery create moments of gathering and reflection, framing views and memory. The architecture integrates environmental performance, public gathering, and landscape into a cohesive spatial narrative rooted in place.






AERIAL


2 PLAN

BUILDING 2 SECTION
2023, 5 WEEKS, Partner Project

Eco Lab is a net-positive, modular learning laboratory that integrates biophilic design with high-performance building systems. The project is organized along a clear axial sequence articulated by a central ramp and operable north–south walls, enabling spatial flexibility and environmental responsiveness. Photovoltaics, geothermal wells, radiant heating, natural cross ventilation, and locally sourced mass timber are coordinated to support sustainable performance while reinforcing architectural clarity.
















Cooking is driven by process and material response, refined through iteration and control. Timing, sequence, and transformation guide each intuitive decision, requiring continual adjustment and attentiveness. Precision and restraint shape the final composition.




