ACO katalógus 2024

Page 1

ACO professzionális folyókák

D20

D20 Tartalom

tározócsövesrésfolyókarendszernehézterhelésre

SAKU B125aknafedlapok

CityTop D400aknafedlapok

Multitop D400aknafedlapok TopTek A15-C250burkolhatóaknafedlapok

1 Multiline polimerbetonrácsosfolyókaélvédelemmel,
integrálttömítéssel A15–E600 ACO DRAIN® folyókák 2 Multiline polimerbetonrácsosfolyókaélvédelemmel, A15–E600 3 XtraDrain polipropilénrácsosfolyókaélvédelemmel, A15–D400 4 SK élvédelemmel A15–F900 5 PowerDrain élvédelemmel A15–F900 6 Monoblock PD polimerbetonegyrészesfolyóka A15–D400 7 Monoblock RD polimerbetonegyrészesfolyókanehézterhelésre D400–F900 8 KerbDrain A15–D400 9 Qmax
A15–F900 10 SELF
Combipoint PP ACO DRAIN Point Fedlapok11
Seal in
XtraPoint B125udvariösszefolyó
10 42 94 106 126 150 162 186 216 234 248

40% párolgás

felszíniáramlás

elszikkadás

mély elszivárgás

Természetbenacsapadékmennyiségének50%-a elszivárogatalajba,éskörülbelül10%maradcsaka felszínen.

Városiasodottterületekenazösszescsapadék55%-aa felszínenmarad,éscsak15%-aszivárogel.Aburkolatok megakadályozzákavízbejutásátatalajba.

Információés továbbképzés Helyszínitámogatásés segítség Tervezésés optimalizálás

Szervizéskarbantartás

ACO. creating the future of drainage

Terhelésiosztályatervezettfelhasználásszerint MegfelelésazMSZEN1433harmonizáltszabványnak aszfaltozottfelületek betonburkolatok kerámiaburkolatok rendszerrel.AzACOezenamódonvédelmet,biztonságot éskényelmetnyújtazembereknek,azépületeknekésa közlekedésiútvonalaknak. rendszerekkel,azadottprojektkövetelményeinek

Multiline folyókákóriásirácsválasztékkal

Monoblock egyrészesfolyókákdinamikus terhelésre

Bevezetés
ACO ACO Urbanizált
10%
25%
30% párolgás 55% felszíniáramlás 10% elszikkadás 5%
25%
mély elszivárgás

azMSZEN858harmonizáltszabványszerint

parkolókésközlekedésiterületek benzinkutakésautómosók autószervizek

Aparkolókból,benzinkutakból,autómosókbólvagyegyéb tartalmazhatnak,amelyekpotenciálisveszélytjelenteneka környezetreésacsatornahálózatra.Haazásványolaja környezetünkbekerül,akkorazmindatalajra,mindafelszínalatti vizekre,illetveanövényzetreisveszélytjelent.Afelszínivizeketezért úgykellkezelni,hogyazolajvagynehézfém-részecskékne olaj-ésnehézfém-leválasztóberendezéseketkínálbetonból, követelményeinek.

nincsvagykorlátozottcsatornarendszer

esetlegesújrahasznosítás

Azegyszerrelehullócsapadékmennyisége,intenzitása,illetvea

jelenleghasználtcsatornarendszerekcsakazátlagos csapadékmennyiséggeltudnakmegbirkózni,azígykialakuló túlterhelésmiattaszennyvízcsatornákgyorsanelárasztjákazutcákat ésazépületeket.AzACOtározóéscsillapítórendszereibiztosítják, hogyacsapadékvízneokozzontúlterheléstacsatornahálózat

helyzetekbenjavítjaavédelmetésabiztonságot,ugyanakkor

ACO Oleopator olajleválasztók ACO HMS nehézfém-leválasztókés ACO Stormbrixx szikkasztórendszer
Q-Brake áramlásszabályozó
ACO

Németország

rendszerekmindenalkalmazásiterületenhasználhatóak.Innovatívtechnológiánk alkalmazása.AzACOszaktanácsadóiésértékesítésicsapatamegbízhatópartnerként

Formula-1versenypályákon

6 Bevezetés

■ Azegyestelepítésihelyekosztályozásacsoportokbantörténik

■ Aterhelésiosztálymeghatározásakorfigyelembekellvennia

■ terhelésmértékét,

■ gyakoriságát,

■ irányátés

■ dinamikáját

A 151)

B 1251)

C 2501)

olyanközlekedésiterületek,amelyeketkizárólag gyalogosok,kerékpárosokhasználnak,mintpéldáula sétányokvagykerékpárutak

sétautak,gyalogosövezetekéshasonlóterületek,valamintszemélygépkocsi-parkolókésáltalukhasznált utak

D 4001) közútiterhelés,akárkamionokáltalhasználtutakés parkolók

E 6001) ipariéslogisztikaiterületekterhelése

F 9001)

1) Tesztterhelés (kN) az MSZ EN 1433 szerint

■ ■ legnagyobbterhelésrekellmeghatározni.

■ forgalomgyakorisága,sebességeésiránya(keresztirányú érdemesnagyobbterhelésiosztályraméretezni,illetvea Monoblocktípusúfolyókatestetalkalmazni)

■ terhelésdinamikája(gyakorikormányzás,fékezésésismételt elindulássaljárókörnyezetbenszinténjavasoltaMonoblock folyókatestalkalmazása)

AD400-asvagyannálnagyobbterhelésseléskeresztirányú áthaladássalterheltfolyókákesetébenáltalábanegybeöntött, egyrészes(MonoblockRD100-RD300)folyókákkalérdemestervezni.Ezekarendszerekjobbanellenállnakadinamikusterhelésnek,mintakétrészesfolyókák.

Azokonahelyszíneken,aholhosszúfolyókaszakaszok,és/vagy nagyterületekvízelvezetésétkellmegoldaninagyterhelés mellett,érdemesaQmaxtározócsövesrendszertalkalmazni,ciójátisellátja.Ebbenazesetbennincsszükségafolyókával

BEGU ACOfedlapkeretés-tányéresetébenabetonésazöntöttvaskombinációja(BetonundGuss)

LejtésnélküliBeépítettfenékeséssel (0,5%)(2,5és/vagy5cm)

PEWEPREN

7

Minden a polimerbetonról

Az ACO folyókái polimerbetonból készülnek!

anyagokbóláll,mintakvarc,abazalt ésöntjükformába.

Akülönlegesanyagösszetételésa legmodernebbgyártásitechnológia

tulajdonságait.Apolimerbetonból készültACOtermékeksokkalnagyobb szilárdságúakéskisebbsúlyúak,mint ahasonlóbetontermékek.Apolimerbetonügyesenötvöziabetonésa

összeszerelést,miközbencsökkentia kivitelezésiköltségeket.

■ Afolyókatestnemszívja magábaavizet,ígyajegesedésnem tudjakárosítaniafolyókatestet.

■ Afolyókatesta legtöbbvegyianyagnakésazútszóró sóagresszívhatásainakisellenáll.

■ szilárdságkisebbfalvastagsággal ugyanolyanterheléshez,mint ahagyományosbetonanyagok esetében.

■ Asima vizetképeselvezetni.

Beton )

(mm)

(N/mm2)

ANyomószilárdság vízbehatolásánakmélysége(DIN4281 szerint)72óraután

Apolimerbetoninnovatívtechnológiája alegmodernebbvízelvezetésirend-

sekkelegyüttteljesenvíztömörrendszer

lózatvagyszikkasztó-tározórendszer.

(N/mm2)

Hajlítószilárdság ( m)

Felületiérdesség

*) Beton az MSZ EN 1433 szerint

8
-
2 2 2 3
-
-
25 05101520 Polimerbeton Beton ) 180 020406080100120140160 Polimerbeton Beton ) 100 0102030405060708090
) 4
Polimerbeton Beton
00,511,522,533,5 Polimerbeton

alapul,amelyetépítészetielemekkutatóintézetekéntakkreditálnak.ACOragasztó/primeraKIWABrl-K781/01szerint.

++++Bórsav++-+ Isooktan50Kalcium-hidroxid++-+ Toluon50ChevronHy-Jet+++(+) ++++Chlorbenzotrifluorid++++ Nato-CodeF-34/F-35Klórsav5+(+)-(+) ++++Krómsav5++++ 10++++Krómsav10++-+ Toluol60Dízel++++ Xylol30Esetsav20++++ 30+++(+)Etanol30++-(+) Metilnaftalin10Etilacetát+++Toluol30Etilendiamin+-+Xylol30FAM-VizsgálatifolyadékA++++

DIBtNr.4bdleTRbF401/2, ods.3.1.8.++++FAM-VizsgálatifolyadékB++++ 48++++Hidrogén-fluorid5++++ Metanol48++++ Víz4Nezanfluor-kovasav10++++ ++-+n-Heptan++++ +---n-Hexan++++ +-+-HidraulikaolajDonaxTM++++ 50++++Isooktan++++ Metilisobutyliceton50Kaliumhidroxid20-+-+ 50+++-p-Kresol(+)+(+)Salicilmetilsav50Metilamin+--35++++Metiletilketon++-+ DIBtNr.9Ecetsav10++-(+)Tejsav10++++ DIBtNr.9aEcetsav50+++-ÁsványolajSAE5W50Shell++++ 50Sav10+++20++++Natriumkarbonát20++++ 20(+)+-+Natriumhipochlorid5++-+ 20++++n-Nonan++++ 30+++-Ottobenzin95-98OZ++++

Dimetilanilin35Ecetsav++++ Trietanolamilin35Fenol+++2++++Foszforsav20++-+ 3Ricinusolaj++++ Víz95Salétromsav10++-(+) 2++++Sósav10++-+ TexaponN403Kénsav40++++ Víz95Tetrafluor-sav20++-(+) Aceton10++-+Toluol+(+)+Hangyasav10%10++-(+)Trichlortrifluoretan++++ Amónniák10++-(+)Tritylamin+++Anilingwl+++-Xylol++++ Anilin10+++-

3) eseténszállítunk 4)Átmenetiterhelés(max.72óra)esetén

5)42naphosszútávútevékenységazépítésiésvizsgálati törvényekszerint +tartósan

9 Minden a polimerbetonról
%koncentráció
lés 4)ACO polimer-3) ACO tömítésEurolasticlés 5)ACO polimer-3) ACO tömítésEurolasticmaximális%koncentráció 1)lés 4)ACO polimer-3) ACO tömítésEurolasticlés 5)ACO polimer-3) ACO tömítésEurolastic
++ 48 ++Benzol 72 +-
+-
maximális
1)-
72
48
1)
-
10
in 1
collect: Multiline Seal
11 Multiline Seal in – polimerbeton folyóka beépített tömítéssel Multiline V 100 Seal in Folyóka 16 19 Rácsok és réskeretek 20 22 23 24 T letoeltesek/teljesitmeny-nyilatkozat/ Multiline V 150 Seal in Folyóka 26 29 Rácsok és réskeretek 30 31 31 32 Multiline V 200 Seal in Folyóka 34 37 Rácsok és réskeretek 38 39 39 40

Terhelési osztályok

Névleges szélesség

Anyag

Alkalmazások

Nehéz terhelésre (HD)

Robusztus folyókatest

12 2
®
Multiline
Seal in – Beépített tömítéssel Multiline Seal in Tervezési információk
Multiline Seal in – Beépített tömítéssel
Tömítettfol 1
1

betekintés a Seal in technológiába

olyóka

13 2 Multiline Seal in – Beépített tömítéssel Multiline Seal in Tervezési információk
EPDM =
15.0kg 1 1
Víztömör csatlakozás

Start

Tesztelt tömítettség

Víztömörség mint szabvány

30 perc elteltével víztömör: megfelel a szabványnak

felett

14 2 Multiline Seal in – Beépített tömítéssel Multiline Seal in Tervezési információk
Brit Nemzetközösségi Szabvány Intézet
1
Vízállósági vizsgálat

Hosszú távú

Ellenálló beépítés

72 óra elteltével is víztömör: meghaladja a szabványt

Mit jelent az hogy vízálló?

15 1
Seal in – Beépített tömítéssel
Seal in Tervezési információk
Multiline
Multiline
1

Multiline Seal in folyóka rendszer

Termék információ

MSZ

Folyókatest beépített fenékesés nélkül, 1000 és 500 mm

Termékleírás

MéretekTípusRendelési szám HosszSzélességMagasság V100SV100EV100G HD [mm][mm][mm]Horganyzott acél élvédelem Rozsdamentes acél élvédelem Öntöttvas élvédelem 132330132430132930 132340132440132940 132350132450132950 132370132470132970

132334132434132934 132344132444132944 132354132454132954 132374132474132974

132332132432132932 132342132442132942 132352132452132952 132372132472132972

132333132433132933 132343132443132943 132353132453132953 132373132473132973 Infobox

16 1
Multiline Seal in V 100 1
Multiline Seal in folyóka rendszer
■ ■ ■ ■ ■ ■ ® ■
■ ■ ■
■ ■

Seal in folyóka rendszer

Folyóka 0,5%-os beépített fenékeséssel, 1000 mm

Termékleírás

■ ■

0,5% fenékeséses rendszer elemei

MéretekTípusRendelési szám

HosszSzélességMagasság V100SV100EV100G HD

[mm][mm][mm]Horganyzott acél élvédelem

Lejtéses áthidaló elem, 500 mm

Termékleírás

Rozsdamentes acél élvédelem

Öntöttvas élvédelem 132301132401132901 132302132402132902 132303132403132903 132304132404132904 132305132405132905 132306132406132906 7 132307132407132907 132308132408132908 9 132309132409132909 132310132410132910

MéretekRendelési szám

HosszSzélességMagasság V100SV100EV100G HD

[mm][mm][mm]Horganyzott acél élvédelem

Rozsdamentes acél élvédelem

Öntöttvas élvédelem 132375132475132975

17 1 2
Multiline Multiline V 100 Seal in
■ ■ ■ 1

Termékleírás

Rövid kivitel (KF) integrált tömítéssel

Hosszú kivitel (LF) integrált tömítéssel

szám

132391132491132991 132398132498132998

132392132492132992 132399132499132999

18 1
rendszer Multiline Seal in V 100 1
Multiline Seal in folyóka
■ ■ ■ ■ ■ ■ ■
MéretekKivezetés Rendelési
HosszSzélességMagasság V100SV100EV100G HD [mm][mm][mm][DN]Horganyzott acél élvédelem Rozsdamentes acél élvédelem Öntöttvas élvédelem
Online infobox

LeírásAlkalmasRendelési szám

HD TípushozHorganyzott acél élvédelem Rozsdamentes acél élvédelem Öntöttvas élvédelem

Homloklap

132385132485132985

132849132449132949 Adapter folyásirány váltáshoz

Adapter folyókák oldalcsatlakozásához

132723132456132956

132724132457132957

132725132458132958

132726132459132959

132756132466132966

132757132467132967

132758132468132968

132759132469132969

19 1
1
Multiline Seal in folyóka rendszer Multiline V 100 Seal in
Tartozékok
V100SV100EV100G
■ ■ ■ ■ ■ ■
■ ■ ■ ■ ■
■ ■ ■ ■ ■
132846132446132946
132847132447132947
132848132448132948
■ ■ ■ ■ ■
■ ■ ■ ■
■ ■ ■ 00056 ■ 00058 ■ ■ 01684 ■ ■ 02638
132495
20 1 Terhelési osztály A 15 kN és B 125 kN 1 Terhelési osztály A 15 kN és B 125 kN
■ ■ AnyagMéretekNyílás mérete keresztmetszet SúlyRendelési szám HosszSzélesség [mm][mm][mm] [kg] Terhelési osztály A 15 kN Bordás rács 12610 12611 12640 12641 Perforált rács 12666 12667 12664 12665 Terhelési osztály B 125 kN Bordás rács 12676 132710 132267 ■ 01367
Termékleírás

Terhelési osztály A 15 kN és B 125 kN

AnyagMéretekNyílás mérete keresztmetszet

HosszSzélesség [mm][mm][mm] [kg]

Terhelési osztály B 125 kN

Pálcás rácsok Q+

Rácsok hosszanti U-profilokkal

Rácsok hosszanti háromszög profilokkal - Triangel

Rács hosszanti U-profilokkal

Több design versenyen kapott díjat

21 1
Multiline Seal in V 100 Rácsok 1
SúlyRendelési szám
132560 132561 132559 132542
132555 132550 132556 132551
132557 132552
Drainlock ® rácsválasztó program

Terhelési osztály C 250 kN

Termékleírás

22 1 Terhelési osztály C 250 kN Multiline Seal in V 100 Rácsok 1
■ ■ AnyagMéretekNyílás mérete keresztmetszet SúlyRendelési szám HosszSzélesség [mm][mm][mm] [kg] Bordás rács 12614 12615 12644 12645 12670 132720 132266 Hálós rács Q+ 132880 132881 132882 132883 Hosszbordás rács 12673

Terhelési osztály C 250 kN (SlotTop réskeretek)

SlotTop réskeretek

Terhelési osztály C 250 kN (SlotTop

Termékleírás

Tisztítóaknák, 0,5 m

Réskeret, 1m | 0,5 m

réskeretek)

HosszSzélesség [mm][mm][mm]

23 1
Multiline Seal in V 100 Rácsok 1
ACO
Drain® Multiline folyókatest
AnyagMéretekNyílás mérete keresztmetszet SúlyRendelési szám
[kg]
4,7 445598 2,4 445599 4,7 445600 2,4 442601 4,5 445603 4,5 445602 Tartozékok ■ ■ ■ 0,3 445947
SlotTop réskeret

Terhelési

Termékleírás

24
osztály
400 és
600 kN
D
E
■ ■ AnyagMéretek nyílás keresztmetszet SúlyRendelési szám HosszSzélesség [mm][mm][mm] [kg]
osztály D 400 kN Bordás rács 132865 Hosszbordás rács 132866 Hálós rács Q+ 132885 132886 132887 132888 Terhelési osztály E 600 kN Bordás rács 132865 Hosszbordás rács 132866 Zárt fedél 12672 2 2 Multiline Seal in V 100 Rošty Terhelési osztály D 400 és E 600 kN Multiline Seal in Rácsok
Terhelési

Terhelési osztály D 400 és E 600 kN

Freestyle öntöttvas rácsok az egyedi megjelenésért

Multiline Seal in Rácsok

Multiline Seal in V 100 Rošty

Terhelési osztályok

Névleges szélesség

Anyag

25 2 2

Multiline Seal in folyóka rendszer

Termék információ

MSZ

Folyókatest beépített fenékesés nélkül, 1000 és 500 mm

Termékleírás

MéretekTípusRendelési szám HosszSzélességMagasság V150SV150EV150G HD [mm][mm][mm]Horganyzott acél élvédelem

Rozsdamentes acél élvédelem Öntöttvas élvédelem 133330133430133340133440133350133450133370133470133334133434133344133444133354133454133374133474133332133432133342133442133352133452133372133472133333133433133343133443133353133453133373133473-

26 1
Seal in V 150 1
Multiline
■ ■ ■ ■ ■ ■ ® ■
■ ■ ■
■ ■

Folyóka 0,5% beépített fenékeséssel, 1000 mm

Termékleírás

■ ■

0,5%-os fenékeséses rendszer elemei

MéretekTípusRendelési szám

HosszSzélességMagasság

V150SV150EV150G HD

[mm][mm][mm]Horganyzott acél élvédelem

Lejtéses áthidaló elem, 500 mm

Termékleírás

Rozsdamentes acél élvédelem

Öntöttvas élvédelem 1333011334011333021334021333031334031333041334041333051334051333061334067 1333071334071333081334089 133309133409133310133410-

MéretekRendelési szám

HosszSzélességMagasság V150SV150EV150G HD

[mm][mm][mm]Horganyzott acél élvédelem

Rozsdamentes acél élvédelem

Öntöttvas élvédelem 133377133477-

27 1 1 Multiline Seal in V 150
■ ■ ■

Termékleírás

Integrált tömítéssel

MéretekFolyóka típushoz

Kivezetés

Rendelési szám HosszSzélességMagasság V150SV150EV150G HD [mm][mm][mm][DN]Horganyzott acél élvédelem

Rozsdamentes élvédelem Öntöttvas élvédelem

133391133491133392133492133393133493133394133494-

28 1
1 Multiline
in V 150
Multiline Seal in folyóka rendszer
Seal
■ ■ ■ ■ ■ ■ ■

LeírásAlkalmasRendelési szám

V150SV150EV150G HD TípushozHorganyzott acél élvédelem Rozsdamentes acél élvédelem Öntöttvas élvédelem

Homloklap

Adapter folyásirány váltáshoz

Adapter folyókák oldalcsatlakozásához

133385133485-

133386133486-

133347133447-

133348133448-

133349133489-

133338133438-

133348133448-

133358133458-

133378133478-

133339133439-

133349133449-

133359133459-

133379133479-

29 1
Multiline Seal in folyóka rendszer
1
Multiline Seal in V 150
Tartozékok
■ ■ ■ ■ ■ ■
■ ■ ■ ■ ■
■ ■ ■ ■
■ ■ ■ ■
■ ■ ■ ■
■ ■
132495
02638

Multiline Seal in V 150 Rácsok

Terhelési osztály B 125 kN

Folyókarácsok

Terhelési osztály B 125 kN

AnyagMéretekRés szélessége keresztmetszet SúlyRendelési

HosszSzélesség [mm][mm][mm] [kg]

Terhelési osztály B 125 kN Hálós rácsok Q+

Rácsok hosszanti U-profilokkal

Rácsok hosszanti háromszög profilokkal - Triangel

■ heelguard: a nyílás szélessége legfeljebb 10 mm

■ non-slip: csúszásmentes a DIN 51130 min. R 11 szerint

■ hidraulika: optimalizált áramlás

■ személyre szabott: egyedi rács megjelenés

30 1
1
szám
133601 133602 133603 133604
133625 133626 133627 133628
133633 133634
31 1
osztály
250 kN 1 Multiline Seal in V 150 Rácsok Terhelési
■ ■ ■ ■ ■ 105 mm ■ Folyókarácsok AnyagMéretekRés szélessége keresztmetszet SúlyRendelési szám
[mm][mm][mm] [kg] Terhelési osztály
Bordás rács 13070 Hosszbordás rács 13073 Hálós rácsok Q+ 133605 133606 133607 133608
Réskeret 49955 49956 49961 49962 49957 49963
Terhelési
C
osztály C 250 kN
HosszSzélesség
C 250 kN
Terhelési osztály C 250 kN (Réskeretek)
32 1 Terhelési osztály D 400 és E 600 kN 1 Multiline Seal in V 150 Rácsok Terhelési osztály D 400 és E 600 kN ■ ■ AnyagMéretekRés szélessége keresztmetszet SúlyRendelési szám
[mm][mm][mm] [kg] Terhelési osztály D 400 kN Bordás rács 13071 Hosszbordás rács 132662 Hálós rácsok Q+ 133609 133610 133611 133612 Terhelési osztály E 600 kN Bordás rács 13071 Hosszbordás rács 132662
HosszSzélesség
13072
Zárt fedél

Terhelési

Freestyle

öntöttvas rácsok az egyedi megjelenésért

Terhelési osztályok

Névleges szélesség

Anyag

33 1
1
osztály D 400 és E 600 kN
Multiline Seal in V 150 Rácsok

Multiline rácsos folyókarendszer

Termékinformációk

Folyókák fenékesés nélkül, 1000 és 500 mm

MéretekTípus Súly Rendelési szám HosszSzélességMagasság V200SV200GV200E [mm][mm][mm][kg]Horganyzott acél élvédelem Öntöttvas élvédelem Rozsdamentes acél élvédelem 133530-133730 133540-133740 133550-133750

34 1
■ ■ ® ■ ■ ■ ® ■ ■ ■ ■ ■
■ ■ ■
133570-133770 133534-133734 133544-133744 133554-133754 133574-133774 133531-133731 133541-133741 133551-133751 133571-133771 133532-133732 133542-133742 133552-133752 133572-133772
folyókarendszer 1 Multiline Seal in V 200
Multiline rácsos

Multiline rácsos folyókarendszer

Folyóka 0,5% beépített fenékeséssel, 1000 mm

Termékleírás

■ ■

0,5%-os fenékeséses rendszer elemei

MéretekTípusRendelési szám

HosszSzélességMagasság V200SV200EV200G HD

[mm][mm][mm]Horganyzott acél élvédelem

Rozsdamentes acél élvédelem

Öntöttvas élvédelem 1335011337011335021337021335031337031335041337041335051337051335061337067 1335071337071335081337089 133509133709133510133710-

Lejtéses áthidaló elem, 500 mm

Termékleírás

MéretekRendelési szám

HosszSzélességMagasság V200SV200EV200G HD

[mm][mm][mm]Horganyzott acél élvédelem

Rozsdamentes acél élvédelem

Öntöttvas élvédelem 133577133777-

35 1
1
■ ■ ■ Multiline Seal in V 200

MéretekFolyóka típushoz KivezetésRendelési szám HosszSzélességMagasságV200SV200EV200G HD [mm][mm][mm][DN]Horganyzott acél élvédelem Rozsdamentes acél élvédelem Öntöttvas élvédelem 133591133791133592133792133593133793133594133794-

36 1 Termékleírás ■ ■ ■ ■ ■ ■ ■
rácsos folyókarendszer 1 Multiline Seal in V 200
Multiline

Homloklap ■

LeírásAlkalmasRendelési szám

V200SV200EV200G HD

TípushozHorganyzott acél élvédelem

Rozsdamentes acél élvédelem

Öntöttvas élvédelem

133585133785-

Adapter folyásirány váltáshoz

Adapter folyókák oldalcsatlakozásához ■

133586133786-

133547133747-

133548133748-

133549133789-

133538133738-

133548133748-

133558133758-

133578133778-

133539133739-

133549133749-

133559133759-

133579133779-

132495

02638

37 1
1
Multiline rácsos folyókarendszer
Tartozékok
Multiline Seal in V 200
■ ■ ■ ■ ■
■ ■ ■ ■ ■
■ ■ ■ ■
■ ■ ■ ■
■ ■ ■ ■
■ ■

Terhelési osztály B 125 kN

Folyókarácsok

AnyagMéretekRés szélességeresztmetszet

SúlyRendelési szám HosszSzélesség [mm][mm][mm] [kg]

Terhelési osztály B 125 kN

Hálós rácsok

Rácsok hosszanti U-profilokkal

Rácsok hosszanti háromszög profilokkal - Triangel

■ heelguard: a nyílás szélessége legfeljebb 10 mm

■ non-slip: csúszásmentes a DIN 51130 min. R 11 szerint

■ hidraulika: optimalizált áramlás

■ személyre szabott: egyedi rács megjelenés

38 1
■ ■
133613 133614 133615 133616
133629 133630 133631 133632
133635 133636
1 Multiline Seal in V 200 Rácsok
Terhelési osztály B 125 kN

Terhelési osztály C 250 kN

Rácsok

AnyagMéretekRés szélessége keresztmetszet

Terhelési osztály C 250 kN

Terhelési osztály C 250 kN (Réskeretek)

39 1
■ ■ ■
mm ■ ■
SúlyRendelési
105
és
szám HosszSzélesség [mm][mm][mm] [kg]
13470
rács 13473 Hálós rácsok 133617 133618 133619 133620
407036 407037 407039 407040 407038 407041 Terhelési
1 Multiline Seal in V 200 Rácsok
Bordás rács
Hosszbordás
Réskeret
osztály C 250 kN

Folyókarácsok

HosszSzélesség

40 1 Terhelési osztály D 400 és E 600 kN 1 Multiline Seal in V 200 Rácsok Terhelési osztály D 400 és E 600 kN ■ R ■
resztmetszet
AnyagMéretekRés szélessége -
SúlyRendelési szám
osztály D 400 kN Bordás rács 13471 Hosszbordás rács 13474 Hálós rácsok Q+ 133621 133622 133623 133624 Terhelési osztály E 600 kN Bordás rács 13471 Hosszbordás rács 13474 Zárt fedél 13472
[mm][mm][mm] [kg] Terhelési
41 1 1
Rácsok
42
collect: Multiline
43 Multiline – polimerbeton rácsos folyókák Multiline V 100 Folyóka 44 45 46 54 56 57 57 Multiline V 150 Folyóka 62 57 64 66 67 68 Multiline V 200 Folyóka 70 65 72 74 75 76 Multiline V 300 Folyóka 78 79 80 82 83 84 Multiline V 400 Folyóka 86 87 88 Multiline V 500 Folyóka 90 91 92 Részletes és aktuális információk: www.aco.hu Deckline Folyóka 93

ACO Multiline rendszer áttekintése

névleges méretek

44 2 2
– a polimerbeton rácsos folyókarendszer
® biztosít.
Multiline
Multiline Tervezési információk
Multiline – a polimerbeton rácsos folyókarendszer
V100 V150 V200V300 V400 V500
Folyóka
Terhelési osztályok Anyag
45 2 2
Multiline – a polimerbeton rácsos folyókarendszer
Tervezési információk
Drainlock rögzítés Multiline
46 2 2
– a polimerbeton rácsos folyókarendszer Multiline Tervezési információk
Multiline
47 2 2
Multiline Tervezési információk
Multiline – a polimerbeton rácsos folyókarendszer hez

Drainlock rácsok

Válasszon!

ACO DRAIN ® Multiline folyókatest atest

48 2 2 Multiline – a polimerbeton rácsos folyókarendszer Multiline Tervezési információk
acél
élvédelem: rozsdamentes acél élvédelem: horganyzott
acél ÚJ ÚJ ÚJ

élvédelem: öntöttvas

Ábra jelölés:

■ heelguard: a nyílás szélessége legfeljebb 10 mm

■ non-slip: csúszásmentes a DIN 51130 min. R 11 szerint

■ hidraulika: optimalizált áramlás

■ személyre szabott: egyedi rácsmegjelenés

49 2 2 Multiline – a polimerbeton rácsos folyókarendszer Multiline Tervezési információk Q
ÚJ ÚJ

■ MSZ EN 1433 harmonizált szabvány szerint

■ Névleges szélesség: 100 mm

■ Terhelési osztály: A 15 – E 600 1)

■ Háromféle élvédelem (horganyzott, öntöttvas és rozsdamentes acél)

50 2 Multiline rácsos folyókarendszer 2 Multiline V 100 Infobox ■ ■ ® ■ ■ ■ ® ■
■ ■ ■ V100SV100GV100E 123301253012430 123401254012440 123501255012450 123601256012460 123701257012470 123341253112434 123441254112444 123541255112454 123641256112464 123741257112474 123321253212432 123421254212442 123521255212452 123621256212462 123721257212472 123331253312433 123431254312443 123531255312453 123631256312463 123731257312473
51 2 Multiline rácsos folyókarendszer 2 Multiline V 100 ■ ■ ® ■ ■ ■ ■ ■ V100SV100GV100E123011250112401 123021250212402 123031250312403 123041250412404 123051250512405 123061250612406 123071250712407 123081250812408 123091250912409 123101251012410
folyókák, 1000 mm V100SV100GV100E 12327-12427 123231252312423 123211252112421 ■ ■ ® ■ ■ ■ ■ ■ ■ Online infobox 12328-12428 123241252412424 123221252212422
Alacsony
52 2 Multiline rácsos folyókarendszer Multiline V 100 2 ■ ■ ■ ■ ■ ■ ■V100SV100GV100E123911259112491 123981259812498 123921259212492 123991259912499 AlkalV100SV100GV100E■ ■ ■ ■ 123851258512485 ■ ■ ■ ■ 123861258612486 123871258712487 123881258812488 123891258912489 123901259012490 ■ ■ ■ 123931259312493 123941259412494 123951259512495 123961259612496 123971259712497
53 2
rácsos folyókarendszer Multiline V 100 2 V100SV100GV100E ■ ■ ■ 12600 12601 ■ ■ ■ ■ 12375-12475 123811258112481 123801258012480 ■ ■ 12376 -12476 12384-12484 12383-12483 ■ ■ ■ ■ 01043 ■ ■ ■ ■ 7034.10.10 7035.10.10 7036.10.10 ■ ■ 685669 ■ 00056 00058 PP ■ 01684 02638 ■ ■ 01290 ■ ■ Q+ 01367
Multiline
54 2 Terhelési osztály A 15 kN és B 125 kN 2 Multiline V 100 ■ ■ Anyag12610 12611 12640 12641 12666 12667 12664 12665 12676 132710 132267

Terhelési osztály B 125 kN Hálós rácsok Q+

Horganyzott acél

Rozsdamentes acél

Horganyzott acél

Rozsdamentes acél

Rozsdamentes acél

Rács hosszanti U-profilokkal Több design versenyen kapott díjat

55 2
15 kN és B 125 kN 2 Multiline V 100 Anyag -
Terhelési osztály A
100012330 x 108453,2 132560 50012330 x 108451,6 132561
100012330
108453,2 132559 50012330 x 108451,6 132542
x
100012384303,9 132555 50012384301,9 132550
100012384303,9 132556 50012384301,9 132551
100012364653,6 132557 50012364651,8
132552
Drainlock
56 2 Terhelési osztály C 250 kN 2 Multiline V 100 Rácsok ■ ■ Anyag -
12614 12615 12644 12645 12670 132720 132266
Bordás rácsok
132880 132881 132882 132883
Hálós rácsok Q+
12673
Hosszbordás rács
57 2 Terhelési osztály D 400 és E 600 kN Multiline V 100 Rácsok 2 ■ R ■ ■ ■ ■ ■ Anyag445598 445599 445600 442601 445603 445602 ■ ■ ■ 445947
58 2 Terhelési osztály D 400 és E 600 kN 2 Multiline V 100 ■ ■ Anyag132865 132866 + 132885 132886 132887 132888 132865 132866 12672

A 15

Terhelési osztályok

B 125 C 250 D 400

az MSZ EN 1433 szabvány szerint Névleges méretek

100, 150, 200 és 300

ACO Multiline folyókához Anyag

Gömbgrafitos öntöttvas

59 2
2
Multiline rácsos folyókarendszer Multiline V 100

V100 alacsony (H60) - 1,0 m

DN110 gumitömítés

V100 alacsony (H80 / H100 ) - 1,0 m

DN110 kigyengítés

DN110 gumitömítés

vízkivezetéssel

DN110 gumitömítés

DN110 gumitömítés

folyóka V100 - 1,0, m, vízkivezetéssel

60 2
2 Multiline V 100
Multiline rácsos folyókarendszer
Multiline
V 100 - termékrajzok
folyóka folyóka

DN110/DN160 gumitömítés

DN110/DN160 gumitömítés

61 2
2 Multiline V 100 V 100 - termékrajzok Y Z Online
Multiline rácsos folyókarendszer
infobox
62 2 Multiline rácsos folyókarendszer 2 Multiline V 150 ■ ■ ® ■ ■ ■ ® ■ ■ ■ ■ ■ ■ ■ ■ V150SV150GV150E 127301293012830 127401294012840 127501295012850 127601296012860 127701297012870 127311293112831 127411294112841 127511295112851 127611296112861 127711297112871 127321293212832 127421294212842 127521295212852 127621296212862 127721297212872 127331293312833 127431294312843 127531295312853 127631296312863 127731297312873 Infobox 1)
63 2 Multiline rácsos folyókarendszer 2 Multiline V 150 ■ ■ ® ■ ■ ■ ■ ■ V150SV150GV150E 127011290112801 127021290212802 127031290312803 127041290412804 127051290512805 127061290612806 127071290712807 127081290812808 127091290912809 127101291012810 ■ ■ ® ■ ■ ■ ■ ■ ■ V150SV150GV150E127211292112821 127221292212822 Online infobox
64 2 Multiline rácsos folyókarendszer Multiline V 150 2 ■ ■ ■ ■ ■ ■ ■ V150SV150GV150E127911299112891 127921299212892 V150SV150GV150E■ ■ ■ ■ 127851298512885 ■ ■ ■ ■ 127861298612886 127871298712887 127881298812888 127891298912889 127901299012890 ■ ■ 13000 13001 ■ ■ ■ 127931299312893 127941299412894 127951299512895 127961299612896 127971299712897
65 2
folyókarendszer Multiline V 150 2 V150SV150GV150E■ ■ ■ ■ 120 mm 1,0 127801298012880 ■ ■ 120 mm 0,5 134113 nincs gyártásban 134114 ■ ■ ■ ■ 01043 ■ ■ ■ ■ 7034.10.10 7035.10.10 7036.10.10 ■ ■ 685669 ■ ■ 00058 02723 ■ ■ ■ 02638 ■ ■ 01290 ■ ■ Q+ 01367 ■ ■ ■ 16364
Multiline rácsos

Folyóka rácsok Anyag

■ heelguard: a nyílás szélessége legfeljebb 10 mm

■ non-slip: csúszásmentes a DIN 51130 min. R 11 szerint

■ hidraulika: optimalizált áramlás

■ személyre szabott: egyedi rácsmegjelenés

66 2
osztály B 125 kN 2 Multiline V 150
--
133601 133602 133603 133604 133625 133626 133627 133628 133633 133634
Terhelési
Terhelési osztály B 125 kN ■ ■
Terhelési osztály B 125 kN +
67 2 Terhelési osztály C 250 kN 2 Multiline V 150 Terhelési osztály C 250 kN ■ ■ ■ ■ ■ ■ Anyag13070 13073 + 133605 133606 133607 133608 49955 49956 49961 49962 49957 49963
68 2 Terhelési osztály D 400 és E 600 kN 2 Multiline V 150 ■ ■ Anyag13071 132662 + 133609 133610 133611 133612 13071 132662 13072

DN160 gumitömítés

DN160/DN200 gumitömítés

DN160 kigyengítés

DN160 gumitömítés

DN110 gumitömítés

69 2
osztály D 400 és E 600 kN 2 Multiline V 150
Terhelési
Multiline
V 150 - termék rajzok
70 2 Multiline rácsos folyókarendszer 2 Multiline V 200 ■ ■ ® ■ ■ ■ ® ■ ■ ■ ■ ■ ■ ■ ■ V200SV200GV200E 131301333013230 131401334013240 131501335013250 131601336013260 131701337013270 131311333113231 131411334113241 131511335113251 131611336113261 131711337113271 131321333213232 131421334213242 131521335213252 131621336213262 131721337213272 131331333313233 131431334313243 131531335313253 131631336313263 131731337313273 Infobox 1)
71 2 Multiline rácsos folyókarendszer Multiline V 200 2 ■ ■ ® ■ ■ ■ ■ ■ V200SV200GV200E -131011330113201 131021330213202 131031330313203 131041330413204 131051330513205 131061330613206 131071330713207 131081330813208 131091330913209 131101331013210
■ ■ ® ■ ■ ■ ■ ■ ■ V200SV200GV200E131211332113221 131221332213222
Alacsony folyókák, 1000 mm
Horganyzott acél
Online infobox
Öntöttvas Rozsdamentes acél
72 2 Multiline rácsos folyókarendszer 2 Multiline V 200 ■ ■ ■ ■ ■ ■ ■ V200SV200GV200E 131911339113291 131921339213292 V200SV200GV200E■ ■ ■ ■ 131851338513285 ■ ■ ■ ■ 131861338613286 131871338713287 131881338813288 131891338913289 131901339013290 ■ ■ ■ 13400 13401 ■ ■ ■ 131931339313293 131941339413294 131951339513295 131961339613296 131971339713297 ■ ■ ■ ■ 131801338013280
73 2
folyókarendszer 2 Multiline V 200 V200SV200GV200E■ ■ 134173ban 134174 ■ ■ ■ ■ 01043 ■ ■ ■ ■ 7034.10.10 7035.10.10 7036.10.10 ■ ■ 685669 ■ ■ 00058 02723 ■ ■ ■ 02638 ■ ■ 01290 ■ ■ Q+ 01367 ■ ■ ■ 16364
Multiline rácsos

■ heelguard: a nyílás szélessége legfeljebb 10 mm

■ non-slip: csúszásmentes a DIN 51130 min. R 11 szerint

■ hidraulika: optimalizált áramlás

■ személyre szabott: egyedi rácsmegjelenés

74 2 Terhelési osztály B 125 kN 2 Multiline V 200 ■ ■ Anyag133613 133614 133615 133616 133629 133630 133631 133632 133635 133636
75 2
osztály C 250 kN Multiline V 200 2 ■ ■ ■ ■ ■ Rácsok és Anyag13470 13473 133617 133618 133619 133620 407036 407037 407039 407040 407038 407041
Terhelési
76 2 Terhelési osztály D 400 és E 600 kN 2 Multiline V 200 ■ ■ Anyag13471 13474 + 133621 133622 133623 133624 13471 13474 13472

DN200 gumitömítés

DN160/200 Gumitömítés

DN200 kigyengítés

DN200 gumitömítés

DN110 gumitömítés

77 2
osztály D 400 és E 600 kN Multiline V 200 2
Terhelési
78 2 Multiline rácsos folyókarendszer Multiline V 300 2 Multiline rácsos folyókarendszer ■ ■ ® ■ ■ ■ ® ■ ■ ■ ■ ■ ■ ■ ■ RakV300SV300GV300E135301373013630 135401374013640 135501375013650 135601376013660 135701377013670 135311373113631 135411374113641 135511375113651 135611376113661 135711377113671 135321373213632 135421374213642 135521375213652 135621376213662 135721377213672 135331373313633 135431374313643 135531375313653 135631376313663 135731377313673
79 2 Multiline rácsos folyókarendszer Multiline V 300 2 ■ ■ ® ■ ■ ■ ■ ■ V300SV300GV300E 135011370113601 135021370213602 135031370313603 135041370413604 135051370513605 135061370613606 135071370713607 135081370813608 135091370913609 135101371013610 ■ ■ ® ■ ■ ■ ■ ■ ■ V300SV300GV300E 135211372113621 135221372213622
Horganyzott acél
Infobox 1) Online infobox
Öntöttvas Rozsdamentes acél
80 2 Multiline rácsos folyókarendszer 2 Multiline V 300 ■ ■ ■ ■ ■ ■ ■ V300SV300GV300E 135911379113691 135921379213692 V300SV300GV300E ■ ■ ■ ■ 135851378513685 ■ ■ ■ ■ 135861378613686 135871378713687 135881378813688 135891378913689 135901379013690 ■ ■ ■ 13800 13801 ■ ■ ■ 135931379313693 135941379413694 135951379513695 135961379613696 135971379713697 ■ ■ ■ ■ 1202,8 135801378013680
81 2
folyókarendszer Multiline V 300 2 V300SV300GV300E ■ ■ 134115-134116 ■ ■ ■ ■ 01043 ■ ■ ■ ■ 7034.10.10 7035.10.10 7036.10.10 ■ ■
■ ■
■ ■ ■ 02638 ■ ■ 01290
Multiline rácsos
685669
00058 02723
82 2 Terhelési osztály B 125 kN és C 250 kN Multiline V 300 2 ■ ■ Anyag132006 132016 13870 13873 13819 13849

Folyóka rácsok Anyag

83 2
Multiline V 300 2
Terhelési osztály D 400 kN
■ ■
Terhelési osztály D 400 kN
-
13871 13874 13821 13851

Folyóka rácsok Anyag

84 2
osztály E 600 kN Multiline V 300 2
osztály E 600 kN ■ ■
-
Terhelési
Terhelési
13871 13874 13872

DN200 gumitömítés

DN160/200 gumitömítés

DN200 kigyengítés

DN200 gumitömítés

DN110 gumitömítés

85 2 Terhelési osztály E 600 kN Multiline V 300 2
86 2
rácsos folyókarendszer Multiline V 400 2 Multiline rácsos folyókarendszer ■ ® ■ ■ ■ ® ■ ■ ■ ■ ■ , 1000 mm ■ ■ ■ 12500 12513 Infobox 1) Online infobox
Multiline
87 2
folyókarendszer Multiline V 400 2 ■ ■ ■ ■ ■ ■ ■ 12512 10822 10828 10823 10827 01617 ■ ■ ■ ■ 12514 ■ ■ ■ ■ 12515 ■ ■ ■ 12516
Multiline
rácsos
88 2 Terhelési osztály E 600 kN 2 Multiline V 400 Rácsok ■ ■ Anyag -
13880 13881

DN400 gumitömítés

DN315/400 gumitömítés

89 2
kN Multiline V 400 2
Terhelési
osztály E 600
Multiline
V 400 - folyóka rajzok

■ Integrált DN 400 kivezetés

■ Öntöttvas élvédelem

90 2 Multiline rácsos folyókarendszer Multiline V 500 2 ■ ® ■ ■ ■ ® ■ ■ ■ ■ ■
13500 13513 Infobox 1) Online infobox
91 2
folyókarendszer Multiline V 500 2 ■ ■ ■ ■ ■ ■ ■ 13512 10822 10828 10823 10824 01617 ■ ■ ■ ■ 13514 ■ ■ ■ ■ 13515 ■ ■ ■ 13516
Multiline
rácsos

Folyóka rácsok Anyag

92 2
osztály E 600 kN Multiline V 500 2
Terhelési
E 600 kN ■ ■
Terhelési osztály
-
13890 DN315/400 gumitömítés DN400 gumitömítés
93 2 Deckline parkolófolyóka 2 Termékleírás ■ ■ ■ ■ ■ ■ sel ■ ■ ■ ■ Antracit 135070135072135074 135071135073135075 135076135077135078 010430104301043 Termékleírás ■ ■ ■ ■ ■ ■ sel ■ ■ ■ ■ 445544445548 445545445549 445593445595 445547445551 445546445550 445552445604 445553445553 0104301043
94
collect:
XtraDrain
95 XtraDrainFolyókák 98 99 Folyókák 94 101
96 XtraDrain 3 3

0,5 m folyóka 1,0 méteres folyóka elem elvágásával

97 XtraDrain 3 3 ■ ■ ■ ■ ■ ■ ■ ■ 360°
98 3 3 XtraDrain ■ ■ ■ ■ ■ ■ ■ ■ ■ ■ ■ MéretekRendelési
1000 X 100 C100138150 11000 X 150 C150188210 11011 X 200 C200238265 11018 ■ ■ ■ 11385 11386 11387
szám HosszTípusNévleges szélesség SzélességMagasság eleje/vége [mm][mm][mm][mm]
99 3 3 XtraDrain
■ ■ ■ ■132534 132535 ■ ■ ■11004 11005 Online infobox
100 3 XtraDrain 3 ■ ■ ■ ■ ■ ■ ■ ■ ■ ■ ■ DN 11100 11111 11118 11385 11386 11387 ■ ■ ■

■ Polimerbeton

■ Horganyzott acél élvédelem

■ ■

■ 132564 132565

■ ■ ■

101 3 XtraDrain 3
DN 11104 11105 Online infobox
102 3 XtraDrain 3 ■ ■ ■ 11086 11093 11098 ■ ■ 11087 11094 11099 ■ ■ ■ 11285 11286 11288 11289 ■ ■ ■ 11191 11192 ■ ■ ■ 11085 ■ ■ 01290
103 3 XtraDrain 3 Multiline rácsok - lásd a 2. fejezetben 48 48 50 51 52 60 61 61 62 68 69 70 +
104 3
lásd a 2. fejezetben XtraDrain 3
Multiline rácsok
-
105 3
XtraDrain 3
Multiline rácsok - lásd a 2. fejezetben
106 collect: S 100 K - S 300 K
107
terhelésre S 100 K Powerlock 110 S 150 K Powerlock 114 S 200 K Powerlock 112
300 K Powerlock 122
ACO Drain S 100 K - S 300 K – polimerbeton folyóka F 900
S

S 100 K - S 300 K Powerlock Tervezési

ACO Drain S 100 K - S 300 K – rácsos folyókarendszer extrém nehéz terhelésre

Terhelési osztályok

Névleges szélesség

Anyag

Alkalmazás

Az ACO Drain SK Powerlock rendszer áttekintése

Kombi homloklap

108 4 4
információk
Rácsok Szennyfogó vödör Adapter S 300 K/S 100 K 1,0 m folyóka
109 4 4 S 100 K - S 300 K Powerlock Tervezési információk ■ ■ KTL ■ A Powerlock® ■
0,5 m folyóka
Adapter folyásirányváltáshoz
Kombi homloklap
110 4
100 K Powerlock rácsos folyókák extrém nehéz terhelésre 4
folyókák extrém nehéz
Termékinformációk ■ ■ ■ ■ ■ ■ ■ ■ ■ ■ ■ ■ Folyókák fenékesés nélkül, 1000 és 500 mm ■ ■ ■ MéretekTípusRendelési szám HosszSzélességMagasság eleje/vége [mm][mm][mm]S 100 K KTL bevonatú rácsokkal00841 00842 00843 00844 00845 00846 Beépített DN 110 00847 00848 00849 Öntöttvas rácsokkal78340 78341 74485 74486 74479 74480 F 900 D 400 Infobox 1) S 100 K Powerlock
S
S 100 K Powerlock rácsos
terhelésre
111 4
100 K Powerlock rácsos folyókák extrém nehéz terhelésre 4 S 100 K Powerlock Folyókák
■ ■ ■ ■ ■ ■ ■ F 900 MéretekTípusRendelési
HosszSzélességMagasság eleje/vége [mm][mm][mm]S 100 K 00821 00822 00823 00824 00825 00826 00827 00828 00829 00830 00831 00832 00833 00834 00835 00836 00837 00838 00839 00840 Öntöttvas élvédelem és rács Online infobox
S
beépített 0,5% fenékeséssel, 1000 mm
szám
112 4 S 100 K Powerlock rácsos folyókák extrém nehéz terhelésre 4 ■ ■ ■ ■ ■ ■ ■ Méretek Rendelési szám HosszSzélességMagasság eleje/vége [mm][mm][mm][DN]S 100 K KTL bevonatú rácsokkal10545 10546 Öntöttvas rácsokkal74487 LeírásFolyóka-Rendelési szám típusS 100 K Kombi homloklap ■ ■ ■ 00854 ■ ■ ■ 00855 00856 00857 Adapter folyásirányváltáshoz ■ ■ 00912 00913 00914 Átfolyási adapter ■ ■ ■ 00853 ■ ■ ■ 00056 00058 ■ ■ 01684 ■ ■ ■ 02638 F 900 D 400
S 100 K Powerlock

LeírásFolyóka-Rendelési szám típusS 100 K ■ 01290

113 4
100
4
S
K Powerlock rácsos folyókák extrém nehéz terhelésre
S 100 K Powerlock
- výkresová dokumentace
DN110 kigyengítés DN110 kigyengítés DN110 kigyengítés
114 4
150 K Powerlock rácsos folyókák extrém nehéz terhelésre 4
S
folyókák
Termékinformációk ■ ■ ■ ■ ■ ■ ■ ■ ■ ■ ■ Folyókák fenékesés nélkül, 1000 és 500 mm ■ ■ ■ MéretekTípusRendelési szám HosszSzélességMagasság eleje/vége [mm][mm][mm]S 150 K KTL bevonatú rácsokkal03050 03051 03052 03053 03054 03055 03077 03078 03079 Öntöttvas rácsokkal78342 78344 74488 74489 74481 74482 F 900 D 400 Infobox 1) S 150 K Powerlock
S 150 K Powerlock rácsos
extrém nehéz terhelésre
115 4 S 150 K Powerlock rácsos folyókák extrém nehéz terhelésre 4 ■ ■ ■ ■ ■ ■ ■ Méretek Rendelési szám HosszSzélességMagasság eleje/vége [mm][mm][mm][DN]S 150 K 10547 10548 74490 D 400 Online infobox S 150 K Powerlock F 900

homloklap

116 4 4 LeírásFolyóka-Rendelési szám típusS 150 K Kombi
■ ■ ■ 00699 ■ ■ ■ 00885 00886 00887 Adapter folyásirányváltáshoz ■ ■ 00970 00971 00972 Átfolyási adapter ■ ■ ■ 00698 ■ ■ ■ 00058 02723 ■ ■ ■ 02638 01290 S 150 K Powerlock

infobox

117 4
150
rácsos folyókák extrém nehéz terhelésre 4
150 K Powerlock
S
K Powerlock
Online
S
DN160 kigyengítés DN160 gumitömítés

S 200 K Powerlock rácsos

118 4
200 K Powerlock rácsos folyókák extrém nehéz terhelésre 4
S
folyókák
Termékinformációk ■ ■ ■ ■ ■ ■ ■ ■ ■ ■ ■ Folyókák fenékesés nélkül, 1000 és 500 mm ■ ■ ■ MéretekTípusRendelési szám HosszSzélességMagasság eleje/vége [mm][mm][mm]S 200 K KTL bevonatú rácsokkal00571 00572 00573 00574 00575 00576 02981 02983 02985 Öntöttvas rácsokkal78343 74491 74492 74493 74483 74484 F 900 D 400 Infobox S 200 K Powerlock 1)
extrém nehéz terhelésre
119 4 S 200 K Powerlock rácsos folyókák extrém nehéz terhelésre 4 ■ ■ ■ ■ ■ ■ ■ Méretek Rendelési szám HosszSzélességMagasság eleje/vége [mm][mm][mm][DN]S 200 K 10549 10550 74494 F 900 D 400 Online infobox S 200 K Powerlock

homloklap

120 4 4 LeírásFolyóka-Rendelési szám típusS 200 K Kombi
■ ■ ■ 00578 ■ ■ ■ 00565 00566 00567 Adapter folyásirányváltáshoz ■ ■ 02991 02992 02993 Átfolyási adapter ■ ■ ■ 00577 ■ ■ ■ 00058 02723 ■ ■ ■ 02638 ■ 01290 S 200 K Powerlock

Online infobox

121 4
200
rácsos folyókák extrém nehéz terhelésre 4
S
K Powerlock
K Powerlock
S 200
DN160 kigyengítés DN200 gumitömítés

S 300 K Powerlock

Termékinformációk

122 4 4
rácsos folyókák extrém nehéz terhelésre
■ ■ ■ ■ ■ ■ ■ ■ ■ ■ ■
500 mm ■ ■ ■ MéretekTípusRendelési szám
[mm][mm][mm]S 300 K 02700 02703 Beépített DN 200 02740 Infobox S 300 K Powerlock 1)
Folyókák fenékesés nélkül, 1000 és
HosszSzélességMagasság eleje/vége
123 4 4 ■ ■ ■ ■ ■ ■ ■ ■ ■ Méretek Rendelési szám HosszSzélességMagasság eleje/vége [mm][mm][mm][DN]S 300 K 00670 01614 06190 03217 08565 01697 Szennyfogó vödör 01616 01617 Online infobox S 300 K Powerlock
124 4 S 300 K Powerlock rácsos folyókák extrém nehéz terhelésre 4 LeírásFolyóka-Rendelési szám típusS 300 K
■ ■ ■ 00674 ■ ■ ■ 01490 Adapter folyásirányváltáshoz ■ ■ 01493 ■ ■ ■ 00058 02723 ■ ■ ■ 02638 ■ 01290
Kombi homloklap

kigyengítés

gumitömítés

Szennyfogó vödör

125 4
300
4
S
K Powerlock rácsos folyókák extrém nehéz terhelésre
- výkresová dokumentace
Alsórész S 300 K Powerlock DN200
00670 01697 01614 - DN160 06190 - DN200 03217 - DN160 08565 - DN200
DN200
126 collect: PowerDrain
– polimerbeton rácsos folyókarendszer extra nehéz terhelésre PowerDrain V 75 P 130 PowerDrain V 125 P 136 PowerDrain V 175 P 140 PowerDrain V 275 P 146 127
PowerDrain

PowerDrain Tervezési információ

PowerDrain – keskeny, csendes, masszív

Terhelési osztály

Névleges méret

Anyag

Alkalmazás

Keskeny – esztétikus

Csendes – zajcsillapító betét

Hatékony – V-profil

Portfólió

128 5 5

ACO PowerDrain rendszer áttekintése

Rendszer áttekintése

129 5 5 PowerDrain Tervezési információ
0.0 10.0 20.0 5.0 1 2 3 4 5 6 7 8 9 10 EK 0-20 sel 0.1
0.0.3 0.2 0.3 0.0 1 2 3 4 5 6 7 8 9 10 5.1 5.0 5.0.2 5.0.3 5.2 5.3 0.2 0.3 0.0.2 0.0.3 20.0 10.1 10.0 20.2 20.3 20.1 20.0.2 20.0.3 10.0.2 10.0.3 10.0 20.0 0.1 0.0 10.2 10.3
0.0.2

Termékinformáció

Folyókák beépített fenékesés nélkül, 1000 és 500 mm

HosszSzélességMagasság eleje/vége

130 5 PowerDrain V 75 / 100P 5
PowerDrain rácsos folyókarendszer extrém nehéz terhelésre
MéretekTípus Súly Rendelési szám
[mm][mm][mm][kg]V 75 P 11500 11510 11520 11530 11501 11511 11521 11531 11502 11512 11522 11532 11503 11513 11523 11533 Infobox

Folyókák beépített 0,5% fenékeséssel, 1000 mm

Folyókák 0,5% fenékeséssel

HosszSzélességMagasság

Alacsony beépítési magasságú folyókák, 1000 mm

131 5 PowerDrain V 75/100 P 5
MéretekTípus Súly Rendelési szám
eleje/vége [mm][mm][mm][kg]V 75 P 11541 11542 11543 11544 11545 11546 7 11547 11548 11549 11550
Méretek Súly Rendelési szám
eleje/vége [mm][mm][mm][DN][kg]V 75 P 11505 11506 Online infobox
HosszSzélességMagasság

HosszSzélességMagasság eleje/vége [mm][mm][mm][DN][kg]V

132 5 PowerDrain V 75 / 100P 5
75 P 11535 11537
típus[kg]V 75 P Homloklap 11519 11525 11526 11527 11528 Folyásirányváltó 11553 11554 11555 11556 Átfolyási adapter 11551 11552 Homloklap (alacsony folyókához) 11515
Méretek Súly Rendelési szám
LeírásAlkalmasSúlyRendelési szám
133 5 PowerDrain V 75 / 100 P 5
szám típus[kg]V 75 P DN75 (alacsony folyókához) 11517 ACO DRAIN® 01043 ACO DRAIN® 7034.10.10 7035.10.10 7036.10.10 685669 00056 00058 PP 01684 02638 01290 Online infobox
LeírásAlkalmasSúlyRendelési

kigyengítés

gumitömítés

Gumi homloklap

gumitömítés

134 5 PowerDrain V 75 / 100P 5
DN110 DN110 DN110
135 5 PowerDrain V 125 / 150 P 5
DN110 kigyengítés vagy gumitömítés DN110 gumitömítés Gumi homloklap DN110 gumitömítés

Termékinformáció

Folyókák beépített fenékesés nélkül, 1000 és 500 mm MéretekTípus Súly

HosszSzélességMagasság eleje/vége

136 5 PowerDrain V 125/150 P 5
PowerDrain rácsos folyókarendszer extrém nehéz terhelésre
szám
[mm][mm][mm][kg]V 125 P 11560 11570 11580 11590 11561 11571 11581 11591 11562 11572 11582 11592 11563 11573 11583 11593 Infobox
Rendelési

Folyókák beépített 0,5% fenékeséssel, 1000 mm

Folyókák 0,5% fenékeséssel

MéretekTípus Súly Rendelési szám

HosszSzélességMagasság

Alacsony beépítési magasságú folyókák, 1000 mm

137 5 PowerDrain V 125 / 150 P 5
eleje/vége [mm][mm][mm][kg]V 125 P 11601 11602 11603 11604 11605 11606 7 11607 11608 11609 11610
eleje/vége [mm][mm][mm][DN][kg]V 125 P 11565 11566 Online infobox
Méretek Súly Rendelési szám HosszSzélességMagasság

HosszSzélességMagasság eleje/vége [mm][mm][mm][DN][kg]V

138 5 PowerDrain V 125 / 150 P 5
Méretek
125 P 11595 11597 LeírásAlkalmasSúlyRendelési szám típus[kg]V 125 P Homloklap 11579 11585 11586 11587 11588 Folyásirányváltó 11613 11614 11615 11616 Átfolyási adapter 11611 11612 Homloklap (alacsony folyókához) 11575
Súly Rendelési szám
139 5 PowerDrain V 125 / 150 P 5
szám típus[kg]V 125 P DN75 (alacsony folyókához) 11577 ACO DRAIN® 01043 ACO DRAIN® 7034.10.10 7035.10.10 7036.10.10 685669 00056 00058 PP 01684 02638 01290 Online infobox
LeírásAlkalmasSúlyRendelési

Termékinformáció

Folyókák beépített fenékesés nélkül,

140 5 5 PowerDrain V 175 / 200 P
PowerDrain rácsos folyókarendszer extrém nehéz terhelésre
500 mm MéretekTípus Súly Rendelési szám HosszSzélességMagasság eleje/vége [mm][mm][mm][kg]V 175 P 11620 11630 11640 11650 11621 11631 11641 11651 11622 11632 11642 11652 11623 11633 11643 11653 Infobox
1000 és

Folyókák beépített 0,5% fenékeséssel, 1000 mm

Folyókák 0,5% fenékeséssel MéretekTípus Súly Rendelési

Alacsony beépítési magasságú folyókák, 1000 mm

Alacsony beépítési magasságú folyókák Méretek

141 5 PowerDrain V 175 / 200 P 5
eleje/vége [mm][mm][mm][kg]V 175 P 11661 11662 11663 11664 11665 11666 7 11667 11668 11669 11670
szám HosszSzélességMagasság
eleje/vége [mm][mm][mm][DN][kg]V 175 P 11625 11627 11626 Online infobox
Súly Rendelési szám HosszSzélességMagasság

HosszSzélességMagasság eleje/vége [mm][mm][mm][DN][kg]V

142 5 PowerDrain V 175 / 200 P 5
175 P 11655 11657 LeírásAlkalmasSúlyRendelési szám típus[kg]V 175 P Homloklap 11639 11645 11646 11647 11648 Folyásirányváltó 11673 11674 11675 11676 Átfolyási adapter 11671 11672 Homloklap (alacsony folyókához) 11635
Méretek Súly Rendelési szám
143 5 PowerDrain V 175 / 200 P 5 LeírásAlkalmasSúlyRendelési szám típus[kg]V 175 P DN75 (alacsony folyókához) 11637 ACO DRAIN® 01043 ACO DRAIN® 7034.10.10 7035.10.10 7036.10.10 685669 00058 02723 02638 01290 Online infobox
144 6 6 PowerDrain V 175 / 200 P
DN160 gumitömítés vagy kigyengítés gumi homloklap DN110 gumitömítés DN160 gumitömítés

DN200 gumitömítés vagy kigyengítés

145 5 PowerDrain V 275 / 300 P 5
DN110 gumitömítés gumi homloklap

Termékinformáció

Folyókák beépített fenékesés nélkül, 1000 és 500 mm

MéretekTípus Súly Rendelési szám HosszSzélességMagasság eleje/vége [mm][mm][mm][kg]V

146 5 PowerDrain V 275 / 300 P 5
PowerDrain rácsos folyókarendszer extrém nehéz terhelésre
275 P 11680 11690 11700 11710 11681 11691 11701 11711 11682 11692 11702 11712 11683 11693 11703 11713 Infobox

Folyókák beépített 0,5% fenékeséssel, 1000 mm

Folyókák 0,5% fenékeséssel MéretekTípus Súly

Alacsony beépítési magasságú folyókák, 1000 mm

Alacsony beépítési magasságú folyókák

147 5 PowerDrain V 275 / 300 P 5
szám HosszSzélességMagasság eleje/vége [mm][mm][mm][kg]V 275 P 11721 11722 11723 11724 11725 11726 7 11727 11728 11729 11730
Rendelési
Méretek Súly Rendelési szám HosszSzélességMagasság eleje/vége [mm][mm][mm][DN][kg]V 275 P 11685 11687 11686 Online infobox

HosszSzélességMagasság

148 5 PowerDrain V 275 / 300 P 5 Méretek Súly Rendelési szám
eleje/vége [mm][mm][mm][DN][kg]V 275 P 11715 11717 LeírásAlkalmasSúlyRendelési szám típus[kg]V 275 P Homloklap 11699 11705 11706 11707 11708 Folyásirányváltó 11733 11734 11735 11736 Átfolyási adapter 11731 11732 Homloklap (alacsony folyókához) 11695
149 5 PowerDrain V 275 / 300 P 5 LeírásAlkalmasSúlyRendelési szám típus[kg]V 275 P DN75 (alacsony folyókához) 11697 ACO DRAIN® 01043 ACO DRAIN® 7034.10.10 7035.10.10 7036.10.10 685669 00058 02723 02638 01290 Online infobox
150
6
Monoblock PD collect:

PD – monolit, egyrészes folyókarendszer polimerbetonból

Monoblock PD 100 V 130 Monoblock PD 150 V 156 Monoblock PD 200 V 134 151
Monoblock

Monoblock PD Tervezési információk

Monoblock PD – az esztétikus egyrészes folyóka

Terhelési osztály

Névleges szélesség

Anyag

Alkalmazás

Monoblock PD rendszer áttekintése

Öntöttvas rács

Szennyfogó kosár

Öntöttvas élvédelem - Drainlock

1,0 m folyóka

152 6
6

8mm

m tisztító akna

153 6
0,5 homloklap
Monoblock PD Tervezési információk ■ ■ ■ ■ ■
6
Kombi homloklap

Termékinformáció

Folyókák fenékesés nélkül, 1000 mm

HosszSzélességMagasság

Tisztító idom, 500 mm

154 6 6 Monoblock PD – az esztétikus egyrészes folyóka
■ ■ ■ ■ ■ ■ ■
Méretek keresztmetszet TípusRendelési szám
[mm][mm][mm][cm²/m]natúrantracit 1083210722
eleje/vége
■ ■ ■ ■ ■ Méretek keresztmetszet TípusRendelési szám
[mm][mm][mm][cm²/m]natúrantracit 1083610726 1083510725 Online infobox Monoblock PD 100 V
HosszSzélességMagasság eleje/vége
155 6 6 Monoblock PD 100 V ■ ■ ■ ■ ■ ■ Méretek keresztmetszet Rendelési szám HosszSzélességMagasság eleje/vége [mm][mm][mm][cm²/m][DN]PD 100 V 10837 10838 LeírásFolyókaRendelési szám típushozPD 100 V Kombi homloklap ■ ■ ■ 10833 10723 ■ ■ ■ 10834 10724 ■ ■ ■ 00056 00058 ■ ■ 01684 ■ ■ ■ 02638 ■ 01290

Termékinformáció ■

■ MSZ EN 1433 szabvány

■ Résszélesség: 12 mm

Folyókák fenékesés nélkül, 1000 mm

HosszSzélességMagasság

Tisztítóidom, 500 mm

HosszSzélességMagasság eleje/vége

156 6 6
PD – az esztétikus egyrészes folyóka
Monoblock
■ ■
■ ■
Méretek keresztmetszet TípusRendelési szám
eleje/vége [mm][mm][mm][cm²/m]naturantracit 10002002702960.0 416986413136
■ ■ ■ ■ ■ Méretek keresztmetszet TípusRendelési szám
[mm][mm][mm][cm²/m]PD 150 V 416989 416995 Online infobox Monoblock PD 150 V

HosszSzélességMagasság eleje/vége

157 6 6 ■ ■ ■ ■ ■ ■ Méretek keresztmetszet Rendelési szám
[mm][mm][mm][cm²/m][DN]PD 150 V 416990 LeírásFolyókaRendelési szám típushoz Kombi homloklap ■ ■ ■ 416987 413137 ■ ■ ■ 416988 413138 ■ ■ ■ 00058 ■ ■ ■ 02638 ■ 01290 Monoblock PD 150 V

Monoblock PD – az esztétikus egyrészes folyóka

Termékinformáció ■

■ MSZ EN 1433 szabvány

■ Névleges szélesség: 200 mm

■ Terhelési osztály: A 15 – D 400

■ Résszélesség: 15 mm

Folyókák fenékesés nélkül, 1000 mm

HosszSzélességMagasság eleje/vége [mm][mm][mm][cm²/m]natúrantracit

Tisztítóidom, 500 mm

HosszSzélességMagasság

158 6 Monoblock PD – az esztétikus egyrészes folyóka 6
■ ■
Méretek keresztmetszet TípusRendelési
szám
10002503204400.0 1098211041
■ ■ ■ ■ ■ Méretek keresztmetszet TípusRendelési szám
[mm][mm][mm][cm²/m]PD 200 V 10985 413132 Online infobox Monoblock PD 200 V
eleje/vége
159 6
PD – az esztétikus egyrészes folyóka 6 ■ ■ ■ ■ ■ ■ Méretek keresztmetszet Rendelési szám
[mm][mm][mm][cm²/m][DN]PD 200 V 10987 10988
Monoblock
HosszSzélességMagasság eleje/vége
Kombi homloklap ■ ■ ■ 10983 11042 ■ ■ ■ 10984 11043 ■ ■ ■ 00058 02723 ■ ■ ■ 02638 ■ 01290 Monoblock PD 200 V
LeírásFolyókaRendelési szám típushoz

PD 100 V - folyókarajzok

PD 150 V - folyókarajzok

160 6 6
Monoblock PD Online
infobox
DN110/160 gumitömítés DN110 gumitömítés

PD 200 V - folyókarajzok

161 6 6
Monoblock PD
DN110/160 gumitömítés DN110/160 gumitömítés DN160/200 gumitömítés DN160 gumitömítés
162
7
Monoblock RD collect:
Monoblock RD – monolit, egyrészes folyókarendszer polimerbetonból extrém nehéz terhelésre Monoblock RD 100 V 166 Monoblock RD 150 V 170 Monoblock RD 200 V 174 178 Monoblock RD 300 182 163

Monoblock RD Tervezési információk

Monoblock RD – a törhetetlen, masszív folyóka

Terhelési osztály

D 400 E 600 F 900

MSZ EN 1433

Névleges szélesség

100 mm, 150 mm, 200 mm, 300 mm

Anyag

polimerbeton - monolit

Alkalmazás

Monoblock RD rendszer áttekintése

1,0 m folyóka*

Öntöttvas rács

7 7
Homloklap homloklap

Tisztítóelem öntöttvas ráccsal,

Folyásirányváltó adapter

165 7 7 Monoblock RD Tervezési információk
* ■
■ ■ ■ ■ ■ Powerlock® ■ ■ RD 150 V RD 200 V
Homloklap
antracit

Folyókák fenékesés nélkül, 1000 mm

HosszSzélességMélység eleje/vége [mm][mm][mm][cm²/m]naturantracit

Tisztítóelem, 500 mm

HosszSzélességMélység eleje/vége

166 7
RD 100 V egyrészes folyókarendszer extrém nagy terhelésekhez Monoblock RD 100 V 7 Monoblock RD 100 V egyrészes folyókarendszer extrém nagy terhelésekhez
■ ■ ■ ■ ■ ■ ■ ■
Monoblock
Termékinformáció
Méretekmetszet TípusRendelési szám
1076310762
■ ■ ■ ■ ■ ■ Méretekmetszet TípusRendelési szám
100 V 10775 Beépített DN110 tömítéssel 10778 Online infobox
[mm][mm][mm][cm²/m]RD

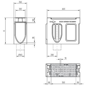
HosszSzélességMélység eleje/vége [mm][mm][mm][cm²/m][DN]RD

RD 100 DF - drén nyílásokkal drénaszfalthoz

167 7 Monoblock RD 100 V egyrészes folyókarendszer extrém nagy terhelésekhez Monoblock RD 100 V 7 ■ ■ ■ ■ ■ ■ ■ Méretekmetszet Kivezetés Rendelési szám
100 V 10769 10772 Infobox

Homloklap beépített DN 110 tömítéssel

Adapter folyásirányváltáshoz ■

168 7
RD 100 V egyrészes folyókarendszer extrém nagy terhelésekhez Monoblock RD 100 V 7 LeírásFolyókaRendelési szám típus antracit Homloklap ■ ■ ■ ■ 1078110782 1078410785
Monoblock
■ ■ ■ 1078710788
■ ■ 1079010791 ■ ■ ■ 00056 00058 ■ PP ■ ■ 01684 ■ ■ ■ 02638

RD 100 V - rajzok

DN110 gumitömítés vagy kigyengítés

169 7
RD 100 V egyrészes folyókarendszer extrém nagy terhelésekhez Monoblock RD 100 V 7
Online infobox
Monoblock

Termékinformáció

Folyókák fenékesés nélkül, 1000 mm

Tisztítóelem, 660 mm

HosszSzélességMélység eleje/vége [mm][mm][mm][cm²/m]

Beépített DN110 tömítéssel 130079130129 130080130130 130081130131

170 7
RD 150 V egyrészes folyókarendszer extrém nagy terhelésekhez 7 Monoblock RD 150 V Monoblock RD 150 V egyrészes folyókarendszer extrém nagy terhelésekhez
Monoblock
■ ■ ■ ■ ■ ■ ■
Méretekmetszet TípusRendelési szám
antracit 130073130123
HosszSzélességMélység eleje/vége [mm][mm][mm][cm²/m]
130074130124 130075130125
■ ■ ■ ■ ■ ■ Méretekresztmetszet TípusRendelési szám
antracit
130076130126 130077130127 130078130128
171 7 Monoblock RD 150 V egyrészes folyókarendszer extrém nagy terhelésekhez Monoblock RD 150 V 7 ■ A ■ ■ ■ ■ ■ Méretek keresztmetszet KivezetésRendelési szám HosszSzélességMélység eleje/vége [mm][mm][mm][cm²/m][DN] antracit 130082130132 130083130133 130084130134 Alsórész 10935 10936 13999
Infobox Online infobox
Szennyfogó kosár (PP)
172 7
150 V egyrészes
extrém nagy terhelésekhez 7 Monoblock RD 150 V LeírásFolyókaRendelési szám típus antracit Homloklap ■ ■ ■ 130085130135 130086130136 130087130137 ■ ■ ■ 130088130138 130089130139 130090130140 ■ ■ ■ 00058 02723 ■ ■ ■ 02638 ■ 01290
Monoblock
RD
folyókarendszer
173 7
RD 150
egyrészes folyókarendszer extrém nagy terhelésekhez Monoblock RD 150 V 7 RD
Online infobox
Monoblock
V
- rajzok RD 150 V rajzok

Termékinformáció

Folyókák fenékesés nélkül, 1000 mm

HosszSzélességMélység eleje/vége [mm][mm][mm][cm²/m]

Tisztítóelem, 660 mm

HosszSzélességMélység eleje/vége [mm][mm][mm][cm²/m]

Beépített DN160 tömítéssel

130004N130040 133131

130006N130042

130018130054

133165 — 130019130055 Online infobox

174 7
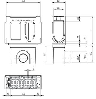
RD 200 V egyrészes folyókarendszer extrém nagy terhelésekhez 7 Monoblock RD 200 V Monoblock RD 200 V egyrészes folyókarendszer extrém nagy terhelésekhez
Monoblock
■ ■ ■ ■ ■ ■ ■ ■ ■
Méretek keresztmetszet TípusRendelési szám
antracit
■ E ■ ■ ■ ■ ■ Méretek keresztmetszet TípusRendelési
szám
antracit
130016130052 133164 130017130053

Alsó rész integrált gumitömítéssel

Lejtéses folyókaelem, 1000 mm

175 7 Monoblock RD 200 V egyrészes folyókarendszer extrém nagy terhelésekhez Monoblock RD 200 V 7 ■ ■ ■ ■ ■ ■ Méretek keresztmetszet Típus
Kivezetés Rendelési szám HosszSzélességMélység eleje/vége [mm][mm][mm][cm²/m][DN] antracit 130022130058 133166 130023130059
/
10935 10936 13999
Méretekszet TípusRendelési szám HosszSzélességMélység eleje/vége [mm][mm][mm][cm²/m] 152013 152014
■ ■ ■
Szennyfogó kosár (PP)

LeírásFolyókaRendelési szám típus antracit

Homloklap

Homloklap integrált gumitömítéssel DN160

Adapter folyásirányváltáshoz

Adapter az oldalsó kivezetéshez

176 7
extrém nagy terhelésekhez 7 Monoblock RD 200 V
Monoblock
RD 200 V egyrészes folyókarendszer
■ ■ ■
133167
133168 130011130047
130008130044
130009130045 130010130046
■ ■ 130012130048 133169 130013130049
130014130050 130015130051
■ ■ 130020130056
■ ■ ■ 00058 02723 ■ ■ ■ 02638 ■ 01290
130021130057
177 7
RD 200 V egyrészes folyókarendszer extrém nagy terhelésekhez 7 RD - rajzok
Online infobox Monoblock RD 200 V
Monoblock
RD 200 V rajzok

Monoblock RD 200V egyrészes folyókarendszer extrém nagy terhelésekhez Seal in gumitömítéssel

Termékinformáció

Folyókák fenékesés nélkül, 1000 mm

HosszSzélességMélység

Tisztítóelem, 660 mm

HosszSzélességMélység

178 7 7 Monoblock RD 200 V
■ ■ ■ ■ ■ ■ ■ ■
Méretekresztmetszet TípusRendelési szám
eleje/vége [mm][mm][mm][cm²/m]natur 132571
■ ■ ■ ■ ■ Méretekmetszet TípusRendelési szám
132502
132503 Online infobox
eleje/vége [mm][mm][mm][cm²/m]
Beépített DN160 gumitömítéssel

HosszSzélességMélység eleje/vége [mm][mm][mm][cm²/m][DN]

Alsó rész integrált tömítéssel

RD 200 DF - folyóka drénaszfalthoz

179 7 Monoblock RD 200 V 7
■ ■ ■ ■ ■
Méretek keresztmetszet Típus / Kiveze- Rendelési szám
132504
10935 10936 13999
Szennyfogó kosár (PP)

LeírásFolyókaRendelési szám típus Homloklap folyóka elejére

Homloklap folyóka végére

Homloklap integrált DN160 gumitömítéssel ■

váltáshoz

180 7 Seal in gumitömítéssel 7 Monoblock RD 200 V
■ ■ 132505
■ 132506
■ ■ 132507
■ ■ 132508 Adapter oldalkivezetéshez ■ ■ 132515 ■ ■ ■ 00058 02723 ■ ■ ■ 02638 ■ 01290
Adapter folyásirány

Integrált EPDM tömítés

Integrált EPDM tömítés

181 7 Seal in gumitömítéssel Monoblock RD 200 V 7
Online infobox
rajzok

Folyókák fenékesés nélkül, 2000 mm

Tisztítóelem, 750 mm

HosszSzélességMélység

182 7
RD 300 V egyrészes folyókarendszer extrém nagy terhelésekhez 7 Monoblock RD 300 Monoblock RD 300 V egyrészes folyókarendszer extrém nagy terhelésekhez
■ ■ ■ ■ ■ ■ ■ ■
Monoblock
Termékinformáció
Méretek keresztmetszet TípusRendelési szám
eleje/vége [mm][mm][mm][cm²/m]RD 300 10820N
HosszSzélességMélység
■ ■ ■ ■ ■ Méretek keresztmetszet TípusRendelési szám
eleje/vége [mm][mm][mm][cm²/m]RD 300 10803 Online infobox

adapter szennyfogóhoz

szennyfogó vödör (horganyzott acél)

Alsó rész integrált tömítéssel

RD 300 DF - folyóka drénaszfalthoz

183 7
RD 300
egyrészes folyókarendszer extrém nagy terhelésekhez Monoblock RD 300 7 ■ ■ ■ ■ ■ ■ Méretek kereszt-
Rendelési szám HosszSzélességMélység eleje/vége [mm][mm][mm][cm²/m][DN]RD 300 10821 10822
Monoblock
V
metszet
10828 10823 Szennyfogó kosár 01617 10827

Homloklap folyóka elejére

Homloklap folyóka végére

Homloklap integrált DN315 gumitömítéssel

folyásirányváltáshoz

184 7
extrém nagy terhelésekhez 7 Monoblock RD 300 LeírásFolyókaRendelési szám típusRD 300
10804
Monoblock RD 300 V egyrészes folyókarendszer
■ ■
■ 10802
■ ■ 10801
■ ■ 10805
■ ■ 10806 ■ 01290 Online infobox
Adapter
185 7
RD 300 V egyrészes folyókarendszer extrém nagy terhelésekhez Monoblock RD 300 7
Monoblock
DN300 kigyengítés DN400 gumitömítés Szennyfogó kosár Adapter szennyfogó kosárhoz
186
8
collect: KerbDrain

KerbDrain

KerbDrain 190 KerbDrain 194
KerbDrain
KD480 187
188 8 KerbDrain Anyag in1 8
189 8 KerbDrain
sokoldalú 8
Sokoldalú rendszer
190 8 ■ ■ ■ ■ ■ ■ ■ ■ Méretek Súly HosszSzélesség eleje/vége ■ ■ ■ Méretek Súly HosszSzélesség eleje/vége 07949 8
191 8 ■ ■ ■ ■ ■ ■ MéretekKivezetés Súly HosszSzélesség eleje/vége 01614 06190 01616 01617 8
8 ■ ■ ■ ■ ■ Méretek Súly HosszSzélesség eleje/vége 0 Súly ■ ■ ■ ■ ■ ■ 04938 8
193 8
8
Rajzok
194 8 ■ ■ ■ ■ ■ ■ ■ ■ Méretek Súly HosszSzélesség eleje/vége
■ ■ ■ Méretek Súly HosszSzélesség eleje/vége 8
133004 07961
8 ■ ■ ■ ■ ■ ■ MéretekKivezetés Súly HosszSzélesség eleje/vége 01614 06190 01616 01617 8
196 8 ■ ■ ■ ■ Méretek Súly HosszSzélesség eleje/vége 07966 133034 133033 Ø 07967 133039 133038 8
197 8 ■ ■ ■ ■ ■ Méretek Súly HosszSzélesség eleje/vége 07996 0 8
198 8 ■ ■ ■ ■ Méretek Súly HosszSzélesség eleje/vége
8
49096 49094
199 8 Súly ■ ■ ■ ■ 07973 ■ ■ ■ ■ 07964 07963 8
8
8
Rajzok
8 1000mm 180mm 150mm Ø100mm 155mm 8mm 1500mm 180mm 305mm otvor Ø25mm pro drenážní asfalt 175mm 280mm 155mm 150mm Ø100mm 8
8 ■ ■ ■ ■ ■ ■ ■ ■ Méretek Súly HosszSzélesség eleje/vége ■ ■ ■ Méretek Súly HosszSzélesség eleje/vége 8
8 ■ ■ ■ ■ ■ ■ MéretekKivezetés Súly HosszSzélesség eleje/vége 01614 06190 01616 01617 8
8 ■ ■ ■ ■ Méretek Súly HosszSzélesség eleje/vége Ø 8
8 ■ ■ ■ ■ Méretek Súly HosszSzélesség eleje/vége 04367 04368 8
8 ■ ■ ■ ■ Méretek Súly HosszSzélesség eleje/vége 04361 04360 8
8 Súly ■ ■ ■ ■ ■ ■ 04938 ■ ■ ■ ■ 8
8
8
Rajzok
8 8
8 KerbDrain 480 ■ ■ ■ ■ ■ ■ ■ ■ Méretek Súly HosszSzélesség eleje/vége ■ ■ ■ Méretek Súly HosszSzélesség eleje/vége 8
KerbDrain 480 8 ■ ■ ■ ■ ■ ■ MéretekKivezetés Súly HosszSzélesség eleje/vége 01614 06190 01616 01617 8
8 KerbDrain 480 ■ ■ ■ ■ Méretek Súly HosszSzélesség eleje/vége 04931 Ø 04933 49830 8
KerbDrain 480 8 ■ ■ ■ ■ Méretek Súly HosszSzélesség eleje/vége 04964 04966 Súly ■ ■ ■ ■ ■ ■ 04938 ■ ■ ■ ■ 04939 04940 8
8 KerbDrain 480 Rajzok 8
KerbDrain 480 8 8
collect: Qmax ® 216 hold: 9
ACO Qmax® - Nagykapacitású, tározócsöves folyókarendszer Qmax® 225220 Qmax® 350222 Qmax® ACO Qmax 225 és 350 folyókarendszerhez 224 Qmax® 550226 Qmax® 700228 Qmax® 900230 Qmax® ACO Qmax 550, 700 és 900 folyókarendszerhez 232 Q-Brake Áramlás-szabályozó rendszer (Vortex) 233 217

Terhelési osztály

Névleges méretek Anyag

Aknacsatlakozó

9 9 ® Élvédelem
Qmax ® Tervezési információk ®---ACO
– a nagykapacitású, tározócsöves folyókarendszer
adapter ACO
Qmax
-
Rendszer áttekintése - ACO Qmax ®-
Alkalmazás

Általános

219 9 9 ACO Qmax ® Tervezési információk
--■ ■ ® ■■ ■ ■ ® ■■ Az® ■ ■
Homloklapok Tisztító akna
-
Tisztító akna

Termékinformáció

Folyóka, beépített fenékesés nélkül, 2000 mm

220 9 ACO Qmax ® 225 9 Qmax ® 225 – a tározócsöves résfolyókarendszer
■ ■ ■ ■ ■ ■ ■ ■■■
■ ■ ■ ■ Méretek
keresztmetszet TípusSúlyRendelési szám
Q-Flow öntöttvas 32800 Q-Guard öntöttvas 32801 Q-Flow horganyzott acél 32802 Q-Guard horganyzott acél 32803 Q-Slot horganyzott acél 32804 Infobox Online infobox
Hossz Teljes magasság Résszélesség [mm][mm][mm][cm²/m][mm][kg]Qmax 225

LeírásFolyókáhozSúlyRendelési szám [kg]Qmax 225 Homloklap

Öntöttvas élvédelem takarója

Qmax® 225 - rajzok

221 9 ACO Qmax ® 225 9
■ ■ 42221 ■ 32880
■ ■ 32854 ® ® ® ® ® ACO
Gumitömítés Gumitömítés Gumitömítés Horgonyzás 105mm Horgonyzás 105mm Horgonyzás 115mm Horgonyzás 115mm
Gumitömítés Gumitömítés

Termékinformáció

Folyóka, beépített fenékesés nélkül, 2000 mm

keresztmetszet

TípusSúlyRendelési szám

Hossz Teljes magasságRésszélesség [mm][mm][mm][cm²/m][mm][kg]Qmax 350

222 9 ACO Qmax ® 350 9 Qmax ® 350– a tározócsöves résfolyókarendszer
■ ■ ■ ■ ■ ■ ■ ■■■
■ ■ ■ ■ Méretek
Q-Flow öntöttvas 32810 Q-Guard öntöttvas 32811 Q-Flow horganyzott acél 32812 Q-Guard
acél 32813
acél 32814 Infobox Online infobox
horganyzott
Q-Slot horganyzott

Öntöttvas élvédelem takarója

223 9 ACO Qmax ® 350 9
■ ■ 42351 ■ 32880
LeírásFolyókáhozSúlyRendelési szám [kg]Qmax 350 Homloklap
■ ■ 32854 2000mm 2075mm 295mm 150mm Gumitömítés 700mm 105mm Ø415mm 20mm 10mm ® 2075mm 2000mm Horgonyzás 105mm 195mm 150mm Gumitömítés 600mm Ø415mm 90mm 26mm résszélesség ® 2000mm 2075mm 150mm 195mm Horgonyzás 105mm Gumitömítés 600mm Ø415mm 55mm 10mm résszélesség ® 2000mm 2075mm Horgonyzás 115mm 195mm 150mm Gumitömítés 26mm résszélesség Ø415mm 600mm 65mm ® 2000mm 2075mm Horgonyzás 115mm 195mm 150mm Gumitömítés 8mm résszélesség Ø415mm 600mm 65mm ® ACO Qmax® 350 - rajzok
224 9 ACO Qmax ® 225 és 350 9 – a Qmax® 225 és 350 rendszerhez
■ ■ ■ ■ ■ ■ ■ ■ ■ ■ ■ ■ ■ ■Méretek keresztmetszet Résszélesség SúlyRendelési szám Hossz Teljes magasság [mm][mm][mm][cm²/m][mm][kg] Terhelési osztály D 400 kN 32970 32972 32974 Q-Slot burkolható horganyzott acél fedél résbeömléssel 32976 32977 32978 Terhelési osztály F 900 kN 32971 32973 32975 Online infobox
Termékinformáció
225 9 ACO Qmax ® 225 a 350 9 100mm 540mm 480mm 565mm 565mm 10mmrésszélesség 440mm ® ACO Qmax® – rajzok 100mm 995mm 480mm 725mm 595mm 565mm 565mm 10mmrésszélesség 440mm 575mm minimum silt capacity 565mm 565mm 10mmrésszélesség 100mm 1500mm 480mm 725mm 595mm 440mm ®® 540mm200mm 520mm 520mm 10mm inlet slot 440mm ® 595mm 725mm 995mm 200mm 520mm 520mm 10mm inlet slot 440mm 575mm minimum silt capacity 595mm 725mm 1500mm 200mm 520mm 520mm 10mm inlet slot 440mm ®® Maximális vízelvezetési kapacitás

Termékinformáció

Folyóka, beépített fenékesés nélkül, 2000 mm

keresztmetszet

Hossz

TípusSúlyRendelési szám

Teljes magasságRésszélesség [mm][mm][mm][cm²/m][mm][kg]Qmax 550

Q-Slot horganyzott acél

226 9 ACO Qmax ® 550 9 Qmax® 550 – a tározócsöves résfolyókarendszer
■ ■ ■ ■ ■ ■ ■ ■■■
■ ■ ■ ■ Méretek
Q-Flow
töttvas 32820 Q-Guard
32821
acél 32822
32823
ön-
öntöttvas
Q-Flow horganyzott
Q-Guard horganyzott acél
32824
Infobox Online infobox
227 9 ACO Qmax ® 550 9
Homloklap ■ ■ 32825 ■ 32882 Aknacsatlakozó adapter ■ ■ ■ 32826 Öntöttvas élvédelem takarója ■ ■ 32854 2000mm 2110mm 345mm 200mm EPDM seal 1020mm 635mm 530mm 20mm 105mm anchor 10mm inlet slot ® 2000mm 2110mm 245mm 200mm 105mm anchor EPDM seal 920mm 90mm 530mm 635mm 26mm inlet slot ® 2000mm 2110mm 245mm 200mm 105mm anchor EPDM seal 920mm 635mm 530mm 55mm 0 10mm inlet slot ® 2000mm 2110mm 245mm 200mm 115mm anchor EPDM seal 920mm 635mm 530mm 65mm 550mm 26mm inlet slot ® 2000mm 2110mm 245mm 200mm 115mm anchor EPDM seal 920mm 635mm 530mm 65mm 550mm 8mm inlet slot ® ACO Qmax® 550 - rajzok
LeírásFolyókáhozSúlyRendelési szám [kg]Qmax 550

Termékinformáció

Folyóka, beépített fenékesés nélkül, 2000 mm

keresztmetszet

Hossz

TípusSúlyRendelési szám

Teljes magasságRésszélesség [mm][mm][mm][cm²/m][mm][kg]Qmax 700

öntöttvas

Q-Guard öntöttvas

Q-Flow horganyzott acél

Q-Guard horganyzott acél

Q-Slot horganyzott acél

Infobox Online infobox

228 9 ACO Qmax ® 700 9 Qmax ® 700 – a tározócsöves résfolyókarendszer
■ ■ ■ ■ ■ ■ ■ ■■■
■ ■ ■ ■ Méretek
Q-Flow
32830
32831
32832
32833
32834
229 9 ACO Qmax ® 700 9
szám [kg]Qmax 700 Homloklap ■ ■ 32835 ■ 32883 Aknacsatlakozó adapter ■ ■ ■ 32836 Öntöttvas élvédelem takarója ■ ■ 32854 2000mm 2110mm 200mm 345mm EPDM seal 1170mm 105mm anchor 630mm 730mm 20mm 700mm 10mm inlet slot ® 2000mm 2110mm 245mm 200mm 105mm anchor EPDM seal 1070mm 730mm 630mm 90mm 700mm 26mm intlet slot ® 2000mm 2110mm 245mm 200mm 105mm anchor EPDM seal 1070mm 730mm 630mm 55mm 10mm inlet slot ® 2000mm 2110mm 245mm 200mm 115mm anchor EPDM seal 26mm inlet slot 700mm 65mm 630mm 1070mm 730mm ® 2000mm 2110mm 245mm 200mm 115mm anchor EPDM seal 8mm inlet slot 700mm 65mm 630mm 1070mm 730mm ® ACO Qmax® 700 - rajzok
LeírásFolyókáhozSúlyRendelési

Termékinformáció

Folyóka, beépített fenékesés nélkül, 2000 mm

keresztmetszet

Hossz

TípusSúlyRendelési szám

Teljes magasság eleje/vége Résszélesség [mm][mm][mm][cm²/m][mm][kg]Qmax 900

230 9 ACO Qmax ® 900 9 Qmax ® 900 – a tározócsöves résfolyókarendszer
■ ■ ■ ■ ■ ■ ■ ■■■
■ ■ ■ ■ Méretek
Q-Flow
töttvas 32840 Q-Guard
32841
acél 32842
ön-
öntöttvas
Q-Flow horganyzott
Q-Guard horganyzott acél 32843
Infobox Online infobox
Q-Slot horganyzott acél 32844

Qmax® 900 - rajzok

231 9 ACO Qmax ® 900 9
Homloklap ■ ■ 32845 Homloklap ■ ■ 32888 Aknacsatlakozó adapter ■ ■ ■ 32846 Öntöttvas élvédelem takarója ■ ■ 32854 2000mm 2110mm 200mm 345mm EPDM seal 105mm anchor 1370mm 860mm 765mm 20mm 10mm inlet slot 900mm ® 900mm 2000mm 2110mm 245mm 200mm 105mm anchor EPDM seal 90mm 860mm 1270mm 765mm 26mm inlet slot ® 2000mm 2110mm 245mm 200mm 105mm anchor EPDM seal 55mm 1270mm 860mm 765mm 900mm 1155mm invert 600mm 10mm inlet slot ® 2000mm 2110mm 245mm 200mm 115mm EPDM seal 65mm 765mm 1270mm 860mm 900mm 26mm inlet slot ® 2000mm 2110mm 245mm 200mm 115mm EPDM seal 65mm 765mm 1270mm 860mm 8mm inlet slot ® ACO
LeírásFolyókáhozSúlyRendelési szám [kg]Qmax 900
232 9 ACO Qmax ® 550, 700 a 900 9 ® 550, 700 és 900 rendszerekhez Termékinformáció ■ ■ ■ ■ ■ ■ ■ ■ ■ ■ ■ ■ ■ ■Terhelési osztály Méretek keresztmetszet Résszélesség SúlyRendelési szám Hossz Teljes magasság [mm][mm][mm][cm²/m][mm][kg] D 400 44314 F 900 44316 Öntöttvas zárt fedél D 400 44315 F 900 44317 870mm 870mm 600mm clear opening 600mm clear opening ® ACO Qmax® 1500mm 150 1350mm 700mm 700mm 350mm minimum silt capacity

Áramlásszabályozó ACO Q-Brake Vortex

Termékinformáció

Áramlási diagram

233 9
ACO Q-Brake Áramlás-szabályozó
■ ■ ■ ■■■■ ■ ■---Infobox ACO Q-Brake Vortex Design Point Traditional office plate 0 500 1000 1500 012345 Flowl/s Head mm
9
234 10 collect:
238 239240 246 235
236 10 10
ACO SELF®
237 10 10 ±3 cm 10 %
238 10 10 ® ■ ■ ■ ■ ■ ■ ■ ■ ■ ■ ■ ■ Súly Hossz [mm][mm][mm] 319430 319433 Súly ■ ■ ■ 319420 ■ ■ ■ 319452 ■ ■ ■ 319439 ■ ■ ■ 319483
239 10 10 ■ ■ ■ ■ ■ ■ ■ metszet Súly Hossz [mm][mm][mm][cm²] 10500 132890 Súly ■ ■ ■ ■ ■ 02716 ■ ■ ■ ■ 02717 ■ ■ ■ 00056 ■ ■ 01290
240 10 10 ■ ■ ■ ■ ■ ■ ■ ■ ■ Súly [mm][mm] Ø160 350 Ø437 15° – 89010 350 Ø437 – 89011 Ø399 270 +/-30 350 +/ 89012 270 +/-30 350 Ø437 +/ 89013 Ø160 Ø437 280 +/-10 Einstecktiefe 350 +/ 89014
241 10 10 Súly ■ ■ ■ 605909 605908 605906 605907 ■ ■ ■ 600643 89010 89012 89010 89013 89012 89011 89014 89012 89010 89013 89010 89013 89013 89011 89014 89013 89012 89011 89013 89014 89010
242 10 10 ■ ■ ■ ■ ■ ■ ■ ■ ■ ■■ ■ ■ ■ ■ Súly - Hosszmetszet [mm][mm][mm][cm²]Keret 300 524 24 30 100 C 250 89111 D 400 89115 ■ ■■ ■ ■ ■ ■ ■ Súly - Hosszmetszet [mm][mm][mm][cm²]Keret 300 524 23,5 30 125 15 C 250 89112 D 400 89116
243 10 10 ■ ■■ ■ ■ ■ ■ Súly - Hosszmetszet [mm][mm][mm][cm²]Keret C 250 89113 D 400 89117 ■ ■■ ■ ■ ■ ■ ■ Súly - Hosszmetszet [mm][mm][mm][cm²]Keret C 250 89114 D 400 89118 524 500 24 150 30 524 500 24 150 30 175 524 500 23,5 30 25 175 524 500 23,5 30 25
244 10 10 ■ ■■ ■ ■ Súly - Hosszmetszet [mm][mm][mm][cm²]Keret C 250 1203344
400 1203345 ■ ■■ ■ ■ Súly - Hosszmetszet [mm][mm][mm][cm²]Keret C 250 1203072
400 1203109
D
D
245 10 10
íves
246 10 10 ■ ■ ■ ■ ■ ■ ■ ■ ■ Súly Hossz [mm][mm][mm] – 03206 – 01697 01614 06190 03217 08565
247 10 10 Súly ■ ■ ■ 01616 ■ 01617 ■ ■ 01618 ■ 01622 ■ ■ ■ 00058 02723 ■ ■ ■ 02638 ■ 01290

Öntöttvas fedlapok és

248 11
B 125 / D 400 252 253 254 C 250 / D 400 249
250 11 11 Fedlapok Fedlapok Anyag
Lift Lift
Bituplan Fix
251 11 11 Fedlapok
akna között
45
252 11 Fedlapok B 125 11 11873 11874 1200049 11872
253 11 Fedlapok B 125 11
1203890 Öntöttvas
1203888 03097 03098
254 11 Fedlapok D 400 11 210313 210314 210590 210591 210580 210581
255 11 Fedlapok D 400 11
11 Fedlapok D 400 11 210301 210302 Ø682 Ø620 Ø836 125
257 11 Fedlapok D 400 11
03097 03098 210248
Beépítési zsalu
258 11 Fedlapok D 400 11 1202998 1203000
259 11 Fedlapok D 400 11 1202822 1204010
11 Fedlapok D 400 11 1203050 1203024 1015545 1201099
11 Fedlapok D 400 11 Beépítési zsalu 03097 03098 210248 + 1202931
11 Fedlapok D 400 11
11 Fedlapok D 400 11
11 11 50 125 Ø680 Ø785 Ø605 Anyag
11 C 250 11 1204831 1204832 1203121 03097 03098

ACO. creating the future of

drainage

ACO. creating the future of

drainage

ACO rendszerlánc

COLLECT: Folyókák - vonalmenti vízelvezető rendszer

Öntöttvas fedlapok és víznyelők

Műanyag aknarendszer

CLEAN: Olajleválasztók, iszapfogók és nehézfém leválasztók

HOLD:

Csapadékvíz-tározó rendszer

Csapadékvíz-csillapítás

RELEASE: Csapadékvíz-szikkasztó rendszer

Csapadékvíz-áramlásszabályozók

ACO Kereskedelmi Kft.

2330 Dunaharaszti

Jedlik Ányos út 24.

Tel.: +36 24 620 380

Fax: +36 24 620 389

acohu@aco.hu www.aco.hu

ACO. creating the future of drainage

Turn static files into dynamic content formats.

Create a flipbook
Issuu converts static files into: digital portfolios, online yearbooks, online catalogs, digital photo albums and more. Sign up and create your flipbook.