Professional Architecture Portfolio 2025

Page 1


PORTFOLIO architecture

Kennesaw State University

Undergraduate

olivia aratea

Architecture has been a focal point of my aspirations for the future. My passion for architecture extends beyond its aesthetic appeal; I am deeply drawn to its potential as a transformative field that positively impacts both people and the environment. I find myself lost in the love for the design process, where each stage offers a new opportunity to innovate and create meaningful spaces.

My goal is to become a licensed architect, with a particular interest in urban design. After completing my undergraduate, I plan to continue my education in a Urban Design Master’s Program. I am eager to integratemy passionfor urban studies into my work, exploring how built environments can enhance and transform urban spaces.

REFERENCES |

Zamila Karimi

• zkarimi@kennesaw.edu

• (470) 578-7257

Arief Setiawan

• asetiawa@kennesaw.edu

• (470) 578-5160

Jereme Smith

• jsmit866@kennesaw.edu

• (470) 578-7253

| CURRICULUM VITAE

O l i v i a A r a t e a

+1 (404) 725 5527 | olivia@creativeion.com

Instagram | studio_aratea Linkedin | www.linkedin.com/in/oliviaaratea

EDUCATION | SOFTWARE SKILLS |

Kennesaw State University current 3.54 GPA Bachelor’s of Architecture expected in 2026 Marketing Minor

• 1st place Dwell Design Studio sponsored competition

• Awarded HOPE Scholarship

• Awarded Architecture Foundation of Georgia Scholarship 2024 - 2025

• 2 semesters Dean’s List

Dual Enrolment

Chattahoochee Technical Collage 2018 -2019

Kennesaw State University 2019 - 2021

Homeschooled graduated with 4.0 GPA High School Diploma 2021

Auto CAD

Adobe Suite

Revit Rhinoceros

Enscape

Procreate

Hand Drafting | Drawing

Conceptual Design Development

CORE SKILLS | INVOLVEMENT |

Alpha Rho Chi - Polyidus Chapter

• Broadcasting & Marketing Chair 2023 - 2024

• Worthy Scribe | Secretary 2024 - 2025

• Awarded the Scholastic Honor Award

Social Media Work

• KSU Architecture official Instragram

• APX Polyidus official Instagram

• Glow Skin & Wholeness LLC marketing

Graphic Design Work

• Whitetail Coffee Company graphics

• APX Graphics committee

As a leader, I thrive in collaboration and cultivate clarity within a team. My attention to detail ensures high-quality work, while my adaptability allows me to navigate challenging projects. I communicate effectively, listen actively, and engage in diverse situations. organizational skills help me manage complex projects efficiently, and my perseverance drives me to overcome challenges and achieve excellence.

THE LIVING MURAL |

multi-family residence | Marietta Square, GA

studio III fall 2022

1st place Dwell Design Studio sponsored competition

THE POINT |

gallery & studio | Ponce De Leon Ave NE, Atlanta, GA studio IV spring 2023

07

ALPINE SHELTER SKUTA |

precedent study design communication II fall 2022

spatial exploration studio V fall 2023

office building & market | Peachtree St NE, Atlanta, GA studio VII fall 2024 curated works 2021 - 2024

THE LIVING MURAL |

This was a Multi-Family Dwelling project named The Living Mural of Marietta. A place where public and private spaces co-exist together, The Living Mural brings together the community through the expression of art and movement. Based on Marietta Square’s noise and circulation trends, The Living Mural isolates living corridors from the noise of the ou side through an interactive skin. Thismultiresidential complex carries on the character of Marietta through an embodiment of the surrounding murals.

Sponsored by Dwell Design Studios. This project got 1st place in the studio design competition.

Site Plan Marietta Square, GA
Waverly Wy
Exploded Axon

The Point Studio and Photography Gallery was a studio and art gallery project located on Ponce De Leon Ave NE. The Point is a photography studio and gallery designed to symbolize the converging lines within a camera. Through the study of the process in photography, the program of space in museums, and the circulation around the site the space within the building is designed to pull light in through skylights along with interconnected spaces that creates an immersive experience.

Site Plan | Ponce De Leon Ave NE, Atlanta, GA
PonceDeLeon AveNE
Exploded Axon Physical

ALPINE SHELTER SKUTA |

ARCHITECT | AKT II, Harvard GSD Students, OFIS Architects

LOCATION | Mount Skuta, Slovenia AREA | 129ft²

Designed for a site on Skuta Mountain in Slovenia, Skuta Mountain Shelter offers an intimate refuge for eight visitors nestled in the scenic Alps. The building shifts its roof line like a series of mountain peaks, shedding snow and framing distant scenes. Deployed by helicopter as three modules, the building was joined onsite into one mass. The design consists of three separate modules, in part to allow for transport to the site, but also to programmatically divide the space. Robust triple glazed windows offer panoramic views of the valley and the adjacent mountain range.

ALPINE SHELTER SKUTA EXPLODED AXON | OLIVIA ARATEA

Larch Timber Timber Bench
Steel Support Legs
Dutch Styled Door
Triple Glazed Window
Concrete Cladding
Timber Batons
Lateral Section
South Elevation

ARMATURE LANDSCAPE |

Spatial memory of spaces that are archived through the senses engaged by the environment. The concept of memory in photography stands unchanged through the development of cameras throughout time. In terms of the past, photos went through extensive processes to be developed into physical representation of brief moments. Since then, it has now evolved into capturing events as instant gratification. The process of development began in a time of uncertainty and darkness with stillness in waiting, in contrast, the instant ability to capture moments in time has changed the way we perceive physical archived memories. Through the process of artifact exploration and the construction of armature to control the uncontrollable, a site was developed. This articulates the change of processes and contrasting of instantaneous verses lengthy process. As there are spaces within the artifactual site, there is a flow integrated to translate this story.

Concept Collages

STRATA MARKETPLACE |

This project envisions an eco-friendly office building that integrates both covered and open market spaces, embracing core architectural principles to define its form andfunction.The design is anchored in fundamental concepts such as axis, hierarchy of views, spatial grids of public and private zones, and contrast in materiality, light, and spatial experience. These guiding principles shape the spatial configuration, influence the circulation paths, and define the interplay between transparency and opacity, fostering a harmonious relationship between indoor and outdoor environments.

Site Plan | Peachtree St NE., Alanta GA
Beverly Rd NE
Peachtree St NE
Elevation
Elevation

PERSONAL WORKS |

A collection of work that expresses a portion of my understandings in terms of architectural concepts and graphical representations and unique skill sets

Charcoal Renders
Physical Model of Tectonics
Hand Drafting
Wall Section of Maison de Verre | Paris, France | Designed by Pierre Chareau and Bernard Bijvoet 1932
Wall Section of Sara Cultural Centre and Wood Hotel | Skellefteå, Sweden Designed by White Arkitekter | 2021
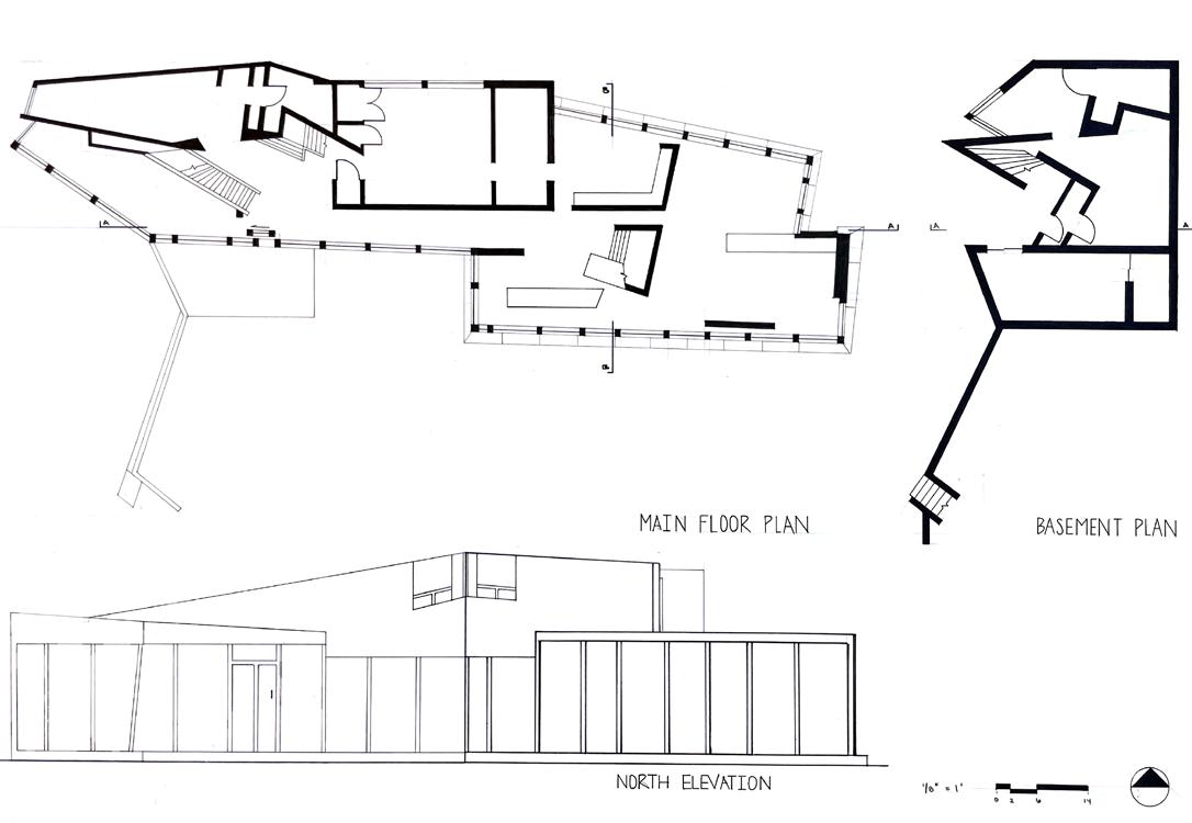
Hand Drafting of Möbius House | Het Gooi, Netherlands | Designed by UNStudio
Hand Drafting of Nest We Grow | Takinoue, Japan | Designed by Kengo Kuma | 2014
THAN K Y O U

Turn static files into dynamic content formats.

Create a flipbook
Issuu converts static files into: digital portfolios, online yearbooks, online catalogs, digital photo albums and more. Sign up and create your flipbook.