Portfolio - Computational Design & Architecture

Page 1

PORTFOLIO COMPUTATIONAL DESIGN & ARCHITECTURE

2023 | 2024

OCEANE DURAND-MANICLAS

BIM ARCHITECT | COMPUTATIONAL DESIGNER

+44 7424 857665

Odurandmaniclas@gmail com

I am currently enrolled in the MSc program at the School of Architecture-University of Liverpool, specialising in Building Information Modeling and Digital Transformation (BIM-DT) This advanced program and my involvement in parametric and digital fabrication modules demonstrate my dedication to incorporating cutting-edge technology strategies within the field of architecture Alongside my academic endeavors, I have acquired practical experience through diverse freelancing projects and volunteer work, highlighting my adaptability and global perspective Prior to this, I successfully completed my BA in Interior Architecture in France and pursued a three-year study of Digital-Art in Belgium Alongside my academic pursuits, I have gained valuable professional experience in various roles, which have been crucial in developing my strong work ethic and coordination skills. Additionally, personal experiences have fortified my resilience and unwavering motivation to excel in my field

E D U C A T I O N

MSc BIM-DT (Reference upon request)

(Building Information Modeling & Digital Transformation)

University of Liverpool (UK) | 2023-2024

(Excellence scholarship recipient - Vice Chancellor)

BA Interior Architecture

Intérieur Déco, L’Institut d’Architecture de Design et du PaysageLADP (FR) 2020-2023 (Graduated with distinction)

Certificate in Business Management Fundamentals

EPFC (BE) | 2015-2016

BA Digital-Art

Academie des Beaux-Arts de Tournai (BE) | 2012-2015

2020 - 2024

(Reference available)

Contribution on heritage building projects graded II located in UK (consultancy, material bank edition, design, council planning, BIM model in Archicad and updates)

Led all project stages for the realisation of sustainable lightweight houses (Deep research of construction materials, nautical industry solutions, house self-sufficiency and low-tech systems, Excellent networking with contractors and stakeholders Advanced practical construction skills

Time & Cost planning and management for small projects)

Collaboration on interior design and graphical installations

VOLUNTEERING

Workaway 2018-2022

Joinery work for interiors in Scotland (2022)

Renovation of a cottage in Wales (2019)

Renovation of a farm in Canada (2019)

Carpentry work for timber framed house in New-Zealand (2018)

Building work on Bamboo house in Cambodia (2018)

ASSISTANT COORDINATOR

Avicenne (BE) 2017-2018 (Reference available)

Assistant coordinator in a youth art centre, responsible for activity planning and administration tasks (Budget management, Report editing, Partnership development)

ARCHITECTURAL VISUALISATION

3D Studio com (BE) 2014-2015 (Reference available)

Assistant in 3D architectural rendering, poster presentation, and administrative tasks

SOFTWARE

LANGUAGES

French: Native speaker

COMPETITIONS

English: C Level

CHAIR DESIGN COMPETITION 2023-HOSTED BY BUILDNER

TINY-HOUSE COMPETITION 2022-HOSTED BY VOLUME ZERO

German: A Level

X P E R I E N C E
E
A R C H I T E C T U R A L D E S I G N E R F R E E L A N C E
Archicad Revit Navisworks Rhinoceros Grasshopper Sketchup Twinmotion Lumion 3DS Max Illustrator Photoshop Solibri Gravity Sketch Unity Synchro Unreal Engine

CONTENT

COMPUTATIONAL DESIGN & DIGITAL FABRICATION

01. THE LEAF

02. ECO-FLEX BRICK

03. WOODWISE CHAIR

ARCHITECTURAL DESIGN

01. GREEN WHEEL HOUSE

02. ENGLISH COTTAGE

COMPUTATIONAL DESIGN & DIGITAL FABRICATION

01. THE LEAF

PROJECT TYPE:

INSTITUTE:

DEVELOPED BY:

ROLE:

DESCRIPTION:

ACADEMIC | MASTER

SCHOOL OF ARCHITECTURE | UNIVERSITY OF LIVERPOOL | 2023

Team: Oceane Durand-Maniclas, Madhura Vinod Tandale , Arya Tekade, Yashashree Deshmukh Module Leader: Asterios Agkathidis

Concept, Design research, Design Optimisation ,Visualisation, 3D printings, 4D printing experimentation, Analysis

This project aims to develop prototypes of self-forming emergency shelters by using 4D printing technology The technique involves exploiting shape memory by immersing 3D printed objects made with Polylactic acid filament (PLA) in 90°C water

The project adopts a biomorphic design approach that takes inspiration from organic forms found in nature to enhance functionality and adaptability Specifically, the design of the shelters mimics the shape of a leaf The research methodology includes two design methods in RHINO and four computational methods for exploring selfassembling 4D printing Method one uses a Panelling tool in Grasshopper Method two utilises Karamba in Grasshopper. Method three employs an algorithmic approach, and method four draws inspiration from the nature of the leaf structure, by integrating gradient curve analysis to dress a voronoi pattern according to the density, following by Parakeet to design leaf venation

CURVATURE ANALYSIS

REBUILD

PANELING

REBUILD

TOOL: GEOMETRY: Rhino + Grasshopper

Plugin: Weaverbird

Two design methods were conducted in Rhino software to compare the Rebuild (DP01) and Loft (DP02) processes The Rebuild process generated geometries with more curvature but also exhibited more fluctuations In contrast, the Loft process resulted in smoother and more consistent curves

RESULT:

DP02 showed better responses to curvature shapes memory, with DP02-P2 02 being the closest outcome to the original design

STRESS LINES

TOOL:

RESULT: Rhino + Grasshopper Plugin: Karamba

DP01 (Rebuilt) exhibits symmetric lines and lower displacement compared to the original form Both processes, however, show an average displacement of 30-35% DP01 (Rebuilt) obtained square meshes which did not require any optimization during computation whereas DP02 (Loft) obtained triangular meshes and required some optimisation

D P 0 1P 2 D P 0 1P 1 D P 0 2P 2 D P 0 2P 1
FILLETED
P 1 P 2 FILLETED
ROMBUS
HEXAGON
DP01
DP02
D P 0 1 D P 0 2

COMPUTATIONAL MODELING

TOOL :

RES

The method followed in this experimental proc approach It follows a mesh creation and programme It involves creating trajectories obtained G-code is then processed in Pyth resulting in developing a printable file with req

(DP01) proved successful when compared with Loft hieved a significantly lower mesh count, generating only 000 triangular meshes obtained by DP02 (Loft)

n Grasshopper is attached to it The red region represents tion points are then connected to this surface to generate eously

RESULT:

V2 had better outputs compared to V1 with both versions obtaining similar differences in length and width but higher differences in height

P
P 0 1
P 0 2
D
D
D P 0 1 D P 0 2
V 1 V 2

COMPARATIVE ANALYSIS: DESIGN PROCESS

Percentagedispacement

COMPARATIVE ANALYSIS: METHODS

METHOD-2 (STRESS LINES) METHOD-3 (COMPUTATIONAL MODELLING)
Most successful (0%>25%) Moderate (25%>35%) Fail (35%>100%) METHOD-1 (PANELLING) DP01 DP02 35 31% 27 25% 33 63% 35 36% 25 86% 18 8% 31 12% 34 49% 22 33% 19 65% METHOD-4 (LEAF VENATION)
METHOD-1 (PANELLING) METHOD-2 (STRESS LINES) METHOD-3 (COMPUTATIONAL MODELLING) Percentagedispacement Most successful (0%>25%) Moderate (25%>35%) Fail (35%>100%)

02. ECOFLEX BRICK

PROJECT TYPE:

INSTITUTE:

DEVELOPED BY:

ROLE:

DESCRIPTION:

ACADEMIC | MASTER

SCHOOL OF ARCHITECTURE | UNIVERSITY OF LIVERPOOL | 2024

Team: Oceane Durand-Maniclas, Boray Dogan, Waleejah Khan, Arshia Olfat

Module Leader: Asterios Agkathidis

Concept, Design research, Design Optimisation ,Visualisation, Analysis

This project focuses on sustainable urban architecture, using advanced technologies to create functional and attractive building elements The goal is to transform urban areas into livable spaces that prioritise human well-being and sustainability The project aims to design a flexible brick design system, including solutions for climate change targets It integrates digital prototyping fabrication processes like 3D printing and CNC milling machines The brick design prioritises flexibility, achieved through a zero tolerance interlocking system and various wall arrangements The project explores different material combinations, such as a blend of plastic waste, sawdust, and pomace using 3D printing, and expanded cork and corn husk using CNC milling machines

SOLAR RADIATION SURFACE

To find brick surface design that enable to reduce solar radiation on several neagative angles degree were explored This was realised by using Ladybug plugin in Grasshopper

INDICATORS:

*The solid wall is a simple straight wall, interlocking bricks in the most straightforward assembly

**The porous wall is designed to incorporate plants, which will be added manually as a final step, once the wall is built

***The castle line wall will be assembled with the same displacement distance on the z axe to ensure the wall stability

ANGLES: 0° 15° 30° INTERLOCKING SYSTEM 1. 2. EASY FOR ROBOTIC ASSEMBLY DESIGN PARAMETERS
Diamond shape is an efficient geometry to improve water flow 4 GREEN
Easy for Robotic Assembly Interlocking system Solar radiation Wind condition Green cities & CO2 reduction Design priorities 1 2 3
3.
CITIES
SOLID* POROUS**
CASTLE LINE***
WALL
ASSEMBLY TYPES 1 62
RESULT
0 72 0 46

WIND VELOCITY ANALYSIS

The Epw file of Liverpool climate was inputted into ladybug, once the wind speed was determined per month, the highest wind speed pick (18km/h) -during December- was used as input for Butterfly to determine how wind velocity react with the different wall adjustments

TOOL:

Rhino + Grasshopper Plugin: Ladybug + Butterfly

RESULT INDICATORS:

1 2 3

SOLAR RADIATION ANALYSIS

TOOL: Rhino + Grasshopper Plugin: Ladybug

Using LadyBug and inputting the Epw ma provide solar radiation and how bricks type

RESULT INDICATORS:

SOLID* POROUS** CASTLE LINE***
1 2 SOLID* POR B A S I C B R I C K E C O F L E X B R I C K
242 84 104 36
The material used for the CNC milled prototypes is basic compacted foam ING ed prototypes is PLA filament ROBOTIC ASSEMBLY VIDEO LINK 3 ROUS** CASTLE LINE***
of Liverpool, simulations
ran to
react to it 260 87 304 00 96 81 122 56
ap file
were
es would
LIVERPOOL

BRICK WALL APPLICATION & FABRICATION

Following ideas of the two prototypes types, climate analysis, and wall assembly types, two idea of wall application for real life context were decided

The application involves the use of bricks made from plastic waste and different materials such as cement, sawdust, and "chardonnay" pomace, previously studied in a case study In this process, the brick is 3D printed This type of wall allows for the implementation of sedum plants, which helps to reduce carbon emissions and contribute to greening cities while participating in waste recycling Additionally, the brick design moderate’s solar radiation in urban environments Overall, the wall concept contributes to greener cities while improving living comfort

+ +
PLASTIC WASTE SAWDUST POMACE 45 X 15 CM 3D PRINTING TYPE 1: GREEN WALL

The application needs to involve the use of bricks made of expanded cork with dry joint bonding In this process the brick is milled by a robotic arm or a CNC machine As studied in a a previous case study, this material offers many advantages beyond its structural use, such as insulation, fire resistance, fungi resistance, and water resistance Furthermore, it helps to reduce carbon emissions and is easy to disassemble, striving for reuse purposes, while reducing solar radiation

TYPE 2: ECO-CORK WALL EXPANDED CORK 45 X 15 CM + CORN HUSK BONDING CNC MILLING

03. WOODWISE CHAIR

PROJECT TYPE:

INSTITUTE:

DEVELOPED BY:

ROLE:

DESCRIPTION:

COMPETITION

BUILDER - CHAIR COMPETITION | 2023

Oceane Durand-Maniclas

Concept, Design research, Design Optimisation ,Visualisation, Analysis, prototype

Introducing our Chair Project, inspired by Frank O Gehry’s idea of using a single, affordable material in his design We have created a multipurpose chair from one standard plywood sheet (2440mm x1220mmx18mm), adaptable for diverse environments The focus is on flexibility and sustainability across its life cycle, covering design, construction, transportation, and a budget-friendly market presence The chair boasts easy storage, multiple usage positions, and inclusivity for various users and conditions It combines digital technology, like parametric kerf design (also called living hinges) and laser cutting, with traditional woodworking methods, such as the Shou Sugi Ban technique This fusion ensures durability, style, and environmental responsibility

CONCEPT: MODULARITY & CIRCULARITY
SET 1 SET 2

DIMENSIONS

SET 1

PARAMETRIC KERF

SET 2

Parametric kerf on wood is a woodworking technique where a series of cuts, known as kerfs, are made into a piece of wood to make it bendable These cuts are designed based on specific parameters that define the pattern, depth, and spacing of the kerfs in order to achieve a desired curvature or shape when the wood is bent. This method turns a rigid material into a flexible one, allowing for the creation of intricate, curved wooden structures from flat panels It's a subtractive manufacturing process that is particularly useful in digital fabrication and furniture design, enabling the production of double curvature surfaces Using this technique, the chair can result of being made with one material on a single surface while enabling to change its shape

Once parametric kerf pattern decided, several curve flexibility test were done within a scale of 1:5 To execute the test, wood sheet of a 3 mm thickness were cut with the pattern and curve resistance tested on a 2D printed model

CURVATURE ANALYSIS

A comparative curvature analysis were conducted to understand the curve behaviour on different modular position sets in order to pinpoint the significant curvature areas on both modules This is essential to define parametric wood kerf

1 2 3 4 1 2 3 4 5 6 SET 1 1 2 3 4 5 6 SET 2 PARAMETRIC KERF

ARCHITECTURAL DESIGN

01. GREEN WHEEL HOUSE

PROJECT TYPE:

LOCATION:

DEVELOPED BY:

ROLE:

DESCRIPTION:

FREELANCE-2020

TOURNAI - BELGIUM

Oceane Durand-Maniclas

Concept, Design research, Design, Planning, Construction, Finishes

This tiny house on wheels focus on sustainability, meticulously designed to have a minimal environmental footprint It comes equipped with an advanced water management system and solar panels, enabling it to capitalize on natural resources for a self-sustaining lifestyle The incorporation of reclaimed materials not only adds character but also champions circularity, aligning with a market that esteems resourcefulness Its design, fruit of thorough research in the nautical industry, and optimising space without compromising on weight, presenting "The Green Wheel Habitat" as an unprecedented and innovative remedy for eco-conscious residents in the world of tiny house

VIEW

EXPLODED
SECTIONS
LEFT
RIGHT GROUND FLOOR MEZZANINES

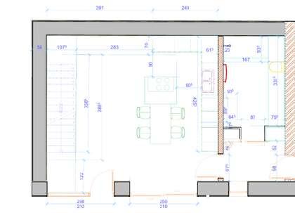
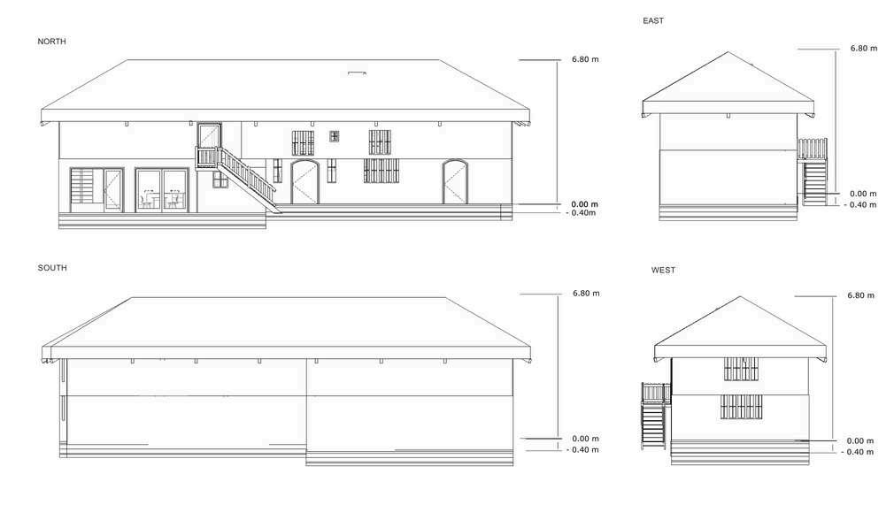
02. ENGLISH COTTAGE

PROJECT TYPE:

LOCATION:

DEVELOPED BY:

ROLE:

DESCRIPTION:

FREELANCE-2023

SIDMOUTH- UK

Oceane Durand-Maniclas

Interior design renovation plan, council plans, design model updates, visualisation

Located in Devon -UK-, the project revitalises sevral building on a Grade II listed estate The 15th-century cottage renovation endeavors a careful preservation of heritage, blending the old-world charm with the comfort and convenience of modern living and interior contempoary space

As stewards of history, we approached this cottage with great respect, ensuring that every improvement paid homage to its rich history The goal was to convert this historic structure into a two dwellings while offering a peaceful retreat for visitors

EXTERIOR ELEVATION

NEW PARTITIONING SECTION PLANS

EAST SIDE DWELLING SECTIONS

EAST NORTH

GROUND FLOOR

MEZZANINE
THANK YOU FOR YOUR TIME +44 7424 857665 Odurandmaniclas@gmail.com LinkedIn: www.linkedin.com/in/oceanedigit/ Liverpool-UK

Turn static files into dynamic content formats.

Create a flipbook
Issuu converts static files into: digital portfolios, online yearbooks, online catalogs, digital photo albums and more. Sign up and create your flipbook.