

design + build



AZ ARANYHULLÁMTÓL
A „LOBOGÓ” ÉPÜLETIG
Budapest XIII. kerületének Vizafogó részén, a Dagály Strandfürdő szomszédságában ma egy közel 50 ezer négyzetméteres, lelátókkal kibővített, korszerű uszodakomplexum áll. Az eredeti tervektől hosszú út vezetett a ma ismert állapotig.
Szöveg: MOLNÁR SZILVIA
Látványterv: ©NAPUR ARCHITECT É pületfotó : BUJNOVSZKY TAMÁS
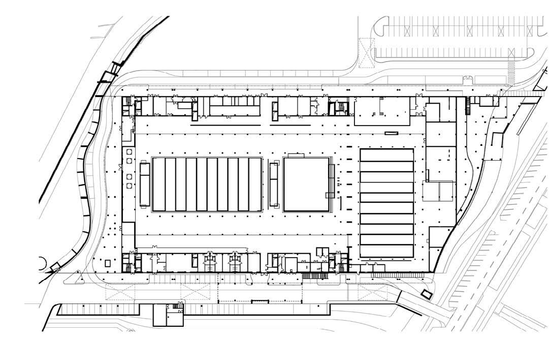
Ama látható építészeti forma eltér a négy évvel ezelőtt megismert látványtervi, aranyhullám néven ismert változattól. Az aranyhullámot a világbajnokság programját befogadni képes, 13 000 férőhelyes, 21 500 négyzetméteres épületnek tervezte meg az építész, aszimmetrikus lelátóval – ebből a fix lelátóhely 5000, az ideiglenes 8000 lelátóhelyet jelentett. Az épület csúcsmagassága a tervekben 50-52 méter volt, a Duna felől hármas hullám képét mutatta és 300 db helyiséget tartalmazott volna. Ennek az épületnek a megépítését azonban 2015-ben elvetették, mert funkcionális, biztonságtechnikai és médiaprogramjának területi lehetőségei nem feleltek meg a szigorúbb olimpiai követelményeknek. Ez azt jelenti, hogy további 30 000 négyzetméter alapterülettel, még 150 db helyiségnek kellett volna helyet találni az épületben és az épület szomszédságában, vagyis a főépülethez kapcsolódó, külön szárnyban. Mindezzel párhuzamosan az összes nézőszámot 15-20 000 főre kellett volna növelni. Ez a méretnövekedés megduplázta volna az aranyhullám tömegét, ami lehetetlen lett volna, hiszen a megkomponált épület erre nem adott lehetőséget, ezért áttervezték. Az olimpiai tervezési program következtében közel 50 000 négyzetméter (bruttó) alapterületű épületet alakítottak ki 450 db helyiséggel, ebből 23 000 négyzetmétert foglalnak el az ideiglenes lelátók és az alatta lévő terek. A korábbi aranyhullám aszimmetrikus lelátórendszerét szimmetrikusra kellett változtatni és a létesítmény alaprajzát 90 fokkal el kellett forgatni. Ez az elforgatott megoldás tette
lehetővé az ideiglenes lelátók biztonságos, kétoldali megépíthetőségét, oldalanként 4500-7000 férőhellyel. Így 6000 főre növekedett az alapépület program szerinti (ideiglenes lelátók nélküli) befogadóképessége. Az olimpiai biztonsági követelmények értelmében három, forgalmilag hermetikusan elkülönülő szintre tagolódott az új épület. A terepszinten a szerviz- és kiszolgáló sze-mélyzet, az első szinten az uszodahasználók, míg a második emeleten a nézőtéri nagyközönség terei kaptak helyet. Ez egy 360 fokban körüljárható telepítést eredményezett, a korábbi 180 fokban megközelíthető aranyhullámmal szemben. Az épület magassága a korábbi 50-52 méteres magasságról 44 méter magasságra csökkent. A talajvíz nem tette lehetővé, hogy a szervizfunkciókat földbe süllyesszék – ez 5 méterrel megnövelte az új épület magasságát. Egy világeseményt befogadó uszoda átlagos magassága ugyanis 35 méter, esetünkben ez a szám 39 méter, és ehhez jön még a hely adottságiból fakadó plusz 5 méter. Vagyis egy átlagos, világeseményt befogadó épülethez képest a plusz méterek egyrészt a szervizfunkciók befogadását szolgálják, másrészt a méretnövekedés ahhoz szükséges, hogy a létesítmény akár 20 000 főt is képes legyen befogadni. „Ezzel a tartalék magassággal szavatolja a szerkezet későbbi világversenyek megnövekedett létszámigényének kiszolgálását. A homlokzati megformálása okán lobogóra keresztelt épület mérete tisztán a funkció kiszolgálásából következik. Nincs benne öncélú formálás. A szerkezet a mai építészeti törekvések mentén az egyszerűségre, az átlátható tisztaságra épít. A forma követi a funkciót. Nem a divat és nem a trendek határozzák meg alapvetéseit. Az épület tömegének formálása egyben megidézi a római transaquincumi hídfőállás ezen a helyen álló pillérét. A markáns épülettömegnek építészeti értelemben a Duna az igazodási pontja. A dunai vízfelület titokzatos némasága, annak színvilága és víztömegének ereje tükröződik vissza az épületen mind látványban, mind tömegben. Ez az épület a Duna része«. A külső látványból feltáruló építészeti erő, az épület arányai a versenysport emberfeletti küzdelmét hivatott demonstrálni. A horizontális, eltérő hullámzású sávok az épülettömeget rendezik a Duna horizontjára. Ez a horizontalitás teljességében a vébé utáni oldalsó, ideiglenes lelátók elbontása után fog kiteljesedni. Az épület léptéke igazodik a Népfürdő utcai lakótelep és a Marina-parti beépítés párkánymagasságához, épített környezetének tömegviszonyaihoz. Az épületnek nem célja és nem is feladata a túldimenzionált dekorálás. A mértékletesség és az elegancia kell, hogy jellemezze az egyedi épületszobrot. A funkcionális geometriából adódó kubus finoman meg-meg hullámzik, de csak annyira, hogy a mozdulat feszültsége az épü-letben maradjon. Az épület ideiglenes lelátóival, molinóival megtévesztő. Pontosan dupla méretűre növeli a területen a saját léptékét. A lelátók eltávolítása után beáll az a végső tervezett kép, amelyre eredetileg is komponált a mű.” (A fenti szöveg Ferencz Marcel leírá-sának felhasználásával készült)
FROM THE GOLDEN WAVE TO THE“BANNER” BUILDING
Words: MOLNÁR SZILVIA
Visualisation: ©NAPUR
ARCHITECT
P hotography : TAMÁS BUJNOVSZKY
In the Vizafogó area of District XIII of Budapest, next to the Dagály Bath, today a nearly 50,000 square meter modern swimming pool complex rises, enlarged with stands. The architectural form visible today differs from the visualisation version known as “Golden Wave” presented four years ago. The Golden Wave was designed by the architect as a venue capable of hosting the programme of the World Championship, with a capacity of 13,000 and a floor area of 21,500 square metres, 5000 fixed seats and 8000 temporary ones. Seen from the Danube, the building presented the image of a triple wave, and would have contained 300 premises, with a planned peak height of 50-52 metres. Construction
of this building was cancelled in 2015 as its space requirement in terms of function, security technology, and media programme did not meet the more stringent criteria for the Olympics, which meant that a further 30,000 square metres of floor area and space for an additional 150 premises would have had to be found inside the building and adjacent to it, that is, in a separate annex joined to the building. In parallel, total capacity would have had to be increased to 15-20,000. This increase in dimensions would have doubled the weight of the Golden Wave, which was impossible, as the building that was designed did not allow this. At this point, the building was redesigned. The design programme for the
Olympics transformed the 21,500 square meter floor area into a building of nearly 50,000 square meters (gross), which contained 450 premises, from which floor area 23,000 square meters were taken up by the temporary stands and the spaces underneath them. The asymmetrical system of stands of the previous Golden Wave had to be converted into a symmetrical one, and the layout plan of the building had to be rotated by 90 degrees on the site. This rotated solution enabled the safe construction of temporary stands on both sides, with a capacity of 4500-7000 on each side. The capacity of the main building according to the programme (without temporary stands) increased to 6000.



In conformity with safety requirements for the Olympics the building was divided into 3 levels, which are hermetic in terms of traffic. The ground floor houses maintenance and service facilities, the first floor is for pool users, while the second floor consists of spectator areas. This resulted in an installation with all-round access, unlike the previous Golden Wave, whose access was limited to a 180-degree arc. The height of the building was reduced from the previous 50-52 to 44 metres. (As for this latter data: the fact that groundwater conditions did not allow maintenance functions to be installed underground added 5 meters to the height of the building.) The average height of a typical pool used as a venue for world-class events is 35 meters; in our case, the height is 39 meters, to which the extra necessary 5 meters were added. Compared to a typical world-class venue the extra height thus serves partly for housing maintenance functions, The greater size is also necessary for allowing the facility to have a capacity of up to 20,000 in the future. “This height reserve guarantees that
the structure can serve the greater capacity requirement of future world championships. The dimensions of the building, which was christened “Banner” after the form of its facade is purely a consequence of satisfying its function. It contains no self-serving forms. In line with modern architectural approach, the building is based on clarity and transparent simplicity. Form follows function. Its basic tenets are not defined by fashion or trends. The shaping of the mass of the building also recalls the pillar of the bridgehead in the Roman settlement of Aquincum, which once stood on its site. In the architectural sense, the orientation point of this robust building mass is the Danube. In both its sight and mass, the building mirrors the mysterious silence of the surface of the Danube, its colours, and the sheer power of its mass of water. This building is “part” of the Danube. The architectural strength that emerges from its appearance and its proportions are meant to reflect the superhuman struggles of competitive sports. The horizontal bands with their varying waves align the mass
of the building to the horizon of the Danube. This horizontality will become complete once the temporary lower stands are demolished after the World Championship. The scale of the building is adjusted to the conditions of mass of its manmade environment, the Népfürdő Street residential park and the structures on Marina shore. The building does not aim at oversized decoration, nor is this its function. This unique building sculpture must be characterised by moderation and elegance. Although the cube resulting from its functional geometry presents slight undulations, it only does so to an extent where the tension of this movement is still contained in the building. With its temporary stands and banners the building is deceptive, precisely doubling its own scale on the site. After the demolition of stands the final image this work was composed for will be established.” (The above text was composed using the description by Marcel Ferencz)
DUNA ARÉNA: AZ ÖSSZEFOGÁS EREJE
Rekordidő alatt, a megadott költségkereten belül épült fel Budapesten a világszínvonalú Duna Aréna, amely a 21. század technológiáját képviseli. Fürjes Balázst, a budapesti fejlesztésekért felelős kormánybiztost arról kérdeztük, milyen kihívásokkal néztek szembe és hogyan sikerült teljesíteni a feladatot.
Fotó : BUJNOVSZKY TAMÁS

Fotó: KKBK
Photo by KKBK
„Alapvető követelményként határoztuk meg a fenntarthatóságot
és a környezettudatosságot”
Octogon: Budapestnek két év alatt kellett felépítenie egy olyan úszóarénát, melyre más világbajnoki házigazdának négy-öt év áll rendelkezésére. Minek köszönhető, hogy teljesíteni tudták a vállalást?
Hogy Cornel Marculescut, a Nemzetközi Úszó Szövetség (FINA) ügyvezető igazgatóját idézzem: „ez egy olyan vizes világverseny, melyen az első világrekord a szárazon született.” Azzal, hogy vállaltuk, a visszalépő Guadalajara helyére beugorva azt, hogy nem 2021-ben, hanem 2017-ben rendezzük meg a vébét, komoly kockázatot vállaltunk. Miniszterelnök úr háromszor is megkérdezte tőlem a döntést megelőzően: „Balázs, biztosan meg tudjuk építeni az arénát?”
A válasz magától értetődött? Nem voltak önben kérdőjelek?
Bizonyos feltételeknek teljesülniük kellett ahhoz, hogy neki merjünk rugaszkodni egy ekkora kihívásnak. A Dagály-törvény nélkül esélyünk sem lett volna arra, hogy tartsuk a rendkívül szűkös határidőt és az előzetesen meghatározott költségkeretet, de miután a törvényt teljes egységben, 97 százalékos többséggel megszavazta az Országgyűlés 2015 márciusában, gyorsítópályára került a projekt, és a lendület a maraton végéig kitartott. Mert, ahogy a beruházással kapcsolatban több alkalommal is hangsúlyoztam: ez egy olyan maraton volt, melyet sprintben futottunk végig.
Ilyen egyszerű a siker receptje?
Ez a projekt az összefogásról, a magyar tehetségről és az ígéretek betartásáról szól. A magyarok tehetsége, a magyarok összefogásával párosulva csodára volt képes. Így tudtuk betartani a FINA-val a Marculescu úrnak adott szavunkat. Teljesítettük, amit vállaltunk, 2 év alatt építettük fel, amit mások 4-5 év alatt szoktak. A Duna Aréna a magyar emberek közös erőfeszítésének, tehetségének és kreativitásának eredménye. Olyan siker, ami kizárólag teljes körű összefogással valósulhatott meg. Tarlós Istvánnal, Budapest főpolgármesterével és Tóth Józseffel, Angyalföld szocialista polgármesterével mindvégig példaértékű volt az együttműködés, de szintén szükség volt több mint 250 cég munkájára és 3 millió munkaórára. Ezúton köszönjük az angyalföli lakosok türelmét, megértését is.
Kijelenthető, hogy a Duna Aréna több mint versenyuszoda?
A megújuló Dagály Strandfürdővel együtt az ország legkiemelkedőbb sport- és fürdőközpontja jön létre. A komplexum a vébé után is több ezer ember számára nyújt majd kikapcsolódási lehetőséget. Az ideiglenes lelátórészek elbontása után, az épület általános, hétköznapi üzemmódra átállítását követően az uszoda nyitva áll a nagyközönségnek is. A gyerekeknek tanuszodája, a magyar úszó- és vízilabdasportnak pedig világszínvonalú edzőbázisa lesz, amely majd több tucat hazai és nemzetközi versenynek ad otthont.
A Duna Aréna nemzetközi viszonylatban is kiemelkedő létesítmény?
A kollégáim és az én véleményem nem mérvadó, elvégre elfogultak vagyunk, szívügyünk volt az építkezés. Hosszú Katinka, háromszoros olimpiai bajnok klasszisunk ugyanakkor a világ összes számottevő uszodájában versenyzett már, de a Duna Aréna őt is lenyűgözte, alig várta, hogy medencébe ugorhasson. A 2020-as tokiói olimpia létesítményigazgatója pedig kijelentette, hogy követendő példaként tekintenek a Duna Arénára. Jó érzés ezeket hallani.
A műszaki megoldásokból mit emelne ki?
A legfontosabb, hogy a Duna Aréna 100 százalékig magyar teljesítmény. Magyarok tervezték, magyarok építették, világszínvonalon. Az épület hemzseg a mérnöki bravúroktól. Mérete már önmagában egyedülálló Magyarországon, a 44 méter magas épület nagyságára jellemző, hogy a versenymedence légterébe beférne 12 db tízemeletes lakóépület. A tetőszerkezetet négy ponton alátámasztó, 27 m magas vasbetontornyok között pedig akár egy 747 Boeing repülőgép is át tudna repülni. Maga az uszoda 30 ezer négyzetméter, az épület az ideiglenes létesítményekkel együtt összesen 50 ezer m 2 . A száraz adatokon túl: a gyakorlómedencébe beépítettünk egy fulladásfigyelő rendszert, ún. „Angel Eye”-t, amely képes észlelni a testek szabálytalan mozgását olyan kritikus területeken is, mint például a medence alja. A 32 kamerának köszönhetően a medencének nincs olyan része, ami ne lenne nyomon követhető az úszómesteri szobában lévő monitoron keresztül. A versenytérben pedig olyan sportdiagnosztikai rendszer
működik, mellyel lassított felvételben figyelhetők meg az úszók, így a legkisebb mozgáshiba is kiszűrhető. Ennek jelentőségét aligha kell ecsetelni egy olyan sportág kapcsán, melyben egy olimpiai érem sorsáról akár ezredek is dönthetnek.
Apró, ám annál látványosabb projektelem a szökőkút vagy a panorámakilátó. Valóban, ottjártamkor még nem fordult elő, hogy ne fotózták, videózták volna tucatnyian a programozható szökőkutat, mely a legkülönbözőbb alakzatokat formázza. Ráadásul ez olyan látványossága az épületnek, amely a MoholyNagy Művészeti Egyetem diákjainak tehetségéből, kreativitásából, fiatalos lendületéből született meg. Mint ahogy olyan uszoda sincs még egy az országban, melynek tetejéről szó szerint körbe lehet nézni a városon: a felső szinten lévő panorámakilátó 50 méterre van a Dunától, így erről a pontról a Parlament és a budai Vár is jól látszik, jó időben el lehet látni egészen Dobogókőig. Budapestet, ezt a fiatalos, vibráló világvárost egészen új nézőpontból csodálhatjuk meg.
A zöld gondolatok milyen formában jelennek meg az épületben?
A Duna Aréna tervezésekor alapvető követelményként határoztuk meg a fenntarthatóságot és a környezettudatosságot, így a fűtéséhez és a hűtéséhez megújuló energiaforrást és távhőt használnak. Ez ráadásul számottevő költségmegtakarítást is eredményez. A Dagály Strandfürdő termálmedencéiből a nap végén leengedett, körülbelül 30 fokos víz egy részét, valamint az uszoda vízforgató rendszerén keresztül elfolyó vizet egy közel 1000 m 3 -es tárolóba, majd egy hőcserélő berendezésbe vezetik. Az így nyert hőenergiát többek között az épület fűtésére, az új medencék vizének temperálására, valamint a zuhanyzók, mosdók melegvizének előállítására használják. Nyáron ugyanezt a technológiát hűtésre használjuk. A jelenlegi számítások szerint jóval gazdaságosabban lehet majd üzemeltetni az arénát, mint egy hasonló nagyságú hagyományos uszodát. Az ideiglenes lelátó szerkezetéből pedig annak elbontása után P+R parkolóház épül Budapesten. A nagy kihívás nagy teljesítményt szült. Most már a versenyszervezőkön és a sportolókon a sor! (Nagy Dániel)
DANUBE ARENA: THE POWER OF COOPERATION
The world-class Danube Arena, which is a great showcase of the technology of the 21st century, was built in Budapest in record time and within budget. We asked Balázs Fürjes, Government Commissioner for Flagship Budapest Developments, about the challenges they had to face and how they were able to complete the task.
Photo by TAMÁS BUJNOVSZKY
Octogon: Budapest had two years to build a swimming arena which any other host city of a World Championships would have four or five years to complete. How did you succeed?
To quote Cornel Marculescu, Executive Director of the International Swimming Federation (FINA): “This is the first World Aquatics Championships where the first world record was broken on land.” We took a great risk by undertaking to organise these championships in 2017 instead of 2021, after Guadalajara withdrew from hosting. The Prime Minister asked me three times before the decision: “Balázs, are you sure we can build the arena?”
Was the answer evident to you? Didn’t you have any uncertainties?
Certain conditions had to be met before we could dare to jump into a challenge of this magnitude. Without the Dagály Act we would have had no chance to meet the extremely tight deadline and the predefined budget, but after the National Assembly voted in favour by a majority of 97% in March 2015, the project went onto the fast track and kept its momentum until the finishing line of this marathon. And as I have emphasized several times about this project, this was a marathon we ran sprinting. Was the recipe for success as simple as that? This project was about cooperation, Hungarian talent and keeping promises. These qualities were capable of miracles. This is how we managed to keep our promise to Mr. Marculescu and FINA. We achieved what we undertook, building in 2 years what usually takes others 4-5 years to complete. The Danube Arena is the fruit of the combined effort, talent and creativity of Hungarians; a success that could only be achieved through all-round
cooperation. Cooperation with István Tarlós, the May-or of Budapest, and József Tóth, the Socialist Mayor of Angyalföld, was exemplary throughout, but the work of 250 companies and 3 million hours of work were also necessary. I would also like to take this opportunity to thank the residents of Angyalföld for their patience and understanding.
Can we say that the Danube Arena is more than a competition pool?
Together with the renewed Dagály Bath, the most notable sports and bath complex in the whole country is being created. Even after the World Championships, this complex will offer recreation opportunities to thousands of people. Following the demolition of the temporary stands and conversion of the building to its general every-day function, the pool will also be open to the public. It will be a learning pool for children, as well as a world-class training base for Hungarian swimming and water polo, and will host dozens of national and international competitions.
Is the Danube Arena an outstanding facility also internationally?
My colleagues’ opinion and my own should not count; after all, we are biased, as this project was very dear to us. However, Katinka Hosszú, our three-time Olympic champion, has competed in every major pool in the world and even she was astounded by the Danube Arena and could hardly wait to jump in. Meanwhile, the Facility Director of the 2020 Tokyo Olympics declared that they see the Danube Arena as an example to follow. It is good to hear such words.
What would you highlight from the technical solutions?
The most important is that the Danube Arena is a 100% Hungarian achievement. It was designed by Hungarians and built by Hungarians, in world-class quality. The building is brimming with engineering feats. Its size alone makes it unique in Hungary: to illustrate the dimensions of the 44-meterhigh building, the airspace of the competition pool could accommodate 12 ten-storey buildings, and even a Boeing 747 airplane could pass between the 27-meter-high reinforced concrete towers that support the roof at four points. The swimming pool itself covers 30,000 square meters, while together with temporary facilities the total floor area of the building is 50,000 square meters. To go beyond dry facts: in the practice pool we installed a socalled “Angel Eye” drowning monitoring system, which can detect irregular movements of bodies even in critical areas such as the bottom of the pool. Thanks to the 32 cameras there is no part of that pool that cannot be kept under watch via the monitor in the lifeguards’ room. In the competition area, a sports diagnostics system shows swimmers in slow motion, enabling the detection of even the tiniest errors in movement. The importance of this hardly needs to be stressed in a sport where winning a medal can depend on thousandths of a second.
The fountain and the panorama deck are minor, yet very spectacular project elements. Indeed, every time I visited the arena at least dozens of people were taking photos and videos of the programmable fountain, which takes on the most diverse shapes. Moreover, this spectacular feature of the building was realised thanks


”Danube Arena had been designed to be sustainable and environmentally friendly”
to the talent, creativity and youthful zeal of the students of the Moholy-Nagy University of Art and Design. Just as there is no other swimming pool in the country from whose roof one can get a 360-degree view of the city: the panorama deck on the top level is 50 metres from the Danube, giving a clear view of the Parliament and the Buda Castle, with even Dobogókő visible in good weather. This gives a brand-new perspective of Budapest, this youthful and vibrant global city.
In what form do green concepts appear in the building?
Sustainability and environmental awareness were fundamental requirements for the design of the Danube Arena. Accordingly, its heating and cooling are based on renewable sources of energy and district heating. This also results in considerable savings. Part of the water drained from the thermal pools of the Dagály Bath at the end of each day, with a temperature of about 30°C, and the water discharged through the circulating system of the pool are fed into a nearly 1000-cubic-meter reservoir, and from there to a heat exchanger. The thermal energy gained this way is used for heating the building, moderating the water temperature of the new pools, and producing hot water for showers and bathrooms, among other functions. In the summer we use the same technology for cooling. Current calculations show that the arena can be operated far more economically than a traditional swimming pool of similar size. After the demolition of the temporary stands, their structure will be reused for building a parkand-ride garage in Budapest. The great challenge led to a great achievement. Now it is the turn of the event organizers and athletes! (Dániel Nagy)

A 17 000–20 000 néző alapvetően egy arénaméretű objektumot eredményez
17 000–20 000 spectators require an arena-sized building


„MAGYARORSZÁG LEGNAGYOBB
MAGASÉPÍTÉSŰ BERUHÁZÁSA
VOLT A RENDSZERVÁLTÁS ÓTA”
Interjú Scheer Sándorral, a Market Építő Zrt. vezérigazgatójával.
Fotó: BUJNOVSZKY TAMÁS
Octogon: Magyarország eredetileg 2021-ben rendezte volna a vizes világbajnokságot, majd a mexikói Guadalajara helyére beugorva 2017 lett az új dátum. Mit jelentett a Market számára ez a szituáció?
Amikor Guadalajara visszalépésével felmerült a lehetőség, hogy az idei vébének Magyarország lehet a házigazdája, azzal egyrészt új helyzet állt elő, de a szakma is bizonyította, hogy a korábbi építészeti koncepció nem megvalósítható, át kell alakítani az egészet. Ebből az átalakításból fejlődött ki a mi műszaki tartalmunk, az a koncepció, amit utána nekünk meg kellett tervezni és felépíteni, és ami nagyon szigorúan a sportról, a sport igényeiről szólt.
Milyen szakmai okok indokolták a koncepcióváltást?
Az aranyhullám látványtervvel sikerült megnyerni a vébé rendezést, de a terv sok tekintetben alkalmatlan volt a megépítésre. Az épület statikai modellje nem állt meg és maga a vébé helyszín
sem volt alkalmas ennek a tervnek a befogadására; nem fért volna el a helyszíni adottságok miatt, így már az első adandó alkalommal el kellett forgatni az egész tervezendő épületet. Nagyon speciálisak a helyszíni adottságok, ez egy roppant korlátozott, „bezárt” terület. Hogy csak néhány adottságot említsek: az ideiglenes lelátók alatti területen van két óriási, a Dunába bekötött, a teljes fővárost szolgáló túlfolyócsatorna, illetve speciális vízvezeték-hálózat fut a Népfürdő utcával párhuzamosan a telekhatáron. Ott a gát a Duna mellett és a strand a másik oldalon. A megépült tömb tetején több ezer tonna acél van fenn úgy, hogy a terület egyébként daruval csak egyetlen helyről, egyetlen pontról volt megközelíthető, a Strandfürdő felőli oldalról, ott is bontás után.
A jóval rövidebb kivitelezési határidő miatt a megszokottakhoz képest kellett valamit változtatniuk a kivitelezés módszerén? Magyarországon még ma is nagyon ritkán
alkalmazott, úgynevezett design and build konstrukció, ami azt jelenti, hogy kapunk egy koncepciót, előírásokat, normákat, és azt mondják, hogy készítsd el az engedélyezési-, a kiviteli- és a belsőépítészeti terveket, építsd meg, aztán add át a kulcsokat. Plusz majd bontsd el a vébé lelátót és alakítsd át az épületet. Ebben a konstrukcióban építettük meg a Duna Arénát, ami Magyarország legnagyobb magasépítésű beruházása volt a rendszerváltás óta, és nagyon rövid határidővel kellett létrehoznunk – ez így együtt különösen nagy kihívást jelentett számunkra. Design and build konstrukcióban dolgozni pedig azért is kihívás, mert minden munkanapon, héten, hónapban úgy kell építenünk, úgy kell kihasználnunk az időt, hogy közben tervezni is kell. Mindig nagyon fontos a hatékonyság, a kapacitások elosztása, de egy ilyen helyzetben különösen. Ezzel kapcsolatban beszédesek a számok. Közel 100 főt tett ki a tervezői, szakértői stáb ezen az építkezésen. Ami a helyszíni munkálatokat illeti, a legtöbben és egyazon időben 890-900 ember

Fotó: Végel Dániel
Photo by Dániel Végel
dolgozott az épületen, és ha beleszámítom azokat a résztvevőket is, akik nem a helyszínen dolgoztak, hanem például a szerkezetek gyártásán, akkor velük együtt nagyjából 1500-2000 emberről beszélünk.
A közelmúltban a helyszínen járt a 2020-as tokiói olimpia létesítményigazgatója, aki az Arénát bejárva úgy nyilatkozott, hogy megismerve az épületet, ők is hasonló konstrukciójú, később visszabontható uszodát terveznek. Ez még most, a vébé előtt komoly nemzetközi elismerésnek számít.
Valóban, és ez nemcsak a kivitelezőket, a beruházókat is illeti. Azt gondolom, hogy akkor végzi felelősen a munkáját bárki, ha a világ élvonalát célozza meg. Ennek minden beruházásnál alapkövetelménynek kell lennie, különösen egy ilyen presztízsberuházás esetében. Itt is a legmagasabb színvonal elérése volt a feladat. És van valami, amit mindenképpen fontos kiemelnünk az épülettel kapcsolatban: az úszó-világbajnokság ideje az Aréna életében nagyon rövid pillanat, hiszen két hét a vébé, amit két hét veterán vébé követ. Vagyis szeptemberig a mostani formájában látjuk, aztán elbontjuk az ideiglenes lelátókat, és utána 50 vagy akár 80 évig fogunk nézni és használni egy, a jelenleginél kisebb hullámvonalú burokkal körbezárt épületet. Olyat, ami egységet alkot a Dagály Strandfürdővel. Ez volt az a mozzanat, amit folyamatosan hangsúlyoznom, közvetítenem kellett az összes közreműködő felé, azaz, hogy évtizedekre építünk. És ez a hosszú távú gondolkodás jelenik meg abban az elgondolásban is, hogy azok a kapcsolódó részek, amik a vébé után lekerülnek az épületről, a két szárnyépületrész, hasznosuljon. Ez egy kétütemű épület, aminek a vébé után van egy utóhasznosítási ütemrésze is: a lelátók szerkezetéből P+R parkolók lesznek, acélszerkezetükből csarnokok. Szinte minden elem újrahasznosítható lesz.
Említette a Dagály Strandfürdőt, ennek a felújítása hogyan jött képbe?
Egyrészt az egy jó döntés volt a döntéshozók részéről, hogy a vébének szükséges egy olyan plusz helyszínt létrehozni, ami által az Aréna épületén kívül a szurkolóknak is helyet lehet biztosítani, illetve ami lehetőséget kínál a szponzori bemutatkozásokra. Ez az úgynevezett FINA-Market létesítmény, ami a Dagály Strandfürdő helyszínén működik majd a vébé idején. Ugyanakkor a Dagály Strandfürdőt leromlott állapotban találtuk, a medencék például megsüllyedtek, így megérett a felújításra. Máskülönben az 50 méteres
„Egyazon időben 890-900 ember dolgozott az épületen”
medencéjét a vébét követő veterán vébé miatt amúgy is fel kellett volna újítani, a 25 méteres medencéjét pedig át kellett volna építeni. A terület és létesítményei kibővítésén túl pedig az Arénához csatlakozó épülettag is épül, így egy komplexummá válik az Aréna és a Strandfürdő területe.
Vagyis mondhatjuk azt, hogy a főváros, az úszósport, ezen belül az élsport és a szabadidősport kapott egy olyan épületet, illetve egy olyan területet, amelyet már régóta megérdemelt? Budapesten látszólag elegendő mennyiségű az úszósport számára a vízfelület, mert nagyon sok strand és fürdő van, viszont azok nem igazán alkalmasak versenysportra. Az úszó- és vízilabdasportban is, amiben erős a magyar élsport, állandó problémának számít a kellő mennyiségű vízfelület hiánya, amit orvosolni kellett. A tervezéskor nagyon fontos volt, hogy az Aréna épületén belül alaposan gondoljuk át azt, hogy milyen legyen az egyes uszodai funkciók elosztása. Több terv, több verzió is készült, hogy hogyan pozícionáljuk az egyes medencetípusokat. Végül a műugró- és a bemelegítőmedence is – ez utóbbi akár tanmedenceként is funkcionálhat a vébé után – egy légtérbe került az 50 méteres medencével. Ez már komoly mennyiségű vízfelületet jelent az úszósport számára, ráadásul az épület lokációja, vagyis a Margitsziget és a Komjádi uszoda közelsége is azt erősíti, hogy kialakulhat a Duna Arénával egy olyan gócpont, amely az úszásoktatásnak és a versenysportnak is integrált helyszíne, ezen belül pedig az Aréna a magyar úszósport centruma lehet.
Ön szerint mi az, ami a legjobban megmarad majd az uszodával kapcsolatban az idelátogató külföldiekben? Mi az, ami a külső képén túl egyedivé teszi?
Amitől ez egyedivé válik, az szerintem a lokáció, a Duna közelsége, a Strandfürdővel való kapcsolata, és például az épületen kialakított felső tetőterasz. És van valami, ami építészetileg, technológiailag hozzá tesz. A riói olimpián, vagy az előző vébén Kazanyban ideiglenes elemként kezelték a medencéket, ezért fémmedencéket használtak, amiben – és ezt a versenyzők is megerősítették –, nem ugyanolyan az úszás, a versengés. Minket nem tudtak rábeszélni, hogy fémmedencét használjunk, ami egyébként a hosszú távú hasznosítással is egybecseng.
A hosszú távú hasznosítással kapcsolatban eszembe jut az utóhasznosítás kérdése, ami egyre gyakrabban merül fel
a sportlétesítményeknél. Ez hogyan jelenik meg a Duna Aréna esetében?
Ez nagyon nehéz egy ilyen létesítménynél, és mi is sok energiát fordítottunk rá, hogy miképp lehet úgy hasznosítani, hogy a világbajnokság után is gazdaságosan üzemeltethető legyen. Ezért elhelyeztünk benne olyan lehetőségeket, amik többfunkcióssá teszik az épületet. Ilyen az uszoda működésétől függetlenül működtethető konferenciaterem, de kialakítottunk egy fitnesztermet is, ami a Strandfürdő felé is nyitott, és készül benne egy olyan szaunavilág, amelyet a világbajnokság után lehet jól használni, a Strandfürdővel közösen üzemeltethető.
A FINA létesítményekért felelős bizottságának vezetője, Joaquim Pujol azt mondta, a homlokzat tette rá a legnagyobb benyomást. Önnek mi a kedvence az épületen?
Két kedves emlékem van a projektről, az egyik Pujol úr korábbi véleménye, aki tanácsadóként és műszaki ellenőrként végig velünk dolgozott a projektben. Ő azt mondta a projekt végén, hogy számára a profizmus és a lelkesedés együttállása volt az, amivel a pályafutása alatt máshol még nem találkozott, tapasztalatai alapján vagy az egyik, vagy a másik hiányzik a kivitelezéskor. A másik a megvalósításhoz kapcsolódik, hogy a rövid időkereten belül, egy nulláról elindult koncepció létrehozására milyen technológiai megoldást találunk. Másfél-két hónapunk ráment arra, mire kiválasztottuk azt a verziót, amivel a költségkeretet és a határidőt tartani tudtuk: ha nem találjuk ki mi, kivitelezők azt az emeléses módszert, amit a környező országokban sem használt még senki ezelőtt (vagy más tetőmegoldást), akkor kizárt, hogy mindez időre elkészült volna.
Ha végigtekint a Market eddigi munkáin, akkor hol helyezi el ezek sorában a Duna Arénát? Nagyon fontos állomás a cég számára ez a projekt, különösen, hogy a korábban már említett design and build szisztéma alapján hoztuk létre, szoros időprésben, és a visszajelzések is megerősítik, hogy mindezt nagyon jó színvonalon tettük. Mindeközben olyan ez, mint egy versenyzőnél a nagy verseny és az azt követő másnap: példásan felkészültünk rá, megnyertük, és már most keressük a következő kihívásokat. (Dajka Balázs)
“THE LARGEST BUILDING CONSTRUCTION IN HUNGARY SINCE
THE REGIME CHANGE”

Interview with Sándor Scheer, CEO of Market Építő Zrt.
Photo by TAMÁS BUJNOVSZKY
Octogon: Originally, Hungary would have organised the World Aquatics Championship in 2021, but then it was decided that Hungary would replace Guadalajara in 2017. What did this situation mean for Market?
After Guadalajara withdrew from organising the event and the possibility arose that Hungary could host this year’s world championship, we found ourselves in a new situation, and the industry proved too that the previous building concept was not viable and that it had to be transformed entirely. This transformation gave rise to our technical content, the concept which we then had to design and build. It was strictly about the sport and its needs.
What professional reasons justified the change of concept?
We were contracted for organising the world championship based on our “golden wave” visualisation, however this design was unsuitable from several aspects. The building’s static model was not acceptable, and the location of the championship was not appropriate for accommodating this design either: the building could not have fit due to the location’s characteristics, so the entire building to be designed had to be rotated at the first possible occasion. The location’s characteristics are very special, it is a highly limited, “closed” area. Just to mention a few
characteristics only: there are two huge outfalls connected to the Danube serving the entire capital located in the area under the temporary grandstands, and there is a special water pipe network running parallel to Népfürdő utca, along the plot boundary. There’s the dam near the Danube and the pool on the other side. Today, there are thou-sands of tons of steel on the top of the constructed building, and the site was accessible by a crane from one location – from the side facing the Bath –only, and even then only after the demolition.
Did you have to alter the construction method as compared to the usual practice due to the significantly shorter time available for construction?
The so called design and build scheme is still rarely used in Hungary. It means that we are given a concept, requirements and standards, and then we are told to prepare the building permit drawings, the construction plans and the interior design drawings, construct the building, then hand over the keys. And then demolish the championships grandstand and alter the building. We built the Danube Arena – Hungary’s largest building construction in Hungary since the regime change, with a very short deadline for completion – with this concept, so these together were a particularly big
challenge for us. Working with the design and build scheme is a challenge also due to the fact that we have to build and make good use of time each business day, week and month, while we are simultaneously doing design work. Efficiency, the allocation of capacity is always important, but it is exceedingly so in such a situation. The numbers say it all in this regard. The design and expert staff engaged for this project consisted of almost 100 per-sons. With regard to the on-site works, the highest number of workers working on the building at the same time was about 890-900, though if I include the contributors who did not work onsite but, for example, in the production of structures, then we are talking about 1500-2000 persons.
The Facility Director of the 2020 Tokyo Olympics visited the site recently, and after visiting the Arena, he said that having inspected the building, they would design a pool complex with a similar construction, which can be dissembled later. This represents a significant international recognition, even now, before the world championship.
Indeed, and not only for the constructors but also the investors. In my opinion, you do a responsible job only if you aim for world-class quality, no matter the area. This should be a fundamental

requirement for any project, and prestigious projects like this one in particular. Here, the task was to achieve the highest quality possible. There is one more thing we have to emphasise in relation to this: the period of the world championship is just a mere moment in the Arena’s life. The world championship will last two weeks, followed by a two-week long veteran world championship. This means that we get to see the grandstands in their current form until September, and then they will be dissembled. After that, we will have a building smaller than the current one enclosed in a wave-shape shell to look at for 50, maybe even 80 years. One that is wellintegrated with the Dagály Bath. This – the fact that we were constructing this building to stand for decades – was what I had to constantly emphasise and communicate to all contributors. Our longterm thinking is represented also in the idea that the connecting parts to be removed from the building after the world championships – the two wings – will be utilised. This is a two-stage building, with a post-utilisation stage to come after the championship: the grandstand structures will be remade into P+R parking lots, while their steel structure into a hall. Almost all components will be reusable.
You mentioned the Dagály Bath. How did the idea to renovate this building arise?
On the one hand, it was a good decision on the part of the decision makers to create an addition-al location for the world championship that allows for accommodating the audience outside the Are-na building, and which provides an opportunity for the sponsors to introduce themselves. This is the so called FINA-Market facility, to be operated at the Dagály Bath’s location for the duration of the championship. We found the Dagály Bath to be in deteriorated condition however; for example the pools had sunk and were in need of renovation. The 50-meter pool had to be renovated and the 25 meter pool altered for the purposes of the veteran world championship to take place after the world championship anyway. In addition to the expansion of the area and the facilities, a building part connecting to the Arena will also be built, making the area of the Arena and the Bath into a complex.
Can it be said that the capital and the swimming sports – including competitive and recreational sports – received a building, a premise they deserved for long?
There is a seemingly sufficient amount of water surfaces available for swimming sports in Budapest as there are many pools and baths, however these are not really appropriate for competitive sports. The lack of enough water surfaces available

has been a general problem in swimming and water polo – two strong areas of Hungarian competitive sporting –, which had to be remedied. During the design phase, it was very important to carefully think through how each function of the pool complex should be allocated within the Arena building. Multiple plans and versions were pre-pared regarding how to position the different types of pools. Finally, the diving pool and the warm-up pool – the latter of which could be used as a training pool after the championship – are now in the same space as the 50-meter pool. This provides a significant amount of water surface for swimming sports, and the building’s location – that is in the vicinity of the Margaret Island and the Komjád pool –also supports that, together with the Danube Arena, this area could become a hub, an integrated location for swimming training and competition, and a centre for Hungarian competitive swimming.
What do you think will make the biggest impression on foreign visitors regarding the pool complex, what is it that makes it unique apart from its external image?
What makes it unique is its location, its closeness to the Danube, its connection to the Bath and, for example, the roof terrace created on the building gives it an extra touch. And there is one more
”the highest number of workers working on the building at the same time was about 890-900”

thing that adds to it from an architectural and technological perspective. At the Rio Olympics or the previous world championship in Kazan, the pools were treated as temporary components, and consequently they used metal pools in which, as the athletes also confirmed, swimming is not the same. We couldn’t be talked into using metal pools, and this also facilitates long-term utilisation.
As regards long-term utilisation, the issue of posterior utilisation – arising more and more frequently with respect to sports facilities –comes to my mind. How is this implemented with respect to the Danube Arena?
This is very difficult for a facility like this, and we too put a lot of energy into coming up with ways to utilise it so that it can be economically operated after the world championship. For this purpose, we implemented options making the building multifunctional. For example, there’s the conference
room, which can be operated independent from the swimming pool, we created a fitness studio open also towards the Bath, and a sauna centre usable after the world championship will also be implemented and can be operated together with the Bath.
Joaquim Pujol, the head of the FINA’s Facilities Committee said that he was impressed by the façade the most. What is your favourite thing about the building?
I have two pleasant memories of the project; one is the former opinion of Mr. Pujol, who collaborated with us until the end of the project as a consultant and technical inspector. At the end of the project he said that for him, the duality of professionalism and enthusiasm was something he had never experienced in the course of his career, only one or the other at a time. The other relates to the implementation, the technological solution we found for realising a concept built from the ground up with such
Végel Dániel
a short deadline. It took us about one and a half or two months to select the version with which we could fit within the budget and meet the deadline. Had we, the constructors, not come up with the lifting method or other roof solution that no one ever used in the neighbouring countries, the project could never have been completed in time.
If you look back at Market’s projects so far, where would you place the Danube Arena among them?
This project is a very important milestone for the company, in particular with respect to that we completed it in the design and build scheme as previously explained, with strict deadlines, and the feedback confirms that we managed to do so at a high standard. It is like a grand contest for a great competitor and the next day, though: we prepared for it in an exemplary manner, won it, and now look for the next challenge to tackle. (Balázs Dajka)
Fotó:
Photo by Dániel Végel

ÉPÍTKEZÉS ADATAI:
DETAILS OF CONSTRUCTION:
Alapépület - VÉBÉ utáni - legacy: Basic building – legacy:
89 176 m 2
tervezési terület / planning area
22,6%
beépítési százalék (vébé után) build-in (after competition)
46,77 %
zöldfelület (vébé után) green area (after competition)
24,9 m
épületmagasság átlag avarage building height
44,10 m
legmagasabb pont / top
14 718 m 2
összes homlokzat felület / frontages
29 907 m 2
alapterület (nettó) / total floor area
A VÉBÉ megrendezésére szolgáló épület esetében – VÉBÉ ütem: Building (during competition):
Fesztáv versenytérben: S pan (during competition):
31,3 m
épületmagasság átlag building height
44,1 m
legmagasabb pont / top
18 238 m 2
összes homlokzat felület / frontages
44 190 m 2
alapterület (nettó) / total floor area
108,3 m
hossztengely mentén / longitudinal axis
84,3 m
kereszttengely mentén / lateral axis
Anyagmennyiségek: Materials needed:
39 300 m 3
helyszíni vasbeton mennyiség BIM modell alapján (csak az épület) / reinforced concrete (only building)
2275 m 3
gát felhasznált vasbeton mennyisége reinforced concrete (dam)
5 292 681 t
acél tartószerkezet mennyisége / steel ossature
14 278 m 2
homlokzati díszburkolat felülete / cladding surface
Medencék hasznos vízfelület mérete: Water surface of pools:
1250 m 2
versenymedence / pool (”long course”)
525 m 2
műugró medence / pool (diving)
1250 m 2
bemelegítőmedence / pool (”short course”)
100 m 2
tanmedence / exercise pool
7 m 2
ülőmedence / spa pool
24 m 2 jakuzzi / jacuzzi
2 x 900 m 2
Budapest feliratú „akusztikai” molinó / acoustic billboard
Résztvevő mérnökök adatai: Concerned engineers:
46 db résztvevő tervező cég / planner firms (pc.)
350-400 fő
tervező mérnökök száma (2015 március - 2017 március) engineers (pc.; March 2015-March 2017)
10 fő
tervellenőr és műszaki ellenőrök drawing inspectors and construction supervisors (pc.)
28 fő
előkészítő mérnökök / quantity surveyors (pc.)
253
cég volt a Market Zrt. szerződött partnere / contracting parties (pc.)
852 fő
napi fizikai munkás létszámrekord manual workers per day (record numbers)
5 500 t
betonacél / reinforcing steel
42 436 m 3
beton / concrete
99 057 m 2
zsalu / shutters
207 930 m 3
megmozgatott földmennyiség / excavating
6258 m 2
fém álmennyezet / metal ceilings (all)
1134,9 m 2
gipszkarton álmennyezet összesen / plasterboard ceilings
44 035 m 2
összes festés (mennyezeten és oldalfalon) / wall and celling painting
9 443,6 m 2
összes műgyanta / all resin
1618 m 2
összes Trespa burkolat / all Trespa ceiling
1726 db
összes cölöp darabszáma (mélyalapozás) / all stakes
15 537 m 2
hidegburkolat / hard finishing
160 000 db
csempe a medenceburkolatokon covering of pool areas (tiles/pc.)
8 637 m 2
melegburkolat / interior finishing
10 km
kábeltálca, kábellétra / cable management
54 km
védőcső / surface conduit
200 km
erőátvitel és áramköri kábelek transmission and circuit cables
250 km
gyengeáramú kábelek / low-voltage cables
274 db
LED-es sportvilágítási lámpatest sports electrical fittings (LED)
11 893 db
egyéb lámpatestek other electrical fittings
500 fm
erőátviteli tokozott sín packaged transmission splint
4500 db
szerelvények, kapcsolók dugaljak fittings, switches, plugs
80 db
elektromos elosztók electric power distributions
5 db transzformátor electric power distributions
A szerkezetépítési munkák során During structural engineering
6 db toronydaru / tower crane
1-3 db
autódaru / truck-mounted crane

Fotó: Végel Dániel
Photo by Dániel Végel
VÁROSKÉPFORMÁLÓ BERUHÁZÁS
Interjú a Duna Aréna projekt kapcsán Fodor Tamással, a KKBK projektigazgatójával.
Fotó : BUJNOVSZKY TAMÁS
Octogon: Ön projektigazgatóként volt jelen a Duna Aréna létrehozásában. Ez a megbízás mit takar pontosan a gyakorlatban?
Az építtető, a Magyar Nemzeti Vagyonkezelő Zrt. által a projekt lebonyolítására felkért Kiemelt Kormányzati Beruházások Központja Zrt. részéről felügyeltem a projekt megvalósulását és képviseltem a projektcsapattal együtt az építtető érdekeit. Ezzel összefüggésben az építtetői kompetenciába tartozó döntések előkészítését, határidőre történő meghozatalát is koordináltam. Röviden: beruházói projektirányítói feladatokat láttam el a kollégáimmal.
Időközben megváltozott a létesítmény neve. Ma már Duna Arénának nevezzük. Mi indokolta a névváltozást?
A létesítmény építéskori megnevezése, „leánykori neve” Dagály Úszóaréna volt. Mindvégig kerestük a megfelelő nevet, mely a projekt végére érlelődött ki. Egyszerű, letisztult, frappáns. Mint maga az Aréna.
Viszonylag sok kiemelt, sportlétesítményekre vonatkozó beruházás történt az elmúlt években és történik a tervek szerint a jövőben is. Véleménye szerint ezek sorában, hol helyezkedik el az Aréna stratégiai és építészeti szempontból?
Egy új, egységes arculat létrehozása volt a cél, a következetes építészeti megformálás végigvonul az épületen. Emellett már a tervezés során kiemelt szempont volt a fenntartható fejlődés és a környezettudatosság, az Aréna több kiemelkedő műszaki megoldással bír. A mérnöki bravúrok mellett a létesítmény és környezete alkalmas arra, hogy nagyobb
közösségi teret teremtsen a Duna-parton. Ha pedig már a közösségi terekről beszélünk, olyan egyedi városi kilátót hoztunk létre az épület tetején, ahonnan szó szerint körbe lehet majd nézni a városon, ilyen magasságból már a Halászbástya is jól látható. A felújított strand pedig a vizet kedvelő, kikapcsolódásra vágyó közönség igényeit elégíti ki. Itt említeném meg, hogy a Duna Aréna egy nagyszabású uszodafejlesztési programba illeszkedik. A Kormány, annak érdekében, hogy a versenysport és a tömegsport számára is a magyar vizes sportolók által elért eredményekhez méltó helyszíneket biztosíthasson a felkészüléshez és nemzetközi sportesemények lebonyolításához, rendelkezésre bocsátotta a szükséges pénzügyi forrásokat. A hazánkban idén megrendezésre kerülő vizes világbajnokság jó apropót szolgáltat arra, hogy észszerűségi és gazdaságossági megfontolások alapján a sportolók által régóta igényelt, a Kormány célrendszerébe illeszkedő, és általa már pénzügyi forrással is támogatott uszodafejlesztésekre a közvetlenül a vizes vébéhez köthető beruházásokkal egy időben kerüljön sor.
Véleménye szerint milyen urbanisztikai jelentősége lesz, lehet a jövőben ennek az épületnek fővárosi szinten?
A Duna Aréna – figyelembe véve a kapcsolódó egyéb beruházásokat – városképformáló beruházás, ezért jelentős az urbanisztikai hatása. Komplex beruházásról beszélünk, amelynek erőteljes multiplikatív következménye van. A többi között közlekedési és turisztikai szempontból pozitív, hogy az Arénával egy időben új gyalogos sétány épül a Rákos-pataktól egészen a Margit hídig,
amelyet a közeljövőben egészen a Kossuth térig hosszabbítanak meg. Ugyancsak gyalogos sétány épül a Forgách utcai M3 metrómegálló és a Dagály Strandfürdő főbejárata között. Ennek közlekedési, városhasználati hatásai nem lebecsülendők. A Népfürdő és a Vizafogó utca teljes rekonstrukciója a Váci út és a Dagály utca közötti szakaszon szintén jelentősen hozzájárul a városkép javulásához. Mindezt betetőzi az az egy kilométer hoszszú árvízvédelmi mű, amellyel az Árpád híd és a Rákos-patak közötti városrész védelmét biztosítja hosszú távon. Ezekkel a beruházásokkal Angyalföld Dráva utcától északra eső Duna-parti része integrálódik a fővárosi szövetbe, az ingatlanok értéke pedig szignifikánsan növekszik.
Milyenek a FINA visszajelzések az épülettel kapcsolatban most, az elkészülte után, de még a sporteseményekre való átadása előtt?
Talán elég annyit megemlítenem, hogy a FINA ügyvezető igazgatója, Cornel Marculescu az idén február közepén tartott bejárásra meghívta a 2020as tokiói olimpia szervezőit, és mintegy másfél órán keresztül mutatta be az épületet követendő példaként a japán vezetőknek. Tekintettel arra, hogy volt szerencsém személyesen részt venni az említett bejáráson és az azt követő egyeztetésen, úgy gondolom, hogy az ott elhangzottak alapján kijelenthető: a FINA a legmesszebbmenőkig elégedett a létesítménnyel. (Molnár Szilvia)
CITYSCAPE-SHAPING INVESTMENT
Interview with Tamás Fodor, Project Director of KKBK, on the DANUBE ARENA project.
Photo by TAMÁS BUJNOVSZKY
Octogon: you were Project Director throughout the building of Danube Arena. What exactly did this assignment mean in practice?
I supervised project implementation on behalf of the Kiemelt Kormányzati Beruházások Központja Nonprofit Zrt. (Centre of Key Government Investments Non-profit Ltd.) assigned by the builder, the Magyar Nemzeti Vagyonkezelő Zrt. (Hungarian National Asset Management Inc.), and, together with the project team, I was to represent the client's interests in the project. As part of my responsibility, I coordinated decision-making processes within the client’s sphere of interest to conclude them within the given timeframe. In short, I and my colleagues carried out supervisory tasks concerning the investment.
In the meantime, the facility’s name has changed. Today, it is called Danube Arena. What was the reason for this?
The name was Dagály Aquatics Arena at the time the construction commenced. We were keen to find a proper name by the time the project ended. It is now simple, cleancut and catchy, just like the Arena itself.
Quite a lot of decisions have been made on investments in sport facilities in recent years and more are expected. How do you see the Arena fitting into this chain of decisions from both a strategic and an architectural point of view?
The objective was to create a new, consistent and coherent architectural style for the whole building. Moreover, due to keeping a constant focus on sustainable development and environmental awareness even in the early design phases, the building utilises several outstanding technical solutions. Apart from
the feats of engineering applied, the facility and its environment will create a large public space along the Danube riverbank. When we talk about public spaces, it must be mentioned that a unique lookout terrace has been created on top of the building allowing spectators to see the whole city all around. They can clearly see even the Fisherman’s Bastion. The renewed beach will meet the expectations of the water-loving, relaxation-seeking public too. At this point I should mention that Danube Arena fits into a large-scale swimming pool development program. The government has provided the required finances to build venues for training and international sport events that are worthy of the results achieved by Hungarian water sportsmen. The FINA World Championships to be held in our country in July give us a good opportunity to realise swimming pool development projects on the basis of rationality and economic considerations that have long been demanded by our sportsmen. And these projects fit in the government's vision, having already been financed by the government and being expected to be completed simultaneously with investments linked to the FINA World Championships.
In your opinion, what will be the significance of this building in the future for the capital city from an urban life point of view?
Danube Arena – along with associated investments – is a cityscape-shaping investment, and therefore it will have a significant impact on urban life. It is a complex investment that has a powerful multiplying effect. A new pedestrian walkway is being built from Rákos-patak up to Margit híd and will later extend up to Kossuth tér, so this, among others, we should consider as a positive consequence of the construction of the Arena. A pedestrian walkway will also be built between the M3 metro
station in Forgách utca and Dagály Bath’s main entrance. We should also appreciate the effects of this on the traffic and the way the city is used. The streetscape will be improved further by the comprehensive reconstruction of Népfürdő and Vizafogó utca between Váci út and Dagály utca. On top of all these, a one-kilometre-long flood-control embankment will be built for long-term protection of the city area between Árpád híd and Rákos-patak. With these investments, the Danube bank portion of Angyalföld north of Dráva utca will become an integrated part of the metropolitan area and will yield a significant increase in real estate prices.
What is the FINA feedback on the finished building?
It might be enough if I tell you that when the FINA Managing Director, Cornel Marculescu, inspected it in February this year, to which he invited members of the 2020 Tokyo Olympic Games organizing team and gave them a 90-minute presentation on the building, he said it is an example worth following. I was given the opportunity to take part personally on the look-around visit and subsequent consultation, and I believe that based on everything said, FINA is perfectly satisfied with the facility. (Szilvia Molnár)
Taubert László szobrászművész
6 méter magas női alakja
6 m hight statue by László Taubert

A NULLÁRÓL KELLETT ÚJRAKEZDENI
Tóth Csaba, a Kiemelt Kormányzati Beruházások Központja (KKBK) beruházási főigazgatója már 17 éve felel a különböző beruházások fejlesztéséért a megrendelői oldalon. A Duna Arénánál számos egyedi megoldást alkalmaztak, a legfőbb kihívás mégis a szoros időkeret volt.

Fotó: Molnár Péter
Photo by Péter Molnár
Fotó: BUJNOVSZKY TAMÁS
Octogon: Milyen feladatokat lát el a kiemelt beruházásoknál?
A koncepcióalkotástól kezdve a különböző tervezési fázisok végigkísérésével, irányításával, koordinálásával, majd a teljes kivitelezői folyamat menedzselésével foglalkozom. Ez egy klasszikus megrendelőoldali műszaki feladat, ami talán kevésbé van előtérben, mert többnyire a tervezőt és a kivitelezőt ismerik, de ez egy sokkal összetettebb műfaj.
Az állami szektorban ugyanez a tevékenység jóval bonyolultabb a közbeszerzési folyamatok miatt, ráadásul az Aréna esetében jelen volt egy harmadik szereplő, a Nemzetközi Úszószövetség (FINA) is, az uszodának pedig szigorú sportszakmai előírásoknak is meg kellett felelnie.
Valóban, mert amikor beléptünk a projektbe, már léteztek különböző tervek, majd éppen egy FINAegyeztetés során derült fény arra, hogy az addigi irány nem jó, az épület sok szempontból nem felel meg az elvárásoknak. Ekkor kérték meg Fürjes Balázst, hogy vegye át a projekt irányítását. Szép kihívás volt, hiszen a telek adottságai önmagukban is bonyolultak. Eredetileg 2021-es vébérendezésre készültünk, majd miután Guadalajara visszalépett 2017-től, hirtelen végig kellett gondolni, milyen módon lehet ezt megvalósítani az új határidőre. Ahhoz képest, hogy két éve még terveink sem voltak, ma ott áll egy uszoda, ami már használatbavételi engedéllyel rendelkezik.
Hogyan változtattak az eredeti terveken? Az alapproblémát az okozta, hogy az eredeti, a nyilvánosság előtt is ismert „aranyhullám”-koncepció még szó szerint egészen más irány volt: ott a Dunával párhuzamosan állt a nagymedence, az aranyhullám pedig egy véglegesen megmaradó épületelemként szerepelt benne, amelynek csak az egyik
oldalán bővült volna a lelátó a szükséges méretre. Így azonban a legfelső sorokból gyakorlatilag nem lehetett látni a versenymedencét, ráadásul az össznézőszám a FINA igényeihez képest túl alacsonynak bizonyult. Ezért az egész uszodát el kellett forgatni, a rendszerét pedig át kellett alakítani úgy, hogy mindkét oldalon legyen lelátó, amelyeket bővíteni is kellett. Mindez egészen új tervet igényelt, a nulláról kellett újrakezdeni a tervezést.
Említette a telek bonyolult adottságait is. Nagyon jó, és később, az üzemeltetés során is előnyös lesz, hogy az Aréna a Dagály Strandfürdővel egy telken működhet majd, de az a terület, amit erre a telken belül kijelöltek, meglehetősen behatárolt. Az egyik oldalon a Duna - az árvízvédelmi rendszereivel együtt -, a másik oldalon a Népfürdő utca, ahol a föld alatt egy nagyon komoly, a teljes fővárosi vízellátás a jelentős hányadát biztosító, úgynevezett Sentab-vízvezeték fut, amit ki is kellett cserélni. Ha ez nem volna elég, a Csatornázási Műveknek van ott még két műtárgya, amelyek záporok esetén vezetik le a felesleges szennyvizeket a Dunába. Ezek régi, falazott, alagút méretű szelvények, 4 méter átmérőjű csövek. Végül a negyedik oldalon ott a Béke-kút, ami az egész fürdő vizét adja. Ezek közé a szigorú határok közé kellett elhelyezni az uszodát, ami, mondhatni cipőkanállal sikerült.
Ez jelentette a legnagyobb kihívást? Inkább az időtényező volt extrém. Egy ilyen méretű épületnek csak a kivitelezésére kell minimum másfél év, de inkább kettő. A Duna Aréna esetében a tervezéssel, bontással, árvízvédelmi gáttal együtt volt összesen két évünk, miközben olyan jogi megoldásokat kellett találnunk és a Dagálytörvénybe beépítenünk, amelyekre korábban nem volt példa. Így például lehetőséget kellett teremteni arra, hogy elkezdhessük az épület alapozását
és szerkezetépítését, miközben még nincsenek tervek. Ehhez képest a folyamatok elég jól utolérték egymást és az építkezés beállt egy normál rendbe.
Szintén az időkényszer miatt néhány műszaki megoldást elsőként próbáltunk ki Magyarországon. Ilyen volt például az, hogy a tető teljes acélszerkezetét egyben emelték föl, hogy ne háromszor ennyi daruval, és rengeteg állványozással a magasban kelljen a végleges szerkezetet összerakni. Ezzel rengeteg időt lehetett megtakarítani, gyakorlatilag egy bő nap alatt felért a teljes tetőszerkezet a helyére. Számtalan kérés jött menet közben is, mi pedig próbáltuk összehangolni az igényeket, igyekeztünk megfelelni az úszóknak, a vízilabdázóknak és a műugróknak is.
Az épület jövőjében kulcsszerep jut az elbontható, majd visszaépíthető lelátóknak. Mindkét oldalon épült egy-egy monumentális ideiglenes lelátószerkezet, amelyeket a világverseny után le kell bontani, úgy nyeri majd el a végső formáját az épület. Ez azonban nem a megszokott ideiglenes szerkezet, hanem annál sokkal komolyabb. Az alsó rész ugyanis egy előre gyártott vasbetonszerkezet, amely később egy parkolóházhoz is felhasználható. Erre került rá az az acélszerkezet, amelynek mindent tudnia kell, semmivel sem egyszerűbb, mintha egy végleges csarnokszerkezet készült volna - csak éppen szétszedhető, és máshol is felhasználható. Mindebbe a szerkezetbe építettünk be egy termékként kialakított lelátót. Ha az ember belül szétnéz az uszodában, szinte nem látja a végleges és az ideiglenes lelátó között a különbséget. Hosszú távon nincs szükség ekkora nézőkapacitásra, a végleges, hatezres befogadóképességgel is Magyarország legnagyobb uszodája lesz majd. (Ujlaky-Gazdag István)
„Két éve még terveink sem voltak, ma ott áll egy uszoda ”
RE-STARTING FROM ZERO
Csaba Tóth, Chief Project Director (Centre of Key Government Investments or KKBK), has been in charge of development of various projects on the customer’s side for 17 years now. The construction of Danube Arena required a number of extraordinary solutions. Still, an extremely tight time frame was the greatest challenge of all.
Photo by TAMÁS BUJNOVSZKY
Octogon: What are your job responsibilities at Key Investments?
I contribute to concept creation, keep track of, oversee and co-ordinate various stages of project design, and manage whole implementation processes. It is a typical customer-side job, and a technical one too; not much in the limelight as a designer or contractor usually receives much more publicity, but my job is much more complex than theirs.
And, normally, more complicated too in the government sector on account of public procurement procedures. On top of it all, with Danube Arena, formerly called Dagály, there was a third-party actor, the International Swimming Federation (FINA), on the scene,
and our swimming arena had to satisfy severe technical requirements of a sports facility. Indeed, by the time we got involved in the project, various plans had already existed. It was only during some discussions with FINA that the architectural direction taken until then turned out to be no good, and the existing design to fail to meet expectations in many respects. That was when Balázs Fürjes was called upon to take over project management. With the features of the site alone being rather complicated, it was a nice challenge to take up. Originally, we had been preparing to host the 2021 World Aquatics Championships, and when Guadalajara withdrew from the 2017 event we had to think quickly how to meet this earlier deadline. Two years ago we did not have any plans finished
yet, and now we have a completed swimming arena with an occupancy permit already granted.
How did you change the original plans?
A fundamental problem was the so-called “golden waves”, an architectural concept in the original plan, as announced to the public. This had been designed to point in a different direction entirely, with the Olympic-size swimming pool to be situated parallel to the Danube lengthwise. These golden waves would have been included as a permanent building component, allowing for extension of stands to a desirable size on one side only. As a result, spectators in the topmost banks of seats couldn’t have seen the race pool at all, and the total seating capacity figure as designed also


”Two years ago we did not have any plans finished yet, and now we have a finished swimming arena ”
proved to be lower than that required by FINA. For all these reasons, the whole swimming arena had to be rotated and its systems altered to allow for stands on both sides, and enlarged ones too, which required creating entirely new plans. Practically, designing had to be re-started from zero.
You mentioned complicated features of the building site.
Once Danube Arena is put into use, its co-location with Dagály Bath will be mutually beneficial for the running of both facilities. However, the area marked out for the purposes of this swimming complex within that site were rather limited, bordered by the Danube with all its flood-control structures on one side, and Népfürdő utca on another, a street with a major water-conduit (so-called Sentab piping) running underground, one providing for a considerable proportion of the total water supply to the capital, which had to be replaced during construction works. And as if that weren’t enough, Budapest Sewage Works has got two more facilities next door to the site to drain off excess storm water into the Danube. These are old, tunnel-size conduits of masonry construction and with a diameter of four
metres. Finally, on a fourth side is Béke-kút, a thermal-water well, filling the entire water demand of the Bath. So, these were the close confines the swimming complex had to be shoehorned into.
It must have been the biggest difficulty to overcome, surely?
It is rather the time factor of this whole project that I tend to call extreme. The mere construction of a building that size usually takes one and a half years minimum, but two years would be a better estimate. We had altogether two years allowed for completion of the whole Danube Arena project, including design, demolition works and floodcontrol barriers. Meanwhile, we were compelled to find and incorporate unprecedented legal solutions in the so-called „Dagály Act”, allowing us to commence foundation engineering and structural construction works without finalised plans in our hands. Despite this, the whole process proceeded nicely and gradually settled into an orderly state. Again, under the pressure of time a few technical solutions were given a try in Hungary for the first time. For instance, the steel roof structure was hoisted up all in one piece, instead of
using three times as many cranes and scaffolding to assemble numerous parts into a final structure high up. Much time was saved by these means. Practically, it took the contractor only a long day to put the whole roof structure in its final position. In the meantime, swimmers, water-polo players and divers raised countless additional demands, and we did our best to meet them all.
Apparently, temporary stands will play a key role in the future of the facility.
A huge temporary grandstand structure was erected on either side that will have to be dismounted when the championships are over so that the building complex can take its final shape. They are, however, much more than just ordinary temporary structures. The lower piece of each one consists of a prefabricated ferro-concrete structure which lends itself for subsequent use in a parking garage. This holds a steel structure which is no less sophisticated than one designed for permanent installation, except that it can be dismounted for subsequent use elsewhere. On top of this comes the grandstand proper, designed as a self-contained product. If you look round inside the building, you can hardly tell a permanent grandstand from a temporary one. There will be no need for such a high seating capacity in the long run anyway. Even with a final permanent seating capacity of 6,000 spectators, Danube Arena will be the biggest aquatics arena in Hungary. (István Ujlaky-Gazdag)


Fejlődési lehetőség is lehet a szűk határidő
A kicsi építési terület és a rövid határidő miatt nem volt könnyű dolga a kivitelezőknek a Duna Aréna megépítésekor, de a különböző területek példás összefogása révén végül sikerrel vették az akadályokat. Exkluzív kiadványunk számára Juhász Zoltán, a Market Építő Zrt. műszaki igazgatója nyilatkozott, akinek munkásságát a Budapest Music Center épületének kivitelezése kapcsán, 2014-ben a Magyar Építész Kamara Sándy Gyula-díjjal ismerte el.
Mi volt az ön személyes szerepe ebben a projektben? kezdetektől fogva – azaz a munkaterület 2015. május 12-i átadásától-átvételétől fogva – én feleltem a kivitelezés és a tervezés megfelelő összehangolásáért, illetve a zavartalan kivitelezés biztosításáért is.
A megépült úszóaréna kétségtelen presztízsértéke mellett hogy érzi, miért volt fontos ez a projekt a Market Építő Zrt.-nek?
Miután visszamondták pályázatot (Guadalajara visszalépett a vébé megrendezésétől – szerk.), rendkívül komoly kihívást jelentett az így elvárt rövid határidő, és hogy emellett minőségi munkát végezzünk egy olyan sajátos építési területen is, mint ahol a d una a réna épült. szeretünk építeni – rövid határidővel is szépet, jó minőségben.
Hogyan tudták tartani ezt a szűk határidőt?
Nagyon sok ember kitartó és áldozatos munkája kellett hozzá. Munkatársaink éjjel-nappal dolgoztak, csúcsidőben 850-900 ember tevékenykedett a munkaterületen. emellett rendkívül szoros együttműködés volt a tervező, a kivitelező és a lebonyolító között; példaértékű a mai kivitelezésben, hogy ennyire szoros összefogásban sikerült ilyen rövid idő alatt megépíteni a létesítményt úgy, hogy azt nem kell többször átadni, tényleg kulcsrakész állapotban bocsáthattuk a megrendelő rendelkezésére. Mindezt ráadásul amellett, hogy egyáltalán nem adtunk le a minőségi követelményeinkből, amelyek sokszor jóval szigorúbbak a szabványelőírásoknál. hozzátenném: egy ilyen szoros határidő nem feltétlenül csak nehézség, de lehetőség is a kreatív gondolkodásra, ami mindenképpen elősegíti a beruházás eredményességét.
Az idő rövidsége mellett gondolom kihívást jelentett az is, hogy ennyire kicsi építési területen kellett dolgozniuk, bizonyára sok kreatív megoldásra volt szükség. ezért alkalmaztunk külön logisztikust. Napi 40-50 kamion beérkezését kellett koordinálni az építési területre, amelynek csekély mérete miatt nem volt lehetőség raktározásra. ezért azt a megoldást választottuk, hogy az odaszállított anyagot szinte azonnal – azaz három-négy napon belül – fel is használtuk, be is építettük a létesítménybe, hogy ne kelljen felhalmozva tárolnunk valahol az építőanyagot. a z anyagkigyűjtések és az anyagmennyiségi kontrolling terén sokat segített a Bi M (Building Information Modelling) rendszere, amelyet az anyag kigyűjtéseken túl a gépészeti, illetve az elektromos tartószerkezeti ütközések lekezeléséhez használtunk.
Ütközést említett; úgy tudjuk, hogy a Duna Aréna építésére kijelölt területén korántsem volt egyszerű a meglévő közműhálózattal és területi sajátosságokkal összehangolni az építkezést. Fontos kiemelni, hogy itt egyszerre több kivitelezés is zajlott. e lőször egy elsőrendű védvonalat kellett létrehoznunk a d una mentén a bontási munkák megkezdésével párhuzamosan, ami egy 850 méter hosszúságú gát megépítését jelentette egy gátúttal együtt. a második komoly feladatot az építési területet átszelő nagyméretű közműcsatornák kiváltása és azok állékonyságának biztosítása jelentette. a nagy átmérőjű közműcsatornából ugyanis két jelentősebb darab is a munkaterület alatt húzódott: egy 2 és egy 4 méter átmérőjű, ami alig másfél méterrel a földfelszín alatt volt, védelem nélkül. a csatorna héjazata a munkagépek súlyától valószínűleg összeroppant volna a védelem hiányában, ezért vasbeton lemez védelemmel kellett ellátni őket, hogy kibírják azt az extrém terhelést, ami a munkagépek esetében akár egy 42 tonnás gép áthaladását is jelenthette. hasonló nehézséget okozott az építési terület előtt húzódó nagynyomású vízvezeték több mint 50 éve épített betoncsöveinek kiváltása (kb. 260 fm), amiket a munkák megkezdése előtt katonai pontonhíddal kellett óvni a sérüléstől, mert a beközlekedő úton a nagynyomású vízvezetékcső felületi védelmét nem lehetett máshogy biztosítani.
Min dolgoznak most, mi a következő nagyobb projekt? k isebbnek látszó, de számos nehézséggel járó strandberuházás elkészítése a következő feladatunk, amely szintén komoly kihívást jelent. s ok megújuló épületet, közművet és új vezetékhálózatot kell építenünk, ahol elsősorban nem a szerkezeti bonyolultság, hanem ismét az idő rövidsége nehezíti meg a beruházás kivitelezését. e lőször a világbajnokság F i N aM arket létesítményeinek fogadására kell kialakítani a strandterületet és a verseny edzéseibe is bevonható új 50 m-es medencét, majd ezt követően a rendezvény után elnyeri végleges strand funkcióját. természetesen itt is célunk, hogy a kivitelezést el tudjuk készíteni a nehézségek ellenére mindkét átadási határidőre, hogy a megújult területet birtokba vevőknek a legnagyobb elégedettségére tegyünk. (Veczán z oltán)

„Fontos kiemelni, hogy itt egyszerre több kivitelezés is zajlott”
Fotó: Molnár Péter / Photo by Péter Molnár
t ight deadli N es M ay proV ide opportu N ities F or de V elopM e N t
Because of the small construction site and the tight deadline, it was not an easy task that the contractors had in the construction of the Danube Arena, but they have overcome the obstacles successfully due to an exemplary cooperation among the various fields. Our special publication features an interview with Zoltán Juhász, Technical Director of Market Építő Zrt. In 2014, he was awarded a Sándy Gyula Award by the Hungarian Chamber of Architects for his achievements related to the construction of the Budapest Music Center.
Personally, what was your role in this project? r ight from the beginning, that is, since the takeover of the work site on 12 May 2015, i have been responsible for the proper coordination of the design and construction work as well as for ensuring smooth construction processes.
Besides the undoubted prestige of the completed swimming complex, why do you feel this project was important for Market Építő Zrt? a fter the tender was cancelled (guadalajara withdrew from the organising of the WC - ed.), meeting the very tight deadlines and performing quality work at such a particular construction site as the danube a rena posed very serious challenges. We love to build, i.e. to create nice and highquality buildings, even with short deadlines.
How could you meet this tight deadline? it required the sustained and dedicated efforts of many people. our staff worked around the clock; in peak times 850-900 people worked at the construction site. i n addition, cooperation has been very close among the designer, contractor and coordination teams. i n today’s construction industry, it is exemplary that a building could be constructed with such a short timeframe and in such close cooperation between the parties involved, so that it did not have to be handed over on several occasions, but could be delivered to the customer ready for use. a ll this happened in a way that we did not lower our quality requirements, which are often more stringent than the standard specifications. i would like to add that such a tight timeframe does not only pose difficulties, but also provides opportunities for creative thinking, which definitely promotes an investment’s effectiveness.
In addition to the short time available, I think that having to work at such a small construction site also posed a challenge and certainly required many creative solutions. i ndeed, and thus, we hired a logistics specialist. The arrival of 40-50 trucks a day to the site had to
be coordinated, the small size of which made onsite storage impossible. Therefore, we have chosen the solution that the delivered materials were used and built into the structure almost immediately (i.e. within three or four days) to avoid having to store the building materials piled up somewhere. The Building i nformation Modelling (Bi M) system helped us a lot in preparing Bills of Materials (BoMs) and in Material Quantity Controlling. i n addition to preparing BoMs, this system facilitated the handling of the conflicts of mechanical and electrical supporting structures.
You have mentioned conflicts. We understand that aligning the construction works with the existing network of public utilities and local peculiarities was by far not an easy task at the area designated for implementation of the Danube Arena.
it is important to stress that several construction works were running there in parallel. First, simultaneously with the commencement of the demolition works, we had to create a first line of defence along the danube, which meant the construction of an 850-meter-long dam together with an embankment. The second major problem was posed by the utility pipelines running across the area, their substitution and ensuring the stability of the same. two major utility pipelines with large diameters (one was 2 and the other 4 metres in diameter) were running under the work site, less than five metres below the surface, without any protection. The shell of the pipelines would have probably crushed under the weight of the heavy construction machinery in the absence of protection, and therefore we had to provide them with reinforced concrete protection so that they could resist the extreme loads, which could mean the passage of a 42-ton machine. substitution of the high-pressure concrete water pipelines (approximately 260 running metres) built more than 50 years earlier, which were running in front of the construction site, caused similar difficulties. prior to starting the works, the pipelines were protected from damages by means of a military
pontoon bridge, because this was the only way to ensure the surface protection of these high-pressure water pipelines running under the frontage road.
What are you working on right now? What’s your next major project?
o ur next engagement is the construction of openair swimming pools, what may seem to be a minor project, but presents a number of difficulties, and also poses a major challenge. s everal green buildings, utilities and a new pipeline network will have to be built, where the main difficulty is not structural complexity, but again, the tight timeframe. First, the open-air swimming pools’ area must be made ready to accomodate the facilites of the F i Na-M arket during the World Championships, and a new 50-metre pool needs to be constructed that can be used for pre-competition training. Then, after the event, this open-air swimming complex will receive its final function. of course, despite the difficulties faced, even in this case our goal is to finish the works on time, by meeting the set two completion deadlines, and to deliver the renewed area to the greatest satisfaction of those who will take possession of it. (z oltán Veczán)
“It is important to stress that several construction works were running there in parallel”


Fotó: Bujnovszky Tamás / Photo by Tamás Bujnovszky
„ a Market
M i N dig híres Volt a F eszített
M
u N kate M pójáról”
Főmérnök, műszaki előkészítők, tervkoordinátorok, projekt koordinátor, főépítésvezetők és építésvezetők… és még sorolhatnánk mindazon, a Marketnél dolgozó munkatársakat, akik fáradságot nem kímélve dolgoztak a Duna Aréna megszületéséért. Néhányan megosztották velünk a projekttel kapcsolatos hosszabb-rövidebb gondolataikat.
ÁdÁ m Roland
„ hogy milyennek írnám le? gigantikus! a korábbi munkáimhoz képest mindenképp. (…) hatalmas, letisztult, modern épület” – mondta az a réna megvalósításáról a Market építésvezetője. a kivitelezés jelentős pillanataival kapcsolatban így fogalmazott: „ s ok mozzanat volt, mire összeállt. s okszor az időjárással kellett küzdenünk azért, hogy a technológiákhoz a feltételeket megteremtsük, vagy a munkaszervezést kellett megoldani a magas létszámnál, hogy mindenki dolgozni tudjon: miközben a padlót gyantáztuk, felettünk a gépész is dolgozott. Vagy építenünk kellett a gipszkarton falakat, miközben a belső terek még tervezés alatt álltak, és még nem volt egyértelmű, hogy másnap hol lesz a helye a válaszfalnak.”
Bagdy Péte
R
2015 szeptembere óta dolgozik a Marketnél, a d una a réna projekttel debütált a cégnél: tervezési koordinátorként a tervezőket irányította, velük és a megrendelővel, előkészítőkkel, építésvezetőkkel tartotta a kapcsolatot, de a kapcsolódó beruházások (Népfürdő utca felújítása, d agály sétány)tervezése tervezésének koordinálása is a feladata lett. „ a d una a réna minden tekintetben egyedülálló beruházás volt. Méretében, összetettségében, határidők tekintetében is.” – nyilatkozta.
a projekttel kapcsolatban több sajátos mozzanatra emlékszik vissza, köztük a területi adottságokra (a r ákos-patak közelsége, két nagy átmérőjű /4 és 2 m-es/ csatorna, 1,6 m átmérőjű ivóvízvezeték, a s trandfürdő szomszédsága), és a kivitelezés során az acél tetőszerkezet egyedülálló emelési technikával történt felemelésének óráira.
Baitt Rok m iklós
Mérnökirodája 15 éve kisebb-nagyobb megszakításokkal alvállalkozója a Market é pítő z rt.-nek, mint megfogalmazza, „így szinte marketesnek érezhetem magam, ami részemre megtisztelő.” a d una a réna projektben koordinátorként vett részt, a beépítendő anyagok mintáztatása, azaz a beruházó műszaki képviselőjével való elfogadtatása, ennek dokumentálása és a külföldi alvállalkozókkal való folyamatos kapcsolattartás volt a feladata. a z építészeti részletekkel kapcsolatban egyet említ: „Nagyon szépre sikerült a zöld üvegfelület, amely a versenymedence terét és a bemelegítőmedence teret veszi körbe kb. 3 m magasságban”. persze voltak érdekes feladatok, mint a versenymedence feltöltése, ami januárban történt „miközben – meséli - a medencetérben mínuszos hőmérséklet volt, hiszen ekkora teret padlófűtéssel kifűteni nem lehet. a z erőteljes kipárolgás megakadályozására be kellett teríteni műanyag buborékos fóliával az egész medencét.”
Csó R iÁ n attila
1999 január óta dolgozik a Marketnél, jelen projektben építésvezetőként vett részt. a rövid kivitelezési határidő miatt nagy kihívásként élte meg az a réna építését. „uszodának a kivitelezésében még nem működtem közre, és nagyon örülök, hogy ebben is részt vehettem” – nyilatkozta szerkesztőinknek. építési területei az ideiglenes lelátók voltak, ezek építésekor a kivitelezők, a segédek, béremberek koordinálása volt a feladata, „folyamatos, napi többszöri egyeztetésre volt szükség az alvállalkozókkal és a kollégákkal. a tervek folyamatosan változtak, ezért gyors döntéseket kellett hozni. d e a rövid határidő és az állandó nyomás ellenére – tette hozzá – a csapatunk nagyon összetartó volt munkaidőben és azon kívül is.”
Földes gÁB o R
2015. május 11-én lett a Market csoport tagja és 13-án már a d una a réna projekten kezdett dolgozni, mint építéshelyi logisztikus. a z áruátvétel, -átadás és árudaruztatás, depóépítés, konténer elhelyezés és konténercseréltetés voltak a feladatai. a z ún. béremberek feladatainak kiosztásában is részt vett, és az építésvezetők napi munkájában is besegített.
“Market has always B een
Fa M ous F or I ts Fast-paced work”
Senior engineer, technical preparation staff, design coordinators, project coordinator, main construction managers and project supervisors … and I could go on listing those Market staff members who worked relentlessly to construct Danube Arena. Some of them have shared their ideas with us concerning the project.
Roland ÁdÁ m
“ how would i describe it? gigantic! at least compared to my previous works. (…) a n enormous, lean and modern building”, he said of the construction of a rena where he worked as site manager of Market. a s for the significant moments of construction, this is how he put it: “There were many moments by the time everything came together. o ften, we had to fight the weather to have the conditions needed for the technologies, or work organisation problems had to be solved because of the high headcounts, to make everyone able to work: while we were waxing the floor, the engineer was also at work above us. or we had to do the plasterboard walls while the inner spaces were still in the design phase and it was not clear yet where the partition walls would be the next day.”
Péte R Bagdy
Member of the Market staff since september 2015; the danube a rena project was his debut at the company: as design coordinator, he managed the work of the designers, he kept in touch with the designers, the client, the preparation staff and the site managers on a daily basis, but the coordination of the design of the related investments (Népfürdő utca renewal, dagály promenade design) also became his task. “danube a rena was a unique investment in
every respect: size, complexity and deadlines”, he said. he remembers several special moments in the project, including the specifics of the area (proximity of r ákos-patak, two large-diameter /4 and 2 m/ canals, 1.6 m diameter drinking water pipe , the Beach Baths in the vicinity), and the hours when a unique hoisting technology was applied to lift the steel roof structure in place during construction.
m iklós Baitt Rok
his engineering office has been the subcontractor of Market építő zrt for 15 years with certain interruptions, as he puts it: “therefore, i almost feel a Marketman, that is an honour to me.” he participated in the danube a rena project as coordinator responsible for sampling materials to be built in, that is, their acceptance by the technical representative of the investor, the relevant documentation, and he was in continuous contact with foreign subcontractors. he mentions one fine architectural detail: “The green glass surface surrounding the competition pool area and the warm-up pool area at a height of around 3 m turned out very beautiful indeed”. of course, there were interesting tasks, of which he mentions one, the filling of the competition pool that took place in january, “at a temperature below zero in the pool area”, he tells us, “because you cannot heat up an area of this size by floor heating. to prevent strong evaporation, the entire pool had to be covered with bubble film.”
attila Csó R iÁ n
a Market employee since january 1999, he took part in this project as construction manager. he experienced the construction of danube a rena as a major challenge due to the tight construction deadline. “i have not contributed to the construction of swimming pools yet, and i am very happy i had a chance to do it now”, he told our editors. his construction sites were the temporary stands where he was to coordinate the work of the contractors, assistants and hired staff during the construction works:”We had to have ongoing consultations, several times a day, with the subcontractors and the colleagues. The designs kept changing and so decisions had to be made fast. But despite the short deadline and constant pressure”, he added, “our team was stuck together during and also outside working hours.”
gÁB o R Földes
he started to work for the Market group on 11 May 2015, and started work on the d anube a rena project as construction site logistician already on the 13th. h is tasks were the hand-over/take-over of goods, craning, depot construction, container installation and replacement. he took part in the task allocation of the so-called hired staff, and assisted with the daily work of the site manager.

Freud Gábor
Gyenes Dávid
Szabadosi Tamás
Pereczes Zsuzsanna
Támba Attila
Csórián Attila
Bagdy Péter
Papp Gábor

Hegedűs Tibor
Karakai Markó
Baittrok Miklós
Földes Gábor
Horváth Bence
Oláh Viktória
Grátzer Szabolcs
Ádám Roland
Szeredai Zoltán
Lettrich Dániel
Fotó: Végel Dániel / Photo by Dániel Végel

F R eud gÁB o R
Bő egy éve a Market munkatársa, művezetőként volt a d agály projekt csapatának tagja, különféle munkákat adott ki és ellenőrzött, vállalkozókkal tartott kapcsolatot. é s hogy mi volt számra jelentős mozzanat ennél a kivitelezésnél, arra a kérdésre így válaszolt: a komplett acélszerkezet felemelése, ezt a technológiát tudtommal Magyarországon először itt alkalmazták.
gRÁtze R s za B olC s
tervezési koordinátor volt. de a tervezők munkájának koordinálása mellett büszkén vállalta például a létesítmény Fi Na certifikációjának előkészítését, végigvitelét, támogatását is. Néhány szóval így jellemezte a duna a rénát: „ professzionális, világszínvonalú, méretei ellenére emberbarát.” a bonyolultabb helyzetekre így emlékezett: „ e gy ilyen nagy ütemben folyó design and build projekt esetében sem engedhettük meg magunknak, hogy ne a legjobb megoldást találjuk meg egy adott problémára, ez pedig óriási nyomást gyakorolt a projekt minden résztvevőjére, legyen az tervező, vagy kivitelező.” a z épület építészeti részei közül, szerkezetépítési szempontból a vasbeton szerkezetű medencéket említette, valamint a műugró tornyot: „a fényjátéka az, ami számomra nagyon szerethetővé teszi a szerkezetet” – mondta, és egy apróbb részletet is említ, így a lépcsőház egyes szintjeit jelölő festett, ún. szintkóta jelöléseket (ezeket az egyes épületszintek méretezéséhez használják), „rajtuk a szinteknek az építés alatt megszokott elnevezése: +5.40, +10.80... ez is egy számomra kedves részlet.”
gyenes dÁvid
2 és fél éve dolgozik a Marketnél, mint művezetőhöz, a d una a réna projektben, szeredai z oltán fő-építésvezető mellett dolgozva az első emeleti munkák tartoztak. közelebbről a medencékhez, az öltözőkhöz és részben a F i Na központhoz tartozó részekhez kapcsolódó feladatokat látta el. a számára fontos mozzanatok közül a következőket említette: „a tető speciális felemelése! i lletve a több mint 30 000 m 2 hidegburkolás.”
Hegedűs t i B o R
2015 nyarán érkezett a Markethez, korábban infrastruktúra-fejlesztéseken dolgozott. Voltak már kisebb feladatai a cégnél, de a d una a réna, mint
építésvezető számára „minden eddigi projektet figyelembe véve sokkal összetettebb, komplikáltabb és nagyobb odafigyelést igénylő feladat volt.” e lsősorban a belső szerkezetépítésben vett részt, az épületen kívül a csatornavédelem, a gát építésének, a külső műtárgyak – lépcsők, támfalak –, valamint a komplett közműépítés, az útépítés, a zöld részek és az öntözőrendszer munkálatai is a feladatköreibe tartoztak. a szerkezetépítéssel kapcsolatban így nyilatkozott: „a kiemelkedő és talán a legfontosabb folyamat az volt, hogy a 4 darab merevítő mag elkészüljön, valamint az acéltetők a helyükre kerüljenek. Minden egyéb munkát ennek rendeltünk alá, ez volt az egyik legnagyobb mérföldkő a projekt tekintetében.” a kivitelezés technológiájával kapcsolatban hozzátette: „szinte sosem volt állásidő, minden munkanemre tudtunk olyan technológiai megoldást találni, ami megfelelően gépesítve és támogatva kétkezi munkával, bármely külső körülményt mellőzve haladhatott.”
Ho RvÁt H Ben C e
é pítészmérnök, harmadik éve dolgozik a Marketnél, építésvezetőként vett rész az a réna projekten. a rövid határidővel kapcsolatban megjegyezte, hogy „nem szabad ezt teherként felfogni, hanem lehetőségként, amivel feszegethetjük a határainkat. tudtuk, hogy képesek vagyunk rá, csupán összeszedettebbnek, előrelátóbbnak, gondolkodóbbnak kell lenni, és nem utolsósorban csapatban kell dolgozni.” a mikor az emlékezetes részletekről kérdeztük, akkor egyebek mellett ezt fogalmazta meg: „ hogyne, ebből nagyon sok van! a nehéz és gondolkodtató csomópontokat kedvelem. szeretek rajzolni, skiccelni és jó érzés, amikor valamit kitalálok, és az úgy épül meg. Mivel építész vagyok, ezért próbálom már menet közben, akár a szerkezetépítési feladatokat is építész szemmel nézni, vagyis olyan emberkénr, aki előre látja a végeredményt. e z sokszor hasznos…”
k a R akai m a R kó
Művezetőként dolgozott az a réna építésében, és 2011 óta a Market tagja. a főépület és a csatornavédelem (2000-es és 4000-es) alapozási munkáit, a gáttal kapcsolatos feladatokat, a strand medencéinek alapozási munkáit, a tereprendezést vitte, és az építéshelyi ügyek szervezésében is részt vett. k ét belsőtéri részt említett meg, mint számára kedvelt különleges és egyedi részeket: az ugrótornyot és a jakuzzit.
gÁB o R F R eud
With Market for more than a year, foreman in the d agály project team, issuing and checking various works and keeping in touch with contractors. to the question querying what was the most significant moment for him during this construction project he answered “the lifting of the complete steel structure, a technology applied here for the first time in hungary as far as i know.”
s za B olC s gRÁtze R
d esign coordinator. But in addition to coordinating the work of the designers, he proudly undertook to prepare, administer and support the F i Na certification of the facility. That’s how he described d anube a rena in a few words: “ professional, worldclass, user-friendly despite its dimensions.” This is how he recalled the more complicated situations: “ i n a design and build project going on at such speed we could not afford to not choose the best solution for each problem, and that had exerted enormous pressure on every project participant, whether designer or constructor.” of the architectural parts of the building, he mentioned the pools with reinforced concrete structure and the diving tower: “ it is the lightshow aspect that makes the structure loveable to me”, he said, and he mentioned also a smaller detail, namely the painted level scaling indication in the staircase (these are used for sizing of floors), “with the name of the floors as we were used to them during the construction works: +5.40, +10.80... This, too, is a detail that i am fond of.”
dÁvid gyenes
Member of the Market staff for 2.5 years. a s foreman, he worked on the d anube a rena project by the side of z oltán szeredai chief site manager on the works taking place on the first floor, in particular, the tasks concerning the pools, the changing rooms and partly the F i Na centre. he mentioned the following of what were important moments for him: “the special hoisting of the roof and the more than 30 000 m 2 tile coverings.”
t i B o R Hegedűs
took up work at Market in summer 2015, after working on infrastructure development. he had had minor tasks at the company until danube a rena, where he acted as site manager: “considering

all my previous projects, this was a much more complex and complicated function requiring more concentrated attention”. he took part mainly in inner structural engineering tasks, but canal protection, dike construction, external objects – stairs, support walls –, and the entire utility construction, road construction, the green areas and the irrigation system were also parts of his job. in connection with structural engineering he said that “the outstanding and perhaps most important process was probably the construction of the four rigidifying cores, and to move the steel roofs at their place. a ll other work was subordinated to these; this was probably one of the most significant milestones of the project.” as for the construction technology, he added: “there was almost no idle time: with appropriate mechanisation and supported by manual work, we managed to find technological solutions in all work types to proceed uninterrupted, independent of the external condition.”
Ben C e Ho RvÁt H
a rchitect, working for Market for the third year; took part in the danube a rena project as site manager. i n connection with the short deadline he mentions “one must not consider this as a pressure, but rather as an opportunity to test your capabilities. We knew we could do it, if only we would be more concentrated, proactive and more thorough thinkers, and not in the least capable of working as a team.” When asked about the memorable details, he expressed the following inter alia: “of course, there are many. i like the difficult nodes that make you think. i like to draw, make sketches, and it is pleasant to invent something that will then be built accordingly. Being an architect, i try to look at even the structural engineering tasks in progress with an architect’s eyes, i.e. seeing the outcome. o ften, this is quite useful …”
m a R kó k a R akai
he acted as foreman during the construction of the a rena, and has been with Market since 2011. he administered the foundation works of the main building and the protection works of the 2000 and 4000 mm canals, the tasks relating to the dike and the foundation works of the pools, and also landscaping, and took part in the management of building site issues. he mentioned two internal parts he considers special and unique achievements: the diving tower and the jacuzzi.
o l ÁH v iktó R ia
4 éve dolgozik a Marketnél, már a groupama a réna kivitelezésében is részt vett. „Nagy hasonlóságot látok a két projekt között. szoros volt mindkét esetben a határidő, és hasonló az is, hogy a kreatív problémamegoldó képességét kellett előhívnunk magunkból” - mondja. Műszaki előkészítőként az alvállalkozók, beszállítók felkutatását, az elvégzendő munka műszaki tartalmának leegyeztetését, versenyeztetését végezte el. a lapvetően a szerkezetépítés tartozott hozzá és az ideiglenes lelátók, így talán nem véletlen, hogy a kiemelt részletek közül az utóbbiakat említi meg: „ s okan csupán székeket látnak, de számomra több ennél. l átom mögötte, hogy hány ország, hány beszállítójával egyeztettem, amire meglett a részben egyedileg ide gyártott, de nagy részben rendszerelemekből álló termék. k ihívást jelentett a külföldi partner és saját üzletpolitikánk összehangolása.”
Pa PP gÁB o R
Műszaki előkészítőként az épület homlokzati rendszerének, üvegszerkezeteinek előkészítését; a telken belüli közművek és az útépítési munkák, illetve feliratrendszerek területeit vitte. pályakezdőként került a céghez. a design and build kivitelezéssel kapcsolatban megjegyzi, hogy „felbecsülhetetlen volt látni azt, hogy ami tegnap papíron volt, ma felépül. s hozzáteszi: „Világszínvonalú teljesítményt nyújtott minden egyes ember, aki hozzájárult a projekt sikerességéhez.” a z építészeti részek közül a külső homlokzatot említi: „ a világépítészetben egyre nagyobb teret kap az alumínium használata homlokzati elemként. időtálló, és alacsony tömegű, könnyen gyártható, szerelhető. a homlokzati koncepció két irányból közelíthető meg: a víz hullámzása felől, és a medencében zajló verseny oldaláról. a 10 sávban, egysíkból induló csíkok más-más helyen hullámoznak, éppen, mint ahogyan a versenyzők is lehagyják egymást a sípszót követően.”
Pe R eC zes z suzsanna
a projektben főmérnökként volt jelen, az előkészítő csapat munkáját hangolta össze és a beruházói valamint műszaki ellenőrökkel tartotta a kapcsolatot, de a megfelelő műszaki megoldások pénzügyi elemzésével, költségkövetésével is foglalkozott. 2003 óta dolgozik a cégnél. „ e ddigi munkáim során ez a projekt kapta az eddigi legnagyobb figyelmet. e z a kiemelkedő figyelem motiválta a projekten dolgozó kollégáimat és engem is a még körültekintőbb és precízebb munkavégzésre.” a kivitelezés fontos
mozzanatairól így mesélt: „ a tető acélszerkezetének beemelése szerintem a projekt életében egy meghatározó momentum volt. d e szívesen megemlíteném itt a MoM e együttműködés eredményeként létrejövő jakuzzi kialakítását vagy a hősök Falát is. a z a pillanat is emlékezetes számomra, mikor először mentünk fel a lelátók felső sorába és onnan tekintettünk le a medencékre. é s a 40 m magasban található teraszról a kilátás is magáért beszél.”
tÁ m Ba attila
8 és fél éve a cég munkatársa, „talán a családom után a második legfontosabb hely” – mondja Marketesként. építésvezetőként a gátépítés és az alapozási munkák tartoztak hozzá ebben a projektben, ez utóbbi feladatokat viszi alapvetően a marketes kivitelezésekben. a mikor arról kérdeztük, hogy van-e olyan rész az a réna épületén/ épületében, amit kifejezetten szeret, annyit jegyez meg csupán: „Nincs, az egész nagyon jó.”
sze R edai zoltÁ n
a hogy a ház alakult úgy változott a szerepe főépítésvezetőként a Market részéről. kezdetben az a réna szerkezetépítését szervezte, majd a medencetér kivitelezésének lebonyolítását irányította. a z átadás után a hibalistázást végezte, de az üzemeltetésben és a vébé utáni átépítésben is komoly szerepe lesz. a rövid határidejű kivitelezés „sok kommunikációt, erőfeszítést, előregondolkodást és sajnos átépítéseket is” jelentett a munkájában. a kivitelezés fontos mozzanatai közül, idézve ismét őt: „a magok vasszerelése, főleg a magtetők vasalásának, a saruk elhelyezésének bonyolultságának, illetve a medencék kivitelezésének, a precizitását emelném ki. Nem a szokásos munkavégzés, munkatempó volt szükséges ahhoz, hogy ezeket pontosan kivitelezhessük.”

Fotó: Molnár Péter / Photo by Péter Molnár

v iktó R ia o l ÁH
she has been with Market for four years, took part also in the construction of groupama a rena. “ i find marked similarities between the two projects. Both had tight deadlines, and the need to evoke our creative problem-solving capacities was also similar”, she says. a s staff member responsible for technical preparations, she looked for subcontractors and suppliers, did consulting and tendering for the technical content of the works to be done. Basically, she was responsible for the structural engineering work and the temporary stands, so it is probably no accident that she mentions the latter among the priority details: “Many see nothing but chairs, but to me it is more than that. i see how many suppliers in how many countries i consulted to arrive at the product that was partly individually manufactured, but mainly composed of system elements. it was a challenge to harmonise the business policies of the foreign partner and ourselves.”
gÁB o R Pa PP
a s person in charge of technical preparations, he was responsible mainly for the facade system of the building, its glass structures, the utilities on the plot, the road-works and the inscription systems. he joined the company as career-starter. he mentions in connection with the design and build works that “it was priceless to watch how what was on paper one day came to be realised on the next day”, adding: “ every person who contributed to the success of the project showed world-class performance.” of the architectural parts, he mentioned the external facade: “The use of aluminium as a facade element is increasingly gaining ground in global architecture. it is timeless, of low weight, easy to manufacture and assemble. The facade concept may be approached from two sides: that of the undulating water and that of the race taking place in the pool. The lines starting from the same plane, arranged in 10 bands, are bent at different places, as the competitors jump ahead after the whistle.”
z suzsanna Pe R eC zes
s he was present in the project as chief engineer, coordinating the work of the team doing the preparations and keeping in touch with the investor and technical supervisors. But she also dealt with the financial analysis and cost monitoring of the appropriate technical solutions. s he has worked for the company since 2003. “ i n my works so far”, she mentions, “this was the
project that received the most attention. t his outstanding attention was a motivation for my colleagues working on the project and for myself to do even more careful and precise work.” t his is what she told us about the major moments of the construction works: “ i think that hoisting the steel structure of the roof in place was a decisive moment in the life of the project. But i would like to mention here also the j acuzzi design that resulted from cooperation with MoM e , and the Wall of heroes. a nother memorable moment for me was when we first ascended to the upper rows of the grandstands and looked down at the pools. a nd the sight from the terrace at 40 m height also speaks for itself.”
attila tÁm Ba
Member of the Market staff for 8.5 years, “maybe the second most important place for me after my family”, he says. a s site manager, he was responsible for the foundation works during the project and, basically, he is in charge of the latter tasks at constructions by Market. to the question whether he was particularly fond of any part in/on the a rena building, he simply notes „”No, all of it is fine.”
zoltÁ
n s ze R edai
h is role as senior construction manager acting on behalf of Market kept changing as the building was taking shape. i nitially, he organised the structural engineering tasks of the a rena, then he managed the execution of the pool area. a fter delivery, he was responsible for error listing, but he will play a significant part also in operation and in conversion after the world championships. Construction with a short deadline “required much communication, efforts, proactive thinking and unfortunately also re-construction” in his work. a s for the important moments of the process, to quote his words again: “ i would emphasise the assembly of the reinforced part of the cores, especially the complexity of the reinforcement of the core covers, the installation of the bearing plates and the degree of precision of the execution of the pools. The accurate realisation of all these required something different from performance as usual, working speed as usual.”

lőw lÁ szló
a mikor azt kértük tőle, hogy jellemezze néhány szóval a duna a rénát, akkor gondolkodás nélkül így válaszolt: „ a Medence/gyorsaság Market módra/ kimaxolt funkcionalitás/a modern úszósport alapköve.” a számára kedves építészeti, belsőépítészeti részek közül a lobbiban található vízfüggönyt emeli ki. izgalmasnak és mozgalmasnak írja le a kivitelezés előkészítői munkáit, amikben, mint műszaki előkészítő vett részt. talán nincs is olyan rész az uszodakomplexumban, amihez ne lett volna köze. a falazás-vakolás, a külső és belső nyílászárók, a hideg-melegburkolások, medenceburkolások előkészítő feladataival egyaránt foglalkozott. de a lobbiban található vízfüggönnyel, a bútorokkal (öltözőszekrények, mobíliák, egyéb asztalosmunkák) kapcsolatos ügyeket is vitte, miként a sporttechnológiához köthető és a medencékhez kapcsolódó feladatokat – medencefenék, mozgatható oldalfal, fulladásfigyelő, eindhooveni úszásdiagnosztika – szintén. „ a legnagyobb kihívások számomra, a medencék voltak. Meg is kaptam a »medencésfiú« jelzőt.” a medencékről részletesebben is beszámol: „ a medencékbe egy speciális technológiát építettünk be. a verseny- és bemelegítőmedencébe mozgatható végfalakat helyeztünk, ezekkel a medencék hosszát tudjuk állítani, ezek alapján a medence lehet akár 50, 33, 30, 25 m hosszúságú, így két külön részre tudjuk osztani a jobb felhasználhatóság érdekében. a bemelegítőmedencébe egy olyan speciális mozgatható medencefenék-lap technológiát építettünk be, amit itthon előttünk még nem alkalmazott senki. az 50 méteres medencében 25 x 25 méteres szakaszon a padló mozgatható, egyetlen gombnyomással. ez lehetővé teszi, hogy akár a hivatalos, 2,20 méteres
mélységbe eresszük a padlót, de akár 0,00 méterre felemeljük a víz felszínére, vagyis szárazedzés is tartható itt, így növelni lehet a medence funkcionalitását. és persze a padló mozgatása nagyon fontos szerepet tölt be úgy a gyermekúszás-oktatásban, mint a rehabilitációban. a bemelegítőmedence víz alatti falába 32 darab speciális kamera lett beépítve, ezek folyamatosan követik az úszók mozgását, a kameraképeket az úszásfigyelő-rendszer pedig azonos időben közvetíti az úszómesteri szobába. ha probléma történik, a kamerák azt is érzékelik; helyben is hangjelzést ad le a rendszer, illetve az úszómesternél lévő vízálló, telefonméretű készülékre is közvetíti – hang, rezgés kíséretében – a pontos beavatkozási helyet, képet, ahova a mentést kell pozícionálni.” az úszók a világ összes tájáról eindhoovenbe jártak azért, hogy tökéletesítsék az úszástechnikájukat. az ún. eindhooveni úszásdiagnosztika most már Magyarországon, a duna a rénában is elérhető – erről is mesélt nekünk lőw lászló. „ a technológiai beépítésével lényegében egy modern sportközpontot hoztunk létre, ami nagyon fontos az élsportolók számára. a rendszer a versenymedencéhez kapcsolódóan működik: 12 darab víz alatti ablak mögött kamerákat találunk, ezek a kamerák lassított, elemezhető videóképeket készítenek, az elemzést az edzők közvetlenül a part mellől is elvégezhetik, így az úszónak ki sem kell jönnie a vízből: a medence mellé tolható rendszerképernyőről leolvashatja az adatokat, a felvételtől számított akár 30 másodpercen belül.”
m ó R é a nikó
idén lesz három éve, hogy a Marketnél dolgozik, ez a cég az első munkahelye. Műszaki előkészítőként dolgozott a d una a réna projektben, különféle
munkafázisokban vett részt a kivitelezés két éve alatt. „ e lsőként a mélyalapozás témáját kaptam, amely az építkezés alap- és elsődleges feladata. CFa (folytonos spirállal fúrt cölöp) cölöpökkel van az a réna teljes épülete és az ideiglenes lelátó szerkezete alátámasztva. a z épület alá 1523 db cölöp került be 60, 80 és 100 cm átmérőben, változó mélységgel, 9,3 m-től 17,3 m-ig terjedő hosszúsággal. Nem csak az épületet, hanem az épület körül készült támfalakat és a kültéri lépcsőket, valamint a telken átmenő, nagy átmérőjű 2000-es és 4000-es csatornák védelmét is cölöpalapozással láttuk el. Cölöpözésen kívül, réselés is készült a jelen projekt mélyalapozási munkái során. a d una mentén húzódó mobilgát alatt résfal készült majd’ 900 fm hosszúságban. a z alapozással párhuzamosan a mobilgát pályáztatását készítettem el, itt a kivitelezés a mobilgát gerendáit fogadó bebetonozandó talplemezek elhelyezésével le is zárult. a mikor a helyszínre érkezett Németországból az összes elem tavaly decemberben, megvolt a teljes mobilfal próbaszerelése. a z építkezés előrehaladtával, a mobilgát-szerkezet elkészülte után a belső szárazépítő munkák előkészítését, majd kivitelezését kísértem végig.” Megkérdeztük azt is, milyen építészeti, belsőépítészeti elemet, részletet említene meg az a rénában? „ a z általam előkészített projektelemek közül a hősök Fala a legkedvesebb. Nagy öröm volt személyesen is látni, hogy a falon névvel szereplő sportolók milyen nagy örömmel fotózkodtak a nevük mellett. Valamint – teszi hozzá – a lobbi tér meghatározó eleme lett a különleges megjelenésével. r emélem, még nagyon sok név kerül rá a későbbiek során.” í gy jellemezte az a rénát: „#ittMinden aVízről szól. #Minden a miÚszósport. #hajráMagyarok2017VB.”
Fotó: Végel
Dániel / Photo by Dániel Végel
lÁ szló lőw
When we asked him to characterise d anube a rena in a few words, he replied promptly: “The pool / speed à la Market/functionality maxed /foundation stone of modern swimming”. a s for the architectural/interior design parts he likes most, he indicates the water curtain in the lobby. he describes the preparation works of the construction where he acted as preparatory technical staff as exciting and eventful. perhaps there is no part in the aquatics complex that he had nothing to do with. Masonry-rendering, external and internal doors and windows, coverings, pool covering – he dealt with all of these. But he administered also the works on the water curtain in the lobby, the furniture (changing room cabinets, furniture, other carpentry), and also the tasks related to sports technology and the pools – pool bottom, mobile sidewall, drowning monitor, e indhoven swimming diagnostics – ditto. “For me, the biggest challenge was the pools”, he tells us. “ i have actually been nicknamed the ‘pool boy’.” he speaks of the pools in more detail. “a special technology was installed in the pools. Mobile sidewalls in the competition and the warm-up pool, to make the length of the pools adjustable from 50, 33, 30, to 25 m; this way, they can be divided into two parts for the sake of better utilisation. i n the warm-up pool, a special mobile pool bottom technology was installed that has never been used in hungary before. i n the 50 m pool, the bottom is movable along a section of 25 x 25 m, by one easy push of the button. This way, it can be lowered to the official, 2.20 m depth or lifted up to 0.00 m, to the water surface, to have dry land training programmes and enhance the functionality of the pool in general. o f course, the adjustability of the bottom plays an important role in kid swim training and also in rehabilitation. Thirty-two special cameras are integrated in the underwater wall of the warm-up pool to monitor the movement of the swimmers, and the images are transmitted instantly to the swimming monitoring system in the lifeguards’ room. The cameras detect problems and issue an audio alarm at the pool, and the exact place of intervention where life-saving is to be targeted is transmitted also to a water-proof phone-size device held by the lifeguards.” swimmers from all over the world went to e indhoven to perfect their swimming technique. The so-called e indhoven swimming diagnostics is now available also in hungary, at d anube a rena”, l ászló l őw told us. “By installing this technology, we have created a modern sports centre, and that is
very important for the top athletes. The system functions at the competition pool: there are 12 underwater windows with cameras behind them that made slow-motion video pictures that can be analysed by the coaches right on the edge of the pool, so the swimmer does not even have to come out of the pool to read the data on the system screen that can be moved to the pool side, within even 30 msp of the recording.”
a nikó m ó R é
This year it will be three years since she has worked for Market that is her first workplace. she worked on danube a rena as preparatory technical staff, participating in various work phases during the two years of the construction. “My first field was deep foundation, i.e. the basic and primary function of the building and the construction. The entire a rena building and the temporary stands are supported by CFa (continuous flight auger) piles. 1,523 piles of 60, 80 and 100 cm diameter and lengths of 9.3 m to 17.3 m were installed under the building at different depths. Besides the building, the retaining walls constructed around the building and the outdoor stairs and the protective covers of the large-diameter 2,000 and 4,000 mm canals crossing the plot were also given pile foundations. i n addition to the installation of the piles, cut-off walls were also made during the deep foundation works of the project. a cut-off wall of almost 900 lm was constructed under the mobile dike along the danube. simultaneously with the foundation works, i prepared the call for tenders for the mobile dike, where execution ended with the installation of the base plates, with concrete around them, designed to receive the girders of the mobile dike. When all the components were delivered on site from germany, in december last year, the test assembly of the entire mobile wall took place. a s construction progressed, after the mobile dike structure was ready, i assisted with the indoor dry construction works, from preparation to completion.” We asked her what architectural/interior design element or detail of the a rena she would like to mention. “of the project components i prepared, my favourite is the heroes’ Wall. it was a great pleasure to see personally how happy the sportspersons whose names appear on the wall were to have their photos taken there. a nd its special appearance makes it a decisive element of the lobby area. i hope that many more names will be written there in the future.” a nd this is how she described the a rena: „#everything aboutWater. #eve rythingswimming. #gohungarians2017WC.”

„
i tt M i N de N ki
B eleadta a szí V ét-lelkét ”

szűcs Csaba főépítésvezetőként vett részt az a réna projektben. Mivel itt párhuzamosan ment a tervezés és a kivitelezés, így a közvetlen kollégákkal, partnercégekkel, tervezőkkel történt napi egyeztetések, a rövid távú tervek begyűjtése mind komoly feladatokat jelentett neki és a munkatársainak. ezeken kívül a munkavédelem és a kivitelezés minőségellenőrzése is a feladatkörébe tartozott. „ a marketes kollégák komoly teljesítménye annak is köszönhető – mondta –, hogy kiváló közösséget tudtunk kialakítani, ez igen fontos volt ezen a kivitelezésen. több munkán kívüli program megszervezésében is jeleskedtem, szóval a munkák mindennemű megszervezése volt a feladatom” – tette hozzá. Megkérdeztük tőle, hogy mióta dolgozik a cégnél, és mit jelent számára a Market munkatársának lenni: „ a bban a ritka és kivételes
helyzetben vagyok, hogy 21 éve dolgozom ennél a kiváló cégnél, tehát szinte az alapítás óta, így láttam a céget »csecsemőkorában« és látom napjainkban is. h ihetetlen az, ami itt történt, történik. talán elmondhatom, hogy jómagam munkája és hozzáállása is hozzájárult a sikerességéhez. Büszke vagyok mindarra, amit közösen elértünk és bízom abban, hogy még legalább ugyanennyi évig együtt fogunk dolgozni. a d una a réna építéstörténetével kapcsolatban röviden kitért a szűk határidőre és az építés egyes fázisaira is. „Már az első napon készítettünk egy belső ütemtervet. e bben a magunk számára megfogalmaztuk, hogy megpróbáljuk az eleve szűk határidőt még rövidíteni. ezért kijelöltük az ütemezés határköveit is: mikorra akarjuk befejezni a szerkezetépítést, mikorra akarjuk elkészíteni
a tető acélszerkezetet? ezek az időpontok meghatározták azt is, hogy milyen technológiákat kell alkalmaznunk ahhoz, hogy elkészüljünk és teljesítsük a részhatáridőinket. Már az elején elkezdtük építeni a gátat, mert ezzel óvtuk és védtük meg a munkaterületünket az árvíz idején. Bizonyos vasbetonmunkákat a monolit helyett előregyártottból készítettük el, mert így gyorsabb volt a kivitelezés. a magokat csúszózsalus technológiával készítettük el, mert így heteket nyertünk a nagytáblás zsaluzattal szemben. a tető acélszerkezetet egy speciális emelési technológiával emeltük a helyére. ez a teljesítmény vonzotta a szakmát és a médiát: állandóan kerestek minket az érdeklődők, hogy szeretnék megtekinteni az építkezést. a zt gondolom, hogy aki végigkövette az épület születését, elismeréssel beszél róla. higgyék el, jogosan, mert itt mindenki
Fotó: Molnár Péter / Photo by Péter Molnár
beleadta a szívét-lelkét. Megérdemlik az elismerést.” a z építészeti, belsőépítészeti részek közül többet is megemlít, kiemel: „Belépve a főbejáraton, az előtérben egyből láthatunk egy vízfüggönyt, amivel feliratokat, grafikákat lehet megjeleníteni, illetve a közelében, a recepció fölött egy üvegfödém található, mely természetes és esti megvilágításban is különös optikai és fényhatást ad ennek a térnek. a ztán ott van a hősök Fala, rajta az eddigi összes aranyérmes olimpikon és paralimpikon nevével. Nagyon impozáns a medenceterek belső kialakítása
“
is, és ott van a jakuzzi, amely azt gondolom, tényleg egyedi. a ztán a versenymedence térben található akusztikai molinók hangulata, rajtuk a budai Vár és a parlament sziluettje… napokig lehetne sorolni az említésre méltó részeket. de szeretném még megemlíteni a homlokzati burkolatot, aminek a lemezei mind azonos színűek, mégis úgy érzékeli a néző, mintha különbözőek lennének, ha süt a nap, aranyra váltanak bizonyos részei, ha borús az idő, akkor az ezüst árnyalatai jelennek meg. szerintem csodálatos!”
eV eryo N e here put their heart a N d soul i N to it ”
Mr. Csaba szűcs participated in the a rena project as main construction manager. d ue to the parallel design-and-build processes, daily consultations with colleagues and partner companies and designers and the collection of the short-term plans implied serious tasks for him and his staff. Moreover, ohs and the quality control of the construction works were also part of his job. “The remarkable performance of the colleagues from Market was due, among other things”, he said, “to the fact that we managed to build up an excellent community; this was most important at this work. i took the lead also in organising several programmes outside the working hours. s o, my task was work organisation in every respect”, he added. We asked in connection with the aforesaid how long he had been with the company and what it meant to him to be a member of the Market staff. “ i am in the rare and exceptional situation that i have been working for this excellent company for 21 years, that is, almost since its foundation, so i have seen the company in “infant age” and i see it today. What happened, happens here is unbelievable. Maybe i can say that my own work and attitude has contributed to its success. i am proud of everything we achieved collectively, and i hope we will be working together for at least as many years.” i n connection with the construction history of d anube a rena he briefly mentions the tight deadlines and certain phases of the construction. “We made an insiders’ timetable already on the first day. There we set out for ourselves that we would try to further shorten the deadline that was tight anyway. Therefore, we specified certain milestones: envisaged date of completion of the construction of the structure, of the steel roof structure. These dates determined also the technologies to be applied in
order to be ready and meet the partial deadlines. We started to construct the dike right away, to be able to protect the work site in case of flood. s ome reinforced concrete works were made of prefab instead of monolith, to make execution faster. The cores were made with the slip-form technology that let us gain weeks compared to the large-panel formwork. The steel structure of the roof was lifted to its place by a special hoisting technology. This achievement attracted the profession and the media: there were continuous requests from interested people who wished to visit the construction works. i think that those who monitored the birth of this building speak of it with appreciation. Believe me, with every reason, because everyone here put their heart and soul into it. They deserve this appreciation.” he mentions, underlines several of the architectural and interior design parts: “a s you enter through the main entrance, in the lobby you see right away the water curtain that can display inscriptions and graphics and a glass ceiling nearby, above the reception, that gives a special optical and light effect to this area both under natural and evening lighting conditions. Then there is the heroes’ Wall, with the names of all previous olympic and paralympic gold medallists. The inner design of the pool areas is also quite impressive, and there is the jacuzzi that is really unique. a nd the atmosphere of the acoustic banners in the competition pool area, with the silhouette of Buda Castle and the parliament on them … you could list the details worth mentioning for days. But i would like to note also the facade covering, where the plates are of the same colour, but the viewer perceives them as being different: some parts turn into gold in sunshine, and silver shades appear if the weather is clouded. i think that is magnificent!”



AZ ÚSZÓSPORTOK PALOTÁJA

Szöveg: MIZSEI ANETT
Fotó: BUJNOVSZKY TAMÁS
Az észak-pesti Duna-part látképét átformáló épület vizuálisan a part menti beépítés zárása. Léptékénél, a sík terület fölé emelkedő tömegénél fogva inkább természeti képződmény, határkő, amelynek hullámzó homlokzatát Ferencz Marcel és Détári György, az épületet tervező építészek az ég és a Duna reflexióinak árnyalataiba öltöztették.
Ajelentősebb, víz mellett fekvő európai városokban a parti területek intenzív fejlesztése már évtizedek óta zajlik. Így történt Bécs, Düsseldorf, Duisburg, London esetében is: közintézmények, szállodák, sport- és irodakomplexumok épültek, amelyek a high-tech és nemritkán az ipari esztétika hordozói. Pesten a Művészetek Palotájától kiindulva a Boráros térig, illetve vele átellenben Újbudán alakult ki ilyen intézményi terület. A történelmi városmag északi oldalát tekintve a Duna Tower Budapest kettős tömegének kivételével még kiaknázatlanok a lehetőségek. Persze nem válik folytonossá a beépítés. A Duna-part természeti adottságai, mint a Rákos-patak torkolata vagy épp a Dagály strandjának parkos, külső területe szükségképpen megszakítja a sort.
E kettő közé beágyazódó Aréna látványa városképi szempontból két fő irányból meghatározó. A Népfürdő utca felől lépcsőzetes, megmozgatott terepként, egyféle teraszos „épülettájként” felfogható bejárati zónával nyílik meg. A ház tömege itt a Dagály Strandfürdő régi, megtartott és jelenleg felújítás alatt álló bejárati épületéhez illeszkedik, a két épület üvegfolyosóval kapcsolódik majd egymáshoz. A budai oldalról hegyesszögű élben összefutó, harmonikaszerűen hajtogatott alumíniumlemez-sávok hullámoznak, a ránézeti szögtől függően visszatükrözve a víz és a délről nyugatra forduló nap sugarainak színeit. A sávokban hullámzó homlokzat elválik a ház tömegétől, és a kéreg mögött, a csarnoktól független tartószerkezetben lépcső és panorámalift visz a tetőre, a kitérő hullámvonalak közötti rések változó és egyre szélesebb horizontot mutatnak meg. A tetőre érve jóformán teljes, 360 fokos Budapesti panoráma tárul elénk. A Duna szintjén a ház nem képez akadályt: a parton kis teresedés, találkozópont, rendezett közterület épül.
A Dagály Strandfürdő és a Duna Aréna környezetbe illesztésénél kiemelt szerep jutott Varga Béla, Fodor István, Ükör Tamás, Pindes Ákos társszerző építészeknek, akik az engedélyezési és kiviteli tervek elkészítéséért feleltek. A ház gondolatiságát végigkíséri a Dunával való kapcsolatfelvétel. A főbejárat mellett számláló pereg: a Bodóczky Antal és Kovács Kristóf tervezte Duna órát helyezték itt üzembe, a folyó vízhozamának vizualizálására. Az egykori római erőd helyén most az Aréna szigorú, merőleges raszter-rendszerének hosszú














tengelyei nyílnak, amelyek az ideiglenes lelátók elbontása után már az előcsarnokból vizuális összeköttetést biztosítanak a folyóval. Az egyes medencéket, közösségi- és rendezvénytereket körüljárók fűzik össze. Összesen tizenkétféle alaprajzi variációra kellett felkészíteni a házat: négy sportág –műugrás, szinkronúszás, úszás, vízilabda – hétköznapi, hazai és nemzetközi verseny alatti üzemére.
A gigantikus méretek és a mobilitás ellentmondását kellett feloldani. Az alaprajzi értelemben is sávokra
bontott ház képes befogadni a sportolók, a nézők, a sajtó és a vendégek mozgását, útvonalait illetően. Gyakorlatilag egy ipari épületről van itt szó. Az üzemszerű működés igényére a tervezők üzemszerű vizuális kommunikációval válaszoltak. Nemcsak anyaghasználatában, szerkezetében fejeződik ez ki, de abban is, ahogy a közönséget önmagán keresztülengedi: a belépés pillanatától kezdve egyértelmű, átlátható. Végigjárva az épületet mintha egyszerre peregne a szemünk előtt maga a mozi és az „így készült” dokumentumfilm. A megérkezés után egyre tágabb terek nyílnak. Az emelkedő sor csúcsa a nagy csarnoktér és a dunai panorámaterasz, ami megnyitja a látványt a Budai hegyekre. A szimmetrikus csarnoktér belmagassága és térarányai esetében a sportolói igények és a világverseny rendezésének szempontjai voltak meghatározók, ahogy az állítható hosszúságú és mélységű bemelegítőmedence terénél is. A sportteljesítmény szempontjából ugyanis egy vizuálisan

és hanghatásaiban szimmetrikus elrendezésű tér a legelőnyösebb.
A növekvő sorba fűzött tereket követik a szerkezetek és az anyaghasználat, a bejárat reprezentatív felületeitől a gigantikus tartószerkezetét megmutató úszóarénáig. A Szokolyai Gábor által jegyzett belsőépítészet (MCXVI Építészműterem) az iparművészeti igényességű részletektől a szinte befogadhatatlan léptékű indusztriális térig finoman kíséri a funkciót. Az előcsarnokban Szőnyi Anna „Boomerang” padja, a szigetszerűen beúsztatott, körüljárható büfé és egy japán fejlesztésű szökőkút rendezi a teret. A fényt megtörő felülvilágító „kút” az emeleti tetőterasszal létesít vizuális kapcsolatot.
A gyermekmedencére, a bemelegítőmedencére és a MOME művészei (Visky Dóra, Vincze Lilla, Mistroi Sixtine) által tervezett masszázsmedencére a fogadótérből, az üzlethelyiségből és a sportmúzeumból is rálátás nyílik.
Nappal szikár és üzemszerű: ha az első koncepcióterven vázolt látvány az ünnepnap hullámairól szólt, akkor a megvalósult ház az év többi 364 napjáról, amikor a gondosan összecsiszolt gépezetben folyó munkával kitermelik az aranyat érő másodperceket vagy tizedeket. Este megvilágított dunai hullámaival a dél-pesti kultúrnegyedre válaszol, közrefogva vele a Belváros fényeit.

A szimmetrikus csarnoktér belmagassága és térarányai
The symmetrical hall’s inner height and the space arrangement

A gigantikus méretek és a mobilitás ellentmondását kellett feloldani



A CITADEL OF SWIMMING SPORTS
The building reshaping the Northern Pest panorama is the closing stone of the built-in area on the riverside. Due to its huge scales and form towering over the surroundings the building looks like a natural formation and a landmark with a waving façade designed by Marcel Ferenc and György Détári to reflect the shades of the sky and the river Danube.

Words: ANETT MIZSEI
Photo by TAMÁS BUJNOVSZKY
A sportolói igények és a világverseny rendezésének szempontjai voltak meghatározók
Space organisation is defined by the athletic and world competition needs
InEuropean cities situated next to bodies of water, the intensive development of the waterside areas had begun several decades ago. That happened in Vienna, Düsseldorf, Duisburg, and London – public facilities, hotels, sports complexes and office buildings were planted along the banks and coasts that often created great industrial aesthetic values. In Budapest, a similar area of establishments is forming that currently extends from the Palace of Arts to the Boráros tér and continues on the opposite side in Újbuda. The Northern area of the historical old town is still much unexploited,
aside from the dual mass of the Duna Tower Budapest located in there. The built-in area certainly cannot be continuous at this place since the natural and predefined elements on the river bank like the mouth of the brook Rákos or the parkland of the Dagály Pool necessarily interrupts the row. Embedded between these two areas the Arena characterizes the city landscape from two points of view: From the Népfürdő Street, the entrance zone opens up a tiered and exciting ground that can be considered one kind of sculpted landscape with terraces. The mass of the construction joins


During the day it is brusque and industrial

the old entrance building currently under renovation, which will be connected to the Arena with a glass corridor one day. From the Buda side, acute angled aluminium straps folded like an accordion are waving on the façade, reflecting the lights of the water and the colours of the Sun moving from South to West. The façade and its waving straps detached from the building's mass hide a staircase and an elevator that go up to the roof. During our trip upstairs the gaps between the waves show an ever widening horizon. The view from the roof provides a nearly 360-degree Budapest panorama. On the ground level, the building does not constitute an obstacle; a little square under construction will offer a meeting point and an organized public space on the river bank.
Responsible for the design and implementation plans, Béla Varga, István Fodor, Tamás Ükör, and Ákos Pindes had crucial roles in finding out as to how
the Dagály Bath and Danube Arena could fit into the surrounding environment. The concept of the building is permeated by its contact with the Danube. Next to the main entrance, a numeral screen is counting – this object ("Danube Clock") designed by Antal Bodóczky and Kristóf Kovács visualizes the live water discharges of the river Danube. On the site of a former Roman fort, long axes of a strict orthogonal grid system will offer a visual connection with the river Danube right from the building’s lobby once the temporary grandstands are dismantled. The pools along with the community and event spaces are linked together with passages going around them. The building is prepared for 19 different layouts according to the sport events (diving, synchronized swimming, swimming, and water polo) and event types (domestic or international). It was a challenge to resolve the contradiction between the gigantic scales and the required mobility. The building is
divided into tracks on the level of its floor map as well to be easily modified when required by the movement of athletes, guests, and press professionals.
It is virtually an industrial building. To the need of an industrial-like utilization the designers responded with an industrial-like visual communication, expressed not just by material use and structures but also by the transparent way it allows the public through its spaces right from the moment of entrance. While you walk through the premises, as if you could see a behind-the-scenes movie about the building construction. After entering the building the spaces grow increasingly larger until arriving in the biggest one, that of the great hall and the panorama terrace overlooking the Danube and the Buda hills. The symmetrical hall’s inner height and the space arrangement are all defined by the athletic and world competition needs – which also stands for the space of the warm-up pools of adjustable
Este megvilágított dunai hullámaival a dél-pesti kultúrnegyedre válaszol, közrefogva vele a Belváros fényeit
At night, the illuminated waves of the building enter into a kind conversation with the cultural district of South Pest contemplating together the lights of the city center

It was a challenge to resolve the contradiction between the gigantic scales and the required mobility
length and depth. In the case of a sports event the most desirable arrangement in terms of the visual and auditory experience is the symmetrical one. The gradually growing spaces are complete with fitting structures and material use, from the elaborate and fine surfaces of the representative entrance to the gigantesque swimming arena shamelessly revealing its immense supporting structure. Gábor Szokolyai’s (MCXVI Architects) interior design follows the premises altering functions with artistic details in the beginning and an industrial space inadmissible in its scale for the human perspective. The space of the lobby is organized by the Boomerang bench by Anna Szőnyi, the island of a snack bar that you can walk around and a Japanese design fountain. The well illuminated from above is refracting light making visual connection with the rooftop terrace. The children’s pool, the warm-up pool and the massage pool designed by MOME art-
ists (Dóra Visky, Lilla Vincze, and Mistroi Sixtine), can be overlooked from the reception area, the shop, and the sport museum as well.
During the day it is brusque and industrial – if the first concept was about the spectacular waves of a gala, the building that came true tells us about the other 364 days of the year when seconds and tenths of a second are earned every day in a ruthlessly perfected functional work aiming for the golden medal. But at night, the illuminated waves of the building enter into a kind conversation with the cultural district of South Pest contemplating together the lights of the city center.


Sculpted landscape with terraces


NÉPFÜRDŐ A DAGÁLY
UTCÁBAN
SZÖVEG:
Mizsei Anett

Budapest számos termálforrását már a középkor óta hasznosították. A kiegyezés után azonban egyféle identitásképző elemévé vált a városnak a fürdőkultúra fellendítése, és az azzal összefüggő fejlesztések. Az akkor fiatal főváros számos területen hatalmas lemaradásban volt Bécshez és más európai nagyvárosokhoz képest, s néhány egyéb kiemelkedő előrelépés mellett, mint a Lánchíd vagy a földalatti vasút megépítése, a fürdőváros gondolata hosszú távra a várospolitika homlokterébe került.
A Dagály persze ekkor még gondolat sem volt, jóllehet a később azt tápláló forrást már ismerték. A Rákos-patak torkolatában feküdt ugyanis az úgynevezett Fürdősziget. A Duna medrében kialakult zátony területén összesen 40-50 működő meleg vizes forrást jegyeztek fel a kortársak. A 19. század
végi folyószabályozás során a zátony elkotrásával aztán ezek is eltűntek a felszínről. E források attól fogva a Duna medrében fakadtak fel. A folyóba szökéssel veszendőbe menő vizet partközeli mélyfúrással tervezték feltárni.
A területen húzódik a solymári törésvonal déli ága, ennek szegélyei mentén összetöredezett kőzetrétegek között szökevényforrás formájában a felszínre törhet a nagy mélységben húzódó meleg víz. A Dagályt tápláló, 1944-ben létesített Béke-kút erre a repedésrendszerre épült, a termálvizet több mint 125 m mélységből hozza a felszínre. A Béke-kút vízhozama és hőmérséklete aztán az évek során csökkenni kezdett. Korábban, míg a termálkút vize melegebb, 41 C° fölötti volt, a medencébe vezetés előtt hőcserélő berendezésen vezették át, s az öltözőépületet fűtötték vele.
A két világháború, és az utánuk következő újjáépítések azonban egy időre megakasztották a fürdők fejlesztését. Egészen 1943-ig kellett várni arra, hogy zöld utat kapjon az első termálkút fúrása a pesti Duna-parton a Rákos patak és az Árpád híd között. A követező évre befejezett munka eredményesnek bizonyult, bár a fürdő első ütemének kiépítése csak 1948-ra készült el. Kezdetben egyszerűen a vízzel telt gödrökben fürödtek az emberek, az előkészítő munkák, a gátépítés, területrendezés, fürdőmedence és öltözők építése csak 1947-től indult meg a 10 hektáros területen.
Az első fúrás után öt évvel azonban végül átadták az akkori Dagály utcai fürdőt – máig elterjedt nevét is innen örökölte. Húszezer négyzetméter parkosított, gyeppel telepített szabad területen, ötezer fő kiszolgálására alkalmas öltözőblokkal nyitotta
meg kapuit. Egy 2500 négyzetméteres, „vese alakú” strandmedence és egy 4300 négyzetméteres ikergyógymedence állt akkor a fürdőzők rendelkezésére. Népszerűsége nőttön nőtt, olyannyira, hogy már egy éven belül szükségessé vált a bővítése. Az 1949-es szezonra megkétszerezték a park területét és az öltözőkapacitást és kiépült a gyermekmedence, valamint egy szökőkutas medence is.
A strand rövid idő alatt a főváros leglátogatottabb fürdője lett, téli-nyári üzemmel, így 1955-re újabb, egész évben használható termálmedencével bővítették. Egy év múlva épült meg az 50 méteres kültéri medence, amellyel a versenysport igényeire is válaszolva a látogatók újabb célcsoportját érte el a fürdő. Étterem, büfé, gyermekjátszóterek, torna- és labdapályák is létesültek, 1961-ben pedig a téli gyógymedencéhez téli öltözőblokkot kapcsoltak. A női öltözőblokk tetőteraszán privát, fürdőruha nélkül is igénybe vehető női napozót létesítettek. „A bejárati épület modern vonalú vasbetonvázas, lapos tetejű, emeletes épület, nagy üvegfelületekkel. A két különálló nyári öltöző szintén vasbetonvázas, emeletes, lapostetős épület. [...] Mind a három öltöző a strandterület szélére esett, így az érkező és távozó fürdővendégek nem zavarták a strandolókat. (Budapest fürdői, 1969, 108. old.)”
Közel tízévi további működés után kevésbé látványos, ám annál fontosabb fejlesztés történt: 1973 elején helyezték üzembe az árvízvédelmi gépházat, ami a fürdő folyamatos üzemét tudta biztosítani. Ugyanebben az évben bővültek a szolgáltatások
is - például lábápoló szalonnal - májustól pedig orvosi beutalóval érkezőket is fogadhatott a fürdő. Lényegében innentől számíthatjuk Budapest gyógyfürdői közé a Dagályt. 1977-ben aztán újabb, idénytől függetlenül működő közönségforgalmi területet is átadtak: megépült a télikert, amelyet akkor progresszív, lekerekített formavilágú műanyag bútorokkal rendeztek be.
Az utolsó nagyobb, funkcionális bővítés 1983ban történt, ekkor a sátorral fedett 25 méteres úszómedence készült el, a hozzá tartozó kiszolgáló blokkal, szaunával. Átépítették a régi, balesetveszélyessé váló gyermekmedencét, s több mint kétszáz új, négyszemélyes öltözőkabinnal, hozzá csatlakozó WC- és zuhanycsoportokkal a családoknak kedvezett a strandfürdő. Ezután már csak kisebb korszerűsítések történtek: felújították a téli ülőmedencét övező pergolát, kettéválasztották a medencét két különböző hőfokú területre. Aljzatuk és a lépcsősorok pietra burkolatot kapott, az oldalfalakra műanyag festék került. Ekkor választottak le két tanmedencét, illetve elkészült a padlófűtéses kifutó az épület és az 50 méteres medence közt. További kisebb beavatkozások, burkolatcserék is történtek. Ugyanebben az évben állítottak üzembe egy kétpályás vízi csúszdát. Budapest egyik legfiatalabb fürdőjének népszerűsége töretlenül növekedett, amelyet évtizedeken át ahhoz igazodó bővítések követtek. Az 1980-as évekre a környéken befejezett lakótelepi építkezések adták az utolsó nagy lendületet a fürdő
fejlesztésének. A város fejlődésével párhuzamos, azzal összefüggő sikertörténet a rendszerváltás idején elakadt, azóta a legelemibb felújítások sem történtek meg. A méltatlan állapotba került strandfürdő történetének legújabb mérföldköve a terület északi végén most átadott Úszóközpont. A későmodernista jellegű régi bejárati épületet sok évtized után teljesen új kontextusba helyezi az új csarnok okozta léptékváltás. Kívül-belül felújítva, az új épülethez üvegfolyosóval „köldökzsinórra” kötve azonban a közönségé marad a Dagályhoz kötődő nosztalgia zárványaként.
A fővárosi fürdők 75 éve. Pallas Lap- és Könyvkiadó, Budapest 1988 . (Szerk.: Dr. Beck Béla szerzők: Dr. Beck Béla, Hegedűs Lajos, Horváth József, Meskó Csaba, Dr. Rátz Endre)
Budapest Gyógyfürdői és Fürdői. Panoráma, Budapest, 1980. (Szerk.: Dr. Vitéz András szerzők: Dr. Chatel Andor, Dr. Fluck István, Horváth József, Matusek Géza felelős kiadó: Dr. Árky István)
Budapest fürdői. Pannónia, Budapest 1969. A Fővárosi Fürdőigazgatóság megbízásából és közreműködésével összeállította a Fővárosi Mélyépítési Tervező Vállalat. (Szerzők: Csörnyei Sándor, Horváth József, Frőhlich Loránd, Szalontai Gergely; rajzok: Kerekes Anna)
← Fotó / Fortepan / Budapest Főváros Levéltára. HU-BFL-XV-19-c-11, 1959
← Photo by Fortepan / Budapest Archives. HU-BFL-XV-19-c-11, 1959
→ A Szabadság strandfürdő, légfelvételen; fotó: Járai Rudolf/MTI; 1969. május 4.
→ Plage Szabadság, air photo; photo by Rudolf Járai/MTI; 4th May 1969

A PUBLIC BATH ON DAGÁLY UTCA
Words: ANETT MIZSEI

Many of the numerous thermal springs in Budapest were already in use in the Middle Ages. But after Austria-Hungary was constituted in 1867, boosting bath culture and related developments became a real matter of forming the city’s identity. The then-young capital was lagging way behind Vienna and other European cities in many respects so, in addition to some outstanding projects like the construction of the Chain Bridge and the first underground train, becoming a city of baths got into the focus of the urban policy for long.
Of course, that time there was not a single idea about Dagály yet, though its source spring was already known. The so-called Bath Island was situated in the mouth of brook Rákos where formed a reef in the bed of the Danube on which 40-50 active thermal springs were recorded. But in the course of the river controls of the late 19th century the reef was dredged and the
springs went underwater. To replace the water wasted under the surface well-boring started to explore thermal springs on the bank.
The Planar Fault of Solymár is located in this area providing the water with a way out to the surface from great depths through fractured stones where no aquitard stands in the way. The Békekút (Peace Well) was installed on this fault structure in 1944 and brings water up from 125 m depth to supply the bath of the Dagály. Its water discharge volume and temperature started falling over the years. Earlier, when the temperature stayed over 41 C°, before flowing out into the pools, hot water warmed up the changing rooms’ building with the help of a heat exchange system.
However the two World Wars and the reconstructions afterwards blocked the bath developments for a while. The project had to wait until 1943 when a thermal well was drilled on the Pest
side of the Danube between brook Rákos and the Árpád Bridge. The well-boring project finished the following year with success, nevertheless the first phase of the bath construction was completed only in 1948. In these early days, people were bathing in pits filled with water. The works of preparation on the 10 ha area, including dam construction, spatial planning, pool and changing room developments, started only in 1947.
Five years after the first day of drilling, finally the bath on Dagály utca officially opened (hence its current name among the people). The facility boasted with 20,000 square meters of landscaped parks and lawns and a changing block suitable to serve 5,000 people. Bath goers could benefit from a 2,500 m 2 reniform bathing pool and a 4,300 m 2 double therapy pool. The popularity of the bath was constantly growing and in just one year it needed to be expanded. By the 1949 season, the park area and the irrigation capacity were doubled and the bath received a children’s pool and a fountain pool as well.
In a very short amount of time the bath became the most visited pools in Budapest. There was a need to be open all year thus it got a new year-round operating thermal pool in 1955. A 50 m outdoor swimming pool was also constructed within a year to respond to the needs of water sports and attract a new target group to the establishment. The facility was completed with a restaurant, a snack bar, sports fields and ball game courts, and a winter changing block was attached to the winter spa. On the rooftop of the women’s changing block, there was a sunbath the ladies could use without a swimsuit. “The entrance building is a modern flat-topped storey construction made of reinforced concrete with large glass surfaces. The two separate summer changing blocks are also flat-topped storey constructions made of reinforced concrete. [...] The three changing blocks are situated at the edge of the bathing area so guests arriving and departing did not disturb other visitors.” (Budapest fürdői, 1969, p 108)
After ten years of operation there was a less spectacular but rather important development – the flood protection powerhouse started working ensuring the continuous operation of the bath in ear-
← Fotó: Fortepan, 1980
← Photo by Fortepan, 1980
→ A Szabadság strand pihenőhelyisége; fotó: Danis Barna/MTI 1977. november 8.
→ Plage Szabadság, rest area; Photo by Barna Danis/MTI; 8th November 1977

In these early days, people were bathing in pits filled with water
ly 1973. The scope of services expanded the same year (with a pedicure parlour, for example) and the bath were given the permission to admit patients with medical referral. From this point on, Dagály is counted among the health spas of Budapest. In 1977 there opened another year-round operating public facility, the winter garden. The new garden was furnished with rounded plastic items of the latest, most progressive design in the era.
The last major functional development took place in 1983 when the tent-covered 25 m swimming pool and its adjacent service block and sauna were finished. The old and unsafe children’s pool was rebuilt and got more than 200 new four-person changing cabins, plus toilets and shower rooms attached to it in a way that the bath became a real family-friendly establishment. After that, there were only minor modernization works: the pergola surrounding the winter spa was renovated and the pool was divided into two different temperature zones. The floor and the stairs of the pools were covered by pietra, and the walls were covered with plastic paint. At this time, two learners’ swimming pools were iso -
lated and an underfloor-heated runway was built between the building and the 50 meter swimming pool. Other minor interventions and cover replacements also took place. In the same year, a double track water slide started its operation as well.
The popularity of one of the youngest baths in Budapest was constantly growing for decades and was accompanied by relevant developments. The last great boost for the bath developments was given by the housing estate constructions in the area finished by the 1980s. The constant development of the bath, associated with the urban developments, got stuck during the transition period, and since then even critical repairs were missed. The bath got into unworthy conditions that was fortunately changed by the Swimming Complex established in the Northern part of the Bath’s area. The late-modernist entrance building was put into a completely new context by the changing of scale due to the new hall. The renewed building still remained a part of the complex as a nostalgic memento for the Dagály era, attached to the complex by a glass corridor like with an umbilical cord.
A fővárosi fürdők 75 éve. Pallas Lap- és Könyvkiadó, Budapest 1988 (Ed. Dr. Béla Beck; written by Dr. Béla Beck, Lajos Hegedűs, József Horváth, Csaba Meskó, and Dr. Endre Rácz)
Budapest Gyógyfürdői és Fürdői. Panoráma, Budapest, 1980 (Ed. Dr. András Vitéz; written by: Dr. Andor Chantel, István Fluck, József Horváth, and Géza Matusek; Publisher in charge: Dr. István Árky)
Budapest fürdői. Pannónia, Budapest 1969 Compiled by the Metropolitan Civil Engineering Company upon the commission and with the assistance of the Metropolitan Bath Directorate (Written by Sándor Csörnyei, József Horváth, Loránd Frőlich, Gergely Szalontai; illustrated by Anna Kerekes)

Fotó: Bujnovszky Tamás
Photo by Tamás Bujnovszky

RENDEZVÉNYTERÜLET
ÉS DAGÁLY STRANDFÜRDŐ
INTEGRÁLT FELÚJÍTÁSA
ADagály Strandfürdő felújításának tervezése során vizsgálni kellett azt, hogy az egyes funkciócsoportok térbeli szempontból hogyan helyezkednek majd el a területen, milyen lesz az egymáshoz való viszonyuk. Továbbá, hogy milyen fizikai és funkcionális kapcsolatban állnak majd a Duna Arénával, ugyanis igény merült fel arra, hogy az Aréna és a Strandfürdő között zárt összekötés jöjjön létre, ami által a téli időszakban is biztosítható a fürdőruhás átjárás közöttük.
Emellett a megbízói igénynek megfelelően a tervezőknek meg kellett oldaniuk, hogy nyáron az Aréna bemelegítőmedence-tere a strand területéről közvetlenül is megközelíthető legyen. Megoldandó
feladatuk volt továbbá a Strandfürdő és az Aréna egységes beléptetési rendszerének megtervezése, mely lehetőséget biztosít a fent leírt átjárások kialakítására, és ezzel széleskörű használatot biztosít a látogatók számára. A felújított és kibővített Strandfürdő főépülete és az új úszóközpont között további épülettömeg is épül majd. A mai korszerű igényeknek megfelelően a teljes létesítménya Strandfürdő régi és új épületei és a strand területe is - akadálymentesített lesz.
utáni állapotban is. (pl. „pillangó” medencék, termálmedencék helye és formája, külső 50 m-es fedetlen medence pozíciója, a Népfürdő utca felőli homlokzat architektúrája, a csatlakozó íves lépcsők és kör alaprajzú kilátóterasz). Továbbá alapvető igény volt megbízói részről, hogy a fürdőépület(ek), a Strandfürdő nyári bejárata és az Arénához való kapcsolódás összefogott építészeti arculatot, egységes utcaképet kapjanak. (Molnár Szilvia)
Az integrált felújítás során megtartandó illetve létrehozandó funkciók:
Alapvető elvárás volt, hogy a meglévő Dagály Strandfürdő egyes régi, a köztudatba bevésődött elemei felismerhetőek legyenek, és ezek a régi elemek valamennyire visszatükröződjenek a felújítás A létesítményfejlesztések alapján:
– Strand funkció
– Party funkció
– Nyári úszásoktatás, táboroztatás
– Úszás
– Fürdő (általános)
– Wellness
– Orvosi-rekreáció
– Gyermekvilág játszópark
– Átközlekedő (uszodaépület és fürdőkomplexum között)
– Főépület (a meglévő épület átalakítása, felújítása, korszerűsítése)
– A főépülethez kapcsolódó termálmedencék (élmény- és ülő) korszerűsítése
– A főépülethez kapcsolódó új épületrész kialakítása
– Újépítésű 25 m-es medence és környezete
– Újépítésű 50 m-es medence és környezete „pillangó” medencék és a környezetük
– A strand területén teljes körű kertépítészeti megújítás
– A strand területét és a Duna Arénát összekötő folyosó
INTEGRATED RENOVATION OF THE “FINA MARKET” EVENT SPACE AND DAGÁLY BATH
In planning the renovation of Dagály Bath, we had to consider, from a spatial aspect, how the individual groups of functions will be located in the area, and how they will be related to one another. In addition, their future physical and functional connections to the Danube Arena (the newly built swimming complex) had to be taken into account, because a demand has emerged that a closed passageway should be built between the Arena and the Bath, allowing access between the buildings in swimming suit in the winter.
In addition, in accordance with the client’s requirements, designers had to find a solution to make the Arena’s warm-up pool area directly accessible from the Bath in the summer. More-
over, preparing the designs of a single access control system for the Bath and the Arena was a task to resolve, which provided an opportunity to create the above-mentioned passageways, and thus enable a wide range of use for visitors. An additional mass of buildings will also be built between the main building of the renovated and enlarged Bath and the new swimming complex. To meet modern needs, the entire establishment including both the old and new buildings of the Bath and the open-air swimming pool area will be accessible for people with reduced mobility.
It was a fundamental expectation that certain old elements of the current Dagály Bath, which are well-known to the general public, should be recog-
Functions to be retained or created in the course of this integrated reconstruction project:
– Outdoor swimming pool function
– Party venue function
– Swimming lessons and camps in the summer
– Swimming function
– Spa (general)
– Wellness
– Therapeutic-recreational function
– “Gyermekvilág” (Children’s World) aquatic park
– Passage (between the new swimming complex and the Bath)
nisable, and that these old elements should somewhat be reflected even after the renovation (e.g. “butterfly-shaped” pools, location and shape of thermal pools, position of the outdoor 50-meter uncovered pool, architecture of the façade facing Népfürdő Street, the curved stairs as well as the circular panorama terrace). Furthermore, it was a basic requirement of the client that the buildings housing the bathing and swimming facilities, the summer entrance to the Bath as well as the passageway connecting it to the Arena should have a single architectural image and the façades of the new buildings should be in harmony with those of the old ones.
(Szilvia Molnár)
As regards facility developments:
– Main building (alteration, renovation and modernisation of the existing building)
– Modernisation of thermal pools (recreational pools) connected to the main building
– Development of a new building part connected to the main building
– Newly built 25-meter pool and its surroundings
– Newly built 50-meter pool and its surroundings
– “Butterfly-shaped” pools and their surroundings
– Complete landscaping of the outdoor swimming pool area
– Passageway connecting the outdoor swimming pool area and Danube Arena


„
Alapvető elvárás volt, hogy a meglévő Dagály Strandfürdő egyes régi, a köztudatba bevésődött elemei felismerhetőek legyenek ”
„Vízhatlan” medencék és sporttechnológia a Duna Arénában
A FINA nemzetközi szabványainak és a megbízói követelményeknek megfelelve nagy pontossággal kivitelezett szerkezetű (a vasbeton szerkezettel szemben elvárt síkpontosság az elméleti síkhoz képest +/-10 mm), speciális, TiO2 (titán-dioxid) gyári bevonatú (így zsírtaszító, fertőtlenítő tulajdonsággal bíró) csempével burkolt medencék épültek a Duna Arénában. Közel 40 fajta burkolati formaelem került felhasználásra.
Készült egy 50 méteres, mozgatható végfallal szerelt versenymedence (szerkezeti mérete: 51,53 x 25,02 x 3,00 m), egy műugró medence (szerkezeti mérete: 25,00 x 21,00 x 5,00 m), egy mozgatható végfallal és fenéklemezzel szerelt bemelegítőmedence (szerkezeti mérete: 51,53 x 25,02 x 2,20 m), valamint egy tanmedence (szerkezeti mérete: 12,50 x 8,00 x 0,80 m) és egy jakuzzi (20 fő befogadására alkalmas).
Ezek a medencék „vízhatlan” szerkezetként készültek. Ennek lényege, hogy a medencék vasbeton szerkezetének „erős” vízzáró képessége van. Ez a speciális betonszerkezet arra hivatott, hogy az elvárt 50 évnyi használatot biztosítsa, mivel a burkolat kisebb élettartalmú, mint a beton, ezért a betonnak bírni kell azt, hogy a burkolatot többször cseréljék.
A technológia legfontosabb része a betonkeverék, melyhez kristályosodásra képes vízzáró adalékanyag, high grade szál és zsugorodás-kompenzáló adalékszer lett keverve. A falak a sarkokból indulva 7,5 m hosszú betonozási ütemekben készültek, az egyes ütemek között 72-96 óra technológia szünettel.
A teljesség igénye nélkül néhány szó a medencékhez kapcsolódó sporttechnológiai részletekről. A versenymedence alkalmas FINA vébé úszásra, FINA női és férfi vízilab-
dajátékokra, szinkronúszásra és rövid pályás profi úszásra. A mozgatható végfallal variálható medencehosszakat tudunk elérni – 33 m; 30 m; 25 m. A medence komplett Omega időzítő berendezésekkel (szerelve) rendelkezik. Déli oldalán 11 db, 25 x 25 cm-es méretű betekintő ablak található, a keleti oldalon 1 db. Ezek az ún. Eindhooveni sportdiagnosztikai rendszer részei, ami egy speciálisan a profi sportra kifejlesztett mozgáselemző rendszer, mely az edzőknek és a versenyzőknek egyaránt segít kielemezni a legkisebb mozgásbeli hibát is. A 14 db high-speed kamerával (12 db statikus, vízszint alatt 61 cm-rel, 2 db a medencén kívül) figyeli az úszókat, és azonnal elemezhető felvételt készít róluk. A medencében oldalanként 17 db lámpát találunk, valamint az északi oldalon 3 db, a déli oldalon 3 db víz alatti hangszórót és délen 1 db víz alatti mikrofont.
A műugró medence alkalmas profi műugráshoz, 25 m-es úszáshoz, edzéshez, gyakorláshoz, búvárkodáshoz, szinkronúszáshoz, vízilabdaedzéshez. Az északi és a déli oldalán 14-14 db lámpát építettek be. Speciális berendezéseihez tartoznak: az edzések idején a „becsapódásokat tompító” habosító berendezés és a vízfodrozó berendezések.
A műugrótornyot profi műugrásra alakították ki (ugrási pozíciók 1 m, 3 m, 5 m; 7,5 m; 10 m), a FINA szabványoknak megfelelő platformokkal, Duraflex ugródeszkákkal. A torony felülete műugrásra specializált, Threadmaster burkolattal ellátott. A műugrók számára az ugrótorony alatt egy műugró melegedőmedencét is kialakítottak.
A mozgatható végfalú (a kívánt hosszra állítható 33 m, 30 m, 25 m) és mozgatható fenéklemezzel (mozgatási magasság: -2,20 métertől +0,02 méterig kialakított; a +0,02 m
lehetővé teszi, hogy a mozgatható fenéklemezen szárazedzést tartsanak) kialakított bemelegítőmedence alkalmas FINA versenyek megrendezésére, úszáshoz, FINA női és férfi vízilabdajátékhoz, szinkronúszáshoz, gyerek és senior úsztatáshoz, vízi tornához. A medence rendelkezik: FINA kompatibilis OMEGA időzítő és időmérő berendezésekkel, OSB 11 FINA startblokkokkal, Omega beütőpanellel, lámpákkal, mikrofonokkal (oldalanként 17 db), víz alatti mobil rendszerű hangosítással, AngelEye (fulladásfigyelő) kamerarendszerrel (32 kamera), mely a víz alatt pásztázza az úszókat. A rendszer bármilyen élettel nem összeegyeztethető mozgást, süllyedést, mozdulatlanságot észlel, azonnal riaszt, jelet küld az úszómesteri helységben elhelyezett monitorra, illetve az úszómestereknél lévő, a rendszerhez kifejlesztett mobil kijelzőre. Az életmentő számára a kijelzőn pontos helyet mutat a rendszer, és pozícionált beavatkozást tesz lehetővé.
A 32 fokos vízhőmérsékletű tanmedence alkalmas gyermek úszásoktatásra. Lépcsőkorlátait kivehető kivitelben alakították ki, a medencepereménél a gyerekek kézméretéhez igazított kapaszkodót láthatunk. A feszített perembe fúrt hüvelyeknek köszönhetően különböző pályákat alakíthatnak ki a gyermekek számára.
Az egyedi, a MOME pályázatának nyertesei által tervezett burkolatú jakuzzi a profi sportolók és a lakosság számára egyaránt alkalmas lazításra. A jacuzzi tórusz formáját kézzel formált üvegmozaikból készítették, egy szem üvegmozaik 1,00 x 1,00 cm. A medence jakuzzi-befúvókkal kialakított, hátmasszázsra alkalmas kivitelű. (Molnár Szilvia)
“Waterproof” pools and sports technology at Danube Arena
In compliance with the international standards of FINA and the client requirements, pools with high-precision structure(with an expected planar accuracy of +/- 10 mm of thereinforcedconcrete structure relative to atheoretical plane), and special TiO2 (titanium dioxide) factory-coated (hence grease-repellent and disinfectant) tile cladding were constructed at Danube Arena. Almost 40 types of cladding forms were used.
A 50 m competition pool tank with movable end-wall was made (structural dimensions: 51.53 x 25.02 x 3.00 m), together with a diving pool (structural dimensions: 25.00 x 21.00 x 5.00 m), a warm-up pool tank with movable end-wall and bottom plate (structural dimensions: 51.53 x 25.02 x 2.20 m), a learning pool (structural dimensions: 12.50 x 8.00 x 0.80 m) and a Jacuzzi (capacity: 20 persons).
The above pool tanks were realised as “waterproof” structures. This means, essentially, that their reinforced concrete structure has a “strong” water-proofing capability. This special concrete structure is to ensure the expected 50-year lifetime of the pool structure: the lifetime of the cladding is shorter than that of the concrete, so the latter should endure several cladding replacements.
The most important part of the technology is the concrete mix comprising a crystallizing water-proofing additive, a high-grade fibreand shrinking-compensating additive. The walls themselves were made in concrete placement steps of 7.5 m starting from the corners, with 72-96-hour technological breaks between the phases.
Let us mention here some sports technological details associated with the pool tanks. The competition pool is suitable for FINA WC
swimming, FINA women’s and men’s water polo games, synchronised swimming and short track pro swimming. The adjustable end walls provide for variable pool lengths of 33 m, 30 m and 25 m, respectively. The pool is equipped with complete Omega timing devices (assembled). There are 11 underwater viewing windows of 25 x 25 cm on the southern side and 1 on the eastern side. These are parts of the so-called Eindhoven sports diagnostic system, a movement analysis system designed specifically for professional sports activities and helping the coach and the athletes analyse even the tiniest errors. The system has 14 highspeed cameras (12 static ones, 61 cm under water level, and 2 outside the pool tank) to monitor the swimmers and display promptly analysable pictures of them. There are 17 lamps on each side of the pool, and 3-3 underwater loudspeakers on the northern and the southern side, respectively, and one underwater microphone on the southern side.
The diving pool is suitable for pro diving, for 25 m swimming, training, practising, scuba diving, synchronised swimming and water polo training. There are 14-14 lamps on the northern and the southern side. The special devices installed there include a foaming device and air safety cushion spargers to cushion the diver’s impact in the water during training.
The diving tower was designed for professional diving (diving positions: 1 m, 3 m, 5 m; 7.5 m; 10 m), with platforms meeting the FINA standard requirements and having Duraflex diving boards. The tower surface has Threadmaster covering specialised for diving. A diving warm-up pool has also been constructed for the divers under the diving tower.
The warm-up pool with movable end-wall
(adjustable according to the desired length at 33 m, 30 m, 25 m)and with adjustable bottom plank (adjustable between the heights of -2.20 m to 0.02 m; where +0.02 m makes it possible to have dry training on the adjustable bottom plate) is suitable for staging FINA competitions, for swimming, FINA women’s and men’s water polo games, synchronised swimming, child and senior training, water gymnastics. The pool is provided with FINA-compatible OMEGA timing and time measuring systems, OSB 11 FINA start blocks, Omega touchpads, lamps, microphones (17 by side), underwater mobile sound systems,and an Angel-Eye (anti-drowning) camera system (of 32 cameras) scanning the swimmers underwater. The system immediately sends alarm signals to the monitor installed in the lifeguard room and to the mobile displays carried by the lifeguards upon detecting any strange movement, sinking, lack of movement. The lifeguard is shown the exact location of the incident and that provides for positioned interference.
The 32 degree Celsius learning pool is suitable for swimming lessons for children. The handrails of the stairs can be taken out, and the pool tank edge features a handrail adjusted to the children’s palm size. The drilled sleeves in the overflow system provide for anchoring lane lines for children.
The Jacuzzi with its unique cladding designed by the winners of the relevant MOME tender is suitable for relaxation for professional athletes and also for community users. Its torus form was made of hand-made glass mosaic pieces of 1.00 x 1.00 cm. The pool has Jacuzzi blowers and is suitable for back massage. (Szilvia Molnár)

Fotó: Bujnovszky Tamás
Photo by Tamás Bujnovszky

VILÁGBAJNOKSÁG WORLD AQUATICS CHAMPIONSHIPS 2017

Fotó: Jaksa Bálint
Photo by Bálint Jaksa
Fotó / Photo by : BUJNOVSZKY TAMÁS
„MEGLEPETT
A MARKET PROFIZMUSA"
A környezetével harmóniában lévő homlokzatot tartja a Duna Aréna különlegességének Joaquim Pujol Simón, a FINA létesítményekért felelős bizottságának vezetője, akinek a pályafutása számos ponton kapcsolódik a magyarokhoz.
Octogon: Mikor találkozott először ezzel a projekttel?
Még 2013 elején, amikor Budapest még csak pályázó volt a 2021-es vébére. Találkoztam a Magyar Úszószövetség akkori elnökével, Gyárfás Tamással, valamint mérnökökkel, és számos változtatást végeztünk a kezdeti terveken. Úgy készültünk, hogy a 2019-es junior vébére kell majd elkészülnünk, de mivel Mexikó visszalépett a 2017-es vébétől, Magyarország viszont vállalta a rendezést, két évvel hamarabb be kellett fejeznünk az uszodát. A helyi szövetség eltökéltsége mellett kulcsfontosságú volt, hogy a magyar kormány, és különösen Orbán Viktor miniszterelnök azonnal kiállt a rendezés mellett, így biztosak lehettünk a sikerben.
Rendkívül rövid határidőkkel kellett dolgozniuk.
Igen, két éve mondta vissza Mexikó a rendezést, és akkor itt még semmi sem volt (mutat körbe az uszodában)
Milyen feladatot látott el az építési folyamat során?
Alaposan bevontak a koncepció formálásába, elsősorban az olyan speciális területekre kellett figyelnem, mint a vegyeszóna, a sajtószoba, az öltözők, a FINAirodák vagy a különböző dedikált helyek a lelátón. Ehhez hosszas, alapos megbeszéléseket kellett folytatnunk a helyi építészekkel, mígnem a koncepció mindenki - a tulajdonos, a helyi szövetség és a FINA számára megfelelő nem lett. Ezek után elkezdődött az építkezés, én pedig szinte havonta ellátogattam ide. Továbbá számos videokonferenciát tartottunk, e-mailt váltottunk, folyamatosan figyelemmel kísértem a munkálatok alakulását.
Milyen speciális nemzetközi szabályoknak kell megfelelnie egy vébé megrendezésére alkalmas uszodának?
Ezek a szabályok a versenyzés körülményeit írják le, például a sportolók bemelegítésének tereit, de mérjük a pályák hosszát, a víz állapotát, az időmérő berendezést, vagyis mindent, ami a versenyzéssel kapcsolatos. Fontosak a méretek is, például a műugrásnál az ugródeszkák magassága, az állványok medencétől,
„A szabályok a versenyzés körülményeit írják le ”


illetve az egymástól való távolsága. Mindennek összhangban kell lennie a FINA-létesítményekre vonatkozó szabályokkal, és mi mindent felügyeltük és ellenőrizzük is. Miután az úszásnál századmásodpercek döntenek arany- és ezüstéremről, különösen fontos, hogy a medence minden egyes pályája tökéletesen egyforma hosszúságú legyen. A rövidebb távokon szabad szemmel majdhogynem láthatatlan a különbség az első öt-hat helyezett között.
Mégis biztosan van, amiben más ez az uszoda, mint a többi hasonló a világban. Egyrészt különleges maga az épület látványa, egyértelműen ikonikus rész, tájékozódási pont Budapesten. Másrészt, ha összegezném a projekttel eltöltött két évemet, az építkezés idejét és minőségét emelném ki. A kezdetekkor szinte megjósolhatatlan volt, milyen
lesz a végeredmény, ha két év jut egy ilyen nívójú uszoda megtervezésére és felépítésére. A küldetés sikerrel járt, ami hatalmas teljesítmény.
Van személyes kedvenc része az épületen?
Azt hiszem, a homlokzatról sokat fognak beszélni. Jól illeszkedik a tágabb környezetéhez, a hullámok, a színek mind hivatkoznak a Dunára.
Számos uszodán dolgozott az elmúlt években
Dubajtól kezdve Rosztovon át Tokióig. Mennyire tér el a munka a különböző országokban?
Teljesen, mert valamilyen módon mindenhol jelen van az ország karaktere. Engem meglepett, hogy a Market milyen alapos és profi munkát végzett az építkezés minden fázisában. Sokat számít, hogy a munkafolyamatok végig egy kézben vannak, mert például
Spanyolország bizonyos részein a tervezéskor nem tudni, kik vesznek majd részt a kivitelezésben. Előfordul, hogy akik majd az épületen dolgoznak, a tervezés idején éppen a Földközi-tengeren hánykolódnak.
Ismeri Hajós Alfréd történetét? Önhöz hasonlóan úszó volt, akiből építész lett, többek között Budapest egyik meghatározó uszodáját tervezte. Hallottam róla, igen. Érdekes módon éppen két napja olvastam egy brit tanulmányt olyan építészekről, akik korábban olimpikonok voltak. Huszonegy magyar építészt soroltak fel, miközben brit mindöszsze egy volt, svéd kettő, spanyol öt. De nem csak az építészen és az úszáson keresztül vagyunk kapcsolatban, egy ideig vízilabdáztam is, és két magyar edzőm is volt, talán találkozom is velük majd a nyári vébén. (Ujlaky-Gazdag István)



"I WAS SURPRISED AT MARKET’S PROFESSIONALISM"
According to Joaquim Pujol Simón, FINA chief architect, whose career has multiple connections with Hungary and Hungarian people, the façade harmonizing with its environment is the most remarkable feature of Danube Arena.
Octogon: When did you first encounter the project?
It was at the beginning of 2013 when it was no more than an application for the World Aquatics Championships 2021. We then sat down together with thenpresident of the Hungarian Swimming Association, Tamás Gyárfás and several engineers and made significant changes to the original plans. We planned to finish the work until the World Junior Swimming Championships in 2019 but then Mexico withdrew from hosting World Championships 2017 and Hungary took the opportunity, so we had to complete
the pool two years earlier. Beside the resolve of the Association it was crucial that the Hungarian Government, and particularly Viktor Orbán, Prime Minister of Hungary came out immediately in support of the idea thus we could be assured to succeed.
You had to deal with terribly short deadlines. Yes, Mexico declined to host the championships two years ago, and at that time, here was nothing (gestures around in the pool)
”The standards describe competition circumstances ”

What was your role in the development process?
I contributed much to the concept creation and I had to focus mainly on special areas like mixed zone, press room, changing rooms, FINA offices and dedicated places on the stands. Long and thorough negotiations were conducted with the local architects to reach an appropriate concept for everyone, including the investor, the national association, and FINA. The construction could only start after that and from that point on I came here nearly every month. In addition, we had numerous video conferences and continuous e-mail correspondence so I could always keep track of the construction.
What specific international standards are to be respected when building an aquatic complex apt to host a world championship?
The standards describe competition circumstances including warm-up areas, the length of the courses, water conditions, and timing equipment – virtually everything that has a connection with competitions. Dimensional parameters are also very important, for example the height of the diving towers, the distance between a tower and the pool and between two towers. Everything must comply with FINA facility rules what we monitored and controlled throughout the project. Provided that a hundredth of a second can decide gold and silver medals, it is particularly important to make
each and every course of perfectly the same length. In short-distance swimming the edge between the first five or six swimmers is almost invisible.
Still this swimming facility must have some differences as compared to other similar buildings in the world.
It certainly has. Firstly the look of the building – it has an undoubtedly iconic appearance that provides a point of orientation within the city of Budapest. Secondly, if I were to summarize my two years with this project, I would highlight construction time and quality as noticeable features. In the beginning, it seemed unpredictable regarding the outcome if we had just two years to design and build this swimming facility of very high standards. Our mission nevertheless succeeded; that is a huge achievement.
What are your favourite features of the building?
I think the façade will be talked about for long. It fits well in its wider surroundings with its waves and colours alluding to the Danube.
You worked on several swimming pool projects around the world in recent years including Dubai, Rostov and Tokyo. How work is different in different countries?
It is completely different being always defined by

the character of the country in a way. I was surprised to see that Market made such a thorough job in all the stages of the construction. It means a lot if all the processes are in one hand throughout the project, unlike the way it goes in certain parts of Spain for example where at the stage of design you don’t know who will implement your plans. Sometimes those who may construct the future building are rocking on the Mediterranean Sea at the time of the design.
Have you heard about Alfréd Hajós? He was once a swimmer, like you were, then became an architect. He built, among other things, one of the major swimming pools characterizing Budapest.
Yes, I heard about him. Interestingly, just two days ago I read a British paper on architects who were once Olympic athletes. Twenty-one Hungarian architects were mentioned but only one British, two Swedish, and five Spanish. But you, Hungarians and I are not just connected via the sport of swimming; I also played water polo for a while and had two Hungarian trainers. I hope to meet them on the World Championships this summer. (István Ujlaky-Gazdag)
KÉZFOGÁSTÓL KÉZFOGÁSIG
Az úszósport történetében példátlan gyorsasággal született meg a döntés a budapesti vizes vébé időpontjának előrébbhozásáról. Gyárfás Tamás, a FINA (Nemzetközi Úszószövetség) alelnöke elvegyült a munkások között, és lenyűgözte a rend és a szervezettség, amit tapasztalt.
Fotó: Molnár Péter
Photo by Péter Molnár

„87 év elteltével itt az új fellegvár ”

A molino grafikáját a MOME hallgatói tervezték
Billboard design by students of MOME
Octogon: A Duna Aréna egyik különlegessége, hogy rendkívül szűk határidők mellett épült meg. Mexikó 2015 februárjában lépett vissza a rendezéstől, mekkora merészséget jelentett akkor beugróként elvállalni a feladatot? Onnan indult a történet, hogy 2013-ban elnyertük a 2021. évi vizes világbajnokság rendezési jogát. Aztán 2015 februárjában a 2017. évi házigazda, a mexikói Guadalajara váratlanul visszalépett, én pedig „lazán” azt nyilatkoztam, hogy akár a helyükbe is léphetnénk. Másnap reggel életemben először, és alighanem utoljára telefonon felhívott Orbán Viktor. A miniszterelnök megkérdezte tőlem: „Ez komoly?”. Köpni-nyelni nem tudtam, de mi mást mondhattam, mint hogy „Persze”. Innen felgyorsultak az események: felhívtam Cornel Marculescut, a FINA ügyvezető igazgatóját, aki éppen a 2019. évi vébé rendezőjével Dél-Koreával tárgyalt Gwangjuban. Marculescut az vezérelte, hogy aki már elnyert egy rendezést, azt már nem kell pályáztatni. Tolmácsoltam neki, hogy a magyar miniszterelnök nyitott a korábbi rendezésre. A FINA általános igazgatója azonnal gépre szállt, és másnap már a Parlamentben gyors egymásutánban kétszer is kezdett fogott Orbán Viktorral. Először a találkozásukkor, alig két órával később pedig, amikor megszületett a megállapodás. A kettő között Marculescuval részt vehettünk a kormányülésen, amelyen valamennyi érintett tárca miniszterét megkérdezte, fel tudunk-e készülni két év alatt. Nekem különösen emlékezetes maradt az uszoda építéséért felelős dr. Fürjes Balázs igenje: mintha egy kicsit vékonyabban szólt volna a hangja, és nekem úgy tűnt, hogy remegett is.
Számos uszodát ismer világszerte. A Duna Arénának mi lesz a különlegessége a többihez képest?
Mindenekelőtt rekordidő alatt épült, de ez nem látszik meg rajta. Most már bevallom, reszkettem, hogy a sietség miatt az állandó helyett csak ideiglenes uszoda épül, de szerencsére nem így történt. Ez a komplexum örök. Az építtetők mindent átgondoltak, 12 ezresre méretezték, de a vébé után csak hatezres lesz, a póttribünöknek biztosított részt visszabontják, de amikor indokolt lesz, azok újfent felállíthatók lesznek. Ezzel a létesítménynyel lehet játszani, akár egy harmonikával. Még a kezdet kezdetén felmerült, hogy Kőbányán épül, ami nagy kár lett volna. A Duna partján a tetőétteremből egyedi látvány tárul elénk, és ezen a helyszínen valódi ékköve a városnak ez az épület.
Melyiket tartja fontosabbnak: hogy a sportolók kapnak egy olimpiai nívójú létesítményt, vagy azt, hogy a nagyközönség is hozzáfér majd az új, profi uszodához?
Kérem, a FINA vezetőknek ne mondják, de számomra mindenkor sokkal fontosabb volt az uszoda, mint maga a világbajnokság. Más kérdés, hogy a vébé híján nem épült volna fel. Ezt a létesítményt megérdemelte a magyar úszás, a vízilabda, de ugyanúgy a többi szakág is. Sokszor az előzetes bizalom alapján készülnek sportpályák, ezt viszont a vizes sportágak hazai legjobbjai kiérdemelték. Egyedi érték, hogy egy nagy hagyományú fürdő mellett állították fel, ez így egyben maga a vízi paradicsom. A gyógyvizű strand, a nyitott és fedett medencék versenyre kelhetnek bármely rekreációs központtal, a Duna Aréna tehát a honi úszás szerelmesei mellett egyedi lehetőségeket kínál a turisták számára is, igencsak érdemes lenne a tőszomszédságában egy szállodán elgondolkozni, méltó parkolókat építeni.
Ezt az uszodát, illetve a vizes vébét tartja a sportvezetői pályája csúcsának? Inkább a Market Építő Zrt. csúcsának tartom. Még az elején kaptam egy sisakot, és egy világoskék láthatósági mellényt, amit - hogy is fogalmazzak -, eltulajdonítottam. Tettem ezt azért, hogy a hivatalos látogatásokon kívül rendszeresen belopózhassam az építési területre, meggyőződhessek arról, hogyan zajlanak a munkák. Elvegyültem a munkások között, mint Mátyás király. Amíg nem lett készen, nem mondtam semmit, de most már elárulhatom: lenyűgözött az a szervezettség, amit tapasztaltam. Hiába volt odakint minden csupa sár, bent állandóan tisztaság volt, sehol egy eldobott cetli, mindig minden a helyén állt. Szinte hihetetlen, de alig másfél éve még az alapkövet tették le, most pedig ott szelik a versenyzők a habokat. A Hajós Alfréd uszoda 1930-ban épült, és a mai napig bölcsője a pólós- és úszósikereknek. És tessék, 87 év elteltével itt az új fellegvár. Már gyűlnek a nagy programjai, amikor mindenki rá figyel: az idei felnőtt vébét követi a masters, majd 2019-ben a junior világbajnokság, 2020-ban pedig a felnőtt Európabajnokság. Ha ebben nekem is csak egy vízcseppnyi részem volt, akkor talán már nem éltem hiába. (István Ujlaky-Gazdag)
HANDSHAKE TO HANDSHAKE
A decision had been made on advancing the date of World Aquatics Championships in Budapest with unprecedented quickness in the history of swimming. Mingling with construction workers, Tamás Gyárfás, Vice President of FINA (International Swimming Federation), was fascinated by the high levels of order and co-ordination seen.
Octogon: A peculiarity of Danube Arena, it was erected within an extremely narrow time frame. After the withdrawal of Mexico from hosting in February 2015, was it not a risky venture for Budapest to volunteer as deputy?
The story begins back in 2013 when we were awarded the right to host the 2021 World Aquatics Championships. Then in February 2015, Guadalajara, Mexico, winner of the 2017 event, suddenly backed out, and I casually dropped a public remark saying that we may have as well taken their place. The following morning, for the first time, and very likely the last time, in my life I was given a call by Prime Minister Viktor Orbán, asking me, “Are you serious about it?” I was at a loss for words, but what else could I say? I answered, “Sure thing.” At that point, events started to progress at a higher speed. I gave a call to Cornel Marculescu, FINA Executive Director, just carrying on talks with South Korea, host of the 2019 World Championships, in Gwangju. Marculescu held that whoever had already been awarded a right to host an event would not have to bid again. I let him know that the Hungarian Prime Minister was open to an advanced hosting by Budapest. The Executive Director took a plane right away, and as early as the following day he shook hands with Viktor Orbán twice in rapid succession: firstly on meeting him, and secondly when the two of them came to an agreement. In the meanwhile, Marculescu and I were allowed to attend a government session, him asking the minister of each department concerned whether Budapest could get ready in two years. Particularly memorable for me is a “yes” said by Dr. Balázs Fürjes, Government Commissioner in charge of the construction of the swimming pool. He was uttering the word in an unusually highpitched, trembling voice, or so it seemed to me.
You are familiar with numerous swimming pools all over the world. In what respects do you
”
87 years after we have new citadel of water sports ”
think Danube Arena is extraordinary as compared to its counterparts?
First of all, it was completed in record time but no one could tell it by its quality. Now I can admit that I was trembling with fear that due to the rush there would only be built a temporary pool instead of a permanent one, but luckily my fears didn’t come true. This is a perennial complex. The developers thought for everything – they designed it to host 12 000 people that will be reduced to 6 000 after the Championships by dismantling the supplementary grandstands, ready to be raised again when needed. You can play freely with this facility, opening and compressing it like an accordion. In the very beginning, there was a suggestion to build it in Kőbánya but that would have been a pity to do so. The Danube and the riverside offer an unmatched view from the rooftop restaurant and at this site the building can be a real gemstone of the city.
Which one is more important for you: the chance that the athletes got an Olympic level facility or the access of the general public to a new, professional swimming pool?
Please don’t tell FINA leaders but for me the creation of the swimming pool has always been more important than the World Championships themselves – that would have never been built without the Championships but that’s another question. Hungarian swimming, water polo and the other water sports really deserved this complex. Creation of sport facilities is often based on trust but this one was clearly earned by the bests of Hungarian water sports in advance. There’s also a unique value to be mentioned: It was raised next to a bath of great tradition and the two establishments together form a true water paradise. The thermal spa combined with the indoor and outdoor pools can compete with any recreation centre in the world Danube Arena hence offers an individual
opportunity not just for the enthusiasts of Hungarian swimming but also for tourists from around the globe. It might be worth considering building a hotel and appropriate parking lots next to it.
Do you consider this swimming pool and the World Aquatics Championships to be the summit of your career as a sports leader?
I rather think it’s a summit for Market Építő Zrt. When the construction started I received a helmet and a light blue safety vest that I, how should I put it, appropriated. I did that to be able to steal in regularly to the construction grounds beyond our official visits and make sure that work goes on well. I mingled with the construction workers just like King Matthias mingled with the people. I said nothing until the completion but now I can tell you that I was amazed by the organized work that I saw there. Despite the mud covering everything outdoors, inside there was cleanliness all the time, not even a scrap of paper thrown on the ground, everything well arranged. It is almost incredible that the foundation stone was put down just two years ago and now the water is splashed by competitors in the pools. The Alfréd Hajós Swimming Pool was built in 1930 and a great part of our water polo and swimming successes still originate from there. And here you are, 87 years after, we have a new citadel of water sports. Its calendar contains more and more big events attracting everybody’s attention to the complex: the adult World Championships will be followed by the Masters, and then we’ll have the World Junior Championships in 2019 and the adult European Championships in 2020. If I contributed to it at least to the extent of a water drop, then I did not live in vain.
(István Ujlaky-Gazdag)

„ A DUNA ARÉNA 40-50 ÉVIG ÉKKÖVE LESZ A MAGYAR SPORTNAK"
Az úszó-világbajnokságra épített Duna Aréna méltó a világ egyik legnagyobb sporteseményéhez, nyilatkozta Bienerth Gusztáv, a Magyar Úszó Szövetség elnöke. Akinek elsőre leginkább az a vízfal tetszett az uszodában, amely különféle szövegeket képes megjeleníteni, és úgy érzi, 40 éves álma vált valóra az úszósportnak az új létesítménnyel.
Octogon: Ön Gyárfás Tamás távozása után lett az úszószövetség elnöke. Jelentett bármi nehézséget, hogy menet közben kapcsolódott be a Duna Aréna építéséről szóló projektbe?
Nem okozott nehézséget, inkább egy fantasztikus lehetőségnek éreztem, és büszkeséggel tölt el, hogy egy csodálatos úszópalota áll a rendelkezésünkre. Kis túlzással ezzel egy negyvenéves álma valósult meg a magyar úszósportnak, számomra pedig kivételes megtiszteltetés volt, hogy ilyen módon részese lehettem a folyamatnak.
Milyen volt elnökként először körbejárni az uszodát?
A megválasztásom után egy héten belül pincétől a padlásig bemutatták az épületet, minden részletre kiterjedő tájékoztatást kaptam arról, hogy állnak az előkészületek és hol tart az építkezés. A bejárást Hosszú Katinkával együtt ejtettem meg, és nagyon jó érzés volt, hogy a világ legjobb női úszója, aki nagyon sok uszodát látott már a világban, azt mondta, világszínvonalú a Duna Aréna. Budapest eredetileg 2021-ben rendezte volna meg a világbajnokságot, aztán beugróként lett a 2017-es házigazda, mekkora hátrányt jelentett, hogy nagyon rövid volt a határidő? Nem szeretem a gyors építkezéseket, mindennek – a tervezésnek, az előkészítésnek, az építésnek – meg kell adni a szükséges időt. A Duna Arénában elkészült egy 50 méteres verseny-, valamint egy ugyanekkora bemelegítőmedence is, és egyöntetű vélemény, hogy az infrastruktúra, amit terveztek, az a világon ma a legkorszerűbb. Nagyon büszke vagyok arra, hogy egy olyan csodálatos építmény készült el, amely az értékét a világbajnokság után is megtartja, és 40-50 évig ékköve lesz a magyar sportnak.
Van esetleg személyes kedvence az épülettel kapcsolatban?
Az a vízfal, amely különféle szövegeket tud megjeleníteni, ilyet még nem láttam, és nagyon jellemző arra a nyitottságra, minősége, innovatív készségre,

Fotó: Molnár Péter
Photo by Péter Molnár

„Méltó a világ egyik legnagyobb sporteseményéhez ”
amit a Market képvisel. De összességében nem könynyű egyetlen dolgot kiemelni, mivel nem csak a látvány tetszetős, hanem az uszodát körülvevő környezet, és a környéken történt fejlesztések is, aminek része a sétány, a bicikliút vagy az árvízi védmű. Azt hiszem, nyugodtan mondhatjuk, hogy ez így együtt méltó a világ egyik legnagyobb sporteseményéhez.
Csapatsportok esetében szokták mondani, hogy egy-egy nagy magyar siker után mindig sokkal több gyerek dönt úgy, hogy kipróbálja magát a sportágban. Az idei úszóvébének lehet egy olyan hatása, hogy a gyerekek Cseh Lászlók, Gyurta Dánielek vagy Hosszú Katinkák szeretnének majd lenni?
Nagyon izgalmas programok zajlanak jelenleg is, amelyeknek az a céljuk, hogy minél több gyerek tanuljon meg úszni. Szerencsére ehhez most már
az infrastruktúra is adott, országszerte tanmedencék és versenymedencék épültek, és erre jön még a világbajnokság, amit nemcsak az ország, hanem az egész világ figyelemmel kísér majd. Ikonok és példaképek kerülnek majd reflektorfénybe, és a vébé várhatóan olyan lendületet ad majd, ami nagyon pozitív hatással lehet a sportág tömegbázisára.
A legnagyobb kihívás sikerült, az uszoda már áll, de azt azért sejteni lehet, hogy egy világbajnokság folyton ad újabb és újabb feladatot. Mik most a legsürgetőbb feladatok, amik megoldásra várnak?
Valóban, nagy könnyebbség, hogy a Duna Aréna a határidő előtt, a költségkereten belül elkészült, de egy ilyen esemény logisztikája komplex, bonyolult feladat. Biztonság, szállodakapacitás, közlekedés, edzéshelyszínek, ideiglenes létesítmények, hosszú
percekig sorolhatnám azokat a területeket, ahol folyamatosan van tennivaló. A vébé előtti tesztverseny a Budapest-bajnokság lesz június 1-4. között, ott nemcsak az úszók, hanem a közönség is megtapasztalhatja, milyen az uszoda működés közben.
Azt lehetett olvasni, hogy Budapest célja, hogy számokban felülmúlja az elmúlt két világbajnokság, a barcelonai és a kazanyi eredményeit. Mitől lehet a budapesti minden idők legjobb úszóvébéje?
Nem szabad, hogy más legyen az ambíciónk, mint hogy ezt célozzuk meg. Van egy csodálatos arénánk, egy csodálatos városunk, olyan csodálatos ideiglenes helyszíneink, mint a Balaton, és minden adott, a technika, az odafigyelés és a logisztika is, hogy felülmúljuk a korábbi városok teljesítményét. (Dajka Balázs)
"DANUBE ARENA WILL BE THE CROWN JEWEL OF HUNGARIAN SPORTS FOR 40-50 YEARS"
Danube Arena built for the world aquatics championships is worthy of one of the biggest sports events of the world, Hungarian Swimming Association President Gusztáv Bienerth said. On first sight, he liked most the swimming pool water wall that can display various texts, and he feels that the new facility has fulfilled dream of the swimming profession going back 40 years.
Octogon: You became president of the Swimming Association after the departure of Tamás Gyárfás. Did it imply any difficulty that you joined the Danube Arena construction project midway?
It was no problem, I rather felt it was fantastic opportunity, and I am proud we have beautiful swimming palace at our disposal now. With some exaggeration, this is dream of 40 years come true for Hungarian swimming, and it is great honour that I became part of the process this way.
What did it feel like to walk around the aquatics complex as president?
Within week after I was elected, I was shown the building from basement to attic, and I was informed of every detail of the state of completion of the preparations and the building works. I inspected the place in the company of Katinka Hosszú, and it was very good feeling that the best female swimmer of the world who has seen so many pools said Danube Arena was really world-class facility.
Originally, Budapest was to stage the world championships in 2021, but then it became replacement host for 2017. How big disadvantage was the very short deadline?
I do not like fast construction work; everything –design, preparations, building works – should be allocated sufficient time. In Danube Arena, 50 m competition pool and warm-up pool of the same size have been completed, and there is unanimous agreement that the infrastructure designed for that purpose is the most up to date globally today. I am very proud that fantastic building has been completed that will preserve its value also after the world championships and will be the crown jewel of Hungarian sports for 40-50 years.
Is there something that is your personal favourite in the complex?
The water wall that can display various texts –I have never seen anything like that before, and it is very typical of the openness, quality and
innovative skills represented by the Market company. But, all things considered, it is not easy to highlight one single thing: the sight itself is most pleasant, but also the environment surrounding the complex, the developments in the neighbourhood including the promenade, the bike road or the flood protection dike. I think we may say that all that together is worthy of one of the biggest sports events of the world.
It is often said in connection with team sports that after some major Hungarian success, more children decide to test themselves in the given sports discipline. Could this year’s world swimming championships have the effect that children would like to become the László Cseh, Dániel Gyurta or Katinka Hosszú of their generation later on?
There are highly exciting programmes in progress already to make as many children learn to swim as possible. Fortunately, now the infrastructure is also available for that: training pools and competition pools are being built around the country, and there are the world championships in addition to that, that will be monitored not only by the country, but by the whole world. Icons and role models will be put in the limelight, and the world championships is expected to give an impetus having most positive effect on the mass basis of this discipline in sports.
The biggest challenge has been met, the complex is ready, but it is not difficult to guess that the world championships will keep providing ever new tasks. What are the most urgent tasks to be solved now?
Indeed, it is an enormous relief that Danube Arena had been completed before the deadline, within the budget, but the logistic of such an event is most complex and sophisticated. Security, hotel capacity, traffic, training sites, temporary facilities – I could spend long minutes enumerating the areas where much is to be done yet. The test competition before the world championships is the Budapest Championships on 1-4 June,

”Worthy of one of the biggest sports events of the world ”
where swimmers and the public can experience what the complex is like when it is in operation. We could read that Budapest aims at surpassing the numerical results of the previous two world championships, those in Barcelona and Kazan. What could make the Budapest event the best world swimming championships ever? We must not have any other ambition than that. We have beautiful arena, beautiful city and such beautiful temporary sites as Lake Balaton, and everything is there, technology, focus of attention and logistics, to surpass the performance of the previous host cities.
(Balázs Dajka)



„TERMÉSZETI ARCHITEKTÚRÁT KELLETT LÉTREHOZNI”

A Duna Aréna tervezésének változásairól, kihívásairól, illetve az épület számukra legizgalmasabb részleteiről feltett kérdéseinkre Ferencz Marcel DLA a ház szerző tervezője, a NAPUR architect ügyvezetője és Varga Béla szerzőtárs, a generáltervező Tecton Kft. ügyvezetője válaszolt.
Fotó: BUJNOVSZKY TAMÁS
Fotó: Végel Dániel
Photo by Dániel Végel

Octogon: Mi volt a fő koncepció az épület tervezésekor?
FERENCZ MARCEL: Egy ekkora épület európai szinten is ritkaság; sok minden szükséges ahhoz, hogy egy ilyen ház megvalósulhasson. Az építészeti vízió csak az első lépés, de még az is több részből áll. Egyrészt társadalmi akarat, illetve a helyszínre adott döntés kell a létrejöttéhez, mert a leginkább ez befolyásolja a tervet – ennek is különböző stratégiai szempontjai vannak. Másrészt van egy tervezési programja, amit be kell vasalni az épületen. A négyéves ciklusból kettőt vitt el, mire ez kitisztult. Izgalmas és szerteágazó az a metódus, ami a koncepciótervig vitte ezt a folyamatot, és nemtitok, hogy 400 variáció készült a házról. Az első a kagyló alakú épület volt, amivel az ország elnyerte a pályázatot. Ez a Dagály egész területét használta a telepítéshez, de a korábban nem ismert adatok a különböző műtárgyakról és közműelemekről ellehetetlenítették ezt a verziót. Ezt követően három másik irányba indultunk el tanulmánytervekkel, ezekből emelkedett ki az aranyhullámmal aposztrofálható épület, amely kiváltotta a közönség szimpátiáját. Amikor ez elkészült, a tervezési programnak még nem volt része az olimpia kiszolgálása. Az épületet fix 5000-es nézőszámra terveztük, ami 18 000 főre bővíthető, de valójában 13 000 fő is elegendő lett volna. Ez a lépték lehetővé tette az épület finomabb formálását és egy aszimmetrikus lelátórendszer kialakítását. Ahogy alakult a tervezési program, ezek a számok megváltoztak; és amikor beléptek a nemzetközi követelményrendszerek, mint a FINA elvárása, amely már olimpiát tűzött ki célul, a kezdeti 300 darabos helyiséglista az első két évben 25 százalékkal megemelkedett, ami azt
jelentette, hogy gyökeresen kellett átgondolnunk a telepítési koncepciót. A távlatos maximális nézőszámigény felment 22 000-ig, így gyakorlatilag ebből már egyenesen következett a szimmetrikus építési mód. Nem volt könnyű, amíg eljutottunk a folyamatban addig, hogy létrehozzuk a világ egyik legmodernebb létesítményét, ami a kőkemény nemzetközi elvárásoknak is megfelel. Emellett persze folyamatosan fejlődött, tisztult az, hogy hogyan kell ezt az épületet megfogalmazni; ennek a háznak a Duna-parton mértékadóan erőteljesnek kellett lennie. A Margit-sziget közepétől egy 3 kilométeres sugarú gyűrűbe esik bele az a három fontos létesítmény, amelyek a világon is egyedülálló módon szoros közelségbe hoznak "három főmedencét". Ezt a hármast ráadásul hajókon és gyalog is könnyen el lehet érni a belvárosból hotelekkel megtűzdelt útvonalon. Egyfajta geofizikai központjuk van itt a budapesti forrásvízi törésvonalnak – a Duna-meder két partján fakadnak a vizek, ezért kerültek ide a nagy fürdőépületeink a Gellért szállótól kezdve a Rudas- és a Rácz fürdőig – ezért gondoltuk azt, hogy hiteles lehet még egy nagyobb létesítmény a Duna-parton. A 17 000-20 000 néző alapvetően egy arénaméretű objektumot eredményez, és itt van előttünk egy 500 méteres dunai felület. De itt van az Árpád híd, a Népfürdő utcai lakótelep, az egész budai oldal tele hasonló párkánymagasságú épületekkel. Az uszoda szomszédságában van két toronyház, mögöttünk pedig a Marina-part. Tehát ha nem is szűken zártsorú módon léptünk be ezzel a térfallal a budapesti városszövetbe, a választás mindenképp igazolható. És azt gondolom, jó döntés volt a Duna menti MÜPA, mint déli városkapu átellenes oldalára egy másik –sportkultúrára építő –, északi városkaput tenni.
Mi az, ami az ön számára izgalmas a házban, amit személyesen lényegesnek tart?
FM: Az is nagy mérnöki feladat, hogy egy nagyon szűk helyen helyezzünk el egy ekkora épületet, de legalább ugyanekkora kihívás volt, hogy képesek vagyunk-e olyan házat létrehozni ilyen szűkös határidővel, ami ki fogja bírni azt a változásdömpinget, amit még a tervezési program kicsiszolása hoz. Egy ilyen ház általában hét évig készül, míg ezt másfél év alatt terveztük meg. Vagyis az egyik legnehezebb rész az volt, hogy építészetileg letegyem azokat a térbeli alappilléreket, amelyek meghatározzák a házat és a változásokat is kibírják. Készült egy főcsarnok, aminek nagy magassága van azért, hogy adott esetben tíz sorral több nézőt is be tudjon fogadni később, tehát tértartalékkal terveztük az épületet, ami hatással volt a léptékére is. A homlokzat sávosságának gondolata összefogó erővel működött vizuális értelemben, így be tudta kapcsolni a melléktömeget a változó magasságával együtt a kompozícióba, a nagy tartószerkezet pedig funkcionális logikájának megtartása miatt bírta ki a változásokat. A négy szerkezeti láb szervezi a létesítmény elkülönített forgalmi rendszereit, fűzi össze metszeti és alaprajzi értelemben a funkciókat. Ez a kilencosztatú tér alapstruktúrája, ami a perzsák óta működik, minden kihívásnak ellenáll. Ehhez az alapgondolathoz ragaszkodtunk. Az volt az igazán nagy kihívás, hogy létrehozzunk egy olyan épületet, ami emlékezetes, nem mintákat követ és illik a Duna-partra. Ezen a helyen nem városi architektúrát, hanem természeti architektúrát kellett létrehozni. Ha a Duna hangulata napos, csillogó, vidám, akkor ennek az épületnek erre kell reagálnia; ha komor az időjárás, akkor arra, ha nagy a köd, el kell tűnnie
„Egy ilyen ház általában 7 évig készül, míg ezt másfél év alatt terveztük meg ”

benne. Erre jó eszköz volt a reflektáló felület, ami viszszatükrözi a környezetét, párbeszédet teremt vele, így a nyers, néma tömeg a Duna vízfelszínének részévé válhat. Testvére a víz, hiszen egy „vizes” épületről van szó, a sávosság pedig alkalmas arra, hogy finoman meg is mozduljon. Míg az aranyhullámnál az volt a vízió, hogy óriási gesztusokkal, feltűnő erővel mutatkozzon meg az épület, itt ez már nem volt célom. Egy férfiasabb, szikárabb, a Duna sodrásához és az északi uralkodó szélhez igazodó, lobogó, finoman megmozduló építészeti eszközzel kerestem a megoldást az épület jellegzetessétételére. A médiaközvetítés és az épületenergetika egy megalétesítménynél zárt épületet követel. A kényszerű tömörség feloldását a látózónájába eső felületek transzparenciájával kíséreltem meg. Aki ide belép, azonnal átlátja a teljes épület működését, miközben kilát a tájra minden irányban. Tömeg és transzparencia így felelnek egymásra. Van még egy emocionális része a természettel való párbeszédnek. Valójában az épület nappal egy szikla, egy szürke tömb, amelyet meg kell fejteni. De ez a tömb éjszaka életre kel, úgymond az egykori Pannon-tenger színes élővilága jelenik meg rajta, amin átsüt a nap. Esti világításnál a homlokzati díszítésen izgalmas tengeri mozgásokat érzékelhetünk, ami derítőfénnyel egészül ki. Azt akartuk elérni, hogy aki csak erre jár, nézzen fel az épületre és rendüljön meg, érezze, hogy ez egy világbajnoksági, olimpiai létesítmény; érezze ennek az erejét, drámáját. Úgy gondoltam, jelentős dolog az, hogy Magyarország megpályázza az olimpiát, jár tehát neki egy ünnepi épület. Ezek voltak azok az alapvető „mozdító elemek”, amik meghatározták a tervezést. Az épület kőkemény műszaki tartalma mellett van tehát egy lelki oldala is.
Van az épületnek olyan részlete, amit különösen szeret?
FM: Ha valaki elsétál az épület északnyugati oldalára, oda, ahol a Dunával találkozik a legszűkebb sarokrész, majd onnan visszanéz az épületre, abban a képben benne van a ház mondanivalója. Nagyon szeretem még az épületben, hogy nem csak pozitív vagy tömör sávok vannak a házon, hanem üvegsávok is, amelyeknek az volt a célja, hogy bárki, aki elkerékpározik a Népfürdő úton, kilásson a Dunára a házon keresztül.
Béla, mi volt a szerepe a tervezés és az építés során?
VARGA BÉLA: Mi a négyéves folyamatnak kevesebb, mint a feléhez kapcsolódtunk be. Akkor kezdtek az események felgyorsulni, amikor a folyamatban megjelent a fővállalkozó. Egy jó mestermunkát kellett elvégeznünk, egy megörökölt, több mint húsz cégből álló társtervezői stáb élére állva úgy, hogy kiszolgáljuk a tervezési program változásait, a tervezéssel párhuzamos kivitelezést, de mi is tudjunk építészként hozzáadni valamit az épülethez, hiszen építész szemléletű generáltervezők vagyunk. A generáltervezés nem azonos az építésztervezéssel, ez is egy komoly kihívás, de sokszor nagyon hálátlan, hatalmas koordinációs munkát igénylő és – persze nem csak rossz értelemben – szárazabb folyamat. Fontos, hogy milyen szemléletű a generáltervező. Mi építészek vagyunk, ez segítette a tervezést, valamint a szakágak összefogását. Azt gondolom, hogy a csarnokjelleg és az, hogy nagy tereket kellett képezni, segítették a tiszta koncepció megvalósulását. Nekünk generáltervezőként alapvetően nagy léptékű, ipari csarnokrendszerekben van rutinunk, tehát mi értettük
ezt a házat, a léptékét. Azt is értettük, hogy körülbelül mennyi idő alatt kell megcsinálni, illetve, hogy milyen folyamat vezet ahhoz, hogy a komplex fővállalkozói igényeket és az építészszerzők folyamatosan dolgozó agyát is le tudjuk követni. Az volt a szerepünk, hogy hátteret adjunk a tervezéshez, sorba rendezzük a feladatokat és kommunikáljunk a szakágakkal, de hozzá is adjunk a projekthez építészetileg. A munkánk a vállalkozásba adási szakaszt is lefedte, mert azt sem szabad elfelejteni, hogy a fővállalkozó az összes beszállítóját menet közben választotta ki. Ennek volt ugyan egy időrendje, de az időrendet a különböző igények gyakran borították fel. Mi elvégeztük a munkafolyamatok modellezését, de az eredetileg négy hónapra kalkulált tervezési folyamat végül végig kellett, hogy kísérje az egész építkezést, és egy időben zárult le a ház elkészültével, vagyis másfél évig tartott.
Várostervezési szakemberként hogy viszonyult a projekthez?
VB: Egy ilyen léptékű épületnek mindig van egy aurája és engem mindig foglalkoztat, hogy mekkora részt mozgat meg egy épület a városból. Ezért szerettem volna a tágabb környezettel és a Dagály Strandfürdővel is foglalkozni, de ez sajnos nem sikerült, mert ezerszereplős ez a folyamat, viszont az épületnek a területbe való beágyazásához talán egy keveset mi is hozzá tudtunk tenni.
FM: Azt gondolom, hogy a Varga Béla vezette Tecton csapatnak köszönhető több fontos részlet. Például az alsó és a kiszolgáló szintet sikerült vizuálisan a környezetbe ágyazni azzal, hogy





földfalakat terveztek meg az épület déli oldalára, a Dagály Strandfürdő irányából. Emiatt az épület képe lágyult a Duna és a Népfürdő utca felől is, tehát abban, hogy ezt a hatalmas tömegű épületet sikerült városi léptékben is ideláncolni, rendkívül nagy szerepe van a Tectonnak.
VB: Örülök, hogy ezt mondod. Egy ekkora épülettömegnél jelentősége van annak, ha 4-5 méterrel sikerül optikailag csökkenteni a méreteit, ráadásul így bizonyos funkciók bekerülhettek a látótér alá. Jó, hogy nem mozgó autókat és ipari kapukat látunk majd a strand felől, hanem tájépítészettel rásimulunk arra a 10,80-as körüljáróra, ami az épület vezérszintje, és amely a Népfürdő utcát köti össze a Duna-parttal. Az épület körüljárhatósága a nagy rendezvények "feltöltéséhez" tökéletesen alkalmas, de egyben egy városi léptékű sétányrendszert is képez, ami elemelkedik a Duna-parttól. Így a 360 fokos látványt, amit az épület transzparenciája biztosít, teljes mértékben kiélvezheti a látogató.
Mi volt a legnehezebb feladat a ház építése során?
FM: Annak a műszaki megoldása, hogy ezt a házat egyáltalán erre a telekre le lehessen tenni. Itt hatalmas közüzemi vezetékek futnak, itt van a Béke-kút, a telek gyakorlatilag a Dagály Strandfürdő része, rálóg a parti védvonalra az ideiglenes lelátó csücske, tehát majdnem belógunk a Dunába is; elöl pedig ott a Népfürdő utca, ahol érzékeny közművezetékek húzódnak a föld alatt. Egy ezer cölöpre lerakott házat – mint egy kefét – bele kellett dugni egy olyan rendszerbe, ami tele van geometriai akadállyal. Természetesen komoly optikai feszültség keletkezik az épület és a környezete között, ez óhatatlan, mert a háznak nagy a léptéke. Én azt szeretem ebben a házban, hogy rokon azzal az építészeti szemlélettel, amit én képviselek. Jó viszontlátni azokat az okos műszaki megoldásokat a házon, amelyekről tudom, hogy mi bennük a nehéz, de ha valaki
DUNA ARÉNA TERVEZŐI LISTA / LIST OF DESIGNERS:
MEGRENDELŐ / CLIENT: Magyar Nemzeti Vagyonkezelő Zrt.
FŐVÁLLALKOZÓ / GENERAL CONTRACTOR: MARKET ÉPÍTŐ Zrt.
ÉPÍTÉSZ TERVEZŐ / ARCHITECT: Napur Architect Kft.
ÉPÍTÉSZ SZERZŐK / ARCHITECT AUTHORS: Ferencz Marcel DLA, Détári György DLA
GENERÁL TERVEZŐ / GENERAL ARCHITECT: Tecton Kft.
FELELŐS TERVEZŐ, ÉPÍTÉSZ TÁRSSZERZŐ / PARTNER IN CHARGE: Varga Béla
ÉPÍTÉSZ TÁRSSZERZŐ, PROJEKTVEZETŐ / CO-AUTHOR (ARCHITECT), PROJECT MANA-
GER: Fodor István
ÉPÍTÉSZ TÁRSSZERZŐ / CO-AUTHOR (ARCHITECT): Pindes Ákos, Ükös Tamás
BELSŐÉPÍTÉSZET / INTERIOR DESIGN: MCXVI Kft.
VEZETŐ TERVEZŐ / SENIOR DESIGNER: Szokolyai Gábor
DESIGN ELEMEK / DESIGN ELEMENTS: MOME
TARTÓSZERKEZET / STRUCTURAL ENGINEERING: Szántó László Gábor
ÉPÜLETGÉPÉSZET / BUILDING ENGINEERING: Pilz Norbert
ÉPÜLETVILLAMOSSÁG / ELECTRICAL ENGINEERING: Ivanics Zoltán
TŰZJELZŐ HÁLÓZAT / FIRE ALARM SYSTEMS: Ivanics Zoltán
KÖZMŰ / UTILITIES: Bíró Attila
KÖZMŰ (ELEKTROMOS) / UTILITIES (ELECTRICAL): Pendli Gábor
ÚT ÉS FORGALOMTECHNIK A / TRAFFIC ENGINEERING: Macsinka Klára
KERT ÉS TÁJÉPÍTÉSZET / LANDSCAPE ARCHITECTURE: Steffler István
AUDIOVIZUÁLIS / AV TECHNOLOGY: Magos Balázs
USZODATECHNIK A / SWIMMING POOLS: Sallai Zoltán
SPORTTECHNOLÓGI A / SPORTS TECHNOLOGY: Zékány Márta
TŰZVÉDELMI SZAKÉRTŐ / FIRE PROTECTION: Horváth Lajos
TŰZVÉDELMI SZAKREFERENSEK / DESK OFFICERS FOR FIRE PROTECTION: Rauscher Judit, Balogh Richárd
OLTÓRENDSZER / SPRINKLER SYSTEM: Hucker Csaba
AKUSZTIKA / ACOUSTICS: Csott Róbert
ÉPÜLETFELÜGYELET / BUILDING MANAGEMENT: Harmath László
ÉPÜLETSZERKEZETI KONZULENS / CONSULTANT FOR STRUCTURAL ENGINEERING: Reisch Richárd
DAGÁLY STRANDFÜRDŐ FELÚJÍTÁS / MODERNIZATION OF DAGÁLY STRANDFÜRDŐ:
GENERÁLTERVEZŐ / ARCHITECTS: Lean Tech Mérnökiroda Kft.

Látványtervek: a vébé után
Vizualisation: after the World Championship

rájuk néz, akkor pofonegyszerűnek tűnnek. Jó példa erre a hatalmas fesztávú tetőszerkezet, amelynek egyszerű és tiszta végeredménye mögött rendkívül komplex mérnöki munka áll. Ebben az épületben a mérnöki produktumot szeretem. Az a szép benne, hogy ez a ház mérnöki szempontból jól szerkesztett, átlátható és nagyon tiszta. Az épület őszinteségét szeretem tehát, azt, hogy nagyjából úgy néz ki, mint amit belül tud. (Móré Levente)

VEZETŐ TERVEZŐ / SENIOR DESIGNER: Vörös Balázs
ÉPÍTÉSZ TERVEZŐK / PROJECT ARCHITECTS: Szüle Péter, Kelemen Péter
Építész munkatárs / PROJECT TEAM: Koválcsik Dóra, Bíró Máté
AZ ÉPÜLET MÉRETE / SIZE OF THE BUILDING:
ALAPTERÜLET / PLACE (bruttó / brutto): 50 000 m2 (ebből is ideiglenes lelátók/only grandstands: 23 000 m2)
MAGASSÁG / HIGHT: 44 m (39+5 m)
ALAPÉPÜLET BEFOGADÓ SZÁMA / BASIC HOST NUMBER: 6000 fő/ head (+ lelátók befogadó képessége, szárnyanként / host number on grandstand: 4500-7000 fő/head/wing )
MEDENCÉK / SWIMMING POOLS (Length: 50.0 metres): 51,53 m x 25,02 m x 3 m (mélység/depth); (Bemelegítő/ Warm up) 51,53 m x 25,02 m; 2,20-2,80 m (mélység/depth); (Műugró / Diving )25,02 m x 21,00 m, 5,0 m (mélység/depth)
©NAPUR architect
©NAPUR architect

Fotó: Végel Dániel
Photo by Dániel Végel
“WE HAD TO CREATE A NATURAL ARCHITECTURE”
Our questions on the changes and challenges of the design of the Danube Arena and the details of the building most exciting to them were answered by Marcel Ferencz DLA, the designer of the building and managing director of NAPUR Architect Kft, and Béla Varga, co-creator and managing director of Tecton Kft, the general designer.
Photo by TAMÁS BUJNOVSZKY
Octogon: What was your main concept when designing the building?
MARCEL FERENCZ: Even at European level, a building of this size is a rarity; a lot is needed to create it. The architectural vision is only the first step, yet even that consists of several parts. Firstly, the will of the society and a decision on the site are needed for it to be born, as these have the greatest impact on the plan – this, too, involves various strategic aspects. Secondly, it has a design program, which must be stuck to for the building. It took two years of the four-year cycle to clarify this. The method that led this process up to the concept plan is exciting and wide-ranging, and it is no secret that 400 design variations were created for the building. The first of these was the shell-shaped building with which Hungary won the bid. This version used the entire area of the Dagály Bath for the project, but was rendered impossible as previously unknown data about various manmade objects and public utility elements came to light. The study phase next explored three directions, from which the building that can be described as a “golden wave”, which conquered the heart of the general public, stood out. When it was completed, serving the Olympics was not yet part of the design program. We designed the building for a fixed capacity of 5,000 spectators, expandable to 18,000, although in reality a capacity of 13,000 would have been sufficient. This scale enabled a more refined form for the building and the creation of an asymmetrical system of stands. As the design program developed and the international systems of criteria set by FINA, already with the aim of hosting the Olympics, came into the picture, these numbers changed. During the first two years, the number of premises, originally running to 300, increased by 25%, which meant that we had to radically reconsider the installation concept. The long-term maximum capacity requirement increased to 22,000, which practically led directly to a symmetrical
construction. It was not easy to reach the point in the process where we could create one of the most modern facilities in the world, which also meets extremely stringent international requirements. In addition, the way in which this building had to be defined, giving it a suitably powerful presence on the bank of the Danube, also developed and was clarified continuously. The 3 important facilities that bring 3 main pools in close proximity in a way that is unique in the world are located within a 3-km ring from the centre of Margaret Island; moreover, their trio can also be reached easily from the city centre by boat or on foot, along a route studded with hotels. The fault line of Budapest springs has a certain geophysical centre here –the springs well from the two banks of the bed of the Danube, which is why our large spas were built here, starting from the Gellért Hotel through the Rudas and Rácz Baths, etc. and why we thought that adding one more larger building to the bank of the Danube was reasonable. 17,000–20,000 spectators require an arena-sized building, and here we have before us a 500-meter stretch the Danube, the Árpád Bridge, the Népfürdő Street residential park, with the Buda side filled with buildings of a similar height, two neighbouring tower blocks, and the Marina shore behind us. So even if, strictly speaking, we did not merge this spatial boundary into the urban tissue of Budapest in an unbroken fashion, the decision is nonetheless justifiable. I believe that it was a good decision to place a northern city gate – based on sports culture – opposite MÜPA, a southern city gate also located by the Danube.
What do you personally find exciting and essential in this building?
MF: Inserting such a large building into a very tight space is in itself a major engineering task, but the question whether we could create within such a short deadline a building that would sustain the sea of changes the refinement of the design program
would entail was a challenge at least as great. Constructing a building like this usually takes 7 years, while we designed this in a year and a half, so one of the most difficult tasks for me was to set down those basic spatial pillars in terms of architecture that would define the building and could also sustain these changes. A main arena was created, with great height, so it could accommodate an extra ten tiers of spectators, if necessary; that is, we designed this building with a reserve in terms of space, which also affected its scale. The banded concept of the facade represented a visually cohesive force, able to bring the side mass with its different height into the composition, while the large supporting structure could sustain the changes thanks to its functional logic being preserved. The four structural feet organise the separate traffic systems of the facility and connect its functions in terms of its cross-section and layout. This is the basic structure of spaces with a nine-fold division, which has worked since the time of the Persians and can withstand any challenge. We insisted on this basic concept. The truly great challenge was to create a building that is memorable, atypical, and fitting for the bank of the Danube. Here, instead of an urban architecture, a natural one had to be created. When the Danube presents a sunny, sparkling, cheerful aspect, the building must react to that; if the weather is gloomy, then to that, if there is a thick fog, it must disappear in it. The reflective surface that mirrors its environment and creates a dialogue with it was a good tool for this, allowing the raw, silent mass to become part of the surface of the Danube. Since it is an aquatic building, water is its kin, while its bands also allow it to make fine movements. While with the Golden Wave the vision was to give the building an aspect of grand gestures and striking power, here that was no longer my intention. I sought to give the building character using a more masculine and lean, undulating architectural device that is capable of subtle movements




and harmonises with the current of the Danube and the prevailing northerly wind. For a mega-facility media broadcasts and building energy aspects require it to be enclosed. I strove to resolve this forced solidity by giving transparency to surfaces within the field of view from spaces. Anyone who enters here can immediately grasp the functioning of the entire building, while they can also see the view in every direction. This is how mass and transparency respond to each other. This dialogue with nature also has an emotional aspect. During the day, the building is effectively a rock, a grey block that has to be discovered. At night, however, this block comes to life, displaying, in a way, the colourful aquatic life of the former Pannonian Sea, pierced by sunlight. With the evening lighting, we can discover exciting marine movements on the decoration of the facade, which is complemented by a fill light. We wanted all passersby to look up at the building and be moved by it; to sense that it is a facility for World Championships and the Olympics, to feel its power and drama. I thought that Hungary’s bid to host the Olympics was a great event, which deserved a ceremonial building. These were the fundamental elements that defined the design. So in addition to its rock-solid technical content the building also has a spiritual side.
Do you have a particularly favourite detail of the building?
MF: If you stroll to the northwestern side of the building, right to where its narrowest corner meets the Danube and look back at it from there, the view contains the message of the building. Another thing I love about the building is that it contains not only positive, solid bands, but also bands of glass, with which our goal was to allow anyone cycling past it on Népfürdő Street to see the Danube through the building.
Béla, what was your role during the design and construction?
BÉLA VARGA: We joined in for less than half of the four-year process. Events started to accelerate with the appearance of the general contractor in the process. Good craftsmanship was required of us, at the helm of an inherited team of co-designers comprising over 20 companies, in a way that allowed us not only to respond to the changes of the design program and carry out construction in parallel with the design process, but also to add something to
”
Constructing building like
this usually takes 7 years, while we designed this in year
and half
”
the building as architects, as we are general designers with an architectural approach. General design is not the same as architectural design – it, too, is a major challenge, but involves a process that often requires a huge and greatly unappreciated coordinative task and is – naturally, not only in the negative sense of the world – starker. The approach of the general designer is important. We are architects, which facilitated design and bringing trades together. I think that the arena-like character of the building and the fact that large spaces had to be created helped with bringing the clear concept to life. As general designers we are experienced primarily in the area of large-scale industrial hall systems, so we understood this building and its scale. We also understood the approximate amount of time in which it had to be realised and the process that leads to adapting to the complex requirements of the general contractor and the ceaselessly working minds of the architects. Our role was to give background to the design, line up tasks and communicate with the various trades, while also adding something to the project in terms of architecture. Our work also covered the outsourcing phase, as we should not forget that the general contractor selected all its subcontractors along the way. Although there was a schedule for this, it was often upset by the various requirements. We had carried out the modelling of work processes, but in the end the design process, originally planned to last 4 months, had to go hand in hand with the entire construction, and was completed together with the building, so it took a year and a half.
As an urban planning professional, how did you relate to this project?
BV: A building of this scale always has a certain aura and I am always interested in just how much of a city a building can vitalise. This is why I also wished to become involved with the wider environment and the Dagály Bath – unfortunately, this could not come true, as the process involved a myriad participants, but perhaps we were able to add a little to embedding this building in its area.
MF: I think that the credit must go to the Tecton team led by Béla Varga for several important details, such as successfully merging the lower and service levels visually into the environment by dreaming up earth walls for the southern side of the building, from the direction of the Dagály Bath.
This softened the image of the building as seen both from the Danube and Népfürdő Street, so Tecton has played an immense role in linking this massive building to its location, at city scale, as well.
BV: I am happy to hear you say that. With such a building mass being able to optically reduce its dimensions by 4-5 meters has significance; in addition, this way we were also able to install certain functions below the field of view. It is good that from the direction of the Dagály Bath we will not see cars and industrial gates, smoothly adapting instead through landscaping to the ambulatory at a height level of 10.80 m, which is the main level of the building, connecting Népfürdő Street to the bank of the Danube. The all-round access to the building is ideal for large events and also creates a city-scale system of promenades that rises above the bank of the Danube, allowing visitors to fully enjoy the 360-degree panorama afforded by the transparency of the building.
What was your most difficult task in constructing this building?
MF: Finding a technical solution that allowed us to position this building on this plot at all. Massive utility lines run here, the Béke well is located here, the plot is practically part of the Dagály Bath, the corner of the temporary stands projects over the riverside flood control structure, which means that the building almost hangs over the Danube, while at its front lies Népfürdő Street, along which sensitive utility lines run underground. We had to insert a building erected on a thousand piles – like a brush – into a system filled with geometric obstacles. Naturally, there is significant optical tension between the building and its environment – this is inevitable due to its large scale. What I like in this building is that it is akin to the architectural approach I stand for. It is good to see those ingenious technical solutions in the building of which I know the difficulties they involve, yet to an onlooker seem dead simple. A good example for this is the roof structure with its vast span, behind whose simple and neat end result extremely complex engineering work lies. I like the engineering product in this building. What is beautiful in it is that this building is well-designed, transparent, and very neat in terms of engineering. So what I like is the honesty of this building – that its looks closely reflect its abilities. (Levente Móré)
ÉPÍTÉS KÖZBEN UNDER CONSTRUCTION

Két év megfeszített ütemű munka után több cég, közel 2000 ember példaértékű együttműködésében megszületett a Duna Aréna. Az uszodakomplexum születésének pillanatait Molnár Péter fotográfus rögzítette kamerájával. After two years of hard work and the exemplary cooperation of several firms and almost 2,000 people, Danube Arena was born. The moments of its birth were recorded by the camera of photographer Péter Molnár.





















„TÖBBRÉTEGŰVÉ KELL TENNI AZ ÉPÜLETET”
Interjú Szokolyai Gáborral, a Duna Aréna belsőépítészével, az MCXVI Építészműterem egyik alapítójával.
Fotó: BUJNOVSZKY TAMÁS
Octogon: Hol végződik az építészet és hol kezdődik a belsőépítészet egy ekkora méretű és speciális funkciójú épületben, mint a Duna Aréna? Azok az épületek az igazán jók, amelyek minden szempontból koherensek. Ahol nem, vagy nehezen meghúzhatók a határok a különféle műfajok között. Az építészet összművészet. Így tanultuk, és a pályán eltöltött évek is ebben erősítettek meg. Az építészet, a belsőépítészet, az iparművészet, design, képzőművészet is alapvetően egy egységet képez –persze praktikus okokból a munkamegosztásban vannak különbségek. Vagyis nem tudom meghúzni ezt a határt. A munkatársaimmal lényegében mindig olyan belsőépítészetet próbálunk művelni, amit építészeti oldalról közelítünk meg. Itt, a Duna Arénában pedig ez hangsúlyozottan így volt. Ráadásul ez az épület szerintem elsősorban mérnöki alkotás, amiben elképesztő mennyiségű, korszerű technikát építettek be, illetve nagyon speciális előírásoknak, jogszabályoknak, FINA igényeknek kellett megfelelni a tervezéskor, kivitelezéskor.
A műfaj és az előírások miatt komoly tanulási folyamat is lehetett. Lényegében igen. A Groupama Aréna után, aminek szintén mi voltunk a belsőépítészei, már nem volt ismeretlen ez az építészeti lépték, de uszodán most először dolgoztunk. A korábbi nagy munkáinkhoz képest is, sokkal nagyobb stáb dolgozott együtt. Valamint, nagyon sok döntéshozó játszott szerepet ebben a projektben: sok igény, elvárás fogalmazódott meg, sok volt az egyeztetés, a kompromisszumkeresés. Persze a szinte teljesíthetetlen határidők szorításában. Mindezek legalább akkora kihívást jelentettek, mint magával az építészeti térrel való megbirkózás.
Beszéljünk kicsit a főbb terekről, és hogy ezekben mi volt a feladat?
Kezdjük, mondjuk a versenyuszodai térrel. Igazán itt érzékelhető leginkább az, hogy ez az épület egy mérnöki létesítmény. Itt vannak a lelátók, a nagymedence és a műugró-medence. Karakteres az óriási acéltartók látványa. Nagyon keveset próbáltunk hozzátenni a térélményhez, hiszen itt az építészeti koncepció dominál és maga a fő funkció, amire ez az épület született. Itt minden az úszásról szól: a kék érvényesül, ha megnézed, az üléstükör fehérsége is ezt emeli ki és az antracitszürke burkolatok körben szintén. Egyébként, egy kicsit máshonnan indítva, nekem nagy sikerélmény ezzel az épülettel, hogy lehetőséget kínál arra, hogy esetleg a közemberek kevésbé idegenkedjenek a modern építészettel szemben.
Mire gondol pontosabban?
Általános, hogy a kortárs építészettől idegenkednek az emberek, mert talán úgy érzik, hogy pőrén jelenik meg az épület és annak terei. Az említett összművészeti felfogásból kiindulva: többrétegűvé kell tenni az épületet. Így válhat teljessé, élményszerűvé, szerethetővé. Meggyőződésem, hogy ez a kortárs építészet sikerességének a kulcsa. Ezt a szemléletet szerettem volna behozni azzal, hogy javasoltam, vegyük be a MOME-t is ebbe a projektbe. Ennek az eredményei a versenymedence terében, a két oldalon látható óriás molinók, a bemelegítőmedence terében a pezsgőfürdős medence, illetve a lobbiban a Hősök Fala és a vízfüggöny-fal. Úgy érzem a magyar design és az iparművészet felívelő pályán van. Nemcsak szakmailag, hanem elismertségben is, illetve a megbízói oldalon is egyre erősebb igény mutatkozik, hogy még ismertebbé, láthatóbbá tegyük. Büszke vagyok rá, hogy a Duna Aréna tervezésekor ezt a kegyelmi állapotot sikerült megragadni. Remélem ezt az izgalmas csapatmunkát sikerül még teljesebb formában további projekteknél is folytatni. A döntéshozók egy
emberként üdvözölték azt a MOME-s pályázatot, aminek a keretében megszülettek ezek az elemek.
Mesélne ezekről az elemekről?
Ahogy a látogató beérkezik az előtérbe, a bejárathoz közel a recepcióval szemben van a Hősök Fala az olimpiai bajnokok neveivel. Ez a műfaj magától is előáll egy ilyen sportlétesítményben, gondolj csak a Hajós Alfréd uszodára: mindenféle márványtáblák vannak a lobbiban az érmesek neveivel. Ott kicsit rendezetlen az, ahogyan applikálták a különféle méretű, anyagú, grafikájú táblákat, mi itt megpróbáltuk mai módon, egységes grafikával felülírni ezt a megemlékező gesztust. A nagymedence terének két belső végfalán szereplő két molinó grafikai tervezőjét is ezen a pályázaton választották ki. A vízfüggöny-falas rész japán mintára készült, ott láttuk először, hogy hogyan használják ezt a technikát: a csepegtetők digitálisan vezérelhetők, és ezeknek az animációit a hallgatók a mestereik közreműködésével alkották meg. A vízfüggönyhöz hasonlóan nagyon látványos designelem a házban a bemelegítőmedence terében létrehozott nagyméretű pezsgőfürdő-medence.
Mi indokolta a méretét?
A projektben részt vett egy fürdőtechnológus, aki azt az igényt kapta a megbízóktól, hogy egy akkora pezsgőfürdő-medencét kell létrehozni, amibe be lehet ültetni kényelmesen egy vízilabdacsapatot, ami 20 embert jelent. Mert a pólósok szeretnek edzések után együtt lazulni, csapatépíteni. Persze nemcsak a pólósok használhatják majd, hanem a köz emberei is, csak a méret meghatározásában ez volt a kiindulópont. Igény volt, hogy nagyon attraktív, szoborszerű elem legyen. A méret, a speciális tórusz forma okán azt gondolná az ember, hogy majd az ívelés miatt „ugrálni kezd” a mozaikminta, kinyílik itt-ott a fuga, de olyan pontosan

Fotó: Végel Dániel
Photo by Dániel Végel
„Az alapinspirációm a fény és víz kapcsolata volt ”
sikerült a kivitelezőknek összehozni a MOME-s hallgatók által tervezett mintát, hogy ez egyetlen ponton sem történt meg ez. A medence felett egyébként egy illúziókeltő megoldást alkalmaztunk, mert nem volt lehetőség arra, hogy mint a lobbiban tettük, megnyissuk a födémet. Így egy kör alakú felülvilágítót tettünk be Barisol fóliával, vezérelhető fénnyel, így olyan hatást lehet elérni, mintha a födém nyitott lenne mégis.
A lobbiban utólag nyitották meg a födémet? Kezdem onnan, hogy lényegében már a „nulladik pillanatban” az alapinspirációm a fény és a víz kapcsolata volt. A fény, mint egy alapvető építészeti eszköz már régóta izgatott, és most itt alkalmam nyílt arra, hogy ezt körbejárjam belsőépítészeti szituációkkal. Ha az előtérben megnézed az általunk „fénykútnak” nevezett részt, a födémátvágást a Hősök Fala előtti mennyezeti szakaszon, az gyakorlatilag erről szól. Rátaláltunk egy Exyd nevű, pára- és klórálló rozsdamentes acéllemezre, amit korábban egy Dominique Perrault-féle
épület lépcsőfalán láttam először. A födém utólagos átvágása adekvát megoldás volt a lobbiban, így fény jut be az előcsarnok mélyebb szakaszára is, és az Exyd használata az inspirációm miatt is adekvát, mert amikor süt a nap, olyan effektusokat produkál, mint a fény a víz felületén.
És amikor felpillantunk a fénykút alatt állva, olyan, mint amikor a víz alatt kinyitjuk a szemünket és felnézünk a fény felé... Ugyanezt az anyagot a bemelegítőmedence teréből a napozóteraszra kifutó lépcső oldalfalán is alkalmaztuk: ott szinte feloldódik az Exyd felületének tükröződése miatt a lépcsőfal. A reflexióval való játék az előtérben, a bemelegítőmedencei térben is alkalmazott zöldes üvegpanel-borításokkal is visszajön kicsit. Ráadásul a bemelegítőmedencénél olyan üvegpaneleket alkalmaztunk, ahol az építészeti motívumok is viszszaköszönnek: a külső homlokzati paneleken Marcel különféle cikkcakk-motívumot használt, és erre reflektáltunk az üvegpanelek vonalmintáival. De
az üvegpanelek színezésében is van egyfajta fényjáték a sötét színből a világosba való átmenettel.
Viszonylag kevés közösségi területen láthatunk fabútorokat.
Igen, ez a funkció miatt van, hiszen alapvetően egy „vizes” épületben járunk. Az előtérben, a büfétérben alakítottunk ki leülő-sarkokat, illetve a Hősök Fala és a recepciós pult között helyeztük el Szőnyi Anna „Bumeráng” padját, ami a funkcióján túl újabb lehetőséget kínált arra, hogy egy fontos, ráadásul világhírű magyar design darabot demonstráljunk. Az emeleti konferenciateremben nagyobb mennyiségben jelennek meg mobíliák, köztük fabútorok, ott a fő darabok jó minőségű, könnyed, rétegelt lemez testű Plank székek. Annak a térnek a kialakításánál az volt a szempont, hogy exkluzív megjelenésű, jó akusztikájú, AV-technológiával jól felszerelt helyiséget hozzunk létre. Olyat, ami az uszoda működésétől függetlenül is használható. Nagy küzdelem volt az álmennyezet megtervezése, mert nem szerettünk volna paneleket használni, de közben rejteni is kellett a gépészetet, ezért egy sűrűbb lamella ritmus mellett döntöttünk. A konferenciateremből nagyon jó kilátás nyílik a Dunára, de beláthatunk az uszodai térbe is, persze igény esetén el is függönyözhető ez a helyiség. Vagyis, mint a legtöbb részén az uszodának, úgy itt is nagyon jól érvényesül a transzparencia, a különféle tereken való átlátás, és a külső térre, a tájra való kitekintés. (Molnár Szilvia)

Fotó: Végel Dániel
Photo by Dániel Végel
“THIS BUILDING NEEDS TO BE MADE MULTI-LAYERED”
Interview with Gábor Szokolyai, interior designer of the Duna Aréna swimming complex and one of the founders of MCXVI Architecture Studio
Photo by TAMÁS BUJNOVSZKY
Octogon: Where does architecture end and interior design begin in the case of a building like Danube Arena, which has such a considerable size and a series of particular functions? Excellent buildings have one thing in common: they are consistent in all respects. It is difficult, or even impossible, to draw a line between different disciplines. Architecture is a “synthesis of the arts”. So we learnt, and the years I’ve spent in this profession have confirmed this. Architecture, interior design, applied arts and crafts, design, fine arts essentially form a single unit; yet, for practical reasons, of course, there are differences in the division
of labour. In other words, I cannot draw a line. In essence, I and my co-workers are always trying to approach interior design from an architectural point of view. This was particularly the case for Danube Arena. In addition, in my opinion, this building is primarily an engineering creation, into which an enormous amount of modern technology has been integrated. Furthermore, very specific regulations, legislation and FINA requirements had to be observed in the design and implementation phases. Due to the genre and the special requirements, this must have been a major learning process for you.
Practically, yes. After Groupama Arena, for which we also created the interior designs, this architectural scale was not new to us, yet this was the first time we worked on a swimming complex. Compared to our previous major projects, here, we worked with a much larger staff. In addition, several decision-makers were involved in the process: a lot of requirements and expectations were formulated, there were a lot of consultations, and compromises needed to be achieved. Of course, all this under pressure to respect the nearly impossible deadlines. All these presented at least as big a challenge as coping with the architectural space.


Let’s talk a bit about the spaces of key importance and the role you played in designing them.
Let’s begin, for example, with the competition pools’ area. There it is the most visible that the building is an engineering structure. Bleachers (stands), a large swimming pool and a diving pool are located there. The sight of the huge steel I-beams is very characteristic. We have tried to add a very little to the space experience, because it is dominated by the architectural concept and the primary function of this building. There, it’s all about swimming: when you look at it, the blue colour dominates; this is emphasised by the white grandstand seats, and the surrounding anthracite grey floor and wall tiles as well. By the way, from a different aspect, this building has given me a great sense of success, as it offers an excellent opportunity to reduce the aversion of the general public to modern architecture.
What do you mean more specifically?
In general, people have an aversion to contemporary
architecture, because they might feel that the buildings and their spaces are bare. Based on the abovementioned approach, namely that architecture is a “synthesis of the arts”, this building needs to be made multi-layered. This way, it can become complete, experiential and lovable. I am convinced that this is the key to the success of contemporary architecture. I wanted to bring in this approach by suggesting that Moholy-Nagy University of Arts and Design (MOME) should also be involved in this project. As a result, in the competition pool area, there are two giant banners on both sides, a jacuzzi pool in the warm-up pool area, as well as a Wall of Heroes and a water curtain in the lobby. My feeling is that we are seeing an upturn in Hungarian design and applied arts. Not only professionally, but also in terms of recognition. Moreover, there is an increasing demand on the clients’ side to make these fields even better known and more visible. I am proud that in the design of the Danube Arena, we have managed to capture this “state of grace”. I hope that we will be able to continue this exciting
team work in further projects, in an even more complete manner. Decision-makers welcomed MOME’s tender, in which the presented these elements.
Could you tell us more about these elements?
When visitors arrive to the lobby, near the entrance and opposite the reception, there is a Wall of Heroes with the names of the Hungarian Olympic champions. This genre is very typical in similar sports complexes – just think of the Alfréd Hajós National Swimming Stadium: there are all kinds of marble plaques in the lobby with the names of our medallists. However, how these plaques of a variety of sizes, materials and graphics are arranged there is a little bit messy; we have tried to present this commemorative gesture in a modern way, with harmonised graphics. The graphic designer who created the two large banners placed on the end walls in the large pool area was also selected in the same tender process. The water curtain was made based on a Japanese model. We first saw how to use this technique in Japan.
Öltöző, részlet
Space of the locker room; detail
Konferenciaterem
The conference room

”The relationship between light and water has been my main source of inspiration”

Recepciós pult a lobbiban
Reception desk in the lobby
Nozzles can be controlled digitally, and animations were created by MOME students with the guidance of their mentors. Similarly to the water curtain, the large jacuzzi pool set up in the warm-up pool area is a very eye-catching design element.
What was the reason for its size?
An expert pool builder was involved in this project, who was engaged by the clients to build a jacuzzi pool of such a size to comfortably accommodate an entire water polo team, which means 20 people. As water polo players like to relax and do team buildings after training sessions. Of course, not only
water polo players will be able to use this jacuzzi, but also ordinary people; however, this requirement was the starting point in the determination of its size. It has emerged that there should be a very spectacular and sculpture-like element as well. Due to the size and the special torus shape, one thought that the mosaic pattern would “fall apart” and there would be gaps in tile joints because of the curvature of the building, but the constructors managed to realise the patterns designed by MOME students so precisely that this did not occur even at a single point. By the way, above the pool, an illusory solution was used, since it was not possible

Masszázsmedence
Jacuzzi (massage pool)
”
Architecture is synthesis of the arts ”

to cut the roof slab open, as we did in the lobby. Thus, a circular skylight covered with Barrisol film was built, and light can be controlled, which gives the effect as if the slab was open.
Was the slab cut open subsequently in the lobby?
Let me begin by saying that practically since Day 0, the relationship between light and water has been my main source of inspiration. Light, as a basic architectural tool, has long been a topic of interest to me; here, I had the opportunity to explore this topic in different interior design situations. If you check how the slab was cut open in the ceiling section in front of the Wall of Heroes (in the lobby area called the “Fountain of Light” by us), essentially, this was it’s all about. We discovered a vapour and chlorine-resistant stainless steel plate named EXYD, which I had first seen on a Dominique Perrault building’s staircase wall. Cutting an opening in the slab subsequently was an adequate solution in the lobby because this way light can enter the more distant parts of the lobby as well. Moreover, the use of EXYD was also adequate because of my inspiration, i.e. when the sun is shining, it produces similar effects as when light hits the surface of water.
And when you are standing under the “Fountain of Light” and look up, it is similar to opening your eyes underwater and looking straight up into the light...
The same material was used on the sidewalls of the staircase leading from the warm-up pool area to the sun deck: because light is reflected by the EXYD panels’ surface, the staircase walls almost seem to be dissolved. This play with reflections somewhat appears in the warm-up pool area as well due to the green glass panel coverings. In addition, the glass panels used near the warm-up pool
also reflect the architectural motifs of the building: Marcel has used various zigzag motifs on the panels covering the exterior façade, and this is reflected by the linear patterns of these glass panels. Moreover, the colours of the glass panels also show a kind of play with light owing to the transition from dark colours to light ones.
Wood furniture is present in relatively few community areas.
Yes, it is because of the function of this building, as it is fundamentally associated with water. In the lobby’s buffet area, seating areas were created in the corners, and a “Boomerang” bench designed by Anna Szőnyi was placed between the Wall of Heroes and the reception desk; the latter, in addition to its function, offers another great opportunity to showcase an important, and already worldfamous, Hungarian designer piece. More furniture was placed in the conference room on the first floor, including wood furniture. There, the most important pieces are the high-quality, light, plywood Plank chairs. In designing that space, our main consideration was to create an exclusive-looking room with good acoustics, well-equipped with AV technology, which can be used independent of the functioning of the swimming pool complex. The design of the suspended ceiling was a great challenge, as we did not want to use panels, but at the same time we had to hide the pipes and technical equipment located under the ceiling, so we decided to use a higher lamella density. From the conference room, there is a magnificent view of the Danube, but you can also see the swimming pool area. This room, of course, can also be separated by a curtain, if needed. Here, like in most areas of this swimming complex, transparency dominates – you can both see through the various spaces and have an outlook to the outdoor space and the landscape. (Szilvia Molnár)
„Komplex folyamatban
K ellett értelmezni a mű Ködésün K et”
Petri Zsolttal, a Moholy-Nagy Művészeti Egyetem Projekt- és Fejlesztési Irodájának igazgatójával, valamint Soltész Kinga és Zombory Júlia projektmenedzserekkel az Egyetemnek a Duna Aréna projektben betöltött szerepéről beszélgettünk.
Octogon: Hogyan csatlakozott a MOME a projekthez, és mire szólt a felkérés? petri z solt: a megkeresés s cheer sándortól érkezett azzal kapcsolatban, hogy a d una a réna fejlesztési, kivitelezési folyamatában szívesen együttműködne a mome -val. a z ő víziója volt, hogy ebben az épületben vannak részek, melyek létrehozásához olyan típusú gondolkozás, kreativitás szükséges, amivel az e gyetem bír.
A megkereséskor már tudott volt, hogy milyen projektelemekről van szó? pz s: a kkor még objektíven nem beszéltünk területrészekről. e lső körben azt fogalmaztuk meg közösen, hogy miben tudunk együttműködni a markettel, melyek azok a formák, témák, amelyek mentén meghatározható az e gyetem szerepe ebben a projektben. számunkra az is külön kihívás volt, hogy egyetemként képesek legyünk egy számunkra ismeretlen, építőipari struktúrába illeszkedni. a markettel történő egyeztetéssel paralel a házon belül is egyeztettünk a szakterületekkel, hogy ők mit látnak reálisnak, legelőször természetesen strukturális szinten: milyen szereplőkkel – hallgatókkal, oktatókkal, alumnival –, milyen formában – projektcsapatként, pályázatok kiírója és lebonyolítójaként – tudunk részt venni ebben a munkában.
Mi volt az oka annak döntésnek, hogy hallgatók, oktatók, alumni egyaránt részt vettek a feladatokban?
pz s: a mikor az e gyetem felé ilyen jellegű
Fotó:
Bujnovszky Tamás
megkeresés érkezik, akkor szeretünk olyan megoldásokat nyújtani, amiket más, tisztán piaci szereplő nem tud. ez alapvetően kétirányú megközelítést jelent. e gyrészt egy olyan speciális szakmai tudás átadását, amivel csak egy ilyen struktúrájú egyetem rendelkezik, vagyis, hogy koncentráltan vannak jelen különféle szakágak – tervezőgrafika, építészet, média és így tovább. másrészt, olyan tudásbeli rétegeket vagyunk képesek egymáshoz illeszteni (együttműködést generálni közöttük), amelynek végeredménye egy nagyon gazdag szempontrendszer. például egy hallgató kreativitása még szabadon szárnyalhat, ugyanakkor egy oktató, vagy aki már piaci jelenléttel bír, az a tudása, tapasztalata birtokában képes a megvalósításba fordítani, a produkciós helyzetig elvinni a folyamatokat. s oltész Kinga: több körben egyeztettünk, több szereplővel. a market részéről s cheer sándorral és a főmérnökkel, pereczes z suzsannával. továbbá szokolyai gábor belsőépítésszel és az épület tervezőjével, ferencz marcellel. e gyeztettünk arról, melyek azok a projektelemek, amiket vállalni tudunk, a vállalásokat pedig házon belül egyeztettük a szakokkal. a z egyeztetéseken keresztül fogalmazódtak meg a konkrétumok, hogy koncepcióról, tervről vagy kivitelezendő feladatról beszélünk. majd ehhez jött a költségvetés, ami meghatározta, hogy hány embert, milyen struktúrában, milyen feltételek mellett tudunk megbízni. i lletve, hogy az adott feladat milyen szituációban működhet a legjobban: inkább hallgatókkal vagy alumnival,
fej-fej melletti csapatokkal vagy egyéni résztvevőkkel. d e persze még a folyamat közben is változhatott egy-egy szituáció, például, hogy valakinek az egyéni tervét csoportban fejlesztették tovább.
Térjünk át a megvalósult elemekre. Kezdjük, mondjuk a tervezőgrafikus alumni pályázók nyertes molinótervével.
s K: nehézséget jelentett már a tervezés során, hogy ezek nagyon látványos felületek, nem csak tervezőgrafikai, de hirdetési szempontból is funkciójuk van: állandóan láthatók, szponzorációs igényeket is ki kell elégíteniük, de nem csorbulhat az esztétikum sem. a tervezők, megbízó és kivitelező több hónapos, aprólékos munkájának eredménye, hogy sikerült egyeztetni a végső arányokat, látványt. Utóbbinál az is nagyon fontos, hogy a grafikai elemeknek a televíziós közvetítéseken is jól kell látszódniuk.
pz s: ezt a projektet a tervezőgrafikai tanszék tanszékvezetője, Vargha balázs fogta össze. a lumni és hallgatói csapatok dolgoztak együtt a különféle pályázati anyagokon, végül olyan alumni csapatot választottunk ki, ahol a tagok képesek voltak ezt a nagyon összetett feladatot egészen a megvalósításig vinni.
A jakuzzi viszont kifejezetten hallgatói pályázat keretében valósult meg.
s K: itt nem csak szakmai mentorálást kaptak a hallgatók (marcell tamás, a tervezőgrafikai tanszék oktatója fogta össze ezt a feladatot), hanem a kivitelezők, az alvállalkozók részéről is, így egy


Fotó: Jaksa Bálint / Photo by Bálint Jaksa; A képen
balról jobbra: Soltész Kinga, Petri Zsolt, Zombory Júlia / From left to right: Kinga Soltész, Zsolt Petri, Júlia Zombory


„Szeretünk olyan megoldásokat nyújtani, amiket más, tisztán piaci szereplő nem tud”
nagyon hasznos produkciós szituációba kerülhettek a hallgatók. m indenki - hallgatók, kivitelezők - számára fontos, közösen megélt szakmai tapasztalat volt ez, hiszen a méret és a tórusz forma miatt szinte mozaikdarabonként kellett kirakni egy olyan felületet, ami a terven értelemszerűen síkban jelenik meg. a z építés közben szinte óráról órára egyeztettek a résztvevők, kisebb áttervezések is történtek a kivitelezésnek megfelelően, folyamatos minőségbiztosítás mellett. itt azzal, hogy leadtuk a terveket, még korántsem volt vége a munkánknak.
Úgy tudom, MOME együttműködésben született meg az előtérben látható, Magyarországon egyedülálló vízfal applikáció is.
z ombory Júlia: a s ipos o rsolya által szakmailag vezetett vízfal projektelem esetében úgy kellett tervezniük a pályázóknak, hogy a technológia még nem volt jelen, nem láthatták működés közben, így csak a technológiai leírás alapján kezdhettek hozzá a tervezéshez. a lapvetően úgy működik a vízfal, hogy egy speciális nyomtató a vékony vízsugarakból egy „vízfalat” képez, amin mintákat, feliratokat, ábrákat lehet létrehozni. a műfaj, az említett körülmény és a megbízói igények miatt ezzel a feladattal animációs tervező alumni csoportok foglalkoztak. Három irányba kellett a tervezőknek gondolkodniuk: meghatározni, hogy a vébé eseményhez kapcsolódóan milyen tartalmak fussanak majd, illetve számolniuk kellett azzal is, hogy céges rendezvényeken is használni fogják az applikációt, így például logók megjelenítésére is alkalmas legyen. i lletve a gyerekek úsztatásához kapcsolódóan olyan tartalmakban is gondolkodniuk kellett, ami a gyerekeknek szól. a döntéshozóknak annyira tetszettek a pályaművek, hogy végül úgy határoztak, mindhárom irány (g acs r ékáé, r éthi g áboré és Kopasz m iláné) nagyon jó, és a háromból egy közös mű készüljön, ez látható ma. pz s: a z is nehezítette ezt a feladatot, hogy ez az eszköz könnyen tönkremegy a portól, így a kivitelezés utolsó fázisában, a tervezést követően, még ismerkedve a technológiával folyt a gyakorlati megvalósítás. e z a körülmény is új volt számunkra, itt nagyon érződött, hogy egy komplex folyamatban kellett értelmezni a működésünket.
Mi volt a sajátossága a Hősök fala tervezésének? pz s: a többi projektelemmel szemben ez másféle működést igényelt. e ddig projektcsoportokat hoztunk létre, a pályázati lebonyolítást végeztük, felkértük tervezésre a szereplőket, viszont itt az is feltétel volt, hogy a kivitelezést is bonyolítani kell, ügyelni kell a kivitelezéshez kapcsolódó szoros költségkeretre is.
z J: ezért tisztán alumni csapatok indultak, orlai balázs szakmai koordinálásával. Három résztvevőt kértünk fel tervezésre, akik külön dolgoztak, nem is tudtak egymás tervéről. a közös prezentáción a döntéshozónak mindhárom terv nagyon tetszett, végül a szakmai és művészi tartalmán fölül Juhos Janka és Juhos l ehel közös pályaműve a környezettel való összhangja miatt lett kiválasztva.
A külső térben, a bejáratnál is találunk a MOME-hoz kapcsolódó alkotást. pz s: i gen, a szobortalapzatról beszélünk, aminek nagyon érdekes a története. a pályázati felhívás egy olyan koncepcióról szólt, ami összefüggésként kezelte a talapzatot és a szobrot, de végül nem zárult sikerrel. a most látható szoborhoz nincs köze a mome -nak, de a talapzat a digitális d una órával, ami az időt köbméterben méri (a versenymedence köbmétermennyisége az alapegység), megvalósult. ez fontos dicséret a mome és az alkotók – egy oktatónk, b odóczky a ntal, és egy hallgatónk, Kovács Kristóf – számára, mert miközben a pályázat érvénytelenül zárult, a market együttműködési készségének, nyitottságának, víziójának köszönhetően mégis megvalósulhatott. s K: fontosnak tartom még megemlíteni, hogy van néhány olyan koncepció, amik nem tudtak megvalósulni, köztük van például a Kossuth térig tartó d una parti sétány, aminek a terve tihanyi d ominika vezetésével jött létre. a market ugyanis az épület és szűkebb környezete létrehozásán túl abban is gondolkozott, hogy hogyan lehet ezt a lokalizációt bekapcsolni a város vérkeringésébe. noha nem szorosan hozzájuk tartozik ez a kiviteli rész, felkértek bennünket, hogy készítsünk erre is egy koncepciót. ez lett az ún. „Csalogató útvonal”, aminek az a lényege, hogy különféle közösségi tartalmakkal töltjük meg ezt a hosszú gyalogos-kerékpáros útvonalat. e nnek akár még lehet kifutása a jövőben. (molnár szilvia)


“We H ad to interpret o
U r Wor K as part of a C omplex pro C ess”
We spoke with Zsolt Petri, Director of the Project and Development Office of Moholy-Nagy University of Art and Design (MOME) and project managers Kinga Soltész and Júlia Zombory about the role played by the University in the Danube Arena project.
Octogon: How did MOME join the project, and what did your mission entail?
z solt petri: it was sándor s cheer who contacted us saying that they would like to collaborate with mome in the development and construction processes of the danube a rena. His vision was that this building contains parts whose creation requires the type of thinking and creativity the University possesses.
When you were contacted, was it already known what type of project elements would be involved?
z sp: at that time we did not talk objectively about specific areas. i n the first round, we jointly outlined the areas in which we could collaborate with market and the forms and themes along which the role of the University in the project could be defined. for us it was an additional challenge to adapt to a building industry structure that was unfamiliar to us as a university. i n parallel with the consultations with market we discussed with our own departments what they considered feasible; firstly, of course, at structural level: with which participants – students, teaching staff, alumni – and in what form – as a project team or as announcer and organiser of competitions – we could take part in this project.
Why did you decide to involve students, teaching staff, and alumni alike in tasks?
z sp: When the University receives a request of this nature, we like to offer solutions which other, purely market players are unable to. This basically means adopting a dual approach: firstly, the transmission of special professional knowledge that only a university with our structure possesses, that is, the concentrated presence of various professional areas – graphic design, architecture, media, and so forth. secondly, that we are able to bring together different layers of knowledge (generate collaboration among them) which results in an extremely rich system of aspects. for example, the creativity of a student can still soar freely, whereas a lecturer, or someone already present on the market can capitalise on their knowledge and experience to realise ideas and guide processes to the production stage.
Photo by Tamás Bujnovszky
Kinga soltész: We held several rounds of consultations with a number of players, including sándor s cheer and Chief e ngineer z suzsanna pereczes from market, as well as interior designer gábor szokalyai and marcel ferencz, the designer of the building. We discussed with them the project elements we could handle, then consulted with the faculties at the University about these commitments. Through these consultations the specifics were clarified: were we talking about a concept, a plan, or tasks to be carried out? Then came the budget, which defined how many people we could allocate, in what structure and under what conditions, as well as the situation in which the given task could best be performed: whether to give preference to students or alumni, head-to-head teams, or individual participants. naturally, a situation could also change during the process, for example when someone’s individual plan was developed further by a group.
Let us move on to the elements that were realised, starting, let’s say, with the winning banner design of graphic designer alumni.
K s: a lready in the design stage it presented a difficulty that these are very noticeable surfaces with not just a graphic design, but also an advertising function: they are visible at all times, must satisfy the requirements of sponsors, and there could be no compromises in terms of aesthetics, either. s ettling upon the definite proportions and visual image required months of meticulous work from the designers, the client, and the contractor. With regard to the visual image, it was very important that graphic elements must be clearly visible in t V broadcasts, as well. z sp: This project was coordinated by the head of the graphic design department, balázs Vargha. teams of alumni and students collaborated on the various tender materials; in the end, we selected an alumni team whose members were able to bring this extremely complex task to fruition.
The jacuzzi, however, was realised specifically in a competition organised for students. K s: i n this case, students received not only
professional mentoring (this task was coordinated by p rofessor tamás m arcell of the department of graphic design) but were also coached by the contractors and subcontractors, which immersed them in a highly useful production situation. This was a very important collective experience for everyone – students and contractors alike - since due to its dimensions and toroid shape a surface which by its nature could only be represented in two dimensions in plans had to be pieced together almost like a mosaic. d uring construction, participants held almost hourly consultations, and construction also brought smaller changes to plans, simultaneously with continuous quality assurance. Here, the task was far from over with our submission of the plans.
As far as I know, the waterwall application seen in the lobby, which is unique in Hungary, was also realised in collaboration with MOME. Júlia zombory: i n the case of the waterwall created under the professional direction of o rsolya s ipos entrants had to produce their designs while the technology was not yet available: they could not see it in operation and could only start designing it on the basis of the technological description. The principle of operation of the waterwall is that a special printer forms a “waterwall” from thin jets of water, on which patterns, script, and images can be created. d ue to the genre, the aforementioned conditions, and the needs of the client this task was given to teams of animation designer alumni. d esigners had to
“We like to offer solutions which other, purely market players are unable to”

consider three aspects: define the content that should run in connection with world championship events, also taking into account that the application would be used for corporate events, as well, so it also has to be suitable for displaying, for example, logos. i n addition, they also had to create content aimed at children in connection with their swimming courses. The decision-makers were so pleased with the entries that in the end they decided that all three directions (of r éka g acs, g ábor r éthi, and m ilán Kopasz) were very good, and the three should be united in a single work, which is what we can see today.
z s p: a further difficulty of this task was that this device is easily damaged by dust, so its practical realisation took place in the last construction phase, after the design, while still learning about the technology. This situation was also new for us, and we very much felt here that our work had to be interpreted as part of a complex process.
What was distinctive about designing the Wall of Heroes?
z s p: it required a different type of operation compared to other project elements. Up to that
point, we had set up project groups, coordinated competitions, and invited participants to submit their designs; in this case, however, we also had to handle execution, taking care to respect tight budget constraints connected with construction.
J z : a s a result, entrants were all-alumni teams, under the professional coordination of balázs orlai. We asked three participants to submit their designs, who worked separately, completely unaware of each other’s plans. at the joint presentation the decision-makers had a very favourable opinion of all three plans; in the end, , the joint entry of Janka Juhos and l ehel Juhos was chosen, for its harmony with the environment in addition to its professional and aesthetic content.
We can also find a creation connected with MOME in the outdoor area, by the entrance.
z s p: yes, you are referring to the plinth of the statue, which has a very interesting story. The call for tenders was for a concept that regarded the plinth and the statue in relation to each other, but this was concluded without success. The statue we can see today has no connection to mome , but the plinth, with its digital d anube clock, which
measures time in cubic meters (its basic unit of measurement is the cubic volume of the competition pool), was realised. This is an important endorsement for mome and the creators – one of our teaching staff, a ntal b odóczky, and a student, Kristóf Kovács– because although the tender was concluded without success, thanks to the cooperativeness, openness, and vision of market it could still be realised.
K s: i think i should also mention that there were a few concepts that could not be realised, including the one related to the promenade leading along the bank of the danube to Kossuth s quare, which was created under the direction of d ominika tihanyi. b eyond the creation of the building and its narrower environment market was also trying to come up with ideas on how to link this site into the circulation of the city. a lthough this part of the project was not closely associated with them, they nonetheless asked us to design a concept for it. This became the so-called “ e nchantment path”, which aimed at filling this long pedestrian and cycling route with various types of social content. This may even be followed up on in the future.
(szilvia molnár)








Fotó: Végel Dániel / Photo by Dániel Végel

Egyr E
E t E tt E bb
E t E k
m E gvalósítása
m aking
incr E asingly compl E x buildings
Fotó: Molnár Péter
Photo by Péter Molnár
„Gyakorlatila G »just in time« építettünk”
Interjú Kalkopulosz Attilával, a Moratus Kft. ügyvezető igazgatójával.
Octogon: A Moratus Kft.-t 2004 nyarán alapították. Nagyjából hány nagy volumenű megbízásuk volt a lassan 15 éves működésük alatt, és melyeket emelné ki?
Ha megnézem a referencialistánkat, akkor azt látom, hogy szám szerint 298 objektum megvalósításában vehettünk részt mindezidáig, ezek a cég képességeinek növekedésével és idővel egyre összetettebb épületek megvalósítását jelentették.
m inden évben sikerült több nagyobb, az adott évben a magyar piacon kiemelkedőnek mondható monolit vasbeton munkát elvégeznünk. a váci úti irodafolyosón a v ision towers i rodaház, a v45 á trium park, a váci c orner, a váci greens, a d anubius iv. irodaházak szerkezeteit építhettük meg. d e dolgoztunk a c orvinus Egyetem központi épületén, az nk E l udovika több épületén és lehetőségünk volt különleges betonszerkezetek
megvalósítására a c Eu új campusán is. é s nem hagyhatom ki az o rszággyűlési múzeumot és a l átogatóközpontot a kossuth téren. a z ország több pontján szállodák (szegeden, Felsőtárkányban, b udapesten) és jelentősebb bevásárlóközpontok (szeged á rkád, b udapest á rkád ii ., Eger a gria park) kivitelezésében is részt vehettünk. valamint dolgoztunk több nagy ipari beruházáson is (a Hankook i . és a Hankook iii ., a givaudan

makói élelmiszer-ipari üzeme, az a udi győrben, a b ridgestone tatabányán, az a pollo gyöngyöshalászin), amelyek esetében cégünket bízták meg a monolit vasbeton szerkezetépítéssel. nagyon büszkék vagyunk a sportlétesítményekre is: az F tc új stadionja, a groupama a réna, és a d una a réna a d agály s trandfürdő mellett egyértelműen bizonyítják, tükrözik a szakmai színvonalunkat.
Honnan származik és miért a cég neve: Moratus? bár volt már, hogy hibásan a mortal (halandó, elmúló) szóra asszociáltak a cégnév láttán, a névadásnál a helyesen kiolvasott szóval a tisztességre utalt a névadó: a tisztességes hozzáállásunkat akartuk nevesíteni, egyfajta morális hozzáállást a munkához, a partnerekhez.

Az első kérdést folytatva kicsit, hogyan értékeli a Duna Arénán végzett munkájukat? És mit jelent személyesen az ön számára ez a munka? műegyetemi matematika tanárunk, ha előre érdeklődtünk nehéz lesz-e a matekpélda a zh-ban, mindig valahogy így válaszolt: „ha meg tudod csinálni, akkor nem lesz nehéz, az a nehéz feladat, amit nem tudsz megcsinálni”. meg tudtuk csinálni, és nehéz volt.
És milyen szakmai kihívásokkal kellett szembenézniük a kivitelezés idején? Elsősorban a szoros, már-már teljesíthetetlennek látszó határidő tartása, betartása volt a legnehezebb. é s szembe kellett néznünk ilyen méretekben a térbeni és időbeni organizációval, a rendelkezésre álló erőforrások hatékony kihasználásával, az építési főtevékenységek, szakma- és feladat-
csoportok helyes sorrendbe állításával, a kiviteli tervezés és az építési folyamatok összehangolásával. Egyedi műszaki megoldásokat kellett kitalálni, kipróbálni, és azonnal alkalmazni, gyakorlatilag „just in time” építettünk.
Mennyi időt vett igénybe a projekt előkészítése, majd a kivitelezése?
„A monolit vasbeton munka kivitelezése is versenyfutás volt az idővel”
m int az ismert, eredetileg 2021-ben rendezte volna meg ezt a nagyszabású világeseményt magyarország, így a hirtelen jött lehetőség még a távoli dátumhoz igazított készültségben találta az előkészítést. a z ajánlatadáshoz koncepciótervek, építészi gondolatok és egy igényleírás tartozott, ami talán nem is volt részleteiben összehangolva – még a beruházói oldalon sem – a F ina minden részletszabályával. r endkívül rövid idő, csupán néhány hét állt rendelkezésre a koncepció megismerésére, megértésére, és a stratégia kidolgozására. a monolit vasbeton munka kivitelezése is versenyfutás volt az idővel. a szorosan vett épületen túl meg kellett oldani a korábbi nyúlgát helyén egy közel 1 km-es új védmű építését, biztosítanunk kellett a telken belül meglévő két jelentős méretű csapadékvíz-levezetőcsatorna folyamatos, üzembiztos működését, a b éke-kút védelmét, a d agály strandfürdő működtetését. 2015 júliusában kaptunk munkaterületet az alapozási munkák megkezdéséhez és 2016 februárjának végén az acélszerkezetű tetőt a helyére emelték a szerkezetépítők. továbbá ez alatt az idő alatt elkészült a gát is. a bemelegítő-medence épületrészét ez után fejezhettük be, de 2016 közepére az ideiglenes lelátók monolitmunkái is elkészültek.
Milyen projekteken dolgoznak jelenleg, és mik a terveik a 10-15 éves távlatban? Jelenleg épp befejező stádiumban van a gyöngyöshalászi a polló gumigyár építése és a s amsung sdi beruházása g ödön. m indeközben már dolgozunk m iskolcon, a dvtk s tadion megvalósításán, b ükön pedig a nestlé gyár bővítésén, illetve győrben az a udi gyár új épületein. k iemelt munkánk m agyarország legnagyobb irodaház projektje a telekom könyves k álmán krt.-on megvalósuló új központja, ami már itt-ott kilátszik a kerítés mögül. a mínusz 3 szintes, szintenként 16 000 m 2 -es mélygarázsrészt e hónap végére kell befejeznünk, hogy őszre a földszint+8 emelet is szerkezetkész legyen. a távlatra vonatkozóan azt tudom mondani, hogy jelenleg nem látok olyan forradalmi technológiai irányt, ami az elkövetkező 10-15 évben alapjaiban megváltoztatná a szakmánkat, a monolit vasbeton szakmát, vagy ki tudná váltani más műszaki lehetőséggel az épületek szerkezeti megoldásait. Ebből kiindulva bízom benne, hogy meg tudjuk őrizni piaci pozíciónkat. Ha az erőforrásaink is hasonló mértékben elérhetők lesznek, akkor további meghatározó épületek megépítésére lesz lehetősége a moratus szerkezetépítő k ft.-nek. (molnár szilvia)
“ i n effect, this was »just in time« construction”
Interview
with Attila Kalkopulosz, CEO of Moratus Kft.
Octogon: Moratus Kft. was founded in the summer of 2004. Approximately how many largevolume assignments did you have during the almost 15 years of its operation and which of those would you highlight in particular? l ooking at our list of references i see that the figures indicate that we took part in the realisation of 298 objects so far, and these were increasingly complex buildings as the capacities of the company increased and time passed. We have managed to do bigger and bigger monolithic reinforced concrete works year by year, always outstanding in the Hungarian market in the given year. We have constructed the structures of the office buildings v ision towers o ffice building in the váci út office corridor, v45 átrium park, váci corner, váci greens and danubius iv but we have also worked on the central building of corvinus university, several nk E ludovika buildings and we had the opportunity to make special concrete structures on the new cEu campus. i cannot omit the museum and v isitor centre of the parliament at kossuth tér. We took part in the construction of hotels (szeged, Felsőtárkány, budapest) and major shopping malls (szeged á rkád, budapest á rkád ii ., Eger a gria park) at several points of the country. a nd we have worked also on several major industrial investments (Hankook i and Hankook iii , the makó food industrial plant of givaudan, the audi plant in győr, bridgestone in tatabánya, apollo in gyöngyöshalász), where our company was commissioned to do the monolith reinforced concrete structures. We are also extremely proud of the sports facilities: the new F tc stadium, groupama a rena and danube a rena next to dagály baths demonstrate and mirror our professionalism.
Where does the name Moratus come from and why was it chosen?
a lthough it has happened already that the company name erroneously triggered the association of mortal, properly read, it refers to (good) morals, i.e. fairness: it was meant to denote our fair attitude, a moral approach to work and to the partners.
Going back a bit to the first question: How would you rate your work on Danube Arena? And what does that work mean to you personally?
We used to ask our mathematics professor at the technical university whether the problem to be solved at the written exam would
be difficult, and he always answered something like “it won’t be difficult if you can do it, the difficult assignment is something you cannot do”. We could do it, and it was difficult.
And what challenges did you face during construction?
First of all, the most difficult task was to comply with the tight, apparently almost hopeless deadline. a nd we had to face organising space and time on such scale, the efficient utilisation of the available resources, the accurate sequencing of the main construction activities, vocational and job groups, the alignment of the construction design and the construction processes. unique technical solutions had to be invented, tested and applied right away: in effect, this was “just in time” construction.
How long did the preparations and then the execution of the project take?
it is a well-known fact that Hungary would have hosted this large-scale world event in 2021, so the unexpected opportunity found preparations at the stage adjusted to the more distant date. The bid being submitted included concept designs, architectural ideas and a specification, maybe not even fully aligned – not even on the side of the investor – with every detail of the F ina regulations. The time available for getting to know and understanding the concept and drawing up the strategy was excessively short, no more than a few weeks. The construction of the monolith reinforced concrete structures was also a race against time. i n addition to the building in the strict sense, we had to solve the issue of constructing an almost 1km-long new protective dike replacing the old emergency dike, and ensure the continuous and foolproof operation of the two rainwater drainage canals of substantial size located on the plot, the
protection of b éke-kút and the operation of dagály baths. We took over the work area for starting the foundation works in July 2015, and the structural engineering staff lifted the steel-structured roof in place in February 2016. moreover, the dike was also made during the same period. The building part of the warm-up pool could only be finished after that, but by mid-2016, the monolith works of the temporary grandstand had also been finished.
What projects do you work on now and what are your plans in a perspective of 10-15 years? currently, the construction of the gyöngyöshalász apolló r ubber factory and the göd investment of samsung sdi are in the final stage. i n the meantime, we are also working in m iskolc already, to do the dvtk stadium, in bük where we extend the nestlé factory and in győr where we work on the new buildings of the audi plant. a priority work in progress now is the biggest office building project ever in Hungary, the new telekom centre on könyves k álmán körút. i f you happen to be there, at some places you can have a glimpse above the fence of the 3-storey underground parking place of 16 000 m 2 per storey that is to be completed by the end of march according to the schedule, in order to report the ground-floor and the other 8 storeys structurally complete by autumn. a s for the perspectives, i can say that at the moment i see no revolutionary technological trend that might alter our profession, the monolithic reinforced concrete profession, fundamentally or that could replace the structural solutions in buildings by some other technology option. a gainst this backdrop, i hope that we can preserve our position. i f our resources will also be available to an extent similar to the current one, moratus szerkezetépítő k ft. will have the opportunity to construct further decisive buildings. (szilvia molnár)
“The construction of the monolith reinforced concrete structures was also a race against time”

„
e z
már
e G y nemzetközi szinten is je G yzett létesítmény ”
Ritter Ádámmal, a Moratus Kft. műszaki igazgatójával beszélgettünk.

Octogon: Ha az eddigi referenciáik közül a sportlétesítmények körében vizsgáljuk a Duna Arénát, akkor mit tud mondani összehasonlításképpen erről az uszodakomplexumról?
a d una a réna összértékét és komplexitását tekintve az elmúlt 25 év legnagyobb sportberuházása magyarországon, de tovább megyek, ez már egy nemzetközi szinten is jegyzett létesítmény. komplexitását tekintve más lépték, más szint, mint amivel eddig dolgunk volt. volumenét tekintve eddig egy projektünk ért fel ehhez, a szegedi á rkád bevásárlóközpont építése, illetve jelen pillanatban is zajlik egy hasonlóan nagy munkánk, a telekom új székházának kivitelezése. még az ajánlatadási fázis elején próbáltuk nagy vonalakban felmérni, megérteni, mekkora feladat vár majd ránk,
ha elnyerjük a megbízást. Ekkor egy négyzetrácsos füzetlapra a kollégáimmal felrajzoltuk az eddigi jelentősebb munkáinkat. a z olvasók által bizonyosan jól ismert groupama a réna építése ezen a lapon négy négyzetrács széles és két négyzetrács magas területet foglalt el. a d una a rénát egy tizenkét négyzetrács széles és hat négyzetrács magas területtel jelöltük. nyolc négyzetrács hetvenkettő ellenében. utólag elárulhatom, nem tévedtünk az arányok tekintetében, mert mint korábban mondtam, ez a feladat más léptéket, más nagyságrendet jelentett, mint amiben eddig tapasztalatot szerezhettünk. magasra tettük a lécet, de megugrottuk. a z említett két kis ábra egyébként - meggyőződésem szerint - nagyban hozzájárult a projekt sikeres teljesítéséhez. Feladataink végrehajtásának
és a felmerülő problémák megoldásának ugyanis minden alkalommal ennek a nagyságrendi különbségnek a tudatában álltunk neki.
Ön a Moratus Kft. műszaki igazgatója, ebben a minőségében mi volt a feladata a kivitelezés során?
a moratus k ft.-nél az egyes projekteket műszaki igazgatók vezetik. Ők felelnek az elnyert munkák szerződés szerinti, határidőre történő, jó minőségű és eredményes teljesítéséért. a lapvetően ugyanezeket a feladatokat kellett elvégeznem a d una a réna kivitelezése során is, de egy nehezített pályán. a market építő z rt. design and build szerződés keretében végezte az a réna felépítését, melynek lényege, hogy a kivitelezési feladatokon túl az
Fotó: Végel Dániel / Photo by Dániel Végel
engedélyezési és kiviteli tervek elkészítése is a vállalkozó feladatkörébe tartozik. a monolit vasbeton szerkezetek esetében ezeket a feladatokat átvettük. a gyakorlatban ez azt jelentette, hogy a tartószerkezeti tervezőkkel szoros együttműködésben készültek a kiviteli tervek, miközben a rendkívül szűk határidő miatt ezzel párhuzamosan nagy lépésekben haladt előre a kivitelezés is, ahol szintén helyt kellett állni. a tervezőkkel tehát együtt gondolkodtunk, ötleteltünk, folyamatosan, egyeztettük, majd közösen választottuk ki a határidő, költség és építéstechnológia szempontjából legkedvezőbb megoldásokat. Ez nagyon érdekes feladat, más szemléletet, gondolkodásmódot és hozzáállást igényel, mint amikor már meglévő terveket kell megvalósítani, hiszen ebben az esetben sokkal nagyobb a kivitelező felelőssége. a z együttműködés eredményeként mind az a réna, mind a gát- és a csatornavédelem esetében olyan előremutató műszaki megoldások születtek
„Más szint, mint amivel eddig dolgunk volt”
(pl. a „vízhatlan” versenymedencék), melyekre mindannyian büszkék lehetünk. a tervezési munkák koordinálásán túl a legnagyobb feladat annak a rendszernek a kialakítása és működtetése volt, mely biztosította, hogy mindig rendelkezésre álljanak és hatékonyan ki legyenek használva a határidők tartásához szükséges emberi (csúcsidőben 250 fő szerkezetépítő munkás) és gépi erőforrások (7 db toronydaru, autódaruk, betonpumpák), valamint a beépítésre kerülő anyagok (csúcsidőben 1 000 m 3 beton és 50 t betonacél naponta). tárgyi esetben hatalmas volumenekről beszélünk, melyek logisztikai folyamatainak szervezése, azaz megrendelése, nyomonkövetése, igazolása, elszámolása stb. egy jól szabályozott, de a tervezéssel párhuzamos kivitelezésből eredő változásokat is rugalmasan és gyorsan kezelő rendszer kialakítását tette szükségessé. Ehhez szervesen kapcsolódik az a projektre szabott minőségbiztosítási rendszer, mely igazolja, hogy amit építettünk, az jó. a projekt során a felsorolt feladatokat mintaértékűen sikerült megoldani, így ennek nagy hasznát vesszük, vehetjük jelenlegi és jövőbeni projektjeink teljesítése során egyaránt. Fontosnak tartom megjegyezni, hogy a kivitelezés csapatmunka, ahol minden résztvevő, minden kolléga egyformán fontos eleme a „láncnak”, így a projekt sikere döntő részben kollégáim kiváló munkájának köszönhető.
Van olyan pontja, területe az uszodakomplexumnak, amit kihangsúlyozna, amit különösen kedvel? Ha az épületet kívülről vizsgálom, akkor egyértelműen a d una felé eső főhomlokzati épületrész a kedvencem. a tervezők által megálmodott hullámforma, mely láttatni engedi az alsó két szinten a vasbeton, feljebb az acél tartószerkezetet, egészen különleges, a díszkivilágítással együtt pedig lélegzetelállító látványt nyújt. itt érvényesül legjobban az az építészeti finesz, melyet a tervezők a homlokzatburkolatnál alkalmaztak. Ennek lényege, hogy a színazonos homlokzatburkoló lemezeket különböző módon hajlították meg, így a fény az egyes burkolati sávokon eltérő módon törik. Ez a megoldás egy folyamatosan változó, természetes fényjátékkal öltözteti fel az épületet. a z a rénán belül a nagyfesztávú acél tetőszerkezetet gyámolító, a főépület négy sarkában álló vasbeton „tornyok” állnak legközelebb hozzám. Ha ezeket látom, mindig egy képzeletbeli vár négy bástyájára gondolok, és egyértelműen azt érzem, hogy ezek a szerkezetek az idők „végezetéig” képesek lesznek viselni a rájuk nehezedő terheket. a kivitelezés során pont az említett 10 x 10 x 27 m befoglaló méretű tornyok építése jelentette az egyik legnagyobb kihívást. k ivitelezésükhöz a magasépítésben ritkán alkalmazott csúszózsalus technológiát választottuk, ennek a segítségével egy-egy tornyot 9 nap alatt építettünk meg. (molnár szilvia)



“ i t is a facility listed also at international level”
Interview
with Ádám Ritter, Technical Director of Moratus Kft.
Octogon: Considering Danube Arena among the sports facilities in your reference works so far, what could you say, by way of comparison, of this aquatics complex?
i n terms of total value and complexity, danube a rena is the biggest sports investment of the past 25 years in Hungary and, what is more, it is a facility listed also at international level. i n terms of complexity, it is on a different scale, a different level than anything we have encountered so far. i n terms of volume, it was equalled by a single project of ours, the construction of á rkád shopping mall in szeged, and we have another work of similar size in progress, the construction of the new telekom headquarters. We had tried to assess and understand the size of the task awaiting us already in the bidding phase, should we be among the winners: we drew our major works so far with a colleague on a squared notebook sheet. The construction of groupama a rena, certainly well-known to the readers, occupied an area that was 4-square wide and 2-square high. The corresponding area of d anube a rena was 12-square wide and 6-square high. Eight square grids versus seventy-two. i can say in retrospect that we made no mistake concerning the proportions because, as i have already said, this task was on a different scale, of a different order of magnitude than the ones we had experienced. We had set very high standards for ourselves, but we managed to meet them. by the way, the two small drawings i referred to helped a lot, in my opinion, in the successful execution of the project, because we always set out to do our tasks and solve any problems aware of this order-of-magnitude difference.
You act as technical director of Moratus Kft.
What was your task in that capacity during the implementation?
at moratus k ft., individual projects are managed by technical directors. They are responsible for the contractual and timely, quality and effective performance of the works won by us. b asically, i had the same tasks during the realisation of danube a rena, but under more constraints than usual. market építő z rt. constructed the a rena under a design and build contract meaning, essentially, that apart from the execution tasks, the building permit drawings and construction designs also belonged to the scope of the contractor’s activities. We took over these tasks in regard to the monolith reinforced concrete structures. i n practice this
meant that the construction plans were drawn up in close cooperation with the support structure designers, while construction, another field where we had to stand our ground, was making fast progress due to the excessively tight deadlines. Therefore, we were brainstorming, consulting and thinking together with the designers and then chose the best solutions in terms of deadline, costs and construction technology together. This was a very interesting task, requiring a different approach, way of thinking and attitude than the simple realisation of finalised designs, given the much higher responsibility of the constructors in this case. cooperation produced very progressive technical solutions at the a rena and also the dike and the canal protection works (such as the water-tight competition pools) that we can all be proud of. apart from the coordination of the design activities, the biggest task was the establishment and operation of this system, to ensure the availability and effective utilisation of the human resources (at peak times, 250 structure constructor workers) and technical resources (7 tower cranes, mobile cranes and concrete pumps) and the materials to be built in (at peak times, 1 000 m 3 concrete and 50 t reinforcing steel bars a day) to meet the deadlines. i n the given case, we speak of big volumes, and the organisation of the relevant logistics, i.e. ordering, monitoring, certification, settlement of accounts etc. required the establishment of a well-organised system capable of coping also with any changes due to the parallel design and execution processes in a flexible and fast way. This was organically combined with a quality assurance system tailored to the project to certify the quality of what we built. We have managed to solve the tasks listed above in an exemplary way during the
project, so we will be able to utilise the results for the performance also of our current and future projects. note that construction is team work, with each and every participant, colleague, being an equally important element of the chain, so the success of the project is due to a decisive extent to the excellent work of my colleagues.
Does the aquatics complex have any point or area that you would like to highlight, that you are particularly fond of? i nspecting the building from the outside, my favourite part is clearly the main facade part towards the d anube. The wave shape, the dream of the designers, that lets you see the reinforced concrete support structure of the bottom two storeys and the steel structure above that is highly special, and it is a breath-taking sight when illuminated. The architectural finesse applied by the designers on the facade coverings is most obvious here. The essence of the idea is that the facade covering sheets, of identical colour, are bent in different ways, and so light is refracted in different ways on the various bands of the coverings. This solution dresses up the building in a continually changing natural lightshow. Within the arena, the reinforced steel “towers” supporting the long-span steel roof structure are closest to me. When i see them, i always recall the four bastions of an imaginary fort and i clearly feel that these structures will be able to bear their loads to the end of times. d uring construction, these towers, of an overall dimension of 10 x 10 x 27 m were one of the biggest challenges. to construct them, the slip-form technology, seldom used in high construction, was chosen, and with its help, the towers were built in 9 days each. (szilvia molnár)
„different level than anything we have encountered so far”

„
a le G jelentősebb három munkám között tartom számon”
Bánkúti Sándort, a Moratus Kft. főépítésvezetőjét kérdeztük a Duna Aréna és környéke vasbeton szerkezeteinek felépítéséről.
Octogon: Mióta dolgozik a Moratus Kft. munkatársaként és a cég eddigi, önt is érintő projektjei között hogyan tartja számon, hogyan fog visszaemlékezni a Duna Arénára? a lapítás óta dolgozom a cégnél. már csak mérete okán is a legjelentősebb három munkám között tartom számon a d una a rénát. a z, hogy ez egy közintézmény, valamint az, hogy sportszerető ember vagyok, további fontosságot kölcsönöz a projektnek számomra. m indezek mellett az a tény, hogy a véghatáridő mellett sikerült minden részhatáridőt is teljesítenünk a projekt közben, szintén pozitív emléket idéz fel bennem.
Mi a szorosan vett feladatköre egy főépítésvezetőnek, különösen egy ekkora volumenű munkában?
Egyaránt foglalkoztam a kapcsolattartással a megrendelő, az alvállalkozók, a társvállalkozók, a beszállítók és szükség esetén a tervezők irányába, miközben a helyszínen a kollégáink munkabeosztását, időnként a munkák ellenőrzését is végeztem. m indezeken felül a műszaki megoldások előzetes
átgondolása, kiválasztása és megtervezése, valamint a munkafolyamatok koordinálása, időnkénti ellenőrzése is része volt a feladatkörömnek.
De nem csak a volumen, hanem úgy általában a helyszín is roppant speciális (Duna közelsége, egy strandterület szomszédsága, földfelszín alatti infrastruktúra). A vasbeton szerkezetépítés tekintetében mit jelentett ez?
Egy adott munkaterületen gyakorlatilag több különböző, jelentősen eltérő jellegű szerkezetépítési munkát kellett elkészítenünk, nagyrészt egymással párhuzamosan, azonos időben. vegyük például a főépület szerkezetépítését: ennél elsősorban a méret volt kihívás, de hozzá kell tennem, hogy készültek viszonylag ritka szerkezetek is, például a csúszózsalus technológiával készülő lépcsőházi magok. ugyanakkor a főépülettel egy időben készültek, egyedi zsaluzattal és szigorú, pontos technológiával az önmagukban is vízzáró medencék. tudja, a lelátók az „ideiglenes” jellegük ellenére –mert talán az elnevezésük miatt egyszerűbb szerkezeteknek gondolnánk ezeket – jelentős és bonyolult
szerkezetépítési feladatot jelentettek számunkra, főleg az előre gyártott vasbeton szerkezetek, valamint az acélmerevítések egybehangolt építése miatt. de az 1 km hosszú gátrendszer (néhol mobilgátként létrehozott) kialakítását, a két esővízcsatorna védelmének szerkezetépítését is mi végeztük le, vagy akár mondhatom a „kisebb”, a béke-kutat érintő munkánkat – ebben az esetben folyamatos üzem mellett a gépészeti rendszer környezetét kellett átépíteni. Ezekhez járultak még olyan különleges feladatok, mint az ugrótorony, a pezsgőfürdő medencéje, a mérőállomás, illetve a kerti támfalak, a lépcsők, az elektromos fogadóépület, a web-kamera alaptestek és a főnyomócső feletti híd, melyek számos, egymással összehangolandó feladatot jelentettek számunkra. m indezeken túl a projekt egyik fő nehézségét az adta, hogy a társvállakozókkal (Ferrobeton, kész , cl H, kerex, m HH) folyamatosan, egymás előttután vagy egymással párhuzamosan, teljes szinkronban kellett dolgoznunk. vagyis a hagyományos szerkezetépítéshez, például egy irodaházhoz képest, lényegesen sokrétűbb, komolyabb együttműködést jelentett a duna a réna létrehozása. (molnár szilvia)
Fotó: Végel Dániel / Photo by Dániel Végel
“ i consider it one of my three most important works”
We have asked Sándor Bánkúti, main construction manager of Moratus Kft., about the construction of the reinforced concrete structures of Danube Arena and its surroundings.
Octogon: How long have you been on the staff of Moratus Kft. and how do you rank, how will you remember Danube Arena among the projects of the company with relevance for you too? i have worked for the company since its foundation. i consider danube a rena one of my three most significant works, if only for its size. its being a public institution and the fact that i am a person who loves sports makes the project even more important for me. additionally, the fact that besides the final deadline we have managed to comply also with the partial deadlines during the project also evokes a positive memory in my mind.
Strictly speaking, what are the responsibilities of a main construction manager, in particular in a work of such volume?
i dealt with contact-keeping with the client, the subcontractors, the co-contractors, the suppliers and when it was necessary with the designers, and i supervised at the same time the schedules of our colleagues and sometimes the works on site. moreover, preliminary reflection on the technical solutions, their selection and design as well as the coordination and sometimes the checking of the work processes were also part of my job.
Not only the volume, but also the location in general was most special (proximity of the Danube, adjacent beach area, underground infrastructure). What implications did that have for the construction of the reinforced concrete structure?
p ractically, we had to do several distinct structural works of very different characters on the same working area, mainly parallel with each other, simultaneously. l et’s take for example the structural engineering works of the main building: the biggest challenge was its size, but let me add that relatively rare structures were also constructed for it, such as the staircase cores made with slip-form technology. a t the same time, simultaneously with the main building, the self-standing water-tight basins were also made with custom formwork and a strict and precise technology. you know, the grandstands, despite their “temporary” nature – although one might assume they are simpler structures based on the name – implied significant and complex structural engineering tasks for us due particularly to the concerted construction of the prefabricated reinforced concrete structures and
the steel reinforcements. t he implementation of the 1 km long dike system (created at some places as mobile dike) and the structural works to protect the two rainwater canals were also executed by us, or i could also mention our “minor” work affecting b éke-kút – there we had to rebuild the environment of an engineering system that was to be kept in continuous operation in the meantime. i n addition to the above, we had such special tasks as the diving tower, the hot tub basin, the measuring station, and the retaining walls in the garden, the stairs, the electric reception building, the basic webcam units and the bridge over the main pressure pipe implying many tasks to be harmonised with each other for us. o ver and beyond the above, one of the main difficulties of the project was that we had to work continuously right before/after or parallel with the co-contractors (Ferrobeton, kész , cl H, k erex, m HH), in full synchrony. t hat is, compared to traditional structural engineering, e.g. an office building, the creation of d anube a rena meant substantially more complex and serious cooperation. (s zilvia m olnár)

Magyar építkezés a világ élvonalában
A Duna Aréna tartószerkezet-építése

A főépülethez vébé üzemmódban a hosszhomlokzatok mentén kapcsolódnak az északi és a déli ideiglenes lelátók (90 x 27 x 44 m), melyek cölöpökkel gyámolított monolit alapozásra tőcsavarok segítségével támaszkodó, előregyártott vasbeton pillérvázas szerkezetek, acélszerkezetű tetőfelépítménnyel.
A világversenyt követő gyors bonthatóság érdekében a tartószerkezet merevségét acélszerkezetek biztosítják, melyek mindenhol száraz kapcsolattal csatlakoznak a vasbeton szerkezetekhez. A lelátók előregyártott vasbeton pillérvázas szerkezeti rendszerének tervezése parkolóházi szerkezetként történő utóhasznosítás, a tetőfelépítémény acélszerkezetű tartóinak tervezése pedig csarnok keretállásként történő utóhasznosítás figyelembevételével történt.
A két különböző üzemmódból következően a kivitelezés is két ütemben zajlik. Első ütemben
Magyarország 2015 márciusában a mexikói Guadalajara városától átvállalta a 2017es vizes-világbajnokság megrendezését, és egyúttal azt is, hogy a versenyre felépíti az új, 15 000 fő befogadására alkalmas Duna Arénát. A létesítmény megvalósítására a nemzetközi gyakorlattól eltérően kevesebb, mint két év állt rendelkezésre. Tekintettel arra, hogy egy ekkora és ilyen jellegű sportlétesítmény tervezése és felépítése a nemzetközi példákat vizsgálva legalább négy-öt évet vesz igénybe, a tervezett átfutási idő extrém rövidnek nevezhető. A tárgyi cikk az uszodakomplexum (főépület, fejépület, Duna felé eső főhomlokzati épületrész) az ideiglenes lelátók és a kapcsolódó projektelemek (2 000 és 4 000 mm átmérőjű csapadékcsatornák védelme, árvízvédelmi gát és műtárgyai, Béke-kút új gépháza) vasbeton szerkezeteinek rekordidő alatt történő kivitelezését mutatja be, ismertetve azokat az építéstechnológiai és építésszervezési megoldásokat, melyek a tartószerkezet sikeres megvalósításáhozz vezettek. szerkezeti felépítés: Az uszodakomplexum tervezését, így tartószerkezeti kialakítását és szerkezeti részleteit is alapvetően meghatározta, hogy két, egymástól jól elkülönülő „üzemmódra” tervezték. Az Aréna normál üzemmódban verseny- és tömegsporthasználatra, illetve 6 000 fős nézői befogadóképességet igénylő vizes sportrendezvények lebonyolítására alkalmas. Ettől jelentősen eltér a vébé üzemmód, amikor az uszoda a két ideiglenes (északi és déli) lelátóval kibővítve alkalmassá válik a 2017-es világbajnokság megrendezésére 15 000 néző befogadása mellett. Az Aréna alaprajzilag téglalap elrendezést követ, de a rövid homlokzatok mentén az épületkontúrok „hullámzó” alaprajzi túlnyúlásúak. Az épület méretei magukért beszélnek, hiszen az ideiglenes lelátókkal bővített épület bruttó szintterülete meghaladja az 50 000 m2-t. A normál üzemmódra tervezett 238 x 94 x 44 m befoglaló méretű alapépület három dilatációs egységből áll. Az építési terület centrumában helyezkedik el a cölöpökkel gyámolított, monolit vasbeton főépület, melyet a négy sarkán alátámasztott acélszerkezetű tetőfelépítmény fed le. A főépülethez a keleti oldalon – a Népfürdő utca felől – a szintén cölöpökkel gyámolított monolit vasbeton fejépület csatlakozik, részben acélszerkezetű fedéssel. A harmadik dilatáció a Duna felől kapcsolódik a főépülethez. A főhomlokzati épületrész alaprajzilag hullámvonalat követ, szerkezeti kialakítását tekintve: cölöpökkel gyámolított monolit vasbeton pillérvázas konstrukció, acélszerkezetű felépítménnyel.

a vébé üzemmódra tervezett létesítmény készül el az ideiglenes lelátókkal kiegészítve, melynek eredményeként a főépület hosszhomlokzatai még nem épülnek meg. A világbajnokságot követően a második fázisban az ideiglenes lelátók elbontásával és a hosszhomlokzati szerkezet beépítésével alakul ki a normál üzemmódnak megfelelő épület. építés + szervezés + tervezés: Az aréna felépítésére kiválasztott terület lokációját tekintve kiváló helyszín, de földrajzi adottságai és épített környezete olyan építésszervezési és építéstechnológiai kihívások megoldását tették szükségessé, melyek a kivitelezés egyes fázisaiban jelentős kockázatokat hordoztak. Az építési helyszínt a munkaterület átvételét követően munkagépekkel és tehergépjárművekkel nem lehetett megközelíteni, mivel a Népfürdő utcát szegélyező járda alatt egy olyan 1 600 mm átmérőjű víznyomócső futott,
melyet közúti gépjármű teherrel nem lehetett terhelni. Ennek áthidalására a végleges bejárást szolgáló, földbe süllyesztett vasbeton híd megépítéséig pontonhidakat kellett vetni. Ugyanez a probléma merült fel a komplexum északi oldalán elhelyezkedő két nagy átmérőjű csapadékcsatorna esetében is, melyek megközelíthetetlenné tették az építési terület egy jelentős részét. A csatornák feletti közlekedést biztosító védőlemez megépítéséig szintén pontonhidakon keresztül zajlott a forgalom. Mindezek mellett az építési helyszín a felvonulás pillanatától az új gát felépítéséig árterületnek számított. Szerencsére az árvíz elkerülte az építkezést.
A kivitelezés során figyelembe kellett venni, hogy a főépület déli oldalától néhány tíz méterre elhelyezkedő Dagály Strandfürdőnek az üzemelését gyakorlatilag a projekt teljes ideje alatt biztosítani kellett. Ennek következ-
tében az építési telken belül futó, a fürdőhöz köthető vezetékek és gépházak cseréjét illetve átépítését, ide értve a törvényileg védett Béke-kúthoz kapcsolódó munkákat is, folyamatos üzem mellett lehetett elvégezni. Alapos szervezést és részletes szabályozást igényelt a beépített anyagok logisztikai folyamatainak szervezése. Külön stáb foglalkozott az anyagok rendelésével, a kiszállítások ütemezésével, nyomonkövetésével és igazolásával. Sok esetben hetekre előre, kamiononként kellett ütemezni a beépítésre kerülő matériák szállítását. Csúcsidőben csak a szerkezetépítési munkákat öt betonkeverő telepről és öt betonacél hajlító üzemből szolgálták ki. A kitűzött határidők sikeres teljesítését alapvetően meghatározta a projekt elején készített részletes kivitelezési ütemterv és organizációs terv, mely egyben definiálta a tervezési munka mérföldköveit is. Itt volt szükség azokra a felismerésekre, hogy


A vegyesen monolit vasbeton pillérvázas és falas szerkezeti rendszerű alapépület (főépület, fejépület és főhomlokzati épületrész) szerkezetépítési munkái három fő időszakra bonthatók. 2015 augusztusa és novembere között zajlott a teljes épület alapozása, valamint a főépületen belül a merevítő magok („tornyok”), a földszinti és medenceszinti szerkezet kivitelezése a +10,80 m-es födémszintig bezárólag, beleértve a medencék tartószerkezetét is, továbbá az előregyártott lelátószerkezet első ütemének szerelése. 2015 decembere és 2016 áprilisa között épült meg a fejépület, valamint a főhomlokzati épületrész felszerkezete, párhuzamosan az acél tetőszerkezet szerelésével. 2016 márciusáprilisában történt a főépület közönségforgalmi és lelátószinti szerkezeteinek megvalósítása (+10,80 m - +18,40 m szint között), már a kész tetőszerkezet alatt.
Az építkezésen a maximális monolit szerkezetépítő létszám 250 fő volt. Csúcsidőben a monolit szerkezetépítési munkákat négy betonkeverő telepről és három betonacél hajlító üzemből szolgálták ki. A beépített beton és betonacél mennyiség napi maximuma meghaladta az 1 000 m 3-t illetve az 50 tonnát. A termelékenység biztosítása érdekében kiemelt figyelmet kellett fordítani az építésgépesítés megtervezésére is. A szerkezetépítési munkák során 7 db toronydaru, 3 db autódaru és 2 db betonpumpa szolgálta a rekordsebességű előrehaladást. A kivitelezési feladatokon túl a monolit vasbeton szerkezetépítési munkákhoz tartozó építéstechnológiai terveket is a Moratus Szerkezetépítő Kft. készítette. a z alaplemez építése: A főépület és a fejépület 11 000+5 000 m2 alapterületű vízzáró lemeze 2015 augusztusa és novembere között épült meg. Az alaplemez építése során 1 352 tonna az acél tetőszerkezet hagyományos szerelési metódussal az adott körülmények között nem építhető meg, továbbá, hogy az ideiglenes lelátók megvalósítása, beleértve a mélyalapozási munkákat is, csak a főépület tartószerkezetének befejezése után kezdhető meg. m onolit vasbeton szerkezetek: A vasbeton szerkezetépítési munkák esetében a legnagyobb kihívást a rendkívül szoros határidőn és szűkös felvonulási területen túl a beépített anyagok nagy volumenének és logisztikai folyamatinak kezelése (~35 000 m3 beton, 5 000 tonna betonacél, 100 000 m2 zsaluzott felület, 1 450 db tőcsavar), valamint a technológiailag komoly kihívást jelentő szerkezetek és szerkezeti elemek - vízzáró alaplemez, „vízhatlan” medencék, látszóbeton ugrótorony, acélszerkezetet gyámolító merevítő magok, továbbá a tető alá utólag beépített lelátószint - kivitelezése jelentette.
betonacél és 8 900 m3 beton került bedolgozásra. Az alapépület alá lefúrt cölöpöket 70 cm vastag, 2-6 cölöp együttdolgozását biztosító fejtömbök fogják össze, az átlagosan 50 cm vastag alaplemez közvetlenül ezekre támaszkodik. A főépület és a fejépület egy-egy dilatációs egységet képező, műgyanta fogadására alkalmas felülettel épített alaplemeze 20+10 ütemben, sakktábla-elrendezést követve, 72-96 óra technológiai szünettel készült. A nyári hőségben a betonozási munkák éjszaka, alacsony hőfejlődésű cement alkalmazásával történtek. A lemez gyors építését a kivitelezés szempontjából optimalizált vasaláson és a szakképzett fizikai állomány alkalmazásán túl egy olyan, a lemez vastagságához igazodó bordázott munkahézagképző elem alkalmazása tette lehetővé, melyre a munkahézagok vízzárását biztosító belső fugalemezt már gyárilag integrálták.
A tetőszerkezet alátámasztását biztosító, a főépület négy sarkában elhelyezkedő merevítő magok alá 245 cm vastag alaplemezek kerültek, melyeket magonként több, mint 100100 db cölöp gyámolít. Ezek a lemezszakaszok 3-4 magassági ütemben, az egyes ütemek között 4 óra technológiai szünet megtartásával lettek betonozva. Annak érdekében, hogy az egyes ütemek között vízszintes munkahézag ne alakulhasson ki, tehát az egyes rétegek összevibrálhatók maradjanak, a betonkeverékhez a szállítási, bedolgozási és kötési időt
figyelembe véve eltérő mennyiségű kötéskésleltető adalékszert kellett adagolni. merevítő magok építése csúszózsaluzattal: Az építmény meghatározó szerkezeti elemei a főépület négy sarokpontjában elhelyezett 9,40×9,35x27 m befoglaló méretű monolit vasbeton merevítő magok, melyek négy ponton támasztják alá az Aréna acél tetőszerkezetét. A magokra a tetőszerkezetről igen jelentős függőleges (30 000 kN) és vízszintes (6-7 000 kN) terhelések adódnak. Ennek felvételét szolgálják a magok 50 cm vastag külső, illetve 50-70 cm vastag belső merevítő falai. Az erőbevezetés környezetében a merevítő szerkezetek legfelső szinti belső falai, valamint a magok 27 m magasan elhelyezkedő 75 cm vastag zárófödémjei C50/60 betonminőséggel készültek. A szerkezetépítési munkák első ütemének határidőre történő befejezését alapvetően maghatározta a magok építéstechnológiája. A tárgyi épületelemek függőleges szerkezetei csúszózsaluzattal készültek, melynek eredményeként az egyes magok kivitelezésének átfutási ideje 24 órás munkavégzés mellett kilenc munkanap volt. Ezt követően készültek el a belső födémek, a lépcsők, majd a zárófödém. „vízhatlan” medencék: Az aréna főépületében kapott helyet a mozgatható végfalakkal szerelt 50 m-es versenymedence, illetve a műugró medence. A fejépületben került elhelyezésre a mozgatható végfalakkal és fenéklemezzel szerelt bemelegítőmedence, valamint
a tanmedence és a kör keresztmetszetű jakuzzi.
A fővállalkozói követelményeknek megfelelően – a FINA által előírt medencehosszra vonatkozó szabvány biztonságos teljesítése érdekében – nagy pontosságú medenceszerkezetek készültek. A vasbeton szerkezettel szemben elvárt térbeli síkpontosság – az elméleti síkhoz mérve – +/- 10 mm volt. Ennek teljesítéséhez speciális, nagy szilárdságú és kis alakváltozási képességű falzsaluzat került legyártásra.
A Duna Arénában épült medencék különlegessége, hogy kvázi „vízhatlan” szerkezetként készültek. Ennek a megoldásnak a knowhow-ját a Moratus Kft. által kivitelezett több 1000 m3 vízzáró betonszerkezet építése során gyűjtött tapasztalat adta. A megoldás lényege, hogy a felhasznált keveréknek a különleges adalékok hatására rendkívül „erős” a vízzáró képessége. A medencék falai a sarkokból indulva, folyamatos geodéziai ellenőrzés mellet 7,5 m hosszú betonozási ütemekben készültek, az egyes ütemek között 72-96 óra technológiai szünettel. A vízszintes és függőleges munkahézag-képzés vízzáró belső munkafuga lemezekkel történt.
csatornavédelem: Az építési területet az alapépület északi oldalán a földfelszínhez közel két darab nagyátmérőjű csapadékcsatorna szeli keresztül, kb. 150 fm hosszon. Az épülethez közelebb eső beton anyagú csatorna 2000 mm átmérőjű, a távolabbi téglabolto -


zatú csatorna 4000 mm átmérőjű. A tárgyi csatornák műszaki állapota nem tette lehetővé a kivitelezés folyamán fellépő építési forgalom károsodás nélküli viselését, az építési munka peremfeltételei pedig nem tették lehetővé a két csatorna nyomvonalának tehermentesítését. Ezen okból kifolyólag már az ajánlati felhívás szerint is az építési feladat részét képezte a telken belül futó csatornák megfelelő védelmének kialakítása.
A végleges műszaki megoldást mindkét csatorna esetében a telken belül teljes nyomvonalon kiépített, hézagos cölöpfalakkal gyámolított csatornavédelmi lemezek (födémek) jelentették. A terhelési zónáktól függően (pl. közúti „A” teherrel terhelt zóna vagy 400 tonnás autódaru talpnyomásával terhelt zóna stb), a 60-120 cm vastagságban megépített monolit vasbeton födémlemezek lehajlásból eredő terhelését is minimalizálni kellett, amit a lemezek alá két rétegben lefektetett hőszigetelés között képzett légrés segítségével lehetett megoldani. á rvízvédelmi rendszer: A kijelölt építési terület a tenderidőszakban hatályos törvények szerint árterületként volt nyilvántartva.
Ezt az állapotot az uszodakomplexum felépítésével párhuzamosan értelemszerűen meg kellett szüntetni, így már a tenderidőszakban az építési feladat részét képezte egy közel 1 km hosszú, a Népfürdő utcától az Árpád híd pesti hídfőjéig tartó gát és kapcsolódó műtárgyainak kivitelezése. Az új, felerészben vasbeton, felerészben mobilgát felszerkezettel kialakított gátrendszer felépítésével az érintett szakaszon módosítani kellett az elsőrendű árvízvédelmi védvonal nyomvonalát is. A gátszerkezet alépítménye teljes hosszban egy átlagosan 10,50 m mély résfal, melyre vízzáró monolit vasbeton fejgerenda és fal támaszkodik. A vízzáró fejgerenda és gátfal a „szerkezetépítési gyakorlattól” eltérően – speciális vízzáró repesztő profilok beépítésével 20 m hosszú betonozási ütemekben készült, annak érdekében, hogy 2015 végén egy jeges ár esetén az építési terület már védve legyen. A védmű építése során a legnagyobb nehézséget a mobilgát-rendszer lehorgonyzó szerelvényeinek 1-3 mmes pontosságú beépítése jelentette a monolit fejgerendába, mely nagy pontosságú gépipari vízmérték beszerzését és alkalmazását tette szükségessé.
Mind a monolit szerkezetépítés, mind a közműépítés szempontjából komoly kihívást jelentett az árvízvédelmi rendszerhez tartozó műtárgyak megépítése. A gátrendszer részeként ugyanis mind a 2000 mm átmérőjű, mind a 4000 mm átmérőjű csapadékcsatorna a gát nyomvonalában új zsilipműtárggyal egészült ki, továbbá a Dagály Strandfürdő közműfejlesztése keretében több torkolati és átemelő műtárgy, valamint tolózárakna létesült. összefoglalás: A Duna Aréna, többek között a tartószerkezet rekordidő alatt történő felépítésének köszönhetően három hónappal a tervezett határidő előtt készült el. A projekt során az Aréna tervezői és kivitelezői számos olyan problémát oldottak meg, illetve több olyan új technológiát alkalmaztak, melyre Magyarországon eddig nem volt példa. Erre a létesítményre az egész magyar mérnöki társadalom büszke lehet, mert nemzetközileg is kiemelkedő műszaki színvonalú uszodakomplexum született. Ez csapatmunka volt a javából, mert ÉPÍTENI SZERETÜNK!

T
A Realization of the support structure at Danube Aréna
In March 2015, Hungary undertook to replace Guadalajara, Mexico as host of the 2017 world swimming championships, and to construct Danube Arena with a capacity of 15 000 by the time of the competitions. Contrary to international practice, less than 24 months were available to implement the facility. Given the fact that according to the relevant international examples, the design-and-build of a sports facility of this kind and size takes at least 4-5 years, the envisaged lead time was extremely short indeed.
This article presents the execution, in record time, of the reinforced concrete structures of the aquatics complex (main building, head building, building part with the main facade towards the Danube), the temporary stands and the related project elements (protection of the rainwater drainage canals of 2 000 and 4 000 mm diameter, flood protection dike and objects, new engine house of Béke Well), and it describes the building technological solutions and construction organisation methods that led to the successful implementation of the support structure.
structural design: The design of the aquatics complex, including the design and structural details of the support structure, was determined to a decisive extent by its being meant for two distinct “modes of operation”. In normal mode, the arena can be used for competition and grass-root sports events, and also to stage aquatics events attended by a maximum of 6 000 persons. In the radically different world cup (WC) mode, the area, extended by two temporary (northern and southern) grandstands, can stage the 2017 world championships and host 15 000 people.
The layout of the Arena is rectangular, but along the short facades, the contours of the building have “wave-like” extensions. The dimensions of the building speak for themselves: the gross floor space, extended by the temporary stands, exceeds 50 000 m2. The overall size of the basic building designed for normal operation is 238 x 94 x 44 m, and it is made up of three dilatation units. The centre of the construction area is occupied by the monolith reinforced concrete main building supported by piles, covered by a steel-structured roof superstructure supported at its four corners. On the eastern (Népfürdő utca) side, the main building is connected to a head building that is also made of monolith reinforced concrete and supported by piles, and covered partly by a steel-structured roof. The third dilatation unit connects to the main
building on the side of the Danube. The floor plan of the building part featuring the main facade follows a wavy line, and it is a monolith reinforced concrete frame structure standing on pillars, with a steel superstructure.
In WC mode, a northern and a southern temporary stand (90 x 27 x 44 m) is attached to the main building at the facades along its lengths; the stands are prefabricated reinforced concrete frame structures with a steelstructured roof superstructure, relying on the monolith foundation supported by pillars with the help of foundation bolts. For the sake of fast disassembly after the world championships, the rigidity of the structure is ensured by steel structures connected to the reinforced concrete structures by “dry” connection everywhere. The system of the prefabricated reinforced concrete frame structures of the stands and the steel-structured supports of the roof superstructure were designed with a view to their secondary use as parking garage structure and hall fame structure, respectively. As a consequence of the two distinct modes of operation, construction also takes place in two phases. In Phase 1, the facility designed for WC mode is realised, with the temporary stands and, consequently, the facades along the length of the main building will have to wait. In Phase 2, after the world cup, the building designed for normal operation is realised by disassembling the stands and building in the structure of the facade along the length of the building.
construction + organisation + design: The location of the area chosen for the construction of the Arena is excellent, but its geographical specifics and built environment m ade it necessary to meet construction organisational and technological challenges representing high risks in certain execution phases. The construction site could not be reached by the construction machines after take-over due to the 1600 mm diameter water pressure pipe under the sidewalk along Népfürdő utca that could not bear the load of road vehicles. To solve the problem, pontoon bridges had to be installed until the construction of the reinforced concrete bridge recessed in the ground that was to serve as final access road. The same problem was encountered in connection with the two largediameter rainwater drainage canals on the northern side of the complex that made a significant part of the building area inaccessible. Until the construction of the protective plate providing for safe traffic over the canals,
pontoon bridges had to be installed also there. Moreover, from the moment of taking over the construction site to the completion of the new dike, the building site qualified as flood plain area. Luckily, there were no floods during the construction works.
During execution, it had to be taken into account that Dagály Bath located at a few tens of meters from the southern side of the main building was to be kept in operation practically throughout the project. Consequently, the replacement and reconstruction of the cables and engine houses on the construction plot connected to the baths and the works concerning Béke Well protected by law had to be executed without interrupting its operation.
The logistics of the materials to be installed required thorough organisation and detailed regulation. A special team was assigned to order the materials and to schedule and monitor and certify delivery. Often, delivery had to be scheduled weeks in advance, broken down by cargo truck. At peak times, the structural engineering works alone were supplied from five concrete mixing plants and five concrete steel bending plants.
Meeting the deadlines was made possible decisively because of the detailed construction timetable and organisation plan drawn up at the start of the project that defined also the milestones of the design work. We had to realise at that point that, under the given circumstances, the steel roof structure could not be built with the traditional assembly method and the deep foundation works could only be started after the completion of the support structure of the main building.
m o nolith reinforced concrete structures: Apart from the extremely tight deadline and the confined construction site, the main challenge posed by the reinforced concrete structural works was to cope with the logistics and the large volume of the materials to be installed (~35 000 m 3 concrete, 5 000 tonnes of re-bars, 100 000 m2 formwork, 1 450 pcs of foundation bolts), and the execution of the technologically challenging structures and structural elements such as the water-tight base plate, the “water-proof” pools, the exposed concrete diving tower, the rigidifying cores supporting the steel frame and, moreover, the level of the grandstand that was to be built in under the roof after the latter was ready.
The structural engineering works of the basic building (main building, head building and building part with the main facade) where
the monolith reinforced concrete frame structure and the infill brickwork were applied in combination was divided into three main periods. The foundation works of the entire building, the rigidifying cores (“towers”) inside the main building, the ground-floor- and poollevel structure up to a ceiling level of +10.80 m and the assembly of the first phase of the prefabricated stand structure took place from August to November 2015. The head building and the superstructure of the building part with the main facade were constructed from December 2015 to April 2016, parallel with the assembly of the steel roof structure. In MarchApril 2016, the public traffic and stand-level structures of the main building were realised (between the heights of +10.80 m - +18.40 m), below the already completed roof structure.
The maximum headcount of monolith structural engineering workers was 250. At peak times, the works concerned were supplied from four concrete mixing plants and three rebar bending plants. The daily maximum quantity of incorporated concrete and rebar exceeded 1 000 m3 and 50 t, respectively. To ensure productivity, special attention had to be paid to the accurate planning of building mechanisation. Progress at record speed was promoted by 7 tower cranes, 3 mobile cranes and 2 concrete pumps. In addition to the execution tasks, Moratus Szerkezetépítő Kft. also drew up the construction technological plans of the monolith reinforced concrete carcass works.
construction of the base plate: The waterproof plate of 11 000+5 000 m2 of the main and the head building was constructed between August and November 2015. 1 352 t rebar and 8 900 m3 concrete was worked into the plate. The piles drilled under the basic building are held together by block heads of 70 cm thickness ensuring the cooperation of 2-6 piles, and the base plate of 50 cm thickness leans on the latter. The base plate of the main building and the head building, constituting a single dilatation unit and constructed with a surface suitable for receiving resin was made in 20+10 phases, in a chessboardlike arrangement, with technological breaks of 72-96 hours. In the summer heat, the concrete work was done at night, by using lowheat cement. In addition to the reinforcement optimised for construction and the skilled manual worker staff, the fast construction of the plate was facilitated by applying ribbed construction-joint-forming elements adjusted to the thickness of the plate, with the factory-integrated inner joint sheets providing for sealed closing.
Base plates of 245 cm thickness were installed under the rigidifying cores located at the four corners of the main building,
designed to support the roof structure, supported by more than 100 piles by core. The concrete works of the plate sections concerned were made in 3-4 height phases, with 4-hour technological breaks between two phases. To prevent the formation of horizontal construction joints between any two phases, that is, to keep the layers suitable for being vibrated together, different quantities of retarder admixtures had to be fed to the concrete mixture in function of the delivery, working and setting times.
construction of the rigidifying cores by slipforming: The decisive structural elements of the building are the monolith reinforced concrete rigidifying cores (overall dimension: 9.40×9.35x27 m) installed at the four corners of the main building to support the steel roof structure at four points. The roof structure exerts significant vertical (30 000 kN) and horizontal (6-7 000 kN) load on the cores. Bearing the load is promoted by the rigidifying outer and inner walls of 50 and 50-70 cm thickness, respectively, of the cores. In the vicinity of the impact area, the uppermostlevel inner walls of the rigidifying structures and the 75 cm thick closing covers of the cores located at a height of 27 m were made with C50/60 concrete quality.
The successful completion of Phase 1 of the structural engineering works was due essentially to the building technology of the cores. The vertical structures of the building elements concerned were made by slip-forming that reduced the lead time of executing each core to nine 24-hour working days. The interior floors, stairways and the roof slabs were completed after that.
“ waterproof” pools: The 50 m competition pool and the diving pool featuring movable endwalls are in the main building of the Arena. The warm-up pool featuring movable end-walls and bottom plate was installed in the head building, together with the training pool and the Jacuzzi having a circular cross-section.
In line with the requirements of the main contractor, to safely meet the pool length standards set by FINA, high-precision pool structures were made. The expected spatial plane accuracy of the reinforced concrete structure relative to the theoretical plane was - +/- 10 mm. To comply with that, a special high-strength wall formwork with small deformation capacity was manufactured.
It is a special feature of the pools constructed at Danube Arena that they were created as quasi “waterproof” structures. The relevant know-how was provided by the experience of Moratus Kft. accumulated during the construction of water-tight concrete structures of thousands of cubic metres. The point

is that the mixture being applied has exceptionally “strong” waterproofing capacity due to the special additives being used. Pool construction started at the corners, under continuous geodetic control, in concrete-making phases of 7.5 m, with 72-96 hour technological breaks between the phases. Horizontal and vertical construction-joint-making was done with water-tight inner joint plates.
canal protection: The construction site is crossed by two large-diameter rainwater drainage canals located close to ground surface along around 150 lm, on the northern side of the basic building. The diameter of the canal made of concrete, the one that is closer to the building, is 2000 mm diameter and that of the other, a brick-vaulted one lying farther away is 4000 mm diameter. The technical condition of the canals was such that they could not bear the construction traffic load without damage, and the boundary conditions of the construction works did not make it possible to avoid exerting any pressure along the tracks of the two canals. Therefore, creating adequate protection for the drainage canals within the plot had been part of the construction assignment already in the call for tenders. The ultimate solution lay in the installation

of canal-protection plates (slabs) supported by sparse piles over the tracks of the two canals within the plot. The load due to the sag originating from the monolith reinforced concrete slab plates constructed in 60-120 cm thickness had to be minimised as well, depending on the load zones (e.g. zone loaded by “A” road load or zone loaded by the ground contact pressure of a 400 t mobile crane etc.), a task that could be solved by air-gap-formation between the two thermal insulation layers laid under the plates.
flood protection system: The designated construction Area was registered as floodplain pursuant to the legislation in effect at the time of the tender. This status had to be terminated as a matter of course parallel with the construction of the aquatics complex; therefore, the construction of an almost onekm-long dike and its objects from Népfürdő utca to Árpád híd had been part of the assignment already in the tendering phase. With the construction of the new dike system, consisting in 50-50% of a reinforced concrete superstructure and a mobile dike, the trail of the primary flood defence line had to be modified as well along the affected section. The substructure of the dike structure is
a cut-off wall of 10.50 m depth on average over the entire length, with water-tight monolith reinforced concrete lintel and walls relying on it. Contrary to “structural engineering practice”, the water-tight monolith reinforced concrete lintel and dike walls were made – by building in special water-tight fracturing profiles – in 20-m-long concrete-making phases, to have the construction area protected already at end-2015 in case of an icy flood. The main difficulty during the construction of the defence works was to build the anchoring fractures of the mobile dike system into the monolith lintel with a precision of 1-3 mm, which made it necessary to procure and apply a high-precision engineering level gauge.
It was a major challenge from the point of view of both the construction of the monolith structure and the utility construction works to construct the objects of the flood protection system. For, as part of the dike system, both the 2000 mm diameter and the 4000 mm diameter rainwater drainage canal was supplemented along the track of the dike with a new sluice facility, and as part of the utility development of Dagály Baths, estuarine and water-lifting objects and several gate valve shafts were also created.
s ummary: Thanks among other things to the realisation of the support structure in record time, Danube Arena was completed three months ahead of the envisaged deadline. Its designers and constructors solved many problems during the project, and they applied several new technologies for the first time in Hungary. The Hungarian engineering society can be proud of this facility: an internationally competitive high-tech aquatics complex was created. This was team work at its best - because WE LOVE TO BUILD.
Moratus Szerkezetépítő Kft. 1037 Budapest, Bojtár u. 53.
Tel.: (+36-1) 466 4827
Fax: (+36-1) 883 0243
E-mail: info@moratus.hu
Web: www.moratus.hu


A mélyépítés kihívás A i
A Duna Aréna építésének talán legnehezebb faladatai éppen azt a részt érintették, amiből az ember jóformán nem érzékelhet semmit, hiszen a föld alatt van. Barsi Gyula főépítésvezetővel és Kovács Béla ügyvezetővel, az OK Bau vezető mérnökeivel beszélgettünk a Duna Aréna mélyépítési és árvízvédelmi munkálatainak nehézségeiről és a problémákra született mérnöki megoldásokról.
Octogon: Milyen feladataik voltak a Duna Aréna építésében?
kovács Bél A : A Duna Aréna munkálatait először is a Dagály korábbi létesítményeinek bontásával kezdtük, majd a földmunka és a közműépítés feladatai hárultak ránk. Akkor ért minket az első meglepetés, amikor elkezdtük a meglévő medencék bontását: a medence alatt egy újabb medencét
Molnár Péter
találtunk, így dupla munkát kellett elvégeznünk. Az volt az igazi nehézség, hogy viszonylag kicsi építési terület állt rendelkezésre, aminek körülbelül a 90%-a beépítésre került, a maradék 10%-on pedig meglévő létesítmények miatt kerültünk akadályba. két viszonylag nagy a Dunába bevezetett csatorna található a terület alatt, egy 2 és egy 4 méter átmérőjű, amelyeknek gondoskodni kellett a védelméről.
Amikor elkészültünk a lavírsíkkal még további két munka állt előttünk: folyt egy árvízvédelmi gát építése, ami közel 900 méter hosszú, és résfalakkal épült ki a r ákos-pataktól az á rpád hídig, így a résfalkészítőgépek munkavégzéséhez elég komoly földmunkát kellett végeznünk. Emellett meg kellett védenünk az eddigi vezetékek mellett azokat is, amiket újonnan telepítettünk,

Fotó:
mert a végleges épület mellé egy másik rész, az ideiglenes lelátók toldalékai kerültek, amiket a vébé után elbontanak majd. Ez egy kicsit megnehezítette a munkavégzést, hiszen szűk a terület ahhoz, hogy egyszerre ennyi építési fázis folyjon rajta. Egyszerre haladtak a földmunka, az alapozás, a szivárgó építés és a közműépítés munkálatai. mondtam is a kollégáimnak, hogy most nézzenek körül, mert az életben nem fognak látni ilyen munkagépsűrűséget; ezen a kis területen dolgozott 3 cölöpöző és 2 réselőgép, vagy 5-10 munkagép az alapozáshoz, és közben dolgozott a közműépítés is.
A terület közművesítésének van valami különlegessége?
k B: Nagy munka volt, amíg elkészítettük az alapozás földmunkáját, az alapozások után pedig a társvállalkozó a cölöpözési munkákat. Ezeket követően meg kellett csinálnunk a fejtömböket, meg kellett oldanunk az épület szivárgó rendszerét, és ekkor még mindig csak a föld alatt jártunk. Erre épült rá az alapozás, majd csak ezután tudtuk kezdeni a közműépítési munkákat. A közműépítésnél megint voltak nehézségeink, mert üzemelt a strand, aminek az összes vize az építési területen lévő átemelőbe került, a strand pedig alacsonyabb szinten van, mint a Duna – ha tehát a Duna vize megemelkedett, akkor a gravitációs vízelvezetést le kellett zárni és az átemelőbe vezetni. Ezt az átemelőt kellett kiváltanunk egy újra, miközben üzemelt a rendszer. meg kellett oldanunk a mai árvízvédelmi elvárások miatt a kettős lezárási lehetőséget, ami a korábbihoz hasonlóan működik: alacsony vízállás esetén a víz gravitációsan távozhat, ha pedig megemelkedik a Duna szintje, akkor átemelővel. itt a lépték volt az, ami egészen más a korábbiakhoz képest; csak hogy érzékeltessük a méreteket: ez egy 6 méter belső átmérőjű és 12 méter mélységű akna, amit két 900 l/s átemelő lát el, tehát másodpercenként majdnem 1 m 3 , percenként 60 m 3 víz kivételét oldja meg ez a gigantikus rendszer. Úgy építkeztünk, hogy először elkészítettük a műtárgyat, majd a kitorkollásokat a Duna felé, ezek a torkolatok keresztezték az árvízvédelmi töltést, ahol épp a résfal készült. Ezen a ponton kezdett
igazán bonyolult mérnöki feladattá válni a kivitelezés. Amikor elkészültünk ezzel, az üzemeltetés előtt még meg kellett oldanunk az átkormányzásokat is. csak ezek után kezdődött maga a közműépítés. Ez szennyvíz-, csapadékvíz-, ivóvíz- és tűzivízhálózatból állt, amelyek kiépítésének nehézségét a nagyon szűk munkaterület adta. Úgy kellett dolgoznunk, hogy közben a magasépítés is haladhasson. komoly szervezést igényeltek ezek az ütközések; volt, amikor éjszaka dolgoztunk, hogy ne akadályozzuk a magasépítést. Amikor pedig végre elkészültünk a rendszerrel, az elkészült csatornáinkat meg kellett védenünk, mert a tetőszerkezet építése miatt itt 500-600 tonnás daruk üzemeltek, amelyeknek a közlekedését meg kellett oldanunk, mert egy ekkora munkagép bármilyen talajon, bárminemű ideiglenes úton nem megy el – másfél méteres ágyazatot kellett készítenünk a csatornák fölé, hogy ezek a daruk működni tudjanak. m ire az épület tető alá került éppen elkészültek a medencék is, amikre víztartási próbákat kellett végezni, ezt a vizet pedig szintén el kellett vezetnünk. Elég komoly egyeztetésekre volt szükség tehát, hogy előre jussunk és mindenki dolgozhasson. m indezek mellett még volt egy másik feladatrészünk is: a résfalak mellett az árvízvédelemhez ki kellett alakítanunk egy szivárgó rendszert, vagyis a résfallal párhuzamosan megépült egy csatornarendszer, ami a szivárgó vizeket szintén a Dunába emeli.
Milyen további nehézségekkel kellett számolniuk?
B A rsi Gyul A : Nehézség volt az egész építkezés során, hogy párhuzamosan zajlott a tervezés és a kivitelezés. megesett, hogy a tervező megrajzolta egy terv újabb változatát, azt másnap jóváhagyta a mérnök, harmadnap a cső már lent volt a földben. Nem volt egyszerű fölvenni a tempót. Nagy mérnöki munka volt, hogy az épület körüli csapadékcsatorna a Duna felé lejt, míg a szennyvízcsatorna pont az ellenkező irányba, a Népfürdő utca felé (a Népfürdő utcai közcsatorna a szennyvizek befogadója). tehát gyakorlatilag két ellentétes lejtésű csatornát kellett párhuzamosan
fektetnünk, ami nem volt egyszerű, eközben pedig épült a két ideiglenes lelátó, ezek alapozásai alá kellett a csatornáknak elkanyarodniuk. kész csoda, de mindent megoldottunk határidőre. Amikor elkészült ez a csatornarendszer, kezdődhetett az útépítés, ami már a látszó felület. Ennek az volt a nehézsége, hogy 20 éve nem tapasztalt téli időszak következett, ami jelentősen hátráltatta a munkánkat. Elkészítettük az utakat, letettük a térkőburkolatot, aztán az egészet le kellett védenünk os B-lapokkal, terfillel és homokszórással, mert egy éppen elkészült úton 3 nap múlva már építési közlekedés folyt. szép mérnöki feladat volt mindezt véghezvinni és rengeteg egyeztetéssel, konfliktussal járt, hiszen mindenki dolgozni akart és nem akadályozhattuk egymást ebben.
Van olyan részlet, amire különösen büszkék?
BGy: Az átemelő és az árvízvédelmi rész kitorolásainak a kivitelezésére igazán büszkék vagyunk. Az átemelő kivitelezése a mérete miatt komoly teljesítmény volt: ez sem építészetileg, sem pedig gépészetileg nem egy hétköznapi darab. Ezek mellett elég büszkék vagyunk arra is, hogy úgy kiviteleztünk egy létesítményt, hogy az részben még üzemelt, másrészt minimális terület állt a rendelkezésünkre. Nem volt könnyű mindezt konfliktus nélkül megoldani – nem is mindig sikerült. A környezet rendezése is megmutatja, hogy itt olyasmi készült, amire azt hiszem, mindannyian büszkék lehetünk, még az unokáinknak is mutogathatjuk. kemény és férfias munka volt ez telis-tele olyan feladatokkal, amiknek megoldásához elég nagy mérnöki tudás kellett. m i bebizonyítottuk a világnak, hogy a magyar építők sem elhanyagolhatók, hiszen egy ilyen különleges helyzetben is sikeresek voltak. Az ember minden gyerekére büszke, mi sem tudjuk könnyen kiemelni, hogy melyik részletre vagyunk a legbüszkébbek – az egész, úgy ahogy van, okot ad a büszkeségre. i smét letettünk az ország elé egy szép építményt, ami nem csak nekünk, kivitelezőknek, az országnak is büszkeségévé válhat, a sportolók meg hozzák majd hozzá az eredményeket, most már rajtuk a sor. (móré l evente)
„Az átemelő és az árvízvédelmi rész kitorolásainak a kivitelezésére igazán büszkék vagyunk”
t h E c h A ll ENGE s
of c ivil E
NG i NEE ri NG
During the construction works of the Danube Arena, the most difficult works affected the part which is hardly palpable since it is under the ground. Below you can read an interview with Gyula Barsi, Main Construction Manager and Béla Kovács, CEO, they are Senior Engineers of OK Bau, on the difficulties of the civil engineering and flood prevention tasks of the Danube Arena, and the engineering solutions they developed for these issues.
Octogon: What were your responsibilities in the construction of the Danube Arena?
Bél A kovács: first of all, we started our work at the Danube Arena by demolishing the facilities of the former “Dagály” spa. Then came earthwork and the construction of utilities. The first surprise came when we started to demolish the former pools: we found another pool under the pool, so we had to work twice. What made our job particularly difficult was that we had a relatively small construction area, 90% of which was built, and on the remaining 10% our elbow-room was limited by existing facilities. Below the area there are two canals of quite large diameters (2 and 4 meters) running into the Danube, so we had to ensure their protection. When the working level was completed, we still had two more jobs to do: first, building a dam for flood prevention in the length of nearly 900 m, which was built with slurry walls from the r ákos stream to á rpád Bridge. s o, we had to do plenty of earthwork to ensure the work of the slurry wall building machines. s econd, we had to protect existing and newly installed conduits as well, since the extensions of the temporary scaffolds (which will be dismantled after the world championships) were built next to the permanent building. This made our job somewhat difficult, because we had very little space for so many construction phases running simultaneously. Earthwork, groundwork, leakage and building the utilities were running all in parallel. s o, i told my colleagues to look around thoroughly, because they will probably never see such a high density of machines again: in such
Photo by Péter Molnár
a small space there were 3 pile drivers, 2 cutters, about 5-10 machines for groundwork, and at the same time, utility works were going on, too.
Are there any special characteristics of the utility works of the area?
Bk : it was a lot of work to complete the earthwork for the grounding, and then, our partner performed the pile-driving activities. Next, we had to make the head blocks, make the leakage system of the building, and we were still under the ground. Then came the groundwork, and only then could we start the utility works. During the utility works, further difficulties arose: the spa was still running, and all the water was pumped into the pumping station at the construction area. And the spa lays lower than the Danube, which means, if the water level of the Danube rose, gravitational drainage had to be shut down and diverted to the pumping station. We had to replace this pumping station with a new one, while the system was working continuously. to meet today’s flood prevention requirements, we had to ensure dual shutdown, which works similarly to the previous one: if the water level is low, we can use gravity for draining the water. And if the level of the Danube rises, we use the pumping station. The volumes were extraordinary compared to what we have experienced before. Just to give you a little insight: this is a trunk with an inner diameter of 6 m and a depth of 12 m. it is supplied by two pumping stations with capacities of 900 l/s. This means, this gigantic system pumps almost 1 m3 of water per second, or almost 60 m 3 per minute. first
“We are particularly proud of the implementation of the pumping station and the flood prevention part”
we prepared the object, then the estuaries towards the Danube. These estuaries crossed the flood prevention dam where the slurry wall was built. This was the point when construction started to become a really sophisticated engineering challenge. When this was completed, we still had to solve rechannelling before we could start building the utilities. utility works could only begin afterwards. This included a wastewater, rainwater, drinking water and hydrant water network, which was quite challenging because of the very limited working area. We had to work in a way that the construction works could progress, too. This required serious organization. s ometimes we worked at night to avoid interference with the construction works. When the system was finally complete, we had to protect our newly built canals, since 500-600-ton cranes were working on the roof structure, and we had to make sure they can move, because a machine of this size cannot be driven on any type of ground or temporary road. s o, we had to make a 150-cm pillow above the channels so the cranes could be operated. By the time the building was finished, the pools were completed, too. s o, we had to perform leakage tests, and this water had to be drained, too. s o, we had to arrange a lot of factors to make sure we and all the other parties can proceed with our work. Besides, we had another task: besides the slurry walls, we also had to develop a leakage system for flood prevention. That is, a leakage system was built in parallel with the slurry walls, which would also pump the leaking water into the Danube.
Any other challenges you had to face?
Gyul A BA rsi: What made our job difficult throughout the construction project was that the design and implementation works were proceeding in parallel. it went on like this: the designer sketched up a new version of the plan one day, which was approved by the engineer the next day, and the day after, the pipes were already under the ground. it was not easy to catch up. it took us a lot of engineering to manage the situation that the sewerage system for
rainwater descends towards the Danube, while the wastewater system descends into the opposite direction, towards Népfürdő street (all wastewater runs into the public canal in Népfürdő street).
This means, we had to lay two canals in parallel, which were descending into opposite directions, which is not a simple task even in itself. But meanwhile, the two temporary scaffolds were being built, too, and we had to bend the canals so they run under their foundations. it was a miracle, but we made it all by the deadline. After the sewerage system was completed, the road works began, which is already a visible surface. The biggest challenge was the tough winter we haven’t experienced in the last 20 years. it set back the works a great deal. We prepared the roads, laid the paving stones, then we had to
cover it all with osB panels, needled felt (" terfil") and sand, as construction-related transport was going on on freshly built roads already 3 days after they were finished. it was a great engineering challenge to realize it all, and it entailed a lot of arrangement and conflicts, since everybody wanted to work and we could not interfere with one another.
Are there any details you are particularly proud of?
Gy B: We are particularly proud of the implementation of the pumping station and the flood prevention part. The implementation of the pumping station was a remarkable accomplishment because of its size: it is extraordinary both in the sense of architecture and mechanics. plus, we are also proud that we could build a facility while a part of it was still running,
and with so little available space. it was not easy to make it without conflicts, and there were times we actually couldn’t make it. As the landscaping clearly shows, this is something we can all be proud of, and we can even proudly present it to our grandchildren. This was tough and manly work, with a lot of challenges that required sophisticated engineering skills and knowledge. We have shown the world that hungarian engineers should not be underestimated, because we could succeed in such a complex situation. We are proud of all of our “children”: it is not easy to pick one single detail. The whole piece of work is worth being proud of. We have presented our nation a beautiful building we can all be proud of. Now it’s up to the athletes to deliver results of similar magnitude. (l evente móré)

Fotó: Bujnovszky Tamás / Photo by Tamás Bujnovszky
Külső Közműépítés és útépítés

Az OK Bau Kft. Dagály Úszóaréna, legújabb nevén Duna Aréna külső közműépítési és útépítési munkálatainak elkészítését kapta feladatul a Market Építő Zrt.-től. Elválasztott csatornarendszert építettünk ide, ami azt jelenti, hogy külön hálózat készült a csapadékvíznek és külön hálózat a szennyvíznek.
A csapadékhálózat körbefut az épületen, amelyre minden homlokzat irányából rákötéseket kellett kiépítenünk; erre kötnek a medencék, az épületre eső csapadékvizek, vala-
mint a parkolók víznyelői is – ennek befogadója a Duna. A lejtésviszonyokat úgy alakítottuk ki, hogy alacsony dunai vízállás esetén az érkező vizek gravitációsan távozhatnak a területről, magas vízállás esetén pedig a víz egy átemelő telepre jut egy osztóaknán keresztül, amit az Aréna nyugati homlokzata elé telepítettünk –ezen átemelő juttatja a vizet a befogadóba. Az átemelő kapacitása 2x900 l/sec. Nyomóvezetéke átvezet az árvízvédelmi gáton, amely a Rákos-pataktól az Árpád hídig védi a területet. Természetesen a nyomóvezetékekre az árvízvédelmi előírásoknak megfelelően kettős (árvízi oldali és mentett oldali) elzárási, szakaszolási lehetőséget is kiépítettünk. A csapadékcsatorna gerincvezetékének hossza 900 fm, átmérője DN 315-DN 1200 mm közötti. A szennyvízcsatorna-rendszer párhuzamos a csapadékcsatorna-rendszerrel, de a befogadója közcsatorna, azaz a Népfürdő utcában futó meglévő csatorna lett. E vezetékre is bekötéseket építettünk az épület minden
oldala felöl. A lejtésviszonyok miatt ide is átemelőtelepet építettünk, amely teljesen automatizált, az épület felügyeleti rendszerén keresztül is kezelhető. Ezen átemelő nyomja bele a szennyvizet a Népfürdő utcai meglévő csatornába, így az ide telepített szennyvízcsatorna hossza 700 fm, átmérője DN 315 lett. Vízvezeték és tűzoltóvíz-vezeték is körbeveszi az Arénát, erre telepítettük a tűzcsapokat, amelynek hossza 500 fm, átmérője pedig DN 125 és DN 160.
Említésre méltó még a Béke-kút és az ahhoz tartozó termálvíz átemelője is. A Béke-kutat a ’40-es években fúrták, belőle 38 Celsius fokos víz tör a felszínre. Ezzel töltik fel a meglévő és megmaradó strand medencéit, valamint a termálvíz átemelője az új uszodába is benyomja a melegvizet, ami egy hőcserélőn át a fűtési rendszerre dolgozik rá, így a termálvíz minden cseppje hasznosítható. A Békekútról emellett direkt bekötés is épült az Arénába DN 160-as átmérőben.
A talajvíz viszonyok miatt az épület alatt kiépült egy nagyjából 2300 fm hosszú szivárgó rendszer, valamint az árvízvédelmi gáttal párhuzamosan a mentett oldalon is egy kb. 900 fm hosszú szivárgó. E szivárgók két átemelőbe csatlakoznak: az egyik átemelőt a terület északnyugati sarkába építettük, ezen átemelő a Dunába emeli az érkező talajvizet, ahol természetesen szintén kiépítettük az árvízvédelmi gát átvezetésénél előírt kettős elzáró szerkezeteket, míg a másik átemelő a terület délnyugati sarkára került. A területen áthalad a Fővárosi Csatornázási Művek két, nagy átmérőjű, régi, falazott csatornája. Mindkét csatorna megerősítést kapott, a DN 2000 átmérőjű csatorna a régi zsilip helyett egy új, korszerű zsilippel is gazdagodott. Útépítési feladatunk volt az épület körüli út, a parkolók és a SKATE pálya burkolatainak kiépítése, amely nagyjából 14000 m2 kövezett felületet jelent. Az árvízvédelmi gát egy bicikli-, valamint egy sétáló utat kapott. Fenti feladatok elvégzése azért is volt izgalmas, mert úgy kellett dolgoznunk, hogy közben az épület is épült, minden magasépítő ott akart hozzáférni az épülethez, ahol mi közműveztünk. E probléma megoldása napi együttműködést követelt meg a magasépítőkkel, ami nem is volt feszültségmentes, de gyakran éjszakai munkával, gyakran erős kompromisszumokkal végül sikerre vittük a feladatot.

Sokszor okozott számunkra nehézséget a párhuzamos tervezés. A tervezők sokszor éjjel rajzolták meg, amit másnap a mérnök jóváhagyott, harmadnapra pedig már a csőfektetés is megtörtént. Jellemző, hogy a csapadékcsatorna terve 17 db változáson ment át és számtalan fedvényterv alapján készült el, igazodva a megrendelő, illetve az uszoda újabb és újabb igényeihez. Nem is lehetett volna határidőre megépíteni e közműveket a megrendelő, a tervező, a mérnök és a kivitelező közötti mindennapos egyeztetések nélkül. Ezúton szeretnénk köszönetet mondani minden műszaki és fizikai munkát végző kollégánk – előkészítéstől a terepen lévő munkatársakig – állhatatos munkájukért. Nagy segítségünkre volt, hogy sportolók is gyakran látogattak ki az építkezésre. Itt volt többször Hosszú Katinka, Faragó Tonó, vagy Kárpáti Gyuri bácsi, akik akár csak egyegy pillantásukkal is, sok erőt és kitartást sugároztak felénk. (Barsi Gyula, főépítésvezető)
Our company, OK Bau Kft., had been hired by Market Építő Zrt. to perform construction of outdoor utilities and roads for Danube Arena, formerly known as Dagály Swimming Arena. Finally, a split sewage system was created, consisting of storm and sanitary sewer mains separated from each other.
The storm sewer mains runs all around the building, with connections installed towards every face to receive discharges from pools and car-park water sinks, or any storm water as may fall on the roof, and drain them off to the Danube as final recipient. Slopes were designed to ensure gravity drainage of waters from the area into the Danube in low water-level conditions. On the other hand, for high water-level situations, a lifting plant is installed in front of the west face of the Arena to receive water discharges via a diversion chamber, and deliver them into the recipient at a lifting capacity of 2x900 Litres/sec. Its pressure pipe is run through the flood-control barrier raised along the river from Rákos-patak (a stream) as far as Árpád Bridge. As a matter of course, this pressure pipe is equipped with sectionalizing / shut-off devices (on both the water side and protected side). The header pipe of the storm sewer mains is 900 running metres long, with diameters varying between DN 305 mm to DN 1200 mm.
The sanitary sewer mains is laid parallel with the storm sewer mains, with its waters discharged, via connections towards every face of the building, into the public sewerage running underground along Népfürdő utca. On account of prevailing slope conditions a fully automated lifting plant was installed here that can be controlled remotely via the surveillance system of Danube Arena. As this lifting plant delivers sanitary sewage-waters into an existing public sewerage, the sewer piping newly installed is only 700 running metres long, and has a diameter of DN 315. A water / hydrant water mains with hydrants connected up was also run all around the building, with a total length of 500 running meters, and diameters of DN 125 and DN 160, respectively.
Artefacts also worthy of mention are Béke-kút, a thermal well, and its thermalwater lifting equipment. Bored back in the 1940’s, Béke-kút delivers water at a temperature of 38 degrees Centigrade that is used, on the one hand, to fill pools of Dagály Spa, an existing facility which will remain in
operation within the site, and, on the other hand, passed by the lifting equipment into the building for use in the heating system via a heat-exchanger, an arrangement designed to utilize each and every drop of thermal waters. In addition, there is another pipe, diameter DN 160, installed to connect Béke-kút with the Arena direct.
On account of ground-water conditions, two seepage drains were constructed: one with a total length of ca 2300 running metres under the building, and another with a total length of ca 900 running metres along the protected side of the flood-control barrier. They are connected with two lifting plants, with one of them installed in the northwest corner of the site to deliver intercepted ground waters into the Danube (via piping run through the barrier and, here again, equipped with mandatory double shut-off mechanisms), and the other located at the southwest corner of the site, respectively.
Two artefacts under the control of Budapest Sewage Works, namely old conduits with masonry construction and large diameters, crossing the construction area were reinforced, and the one with diameter DN 2 000 was also added a new up-to-date lock-gate to replace an old one. Within the scope of our road construction jobs, we surfaced roads all around the building as well as car parks and a skate course, providing altogether 14 000 square metres of paved area, while a cycle track and paved footpath each were made on top of the floodcontrol barrier.
One of the reasons why fulfilment of our assignment was so exciting, we had to do our job concurrently with erection of the building, with those engaged in overground operations always demanding access to their current work site across our current work site. To address this constant problem, we had to work in full concert with one another day after day, a goal not always easy to attain, but, sometimes by resorting to night-work, and often by making compromises with teeth clenched, we succeeded at last.
Simultaneous planning and implementation were a constant source of difficulties. Only too often designers generated drawings one day, to be approved by an architect the following day, and translated into physical laying of pipings on the third day. A typical example, the layout of the storm sewer mains underwent 17 changes, and was final -
ized on the basis of a series of coverage plans adjusted again and again to ever-changing demands made by the customer on the swimming pool. Without day-to-day discussions among the customer, designers, architects, and contractors, it would never have been possible to finish the utilities within the time limits appointed. We owe thanks to all of our staff, whether technicians or manual workers, whether making preparations or performing on-site jobs, for their keen efforts from beginning to end. Frequent visits paid to the construction site by such famous athletes as Katinka Hosszú, Tonó Faragó, and dear old Gyuri Kárpáti were a great help too. We derived much strength and resolution from their mere glances.
(By Gyula Barsi, Chief Site Manager)
OK Bau Kft.
1037 Budapest, Bojtár utca 53.
Tel.: (+36-1) 883 0238
Fax: (+36-1) 700 2325
E-mail: okbau@okbau.hu
Web: www.okbau.hu



„A SIKER DEFINÍCIÓJA TÖBB ÖSSZETEVŐBŐL ÁLL”
Beszélgetés Varga Mihállyal, a KÉSZ Holding Zrt. vezérigazgatójával.
Fotó: BUJNOVSZKY TAMÁS

Fotó: KÉSZ Holding Zrt.
Photo by KÉSZ Holding Ltd.
Octogon: A KÉSZ Ipari Gyártó Kft. egy nemzetközi holding tagja, így felmerül a kérdés, hogy ennek a nagyon összetett, rövid határidejű, szigorú feltételek mellett megvalósított épületnek hol a helye szakmai tekintetben a holding nemzetközi projektjei között?
A KÉSZ Csoport esetében valóban nemzetközi cégcsoportról beszélhetünk immár 15 éve. Több mint 29 országban vagyunk jelen, és büszkén mondhatom, hogy acélszerkezeteink eljutnak a világ minden pontjára, azonban számunkra mindig is a nemzeti értékek és a magyar mivoltunk bírnak kiemelt fontossággal. A legbüszkébbek mindig a hazai munkáinkra vagyunk. A Duna Aréna különleges projekt volt az életünkben. Amikor végiggondoltam ezt a kérdést, eszembe jutott, hogy minket mindig megtalálnak a különleges és felfokozott érzelmi világú projektek. Megépítettük a nemzet repülőterét, a nemzet főterét, majd a nemzet uszodáját.

Csak úgy, mint a többi projekt, ez is rengeteg szakmai tudást, erőforrást és alázatot igényelt. Nem is beszélve arról a kreativitásról, amire a szerkezet beemeléséhez volt szükség. Biztos vagyok benne, hogy a KÉSZ és minden kollégám életében maradandó, értékteremtő munka lesz ez. A létesítményre egyébként nemzetközi szinten is felfigyeltek. Nem csak külföldi kollégáink, hanem partnereink és a nemzetközi sajtó is csodálattal szemlélte a projekt megvalósulását. A KÉSZ célja, hogy a CEE régió egyik meghatározó vállalatává váljon, független magyar cégcsoportként valós nemzetközi sikereket ér el és határokon átívelően képviseli a hazai vállalati értékeket. Ezt a célt teljesítettük, nemzetközi elismerésű projektben vettünk részt.
Amikor először találkozott a Duna Aréna terveivel, mire gondolt?
Én minden új munkát és kihívást lehetőségként élek
meg. Amikor a terveket megnéztem, láttam mellette a kollégák szemében a csillogást, és ez nekem elég. Bár a műszaki rajzok és tervek tanulmányozása már a munkatársaim feladata, jó érzés minden nap úgy munkába menni, hogy amikor belenézek egy dokumentációba, azt látom, hogy ez nekünk való feladat. Azt látom, hogy megvan hozzá a tudásunk és szakmai felkészültségünk. Több mint 200 szakma, 200 képesség van a KÉSZ Csoportban. Ez nagy előny, de nagy felelősség is. A Duna Aréna acélszerkezete is ezzel a felelősséggel készült.
Miben/mikben rejlik a KÉSZ sikere, különösen ma, amikor állandó szakemberhiánnyal küzd az építőipar?
A szakemberhiány valóban akut és óriási probléma az építőiparban. A KÉSZ sikere mégis abban rejlik, hogy rendelkezünk kellő szakértelemmel, erőforrással és nem szégyellünk tanulni és fejleszteni.

„Büszkén állíthatom, hogy maradandót alkottunk ”
Ezekben a képességekben van a jövő. A nemzetközi szerepvállalásunk is erősít minket. Egy-egy problémát, feladatot nemzetközi szemmel és tapasztalattal tudunk vizsgálni. Nagy figyelmet szentelünk a képzésre. A gyakorlati oktatás mellett elindítjuk idén az elméleti képzést is. Azt hiszem, bárki megerősít abban, hogy a hosszú távú sikeresség a fenntarthatóságban rejlik. Ennek pedig elengedhetetlen eleme az élőmunka és az utánpótlás. Az építőiparban a siker definíciója több összetevőből áll. Ezek közül a legfontosabb talán a partnerség. Be kell látnia mindenkinek, hogy partnerség nélkül az építőipar nem tud szintet lépni.
A partnerségben pedig a közös érdek egymás támogatása. Nem lehet célja senkinek, hogy tönkretegye a másikat. A Duna Aréna is ebben a szellemben készült, és az eredmény magáért beszél.
Mik azok a szakmai momentumok, amiket úgy érzi, fontos megemlítenie a Duna Aréna építése kapcsán?
Ez tipikusan egy olyan projekt volt, ahol minden egymásra épül. Ahol úgy kell minden résztvevőnek dolgoznia, hogy ha hibázik, ha késik, az nem csak a saját munkanemét, hanem az egész projektet és egy nemzeti ügyet veszélyeztet. Szeretném is megragadni az alkalmat, hogy mindenkinek gratuláljak,
aki részt vett a Duna Aréna építésében. Minden momentum másért volt szép és fontos. Minden döntést és mozzanatot komoly szakértői munka előzött meg és kísért végig. Ettől lehetett sikeres ez a projekt. Ha mégis ki kell emelni valamit, akkor az a szerkezetemelés lenne. Én éppen egy külföldi úton voltam kollégákkal, és az interneten keresztül feszülten figyeltük 8 órán át az emelés minden centiméterét. Leírhatatlan érzés volt. Én abban a szerencsés helyzetben vagyok, hogy az esetek többségében már a tervezéstől egészen a kulcsrakész átadásig végigkísérhetek egy munkát. A Duna Aréna megvalósítása közben minden szakaszban láttam az összefogás erejét. Nem gátoltuk, akadályoztuk, hanem segítettük és támogattuk egymást. Mindenki szeme előtt az a cél lebegett, hogy a létesítmény határidőben és az elvárt minőségben elkészüljön. Olyan technológiai megoldásokat alkalmaztunk, amelyek nem hogy Magyarországon, de egész Európában egyedinek számítanak. Véleményem szerint ezek a szakmai sikerek viszik előre az építőipart és csinálnak kedvet a fiataloknak, hogy ezt a szakmát tanulják. Abban bízom, hogy ezeket a műszaki megoldásokat és magát az épületet a nagyközönség is kellőképpen értékelni fogja, hiszen büszkén állíthatom, hogy maradandót alkottunk. (Molnár Szilvia)

Acélszerkezet a dunai oldalon, részlet
Steel structures on Danube side, detail
“IN THE
BUILDING
INDUSTRY, THE DEFINITION OF SUCCESS HAS SEVERAL COMPONENTS”

Interview with Mihály Varga, CEO of KÉSZ Holding Zrt.
Photo by TAMÁS BUJNOVSZKY
Octogon: KÉSZ Ipari Gyártó Kft. is the member of an international holding, which raises the question: What is the place of this highly complex building realised at a short deadline, under strict conditions, among the international projects of the holding?
True, we could speak of KÉSZ Group as an international company group for the past 15 years. We are present in more than 29 countries, and I can proudly say that our steel structures are present at every point of the globe. However, the national values and our being Hungarian have always been of priority importance for us. We are always the proudest of our domestic work. Danube Arena was a special project in our life. When I thought the question over, it came to my mind that the special and emotionally intensely charged projects always find us. We built the airport of the nation, the main square of the nation and now the swimming-pool of the nation. As in the other projects, enormous professional knowledge,
resources and humility were needed. Not to mention the creativity required for lifting the structure in place. I am certain that this will be a neverforgotten value-creating job in the life of KÉSZ and of all of my colleagues. By the way, the facility has been recognised also internationally. In addition to our foreign colleagues, our partners and the international press have also admired its implementation. The vision of KÉSZ is to become a decisive company of the CEE region, to achieve real international success as an independent Hungarian company group, and to represent the domestic corporate values across the national borders. That objective has been met, and we took part in a project that won international recognition.
What did you think when you first met with the building plans of Danube Arena?
I experience every new job and challenge as an opportunity. When I looked at the plans I saw the glitter in the colleagues’ eyes, and that is enough for
me. Although studying the technical drawings and plans is already the task of my staff, it is pleasant to go to work every day and see in the documentation that it is a task suiting us. I see that we have the knowledge and professional preparedness for it. More than 200 vocations, 200 skills are present in KÉSZ Group. This is an advantage, but also a major responsibility. The steel structure of Danube Arena has also been made with this sense of responsibility.
What does the success of KÉSZ lie in, particularly nowadays when construction keeps struggling with a permanent skilled labour shortage? The shortage of skilled labour is indeed an acute and enormous problem in construction. The success of KÉSZ lies in that we have the required expertise and resources and we are not ashamed to learn and develop. The future lies in these capabilities. Our international activity also makes us stronger. We can inspect a problem, a task, with an international eye and in possession of international experience.

"I can proudly declare that we have created something lasting there"
We pay great attention to training. Besides practical training, this year we will also launch theoretical training. I think everyone will confirm that longterm success is rooted in sustainability. And live labour and replacement are indispensable elements there. In construction, the definition of success has several components. Partnership is maybe the most important. Everyone needs to recognise that construction cannot ascend to higher levels without partnership. And, in partnership, mutual support is a shared interest. Neither party can aspire to ruin the other. Danube Arena has been made in this spirit and the outcome speaks for itself.
What are the professional moments you feel important to mention in connection with the construction of Danube Arena?
This was typically a hierarchically structured project. Each participant had to be aware while working that any error or delay would threaten

not only their own specialist work, but also the entire project and the national cause. I would like to take this opportunity to thank all the people who took part in building Danube Arena. Every moment was beautiful and important for a different reason. Every decision was preceded and accompanied by serious expert work. That’s why the project could be a success story. If I had to highlight something, that would be the lifting of the superstructure. I was abroad on a trip with my colleagues at the time, and we watched every centimetre of the lifting intently for 8 hours through the Internet. It was an indescribable feeling. I am lucky to be able to monitor a job in the majority of cases from design to turnkey delivery. During the realisation of Danube Arena, I saw the power of cooperation in each and every phase. We did not inhibit or hamper each other’s work, but helped and supported one another. Our objective was throughout the process to finish the facility in
time and in the expected quality. We have applied technological solutions considered unique not only in Hungary, but also throughout Europe. In my opinion, it is these professional achievements that bring the construction industry forward and attract the youth to choosing this profession. I hope that the technical solutions concerned and the building itself will be properly appreciated also by the public, because I can proudly declare that we have created something lasting there. (Szilvia Molnár)



„Négy
sarká N ál megemeltük ezt az óriási vázszerkezetet”
Speciális technológiáról, extrém adottságokról és emelésirányításról egyaránt szó esett az alábbi interjúban, melyet Barócsi Róbert, a KÉSZ Ipari Gyártó Kft. projektigazgatója adott nekünk a frissen átadott Duna Arénában.


Fotó: Végel Dániel / Photo by Dániel Végel
Fotó: Molnár Péter
OctO g On: Mondok két olyan korábbi projektet, amiben a KÉSZ, mint fő kivitelező vett részt: Sky court és groupama Aréna. Mindkettő nagy volumen, jelentős épületek. Ezekhez viszonyítva milyennek írná le a Duna Aréna projektet?
Úgy is fogalmazhatnék, hogy a ferihegyi projekttel kezdődött a pályafutásom, aztán több kisebb generálprojekt után jött az első nagy önálló feladat, a groupama a réna, majd ezt követte 1-2 nagyobb generálkivitelezési projekt, aztán a Duna a réna, ahol a feladatköröm is jóval tágabb lett, mint a korábbi munkák esetében. a groupama a rénán projektvezető voltam, a Duna a rénát már projektigazgatói szinten kezeltem. a kibővült feladatkörökhöz szorosan kapcsolódik az, hogy a cégcsoportunk egy olyan technológiát hozott be és alkalmazott a Duna a réna szerkezetépítésében, amit korábban magyarországon még senki. az, hogy ennek a technológiának a bevezetése, megismertetése és a kivitelezésben való alkalmazása hibamentesen történjen, mind a csapatom felelőségi körébe tartozott. – s persze
mindehhez hozzájárultak az extrém körülmények és adottságok – határidő, helyszín stb.
Az említett extrém körülmények, adottságok kívánták meg az új technológia alkalmazását? Vagy arról van szó, hogy nem lehetett volna ezt az épületet másként létrehozni? természetesen a hagyományosnak mondható kivitelezés-technológiával is létre lehetett volna hozni az épületet, viszont az extrém határidőkeretet tartanunk kellett. m indezt úgy, hogy miközben a terepen dolgozunk, mellettünk a további szakágak is zavartalanul végezhessék a munkájukat. a helyszíni adottságok – Dagály strandfürdő, a Duna-part, s különösen a két nyomóvezeték a terület északi oldalán, amik Pest többletesővízelvezetését oldják meg – mind egy speciális technológia alkalmazását indukálták.
Mint nem műszaki embernek, hogyan tudná elmagyarázni számomra, hogy mitől különleges az a technológia, amit alkalmaztak?
ez attól különleges, hogy több ezer tonna acélszerkezetet kellett összeszerelnünk egy közbelső födémen úgy, hogy először lényegében a „földön” összeszereltük a teljes épület vázát, majd a váz négy sarkánál megemeltük ezt az óriási vázszerkezetet és beemeltük a helyére.
Munkaerőben és -időben mit jelentett a cég számára ez a kivitelezés? változó volt a létszám, de a kivitelezés idején, a legnagyobb létszámot igényelő főtető szerelésekor nagyjából 70-80 munkatársunk dolgozott a helyszínen, s mindvégig 5-6 fős stáb irányította a helyszíni munkálatokat. a z előkészítést – gyártmánytervezés, gyártás-előkészítés, gyártás – nagyjából hat hónap alatt végeztük el, és úgy három hónap állt rendelkezésünkre, hogy főépület acélszerkezetét felépítsük és beemeljük a helyére.
Általánosságban a szerkezettervezők és a szerkezetépítők között hogyan alakul a munkamegosztás? Értem ezalatt hogy

a szerkezetépítők javaslatokat tesznek még a tervezés idején a szerkezettervezőknek? mi, vagyis a kész Csoport a teljes működésünket úgy építettük fel – ez az értékrendszerünk alapja –, hogy házon belül gyártmánytervezünk, gyártunk és kivitelezünk, – saját erőforrásaink vannak egy adott projekt komplex megvalósításához. a magyarországi projekteken eltérő készültségű és minőségű tervekkel találkozunk. előfordult, hogy az ár, a határidő és a műszaki szempontok szerint legyárthatatlan szerkezetek szerepeltek a tervdokumentációban. ennek megfelelően a kész a gyártmánytervezés során rendre tesz javaslatokat a szerkezetek műszaki megoldásainak módosítására, a gyárthatóság, szerelhetőség és gazdaságosság szempontjából. e konkrét projekt esetében, a koncepció tervet követő kivitelezéssel párhuzamos tervezés miatt lehetőség nyílt az acélszerkezetek esetében a gyárthatósági, szerelhetőségi szempontok tervezésben való maradéktalan figyelembevételére. a rövid határidő miatt
párhuzamosan került sor a szerkezeti kialakítás tervezésére, a kiviteli- és gyártmánytervezésre. ehhez a tartószerkezeti generáltervező, a kiviteli tervező és a gyártmánytervező harmonikus együttműködésére volt szükség. itt szeretném ismételten megköszönni az ebben résztvevő kollégák rugalmas, professzionális együttműködését.
Uszodáról beszélünk, ahol a víz- és gőzterhelés alapvető. Ez mit jelentett a szerkezet alapanyagának vagy a felületkezelésének kiválasztásában?
a z alapanyagok minőségének kiválasztásánál ez a körülmény nem volt befolyásoló tényező, viszont az acélszerkezetek felületvédelmét körültekintően kellett meghatároznunk. e lső lépésben kiválasztottuk a korrozivitási kategória besorolásnak megfelelő, véglegesen használt háromrétegű rendszert. a rendszerben minden rétegnek megfelelő védelmi funkciója van: az alapozóban a cinkfoszfát
„Valahányszor ránézek az épületre, eszembe jut egy meghatározó pillanat...”
korróziógátlóként funkciónál, a közbenső rétegben a vascsillám ad ellenállóságot, a fedőfesték pedig egy poliuretán bevonat, amely ellenáll az U v-sugárzásnak és egyéb vegyi behatásoknak
Mielőtt elkezdtük ezt az interjút említette, hogy mivel alapvetően már levonult a cég, maga 2 hónapja nem látta közelről, hogyan formálódik az épület. Most az átadás után vagyunk, lényegében készen van. Ha rápillant, bejárja a tereit van kedvenc része? valahányszor ránézek az épületre, eszembe jut egy meghatározó pillanat. a mikor az emelés-előkészületek megtörténtek, akkor nagyjából a bemelegítőmedence mellett, egyúttal a főtető szélén egy irányítókonténert tettünk le, amiben azokat a számítástechnikai berendezéseket helyeztük el, amik a teljes emelőrendszert üzemeltették, felügyelték. a felemelés összehangolt irányítása, kommunikációja volt meghatározó, főleg az a momentum, amikor az emelés előtti ellenörzőlistának minden pontját rendben találtuk, és ki lehetett adni a „zöld jelzést”. a z volt a legmeghatározóbb pillanat. ez mindig eszembe jut, ha itt az épületnél, az épületben járok. ez az egész mérnöki teljesítmény nem jöhetett volna létre, ha nincs egy jó, összeszokott csapat, így szeretném megköszönni mindenkinek az áldozatos munkáját. (molnár szilvia)


“We have lifte D this e N ormo U s s UP erstrUC t U re by its fo U r C or N ers”
The following interview conducted with Róbert Barócsi, project director of KÉSZ Ipari Gyártó Kft. at the freshly opened Danube Arena is about special technology, extreme conditions and the management of a lifting operation.
Photo by Péter Molnár
OctO g On: Let me mention two previous projects in which KÉSZ acted as main contractor: Sky court and groupama Arena. Both are significant buildings of large volumes. How would you describe the Danube Arena project in comparison?
i might say that my career started with ferihegy project followed by several minor general projects; then came the first major independent task, groupama a rena, followed by 1-2 major general construction projects, and then Danube a rena where the scope of my responsibilities broadened significantly relative to the previous works. i was project leader at groupama a rena, and managed Danube a rena at a project director level. my extended responsibilities are closely related to the fact that our company group brought in and applied at Danube a rena a structural engineering technology that has never been used in hungary before. Consequently, the responsibilities of my team included the impeccable introduction and presentation of this technology and its application to the relevant construction works. a nd, of course, the above were coupled with extreme circumstances and conditions in terms of deadline, construction site etc.
“Whenever I look at the building, I remember a decisive moment...”
Was the new technology required by the extreme circumstances and conditions you mentioned? Or was it the building itself that could not have been realised in any other way? Naturally, the building could have been realised with what could be called as the traditional construction technology. however, we had to comply with the extraordinary time frame, and do field work, while letting the other specialists do their bits undisturbed by our side. a lso, the local conditions – Dagály bath, the Danube bank and particularly the two pressure
lines on the northern part of the area responsible for the discharge of excess rainwater in Pest – all induced the use of a special technology.
How could you explain to a non-technical person like me what makes the technology you applied so special?
What makes it special is that we had to assemble steel structures of thousands of tonnes on an interim platform, so that first we essentially assembled the structure of the whole building on the ground, then lifted this enormous superstructure to its place by its four corners.
What did this construction work mean for the company in terms of labour and working time?
The headcount fluctuated, but during the construction works, at the time of the assembly of the main roof requiring most workers, some 70-80 of our employees worked on the area, and a management crew of 5-6 was present throughout the site works. Preparations – product design, product preparation, manufacturing – took us around six months, and we had approximately three months to construct and lift in position the steel structure of the main building.
generally, what division of labour has evolved between the designers and the constructors of the structure? More precisely, do the structural engineering staff members make proposals to the structural designers already in the design phase? We, meaning the kész group, have structured our whole operation – this is the basis of our value hierarchy – so that we do in-house product design, manufacturing and construction; we have own resources for the complex execution of a given project. We have come across design plans of different qualities and levels of preparedness in projects in hungary. i n some cases the design documentation included structures that could not be manufactured given the deadline and the technical specification. Therefore, kész regularly makes proposals already in the product design phase to modify the technical aspect of structures so as to make their manufacturing and assembly feasible and economical. i n this specific project, since design and execution took place simultaneously following the concept design, there was an opportunity for taking
fully into account the manufacturing and assembly criteria of the steel structures during the design phase. given the short deadline, structural engineering design, construction and product design took place simultaneously. This required the harmonious cooperation of the general layout designer, the construction designer and the product designer. i would like to thank here my design colleagues for their flexible and professional cooperation.
We speak of a swimming pool with substantial exposure to water and vapour. What implications did that have for the selection of raw material or the surface treatment of the structure?
This circumstance did not influence the selection of the quality of raw materials; however, the surface treatment of the steel structures had to be defined most carefully. a s a first step, we selected the three-layer system complying with the corrosivity rating that was used finally. each layer of the system has an appropriate protective function: in the primer, zinc phosphate functions as corrosion inhibitor, in the middle layer, iron mica provides for resistance, and the finishing paint is a polyurethane coating that resists U v radiation and other chemical reactions.
You mentioned before the interview that since the company had basically left the site, you haven’t seen how the building took shape in the last two months. now we are past the hand-over, it is essentially ready. If you look at it, roam the premises, do you have a favourite part?
Whenever i look at the building, i remember a decisive moment. When the preparations for the lifting were ready, we put down a managing container approximately by the side of the warm-up pool, meaning also the edge of the main roof, where we installed all the it equipment operating and supervising the entire lifting system. The concerted management and communication of the lifting operation was a decisive moment, especially the moment when we ticked each item on the pre-lifting checklist and the “green signal” had to be given. That was the most decisive moment. That moment always comes to my mind when i am here, in or at the building. This whole engineering achievement could not have been realised without such a well-knit team, so i would like to thank everyone for their devoted work. (szilvia molnár)

„ m i N tha egy DUN ai hí D le NN e”
A Duna Aréna mérnöki bravúrjai közül is kiemelkednek az acél tetőszerkezetek, amelyek tervezését és kivitelezését a KÉSZ Építő Zrt. végezte, Kocsis András Balázs acélszerkezeti mérnök vezetése alatt. Mellékletünkbe arról nyilatkozott, hogy mik voltak a munka különlegességei és nehézségei, de megtudhattuk azt is, milyen helyet foglal el ez a projekt Kocsis András Balázs munkásságában.

Octogon: Mi volt a önök szerepe a Duna Aréna építésében? e bben az épületegyüttesben az acélszerkezetek megvalósítását nyertük el, így a főtetőt, és az ahhoz kapcsolódó Duna ikon szerkezetét, a két oldalt elhelyezkedő ideiglenes lelátók acélszerkezetét, az alattuk lévő vasbeton szerkezet merevítését, illetve a Népfürdő utca felőli bemelegítőmedence acélszerkezeti lefedését készíthettük el. feladataink közé tartozott ezeknek az acélszerkezeteknek a gyártmánytervezése, a szerelési tervek készítése, illetve a nagy tető emeléstechnológiai tervezése is.
Mesélne-e nekünk a főtetőről és arról, hogy milyen kihívásokat állított maguk elé? tervezési oldalról a kihívást az jelentette, hogy a kivitelezési időt összehúzták, mikor kiderült, hogy magyarország rendezi a 2017-es úszó-világbajnokságot. ez kihatással volt többek között az acélszerkezetek tervezésére, a geometriai kialakításra, és a megvalósításra is. a tetőszerkezetet négy vasbeton magra támasztottuk le. a peremei mentén négyövű rácsos tartók, a rövidebb fesztáv irányában síkbeli másodlagos tartók, illetve azokat összekötő harmadlagos rácsos tartók adják a tető szerkezeti rendszerét. magonként egy-egy ponton támaszkodik le olyan
módon, mint egy klasszikus híd: az egyik pont fix, míg a többi mozgási szabadságfoka a fix támaszkodáshoz igazodva változik. így biztosítható, hogy például a hőmérséklet változásából ne származzon plusz igénybevétel. a főtető megvalósítását többféleképpen képzeltük el, és ez természetesen visszahatott a tervezésre is. a z egyik lehetséges megoldás az volt, hogy a végleges helyén, a felső síkon nehézállványzat segítségével építsük meg. sajnos ezt gyorsan el kellett vetnünk, mert az egyik oldalon a b éke-kút, a másikon pedig szennyvíz-, és víznyomó csatornák találhatók, amik nem bírták volna el az építéshez szükséges daruk terhelését.
Fotó: Molnár Péter / Photo by Péter Molnár
Fotó: Molnár Péter

„Határidőre föl tudtuk emelni”
í gy maradt a másik megoldás, hogy a vezérszinten készüljön el a tetőszerkezet úgy, hogy a sarkokat kihagyjuk. a sarokelemek felkerültek a magok tetejére, és utána speciális heavy lifting technológiával emeltük fel egyetlen délután folyamán a végleges helyére a 2400 tonnás tetőt, majd tehertartás mellett szereltük be a maradék rudakat, így nyerte el végleges formáját az építmény.
Van olyan apróbb részlet, amire különösen büszkék?
hogy határidőre föl tudtuk emelni az – nem elhanyagolható. m agyarországon ekkora tetőt eddig még nem emeltek, és számunkra is nagyon kérdéses volt, hogyan fog majd viselkedni. e lképzeltük, hogy úgy zajlik majd, ahogy a második világháborús tengeralattjárós filmeken; recseg-ropog az acélszerkezet, de a tető nagyon halkan emelkedett el. a szerkezet dicséretére válik, hogy minden gond nélkül sikerült a felemelése. i lyet még a korábbi gyakorlatban nem végeztünk, ez volt a vállalkozásunk egyik kulcspillanata. k i kellett találnunk, hogy hogyan tudjuk az utolsó elemeket úgy betenni, hogy már
a négy sarokelem között vagyunk, ráadásul a rudakon átfújó szél is nehezítette a dolgunkat, amivel a Duna mellett mindig számolni kell. több mint 50 ezer csavar került bele a tetőszerkezetbe, ezeknek a csavaros kapcsolatoknak a számítása különleges dolog volt, mert nem szabványos csomópontokkal terveztük meg a szerkezetet, így speciális számítási eljárásokat kellett alkalmaznunk ezeknek a kapcsolatoknak az ideális kiszámítására.
Van valami, amit még nagyon fontosnak, izgalmasnak tart az épületben? a z egész épület nagyon fontos volt a számunkra, éjjelünket-nappalunkat tette ki az a feladat, hogy határidőre elkészülhessen. l ényegesnek tartom azt, hogy a tervezési fázisban egy termeléskövető rendszert dolgoztunk ki, amiben külön lehetett látni, hogy mely szerkezeti elemek állnak tervezés alatt, melyeknél történik már darabolás a gyárban, ezt követően melyek vannak festés alatt, összeállítás alatt, kiszállítás alatt, és melyeket szerelték már be. ezt heti rendszerességgel dokumentáltuk, és mindig meg tudtuk nézni, melyik időpillanatban hogy
állnak a kollégák, illetve a megrendelőnek is láthatóvá vált, hol tart az építés. m indezek segítségével hihetetlenül gyorsan összeállt a szerkezetépítés. a tervezési oldalról egy ekkora szerkezetnek a követhetősége egyrészt fontos, másrészt biztonságot ad minden résztvevőnek, ha látja, hogy az adott alvállalkozó hogyan halad, és mihez lehet még hozzászólni – mert valljuk be, ez az épület még a kivitelezés alatt is sokat alakult.
Van valami olyan személyes kötődése az épülethez, amit kihívásként élt meg és büszkeséggel tölti el?
bár nem ez a legnagyobb épület, amin dolgozhattam, de méltó helyet foglal el eddigi munkáim között. magyarországon mindenképpen ez az egyik legnagyobb projekt, aminek a tervezésében sikerült részt vennem, az acélszerkezet tervezését irányítanom. büszkeséggel tölt el, hogy az acélszerkezet tervezésében kiváló mérnökökkel dolgozhattam együtt. külön szeretném kiemelni l ódri Csaba, Juhász márton i stván és rönkös tamás kollégáimat, akiknek meghatározó szerepük volt a tervezés során. (móré l evente)
“a
s if it Was a bri D ge over the Da NU be”
The steel roof structures, designed and constructed by KÉSZ Építő Zrt. under the direction and guidance of Steel Structural Engineer András Balázs Kocsis, are one of the most considerable feats of engineering created upon building the Danube Arena Swimming Complex. In our supplement, you told us about the special features and difficulties of this job, and we could also learn about the role that this project played in the professional career of András Balázs Kocsis.
Photo by Péter Molnár
Octogon: What role did you have in the realisation of the Danube Arena?
o ur company was awarded a contract to construct the steel structures of this building complex. We constructed the structure of the main roof and of the Danube icon connected to it; the steel structure of the temporary bleachers located on both sides; the reinforcement of the underlying reinforced concrete structure; as well as the steel structure over the warm-up pool on the Népfürdő s treet side. o ur engagement covered the design of steel structures, the creation of installation drawings as well as the planning of the lifting technology to be used to lift the large roof.
could you tell us about the main roof and the challenges you were faced with in realising it? from a design aspect, the key challenge was that the completion deadline was moved forward when it turned out that hungary would organise the 2017 World aquatics Championships. This had an impact, among others, on the design, the geometry and the implementation of these steel structures. The roof structure is braced by four reinforced concrete cores. The roof structure system consists of space trusses along the edges, secondary planar trusses in the direction of the shorter tension length, as well as tertiary space trusses supporting the latter. similarly to classic bridges, trusses consist of two-force members, and comprise triangular units constructed with straight members whose
“We could lift it by the deadline”
ends are connected at two joints (so-called nodes), of which one is fixed, while the others’ degree of freedom varies depending on the fixed node. This way it can be ensured that no extra strain occurs, for example, upon temperature fluctuations. We devised several ways for the implementation of the main roof, which certainly had an impact on the designs as well. one possible solution was to construct it directly at its final place, in the upper plane, using heavy-duty scaffolding. Unfortunately, this idea had to be discarded quickly, because, on one side, the b éke-kút (Peace fountain sculpture) is located, while on the other side, there are sewage and water discharges that could have not borne the load caused by the cranes necessary for the construction works. Thus, we were forced to choose the other solution, and build the roof structure on the ground level, by omitting the corners. The corner pieces were placed on top of the cores, and then, during an afternoon, the 2400-ton roof was elevated and placed to its final place using special heavy lifting technology; the remaining bars were mounted while the load was being held, and thus the structure achieved its final form.
Are there any minor details that you are particularly proud of?
for example, the fact that we could lift it by the deadline – this is not negligible. i n hungary, nobody has ever lifted a roof of such dimensions before; we also had doubts about how it would behave. We had imagined that it would be like in submarine movies set during World War ii , and we would hear the rending and crashing of the steel structure, but actually the roof was lifted very quietly. it is to the structure’s credit that it could be lifted without any issues. We had not done anything similar in our earlier practice, so this was a key moment in the life of our company. We had to find out how to put the last elements in place, so that we were working between the four corner elements; in addition, the wind was blowing strong through the bars, which rendered our job even more difficult. Wind must always be taken into consideration when one works in the vicinity of the Danube.
more than 50,000 bolts were integrated into the roof structure. The calculation of these bolted connections was a special task, for the structure was designed with non-standard nodes (joints), and therefore special computational procedures had to be completed to calculate the ideal connections.
Is there anything else that you consider as very important or exciting about this building?
The whole building was very important to us; we worked on this project day and night to be able to deliver it by the deadline. i consider it important that a production tracking system was developed in the design phase, which showed individually which structural elements were under design, which ones were already being cut in the factory, and after this, which ones were being painted, assembled, delivered or had been mounted already. This was documented on a weekly basis, and we could always track the status of the co-workers’ tasks; moreover, the client could check the stage of completion of the construction. a ll this made the construction of this structure incredibly quick. on the one hand, from the design aspect, the traceability of such a large structure is important; on the other hand, it gives a certainty to all participants, if they can see how a specific contractor is progressing, and in what they may have still have a say. because, let’s admit, this building still changed a lot during the construction phase.
Do you have any personal attachment to this building – something that you perceived as a challenge and that you take pride in?
a lthough this is not the largest building i have had the chance to work on, but it occupies an important place among my works so far.
i n hungary, this is definitely one of the biggest projects in the design of which i could participate, and manage the design of steel structures. i am proud that i had an opportunity to work together with excellent engineers in the design of this steel structure. i particularly wish to highlight my colleagues Csaba l ódri, m árton i stván Juhász and tamás r önkös, who played a decisive role in the design phase. (l evente móré)
A tetőszerkezet beemeléséig
A Duna Aréna acél tetőszerkezeteit a KÉSZ Csoport készítette el, a különleges technológia okán pedig mindenképpen érdemes részletesebben kitérnünk egy-egy mozzanatára. A főépület alapvetően egy négy monolit vasbeton magra egy-egy ponton letámaszkodó, acélszerkezetű fedéssel kialakított épülettömeg, amelyhez a dunai oldalon egy főhomlokzati építmény, míg a Népfürdő utcai oldalon egy előcsarnoki épületrész csatlakozik. Mivel a vébé rendezésének időpontját négy évvel előrébb hozták, így olyan technológiát kellett találni, amivel a szerkezet, így a főtető szerkezete is, időben elkészülhet. A főépület fedését egy monolit vasbeton szerkezetű alépítmény fogadja, aminek a kialakítása jelentős tervezői és kivitelezői munkát igényelt. A falvázak az ideiglenes lelátók miatt megbonthatók, ezért a tető csak a négy sarkán támaszkodik le a vasbeton lépcsőházi magokra (a támaszpontok távolsága 96 m x 72 m, a fő külső méretei 108 m x 84 m). A határidők nagyon szűkösek voltak, az acélszerkezet szerelésére mindössze öt hónap állt rendelkezésükre. A szükséges anyagok beszerzésének hosszabb átfutása és a bonyolult szereléstechnológia miatt a tervezés során a szerkezettervezők szorosan együttműködtek az épület felelős tervezőivel, akikkel közösen határozták meg a szerkezet kialakítását, a szelvényméreteket és a csomópontokat is.
A nagy átmérőjű csövek toldásához elengedhetetlen volt egy csőforgató gép használata, ennek segítségével (fedőporos hegesztéssel) hat-nyolcszoros sebességgel dolgozhattak a hagyományos módszerhez képest. A támaszelemek 80 mm vastag lemezből készültek, 40 mm-es sarokvarrattal. Egy-egy sarokelem összeállításához több, mint 2 km hegesztési varrat volt szükséges. A varratméretek, és így a nagy hőbevitel miatt a támaszelemek csillapítása mellett döntöttek. Az egyenként 10 tonnás elemek feszültségmentesítését nem hagyományos módszerrel, hanem az amerikai hadseregben bevezetett eljárással, az ún. MetaLax vibrációs feszültségmentesítő készülékkel végezték. A szerkezetek a felületvédelem érdekében háromrétegű festést kaptak, a teljes felületvédelemhez 63 tonna festékre volt szükség. A szerkezet hierarchikus felépítésű, a körbemenő négyövű rácsos főtartók 6 m szélesek és 13 m magasak, a közöttük 12 méterenként lévő 72 m fesztávolságú fióktartók pedig 6 m magasak. A fióktartók között 6 méterenként változó magasságú rácsos szelemenek futnak, amelyek közvetlenül támasztják alá a magasbordás perforált trapézlemez burkolatot. A fő tartószerkezetek elemei cső keresztmetszetűek, övszelvényei 762 mm átmérővel és 20-50 mm falvastagsággal készültek. A szerkezet méretei miatt a szele -
meneken kívül minden szerkezeti elem rudakra bontva, külön gyártmányként készült és csavarozott kapcsolatokkal építették őket össze. A nyomott elemek toldását karimás kapcsolatokkal tervezték meg, a húzott elemeket pedig hevederes, kétszer nyírt csavaros kapcsolattal illesztették egymáshoz.
A rácsrudakat az övszelvényekhez a felhasított övszelvényen átdugott csomólemezen keresztül, míg a nyomott rudakat hegesztett csőcsonk és karimás kapcsolat segítségével rögzítették a csomólemezre. A húzott rácsrudak a csomólemezre hegesztett kereszthevederen keresztül kétszer nyírt, csavarozott hevederes kapcsolattal illeszkednek. A főtartó rácsrúdjainak hevederes kapcsolatainál a hevederlemezek a csőszelvény keresztmetszetén belül maradnak, ami lehetőséget biztosít a későbbi burkolásra is. Sajátságos csomópont a szerkezet támaszcsomópontja. A vasbetonszerkezetre acél saruzsámolyokon és acél gömbsarukon keresztül támaszkodik a szerkezet, a vasbeton lemez felső síkjára acéllemezt rögzítettek, amely a vízszintes erőket a ráhegesztett nyírócsapokon keresztül adja át. Az acél saruzsámolyokat ezekre a lemezekre hegesztették fel a helyszínen, de a zsámolyokhoz szükséges sarukat és a sarukhoz szükséges felszerkezetet is helyszíni hegesztéssel rögzítették.

Az épület kialakítása lehetővé tette, hogy a főtartók vasbeton magok közötti részét előszereljék a monolit vasbeton födémen. Ez adta az ötletet, hogy az egész tetőt ezen a szinten szereljék elő és egyben emeljék fel a végleges magasságába. Ehhez a technológiához külön segédszerkezeteket kellett építeniük a vasbeton magok tetejére. Az emelőberendezéseket egy svájci székhelyű cég, a VSL Switzerland Ltd. biztosította, akik az emelést, a berendezések beszerelését és működtetését is elvégezték. A tetőszerkezetet a sarokelemek nélkül emelték fel, azokat a végleges magasságban építették össze, s a teljes, 17 méteres emelést 8 óra alatt sikerült végrehajtaniuk.
From m AteriA l procurement to li F ting the roo F structure in pl Ace
The steel roof structures of Danube Arena were made by KÉSZ Group; due to the special technology involved, it is definitely worth covering some of the relevant moments in more detail here. The main building is essentially a building complex leaning on each of four reinforced concrete cores at one point, with a steel-structured covering, an annexed main facade building on the side of the Danube and a lounge building part along Népfürdő utca.
Due to the advancement of the date of the World Cup by four years, it was impera-

tive to find a technology suitable for making the structure, and the structure of the main roof, in time. The cover of the main building is received by a monolithic reinforced concrete substructure incorporating significant designer and constructor work. The wall structures can be opened because of the temporary grandstands, so the roof is supported by the reinforced concrete staircase cores at its four corners only (the distance between the props being 96 m x 72 m, the main external dimensions 108 m x 84 m). The deadlines were extremely tight: they had had a mere five months to install the steel structure. Due to the longer lead time of the procurement of the necessary materials and the complex installation technology, they were in close cooperation with the responsible designers of the building, and the structural design, the profile dimensions and the nodes were defined collectively with them.
The splicing of large-diameter pipes made it imperative to use a pipe rotating machine: that (submerged-arc welding) made work 6 to 8 times faster than it would have been with the traditional method. The support elements were made of 80 mm thick sheets, with 40 mm angle weld. More than 2 km wedge seam was needed for assembling each corner element; due to the seam dimensions and the consequent high heat input, the decision was made to dampen the support elements. Instead of the traditional technology, stress relief at the elements weighting 10 tonnes each was ensured by a method introduced in the US army, the so-called Meta-Lax vibration stress relief process. For the sake of surface protection, the structures received three layers of painting; surface protection consumed a total of 63 tonnes of painting.
The structure is a hierarchical system; the encircling 4-zone main girders are 6 m wide and 13 m high and the cross-girders having a span of 72 m and positioned at every 12 m between them are 6 m high. There are barred ridgepoles of varying height at every 6 m between the cross-girders, supporting the high-ribbed perforated trapeze sheet cover directly. The elements of the main support structures have tubular cross-sections; their belt profiles were made with 762 mm diameter and 20-50 mm wall thickness. Because of the dimensions of the structure, apart from the ridgepoles, all structural elements were made in the form of bars, manufactured as separate products, assembled by bolted connections. The extension of the compressed elements was designed with flanged connections and the elements carrying tension were fitted together with double-shear screw connection.
The trusses were fixed to the belt profiles through the gusset plate led through the slashed belt profile, whereas the compressed bars were fixed to the gusset plate with the help of the welded pipe stub and the flanged connection. The tension-bearing trusses fit through the cross straps welded on the gusset plate by double-shear strapped screw connection. At the strapped connections of the trusses of the main girder, the strap plates remain within the diameter of the tube profile and that provides for subsequent coating.
The support node of the structure is a special node. The structure leans on the reinforced concrete structure through steel bearing plate support and steel spherical bearing plates; a steel plate was fixed on the upper plane of the reinforced concrete plate that transfers the horizontal forces through the shear pins welded onto it. The steel bearing plate supports were welded onto these plates on the spot, but the plates needed for the bearing and the superstructure required for the plates were also fixed by in situ welding.
The design of the building permitted to preassemble the part of the main girders between the reinforced concrete cores on the monolithic reinforced concrete covering. This gave the idea to pre-assemble the entire roof at that level and raise it to its final height in one piece. This technology required constructing a special auxiliary structure on top of the reinforced concrete cores. The lifting apparatus was provided by Switzerland-based VSL Switzerland Ltd. responsible for the lifting and the installation and operation of the equipment. The roof structure was lifted without the corner elements that were assembled at the final height, and the total 17 m lifting was accomplished in 8 hours.
KÉSZ Csoport
1095 Budapest, Mester utca 87.
Tel.: (+36-76) 515 200
Fax: (+36-76) 801 510
E-mail: kesz@kesz.hu
Web: www.kesz.hu
„15 000 digitális cím vezérlését végeztük el”
Interjú Morvai Zoltánnal, a be light! ügyvezetőjével.

Fotó: Végel Dániel / Photo by: Dániel Végel
Fotó: Bujnovszky Tamás
Octogon: A hazai, világítástechnológiával foglalkozó cégekkel összevetve önök miben különlegesek?
Nem gondolom, hogy különlegesek lennénk. véleményem szerint minket az különböztet meg a piac más szolgáltatóitól, hogy minden megbízásunkat a legnagyobb odafigyeléssel végezzük, és minden projektünkhöz hozzárendelünk egy mérnöki gárdát, akik figyelemmel és odaadással követik végig az adott feladatot a tervezési szakasztól az átadásig.
A Groupama Aréna világítástechnikai rendszerét is a be light! rakta össze, ahhoz viszonyítva mit jelentett a Duna Aréna projekt? m ind a két munka nagyon kedves és fontos nekünk. m indkét esetben már a tervezési szakasztól jelen voltunk, illetve véleményünk szerint mindkét épület
városképi jelentőségű. A duna Aréna a nyilvánvaló méretkülönbségén túl abban is elmozdulás az előzőhöz viszonyítva számunkra, hogy egy olyan világítási rendszert építhettünk be az épületbe, aminek minden eleme vezérelhető, szabályozható. ez egy laikus számára nem érzékelhető, de a „háttérben” ez azt jelenti, hogy 15 000 digitális cím vezérlését végeztük el, egy érzékeny hálózaton keresztül algoritmusokat írtunk, amelyek működtetik a ház világítási képeit. tehát nem áramköröket kapcsolgatunk, hanem világítási képeket hívunk elő. ez a projekt nagy kihívás elé állította a cégünket, hiszen nem annyi volt a feladatunk, hogy világítótesteket szállítottunk a helyszínre, szereltünk fel, majd beüzemeltük azokat, hanem egy komplett világítási rendszert kellett beprogramoznunk, összehangolnunk. ez többhónapos, sokszor éjszakai munkát jelentett, hibák kezelését, kiiktatásukat, míg végül

összeállít az egész. Persze az is hozzátartozik, hogy mindeközben maximálisan kiélhettük a szakmai kreativitásunkat.
Ezt a vezérlésen alapuló technológiát most alkalmazták először?
A vezérlés nem új történet, legalább 20 éve működik a világon, de sajnos magyarországon még mindig kevesen ismerik, mert ezt egy épület költségvetési sorából azonnal kihúzzák, mondván, hogy sokba kerül. Pedig ez nem így van, mert a világításra fordított működési költségek akár 50 százalékát is meg lehet takarítani, ha jól használják a beépített technológiákat. Beruházói döntés volt, hogy itt a legmodernebb rendszert alkalmazzuk, és így magyarországon most először egy nagyrészben led -es, vezérelt rendszerű Arénát raktunk össze. A duna Arénában a vezérlés azért vált
„Magyarországon most először egy LED-es vezérelt rendszerű Arénát raktunk össze”
elkerülhetetlenné, mert a ház többfunkciós. e gyrészt rendelkeznie kell azzal a tudással, hogy gazdaságosan üzemeltethető sportlétesítményként funkcionáljon, amit az élsportolók és az utca emberei is rendszeresen használnak, másrészt viszont alkalmasnak kell lennie a világversenyek megrendezésére. ez a két irány más-más kívánalmakat támaszt a világítási rendszer elé. Az előbbinél elegendő mondjuk 300 lux megvilágítási érték, a sportoláshoz viszont – a világversenyek esetében –, például 2000 lux megvilágítási szintre van szüksége azoknak a korszerű, digitális kameráknak, melyeket a televíziós közvetítéshez használnak.
Kik azok, akiket mindenképpen megemlítene a munkatársai közül a Duna Arénával kapcsolatban?
Nagyon büszkén mondhatom, hogy az egyik legtapasztaltabb mérnökünket állítottuk erre a projektre Papp gergely személyében. Az ő munkáját segítette z sitva z suzsanna, illetve a teljes vezérlési rendszert k is ádám (a páros portrén jobbra – a szerk.), ifjú mérnök kollégám rakta össze. ezúton is köszönöm a munkájukat, és a bizalmat a megrendelőmtől. (molnár szilvia)
15 000 A d dresses A s sig N e d”
Octogon: What makes be light! special relative to other domestic lighting companies?
i don’t think that we’d be special. As for the feature that distinguishes us from other service providers in the market, i think it is the utmost care we apply to each and every assignment: we always assign an engineering team to each project that monitor the task concerned with great concentration and commitment from design to delivery.
Int
erview wi t h Zol t án Mo rvai , CEO of be l ight !
Photo by Tamás Bujnovszky
The lighting technology of Groupama Arena has also been put together by be light! – what did the Danube Arena project mean to you compared to that?
Both jobs were dear and important to us. We had been present in both cases from the design phase on, and both are, in our opinion, important for the urban landscape. Apart from the obvious dimensional differences, d a nube Arena was different in
the sense that every element of the lighting system installed in the building can be controlled and regulated independently. A layman will not realise that, but “in the background”, this means that we completed the controlling of 15 000 digital addresses, we wrote algorithms through a sensitive network that operate the lighting displays of the building. That is, instead of switching circuits, we retrieve illuminating pictures. This project was

“For the first time in Hungary, we have realised an Arena having an in large part LED-driven lighting system”

a major challenge for the firm, since our task was not limited to delivering the lighting fittings on the site and assembling and commissioning them, but we had to program and harmonise a complete lighting system. This took several months of work, often also night work, and also troubleshooting and error elimination until the whole system was set up. of course, it is also part of the story that we had an opportunity to exercise our creativity to the maximum in the meantime.
Was this the first time this control-based lighting technology was applied?
l ighting control is not a new story, it has been in use for at least 20 years but, unfortunately, few know it in hu ngary yet, because when you build a house, this is the first project part that will be cancelled due to the high costs involved. of course, this is not quite true, for up to 50% of operational costs of expenditure allocated to lighting can be saved by using the installed technologies well. it was the investor’s decision to use the most modern system here so, for the first time in hu ngary, we have realised an Arena having an in large part led -driven lighting system.
such control was inevitable at da nube Arena due to the multi-functionality of the building. it is to function, on the one hand, as sports facility that can be operated economically, to be used regularly by both professional sportsmen and the man in the street, and on the other, as a facility that can stage staging world competitions. The two modes of operation set different demands for the lighting system. i n t he first version, it may be sufficient to have 300 lux lighting value for the sports activity, but at world championships for example, the modern, complex digital cameras used for tv broadcasting require 2000 lux.
Who are your colleagues you would mention by all means in connection with Danube Aquatics Arena?
i can proudly say that we assigned to the project gergely Papp, our one of the most experienced engineer. he was assisted by z suzsanna z sitva, and the entire control system was compiled by my young engineer colleague, ádám k is (see the double portrait – the ed.). i would like to thank them for theirs works and thank my Principal for his trust. (szilvia molnár)

Fotó: Végel Dániel / Photo by: Dániel Végel; Morvai Zoltán (balra), Kis Ádám (jobbra) / Zoltán Morvai (left), Ádám Kis (right)

„...illeszkednek az épület jellegéhez”
Fotó: Végel Dániel / Photo by: Dániel Végel
Design, variálhatóság, illeszke D és
Beszélgetés Gerendássy Judittal, a do work! ügyvezetőjével
Octogon: Mikor alapította a céget, és honnan, miért ez a névválasztás? 2009-ben alapítottam a céget, a névválasztás pedig tudatosan a társalapító-partnercégem, a be light! dinamizmust sugalló nevét követi le hangzását tekintve. a zon túl, hogy jól megjegyezhető, tükrözi is mindazt, ami jellemző ránk: törekvés a megújulásra, az innovációk folyamatos követése, ügyfélközpontúság, frissesség.
Milyen szempontok alapján döntötte el, hogy mely termékeket fogja forgalmazni? a fő hangsúly az építészek által is nagyra tartott prémium iroda-, közületi és design bútor gyártók képviselete volt – ilyenek a v itra, Walter k noll,
Bujnovszky Tamás
Magis –, majd ehhez jöttek kiegészítésként a lengyel bútorgyártás kiváló képviselői és termékei. Utóbbiak kiválasztásában fontos volt számunkra, hogy a cégek áruválasztékában, termékeik kivitelében, tartósságban jól kiegészítsék a fő beszállítónk termékeit, valamint, hogy hozzáadott értékkel bírjanak. a hogyan utaltam rá, fontos számunkra a megújulás, ezért folyamatosan újabb termékekkel bővítettük és bővítjük a meglévő kínálatunkat. a kiválasztás szempontjai ugyanazok, mint a lengyel darabok esetében.
Kizárólag bútorok forgalmazásáról beszélhetünk vagy kapcsolódó szolgáltatásokat is nyújtanak?
l ényegében adja magát ebben a termékszegmensben, hogy szolgáltatásokat is nyújtsunk az olyan alapszolgáltatások mellett, mint a költöztetés vagy éppen az egyedi bútormegoldások gyártása. ha egy tervező, megbízó igényli, akkor, amikor új irodatérbe költözik, vagy átalakítja a régit, alaprajzi tanácsadást is nyújtunk számára, illetve abban is segítünk, hogy a meglévő bútorokat milyen módon implementálja az új térbe, az új darabok, új kollekciók közé.
A Duna Arénában az uszodai funkció miatt úgy tűnik első pillantásra, hogy viszonylag kevés olyan terület van, ahová bútort szállíthattak. Melyek voltak ezek a területek? a z épület, a terek mérete, a funkcióelosztás miatt

Fotó:
valóban úgy tűnhet, hogy kevesebb a bútorigény. a z épület alapfunkciója – nagy forgalmú uszoda – megkövetelte, hogy a bútorok, kiegészítők kiválasztásánál a nagy igénybevételt, a tartósságot különösen szem előtt tartsuk. Fontos szempont volt továbbá, hogy a bútorok jól variálhatók legyenek, ezzel együtt a mai designtrendeket is képviseljék és illeszkedjenek az épület jellegéhez. a „látható” terek közül a lobbiban, az előterekben vannak használatban az általunk leszállított recepciós pultok,
ülőbútorok, asztalok, padok, puffok. Mi szállítottuk az emeleti konferenciaterem asztalait és székeit. ez utóbbiak a Duna a rénába szállított kevés fabútorok közé tartoznak. a látogatók számára „láthatatlan” terekben, vagyis a háttérirodákban, az öltözőkben is vannak bútoraink – irodabútorok, utóbbi esetekben fémszekrények. é s persze nem csak bútorokról beszélhetünk, hanem olyan kiegészítő elemekről is, mint a növény kaspók, designszemetesek, kisebb tárolók. Mindazon fölül, amiket elmondtam a Duna a rénába szállított bútorokkal, tárgyakkal kapcsolatban, hozzá kell tennem: fontos volt számunkra, hogy részt vegyünk a projekt azon küldetésében, hogy a hazai kortárs művészet is szerephez juthasson. e hhez kapcsolódik, hogy a lobbiban, a fő recepciós pult előtt elhelyezett „ bumeráng” padot, szőnyi a nna designer nemzetközi hírű, díjazott és nagyon látványos bútordarabját szintén mi szállítottuk. (Molnár szilvia)


Design, variability, M atch
Interview with Judit Gerendássy, CEO of do work!
Photo by Tamás Bujnovszky
Octogon: When did you establish the company and why did you choose this name? i founded it in 2009 and the name deliberately rhymes with that of my co-founder partner company, be light!, suggesting dynamism. it is easy to remember and reflects everything that is typical of us: quest for renewal, continuous pursuit of innovations, client-centeredness and freshness.
What criteria did you use to decide what products you would distribute?
The main emphasis was on the representation of premium office, public and design furniture manufacturers appreciated also by the architects – such as v itra, Walter k noll, Magis -, and then, additionally, the excellent representatives and products of Polish furniture manufacturing. When selecting the latter, it was important for us that the product array, realisation and durability of the companies concerned match the products of our main suppliers and carry added value. a s i mentioned already, renewal is important for us, so we have kept expanding our supply with new
“... delivered to Danube Arena”
products. The selection criteria are the same as those applied for the Polish pieces.
Do you exclusively distribute furniture or do you also deliver related services? it is by and large obvious in this product segment that you provide also special services in addition to such basic services as moving or the manufacture of unique furniture. Upon the request of a designer or client moving to a new office space or converting an old one we are ready to provide floor-plan counsel and help implement the old pieces in the new space, among the new pieces and collections.
Given its aquatics functions, at first sight it appears that Danube Arena has relatively few premises where you could supply furniture. Which were these premises?
The dimensions and functional distribution of the building and its areas may actually suggest a smaller demand for furniture. The core function of the building – busy aquatics area – demanded heavyduty and durable furniture and accessories. a nother important criterion was to have variable pieces that also represent the current design trends and match the nature of the building. From among the “visible” areas, there are reception desks, seats, tables, benches and poufs supplied by us in the lobby and the entrance areas. We have also supplied the tables and chairs of the conference room on the first floor. The latter are among the few wooden pieces delivered to Danube a rena. Our furniture are present also in the areas that are “invisible” to visitors, that is, the back offices and the changing rooms – office furniture and, in the latter, metal cabinets. a nd, of course, we do not speak here of furniture alone, there are also such accessories as plant pots, design bins or smaller containers. i n addition to what i said in connection with the furniture and objects we brought to Danube a rena, let me add that it was important for us to take part in the mission of the project to let contemporary hungarian art play a role there. i n this context, we supplied the “boomerang” bench, the internationally-renowned, award-winner and most spectacular piece of designer a nna szőnyi that is now installed in the lobby, in front of the main reception desk. (szilvia Molnár)
KÖZELKÉP CLOSE-UP
A gépeken, tonnás méreteken és mennyiségeken fölül az emberi teljesítmény az, ami igazán számít az Duna Aréna projektben. A következő oldalakon Molnár Péter képei a hétköznapi, emberi pillanatokat mutatják meg. In addition to machines and dimensions and volumes measured in tonnes, what really counted in the Danube Arena project was human performance. The following pages show everyday moments from the lives of ordinary men through the pictures of Péter Molnár.











„ A berendezések ki válAsz tásánAk fő szempon tjA A megbízh Atós ág vo lt"

A Duna Aréna a 2017. évi Úszó, Vízilabda Műugró, Műúszó és Nyíltvízi Világbajnokság megrendezéséhez felépült központi sportlétesítmény, amely két részből áll, egyrészt az alapépületből, amely kb. 6000 fő befogadására alkalmas, másrészt az épület északi és déli oldalán felépített ideiglenes lelátókból. Az ideiglenes lelátók férőhelyeivel együttesen a világbajnokság ideje alatt összesen kb. 15 000 ember látogathatja majd a versenyeket.
Az uszodakomplexum biztonságos energiaellátásáról 2 db (7+4 mező) középfeszültségű kapcsolóberendezés, 5 db (összesen 6700 kVA teljesítményű) transzformátor és 3 db (összesen 2500 kVA teljesítményű) dízelgenerátor gondoskodik. Az egyes épületrészek egymástól független berendezéseken keresztül kapják meg a betáplálásukat, ezzel minimalizálva az egyszeres hibaesemény bekövetkezésének a komplexumra gyakorolt hatásait.
A berendezések kiválasztásának fő szempontja a megbízhatóság volt, ezért esett a választás az ABB által gyártott SafePlus típusú kapcsolóberendezések, és a Legrand által gyártott EDM-tokozott, a legmodernebb, Ecodesign direktívának megfelelő transzformátorok felhasználására.
A transzformátorok által előállított 0,4 kVos feszültség tokozott sínek segítségével jut el az épület főelosztó berendezéseihez. Az alapépület és a gépészeti nagyfogyasztók külön-külön főelosztót kaptak, az ideiglenes lelátók ellátását pedig konténerbe telepített berendezések biztosítják.
A kisfeszültségű fő- és alelosztó berendezések kiválasztásánál szintén a megbízhatóság volt az elsődleges szempont, így a világszínvonalat képviselő ABB termékekre esett a választás. Az automatikus fázisjavító berendezést a végleges hálózati jellemzőkhöz méretezték, ezért utólag gyártották le és telepítették.
Az energia elosztása az épületben tokozott sínek és egyedi betápkábelek segítségével történik, három egymástól független erőátviteli hálózatot alakítottunk ki. A vébé ideje alatt
A főépület ellátásáról 2 db az épületbe telepített saját tulajdonú transzformátor és egy 1050 kVA-es dízelberendezés, a vébé ideje alatt az ideiglenes lelátó kiszolgálásáról 1-1 db betonházas kapcsolóállomás és 1-1 db lemezházba épített dízelgenerátor gondoskodik. A gépészeti nagyfogyasztók (pl. folyadékhűtők) nagy energiaigényük miatt az alapépületétől független transzformátorról jutnak energiához. Áramkimaradás esetén nagy megbízhatóságú ipari PLC-vezérelt automatika gondoskodik az átkapcsolásról vagy a vészüzemi berendezések indításáról, ezzel egyidejűleg a terheléskorlátozásról is.


az alapépület ellátó hálózatán kívül egy a tévéközvetítést és egy, a nagy energiaigényű LEDfalakat és perimetereket kiszolgáló szeparált hálózatot is beépítettünk. Ezek a hálózatok magas energiaigényük miatt az épületétől független külső betáplálást kapnak a vébé idején. Feladatunk a külső betáplálást fogadó csatlakozási pontok kiépítésével fejeződött be. A vébé után a rendszerek megmaradó részei az alapépület hálózatára csatlakoznak majd. Nagy kihívást jelentett a versenymedencetér sportvilágításának és nézőtéri világításának kialakítása, beállítása is. A medencetér HDTV-közvetítésre alkalmas megvilágításáról 274 db, egyenként 1000W-os LED-lámpatest gondoskodik. Ezek a lámpatestek az épület acél tartószerkezetén helyezkednek el, a medence víztükrétől számított 23 méteres magasságban. A szerelés, a beállítás és a mérések elvégzése egyaránt csak alpin mód-
Az épület kiemelt közönségforgalmi területein Dali-vezérlésű világítást építettünk ki, ezeken a területeken a lámpatestek egy érintőpanelről, laptopról, vagy tabletről is vezérelhetők. Az épület egyéb normál világítási rendszerei az épületfelügyeleten keresztül is kapcsolhatók.
Az épületben Barisol-fóliás látványvilágítás is szolgálja a minél összetettebb fényélményt
szerekkel volt kivitelezhető annak ellenére, hogy a tetőszerkezet részét képezi egy szervizjárda is. A lámpatestek DMX-rendszerről vezérelhetők DMX-Dali-konvertereken keresztül, így lehetőség nyílik minden egyes lámpatest külön-külön fel- és lekapcsolására, fényerő-szabályozására. A lámpatestek darabonkénti programozhatósága lehetővé teszi előre definiált világítási képek bejátszását, vagy akár a központi vezérlőben található fényvezérlő pultról a jelen időben történő koreografálását is. A sportvilágítási lámpatestek külön védelmeként egy környezeti hőmérséklettől függő teljesítményszabályozási rendszert is beépítettünk, így a lámpatestek túlmelegedése és meghibásodása ellen automatikus teljesítmény-leszabályozással védekezünk. A nézőtér első szakaszában 1200 lux megvilágításról gondoskodunk szintén LED-es, vezérelhető lámpatestekkel, míg a hátsó szakaszban 400 lux megvilágítási szintet biztosítunk a medencetérrel és nézőtérrel megegyező színhőmérsékletű fénycsöves lámpatestekkel. Ezzel értük el, hogy a verseny medencetér teljes területe alkalmas legyen tévéfelvételek készítésére. A bemelegítő-medence világítását szintén vezérelhető LED-lámpákkal oldottuk meg, itt 600 lux átlagos megvilágítási szintet biztosítottunk oly módon, hogy tévéközvetítés igénye esetén további lámpatestek csatlakoztatására is van lehetőség.
a fejépületi részen a jakuzzi fölött és a szaunavilág helyiségben RGB-LED- szalagos világításal, ennek eredményeként a feszített fólia különböző színekben világítható meg. Ilyen került még a műugrótorony különböző magasságú platformjainak aljára is, ami fölött fóliánként 500700 db pixel LED található, ezek szintén egyedileg címezhető és programozható LED-ek, amellyel a Pharos vezérlő által programozott világítási képeket és különböző animációkat (pl. nemzeti színű zászló) lehet elkészíteni.
A homlokzatvilágítás szintén DMX-vezérléssel működik, itt feladatunk volt 9 db előre definiált világítási kép leprogramozása a megrendelő igényeinek megfelelően, a magyar zászló képétől kezdve az óceáni színek megjelenítéséig. A II. emeleti kerengőre 58 db 4,5 m-es kandeláber került, amelyek egyrészt közvilágítási, másrészt a keleti oldalon RGB-s lámpatestek felszerelésével a díszkivilágítási funkciókat is ellátnak.
A külterületre erős-és gyengeáramú alépítmények kerültek, amelyek ellátják az épület 10 kV-os betáplálását, a közvilágítást és a telekommunikációs szolgáltatók becsatlakozását is. Külön figyelmet érdemel a nyugati oldalon lévő térvilágítás, ami lépcső, térkő, fal és fa megvilágításból tevődik össze. A gátsétány mentén 34 db 5 m-es és 5 db 12 m-es kandeláber biztosítja a közvilágítást, de a 12 m-es kandeláberekre szerelt RGB-s fényvetőkkel a homlokzatot is derítjük.
Az épületben egy általános hangosítási hálózatot telepítettünk, amivel a medencetéren kívüli helységek hangosítását látjuk el. A versenymedencébe víz alatti hangszóró és mikrofon is került, ami lehetővé teszi, hogy ott is hallható legyen, ami a hangosító rendszeren megszólal, illetve a víz alatti hangok is felvehetők.
Kiépítettünk egy belső tévéhálózatot, ami lehetővé teszi, hogy a különböző pontokon elhelyezett televíziókészülékeken és a kivetítőkön a közönség minden szükséges információról értesüljön a világbajnokság alatt. A hálózat összeköttetésben lesz az Omegaidőmérő rendszerrel, így az eredmények azonnal a kivetítőkön, és a televíziókon is láthatók lesznek.
Az informatikai rendszer maximálisan kielégíti a sportlétesítmény számítógépes igényeit, a telepített WIFI-eszközök a vezeték nélküli internet szolgáltatást biztosítják. Az épület üzemeltetésére hivatott berendezések, mint az épületfelügyelet, hangosítás, világításvezérlés, belső tévéhálózat egyazon informatikai hálózaton keresztül kommunikálnak, ez biztosítja az üzembentartó mérnököknek a távoli elérést, ellenőrzést és szükség esetén a beavatkozást is.
A kivitelezés csúcsszakaszában cégünk több, mint 150 fő erősáramú és 40 fő gyengeáramú szerelője dolgozott 5 fő építésvezető és 2 fő művezető irányítása alatt. A folyamatos

munkavégzést az anyagszállítások ütemezésével tettük lehetővé, amelyben nagy szerepe volt cégünk logisztikai osztályának. A projekt nagyságát szintén jellemzi, hogy 6 raktárkonténerből, 4 raktárhelyiségből és egy nagyságrendileg 600 m2-es kábel- és depóterületről 3 fő állandó raktáros szolgálta ki folyamatosan a szakkivitelező villanyszerelőket, ezzel biztosítva a folyamatos jó minőségű munkavégzést.
A kivitelezés nagyságára jellemző adatok:--több mint fél kilométer nagy áramerőség átvitelére alkalmas tokozott sín 1250 A-tól 2500 A-ig 10 000 m kábeltálca, kábellétra 260 000 m erőátviteli kábel 250 000 m gyengeáramú kábel több mint 80 db elosztó berendezés és 100 db csatlakozótábla több mint 9 500 db lámpatest és 4 000 db szerelvény került beépítésre.

" t he principA l selection criterion wA s the reliA bility"
The Danube Arena, constructed to host the FINA World Championships of water polo, diving, synchronized swimming, swimming and open water sports, is the central facility of the world event consisting of two main parts – the core building with a capacity of 6 000 guests and two temporary grandstands on the Northern and Southern sides. Together with the provisional grandstand seats the complex will be able to host 15 000 people during the competitions.
Power supply security of the swimming stadium is ensured by 2 MV sub stations (7+4 sections), 5 transformers (6700 kVA altogether) and 3 diesel generators (2500 kVA altogether). The different parts of the building are fed separately to minimize the consequences of a single failure instance for the totality of the complex. Reliability was the main selection criteria for the appliances. That is why we chose ABB’s SafePlus switchgear models and Legrand’s latest insulated EDM transformers complying with the Ecodesign directive.
The power supply of the main building is ensured by two own built-in transformers and a 1050 kVA diesel appliance while the temporary stands are supplied by two sub stations in concrete structures one for each and two

diesel generators in sheet-metal enclosures, one for each either. Because of their massive energy need, large operational consumers (e.g. liquid cooling systems) get the power from transformers independent from that of the main building. In case of a power outage a highly reliable PLC-controlled automatic system ensures the switchover or turns on the emergency appliances and simultaneously ensures load limitations.
The 0.4 kV voltage is forwarded to the main distribution equipment of the building in insulated busbars. The main building and the large operational consumers received separate distributors, while the supply of the provisional grandstands is ensured by appliances installed in containers.
The principal selection criterion for the main low voltage distribution and sub-distribution appliances was also reliability, so we chose world-class ABB products for this purpose as well. The automatic power factor correction device was designed after the final electrical system features were obtained.
Power is distributed by insulated busbars and custom input power cables; and three independent power transmission systems were installed. During the period of the World Championships, two systems separate from the main building grid will serve the television broadcasting and the energy-intensive LED walls and perimeters. Because of their large
energy consumption, these systems will get an independent feed for the period of the Championships. Our job ended with the construction of the connection points for the external power supplies. After the World Championships, the remaining systems will be connected to the main building network.
It was a great challenge to design and set the sports lighting of the competition pool and the standard lighting of the stands. The HD broadcasting-compatible lighting of the pool area is ensured by 274 LED luminaires, with 1000 W each. These luminaires are attached to the supporting structure of the building in 23 m height measured from the water surface of the pool. The installation, the setting and the measurements could be only executed by alpinist technology despite the existing service walks in the roofing structure. The luminaires are controlled via a DMX system through DMX Dali converters enabling the possibility to switch on and off each luminaire separately and to control the amount of light. The programmability of the luminaires enables predefined lighting schemes to display or a real time lighting choreography directed from the lighting control board. To protect them, the sports luminaires received a power control system that automatically controls the power consumption depending on the external temperature to protect the luminaires from overheating and failure. The lighting of the



first section of the stands is ensured by controllable LED luminaires providing 1200 lux altogether, while the rear section is lit by 400 lux provided by fluorescent tubes with colour temperature identical with that of the pool area and the other parts of the stands. By these arrangements, we managed to make the totality of the pool suitable for television shooting. The lighting of the warm-up pool is also ensured by controllable LED lamps providing an average lighting level of 600 lux that can be increased by attaching additional luminaires in case of TV broadcasting needs.
In the most frequented areas, the lighting is controlled by Dali system available on a touch panel, a laptop or even on a tablet. The other parts of the building got standard lighting which can be controlled also by the building management.
Inside the building, decorative sheeted Barrisol lights contribute to the complex lighting experience. They are placed in the head of the building above the Jacuzzi and in the sauna world premises where they are supplemented by RGB LED strips enabling lighting in different colours. Decorative sheeted luminaires were also installed at the bottom of the diving tower platforms located at different heights. There are 500-700 LED pixels behind each sheet that can be programmed by a Pharos controller to display lighting schemes and animations (e.g. national flags).
Regarding the façade lighting, also controlled by DMX, our job included the programming of nine predefined lighting schemes from the picture of the Hungarian national flag to an oceanic color impression, according to the customer needs. The ambulatory on the third floor was equipped with 58 lamp posts measuring 4.5 m that serve public lighting functions on the one hand and decorative purposes on the Eastern side with RGB luminaires on the other hand.
The high and low voltage substructures outside of the building ensure the 10kW feed of the building, the public lighting, and the connection to the telecommunications service providers. The public lighting on the Western side consisting of the lighting of stairs, paving, walls and trees deserves special attention. Along the dam walkway, 34 units of 5 m high lamp posts and 5 units of 12 m high ones ensure public lighting. The latter ones are provided with RGB floodlights as well that shed light on the façade.
We installed a standard sound system in the building that ensures the audibility in the rooms outside the pool area. We placed underwater speakers and microphones in the competition pools to ensure that the swim-
mers hear the sounds of the sound system and to record sounds under the surface.
We installed a closed-circuit television network that enables the public to get all information needed during the Championships from televisions and screens placed at various points across the building. The network will be connected to the Omega Timing System that will immediately show all the results on the screens.
The IT system fulfils all needs of the sports facility; wireless internet connection is provided by WiFi spots installed on the site. The building operation appliances including the building controls, the sound system, the lighting controls, and the CCTV communicate through the same computer network. This solution ensures remote access, monitoring and intervention, if needed, for the operators.
In the peak period of the implementation, more than 150 strong current mechanics and 40 low current mechanics worked on the site under the supervision of 5 site managers, and 2 master mechanics of our company. Continuous work was ensured by strict scheduling of the material supply in which our logistic department had a great role. The size of the project can also be illustrated by the fact that 6 storage containers, 4 store rooms and a 600 m2 storage and depot area along with three permanent storekeepers continuously supplied the electrician mechanics with materials, ensuring continuous and high quality work.
Data demonstrating the scales:
---
more than half kilometre of high current transmitting insulated busbars (1250-2500 A).
10 000m of cable trays and cable ladders
260 000m power transmission cable
250 000m low current cable more than 80 distribution hubs and 100 junction boards more than 9 500 luminaires and 4 000 fittings
Vilati Szerelő Zrt. 1037 Budapest, Bojtár u. 53.
Tel.: (+36-1) 880 4700
Fax.: (+36-1) 880 4709
E-mail: vilati@vilati.hu
Web: www.vilati.hu



Réteges öltözet
A Duna Aréna tetőzete és homlokzata

„Adok egy rendes zakót, homlokzatos cégnél dolgozol!” – nézett végig rajtam pályafutásom elején egy közös tárgyalás előtt a főnököm, fényes autójából kiszállva. „A cipőd milyen, hadd nézzem, kérsz egy feketét?” –nyílt a csomagtartó, s már tele is volt a kezem ruhákkal. Ez a keresetlen önzetlenség azóta is jellemző rá, és jellemző cégünkre is, ahol nagyléptékű épületek külső burkolatait készítjük. A magasépítés méretes szabói vagyunk, szerkezeteket öltöztetünk fel, legyenek azok raktárcsarnokok, autógyárak, bevásárlóközpontok, vagy éppen vizes létesítmények. Az elmúlt években számos jelentős uszoda kivitelezésében vettünk részt: Lágymányosi Tüskecsarnok uszoda (2015), Győri versenyuszoda (2014), Kecskeméti uszoda (2011), MOM Sportuszoda a Csörsz utcában (2006), vagy a Paskál Gyógy- és Strandfürdő bővítése (2016). Ezek mindegyike hordoz érdekességet szerkezetében, tető- vagy homlokzati burkolatában, a frissen elkészült a Duna Aréna azonban mindezek közül kiemelkedik – nemcsak elhelyezkedése, mérete, de a magyar vizes sportokban betöltendő szerepe miatt is. Ahogy a tetőben, úgy a homlokzaton is alkalmaztunk olyan új anyagokat, úttörő megoldásokat, amik a hazai uszodaépítésben eddig még nem fordultak elő.
Fontos volt, hogy már a tervek korai fázisába bepillantást nyerhettünk. Megbízónk, a Market Építő Zrt. jóvoltából az ajánlatadás idejétől kezdve részt vehettünk a NapurTecton-Exon 2000-Market tervezői megbeszéléseken, így sok ponton tudtuk finomítani, gyakorlatias irányba terelni a kiviteli tervek elkészítését. Ez sajnos nem túl gyakori, de mindenképp követendő együttműködési stratégia, a Market Építő Zrt. pedig felismerte ennek előnyeit és sikerrel alkalmazza.
Újdonságok a tetőhéjalásban: A teljes épületen szokásosnak mondható egyenes rétegrendű lapostető készült, kiegészítve azzal, hogy a korábbi uszodai tetőkkel ellentétben most akusztikai követelményeknek is meg kellett felelni, emiatt perforált teherhordó trapézlemezt kellett beterveznünk. Az így lecsökkent teherbírás és a tetőn kialakuló hózugok feladták a leckét a lemez erőtani méretezésénél; a megoldás végül egymezős, de mindkét végükön konzolosan túlnyúló lemezekből álló, folytatólagos többtámaszú tartó lett. A többtámaszú kialakítás növeli a teherbírást, az egymezős lemezek kölcsönös túlnyújtásai pedig pont a támasz feletti részeket erősítik meg, így érhető el a kívánt teherbírás. A perforált trapézlemez bordáiba könnyű
üveggyapot-paplan került, aminek alsó oldala fehér üvegfátyollal bevont, így volt elkerülhető a szálvesztés.
Hőszigetelésként a lapostetőkben ritkán alkalmazott lépésálló üveggyapotot építettünk a rétegrendbe – egyszerűen a kisebb tömege miatt. Azonos tűzállósági paraméterek mellett így 15 kg/m2-rel lett könnyebb a rétegrend, a teljes medencetéri tetőfelületre vetítve összesen mintegy 136 tonnával, ami a nagy fesztávolságú acélszerkezet lehajlásainak kordában tartását szolgálja.
Különleges homlokzat: A réteges öltözködés hasznos elvét követve a homlokzaton szétválik a termikus burok és a külső díszburkolat. Az előbbi teljesít minden épületfizikai követelményt, az utóbbi csak az épület tömegformálását, megjelenését adja. Ez egy közös és alapvető döntés volt – költségesebbé, de megvalósíthatóvá téve az építészeti koncepciót. 200 mm vastag, kőzetgyapot töltésű szendvicspanel alkotja a belső réteget. A nagy terjedelmű rácsos acéltetőzet komoly mértékű elmozdulásai miatt a homlokzati falvázoszlopok két magasságban is csuklós kialakítással készültek, a homlokzati síkkal párhuzamos eltolódások miatt pedig 24 méterenként mozgási hézagot kellett beépítenünk.
E részletmegoldások mindegyike egyedi, a tervezőkkel közösen tökéletesítettük őket. Egy jellemző vízszintes metszet az 1. ábrán látható. A külső alumínium burkolatot egy tűzihorganyzott, az épület falvázoszlopaihoz konzolokkal, hőhídmegszakító-lemezzel csavarozott acélszerkezet tartja. Ezek sávonként önálló szerkezeti elemek ívesített zártszelvényű gerendákkal, összekötő elemekkel. Ha csak egyetlen mozzanatra kellene emlékezni a Dagály (Duna Aréna) projekttel kapcsolatban, bizonyára a külső homlokzati burkolat kiválasztásának kálváriája lenne az. A koncepció, miszerint 10 vízszintes sáv hullámzik majd végig a homlokzaton, már 2015 októberében felizzott a Napur szellemi kohójában, innen mégis négy hosszú hónapra volt szükség, hogy a termék kihűljön az öntőformában. Rengeteg mintalemez, színkatalógus, beszállítói prospektus bemutatása és különböző fényviszonyok közötti csoportos nézegetése után végül 4 különböző bordázatú alumíniumlemez készült, natúr, lakkozott kivitelben. Egyszerű, nemes, szép és időtálló felület – Svájcban gyártották egy nagy múltú, homlokzati burkolatokkal foglalkozó üzemben. A homlokzat külön szépsége, hogy a bordázatok önárnyékai a nap járásának függvényében monokróm „kaméleonként" változtatják az árnyalatokat.
Bár a sávok vízszintesen futnak a homlokzaton, a szerelés mégis függőlegesen, alulról felfelé folyt – az alacsonyabb födémeken építettünk előszerelő állásokat. Itt az acélvázra rácsavaroztuk az alumínium lemezeket, elő -
re kimérve a csatlakozási pontokat és a pontos lemezpozíciót, majd 6 méteres raszterenként emeltük be a háttérvázat a burkolattal együtt, toronydaru és alpinisták segítségével. Végül az illesztéseknél utólag, egyesével tettük fel a hiányzó elemeket. Mintegy 8 hétre volt szükség a burkolat elhelyezéséhez, de csakis azért, mert sokat fújt a szél.
Bár az épületet átadták, még nincs kész. A világbajnokság után, az ideiglenes lelátók elbontásával ismét kinyílik a tér és elkészül majd a végleges épülettömeg, a mostanival egyező kivitelben.
Megtiszteltetés volt részt venni ebben az építkezésben, köszönjük a résztvevőknek a belénk vetett bizalmukat! Hiszünk benne, hogy az épület zakója sok jeles eseményen, sokáig díszíti majd tulajdonosát!
(Vámosi András)
l aye R ed clothing
The roof and the façade
of the Danube Arena
“I give you a proper jacket, you work in a façade company after all!” said my boss before my first meeting at the beginning of my career, getting out of his car. “How your shoes look, let me see! Do you want black ones?” he continued while opening the trunk and putting a pile of clothes in my hands. This unaffected altruism of his is still very typical of him and

of our company as well which implements exterior cladding of large-scale buildings. We are the bespoke tailors of these buildings – we dress up their structures, be they warehouses, car factories, shopping centres, or aquatics complexes.
We took part in the construction of several large swimming stadiums in recent years: the Tüskecsarnok Pool in Lágymányos (2015), the Aqua Sport Centre in Győr (2014), the swimming pool building of the Kecskemét Bath (2011), the MOM Sports Pool and Sports Complex (2006) and the extension of the Paskál Thermal Baths (2016). All of them brought some peculiarities in their structure or in the cladding of their roof or façade but the newly built Danube Arena beats them all due to its location, scale and the role it shall have in the Hungarian water sports. We applied novel materials and groundbreaking solutions never seen before in the Hungarian pool construction both at the roof and the façade.
It was important that we could have insight in the plans even at the early stages of design. Thanks to our entruster Market Építő Zrt., we could attend the Napur-Tecton-Exon 2000-Market designer meetings so we could refine designs in many aspects and modify implementation plans in very practical ways. Despite its usefulness, this strategy is uncommon in our country, but Market Építő Zrt. set an example to follow by recognizing its benefits and applying it with great success.
Novelties in the roofing: The total roofing of the building is a conventionally layered flat

függőleges dilatációnál / vertical motion gap
1. ábra / Figure 1.
roof that, unlike our previous pool roofs, had to comply with acoustic requirements as well. Therefore we needed to complete our plans with trapezoidal perforated sheets. It was a major challenge at the structural calculations that this feature had reduced load-bearing capacity and there were accumulated snow load areas on the roof. Finally we found a solution made of single span sheets with console overhangs on both sides lying on passing girders. The continuous girders increased load-bearing and the overlaps of the panels strengthened the supported sections altogether resulting in the required load-bearing capacity. The ribs of the trapezoidal perforated sheets were filled with lightweight fiberglass mats coated with white glass veils on the bottom side to prevent fibre loss.
Step-proof fiberglass, rarely used for flat roofs, was built in the layers as thermal insulation because of its lightweight characteristics. This way, under the same fire protection parameters, we could reduce the weight of the layer structure by 15kg/m2 that meant 136 tons less for the complete roof surface of the pool area preventing the steel structure from overbending.
A special façade: Following the principle of layered clothing, the thermal envelope and the external decorative coverage were designed to be separate layers. The former fulfils every physical requirements, the latter shapes the mass of the building and provides a pleasing look. This was a consensual and fundamental decision that made the architectural concept viable, though more costly.
The inner layer is made of 200 mm thick sandwich panels filled with mineral wool.
The significant motion caused by the large steel grid structure required that articulations be installed into the wall columns in two heights while the shifting motion parallel to the façade plane called for motion gaps to insert in every 24 meters. All these details were unique solutions refined in collaboration with the designers. There is a typical horizontal cross section of the structure on Figure 1
The external aluminum casing is supported by a steel structure attached to the wall columns of the construction by cantilevers and thermal structural connectors. Its bands consist of independent structural items made of curved hollow section beams and linking parts.
If we should retain one single moment from the Danube Arena project, that must be the selection ordeal of the external façade cover. The concept of the 10 horizontal bands waving along the façade was born in the intellectual workshop of Napur in October 2015 but to grow up acceptable implementation plans required four more months from then. After scrutinizing a plethora of sample plates, colour catalogues and vendor brochures in diverse lighting conditions with colleagues, four differently ribbed aluminum plate types were chosen with natural and lacquered finishes. Simple, refined, aesthetic and durable sheets were selected that were produced in a renowned façade cover specialist factory in Switzerland. It confers a particular beauty on the façade that the core shadows of its ribbed surfaces change the shades of the bands depending on the position of the sun, like a monochrome chameleon would do.
Though the bands are horizontal, the instal-
lation proceeded from bottom-up with the help of pre-mounting posts we installed onto the lower decks where the aluminum sheets were to be attached to the steel frame. The attaching points and exact positions were measured and marked in advance then the underlying frame with its coverings was elevated to its final position by a tower crane and installed by industrial alpinists. Subsequently, we attached the missing parts one by one to their joints. The cover needed 8 weeks to complete only because it was very windy.
Although the building had its opening ceremony, the construction is not yet finished. After the World Championships the temporary stands will be dismantled opening a large space in the interior. Then the construction will continue to obtain the final structure of the building. It was a great honour for us to take part in this construction, and we would like to say thank you for those who trusted and entrusted us. We believe that the building’s new jacket will impress its guests in many great events in the future. (András Vámosi)
Metál Hungária Holding Zrt.
Cím: 1096 Budapest, Soroksári út 1. (Dunaház)
Tel.: (+36-94) 512 244
E-mail: office@mhh.hu
Web: www.mhh.hu





Fotó: Bujnovszky Tamás
Photo by Tamás Bujnovszky
Jelentős mérnöki kihívás
A Duna Aréna tartószerkezetének tervezésével és a megvalósítás lekövetésének mérnöki feladataival kapcsolatos kérdéseinkre az épület felelős statikus tervezője, az EXON 2000 Kft. ügyvezetője Szántó László válaszolt.


Fotó: Molnár Péter / Photo by: Péter Molnár
Fotó: Molnár Péter

Octogon: Cégük milyen tervezési-mérnöki feladatokat látott el a Duna Aréna tervezése és megvalósítása Során? Mi volt az önök szerepe?
A jelentős előkészítő munka során mi az „aranyhullám” verzió tartószerkezeti megvalósíthatóságának vizsgálatánál és a tartószerkezeti rendszer kidolgozásánál léptünk be a projektbe. Az olimpiai rendezés lehetőségének biztosítása érdekében született meg a jelenlegi épületkialakítás, amely gyakorlatilag egy új épület megtervezését jelentette amellett, hogy időközben magyarország átvállalta a 2017-es vébé rendezését, amellyel az épület átadása 4 évvel került előrébb. A projekt megvalósíthatósága érdekében a vállalkozásba adásához egy koncepciótervi anyag készült, amelynek tartószerkezeti munkarészét mi alkottuk meg, az épület folyamatos kivitelezését lehetővé tevő továbbtervezésre pedig már a market építő Zrt.-től kaptunk megbízást. A megvalósítási határidő közelsége és a párhuzamos tervezési-kivitelezési tevékenység kiemelkedően nagy feladatot és felelősséget rótt a tartószerkezeti tervezőkre, hiszen számos esetben a döntést megelőzően került sor a mélyalapozási szerkezetek és az alaplemez tervezésére, sőt kivitelezésére. ez a feszített tempó részünkről a projekt lefutásának folyamatos követését, a változások többszöri szerkezeti felülvizsgálatát
és áttervezését tette szükségessé. Cégünk ezek mellett az épület tartószerkezeti kiviteli tervezési és generáltervezési feladatait is ellátta. A kiviteli/technológiai tervezés során az árvíz- és csatornavédelem (mélyépterv komplex Zrt.), a mélyalapozási szerkezetek (kokopelli k ft.), az acélszerkezetek (vázterv mérnökiroda k ft.), míg a gyártmánytervezés során az acélszerkezetek (késZ építő Zrt.), a vasbeton szerkezetek (FerrOBetOn Zrt.) tervezésében vettek részt társtervezői partnerek. A projekt statikai tervezésében résztvevők munkájának összehangolása, felülvizsgálata, az egymáshoz kapcsolódó szerkezetek együttes vizsgálata folyamatos munkát adott a projekt megvalósítása során. A feladat összetettsége még irodán belül is szükségessé tette, hogy külön tervezői legyenek az egyes épületrészeknek és szerkezeti egységeknek. A munkák összefogásában ki kell emelnem Patyi Gábor vezető tervező kollégám munkáját. Jól mutatja a feladat méretét, hogy csak az irodánkon belül kiadott tervek száma a módosításokat nem számolva is meghaladja az 500-at, és volt olyan tervünk, ami 17 módosításon esett át.
Önöknek több tapasztalata is volt már uszodaépületek tervezésében. A Duna Aréna miben volt ezekhez képest különleges?
A Duna Aréna mérete, összetettsége, a helyszíni viszonyok és az épülettel szembeni magas minőségi elvárások, a párhuzamos tervezés-kivitelezési folyamatra rendelkezésre álló idő lényeges különbségeket hoztak a megelőző projektekhez képest. ez az idő sokkal kevesebb volt, mint amit a nemzetközi példákban a kivitelezést megelőző tervezésre szánnak. A Duna Aréna a pekingi, londoni és riói olimpiai uszodák léptékében és összetettségében megvalósult projekt, amely tartószerkezeti kialakításában – elsősorban a lefedés fesztávolságában és az ideiglenes bővítést lehetővé tevő kialakításában – az egymáshoz kapcsolódó szerkezetek dilatációjában, valamint a dilatáció nélkül megvalósítandó szerkezetek jelentős alaprajzi kierjedésében jelentett kihívást. Szükség volt valamilyen különleges szerkezeti megoldás alkalmazására az épületben? i gen, több alkalommal is. többek között ilyen volt a főépület lépcsőházainak csúszózsalus technológiával történő építése, valamint a lépcsőházi zárófödémek kialakítása, amelyeknek az acélszerkezetű födém letámaszkodását biztosító hídsarukat, valamint a szerkezetemeléskor alkalmazott emelőbakokat is fogadnia kellett. i lyen volt még
a Béke-kút épületének folyamatos üzemelés melletti átépítése, de az északi ideiglenes lelátó alatt futó két nagy átmérőjű csatorna védelmének kiépítése is, amely a lelátó alapozásával egyesített szerkezetként valósult meg. A Főépület bővíthetősége miatt bontható falvázrendszert alakítottunk ki, ami az acélszerkezetű fedés négy ponton történő letámasztását és jelentős fesztávolságok (96 × 72 m) alkalmazását vonta maga után. A Főépület
acélszerkezetű fedése szerkezetemeléses technológiával került kivitelezésre.
Milyen helyet foglal el az eddigi munkáik között a Duna Aréna? i rodánk az elmúlt időszakban folyamatosan emelkedő volumenű és bonyolultságú projekteken vett részt, amelyek rendre egymást meghaladó szakmai kihívást jelentettek, így egyaránt
biztosították a személyes és vállalati szakmai fejlődésünket is. e z az épület jelentette számunkra az eddigi legnagyobb kihívást, amihez a l ágymányosi s portuszoda, a Győri e YOF sportlétesítményei, a Groupama Aréna és a s óstói s tadion tervezési feladatainak elkészítése adta meg a szakmai alapot. k íváncsian várom, mit hoz a jövő, lesz-e ezt meghaladó mérnöki kihívás a szakmai életünkben. (m óré l evente)
A si G ni F i CA nt en G ineerin G
C h A llen G e
Our questions concerning the engineering tasks of the design and construction monitoring works of the support structures of Danube Arena were answered by the structural engineer in charge of the design of the building complex, the Managing Director of Exon 2000 Kft., László Szántó.
Octogon: What design and engineering functions did your company carry out in the design and construction process of Danube Arena, and what was your own role?
We joined the significant preparation works of the project at the time of the structural engineering feasibility study and development works of the “gold wave” version. The present design of the building, practically equivalent to designing a new building, was meant to keep open the option of staging the Olympics; moreover, in the meantime, hungary took over the organisation of the World Cup of 2017, and this meant bringing forward the completion deadline by 4 years. to make the project feasible, conceptual design materials were drawn up to find contractors for the works, of which we did the structural engineering part, and then we were commissioned by m arket é pítő Zrt. to prepare further design documentations to ensure the continuity of the construction works. The proximity of the completion deadline and the consequent parallel design and build activities imposed extraordinary duties and responsibilities on the structural designers, since the design and also execution of the deep foundation structures and the base plate had were to take place already before several other relevant decisions were made. This busy schedule required the continuous monitoring of the implementation of the project and several structural revisions and redesigns of the changes by our team. Additionally, our company was responsible for the construction and general design of the support structure of the building. Construction/technological design was prepared with the contribution of co-partners in the special fields of flood and canal protection
(mélyépterv komplex Zrt.), deep foundation structures (kokopelli k ft.) and steel structures ( vázterv mérnökiroda k ft.), and in product design in the fields of steel structures (kés Z é pítő Zrt.) and reinforced concrete structures (F errOBetOn Zrt.). We coordinated and supervised the activity of statics designers and kept inspecting the interconnected structures throughout the project. The activity was so complex that special designers had to be assigned to the various building parts and structural units. l et me mention in particular the synthesising activity of my designer colleague Gábor Patyi. The dimensions of our functions are well-illustrated by the fact that the number of designs issued by the office, modifications not included, exceeded 500, and some were subject to as many as 17 modifications.
You are quite experienced in designing swimming pools. In what way was Danube Arena special in comparison to other works?
The size, complexity and site conditions of Danube Arena, the high-tech requirements and the timeframe of the simultaneous design-and-build work made it significantly different from the previous projects. The timeframe was much more limited than that of the comparable foreign cases. Danube Arena was a project on the same scale and level of complexity as the Olympic pools of Beijing, l ondon and r io, posing major challenges in terms of structural design – mainly in terms of the span of the cover and the design providing for temporary expansion –, the dilatation of the interconnected structures and the significant floor-space dimensions of the structures to be executed without dilatation.
Was it necessary to apply any special structural solutions in the building?
Yes, on several occasions. Among other things, the staircases of the main building were constructed with slip-form technology, but the design of the closing covers of the staircases was also special, since they were to hold the bridge clams designed to support the steel-structured slabs and the jack stands for hoisting the structure. Other special challenges included the reconstruction of the Béke Well building while keeping it in operation, and the construction of the protective covers of the two large-diameter canals under the northern temporary grandstand, realised as a unified structure with the stand foundation works. to make the main building extendable, a wall frame system suitable for disassembly was created, which implied supporting the steel-structured cover at four points at significant spans (96 × 72 m). The steel-structured cover of the main building was realised with the structure-hoisting technology.
What place does Danube Aquatics Arena occupy among your works so far?
Our office has taken part lately in projects of increasing volumes and complexity implying ever bigger professional challenges and thus ensuring our continuous personal and corporate professional development. This building was the biggest challenge so far, and our professional basis for meeting it was the previous design of l ágymányos sports Pool, the e YOF sports facilities in Győr, the Groupama Arena and the s óstó stadium. i am eager to see what the future will bring, whether we will meet with another engineering challenge exceeding this one in our professional life. (l evente móré)
Photo by Péter Molnár

A DUNA ARÉNA KÜLTÉRI BURKOLATÁNAK
KIEMELT BESZÁLLÍTÓJA
A SEMMELROCK
A projekt egyediségéhez jól illeszkednek a Semmelrock Stein+Design Kft. által speciálisan erre az alkalomra fejlesztett termékek, ahol az innováció, a megbízható minőség és a technológia összehangolásával egy különösen egyedülálló beruházás valósult meg.
SEMMELROCK IS KEY SUPPLIER OF EXTERIOR COVERING TO DUNA ARÉNA
Case-specific products of Semmelrock Stein+Design Kft. are fully in line with specificity of the project, in which harmonisation of the innovation, high and consistent level of quality and technology an exceptional developments have been made.




Kiegyensúlyozott fejlődés, fenntartható lendület
Nemes Lajos, a CLH Hűtés- és Klímatechnikai Kft. ügyvezetője: „2016. februárjában kaptam felkérést a CLH Kft. ügyvezetői feladatainak ellátására. Meghatározó és határozott átalakítást indítottam el ebben az évben, melynek során bekövetkezett jelentős szervezeti változás mellett is kollégáink fő célkitűzése kezdetektől az volt, hogy cégünk kereskedelmi területen kivívott piaci pozíciójának megtartásával, a kivitelezésben és főleg a generál gépész kivitelezésben végzett feladatok kerüljenek mindinkább és folyamatosan a CLH Kft. előterébe.
A professzionális munkavégzéshez hozzátartozik, hogy a nemzetközi tendenciák, újítások figyelemmel kísérése és alkalmazása mellett a CLH Kft. saját fejlesztésű és gyártású gépeivel tudta biztosítani a projekt során beépítésre került valamennyi berendezést.
Alapelvárás nálunk, hogy a munkát mindig határidőben és pontosan kell elvégezni, hiszen ez alapozza meg a belénk vetett hitet és a fenntartható folyamatos stabilitást.
Büszkék vagyunk rá, hogy Magyarország legkiválóbb épületgépész szakemberei közül több, mint hatszázan dolgoztunk együtt a projekten, a Duna Aréna megépítésén eltöltött másfél év megtanított minket együtt dolgozni és bízni egymásban, s ezt az összetartást, közös gondolkodást kívánjuk a jövőben is erősíteni és kamatoztatni. Filozófiánk, hogy a megbízhatóság önmagában nem elegendő, de bizalom nélkül minden semmivé válik.”
Aparicio Arturo Péter, a CLH Hűtés- és Klímatechnikai Kft. termelési igazgatója: „Számomra a projekt során a legnagyobb kihívást a feszesen rövid határidő mellett a szakágak egymásrautaltsága jelentette, hiszen biztos voltam benne, hogy kizárólag úgy lehetünk sikeresek, ha az építkezésen dolgozó szakiparok egymásban megbízva, partnerként viselkednek és a feladatokat a megkövetelt igény szerint és szakmai színvonalon végzik el.
A komplett épületgépészeti projekt megvalósítása igényelte az egyedi fejlesztésű és


kialakítású rendszereket. A Duna Aréna nemcsak vizuálisan nyújt kiemelkedő élményt, hanem bizonyítja a magyar épületgépész szakma profizmusát és kreativitását is, hiszen olyan új, előremutató megoldásokra, technológiákra volt itt szükség, mint például a felületi csillámmentesítés, ami elengedhetetlenül fontos ahhoz, hogy a világbajnokságon résztvevő versenyzők kimagasló teljesítményét semmi se zavarja a küzdelem során.
Meg kell említenem, hogy Majerik Gábor kiemelt projektvezető kollegám, a kivitelezés sikeres megvalósulásában jelentős részt vállalva naponta csaknem 250 fő munkáját koordinálta a közösen felállított projektirodán keresztül.
Egyedülálló, hogy az uszodatér mintegy 35 méteres magasságában található légcsatorna megépítésén több, mint 25 fő ipari alpinista dolgozott, amire tudomásunk szerint eddig még ezen a szakterületen nem volt példa.
A folyamatos innovációnak köszönhetően tudtuk az új kihívásokat és elvárásokat


megvalósítani úgy, hogy csongrádi gyárunk alkalmas volt a saját fejlesztésű, energiatakarékos, korszerű hőszivattyús uszodai légkezelő berendezések kifejlesztésére, előállítására, melyekkel több mint 100 000 m 3 / óra légmennyiség kezelésére és szállítására nyílik lehetőség.
Megtiszteltetés számunkra, hogy elhivatott és professzionális csapatunk részt vehetett az egyik legjelentősebb hazai beruházás, a nemzet uszodájának megépítésében, mely méltó helyszíne lesz a 2017-es vizes világbajnokságnak.”
Balanced development, sustaina B le momentum
Lajos Nemes, Managing Director of HVAC company CLH Hűtés- és Klímatechnikai Kft.:
“I was invited in February 2016 to act as managing director of CLH. I launched a decisive and firm restructuring project that year; in addition to the ensuing significant organisational change, the main goal of our colleagues was, from the start, to increasingly and continually bring into the foreground of CLH the construction and in particular general mechanical design activities, while preserving the com-
mercial market positions of the company.
In addition to monitoring and applying the international trends and innovations, our professional work put to use the fact that CLH Kft. could produce the devices to be installed during the project by its machines of own development and manufacture.
We consider timely and accurate work a core requirement; this is what lays the foundations of trusting the company and also its sustainable and continuous stability.
We are proud that more than 600 of Hungary’s most excellent building engineering professionals worked together on the project, and the 18 months spent on the construction of the aquatics complex have taught us to work together and trust each other, and we are determined to strengthen and capitalize on this sense of belonging together and also joint thinking in the future. Our philosophy is that reliability is not enough in itself: without trust, everything comes to nothing.”
Arturo Péter Aparicio, production manager of HVAC company CLH Hűtés- és Klímatechnikai Kft.: “For me, the biggest challenge during the project was, apart from the tightly short deadline, the interdependence of the representatives of the special branches, because I was absolutely certain that, to be successful,


the specialised industries must trust each other, consider each other partners and do the tasks as required, at that professional level.
The implementation of the complete building engineering project required systems of unique development and design. The Aquatics Complex is an outstanding visual experience, but it also demonstrates the professionalism and creativity of the Hungarian building engineering trade, since such new and progressive solutions and technologies were needed as the removal of any micaceous effects from the surfaces to prevent that anything should disturb the outstanding performance of the competitors at the world championships during the event.
I have to mention that my colleague Gábor Majerik acting as priority project manager assumed a major part in the effective execution of the building works; he coordinated the work of almost 250 persons daily through the jointly established project management office.
It is unique, to my best knowledge unprecedented, in this field that more than 25 industrial alpinists worked on the construction of the air duct located at a height of 35 m in the swimming pool area.
It was continuous innovation that has let us meet the new challenges and requirements, thanks to our Csongrád plant being suitable for the development and manufacture of upto-date energy-saving HVAC units with heat pumps of own development for the swimming pool area to circulate and supply an air volume of more than 100,000 m3 / hour.
It is an honour for us that our dedicated and professional team could take part in one of the most significant Hungarian investments, the construction of the aquatics complex of the nation, which will be a worthy venue of the aquatics championships in 2017.”
CLH Hűtés- és Klímatechnikai Kft. 1149 Budapest, Pillangó utca 28. Tel.: (+36-1) 467 2790
Fax: (+36-1) 467 2791
E-mail: info@clh.hu Web: www.clh.hu

Hatékonyság és optimalizálás
Egy uszodaépület esetében rendkívül lényeges, hogy olyan minőségű burkolóelemeket használjunk, amelyek az időtállóság, az ellenállóság és esztétikum hármas kihívásának megfelelnek. A Duna Aréna kapcsán kérdeztük Zalai Bencét, az ARC Design cégvezetőjét a felhasznált anyagokról és a kivitelezés folyamán megjelenő kihívásokról.
Fotó: Molnár Péter

Octogon: Bemutatná röviden, hogy az ARC Design milyen profilú cég? Cégünk esztétikai fémburkolatok tervezésével, kivitelezésével és gyártásával foglalkozik. mivel egy komplex szolgáltatásról beszélünk, a profilunkat kiegészítettük árnyékolástechnikával is. a fémlemezek mellett szálcement, tREspa® (kompakt lemez), illetve egyéb esztétikai faburkolatokkal is dolgozunk. a cég 2015 októberében jött létre, de vannak kollégáink, akik már 20 éve dolgoznak ezen a területen; jelenleg 22 munkatárssal működünk. a koncepcióalkotástól kezdődően a tervezésen és a gyártáson át a kivitelezésig a teljes folyamatot tudjuk biztosítani a megrendelő számára. szerencsés, ha a kezdetektől be tudunk kapcsolódni egy projektfolyamatba, hiszen az optimalizáció és gazdaságosság szempontjából ez a legjobb. kecskeméten van egy könnyűlemez-megmunkáló üzemünk, ami a projektjeinket támogatja, itt az összes gyártási folyamatot el tudjuk végezni.
Hogyan csatlakoztak be a Duna Aréna tervezési és kivitelezési munkálataiba?
a cég szemléletmódjában lényeges elem, hogy a mai

magyar építőipari piacot meghatározó generáltervező- és kivitelező vállalatokkal jó kapcsolatot tudjunk ápolni; a market építő z rt.-vel már több közös sikeres munkánk volt. a tender során a minőség, az esztétikum és az ár voltak az elsődleges szempontok, ezeknek a kritériumoknak kellett megfelelni. a megrendelésben nagyságrendileg 5800 m 2-nyi felület burkolására kaptunk megbízást, ez kültéri és beltéri felületeket is jelentett.
Milyen típusú burkolatokat használtak fel a projektben?
Vállalásunk részét képezte 1200 m 2 kültéri (dunaivalamint a főbejárati oldalon található zárt álmennyezetek) és 4600 m 2 beltéri felület burkolatának szerelése. a z álmennyezetek at E na könnyűszerkezetes alumínium burkolati rendszerek, amelyeket a zacsystems szállított. többféle típust alkalmaztunk beltérre: at E na Cell 40, amely cellás struktúrájú, alulról nézve szinte teljesen transzparens, egyéb szögből viszont határozott álmennyezeti síkot mutat; at E na V-100-ast, amely sávos, nyitott struktúrájú; továbbá at E na Baffles B30H100-ast,
amely szintén sávos, nyitott struktúrájú, akusztikai álmennyezet. kültérre pedig a viharálló, zárt rendszerű at E na 200l álmennyezeti aluburkolatot használtuk. színhasználatban – illeszkedve a külső megjelenéshez – szürke felületben gondolkodtunk, a beltérben pedig antracit színt használtunk. Feladatunk részét képezte továbbá a versenyuszodateret nagymértékben meghatározó 4 db vasbeton pillér (mag) homlokzatainak burkolati szerelése, tRE spa® burkolati elemekből.
Felmerültek esetleges nehézségek a kivitelezés során?
nagy kihívást jelentett, hogy a gépészeti, elektromos és tűzvédelmi berendezések installációját össze tudjuk hangolni a mi munkánkkal. Emellett elég sok eszköz áthatol az álmennyezeten – például a füstérzékelők, az irányjelzők, a lámpák és a különféle elszívók – ezek szerelését is össze kellett hangolnunk az adott szakipar kivitelezőivel. a sok felszín, sok szakipar és rövid határidő okozott néhány nehéz napot, de ezzel együtt sikeresen teljesítettük közösen ezt a feladatot. (kovács péter)
E FF i C i E n C y an D optimisation
It is of key importance to use quality claddings meeting the triple requirement of durability, resistance and aesthetic appearance in an aquatics facility. We asked Bence Zalai, managing director of ARC Design, about the materials they used and the implementation challenges posed by Danube Aquatics Arena.
Photo by Péter Molnár


Octogon: Could you introduce briefly the activity profile of ARC Design?
The firm is active in the design, execution and manufacture of aesthetic metal claddings. since we speak of a complex service package, we have added shading as well. i n addition to metal plates, we work also with fibre cement, trespa (compact plates), and other aesthetic wood panelling products.
The company was created in october 2015, but some colleagues have been working in this field for 20 years; today, we have a staff of 22. We can deliver end-to-end service to the client, from concept design through design and manufacturing to execution. it is lucky if we have the opportunity to join a project process from the start: this is the best solution from the point of view of optimisation and economy. We have a light plate manufacturing plant in kecskemét that supports our projects; we can do all the manufacturing processes there.
How did you join the design and build activities of Danube Arena?
The company considers it crucial to have good
relations with the general design-and-build companies defining the Hungarian construction market; we worked on several successful assignments with market építő z rt. i n the tender, the primary criteria were quality, aesthetics and price; these were the criteria we had to meet. The order was about cladding a total indoor and outdoor surface of around 5,800 m 2
What type of claddings did you use in the project?
a s part of the assignment, we had to install 1,200 m 2 outdoor cladding (closed false ceilings on the side of the Danube and on that of the main entrance) and indoor cladding on a surface of 4,600 m 2
The false ceilings are at E na light structural aluminium cladding systems supplied by z ac systems. s everal types were used indoors: cell-structured at E na Cell 40 that is almost completely transparent from below, but features a definite false ceiling plane from any other angle; at E na V-100 having a banded, open structure and the acoustic ceiling at E na Baffles B30H100, also with a banded and open structure. o utdoors, we used
a storm-resistant, closed-system at E na 200l false ceiling aluminium cover. a s for the colours, to match the external appearance, we installed t RE spa® cladding elements on the facade covering of the 4 reinforced concrete pillars (cores) defining the competition pool area.
Were there any difficulties during execution? it was a major challenge to harmonise our work with the installation of the engineering, electric and fire-fighting devices and fixtures. moreover, a relatively high number of devices cross the false ceiling – for example, the smoke detectors, direction indicators, lamps and various extractors; their mounting had to be coordinated with the contractors of the other special fields. The many surfaces, many specialist teams and the short deadline caused a couple of difficult days, but together we have nevertheless managed to successfully accomplish the task. (péter kovács)

ARC Design Kft. 1095 Budapest Mester u. 87. Tel.: (+36-1) 476 6500
Fax: (+36-76) 801 515
E-mail: zalaib@arc-design.hu Web: www.arc-design.hu
www.atena-it.com
Forgalmazó: ZacSystems Architectural Cladding Ceilings-Facade-Shade Systems
Edzés és w E ll-b E ing kultúra a d una a rénában

A Finn Wellness Kft. több mint 20 éve van jelen Magyarországon a fitnesshez és wellnesshez kapcsolódó professzionális termékeivel. Mindez azonban nem csak eszközök, gépek, továbbá szolgáltatások kínálatát jelenti, hanem például a „well-being”, azaz a testi-lelki-szellemi „jól-lét”, illetve az egészséges életmód kialakítását segítő, támogató „lifestyle management” kultúra fogalmi és gyakorlati elterjesztését is.
Több forgalmazott márka – úgyis, mint a Finnrelax® és a HONKA – mellett a cég 13 éve a Technogym hivatalos magyarországi forgalmazója. Számos referenciával erősítették meg hírnevüket – köztük a naphegyi Oxygen Wellness központba, a Ritz-Carltonba, a Kempinski Hotelbe, a Gresham palotába installált fitnesseszközökkel és wellnessrészleg-megoldásokkal –, de a magyar magánszektori értékesítés is olyan pozitív, hogy az anyavállalat 2006-ban a világ legjobb Technogym B2C forgalmazójának választotta meg a Finn Wellness Kft.-t. A fentieken túl van egy speciális szegmens is, mellyel komolyan foglalkozik a Finn Wellness Kft. Ez az úgynevezett Corporate Wellness Programme, ami a vállalati fitneszkultúra lehetőségét biztosítja az erre nyitott, a dolgozóik egészségével komolyan foglalkozó cégek számára. A program keretében a megrendelő lehetőségeinek és igényeinek megfelelően 20, 50 vagy 100 m2 alapterületen,
a Technogym kardio, erősítő és funkcionális fitnessgépeivel és eszközeivel vállalati wellness megoldásokat alakítanak ki. A Finn Wellness Kft.-vel együttműködve itthon a General Electrics, a Telenor és a Nokia is kapcsolódott a programhoz, amelynek hatásai, miként Risto Junttila, a Finn Wellness Kft. tulajdonosa utal rá, jóval messzebbre mutatnak. „Az utóbbi évtizedben a magyar piaci szereplők is egyre inkább befogadóvá váltak az egészséges életmódhoz kapcsolódó megatrendekre – mondja. Ezzel szemben azonban a magyar lakosságnak csupán 5%-a végez valamilyen testmozgást. A jövő nagy kihívása tehát az, hogy a további 95%-ot is motiváljuk és számukra is elérhetővé tegyük a fizikai és mentális egészséget. Ráadásul a technológiai fejlődésnek köszönhetően senkinek sem kell ma már drága megoldásokra beruháznia: az olyan, okostelefonra tölthető alkalmazásokkal – mint például a Technogym MyWellness ingyenes applikációja – személyre szabott beltéri és kültéri edzésprogramok alakíthatók ki.” 1983-as alapítását követően a Technogym pillanatok alatt a világ vezető minőségi fitness termék-, továbbá orvosi és rehabilitációs célokra szánt eszközök gyártójává vált. A folyamatosan fejlesztő cég az otthoni felhasználóktól a rendszeresen edző amatőr sportolókon és az élsportolókon át a rehabilitációra szorulókig nagyon széles kört céloz meg a termékeivel.
Fejlesztéseiket már több mint 30 éve biomechanikai, ergonómiai, orvosi és anyagvizsgálati kutatások előzik meg, amelyek mind azt szolgálják, hogy minél inkább az egyéni sportolói igényekre, fizikai állapotra szabható termékek jöjjenek le a gyártósoraikról.
A Technogym, mint a Duna Aréna edzőtermeinek beszállítója, Magyarország legkorszerűbb uszodakomplexumába a legmodernebb fitnessgépeit szállította. A gépek UNITY konzolja csatlakozik az ún. MyWellness felhőalapú platformhoz, ami lehetővé teszi a felhasználónak, hogy az egyéni fiók létrehozását követően minden adatát (edzőtermi edzés, kültéri fizikai aktivitás, más, edzőtermen kívüli sport, egyes harmadik oldali fitnessalkalmazások, kültéri sportoláshoz nyomkövető eszközök, táplálkozás) egy helyen tárolja. Ezek az adatok a rögzítést követően bárhol, bármikor újra elérhetővé válnak és megoszthatóak másokkal, így például egy edzővel is. Miként az Aréna épületét az építészei, úgy az edzőtermeit a kardioés erőgép sorozatokkal a beszállító a vébé alatti és vébé utáni üzemmódra egyaránt „felkészíti”: a vébét követően a sportolni vágyó közönség igényeire is alkalmas gépparkot állít össze a Finn Wellness Kft. Szintén a vébé utáni időszaktól kerülnek majd végleges helyükre a wellness-részleg tartós, biztonságos és esztétikus, nagy igénybevételre tervezett szaunái és gőzkabinjai is.
Finn Wellness Kft. has been present in Hungary for more than 20 years with its professional fitness- and wellness-related products. Its activity, however, is not limited to the supply of devices, machines and services, but includes also the dissemination in Hungary of the concept and practice of the culture of “well-being”, i.e. well-being of body and soul, and that of “lifestyle management”, i.e. the development of a healthy lifestyle.
In addition to several other distributed brands – such as Finnrelax® and HONKA –, the company has been the Hungarian authorised distributor of Technogym for 13 years. They consolidated their reputations by several reference works – including the fitness devices and wellness section solutions of Naphegy Oxygen Wellness centre, Ritz-Carlton, Kempinski Hotel, and Gresham Palace –, but private sector sales were also so positive that in 2006 the mother company elected Finn Wellness Kft. the best Technogym B2C distributor of the world.
In addition to the above, there is also a special segment addressed quite seriously by Finn Wellness Kft. This is the so-called Corporate Wellness Programme offering the option of corporate fitness culture to companies considering the health of their staff a priority issue. In the context of the programme corporate wellness solutions using the Technogym cardio, exercising and functional apparatuses are designed for ground-floor areas of 20, 50 or 100 m2, depending on the possibilities and demands of the client. In cooperation with Finn Wellness Kft., General Electric,
Telenor and Nokia Hungary have also joined the programme having much deeper impacts, as pointed out by Risto Junttila, owner of Finn Wellness Kft. “In the last decade, Hungarian market actors have become increasingly receptive to the mega-trends related the healthy lifestyle”. On the other hand, only 5% of the Hungarian population does any physical exercise. Therefore, the big challenge of the future is to motivate the other 95% and make physical and mental health accessible also to them. Moreover, thanks to the development of technology, no one has to invest in expensive solutions any more: such mobile phone applications as Technogym’s public MyWellness let you design personalised indoor and outdoor training programmes.”
After its foundation in 1983, Technogym became the world-leader manufacturer of quality fitness and medical and rehabilitation apparatuses in seconds. The company keeps developing its products and addresses a very large pubic, from home users through amateur and professional sportspersons in regular training to persons in need of rehabilitation via its products. Product developments has been preceded, for more than 30 years, by biomechanical, medical and material researches to make the products coming from their manufacturing lines match individual needs and physical conditions as fully as possible.
Technogym as supplier of the gyms in Danube Arena, the most up-to-date aquatics complex in Hungary, brought its most modern fitness apparatuses there. Their UNITY consoles connect to the so-called
MyWellness cloud-based platform that lets the user store all of his/her data (gym training, outdoor physical activity, other sports outside the gym, certain third-party fitness applications, monitoring devices for outdoor sports, nutrition) at one place after the creation of a personal account. After recording, the data concerned are retrievable anywhere and anytime, and can be shared with others, e.g. a coach. Similarly to the architects who prepared the Arena building for a World Cup and a Post-World-Cup, or Normal mode of operation, Finn Wellness Kft. also designed the apparatus pool of the cardio and exercising device series for both modes: after the world cup, the gym apparatuses will be made suitable for meeting the needs of the public keen on doing sports. The aesthetic, heavy duty saunas and steam cabins of the wellness section, designed for long-term, secure use will also be installed at their ultimate place after the world championships.
FINN WELLNESS Kft.
Bemutatóterem: 1037 Budapest, Szépvölgyi út 63/a
Tel.: (+36-1) 250 4177
E-mail: info@finnwellness.hu
Web: www.finnwellness.hu

BIZTOS ALAPOK
A beton mindennapi életünk része, az utak, amelyen járunk, az épületek, amelyekben dolgozunk, az óvodák és otthonunk biztonságát és stabilitását is a jó minőségű beton garantálja.

A CRH Csoport a világ egyik vezető építőanyagipari vállalata, amely 31 országban mintegy 87 ezer embert foglalkoztat. Régiónkban elsősorban prémium minőségű cement és beton megoldásainkról vagyunk ismertek.
Széles termékpalettánk mellett Magyarországon 18 betonüzemmel, három betontechnológiai laborral, két saját tulajdonú cementterminállal, valamint kiterjedt vasúti és közúti logisztikai szolgáltatással járulunk hozzá partnereink sikeréhez.
Büszkék vagyunk rá, hogy első osztályú építőanyagainkkal hozzájárulhattunk egy olyan kivételes sportlétesítmény építéséhez, mint a Duna Aréna. Termékeinket mind az épület alapjához, mind pedig a belső szerkezeti elemek kialakításához felhasználták. Cementünket használta a konzorcium több tagja is, illetve Magyarország egyik legnagyobb mélyalapozó cégének alvállalkozójaként a cölöpözési munkákhoz és a résfalak építéséhez szállítottunk frissbetont.
Három hónapon keresztül, főként nyári hőségben, több mint 7000 m3 C30/37-es
nyomószilárdságú, XA1 kitéti osztályú betont szállítottunk a CRH rákospalotai betonüzeméből. A megrendelő igényeihez maximálisan alkalmazkodva előfordult, hogy folyamatosan, több műszakban gyártottuk és szállítottuk a betont, minőségi reklamáció nélkül. Mint minden kiemelt projekt esetében, a CRH akkreditált betontechnológiai laboratóriumainak munkatársai itt is végigkísérték az általunk gyártott, szállított és bedolgozott betont. A betontechnológusaink folyamatosan felügyelték a beton minőségét az üzemben és a helyszínen egyaránt: ellenőrizték a beton jelében előírt követelményeknek való megfelelőséget, folyamatosan ellenőrizték a betongyártáshoz felhasznált alapanyagok minőségét, valamint próbakockákat készítettek. Szaktudásunkkal és munkánkkal hozzájárultunk ahhoz, hogy e különlegesen szép helyszínen épült létesítmény biztos alapjaira a magyar építőipar szakemberei rekord gyorsasággal építhessék fel ezt a világszínvonalú komplexumot. Bízunk benne, hogy a következő hónapokban sokszor lesz még okunk büsz-
kének lenni rá, és a következő évtizedekben sok sikeres sporteseménynek és kivételes teljesítménynek ad majd otthont.

SOLID FOUNDATIONS
Concrete is part of our everyday life. The walkways we use, the buildings we work in, the kindergartens our children go to as well as our homes we live in, all owe their solidity and stability to high quality concrete.
The CRH Group that employs 87,000 people in 31 countries is one of the leading building material suppliers of the world. In this region, we are primarily known for our premium category cement and concrete solutions.
In addition to our wide product range traded in Hungary, we contribute to our partners’ success by 18 concrete plants, three concrete technology labs, two wholly-owned cement terminals and an extended rail and road logistic network.
We are proud that we could take part in the construction of the exceptional sport facility of Danube Arena with our premium quality building materials. Our products were used for the foundation of the building as well as to
create the elements of the interior structure. In addition to that, our cement was used by several other members of the consortium and fresh concrete was also supplied for the piling and diaphragm wall constructions by our company – since our firm is the biggest vendor of one of the largest deep foundation contractors in Hungary.
We delivered more than 7000 m3 concrete (compressive strength class C30/37, exposure class XA1) from the Rákospalota concrete plant of CRH for three months, mainly in summer heat. We adapted to our customer’s needs to the greatest extent thus there were periods of concrete production with shifts without a pause, yet our products never gen-
erated quality complaints during that period. As with any priority project we made, CRH’s accredited concrete technology lab staff continuously kept track of the utilization of the concrete we produced, delivered and placed into the structure. Our concrete technologists incessantly monitored the concrete quality at the plant and on the site during the project: they controlled the compliance with the standards prescribed for the concrete and the quality of the ingredients and made test cubes.
Due to our expertise and work we could contribute to this world-class complex situated in picturesque surroundings by creating a solid foundation for the construction implemented by professional actors of the Hungarian build-

ing industry in record time. We believe that in the months to come we will have numerous occasions to be proud of it and that the building will host many successful sporting events and will see exceptional performances in the following decades.
CRH Magyarország Kft.
1138 Budapest, Madarász Viktor utca 47-49. Tel.: (36-1) 472 5000 www.crhhungary.com
BETONTECHNOLÓGIA A DUNA ARÉNA KAPCSÁN

A Betonpartner Magyarország Kft. sikeresen nyerte el a komplexum kivitelezéséhez szükséges betonbeszállítási megbízást.
Cégünk 10 éve, 2007-ben jött létre, azóta évről évre következetes és kitartó munkával fejlesztjük cégünket. Ennek eredményeképpen vevőink magas szintű kiszolgálása országosan 10 üzemünkből történik. A legfontosabb célunk, hogy ügyfeleinknek a lehető legmagasabb szintű szolgáltatást nyújtsuk minőségi transzportbetonjaink gyártása és kiszolgálása során. Hoszszú távú, tartós üzleti kapcsolatokra törekszünk mind partnereinkkel, beszállítóinkkal. Örömmel tölt el bennünket, hogy részesei lehettünk a nem mindennapi kivitelezési feladat elvégzésének és a kivételes, olykor speciális kivitelezési technológiának - betontechnológiának.
A műszaki tartalomnak minden esetben helytálló keverékekkel segítettük a kivitelezési folyamatok maradéktalan, gyors kiszolgálását, ezáltal biztosítva a Market Építő Zrt. vállalását. A kivitelezés legjelentősebb betontechnológiai feladatai között szerepelt a 4 egyenként 27 méter magasságú torony csúszózsalus kivitelezése, mely 0-24 órában igényelte a folyamatos
betongyártást, figyelemmel kísérve a frissbeton gyorsabb vagy lassabb kötésére vonatkozó kivitelezői igényeket.
A versenymedence alaplemeze 2015. 09.30án és 2015.10.08-án készült, C30/37-XC4-XD3XV2-32-F3 minőségű betonnal. Az alaplemezek 300 – 550 m³ közötti betonmennyiséget igényeltek. A 2,5 méter vastagságú lemezeket 3 rétegben öntötték, melyhez folyamatos technológiai háttérrel javasoltuk és biztosítottuk a rétegek összedolgozhatósága érdekében meghatározott, késleltetett frissbeton keverékeket, figyelembe véve a környezeti hőmérsékletet, a szállítási távolságot, a betonozási sebességet, mely a kötéskésleltető adalékszer mennyiségét határozta meg. Kivitelező a nagyobb alaplemezek öntését 12 óra munkavégzési időre tervezte, így az első rétegben 12 óra, a második rétegben 9 óra késleltetéssel terveztünk, a harmadik rétegben pedig nem alkalmaztunk kötéskésleltetést.
A rétegek összedolgozhatósága zökkenőmentesen megtörtént, ezáltal biztosítva a szerkezet repedésmentes kivitelezését.
A speciális keverék tervezésénél szem előtt tartottuk a fokozott vízzárást, a zsugorodás
csökkentését és a zsugorodási repedések kialakulásának megelőzését.
Eddigiekben a vízzáró betonok kivitelezése (medencék, tározók) a folyamatos víznyomás miatt, a megengedett vízbehatolás mértékének biztosítása érdekében utólagos vízszigetelő anyagok alkalmazását igényelte. A vízzáró betonösszetételt úgy terveztük meg, hogy az utólagos vízszigetelő anyagokat ne legyen szükséges alkalmazni, csökkentve így a kivitelezési időt és biztosítva a „vízhatlan” száraz szerkezet építését.
Így kerülhetett sor arra, hogy a példátlanul rövid határidőn belül kivitelezett szerkezetnek az építési kivitelezési és betontechnológiáját a Nemzetközi Úszószövetség (FINA), példaértékűnek tekinti és azt a további ilyen jellegű kivitelezések során alkalmazni kívánja.
Megköszönve minden résztvevő Kollégának az áldozatos munkáját, kívánunk további jó egészséget az elkövetkező munkák elvégzéséhez. (Hernádi Eleonóra - betontechnológus laborvezető és Scholz Péter - országos kereskedelmi és műszaki igazgató)
SPECIAL CONCRETE TECHNOLOGY USED IN THE CONSTRUCTION OF THE DANUBE ARENA
Betonpartner Magyarország Kft. was awarded a contract to supply the concrete required for the construction of the new swimming complex. Our company was established 10 years ago, in 2007, and since then it has undergone constant improvements due to our consistent and hard work year after year. As a result, our customers are serviced at a very high level from 10 plants located throughout the country. Our main goal is to offer our customers the highest possible level of service in the production and supply of our first-class ready-mixed concretes. We strive to build long-term and durable business relationships with our partners and suppliers, and are delighted to have been a part of this outstanding construction project and the
development of this exceptional, at times special, construction (concrete) technology.
We supported the quick and complete execution of the construction works by supplying concrete mixtures always corresponding to the technical requirements, and thereby helping Market Építő Zrt. in this challenging undertaking. As regards concrete construction, one of the most important tasks was the building of four 27-meter-high towers using the sliding formwork technology, which required 24/7 concrete production, while paying special attention to the contractor’s needs for faster or slower hardening plastic (“fresh”) concrete.
The competition pool’s base plate was manufactured on 30.09.2015 and 08.10.2015, using C30/37-XC4-XD3-XV2-32-F3 quality concrete. Each base plate required 300 to 550 m³ of concrete. The 2.5-meter-thick plates were cast in three layers. Taking into account the ambient temperature, the transport distance and the casting speeds, based on which the nec-

pools, reservoirs) were built by subsequently applying waterproofing materials in order to ensure the admissible levels of water intrusion. Our watertight concrete mix was designed so that the subsequent application of waterproofing materials could be eliminated, thus reducing the construction time and ensuring the creation of a “watertight” dry structure.
This is why this special concrete construction technology, which was implemented within an unprecedentedly short time frame, is considered
exemplary by the International Swimming Federation (FINA), and they want to use it in other similar construction projects.
We would like to say thank you for all the coworkers involved in this project for their devoted work, wishing them good health and good luck with their future endeavours (namely Eleonóra Hernádi, Concrete Technologist and Laboratory Manager, and Péter Scholz, Commercial and Technical Director for Hungary).
essary retarder dosages were determined, we proposed the ideal retardation of hydration (hardening) for plastic concrete mixtures, while providing continued technological background, and supplied the mixtures accordingly, in order to ensure that the layers of concrete could tie together properly. According to the constructor’s plans, 12 hours of working time was necessary to pour the larger base plates. Thus, we planned 12 hours of retardation for the first layer, 9 hours for the second layer, while the hydration of concrete was not slowed down for the third layer.
Layers were tied together smoothly, thereby ensuring implementation of the structure without any cracks.
Upon designing the special mixture to be used, enhanced impermeability (watertightness), reduced shrinkage and prevention of the formation of shrinkage cracks were borne in mind.
So far, because of the constant water pressure, watertight concrete surfaces (such as

Betonpartner Magyarország Kft.
1186 Budapest, Zádor utca 3.
Tel.: (+36) 1 433 4830 I Fax: (+36 1) 433 4831
E-mail: office@betonpartner.hu www.betonpartner.hu
ELŐREGYÁRTOTT VASBETON SZERKEZETEK
A DUNA ARÉNÁNÁL

Most már biztos, hogy Olimpiát nem rendezünk, de essék szó egy sporteseményről, amelynek lebonyolítását már elnyertük. Nem kis sportdiplomáciai siker és kiváló „vizes” versenyzőink elismerése, hogy 2017-ben Magyarország rendezheti a vizes világbajnokságot. Az esemény méltó megrendezéséhez azonban szükséges megfelelő létesítmény, a Dagály Strandfürdőtől északra fekvő területre impozáns épületet álmodtak meg a tervezők.
A FERROBETON ZRT. termékei a versenymedence két hosszoldala mentén, a szinte teljesen szimmetrikus északi és déli lelátón találhatók. Mindkét nézőtér egy alapépületből és a világverseny lebonyolítása után elbontásra kerülő részből áll.
A megmaradó rész függőleges teherhordó szerkezete monolit vasbeton pillérekből és falakból épült, ezekre került az előre gyártott lelátó gerenda és arra maga a lelátó elem. Ez utóbbit fejjel lefelé gyártottuk, így biztosítva a többször megtört, látszó felületek kialakítását és kiváló minőségét. Újdonság volt, hogy a nézőtéri közlekedőket egyben öntöttük a lelátóval, nem külön elemként gyártottuk, ami az emelések számát drasztikusan lecsökkentve teljesíthetővé tette a szűkös határidő betartását. További előnye, hogy ezen viszonylag kis elemek rögzítésével sem kellett foglalkozni, lecsökkent az illesztési hézagok száma, növelve a pontosságot és mérsékelve a fugázási feladatot. Szintén előregyártott vasbetonból készült az alsó és felső karéjt lezáró parapet elem, és a kettőt összekötő lépcső. Az ideiglenes épület tartogatta az igazi kihívásokat, a jellegéből adódóan egyszerre több, néha következményeiben ellentétes szempontot kellett figyelembe venni. Természetes igényként jelentkezett a későbbi, minél egyszerűbb bonthatóság, de ezen túl úgy kellett a szerkezetet megtervezni, hogy az egy másik helyen, más funkcióval újra felépülhessen. Ez az „új” épület azonban még a tervezőasztalon sem létezett. Az előregyártott vasbeton szerkezet pillér-gerenda vázas, vegyesen körüreges födémmel és zsalupanellel, fölötte épül az acélszerkezetű mobil lelátó. A bontás megkönnyítése és ez elemek újbóli felhasználhatósága miatt elvetésre került egy kézenfekvő, monolit vasbeton merevítőfalas, vasalt felbeton tárcsaszerkezet; a panelekre kerülő beton fóliával elválasztva készült, a függőleges és vízszintes merevítés is acélszerkezetű. Ennek következményei: minden irányban konzolok, melyek sokszor irányonként és szintenként is különböztek egymástól, és a csomóponti kialakítások, az acélszerkezet fogadására bebetonozandó szerelvények, acéllemezek. Nem egy pillérbe került több mint 50 darab, ami tucatnyi fajta és összesen az 1 tonnát is elérte.
A szerkezet építése is még folyamatban van, de joggal bízhatunk abban, hogy időre átadásra kerül a létesítmény, és az úszósport és a főváros egy gyönyörű épülettel gazdagodik. Ezek után már csak Hosszú Katinkáékon a sor, hogy tovább gyarapítsák a hazai nemesfém-állományt.
MONOLITHIC REINFORCED
CONCRETE SYSTEM AT DANUBE ARÉNA
It’s now a fact that we won’t host the Olympic Games so instead let’s talk about an event we did win the right to host. It’s a great diplomatic achievement and recognition of our excellent aquatic athletes that Hungary managed to obtain the right to host the World Aquatics Championships. However, in order to organize an appropriate event we needed a fitting facility. The designers imagined an impressive building onto the grounds north from the Dagály Bath.
The products of FERROBETON ZRT. are incorporated into the two symmetrical Northern and Southern grandstands situated along the long sides of the competition pool. Both grandstands consist of two parts – a permanent structure and an additional part that will be dismantled after the world event.
The vertical load-bearing structure of the permanent part was made of monolithic reinforced concrete pillars and walls which the precast concrete beams carrying the grandstand element lie upon. The latter was cast upside down to ensure the multiple breaks on the exposed surface and the excellent quality. It was our innovation to cast the passageways in one piece together with the stand instead of making separate elements. This reduced drastically the production time needed, making the tight time frame possible to keep. As a further benefit, there was no need to fix minor parts onto the structure that reduced the number of joint gaps, increased accuracy and lowered the amount of grouting work. The parapet element closing the lower and upper stands and
the stairs between them were also made of precast ferro-concrete.
The provisional structure brought major challenges since we have to consider aspects that conflicted each other. It was a natural requirement to make it easily demountable, nevertheless, the structure had to be designed in a way that it could be rebuild in another place and function properly – involving parameters completely unknown in the stage of design. The precast reinforced concrete construction on which the steel stand structures are placed consists of a pillar and beam structure made of alveolar hollow-core roof deck slabs and formwork panels. To facilitate the dismantling and maintain the reusability of the elements we had to reject the inviting idea of making a monolithic

item with reinforced concrete bracing walls and an armoured concrete topping planar structure; instead, the topping concrete was separated by sheets and both the vertical and horizontal bracings were ensured by steel structures. The result is a structure with consoles in every direction, many of them are different for each level and direction; nodal configurations; and cast-in fixing rails and steel planes to fix the steel structure onto. Several pillars were made
of more than 50 items; the number of types of the items could reach a dozen, altogether weighing up to 1 ton.
This structure is still under construction but we have reason to hope that the facility will be finished in time providing our capital and the Hungarian water sports with a beautiful new complex. Then it will be only up to Katinka Hosszú and the other athletes to increase the number of the Hungarian medals and our pride.
FERROBETON Zrt.
2400 Dunaújváros, Papírgyári út 18-22. www.ferrobeton.hu
Email: vallalkozas@ferrobeton.hu
DUNA ARÉNA: A LEGJOBBTÓL A LEGJOBBAKNAK
A Hydroproof mindent megtett a magyar aranyért

Cégünk, a Hydroproof Magas- és Mélyépítmény Szigetelő és Szolgáltató Kft. 1990-es megalapítása óta megvalósított projektjei közül kiemelkedik a Duna Aréna szigetelési munkáinak kivitelezése.
Több évtizedes működésünk során szerzett tapasztalataink és szaktudásunk, valamint a Market Zrt.-vel közösen létrehozott számos épület miatt, a cégünk irányába táplált bizalomnak köszönhetően társaságunk végezhette ezen a világszinvonalú létesítményen a vízszigetelési munkák jelentős részét. A nemzetközi gyakorlattól eltérően a projekt tervezésére és megalkotására szűk kétéves határidő állt rendelkezésre, ami egy ilyen nívójú és volumenű komplexum esetében rendkívül rövidnek nevezhető. A társaságunk által elvégzett kivitelezési munkák 15 hónapot vettek igénybe. Fő tevékenységünket az épület vasbeton födémein, valamint az objektum kapcsolódó vasbeton műtárgyain kialakítandó talajnedvesség, üzemivíz és csapadékvíz elleni szigetelési munkák jelentették. Szintén megbízásunk része volt az úszó-, műugró- és bemelegítőmedencék, kiegyenlítő és átemelő tartályok, illetve a tűzivíz-tározó medence vízzáró bevonatainak kialakítása is. A mi kivitelezésünkben készültek továbbá a vébé ideiglenes lelátóinak teherhordó trapézlemezes zárófödémein kialakított csapadékvíz-szigetelések is.
A fenti szigetelési feladatok során az uszoda vasbeton födémein fordított rétegrendű csapadékvíz elleni szigeteléseket készítettünk 2 réteg modifikált bitumenes lemezzel és a födémek alatti terek funkciójának függvényében változó vastagságú, extrudált polisztirolhab hőszigeteléssel. A szerkezeti csomópontokat kenhető vízszigeteléssel kiviteleztük, jellemzően az építészeti koncepció miatt.
A munkálatokban résztvevő mintegy 50 fő számára folyamatos munkavégzést kellett biztosítanunk, ennek érdekében különös figyelmet kellett fordítanunk a nagy mennyiségű szigetelőanyag beszállításának szervezésére is.
A 17. FINA vizes világbajnokság fő helyszínéül szolgáló Duna Aréna kivitelezésében résztvevő Hydroproof Kft. dolgozóiként mind büszkék vagyunk arra, hogy szaktudásunkkal és elhivatottságunkkal hozzájárulhattunk ennek a világszínvonalú építménynek a létrehozásához. (Koncz Gyula, projektvezető)
Az ideiglenes lelátók szigetelését mechanikusan rögzített lágy PVC-vel és kőzetgyapottal, egyenes rétegrendben valósítottuk meg. Az uszodában létesített zuhanyzók és szaunák üzemivíz elleni szigetelései, valamint az épület és a kapcsolódó vasbeton támfalak talajnedvesség elleni szigetelései szintén bitumenes lemezszigetelést kaptak. A víztározó tartályokban, valamint a földszinti gépészeti és elektromos helyiségekben a vízszigetelési igényeket kenhető szigeteléssel oldottuk meg. A Duna mellett kialakított rakparti lépcső vasbeton szerkezetének nedvesség elleni védelmét, a csúszásmentesség biztosítása mellett, műgyanta bevonattal alakítottuk ki. A vízszigetelési munkák során 28.000 m2 modifikált bitumenes lemezt, 13.000 kg kenhető vízszigetelést és 1.000 m3 extrudált polisztirolhab hőszigetelést építettünk be.
DANUBE ARENA: THE BEST FOR THE BEST
Hydroproof Did Its Best For Hungarian Gold
Ever since our company “Hydroproof Magasés Mélyépítmény Szigetelő és Szolgáltató Kft.” (“Hydroproof Building and Civil Engineering Insulation and Services Ltd.”) was founded in 1990, the implementation of the insulation works of the Danube Arena was our most outstanding project.
As a result of the experience and knowledge we gathered during several decades of our activity, and the buildings we have built in cooperation with Market Zrt., our company was awarded the trust to implement most of the waterproofing works in this world class facility. Unlike the international practice, we only had a tight, two-year timeframe to design and implement the project, which is very short for a building complex of such volume and
standards. Our part of the implementation works took us 15 months.
Our main activities covered waterproofing of the reinforced concrete panels and related reinforced concrete objects against soil moisture, utility water and rainwater. Waterproofing the surge tanks and pumping stations of the swimming and diving pools, and of the hydrant water pool was also part of our assignment. Furthermore, we also developed the rainwater-proofing of the load-bearing trapezium cover panels that were developed on the temporary scaffolds for the world championships.
The above waterproofing tasks covered the following activities: on the reinforced concrete panels of the swimming pool we made
rainwater-proofing insulation in reverse order of layers with 2 layers of modified bitumen membranes and extruded polystyrene foam for thermal insulation with variable thickness, depending on the function of the spaces below the membranes. In structural junctions we used spreadable waterproofing, typically because of the architectural concept.
The insulation of temporary scaffolds was ensured through mechanically fixed soft PVC and rock wool, in even order of layers. The utility water insulation of showers and saunas in the swimming pool, and the soil moisture insulation of the building and related reinforced concrete supporting walls were both provided by bitumen insulation membranes. The water tanks and the mechanical and

electrical facilities on the ground floor were waterproofed using spreadable insulation. The reinforced concrete structure of the stairs at the bank of the Danube was waterproofed and skidproofed using synthetic resin cladding. During the waterproofing works we built in 28,000 m2 of modified bitumen membranes, 13,000 kg of spreadable waterproof insulation material and 1,000 m3 of extruded polystyrene foam for thermal insulation.
We had to ensure continuous work for our staff of 50 persons, so we also had to pay special attention to the organization of largescale supply of insulation materials.
As part of the staff that worked on the implementation of the Danube Arena, the main venue of the 17th FINA World Aquatics Championships, we are all proud that we could contribute to the creation of this world class building with our knowledge and commitment. (Gyula Koncz, Project Manager)
HYDROPROOF Kft.
1115 Budapest, Kelenföldi út 17. B lph. IV./1.
Tel.: (+36-1) 209 2445
Fax: (+36-1) 209 3505
E-mail: hydroproof@hydroproof.hu www.hydroproof.hu
A HÖRMANN SZAKÉRTELEM ÚJABB
MÉRFÖLDKÖVE

Sokszereplős, nagyszabású beruházás a Duna Aréna létrehozása, amiben alapvető volt az összehangolt munka az egyes résztvevők között, az uszoda ajtótechnikáért felelős partnere a Hörmann Hungária lett. Szakemberei az uszodakomplexum eltérő szárnyépületeinek műszaki rendeltetéséhez megfelelő ajtókat javasoltak a fővállalkozó Market Építő Zrt. tervezőinek, s a közös döntést követően be is építették ezeket a nyílászárókat.
A megbízás nagyságát jelzik a darabszámok és a funkciók sokfélesége: közel 400 darab ajtó működik az épületben. A tervezők előírásainak megfelelően a Hörmann freiseni gyárából összesen 30 darab homlokzati ajtót – köztük normál, egyedi lakatos szerkezetű trafó-ajtókat, az elektromos helyiségekbe nyílókat, továbbá biztonságiakat – szállítottak a helyszínre. Egy ilyen nagy forgalmú középületben fokozottan fontos a tűzvédelem, így ennek megfelelő típusokat is installált a cég: a tűzgátó típusok közül – melyek egyben füstgátlóak is és főleg a lépcsőházakban, liftelőtereken, a nagy forgalmú helyeken láthatók, – HH30, HH60 és HH90 D1-D2 típusú tűzgátló
ajtókat építettek be a Hörmann munkatársai. Ezek kifejezetten a cég fejlesztései, így automata küszöbbel rendelkeznek. Az RS 55 típusú, füstgátló, üveges, csúszósínes ajtócsukóval és menekülő-funkcióval ellátott ajtókból pedig 10 darabot találunk az épületben. Az „alárendeltebb” helyeken - gépészeti és elektromos helyiségekben - 45 darab Hörmann Quadro T90-es típusú ajtó funkcionál.
Víz és gőzterhelésnek nagyon kitett részek az uszodaterek, így az itteni, 100 darab acélajtó fokozottan nedvességtűrő. Ezek fizikai és kémiai védelmét tovább fokozza, hogy ásványgyapot kitöltésűek, horganyzott pántokkal, a nagy igénybevételű térhatároknál rozsdamentes pántokkal kialakítottak. Természetesen az ideiglenes épületrészekre is beépítettek ajtókat (150 darab), oda ZK típusú masszív, alaktartó beltéri ajtót választottak.
„Örültünk, hogy a Market Építő Zrt. szakemberei bizalommal voltak irántunk és elfogadták a felajánlásunkat, hogy a tervezésben is szorosan együttműködjünk velük. A Hörmann csapat több évtizedes szakértelmének és változatos ajtóprogramjának köszönhetően olyan egyedi műszaki megoldásokat tudott kínálni, amelyek szakmai szempontból vitathatatlanok voltak” – kezdi a Hörmann részvétel összegzését Vörös Gábor, a cég ajtótechnika üzletágának vezetője. – A tervezés után következett a kivitelezési fázis, itt már az építésvezetőkkel egyeztettünk folyamatosan, ugyanis a beton, tégla és gipszkartonok építésénél különböző falnyílásokat kellett kihagyni az ajtóknak.” A nyílászárók esztétikai megjelenésével kapcsolatban úgy fogalmaz a szakember, hogy „a Hörmann multifunkciós ajtók igen meggyőzőek a részletekig nézetazonos megjelenésükkel. Funkcióitól függetlenül, optikailag minden ajtó tökéletesen illik egymáshoz. Így az épületben az ajtók tekintetében garantálható a harmonikus és azonos megjelenés.” A harmóniához hozzátartozik a színek kiválasztása is, ezek meghatározásában a Hörmann szakemberei szintén segítették a tervezőket, így lettek végül a homlokzati ajtók sötétszürkék; a gépészeti szinten szürke, az uszoda-öltöző részen pedig az antracit-fehér-szürke kombináció jelenik meg. www.hormann.hu
ANOTHER MILESTONE OF THE HÖRMANN EXPERTISE
Hörmann Hungária became the partner responsible for the swimming-pool door technology in the construction of Danube Arena, a multi-actor, large-scale investment where the concerted work of the participants was crucial. Their specialists recommended doors adequate for the technical functions of the various annexes of the aquatics complex to the designers of general contractor Market Építő Zrt., and also installed the doors concerned following the relevant joint decision.
The order of magnitude of the assignment is indicated by the quantities and the variety of the functions involved: there are some 400 doors in the building. In line with the designer specifications, a total of 30 front doors –including normal doors, unique transformer lock doors with metal structure, doors leading
to electric rooms and security doors – were delivered to the site from the Hörmann factory in Freisen. Fire protection is particularly important in such a high-traffic public building, so the company also installed door types meeting that requirement: of the fire protection types – that are also smoke-tight doors, visible mainly in staircases, halls and on high-traffic premises –, the Hörmann staff built in fire-rated doors of types HH30, HH60 and HH90 D1-D2. These are the company’s own development, so they have automated doorsteps. As for the smoke-proof, glazed doors of type RS 55, with sliding doorclosers and emergency function, 10 of these are to be found in the building. At the “inferior” locations – engineering and electric premises -, 45 Hörmann Quadro Type T90 doors are in operation.
The swimming-pool areas are highly exposed to water and vapour, so the 100 pcs of steel doors there are highly moisture resistant. Their physical and chemical protection is further enhanced by mineral wool filling, galvanized straps and stainless steel straps at the limits of the heavy duty areas. Of course, doors have been installed also in the temporary building parts (150 pcs); massive, robust indoor doors of type ZK were chosen there.
“We were pleased that the professional staff of Market Építő Zrt. had confidence in us and accepted our offer to cooperate strongly also in the design phase. Thanks to its expertise going back several decades and its highly varied door programme, the Hörmann team could offer professionally incontestable unique technical solutions”, this is how Gábor Vörös, head of the

door technology branch of the company begins his summary of the participation of the company. “Design was followed by the construction phase where we were continually in consultation with the site managers, since various door openings had to be left for the doors during the construction of the concrete and brickwork and the plasterboard walls.” As for the aesthetic appearance of the doors, this is how the professional expresses himself: “the Hörmann multifunction doors are highly convincing
given their perfectly identical look down to the smallest details. Irrespective of function, all doors match optically. Thus a harmonious and identical look can be guaranteed in the building in terms of the doors.” Harmony includes the selection of the colours, and the professional staff of Hörmann assisted the designers also in that respect: that is how the front doors became dark grey, grey appears on the engineering floor, and the combination of anthracite—white—grey on the swimming-pool changing room doors.
Hörmann Hungária Kft.
E-Mail: info@hormann.hu
2310 Szigetszentmiklós, Leshegy u. 15.
Tel.: (+36 24) 525100
Fax.: (+36 24) 525-110
TŰZVÉDELEM ÉS BIZTONSÁGTECHNIKA
A DUNA ARÉNÁBAN

Miközben úszóinknak drukkolunk, vagy csak szabadidőnkben leúszunk néhány hosszt az új uszodában, eszünkbe sem jut, hogy a Duna Aréna tűz- és biztonságtechnikai rendszerei a nap 24 órájában nyújtanak védelmet az új úszókomplexumban.
A Melde Kft. több évtizedes tapasztalattal rendelkező szakemberei rutinfeladatnak nem nevezhető megoldásokkal valósították meg a Duna Aréna oltórendszereinek, beléptető-, behatolásjelző-, és parkoló rendszereinek kivitelezését, garantálva ezzel a sportolók, versenyzők és szurkolók biztonságát.
Először a sprinkler (automatikus vízzel oltó berendezés), a behatolásjelző- és a parkolórendszer sorompói épültek ki, a beléptető- és a teljes parkolórendszer a 2. ütemben, a világbajnokság után fog elkészülni.
A 21 kilométer hosszan kanyargó sprinkler csövek az úszómedencéktől függetlenül az alsó
szinten elhelyezett, 400 000 literes sprinkler víztározó és a 3 db sprinkler szivattyú kapcsolatával már egy darab oltófej hőérzékelőjének kioldásakor megkezdi az oltási folyamatot, ezzel biztosítva az automatikus tűzoltást és megfékezve a tűz tovaterjedését.
A kivitelezési feladatok nehézségét az új épület egyedi építészeti kialakításai adták, mely szorosan összehangolt munkaszervezést igényelt. A versenymedence lelátóinak védelmére a 25 méter magasan kiépített 10 db nyitott szórófejes oltórendszert a kivitelezés egyes időszakaiban csak éjszakába nyúló, lelkiismeretes, jól szervezett munkával lehetett megvalósítani, míg a lelátók alatti területek sprinkler rendszerét térben és időben kellett összehangolni a társkivitelezők szerelési mátrixában.
A behatolásjelző rendszer látja el az épület betörés elleni védelmét a mai kor elvárá-
sainak megfelelő magas műszaki színvonalú eszközök alkalmazásával. Az épület teljes homlokzatát, minden bejáratot, és a kiemelt területeket védi a rendszer, melynek részletesebb bemutatása az épület biztonságának megőrzése érdekében nem lehetséges.
A beléptető rendszer feladata lesz majd az uszoda látogatói forgalmának kezelése, kezdve a parkolástól a látogatók uszodán belüli mozgásának koordinálásáig. A látogatók a pénztárnál megváltható belépődíj ellenében kapott karórával lesznek jogosultak az uszoda területének használatára, ezzel tudják majd öltőszekrényeiket nyitni/zárni, a büfében vásárolni.
A parkoló bejáratoknál telepített sorompók - egyelőre a beléptető rendszer nélkül –végzik a parkoló forgalmának koordinálását.
A Melde Kft. 2010 óta (jogelődje a Meldetechnik Kft. 1989 óta) tervez és kivi-

FIRE AND SECURITY TECHNOLOGY IN DUNA ARENA
While cheering the swimmers or just doing a few laps in the new swimming pool during our leisure time, it will not occur to us for an instant that the fire and security systems of Duna Arena guarantee round the clock protection in the new aquatics complex.
With their experience of several decades, the experts of Melde Kft. realised the extinguishing systems, access control, intrusion detection and parking systems of Duna Arena with far-from-routine solutions to guarantee the security of the sportspersons, the competing athletes and the fans.
First the sprinkler (automatic water extinguisher), the intrusion alarm system and the parking garage barriers were i nstalled; access control and the entire parking system will be ready in Phase 2, after the world championship.
The sprinkler tubes winding along 21 km, connected to the 400 000 litre sprinkler water reservoir placed at the lower level of the building, independent of the swimming pools, and to 3 sprinkler pumps, start the extinguishing process upon the release of even a single spray nozzle to ensure automatic extinguishing and to restrain the spread of the fire.
the complex. In return for the entrance fee payable at the cashier, visitors will receive a wristwatch giving them access to the swimming pool area and allowing them to open and close the changing room cabins or buy food and beverages at the pool bar.
Traffic in the parking garage will be coordinated by the barriers installed at its entrance – without access control for the time being.
Melde Kft. has designed and executed fire and security systems since 2010 (considering also its legal predecessor, Meldetechnik Kft., since 1989). The quality realisation of priority investments in the past years made apparently impossible construction solutions a routine task for the company, and after Duna Arena, they are now awaiting the next call to meet novel challenges fully prepared for them.
The following took part in the realisation of the access control, intrusion alarm and parking systems:
Gábor Schreiber - managing director
Gábor Verebi - managing director
Viktor Hargitai - head of engineering area
Balázs Káplár - head of electrical area
Sándor Horváth - business leader
Gábor Pribék - facility manager
József Hegyesi - facility manager
Melde Kft.
1116 Budapest, Építész u. 8-12. Tel., fax: (+36-1) 385 0842 E-mail: info@melde.hu www.melde.hu telez aktív tűzvédelmi és biztonságtechnikai rendszereket. Az elmúlt években a kiemelt beruházások magas színvonalú megvalósításával a cég számára rutinfeladattá váltak a lehetetlennek tűnő kivitelezői megoldások, és a Duna Aréna után felkészülten várja a következő felkérést az újabb kihívások megvalósítására.
A sprinkler-, beléptető-, behatolásjelző-, és parkoló rendszerek kivitelezésében részt vettek:
Schreiber Gábor - ügyvezető igazgató
Verebi Gábor - ügyvezető igazgató
Hargitai Viktor - gépész ágazatvezető
Káplár Balázs - elektromos ágazatvezető
Horváth Sándor - vállalkozási vezető
Pribék Gábor - létesítmény vezető
Hegyesi József - létesítmény vezető
The difficulty of the implementation tasks lay in the unique architectural design solutions of the new building, requiring closely coordinated work. The extinguisher system with 10 pieces of open sprayers installed at 25 m height to protect the grandstands of the competition pool could only be implemented at certain times of the construction by well-organised work extending to the night, whereas work on the sprinkler system of the areas underneath the grandstands had to be aligned in terms of space and time, by careful consideration of the assembly matrix of the co-constructors.
The intrusion detection system protects the building by applying state-of-art quality technical devices. The system protects the entire building facade, all entrances and the priority areas; however, it cannot be presented in more detail here to preserve the safety of the building.
The access control system will manage visitor traffic in the aquatics complex, from parking to coordinating visitor movement within






Fotó: Bujnovszky Tamás
Photo by Tamás Bujnovszky











A DUNA ARÉNA VÍZGÉPÉSZETI SZAKMUNKÁI
A közel 10 éve uszodák, wellnessek, gyógyfürdők strandok és tanuszodák világában tevékenykedő Fürdőpark Kft. dolgozói és műszaki szakemberei az épületgépészet szakterületéről képezték át magukat a vízgépészet speciális területére közel 30 éve.
Munkatársaink Magyarországon mára több, mint 2000 vízforgatót építettek melyeknek nagy része közületi felhasználású. E szakterületen szolgálati mintaoltalommal védett egyedi fejlesztésű berendezések fémjelzik a szakértelmünket. Az úgynevezett kvarchomok vákuumszűrő berendezés az ország nevezetes fürdőinek központi eleme, de a legnevezetesebb sportuszodák vízgépészeti kivitelezését, illetve vízgépészeti rekonstrukcióját is szakembereink, munkatársaink építették. Ilyen többek között A Nemzeti Sportuszoda, a Császár Uszoda, a Kőér utcai uszoda, az Egri „Makovecz” uszoda, a Kaposvári Sportuszoda, a Lágymányosi Versenyuszoda, a Tüskecsarnok mozgatható fenékszerkezete, a Miskolctapolca Strand 50 m-es versenymedencéje, a Pécsi Hullámfürdő sportuszodája vagy a Kondorosi úti uszoda és több tanuszoda. Mindemellett az ilyen sportuszodákat többnyire sportfelszerelésekkel is ellátjuk.
Cégünk uszodák, fürdők szakmai üzemeltetésével is foglalkozik, de előszeretettel nyújtunk szolgáltatást a karbantartási vegyszerés anyagellátás területén is.
Büszkék vagyunk rá, hogy részt vehettünk a budapesti vizes világbajnokság fő létesítményének vízgépészeti kivitelezési munkálataiban.
HYDRAULIC ENGINEERING WORKS OF DANUBE ARENA
The members of the Fürdőpark Kft. team that has been into hydraulic business concerning pools, wellness centres, spas, and baths for nearly 10 years now converted from building operations to the special area of hydraulic engineering nearly 30 years ago. Our associates have built in more than 2000 circulation pumps in Hungary to date; most of them were for institutional use. Our expertise is hallmarked by custom-developed appliances protected by service design protection. Our so-called silica sand vacuum filtration apparatus is a crucial component of the renowned baths of the country; furthermore, the hydraulic engineering and reconstruction of the most famous swimming pools were also made by our experts and associates. This involves the Alfréd Hajós National Swimming Stadium, the Császár-Komjádi Swimming Stadium, the Kőér Street Swimming Pool, the Virágfürdő Swimming Pool in
Kaposvár, the Lágymányosi Swimming Pool, the movable floor of the Tüskecsarnok pool, the 50 m competition pool of the Miskolctapolca Bath, the swimming pool of the Hullámfürdő Swimming Bath in Pécs, the Nyéki Imre Swimming Pool in Kondorosi Road and many other swimming pools. Over and above, we usually supply these swimming facilities with sport equipment as well.
Our firm also performs the technical operation of several swimming pools and provides services related to maintenance chemicals and materials supply.
We are proud of our participation in the construction of the main establishment of the Budapest World Aquatics Championships by our hydraulic engineering work.
Fürdőpark Kft. 1048 Budapest, Szíjgyártó u. 7. Telefon: (+36-70) 320 4444, 320 4435
E-mail: ajanlat@furdopark.hu www.furdopark.hu


AZ IVANKA DESIGNBETON ÜLŐBÚTORAI
Az építészeti- és designbetont gyártó IVANKA – amely leginkább progresszív tervezői megoldásaival és technológiai újításaival vált ismertté – egyedi kültéri elemek tervezésére és gyártására kapott felkérést a Dagály Projektben. A cél az volt, hogy a megbízó egyedi igényeihez igazodva olyan személyre szabott megoldás szülessen, amely lerövidíti a nemzetközi katalógustermékek gyártásánál megszokott 4-6 hetes várakozási időt is. A kért organikus formához kompozit szerszámot készítettek, amit a megbízó a tervezőkkel folytatott folyamatos kapcsolat során térbeli modellen is ellenőrizhetett. Ez az IVANKA által nyújtott, teljes körű szolgáltatás részét képző munkamódszer megoldást nyújtott arra, hogy az ügyfél versenyképes áron és határidőre érje el egyedi elképzeléseinek megvalósulását.
A cégcsoport megrendelési állományának legnagyobb volumenét a homlokzati rendszerek és a hozzájuk kapcsolódó mérnöki szolgáltatások adják, ezért főleg tervezőirodákkal dolgoznak, de gyakran nyújtanak segítséget a műszaki tenderelőkészítés során is. A homlokzati rendszerek, belsőépítészeti megoldások, kültéri és köztéri bútorok mellett számos egyedi terméket – monolit látszóbeton lépcsőket, homlokzati elemeket, könnyű, fényáteresztő, perforált, gravírozott és grafikus alkalmazásokat – gyártanak. A cég jelentős kutatás-fejlesztési és innovációs tevékenységének köszönhetően számos világhírű építészirodával, köztük például a Zaha Hadid Architects-szel dolgozik együtt.
Az IVANKA 4 kontinens 21 országában, összesen 70 ponton képviselteti magát, legutóbb Miamiban mutatkozott be az ausztrál Alexander Lotersztain által tervezett QTZ bútorcsaláddal. Aktuális projektjei között szerepel a New York-i Dock 62 – Brooklyn Navy Yard, a Rafael Viñoly építésziroda által jegyzett 61 Ninth Avenue homlokzati burkolata, valamint az indiai Lakhnauban épülő magánkórház homlokzati rendszere is.
DESIGN CONCRETE ELEMENTS BY IVANKA
Architectural and design concrete brand IVANKA, renowned for its progressive design and technological solutions, was invited to design and manufacture unique outdoor elements for the Dagály project. The company was responsible for developing a customized solution responding to the client’s specific needs to shorten the producing time compared to the usual 4-6 week producing process of international catalogue products. Composite moulds were created for the requested organic form that the client could check anytime by means of a 3D modelling throughout the continuous communication with the designers. This working method which constitutes an integral part of IVANKA’s 360-degree service offered a solution for the customer’s need to realize their specific concept at competitive prices and by the set deadline.
The greatest volume of the IVANKA group’s orders are for facade systems and related engineering services thus they collaborate also with design offices, besides they often provide help with technical preparation of bids. In addition to facade systems, interior design solutions and exterior elements, IVANKA manufactures several highly customized products, including monolith exposed staircases, sculpted surface aesthetics, and lightweight, light transmitting, perforated, engraved and graphical applications. Due to its significant R+D and innovation activities IVANKA collaborates with several world-famous architect studios including Zaha Hadid Architects. IVANKA is present in 70 locations of 21 countries across 4 continents. The company debuted its QTZ urban element collection designed by the australian Alexander Lotersztain recently in Miami. Their current projects include the facade of Dock 62 – Brooklyn Navy Yard, the facade cladding of a recent project by Rafael Viñoly Architects, the 61 Ninth Avenue as well as the facade system of a private hospital currently under construction in Lucknow, India.
IVANKA Factory & Design Services
2000 Szentendre, Kalászi út 3. Tel.: (+36) 20 398 55 11
Email: info@ivankaconcrete.com www.ivankaconcrete.com
















AZ USZODAÉPÜLET ALAPOZÁSÁRÓL
Cégünk, a BOHN Mélyépítő Kft., mint a hazai speciális mélyépítési piac egyik meghatározó képviselője, a Market Építő Zrt. megbízásából vett részt a Duna Aréna projekt alapozásának tervezésében és kivitelezésében. A projektelőkészítés során rendelkezésünkre bocsátott adatszolgáltatás alapján magától értetődő volt, hogy a kedvezőtlen altalajviszonyokat jelentő mélyen fekvő teherbíró talajrétegeket és felette található igen kis teherbírású feltöltést is figyelembe véve, a bonyolult, süllyedésérzékeny épület mélyalapozása szükséges. A választott műszaki megoldás a CFA-technológiával (folyamatos spirállal fúrt cölöp) készülő alapozás volt. Az uszodaépület, az ideiglenes lelátók, a támfalak, toronydaruk és egyéb külső tereptárgyak alapozása során 2171 darab 600, 800 és 1000 mm átmérőjű cölöpöt fúrtunk le, mindösszesen 27 775 fm hosszban. A legnagyobb kihívást az igen szűkre szabott átfutási idő jelentette, ami olykor gyakorlatilag akár napi újratervezést igényelt a helyszíni organizációban. A munka gerincénél (2015. júniusaugusztus) 3 betonüzem szállította a betont a területen dolgozó 3 fúrógépláncunknak és 5 betonacél-üzem gyártotta a cölöparmatúrákat. A projekt sikeres megvalósítása elsősorban a Market Építő Zrt. által jól szervezett munkának, és az általa jól megválasztott alvállal-

kozó szakcégek megbízható együttműködésének köszönhető. Mi magunk hálásak vagyunk a Market Építő Zrt.-nek, hogy lehetővé tette számunkra, hogy részt vegyünk ennek a nem mindennapi feladatnak a megvalósításában.
THE GROUNDWORK OF THE SWIMMING POOL BUILDING
Our company, “BOHN Mélyépítő Kft” (“BOHN Civil Engineering Kft”) is a decisive actor in the special market of Hungarian civil engineering. We took part in the design and construction works of the Danube Arena project on behalf of Market Építő Zrt. Based on the data we were provided during the preparation phase of the project, it was self-evident that taking the unfavourable undersoil conditions into account (the layers of soil of high bearing capacity were located deeply and were filled up with soil of low bearing capacity), deep foundation was required for this complex building which is prone to sinkage. The technical solution we picked was groundwork with CFA-technology (piles drilled by continuous flight auger). During the foundation work of the swimming pool building, the temporary scaffolds, sup-

porting walls, tower cranes and other outdoor objects, 2171 piles were drilled of 600, 800 and 1000 mm in diameter, in a total length of 27,775 running meters. The biggest challenge was the tight transit time, which often required daily recalculation during on-site organization. During the major part of the work (June to August 2015), 3 concrete manufacturers supplied the concrete to our 3 on-site drilling chains, while the reinforcement cages of the piles were made by 5 reinforcing steel manufacturers. The successful implementation of the project is most of all the result of the great cooperation with the subcontractors carefully selected and the work excellently organized by Market Építő Zrt. We are grateful for Market Építő Zrt for enabling us to take part in the implementation of this extraordinary project.
BOHN Mélyépítő Kft. 1126 Budapest, Kiss János altábornagy u. 11. 1. em. Tel.: (+36 1) 224 00 11, 225 72 52 E-mail: bohn@bohn.hu www.bohn.hu


ÉPÍTÉSZETI KAPCSOLAT EMBER ÉS KÖRNYEZET KÖZÖTT

Világesemény, világraszóló teljesítményekkel, világszínvonalú környezetben – a közönség figyelmének elnyeréséhez minden ízében tökéletességre van szükség napjaink kiélezett információs versenyében. A Duna Aréna, amely a FINA 2017-es úszó-világbajnokság fő helyszíne és egyben Budapest legújabb látványossága, ezeknek a kihívásoknak kell, hogy megfeleljen.
Mit tehet hozzá a projekthez ebben a kiélezett helyzetben egy, a világ élvonalába tartozó műgyanta- és festékgyártó cég? Pontosan azt, ami elvárható. Éppen az ilyen nehéz helyzetekben van igazán szükség arra a széleskörű – a legkülönbözőbb (sok esetben kiugróan újszerű műszaki tulajdonságokkal kifejlesztett), a jövőt nemcsak tartósságával, de környezetbarátságával is meghatározó – anyagválasztékra és az alkalmazásukhoz szükséges kifinomult, minden részletre odafigyelő és megoldást nyújtani képes szaktudásra, amely a Sto cégcsoportot jellemzi, és amiért világszerte a legjobbak között tartják számon.
Legyen szó akár a lelátók felület-folytonos, a várható igen erős mechanikai terhelést és párát is elviselni képes, takarítható és egyben esztétikus, egyedi megjelenésű műgyanta felületképzéseiről, a gépészeti terek speciális vegyszerállósági és vízszigetelési kívánalmai-
nak egyszerre megfelelni képes padlóbevonatairól, vagy a speciális igényű falfestésekről, különleges megjelenésű díszítőbevonatokról, a szokatlan részletképzési igényeknek is megfelelő homlokzatképzésről, vagy bármely más felületképzésről; a Sto minden helyzetben a legmegfelelőbb megoldást képes nyújtani partnerei számára.
ARCHITECTURAL CONTACT BETWEEN HUMANS AND THE ENVIRONMENT
A world event with sensational performances and world-class environment needs perfection in every detail to attract the attention of the public in the fierce informational competition of our days. Main site of the FINA World Championships and the newest attraction of Budapest, Duna Arena must tackle these challenges.
What can a world-leader resin and paint supplier add to this project in this intense situation?
Exactly the thing one would expect. In these tough situations, a wide range of materials defining the future with their durability and ecological-friendly features and often displaying extremely innovative technical characteristics are needed. A great deal of professional knowledge is also needed for the use of the

above, and to pay attention to every detail and provide solutions for every problem arising. That’s what characterizes the Sto Group and why it is considered one of the bests around the world.
We could mention the resin on the grandstands with its continuous surface, very high mechanical bearing capacity, moisture resistance, aesthetics and unique qualities or the floor coating that is chemical resistant and watertight at the same time according to mechanical space requirements or the wall paintings fulfilling special needs, the peculiar decorative coatings, the facade construction with its unusual details or any other surface construction – Sto is able to offer the best solution for every situation.
Sto Építőanyag Kft. 2330 Dunaharaszti, Jedlik Ányos u. 17. Tel: (+36) 24/510-210 I Fax: (+36) 24/490-770
E-mail: info.hu@sto.com I www.sto.hu

UNIKÁLIS BURKOLATOK AZ
USZODAKOMPLEXUMBAN
A Duna Aréna uszodatereinek minőségét, hangulatát meghatározza, hogy Németország legnagyobb kerámiaburkolat-gyárának, az AGROB BUCHTAL-nak a termékeit építette be a kivitelező. Termékeik a burkolattípusok teljes spektrumát lefedik, még az ipari, egészségügyi felhasználási területekre is megoldást nyújtanak, így a szigorú FINA előírásoknak is megfeleltek ezen a „vizes” helyszínen. Az Aréna világviszonylatban is több különlegességgel bír, ezek közül az úszó- és műugró-medencék a fő attrakciók, de nézzük azokat a burkolatrendszereket (medenceperem, kapaszkodóelemek, burkolólapok, a medenceterek, vizes helyiségek csúszásmentes burkolata), amik többek között meghatározzák ezt a speciális alkalmasságot. A belsőépítészeti tervezés után a megfelelő színek, elemek, lapméretek kiválasztása történt meg, különös tekintettel a funkcionalitás, az időtállóság, az áramlási zajcsökkentés és tisztíthatóság szempontjaira. Az AGROB BUCHTAL a kiválasztás és a tervezés folyamatában is a segítségére volt a fővállalkozónak. Ennek keretében lett például az oldalfalon a pihenőperem falba süllyesztett: ez a falról a versenyzőre „visszaverődő” víz alatti hullám csillapítása miatt fontos. De a medenceperem burkolatának bordázott felülete is a hullámzáscsillapítást szolgálja, a folyóka rácstartó pedig a tartósság érdekében készült kerámiából. Természetesen alapvető a járófelületek víztelenítése: ez megfelelő, egyirányú lejtéssel, vonalmenti folyókával történik. A medencék, a medencete-
rek, illetve egyéb vizes-helyiségek padlóburkolata az AGROB BUCHTAL szabadalommal bíró, TiO2 (Titándioxid) gyári bevonatával rendelkezik, mely zsírtaszító, fertőtlenítő tulajdonsággal ruházza fel a burkolatot.
Köszönet illeti a jó együttműködésért a Market Építő Zrt. dolgozóit, a tervezőket, a BUCHTAL tervezőit és a beszállító Archi-Ro Kft. munkatársait. (Fekete Roland, szerk.ép.mérnök, AGROB BUCHTAL képviselet)
UNIQUE COVERINGS IN THE POOL COMPLEX
The quality and atmosphere of Danube Arena’s pool areas are largely defined by the fact that the constructor used the products of AGROB BUCHTAL, Germany’s largest manufacturer of ceramic coverings. Their products cover the entire range of coverings, providing solutions even for the industrial and medical fields, and consequently they met FINA’s strict requirements for this “aquatic” location. The Arena boasts several special features that are considered unique even on a global level. Of these, the main attractions are the swimming and diving pools, but let’s have a look at the covering systems (pool edge, handrails, cladding tiles and the non-slip covering of pool areas and wet rooms) defining this special establishment.
After the interior design was completed, appropriate colours, elements and tile sizes were chosen, with special regard to func-
tionality, durability, flow noise reduction and cleanability. AGROB BUCHTAL helped the main contractor also in the selection and planning process. This is where, for example, the resting edge on the side wall was sunken into the wall: this is important in order to weaken the underwater waves “reflected” from the wall to the athlete. The ribbed surface of the covering of the pool edge also serves the purpose of reducing waves, while the fastener of the grip grating was made of ceramic to ensure durability. Naturally, the water is drained from the main walking surfaces with appropriate, singledirection inclines, using grips parallel to the pool edge. The floor coverings of pools, pool areas and other wet rooms are coated plant-manufactured TiO2 (titanium dioxide) coating patented by AGROB BUCHTAL, which provides the covering greaseproof and disinfectant qualities.
We would like to say thank you for the employees of Market Építő Zrt., the designers, BUCHTAL’s architects and the employees of the supplier, Archi-Ro Kft. (Roland Fekete, structural engineer, AGROB BUCHTAL’s representative)
ARCHI-RO KFT. 9021 Győr, Amadé László u 1. E-mail: fekete.roland@buchtal.hu www.buchtal.hu
Mobil : (+36 20) 9 644 334
Tel.: (+36 96) 517 017
Fax.: (+36 96) 517 019



Székhely: 8163,Csajág, Kossuth u.125 Iroda:1115, Budapest, Fejér Lipót köz 7
Tel: +3612053587
Fax.:+3612053588
email: bakartiroda@bakart.hu
Bakart Kft.
BIZTOS ALAPOKON
A Bau-Systeme 92 Kft. mint magyar tulajdonú cég 25 éves fennállása alatt megkülönböztetett figyelmet fordított a társadalmi felelősségvállaláson belül a hazai sport támogatásának.
Kiemelkedő jelentőségűnek érezzük, hogy a vizes világbajnokságnak otthon adó Duna Aréna megvalósulásának is aktív részesei lehettünk. Szárazépítési és szigeteléstechnikai tapasztalatunknak, valamint az innovatív technológiákat felvonultató gyártó cégekkel történő kooperatív együttműködésünknek köszönhetően elmondhatjuk, hogy ismét egy kiemelkedő műszaki értéket képviselő és sporttörténeti jelentőséggel bíró épület létrehozásában sikerült közreműködnünk.
Mérnök szaktanácsadó Kollégáink a Lasselsberger-Knauf és az Austrotherm Kft.vel együttműködve tettek javaslatot a beépítésre kerülő termékekre, szem előtt tartva a speciális igényeket. A Lasselsberger -Knauf Kft. falazó és rögzítőhabarcs, valamint gépi és kézivakolat palettájával képviselteti magát az épületben, míg az Austrotherm Kft. egyik új innovatív terméke, a Strada töltés kikönnyítést segítő expandált polisztirolhab a helyszínből adódó negatív talajtani tényezők kiküszöbölésére jelentett optimális megoldást.
A beépített EPS-blokkoknak köszönhetően sikerült megfelelő stabilitást elérni, vala-
mint a műtárgyak alatti vezetékek sérülését is megakadályozni. A Duna Aréna ismét egy olyan feladat volt cégünk életében, mely során az innovatív szigeteléstechnológiai kihívásokra maximális megbízhatóságú, kimagasló műszaki tartalmú megoldást találtunk, ezzel a jövő sportoló és sportszerető nemzedékének sikerült maradandó értéket teremteni.
ON SOLID GROUND
As a Hungarian-owned company, Bau-Systeme 92 Kft. has always paid special attention to social responsibility, especially sponsoring Hungarian sports throughout its 25 years of activity.
We are extremely proud to be an active part of the Danube Arena project, a sports complex which will host the World Aquatics Championships. Thanks to our experience in dry mortarless construction and insulation technology as well as our cooperation with manufacturers of innovative technologies, now we can boast another building of exceptional technical value and sport-historical importance. Our engineering consultants made recommendations in cooperation with Lasselsberger-Knauf and Austrotherm Kft. for the products to be used, keeping special requirements in mind. Lasselsberger-Knauf
Kft is present in the building with its masonry, fixing mortar, machine and manual mortar products, while Strada, a new innovative product of Austrotherm Kft (expanded polystyrene foam for assisting the support of filling) was an optimal solution for outweighing the unfavourable soil conditions of the site. Thanks to the built-in EPS blocks, proper stability was ensured, and injury of the conduits that run under the objects could be avoided, too. The Danube Arena was another project in the history of our company, in which we found solutions of maximum reliability and exceptional technical merits for innovative challenges in insulation technology, and doing so, created enduring value for the future generations of athletes and sports fans.
Bausysteme Kft. 1095 Budapest, Soroksári út 164
Tel.: (+36 1) 280 1278
Fax: (+36 1) 281 2144
Email: info@bau92.hu www.bau92.hu
Lasselsberger-Knauf Kft. 8200 Veszprém, Házgyári út 9.
Tel.: (+36 88) 590 500
Fax: (+36 88) 590 515 www.lb-knauf.hu

EGYEDI MEGOLDÁSOK VEZETTEK SIKERRE
Cégünk hat éve képviseli dilatációs profilrendszereivel Európa piacvezető cégét, a MIGUA GmbH-t. A fugarendszerek magyarországi forgalmazójaként garantálja ugyanazt a kiemelkedő minőségű, átfogó fugaprofil és fugaszerkezeti programot, mint amit az anyavállalat. Hazai és nemzetközi vezető építészek, tervezők és kivitelezők számítanak a MIGUAra. Kiváló referenciáikkal világszerte jelentősen hozzájárulnak a kiemelkedő építmények tartós védelméhez, valamint, hogy ezek tökéletes funkcionalitást és építészeti minőséget kapjanak.
A MIGUA fugarendszerek széleskörű alkalmazási területen fellelhetők, olyan nagylétesítményekben például, mint bevásárlóközpontok, kiállítási csarnokok, kórházak, ipari termelő- és raktárcsarnokok, mélygarázsok és gyalogoshidak.
Együttműködésünk a Market Építő Zrt.-vel nem új keltű. A többéves, sikeres munkakapcsolat a kiváló minőségű terméknek és a megbízható, magas szintű kapcsolódó szolgáltatásnak köszönhető.
Jelen projekten is az egyedi megoldások vezettek sikerre. Komoly egyedi kialakításokat igényelt a projekt mind tervezési, gyártási és szerelési szinten. Az alapfunkción kívül a profiloknak a megfelelő mozgástartomány garantálásával fugalezárást kellett biztosítania. A víztömörségi előírások megkívánták
a klóros vízkezelés tolerálását, mely az anyagválasztást a KO35 anyagminőség irányába vitte. Külön kiemelnénk, hogy 10 rendszert a +5,40 szinten 4,70 m magasságig függőlegesen is víztömörré kellett tenni egy egyedi gyártású felmenő szerkezettel.
CASE-SPECIFIC SOLUTIONS FOR SUCCESS
Our company has been representing leading European expansion joint system supplier MIGUA GmbH for six years now. As the official distributor of MIGUA GmbH’s joint cover systems in Hungary, our company guarantees the same outstanding quality of joint cover profiles and structures as our parent company. Many Hungarian and international leading architects, designers and builders are counting on MIGUA. MIGUA’s excellent track record contributes significantly to the lasting protection, perfect functionality and high architectural quality of outstanding constructions around the world.
MIGUA joint cover systems are used in a variety of areas including large facilities like shopping centres, exhibition halls, hospitals, industrial production and storage halls, underground garages, and footbridges.
Our cooperation with Market Építő Zrt. is not new. Our successful working relationship, going on for several years now, relies on the excellent quality of the products and the high level of our related services.
Case-specific solutions led to success in this project as well. The project required substantial customization in terms of design, production, and installation. Beside the base functionality, the profiles had to provide adequate range of motion to close the joints. According to water resistance rules, the system had to tolerate chlorinated water; that’s why we selected materials from the KO35 quality. It is worth mentioning that a custom-made ascending construction was also needed to create vertical water resistance for 10 systems on the +5.40 level up to 4.70 m high.
2038 Sóskút, Ipari Park hrsz. 3508/23
Tel.: (+36 23) 919 164
Fax.: (+36 23) 919 165
Mobil: (+36 30) 66 44 526
Email: office@bmi.co.hu www.bmi.co.hu


NÉLKÜLÖZHETETLEN MODERN ÁLLVÁNYZAT!


A Gemenc Állvány Cégcsoport immár 20 éves munkatapasztalattal működik a magyar piacon és nyújt biztonságos állványtechnológiát megrendelői számára. Küldetésünk és egyben elhivatottságunk, hogy a modern állványzat mindennemű felhasználhatóságát megismertessük az építőipar szereplőivel. A régi kőművesállványtól a modern ipari könnyített állványzatig hatalmas utat tett meg az állványtechnológia. Cégcsoportunk mai nappal közzel 150 000 m2 homlokzati állványzattal és 50 000 m 3 ipari állványzattal rendelkezik. Ilyen mennyiséggel 7 darab Parlament felállványozható egyszerre. Ez a fejlődés a Cégcsoport tulajdonosának, Morva Imrének a szakmához kötődő szenvedélyének és üzleti érzékének egyaránt köszönhető.
A Duna Aréna kivitelezésen rendkívül jól bemutatásra kerülhetett az állványzat széleskörű felhasználhatósága és így minden szakipar könnyen és biztonságosan tudta végezni munkáját.
A jelenleg dübörgő és felfelé ívelő építőipari szektorban szinte nincs olyan kivitelezés, ahol az állványzat igénye fel ne merülne. Ugyanakkor nem elhanyagolható tény az, hogy milyen állványzattal jelenik meg az állványozó cég a kivitelezésen. Sokszor az a tapasztalat, hogy az alacsonyabb ár, alacsonyabb minőséget képvisel, számunkra ez nem megengedhető. Igyekszünk szolgáltatásunk minőségével, hozzájárulni a megrendelő sikerességéhez
egy rendkívül modern, esztétikus és biztonságos állványzattal. Partnereink visszaigazolása szerint, ahol a Gemenc dolgozik, ott az állvány olyan amilyennek lennie kell.
Cégcsoportunk nem áll meg, rendületlenül törünk előre, és igyekszünk meghódítani mindazon területeket ahol nevünk még nem forrt egybe az állványozással. Mindezt szenvedéllyel, kihívással és profizmussal tesszük, minden megrendelőnk igénye szerint.
MODERN SCAFFOLDING IS INDISPENSABLE
The Gemenc Állvány Group has 20 years of experience in the Hungarian market providing safe scaffolding technology to its customers. We are committed to our mission to make everyone in the building industry familiar with all uses of scaffolding. The scaffolding technology has come a long way from the old fashioned masonry scaffolds to lightened scaffolding systems. Our group currently possesses 150 000 m2 of façade scaffolding and 50 000 m 3 of industrial scaffolding. This quantity is enough to scaffold seven Parliaments. Imre Morva, the esteemed owner of our group is responsible for this achievement due to his passion for the industry and his sense of business.
During the Danube Arena constructions, the wide range of scaffolding uses provided
safe working conditions for every profession involved.
In the rocketing building industry of our days, there is no construction work where no scaffolding need would arise. And the kind of scaffolding used is never an insignificant question. It is a common experience that lower prices imply lower quality – a compromise we cannot afford. We seek to provide high quality services that contribute to our customers’ success by outstandingly modern, aesthetic and safe scaffolding systems. According to our partners’ feedback, where the Gemenc Group provides the scaffolds, scaffolding is like it ought to be.
Our group doesn’t stop here. We are progressing steadily forward and seek to conquer any areas where our name does not mean scaffolding yet. We do that with passion, courage and professionalism and we satisfy our customers’ every need.
Gemenc Állvány Cégcsoport Morva Imre ügyvezető-tulajdonos 2314 Halásztelek, II. Rákóczi F. u. 101. Tel.: (+36 30) 268 9511 www.allvanyberles.com
CELSIUS KFT - A DUNA ARÉNA HERAKLITH
HANGSZIGETELŐ
ANYAGÁNAK BESZÁLLÍTÓJA
A Celsius Kft. egy kizárólag magyar tulajdonú, építőanyag-kereskedelemmel foglalkozó vállalkozás. Fő profilja a hő-, víz-és hangszigetelő anyagok forgalmazása. A fiatal, szakemberekből álló cég a termékforgalmazás mellett a termékújdonságok bemutatását, bevezetését és technológiai fejlesztések alkalmazására való ösztönzést tűzte ki célul. Külön öröm számukra, ha egy, a piacon már korábban ismert, de méltatlanul feledésbe merült, kiváló minőségű építőanyag reneszánszában vehetnek részt, ahogyan ez a Duna Aréna esetében is történt a Heraklith termékek beépítése alkalmával. Az uszodakomplexumban a hangelnyelő akusztikai felületek kialakításához használt Heraklith-C típusú fagyapot termékek természetességükkel biztosítják az uszodaterület akusztikai komfortját. A gondos akusztikai tervezés különösen fontos a feszített víztükörrel rendelkező uszodaterek esetében, ahol a vízfelület önmagában egy nagy hangvisszaverő felületként működik, melyet az optimális teremakusztika érdekében kompenzálni kell.
A folyamatos termékfejlesztés során a megújult, ma már 2 mm-es, finomszálazású homogén és kellemes megjelenésű Heraklith táblák nemcsak funkcionálisan, de esztétikai szempontból is kiváló megoldást biztosítanak.

A fagyapot táblákat a nyugat európai piacon nemcsak hangszigetelő anyagként, de a látszó felületeken belsőépítészeti designelemként is előszeretettel alkalmazzák a tervezések során. A Celsius Kft. a magyarországi építőanyag-kereskedelmi piacon a Heraklith fagyapot újrapozícionálását és az akusztikai tervezés fontosságának kiemelését tűzte ki célul.
CELSIUS KFT
THE SUPPLIER OF HERAKLITH ACOUSTIC INSULATION BOARDS FOR THE DANUBE ARENA
Celsius Kft. is a wholly Hungarian-owned building material trader enterprise. Trading thermal, water and acoustic insulation materials is the main profile of the company. Beside the commercial activity, this young firm and its professional team have the objective to present and introduce product novelties and to encourage the application of technological innovations. It was a special pleasure to them to take part in the rediscovery of Heraklith, a previously known but then undeservedly forgotten premium quality material that took place during the construction of Danube Arena. The soundabsorbing surfaces of the aquatics complex were made of Heraklith-C wood wool products that
ensured the acoustic comfort of the pool area while creating an organic feel with their natural character. Designing the acoustics of waveless pool halls needs great care since these waters constitute large sound-reflecting surfaces that have to be compensated to acquire optimal interior acoustic features.
The continuous product development lead to 2 mm thin fine fibre Heraklith boards that not just perfectly fulfil their function but also pleases to the eye thanks to their homogeneous and aesthetic appearance.
Beside their acoustic purposes, wood wool products are widely used as interior design elements on the exposed surfaces in the European market. Celsius Kft. aims to reposition Heraklith wood wool in the Hungarian building material market and to highlight the importance of acoustic design of buildings.
Celsius Építőanyag-Kereskedő Kft.
Tel.: (+36 1) 474-0817
Mobil: (+36 30) 195-0485 Fax: (+36 1) 474-0818
Iroda/Levelezési cím: 1139 Budapest, Váci út 85. E-mail: info@celsiuskft.hu www.celsiuskft.hu

GRABOPLAN HOMLOKZAT

A Graboplan cégcsoport magas minőségű, PVC-, teflon-, szilikon-bevonatos műszaki textíliákból készülő tető-, illetve homlokzati lefedésekre specializálódott győri székhelyű cég.
A Graboplan a világ vezető ponyvakonfekcionálói közé tartozik, stabil gépi kapacitása, membránok gyártástervezésére szakosodott mérnökei, tapasztalt gyártó szakemberei és szerelői szinte kizárólag egyedi megrendeléseket teljesítenek.
A Graboplan az épület homlokzati tartóira sorban felszerelt homlokzati burkolatot (10000 m2), a belső akusztikai célokat szolgáló molinót (2340 m2), valamint a gépészet takarását biztosító belső burkolatokat (930 m2) készítette. A nagy szakítószilárdságú szövetre a grafika digitális nyomtatási eljárással került, mind a külső, mind pedig a belső molinó burkolatok esetében.
A Duna Aréna esetében a kihívást a precíz grafikai illesztések kivitelezése jelentette, mivel a részelemek sávonként különböző nyúlású anyagból készültek. A gyártás és szerelés során ügyelni kellett arra, hogy minden egyes elem azonos belső, üzemi hőmérsékleten készüljön, és a megfelelő nyúlás érdekében a szerelés is szintén azonos feszültségi szinten kerüljön kivitelezésre. Az alkalmazott anyag felületi kezelése és a nézetenként eltérő térbeli
tulajdonságai miatt, a ráeső fény beesési szögétől függően a homlokzat különböző árnyalatokban jelenik meg. Ezáltal válik a modern épület a Duna mellett elterülő természetes környezet harmonikus részévé.
GRABOPLAN FACADE
Based in the Hungarian city of Győr, Graboplan is specialized in producing PVC-, Teflon-, and silicone-coated high quality technical textiles for roof and façade covering. One of the top manufacturers of custom made tarpaulins in the world, Graboplan has a stable machine capacity and a staff consisting of engineers specialized in membrane production planning and experienced manufacturing specialists and works almost entirely to order.
For the Danube Arena project, Graboplan made a façade covering (10,000 m2) set on the holders of the façade, an indoor canvas (2,340 m2) serving interior acoustic purposes, and interior coverings (930 m2) hiding building operations equipment. The high tensile strength fabric of the indoor and outdoor canvases was printed with digital press technique.
In the case of Danube Arena, it was a major
challenge to perform the accurate alignment of the split graphic design – given that the parts were made of fabrics with different stretching parameters. The manufacturing and installation processes needed to be completed on the same operating temperature and all parts installed on the same tension level to acquire the right strain. Due to the lacquer coating of the applied material and to the 3D structure, the facade seems to have different shades depending on the point of view and the angle of incidence between the sunlight and the surface in the current season. That’s what makes this modern building a part of the natural environment bordering the Danube in a harmonic way.
Graboplan Kft. 9027 Győr, Bútorgyári u. 4.
Tel.: (+36-96) 550 700
Fax: (+36-96) 318 153
E-mail: info@graboplan.hu www.graboplan.hu

EGYEDÜLÁLLÓ LED-FALAK A DUNA ARÉNÁBAN
Négy teljes napon és több éjszakán keresztül tartó programozás egy üres, olimpiai méretű úszómedence fenekén. Így készültek el a Duna Aréna különleges LED-berendezései.
A Gépbér-Színpad Kft. hét szakembere dolgozott azon, hogy a 2017-es úszó-világbajnokság központi helyszínén minden szögből optimálisan lehessen majd látni az aktuális futam versenyzőit, a végeredményeket és minden más fontos információt. Egyetlen más hazai uszoda sem rendelkezik ilyen típusú central scoreboarddal, így a csapat mindenképp egyedülállót alkotott.
Összesen 90 négyzetméternyi LED-fal került felhelyezésre. A négy, egyenként 22,5 négyzetméteres szerkezet különleges a hasonló hazai építmények között, ugyanis az átlagosnál jóval nagyobbak, a megszokott négyzet alakú berendezéseket pedig rombusz alakúra cserélték. A LED-falak fényereje 6000 NIT, így változó fényviszonyok mellett is kiválóan láthatók. Nagy hangsúlyt fektettek a minőségre is, mivel az uszodákban nem csak a vízpárától, de a klór hatásaitól és a korróziótól is védeni kell az ott felszerelt berendezéseket. Így esett a választás az alumíniumra, mely tökéletesen ellenáll a környezeti hatásoknak. A szerkezet statikusok által véleményezett és a szabványoknak megfelelő. Alacsony súlyának és a kiemelkedő minőségű függesztő motoroknak köszönhetően kevésbé terheli a szerkezetet.
A LED-berendezések mellett a GépbérSzínpad Kft. igyekszik széles körben kiszolgálni ügyfeleit. Termékeik és szolgáltatásaik között megtalálható a színpadgépészeti tervezés, gyártás és kivitelezés, de saját műhelyükben akár 17 méter széles, speciális tüllanyagokat is varrnak.
UNIQUE LED WALLS IN DANUBE ARENA
Programming for four entire days and several nights at the bottom of an empty Olympic-size swimming pool – that’s how the special LED apparatuses of Danube Aquatics were made. Seven experts of Gépbér-Színpad Kft. worked on making the race participants ever, the scoreboards and any other important pieces of information clearly visible from every angle at the central venue of the 2017 world swimming championships. No other domestic swimming pool has central scoreboards of this type: no doubt, the team has created something unique!
Altogether 90 m2 LED walls were installed. The four structures, of 22.5 m2 each, are special relative to their domestic peers in that they are much larger than the average size and the usual square-shaped apparatuses have been replaced by diamond-shaped ones. The LED

walls have 6000 NIT luminance, so they are excellently visible even under changing light conditions. Quality was given special emphasis, since the equipment installed at swimming pools must be protected not only from water vapour, but also the effects of chlorine and from corrosion. This is why aluminium, fully resistant to environmental effects, was chosen. Structural engineers deemed the structure appropriate and up to the relevant standards. Given its light weight and excellent-quality hanger engines, it exerts less stress on the structure.
In addition to the LED apparatuses, GépbérSzínpad Kft. does its best to provide broader-scale services to its customers. Its products and services include stage engineering design and execution, but they also sew special tulle fabrics of even 17 m width at their own workshop.
Gépbér-Színpad Kft 1095 Budapest, Hajóállomás u. 1. Tel.: (+36) 1 445 4815 E-mail: henrik.hably@gepberszinpad.hu www.gepberszinpad.hu Facebook.com/gepberszinpad

DUNA ARÉNA BELSŐ TEREI SZÁRAZÉPÍTÉSSEL
Az épület tervezésénél és kivitelezésénél is már a 21. század korszerű építéstechnikai kihívásait valósították meg. A belső terekben a legszigorúbb követelményeket kellett teljesíteni, és a fertőtlenítőszeres nedves takarításkor fellépő vegyi hatásokkal szembeni ellenállóságot is szükséges volt biztosítani. A kivitelezésben nagy kihívást jelentett az épület belső szerkezetének élettartamára vonatkozó, a lehetséges kategóriák közül a legmagasabb 15 év feletti állékonyság, használhatóság. A szárazépítés szerkezeteinek kivitelezését a vizes terekben már tapasztalatot szerző Gipsz-Color Kft. végezte. Magas szinten képzett előkészítő csapatával, illetve az Aquapanel cementkötésű lemezt gyártó Knauf Kft.-vel történő állandó kapcsolattal biztosította a minőségi kivitelezést a szárazépítés területén. A Duna Aréna esetében a nedves-vizes környezetbe beépíthető a szárazépítés technológiájára alapozott Aquapanel rendszer jelentette a legmagasabb, a jövő követelményeknek is megfelelő megoldást. A rendszer cementkötésű építőlemeze, kötőelemei, felületképző hézagoló anyagai és a „C3,C4,C5M” korrózióvédelmi követelményeknek is megfelelő vázrendszere biztosítja a penész, só, lug, sav állóságát és a környezetet nem terhelő pH-értéket, amelyen a penészgomba nem tud megtelepedni. A Gipsz-Color Kft. minőségi kivitelezésével és a Knauf Aquapanel rendszerével egy olyan esz-


tétikus és környezetbarát belső teret hozott létre, amelyet mindenki megelégedéssel és örömmel használhat a jövőben.
DRY CONSTRUCTION INTERIORS OF THE DANUBE ARENA
Modern achievements of the 21st century’s structural engineering were widely used in the course of the design and implementation of the arena. It was a must to comply with the most stringent requirements in the interior construction and ensure resistance to the chemical effects of disinfectants and wet cleaning. In the implementation process it was a big challenge to obtain top category stability and utility exceeding 15 years of durability for the interior construction elements. Wet room work experienced Gipsz Color Kft. implemented the structural parts of the dry constructions. The company ensured high quality implementation with the help of its highly qualified preparation team and by continuously consulting Aquapanel cement board manufacturer Knauf Kft. In the case of the Danube Arena, dry construction based, wet area compatible Aquapanel system was the solution that could fulfil the requirements of the future. With its cement boards, fasteners, jointing materials and C3, C4 and

C5M corrosion protection requirement fulfilling framework, the system could guarantee mould, salt, alkali and acid resistance and an environmentally harmless Hp value that prevents mould vegetation to grow on the structures. Using the Knauf Aquapanel System for the high quality implementation, Gipsz Color Kft. created an aesthetic and environmentally friendly interior everyone could be pleased and happy to use in the future.
Gipsz-Color Építőipari Kft. 1224 Budapest, Szakiskola utca 18/b
Tel.: (+36 1) 207 6181
Fax: (+36 1) 207 6182
E-mail: gipsz-color@gipsz-color.hu



A DUNA ARÉNA BELSŐÉPÍTÉSZETE

A CEU belsőépítészeti kivitelezését követően cégünk, a Kemabo Kft., újabb nagy kihívást jelentő beruházásban vállalt szerepet: a Duna Aréna belsőépítészeti kivitelezésére kaptunk megbízást a Market Építő Zrt.-től. Nagy feladat volt a különleges környezetre szabott, speciális anyagokból megtervezett egyedi belsőépítészeti termékek gyártása és szerelése, hiszen az uszodai környezetbe olyan időtálló anyagokból kellett elkészítenünk bútorainkat, mint a Fundermax cég által gyártott kompaktlemezek. E kompaktlemezek magas nyomású duromer laminált (HPL) anyaga lehetővé teszi a nagy igénybevételnek kitett bútorok és falburkolatok, valamint vizes helyiségekben elhelyezett elemek gyártását.
Az összességében 1500 m2 kompaktlemez megmunkálása sajátos gyártástechnológia kialakítását, új technológia kifejlesztését tette szükségessé. Az úszóarénában a Kemabo Kft. kivitelezésében készültek a fogadótér egyedi berendezései (recepció, büfé), a gyakorló- és versenymedencetér falaiba beépített kompaktlemez szekrények, a szurkolókat kiszolgáló lelátói büfék, a lépcső alatti tároló-szekrények, a konyhák, a konferencia terem, valamint a VIP-helyiségek berendezései is. A hatalmas projekt szakmai lebonyolítása Szabó Péter kollégánk munkáját dicséri.
Bízunk benne, hogy a végeredménnyel mind a Market Építő Zrt., mind a Megrendelő elégedett és reméljük, hogy a sportolók és szurkolók sok-sok évig használhatják majd ezt a rendkívül impozáns sportkomplexumot.
INTERIOR DESIGN IN DUNA ARENA
After the execution of the interior design tasks of CEU, our company, Kemabo Kft. assumed a role in another most challenging investment: Market Építő Zrt. tasked us to do the interior design works of Danube Arena. It was a major task to manufacture and assemble the unique interior products designed of special materials and fitted to the special environment: because of the swimming-pool environment, we had to make our furniture pieces of such durable materials as the compact plates manufactured by the Fundermax company. With the duromer high-pressure laminate (HPL) material of these compact plates, one can manufacture furniture and wall coverings exposed to high stress and/or installed in we areas.
Working with the compact plates of altogether 1,500 m2 required the development of a special manufacturing technology, the devel-
opment of a new technology. In the aquatics arena, Kemabo Kft. produced the unique pieces in the reception area (reception desk, snack bar), the compact-plate cabinets integrated in the walls of the training and the competition pool areas, the grandstand snack bars for the fans, the cabinets under the stairs, the kitchens, the conference room and the VIP premises. The professional management of the enormous project praises the work of our colleague Péter Szabó.
We sincerely hope that both Market Építő Zrt. and the Client will be satisfied with the results, and the sportspersons and fans will be able to use this exceptionally impressive sports complex for many years to come.
Kemabo Kft.
1037 Budapest, Bojtár u. 37.
Tel.: (+36-1) 453 3180
Mobil: (+36-30) 932 1237
E-mail: info@kemabo.hu www.kemabo.hu
A DUNA ARÉNA KÖRÜLI ZÖLD TERÜLET
Budapest egy rendkívül szép fekvésű területén született meg az a jelentős zöldfelület, amely a vizes világbajnokság eseményeit magába fogadó új uszoda komplexum épület együttesét öleli körül.
A Dagályfürdő meglévő kertjéhez szervesen kapcsolódva tágas terek jöttek létre, ahonnan gyönyörű kilátás nyílik a Duna hömpölygő vizére, a Hajógyári sziget évszázados fáira, valamint a tágan megnyíló városképre. Ideális megállópont lehet ez a jövőben az erre kerékpározóknak éppúgy, mint a sétálni vágyóknak.
Összefüggő pázsitfelületek nyújtanak teret a letelepedésre, amelyet a tájba és a tágabb városképbe illő fafajok tagolnak és ajándékoznak meg árnyas részletekkel. A tekintetet virágzó cserjék vonzzák magukhoz, amelyek körül hullámzik a nagy felületekben ültetett díszfüvek gazdag növényegyüttese.
A kiültetett növényanyag hangsúlyos elemeit a tájba illő, honos növények alkotják.
Cégünknek a stabil szakembergárda, valamint kiforrott alvállalkozói kör a biztosítéka annak, hogy partnereink megtisztelő bizalmá-
nak a továbbiakban is az elvárt minőségű és határidejű munkavégzéssel tudjunk megfelelni.
THE GREEN AREA AROUND THE DANUBE ARENA
The large green area around the newly built swimming complex hosting the World Aquatics Championships this year is situated in an exceptionally beautiful location in Budapest.
The area connects organically to the existing park of the Dagály Bath creating large open spaces with an extraordinary outlook on the flowing waters of the River Danube, the centennial trees of the Hajógyári Island, and the wide skyline of the city.
This will be an ideal stop for cyclists and other passers-by in the future.
Continuous lawn areas form an inviting place to settle down and admire the trees articulating the space and offering shaded areas. These trees were selected to harmonize with the tree composition of the city. Flowering shrubs catch the eye surrounded by orna-
mental grass species that form extended areas of vegetal richness.
The planted vegetation is characterized by endemic specimens consistent with the local environment.
Our solid team of professionals and proven pool of vendors are the best guarantee for the delivery on our partners’ trust that they should receive the quality they expect and timely completion of the work.
Harappa Kft. 1154 Budapest, Pöltenberg Ernő u. 95. Tel.: (+36-30) 944 6619
Email: harappakft@gmail.com www.harappakft.hu


AHOL AZ ÁTGONDOLT KONCEPCIÓ A KIVÁLÓ MINŐSÉGGEL TALÁLKOZIK.
AHOL A KÖZÜLETI PROJEKTEK TERÉN IS EGYEDI JEGYEK HOZHATÓK LÉTRE. AHOL AZ ÖTLETEK MEGKÜLÖNBÖZTETNEK A VERSENYTÁRSAKTÓL.
JAB ANSTOETZ KÖZÜLET - VALÓSÍTSA MEG VELÜNK AZ ELKÉPZELÉSEIT!




MINŐSÉG EXTRÉM KÖRÜLMÉNYEK KÖZÖTT IS

A nagyobb igénybevételnek kitett felületeken elengedhetetlenül fontos olyan burkolóanyag használata, amely minden komoly környezeti hatásnak kiválóan ellenáll, legyen az kültéren az időjárási-, beltéren akár a párás levegő okozta körülmény.
Ugyanilyen általános igény ma már az épületekkel kapcsolatosan, hogy kinézetükben ne csak megfeleljenek a kor sajátosságainak, hanem látványuk vizuális élményt jelentsen a külső szemlélő számára.
A TRESPA® Meteon és Virtuon termékek egyedi gyártástechnológiájának köszönhetően lehetővé vált, hogy olyan területeken alkalmazzuk a burkolóanyagot, ahol más, általánosan alkalmazott burkolatok nem tudják teljesíteni az előírt követelményeket. Így esett az építészek választása a Duna Aréna beltéri burkolatainak tervezése során – egyebek mellett - a TRESPA® termékekre. A speciális EBC2-technológiával készült HPL-lapok ellenállnak az erősen agreszszív (klóros, párás) környezetnek anélkül, hogy bármilyen kompromisszumra kényszerülnénk a termék esztétikai megjelenését illetően.
A TRESPA® gyár által szabadalmaztatott EBC- és EBC2-gyártástechnológia lehetővé teszi a fényes, matt és fényes-matt felületek előállítását úgy, hogy a burkolóanyagok felülete továbbra is zárt pórusú marad, ennek köszönhetően extrém módon ellenáll a környezeti hatásoknak, graffiti-álló és könnyen tisztítható.
TRESPA® burkolat igénybevett felületekre is Lambda Systeme Kft. Homlokzat Üzletág 1106 Budapest, Akna u. 2-4. Tel.: Gazdag Károly (+36 30) 279-1694
A Duna Aréna „bástya” burkolatai ezekből a váltakozóan fényes és matt fehér TRESPA®

lapokból kerültek kialakításra rejtett, ragasztott rögzítéssel, míg a lelátó mellvéd burkolata szintén TRESPA® lapokból készült rejtett, de bontható rögzítéssel, annak érdekében, hogy az üzemeltetést elősegítendő lehetővé váljon a burkolat időnkénti le- és felszerelése.
A mellékelt fotókon is látható termékekről bővebb információért kérjük, keresse fel a Lambda Systeme Kft. központi kirendeltségét, továbbá látogasson el a www.lambda.hu oldalra!
HIGH QUALITY EVEN IN EXTREME CIRCUMSTANCES
TRESPA® Cladding for Heavy Duty Use
For surfaces exposed to tough circumstances and use, it is essential to apply a type of cladding which will resist any serious environmental impact, let it be the weather outdoors or steamy air indoors.
Another general requirement towards today’s buildings is that they should not only meet the design requirements of their age but be visually appealing as well.
Thanks to the unique production technology of TRESPA® Meteon and Virtuon products, we can now even apply cladding in cases when other generally used cladding materials cannot fulfil the requirements. For this reason, architects picked among others the TRESPA® products for
the interior cladding of the Danube Arena. Our HPL panels were made using a special EBC2 technology, which enables them to resist highly aggressive environment (chlorine, steam etc.) without necessitating any compromises regarding the aesthetic appearance of the products.
The production technologies EBC and EBC2 are patented by the TRESPA® factory. They enable the production of shiny, matt and shinymatt surfaces, while the pores on the surface of the cladding material remain closed. As a result, the cladding is extremely resistant to environmental impacts, graffiti-proof and easy to clean.
The cladding of the “bastion” of the Danube Arena was made of these alternating shiny and matt TRESPA® panels with hidden glued fixation, while the bulwark cladding of the scaffolds is also made of TRESPA® panels with hidden but decomposable fixation to enable occasional dismounting and mounting of the cladding to make operation and maintenance easier.
For more information on the products displayed on the attached photos, contact the Lambda Systeme Kft. Headquarters or check our website at www.lambda.hu.
USZODAKOMPLEXUM PROJEKTBEN
Nagy örömünkre szolgált, hogy részt vehettünk a Market Építő Zrt. és KÉSZ Zrt. megbízásából a tűzvédelmi és korrózióvédelmi szakkivitelezési feladatok megvalósításában.
A KÉSZ Zrt. megbízásából korrózióvédelmi feladatokat végeztünk, a Market Építő Zrt. megbízásából pedig az acélszerkezetek komplex tűzvédelmi munkálatait végeztük el.
A szakkivitelezésünk 8 hónapja alatt 10-15 fővel képviseltettük magunkat a projekten. Nagyon magas tűzvédelmi igényeket határoztak meg a tervezők: 350 °C és 500 °C kritikus hőmérsékletre extrém, 500-4386 µm rétegvastagságú tűzgátló bevonatot írtak elő, amit 6000 kg tűzgátló bevonat és 2000 kg korrózióvédelmi anyag felhasználásával készítettünk el.
Cégünk 13 éves szakértelmével és szakmaiságával sikeresen vesz részt jelentősebb hazai építkezések tűzvédelmi feladatainak ellátásában. Megrendelőink számára a leghatékonyabb, leggazdaságosabb megoldásokat próbáljuk megtalálni a legújabb technológia és eszközök felhasználásával.
Főbb tevékenységi köreink:
•felület előkészítés szemcse- és homokszórással
•korrózióvédelmi festés (alapozó, közbenső, fedő bevonat)
•acél tűzgátló bevonatok forgalmazása, kivitelezése (R30, R45, R60, R90 - R180)
•felülvilágító, hő- és füstelvezető, füstkötény kivitelezése
•gépészeti, elektromos és egyéb átvezetések tűzszakaszolási lezárás, tömítés
•tűzgátló burkolatok készítése, dobozolás, kábeltálcák tűzvédelmének kialakítása
•tűzgátló nyílászárók beépítése
•tűzjelzők, riasztók gyengeáramú komplett kivitelezés és tervezése
•sprinkler kivitelezés
•tűzvédelmi rendszerek karbantartása (hőés füstelvezetők, tűzjelző, sprinkler)
•tűzvédelmi kivitelezési tanácsadás
További információk: www.flamstop.hu
OUR WORK IN THE DANUBE ARENA COMPLEX PROJECT
We were happy to take part in the fire and corrosion protection works of the project on the commission of Market Építő Zrt. and KÉSZ Zrt.
On the commission of KÉSZ Zrt. we implemented anti-corrosion duties while on the commission of Market Építő Zrt. we performed the complex fire protection of the steel structures.
We were present with 10-15 workers in the project during the 8 months of our participation. Very high fire protection standards were required for this construction: For the fireretardant coatings with 350°C and 500°C critical temperatures, extreme 500-4386 µm layer thicknesses were specified that we obtained using 6000 kg fire-proof coating material and 2000 kg corrosion-proof substance.
With its 13 years of expertise and professionalism, our firm takes part successfully in

many major construction projects in Hungary by performing fire protection duties. We seek to offer the most effective and economic solutions for our partners by using the latest technologies and equipment in our work.
Scope of activities:
•Surface preparation by abrasive blasting
•Corrosion-proof painting (primers, intermediate coats and finish coats)
•Trade and application of fire-retardant coats (R30, R45, R60, R90 - R180)
•Implementation of skylight windows, smoke and heat exhaust ventilators, and smoke barrier walls
•Sealing fire barrier wall penetrations
•Preparation of fire-resistant covers, casing, and fire protection of cable trays
•Installation of fireproof doors and windows
•Design and complete implementation of fire detector and fire alarm systems
•Fire sprinkler implementation
•Maintenance of fire protection systems (smoke and heat exhaust ventilators, fire detectors, sprinklers)
•Fire protection consulting
More information at: www.flamstop.hu
Flamstop Kft. 1112 Budapest, Tóberek u. 8. Tel.: 06/1-877-5959
E-mail: flamstop@flamstop.hu www.flamstop.hu

ÜVEGVILÁG AZ ARÉNÁBAN

A Liko-s 25 éve foglalkozik az épületek belső tereinek kialakítását elősegítő válaszfalak tervezésével, fejlesztésével, kivitelezésével. Ezen a szakterületen Európa több országában is a magas minőséget képviseljük évek óta.
A Duna Aréna tervezőivel egyeztetve sikerült a belső választófalakat optimálisan, az előírásoknak megfelelő műszaki tartalommal és anyagminőségben megterveznünk és kiviteleznünk. Figyelembe kellett venni a betonkonstrukció mozgását, ami komoly feladattá tette a csomópontok és konstrukciós részletek tervezését, így a hagyományos megoldások mellett új, speciálisan az Aréna projektre kifejlesztett konstrukciókat hoztunk létre.
A konferenciaterem kialakításánál a dupla üvegmodulokból előre gyártott, nagy léghanggátlást biztosító OMEGA 100.1 rendszerünket alkalmaztuk, amit egy konzolos acélkonstrukcióra történt rögzítetés nehezített, de a végeredmény egy impozáns üvegfal lett, amin keresztül nagyszerű a kilátás a külső-belső terekre, míg az üvegfal a medencetér felől a bemelegítőmedence szép térhatároló része is. A nagy felületű, akár 100 m2-t meghaladó üvegfelületek kialakítását a MICRA I rendszerünkkel oldottuk meg.
A napi szintű folyamatos egyeztetéssel, ütemezések meghatározásával és fokozott figyelemmel sikerült az ütemtervet tartani. Cégünk büszke, hogy részt vehetett ebben a nagyszerű projektben. Bizonyítottuk, hogy ennek a nemzetközi szintű, nagyszabású, speciális igényeket
kiszolgáló modern versenyuszodának a létrejöttéhez, az egyedi technikai és konstrukciós megoldások alkalmazásával sikeresen valósítottuk meg a beruházói, megrendelői igényeket, és reméljük, hogy megbízóink és a nagyközönség is elégedett a végeredménnyel.
Örömmel és önbizalommal várjuk az következő feladatokat, amiket szintén teljes odaadással fogunk kivitelezni.
GLASS WORLD IN DANUBE ARENA
Liko-s has been active in the design, development and execution of partition walls to create the interiors of buildings for 25 years. We represent high quality in this special field in several European countries.
In cooperation with the designers of the Aquatics Arena, we have managed to design and execute the interior partition walls of the Arena in an optimal way, with a technical content and material quality meeting the requirements. The movement of the concrete structure had to be taken into account, and that has made the design of the nodes and construction details a major task. Therefore, in addition to the traditional solutions, we have created new details specifically for the Arena project.
In the conference hall, we have applied our OMEGA 100.1 system that is prefabricated from double glass modules and provides considerable insulation from airborne sound, a task made more
difficult by the need to fix it on a cantilevered steel structure, but the outcome is an imposing glass wall offering a fine view of the indoor/outdoor area and acting as a beautiful space-delimiting object of the warm-up pool on the side of the pool area. The large-area glass walls, sometimes in excess of 100 m2, were made with our MICRA I system.
We have managed to comply with the time schedule by having daily consultations, working out a detailed timing scenario and paying increased attention. Our company is proud that it could take part in this magnificent project. We have demonstrated our ability to contribute to the creation of such an international-level, largescale modern competition pool complex meeting very special requirements through the use of unique technical and construction solutions to meet the investor and client requirements, and we sincerely hope that they as well as the public will be satisfied with the results.
We are looking forward with confidence to the next tasks that we will accomplish with the same full commitment.
LIKO-S, Kft. 1119 Budapest, Vahot utca 6. Tel.: (+36 70) 386 3727
E-mail: info@liko-s.hu
Web: www.liko-s.hu

HIBA VAGY LÁTVÁNYELEM?
A hazai közvélemény szerint a látszóbeton egy finom geometriai kialakítású és pólusoktól (kisebb lyukaktól) szinte teljesen mentes betonfelület. Valóban csak ilyen lehet a látszóbeton? A nemzetközi, de most már a hazai példák is mutatják, hogy nem.
A nemrég átadott Közép-európai Egyetem (CEU) látványbeton-felületeit ugyan nagy pontossággal készítették el, de a tervező építészeti koncepciója a felületi pólusok megnyitása volt. Ennek érdekében homokszórást alkalmaztak, így a szemlélő nem egy műanyaghatású szürke felületet lát. Az új látványelem megmutatja a beton természetes kőszerűségét, szabálytalan és rendezetlen formavilágát.
A Duna Aréna betonfelületei szerkezeti betonból készültek, nem volt elvárás a kizsaluzás utáni tömör textúra. A felületeket nézve szembesülünk az akár 1,5 cm-t meghaladó lyukacskákkal. A látvány azonban nem okoz csalódást az odalátogató közönségnek.
A végeredmény egy olyan látványosság, amely a beton természetes állapotát mutatja be.
A zsaluzatok elbontása után azonban nem mindenütt nézett így ki a felület. A zavaró geometriai eltérések finom csiszolásával, az élek vonalvezetésének kisebb pótlásával és természetesen a mindent harmonizáló, több-

rétegű betonlazúr felhordásával lehetett elérni a most érzékelhető hatást.
Az impozáns épületegyüttesben közel 2000 m2 látványbeton felület található, amelyek korrektúrája azt szemlélteti, hogy a látványbeton felületek javítása nem a bontás lehet, hanem a tervszerűen, szakszerűen végzett betonkozmetika: a BETONRETUS.
IS THAT A FLAW OR IS THAT PART OF THE DESIGN?
According to the widespread public opinion in Hungary, exposed concrete must have a fine geometric design and be virtually devoid of pores. Is that really the only look exposed concrete can have? The international (and recently some domestic) examples are showing the opposite.
The concrete finishes of the lately opened Central European University (CEU) building were made with great accuracy yet the architectural concept consisted in opening the pores of the surface. Sand spreading was applied for this purpose so the surface does not look like a big piece of plastic. This new design element exposes the concrete’s natural stonelike quality, and displays a set of irregular and unorganized forms.
The concrete coverings at Danube Arena were made of structural concrete and from which a solid texture after stripping was not required. You can see holes on the surface, some of them are bigger than 1.5 cm. And yet the sight of the façade disappoints no one visiting the building. The result is a spectacular structure displaying concrete in its natural state.
But the surface didn’t look like this right after the dismantling of the stripping parts. The effect we can see now was obtained by grinding off obtrusive geometric divergences, completing the edges to restore the contours, and, naturally, coating the concrete with multi-layer glaze.
The impressive building has more than 2,000 m2 of exposed concrete surface of which the corrections show that demolition and rebuilding is not the only method to recondition concrete – one can choose to perform systematic and expert concrete cosmetics: The CONCRETE RETOUCH.
LÁTVÁNYBETON KOZMETIKA BETONRETUS
Látványbeton Kft. 2000 Szentendre, Honvéd u. 6.
Tel.: (06 30) 9 344 580
E-mail: kapu@latvanybeton.hu www.latvanybeton.hu


Fotó: Kovács Gábor
ÜVEGÉPÍTÉSZET A DUNA ARÉNÁBAN

10 év alatt 12 Nívó-díj. Egyrészt a szakma részéről fontos visszajelzés ez cégünk, az OROSházaGLAS Kft. évtizedes munkájával kapcsolatban, de közvetve szakmaiságunkról, munkánk minőségéről, vagyis a piaci jelenlétünkről is üzennek ezek az elismerések. A hazai versenytársak közül műszaki felkészültségünkkel, kapacitásunkkal, termékkínálatunkkal és munkakultúránkkal egyaránt kitűnünk, de az évek óta zajló külföldi piacépítés is komoly sikereket hozott. Már a kezdetek óta nagyon fontos számunkra a fejlődés, fejlesztés, ezt tükrözi az is, hogy 20 ezer négyzetméteres gyártóbázisunkon az elmúlt évek beruházásainak köszönhetően a legfejlettebb technológia és legmagasabb minőség mellett zajlik a termelés.
Számos nagyberuházásban vettünk részt megalakulásunk óta, de a Duna Aréna projekt különösen kedves számunkra, ahol 6500 m2 összmennyiségben és 350 tonna össztömegben gyártottunk üvegszerkezeteket. Cégünk készítette az épület összes homlokzati nyílászárójához és függönyfalához a hőszigetelő üvegszerkezeteket, de vállalatunk gyártotta és kivitelezte az épület mintegy 800 folyóméternyi üvegkorlátját is. A nagyközönség számára igazán látványosnak tűnhetnek a medencetereket övező pontmegfogású dekor mintázott üveg-falburkolatok, melyet szintén az OROSházaGLAS Kft készített.
A megérkezés terében, vagyis az épület lobbijában a látogató nem csupán a printelt fóliával laminált dekor falburkolatainkban
gyönyörködhet, de büszkeségünkben, a födémáttöréssel létrehozott illúziókeltő „fénykútban” is, ami egyértelműen kortárs művészi eleme ennek a feszes funkciójú épületnek. A fénykút falait és a bemelegítőmedence terét a napozóterasszal összekötő vasbeton lépcső mellvédjét egyaránt az ún. Exyd-M rozsdamentes acéllemezzel burkoltuk be – ez az anyag abszolút újdonságnak számít Magyarországon.
GLASS ARCHITECTURE IN DANUBE ARENA
Twelve Construction Industry Awards for Excellence over 10 years. On the one hand, this is important feedback provided by the profession on the decade-long work of our company, OROSházaGLAS Kft. but, indirectly, these awards convey also a message concerning our professionalism, the quality of our work, that is, our market presence. We excel among our Hungarian competitors by our technical preparedness, capacity, product range and work culture, and our market-building efforts for years have also brought significant successes. Development in the active and passive sense has been very important for us from the start, as witnessed by the fact that, thanks to the investments of the past years on our 20 thousand m2 manufacturing base, manufacturing now takes place with the most advanced technology and at the highest quality level.
We have taken part in many large investments since our foundation, but the Danube Arena project where we manufactured glass structures in a total volume of 350 tonnes on 6,500 m2 is especially close to our heart. The company made the insulating glass structures for all the facade doors and windows and curtain walls of the building, and it has also manufactured and executed the glass railings, of around 800 lm. The public will find most spectacular the point-fixed glass-wall coverings with decorative patterns around the pool areas, also made by OROSházaGLAS Kft.
In the reception area, that is, the lobby, visitors will be delighted by our decorative wall coverings laminated with printed film, but also by our pride, the illusion-creating “light well” created by openwork in the ceiling, that is clearly a contemporary art element in this highly functional building. We covered the walls of the light well as well as the balustrade of the reinforced concrete stairway connecting the area of the warm-up pool and the sun terrace with the socalled Exyd-M stainless steel plate – this material is an absolute novelty in Hungary.
OROSházaGLAS Kft.
5900 Orosháza, Csorvási út 39.
Tel.: (+36 68) 419-419 I Fax: (+36 68) 419-429
E-mail: ohg@oroshazaglas.hu www.oroshazaglas.hu
A DUNA ARÉNA ÁRVÍZVÉDELME
A Duna Aréna épülete a Rákos-patak dunai torkolata mellett épült a Népfürdő utca és a Duna között. Az I. rendű árvédelmi védvonal eddig a Népfürdő utca mentén húzódott, azaz a Dagály Strandfürdő egész területe hullámtéri besorolású volt, s az árvízi elöntéssel szembeni védelmet egy nyárigát biztosította. Annak műszaki állapota és koronaszintje nem felelt már meg a védelmi követelményeknek, s ezért épült a szóban forgó terület új árvédelmi rendszere. Az uszodaépület építészeti koncepciója meghatározta a magassági telepítést, tágabb értelemben az új létesítmény környezetbe illesztését. Az épület alsó szintje igazodik a Dagály Strandfürdő rendezett terepszintjéhez, mely 2,60 m-rel alacsonyabban helyezkedik el a közelmúltban megemelt mértékadó árvízszinthez (MÁSZ= B104,90m) képest.
THE FLOOD PROTECTION OF DANUBE ARENA
Newly raised Danube Arena building is located at the mouth of brook Rákos flowing into the Danube between Népfürdő utca and the Danube. The primary line of defence had been running along Népfürdő utca putting Dagály Bath inside the floodplain. Back then, the flood protection of the facility consisted of a summer dyke of which the technical condition and height did not comply with the current protection laws thus had to be replaced by a new protection system. The architectural concept of the pool determined the height of the installation and, in a broader sense, that the facility had to be fitted into an environment. The first floor of the construction aligns with the adjusted ground level of Dagály Bath which lies 2.60 m under the recently increased highest flood level (HFL=B104.90 m).
Az új árvédelmi védvonal 10,00 m mélységű vízzáró vasbeton résfal alépítményű, melyre az uszoda környezetében vasbeton támfalak támaszkodnak, s azok mellvédfalként övezik az 5,00 m széles kerékpáros és gyalogos utat. A mellvédfal pereme a MÁSZ+1,30 m-es biztonsági szintre kiépített, ill. a Dagály strandrész előtt 2,20 m magas mobilfal-rendszer biztosítja az elöntéssel szembeni védelmet. Az uszoda és a Dagály Strandfürdő csapadék- és hulladékvizeit szállító közművek keresztezik az árvédelmi védvonalat a kettős zárás követelményéhez igazodóan. Az épület és a Rákospatak között nagyátmérőjű csatornák vezetik az Angyalföldi Átemelő telep csapadékvizeit a Dunába. Ezek az építkezés ideje alatt is zavartalanul üzemeltek a szerkezeti megerősítésből adódóan. Az új védvonalhoz komplett szivárgó rendszer is épült.
The new flood protection line consists of a 10.00 m deep watertight diaphragm wall substructure supported by ferro-concrete buttresses in the swimming pool’s area that constitute parapet wall for the 5.00 m wide pedestrian & cycling path. The edge of the parapet wall is established at a HFL+1.30 m high protection level that is completed with a 2.20 m high mobile wall system in front of the Dagály Bath providing protection against the flood. The utilities transporting precipitation and wastewater cross the defence line in accordance with double locking requirements. Between the building and the brook Rákos large diameter ducts are transporting the precipitation water of the Angyalföld Lifting Unit into the Danube, which were operating without interruption during the construction work thanks to their structural reinforcement. The new defence line received a full system of drainage as well.
Mélyépterv Komplex Zrt. 1012 Budapest, Várfok u. 14. Tel.: (+36 1) 214 03 80 Fax: (+36 1) 375 46 16 Email: komplex@melyepterv.hu www.melyepterv.hu



ABLAKRENDSZEREK A DUNA ÚSZÓARÉNÁBAN

Energiahatékonyság, biztonság és elegancia Az uszodakomplexum nyílászáróinak és függönyfalrendszereinek kiválasztásánál a legfontosabb szempont az energiahatékonyság, valamint a legmagasabb szintű biztonsági előírásoknak való megfelelés volt. Így eset a választás a be- és kiesésgátlási követelményeket maximálisan teljesítő, speciális teherbírású üvegezéssel ellátott (1, illetve 3 kN/m terhelésre méretezve) Schüco FW 50+ hőhídmentes függönyfalszerkezetre.
A rendszert a földszinten egyenes, az emeleten szegmensíves alaprajzi kialakítással építették be. A követelmények és rétegrendek meghatározása szimuláció alapján történt, mely alapján a méretezett üvegezés rétegfelépítése: 8.8.2 TVG-TVG VSG (3 kN/m terhelés esetén).
A nagyméretű üvegtáblák (pl. 2,3×3,6 m) esetén a hőszigetelő, jellemzően 3 rétegű üvegezés súlya elérte a 600 kg-ot, emiatt speciális, erre a célra konstruált beépítő gépet alkalmaztak a kivitelezést végző Nordikal Kft. munkatársai. Schüco FW 50+SG strukturális függönyfal FW 50+SG (Structural Glazing) strukturális függönyfalrendszer esetében a strukturális üvegezés optikája a tehertartó profilokat csak a belső térben engedi látszani. Kívülről pedig csak a tiszta üvegfelület és a filigrán fugatömítések láthatók. Ez a függönyfalszerkezet került beépítésre az aréna két liftjénél lévő a külső burkolat esetében, 2 rétegű üvegezéssel, üveg-üveg sarkokkal. A lift szervizajtói strukturális megjelenésűek, szárnyprofilra ragasztott üvegezéssel. Ezzel a technológiával oldották meg a szellőző funkciót valamint a jakuzzi feletti kis üvegdoboz kivitelezését is.
Schüco ajtó-és ablakrendszerek
A hő- és füstelvezetést a rendkívül sokrétű, kiváló hőszigetelésű Schüco AWS 70.HI ablakokkal

biztosítják, míg a légutánpótlást a nagy stabilitású, szintén kiváló hőszigetelésű Schüco ADS 70.HI ajtókkal. A menekülési útvonalakon pánikzáras menekülőajtók kerültek beépítésre a biztonságos kiürítés érdekében.
ALUMINIUM CURTAIN WALL AND WINDOW SYSTEMS AT DANUBE ARENA
Energy efficiency, security and elegance
The main criteria of the selection of the doors/ windows and the curtain wall systems of the aquatics complex were energy efficiency and compliance with the highest-level security requirements. That is why the SCHÜCO FW 50+ curtain wall system free of thermal bridging, meeting the fall-in and fall-out prevention requirements to the maximum and provided with special duty glazing was chosen (designed for 1 and 3 kN/m load, respectively).
The system was installed on the ground-floor according to a straight line, and on the first floor a curved segment floor-plan design. The requirements and layer orders were determined by simulation; accordingly, the dimensioned glazing layer structure is: 8.8.2 TVG-TVG VSG (at 3 kN/m load).
For the large-size (e.g. 2.3×3.6 m) glass panes, the weight of the typically 3-layer glazing attained 600 kg; therefore, the staff of Nordikal Kft. in charge of execution applied an installing machine constructed specifically for this purpose.
Schüco FW 50+SG structural curtain wall
The structural glazing optics of the FW 50+SG (Structural Glazing) curtain wall let the load-
bearing profiles be seen in the interior space only. From the outside, only the clear glass surfaces and the delicate joint seals are visible. Such a curtain-wall structure was installed as external covering at the two elevators of the arena, with 2-layer glazing and glass-glass corners. The elevator service doors have a structural appearance, with glazing laminated on the door leaf profiles. The same technology was used to solve the ventilation function and the execution of the small glass cube above the Jacuzzi. Schüco door and window systems
Heat dissipation and smoke extraction is ensured by the extremely versatile Schüco AWS 70.HI windows having excellent thermal insulation properties, and air supply is ensured by the ADS 70.HI doors with equally excellent thermal insulation properties. Along the escape routes, emergency doors with panic locks were installed to ensure safe evacuation.
Alukönigstahl Kft. 1047 Budapest, Baross u. 91-95. Tel.: (+36 1) 435-4000 I Fax: (+36 1) 435-4001
E-mail: office@alukoenigstahl.hu www.alukoenigstahl.hu
Nordikal Tervező és Szolgáltató Kft. 1113 Budapest Bartók Béla út 152. Tel.: (+36 1) 204-0052 I Fax: (+36 1) 204-0053
E-mail: iroda@nordikal.hu www. nordikal.hu
FORMATERVEZÉS ÉS ERGONÓMIA A LELÁTÓKON

A Pápai Asztalos Kft. fő profilja az egyedi belsőépítészeti bútorelemek gyártása és kivitelezése. A cég több mint 15 éve foglalkozik sportlétesítmények nézőtéri székeinek szállításával és szerelésével. Kizárólagos magyarországi forgalmazója a német Eheim Möbel GmbH termékeinek, így az FCB és ARC székcsaládnak is.
A több évtizedes partnerkapcsolat, közös termékfejlesztés és kooperáció eredményeként olyan kiemelt projekteket sikerült megvalósítani az elmúlt évek során, mint az FC Bayern München otthonául szolgáló, 66 000 fős Allianz Aréna székezése, a riói olimpia központi létesítménye, a 78 000 fő befogadására képes Maracanã Stadion vagy a legújabb büszkeség, a Wanda Metropolitano Stadion sportüléseinek szállítása. Ez utóbbi létesítmény idén júniusban kerül átadásra mind az Atletico Madrid, mind a 73 000 fős nézőközönség számára.
Az innovatív ARC székcsalád tökéletesen illeszkedik a Duna Aréna projekt magas fokú műszaki követelményeihez, a korrodálódásra hajlamos, agresszív uszodai környezetben is kifogástalanul megállja a helyét. A székcsalád tagjai megfelelnek a hatályos jogszabály szerinti tűzvédelmi előírásoknak, azok a nehezen éghető anyagok tűzveszélyességi osztá-
lyába sorolhatóak. Az ülések az átgondolt formatervezésnek és az automatikus felcsukódásának köszönhetően a biztonságos kiközlekedéshez megnövelt szabad átjárási lehetőséget kínálnak, még szűk sortávolság esetén is. Kiemelkedő ergonómiai tulajdonságaiból adódóan a székcsalád tagjai a maradandó élményhez komfortos környezetet biztosítanak a nézőközönség számára.
DESIGN AND ERGONOMICS ON THE GRANDSTANDS
The core activity of Pápai Asztalos Kft. is the manufacture and installation of unique interior design furniture. The firm has been active in the supply and installation of main stand seats for sports facilities for more than 15 years. It is the exclusive distributor in Hungary of the products, the FCB and ARC chair families included, of Eheim Möbel GmbH.
As a consequence of our decades-long partnership, joint product development and cooperation, we implemented such priority projects in the past years as the chairing of Allianz Arena, home of FC Bayern München, with a seating capacity of 66 000, the central institution of the Rio Olympics, Maracanã Stadium, with a capacity of 78 000, and we supplied
sports chairs to our most recent pride, Wanda Metropolitano Stadium. This last facility has been handed over to both Atletico Madrid and its audience of 73 000 in June this year. The innovative ARC chair line is a perfect match for the high-level technical requirements of the Danube Aquatics Arena project; a perfect solution also in the highly corrosionprone aggressive swimming-pool environment. The items of this chair product family comply with the fire protection provisions of the effective legislation; they are assigned to the class of ‘not readily flammable materials’. Thanks to their sound design and automatic closing function, they provide a free pathway even in narrow row pacing.
Given their outstanding ergonomic properties, the chair types concerned create a comfortable environment for the audience to have a memorable experience.
Pápai Asztalos Kft. 8500 Pápa, Kopja utca 11. Tel.: (+36 89) 324 988
Fax.: (+36 89) 310 170
E-mail: info@papaiasztalos.hu www.papaiasztalos.hu
MMCITÉ – A MINDENNAPJAINK DIZÁJNJA
Az utcabútorok a mindennapi életünk részét alkotják. Reggeleinket munkába vagy iskolába menet az utasváróknál töltjük, este a barátokkal a parkban egy padon ücsörgünk. Sokszor észre sem vesszük, hogy a formatervezés ezekben az eszközökben is megnyilvánul. Egy utcabútornak nemcsak a pihenést kell szolgálnia praktikusságával; esztétikusságával a teret is szebbé alakíthatja, ahová elhelyezték – így ösztönzi maradásra az embereket. A cseh mmcité vállalat több, mint húszéves tapasztalattal bír az utcabútorok tervezése, gyártása és forgalmazása terén. Leányvállalatainak és partnercégeinek köszönhetően az mmcité utcabútorai világszerte megtalálhatóak. „A városok közterületei lenyűgöző helyek, emberek és történelem találkoznak itt. Nagy öröm számunkra, hogy ezeken a helyeken érvényesíthetjük a dizájnunkat. Az emberek ízlését befolyásolhatjuk, és ez ösztönöz bennünket. Az utcabútorok segítségével megváltoztatjuk a városok arculatát.“ mondja David Karásek, az mmcité alapítója és formatervezője. Ennek bizonyítéka a budapesti Duna Aréna, amely a 2017-es FINA VB otthona lesz. Az mmcité padokkal, hulladékgyűjtőkkel, virágládákkal és forgalomterelő oszlopokkal járult hozzá a projekt sikeréhez.
Az mmcité referenciáiból kiemelkedik a budapesti Országház előtti Kossuth tér és környéke, ahol majdnem kétszáz kényelmes

Preva Urbana pad áll, amelyek a zöldfelületeket keretezik, illetve több tíz Lotlimit kerékpártároló is szolgálja a látogatók kényelmét.
Az mmcité „határai“ a Mont Blanc hegycsúcsától egészen az északi sarkkörön túlig érnek, így nem meglepő, hogy az mmcité nemrég elnyerte a nagy presztizsű Red Dot Design, a müncheni iF Design és a chicagói Good Design díjat is.
STREET FURNITURE AROUND DANUBE ARENA
Street furniture is part of our everyday life. In the morning we wait for the bus at a bus stop structure to go to work or school, and we hang out with friends sitting on a park bench in the evening. But we often do not realize that these object needs to be designed first to be there for us. A street furniture item does not only serve practical purposes but can also enhance the aesthetic character of the space it was placed in and make it inviting to stay longer. mmcité is a Czech company that has 20 year track record in street furniture design, manufacturing and trade. Due to our subsidiaries and partners all around the world mmcité street furniture has an international presence. “Urban public spaces are amazing places where people and history meet each
other. We are happy to contribute to these places with our designs. We can influence the common taste of the people and that’s a great drive for us. We can change the image of cities with our street furniture,” says David Karásek, founder and designer of mmcité. This was well proved by the furniture made for Danube Arena, the building that will host the FINA World Championships 2017. mmcité contributed to the project’s success with benches, bins, planters, and bollards.
The company’s works included the outstanding project of equipping the Kossuth Square located in front of the Hungarian Parliament with nearly 200 Preva Urbana benches framing the green areas and installing more than 10 Lotlimit bicycle racks increasing the comfort of the Kossuth Square-goers.
The limits of mmcité extends from the peak of Mont Blanc to far beyond the Arctic Circle thus it is no surprise that recently the company won the prestigious prizes of Red Dot Design, iF Design (Munich), and Good Design (Chicago) as well.
mmcité3 kft. 2045 Törökbálint, Bajcsy-Zsilinszky u. 83/3 Email: info@mmcite.hu www.mmcite.com


HULLADÉKGAZDÁLKODÁSBAN OTTHON
A GREEN COLLECT Kft. 2012-ben alakult vállalkozás. Cégünk az ipari vállalkozások által termelt és a különböző magasépítési és közlekedésépítési létesítmények kivitelezése során keletkező hulladékok begyűjtését, szállítását, kezelését végzi teljes körűen, illetve egyéb mélyépítési és közlekedésépítési munkák kivitelezésében vesz részt. Cégünk vezető munkatársai 15 éves tapasztalattal rendelkeznek a kivitelezésben, illetve az ipari és építőipari hulladékkezelés területén. Kiterjedt kapcsolatrendszerünknek köszönhetően az ország bármely pontján képesek vagyunk ügyfeleinknek komplex és kedvező árú szolgáltatást nyújtani. Társaságunk eddig is és a jövőben is elsődleges feladatának tekinti a partnerek maradéktalan kiszolgálását, üzletkörének és szolgáltatásainak. Cégünk végezte a Dagály strandfürdő területének részletes környezetvédelmi tényfeltárását, a feltárt szenynyezőanyagokra vonatkozóan emberi egészség és környezeti kockázatelemzésen alapuló határértékek meghatározását. Ugyancsak feladatunkat képezte a megvalósult létesítmény területén a terepszintbe süllyesztett, 10-11 méter talpmélységű monitoring kutak tervezése, létesítése is. Hasonló keretek között végeztük több és más, Budapesten létestesített iroda- illetve lakóingatlan mélyépítési
munkái során kitermelt szennyezett talajok elszállítását és hasznosítását.
Számos nagy, piacvezető ingatlanfejlesztő és generálkivitelező céggel jó kapcsolatokat ápolunk, partnereinknek gyors és költséghatékony megoldásokat tudjunk adni a felmerülő problémákra, a piacot folyamatosan követve a különböző szennyezettségű talajok kezelésével kapcsolatban.
ENVIRONMENTAL RISKS AND FACTS
GREEN
COLLECT Kft. Was established in 2012. Our company carries out the comprehensive process of collection, transportation, and treatment of waste generated by industrial companies during building construction and transport infrastructure developments and participates in the execution of other civil engineering and transportation development projects. Our company’s leading associates have a 15-year track record in construction as well as in industrial and construction waste management. Due to our extensive network of relationships we are able to provide our customers with our complex and inexpensive services throughout the entire country. Providing comprehensive service for
our partners and expanding our clientele and scope of business continues to be our number one priorities. In the Danube Aquatics Arena project, our company performed detailed environmental site assessment and set the limit values for the detected pollutants based on risk assessments regarding human health and environmental impacts. It was our job as well to blueprint and install ground recessed 10-11 meters deep monitoring wells on the grounds of the facility. In similar frameworks during civil constructions of office buildings and housing estates we carried out disposal and recycling of polluted soil several times. We keep good relations with many marketleading real estate developers and general contractors to offer our partners rapid and cost-efficient solutions for the arising problems related to the management of various kinds of polluted soil.
GREEN COLLECT Kft. 1073 Budapest, Erzsébet Krt. 50. I.em/3 Tel.:+36 1 782 3871
Mobil: (+36 30) 924 4901 I Fax: (+36 1) 782 4995 E-mail:greengroup.mt@gmail.com www.greencollect.hu

HIDEGBURKOLÁSI MUNKÁK A DUNA ARÉNÁBAN


A Ratskó-Bau Kft. 1998-ban, két magánszemély által alapított építőipari és fővállalkozási társaság. Fő profilunk a külső és belső hidegburkolatok kivitelezése, de igény szerint vállaljuk az anyagok beszerzését és a burkolati terv elkészítését is. Az általunk javasolt anyagokkal kivitelezett munkáinkra hosszú távú garanciát vállalunk. Mesterségbeli tudásunkat, a minőség iránti elkötelezettségünket a Duna Aréna kivitelezésekor is bizonyíthattuk, ez a munka vállalkozásunk életében igen jelentős. Az Aréna több szempontból rendkívüli kivitelezést jelentett, elsősorban a szűk időkeret és a volumen miatt. a kiegyenlítési és szigetelési munkálatokat követően az öt medence kialakításakor (verseny-, bemelegítő-, műugró-medence /és a hozzá tartozó melegítőmedence/, továbbá egy kisebb tanmedence és a jakuzzi) együttesen közel 30.000 m2 hidegburkolatot készítettünk el. Igazi kihívást jelentett, hogy a FINA előírásoknak megfelelően a medencék geometriai méretét milliméter pontossággal kellett elkészíteni és a medenceterekben a fugáknak tökéletesen kellett futniuk. Nehezítette a feladatot, hogy a vízzel érintkező hidegburkolatok fugázásához műgyanta bázisú epoxy fugát kellett alkalmaznunk, amely a termálvíznek, savaknak, a vegyszerezett víznek hosszú távon ellenáll. De említhetjük még a jakuzzi burkolását is, mert nagy szakmai próbatételt jelentett a tervezett
minta kirakása üvegmozaikból a két irányba görbülő felületre, de különleges volt a vasbeton műugró torony burkolása is, ott 1×1 cm-es fekete mozaikokkal dolgozunk.
Reméljük, hogy az elvégzett munkánk a Duna Arénában sokak számára válik hasznossá, illetve maradandó esztétikai élményt nyújt a jövő nemzedék számára is.
TILE CLADDING WORKS AT DANUBE ARENA
Ratskó-Bau Kft. is a construction and general contracting company founded by two private persons in 1998. Our main profile is external and internal tile claddings, but upon request we do also material procurement and cladding design. We give long-term warranty for our works executed with the materials proposed by us. Danube Arena, a significant work in the life of the firm, was another opportunity to demonstrate our professional skills and commitment to quality. The Arena required extraordinary execution in several respects, due mainly to the limited timeframe and the volumes involved. After the levelling and insulation works, we installed almost 30,000 m2 tile cladding to make of the five pools (competition, warmup and diving pool /and the warm-up pool associated with it/, and a smaller training pool
and jacuzzi). It was a real challenge to realise the geometric dimensions of the pools with mm accuracy, in line with the FINA requirements, and to align the grout between the tiles perfectly. The task was aggravated by the fact that resinbased epoxy grout characterised by long-term resistance to thermal water, acids and water treated with chemical substances had to be used for the tiles in direct contact with water. But we could mention also the jacuzzi cladding: it was a major challenge to execute the designed pattern of glass mosaics on a surface curved in two directions, but the cladding of the reinforced concrete diving tower was also special, because we worked with 1×1 cm back mosaic tiles there. We sincerely hope that the work we did at Danube Arena will be useful for many and will be an unforgettable aesthetic experience also for the generations to come.
Ratsko-Bau Épitőipari es Fővállalkozási Kft. H-1118 Budapest, Muskotaly utca 33. Mobil: +36 20 515 5574 E-mail: info@r-bau.hu www.r-bau.hu
MINDEN, AMI A RAJTKŐ ALATT VAN!
Feszített víztükör és munkatempó
Az elmúlt 80 év legnagyobb sportberuházásaként épült fel rekordidő alatt a Duna Aréna. A 2017-es nyári vizes világbajnokság központi épületének fővállalkozója, a Market Építő Zrt. az Uhrinwest Kft.-t is felkérte, hogy legyen részese ennek a nagyszabású vállalkozásnak A cég megtisztelő feladatnak tartotta és örömmel vállalta a beruházás földmunkáinak elvégzését. Közel 60 munkagépből álló gépparkjuk a felmerült igényeket maximálisan kielégíti, így nem okozott gondot számukra, hogy naponta több mint 1000 köbméter földet mozgassanak meg. A projekt sikere a munkafolyamatok összehangoltságában és a résztvevők hozzáállásában gyökerezett. A csapat sokszor megoldhatatlannak tűnő feladatok elvégzésével járult hozzá, hogy a szigorú, feszes határidőket betartva, a világszínvonalú munka elkészüljön.
A feladatra kiválasztott géptípusok mindegyike tradicionális, nagy múltú gyártók munkagépei. Nagy előnyükre szolgált, hogy a gépi földmunka teljes palettáját lefedő munkagépekkel rendelkeznek.
„Büszkeséggel tölt el minket, hogy részt vehettünk a Duna Aréna felépítésében. Fantasztikus volt jelen lenni ebben a nagyléptékű beruházásban, jó érzés belegondolni, hogy milyen sikeres sportolók népesítik majd be a komplexumot és versenyeiket akár ötmilliárd televíziónéző is láthatja világszerte” – mondta el Uhrin Sándor, a cég ügyvezető igazgatója. Hozzátette: „a csapat összehangolt és szakszerű munkájának is köszönhető, hogy a vizes sportokat tömörítő nemzetközi szövetség, a FINA ügyvezető igazgatója Cornel
Mărculescu elképesztőnek nevezte, hogy a magyar vállalkozók milyen gyorsan, idő előtt vitték véghez az általuk vállaltakat.”
Mindez bizonyítja, hogy az Uhrinwest Kft. nem véletlenül szerepel mintegy 10 éve meghatározó helyen a budapesti építőipari cégek között. A Duna Aréna felépítése azt üzeni: folyamatosan fejlődnek, és ahogy a cég szlogenje is mondja: egyre többet markolnak…
EVERYTHING BEYOND THE STARTING BLOCK
Pool without waves, work without halts
Danube Arena, the biggest sports development in 80 years, was built in record time. Market Építő Zrt., main contractor of the central building for the World Aquatics Championships summer 2017, invited Uhrinwest Kft. to be a part of this colossal undertaking.
The company felt honoured and took up the earthworks of the project. The firm’s machinery consisting of approximately 60 earthmovers met perfectly every need that emerged including the requirement to transport more than 1000 cubic meters of soil each day. The project’s success rooted in the well-coordinated work procedures and the right attitude of every participant. The company’s team contributed to this great performance achieved under strict deadlines by resolving seemingly hopeless problems.
The machine types selected for this task are all from producers with a prestigious name.

It was a great advantage that their machinery fully covered the whole range of motorized earthwork.
“It was an honour to participate in the construction of Duna Arena. It was amazing to be present in such a large-scale development. It feels good to think about that great athletes will fill the complex whose successes can be witnessed by up to 5 billion people around the world,” said Sándor Uhrin, executive director of the company. He added: “It is partly due to the team’s organized and professional work that, in the end, Cornel Mărculescu, Executive Director of the international body of water sports (FINA) could find it amazing that the Hungarian entrepreneurs had carried out their jobs with such a great speed and had been able to finish it before time”.
This proves very well that Uhrinwest Kft. has earned its position as one of the dominant construction companies of Budapest for about ten years now. The construction of Danube Arena carries a message about the company saying that the firm is developing constantly and as their slogan says – they keep grabbing more and more.
Uhrinwest Kft. 2141 Csömör, Páskom u. 0110/17
Tel.: (06-20) 807 4037
Email: iroda@uhrinwest.hu www.uhrinwest.hu


BURKOLATOK A DUNA ARÉNÁBAN

2015 nyarán a Dagály projekt elindulásával újra nagy feladat várt a V-Constructra. A tervezési fázistól a befejezésig jelen voltunk. Fő feladatunk ezúttal is a tervezői, megrendelői, kivitelezői igények összehangolt kiszolgálása volt burkolat témakörben. Olyan anyagokat kellett találni, melyek megfeleltek a műszaki elvárásoknak, illeszkedtek a költségvetésbe, esztétikailag kielégítették a tervezői és megrendelői igényeket. A gyártók és beszállítók kiválasztásánál legfontosabb szempont a megbízható, rugalmas hozzáállás, teljes körű szolgáltatási háttér. Hétről hétre követtük a kivitelezés menetét, egyeztettünk a szakiparokkal, így tudtuk pontosan tartani a határidőket.
Lévén, hogy reményeink szerint az úszókomplexum Magyarország egyik büszkesége lesz, igyekeztünk minél nagyobb mennyiségben magyar terméket bevinni a házba. Egyedi tervezői kéréseknek eleget téve, a Graboplast gyártotta a fitneszterületek sportpadlóit, az üzemeltetés irodáinak és öltözőinek PVC-burkolatait. Az ideiglenes lelátókra Grabo újrahasznosított PVC került. A gyár legújabb fejlesztése az LVTdesignpadló, melyet munkáinkon rendszeresen használunk. Különösen népszerűek a fahatású 185 x 1220 mm-es lapok.
A jacuzzi és az ugrótornyok burkolatait kiemelten kezeltük. Előbbihez a MOME tervezői a Sicis anyagait használták, utóbbi falait Bisazza mozaikok díszítik. Ez esetben szempont volt, hogy a burkolat különleges legyen, de megjelenésében visszafogott, semmiképpen ne csil-
logó, hogy közvetítésekkor ne zavarja a kamerákat, mégis impozáns látványt nyújtson. A végső megoldást az elegáns, matt fekete mezőbe rejtett fényes mozaikszemek jelentették, melyek csillanása vízcseppekre emlékeztetnek. Büszkék vagyunk az eredményre. Hajrá magyarok!
COVERINGS AT DANUBE AQUATICS ARENA
In summer 2015 V-Construct was facing another major assignment with the launch of the Dagály project. We have been present there from the design phase to completion. Our main task as usual was the concerted servicing of the designer, client and contractor requirements in the field of coverings. We had to find materials fulfilling the technical requirements, matching the budget and aesthetically up to the demands of the designers and the clients. The main criterion of the selection of manufacturers and suppliers was their reliable and flexible attitude and full-service background. We have monitored the construction process week on week, consulting with the representatives of the specialised industries, to be able to keep the deadlines.
Based on our hope that the aquatics complex would be one of the new wonders of Hungary, we strove to use the largest possible amount of Hungarian products there. Graboplast pro-
duced the sports floorings of the fitness areas and the PVC coverings of the operation offices and changing rooms, meeting the relevant special designer demands. The temporary stands are covered with Grabo recycled PVC. The latest development of the plant is the LVT design flooring that we regularly use for our works. LVT tiles of 185 x 1220 mm with a wood effect are particularly popular.
Special attention was given to the coverings of the jacuzzi and the diving towers. MOME designers used the materials of Sicis for the first, and the walls of the latter are decorated with Bisazza mosaic tiles to be special, but “muted”, definitely not glittering, lest they should interfere with the cameras during broadcasting, yet being an impressive sight. The ultimate solution was bright mosaic pieces hidden in a matte black background, glittering like drops of water. We are proud of the results. Go, Hungarians!
V-Construct Kft.
1097 Budapest, Mester u. 8a
Tel.: (+36 20) 384 0714



Fotó: Bujnovszky Tamás
Photo by Tamás Bujnovszky

BaBau Mérnökiroda k ft.
Az 1991-ben alapított cégünk fő profilja a műszaki ellenőri, építésbonyolítási és vezetési tevékenység. Jelentősebb műszaki ellenőrzéseink: Agip, BP, Shell, MOL töltőállomások itthon és külföldön is; SPAR és TESCO áruházak, valamint Vodafone átjátszóállomások itthon és külföldön egyaránt. A Market Építő Zrt.-nek 15 éve vagyunk alvállalkozói, amelynek során jelentős projektek megvalósulásának lehettünk részesei, mint az Audi és a Samsung gyárak, valamint a Duna Aréna.

According to its profile, our company founded in 1991 performs technical inspections, building implementation, and management activities. Our major technical inspections concerned the following facilities: Agip, BP, Shell and MOL filling stations in Hungary and abroad; SPAR and TESCO stores; and Vodafone repeaters in Hungary and abroad. During our 15 years as Market Építő Zrt’s vendor, we had the chance to participate in significant projects like the construction of the Audi and Samsung plants, and the building of the Danube Arena.
Mérnökiroda Kft.
1021 Budapest, Tárogató út 80.
Tel.: (+36-1) 200 8707
E-mail: babaukft91@gmail.com
CONTAINEX
A 2017-es FINA úszó-világbajnokságra a CONTAINEX a MARKET megbízásából mintegy 200 irodakonténert és 40 szaniterkonténert szállított. Ezek a konténerek az utóbbi 2 év kivitelezésénél iroda-, tárgyaló- és szaniterigényeket láttak el elsődlegesen. A CONTAINEX Európa piacvezetője a mobilis térrendszerek világában.



CONTAINEX delivered around 200 office cabins and 40 sanitary cabins commissioned by MARKET for the FINA World Championships. During the construction in the last two years, these containers served as offices, meeting rooms, and sanitary facilities. CONTAINEX is the leading European supplier for containers and mobile space systems.

CONTAINEX Container-Handelsgesellschaft m.b.H.
Cím: AT-2355 Wiener Neudorf, IZ NOE-Sued, Strasse 14
Telefon: (+36 1) 436 02 86
Fax: (+36 1) 436 02 87
E-mail: iroda@containex.com www.containex.hu




BaBau
Foto: Molnár Péter / Photo by Péter Molnár
Büszkék vagyunk arra, hogy a Market Építő Zrt. megbízásából olyan jól ismert épületek épületautomatika rendszerét is elkészíthettük, mint a Duna Aréna, a Groupama (FTC) Aréna,vagy az MTVA-székház és gyártóbázis.


Cégünk a T-Brass Kft. 1991-ben alakult. A kezdetek óta áll az építkezők rendelkezésére épületszerkezeti, külső és belső lakatosmunkák kivitelezésében és tervezésében. Kollégáink jól felkészült, egymást segítő szakemberek. Fő profilunk az egyedi tervezésű acélkorlátok, rozsdamentes korlátok gyártása, szerelése, de vállaljuk kerítések, kapuk lakás kiegészítő szerkezetek gyártását is. Ha egyedi terméket szeretne, segítünk ötletei megvalósításában.
A Wall Concept Kft. az angol gyártású, prémium kategóriás Muraspec vinyl tapétákkal vált ismerté a magyar piacon. Társaságunk 2007-ben alapult, 100%-ban magyar tulajdonú vállalkozásként. Tapétáink erős, mosható felülettel rendelkeznek, legtöbb termékünk tartalmaz biocit 3010 adalékanyagot, ezen kiváló tulajdonságainak köszönhetően került be termékünk a Duna Arénába egyedi nyomtatott kivitelben.
We are proud that upon commissions from Market Építő Zrt., we had the opportunity to construct the building management systems of such well-known buildings as the Danube Arena, the Groupama (FTC) Arena or the MTVA headquarters.
Our company, T-Brass Kft. Was established in 1991. It provides its structural, indoor and outdoor metal work design and implementation services to its builder customers since then. Our colleagues are qualified and cooperating professionals. Our main profile is manufacturing and installing custom design stainless steel railings, but we make fences and flat accessories as well. If you would like something unusual, we will help your idea come true.
ÉPÜLETLAKATOS MUNKÁK
T-Brass Kft.
1031 Budapest, Áldomás utca 39.
Tel.: (36-1) 250 2711
Fax: (36-1) 454 1341
E-mail: brass@brass.hu www.brass.hu
WALL CONCEPT KFT.
Wall Concept Kft. became renowned in the Hungarian market by distributing the premium category British-made vinyl wallpaper Muraspec. Our firm was founded in 2007, as a 100% Hungarian-owned company. The surface of our wallpapers is strong and washable. Most of our products contain biocide 3010. Thanks to the excellent properties of this additive, our products were chosen for the Danube Arena with a custom-made printed design.
Wall Concept Kft. H-1141 Budapest, Bosnyák utca 67. Tel.: (+36 30) 478 6509 www.muraspec.hu
1036 Budapest, Bécsi út 85.

www.wallconcept.hu
DIRICKX KERÍTÉS KFT.
Cégünk, a DIRICKX Kerítés Kft. 1997 óta a DIRICKX Groupe tagjaként végzi tevékenységét Magyarországon. Közel 20 éve építjük a DIRICKX márkanevet, amely napjainkban már meghatározó szerepet tölt be a magyarországi kerítésgyártás piacán. Nagy megtiszteltetésként érte cégünket, amikor a Market Építő Zrt. megbízásából kerítést építhettünk egy ilyen stratégiailag fontos komplexum köré. A Duna Arénához Axis DR táblás kerítésrendszert telepíttettünk, Axis márkanevű oszlopokkal és az új Allix erősített szárnyas kapukkal.

Our company, DIRICKX Kerítés Kft. is operating in Hungary as a member of DIRICKX Groupe since 1997. We have been building the DIRICKX brand name for almost 20 years now, and it occupies an important position in the market of Hungarian fence manufacturers today. We were greatly honoured to build a fence around such a strategically important complex on behalf of Market Építő Zrt. To the Duna Arena we have installed the Axis DR panel type fencing system with Axis pillars and the new Allix reinforced swing gates.
Dirickx Kerítés Kft.
1194 Budapest Hofherr Albert u. 3
Email: dirickx@dirickx.hu www.dirickx.hu
MUNKAVÉDELEM
„A mi munkánk az Ön biztonsága!”
A Huszár Team cégcsoport 1991 óta van jelen a munkabiztonság és tűzvédelem területén. A kezdetek óta sok tapasztalatot szereztünk nehéz- és könnyűipar, vegyipar, szállodaipar, vendéglátás és építőipar területén. 2005 óta képviseljük a Marketet, együtt növekedtünk és néztünk szembe az egyre nagyobb kihívásokkal. A Market mellett lehetőségünk volt olyan projekteken bizonyítani, mint az Origo Filmstúdió, Árkád 2 bevásárlóközpont, Groupama Aréna, Mohács Pick Vágóhíd, Duna Aréna és még sok más érdekes beruházás. Mára már 20 fős csapatunk dolgozik azon, hogy a Market munkavédelmi alapelveit minden építkezésen dolgozó betartsa. Az úszóaréna kivitelezésén kihívást jelentett a magasban végzett munkálatok felügyelete, a tetőemelés és tetőn történő biztonságos szerelések, területen egyszerre dolgozó 800-900 fő összehangolása, koordinálása, emellett 7 toronydaru és 14 autódaru munkájának biztonságos összehangolása.
OCCUPATIONAL HEALTH AND SAFETY
“Our job is to ensure your safety.”
Huszár Team has been in the business of occupational safety and fire protection since 1991. We have been Market’s representative in projects like the construction of the Origo Film Group, the Groupama Arena, the Danube Arena, etc. Our team now has 20 members whose work is to ensure everyone’s OHS compliance on the construction sites. At the aquatics arena construction, the major challenges we encountered included work at heights, the coordination of 800-900 people simultaneously working on the site as well as the synchronization of the 7 tower cranes and the 14 mobile cranes to operate safely together.
Huszár Team Kft 2051 Biatorbágy Pf. 201.
Email: info@vedosipka.hu
Tel: (+36 30) 788 6664 www.vedosipka.hu

I+D ÉPÍTŐIPARI BT.
A vállalkozás 2014-ben alakult közel 20 éves műkőkészítő és épületszobrász tapasztalattal. Működésünk első évében sikerült kapcsolatot teremteni a Market Zrt.-vel. Látványbeton feladatra kaptunk megbízást. Ez a kapcsolat azóta is folyamatos. Tevékenységi köreink: Műkő és egyedi látványbeton termékeke gyártása, műemlékhomlokzatok restaurálása, síremlékek készítése, betonbútorok gyártása, épületszobrász termékek gyártása.

The enterprise was established in 2014, with 20 years of artificial stone maker and architectural sculpture experience. We have managed to establish contact with Market Zrt. in our first year of operation. We were entrusted with an architectural concrete job. Our relationship has been uninterrupted ever since. Our main lines of activity are: manufacture of artificial stone and unique architectural concrete products, restoration of monument facades, manufacture of tombs, concrete furniture, and architectural concrete products.
7351 Máza, Szabadság u. 7/b. Tel.: (+36-30) 924 7322

Cégünk gyorsan fejlődő és terjeszkedő építőipari vállalkozás. Célunk olyan lakó- és középületek építése, felújítása, korszerűsítése és árnyékolástechnikai tervezése-kivitelezése, melyek alacsony energiafelhasználás mellett maximális komfortot biztosítanak a lakók és felhasználók számára a környezettudatosságot is szem előtt tartva. A Tüskecsarnok és a Duna Aréna építésében is részt vettünk.

MERKON
A MARKET Építő Zrt.-vel megkötött keretszerződés alapján a Budapest, XIII. kerület, Népfürdő utca, Dagály Projekt munkaterületén képződő építési- és bontási hulladékok konténeres elszállítását a MERKON KFT. végezte. A hulladékok hasznosításra történő elszállítása korszerű tehergépjárművekkel, az ISO 9001:2008 és az ISO 14001:2004 Minőségés Környezetirányítási Rendszernek megfelelően történt.

We are a rapidly developing and expanding company. Our objective is to construct, renovate and modernize residential and public buildings and to design and implement shading technology systems providing residents, tenants, and other users with maximum comfort and environmentally aware, low energy solutions. We took part in the construction of the Tüskecsarnok, and the Danube Arena as well.
Kanász Építő Kft.
2162 Őrbottyán, Kossuth u. 42. Tel.: (+36 70) 366 1211
E-mail: kanaszepito@kanaszepito.hu www.kanaszepito.hu

Market Zrt. contracted MERKON Kft. for the transportation of the construction and demolition waste generated by the Danube Arena project at the Dagály Bath in Népfürdő Street. The waste was placed in dumpsters and removed by modern trucks to be recycled. The operation was performed in accordance with the ISO 9001:2008 and ISO 14001:2004 Quality and Environmental Management Systems.
MERKON KFT.
H-1184 Budapest, Lakatos út 61-63.
Telefon: (+36 1) 291 7070
E-mail: merkon@merkon.hu www.merkon.hu

AKUSZTIKA&DESIGN
www.akusztikdizajn.hu
Az Akusztika&Design a tervezések során felmerülő, akusztikai problémákra optimális megoldást nyújtó, Heraklith fagyapot termékeket népszerűsítő weboldal. A hangelnyelő és hangszigetelő Heraklith lapok fajtáinak részletezésén túl, megvalósult projektek bemutatásával nyújt felhasználási ötleteket az épületakusztika, teremakusztika, ill. a zajcsökkentés területein. A finom szálazású fagyapot táblák belsőépítészeti alkalmazására is számos példát bemutató oldal nem titkolt célja, a Heraklith táblák látszó felületeken, dizájn elemként történő népszerűsítése.

Akusztika&Design is a website offering optimum solutions for acoustics problems encountered during design, promoting Heraklith wood wool products. Besides the detailed description of the sound-absorbing/sound-proofing Heraklith board types, it gives ideas as to their use in the fields of building and room acoustics and noise abatement by presenting already implemented projects. The site showing several examples of using the fine-threaded wood wool for interior decoration purposes makes no secret of its objective, i.e. to promote using Heraklith boards on visible surfaces as design elements. The designer database displayed on the site gathers the data of the known and renowned designers of the country, their reference works and access data, offering thereby complete service packages to visitors interested in the topic.
www.akusztikdizajn.hu
Celsius Építőanyag-Kereskedő Kft. 1139 Budapest, Váci út 85.
ACÉLSZERKEZET-GYÁRTÁS
KÉSZ CSOPORT
1095 Budapest, Mester utca 87.
Tel.: (+36-76) 515 200
Fax: (+36-76) 801 510
E-mail: kesz@kesz.hu
Web: www.kesz.hu 192-209. old.
ALUMÍNIUM NYÍLÁSZÁRÓK KÉSZÍTÉSE NORDIKAL TERVEZŐ
ÉS SZOLGÁLTATÓ KFT.
1113 Budapest Bartók Béla út 152. Tel.: (+36 1) 204 0052
Fax: (+36 1) 204 0053
E-mail: iroda@nordikal.hu Web: www.nordikal.hu 293. old.
ÁRNYÉKOLÁSTECHNIKA, GENERÁLKIVITELEZÉS
KANÁSZ ÉPÍTŐ KFT.
2162 Őrbottyán, Kossuth utca 42. Tel.: (+36-70) 366 1211
E-mail: kanaszepito@kanaszepito.hu Web: www.kanaszepito.hu 305. old.
BELSŐ ÜVEGFALAK
LIKO-S KFT. 1119 Budapest, Vahot utca 6. Tel.: (+36-70) 386 3727
E-mail: info@liko-s.hu Web: www.liko-s.hu 289. old.
BELSŐÉPÍTÉSZETI KIVITELEZÉS KEMABO KERESKEDELMI MARKETING ÉS BONYOLÍTÓ KFT. 1037 Budapest, Bojtár u. 37. Web: www.kemabo.hu 284. old.
BETON- ÉS VASBETONELEM ELŐRE GYÁRTÓ FERROBETON ZRT.
2400 Dunaújváros, Papírgyári út 18-22.
E-mail: vallalkozas@ferrobeton.hu Web: www.ferrobeton.hu 258-259., 268. old.
BETONGYÁRTÁS ÉS FORGALMAZÁS CRH MAGYARORSZÁG KFT.
1138 Budapest, Madarász Viktor utca 47-49. Tel.: (+36-1) 472 5000
E-mail: kapcsolat@hu.crh.com Web: www.crhhungary.com 254-255. old.
BURKOLATOK ARCHI-RO KFT.
9021 Győr Amadé László u. 1.
Mobil: (+36-20) 964 4334
Tel.: (+36-96) 517 017
Fax: (+36-96) 517 019
E-mail: fekete.roland@buchtal.hu Web: www.buchtal.hu 275. old.
BÚTOR
VITRA BÚTOROK MAGYARORSZÁGI FORGALMAZÓJA – DOWORK KFT. 1025 Budapest, Szépvölgyi út 146. Tel.: (+36-1) 489 3860
Mobil: (+36-30) 248 2342
Fax: (+36-1) 212 8339
E-mail: dowork@dowork.hu Web: www.dowork.hu 214-217. old.
EGYEDI BELSŐÉPÍTÉSZETI BÚTORELEMEK GYÁRTÁSA ÉS KIVITELEZÉSE PÁPAI ASZTALOS KFT.
8500 Pápa, Kopja utca 11.
Tel.: (+36-89) 324 988
Fax.: (+36-89) 310 170
Web: www.papaiasztalos.hu
E-mail: info@papaiasztalos.hu 294. old.
ESZTÉTIKAI FÉMBURKOLATOK TERVEZÉSE, KIVITELEZÉSE ÉS GYÁRTÁSA ARC DESIGN KFT.
1095 Budapest, Mester u. 87. Tel.: (+36-1) 476 6500
Fax: (+36-76) 801 515
E-mail: zalaib@arc-design.hu Web: www.arc-design.hu 250-251. old.
ÉPÍTÉSZETI- ÉS DESIGNBETONGYÁRTÁS IVANKA FACTORY & DESIGN SERVICES
2000 Szentendre, Kalászi út 3.
Tel.: (+36-20) 398 5511
E-mail: info@ivankaconcrete.com Web: www.ivankaconcrete.com 270. old.
ÉPÍTÉSZETI SZIGETELŐANYAGOK, IPARI, ÉPÜLETGÉPÉSZETI SZIGETELÉSEK, SZÁRAZÉPÍTÉSI RENDSZEREK, HAGYOMÁNYOS ÉPÍTŐANYAGOK FORGALMAZÁSA
LAMBDA SYSTEME KFT.
1106 Budapest, Akna u. 2-4.
Tel.: (+36-30) 279 1694
E-mail: lambda@lambda.hu
Web: www.lambda.hu 287. old.
ÉPÍTŐIPARI KIVITELEZÉS UHRINWEST KFT.
2141 Csömör, Páskom u. 0110/17. Tel.: (+06-20) 807 4037
E-mail: iroda@uhrinwest.hu Web: www.uhrinwest.hu 298. old.
ÉPÍTŐLAKATOS MUNKÁK
T-BRASS KFT.
1031 Budapest, Áldomás u. 39.
Telefon: (+36-1) 250 2711
E-mail: brass@brass.hu
Web: www.brass.hu 303. old.
ÉPÜLETAUTOMATIZÁLÁS
WELLTECH ZRT.
1036 Budapest, Bécsi út 85.
Tel.: (+36-1) 250 8210
Fax: (+36-1) 250 3304
E-mail: info@welltech.hu Web: www.welltech.hu 303. old.
FALI- ÉS MELEGBURKOLATOK FORGALMAZÁSA
WALL CONCEPT KFT.
1141 Budapest, Bosnyák utca 67.
Tel.: (+36-30) 478 6509
Web: www.muraspec.hu 303. old.
FÉM- ÉS MŰANYAG NYÍLÁSZÁRÓ ÉS
ÉPÜLETBURKOLÓ RENDSZEREK FORGALMAZÁSA
ALUKÖNIGSTAHL KFT.
1047 Budapest, Baross u. 91-95.
Tel.: (+36-1) 435 4000
Fax: (+36-1) 435 4001
Email: office@alukoenigstahl.hu Web: www.alukoenigstahl.hu 293. old.
FITNESS- ÉS WELLNESS TERMÉKEK
FINN WELLNESS KFT.
1037 Budapest, Szépvölgyi út 63/a
Tel.: (+36-1) 250 4177
E-mail: info@finnwellness.hu Web: www.finnwellness.hu 252-253. old.
FÖLDMUNKA, ÚT- ÉS KÖZMŰÉPÍTÉS
OK BAU KFT.
1037 Budapest, Bojtár u. 53. Tel.: (+36-1) 883 0238
Fax: (+36-1) 700 2325
E-mail: okbau@okbau.hu Web: www.okbau.hu 182-189. old.
GARÁZSKAPUK, AJTÓK, IPARI KAPURENDSZEREK FORGALMAZÁSA HÖRMANN HUNGÁRIA KFT.
2310 Szigetszentmiklós, Leshegy u. 15. Tel.: (+36-24) 525 100 Fax: (+36-24) 525 110
E-mail: info@hormann.hu Web: www.hormann.hu 262-263. old.
GENERÁLKIVITELEZÉS
MARKET ÉPÍTŐ ZRT.
1037 Budapest, Bojtár u. 53.
Tel.: (+36-1) 279 2727
Fax: (+36-1) 466 4827
E-mail: marketiroda@market.hu Web: www.market.hu B2, 16-23., 36-51., 306-307. old, B4
HIDEG- ÉS MELEGBURKOLATOK KERESKEDELME V-CONSTRUCT KFT.
2096 Üröm, Kárókatona u. 3/k/b
Tel.: (+36-30) 415 6382
E-mail: info@v-construct.hu
Web: www.v-construct.net 299. old.
HERAKLITH FAGYAPOT TERMÉKEKET NÉPSZERŰSÍTŐ WEBOLDAL CELSIUS ÉPÍTŐANYAG-KERESKEDŐ KFT. AKUSZTIKA&DESIGN
1139 Budapest, Váci út 85. www.akusztikdizajn.hu 305. old.
HOMLOKZAT, BELTÉR, PADLÓBEVONAT
STO ÉPÍTŐANYAG KFT.
2330 Dunaharaszti, Jedlik Ányos u. 17.
Tel.: (+36-24) 510 210
Fax: (+36-24) 490 770
E-mail: info.eu@sto.com
Web: www.sto.hu 274. old.
HOMLOKZATI ÉS IPARI ÁLLVÁNYOZÁS GEMENC ÁLLVÁNYOZÓ KFT.
7020 Dunaföldvár, Baross dűlő 50.
Tel.: (+36-30) 835 6211
E-mail: morvane.deszter@gmail.com
Web: www.allvanyberles.com 279. old.
HŐ- VÍZ-ÉS HANGSZIGETELŐ ANYAGOK FORGALMAZÁSA
CELSIUS ÉPÍTŐANYAG-KERESKEDŐ KFT. Iroda/Levelezési cím: 1139 Budapest, Váci út 85.
Tel.: (+36-1) 474 0817
Mobil: (+36-30) 227 7646
Fax: (+36-1) 474 0818
E-mail: info@celsiuskft.hu
Web: www.celsiuskft.hu 280. old.
HULLADÉKSZÁLLÍTÁS, ÉPÜLETBONTÁS, FÖLDMUNKA MERKON KFT. 1184 Budapest, Lakatos út 62-63. Tel.: (+36-1) 291 7070
Fax: (+36-1) 291 7070
E-mail: merkon@merkon.hu
Web: www.merkon.hu 305. old.
HŰTÉS- ÉS KLÍMATECHNIKA CLH HŰTÉS- ÉS KLÍMATECHNIKAI KFT.
1149 Budapest, Pillangó utca 28.
Tel.: (+36-1) 467 2790
Fax: (+36-1) 467 2791
E-mail: info@clh.hu
Web: www.clh.hu 248-249. old.
KKBK
Kiemelt Kormányzati Beruházások Központja Nonprofit Zrt. 1027 Budapest, Horváth utca 12-26.
Tel.: (+36-1) 445 4501
E-mail: info@kkbk.hu 8-13., 26-33. old.
KERTÉPÍTÉS DIRICKX KERÍTÉS KFT. 1194 Budapest, Hofherr Albert u. 5. Tel.: (+36-1) 336 3100 Fax: (+36-1) 326 1820
E-mail cím: dirickx@dirickx.hu
Web: www.dirickx.hu 304. old.
KÜLSŐ ÉS BELSŐ HIDEGBURKOLATOK KIVITELEZÉSE RATSKO-BAU ÉPÍTŐIPARI ÉS FŐVÁLLALKOZÁSI KFT. 1118 Budapest, Muskotály utca 33. Mobil: (+36-20) 515 5574
E-mail: info@r-bau.hu Web: www.r-bau.hu 297. old.
KONTÉNER FORGALMAZÁS CONTAINEX GMBH.
AT-2355 Wiener Neudorf, IZ NOE-SÜD, Strasse 14.
Tel.: (+36-1) 436 0286
Fax: (+36-1) 436 0287
E-mail: daniel.balazs@containex.com
Web: http://www.containex.hu 302. old.
KÖRNYEZETVÉDELEM, ÉPÍTŐIPAR
GREEN COLLECT KFT.
1073 Budapest, Erzsébet Krt. 50.I. em./3
Telefon: (+36-20) 924 4901
Fax: (+36-1) 782 4995
E-mail: greengroup.mt@gmail.com 296. old.
LAKÁSTEXTILEK, PADLÓSZŐNYEG, TAPÉTA, KARNIS, SZALAGFÜGGÖNY, LAPFÜGGÖNYÖK FORGALMAZÁSA
JAB JOSEF ANSTOETZ KG
MAGYARORSZÁGI KÉPVISELET
1126 Budapest, Agárdi út 3/B
Tel.: (+36-1) 235 6050
Fax: (+36-1) 235 6058
E-mail: sales-hu@jab.de Web: www.jab.de 286. old.
LÁTVÁNYBETON KOZMETIKA BETONRETUS LÁTVÁNYBETON KFT.
2000 Szentendre, Honvéd u. 6.
Tel.: (+06-30) 9344 580
E-mail: kapu@latvanybeton.hu
Web: www.latvanybeton.hu
290. old.
KERTÉPÍTÉS, ÖNTÖZŐRENDSZEREK TELEPÍTÉSE
HARAPPA KFT.
1147 Budapest, Gervay u. 97/a.
Tel.: (+36-30) 944 6619
E-mail: harappakft@gmail.com Web: www.harappakft.hu 285. old.
LED-BERENDEZÉSEK, SZÍNPADGÉPÉSZETI TERVEZÉS, GYÁRTÁS ÉS KIVITELEZÉS GÉPBÉR-SZÍNPAD KFT.
1095 Budapest, Hajóállomás u. 1.
Tel.: (+36-1) 445 4815
E-mail: henrik.hably@gepberszinpad.hu Web: www.gepberszinpad.hu 282. old.
LÉGTECHNIKAI GYÁRTÓ LINDAB KFT.
2051 Biatorbágy, Állomás út 1/a
Tel.: (+36-23) 531 300
Fax.: (+36-23) 310 703
E-mail: info.vent@lindab.com Web: www.lindab.hu 272. old.
MIGUA DILATÁCIÓSPROFILOK FORGALMAZÁSA
BMI BALÁZS MÉRNÖKIRODA KFT.
2038 Sóskút, Ipari Park hrsz. 3508/23
Telefon: (+36-23) 919 164
Fax: (+36-23) 919 165
E-mail: office@bmi.co.hu
Web: www.bmi.co.hu 278. old.
MINŐSÉGI BETON TÉRBURKOLAT GYÁRTÁS SEMMELROCK STEIN+DESIGN BURKOLATKŐ KFT.
2364 Ócsa, Bajcsy-Zs. út 108.
Tel.: (+36-29) 578 112
Fax: (+36-29) 578 119
E-mail: info@semmelrock.hu Web: www.semmelrock.hu
247. old.
MÉLYÉPÍTÉS
BOHN MÉLYÉPÍTŐ KFT.
1126 Budapest, Kiss János altábornagy u. 11. 1. em.
Tel.: (+36-1) 224 0011; 225 7252
E-mail: bohn@bohn.hu Web: www.bohn.hu 273. old.
MUNKAVÉDELMI, TŰZVÉDELMI SZAKÉRTÉS HUSZÁR TEAM KFT.
8086 Felcsút, Szári utca 7. Tel.: (+36-30) 788 6664
E-mail: info@vedosipka.hu Web: www.vedosipka.hu 304. old.
MŰKŐ ÉS EGYEDI LÁTVÁNYBETON TERMÉKEK GYÁRTÁSA, MŰEMLÉKHOMLOKZATOK RESTAURÁLÁSA, SÍREMLÉKEK KÉSZÍTÉSE I+D ÉPÍTŐIPARI BT.
7351 Máza, Szabadság u. 7/b Tel.: (+36-30) 924 7322
E-mail: muki7806@gmail.com 304. old.
MŰSZAKI ELLENŐRZÉS, ÉPÍTÉS BONYOLÍTÁS ÉS VEZETÉS BABAU MÉRNÖKIRODA KFT. 1021 Budapest, Tárogató út 80. Tel:: (+36-1) 200 8707
E-mail: babaukft91@gmail.com 302. old.
MŰSZAKI TERVEZÉS MÉLYÉPTERV KOMPLEX ZRT. 1012 Budapest, Várfok u. 14. Tel.: (+36-1) 214 0380 Fax: (+36-1) 375 4616
E-mail: komplex@melyepterv.hu Web: www.melyepterv.hu 292. old.
PROFESSZIONÁLIS KONYHATECHNOLÓGIA KENDE GASTRO ZRT.
1117 Budapest, Budafoki út 64.
Tel.: (+36-1) 211 2266
E-mail: info@kendegastro.hu Web: www.kendegastro.hu 271. old.
PVC, TEFLON, SZILIKON BEVONATOS MŰSZAKI TEXTÍLIÁKBÓL KÉSZÜLŐ TETŐ-, ILLETVE HOMLOKZATI LEFEDÉSEK GRABOPLAN KFT.
9027 Győr, Bútorgyári u. 4.
Tel.: (+36-96) 550 700
Fax: (+36-96) 318 153
E-mail: info@graboplan.hu
Web: www.graboplan.hu 281. old.
REKLÁMELEMEK GYÁRTÁSA
ALUSTART FÉNYREKLÁM KFT.
6800 Hódmezővásárhely, Rárósi út 116.
Tel.: (+36-62) 533 460 /470
Fax: (+36-62) 533 461/471
E-mail: info@alustart.hu
Web: www.alustart.hu 302. old.
SZÁRAZÉPÍTÉSZET
BAKART KFT.
8163 Csajág, Kossuth u. 125.
1115 Budapest, Fejér Lipót köz 7.
Tel.: (+36-1) 205 3587
Fax.: (+36-1) 205 3588
E-mail: bakartiroda@bakart.hu
Web: www.bakart.hu 276. old.
GIPSZ-COLOR ÉPÍTŐIPARI KFT.
1224 Budapest, Szakiskola utca 18/b
Tel.: (+36-1) 207 6181
Fax: (+36-1) 207 6182
E-mail: gipsz-color@gipsz-color.hu 283. old.
SZÁRAZÉPÍTÉS, SZIGETELÉSTECHNOLÓGIA
BAU-SYSTEME 92 KFT.
1095 Budapest, Soroksári út 164.
Tel.: (+36-1) 280 1278
Fax: (+36-1) 281 2144
Email: budapest.info@bau92.hu
Web: www.bau92.hu 277. old.
SZERKEZETÉPÍTÉS
MORATUS SZERKEZETÉPÍTŐ KFT.
1037 Budapest, Bojtár u. 53.
Tel.: (+36-1) 466 4827
Fax: (+36-1) 883 0243
E-mail: info@moratus.hu
Web: www.moratus.hu 158-179. old.
SZIGETELÉS
HYDROPROOF KFT.
1115 Budapest, Kelenföldi út 17. B lph. IV./1
Tel.: (+36-1) 209 2445
Fax: (+36-1) 209 3505
E-mail: hydroproof@hydroproof.hu Web: www.hydroproof.hu 260-261. old.
TARTÓSZERKEZETI TERVEZÉS EXON 2000 TERVEZŐ ÉS KERESKEDELMI KFT.
Cím: 1132 Budapest, Visegrádi utca 14
Tel.: +36 1 320-80-53
E-mail: exon2000@exon2000.hu 244-246. old.
TETŐHÉJALÁS, HOMLOKZATBURKOLÁS, ACÉLSZERKEZET
METÁL HUNGÁRIA HOLDING ZRT.
1096 Budapest, Soroksári út 1.
Tel.: (+36-94) 512 240
Fax: (+36-94) 508 844
E-mail: office@mhh.hu Web: www.mhh.hu 238-240. old.
TOMIRON, BETONACÉL MEGMUNKÁLÁS, SZÁLLÍTÁS, HELYSZÍNI SZERELÉS TOMIRON BETONACÉL KFT.
2096 Üröm, Kőbánya u. 14/a Tel.: (+36 20) 340 9309
E-mail: info@tomiron.hu Web: www.tomiron.hu 241. old.
TRANSZPORTBETON GYÁRTÁS, FORGALMAZÁS BETONPARTNER MAGYARORSZÁG KFT.
1186 Budapest, Zádor utca 3.
Tel.: (+36-1) 433 4830
Fax: (+36-1) 433 4831
E-mail: office@betonpartner.hu Web: www.betonpartner.hu 256-257. old.
TŰZVÉDELEM, KORRÓZIÓVÉDELEM, TELJESKÖRŰ TŰZVÉDELEM FLAMSTOP KFT.
1112 Budapest, Tóberek u. 8.
Tel.: (+36-1) 877 5959
Fax: (+36-1) 877 5960
E-mail: flamstop@flamstop.hu Web: www.flamstop.hu 288. old.
TŰZVÉDELEM, TERVEZÉS, KIVITELEZÉS MELDE KFT.
1116 Budapest, Építész u. 8-12.
Tel.: (+36-1) 385 0842
Fax: (+36-1) 385 0842
E-mail: info@melde.hu
Web: www.melde.hu 264-265. old.
USZODATECHNOLÓGIAI GÉPÉSZETI KIVITELEZÉS, WELLNESSRÉSZLEG KOMPLETT KIVITELEZÉSE, ÜZEMELTETÉS, TERVEZÉS FÜRDŐPARK KFT.
1033 Budapest, Bogdáni u. 1.
Tel.: (+36-70) 3204444; (+36-70) 320 4435
Fax: (+36-1) 7998594
E-mail: ajanlat@furdopark.hu Web: www.furdopark.hu 269. old.
UTCABÚTOROK TERVEZÉSE, GYÁRTÁSA, FORGALMAZÁSA
MMCITÉ3 KFT.
2045 Törökbálint, Bajcsy-Zsilinszky u. 83/3
Tel.: (+36-30) 685 9562
Fax: (+36-23) 332 042
E-mail: info@mmcite.hu
Web: www.mmcite.com 295. old.
ÜVEGÉPÍTÉSZET
OROSHÁZAGLAS KFT.
5900 Orosháza, Csorvási út 39.
Tel.: (+36-68) 419 419 Fax: (+36-68) 419 429
E-mail: ohg@oroshazaglas.hu Web: www.oroshazaglas.hu 291. old.
VILÁGÍTÁSTECHNIKA DELTA LIGHT, SIMES TERMÉKEK MAGYARORSZÁGI FORGALMAZÓJA – BE LIGHT KFT. 1025 Budapest, Szépvölgyi út 146. Tel.: (+36-1) 438 0748
Fax: (+36-1) 325 6266
E-mail: belight@belight.hu Web: www.belight.hu 210-213. old.
VILLANYSZERELÉS
VILATI SZERELŐ ZRT.
1037 Budapest, Bojtár u. 53. Tel.: (+36-1) 880 4700
Tel.: (+36-1) 880 4709
E-mail: vilati@vilati.hu
Web: www.vilati.hu 230-237. old.
IMPRESSZUM/IMPRINT:
Szerkesztők / Editors: Martinkó József, Molnár Szilvia
Szövegek / Words: Ujlaky-Gazdag István, Dajka Balázs, Kovács Péter, Mizsei Anett, Nagy Dániel, Móré Levente, Molnár Szilvia, Veczán Zoltán
Portréfotók / Portraits: Jaksa Bálint, Molnár Péter, Végel Dániel
Épületfotók / Architectural photos: Bujnovszky Tamás, Molnár Péter Munkaközi fotók / Construction photos: Molnár Péter
Grafikai tervezés / Graphic Design: Hlatki Dorottya
Munkatárs / Graphic co-operator: Rehák Piroska, Sólymos Ágnes Eszter Fordítás / Translation: TrM Fordítóiroda
