BOOK PROMOTION / CONSTRUCTION

Page 1


Pourquoi faire appel à un architecte d’intérieur sur un projet immobilier neuf ?

collaborer au projet d ’une vie

Faire construire sa maison ou acheter un appartement sur plan représente un projet exaltant, marquant une étape cruciale dans notre parcours de vie

Le réussir, en être pleinement satisfait est un enjeu de taille et d’autant plus important qu’il engage des budgets importants

Si le constructeur et le promoteur jouent un rôle crucial dans la réalisation d’un projet neuf les clients sont également appelés à prendre des décisions concernant l'aménagement de l'espace le choix des matériaux et des finitions pour créer un ensemble qui corresponde à leur mode de vie, leurs envies et leurs goûts

Dans ce contexte, combiner l’expertise du constructeur / promoteur avec celles de l’architecte & décorateur d’intérieur peut transformer un projet de construction en une réussite harmonieuse et esthétique

Nos prestations et solutions pour un projet idéal

ARCHITECTURE D’INTÉRIEUR DÉCORATION D’INTÉRIEUR

AGENCEMENTS SUR-MESURE

RECOMMANDATIONS ET PRÉPARATIONS DES DOSSIERS POUR LES ARTISANS

GESTION DU PROJET

01 Associer compétences techniques

et esthétiques

Les constructeurs sont experts dans la construction et la structure des bâtiments, tandis que nous avons une connaissance approfondie dans l’aménagement intérieur et dans la décoration La combinaison de nos compétences techniques et créatives permet de créer des espaces à la fois esthétiques et fonctionnels

Le constructeur livre les plans techniques 2D tandis que nous fournissons des moodboards d’ambiance et des vues photoréalistes permettant aux clients de mieux visualiser les espaces et les ambiances associées Pour ne rien oublier et pour une parfaite harmonie, nos shopping-list mobilier, éclairages et décoration, par pièce, guident les achats des clients

04

02

Collaborer pour trouver des solutions intégrées

En unissant nos forces, nous pouvons concevoir des solutions intégrées comme des agencements sur-mesure qui répondent parfaitement aux besoins et aux désirs du client, tout en respectant les contraintes budgétaires et techniques

03

Coordination des travaux

AGENCEMENTS SUR-MESURE

En coordonnant les travaux ensemble, nous pouvons nous assurer que la construction et la décoration avancent de manière synchronisée

Expertise en matériaux et finitions

Les constructeurs ont une connaissance approfondie des matériaux de construction et des techniques de construction, tandis que nous sommes qualifiés dans le choix des matériaux et des finitions pour créer des espaces esthétiquement agréables et personnalisés La collaboration permet de choisir les matériaux et les finitions les plus appropriés pour chaque projet

Nous livrons des dossiers de recommandations couleurs, matières, matériaux afin de guider le client et lui permettre d’obtenir un espace qui lui correspond dans sa totalité

Afin de guider les artisans au mieux, nous communiquons des informations claires, pour une mise en oeuvre facilitée (dossier de repérage des matériaux par espaces, plan de modifications des éclairages ) Cela permet d’appréhen travaux en toute sérén

RECOMMANDATIONS ET PRÉPARATIONS DES DOSSIERS POUR LES ARTISANS

PERSONNALISATION D’UNE MAISON NEUVE

EN COLLABORATION AVEC UN CONSTRUCTEUR DE MAISONS INDIVIDUELLES

Client : P a u l - G u i l l a u m e

Lieu : G u j a n M e s t r a s ( 3 3 )

Date : j u i l l e t 2 0 2 3

Notre client Paul-Guillaume, nous a demandé de l’aider à finaliser sa maison à bâtir proche de la livraison

Aujourd’hui cette maison de vacances du Bassin d’Arcachon, est un refuge paisible où l’on peut se ressourcer dans une atmosphère de fraîcheur et de sérénité

Pour parvenir à cela, nous avons conçu une ambiance unique et chaleureuse tout en tenant compte des plans des contraintes techniques et des matériaux initiaux du constructeur

Nous avons su guider le client dans ses choix de couleurs, matières, mobilier, décorations et éclairages Nous avons optimisé les espaces par la proposition d’agencements sur-mesure

Nous avons brillamment réussi à passer d une maison neutre à une maison inspirant la détente et l’évasion tout en intervenant en complémentarité avec le constructeur pour un client pleinement satisfait de son projet!

PRESTATIONS RÉALISÉES :

DÉCORATION D’INTÉRIEUR

AGENCEMENT SUR-MESURE

RECOMMANDATIONS ET PRÉPARATIONS DES DOSSIERS POUR LES ARTISANS

Page suivante :

01 Photoréaliste de la pièce de vie entièrement agencée

02 Photoréaliste de la salle à manger et de ses agencements sur-mesure qui optimisent les volumes

03 Photoréaliste de la cuisine conçue selon les attentes fonctionnelles et esthétiques

04 Photoréaliste de la chambre créée pour la petite fille

J'ai fait appel à Nathalie pour penser l'aménagement et la décoration d'une maison neuve Alors que les délais étaient très courts, elle a su, en moins d'un mois, élaborer une proposition complète, juste et en totale adéquation avec les besoins exprimés Dans le cadre de son intervention, Nathalie a représenté en 3D la maison permettant de visualiser, dans une vidéo, les pièces et leur volume ainsi que le mobilier et tous les équipements Nathalie remet ensuite plusieurs dossiers qui décrivent précisément tout ce qui doit être fait dans chaque pièce pour arriver au résultat présenté Je suis extrêmement satisfait de cette prestation et suis ravis d'avoir fait appel à Nathalie qui a été très disponible, à l'écoute et de très bon conseil à chaque étape du projet

PERSONNALISATION ET DÉCORATION D’UN APPARTEMENT NEUF

EN COLLABORATION AVEC UN PROMOTEUR IMMOBILIER

Cliente : N a t h a l i e

Lieu : M é r i g n a c ( 3 3 )

Date : j a n v i e r 2 0 2 3 - a v r i l 2 0 2 3

Notre cliente nous demandé de l’aider dans la finalisation de son appartement neuf

Grâce à notre intervention, ce logement est devenu un cocon lumineux chaleureux et unifié où notre cliente se sent pleinement chez elle

Pour parvenir à cela nous avons conçu une atmosphère unique tout en tenant compte des plans, des contraintes techniques et des matériaux initiaux du constructeur

Nous avons su guider notre cliente dans ses choix de couleurs de matières mobilier décoration et éclairages Les espaces sont optimisés par la proposition d’agencement sur-mesure

À travers ce projet, nous avons su passer d une maison initialement neutre à une maison personnalisée à ses occupants tout en intervenant en complémentarité avec le constructeur pour une client pleinement satisfaite de son projet !

PRESTATIONS RÉALISÉES : DÉCORATION D’INTÉRIEUR

AGENCEMENTS SUR-MESURE

RECOMMANDATIONS ET PRÉPARATIONS DES DOSSIERS POUR LES ARTISANS

01 Photoréaliste de la chambre personnalisée grâce aux revêtements et couleurs

02 Photoréaliste du bureau créé et installé à la place d un placard

03 Photoréaliste de la pièce de vie personnalisée grâce aux revêtements couleurs et agencements

DÉCORATION ET PERSONNALISATION D’UNE MAISON FAMILIALE

EN COLLABORATION AVEC UN CONSTRUCTEUR DE MAISONS INDIVIDUELLES

Clients : N o é m i e e t V i n c e n t

Lieu : G r a d i g n a n ( 3 3 )

Date

Noémie et Vincent ont fait construire une maison de 225m² à Gradignan pour accueillir leur grande famille

Parce que c ’est le projet d’une vie ils nous ont sollicités dès le début de leur projet, munis de leurs plans et en complément du bâtisseur, pour que leur maison soit réussie de bout en bout

Pour ces clients nous avons mis en commun avec le constructeur nos compétences et expertises respectives,

Notre approche créative a permis d optimiser les espaces et d’en garantir la fonctionnalité et l’esthétique

Nous avons créé tout l’univers décoratif de la maison dans une recherche d unité et d harmonie, Nous avons aidé les clients à choisir leurs matériaux et revêtements parmi l’offre du constructeur, fourni les documents graphiques permettant aux artisans de mettre en oeuvre les choix de finition mais aussi dessiné des agencements permettant de tirer le meilleur profit des volumes.

RÉVISION TOTALE DE L’ENTRÉE

AGRANDISSEMENT DE LA CHAMBRE

RESTRUCTURATION DE LA BUANDERIE ET DE LA SALLE DE BAIN

PRESTATIONS RÉALISÉES :

DÉCORATION D’INTÉRIEUR

AGENCEMENT SUR-MESURE

ARCHITECTURE D’INTÉRIEUR

RECOMMANDATIONS ET PRÉPARATIONS DES DOSSIERS POUR LES ARTISANS

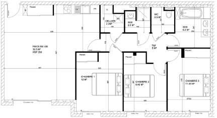
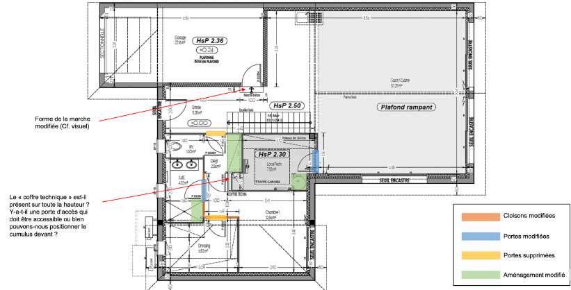
01 Plan initial du rezde-chaussée

02 Plan texturé du rez-de-chaussée après l optimisation du cloisonnement, l implantation des matériaux revêtements de la cuisine, des agencements

Photoréalistes du projet avec les matériaux les couleurs, l’implantation intégrale de chaque pièce :

01 La pièce de vie

02 La chambre parentale

03 La salle de bain

04 La chambre enfants n°1

05 Croquis d un meuble sur-mesure

ENTRÉE SANS SAS

OPTIMISATION D’UN APPARTEMENT ACHETE SUR PLAN

EN COLLABORATION AVEC UN PROMOTEUR IMMOBILIER

Client : S é b a s t i e n

Lieu : P e s s a c ( 3 3 )

Date: J a n v i e r 2 0 2 0 - M a i 2 0 2 3

Quand il a acheté cet appartement sur plan, Sébastien s est rapidement rendu compte qu il fallait y apporter quelques changements pour qu’il corresponde à ses besoins

Le sujet majeur a été décaler légèrement quelques cloisons, afin de créer des espaces plus fonctionnels et mieux adaptés au mode de vie du client C est ainsi qu est apparue une suite parentale une vraie cuisine et que les chambres des enfants ont été rééquilibrées

Les matériaux et couleurs ont été choisis de manière à être le reflet de la personnalité et des goûts esthétiques du client.

Grâce à nos compétences ce logement a pu passer d’une configuration standard à un habitat unique et sur-mesure, le tout en synergie avec le promoteur, pour la plus grande satisfaction du client

KITCHENETTE BASIQUE

PIÈCE DE VIE NON AMÉNAGÉE

VÉRITABLE ENTRÉE AVEC SAS CUISINE FAMILIALE

PERTE DE PLACE DANS LA SALLE D’EAU PEU DE RANGEMENTS DANS LA CHAMBRE

INTÉGRATION DE RANGEMENTS DANS LA CHAMBRE

PRESTATIONS RÉALISÉES : DÉCORATION D’INTÉRIEUR AGENCEMENT SUR-MESURE

ARCHITECTURE D’INTÉRIEUR

01 Plan initial 02 Plan du projet d’optimisation 01 02

CRÉATION D’UNE VRAIE SUITE PARENTALE AVEC DRESSING

RECOMMANDATIONS ET PRÉPARATIONS DES DOSSIERS POUR LES ARTISANS

PERSONNALISATION D’UNE MAISON EN CONSTRUCTION

EN COLLABORATION AVEC

UN CONSTRUCTEUR DE MAISONS INDIVIDUELLES

Clients : S t é p h a n e e t M a j a

Lieu : G r a d i g n a n ( 3 3 )

Date : F é v r i e r - J u i n 2 0 2 3

Pour la construction de leur maison à Gradignan, Stéphane et Maja nous ont demandé de les aider à créer un univers décoratif personnalisé

Au-delà de la définition des ambiances de l’aide au choix des matériaux et revêtements, ou encore du mobilier et des éclairages nous avons suggéré des optimisation de cloisonnement et d’implantation électrique

Parce qu il suffit parfois de décaler une cloison de quelques cm pour gagner une place précieuse Parce que le travail minutieux de chaque espace en 3D éclaire le projet et permet de faire des choix avisés

Livrée par le constructeur en juillet 2024 la maison de Stéphane et de Maja constitue un lieu de vie chaleureux et inspirant qui leur correspond

PRESTATIONS RÉALISÉES :

DÉCORATION D’INTÉRIEUR

AGENCEMENTS SUR-MESURE

ARCHITECTURE D’INTÉRIEUR

RECOMMANDATIONS ET PRÉPARATIONS DES DOSSIERS POUR LES ARTISANS

Photoréalistes du projet, avec les matériaux, les couleurs l’implantation intégrale de chaque pièce :

PERSONNALISATION D’UN APPARTEMENT NEUF

EN COLLABORATION AVEC UN PROMOTEUR IMMOBILIER

Cliente : A m é l i e

Lieu : M é r i g n a c ( 3 3 )

Date : A o û t à N o v e m b r e 2 0 2 0

L’appartement acheté sur plan par Amélie présentait une configuration standard, avec deux chambres, et une salle de bain séparée

Vivant seule, Amélie souhaitait créer un ensemble bien à elle avec une suite combinant une belle chambre, un dressing spacieux, et un espace douche et bain, dignes des grands hôtels

Cet appartement s ’est ainsi paré d'élégance et de raffinement, grâce à des matériaux de choix et une configuration atypique hautement personnalisée

Pour créer un univers de confort et de sophistication la salle de bain et le dressing sont désormais ouverts sur la chambre à coucher, offrant ainsi un ensemble harmonieux et élégant

La cuisine a été elle aussi optimisée, avec un îlot central pour favoriser la convivialité et maximiser l'espace de travail et de rangement

Dans ce projet la restructuration de l’espace a permis de créer un ensemble unique et distinctif en phase avec les envies de la cliente

PRESTATIONS RÉALISÉES :

DÉCORATION D’INTÉRIEUR

AGENCEMENT SUR-MESURE

ARCHITECTURE D’INTÉRIEUR

RECOMMANDATIONS ET PRÉPARATIONS DES DOSSIERS POUR LES ARTISANS

PERSONNALISATION ET DÉCORATION D’UNE MAISON A BATIR

EN COLLABORATION AVEC UN CONSTRUCTEUR DE MAISONS INDIVIDUELLES

Clients : K u m i k o e t Y o h a n n

Lieu: P e s s a c ( 3 3 )

:

Munis de leurs plans, Kumiko et Yohann ont fait appel à nous afin de les guider dans la décoration de leur maison neuve

En complément du bâtisseur nous sommes venus apporter du caractère et une personnalisation unique à cette maison

Nous avons proposé des agencements sur-mesure afin de tirer le meilleur potentiel des volumes

Nous avons guidé les clients sur leurs choix de matières matériaux couleurs mobilier décoration et éclairage afin de garantir une atmosphère conviviale et élégante

Notre travail, accompli en étroite collaboration avec les clients et leur constructeur, a abouti à une maison en parfaite adéquation avec les attentes de leurs occupants

PRESTATIONS RÉALISÉES : DÉCORATION D’INTÉRIEUR

AGENCEMENT SUR-MESURE

RECOMMANDATIONS ET PRÉPARATIONS DES DOSSIERS POUR LES ARTISANS

01 Plan texturé de l aménagement

PERSONNALISATION D’UN APPARTEMENT NEUF

EN COLLABORATION AVEC UN PROMOTEUR IMMOBILIER

Clients : A n i c e t e t M i c h e l

Lieu : B i g a n o s ( 3 3 )

Date : a v r i l à j u i n 2 0 2 3

Ce projet part de l acquisition par nos clients un appartement neuf en VEFA (Vente en l’État Futur d’Achèvement) à Biganos, pour leur retraite

Leur demande portait sur la personnalisation de ce logement neutre blanc à l’aménagement standard pour en faire un lieu de vie harmonieux et chaleureux, évoquant l'atmosphère du bord de mer

Après avoir défini un univers personnalisé grâce aux revêtements, peintures, agencements ou encore mobilier nous avons supervisé les travaux utiles

Chaque détail a été soigneusement pensé pour refléter le thème choisi avec une sélection de matériaux naturels et de teintes douces qui rappellent la mer et le sable

Des agencements sur-mesure ont été conçus pour optimiser l’espace et apporter une touche unique à l’ensemble

L ajout de pièces de décoration et de finitions personnalisées a permis de renforcer l’ambiance bord de mer tout en offrant un cadre élégant et moderne

Que ce soit dans les espaces de vie ou de nuit notre approche a permis de donner vie à un appartement à l image de nos clients, alliant confort, style et praticité

01

PRESTATIONS RÉALISÉES :

DÉCORATION D’INTÉRIEUR

AGENCEMENT SUR-MESURE

RECOMMANDATIONS ET PRÉPARATIONS DES DOSSIERS POUR LES ARTISANS

Photoréalistes du projet avec les matériaux les couleurs l implantation intégrale de chaque pièce :

Nathalie nous a particulièrement bien accompagnés pour l'aménagement de notre studio en VEFA à Bordeaux Nous avons pu lui déléguer la réception auprès du promoteur, la décoration et l'aménagement afin de récupérer un appartement prêt à vivre Nous avons pu ainsi tout gérer à distance Le résultat était parfaitement conforme à nos attentes. Elle s 'est adaptée à nos demandes et notre budget Je recommande vivement

Pierre-Yves

Mon expérience avec Nathalie a été un vrai succès et très agréable, de bout en bout. Elle a fait preuve d'une écoute sincère de mes besoins, fait des propositions en adéquation avec ces derniers puis livré des éléments à forte valeur ajoutée Passionnée, elle a aussi su être disponible et réactive tout au long du projet Je recommande vivement Nathalie

Sébastien

Toujours disponible tout au long de la réalisation du projet, Nathalie a su saisir nos envies et apporter des conseils toujours pertinents Nous sommes enchantés de l'agencement et de la décoration réalisés en relation avec notre maître d'œuvre, notamment le choix des couleurs de peinture des murs, des carrelages, des luminaires ou le dossier cuisiniste Nous recommandons vivement !

Jean-Luc

Turn static files into dynamic content formats.

Create a flipbook
Issuu converts static files into: digital portfolios, online yearbooks, online catalogs, digital photo albums and more. Sign up and create your flipbook.