OLIVEIRA MARTINS Océane - Portfolio 2023

Page 1

PORTFOLIO

hors

oliveira martins océane

étudiante en design d’espace, architecture d’intérieur

2023
série n °2

QUI SUIS- JE ? présentation

Diplômée d’un bac arts appliqués, j’ai décidé de me tourner vers un DNMADe design d’espace pour continuer mes études. J’ai choisi ce domaine d’exploration, car selon moi, l’espace est le point de réunion entre tous les grands domaines du design (mode, communication et produit). Étant de nature curieuse, polyvalente et ouverte, ce cursus s’est avéré le plus adapté. Après avoir obtenu cette licence, j’ai intégré le mastère d’Architecture d’intérieur et Design au Campus Ynov de Bordeaux, qui s’effectue en alternance. À travers cette formation, je veux à la fois me former au métier de manière professionnalisante tout en obtenant un diplôme.

L’espace doit pour moi répondre au mieux à la demande du client tout en portant une attention particulière sur les enjeux environnementaux et sociaux de notre époque.

compétences personnelles

01 profil qui suisje ?
créative patiente organisée investie curieuse ouverte

RÉHABILITATION D’UN ANCIEN TRIBUNAL EN MAISON ÉCO-CITOYENNE

cadre de production : formation ynov ( travail collectif )

Cet appel à projet de la ville de Mont-De-Marsan consistait à réhabiliter l’ancien Tribunal de la ville en maison éco-citoyenne. L’espace de plus de 1 600 m² devait pouvoir accueillir un magasin de vêtements de secondes mains, un café citoyen, des ateliers de réparations, une ressourcerie, une salle d’exposition et de conférences, un espace de co-working et une salle de réunion. Le but premier de ce lieu était de sensibiliser les habitants de la ville de Montde-Marsan sur la transition écologique tout en étant un lieu d’accueil chaleureux, familial et respectant les normes ERP. Nous avons eu l’idée de partir sur le concept de la greffe, du cœur et du lien pour construire un projet local et tourné vers la nature Landaise. La ressourcerie située au centre du bâtiment au R+1 est l’atout majeur de ce lieu. Il est le lien entre les différentes fonctions que propose cette maison Landaise.

créativité autocad

organisation

communication

plans techniques écoute

03
architecture tertiaire projet 01
c ompétences acquises 1. Photo-réaliste du jardin d’entrée de la Maison Eco-citoyenne fait à partir du logiciel Enscape 2. Plan texturé RDC Pages suivantes : 3. Plan électrique R+1 4. Plan d’aménagement R+2
04 architecture tertiaire projet 01
05 architecture tertiaire projet 01

AMÉNAGEMENT D’UNE MAISON FAMILIALE

cadre de production : stage

À partir d’un modèle SketchUp, il nous a été demandé de créer des rendus photo-réalistes sur le logiciel Artlantis. L’objectif était de créer une mise en ambiance en respect avec la demande du client. Pour nous aider, un mood board d’inspirations nous a été fournie. Il fallait se montrer ouvert et riche de propositions.

06
c ompétences acquises
architecture d ’ intérieur projet 02
créativité flexibilité artlantis
07 architecture d ’ intérieur projet 02

SPECULATIO : PROJET D’URBANISME TRANSITOIRE

cadre de production : formation dnmade ( travail individuel )

Cet appel à projet de la mairie d’Angoulême a pour but de réfléchir à des dispositifs liés à un urbanisme transitoire. Speculatio (observatoire en latin), lieu d’observation et d’échange, a comme vocation d’informer les habitants et de donner à voir les nombreux changements du quartier Grand-Font. Reprenant les codes des travaux, ce lieu est au service des écoles du quartier pour les sensibiliser à l’environnement qui les entourent . Une table d’expression et des panneaux d’informations sont mis en place pour les rendre acteurs du projet. Des gradins sont installés pour induire l’observation et le regroupement, jeter un nouveau regard sur le quartier et créer une redécouverte de l’environnement. Une tablette d’information est installée sur la place Victor Hugo pour inciter les habitants extérieurs à venir voir ces changements et ouvrir le quartier au reste de la ville.

c ompétences acquises

créativité adaptabilité autocad

économie de projet communication artlantis

Coupes

09 microarchitecture projet 03
Plan

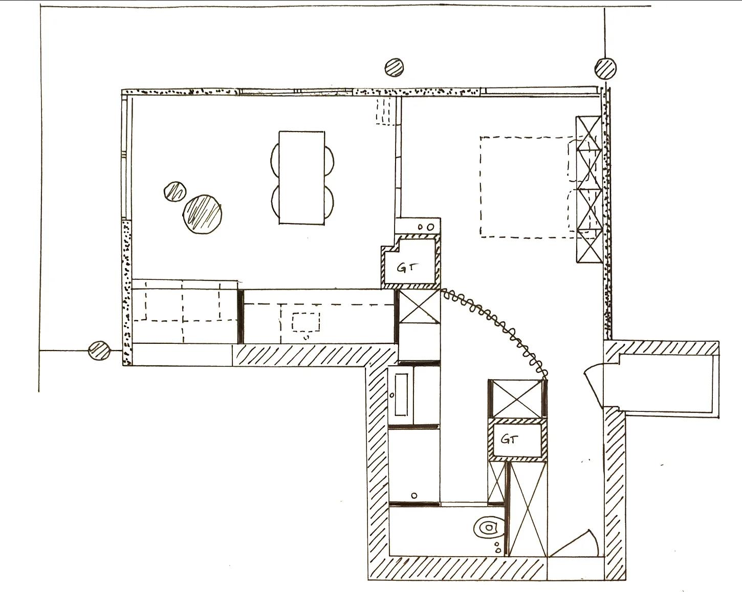
RÉHABILITATION D’UN APPARTEMENT ANGOUMOISIN

cadre de production : stage

Ce projet consistait à réhabiliter un petit appartement angoumoisin. La problématique majeure était d’intégrer à la fois un espace de vie (salon, cuisine, espace repas), un coin couchage, un espace d’eau et de maximiser les rangements. Ce travail s’est effectué en équipe. Nous avons principalement centré nos recherches sur la modularité pour créer un espace fonctionnel et ouvert. Pour mieux communiquer nos idées aux clients, nous avons décidé de créer des axonométries pour rendre compte des volumes dans l’espace.

c ompétences acquises créativité communication sketchup

iartbook aisance graphique pinterest 10 architecture d ’ intérieur projet 04 PROJET JARDIN VERT 25 STYLE JAPANDI Mood board
architecture d ’ intérieur projet 04 11
Proposition 1
Proposition 2 Proposition 3
design évenementiel projet 05 12
Ateliers à la Recyclerie Structure d’accueil à la Recyclerie Centre du festival au Parc de Mussonville

CRÉATION DE MODULES POUR LE FESTIVAL HOP LÀ!

cadre de production : formation ynov ( travail collectif )

Ce projet a été conçu spécialement pour le festival Hop là ! qui a pour but de réunir parents et enfants à travers divers ateliers 2 fois par an pendant 2 jours. Il se constitue de 4 modules s’inspirant directement de l’origami et du pliage pour faciliter le transport et s’adapter à tous types d’espaces. Son aspect minimaliste et sobre lui permet de s’ajuster au thème du festival qui aura lieu. Il ne prend que très peu de place une fois démonté et plié, ce qui en fait un atout majeur. Le monter est un jeu d’enfant ; simple de montage, même les parents conviés au festival pourront aider les intervenants un jour avant à l’installation. Le but : créer du lien, partager et retrouver son âme d’enfance par la construction de cet origami géante.

notice de montage et d ’ assemblage de la structure

c
créativité communication
adaptabilité organisation design évenementiel projet 05 13
ompétences acquises
sketchup
aisance graphique

merci de votre attention ! Contactez-moi : Mail : oceane785.martins@ icloud.com

Numéro de téléphone : 06 04 43 38 65

© oliveira martins océane
mon site web ( à scanner )

Turn static files into dynamic content formats.

Create a flipbook
Issuu converts static files into: digital portfolios, online yearbooks, online catalogs, digital photo albums and more. Sign up and create your flipbook.
OLIVEIRA MARTINS Océane - Portfolio 2023 by Océane - Issuu