

![]()


As grain to glass as it gets
A timeless treasure trove in Morgantown HANDCRAFTED HISTORY
Celebrating 50 years of the National Duncan Society





6 HANDCRAFTED HISTORY
Celebrating 50 years of the National Duncan Society
18 HEIST SPIRITS
As grain to glass as it gets
28 SWIFT AUDIOLOGY: PROUD TO BE PART OF YOUR COMMUNITY FOR 38 YEARS
8 SOUTH HILLS LINCOLN: A legacy of luxury and customer care
21 PARADISE CONFECTIONARY’S SWEET LEGACY
30 A LEGACY OF GIVING: THE STEVEN BRADLEY WAY FOUNDATION
10 ANTIQUES AND OLD BOOKS: A timeless treasure trove in Morgantown
23 DON’T WAIT TO START INVESTING, REGARDLESS OF THE ECONOMY
32 HOW TO BUILD A MODULAR OR MOBILE HOME
Hello, and welcome to our rebranding of the Business Journal! Formerly the Southwest Pennsylvania Business Journal, the magazine’s new name, the Tri-State Business Journal, highlights our growth and commitment to our region. If you aren’t familiar with me, I’m Trista Thurston, and I head up digital operations and special publications. Since this magazine’s launch in 2020, this has been a labor of love a long time in the making, and I hope you enjoy the stories within these pages.

So much thought and consideration has been given to this magazine. At the Observer-Reporter, Herald-Standard and Dominion Post, we all wish to highlight and celebrate our thriving, robust business community. This region is a large geographic area, and of course, it is not a monolith. We will strive to bring you features from various locations throughout the tri-state region.
Our area has a wide variety of business and philanthropic endeavors, and this magazine covers just a small selection. I can’t wait to showcase more our area has to offer in upcoming editions.
Speaking of future issues, I would love to hear from you, dear reader. If you have any suggestions, thoughts or ideas for items to include in an upcoming edition, please get in touch. Reach me at tthurston@observer-reporter.com or 724-222-2200, ext. 2421.
16 FIRST FEDERAL OF GREENE Focused on the future
24 ‘WORD SEARCH GUY,’ 83, FINISHES 10,000TH PUZZLE
34
CENTERVILLE CLINICS: AN AMERICAN SUCCESS STORY



122 South Main Street, Washington, PA 15301 724.222.2200
Editor Trista Thurston
Advertising Director
Carole DeAngelo
Graphic Designer
Eric Tomlinson
Contributors
Aidan Cornue
Emily King

All my best, Editor
Dave Zuchowski
Jill Thurston













Story and photos courtesy of the Washington County Tourism Promotion Agency
The beginning
Long before cell phones, television and even radio, families occupied themselves with entertaining. By the early 20th century, dinner parties had forgone the highly elaborate, multicourse dinners of the Victorian Era and become more casual. However, families still strived to collect the best and most on-trend pieces to display for their guests. High-quality porcelain, bone China and elaborate pieces with floral motifs and gilded accents were all highly sought-after items in a collection, but none were so prized or popular as was Duncan & Miller glass.

The Duncan & Miller Glass Co.
In 1865, George Duncan initially purchased a glass company whose factory in Pittsburgh’s South Side neighborhood bordered the Monongahela River for easy transportation. Over the next 10 years, the company evolved and grew significantly and was eventually passed to George Duncan’s son, James E. Duncan, and experienced glassmaker and designer John Ernest Miller.

In 1892, the company’s factory was destroyed by a fire, prompting Duncan to build a new factory on Jefferson Avenue in Washington, which had ample access to railroads and inexpensive natural gas to power the factory. By 1900, the company was officially formalized as the Duncan & Miller Glass Company

known today.
Some of the company’s most popular styles were produced between the 1920s and the 1940s, with its nautical, hobnail, Caribbean and teardrop styles at the forefront as pinnacles of modern design. These styles often encompassed a unique range of frosting, etching, engraving, coloring, enamel and more incorporated into a single handmade design. Duncan & Miller’s most iconic piece, however, is its signature swan — a work of art that took over 10 artisans to make.
At its height, Duncan & Miller Glass was regarded as the “loveliest glass in America,” with each handmade piece sometimes requiring up to 14 skilled craftsmen to make. The company evolved with the times, creating highly detailed and intricate pieces during the Gilded Era, modern and cheerful Art Deco pieces during the Great Depression, and more everyday-use pieces during the postWorld War II era. Pieces came in both clear glass and a vast rainbow of colors that often reflected the changes in dining trends and design.

far from the old factory site) in 1993 wintending to preservethe legacy of the Duncan & Miller Glass Co. With thousands of handmade and unique pieces in its collection, visitors can easily spend an entire afternoon lost in time at the museum as they explore the history of our region’s industrial heritage.
The museum also plays a larger role in telling the story of not only Washington County’s industrial legacy but the county as a hub for artisans and craftsmen of the past who dedicated their livelihoods to the furthering of art and industry.


By the 1950s, the emergence of automated glassmaking machinery and assembly lines had made Duncan & Miller’s handmade glass uneconomical. The company began selling off its remaining inventory, molds and equipment to various other companies and collectors, eventually closing the Washington factory in 1955 after almost 90 years in business.
Although the Duncan & Miller Glass Company closed its factory doors nearly 70 years ago, the name has hardly been forgotten in Washington County and beyond.
The Duncan & Miller Glass Museum — the most extensive collection of Duncan & Miller Glass in the world — opened in downtown Washington (not
Visitors can get a sense of the work that went into these pieces and the impact Duncan & Miller glass had on the region either through guided tours or simply by browsing the museum on their own.
In addition to the museum, the National Duncan Glass Society hosts several glass shows and sales each year at the Washington County Fairgrounds.
These events feature antique and collectibles vendors from all over the country, educational programs, exhibits and demonstrations related to its antiques and collectibles.
The National Duncan Glass Society is celebrating a landmark year in 2025 as it marks its 50th anniversary of preserving the legacy of Duncan & Miller Glass. This milestone also honors its members’ and volunteers’ dedication and hard work over the past five decades.
The occasion was commemorated on March 22 with a Golden Anniversary Gala at the George Washington Hotel, featuring an evening of music, dancing, professional portrait photography and an auction with tickets to “The Wizard of Oz” donated by the Pittsburgh Ballet Theatre that will kick off another 50 years of success and growth for the society.

South Hills Lincon has been synonymous with luxury vehicles and exceptional customer service for over forty years. The dealership is owned by Richard Jacobs of Peters Township, with his son, Rick Jr., overseeing sales and service. General sales manager Jeff Innes has been with the company for 27 years, and the dealership prides itself on having a devoted team of professionals, some of them having decades of employment at South Hills Lincoln. This longevity translates into deep product knowledge and a genuine connection with customers.
The Lincoln brand takes customer service seriously, and employees undergo quarterly Lincoln Way Hospitality Training to ensure that each customer receives a first-class experience. Whether customers are purchasing a new vehicle or returning for service, they are consistently met with professionalism, courtesy and attention to detail.
The automotive industry has changed significantly in the last decade, and South Hills Lincoln has embraced this transformation. Nowadays, most car-buying experiences start online. South Hill Lincoln’s easy-to-navigate online platform allows customers to browse through inventory, inquire about specific vehicles, and even begin the purchase process from the comfort of home.
When the customer takes the next step of visiting the dealership, South Hill Lincoln makes every effort to provide an enjoyable luxury experience with an elegant showroom and complimentary refreshments. If you have an appointment, the sales team will have the desired vehicle pulled up front and ready to explore.
South Hills Lincoln provides top-notch concierge service to customers, with complimentary pickup and dropoff services when their vehicle needs maintenance. Lincoln also provides a luxurious “Lincoln Loaner” so that their day is not interrupted.
Luxury and innovation
South Hills Lincoln is excited to showcase the newest models. The highly-anticipated 2025 Lincoln Navigator will arrive on the lot this spring, loaded with cutting-edge technology, new safety features and an elegant, spacious interior.

In addition, Lincoln’s commitment to sustainability is evident in its growing lineup of electric vehicles. The 2025 Lincoln Nautilus recently won the Motor Trend Magazine‘s SUV of the Year. This awardwinning vehicle features hands-free driving capabilities and is available as a hybrid model. The plug-in electric 2025 Lincoln Corsair embraces the future of eco-friendly vehicles without sacrificing luxury and comfort.
South Hills Lincoln offers a selection of extraclean, low-mileage pre-owned vehicles for those seeking exceptional value. Each preowned Lincoln must pass a rigorous 220-point inspection before earning certification, ensuring the highest standards of quality and reliability. These vehicles come with a comprehensive six-year/100,000-mile warranty and low-interest financing options through Lincoln Financing, making them an excellent choice for discerning buyers.
According to leadership at South Hills Lincoln, the long-term goal for the dealership is always to give back to their community by fostering relationships with local people and organizations. The dealership actively supports local youth sports and charities in the area, most notably the Make-a-Wish Foundation. They plan to continue deepening their customer relationships, as word of mouth is always the best advertising. They see the results of their impeccable customer service in the glowing reviews they receive regularly.
Lincoln pushes the boundaries of automotive innovation, and
For those in the market for a new or pre-owned Lincoln, South Hills Lincoln invites you to explore their inventory online or visit the dealership in person. Experience the unmatched customer experience and luxury brand that has made the dealership a trusted name in the automotive industry for decades.



Story and photos by Aidan Cornue
For over 21 years, Antiques and Old Books has been a destination for book lovers and antique enthusiasts. Owner JoAnn Nicholson has welcomed customers from all over the world, from Hong Kong to France, all drawn to the shop’s unique collection and warm, inviting atmosphere.
Upon entering the store, visitors are immediately immersed in a vast collection of novelties and novels. Most importantly, visitors are welcomed by the friendly face of the sole employee and owner, Nicholson.
“I have been a collector for many, many years,” Nicholson states. “I always collected books and, of course, antiques too.”
Nicholson adds that there are more book buyers than antique buyers. Students attending West Virginia University love to come in and buy books, mainly the older ones in Nicholson’s collection, which are made up of first editions and others with leather or cloth binding.

For lovers of wild and wonderful West Virginia, plenty of state-centered books litter the store. From bird-watching books detailing the West Virginia aviary scene to history books from various periods of the state’s history, Antiques And Old Books definitely has something for everyone. A variety of West Virginia penned books are also present in her extensive collection of books.
Nicholson notes that when the store first opened, the shop was primarily aimed at antiques with only some books, and, over the past 21 years, she now has more books than antiques.
This quaint and classy store features furniture, stoneware, china and pottery. Frames, fine art and paintings accompany classic quilts, hooked rugs and samplers.
Nicholson is a huge fan of classic literature and mysteries, and she urges her customers to continue reading print books.
“It’s not the same experience of having a book in



Hundreds of books are tucked into displays like this one at Antiques and Old Books
your hands,” she says. “You can take it anywhere you want to, throw it in your purse, it is a much better reading experience than just sitting and looking at your computer all day.”
Antiques and Old Books is open Thursday through Saturday from 11 a.m. to 5 p.m. and is located at 2220 Cheat Road, Morgantown.
More photos on following page

Knickknacks and books layer Antiques and Old Books.

Unique displays are used to emphasize the content and history of the books.





Editor’s note: This is part of a series from area chambers of commerce to provide these vital organizations a space to showcase their efforts and members.
The Morgantown Area Partnership serves as the region’s leading business resource and economic development organization, working alongside local businesses, education and government with a collaborative voice to grow the region and enhance its value. The Partnership’s professional staff and board volunteers work together to create prosperity and growth across our communities and for future generations. The Partnership’s unique management relationship with the Morgantown Area Chamber of Commerce, Monongalia County Development Authority, Main Street Morgantown, the Campus Neighborhoods Revitalization

Corporation and the Morgantown Area Economic Partnership provides the tools and capabilities to positively impact the community in numerous ways.
Working with the Monongalia County Development Authority, the Partnership provides comprehensive support for new and existing businesses, offering assistance with capital financing, tax incentives, employee recruitment and training, site selection and economic data. This coordinated approach has led to successful developments like Mountaintop Beverage, the adaptive reuse of a former Mylan warehouse for research and development and will soon welcome the groundbreaking East End Village project, a $100+ million mixed-use development along Richwood Avenue that represents a new chapter in urban development for West Virginia.
The Partnership’s professional team excels at creating effective public/private partnerships, leading efforts to expand and retain existing businesses and aggressively marketing the region as a smart choice for new business locations.
Partnership (Chamber of Commerce) members benefit from numerous networking opportunities throughout the year, including the monthly Business After Hours series, Business Before Hours gatherings, the Partnership’s Annual Dinner and the annual golf outing. These events provide valuable opportunities to connect with fellow business leaders in relaxed settings while advancing the Partnership’s mission of affirming our area as the best place to live, work and play. Recent ribbon cuttings for members celebrate this success, including SkyWest Airlines beginning service as United Express at the Morgantown Municipal Airport, the rebranding of Peak Health Aquatic Center at Mylan Park and the West Virginia Botanic Garden’s new visitor center.
Our member organization, Main Street Morgantown, celebrated its 40th anniversary in 2024 and aimed to put on or help facilitate 40 events to mark the occasion. We’re overjoyed to say not only did we reach that goal, but we exceeded it by more than 25 percent. That was achieved by our newly created Affiliates Program, which helps lower the barriers to entry for those looking to host events within our footprint. By supplying needed materials like tables, power cords, etc. and our expertise in permitting, we have helped dozens of events occur in the downtown and wharf districts and look forward to expanding that in 2025.
What sets the Partnership apart is its ability to bring together business leaders, the university and local government officials to better our community. This unified strategy focuses on attracting and retaining a multitude of businesses while creating meaningful collaboration among public and private partners.
For those interested in joining or learning about the Partnership’s efforts to shape the future of Monongalia County, visit morgantownpartnership.com to learn more about membership opportunities and initiatives.
Update your home from top to bottom and inside and out with Home Warehouse. We are your local home improvement center for interior and exterior remodeling. Whether you’re a homeowner looking to customize your home or a construction contractor building a new home, turn to Home Warehouse. We provide quality, namebrand products from energy efficient windows to durable roofing. We have everything you need to create your dream home:
• Windows
• Doors
• Siding
• Roofing
• Flooring
• Kitchen & Bath Cabinets
• Faucets
• Siding
• Vinyl Railing
• Decking
• Tools
Decks and Patios
Maybe your space is lacking a patio or deck, or maybe your current space desperately needs updated. Decks and patios are two separate entities that requires their own specific material. A patio is built at ground level, on a flat surface, and typically is constructed of a permanent material such as stone pavers, brick or poured concrete. A deck floats in the air, supported by footings, at a height of anywhere from a few inches to many feet and can be built on an existing slope.
“We’ve got everything you need to create the perfect backyard oasis,” Donna Tomasko, owner of Charleroi Home Warehouse Inc., said. “We have a great

selection of decking and railings to start or complete your project.”
Upgrading your siding can be a quick and easy way to create an ideal space, add value and curb appeal to your home. In terms of aesthetics, siding influences the look and design of your home, and it’s one of the first things people notice. On the functional side of things, siding can affect the structural integrity of your home. Damaged or worn siding may mean that it is not performing correctly.
Tomasko said Charleroi Home Warehouse Inc. has numerous durable siding options to choose from including vinyl and stone.
“We have many different options to help dress up your home,” she said. “Those extra touches make a difference, and in the end, help to create a truly unique space.”
Whether you’re interested in a new metal roof, long-lasting shingles or adding a roof to your deck or patio, updating or addressing your roofing can have several impacts. Not only does it add to your home’s aesthetics, but it can lower
electricity bills and make your outdoor space more useable.



Tomasko said her knowledgeable staff can help you navigate your options and put you in contact with local contractors.
“We really do have it all,” she said. “We can even order products for you and deliver them straight to your door. From quality materials at low prices to truly knowledgeable staff, we’re here to help you improve the overall look of your home and enjoy your investment.”
For ideas and products, browse Charleroi Home Warehouse Inc.’s complete exterior home remodeling options.
We provide quality, name-brand products from energy efficient windows to durable roofing. We have everything you need to create your dream home.
Sponsored content brought to you by CHARLEROI Home Warehouse Inc. located at 7 McKean Ave., Charleroi, PA For more information, call 724-483-8111.
Slovenian Savings and Loan Association of Canonsburg, PA will be celebrating its 100th anniversary on June 4, 2025.
Throughout the years the institution has had four main offices all having been located in Strabane, PA. The current building at 130 Boone Avenue is close to Exit 43 Houston of 1-79, AGH Canonsburg and Canon-McMillan High School.
While locally serving all residents of Washington County our assets are over $600 million and continue to grow as we are proud to be dedicated to community involvement and revitalization projects.
The anniversary celebration shall occur throughout the month of June to thank our customers for their continued loyalty.
Periodically, the details and festivity updates will be on our website:


Slovenian
Savings and Savings and Loan of Loan of Canonsburg Canonsburg




WAYNESBURG, PA – During its annual meeting of members Jan. 22, First Federal Savings and Loan Association of Greene County formally concluded its year-long celebration of its 100th anniversary and turned its attention toward the next century of service.
“Our work family enjoyed a very special year together, and I would like to thank everyone involved in making this year significant and memorable,” wrote Charles W. Trump, Jr., President/CEO of First Federal of Greene County, in his annual President’s Report.
After several special events and highlights that “offered a gratifying and full celebratory year,” according to Trump, the focus is on the future.
As nationwide economic factors continue to impact deposit activities and mortgage loans, the Association is looking forward to more local growth, namely the imminent opening of a new full-service branch in Fairchance, Fayette County, Pa.
First Federal of Greene County broke ground on the project – which involved gutting and renovating an existing building on Morgantown Street in Fairchance – last July, with plans for an opening this spring.
“In the coming weeks, we are excited to celebrate the ribbon-cutting and the opportunity to better serve that area of Fayette County and its residents,” Trump noted. “Utilizing modern décor and technology, we look forward to using this fresh and state-of-the-art facility, as we embark on another 100 years.”
The opportunity to open a branch in an underserved part of the Association’s footprint was one that could not be missed and further strengthens the ties between a neighborhood bank and its community.
“Being generous to and supportive of the neighborhoods that we serve
has continued to be an expectation and special mission for First Federal of Greene County,” Trump wrote. “We believe that this effort and focus has played a crucial part in the bank’s evolution and growth, and our compassion for these special communities will continue as we evolve and grow in the next 100 years.”
Financial highlights from 2024 included $1.017 billion in assets, $863 million in deposits, and $672 million in the Association’s mortgage portfolio. Despite higherthan-usual mortgage interest rates for the last couple of years, the Association still booked $5.7 million in loans, and the year-end mortgage effective yield totaled 3.968 percent. While consumer confidence nationwide still seems a bit unsettled, one point that the Association cannot waver on is technology, and the protections it provides customers are more important than ever.




“The Board of Directors continues to recognize and support the reality that investments in technology will continue to be necessary and vital as the bank strategizes for immediate and future capabilities,” Trump said. “Further, safety and security are paramount, and our top priority, in serving our customers.”
Along with Trump, the Board of Directors includes Chairwoman Judi Goodwin Tanner, Gregory A. Parsons, Jay S. Hammers, Murray W. Hoy, Stephen M. Neubauer, Douglas A. Wilson and Michael C. Baily. Tanner, Parsons and Hammers were re-elected to 3-year terms on the Board. John E. Mariner and Henry T. Cochran serve as Directors Emeritus.
Also during the Association’s annual
meeting, Trump was re-elected President/CEO, and the following Association officers were once again elected: Chad M. Moore, Executive Vice President; Jeffrey B. Widdup, Vice President; Courtney A. Schroyer, Vice President/Chief Financial Officer; Kathleen M. Toth, Vice President/Secretary; Terry L. Clutter, Vice President/Treasurer/ Assistant Secretary; Sarah A. Westfall, Assistant Vice President; Danielle R. Tobusto, Assistant Vice President; Aimee D. Toothman, Assistant Vice President; and Brian E. Moody, Assistant Treasurer.
In reflecting on the past anniversary year, Trump remarked that at the intersection of safety and success are people.
Referencing Maslow’s Hierarchy of Needs, Trump noted that meeting the basic need for safety “reinforce[s] a key factor in First Federal of Greene County’s century of success: Our customers trust us and feel safe in their financial relationship with our Association.”
“Reflecting on where First Federal of Greene County came from, what we are currently doing and
where our Association is going, it is abundantly clear that answers to all those questions center on people,” Trump continued. “I know that our next century of service will be full of challenges, success, uncertainties and growth.
“Remaining united, our Board of Directors, Officers and Employees will forge ahead into the next century, continuing our treasured legacy of service. Our special and valued customers, paired with an extraordinarily committed work family, create the perfect union for our next century of service.”
Since 1924, First Federal Savings and Loan Association of Greene County has served the residents of Southwestern Pennsylvania through a combination of traditional deposit and loan products and evolving technological convenience. Based in Waynesburg, Pa., First Federal of Greene County maintains eight offices in Greene, Fayette and Washington counties in Pennsylvania, and two First Greene Mortgage subsidiary offices in Morgantown and Bridgeport, W.Va. For more information, visit www.ffgc.bank.
































Story and photos by Dave
Zuchowski
Alex and Lana Ramsey had a professional background that dovetailed with an enterprise they both had an interest in.
Alex worked in the oil and gas fields, where he saw first-hand what the fractional distillation process is all about. Lana was a fourth-generation small business owner with experience in the restaurant industry. The combination of backgrounds proved a good start to fire up their aspiration to open a distillery.
The couple met as students at St. Vincent College in Latrobe in 2004. They became best friends, but they didn’t start dating until five years after they first met. After getting married in 2012, they began considering opening a distillery two years later. When the COVID-19 epidemic struck in 2022 and Lana was furloughed from her day job, the couple decided to pursue their long-standing dream.
“Fractional distillation is the pulling of multiple products from a single source,” Alex said. “Whiskey distillation is pulling a single product from a single source. Both processes have similar attributes, which gave me a leg up in the operation of the distillery.”
Besides the fact that Alex had a basic understanding of the processes involved, the couple also toured area distilleries where the owners mentored them on many of the basics required for a successful business model.
The Ramseys purchased the empty Citizens/Mellon Bank building in Burgettstown in February 2021 to house their proposed distillery. They then spent two years remodeling it while Alex continued to work fulltime in the gas industry. Lana also worked full time in a wealth management firm. For their two children, Kellen, 9, and Piper, 7, the building was their home away from home during the remodeling process.
To prepare the building, the couple fastened all the panels on the ceiling, put up a glass and wooden wall between the tasting room and the production area, added an outdoor patio and even went so far as to inlay the pennies you’ll find in the floorboards in the bar. During the renovation, Lana was responsible for the overall design aesthetic, while Alex handled much of the construction.
Self-financed and currently debt-free, the distillery saw its first product coming out of the still in
December 2022. Aged in two-liter barrels, the whiskey went on the market shortly after Heist Spirits, as the distillery is called, in January 2023.
“We both always had an interest in the Prohibition Era and the Golden Age of bank robberies,” Alex said. “We’re very Bonnie and Clyde and initially wanted Heist to be our brand name, but it had already been trademarked. Considering other names, when I told Lana that my day job in the oil fields was like wearing golden handcuffs because the job paid so well it was hard to leave, she suggested golden handcuffs as our brand.”

In the first full year of production, the distillery barreled 1,510 gallons of whiskey. In 2024, that figure jumped to 2,660. Upstairs, the current inventory is 375 gallons, with another 4,500 gallons aging downstairs in 30-gallon barrels.
“All our spirits are as local as you can get,” Alex said. “Our grains come from a 10-mile radius around Burgettstown and Avella, and our barrels are made from Pennsylvania white oak. We harvest our grain,
LANA
haul it, mill it, mash it, ferment it, distill it, bottle it and cocktail it here at the distillery.”
The process to make their five whiskeys — a bourbon, a rye, an unaged corn whiskey, an appleflavored whiskey and a Banker’s Blend whiskey — and four types of gin is, in the words of Alex, “very sciencebased,” meaning there’s a lot of measuring from start to finish.
To celebrate their second anniversary in the business, the Ramseys produced a Banker’s Blend, a Pennsylvania whiskey flavored with roasted pine nuts, raisins and a touch of cinnamon. They released the 100-proof blend at the end of January. In the future, they plan to release the same blend annually.

Currently, Heist Spirits is marketed at the distillery and can also be found at the President’s Pub in Washington and Homewood Suites in Pittsburgh’s Strip District. Lana usually tends the bar at the distillery and creates a monthly series of five or six craft cocktails.
“I’ve been flavor profiling for a long time now, she said, calling attention to her years


serves glasses of Borelli Cabernet Sauvignon and Sauvignon Blanc.
Since opening two years ago, Heist has developed a solid local clientele. On weekends, Alex said, it also pulls people from as far away as one hour from Pittsburgh and Westmoreland County.
While the in-house food menu is limited to charcuterie plates and pies baked by Primrose Farms of McDonald, patrons are invited to bring their own food or order food from outside. Live, intimate music by local musicians is featured on Friday or Saturday evenings.
For those interested in learning more about the distillation process, Alex offers walk-andtalk facility tours, which cost $20 per person and include a signature cocktail of choice and tastings of up to nine whiskey or gin samples.
Heist Spirits, located at 1606 Main St. in Burgettstown, is open Wednesday through Sunday. Hours vary. For more information, phone 724-2880072 or visit heistspirits.com.
pairing flavors while cooking Italian and French fare.
One creative cocktail she calls the Coal Miner’s Daughter, for instance, pays homage to the area’s Appalachian roots. It combines unaged corn whiskey, activated charcoal, lime, and house-made elderberry and mulberry syrups with elderberry creamed honey and a black salt rim.
Another imaginative cocktail she made to celebrate Valentine’s Day, called Sweet Lorraine, pairs housemade chocolate liqueur, hibiscus gin, strawberry simple syrup, Swiss chocolate simple syrup and oat milk.
For those who might enjoy a milder alcoholic beverage, the Ramseys recently partnered with the Borelli Cellars in Eldersville. By arrangement, the winery sells Heist cocktails, while the distillery

Paradise Confectionary in Washington has been delighting sweet tooths with hand-dipped chocolates and candy made from family recipes for over a century. Founded in 1920 by Greek immigrant Peter Paradise, the small business is a testament to the American Dream.
In 1948, Peter brought his nephew, Jake, over from Greece to learn the chocolate business, and Jake bought the business from Peter when he retired. Jake’s daughter, Anna Berg, and her husband, David, are the third-generation and current owners of Paradise Confectionary.
“We are a small momand-pop shop and have kept the candy the same hand-
dipped quality as in the past,” says Anna Berg. Their most popular treats include chocolate-covered nuts, caramels, turtles, chocolate creams and holiday treats of every shape.
The Bergs say that it is the community that keeps them going. They have served generations of customers; some are so loyal that they have the candy shipped to them in other parts of the country.
“It is by God’s grace that we have been able to do this and truly give credit to Him,” Berg added.
In a fast-paced and everchanging world, it’s nice to know that some things, like good chocolate, are consistent.

Assorted • Hand Dipped Chocolates
Mix or Match • 1/4 to 5lb. Boxes
Decorated Eggs with Cream Filled Centers
Chocolate Bunnies • Novelties



















By Jill Thurston

Where can you get answers to your questions about the economy and about your financial health?
Jeffrey Fine, president and founder of AccountMaster, Inc. and investor advisor representative with Money Concepts Capital Corp., uses his 25 years of experience to help his clients become and stay financially healthy.
Interest rates, inflation, investing, retirement … the economy can be difficult to navigate.
Did our economy suffer a recession? Are we about to enter a recession?
Economists have been debating this for the last two years, said Fine.
“The economists in this country have been calling for a recession for the past couple of years. We might have been in one two summers ago. The jury is still out on that,” he said.
Two consecutive quarters of negative gross domestic product define a recession. “But not all of the indicators for a recession were in play, so if we were in a recession, it was very short-lived and mild. And economists are still calling for another short-lived, mild recession,” he said. “I always tell my clients, eventually they are going to be right. It’s just a matter of when.”
His point regarding the economy is, “You can’t wait to see if they are right. You have to take action now, regardless of what people are indicating for the future. If you wait to have clear sailing and all of the economists agree there are not going to be any problems, you are never going to be an investor.”
Fine is a graduate of the Washington School District and Washington & Jefferson College. He founded his tax accounting firm, AccountMasters, in 2001 and received his investment license in October 2002. “I quickly learned that investing dovetails nicely with the tax preparation I do,” he said. AccountMasters Inc. and Money Concepts are not affiliated, besides Fine being a principal for both, which allows him to help his tax preparation clients with their investment strategies. Money Concepts is an international broker-dealer firm. He serves as a regional director with Money Concepts in addition to being an investor advisor representative.
Sixty percent of his financial planning clients are also his tax preparation clients. The rest of his client base has found him through word-of-mouth or referrals from existing clients.
No matter your age, Fine believes it is never too early or late to begin investing. More importantly than what economists say about the market, he focuses on two overriding factors: a person’s risk tolerance and their time horizon. “These will have a lot to do with forming a client’s investment strategy, and every client is different,” he said.
Economic events over the last several years emphasize the need to be as financially healthy as possible, believes Fine. He offers his insights into some market trends:
He said the housing market, including the mortgage industry, is adapting to a new paradigm. Right now, it’s a tough market for first-time home buyers. “We’ve lived through this before. I bought my first house in the early 1980s, and the mortgage rates were 12 percent. The housing market was much cheaper then.” As mortgage interest rates came down, he could refinance the house several times to achieve an interest rate of about four percent.
“During the pandemic, the housing market became inflated very quickly. People were buying houses ‘sight unseen’ just by viewing them online. And there were bidding wars on homes. Mortgage interest rates were below three percent. Now that mortgage interest rates are five and six percent, the home needs to devalue a little to be bought at that rate,” he said.
“We are in a bit of a bubble, and it’s very difficult right now to afford a new home. But I think sometime through this year, if the federal reserve starts to lower interest rates, the mortgage industry will also lower interest rates, and that should make it a little better for first-time home buyers.”
And he’s hoping to see the inflation rate decrease throughout this year as well. “Inflation is slowly falling, but the consumer is still suffering from higher than average cost for everyday household needs,” he said.
Advice from qualified professionals can provide peace of mind through each season of life and economic events. Fine and AccountMasters provide income tax preparation, payroll services, booking keeping and business consulting. Fine offers financial planning through Money Concepts, Inc.
Jim Herriott, 83, shows that people living with dementia can do amazing things.
He recently completed his 10,000th word search puzzle. In January, friends and family celebrated his achievement at Woodside Place of Washington, a dementia care community run by Presbyterian SeniorCare Network where he lives.
“It keeps me busy,” Jim said, wearing a big smile and a T-shirt that read “G.O.A.T. – 10,000+ word search.”
It all started in January 2023. Jenn Snyder, lifestyle engagement team lead at Woodside Place of Washington, began providing word search puzzles to keep Jim busy because she knew he had previously enjoyed them.
He took to them with enthusiasm and kept asking for more. Jenn Snyder supplied him with more puzzles, up to 15 per day. In addition to traditional word searches, Jim also challenged himself by doing foreign language searches and number searches.
Two years later, he hit the 10,000 mark (10,229 as of Jan. 31) and is now known as ‘The Word Search Guy.’”
“It keeps his brain working,” Jenn said.
At the celebration, the Woodside Place team gave Jim a framed certificate and his favorite candy: Reese’s Peanut Butter Cups.
“Dad likes helping to tend to some of the residents here as it allows him purpose,” Jamie said. “He also loves to do word search puzzles and is very proud of the recognition that is bestowed upon his success.”
Jamie credited Woodside Place for honoring her father’s need for routine. “Dad has his strict routines, and the staff honor them to help him thrive in his environment,” she said. “My family is so very blessed and grateful for all the care that is given to my dad, as it is easily noted how the residents are priority here at Woodside Place.”


Jim’s daughter, Jamie Golden, said Woodside Place has helped her father. He suffered a brain injury in 2022 that resulted in a decline in his ability to make simple decisions and manage his day-to-day routines, she said.
During his working years, Jim was a machinist for McGraw Edison Power Plant in Canonsburg and an auto mechanic at Pavcic Auto Shop in Canonsburg.
About Woodside Place of Washington Woodside Place of Washington is a residential community that serves people living with dementia. It is owned and operated by Presbyterian SeniorCare Network.
When it opened in 2020, Woodside Place became Washington County’s first freestanding, dementia-specific assisted living community that emphasizes individual choice, engagement, and each person’s concept of “home.” Woodside Place also has an Adult Day service that offers social interaction and enrichment programs in a safe environment while giving caregivers time to rest, run errands, and finish other tasks.
To arrange a tour, contact Tara Gleason at 724.250.4981 or tgleason@SrCare.org, or visit Washington.SrCare.org.
























































Debra Swi and her team at Swi Audiology have been providing hearing care services to the people of Pittsburgh since 1987. Her personal and business mission to help individuals with hearing loss has remained steadfast. Over the years, the practice has expanded to three locations: Washington, Bethel Park/South Hills, and North Hills. e diverse sta includes Doctors of Audiology, Board-Certi ed Hearing Instrument Specialists, and dedicated support sta . Many may not realize that cognitive decline is one of the most common issues associated with aging. Research increasingly shows a correlation between hearing loss and cognitive decline. Hearing loss is the number one modi able risk factor for dementia, and treating it with hearing aids is one of the best ways to preserve cognitive health. “One comprehensive hearing evaluation includes a full hearing test to identify the degree and type of hearing loss you may have,“ notes Swi . is information helps determine whether you could bene t from hearing aids.
What sets Swi Audiology apart for our patients is the commitment of our dedicated sta members, who work closely with them to ensure they feel heard and cared for. “Our patients experience a family-like atmosphere that combines cutting-edge innovations with the best options to meet their hearing needs,“ explains Swi . “We understand that in today’s market, individuals are o en overwhelmed with promotions and gimmicks. While the ultimate choice is the patient’s, we strive to educate them by considering their needs, lifestyle, budget, and hearing pro le to assist in making the right decision.“
rough Swi Audiology’s hearing aid test drive program,

patients can try their hearing aids in real-life scenarios. “You wouldn’t buy a car without a test drive, so why would you buy a hearing aid without one?“ Swi asks. It is incredibly ful lling for our patients, their families, and Team Swi to know that we have improved someone’s quality of life. To learn more, visit swi audiology.com.
Comorbidities and Hearing Loss














Story by Emily King
Steven Bradley Ward was so full of life that when he tragically passed away on Dec. 6, 2015, at 34 years old, his family and friends knew that they had to find a way to see his legacy live on.
Ward graduated from Washington High School in 2000 and Waynesburg College in 2004, earning a degree in criminal justice. At 6’3” and gifted in athletics, he was in the prime of his life when he suffered a massive stroke as a complication of the flu.
Reeling from such a devastating loss, Steve’s family and friends chose to honor his life by establishing a nonprofit foundation that would help others in his name. Steve never thought twice about stepping up when someone needed him. The Steven Bradley Ward Foundation honors Steve’s life by supporting community members during times of crisis.
The Steven Bradley Ward Foundation was the March recipient of Washington Auto Mall’s Driven By Hope award. Washington Auto Mall grants this monetary award monthly to promote and support local organizations that benefit the com
For almost ten years, the Steven Bradley Ward Foundation has been changing lives in Washington County by financially aiding those who have experienced catastrophic losses or hardships due to medical challenges, emergencies, fire, natural disasters, job loss and more. With the funds raised, the foundation has also been able to support the Salvation Army, Washington City Mission and the DARE program of the Washington County Sheriff’s Department. The organization also honors veterans by placing wreaths at the National Cemetery of the Alleghenies.
As of January 2025, the Steven Bradley Ward Foundation has been able to give back over $100,000 to the community since its inception in 2016. One of their biggest fundraising events is their annual Steven Bradley Ward Foundation Snowball Christmas party. The holiday bash features live music, food and a Chinese auction. All proceeds from the event go directly to causes within the community. The event was on hiatus this year, as the foundation is planning on some exciting new ways to raise funds and support the Washington area.
The Steven Bradley Ward Foundation has worked with local businesses like Red Fox Winery and Lounge to support the Toys for Tots Stuff the Caboose Challenge, which collects toys for local children during the holidays. The foundation has also sponsored the Main Street Farmers Market, helping provide needed exposure to local farms and other small businesses. It has also donated 100 pairs of headphones to the Washington Salvation Army’s back-to-school distribution drive.
The foundation also spreads awareness about organ donation. Steve was an organ donor, and through this selfless choice, he was able to help save the lives of others. You can learn more about organ donation through the Center for Organ Recovery and Education at core.org.
“When we invest in our community, whether through sponsorships, charity events or donations to organizations, we contribute to creating a stronger, more connected place for everyone,” explains Jennifer Trapuzzano of Washington Auto Mall.
Since launching the Driven by Hope campaign in January 2024, Washington Auto Mall has been able to support a wide variety of incredible organizations in Washington. Read more about the monthly recipients at observer-reporter.com/drivenbyhope.



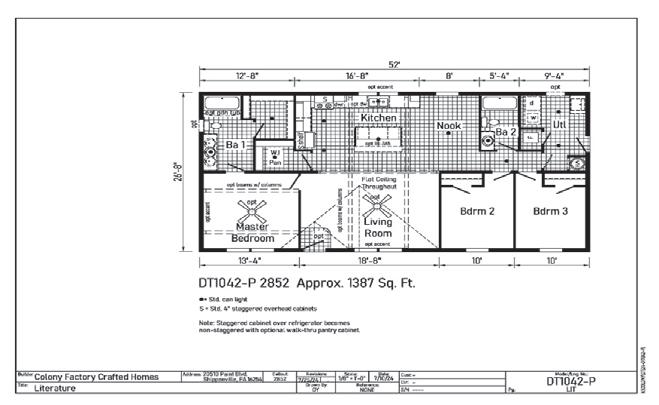
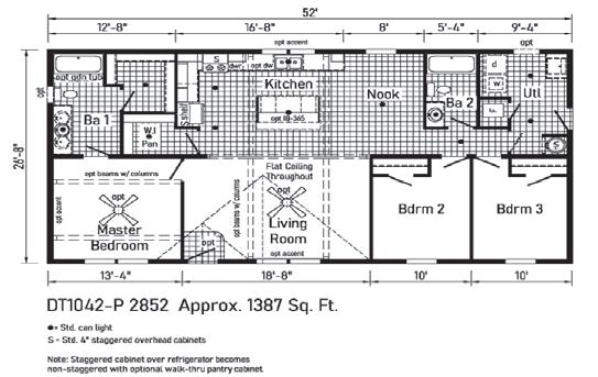
Modular homes have experienced growth in popularity over the recent years. Others look to modular homes for savings or for a second home.
Modular homes are built to residential standards in a factory, then delivered and assembled at the construction site. The time savings and the efficiencies of producing most of the structure in a modern factory also make modular homes a great value.

*Working with home owner in obtaining all necessary permits
*Concrete – Foundation drawings
*Plumbing
Follow these tips to help you find a modular home that will fit all of your needs.
Your first step is finding a qualified, licensed dealer who works with modular home manufacturers.
Route 21 Homes has been doing it for 46 years in Pennsylvania and West Virginia. With 2 locations in Carmichaels, Pa and Donegal, Pa.
Route 21 Homes can handle all aspects of construction on your new home. They will make certain that the design meets your specifications and budget.
Route 21 Homes will oversee all aspects of construction of your new home, including but not limited to:
*HVAC
*Electrical
*Carpentry work on site
*Project manager to oversee your project
In addition, Route 21 Homes can assist with finding the perfect match for your individual lending needs. We have partnered with multiple local lenders, providing our customers with both options for financing and great rates. However, if you prefer, you are always welcome to bring your own lender to the table.
Each manufacturer has different options. There are sizes, floorplans, and architectural designs to consider. Maybe you would prefer a ranch, two-story, cape cod, or a chalet-style structure.

You can customize the look to meet your lifestyle and budget.
Modular homes are manufactured using innovative technologies in a
controlled environment, the result is a more precisely built home. Variations in weather during construction will not affect the home. Manufacturers purchase massive quantities of materials for their factories, so they pass their cost savings on to you.
Under normal circumstances, production time at the factory is approximately 2-3 months. The structure will be delivered to your job site and placed onto the foundation. After that, the final process of construction usually takes 12 weeks depending on the home and job site.
Come visit Route 21 Homes at one of their 2 locations, Carmichaels and Donegal, to tour over $2,000,000 of model homes. While your touring make sure to take note of the many options and features available to you, turning you house into your family home.
Route 21 homes is proud to be the largest Pennwest Homes builder in the Northeast as well as being named the 2023 Best of the Best in Home Construction. Taking pride in making customers dreams a reality is job number one at Route 21 Homes!





































































































Centerville Clinics is an American success story. It began with a revolutionary idea: provide quality medical care in communities where there were few, if any, doctors -- and do it regardless of a patient’s ability to pay.
The story started in 1955, when Joseph A. “Jock” Yablonski led a group of coal miners who wanted to bring quality medical care to the small communities in western Pennsylvania. They wanted to serve the entire community, not just miners. From its first day, with two doctors seeing patients at a local farmhouse, Centerville Clinics looked for ways to meet the healthcare needs of its neighbors.
Today, the Centerville Clinics network includes 12 medical clinics, 5 dental offices, and 10 behavioral health sites serving more than 40,000 patients throughout Fayette, Greene, and Washington counties with medical care, dental services, diagnostic services, specialty care, and behavioral healthcare.
Specialty services include dermatology, podiatry, laboratory services, and a Radiology Department that includes state-ofthe-art 3-D mammography. Centerville Clinics also has a fullservice pharmacy.
success by how we help others.” He added that Centerville Clinics is accepting new patients at all of its locations, and that the Clinic staff can help with having patient records transferred.
The latest changes to the network are the opening of a new, expanded location for the Connellsville Medical and Dental Office, and a $1.9 million renovation of Carmichaels Clinic that was funded in part by a grant of $945,324 under the Health Center Construction and Capital Improvements section of the American Rescue Plan.

Niccolai believes, “Our future is bright.” Centerville Clinics has been nationally recognized for excellence by the U.S. Department of Health and Human Services (HHS) that honored Centerville Clinics as a Health Center Quality Leader for “exemplary service and commitment to quality healthcare.” The Clinic is certified by the National Committee for Quality Assurance as a Patient-Centered Medical Home (PCMH) location.
Locally, Centerville Clinics was honored as the “Best of the Best” recipient in Washington County in each of the past three years and a Community Choice Award winner in Fayette County in 2023 and 2024.
Centerville Clinics has a mobile medical van that can provide services in small, rural communities and recently launched a Community Healthcare program to help bridge the gap between patients and providers. The healthcare professionals in this program can help people to access health-related services.
“The goal of everything we do at Centerville Clinics is to serve people in our communities,” said Barry Niccolai, chief executive officer of the Centerville Clinics network.
“Service is in our organizational DNA. We measure our
Centerville Clinics offers convenient appointments and works diligently to keep waiting times to a minimum. Patients also have the option of using the Patient Portal, available 24 hours a day, seven days a week, as a secure website that allows patients to privately view basic lab results and portions of their medical record, as well as request prescription refills and securely message their care team.
Centerville Clinics is a Federally Qualified Health Center (FQHC) that participates in most insurance programs, including Medicare, Medicaid, UPMC, and Highmark.


























Spring Special FREE Surge Protection with any New Electrical Service Upgrade. Update that outdated Breaker Box and Electrical Grounding.
Emergency Generators Spring and Summer thunderstorms & windstorms often cause loss of house power. We can help you size a generator for your home or office (permanent or portable).
Swimming pool or jacuzzi safety Swimming pools and jacuzzis present several electrical hazards due to the presence of water and electrical components.
Contact us for swimming pool or jacuzzi electrical safety, faulty or improper wiring, bonding and grounding issues, exposed electrical, we can help you get this to code!
Never use extension cords to plug in a swimming pool.
We can install GFCI Protection for all your outdoor electrical outlets. Call us and we can help you with that!


















