

Behind the gates the world softens
Patrick + Suzanne
NOTICE OF DISCLAIMER
This Memorandum has been prepared solely to assist interested parties in deciding whether to express their interest in the assets and then making their own evaluation of the property and its assets. The Memorandum does not purport to contain all information that a prospective Purchaser may require. In all cases, interested parties should conduct their own investigation, analysis and verification of the data contained in this Memorandum and the property. Neither the delivery of this Memorandum nor any contractual agreement concluded thereafter shall under any circumstances create any implication that there has been no change in the affairs or prospects of the property since the date of this Memorandum or since the date as at which any information contained in this Memorandum is expressed to be applicable.
The Advisors have not independently verified any of the information contained in this Memorandum. None of the Advisors or Owner make any representation or warranty as to the accuracy or completeness of the information contained in this Memorandum and none of the Advisors or Owner shall have any liability for any statements, opinions, information or matters (express or implied) arising out of, contained in or derived from, or for any omissions from, or failure to correct any information in this Memorandum, or any other written or oral communications transmitted to any recipient of this Memorandum in relation to the property.
Retention of this Memorandum will constitute acceptance by the recipient and readers of these terms and conditions and any recipients who do not accept any of the terms and conditions should return the Memorandum to the Advisors immediately.


Something deeply reassuring, a sun-filled, private mid century bungalow reimagined with timeless proportion and effortless indoor, outdoor living.

Feel at home. Instantly.





Settle down. Indefinitely.
Space
Private, sun filled and low maintenance, it feels like reclaiming your time. The north easterly orientation draws light deep into the interiors, while outdoor living and garden spaces remain sheltered and secluded.
Personality
The floating timber staircase is sculptural and warm, descending through a double height volume and framed by expansive glazing. Light enters from the north, settling into the home in a way that feels calm rather than dramatic. It is a house that breathes.
Family feel
Two generous living areas and four large bedrooms, including two ensuites, provide rare flexibility. Upstairs and down, the separation works beautifully for blended families, teenagers, adult children returning home, or guests who need their own space. A secondary living and study area creates independence without compromise.



Become a local. Immediately.
Cosy
community
The local retail strip is the perfect mix of the great coffee, informal dining, a small corner bar, bookshop, designer stores and more. It’s where the family dog will be on a first name basis with everyone.
Entertain
everyone
Situated on the city fringe and recognised as New Zealand’s most prestigious suburb Herne Bay is steeped in history, feels sophisticated and combines quite streets with unsurpassed access to the harbour.
Work ... then walk.
Auckland is the powerhouse of the national economy. A relaxed and proud city where big moves can be made, friendly people welcome everyone and stunning coastlines are a short trip from city.

19 Lawrence Street
Surrounded by leafy suburbs, on Auckland’s stunning harbour and with easy access to motorways this location has everything on offer.
25 minute drive to Auckland International Airport.
5 minute drive to the CBD
5 minute walk to the local cafés

Ferries to Gulf islands

The open plan living domain carries a subtle modernist influence, centred around a designer kitchen by Wim de Bruin of Aveora and anchored by a wall of glass sliders opening to outdoor entertaining on a generous balcony terrace.






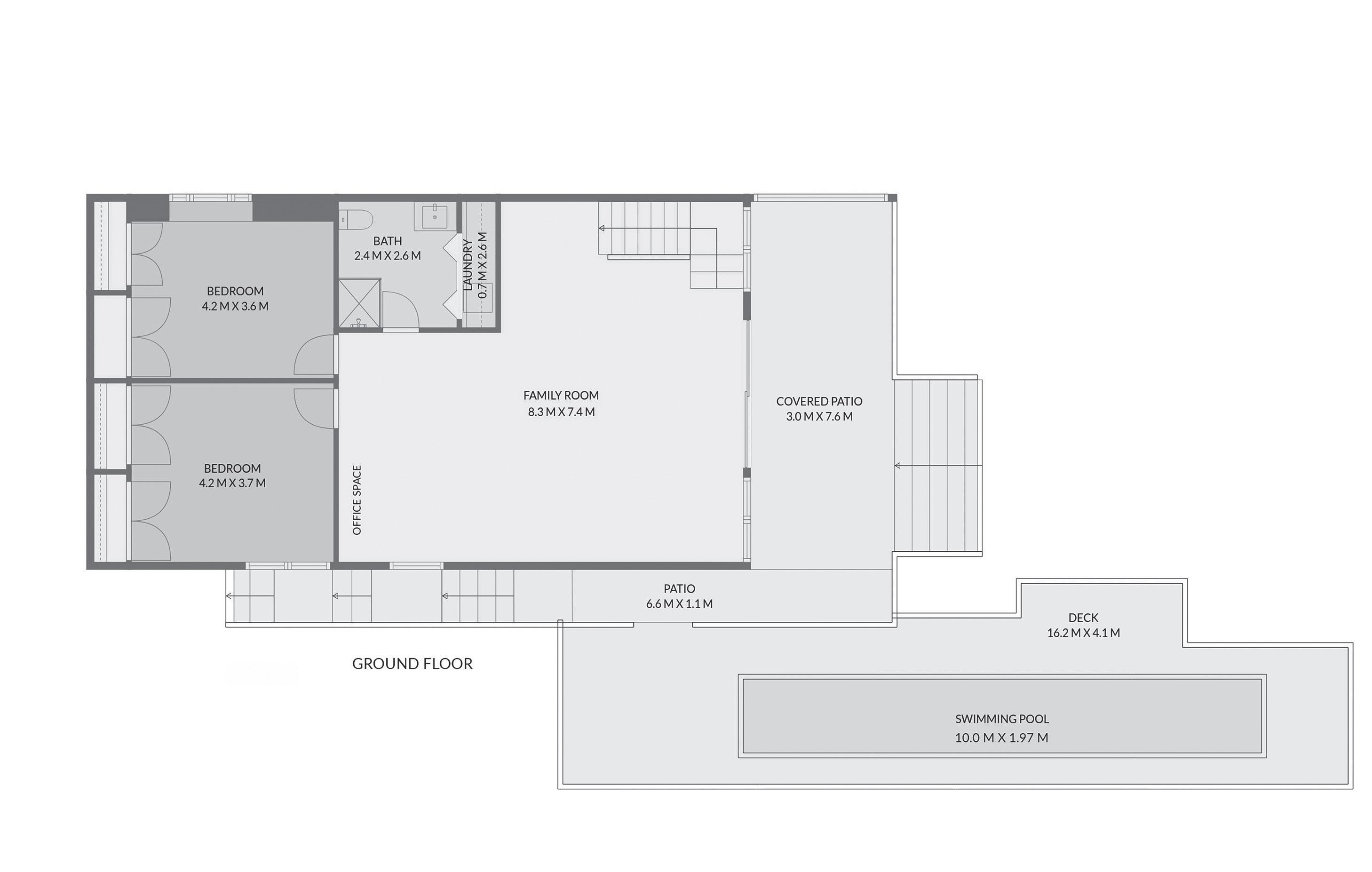
FLOOR 1
Classic Contemporary.
Details:
Title - Freehold
Legal Description :
Part Lot 18 Section 1 Allotment 7 Section 8, and Part Allotment 7
Section 8 Suburbs of Auckland
Two Titles, Limited as to Parcels
Land - 470 sq m (more or less)
Floor - 317 sq m (approx.)
Built - 1920s
Capital Value - $4,675,000
Local Authorities: Auckland City Council
Interior Property Features:
Fully repainted interior
Roof repainted (2025)
Contemporary full height linen curtains throughout
Designer lighting including Simon James and Snelling Studio
Kitchen and Living:
Designer kitchen by Wim de Bruin of Aveora (2023)
Island a mix of wood, scalloped detail, and nocturnal cabinetry
Granite benchtop with black slate to back bench
Fisher and Paykel appliances
New timber flooring (2023)



Bathrooms:
Ensuite bathrooms fully refurbished (2024)
Artedomus tiling throughout lower level, and master bedroom ensuite
Organic brass tapware and fittings
Ground floor bathroom upgraded (2025)
Slate flooring and contemporary steel grey fittings
Outdoor and Pool:
Swimming pool resurfaced (2023)
High end pool tiling and detailing New timber decking to 1st floor balcony
Chattels:
Oven, Gas-hob, Dishwasher, Fridge/freezer, Rangehood, Dishdrawers, Rangehood, Washing machine, Dryer, Heated towel rails, Alarm, Light fittings, Smoke detectors, Curtains, Blinds, Fixed floor coverings, Garden shed, Garage door remote.







Patrick McAteer
T: +64 21 664 859 patrick.mcateer@nzsir.com
Suzanne Browne
T: +64 21 830 096 suzanne.browne@nzsir.com
