Evolution of Student Work

Page 1


95% of graduates were employed or pursuing further education within 1 year 10:1 Student-to-faculty ratio 593

New York School of Interior Design is a private, nonprofit college focused exclusively on interior design. The College offers certificate, undergraduate, and graduate programs for students at all stages of their careers—whether they’re just becoming familiar with the discipline, considering a career change, or looking to deepen knowledge in a particular area. Consistently ranked one of the top interior design programs in the United States , students study both residential and commercial interior design, some with specialties in sustainable design, lighting, digital practice management, and healthcare interiors. NYSID students enjoy a small class size and sharp focus, along with a great deal of personal attention from dedicated faculty. They go on to practice at the highest levels of the profession.

Evolution of Student Work

First Year | First Semester

Dive into our design courses and ignite your creativity! Historical Styles I brings the past alive, tracing the evolution of interiors and architecture. Basic Drafting sharpens your skills with both hand and digital techniques. Color for Interiors allows you to master color theory to transform spaces, while Visual Concepts hones your design instincts through dynamic drawing exercises. Textiles for Interiors unveils the secrets of fabrics, from their history to their applications in stunning interiors.

Color for Interiors | Jackson Stinebaugh
| Diana Carrillo Navarrete
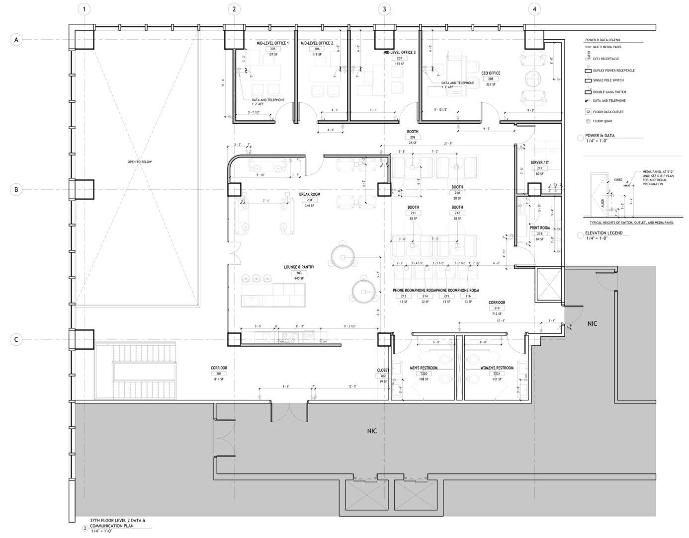
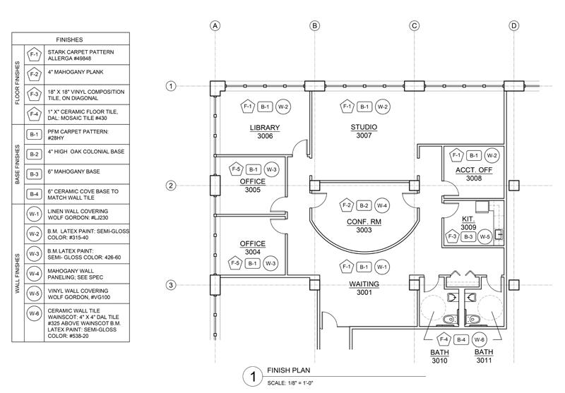
Basic Drafting | Sharon Gordon
Color for Interiors | Ana Amescua
Textiles for Interiors | Erin May

First Year | Second Semester

Continue to develop your design passion with our advanced courses: Historical Styles II explores the history of design through the modern era, while Construction Documents I covers the basics of building documentation as you learn advanced CAD skills. Dive into Residential Design I, perfect your sketching in Hand Drawing and Rendering, and master sustainability and building codes for today’s interiors. Consider meeting your design history requirements with a NYSID Study Travel course to Europe or farther-flung locales such as Mexico City, Istanbul, or Tokyo.

Hand Drawing and Rendering | Emily Crompton-Candy

Second Year | Third Semester

Elevate your design journey with our second-year, thirdsemester courses: master modern architecture's evolution, sustainable design, and cutting-edge presentation techniques. Gain crucial insights into more complex residential design and essential systems like HVAC and lighting. Prepare to excel in the dynamic world of interior design with hands-on, impactful learning.

Presentation Techniques I | Haruko Utsuki
Residential Design II | Elizabeth Royds
Presentation Techniques I | Devanshi Sidhpura
Residential Design II | Yuliya Martin

Second Year | Fourth Semester

Advance your design career with our second-year, fourth-semester courses. Dive into modern architecture’s evolution, refine your business acumen with Professional Practice I, and perfect your skills in Construction Documents II using Autodesk Revit. Explore environmental impacts, master lighting design, and tackle contract design for diverse non-residential spaces.

Lighting I | Ashley Gensler

Third Year | Fifth Semester

Enhance your design prowess in the third year, fifth semester, with a dynamic array of courses. Delve into cultural anthropology, refine your visual presentation skills in Presentation Techniques II, and tackle a complex mixed-use project in Residential Design III. Explore Design Theory, advance your lighting skills in Lighting II, and master cabinetry and trim design in Architectural Woodwork Detailing. This is also the semester or year when you can study at NYSID in Florence, Italy.

Architectural Woodwork Detailing | Caitlin Shulski
Lighting II | Frida Jansholt
Residential Design III | Kare Davy
Lighting II | Mariia Dolinsky
Presentation Techniques II | Mariia Dolinsky

Third Year | Sixth Semester

Advance your design career in the third year, sixth semester, with engaging coursework. Deepen your expertise with Contract Design II, where you will focus on creating a "branded environment" through the design of a hotel lobby, retail store, and executive suite. Explore Art & Society I: Pre-19th Century and Humanities I, enhance your skills in Presentation Techniques III, and select a professional elective to personalize your educational journey.

Contract Design II | Madelaine So
Presentation Techniques III | Nicole Hand
Presentation Techniques III | Taurean Jones

Fourth Year | Seventh Semester

In your fourth year, seventh semester, immerse yourself in Art & Society II: 19th & 20th Centuries and Humanities II. Gain practical experience with Kitchen & Bath Design and Professional Practice II. Prepare for your future with Thesis Preparation, advance your expertise by exploring healthcare environments in Contract Design III, and choose a design history elective to round out your education.

Contract Design III | Satchel Gonzalez Macias
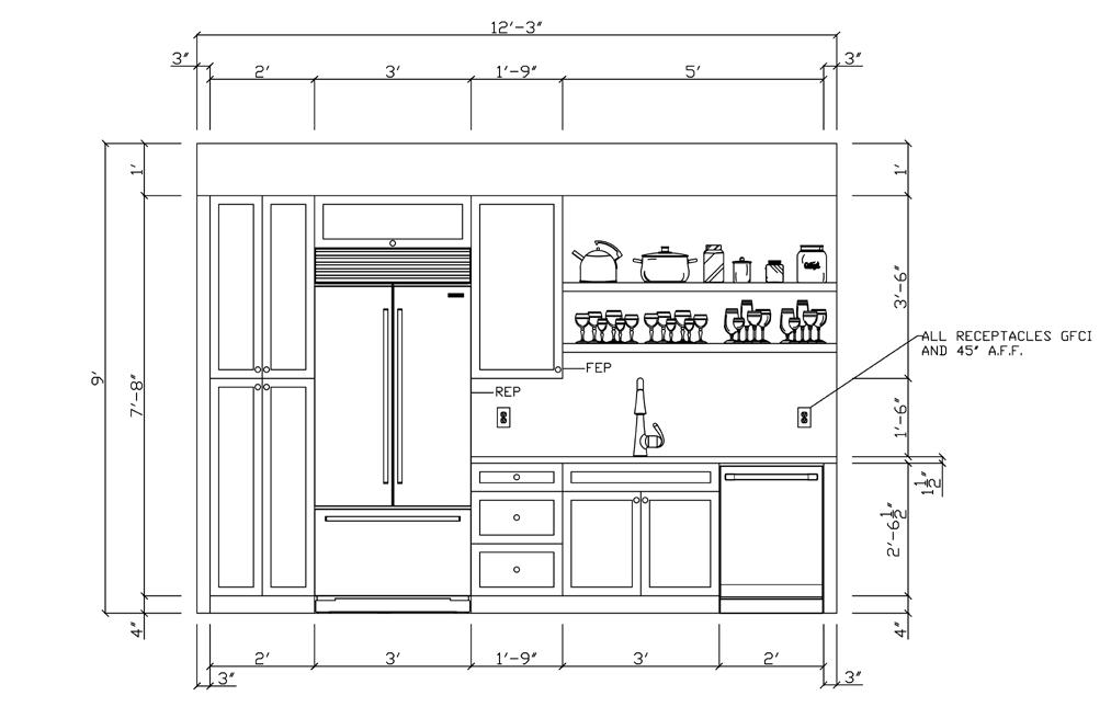
Kitchen & Bath Design | Gala Aguilar
Contract Design III | Charrli Genovese

Fourth Year | Eighth Semester

As you complete your NYSID journey, dive into Furniture Design and focus your creativity on developing and producing your Thesis project. Deepen your expertise further with a design history elective and select an additional professional elective to perfect your skills and prepare yourself for the industry.

Furniture Design | Sean Diamond
Thesis | Deldrys Gomez Reynoso
Thesis | Vicenza Lampon

Master of Fine Arts in Interior Design (MFA1)

The MFA1 in Interior Design is a dynamic, three-year program that transforms students into creative designers and visionary leaders. With a focus on global practice, sustainability, and cultural impact, this 90-credit degree equips you to innovate and lead in the interior design world.

Thesis | Samantha Shyer
Thesis | Sara Schipani
Furniture Design | Sara Schipani
Thesis | Jason Win
Thesis | Simone Lawton
Thesis | Violette Pheonix Chartock

Post-Pofessional Master of Fine Arts in Interior Design (MFA2)

The Master of Fine Arts in Interior Design (MFA2) is a dynamic, two-year post-professional program for seasoned designers seeking to push boundaries in interior design. With an emphasis on advanced creative and academic research, students engage in complex projects and interdisciplinary study, culminating in a comprehensive thesis.

Mishkin Mande
Thesis | Afsin Zehra Musa

Master of Professional Studies in Design of Healthcare Environments (MPSH)

The Master of Professional Studies in Design of Healthcare Environments (MPSH) immerses you in the knowledge required to craft spaces that transform healthcare and wellness. Over one full year, you will use cutting-edge design thinking techniques to apply research, explore healing environments, and tackle real-world challenges. Prepare to impact patient care and staff well-being with innovative, research-driven solutions.

Thesis | Katherine Ugorec
Thesis | Jinal Panchal
Innovation & Design Lab I | Wenqi Yu
Thesis | Rebecca Blodgett

Master of Professional Studies in Lighting Design (MPSL)

The Master of Professional Studies in Lighting Design (MPSL) and its online counterpart (MPSLD) immerse you in the art and science of lighting. Within 30 credits, you will explore innovative techniques, sustainability, and impactful design. Prepare to lead in lighting design by enhancing spaces and experiences with transformative illumination.

Thesis | Youngjoo Kim
Thesis | Nirali Prajapati

Master of Professional Studies in Sustainable Interior Environments (MPSS)

Transform your design career with the Master of Professional Studies in Sustainable Interior Environments (MPSS) or its online variant (MPSSD). This 30-credit program equips you to lead with innovative, up-to-date scientific research, emphasizing resource conservation and high-performance building principles. Shape beautiful, resilient, energy-efficient interiors and drive positive change.

Sustainable Studio II—Contract Environments | Stefano Falez
Sustainable Studio I—Residential Environments | Samantha Berlanga & Johannah Sy
Sustainable Studio II—Contract Environments Grace Spiezia

Master of Professional Studies in Digital Practice Management (MPSM)

Lead the future of design with NYSID's pioneering Master of Professional Studies in Digital Practice Management (MPSM). This groundbreaking program equips you with advanced skills in digital project management, from mastering software tools to optimizing workflows. Shape efficient design and construction processes and advance your career in digital practice management.

Interdisciplinary Design Coordination
Advanced Modeling

Turn static files into dynamic content formats.

Create a flipbook
Issuu converts static files into: digital portfolios, online yearbooks, online catalogs, digital photo albums and more. Sign up and create your flipbook.
Evolution of Student Work by New York School of Interior Design - Issuu