70 nye leiligheter i Knarvik sentrum

![]()
70 nye leiligheter i Knarvik sentrum


Velkommen til Kvassneshagen
Få det fint i Kvassneshagen! Her blir det enkelt å trives.
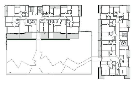
I Kvassneshagen kan en stor, grønn og felles takhage nytes. Her blir det fritt utsyn mot fjorden og lunt og godt. Det vil legges til rette for flere parsellhager for dyrking av frukt og grønnsaker, utekjøkken med pergola og lekeplass. Med takhagen som en perfekt ramme for sosiale stunder, er alt tilrettelagt for et blomstrende bomiljø i Kvassneshagen.
De 70 leilighetene vil bli fordelt på to hus med varierte leilighetsstørrelser og private balkonger/ terrasser. Leilighetene starter fra andre etasje, over dagligvarebutikken i første. Med boliger tilpasset alle livets faser, enten det er din første bolig, du har småbarn eller ønsker deg noe enkelt og lettstelt, vil du finne drømmehjemmet ditt her i Kvassneshagen.
1- til 4-roms leiligheter. Fra 44,5 til 172,6 m2 BRA. Private balkonger/terrasser.
Stor, grønn og felles takhage. Utekjøkken med pergola. Lekeplass.
Heis & garasje. Innendørs sykkelparkering. Sykkelverksted. Eksterne sportsboder. i


09 Uteområder
12 Nye & moderne leiligheter
15 Gode kvaliteter
16 Smarte 1- og 2-roms leiligheter
18 Store & mellomstore leiligheter
20 Private uteplasser til alle
23 Tilvalg
24 Kjøkken fra Designa
26 Baderom
29 Plantegninger
62 Nabolaget
66 Viktige dokumenter
67 Leveransebeskrivelse
75 Utomhusplan
77 Reguleringsplan
110 Prisliste
112 Driftsbudsjett
114 Skjema – Avtale om kjøp



Kos deg i hagen og dyrk både frukt og grønnsaker!

Deilig med grønne soner for både store og små.


Tryll frem en deilig sommersalat på utekjøkkenet
Takhagen – en perfekt ramme for sosiale stunder og et blomstrende bomiljø!
Har du grønne fingre? Det vil legges til rette for flere parsellhager for dyrking av frukt og grønnsaker på takhagen i Kvassneshagen. Kanskje du kan trylle frem en deilig sommersalat på det koselige utekjøkkenet, under pergolaen? Eller du kan ta en kaffe på benken mens du følger med på minsten på lekeplassen rett ved.
Takhagen vil bli komplett opparbeidet med oppholdsareal og lekeområder til du flytter inn. Det blir flere grønne soner, fritt utsyn mot Osterfjorden og lunt og godt mellom de to husene hvor Geco-bygget har vært. Takhagen blir foran hus A, med gangbro over til hus B.





Kvassneshagen – ditt nye hjem. Veggene som rammer inn livet og hverdagene. Men også redet som tar i mot deg, passer på deg og lar deg puste ut.



Det er mange fordeler med å kjøpe helt ny leilighet!
I Kvassneshagen får du mange gode kvaliteter og fordeler uansett hvilken leilighet du måtte gå for. Leilighetene bygges etter byggeforskriften TEK 17 som stiller høye krav til standard. Det vil blant annet bli:
• Balansert ventilasjonsanlegg med varmegjenvinner.
• Laminat på gulv, type Tarkett Woodstock Longboard.
• Listefritt rundt vinduer og balkongdører.
• Kjøkken med integrerte hvitevarer.
• Helfliset bad med varmekabler.
• Fibernett.
• Universell utforming.
• Heis i begge bygg.
• Garasje med 62 parkeringsplasser.
• Tilrettelagt for elbil-lading.
• Innendørs sykkelparkering.
• Eksterne sportsboder.
• Sprinkleranlegg.
i
Flere nybolig-fordeler:
• Du slipper budrunder.
• Boligene selges til fastpris.
• Ingen dokumentavgift.
• 5-års nybolig-garanti.
Kvassneshagens 1- og 2-roms leiligheter passer for deg som vil ha en praktisk, smart og arealeffektiv leilighet.
Er du student eller en førstegangskjøper? Vår lille, men funksjonelle 1-roms studioleilighet på 44,5 m2 BRA, er skreddersydd for den unge studenten. Med en balkong kan stuen utvides i de herlige sommermånedene.
For førstegangskjøpere, enslige eller det unge paret så har vi hele 26 stk. 2-roms leiligheter i varierte størrelser å velge i! Leilighetene har alle en privat og romslig balkong/terrasse, god plass til garderobeløsning både i entré og på soverom og ekstern sportsbod i garasjeannlegget. Noen får i tillegg en innvendig bod i leiligheten.
Studioleilighet 1 stk 1-roms. 44,5 m2 BRA.
Ett soverom 26 stk. 2-roms. Fra 47,3 til 73,8 m2 BRA.


To eller tre soverom.
I 3- og 4-roms leilighetene i Kvassneshagen får du gjennomtenkte, romslige planløsninger. Her er det god plass til både småbarnsfamilien, gjester og barnebarn – eller kanskje du kan innrede et praktisk hjemmekontor, hobbyrom eller walk-in-closet? Flere av leilighetene har to bad og/eller to balkonger/terrasser.
Velger du å bo i leilighet A 06-01 eller B 05-03 på toppen får du ekstra stor plass og hovedsoverom i tilknytning til eget bad og utgang til terrasse/balkong. Leilighet
A 06-01 har i tillegg walk-in-closet. Se plantegninger fra side 29.
To soverom
40 stk. 3-roms. Fra 72,1 til 95,2 m2 BRA.
Tre soverom 3 stk. 4-roms. Fra 114,5 til 172,6 m2 BRA.

Her finnes leiligheter med markterrasse, balkong eller terrasse.
I Kvassneshagen får alle herlige, private utplasser i varierte størrelser – enten det er markterrasse, balkong eller terrasse. Flere leiligheter får dessuten to terrasser. Høy og fri sjøutsikt ut over både Osterog Salhusfjorden kan nytes til det fulle. Alle balkonger og terrasser vil leveres med glassrekkverk.
Velger du leilighet med markterrasse får du enkel tilgang til den grønne, felles hagen, samtidig som du også blir skjermet for innsyn. Perfekt hvis du har småbarn eller en pelskledd venn. Markterrassene leveres med terrassegulv og skjermvegger.
Alt i alt – her er det bare å glede seg til å stelle blomsterkrukkene i vårsolen, grille en varm sommerdag eller nyte en kopp kaffe under teppet en kald høstmorgen.



Skreddersy ditt nye hjem
Noe av det mest spennende med helt ny leilighet er muligheten til å skreddersy den slik du måtte ønske allerede før du har flyttet inn. Er du tidlig ute i tilvalgsprosessen kan du gjøre personlige tilpasninger og tilleggsbestillinger mot pristillegg. Kanskje du kunne tenke deg flere spotter i taket? Eller andre fliser på badet? Få det uttrykket du trives best med!
Informasjon om tilvalgsprosessen blir sendt ut til alle kjøpere, slik at du kan utforske mulighetene.
Hvis du ønsker elbil-lading, vil det også bli tilrettelagt for dette i garasjen.
Eksempler på tilpasninger: Kjøkkenendringer. Parkett. Fliser på badet. Annen baderomsinnredning. Veggfarger. Spotter i oppholdsrom. Garderobeløsninger.


Andre fliser på badet?
Velg mellom flere ulike farger uten pristillegg.

Illustrasjonsbilde fra leilighet A 02-05.

Enstavs laminat leveres som standard, type Tarkett Woodstock Longboard eller tilsvarende. Velg mellom flere ulike laminattyper uten pristillegg. Som tilvalg kan det leveres parkett i flere alternativer.
Skap ditt eget drømmehjem!
Moderne og tidløst
Leilighetene i Kvassneshagen leveres med et moderne og tidløst kjøkken fra Designa. Som standard får du den stilrene kjøkkenfronten Modern By Designa i en elegant beigefarge. Kjøkkenet holder høy kvalitet med slitesterke fronter i høytrykkslaminat, påmontert profilgrep i stål, samt stålvask.
Foring fra overskap og helt opp til tak medfølger – en praktisk løsning som hindrer støvsamling og gir et helhetlig preg. Kjøkkenet leveres komplett med hvitevarer, belysning under overskap, samt kjøkkenhette av typen Slimline eller tilsvarende.
Ønsker du å sette ditt eget personlige preg på kjøkkenet, kan du kostnadsfritt velge blant 11 ulike fronter innenfor Modernkolleksjonen. Kolleksjonen består av totalt 13 ulike fronter.
Slitesterk benkeplate leveres i laminat, med valgfrihet blant 18 ulike benkeplater uten tillegg i pris. Benkeplatene kan leveres i både 2- og 3 cm tykkelse.


Induksjonskoketopp, stekeovn, helintegrert oppvaskmaskin og kombiskap med kjøl- og frys.

Katalogbilde fra Designa som viser kjøkkenfronten Modern i fargen beige. Bildet er ikke fra Kvassneshagen.


Badene i Kvassneshagen blir helfliset med flotte fliser.
Tidløs baderomsinnredning fra Designa leveres som standard med speil med lys på veggen og praktiske skuffer under den hvite, nedfelte porselensvasken. Bredden på baderomsinnredningen kan variere litt fra leilighet til leilighet.
Gulvflisene er i fargen hvit av typen Vitra Kinetic 20 x 20 med tilhørende 10 x10 fliser nedsenket i dusjsonen. Veggflisene blir av typen Cipreste Branco Opaco 20 x 40 eller tilsvarende.
1 eller 2 bad?
Flere av leilighetene får to bad. Veldig greit hvis man er en stor familie eller når man har gjester. Noen av leilighetene har bad i tilknytning til hovedsoverommet.
Det blir også: Opplegg for vaskemaskin og tørketrommel.
Vegghengt toalett med soft close. Dusjvegger i glass.
Innfelte spotter i tak. Varmekabler i gulv.




Finn drømmeleiligheten din i Kvassneshagen!
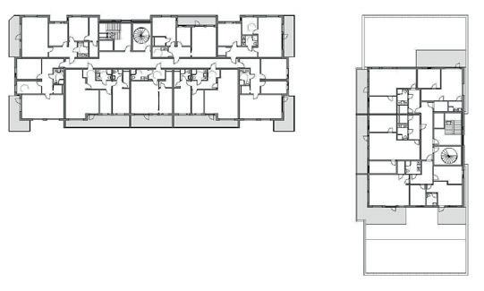
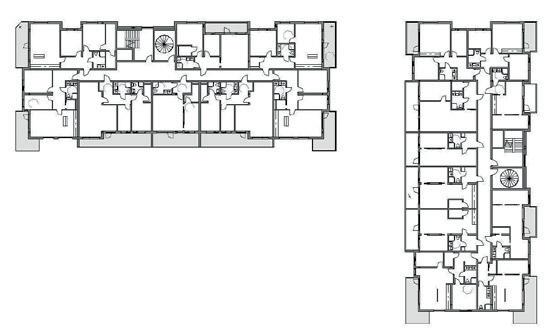
Plantegningssidene fra s. 30 til 60 viser de ulike leilighetstypene – det er totalt 30 ulike leilighetstyper.
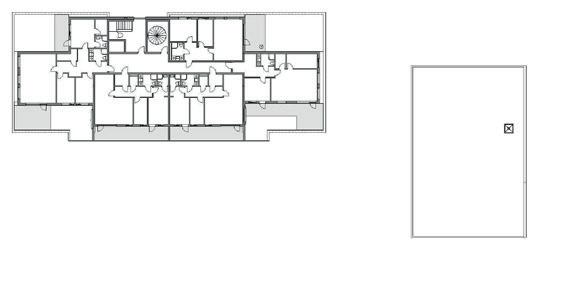
Hus A
36 leiligheter.
Fra 47,3 til 172,6 m2 BRA. Fem leilighetsetasjer.
Hus B
34 leiligheter.
Fra 44,5 til 114,5 m2 BRA. Fire leilighetsetasjer.
A 02-01 i 2. etg. A 03-01 i 3. etg. A 04-01 i 4. etg. A 05-01 i 5. etg.
Leilighet: A1
BRA-i: 93,2 m2 | BRA: 98,2 m2 | Balkong: 13 m2 Ekstern sportsbod: 5 m2 | Parkeringsplass: Ja
Bygg A, plan 02, 03, 04 og 05
BRA-i: 93,2 m 2
BRA-i: 93,2 m 2
BRA-e: 5 m2
BRA-e: 5 m2
BRA-i: 93,2 m 2
BRA: 98,2 m 2
BRA: 98,2 m 2
BRA-e: 5 m2
Type: 3-Roms
BRA: 98,2 m 2
Type: 3-Roms
Type: 3-Roms
Balkong/terrasse: 13 m 2
Balkong/terrasse: 13 m 2
Balkong/terrasse: 13 m 2
Parkeringsplass: se prisliste
Parkeringsplass: se prisliste
Parkeringsplass: se prisliste
BRA-i: 93,2 m 2
BRA-e: 5 m2

BRA: 98,2 m 2
Type: 3-Roms
Balkong/terrasse: 13 m 2
Parkeringsplass: se prisliste
Kvassneshagen
Nordpil viser husets plassering og ikke leiligheten.

Leilighet: A6-01
Bygg A, plan 06
BRA-i: 123,5 m 2
BRA-e: 5 m2
BRA-i: 123,5 m2 | BRA: 128,5 m2 | Balkong: 21,1+ 50 = 71,1 m2 Ekstern sportsbod: 5 m2 | Parkeringsplass: Ja
BRA-i: 123,5 m 2
BRA-i: 123,5 m 2
BRA-e: 5 m2
BRA: 128,5 m 2
BRA-e: 5 m2
BRA: 128,5 m 2
Type: 4-Roms
BRA: 128,5 m 2
Type: 4-Roms
Type: 4-Roms
1 : 150 Plan 06 Leilighet A6-1
1 : 150 Plan 06 Leilighet A6-1
Balkong/terrasse: 21,1+50 = 71,1m 2
Balkong/terrasse: 21,1+50 = 71,1m 2
Parkeringsplass: se prisliste Bygg A, plan 06
Balkong/terrasse: 21,1+50 = 71,1m 2
Parkeringsplass: se prisliste
BRA-i: 123,5 m 2
BRA-e: 5 m2
BRA: 128,5 m 2
Type: 4-Roms
1 : 150 Plan 06 Leilighet A6-1
Balkong/terrasse: 21,1+50 = 71,1m 2
Parkeringsplass: se


Bygg A, plan 02, 03, 04 og 05
Leilighet: A2
A, plan 02, 03, 04 og 05
A 02-02 i 2. etg. A 03-02 i 3. etg. A 04-02 i 4. etg. A 05-02 i 5. etg.
BRA-i: 67,1 m2 | BRA: 72,1 m2 | Balkong: 10,7 m2 Ekstern sportsbod: 5 m2 | Parkeringsplass: Ja
BRA-i: 67,1 m 2
BRA-i: 67,1 m 2
BRA-e: 5 m2
BRA-e: 5 m2
BRA-i: 67,1 m 2
BRA: 72,1 m 2
BRA-e: 5 m2
BRA: 72,1 m 2
Type: 3-Roms
BRA: 72,1 m 2
Type: 3-Roms
Type: 3-Roms
Nordpil viser husets plassering og ikke leiligheten.
BRA-i: 67,1 m 2
Balkong/terrasse: 10,7 m 2
Balkong/terrasse: 10,7 m 2
Balkong/terrasse: 10,7 m 2
BRA-e: 5 m2
Parkeringsplass: se prisliste
Parkeringsplass: se prisliste
Parkeringsplass: se prisliste
BRA: 72,1 m 2
Type: 3-Roms

Balkong/terrasse: 10,7 m 2
Parkeringsplass: se prisliste

Bygg A, plan 06
Bygg A, plan 06
Leilighet: A6-02
Bygg A, plan 06
BRA-i: 87,8 m2 | BRA: 92,8 m2 | Balkong: 23,9 m2
Ekstern sportsbod: 5 m2 | Parkeringsplass: Ja
BRA-i: 87,8 m 2
BRA-i: 87,8 m 2
BRA-i: 87,8 m 2
BRA-e: 5 m2
BRA-e: 5 m2
BRA-e: 5 m2
BRA: 92,8 m 2
BRA: 92,8 m 2
BRA: 92,8 m 2
Type: 3-Roms
Type: 3-Roms
Type: 3-Roms
BRA-i: 87,8 m 2
Balkong/terrasse: 23,9 m 2
BRA-e: 5 m2
Balkong/terrasse: 23,9 m 2
Balkong/terrasse: 23,9 m 2
Parkeringsplass: se prisliste
Parkeringsplass: se prisliste
BRA: 92,8 m 2
Parkeringsplass: se prisliste
Type: 3-Roms
Balkong/terrasse: 23,9 m 2
Parkeringsplass: se prisliste

Nordpil viser husets plassering og ikke leiligheten.

Leilighet: A3
Bygg A, plan 02, 03, 04 og 05
A 02-03 i 2. etg. A 03-03 i 3. etg. A 04-03 i 4. etg. A 05-03 i 5. etg.
BRA-i: 76,8 m2 | BRA: 81,8 m2 | Balkong: 13,2 m2 Ekstern sportsbod: 5 m2 | Parkeringsplass: Ja
BRA-i: 76,8 m 2
BRA-i: 76,8 m 2
BRA-e: 5 m2
BRA-e: 5 m2
BRA-i: 76,8 m 2
BRA: 81,8 m 2
BRA-e: 5 m2
BRA: 81,8 m 2
Type: 3-Roms
BRA: 81,8 m 2
Type: 3-Roms
Type: 3-Roms
Balkong/terrasse: 13,2 m 2
Balkong/terrasse: 13,2 m 2
BRA-i: 76,8 m 2
Balkong/terrasse: 13,2 m 2
Parkeringsplass: se prisliste
Parkeringsplass: se prisliste
Parkeringsplass: se prisliste
BRA-e: 5 m2
Bygg A, plan 02, 03, 04 og 05 Skala 1:150 Meter
BRA: 81,8 m 2
Type: 3-Roms

Balkong/terrasse: 13,2 m 2
Parkeringsplass: se prisliste
Nordpil viser husets plassering og ikke leiligheten.
1 2 3 4 5
1:150

Bygg A, plan 06
Bygg A, plan 06
Bygg A, plan 06
BRA-i: 87,7 m2 | BRA: 92,7 m2 | Balkong: 23,9 m2
Ekstern sportsbod: 5 m2 | Parkeringsplass: Ja
BRA-i: 87,7 m 2
BRA-i: 87,7 m 2
BRA-i: 87,7 m 2
BRA-e: 5 m2
BRA-e: 5 m2
BRA-e: 5 m2
BRA: 92,7 m 2
BRA: 92,7 m 2
BRA: 92,7 m 2
Type: 3-Roms
Type: 3-Roms
Type: 3-Roms
Balkong/terrasse: 23,9 m 2
Balkong/terrasse: 23,9 m 2
Balkong/terrasse: 23,9 m 2
Parkeringsplass: se prisliste
Parkeringsplass: se prisliste
BRA-i: 87,7 m 2
Nordpil viser husets plassering og ikke leiligheten.
Parkeringsplass: se prisliste Skala 1:150 Meter
BRA-e: 5 m2
BRA: 92,7 m 2
Type: 3-Roms
Balkong/terrasse: 23,9 m 2
Parkeringsplass: se prisliste


Bygg A, plan 02, 03, 04 og 05
A 02-04 i 2. etg. A 03-04 i 3. etg. A 04-04 i 4. etg. A 05-04 i 5. etg.
Bygg A, plan 02, 03, 04 og 05
BRA-i: 84,7 m2 | BRA: 89,7 m2 | Balkong: 14,7 m2 Ekstern sportsbod: 5 m2 | Parkeringsplass: Ja
Uteplass plan 03,04og05
Uteplass plan 03,04og05
03,Uteplassplan 04og05
Uteplass plan 03,04og05 03,Uteplassplan 04og05
03,Uteplassplan 04og05 Terrasse
Uteplassplan02
Uteplassplan02
BRA-i: 84,7 m 2
BRA-i: 84,7 m 2
BRA-e: 5 m2
Uteplass plan 03,04og05 03,Uteplassplan 04og05
BRA-e: 5 m2
BRA-i: 84,7 m 2
BRA: 89,7 m 2
BRA: 89,7 m 2
BRA-e: 5 m2
Type: 3-Roms
varierer fra 2.-5. etg.
Type: 3-Roms
BRA: 89,7 m 2
Type: 3-Roms
Nordpil viser husets plassering og ikke leiligheten.
Balkong/terrasse: 14,7 m 2
Balkong/terrasse: 14,7 m 2
Balkong/terrasse: 14,7 m 2
Parkeringsplass: se prisliste
Parkeringsplass: se prisliste
Parkeringsplass: se prisliste
BRA-i: 84,7 m 2
BRA-e: 5 m2
BRA: 89,7 m 2
Type: 3-Roms

Balkong/terrasse: 14,7 m 2
Parkeringsplass: se prisliste
1:150
1 2 3 4 5

Leilighet: A6-04
Bygg A, plan 06
BRA-i: 162,6 m2 | BRA: 167,6 m2 | Balkong: 55 + 44,7m2
Ekstern sportsbod: 10 m2 | Parkeringsplass: Ja 18.5 m² Vinterhage
A06-04-01
BRA-i: 162,6 m 2
BRA-e: 5 m2
BRA-i: 162,6 m 2
BRA: 167,6 m 2
BRA-e: 5 m2
Type: 4-Roms
Nordpil viser husets plassering og ikke leiligheten.
BRA: 167,6 m 2
Type: 4-Roms
0 1 2 3 4 5 N
Balkong/terrasse:55,0+44,7 m 2
Parkeringsplass: se prisliste
Skala 1:150 Meter
Balkong/terrasse:55,0+44,7 m 2
BRA-i: 162,6 m 2
Parkeringsplass: se prisliste
BRA-e: 5 m2
BRA: 167,6 m 2
Bygg A Bygg B Plan 06
Type: 4-Roms

Balkong/terrasse:55,0+44,7 m 2
Parkeringsplass: se prisliste

BRA-i: 90,8 m 2
Balkongene varierer fra 2.-5. etg.
BRA-e: 5 m2
BRA-i: 90,8 m 2
BRA: 95,8 m 2
BRA-i: 90,8 m 2
BRA-e: 5 m2
BRA-e: 5 m2
Type: 3-Roms
BRA: 95,8 m 2
BRA: 95,8 m 2
Type: 3-Roms
Type: 3-Roms
Bygg A, plan 02, 03, 04 og 05 Skala 1:150
BRA-i: 90,8 m 2
Balkong/terrasse: 20,0 m 2
BRA-e: 5 m2
Balkong/terrasse: 20,0 m 2
A 02-05 i 2. etg. A 03-05 i 3. etg. A 04-05 i 4. etg. A 05-05 i 5. etg.
BRA-i: 90,8 m2 | BRA: 95,8 m2 | Balkong: 20 m2 Ekstern sportsbod: 5 m2 | Parkeringsplass: Ja
Parkeringsplass: se prisliste
BRA: 95,8 m 2
Nordpil viser husets plassering og ikke leiligheten.
Balkong/terrasse: 20,0 m 2
Parkeringsplass: se prisliste
Parkeringsplass: se prisliste
Type: 3-Roms
Balkong/terrasse: 20,0 m 2

Parkeringsplass: se prisliste Bygg A, plan 02, 03, 04 og 05
1 2 3 4 5

Bygg A, plan 02
Bygg A, plan 02
Bygg A, plan 02
BRA-i: 42,2 m2 | BRA: 47,2 m2 | Balkong: 21,2 m2
Ekstern sportsbod: 5 m2 | Parkeringsplass: Nei
BRA-i: 42,2 m 2
BRA-e: 5 m2
BRA-i: 42,2 m 2
BRA: 47,2 m 2
BRA-e: 5 m2
BRA-i: 42,2 m 2
BRA-e: 5 m2
Type: 2-Roms
BRA: 47,2 m 2
BRA: 47,2 m 2
Type: 2-Roms
Type: 2-Roms
Balkong/terrasse: 21,2 m 2
Balkong/terrasse: 21,2 m 2
Parkeringsplass: se prisliste
Nordpil viser husets plassering og ikke leiligheten.
Balkong/terrasse: 21,2 m 2
Parkeringsplass: se prisliste
Parkeringsplass: se prisliste
BRA-i: 42,2 m 2


A6 - plan 03-05
Bygg A, plan 03, 04 og 05
Leilighet: A6 - plan 03-05
A 03-06 i 3. etg. A 04-06 i 4. etg. A 05-06 i 5. etg.
BRA-i: 57 m2 | BRA: 62 m2 | Balkong: 15,2 m2
Ekstern sportsbod: 5 m2 | Parkeringsplass: Ja
Bygg A, plan 03, 04 og 05
BRA-i: 57 m2
BRA-e: 5 m2
BRA-i: 57 m2
BRA-i: 57 m2
BRA: 62 m2
BRA-e: 5 m2
BRA-e: 5 m2
Type: 2-Roms
BRA: 62 m2
BRA: 62 m2
Type: 2-Roms
Type: 2-Roms
Bygg A, plan 03, 04 og 05 Skala 1:150
Balkong/terrasse: 15,2 m 2
Balkong/terrasse: 15,2 m 2
Nordpil viser husets plassering og ikke leiligheten.
Parkeringsplass: se prisliste
Parkeringsplass: se prisliste
Balkong/terrasse: 15,2 m 2
Parkeringsplass: se prisliste
BRA-i: 57 m2
BRA-e: 5 m2
BRA: 62 m2

Type: 2-Roms
Balkong/terrasse: 15,2 m 2
Parkeringsplass: se prisliste
1 2 3 4 5

Bygg A, plan 02, 03, 04 og 05
Leilighet: A7
BRA-i: 91,3 m2 | BRA: 96,3 m2 | Balkong: 20,1 m2 Ekstern sportsbod: 5 m2 | Parkeringsplass: Ja
Balkongene varierer fra 2.-5. etg.
BRA-i: 91,3 m 2
BRA-e: 5 m2
BRA-i: 91,3 m 2
BRA: 96,3 m 2
Uteplassplan02
Uteplassplan02
Uteplassplan02
Terrase
BRA-e: 5 m2
BRA-i: 91,3 m 2
Type: 3-Roms
BRA-e: 5 m2
BRA: 96,3 m 2
BRA: 96,3 m 2
Type: 3-Roms
Type: 3-Roms
Balkong/terrasse: 20,1 m 2
Bygg A, plan 02, 03, 04 og 05 Skala 1:150
Balkong/terrasse: 20,1 m 2
BRA-i: 91,3 m 2
Parkeringsplass: se prisliste
Balkong/terrasse: 20,1 m 2
Parkeringsplass: se prisliste
BRA-e: 5 m2
Parkeringsplass: se prisliste
BRA: 96,3 m 2

Bygg A, plan 02, 03, 04 og 05 Skala 1:150
Balkong/terrasse: 20,1 m 2
Parkeringsplass: se prisliste
Bygg B
Leilighet:
Nordpil viser husets plassering og ikke leiligheten.
1 2 3 4 5

Målestokk: 1:150
Leilighet: A8
BRA-i: 84,7 m2 | BRA: 89,7 m2 | Balkong: 13,8 m2 Ekstern sportsbod: 5 m2 | Parkeringsplass: Ja
Bygg A, plan 02, 03, 04 og 05
Terrase
BRA-i: 84,7 m 2
BRA-e: 5 m2
BRA-i: 84,7 m 2
BRA: 89,7 m 2
BRA-e: 5 m2
BRA-i: 84,7 m 2
Type: 3-Roms
BRA-e: 5 m2
BRA: 89,7 m 2
BRA: 89,7 m 2
Type: 3-Roms
Type: 3-Roms
Balkong/terrasse: 13,8 m 2
Balkong/terrasse: 13,8 m 2
Parkeringsplass: se prisliste
Balkong/terrasse: 13,8 m 2
Parkeringsplass: se prisliste
Parkeringsplass: se prisliste

Parkeringsplass: se prisliste
Nordpil viser husets plassering og ikke leiligheten.


Bygg B, plan 02, 03 og 04
BRA-i: 67 m 2
BRA-i: 67 m2
BRA-e: 5 m2
BRA: 72 m2
BRA-e: 5 m2
BRA-i: 67 m2
BRA: 72 m2
BRA-e: 5 m2
Type: 3-Roms
Type: 3-Roms
BRA: 72 m2
Type: 3-Roms
Balkong/terrasse: 9,5 m 2
Balkong/terrasse: 9,5 m 2
Parkeringsplass: se prisliste
B 02-01 i 2. etg. B 03-01 i 3. etg. B 04-01 i 4. etg.
BRA-i: 67 m2 | BRA: 72 m2 | Balkong: 9,5 m2
Ekstern sportsbod: 5 m2 | Parkeringsplass: Ja
Balkong/terrasse: 9,5 m 2
Parkeringsplass: se prisliste
Parkeringsplass: se prisliste Bygg B, plan 02, 03 og 04
BRA-i: 67 m2
BRA-e: 5 m2
BRA: 72 m2
Type: 3-Roms
Balkong/terrasse: 9,5 m 2
Parkeringsplass: se prisliste

Kvassneshagen
Nordpil viser husets plassering og ikke leiligheten.

Bygg B, plan 05
Leilighet: B5-01
Bygg B, plan 05
BRA-i: 68,3 m2 | BRA: 73,3 m2 | Balkong: 14,7 m2
Ekstern sportsbod: 5 m2 | Parkeringsplass: Ja
BRA-i: 68,3 m 2
BRA-i: 68,3 m 2
BRA-e: 5 m2
BRA-e: 5 m2
BRA-i: 68,3 m 2
BRA: 73,3 m 2
BRA-e: 5 m2
BRA: 73,3 m 2
BRA: 73,3 m 2
Type: 2-Roms
Type: 2-Roms
Type: 2-Roms
Balkong/terrasse: 14,7 m 2
Balkong/terrasse: 14,7 m 2
Balkong/terrasse: 14,7 m 2
Parkeringsplass: se prisliste
Parkeringsplass: se prisliste
Parkeringsplass: se prisliste
BRA-i: 68,3 m 2
BRA-e: 5 m2
BRA: 73,3 m 2
Type: 2-Roms
Balkong/terrasse: 14,7 m 2
Parkeringsplass: se prisliste

Kvassneshagen
Nordpil viser husets plassering og ikke leiligheten.

Bygg B, plan 02, 03 og 04
B 02-02 i 2. etg. B 03-02 i 3. etg. B 04-02 i 4. etg.
Leilighet: B2
BRA-i: 68,7 m2 | BRA: 73,7 m2 | Balkong: 14,6 m2
Ekstern sportsbod: 5 m2 | Parkeringsplass: Ja 7.0Gangm²
Bygg B, plan 02, 03 og 04
BRA-i: 68,7 m 2
BRA-e: 5 m2
BRA-i: 68,7 m 2
BRA-e: 5 m2
BRA: 73,7 m 2
BRA-i: 68,7 m 2
BRA: 73,7 m 2
BRA-e: 5 m2
Type: 2-Roms
Type: 2-Roms
BRA: 73,7 m 2
Type: 2-Roms
Balkong/terrasse: 14,6 m 2
Balkong/terrasse: 14,6 m 2
Balkong/terrasse: 14,6 m 2
Parkeringsplass: se prisliste
Parkeringsplass: se prisliste
Parkeringsplass: se prisliste
BRA-i: 68,7 m 2
BRA-e: 5 m2

BRA: 73,7 m 2
Type: 2-Roms
Balkong/terrasse: 14,6 m 2
30.01.2026
Parkeringsplass: se prisliste
Nordpil viser husets plassering og ikke leiligheten.
1:150
Skala 1:150
1 2 3 4 5

Leilighet: B5-02
Bygg B, plan 05
BRA-i: 83,4 m 2
BRA-e: 5 m2
BRA-i: 83,4 m 2
BRA-e: 5 m2
BRA: 88,4 m 2
BRA-i: 83,4 m 2
BRA: 88,4 m 2
BRA-e: 5 m2
Type: 3-Roms
BRA: 88,4 m 2
Type: 3-Roms
Type: 3-Roms
Balkong/terrasse: 19,7 m 2
BRA-i: 83,4 m2 | BRA: 88,4 m2 | Balkong: 19,7 m2
Ekstern sportsbod: 5 m2 | Parkeringsplass: Ja
Balkong/terrasse: 19,7 m 2
Balkong/terrasse: 19,7 m 2
Parkeringsplass: se prisliste
Parkeringsplass: se prisliste
Parkeringsplass: se prisliste Bygg B, plan 05
BRA-i: 83,4 m 2
BRA-e: 5 m2
BRA: 88,4 m 2
Type: 3-Roms
Balkong/terrasse: 19,7 m 2
Parkeringsplass: se prisliste

Nordpil viser husets plassering og ikke leiligheten.

Bygg B, plan 02, 03 og 04
B 02-03 i 2. etg. B 03-03 i 3. etg. B 04-03 i 4. etg.
BRA-i: 45,7 m2 | BRA: 50,7 m2 | Balkong: 9,8 m2
Bygg B, plan 02, 03 og 04
Ekstern sportsbod: 5 m2 | Parkeringsplass: Nei
BRA-i: 45,7 m 2
BRA-e: 5 m2
BRA-i: 45,7 m 2
BRA-e: 5 m2
BRA: 50,7 m 2
BRA-i: 45,7 m 2
BRA: 50,7 m 2
BRA-e: 5 m2
Type: 2-Roms
Type: 2-Roms
BRA: 50,7 m 2
Type: 2-Roms
Balkong/terrasse: 9,8 m 2
Balkong/terrasse: 9,8 m 2
Balkong/terrasse: 9,8 m 2
Parkeringsplass: se prisliste
Parkeringsplass: se prisliste
Parkeringsplass: se prisliste
BRA-i: 45,7 m 2
BRA-e: 5 m2
BRA: 50,7 m 2
Type: 2-Roms
Balkong/terrasse: 9,8 m 2
Nordpil viser husets plassering og ikke leiligheten.
1:150
Skala 1:150
1 2 3 4 5


Parkeringsplass: se prisliste
Kvassneshagen
Bygg B, plan 05
Leilighet: B5-03
Bygg B, plan 05
BRA-i: 109,5 m2 | BRA: 114,5 m2 | Balkong: 35,5 + 14,7 m2 Ekstern sportsbod: 5 m2 | Parkeringsplass: Ja
BRA-i: 109,5 m 2
BRA-i: 109,5 m 2
BRA-e: 5 m2
BRA-i: 109,5 m 2
BRA-e: 5 m2
BRA: 114,5 m 2
BRA-e: 5 m2
BRA: 114,5 m 2
Type: 4-Roms
BRA: 114,5 m 2
Type: 4-Roms
Type: 4-Roms
Balkong/terrasse: 35,5+14,7 m 2
Balkong/terrasse: 35,5+14,7 m 2
Balkong/terrasse: 35,5+14,7 m 2
Parkeringsplass: se prisliste
Parkeringsplass: se prisliste
Parkeringsplass: se prisliste
BRA-i: 109,5 m 2
BRA-e: 5 m2

BRA: 114,5 m 2
Type: 4-Roms
Balkong/terrasse: 35,5+14,7 m 2
Parkeringsplass: se prisliste
Nordpil viser husets plassering og ikke leiligheten.

Bygg B, plan 02, 03 og 04
Leilighet: B4
B 02-04 i 2. etg. B 03-04 i 3. etg. B 04-04 i 4. etg.
BRA-i: 57,2 m2 | BRA: 62,7 m2 | Balkong: 12,1 m2
Ekstern sportsbod: 5 m2 | Parkeringsplass: Ja
Bygg B, plan 02, 03 og 04
BRA-i: 57,2 m 2
BRA-i: 57,2 m 2
BRA-e: 5 m2
BRA-e: 5 m2
BRA-i: 57,2 m 2
BRA: 62,7 m 2
BRA: 62,7 m 2
BRA-e: 5 m2
BRA: 62,7 m 2
Type: 2-Roms
Type: 2-Roms
Type: 2-Roms
Balkong/terrasse: 12,1 m 2
Balkong/terrasse: 12,1 m 2
Balkong/terrasse: 12,1 m 2
Parkeringsplass: se prisliste
Parkeringsplass: se prisliste
Parkeringsplass: se prisliste
BRA-i: 57,2 m 2
BRA-e: 5 m2
BRA: 62,7 m 2

Type: 2-Roms
Balkong/terrasse: 12,1 m 2
Parkeringsplass: se prisliste
Nordpil viser husets plassering og ikke leiligheten.
Skala 1:150
1 2 3 4 5

Leilighet: B5-04
Bygg B, plan 05
BRA-i: 50 m2 | BRA: 55 m2 | Balkong: 26,6 m2 Ekstern sportsbod: 5 m2 | Parkeringsplass: Ja
BRA-i: 50,0 m 2
BRA-i: 50,0 m 2
BRA-e: 5 m2
BRA-e: 5 m2
BRA-i: 50,0 m 2
BRA: 55,0 m 2
BRA-e: 5 m2
BRA: 55,0 m 2
BRA: 55,0 m 2
Type: 2-Roms
Type: 2-Roms
Type: 2-Roms
Balkong/terrasse: 26,6 m 2
Balkong/terrasse: 26,6 m 2
Balkong/terrasse: 26,6 m 2
Parkeringsplass: se prisliste
Parkeringsplass: se prisliste
Parkeringsplass: se prisliste
BRA-i: 50,0 m 2
B Bygg A Plan 05
BRA-e: 5 m2

Kvassneshagen
Kvassneshagen
B
Nordpil viser husets plassering og ikke leiligheten.
1:150
Bygg A

Leilighet:
BRA-i: 39,5 m2 | BRA: 44,5 m2 | Balkong: 7,3 m2
Ekstern sportsbod: 5 m2 | Parkeringsplass: Nei
BRA-i: 39,5 m 2
BRA-e: 5 m2
BRA-i: 39,5 m 2
BRA: 44,5 m 2
BRA-e: 5 m2
BRA-i: 39,5 m 2
BRA-e: 5 m2
Type: 2-Roms
BRA: 44,5 m 2
Type: 2-Roms
BRA: 44,5 m 2
Type: 2-Roms
Balkong/terrasse: 7,3 m 2
Balkong/terrasse: 7,3 m 2
BRA-i: 39,5 m 2
Balkong/terrasse: 7,3 m 2
Parkeringsplass: se prisliste
Parkeringsplass: se prisliste
BRA-e: 5 m2
Parkeringsplass: se prisliste
BRA: 44,5 m 2
Type: 2-Roms

Bygg B, plan 02 Skala 1:150
Parkeringsplass: se prisliste
Nordpil viser husets plassering og ikke leiligheten.
1:150
1:150
1 2 3 4 5

Bygg B, plan 03 og 04
Leilighet: B5 3.-4.
Bygg B, plan 03 og 04
BRA-i: 56,7 m2 | BRA: 61,7 m2 | Balkong: 12 m2 Ekstern sportsbod: 5 m2 | Parkeringsplass: Ja
BRA-i: 56,7 m 2
BRA-e: 5 m2
BRA-i: 56,7 m 2
BRA-e: 5 m2
BRA: 61,7 m 2
BRA-i: 56,7 m 2
BRA: 61,7 m 2
BRA-e: 5 m2
Type: 2-Roms
Type: 2-Roms
BRA: 61,7 m 2
Type: 2-Roms
Balkong/terrasse: 12 m 2
Balkong/terrasse: 12 m 2
Balkong/terrasse: 12 m 2
Nordpil viser husets plassering og ikke leiligheten.
Parkeringsplass: se prisliste
BRA-i: 56,7 m 2
Parkeringsplass: se prisliste
Parkeringsplass: se prisliste
BRA-e: 5 m2
BRA: 61,7 m 2
Type: 2-Roms
Balkong/terrasse: 12 m 2
Parkeringsplass: se prisliste


Leilighet: B6
B 02-06 i 2. etg. B 03-06 i 3. etg. B 04-06 i 4. etg.
BRA-i: 61,4 m2 | BRA: 66,4 m2 | Balkong: 8,7 m2
Ekstern sportsbod: 5 m2 | Parkeringsplass: Ja
Bygg B, plan 02, 03 og 04
61,4 m 2
BRA-e: 5 m2
BRA-i: 61,4 m 2
66,4 m 2
BRA-e: 5 m2
BRA-i: 61,4 m 2
3-Roms
BRA: 66,4 m 2
BRA-e: 5 m2
BRA: 66,4 m 2
Type: 3-Roms
Type: 3-Roms
Balkong/terrasse: 8,7 m 2
Bygg B, plan 02, 03 og 04 Skala 1:150
1:150
Nordpil viser husets plassering og ikke leiligheten.
Parkeringsplass: se prisliste
Balkong/terrasse: 8,7 m 2
Balkong/terrasse: 8,7 m 2
Parkeringsplass: se prisliste
Parkeringsplass: se prisliste
BRA-i: 61,4 m 2

BRA-e: 5 m2
BRA: 66,4 m 2
Type: 3-Roms
Balkong/terrasse: 8,7 m 2
Parkeringsplass: se prisliste

2-roms
B 02-07 i 2. etg. B 03-07 i 3. etg. B 04-07 i 4. etg.
BRA-i: 46,7 m2 | BRA: 51,7 m2 | Balkong: 8,3 m2
Ekstern sportsbod: 5 m2 | Parkeringsplass: Nei
Leilighet: B7
Bygg B, plan 02, 03 og 04
BRA-i: 46,7 m 2
BRA-e: 5 m2
BRA-i: 46,7 m 2
BRA: 51,7 m 2
BRA-e: 5 m2
Type: 2-Roms
BRA-i: 46,7 m 2
BRA: 51,7 m 2
BRA-e: 5 m2
BRA: 51,7 m 2
Type: 2-Roms
Type: 2-Roms
Balkong/terrasse: 8,3 m 2
Parkeringsplass: se prisliste
Balkong/terrasse: 8,3 m 2
Balkong/terrasse: 8,3 m 2
Parkeringsplass: se prisliste
Parkeringsplass: se prisliste

Balkong/terrasse: 8,3 m
Parkeringsplass: se prisliste
Nordpil viser husets plassering og ikke leiligheten.
1:150
1 2 3 4 5

Bygg B, plan 02, 03 og 04
Bygg B, plan 02, 03 og 04
B 02-08 i 2. etg.
B 03-08 i 3. etg.
B 04-08 i 4. etg.
BRA-i: 59,4 m2 | BRA: 64,4 m2 | Balkong: 8,8 m2 Ekstern sportsbod: 5 m2 | Parkeringsplass: Ja/Nei (B 03-08 og B 04-08 har parkeringsplass)
59,4 m 2
5 m2
BRA-i: 59,4 m 2
64,4 m 2 2-Roms
BRA-e: 5 m2
BRA-i: 59,4 m 2
BRA: 64,4 m 2
BRA-e: 5 m2
BRA: 64,4 m 2
Type: 2-Roms
Type: 2-Roms
Balkong/terrasse: 8,8 m 2
Balkong/terrasse: 8,8 m 2
Parkeringsplass: se prisliste
Balkong/terrasse: 8,8 m 2
Parkeringsplass: se prisliste
Parkeringsplass: se prisliste
BRA-i: 59,4 m 2
BRA-e: 5 m2
BRA: 64,4 m 2

Type: 2-Roms
Balkong/terrasse: 8,8 m 2
Parkeringsplass: se prisliste
Nordpil viser husets plassering og ikke leiligheten.
Skala 1:150 Meter
1 2 3 4 5

BRA-i: 58,3 m2 | BRA: 63,3 m2 | Balkong: 16,7 m2
Ekstern sportsbod: 5 m2 | Parkeringsplass: Ja
Leilighet: B9- plan 02
Bygg B, plan 02
BRA-i: 58,3 m 2
BRA-e: 5 m2
BRA-i: 58,3 m 2
BRA: 63,3 m 2
BRA-e: 5 m2
Type: 2-Roms
BRA-i: 58,3 m 2
BRA: 63,3 m 2
BRA-e: 5 m2
BRA: 63,3 m 2
Type: 2-Roms
Type: 2-Roms
Balkong/terrasse: 16,7 m 2
Parkeringsplass: se prisliste
Balkong/terrasse: 16,7 m 2
Balkong/terrasse: 16,7 m 2
Parkeringsplass: se prisliste
Parkeringsplass: se prisliste Bygg B, plan 02 Skala 1:150 Meter
Nordpil viser husets plassering og ikke leiligheten.
1 2 3 4 5

Balkong/terrasse: 16,7 m 2
Parkeringsplass: se prisliste

BRA-i: 55,3 m2 | BRA: 60,3 m2 | Balkong: 16,7 m2 Ekstern sportsbod: 5 m2 | Parkeringsplass: Ja
Leilighet: B9 plan 03 og 04
Bygg B, plan 03 og 04
BRA-i: 55,3 m 2
BRA-e: 5 m2
BRA-i: 55,3 m 2
60,3 m 2
BRA-e: 5 m2
Type: 3-Roms
BRA-i: 55,3 m 2
BRA: 60,3 m 2
BRA-e: 5 m2
BRA: 60,3 m 2
Type: 3-Roms
Type: 3-Roms
Balkong/terrasse: 16,7 m 2
Parkeringsplass: se prisliste
Balkong/terrasse: 16,7 m 2
Balkong/terrasse: 16,7 m 2
Parkeringsplass: se prisliste
Parkeringsplass: se prisliste
Bygg B, plan 03 og 04 Skala 1:150 Meter 0 1 2 3 4 5

Parkeringsplass: se prisliste
Nordpil viser husets plassering og ikke leiligheten.

Bygg B, plan 02
Leilighet: B10 plan 02
Bygg B, plan 02
BRA-i: 81,6 m2 | BRA: 86,6 m2 | Balkong: 16,4 m2
Ekstern sportsbod: 5 m2 | Parkeringsplass: Ja
BRA-i: 81,6 m 2
BRA-i: 81,6 m 2
BRA-e: 5 m2
BRA-e: 5 m2
BRA-i: 81,6 m 2
BRA:86,6 m 2
BRA:86,6 m 2
BRA-e: 5 m2
Type: 3-Roms
Type: 3-Roms
BRA:86,6 m2
Type: 3-Roms
Balkong/terrasse: 16,4 m 2
Balkong/terrasse: 16,4 m 2
Balkong/terrasse: 16,4 m 2
Parkeringsplass: se prisliste
Parkeringsplass: se prisliste
Parkeringsplass: se prisliste
BRA-i: 81,6 m 2
BRA-e: 5 m2

BRA:86,6 m2
Type: 3-Roms
Balkong/terrasse: 16,4 m 2
Parkeringsplass: se prisliste
Nordpil viser husets plassering og ikke leiligheten.

Bygg B, plan 03 og 04
BRA-i: 81,7 m2 | BRA: 86,7 m2 | Balkong: 16,4 m2 Ekstern sportsbod: 5 m2 | Parkeringsplass: Ja
Leilighet: B10 plan 03 og 04
Bygg B, plan 03 og 04
BRA-i: 81,7 m 2
BRA-i: 81,7 m 2
BRA-e: 5 m2
BRA-e: 5 m2
BRA-i: 81,7 m 2
BRA: 86,7 m 2
BRA: 86,7 m 2
BRA-e: 5 m2
Type: 3-Roms
Type: 3-Roms
BRA: 86,7 m 2
Type: 3-Roms
Balkong/terrasse: 16,4 m 2
Balkong/terrasse: 16,4 m 2
Balkong/terrasse: 16,4 m 2
Parkeringsplass: se
Parkeringsplass: se prisliste
Parkeringsplass: se prisliste

BRA-i: 81,7 m 2
BRA-e: 5 m2
BRA: 86,7 m 2
Type: 3-Roms
Nordpil viser husets plassering og ikke leiligheten.
1:150





Lettvint å kunne ta heisen ned til Coop Extra i første!


En tur med Snøggbåten og du er i byn på 25 minutter.
Med gangavstand til hverdagens fasiliteter legger Kvassneshagen alt til rette for en enkel og behagelig hverdag i Knarvik.
Her kan du rusle ned til sjøen eller bort til AMFI Knarvik med 50 butikker, kaféer, spisesteder, bibliotek og helsetjenester. Jobber du i byen, eller ønsker en liten bytur? Hurtigbåten tar deg fra Knarvik kai til Strandkaien på kun 25 minutter!
Er du glad i å utforske naturen, er både turstier, fjorden, fjellene og skogen også lett tilgjengelig. Kanskje en tur rundt Kvassnesstemma like ved? På varme sommerdager er det mulig å i badevika ved Nordhordland Folkehøgskole.

Butikker
Ny Coop Extra 0 m
Kiwi 500 m
Rema 1000 600 m
Apotek 1 700 m
AMFI Knarvik 800 m
Tur & aktiviteter
Kvassnesstemma
friluftsområde 500 m
Studio Nor 300 m
Fitnesspoint Knarvik 700 m
Nordhordlandshallen 1,0 km
Knarvik Arena 1,8 m
Knarvik Stadion 2,0 m
Indregardsfjellet 2,5 km
Badeplass v/ Nordhordland
Folkehøgskole 6,4 km
Skole & barnehage
Haugen barnehage 200 m
Knarvik ungdomsskule 1,3 km
Knarvik videregående skole 1,8 km




Haugen barnehage.




67 Leveransebeskrivelse
75 Utomhusplan
77 Reguleringsplan
110 Prisliste
112 Driftsbudsjett
114 Skjema – Avtale om kjøp
1.1 ARKITEKT
Prosjektet Kvassneshagen er utarbeidet av Kvassnesvegen utvikling AS, et 50/50 eiet selskap mellom Coop Eigedom Hordaland og Vestbo Eiendomsutvikling med SE-Arkitektur AS som arkitekt . Utførende totalentreprenør er LAB AS.
1.2 ENTREPREPRENØR
Entreprenør iht. Bustadoppføringslova er Kvassnesvegen 27 Bolig AS (heretter omtalt som selger), 100% eiet av Coop Eigedom og Vestbo BBL. Kvassnesvegen 27 Bolig AS er et selskap under etablering.
1.3 PROSJEKTETS ART OG OMFANG
Prosjektet er et kombinert nærings- og boligbygg i sentrum av Knarvik.
Boligdelene består av en parkeringsetasje med boder og tekniske rom i nederste etasje og boliger i 4-6 etasjer over næringslokaler på gateplan, bl. annet Coop Exstra.
Felles utearealer for begge blokkene er bundet sammen av en gangbru fra blokk B til uteområdet foran blokk A.
Hele prosjektet består av til sammen 70 leiligheter. Begge byggene har heis. Alle leiligheter er tilgjengelig boenhet, bortsett fra de under 50 m2
Det skal etableres ett borettslag.
Eiendommen vil bli delt mellom næringsseksjonene og borettslaget, evt med anleggseiendom for parkeringsanlegg/bodanlegg, og det vil bli en tinglyst bruksrett og felles vedlikeholdsplikt for fellesanleggene.
Tildeling/disponering av HC-parkering blir i henhold til tildelingskriterier i vedtektene for borettslaget. Det blir tilrettelagt for lading av el-bil (jf. tilvalg i punkt 4.10).
Innflytting forventes i løpet av 3. kvartal 2027 i henhold til vedtatt byggestart 2.kvartal 2025.
Prosjektet er gitt rammetillatelse. Selger tar forbehold om offentlig godkjenning av igangsettingstillatelse iht. søknad for øvrige arbeide/utomhus.
Likeledes tar Selger forbehold om at 50 % av boenhetene må være solgt før igangsettelse besluttes. Oppstart 2. kvartal 2025 medfører at overtakelse kan påregnes i 3. kvartal 2027.
Selger forbeholder seg retten til å endre priser og salgsbetingelser på usolgte leiligheter eller velge å beholde disse selv.
Det tas forbehold om endring i offentlige skatter og avgifter; herunder en eventuell økning av merverdiavgift, tinglysingsgebyrer mm, eiendomsskatter etc.
Dokumentenes rangeringsordning:
1. Bindende kjøpsbekreftelse.
2. Byggebeskrivelse / leveransebeskrivelse og kjøpsbetingelser.
3. Tegninger/brosjyremateriell. Dvs. beskrivelser i dette skriv går foran tegninger / brosjyremateriell.
Det gjøres oppmerksom på at illustrert perspektiv og 3D-tegninger ikke er å anse som kontraktsgrunnlag, da disse kan avvike fra leveransen.
Eksakt areal på den enkelte leilighet kan først fastlegges etter at detaljprosjektering er avsluttet.
Det presiseres at det i parkeringsareal og bod areal ikke er vist søyler og sjakter, som vil bli plassert i dette arealet.
1.6 TILLEGG TIL KONTRAKT
Kjøper er kjent med og aksepterer at forsinkelser som skyldes force majeure, streik, pandemier, og ekstreme klimatiske forhold o.l. gir selger en rett til å forlenge fristen for overtagelse. Kjøper anmodes spesielt å tilpasse dette forhold ved evt. salg av nåværende bolig.
Forsinkelse som skyldes f.eks. brann, vannskade, innbrudd e.l. gjøres det spesielt oppmerksom på at dette gir selger rett til en tilleggsfrist for levering uten kompensasjon overfor kjøper. Dette forhold må også tas hensyn til ved evt. salg av nåværende bolig da byggforsikringen til selger ikke dekker eventuell erstatningsbolig for kjøper ved slik forsinkelse.
Fristen for ferdigstillelse gir ikke kjøper rett til å utsette overtakelse, såfremt overtakelse og ferdigstillelse kan finne sted tidligere og kjøper blir varslet iht. avtalt frist i kontrakt.
Grunnlaget for kontrakt mellom selger og kjøper er bestemmelsene i Bustadsoppføringslova – eventuelt Avhendingslova – alt ettersom kjøpet er foretatt i byggetiden eller etter ferdigstillelse.
Alle som kjøper bolig i Kvassneshagen må være medlem i Vestbo BBL. Dersom kjøpekontrakten står i 2 navn, må begge være medlem.
Såfremt kjøper skulle ønske å omsette kjøpekontrakten aksepteres dette av selger under forutsetning av at selger får en tilfredsstillende dokumentasjon på at ny kjøper trer inn med de samme rettigheter og forpliktelser som denne kontrakts kjøper, herunder en for selger tilfredsstillende finansieringsbekreftelse samt overtagelse av evt. inngåtte endrings-/ tilleggsavtaler. Selger betinger seg et administrasjonsgebyr fra denne kontrakts kjøper på kr. 50.000,- inkl. merverdiavgift ved slik omsetning til ny kjøper.
For å sikre likviditet i boligselskap allerede fra innflytting vil kjøper kreves en måneds driftskostnader ved innflytting. Kjøper er gjort kjent med at alle frihåndstegninger i perspektiv, 3D-tegninger, illustrasjoner og bilder i prospekt er av illustrativ karakter, og derfor kan inneholde innredning og detaljer m.v. som ikke inngår i kontrakten.
Kontrakten vil inneholde tegninger og beskrivelse som er bindende for partene.
Beplanting, møblering etc som vist på tegninger er ikke inkludert, ut over det som er spesifisert i denne beskrivelse. Vi gjør også oppmerksom på at videre detaljutforming av prosjektet vil kunne medføre mindre endringer og justeringer i forhold til salgsprospektets tegninger uten at dette gir grunnlag for endring av pris.
Slike endringer kan eksempelvis gjelde endrede kanaler/ sjakter for fremføring av tekniske installasjoner, omrokering i garasjeanlegget, samt endringer av bæresystemer/ søyler, mindre fasademessige endringer, utomhusplan eller endringer i prosjektet som følge av vilkår i endelig byggetillatelse for prosjektet.
Byggebeskrivelsen beskriver hvilken teknisk standard som inngår i leveransen og omfatter komplett leveranse opp til beskrevet kvalitet. Leveransen utføres i henhold til gjeldende forskrifter og standarder. Dersom det ikke er beskrevet spesifikke bestemmelser i kontrakt, gjelder følgende:
• Offentlige lover, forskrifter og standarder legges til grunn for krav til utførelse og materialbruk.
• For øvrig gjelder
• Byggeforskriftene av 1. mai 2021, TEK 17.
• NEK400 – rev. 2022
• NS 3420 utgave 3, med gjeldende oppdatering pr september 2015 – toleranseklasse 3(C) og for frie betongflater toleranse -klasse 4(D).
Selger betinger seg retten til å foreta mindre endringer i materialvalg og/eller løsninger på konstruksjoner e.l. som er nødvendig etter hvert som prosjektet detaljprosjekteres. Endringer som følge av nye offentlig rettslige krav, kan gi selger rett til å kreve prisøkning og eller endret tidsplan.
Dersom selger er nødt til å gjennomføre vesentlige endringer ut over forannevnte bestemmelser, plikter selger å gi kjøper umiddelbar beskjed.
2.1 OFFENTLIGE FORHOLD
Kjøper aksepterer at det på eiendommen kan påheftes servitutter/erklæringer som måtte bli påkrevd av offentlig myndighet.
2.2 REGULERINGSFORHOLD
Området er regulert i områdeplan Knarvik, planID 1263-201002, godkjent 10.03.21 med endring 25.03.21. Boligformålet ble godkjent i tillatelse datert 01.06.2024.
3.
FELLESDELER OG ANLEGG
3.1 GENERELT
Prosjektet oppføres iht. Byggeforskriftene av 2021 (TEK17), Elektroforskriften NEK400-2022.
For krav til materialer og utførelse gjelder dessuten norsk standard NS3420 som angitt i punkt 2.
Fellesanleggene defineres som alle arealer som ikke ligger innenfor en leilighet sine eksklusive arealer, bl.a.:
- Trapper og heis.
- Korridorer.
- Sportsboder, fellesboder, sykkelparkering og tekniske rom for boligdelene.
- Utvendige tak, takterrasser, fasader og balkonger.
- Utomhusanlegget/hage/gatetun.
- Bilparkeringsplasser.
3.2 TRAPPER OG HEIS
Prosjektet leveres med heis.
Hovedtrapp og heissjakt utføres i betong med pulverlakkert spilerekkverk i trapper.
Vegger i trapperom sparkles og males. Heissjakt støvbindes i hvit farge.
Trapper og trappeavsatser får belegg med sklisikker overflate. Gulvvarme og fliser 30x30 cm i inngangsparti på hvert hus.
Rømningstrapp i stål med gitterrister som trinn. Vegger og tak som i hovedtrapperom. Gulv i rommet epoxymales.
3.3 KORRIDORER
Her leveres trinnlyddempende belegg på gulv, eikelister, sparklet og malte vegger og nedsenket systemhimling.
3.4 POST OG AVFALL
Postkasser plasseres i forbindelse med inngangsparti. Avfall håndteres iht. NGIR sine krav i renovasjonsteknisk plan. Søppelrom er plassert ved varelevering i plan U1. Gulv i stålglattet betong med fall til sluk. Vegger og himling i malt gips.
3.5 BALKONGER
Balkonger til leiligheter leveres med støvbundet betong gulv og synlig betongoverflate på underside med mindre variasjoner i struktur/farge mm. Rekkverk på balkonger består i det vesentlige av stål/aluminium og glass, avsluttes med håndløper i stål/aluminium.
Glassrekkverk monteres utenpå stendere/stolper. Glass dekker ikke dekkeforkanten av balkong, men går uansett opp til håndløper. For rekkverk med brystning på balkonger i plan 1-4 er det løsning der kledning festes til rekkverksstolper i nederste del og glass i øverste del. Ingen kledning på innside av brystning.
Boenheter på plan 1 med terrasser ut mot fellesområder leveres med gulv i trykkimpregnert terrassegulv, avrenning av overflatevann sikres, og mellom boenheter leveres skjermvegger.
3.6 TILGJENGELIGE BOENHETER
Leilighetene vil ha universell tilkomst, tilpasset rullestol. Det betyr at terskler og kanter ikke gir sprang som overstiger 25 mm.
3.7 PARKERING
Det er 62 parkeringsplasser i U2 som er tildelt de største leilighetene. Se salgstegninger for mer info. Det vil bli lagt til rette for el-bil lading i parkeringsetasjen, men selve el-bil laderen må bekostes av kjøper.
3.8 BODER
Hver leilighet vil få egen bod i plan U2. Bodseksjonen er delvis klimatisert og det er ikke tilrådelig med oppbevaring av tøy, papir mm som ikke tåler denne type oppbevaringssted.
Stålglattet epoxymalt betonggulv, vegger og himling malt Boder leveres som Troax eller tilsv med lås i system. Boder leveres med tette vegger til 2,2 m, dvs de går ikke helt til tak. Netting over tett vegg opp til himling og med H-nr. merkede dører.
Utomhusanlegget opparbeides komplett med oppholdsareal og lekeområder.
Eksteriørmessig uttrykk kommer frem av perspektivskisse/ fasadetegning fra arkitekt.
Byggets bærende konstruksjoner og etasjeskillere (lyd- og brannskille) vil i hovedsak bli utført i plasstøpt betong med noe stål- og eller betongsøyler.
Yttervegger utføres vesentlig som isolerte bindingsverksvegger med hovedsakelig skjulte stålsøyler og stendere i stål og eller tre.
Innvendige skillevegger mellom leiligheter leveres i hovedsak som gipsvegger (lyd og brannskille).
For øvrig leveres innvendige vegger i leilighetene som bindingsverksvegger med varierende tykkelse. Veggene isoleres, kles med gips, sparkles og males.
Tak i leilighetene leveres generelt med betonghimling som helsparkles og males. For fremføring av tekniske installasjoner vil det kunne være partier med nedsenket gipsplatehimling, som sparkles og males.
Overgang mellom vegg og tak sparkles og males og er uten listverk. Listverk mot tillegg. Her vil det over tid måtte påregnes riss/sprekker som ikke er å anse som reklamasjon.
Der det nyttes malt listverk vil det være synlige spikerhull. Vinduer leveres som trevinduer med utvendig aluminiumavdekning og innvendig malt.
Parkeringsareal, fellesbod og sportsboder leveres med enkel utførelse og standard – det vil bl.a. kunne være synlige tekniske installasjoner som rør, kanaler og ledninger.
3.12 EL-INSTALLASJONER I FELLESAREALER
Det leveres LED-belysning i trapperom, bodarealer, felles ganger, parkeringsareal og inngangspartier.
Styres av bevegelses sensor. evt. bryter ved dør.
Levering/montering av infrastruktur for ladestasjoner for el-bil i parkeringsareal.
Til leiligheter monteres port-telefon-anlegg av anerkjent merke.
3.13 BYGGETS ENERGIMERKE
Bygget har energimerke i klasse gul A.
3.14 NØKKELSYSTEM
Det etableres et nøkkelsystem der leilighetens nøkkel vil låse alle dører/punkt der beboer skal ha tilkomst. Det leveres 3 nøkler pr bolig.
4.1 ORIENTERING
Viser til plantegninger og spesifikasjoner for boligtyper i dette prosjektet. Der det er uoverensstemmelser, er det spesifikasjonen i punktene 4.2 til og med punkt 4.9 nedenfor, som gjelder.
Dvs at det i utgangspunktet ikke leveres inventar og utstyr som måtte være vist på tegninger med mindre de er spesifikt beskrevet i denne beskrivelse eller som vedlegg fra avtalt leverandør.
Vinduer, dører, vegger o.a. kan bli endret under prosjekteringens gang.
Orienterende opplysninger: Normal takhøyde vil være min 2,4 m netto. Takhøyden i nedforet areal i entré, bad og bod kan avvike i forhold til dette, dog ikke lavere enn 2,2 m netto.
For å få frem føringer for avløpsrør og kanaler kan det være aktuelt å etablere mindre vertikale/horisontale kasser på vegg og eller himling.
Det tas forbehold om mindre endringer som følge av detaljprosjektering og off. godkjenning. Disse endringene skal ikke redusere byggets kvalitet og gir ikke rett til prisjusteringer.
4.2.1 Vegger
Utvendig side yttervegger kles med GUX-gips/vindsperre og utlektet platekledning. For fasadekledning se også punkt 3.9. Innvendig side kles med diffusjonssperre og 13 mm gipsplate. 25 cm mineralullisolasjon i yttervegger.
Vegger mellom leiligheter vil bli utført i plasstøpt betong og/ eller lydvegger i tre/stål/gips i leiligheter. Lydskillevegger bygges i henhold til gjeldende krav til lyddemping kl C. Innervegger utføres som stål-/trekonstruksjon med 13 mm gipsplater på begge sider.
Innvendige vegger isoleres med 50mm isolasjon.
Fliser på bad leveres av typen Vitra Kinetic hvit 20x20 eller tilsvarende på gulv med tilhørende 10x10 fliser i nedsenket dusjnisje og Cipreste Branco Opaco 20x40 eller tilsvarende på vegger.
Alle innvendige vegger i gang/oppholdsrom i leiligheter males iht. estetisk klasse K3. Øvrige vegger i estetisk klasse K2.
Utforinger, listverk og omramminger blir ferdig malt fra fabrikk og med synlig stiftehull.
Alle lister og foringer utvendig leveres ferdig behandlet etter arkitektens anvisning.
4.2.3 Himlinger
Leilighetenes betonghimlinger leveres helsparklet og malt. Nedforinger for tekniske føringer utført i gipsplater leveres også sparklet og malt. Luker for tilkomst til installasjoner kan forekomme.
Overgang mellom vegg og himling sparkles og males.
4.2.4 Vinduer og balkongdører
Vinduer leveres som trevinduer med utvendig aluminiumsavdekning for å redusere behov for fremtidig vedlikehold. Det gjøres oppmerksom på at vinduenes gode isolasjonsegenskaper under visse værforhold kan medføre dugg på vinduenes utside. Varmereflekterende glass/ solstopp på 3 fasader.
Balkongdører leveres tilsvarende. Vinduer og balkongdører leveres med hvitmalt innside.
4.2.5 Entrédør, ytterdører og innvendige dører
Hovedinngangsparti i blokkene får dørparti i aluminium. Tilsvarende for utgang til fellesarealer.
Entrédør (hovedinngangsdør til hver enkelt leilighet) leveres med malt overflate, lik farge inne og ute, og med malte karmer, med kikkhull. De leveres med foreskrevet brann- og lydklasse.
Innvendige dører i leilighetene leveres som lette dører i glatt, fabrikkmalt utførelse. Karm og tilsettinger til dører og vinduer leveres i lys (hvit) farge fra fabrikk, og lister leveres fabrikkmalt i lys (hvit) farge med synlig stift.
4.2.6 Malerarbeider
Alle behandlede overflater utvendig leveres iht. arkitektens fargeskjema (fargeskjema utarbeides senere).
Alle innvendige vegger, unntatt bad og evt. vaskerom, leveres sparklet og malt 2 strøk. iht. estetisk klasse K3. Øvrige vegger i estetisk klasse K2.
4.2.7 Gulv
Alle gulv i boligetasjer leveres med laminat, type Tarkett Woodstock Longboard eller tilsvarende.
Fliser på bad leveres av typen Vitra Kinetic hvit 20x20 eller tilsvarende på gulv med tilhørende 10x10 fliser i nedsenket dusjnisje.
4.3 INNREDNINGER
Egne tegninger for kjøkken og for bad fremlegges, og vil bli en del av kontraktsgrunnlaget. Disse vil i det vesentlige følge det som er vist på leilighetstegningene. Foringer over overskap til tak leveres i samme materiale som kjøkkenskrog.
4.3.1 Kjøkken og garderobe
Det leveres kjøkkeninnredning iht. egen kjøkkentegning/ plantegning.
Kjøkkeninnredning leveres fra Designa. Omfang som illustrert på plantegning.
Kjøkkenhette leveres av typen Slimline eller tilsvarende med egen motor og omløpsfilter (PlasmaMade).
Benkeplate leveres i laminat. Kjøkkenet leveres med hvitevarer fra Siemens eller tilsvarende, integrert stekeovn, induksjonplatetopp, oppvaskmaskin og kjøl/frys-skap.
Plassering av vann/avløp/komfyr etc er fast og kan ikke endres, uten avtalt kundeendring innen gjeldende bestillingsfrist. Jf punkt 4.10 om kundeendringer.
Det leveres ikke garderobeskap til soverom.
Garderobeløsning/-skap i entre er ikke med i leveransen.
4.3.2
Baderomsinnredning fra Designa.
Det leveres standard baderomsinnredning fra Designa, med speil og 60 cm innredning med skuffer.
Bredde og antall iht. salgstegninger. Rette dusjvegger i nedsenket (ca .10 mm ) nisje.
4.4
Bygget tilknyttes BKK sitt strømfordelingsnett, og det blir tegnet en start avtale med Fjordkraft. Det blir separate abonnement/målere til den enkelte bolig. BKK Nett installerer aktuelt målersystem. Utebelysning/fellesstrøm vil ligge i eget abonnementer.
I boligene føres ledningsnettet hovedsakelig som skjult instalasjon. Det må påregnes synlig EL-kanal på lyd- og brannvegger.
4.4.1 Utstyr
På kjøkken leveres dimmer til lys under overskap.
Det fremlegges separate fremlegg til koketopp og steikeovn. Det leveres komfyrvakt. I oppholdsrom, soverom og kjøkken i leiligheter monteres uttak i overkant vegg, til synlig ledning til takpunkt.
På bad i leiligheter er det medtatt spotlight m/dimmer, som betjenes av bryter.
Ute på balkonger er montert lysarmatur samt stikkontakt med lokk.
Alle disse punkt er utrustet med bryter eller trinnløs demping.
For øvrig leveres stikk, lysbrytere og El-punkt iht. NEK 400 som gir et godt utrustet el-anlegg.
Data/antenne/telefon
Det leveres porttelefonanlegg med toveis kommunikasjon og mulighet for bestilling (tilvalg) av bildeoverføring fra leilighet til hovedinngangsdør, samt ringeanlegg med klokke i entre og ringeknapp ved entredør.
Svarapparat i leiligheter utrustes med kommunikasjon og åpneknapp for ytterdør.
Alle leiligheter vil få bredbåndstilknytting. Leverandør ikke valgt.
Det leveres balansert ventilasjonsanlegg med inntak/avkast gjennom kombiboks i fasade.
Kjøkkenavtrekk leveres separat med PlasmaMade omløpsfilter.
I alle leiligheter monteres separat ventilasjonsaggregat. Aggregat vil hovedsakelig blir montert i himling/tak i entré/ gang. Det tas forbehold om at ventilasjonsaggregat kan plasseres på vegg og evt på bod eller bad. Dette dersom de tekniske forholdene tilsier det.
Friskluften filtreres og forvarmes via varmegjenvinner og ettervarmebatteri før den tilføres leilighetene til sove- og oppholdsrom. Luften trekkes ut via bad, bod og kjøkken. For avtrekk fra kjøkken leveres avtrekkshette fra kjøkkenleverandør, type Fondue-M slimline, eller tilsvarende, samkjøres med ventilasjonsanlegg ift. bruk.
Ventilasjonen styres/overvåkes fra et styrepanel. Her kan luftmengden justeres, og ønsket tilluftstemperatur kan reguleres. Det gjøres oppmerksom på at tilluftstemperaturen ikke kan bli lavere enn utetemperaturen.
For å unngå problemer med for høyt fuktnivå i kanaler, må evt. tørketrommel være utstyrt med oppsamler for kondensvann, såkalt kondenstørketrommel.
Kanalinstallasjon i leiligheter er planlagt ført i nedforet himling eller innkassede kanaler ved tak mellom sjakt/ aggregat og de ulike tilluft- og avtrekksventiler. Disse er ikke vist på plantegningene.
Det valgte ventilasjonssystemet tilfører filtrert luft, mens fuktighet blir fjernet fra leiligheten. Dette bidrar til et godt innemiljø, og er i tillegg energisparende.
4.6
Bygget får sentralt anlegg for produksjon av varmt tappevann og for oppvarming.
Energimålesystemet er basert på fellesmåling der borettslaget eier energimålere og dataloggere som inngår i systemet. Alle energimengdedata for varmtvann fra hver boenhet blir kontinuerlig logget og overført til en database som driftes av en systemleverandør (BKK Energitjenester eller tilsvarende).
Energisystemet vil være oppkoblet til et driftsanlegg og med serviceavtale for drift og service av dette.
I tillegg vil alt strømforbruk i fellesarealer måles over egen kWh måler.
Bygget tilknyttes BKK sitt kabelnett for strømforsyning. Hver leilighet har eget strømabonnement og måler er plassert i tavleskap.
I den enkelte boenhet leveres viftekonvektor som dekker stue/kjøkken. For øvrig leveres ingen varmekilder. I baderom leveres elektriske varmekabler i gulv.
Vannforsyningen er utført som rør-i-rør system. Innfelt fordelingsskap for rør-i-rør fordeling monteres i vegg på bad, fortrinnsvis i vaskeromsnisje. Avvik kan forekomme. Det blir ingen varmtvannsbereder i leilighetene, da varmt forbruksvann produseres sentralt.
På badet vil det for øvrig bli montert hvitt porselensutstyr. Det leveres nedfelt servant i underskap Bredde varierer litt fra leilighet til leilighet.
Det leveres ett-greps batteri i forkrommet utførelse. Over vask leveres speil og lys samt stikkontakt. Overskap/skap kan leveres som tillegg.
Det leveres vegghengte toaletter m/soft close og med sisterne innfelt i vegg, eventuelt påforet vegg som avsluttes med hylle i høyde ca. 120 cm over gulv.
Det monteres 1 stk. ettgreps termostat dusjbatteri med dusjslange og glider på vegg for høyderegulering.
Det leveres tilkobling/opplegg for vaskemaskin og kondenstørketrommel.
Det presiseres at utstyr som vaskemaskin, kondenstørketrommel, badekar på bad ikke inngår i leveransen.
I kjøkkenbenken blir det montert nedfelt benkebeslag i rustfri utførelse som utstyres med ettgreps kjøkkenbatteri med kran og avløp for oppvaskmaskin.
Det blir montert forskriftsmessig sprinkleranlegg og brannvarsling med røykvarsler og pulver evt. skumapparat i hver leilighet. Branndetektorer i leiligheter vil bli utrustet med innebygget akustisk signal for intern varsling i leilighet ved utløst alarm.
OG BESTILLINGSFRIST FOR KJØPER
Kjøper står fritt til å velge ulike utførelser, farger og kvaliteter i henhold til gjeldende tilvalgsliste (denne er under utarbeidelse). Denne vil også inkludere ladepunkt for el-bil. Det forutsettes at slike valg er avklart skriftlig mellom kjøper og selger innen avtalt tidsfrist, slik at de valgte løsningene/materialene kan planlegges og gjennomføres uten forsinkelser for prosjektet. Tidsfrister og muligheter for slike kostnadsfrie tilvalg vil bli orientert om senere.
Dersom kjøper ønsker å bestille endringer utover det som fremgår av tilvalgslisten, gjelder reglene for tillegg- og endringsarbeid (jf. Bustadoppføringslova evt Avhendingslova), som gir kjøper rett til å bestille endringsarbeid/tilleggsleveranser for en gitt verdi av kjøpesummen.
Det forutsettes at slike bestillinger foreligger i tide slik at endringene kan gjennomføres uten forsinkelser for prosjektet.
Tilleggsbestillinger må leveres fra prosjektets leverandører for de respektive fag og leveransen faktureres fra TE. Det må videre regnes med noen rådgiverkostnader avhengig av tilvalgene.
Som hovedregel betinger endringer i boenheten revisjon av arkitekt og/eller rådgivere. Oppstartskostnader for hver av disse er kr 8.500,- inkl mva som avregnes mot timeforbruk avhengig av endringsomfang.
Det vil bli etablert kundekontakt som skal veilede kjøperne i forbindelse med eventuelle endringer og ønsker/ konsekvenser. Digital plattform for tilvalg vil bli benyttet.
Tilvalg vil måtte skje skriftlig mellom kjøper og totalentreprenør innen avtalt tidsfrist, slik at de valgte løsningene/materialene kan planlegges og gjennomføres uten forsinkelser for prosjektet.
Det må regnes med at slike tilleggsbestillinger forfaller til betaling minimum 3 uker før overtakelse.
Vedlagte prisliste viser kolonner for andelsnummer, leilighetsnummer, boligtype, bruksareal BRA, P-rom totalpris.
Ved inngåelse av kjøpekontrakt skal det innbetales forskudd på 5 % av boligens pris.
Restbeløpet samt omkostninger forfaller ved overtakelse av leiligheten. Vær oppmerksom på at tilvalg iht. pkt. 4.10 betales innen angitt frist.
Restbeløpet er opp til 40% av kostnaden på leiligheten. 60% vil være fellesgjeld. Det vil bli mulighet for å innfri fellesgjeld / deler av fellesgjeld 2 ganger i året. I praksis kan det altså gå noen måneder etter innflytting til man får mulighet til å innfri fellesgjelden / deler av fellesgjelden.
5.1 Omkostninger.
Etableringsgebyr kr. 5.990,Tinglysning/ Hjemmelsoverføring kr. 545,Tinglysning av pantedokument (lån) kr. 545,-
Attestasjonsgebyr kr. 206,Medlemskap i Vestbo for eier og evt. medeier kr. 300,- pr. stk Årskontingent kr. 300,-
Hovedeier og medeier(e) må være medlem i Vestbo BBL. Hovedeier betaler en andelsavgift på kr. 300,ved innmelding. Inntil innflytting betaler hovedeier årskontingent pt. på 300,- kr. Etter innflytting/overtakelse vil årskontigenten for hovedeier være en del av felleskostnadene. Medeier(e) betaler en andelsavgift på kr. 300,- + årskontigent ved innmelding. Medier(e) betaler ikke årskontingent ved innmelding i perioden 1.10 - 31.12. Deretter betaler medeier(e) en årlig kontingent på kr. 300,-.
5.2 Betalingsbetingelser
5 % av totalkostnaden (min. kr 150.000,-) innbetales ved inngåelse av kjøpekontrakten. Restoppgjør av innskuddet samt omkostninger betales ved overtakelse av leiligheten.
5.3. Borettslaget får IN-ordning.
Fellesgjelden er lån i bank med flytende rente som pr. juni 2024 er 5,65 %. Renter blir endret i takt med justeringen i rentemarkedet. Lånets løpetid er 40 år.
Avdrag på fellesgjelden kommer til etter det 10. året.
Borettslaget får IN-ordning (individuell nedbetaling) for fellesgjelden. To ganger i året får man mulighet til helt eller delvis nedbetaling på fellesgjelden (20.12 og 20.06). Dersom man ønsker å gjennomføre ekstra innbetaling / nedbetaling på fellesgjelden, må «Avtale om individuell innbetaling av fellesgjeld» og «Skjema for innbetaling av fellesgjeld» fylles ut.
Borettslaget får IN-ordning(individuell nedbetaling) for fellesgjelden.
5.4 Stipulerte månedlige kostnader. Utregning av månedlige kostnader det første år med, på hver enkelt leilighet i tabell. Viser til prisliste hvor dette fremkommer.
Leveransebeskrivelse 20.02.2026



gnr 188 bnr m.fl
Føresegner (jf plan- og bygningslova (pbl) § 12-7)
planID 1263-201002 arkivID 19/67 og 20/5600
Utval Utarbeid Sak Godkjent Endringsvedtak ArkivID
Delegert


1.1 Innhald i planen
Planen omfattar planskildring med konsekvensutgreiing (19.6.2017), støysonekart (29.3.2017), plankart (23.06.2015 / 2.11.2020) og føresegner (2.11.2020).
Planområdet si avgrensing er på plankart i målestokk 1:1000 i arkfomat A0.
Til planen er det utarbeidet desse utfyllande vedlegga:
- Grøn overflatefaktor 03.06.2014 vedlegg A
- Grøne punkt 03.06.2014 vedlegg B
- Illustrasjonsplan 03.06.2014 vedlegg C
- Kvalitetsprogram 03.06.2014 vedlegg D
1.2 Areala innan for planområdet skal nyttast til følgjande arealbruksføremål:
Bygningar og anlegg
- Frittliggjande småhus (BF)
- Blokkbusetnad (BB)
- Sentrumsføremål (BS/BAA)
- Offentleg/privat tenesteyting (OPT)
- Offentleg/privat tenesteyting (BIN)
- Offentleg/privat tenesteyting (BOP)
- Komb bustad/kontor (B/K)
- Komb . bustad/kontor/sentrumsføremål (AB)
Samferdselsanlegg og teknisk infrastruktur
- Veg (V)
- Køyreveg (o_SKV)
- Fortau (o_SF)
- Gatetun/Torg (o_ SGT/o_ST)
- Gang- og sykkelveg (o SGS)
- Gangveg/gangareal (o_ SGG)
- Sykkelveg/-felt (o_ SS)
- Annan veggrunn – tekniske anlegg (o_VT)
- Anna veggrunn – grønt anlegg (o_VG)
- Haldeplass/plattform (o_HP)
- Parkeringshus/-anlegg (o_P)
Grøntstruktur
- Friområde (o_ GF)
- Park (o_PRK)
(jf. § 12-5, nr.1)
(jf. § 12-5, nr 2)
(jf. § 12-5, nr 3)
Bruk og vern av sjø og vassdrag, med tilhøyrande strandsone (jf. § 12-5, nr 6)
- Friluftsområde i sjø og vassdrag (o_VFV)
Omsynssone
- Frisiktsone (H140)
- Sikringssone tunnel (H190)
- Detaljplan (H910)
Føresegnsområde
- Føresegnsområde (# 1 – 25)
(jf. § 12-6)
(jf. § 12-7)

1.3
Tilhøvet til andre arealplanar
Områdeplan for Knarvik går foran/og:
- Kommuneplanens arealdel Lindås 2019 (delplan i Alver)
- Kommunedelplan Knarvik – Alversund 2019
- Eldre reguleringsplaner innan for planavgrensinga og erstatter eldre reguleringsplaner når vedtak om sletting/erstatning er gjort i tråd med reglane i plan- og bygningslova
- viser omsynssone for detaljplan(-ar) som skal gjelde fullt ut innan for planområde 1) Detaljplan for «E39 Oval rundkøyring», planID 1263-201702
1.4
Innhald i planen
Føresegnene er saman med plankartet juridisk bindande for framtidig arealbruk jf. pbl. § 12-6. Dei er delt i generelle føresegner, krav om rekkefølgje og føresegner for arealføremål, samt sone med arealomsyn. Desse delane verkar i lag.
For å finne kva som gjeld for eit område må ein først lese den generelle føresegna i kapittel 1 og krav til rekkefølgje i kapittel 2, og så føresegna som gjeld for det aktuelle området i kapittel 3. Om området i tillegg ligg i ei omsynssone eller i eit føresegnsområde (skravur i plankartet) må ein lese om den aktuelle omsynsona eller føresegnsområde i kapittel 4 og 5.
Områdeplanen sine retningsliner supplerer føresegnene. Retningslinene gjev ikkje heimel for vedtak i enkeltsaker, men gjev utfyllande føringar for detaljplanlegging og dispensasjonsvurderingar etter plan- og bygningslova. Retningslinene er markert med kursiv skrift og står i ramme.
1.5 Føremål og målsetjing med planen
Det er utarbeidd illustrasjonsplan med tilhøyrande kvalitetsprogram for delar av planområdet. Vidare er det utarbeidd gatebruks- og lysplan som ramme for detaljert utfoming av offentlege byrom.
Desse dokumenta utfyller plankart og føresegna, og skal bidra til utvikling av eit heilskapleg og berekraftig sentrumsområde. Krava i kvalitetsprogrammet skal leggjat til grunn ved detaljplanlegging og opparbeiding av alle tiltak innanfor heile planområdet.
Forminga av eit heilskapleg og berekraftig sentrumsområde skal sikrast ved utarbeiding av utanomhusplan med nausynte vedlegg for det einskilde byggjetiltak. Uteareal og det einskilde bygg skal utformast slik at det stimulerer til sosial kontakt og bruk for alle aldersgrupper. Tilgjenge for ålmenta skal prioriterast i alle offentlege rom Offentlege gater, fortau og gatetun skal ha utforming av høg kvalitet, invitere til gåande og syklande i Knarvik og leggje til rette for aktivitet/leik for barn i alle aldersgrupper.
1.5.1 Illustrasjonsplan (Vedlegg C)
Alle bygg og bygningskroppar er illustrative og bygningsliv skal tilpassast dei byggje- og føremålsgrenser som går fram av plankartet og pkt. 3.1.4 (Tab.3) i føresegna.

1.5.2 Kvalitetsprogram (Vedlegg D)
Kvalitetsprogram (datert 3.6.2014 og revidert 4.3.2015) utfyller illustrasjonsplanen og er eit styringsverkty som skal bidra til ynskt funksjonalitet og kvalitet i felles og offentlege byrom og felles grøntområde. Kvalitetsprogrammet skal leggast til grunn for utforming av detajplanar, utanomhusplanar og alle tiltak i byggjeområda
1.5.3 Gatebruk- og lysplan
Gatebruk- og lysplan gjev rammer for korleis dei offentlege uteromma (gater, leikeløype, trimtun) skal formast og meir i detalj prosjekterast. Sjå pkt. 1.9.4 og 1.9.5.
1.6 Krav om detaljplan
1.6.1 Krav om utarbeiding av detaljplan gjeld for:
- Alle område som ikkje er omfatta av illustrasjonsplanen
- Områda BS 9-12, BKB4, BKB5 og BAA innanfor illustrasjonsplanen
Detaljplanen skal omfatta feltet som tiltaket ligg i, og tilstøytande areal som kommunen finn naudsynt for å ivareta ei heilskapleg utvikling For områda som ikkje er omfatta av detaljplankrav kan det byggast ut i samsvar med plankart og føresegner.
1.6.2 Unntak frå krav om detaljregulering gjeld for:
- tiltak etter pbl § 20-1 bokstav c, bokstav e-j, og bokstav m)
- mindre tiltak som er omfatta av pbl § 20-4 og § 20-5
- mindre endringar og tiltak på eksisterande bygningar / areal som ikkje er til hinder for seinare gjennomføring av områdeplanen
- grensejusteringar, jf. matrikkelloven § 16.
Det kan gjevast mellombels dispensasjon for tiltak med varighet over 2 år, der kommunen vurderar at tiltaka er nødvendig som eit ledd i gjennomføring av planen.
1.7 Utbyggingsavtale
1.7.1 Utbyggingsavtale kan nyttast for å innfri krav om rekkjefølgje for å opparbeide eller sikre opparbeiding av offentleg infrastruktur (sjå pkt. 2.1).

1.8 Vedlegg til søknad om rammeløyve
1.8.1 Følgjande dokumentasjon skal følgje som vedlegg til søknad:
- Utomhusplan, sjå pkt. 1.9.6
- Dokumentasjon på krav til grøn overflatefaktor, GOF, sjå pkt. 3.1.16
- Dokumentasjon på krav til grøne punkt, GP, sjå pkt. 3.1.17
- Materialpalett og konsept for estetisk utforming av bygningane
- Krav til dokumentasjon av lyskjelder på fasade, på fortau/gater og uterom, jf. gatebruks- og lysplan (pkt. 1.9.4) og utforming av offentlege byrom (pkt. 1.9.5).
1.9 Utfyllande planar
1.9.1 Plan for vatn og avløp
Planområdet
Det er utarbeidd ein kommunal VA- rammeplan for heile planområde.
Detaljplan og søknad om tiltak
Ved detaljplan og søknadar om tiltak skal infrastruktur for veg, vatn, overvatn, sløkkevatn og avlaup sjåast i samanheng med eksisterande og framtidig utbygging i området, slik at det vert etablert gode og heilskaplege løysingar.
Plan for vatn og avløp skal ma. vise hovudtrasear (kommunale og private), brannsvassdekning, løysingar for overvasshandtering, pumpestasjonar, tilhøve mellom eksisisterande leidningar og VA løysinger som vert råka av detaljplan/byggjesaka.
Lokal handtering av overvatn (overvatn, takvatn, overflatevatn og drensvatn)
skal leggjast til grunn ved detaljutforming og prosjektering av det einskilde tiltak og gå fram av plan for vatn og avløp. Dette inkluderer kapasitetsberekningar, overløpssystem og flomveg. Bekkeløp og gjennomføringar skal dimensjoneras for vassføring tilsvarande 200 års nedbørsintensitet
I anleggsfasen skal overvatn reinsast i naudsynt omfang før det vert slept ut til resipient eller leidningsnett. Det må takast omsyn til om utslepp av oppsamla overvatn utgjer ein risiko for auka flaumfare og forureining.
Tidspunkt for gjennomføring går fram av føresegn 2.3.1.
VA rammeplan og teknisk plan (prosjektert anlegg) skal vera i samsvar med den til ein kvar tid gjeldande VA norm for Alver kommune.

1.9.2 Veganlegg
Det skal utarbeidast detaljerte tekniske planar for opparbeiding av endra og nye offentlege veganlegg. Planen skal ha normalprofil for veg inklusiv fortau, gaterom, plantesone m.m. Planen skal være i målestokk 1:500. Planen skal vise avkjørsler som bli stengt/flytta som følgje av utbygging og omlegging av tilkomstvegar til tilgrensande eigedommar/areal. Der varelevering skjer frå offentleg veg/fortau/gatetun skal vegplanen vise dette. Det same gjeld for renovasjon. Planen skal godkjennast av kommunal vegmynde.
1.9.3 Lonsvassdraget
Dei miljøfaglege utgreiingane som er laga for Lonsvassdraget og Kvassnesstemma skal leggast til grunn for prosjektering og overføring av Lonsvassdraget til Kvassnesstemma og bruk av vatn som element på Almenningen.
1.9.4 Gatebruks- og lysplan
Det er utarbeida gatebruksplan og lysplan for offentlege vegar og byrom (datert 1.12.2016). Ei bymessig utvikling skal leia til ein levande by som inviterer til bruk av byrom, og som tilbyr eit mangfald av kvalitetar for alle. Det er til ein kvar tid gjeldande gatebruks- og lysplan som skal leggjast til grunn.
1.9.5 Offentlege byrom
Med grunnlag i gatebruks- og lysplan er det utarbeidd/prosjektert detaljert utforming av dei offentlege byromma gate (o_SKV, o_SGG, o_SS, o_SF, o_VG), leikeløype (o_SGT), almenning og trimtun (o_ST).
Dei til einkvar tids gjeldande «Utforming av byrom» med tilhøyrande vedlegg som skal leggjast til grunn ved utforming og er førande for detaljplanar, utomhusplanar og utbygging.
1.9.6 Utomhusplan
Saman med søknad om rammeløyve skal det sendast inn ein detaljert utomhusplan. Utomhusplanen skal være i målestokk 1:200, og vise korleis innhaldet i illustrasjonsplan, kvalitetsprogram, gatebruks- og lysplan og utforming i prosjekt for offentlege byrom er oppfylt.
Grøn overflatefaktor og grøne punkt skal leggjast til grunn for utforming av uteopphaldsareal, jf. pkt 3.1.16 og 17
Utomhusplanen skal mellom anna vise plassering av bygg, avkøyrsle, offentlege rom, materialbruk, høgdekoter, grøn overflatefaktor, grøne punkt, planting, anlegg for avfallshandtering, tilkomst, inngangar, plass for varelevering, tekniske installasjonar og bruk av ubygde areal, inkludert leikeog uteareal.

2.1 Infrastruktur som må vera sikra opparbeida eller opparbeida før det kan gjevast igangsetjingsløyve for tiltak
2.1.1 Alle areal regulert til følgjande føremål er del av offentleg infrastruktur og må være sikra opparbeida eller opparbeida før det kan gjevast løyve til igangsetjing av tiltak etter pbl § 20 – 1, 1. ledd, a, b og d:
Tab. 1 Offentleg infrastruktur i høve til planføremål
Busetnad og anlegg
Feltkode (i kart)
SOSI-kode (digitalt)
Veg o_KV 2011
Køyrevegar
Fortau
Gatetun/Torg
Gang-/sykkelveg
Gangveg
o_SKV 2010/2011
o_SF 2012
o_SGT / o_ST 2014
o_SGS 2015
o_SGG 2016
Sykkelveg/-felt (SS) o_SS 2017
Annan veggrunn o_VT 2018
An nan veggrunn o_VG 2019 Grønstruktur
Friområde o_GF 3040 Park o_PRK 3050
Krav om opparbeiding av offentlege vegar/køyrevegar og offentlege torg og gatetun, gjeld og tilhøyrande fortau, gangveg-/gangareal, under- og overgangar, sykkelveg-/felt, annan veggrunn, grøntareal/vegetasjon og tiltak som er naudsynt for å ivareta heilskapen.
Krav om opparbeiding av leikeplassar og grøntområde gjeld og møblering og andre tiltak som er omtalt i kvalitetsprogrammet (pkt. 1.5.2) og «Offentlge byrom (pkt. 1.9.5), og er naudsynt for å ivareta heilskapen.
2.1.2 Offentlege infrastrukturtiltak som ikkje er omfatta av krava om rekkjefølgje:
Tab. 2 Offentleg infrastruktur som ikkje treng sikrast
Busetnad og anlegg
Feltkode (i kart)
SOSI-kode (digitalt) Ve g (Ramper) o_KV 2011 Køyrevegar (E39) o_SKV2 og 3 2011
2.2 Opparbeida i høve til sikra opparbeida
2.2.1 Krav om rekkjefølgje der heile eller del av offentleg infrastruktur alternativt skal vera sikra opparbeida, vert rekna som oppfylt viss tiltakshavar/grunneigar har inngått utbyggingsavtale med Alver kommune og har oppfylt sine forpliktelsar i utbyggingsavtalen, jf. pbl kap. 17.

2.3 Teknisk infrastruktur
2.3.1 Veg, vatn og avløp
a) Før detaljplan kan bli vedtatt, må det ligge føre godkjent VA-rammeplan, der tidspunkt for teknisk plan vert utsett til tidspunkt for utbygging
b) For detaljplanar og søknad om tiltak skal det utarbeidast teknisk plan for veg, vatn og avløp som skal godkjennast av kommunen før detaljplan vert godkjent/det gjeve rammeløyve i samsvar med pkt. 1.9.1 og 1.9.2
2.4 Naudsynte tiltak som skal ta i vare heilskapen i planområdet
2.4.1 Det kan gjevast mellombels bruksløyve/ ferdigattest til tiltak for inntil 30 000 m2 bruksareal for nybygg før oval rundkøyring, o_SKV4_A og o_SKV6 er ferdig opparbeidd
2.5 Private fellesareal
2.5.1 Før det kan gjevast midlertidig bruksløyve eller ferdigattest for søknadspliktige tiltak innanfor det einskilde feltet, skal tilhøyrande felles utomhusareal være ferdigstilt som vist i utomhusplan for tiltaket, jfr pkt. 1.9.6.
2.6 Rekkefølgjekrav til byggeområde
2.6.1 BBB2, BBB3 og BBB4 Før det kan gjevast mellombels bruksløyve/ferdigattest skal det vera opparbeide eit grønt belte langs o_SKV13. Den grøne sona kan inngå i uteopphaldsarealet til bustadene.
Innanfor føresegnsområde #7 vest i felt BBB4 skal det opparbeidast ein gangsti open for ålmenn ferdsel mellom Bruvegen og Strandvegen. Gangstien skal ferdigstillast før det kan gjevast midlertidig bruksløyve/ferdigattest for nye bustader i feltet.
3.1. Generelle føresegner
3.1.1 Grad av utnytting
Delområda kan maksimalt tillatast bygd med den grad av utnytting (%-BRA) som er angjeve i tab. 3 i pkt. 3.1.4.
Parkeringsareal under bakken der avstand mellom himling og gjennomsnittleg terreng rundt bygning er mindre enn 0,5m skal ikkje reknast med i grunnlaget for utrekning av grad av utnytting.
Viss kvar tomt innan eit felt vert bygt ut separat, gjeld grad av utnytting for den einskilde tomta. Om heile feltet vert detaljert/bygt ut samla reknast grad av utnytting for heile feltet.
3.1.2 Byggjehøgder og fasadelengder
Delområda kan byggjast med dei høgdene som går fram i tab. 3 i pkt. 3.1.4.
Der det ikkje er fastsett kotehøgd overkant (OK) tak, vert byggjehøgde gjeve i meter over gjennomsnittsnivå for ferdig planert terreng rundt bygningen.

Tekniske installasjonar, tiltak i samband med felles uteareal på tak og tilkomst til desse, kan plasserast tilbaketrekt frå gesimsen som takoppbygg. Dette gjeld ikkje for gjerde, rekkverk og liknande der det er godkjent felles uteareal på tak. Takoppbygg som stikk inntil 3m over maksimal byggjehøgd kan utgjere inntil 15% av takflata. Installasjonar på resten av taket kan ikkje stikke opp meir enn 1,5m. Takoppbygg skal nyttast som del av fellesareal på tak,

3.1.3 Byggjegrenser
Byggjegrensa i planen er gjeve på tre vis:
a) Hovudregelen er at byggjegrensa for dei einskilde delområde er vist i plankartet
b) Der det ikkje er vist byggjegrense, skal bygg plasserast i føremålsgrensa. For byggjeområda som har byggjegrense mot o_SKV6 og 7 kan bygg trekkast attende ytterlegare 5 meter frå byggjegrensa
c) I tillegg er det for konkrete byggjeområde lagt inn eigne byggjegrenser i tabell 3, pkt. 3.1.4
Mindre justeringar for plassering av bygningar innanfor byggeområda kan tillatast etter søknad når plasseringa er gjort for å tilpasse seg veg- og gatestruktur og ikkje er i strid med kvalitetane i områdeplanen
3.1.4 Tab 3 – Grad av utnytting, byggjehøgder og -grenser og fasadelengder
Område / Føremål % U BRA
BFS Bustader Frittligg småhus
BBB1 Bustader Blokkbygn
BBB2 Bustader Blokkbygn.
BBB3 Bustader Blokkbygn.
BBB4 Bustader Blokkbygn
BS1 Sentrumsføremål
BS2 Sentrumsføremål
BS3 Sentrumsføremål
BS4 Sentrumsføremål
BS5 Sentrumsføremål
BS6 Sentrumsføremål
Maks. byggjehøgd vist som:
• Kotehøgd og tak, K+ moh og
• Tal etg. for fasade N,S,A og V
100 • 7m gesims- og 9m mønehøgd
150 • K + 62 mot o_SKV3
• K + 56 mot o SKV17
100 • K + 35 mot o_SKV13-14, BBB3 og gnr/bnr 188/757
100 • K + 40 mot o_SKV14, gnr/bnr 188/116, 335, 749, 757
100 • K + 33 mot o_SGG21 og o_SKV13 til og med gnr/bnr 188/757 (N) og mot gnr/bnr 188/189 og 269 i knekkpkt. (V)
• K + 27 mot Strandvegen (S).
200 • K + 62 mot (N), (S), (A) og (V)
250 • K + 62 nordre del, 4 etg.
• K + 58 søre del, 4 etg.
• Maks. 15% i 5 etg., K + 66/+62
400 • K + 62 mot rundkøyring
• K + 54 mot nord-vest
300 • K + 50 mot o_SGT5 (N)
• K + 54 mot o_SKV2 (S)
300 • K + 50 mot o_SGT5 (N)
• K + 54 mot o_SKV2 (S)
500 • K + 43 sokkel, 2 etg.
• K + 68 tårn, 7 etg. over sokkeletg.
Byggjegrense (BG) Føresegn/sikring (#/..) Maks. fasadelengde (MF)
• BG – Pkt. 3.2.3 og 4m frå nabogrense
• BG – Pkt. 3.2.3
• MF 35m
• BG – Pkt. 3.2.3
• MF 35m
• BG - Pkt. 3.2.3
• MF 35m
• BG – Pkt.3.2.3
• MF 50m
• BG – Pkt. 3.2.3
• MF 50m
• BG – Pkt. 3.2.3 og i..
• FO #1-3 er siktliner og kan ikkje bebyggast
• Bygg som punkthus
• MF 30m
• BG – Pkt. 3.2.3
• Bygg som punkthus MF 30m
• BG – 3.2.3
• FO #5 og6 er siktline og allmenning og kan ikkje bebyggast
• BG – Pkt. 3.2.3
• FO #21 er siktline og allmenning og kan ikkje bebyggast
• BG – Pkt. 3.2.3
• FO #21 er siktline og allmenning og kan ikkje bebyggast
• MF 25 m i tårn

Område / Føremål
BS7 Sentrumsføremål
BS8 Sentrumsføremål
BS9 Sentrumsføremål (Rema)
BS10 Sentrumsføremål (Langenes)
BS11 Sentrumsføremål
Uendra
BS12 Sentrumsføremål
Uendra
BS13 Sentrumsføremål (Geco)
BS14 Sentrumsføremål (Geco)
% U BRA
300
Maks. byggjehøgd vist som:
• Kotehøgd og tak, K+ moh og
• Tal etg. for fasade N,S,A og V
• K + 53 mot «E39» (N) (over terreng)
• K + 49 mot o_SF5 (V)
• K + 39 mot BS8 (S)
300 • K + 43 mot o_SKV9 (N)
• K + 46 mot o_SKV9 (N), men max. 30% av siste høgda
• K + 38 mot o_SKV10 (S)
250 • K + 55 mot o_SKV2 (N)
• K + 59 mot o_SKV2 (N), men max. 30% av siste høgda
• K + 48 mot o_SKV7 (S)
• K + 52 mot #13/BS10 (A), når fasade er trekt 5m attende
250 • K + 59 mot o_SKV2 (N)
• K + 52 mot o_SKV7 (S)
• K + 55 mot o_SKV7 (S) når fasade er trekt 5m attende
250 • K + 58 mot o_SKV2 (N)
• K + 52 mot o_SKV7 (S)
• K + 55 mot o_SKV7 (S) når fasade er trekt 5m attende
250 • K + 58 mot o_SKV2 (N)
• K + 62 mot o_SKV2 (N), men max 30% av siste høgda
• K + 48 mot o_SKV7 (S)
• K + 52 mot o_SKV7 (S) når fasade siste høgda er trekt 5m attende
• Maks fasadehøgd mot o_ST2 15m
220 • K + 49 mot o_SKV7 (N)
• K + 52 mot o_SKV7 (N), når fasade siste høgda er trekt 5m attende
• K + 46 mot o_SKV11 (S)
230 • K + 49 mot o_SKV7 (N)
• K + 52 mot o_SKV7 (N), men max 30% av siste høgda
• K + 52/56 mot o_SKV7 (N) når fasade er trekt 5m attende
• K + 46 mot o_SKV11 (S) og o_SGT3 (A)
• K + 50 mot o_SKV11 (S) og o_SGT3 (A), men max 30% av siste høgda
Byggjegrense (BG) Føresegn/sikring (#/..) Maks. fasadelengde (MF)
• BG – Pkt. 3.2.3
• FO #12 er riggområde og kan ikkje bebyggast
• MF 50m
• BG – pkt. 3.2.3
• MF 50m
• BG – Pkt.3.2.3 og i føremåls- eller byggegrensa mot SKV7
• FO #13 er siktline og kan ikkje bebyggast
• MF 50m
• BG – Pkt. 3.2.3 og i føremåls- eller byggjegrensa mot o_SKV7
• FO #13 er skiktline og kan ikkje bebyggast
• MF 50m
• BG – Pkt. 3.2.3 og i føremåls- eller byggjegrensa mot o_SKV7
• FO #14 er siktline og kan ikkje bebyggast
• MF 50m
• BG – Pkt. 3.2.3 og i føremåls- eller byggjegrensa mot o_SKV7
• FO #21 er siktline og byggjegrense i 1.etg. mot Almenning og kan ikkje bebyggast
• MF 50m
• BG – Pkt. 3.2.3 og i føremåls- eller byggjegrensa mot o_SKV7
• FO #15 er siktline og kan ikkje bebyggast
• MF 50m
• BG – Pkt. 3.2.3 og i føremåls- eller byggegrensa mot o_SKV7
• FO #15 er siktline og kan ikkje bebyggast
• MF 50m
BS15 Sentrumsføremål
BS16 Sentrumsføremål
BS17 Sentrumsføremål
220 • K + 48 mot o_SKV7 (N) og 13 (A)
• K + 52 mot o_SKV7 (N) og 13 (A), men max 30% av siste høgda
• K + 42 mot o_SKV12 (S) og o_SGT3 (V)
• K + 46 mot o_SKV12 (S) og o_SGT3 (V), men max 30% av siste høgda
410
• K+ 42 sokkel, 2 etg.
• K + 63 tårn, 6 etg. over sokkel
230
• K + 56 mot o_SKV3 (N)
• K + 51 mot o_SKV17 (S
• BG – Pkt. 3.2.3 og i føremåls- eller er byggjegrensa mot o_SKV7
• FO #16 er siktline og kan ikkje bebyggast
• MF 50m
• BG – Pkt. 3.2.3
• Tårn plasserast i føremåls-grense mot o_ST3
• MF 25m i tårn
• BG – Pkt. 3.2.3
• Inntil 2 sokkeletg. mot o_SKV17

Område / Føremål % U BRA
BS18 Sentrumsføremål
BS19 Sentrumsføremål
BS20 Sentrumsføremål
BAA Sentrum/ Bensinst / Vegservice
Maks. byggjehøgd vist som:
• Kotehøgd og tak, K+ moh og
• Tal etg. for fasade N,S,A og V
200 • K + 51 mot o_SKV17 (N)
• K + 47 mot o_SGG22 (S)
• Sokkel på 1 etg. med K+ 40 tillastes mot o_GF4
200 • (nivå 1)
• Inntil 2 etg. Under bakken
200 • (nivå 1)
• Inntil 2 etg. Under bakken
300 • K + 54 mot o_SKV2 (N)
• K + 58 mot o_SKV2 (N), men max 30% av siste høgda
• K + 45 mot o_SKV6 (A) og 7 (S)
BKB1 Bustad/ Kontor KS
300 • K + 45 mot (N), (S), (A) og (V)
• K + 48, men max. 50 % av siste høgda
Byggjegrense (BG) Føresegn/sikring (#/..) Maks. fasadelengde (MF)
• BG – Pkt. 3.2.3 og byggjegrense mot SKV6
• FO #23
BKB2 Bustad/ Kontor KS
BKB3 Bustad/ Kontor KS
BKB4 Bustad KS Kontor
BKB5 Bustad KS Kontor
o_BKB1 Kontor/ tenesteyting
OPT1 Offentlig/ privat tenesteyting
o_BIN1 Institusjon
o_BIN2 Institusjon
o BIN3 Institusjon
o_BIN4 Institusjon
o_BIN5 Institusjon
o_BIN6 Institusjon
200 • K + 48 mot o_SKV12 (N) 13 (A)
• K + 42 mot o_SGT3 (V) og på gnr/bnr 188/416
180 • K + 45 mot (N), (S), (A) og (V)
• K + 48, men max 50% av siste høgda
100 • K + 44 mot (N), (S), (A) og (V)
• K + 48, men max 50% av siste høgda
80 • K + 44 mot (N), (S), (A) og (V)
• K + 48, men max 30% av siste høgda
100 • K + 58 mot (N), (S), (A) og (V)
100 • K + 62 mot (N), (S), (A) og (V)
100 • K + 57,5 mot (N), (S), (A) og (V)
100 • K + 63 mot (N), (S), (A) og (V)
80 • K + 53,5 mot (N), (S), (A) og (V)
80 • K + 51,5 mot (N), (S), (A) og (V)
140 • K + 35 mot (N), (S), (A) og (V)
100 •
• BG – Pkt. 3.2.3
• MF 50m mot o_SKV6
• FO #21 er siktline og byggjegrense i 1.etg. mot Allmenning og kan ikkje bebyggast FO # 25 Parkering
• BG – Pkt. 3.2.3
• MUA kan løysast med saman med BKB3
• MF 50m
• FO #21 er siktline og allmenning og kan ikkje bebyggast
• BG – Pkt. 3.2.3
• Forhagar mot o_SGT3
• MF 50m
• BG – Pkt. 3.2.3
• MUA kan løysast med BKB1
• MF 50m
• BG – Pkt. 3.2.3
• MF 50m
• BG – Pkt. 3.2.3
• MF 50m
• BG – Pkt. 3.2.3
• MF 50m
• BG – Pkt. 3.2.3
• MF 50m
• BG – Pkt. 3.2.3
• MF 50m
• o_SKV21
• BG – Pkt. 3.2.3
• MF 50m
• o_SKV21
• BG – Pkt. 3.2.3
• MF 50m
• BG – Pkt. 3.2.3
• MF 50m
• BG – Pkt. 3.2.3
• MF 50m
• BG – Pkt. 3.2.3
•

Område / Føremål % U. BRA
o_BOP1 Offentleg / privat tenesteyting (Helsehuset)
o_BOP2 Offentleg / privat tenesteyting KS
o_BOP3 Offentleg / privat tenesteyting
400
Maks byggjehøgd vist som:
• Kotehøgd og tak, K+moh
• Fasaderetn. (N), (S), (A) og (V)
• K + 56 mot o_SKV6 (N)
• K + 60 mot o_SKV6 (N), men max 50% av siste høgda
• K + 51 mot o_PRK1/2 eller/o_SGT?
200
• K + 48 mot o_SGT3 (N), o_SGT4 (V), o_SGT? (NA)
• K + 43 mot o_PRK2/o_GF4?(S) og (SA)
100 • K + 47 mot o_SKV13 og 14 for gnr/bnr 188/707
• K + 49 mot o_SKV13, o_SGT4, o_PRK2 og o_SKV15 for gnr/bnr 188/703 og 668
• K + 45 mot o_SKV15 (S) og o_GF4 (N) og (A), eigedom gnr/bnr 188/406 og 575
Byggjegrense (BG) Føresegn/sikring (FO) (#/..) Maks. fasadelengde (MF)
• BG – Pkt. 3.2.3
• MF 50m
• BG – Pkt. 3.2.3
• MF 40m
• BG – Pkt. 3.2.3 eller detaljplan
• Byggjehøgd trappas ned mot o_GF4
• MF 50m
o_BOP4 Offentleg / privat tenesteyting
3.1.5 Avkøyrsler
100 • K + 45 mot (N), (S), (A) og (V)
• BG – Pkt. 3.2.3
• MF 50m
Eksisterande avkøyrsler skal stengast når det vert etablert nye avkøyrsler i samsvar med godkjent plan eller løyve.
3.1.6 Minste utomhusareal (MUA)
Minimum arealkrav til privat og felles uteareal går fram av tab. 4 i pkt. 3.1.7. Tabellen gjeld krav til uteareal til bustader. For skuler og barnehagar gjeld eigne retningsliner. Nærleikeplass inngår i «felles uteareal».
3.1.7 Tab. 4 – Minste uteopphaldsareal
Føremål Privat ute-areal pr. bueining
Sentrumsføremål (BS)
BustadFøremål (BBB)
Bustad / kontor (BKB)
Frittliggande småhus (BFS)
Tenesteyting (BKB, BIN, o_BOP, OPT)
7m2
7m2
7m2
25m2 for BKB4 og BKB5
25m2
20m2 pr 100m2 BRA
Felles uteareal på eigen grunn
• pr.100m2 BRA bustad
• ikkje parkeringsareal
• inntil 3m2 per bueining kan leggast på tak
• 25m2
• Inntil 10 m2 kan dekkast inn som ein del av dei offentlege byromma o_SGT, o.PRK, o_GF
• 25 m2
• Inntil 10 m2 kan dekkast inn som ein del av dei offentlege byromma o_SGT, o.PRK, o_GF
• 25m2
• Inntil 10 m2 kan dekkast inn som ein del av dei offentlege byromma o_SGT, o.PRK, o_GF
• 50m2
• Inntil 15 m2 kan dekkast inn som ein del av dei offentlege byromma o_SGT, o.PRK, o_GF
• 50m2
• Inntil 15 m2 kan dekkast inn som ein del av dei offentlege byromma o_SGT, o.PRK, o_GF
• 10m2

3.1 8 Universell utforming
Prinsippa for universell utforming skal leggjast til grunn for utforming av bygg og uteareal, jf. pbl 29-3.
a) Uteareal for bustader utan krav om heis skal vere universelt utforma.
b) Areala skal utformast slik at dei kan brukast på like vilkår av så mange som mogleg, og det skal leggast til rette for ei oversiktleg, trafikksikker og lett orienterbar framkomelegheit for gåande
c) Fotgjengartilkomst frå gatetuna skal skje trinnlaust med universell utforming til tilgrensande gate/gatetun
d) Frå allmenningen skal forgjengartilkomst til alle fortau, gangvegar og tilgrensande byrom skje trinnlaust med universell utforming.
3.1.9 Parkering
Plankart med vertikalnivå 1 viser parkeringshus/anlegg under bakken. All parkering knytt til dette føremålet skal skje under bakken. Planen skal vise mogelegheit for etappevis utbygging av parkeringsareal i vertikalnivå 1 og korleis tilkomst til det einskilde felt skal løysast. Det er ikkje høve til å ha nedkøyrsle til parkeringsanlegg frå o _SKV7 og o_SKV6. Det kan likevel leggjast til rette for avkøyrsle for ambulanse til felt o_BOP1. Parkeringsplassar skal opparbeidast i samsvar med tab. 5.
Tab.5 – Parkeringsnorm Områdeplan Knarvik Føremål / verksemd (1-5 gjeld alle føremål)
/ teater / forsamlingslokale
1) Min. 5 % av parkeringsplassane (avrunda opp til næraste heile plass) skal reserverast for rørslehemma
2) Min 4% av plassane (avrunda opp til næraste heile plass) reserverast for nullutsleppbilar med ladestasjon.
3) Der krav er oppgitt som eit intervall mellom to tall er lågaste tall minimumskrav og høgaste tall maksimumskrav til talet på plassar. Der det kun står 1 tal er det minimumskrav.
4) Kravet til sykkelparkering er minimumskrav
5) Føresegnene om parkering kan fråvikast når det ligg føre parkeringsanalyse/mobilitetsanalyse som dokumenterer tilfredsstillande parkeringsløysing.
Det kan gjevast mellombels dispensasjon til overflateparkering som leidd i transformasjonen for områdeplanen for Knarvik. Overflateparkering skal ikkje skje på areal som er regulert til o_GF, o_ST og o_PRK.

3.1.10 Parkeringsanlegg skal ha utgang direkte til offentleg gate, gatetun eller veg. Der terrenget skrår skal det ikkje ha fasade ut mot gangareal/gatetun. Der det teknisk let seg gjera, kan parkeringsanlegg koplast saman under veg, gaterom m.m.
3.1.11 Ved etappevis utvikling av parkeringsanlegg f_PHU1 - f_PHU6 skal det sikrast at tilstøytande eigedomar over og under bakken får rett til tilkomst. Anlegget skal, når det er fullt utbygd, stå fram som eit anlegg.
3.1.12 Frikjøp for parkering
Frikjøp/leige av parkeringsplassar kan godkjennast innanfor ramma av gjeldande krav til parkeringsdekning, jf. tabell i pkt. 3.2.9. Frikjøp/leige skal dokumenterast som del av søknad om tiltak og med tinglyst avtale mellom partane. Avtalen skal ha eit punkt som seier at den ikkje kan avløysast utan Alver kommune si godkjenning.
3.1 13 I bustader og på arbeidsplassar skal minst 30 % av sykkelparkering kunne skje innandørs med enkel tilkomst. Minst 50% av sykkelparkeringsplassane ute skal vere under tak .Sykkelparkering skal ha ei plassering og utforming som gjev rask og enkel tilkomst til målpunkt. Sykkelparkering skal ikkje vera til hinder for fotgjengarar.
3.1.14 Støy
Støyskjermingstiltak skal utformast som ein integrert del av utomhusanlegg og bygningsmiljø. Bustader med støynivå på 1 fasade mellom Lden 65 - 70dBA For fasadar langs E39 kan grenseverdien for bustader vere opp til Lden = 70 dB for støy frå vegtrafikk. Dersom følgjande føresetnader er oppfylt:
a) Bygningane må ha ein konstruksjon som ikkje gir høgare innandørs støynivå enn 30dBA
b) Bygningane må utformast med gjennomgåande leilegheiter
c) Soverom må plasserast på den stille sida
3.1 15 Energi
Dersom det vert gjeve konsesjon for fjernvarme i heile eller deler av planområdet skal nye bygg i konsesjonsområdet leggjast til rette for forsyning av vassboren varme, og desse bygga skal knytast til fjernvarmeanlegget, jf. pbl §27-5.
3.1.16 Grøn overflatefaktor (GOF) Vedlegg A GOF er eit verktøy for å ivareta grøne interesser. For heile planområdet skal det for nye tiltak sikrast ein minimumsverdi for GOF som vist i tabellen under.
Utrekningsmetode er skildra i vedleegg «Grøn overflatefaktor» som utfyller føresegna. Dokumentasjon skal innarbeidast i utomhusplan (jf. pkt 1.9.6), og leggjast ved søknad om rammeløyve. For plantar og tre skal ein i størst mogeleg grad velje lokale artar.

Tab.6 – Grøn overflatefaktor
Reguleringsføremål
Felt
Sentrumsføremål 1130 BS1 – BS18, 0,6
Bustader - Blokker 1113 BBB1 – BBB4 0,6
Offentleg eller privat tenesteyting 1160 o_BOP1 – o_BOP4 0,6
Institusjon 1163 o_BIN1 – o_BIN5 0,6
Bustad / kontor 1804 BKB1 – BKB5 0,5
Sentrum / Bensinstasjon- / vegserviceanlegg 1900 BAA 0,3
3.1.17 Grøne punkt (GP) Vedlegg B
Grøne punkt gir lokal eigenart og identitet samstundes som det sikrar biologisk mangfald. For heile planområdet skal det for nye tiltak sikrast eit min. Grøne punkt som vist i tabellen under. Innhaldet i dei grøne punkta skal hentast frå plukklista skildra i vedlegg. Dokumentasjon skal innarbeidast i utomhusplan (jf. pkt. 1.9.6), og leggjast ved søknad om rammeløyve.
Tab. 7 – Grøne punkt
Reguleringsføremål
SOSI-kode Felt GP
Bustader - blokker 1113 BBB1 – BBB4 10
Sentrumsføremål 1130 BS1 – BS18 10
Offentleg eller privat tenesteyting 1160 o_BOP1 – o_BOP4 10
Institusjon 1163 o_BIN1 – o_BIN5 10
Bustad / kontor 1804 BKB1 – BKB5 10
Kontor / tenesteyting 1831 o_BKB1 10
Sentrum / Bensinstasjon- / vegserviceanlegg 1900 BAA 10
3.1.18 Nettstasjon og andre kommunaltekniske anlegg
Nettstasjoner skal byggjast som ein integrert del av bygg. Plassering og utforming skal skje i samarbeid med anleggseigar. Alle elektriske kablar skal leggjast i grunnen.

3.2 Bygningar og anlegg
3.2.1 Generelt
Det skal gjennomførast grunnundersøkingar og eventuell masseutskifting i delområa BS8, BS13-15, BKS1-2, og BKB2 før byggjeløyve kan gjevast.
3.2.2 Krav til utforming
Illustrasjonsplanen, kvalitetsprogrammet og «Offentlege byrom» verkar saman med føresegnene, og skal bidra til at Knarvik vert utforma med dei kvalitetane og den bymessige strukturen som er intensjonen i områdeplanen.
Ved utforming av kvartala skal ein søkje vertikal rytme, proporsjonar, og eit roleg heilskapsuttrykk. Kvart bygg skal stå fram som ei sjølvstendig eining sjølv om sokkeletasje er bunden saman av felles sokkel. Bygga skal ha klar orientering mot gateromma og harmonera med bygg i same gate. Dei skal spele saman i rytme, volum og samansetjing.
a) Balkong og terrassar skal i hovudsak vendast mot sørvest.
b) Inngang til bustad skal vere skild frå inngang til forretningsverksemd.
c) Der det er mogleg skal det ikkje være meir enn 30m frå inngangspartiet til bustaden til felles ute/leikeområde med gode soltilhøve.
d) Skilting, banner, solskjerming og solceller skal vera integrert i fasaden og ha ei heilskaplegt utforming for heile bygget.
e) Fasade og butikkvindauge skal ikkje dekkast til med reklame, hyller m.m.
f) Det skal være variasjon i storleiken på bustadeiningane innanfor kvart felt. Min. 25% av einingane skal vere over 80m2.
g) Gardsrom skal utformast med klare skilje mellom private, halvoffentlege og offentlege soner. Det skal leggjast til rette for små og store møteplassar som oppmodar til aktivitet og deltaking. Dei skal vere robuste og ha god lyssetting som også bidreg til tryggleik.
3.2.3 Føresegnsområde (#)
I føresegnområde merka med # er det ikkje tillate å føre opp bygningar som er til hinder for siktsoner, eller som er i konflikt med intensjonen bak føresegnssona. Sjå kap. 5 for dei ulike føresegnsområda, og omtale under kvart utbyggingsområde for dei ulike føresegnssonene.
3.2.4 Blokker (BBB1, BBB2, BBB3 og BBB4)
a) Bustadblokker (BBB1)
Delområde BBB1 med føremål bustadblokk har i detaljplan for «E39 med oval rundkjøring», planID 1263-201702, fått endra arealføremål. Delområde har føremål sentrumsområde, nemning er BS17-2 med tilhøyrande føresegn
Feltet BBB1 ligg i gul og raud støysone og må skjermast for trafikkstøy frå E39. Plassering av bygg må saman med støyskjermar bidra til at felles og private uteareal blir skjerma for trafikkstøy, og fasadetiltak må gjennomførast tilfredsstillande i samsvar med den til kvar tid gjeldande teknisk forskrifta. Alle husvære må få ei stille side.

Form og utnytting av området må ta særleg omsyn til utsikt frå det tilstøytande bustadområdet Stallane i nord, og sol og utsikt frå omsorgsbustadene i T5. Området skal trappast ned mot eksisterande bustader i feltet BFS. Sikringssone H190 går inn på dette området i nord. Det er utarbeidd sjekklister for BBB1
b) Bustadblokker (BBB2)
Feltet kan byggjast ut med bustadblokker. Omsynssone H140 (for fri sikt) går gjennom dette området, sjå pkt. 4.2
c) Bustader – blokker (BBB3)
BBB3 er eksisterande bygning knytt til kombinert bustad og kontor. Områdeplanen stadfestar ikkje dagens bruk. Med eventuelle endringar av bygget skal det endrast til føremål bustadblokk.
d) Bustader – blokker (BBB4)
Eksisterande bekkefar i BBB4 skal haldast ope og integrerast i uteområdet. Omsynssone H140 (for fri sikt) går gjennom dette området, sjå pkt. 4.2
3.2.5 Bustader – frittliggjande småhusbusetnad (BFS)
Felt BSF er bygd ut med eine- og tomannsbustader.
3.2.6 Sentrumsføremål og tenesteyting (felles føresegner)
Formålet «sentrum» omfattar forretning, kontor, bustad, offentleg og privat tenesteyting, hotell/overnatting og servering. Eventuelle unnatak er presisert i føresegnene til dei einskilde områda.
Det er lagt opp til utvikling av eit sentrumsområde som er fleksibelt og elastisk. Dette inneber at bygningane skal kunne romme ulike føremål avhengig av marknaden og gi rom for å etablere handelsverksemd i alle gateløp med sentrumsstruktur.
Plasskrevjande vareslag som t.d. bilar, motorkøyretøy, trelast og andre større byggjevarer er ikkje tillate i nye bygg med sentrumsføremål.
Føremålet «tenesteyting» omfattar område for omsorgsbustader, sjukeheim, lokalsjukehus, helsetenester, kontor, handel knytt til tenesteområda, kulturformidling, barnehage med meir.
Nye bygg skal:
a) ha ein bygningsstruktur og fasadar som vender seg aktivt mot alle gater og byrom, og som bidreg til bymessig mangfald og aktivitet med inngangar direkte frå gateplan.
b) på gateplan nyttast til bustad eller publikumsretta verksemder som tenesteyting, forretning, kulturføremål og annan serviceverksemd. For område som ligg mot o_ST1-3 så skal ikkje 1 etasje på gateplan nyttast til bustad:

a. lokale til tenesteyting og forretningsføremål skal ha direkte inngang frå gate, torg eller gatetun
b. Fyrste etasje som vender mot offentlege gater og byrom ha fri innvendig høgde på minimum 4 meter
c. 1. etasje i bygningar som vender mot Allmenningen og o_SKV6 og 7 nyttast til forretnings-/publikumsretta verksemd
d. Mot o_ST1-3, o SGT1-3, o_SGT5, o_SKV6 og 7 ha minst 60% opne vindaugsflater i 1. etg. og minst 40% vindaugsflater i dei andre etg.
e. Balkongar ut mot o_SKV6, o_SKV7, o SKV17 og E39 er inntrekt i fasaden og/eller innglasing er utforma som ein integrert del av fasaden.
Bygningar kan nytte ein etasje under bakkenivå (vertikalnivå 1) i samsvar med arealføremål for feltet på bakkenivå (vertikalnivå 2).
a) Sentrumsføremål BS1
Feltet kan detaljerast i saman med felt T2 og felt T12 i plan for LonelvaJuvikvarden. Ved detaljering er det viktig å sikra ein god samanheng gjennom området mot rådhuset og dei offentlege områda i nord. Også koplinga til områda i nord må ivaretakast slik at romma mellom bygg vert av god kvalitet og får gode fasadeveggar.
Feltet må planleggjast med aktive fasadar med inngangar og innsyn til 1. etasje slik at gatetunet vert eit trygt og positivt bidrag til Knarvik sentrum, jf krav i pkt. 1.6.2
b) Sentrumsføremål (BS2-BS5)
Feltet BS2 kan nyttast til forretningar, tenesteyting, bustader, kontor og bevertning med grøntareal til bygningane. Det interne gatenettet i feltet skal vidareutviklast ved nybygging. Spesielt viktig er eit godt samband mellom nord og sør, og mot vest. I feltet BS2 er det ikkje tillate å byggja innan føresegnsområda #1,#2 og #3, jf. pkt.5.2.
Desse føresegnsområda utgjer siktliner mot sjø, det er difor forbod mot å byggje over bakkeplan i desse områda. Ved ei vidareutvikling av området BS2, skal bygningane bidra med bymessig mangfald mot offentlege gater og byrom. Fram til detaljplan for område BS2 vert godkjent, kan eksisterande løysing for varelevering oppretthaldast. Når detaljplan vert utarbeidd må det etablerast eit felles anlegg for vareleveranse for heile felt BS2.
I eller langs med BS2/BS3 skal det leggjast til rette for planfri kryssing mot framtidig Skysstasjon, jr. føresegnea til plan "FV57 Knarvik – Isdalstø", planID 1263-201201, pkt 5.2, siste setning. Koplinga må løysast på ein god, open og universell måte.
I BS2 mot o_ST1 skal utgang frå parkeringsanlegg under bakkeplan integrerast i bygningskropp og ha direkte utgang til offentleg rom.

Felta BS3-BS5 kan nyttast til forretningar, tenesteyting, kontor og bevertning, her under nødvendige grøntareal til bygningane. Bygningsareala som vender mot gatetunet skal nyttast til publikumsretta verksemd.
I feltet BS3 skal form og fasadar markerast mot o_SKV2 og rundkøyringa som ein viktig vegg i by rommet. Det skal særleg vektleggjast arkitektoniske kvalitetar som markerer inngangen til Knarvik sentrum. Dagens bruk av bygget kan vidareførast.
I feltet BS4 skal fasadeliv ligge i føremålsgrensa mot tilstøytande gang- og sykkelveg i sør. I BS4 skal det leggjast til rette for kontor mot o_SKV2 og forretning mot o_SGT5. I BS4 er det ikkje tillate å byggja over bakkeplan innan føresegnsområda #5 og #6, jf. pkt. 5.2.
BS4 og BS5 kan nyttas mellombels til trafikkområde i samband med utviding av E39. I felt BS5 skal det sikrast oppkøyring frå parkeringskjellar som vist i vertikalnivå 1. Bygningane i BS4 og BS5 skal vende seg både mot E39 og gatetunet o_SGT5, og det bør vere inngang frå begge sidene.
c) Sentrumsføremål (BS6)
Feltet skal nyttast til hotell/overnatting, kultur, tenesteyting og bevertning, eller ein kombinasjon av to eller fleire av desse. Bygget skal stå fram som hovudmarkør av Knarvik sentrum mot o_SKV2 og o_ST1. Det skal vektleggjast høg arkitektonisk kvalitet i utforming av bygget. Utforming av bygget skal bestemmast gjennom konkurranse.
Sokkelen på det nye bygget må sikre universell tilgjenge frå allmenning og inn på gatetuna. Tilrettelegginga av og bruken av 1. etg. er viktig for å skapa kontakt mellom livet på allmenningen og det som skjer innandørs. Det er mogleg å etablera eit større scenerom under bakken, sjå felt BS20 plannivå 1.
BS6 kan nyttast mellombels til trafikkområde i samband med utviding av E39.
d) Sentrumsføremål (BS7-BS8)
Dei to felta kan koplast saman under bakken som vist i reguleringsplanen, vertikalnivå 1. Områda kan ha tilkomst til eigen parkering frå o_SKV9 og o_SKV10, alternativt kan parkering løysast gjennom frikjøp av parkeringsplassar i fellesanlegg.
Føresegnsområde #12 kan nyttast til anleggs- og riggområder så lenge det er anleggsarbeid knytt til endring av E39 med sidevegar. Når anleggs-arbeidet er ferdig, kan arealet nyttas til sentrumsføremål. Føresegnene om midlertidig anleggs- og riggområde ender når kommunen har fått melding om at anlegget eller deler av dette er ferdigstilt og det deretter er gjort administrativt vedtak om opphøyr av den midlertidige reguleringa.
Forretningar skal ha inngang frå o_SKV9 og o_SKV8. Det skal ikkje vera samanhengande fasade mot o_SF5.

e) Sentrumsføremål (BS9-BS12)
Byggjeområdet for felta BS9-BS12 er med på å definere viktige nye byrom og gateløp. For felt BS9 til BS12 skal detaljplan og utomhusplanen ta med heile gardsrommet for å sikra m.a. at dette fellesrommet får same høgdesetting, og at dei gjennomgåande strukturane får ein samanheng. Feltet, inklusiv det felles gardsrommet, kan byggjast ut i etappar. Planen kan tilpassast i samband med denne etappevise utbygginga.
Fasade mot o_SKV8 og o_ST2 skal utformast slik at det er mogeleg for ålmenta å ferdast i kvartalet gjennom føresegnsområde # 8. Det er ikkje tillate å byggja innan #8, # 13 og #14.
Mindre bygg eller konstruksjonar som fremjar funksjon og føremålet til gardsrommet (#8) kan likevel byggjast i samband med utforming av gardsrommet. Desse føresegnsområda utgjer fellesareala for den nye bygningsmassen Offentleg tilgjengelege gangårer skal etablerast i føresegnsområda, og dei er ein del av siktaksane mot sjø.
Eventuelle balkongar skal leggjast inn mot det indre gardsrommet (#8). Areala under gardsrommet kan i tillegg til parkering, nyttast til handel m.m.
Areala innanfor føresegnområde #22 kan nyttast til mellombels tilkomstveg til parkeringshus for felta BS9, BS10, BS11 og BS12. Del av arealet innanfor felta kan nyttas mellombels til trafikkområde i samband med utviding av E39.
I felt BS12 skal første høgda vera trekt tilbake frå byggelivet i ei bredde på min 3 meter (#21) slik at arealet vert overdekt mot allmenningen (o_ST2) Dekket på golvet i dette arealet skal utgjere ein samanheng med Almenningen, jf kvalitetsprogrammet og utforming av offentlege byrom pkt.1.9.5
I BS9 mot o_SKV7 og BS12 mot o_ST2 skal utgang frå parkeringsanlegg under bakkeplan integrerast i bygningskropp og ha direkte utgang til offentleg rom.
f) Sentrumsføremål (BS13 - BS16)
Desse byggeområda definerer nye kvartal, gateløp og byrom. Tilkomst til parkeringsanlegg i vertikalnivå 1 skal skje frå o_SKV11, o_SKV12 eller o_SKV13.
Det er ikkje tillate å byggja innan føresegnsområda # 15 og #16. Desse føresegnsområda er ein del av ein siktaksane mot sjø, og offentleg tilgjengelege gangårer skal etablerast i desse felta.
Områda BS13-BS14 skal ha eit felles uterom med hardt permeabelt dekke som knyt området saman i aust-vest retning.
BS16 er eit av to område innanfor planområde som kan føre opp høghus. I planlegginga av bygget må det leggjast vekt på høg arkitektonisk kvalitet.

g) Sentrumsføremål (BS17 og BS18)
1.etasje mot o_SKV6 og o_SKV16 og o_SKV17 skal nyttast til forretning og-/ eller tenesteyting. Felles tilkomst til parkeringsanlegg i vertikalnivå 1 skal for begge felt skje frå o_SKV17.
h) Sentrumsføremål (BS 19 og 20) – vertikalnivå 1
Området BS19 må sjåast i samanheng med byggeområda BS7 og BS8. BS19 tydeleggjer ein moglegheit til å knyte saman BS7 og BS8 under bakken. Område BS20 må sjåast i samanheng med BS6, og er ein moglegheit for å etablera eit større scenerom under bakken.
i) Sentrum/bensinstasjon/vegserviceanlegg (BAA)
Bygningsareala som vender mot allmenningen skal nyttast til publikumsretta verksemd. All parkering skal lokaliserast til f PHU1-f PHU4, o_PHU5, o_PHU16 eller f_PHU6. I føresegnsområde #25 kan det etablerast parkeringsareal under bakken ( som utviding av f_PHU1) dersom arealbruk over bakken ikkje er til hinder for det. Det er ikkje tillate med varelevering frå o_SGG14.
I felt BAA skal første høgda vera trekt tilbake frå byggelivet i ei bredde på min. 3m (#21) slik at arealet vert overdekt mot allmenningen o_ST2. Dekket på golvet i dette arealet skal utgjere ein samanheng med Almenningen, jf. kvalitetsprogrammet utforming av offentlege byrom pkt.1.9.5.
Bygg skal trappast ned mot sør/vest og vera utforma slik at dei slepp inn mest mogeleg lys og sol inn i gardsrommet.
o_SK19 er tilkomst til eksisterande bensinstasjon og tilkomst for varelevering for heile BAA. Ved nedlegging av bensinstasjon skal tilkomsten nyttast berre til vareleveranse for heile BAA.
j) Offentleg Tenesteyting (o BIN1 – o_BIN6, o_BKB1, o_BOP1 - o_BOP4) (OPT)
Fellesføresegna for sentrumsområde og område for tenesteyting er fastsett i pkt. 3.2.6. Området OPT skal sjåast i samanheng med og utviklast saman med tilgrensande areal i områdeplan for Lonelva – Juvikvarden.
Parkering i felt for tenesteyting kan løysast på eller under bakken innanfor eige felt, eller gjennom frikjøp av parkeringsplassar i fellesanlegg. Dette gjeld og ved utviding av eksisterande bygningsmasse. Innanfor o_BOP1 og o_BOP2 kan vertikalnivå 1 nyttast til parkering og/eller til anna føremål.
Tilkomsten til bygningane skal ha ei tydeleg utforming med offentleg preg. Utforming av uteareal skal stimulere til fysisk aktivitet, sanseinntrykk og ha stille opphaldssoner for sosialt samvær.
Omsorgsbustad
o_BKB1 skal nyttast til omsorgsbustader og-/ eller kontor innanfor eksisterande utnytting/bygg. Parkering kan løysast i feltet T13 i vedtatt områdeplan for "Lonelva – Juvikvarden", plan ID 1263-200904.

Alderbustad
o_BIN1 er i dag nytta til aldersbustader. Utvikling kan gjennomførast innanfor rammene i planen.
Sjukeheim
o_BIN2 er i dag nytta til sjukeheim. Utvikling kan gjennomførast innanfor rammene i planen. Føresegnsområde #4 viser til område for mogleg anlegg for felles parkering i fjell, jf. pkt. 5.2. Dette må takast omsyn til ved planlegging av tiltak i område o_BIN2.
o_BIN3 er i dag nytta til tenesteyting innanfor pleie- og omsorg. Utvikling kan gjennomførast innanfor rammene i planen.
o_BIN4 er i dag nytta til tenesteyting innanfor pleie- og omsorg, Såtabu aldersheim. Utvikling kan gjennomførast innanfor rammene i planen.
o_BIN5 skal nyttast til omsorgsbustader og eller institusjon. I utomhusplan og utforming av uteareal skal ein leggja vekt på gode overgangar mellom bustadane og o_GF4. Private uteplassar skal skjermast for sjenerande innsyn. Overgangen mellom privat og offentleg areal skal utformast slik at ein hindrar privatisering av o GF4.
o_BIN6 er i dag delvis nytta til parkering for o_BIN2. Eventuell utvikling må sjåast i samanheng med områda o BIN 1 og/eller o_BIN2.
o_BOP1 er Regionalt helsehus Utforminga av bygg må vere av særleg høg kvalitet. Føresegnsområde #17 viser planlagt innkøyring til felles parkeringsanlegg for fleire eigedomar. I planlegginga av o_BOP1 må dette innarbeidast.
o_BOP2 ligg nær Allmenningen og Kvassnesstemma, to viktige område i Knarvik sentrum. Utforming av bygga vert svært viktig og bruk av arkitektkonkurranse ved utforming vert tilrådd.
o_BOP3 skal gje rom for vidareutvikling av tenester innan felta pleie- og omsorg, helse- og sjukehussektoren, eller lettare næringsutvikling for tilrettelagde arbeidsplassar.
o_BOP4 kan sikra eit framtidig behov for vidareutvikling av tenesteyting innan helse- og sjukeheimssektoren, eller andre offentlege føremål innan sosial infrastruktur. Gjennom o_BOP4 skal det sikrast gangveg mellom o_SKV14 og o_SKV15
k) Bustad og kontor (BKB 1-5)
Parkering i felt BKB2 skal løysast i vertikalnivå 1 innanfor eige felt, eller gjennom frikjøp/leige av parkeringsplassar i fellesanlegg.
Parkering i felt BKB3, BKB4 og BKB5 kan løysast på eller under bakken innanfor eige felt, eller gjennom frikjøp/leige av parkeringsplassar i fellesanlegg.

BKB1 - Området kan utviklast som bustad og kontor. Feltet kan utviklast saman med BS16 og BKS3 Parkering i felt BKB1 skal løysast gjennom frikjøp/leige av parkeringsplassar.
BKB2 - Området kan utviklast som bustad, og kontor. Eventuelle kontor må leggjast mot aust og nord. Det skal etablerast forhagar mot område o_SGT3.
BKB3 - Området kan utviklast som bustad og kontor.
BKB4 - Området kan utviklast som bustad (småhus og rekkehus), eventuelt i kombinasjon med kontor. Bustadane må leggjast sør- og vestvendt.
BKB5 - Området kan utviklast som bustad (småhus og rekkehus), eventuelt i kombinasjon med kontor. Bustadane må leggjast sør og vest vendt.
l) Allmenning
Kommunen skal utarbeida ein detaljert utomhusplan for allmenningen i målestokk 1:200. Almenningen skal utformast i samsvar med kvalitetsprogram og landskapsplan og krav til utforming i prosjekt for offentlege byrom.
Mindre tilpassingar av høgder og utforming er tillate, men kravet til universell utforming, jf. pkt. 3.1.8, skal vera stetta.
I arbeidet med utomhusplanen må sol-, skugge - og vindvurderingar leggjast til grunn for plassering og utforming av opphalds- og aktivitetssoner tilrettelagt for ulike alders- og brukargrupper. Allmenningen skal utformast med ei tydeleg gjennomgåande gangåre frå Kvassnesstemma til idrettsområdet i nord.
Vasskanalen skal sikrast, dette arealet kan i ein fyrste fase nyttast til eit mellombels byrom. Det skal leggjast til rette for mellombels varelevering over o_ST1.
og teknisk infrastruktur
3.3.1 Føresegnsområdene # 9,10,11 er knytt til gangforbindelsar under E39. Føresegnsområde #20 i o_SKV6 skal opparbeidast slik at det framstår som ein integrert del av allmenningen, m.a. med same høgd som allmenningen, anna kantstein enn veg 6 og 7 og eit dekke som samspelar med dekke på allmenningen.
3.3.2 Gatetun (SGT)
Dei offentlege gatetuna er ein viktig del av grønstrukturen og den samanhengande strukturen for gåande og syklande i sentrumsområdet, i tillegg til at dei skaper ei ramme for møteplassar. Gatetuna skal utformast i samsvar med kvalitetsprogrammet og «offentlege byrom» (pkt.1.9.5). Del av o_ST1 og o_ST2 kan nyttas mellombels til trafikkområde i samband med utviding av E39.
I gatetun som ligg med direkte kontakt med bustadområde skal det bli lagt til rette for aktivitet og leik for alle aldrar. Gatetuna skal ha sitjeplassar med benkar og bord på lune, solfylte plassar der det vert lagt til rette for leik og aktivitet for dei minste aldersgruppene. Sjå pkt. 1.9.5.

3.3.3
Føresegnsområde (#)
Føresegnsområde #1 i vertikalnivå 1 skal sikre naudsynt tilkomst til eksisterande parkeringshus i Knarvik senter.
Føresegnsområde #2 i vertikalnivå 2 skal nyttast til kommunalteknisk infrastruktur og parkering/areal for samanbinding av parkeringsanlegg under bakken. Bruk av ulike nivå går fram av parkeringsplanen med tilhøyrande teikningar (og vil avhenge litt med kva løysing som vert valt, med eller utan E39 i tunnel etc.)
3.4 Grønstruktur
3.4.1
Friområde (o_GF1 – o_GF6)
o_GF1 skal sjåast i samanheng med tilstøytande friområde i områdeplan for "Lonelva – Juvikvarden", plan ID 1263-200904 og opparbeidast med stiar, aktivitetsanlegg og sitjeplassar som er tilpassa naturgitte tilhøve med omsyn til topografi og vegetasjon.
o_GF2 skal nyttast til leik og opphald. Det skal formast slik at det saman med o_SGT1 og tilstøytande byggjeområde utgjer ein heilskap.
o_GF3 skal opparbeidast med vegetasjon, sitjeplassar og leikeapparat. Det kan etablerast sti eller trapp ned mot o_SGG22. Terrenget kan justerast for å betre tilkomsten til o_GF4.
o_GF4 skal vidareførast som natur- og friluftsområde med turvegar, rasteplassar og badeplass. Utforming skal skje i samsvar med landskapsplan i prosjekt for offentlege byrom. Normal skjøtsel og tilrettelegging for friluftsliv er tillate. Føresegnsområde #18 er etablert bru på gangveg o_SGG22.
o_GF5 og o_GF6 skal opparbeidast som park med sitjeplassar og leikeapparat o_GF6 inngår i den grøne aksen mellom sentrum og sjø.
3.4.2 Parkar (o_PRK1 og o_PRK2)
For o_PRK1 og o_PRK2 skal det utarbeidast ein utomhusplan i målestokk 1:200 som skal godkjennast av planmynde.
o_PRK1 og o_PRK2 skal utformast som ein overgang mellom søre del av allmenningen og grøntarealet o_GF4. Det skal etablerast ein god akse mellom søre del av allmenningen o_ST3 og stien som er etablert rundt Kvassnesstemma utforma i tråd med krav til universell utforming.
3.5 Bruk og vern av sjø og vassdrag med tilhøyrande strandsone
3.5.1 Friluftsområde i sjø og vassdrag (VFV)
Bruk av VFV skal sjåast i samanheng med o_GF4 mfl.

4 Omsynssoner jf., pbl §12-6
4.1 Sikringssone H190 i vertikalnivå 1, - under grunnen
4.1.1 Område merka med H190 er omsynssone for aktuell tunneltrase for ny E39 med tilhøyrande sikringssone
4.1.2 Sprenging eller oppføring av bygg vert ikkje tillate nærare planlagde tunnelar enn 8 m over og 10 m til side for tunellane i forhold til teoretisk tunnelprofil (12 m mellom løpa).
4.1.3 Bygging i sona 8 – 15 m over tunellane og innanfor 10 m til kvar side for tunnelane krev særskilt forsiktig sprenging og forsterkning av sålen. Tiltak i denne sona skal planleggjast i samarbeid med, og godkjennast av Statens Vegvesen før løyve til igangsetting blir gitt
4.1.4 Når tunellane skal sprengast må P-anlegga stengast mellombels og vederlagsfritt for Statens vegvesen.
4.1.5 Bygg må dimensjonerast for ristingar i h.h.t. ei kvar tid gjeldande NS 8141.
4.2 Sikringssone H140 i vertikalnivå 2
4.1.1 Innan omsynssoner for fri sikt (H140) skal det til ei kvar tid vera fri sikt i høgde 0,5m over tilstøytande veger sitt plan.
4.3 Sikringssone H910 i vertikalnivå
4.3.1 Detaljplan Oval rundkøyring, planID 1263-201702 (H910)

5.1 Føresegnsområder for vertikalnivå 1og 2 i plankartet Plankartet har for vertikalnivå 1 og 2 føresegnsområde som må leggjast til grunn for planlegging av tiltak i den godkjende arealbruken
5.1.1 Tab.k – Føresegnsområde vertikalnivå 1
Vilkår for bruk av arealer, bygninger og anlegg og vilkår for bruk av arealer, bygninger og anlegg
Emneområde Føremål (Nemning)
Område plankart Føresgn punkt Heimel PBL
#1 Kommunal infrastruktur og parakering f_PHU16
#2 Kommunal infrastruktur og parakering f_PHU1-4
5.1.2 Tab.l – Føresegnsområde vertikalnivå 2
Vilkår for bruk av arealer, bygninger og anlegg og trafikkregulerende tiltak og parkeringsbestemmelser
Emneområde Føremål
#1
Siktline mot sjø
#2 Siktline mot sjø
#3 Siktline mot sjø
#4 (ledig)
#5 Siktline mot sjø
#6
Siktline mot sjø
#7 Gangveg mellom Bru- og Strandvegen
#8 Felles gardsrom
#9
#10
#11
Undergang E39
Område plankart Føresegn
BS2
BS2
BS2
BS4
BS4
BBB4
BS9-12
BS3-9 o_GG (V1)
Undergang E39 Almenningen o_ST1-2
Undergang E39 Stallane?
#12 Anlegg- og riggområde
#13 Siktline mot sjø
#14 Siktline mot sjø
#15 Siktline mot sjø
#16 Siktline mot sjø
§12-7, nr 2
§12-7, nr 2
§12-7, nr 2
§12-7, nr 2
§12-7, nr 2
§12-7, nr 2
§12-7, nr 2
§12-7, nr 2
§12-7, nr 2
§12-7, nr 7
§12-7, nr 7
BBB1 §12-7, nr 7
BS7
§12-7, nr 1
BS9-10 §12-7, nr 1
BS11-12 §12-7, nr 1
BS13-14
§12-7, nr 2
BS15 §12-7, nr 2
#17 Tilkomst til felles parkeringsanlegg o_BOP1 §12-7, nr 7
#18 Gangbru (V3 ) o_SGG22 §12-7, nr 2
#19 Felles parkeringsanlegg mulig o_BIN2
§12-7, nr 2
#20 Veg er integrert del av Almenning o_SKV6 §12-7, nr 2
#21
Almenningen (o_ST1, 2 og 3) Utforming o_ST1-3 §12-7, nr 1
#22 Mellombels tilkomstveg
BS10 §12-7, nr 7
#23 Trafikkregulerende tiltak og parkeringsbestemmelse o_SKV17
#24 Trafikkregulerende tiltak og parkeringsbestemmelse
o_SKV10, 11, 12 del av 6 og 13
#25 Parkeringsareal under bakken mulig BAA
§12-7, nr 7
§12-7, nr 7
§12-7, nr 7

5.1.3 Tab.k – Føresegnsområde vertikalnivå 3
Vilkår for bruk av arealer, bygninger og anlegg og vilkår for bruk av arealer, bygninger og anlegg
Emneområde Føremål (Nemning)
Område plankart Føresgn punkt Heimel PBL #18 Gangbru o_SGG22
§12-7, nr 2
§12-7, nr 2

Kvassneshagen Borettslag er organisert som et borettslag. Ved kjøp av leilighet betaler man vanligvis 10 % av summen i forskudd. Resterende beløp betales ved overtakelse.
Vi ønsker at flere unge skal få mulighet til å komme inn i boligmarkedet. Svært mange unge har ikke kapital til å betale 10 % forskudd. Derfor har vi halvert forskuddet til 5 % for alle.
Totalprisen for leiligheten består av 40% innskudd (=Innskudd minus forskuddsinnbetalingen på 5%, se tabell for hvilket innskudd som gjelder din leilighet) og 60% fellesgjeld / borettslagslån.
Innskuddet må du finansiere med egenkapital / oppsparte midler og/eller et lån i banken om du trenger det. Fellesgjelden er et lån finansiert av borettslaget, dette lånet er avdragsfritt i 10 år, dvs. at du betaler renter på fellesgjelden de 10 første årene og renter og avdrag fra det 11. året. Du kan velge å innbetale pr. måned, nedbetale deler av fellesgjelden (mulig to ganger i året via Vestbo) eller innfri den etter innflytting.
Når du kjøper en leilighet i et borettslag, blir du andelseier og får borett til leiligheten. Boretten er fritt omsettelig til markedspris. Andelseierne eier tomten/eiendommen og bygningen gjennom borettslaget, og tar i fellesskap beslutninger om drift/vedlikehold og oppussing av bygning og fellesarealer.
Fordeler med eierformen borettslag:
• Du slipper å betale dokumentavgiften på 2,5% av kjøpesummen.
• 60% av totalprisen for leiligheten er allerede finansiert. Lånerenten som borettslaget oppnår i bankmarkedet for fellesgjelden er ofte lavere enn den renten du selv klarer å oppnå når du låner til bolig. Du får 2 ganger i året muligheten til å innfri fellesgjelden helt eller delvis.
• Trygg og velorganisert driftsform, spesielt med tanke på fremtidig vedlikehold.
• Borettslaget vil ha sikringsordning for felleskostnadene. Dette betyr at borettslaget begrenser sitt tap om noen av andelseierne ikke betaler sine felleskostnader.
• Ønsker du å kjøpe / bytte til annen leilighet innad i borettslaget eller et annet borettslag på et senere tidspunkt, kan du benytte din forkjøpsrett ved å tre inn i det høyeste budet om du har best ansiennitet.
Slik fungerer betalingen
Et priseksempel basert på leilighet B 02-02, andel nr. 10 (2-roms i 2. etasje) vil bli slik:
Innskuddet / kontantsum du betaler 2 052 050,-
Fellesgjeld (er finansiert) 2 798 200,-
Totalpris for leiligheten 4 850 250,-
Forskuddsinnbetaling ved kjøp (5% av totalsum) 242 512,5,-
Restbeløp ved overtakelse av leiligheten 1 809 537,5,-
Totalt innskuddsbeløp / kontantsum 2 052 050,-
Fellesgjelden har en løpetid på 40 år. De første 10 årene betaler du kun rente på lånet (hvis du ikke ønsker å nedbetale lånet raskere).
Den månedlige betalingen din de første 10 årene (uten helt eller delvis innfrielse av fellesgjeld blir):
Driftskostnader 3 184,-
Renter (basert på 5,65%) 13 175,-
Totalt 16 359,-
Månedlig betaling de første 10 årene etter innfrielse av 50% av fellesgjelden (fellesgjeld redusert fra 2 798 200 kr til 1 399 100 kr, for eksempel etter salg av nåværende bopel):
Driftskostnader 3 184,-
Renter (basert på 5,65%) 6 587,-
Totalt 9771,-
Ordforklaring:
Totalpris:
Totalprisen for leiligheten består av innskudd/kontantsum og andel fellesgjeld. Innskuddet er forskuddsbetalingen som innbetales en stund etter kontraktsignering samt restbeløpet (egenkapital og eventuelt privat finansiering) som innbetales med tillegg av omkostninger før overtakelse av leiligheten.
Fellesgjeld:
Fellesgjeld er et felles lån borettslaget har tatt opp i en bank. Fellesgjelden / borettslagslånet følger din bolig. Borettslagslånet har løpetid på 40 år hvorav de 10 første årene er avdragsfrie. Renten er flytende rente, og vi har lagt til grunn en rente på 5,65% (rente pr. mai 2024). Renten blir endret i takt med justeringer i rentemarkedet.
IN-ordning
Borettslaget får IN-ordning (individuell nedbetaling av fellesgjelden). Det betyr at du 2 ganger i året vil ha muligheten til å nedbetale (helt eller delvis) på din leilighets fellesgjeld om du skulle ønske det. Når du nedbetaler på fellesgjelden, vil det resultere i lavere felleskostnader pr. mnd.
Hvor lurt det er å betale helt ned på fellesgjelden, avhenger bl.a. av hvor lenge du har tenkt å eie leiligheten / andelen i borettslaget. Dersom du tenker å bo i leiligheten livet ut kan det være hensiktsmessig å innfri fellesgjelden helt eller delvis om du har mulighet til det. La oss tenke at to ulike leiligheter i borettslaget kommer ut for salg etter 5 år (innenfor perioden med avdragsfrihet). Den ene andelseieren har valgt å ikke bruke IN-ordningen og dermed ikke nedbetalt på fellesgjelden, mens den andre andelseieren har innfridd hele fellesgjelden. Hvilken leilighet tror du vil være lettest å selge? Det vil nok være den leiligheten som fortsatt har fellesgjeld, og dermed er finansiert langt på vei.
Kjøperen av leiligheten uten fellesgjeld må innbetale et betydelig høyere beløp før overtakelse av leiligheten enn den leiligheten som fortsatt har fellesgjeld.
Felleskostnader:
Felleskostnadene består av driftskostnader, renter og avdrag på fellesgjelden (fra. 11. år). Driftskostnadene er kommunale avgifter, strøm i fellesarealer, forsikring av bygningsmassen, serviceavtaler for heisene og andre driftskostnader borettslaget har. Driftskostnadene beregnes ut fra boligens bruksareal. Den rimeligste leiligheten har driftskostnader på 1 687,- kr pr. mnd og de dyreste 7 444 kr pr. mnd. I tillegg kommer kabel-tv og internett med ca. 500 kr i måneden.
Andel Bygg & leil.nr.
1
2
3
4
6
7
8
9
12
Kvassneshagen Borettslag
Foreløpig driftsbudsjett 2024 (eksklusiv garasje og kabelTV/internett).
Revisjon 7 500
Forretningsfører 110 938
Tilleggsavtaler-IN-etc 13 313
Styrehonorar 70 000
Drift bygg og fellesarealer 298 200
Felles strøm 150 000
Forsikring 319 500
Kom avgift vann 575 881
Kom avgift avløp 512 478
Heiskostnader 50 000
Drift varmtvannsanlegg 25 000
Medlemskontingent Vestbo 21 300
Filteravtale ventilasjon 42 600
Bevar - HMS 11 250
Bevar vedlikeholdsplan 14 550
Sikring mot husleietap 14 870
Renovasjon 383 400
Totalt eks kabel TV/internett 2 620 779
Kvassneshagen Borettslag
Foreløpig driftsbudsjett 2024
GARASJEDELEN 2024
Forsikring 27 900
Strøm garasje 93 000
Serviceavtale garasjeport 20 000
Diverse 45 000
Totalt driftsbudsjett garasje 185 900
Fordelt på 62 leiligheter pr. år 2 998
Fordelt på 62 leiligheter pr. mnd. 250
Driftsbudsjettene gir månedlige driftskostnader på ca. 1791 kr til ca. 5.067 kr pr. leilighet. I tillegg kommer kabel-tv/internett med ca. 500 kr pr. mnd samt vaktmester, vedleikehold etc.
Det blir 62 garasjeplasser for boligdelen.
“Driftskostnader pr.mnd” i prislisten er det inkludert driftskostnader garasje på 250 kr for alle andelene bortsett fra leiligheter uten garasjeplass (andel 6, 11, 13, 15, 16, 29, 33, 47 og 51).
Pris
Boligene selges til faste priser ihht. enhver tid gjeldene prisliste. Selger står fritt til å endre prisene på usolgte boliger uten forutgående varsel.
Omkostninger:
Etableringsgebyr kr. 5.990,Tinglysning/ Hjemmelsoverføring kr. 545,Tinglysning av pantedokument (lån) kr. 545,-
Kjøpsbetingelser:
Ved inngåelse av avtale om kjøp må alle som skal ha hjemmel til boligen være medlem av Vestbo. Medlemskap i Vestbo for eier og evt. medeier kr. 300,- pr. stk
5 % av totalkostnaden (min. kr 150.000,-) innbetales ved inngåelse av kjøpekontrakten. Restoppgjør av innskuddet samt omkostninger betales ved overtakelse av leiligheten.
Borettslaget får IN-ordning. Fellesgjelden er lån i bank med flytende rente som pr. juni 2024 er 5,65 %. Renter blir endret i takt med justeringen i rentemarkedet. Lånets løpetid er 40 år.
Kjøpers undersøkelsesplikt
Kjøper har selv ansvaret for å gjøre seg kjent med salgsprospekt/prisliste, reguleringsplaner, leveransebeskrivelse og annen dokumentasjon som kjøper har fått tilgang til. Kjøper har ingen rett til å reklamere på grunnlag av forhold som kjøper er blitt gjort oppmerksom på, eller som kjøper på tross av oppfordring har unnlatt å sette seg inn i. Kjøper oppfordres til å ta kontakt med megler dersom noe er uklart, og det presiseres at det er viktig at slike avklaringer finner sted før bindende avtale om kjøp inngås.
Lovanvendelse
Avtaleforholdet reguleres av L13.06.1997 nr. 43 - Lov om avtalar med forbrukar om oppføring av ny bustad m.m. (bustadoppføringslova) - i de tilfeller hvor kjøper er forbruker og boligen ikke er ferdigstilt ved avtaleinngåelsen. Dersom boligen ferdigstilt ved avtaleinngåelsen reguleres avtaleforholdet av L03.07.1992 nr. 93 - Lov om avhending av fast eigedom (avhendingslova). 60 61 Dersom kjøper ikke er forbruker reguleres avtaleforholdet av avhendingslova. I tilfeller hvor kjøper er forbruker og boligen er ferdigstilt
ved avtaleinngåelsen skal selger stille garanti tilsvarende buofl. § 12 dersom boligen er solgt innen seks måneder etter fullføring, jf. avhl. § 2-11. I tilfeller hvor det er bustadoppføringslova som regulerer avtaleforholdet plikter selger å stille garanti for oppfylling av avtalen etter buofl. § 12. Selger plikter også å stille garanti for den delen av kjøpesummen som utgjør forskudd, og som skal utbetales til selger før hjemmelsoverføring, jf. boufl. § 47. Innbetaling av forskudd til meglers klientkonto utløser ikke plikt for selger til å stille garanti etter denne bestemmelsen.
Hvitvaskingsloven
Eiendomsmeglere er underlagt Lov om tiltak mot hvitvasking og terrorfinansiering (hvitvaskingsloven) - L01.06.2018 nr. 23. Det følger av loven at megler bl.a. har plikt til å gjennomføre kundekontroll. I de tilfeller hvor kunden er juridisk person skal megler også kartlegge hvem som er reelle rettighetshavere. Med reelle rettighetshavere menes fysiske personer som eier eller kontrollerer mer enn 25% av eierandelene i selskapet. Partene må bidra til at kundekontrollen lar seg gjennomføre på en hensiktsmessig måte. Megler plikter å rapportere mistenkelige transaksjoner til Økokrim. Ved slik rapportering vil ikke partene bli varslet.
Eiendomsmegling
Oppdragsnr: 36-5003/24


Avtale om kjøp av prosjektert bolig
Adresse: Kvassnesvegen 29, 5914 Isdalstø - Andel nr. Leilighets nr.
Oppdragsnr: 36-5003/24
Undertegnede har inngått avtale om kjøp/salg av ovennevnte eiendom på vilkår som følger av denne avtale og vedlegg til denne avtale. Ved signering av denne avtale forplikter partene seg til å inngå skriftlig kjøpekontrakt på de vilkår som fremgår av denne avtale og vedlegg til denne avtale
Adresse: Kvassnesvegen 29, 5914 Isdalstø - Andel nr. Leilighets nr.
Kjøpesum:
Innskudd:
Fellesgjeld: Totalpris:
+ offentlige omk. og omk. til forretningsfører. Se salgsoppgave.
Undertegnede har inngått avtale om kjøp/salg av ovennevnte eiendom på vilkår som følger av denne avtale og vedlegg til denne avtale. Ved signering av denne avtale forplikter partene seg til å inngå skriftlig kjøpekontrakt på de vilkår som fremgår av denne avtale og vedlegg til denne avtale.
Kjøpesum:
Kjøpet gjelder med parkering/garasje
Innskudd:
Fellesgjeld: Totalpris:
Kjøpesum og omkostninger finansieres slik:
+ offentlige omk. og omk. til forretningsfører. Se salgsoppgave.
Låneinstitusjon / kapital Referanse Beløp
Kjøpet gjelder med parkering/garasje
Kjøpesum og omkostninger finansieres slik:
Låneinstitusjon / kapital Referanse Beløp
Avtalt overtakelse: Mangler data
3. kvartal 2027
Denne kjøpsavtale er basert på:
– Salgsoppgave med vedlegg datert:
09.03.2026
– Leveransebeskrivelse fra utbygger datert:
20.02.2026
Egenkapital Totalt
Egenkapital Totalt
– Reguleringsplan datert:10.03.2021
Avtalt overtakelse: Mangler data
– Grunnboksutskrift datert: juni 2024
Denne kjøpsavtale er basert på:
Forbehold tatt inn i salgsoppgave er bindende også for denne avtale.
– Salgsoppgave med vedlegg datert:
– Leveransebeskrivelse fra utbygger datert:
Selger:
– Reguleringsplan datert:10.03.2021
Navn: Kvassneshagen Bolig AS Org nr 934907914
– Grunnboksutskrift datert: juni 2024

Forbehold tatt inn i salgsoppgave er bindende også for denne avtale
Epost:
Adresse: C/O Vestbo BBL, Postboks 1947 Nordnes, 5004 Bergen
Selger:
Underskrift:
Dato: 14 05 2024
Underskrift:
Navn: Kvassneshagen Bolig AS Org nr 934907914
Kjøper(e):
Adresse: C/O Vestbo BBL, Postboks 1947 Nordnes, 5004 Bergen

Navn:
Kjøper(e):
Navn:
Dato: 14.05.2024
F.dato/org.nr.:
Adresse: Tlf: Dato:
Underskrift:
Adresse:
Epost:
Tlf:
Kjøper(e):
Underskrift: Epost:
F.dato/org.nr.:
Dato:
Navn: F.dato/org.nr.:
Navn:
Adresse:
Adresse:
Tlf:
Tlf: Dato: Epost: Underskrift: Kjøper(e):
F dato/org nr :
Dato:
Vestbo Garanti Sentrum AS, Postboks 1947, 5817 Bergen Besøksadresse: Strandgaten 196 Tlf : 55 30 96 96 Epost: bergen sentrum@garanti no Org nr : 999262392
Underskrift:
Vi gjør oppmerksom på at alle illustrasjoner og plantegninger kun er ment for å gi en orientering om boligprosjektet og er ikke å anse som kontraktsgrunnlag, da dette kan avvike fra endelig leveranse.
Prospektet er utarbeidet Bergen, 09.03.2026 med forbehold om endringer.
Kvassneshagen er et prosjekt levert av



