portfolio-1

Page 1

Portfolio kazunaga suwa 2020→2022

AutoCAD … 2D図面 ArchiCAD  … 2D図面 3Dモデリング レンダリング Illustrator … レイアウト作成 Photoshop  … 着彩 合成 パース編集 InDesign … ポートフォリオ作成 Twinmotion  … パース作成 動画作成 読書 絵描き 美術鑑賞 映画鑑賞 ランニング

プロフィール
.04 伊勢崎市立あずま中学校 入学
.04 群馬県立勢多農林高等学校緑地土木科緑地デザイン      コース 入学
.04 中央工学校工業専門課程建築工学科(昼間) 入学
諏訪和永 Suwa Kazunaga
学歴 技能 趣味 2001.12 群馬県伊勢崎市生まれ 2008.04 伊勢崎市立あずま小学校 入学 2014.03 同小学校 卒業
2017.03 同中学校 卒業
2020.03 同高校 卒業
非公開
目次
01. 軽井沢の家      1年次 進級課題 木造2階建て専用住宅設計 02. 憩いの集い 2年次 RC造集合住宅を含む複合施設設計 03. 憶え、偲ぶ。 2年次 進級課題 RC造展示施設設計 05. 新時代の循環型カフェ 06. その他 04. 荘 3年次 金融機関紹介による住宅等設計 3年次 葛西臨海公園 カフェ設計
01.軽井沢の家 四季の移ろいと豊かな暮らし 1年次 進級課題 木造2階建て専用住宅設計
西側外観パース
設計主旨
だろうか。このような社会問題に対して世代間での助け合いや安心 して暮らせる環境を考えた。  生活の快適さと豊かさ、この双方の実現を目指し、軽井沢の敷地 特性を生かしたプランを提案する。
自然との共存 軽井沢  今回の敷地は長野県北佐久群軽井沢町。日本でも有数の別荘地が 立ち並ぶ軽井沢は高原リゾート都市となっている。  標高が高く連続した平坦面を森が囲う。このような大自然は人気 の観光スポットとなっており、近くには旧軽井沢銀座や白糸の滝な どがあり、他にもレジャースポットが数多くある。 現代の生活  設計条件として3世帯家族が定められている。子育てや介護が社 会問題となっている昨今。この社会問題を解決する建築的回答は何
雲場池 雲場亭 雲場池通り 大隈通り 旧中山道 六本辻 ブリヂストン 軽井沢第一山荘 ブリヂストン 軽井沢第二山荘 レンタヴィラ 軽井沢 おみずばたリゾート 軽井沢ペヌエルチャーチ 勝利者イエス教団 周辺環境

敷地の西面には雲場池の広がる良好な眺めがあ る。その眺めを一望するため、雲場池からある程度 距離を保ち、庭を広く設けた。その庭ではスポーツ やBBQなどのアクティビティが生まれる。  建物周辺には四季折々の植物を植え、回遊性を持 たせることで四季の移ろいを楽しむことができる。

3世帯同居の住宅は1階をプライベートな空間と し、2階を共有空間とした。1階に寝室などを設け ることで災害時の避難のしやすさや祖母を介護する ときの移動のしやすさを実現した。  2階の共有空間に関しては外部からの視線を気に せず生活することができ、日当たりの良い空間で雲 場池を一望することができる。

春 spring ヤマザクラ シダレザクラ オオデマリ など…

夏 summer サルスベリ ハナショウブ キョウチクトウ など…

秋 autumn カエデ イチョウ キンモクセイ など…

冬 winter ウメ ミツマタ サザンカ など…

四季がはっきりと分かれているのは日本の特徴で ある。このような自然豊かな敷地では四季の変化が より鮮明で明確に分かる。  周辺環境の特性をより生かすため四季の代表的な 植物から幾つかピックアップし、建物周辺に植えた。 またそれらの植物は一か所に集中させることなく、 全体に分散させて緩やかな繋がりを持たせる。

各部屋ごとの窓の高さに合わせて高木中木低木を使い分けた。高低差ごとに見える植物が変わり、各部屋で違うピクチャーウィンドウとして捉えることができる。
ダイアグラム
シダレザクラ ウメ ヤマザクラ カエデ サルスベリ イチョウ ススキ フユザクラ アジサイ ミツマタ サザンカ キンモクセイ キョウチクトウ ハイノキ オオデマリ サクラ ハイノキ オオデマリ サザンカ ミツマタ 配置図/樹木配置図 N
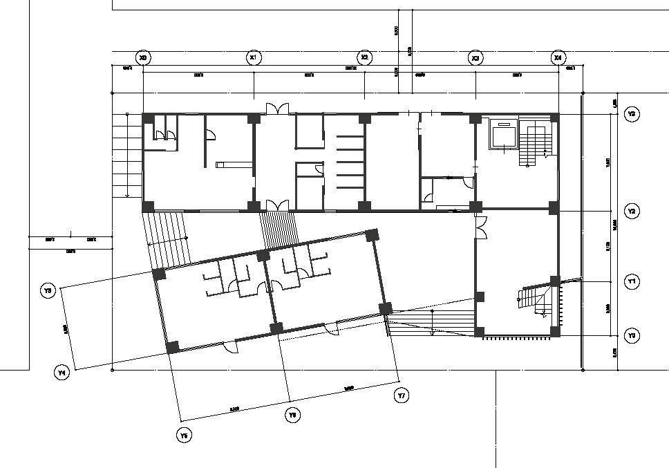
5,915 1,365 910
2,730 Y1 Y0 Y2 Y3 Y4 14,560
2,730 2,730 3,640 2,730 X0 X1 X2 X3 X4 X5 14,560 2,730 2,730 2,730 3,640 2,730 5,915
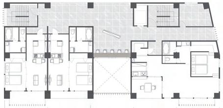
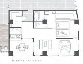
2,730 Y1 Y0 Y2 Y3 Y4 X0 X1 X2 X3 X4 X5 1階平面図 2階平面図 1.寝室 2.子供部屋 3.祖母寝室 4.倉庫 5.駐車場 6.EV 7.トイレ 8.洗面所 9.浴室 10.LDK 11.ベランダ 12.和室 13.書斎 1 2 3 4 5 6 6 7 13 8 9 10 11 12 各階平面詳細図
910
2,730
1,365 910 910
矩計図
内観パース ベランダ
内観パース LDK
2年次 進級課題 RC造展示施設設計
02.憩いの集い 洗練された街 代官山での静かな住まい
外観パース 南面
洗練された街 代官山  今回の敷地は東京都渋谷区代官山町。渋谷区内屈指の人気を誇り若者か ら大人まで多くの人が訪れる街。道行く人々を観察してみると若い年齢層 の方が特に多い印象を持った。  代官山は現代の流行を取り入れた個性的な店舗が多く、カフェやアパレ ルショップ、レストランなどが点在している。どこか大人びており清潔な 街並みで、町全体が白いベールで包まれているよう。 現代の生活  感染症が大流行する昨今で仕事や学校の形態が急激に変化した。リモー トワーク、リモート授業などの弊害により人との繋がりを意識する機会が 大幅に減った。人は時代の波に対応しきれず人間関係に関して消極的にな り、人々は孤独感を抱き始めた。  このような孤独感の解消、人との繋がりをどのように持たせるかを念頭 に置き、多用な人々が共存する世界で人の繋がりを感じ、落ち着きのある 空間を目指した。 設計主旨
計画地 旧山手通り 代官山 T-SITE デンマーク大使館 重要文化財 旧朝倉家住宅 ヒルサイドテラスB棟 ヒルサイドテラスE棟 THE CONOE 代官山 代官山プラザ 代官山駅 日本銀行 目黒分館 代官山アートビレッジ 周辺環境
1階 3階 2階 4階 5階 本屋 音楽スタジオ 和室 ギャラリー 洋室 ▽最高高さ ▽RFL ▽5FL ▽4FL ▽3FL ▽2FL カフェ 住戸A 1階 住戸A 1階 住戸A 2階 住戸A 1階 住戸A 2階 住戸A 2階 住戸C 洋服店 ▽1FL △GL Box Remove 空気を循環させ新鮮な空気を建物内へ供給する。屋上緑化で断熱 性の向上、景観の保全を図り自然環境に配慮した建築を目指した。 2~5階に共用部屋を設けることで住民同士の交流を狙う。現代の 人と人との繋がりが希薄となっている問題の解決の糸口になるこ とを願っている。 Stretch&Spin ショップ B住戸:計1戸 共用部屋(住民専用) C住戸:計4戸 A住戸:計3戸 D住戸:計1戸 ダイアグラム

配置図兼1階平面

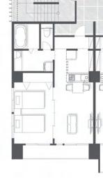
1.A住戸1階 2.B住戸 1階 3.C住戸1階 4.和室

2階平面図

1.A住戸2階 2.B住戸 2階

4.音楽スタジオ

各階平面図
3.C住戸2階
1.A住戸1階 2.D住戸 3.C住戸1階 4.ギャラリー 1.A住戸2階 2.屋上緑化 3.C住戸2階 4.洋室 3階平面図 4階平面図 5階平面図 屋上階平面 1.カフェ2.作業スペース3.エントランス4.ラウンジ 5.アパレルショップ6.本屋 1 2 3 4 5 5 6 GL-1500 GL±0
1 1 2 3 3 4 1 1 2 3 3 4 1 2 3 3 4 1 2 3 3 4 N
外観パース 本屋入口及び西面
コロナ禍における人と人との繋がり方、決して軽んずることなく 意味あるものとして捉え意識的に生活することを願っている。
内観パース 4階渡り廊下
2年次 進級課題 RC造展示施設設計
03.憶え、偲ぶ。 記憶の断片で人と人とを繋ぐ美術館
美術館イメージ
浮間舟渡美術館 子供の頃の楽しかった記憶は少しずつ薄れて断片として残される。その断片は、ある日 光を集め、その時代を共に過ごした仲間を思い出す。大人も勿論同様で何か感動した記 憶は、いつまでも心の隅に温かく残るのではないか。 私はこの浮間舟渡という街に、人々の記憶に残る芸術体験と再び訪れた時の懐かしい 思い出を語り合える場所をつくりたい。素敵な体験は美しい風景の中に心にしっかりと 焼き付けられる。渦の中心のよう人が集まり、記憶に残るような語らいの時間を過ごし、 芸術体験を通して自分の住む街にも愛着が沸き、いずれこの浮間を中心に芸術への熱が 周囲へと広がっていくことだろう。 しの-ぶ【偲ぶ】 1 過ぎ去った物事や遠く離れている人・所などを懐かしい気持ちで思い出す。懐しむ。「故郷 を—・ぶ」「先師を—・ぶ」 2 物の美しさに感心し味わう。賞美する。 おぼ-える【憶える】 1 見聞きした事柄を心にとどめる。記憶する。「子供のころのことは—・えていない」 2 からだや心に感じる。「疲れを—・える」「愛着を—・える」 設計主旨

今回の敷地は東京都板橋区にある浮間公園。浮間公園のすぐ横を 流れるのは荒川、歩いて数分の距離に面している。

浮間公園は非常に多くの子供たちとその保護者が集まりあそんでい る。サッカーやバスケ、キャンプをしている人や釣りをしている人 屋外ならではの遊びをしている。  なぜこの公園はそれほど賑わうのだろうか。調べると多くの教育 施設が点在している。図中の円は半径1kmごとに記されている。

数多くの教育移設があることから子供の人数も多いことを推測し、 その子供たちがアートを通じて記憶に残る芸術体験ができるような 美術館を提案する。大人になってもまた戻りたいと思うようなそん な美術館になることを願っている。

児童とアート
敷地    中学校   小学校   保育園 注釈 会話によって思い出の修復、共有を行う 大人:不鮮明な記憶 時間の経過とともに記憶が薄れていく 子供:鮮明な記憶
周辺環境
造形のプロセス ヴォリュームの検討 敷地と美術館を繋ぐ廊下 点在する教育施設 子供時代に刺激的な体験をする 浮間公園に子供 達が集まる 自分達の家へ戻る 子供から大人へと成長し 昔の体験を思い出す 浮間美術館をきっかけと した大人が外部へと出て いき芸術の波を起こす役 割を担う 人の流れに注目する 流れを形に落とし込む 各室に高低差を与えることで一様にならず変化に富んだ美術館となる 浮間が池を一望できるとカフェとワークショップ 美術館内を繋ぐ廊下 展示室や学芸員室、収蔵庫等 展示室や学芸員室、収蔵庫等 ダイアグラム
敷地内また展示作品について 1.クロードモネの壁画 美術館の周辺にアート作品を点在させ、よりアートが身近な存 在になることを目指し町全体の活性化を図る。 敷地図/アート点在図 2.フェルメールの壁画 3. 公園内のモニュメント 4.駅前のモニュメント 屋外展示品を散りばめる 付近に東屋を設置する館外にもコミュニティが生まれる 1階展示作品:19世紀印象派の画家などをメインに展示する 2階展示作品:インスタレーション作品を展示する 屋外展示作品:石などを用いた重量感のある作品を展示する 1 2 3 4 5 6 作品関連 7
東屋 東屋 東屋 屋外展示 屋外展示 屋外展示 管理ゾーン 展示ゾーン 共用ゾーン 一般客の出入り 一般客の出入り 作品の搬入 管理者の出入口 屋外展示 1階ゾーニング N 池に沿って形を作ることで回遊性が生まれる
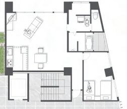
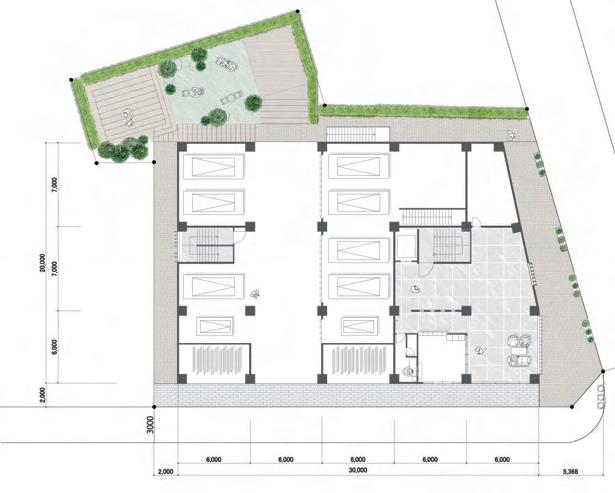
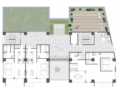
1.風除室 2.ミュージアムショップ 3.展示室 4.電気室 5.空調室  6. 事務室 7.館長室 8.応接室 9.カフェ 10.ワークショップ 11.休憩室 12.収蔵庫 13.会議室兼休憩室  14.研究室 15.資料室 16.学芸員室 11 12 13 16 15 3 14 2階ゾーニング/平面図 展示ゾーン 管理ゾーン 収蔵ゾーン 共用ゾーン N 1階平面図 2階ゾーニング 2階平面図 1 2 3 4 5 6 10 9 7 8
外観パース 北面
内観パース 2階展示室及び会議室兼休憩室 人と芸術が織りなす思い出の波。 果たして私達はどれほどの記憶を修復できるのだろうか。
立面図
1.カフェ 2.空調室 3.通路 4.男子WC 5.給湯 6.館長室 7.応接室 8.受付9.収 蔵庫 10.研究室 11.資料室 12.学芸員室 1.風除室 2.ミュージアムショップ 3.ロッカー 4.WC 5.展示室 6.空調室 7.収蔵庫 8.通路 1 1 6 6 2 7 7 32 3 3 8 8 4 4 9 5 5 55 5 101112
04.  荘 現代から未来へ残り続ける集合住宅 共同設計者:桑田 阿波加 稲田 正木 担当したもの:CG ダイアグラム 図面作成 3年次 金融機関紹介による住宅等設計
南面外観パース

今回の敷地は足立区谷在家2丁目 人通りが多く、車通りの激しい道路に面した街の 一角である。  周囲には子供が楽しめる緑豊かな公園が数多く ある。公園内はアスレチックもあり充実している。 休日には家族連れが多く、足立区全体として家族 連れが多い傾向にある。  小学校や中学校などの教育施設も点在しており、 また谷在家駅が近く、バス停も多くある為交通の 便が良い。子供や大人にとって住みやすい環境と 言える。

足立区立谷在家公園 足立区立沼田北公園 江北六丁目団地 東京北部病院 計画地 スーパー 都市と緑と谷在家 環七北通り 東京女子医大通り
スーパー 東京北部病院

谷在家に佇む荘。 設計条件

昭和から○○荘という共同住宅が増えたが、今では古臭 いと思われていることからあまり使われていないが、現代 でも○○荘という集合住宅は残り続けている。  このように昔から現代へ残り続けている○○荘から考 え、現代から未来まで残り続ける集合住宅を目指した。

ボリュームの検討

南面からマンションを見る。 緑を多用したファサードは 特徴的である。

設計条件として施主4人家族の住戸とその他の住戸が定 められた。足立区の集合住宅の条例を守りつつ、実際に施 主からヒアリングした要望を取り入れつつ、我々をこだわ りを落とし込んだ設計となっている。  新しい集合住宅の造形を考えつつ、計5タイプに分かれ た特徴を持つ住戸を取り入れた集合住宅となっている。

東面からマンションを見る。 1階から最上階まで伸びた ルーバーは建物内に風と光を もたらす。 俯瞰してマンションを見る。 北面のヴォリュームを下げる ことで北面の戸建て住戸に住 む人への配慮をした。 南面の第2エントランス。 光が差し込み、緑を介した風 がマンション内に吹き込む。 地域に対して孤立することが 無いよう緑を多用し、地域環 境、住民と共存する外観を目 指した。 Box Remove Chip Stretch Connect Harmony ダイアグラム
各階平面図
2
N
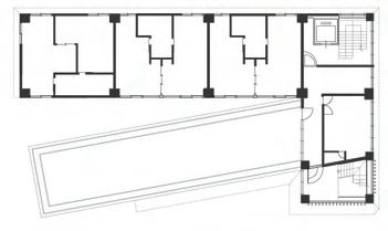
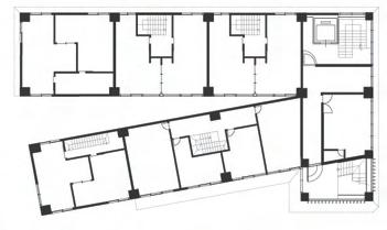
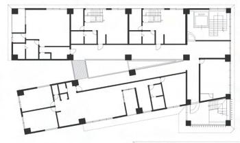
配置図兼1階平面 2階平面図 3階平面図 4階平面図 5階平面図 6階平面図 1.住居者駐車場2.施主駐車場3.駐輪場4.エントランスホール 5.中庭 6.ガレージ 1.A住戸 2.B住戸 3.施主住戸 1.B住戸 2.C住戸 3.D住戸 4.E住戸 5.中庭 1.B住戸 2.C住戸 3.D住戸 4.E住戸 5.ワークスペース 1.屋上緑化 2.テラス 3.A住戸 4.C住戸 5.ワークスペース 1.A住戸 2.C住戸 3.ワークスペース 1 1 3 2 1 2 1 2 3 3 4 5 3 1 2 4 5 3 1
4 5 2 1 4 3 5 3 2 1 3 1
6
リビングを見る 廊下突き当りの客間 物干しがメインのベランダ 廊下を彩る絵画 自然光が部屋を照らす 動線に考慮した玄関 広々としたLDK 施主部屋模型 寝室 寝室 寝室 寝室 倉庫 客間 浴室 浴室 ベランダ ベランダ トイレ LDK
施主住戸プラン  1階ガレージから住戸への繋がり、玄 関前倉庫、パントリー。  多くの要望とこだわりを落とし込んだ 住戸。この住戸で快適な生活と豊かな人 生が営まれることを願っている。 施主住戸
3階中庭 各階の住民が集い談笑する場。 ダイナミックな空間を演出す ると共に風が吹き抜け新鮮な 空気が中廊下を吹き抜ける。
各住戸プラン
読書や学習のサポートを目的とし、 生活と学習活動の両立を目指した タイプ。収納が豊富で生活に余裕 を持たせる。 コンパクトでスムーズに生活 できるシンプルなタイプ。 1-2人の家庭に住みやすく快 適な空間を提供する。 A.ジェネラルスタイル B.ブルックリンスタイル
ダイニングベランダとLDKが広い タイプ。アクティブな人を想定し、 緑豊な空間が部屋全体を包み込む。 洋風の土足スタイルを取り入 れたアクティブなタイプ。外 国人移住者に住みやすい環境 を提供する。 犬や猫が動き回れるような回 遊タイプ。動物達との生活を 充実できるような空間を提供 する。 E.ミグラトリ―スタイル C.インドアキャンプスタイル D.インダストリアルスタイル
立面図
東立面図 西立面図
南立面図 北立面図

05.新時代の循環型カフェ コロナ禍における人と空気を循環させる新しいカフェの在り方

3年次 葛西臨海公園カフェ設計

空気と人が循環する新時代のカフェ 心地よい風、温かい木漏れ日。コロナ禍で問われたカフェの形。

内観パース 屋外席及び東面
俯瞰パース
葛西臨海公園  葛西臨海公園は東京都江戸川区に位置し、東京湾に面 する緑地公園。水族園、鳥類園、観覧車など多用な施設 が混在している。休日には家族連れが多く、園内も賑わっ ている。特に水族園は老若男女問わず人気でチケットに は列ができる。  このような敷地にコロナ対策を考えたカフェを提案す る。人と空気が循環し、回り続ける新時代のカフェ。 新しさと共に感染リスクを抑えた建築となっている。 設計主旨
計画地 汐凪の広場 展望広場 利用者動線 利用者動線 パークトレインルート 東京水辺ライン 水上バス乗り場 葛西臨海水族園 展望レストハウス クリスタルビュー 周辺環境
平面図
N
カウンター席 カウンター席 厨房 屋外席

テイクアウトで購入し、カウンターもしくは野外席で飲食を する。

人と空気の循環

カウンターは従来のテーブル席に比べゆっくりくつろげるこ とが難しい為、1人あたりの滞在時間が短いことを推測し、それ により人が密集することを避けることができる。座れる席は屋 外席のみで自生している樹木の間隔に合わせて席を設けている 為、人と人との距離を保ちながら飲食することができる。また 屋外席のため空気が溜まることなく、循環しているため感染リ スクを抑えることができる。

自生している樹木の間隔に注目し 席を設けた。樹木の間隔が人々の 間隔を保つ。 間隔 空間1 空間2 コロナ対策 外と内との境目を曖昧にすることで密閉さ れた空間がなくなる。またカフェ全体と水 盤の周りを回遊できるようすることで流動 性が生まれる。 樹木が直射日光を遮りつつ木漏れ日が当た る心地良い空間を作りだす。内と外の境目 がないため空気が吹き抜けるようになって いる。 客席はカウンターと屋外席を設けており、 カウンターには椅子がないため、長期滞在
屋根伏図及びコンセプト 購入方式
を避けることができる。屋外席は樹木の間 隔に合わせて設けているため人との間隔を 保つことができ、密集を防ぐ役割がある
立面図 東立面図 南立面図
東立面図 A-A´断面図
05.その他
即日課題 手書きパース 『建築と不自由』※右図 『社会の中のSDGs』※下図  不自由とはなんであるのか。 人が自由を求めることは正しいことのような気がする社会がある。 不自由について考え浮かび上がる建築は何だろうか。  私は不自由を不便として捉え、環境的要因から起こる不便さについて考えた。 これは群馬県吾妻渓谷に住む集落群である。不便な環境と共に暮らす人を想定 し、その人達が得ている不便さの中の「快」を享受できる建築を提案する。  社会は他者と関わりを持たない人1人のみでは成立しない。社会は人の集団 によって構成されたり、人同士はなんらかの関係が結ばれている。そんな社会 とSDGsと建築。これらを絡めて浮かび上がる建築は何だろうか。  私は劣悪な住環境を改善することが建築的回答なのではないかと考え、大阪 府西成区に位置するドヤ街、あいりん地区にて住環境と労働環境を整えること を目指し集合住宅と植物工場を提案する。  植物工場で栽培された植物は西成区内に分散させて植える。また建築物に壁 面緑化や屋上緑化などを設け、緑あふれる街を目指し、暗いイメージを払拭さ せる。
鉛筆デッサン

Turn static files into dynamic content formats.

Create a flipbook
Issuu converts static files into: digital portfolios, online yearbooks, online catalogs, digital photo albums and more. Sign up and create your flipbook.