Client type & Name : Ministry Of Defense , Defense Infrastructure Organization
Status : Completed My role covered RIBA Stages 02 - 06
Typology : Office , Store and Garage bui d ngs
Value : £5 mill on
Size:
Bui d ng 01: EOD Office, Store and Training - 400 sqm
Bui d ng 02: EOD Garage - 300 sqm
Bui d ng 03: LEAT Office Refurbishment -110 sqm
ProjectOverview:
TheinfrastructureprojectaimstorelocatetheNottnghamEODTroop(20personnel)andLEAT(9personnel)fromChetwyndBarracksto GamecockBarracksby anuary2025.Thisinvolvesrefurbishinganexistngofficebuilding(B04,approx.110sq.m)andconstructingthreenew structures,includingofficesandworkshops(B01,B02,B03,approx.440sq.m),garages(approx.300sq.m),andastore(approx.80sq.m).The projectadherestopassivehousestandardsandaimstoacheveExcellentDREAM(DefenceRelatedEnvironmenta AssessmentMethodology) certfication.Building02RIBAStage4Drawingsareprovdedbelow.
ScopeofWork/Myrole:
IwasdirectlyinvolvedfromRIBAStage2throughtothepracticalcompleton(PC)oftheLEATBuilding.Myresponsibilitiesincuded:
TechnicalContributions:Produced,reviewed,andcoordinatedtechnicaldrawingpackagesforinternalreviewandclientapproval,and preparedrecorddrawingsbeforethehandoverprocess.
SiteInspections:Atendedmonthlysiteinspectons,supportedhandoveractvities,andobservedkeyconstructionmiestones TeamCoordination:WorkedunderthesupervisionofaPrncipalArchtectandcollaboratedwithamultidisciplinaryteam,ManagedBIM coordinationinRevit,includinglinkedmodes,synchronzation,andmultdsciplinarycolaboration SustainabilityInitiatives Identfiedhigh-emissoneementsandproposedsustanablealternativesusingtheLCAPatform,suchas recycledsteelincollaboratonwiththeStructura Engineer





ArrangementPlan







ConceptrenderofEODbuldings

GeneralArrangementsectionwthzoning



Settingoutsection

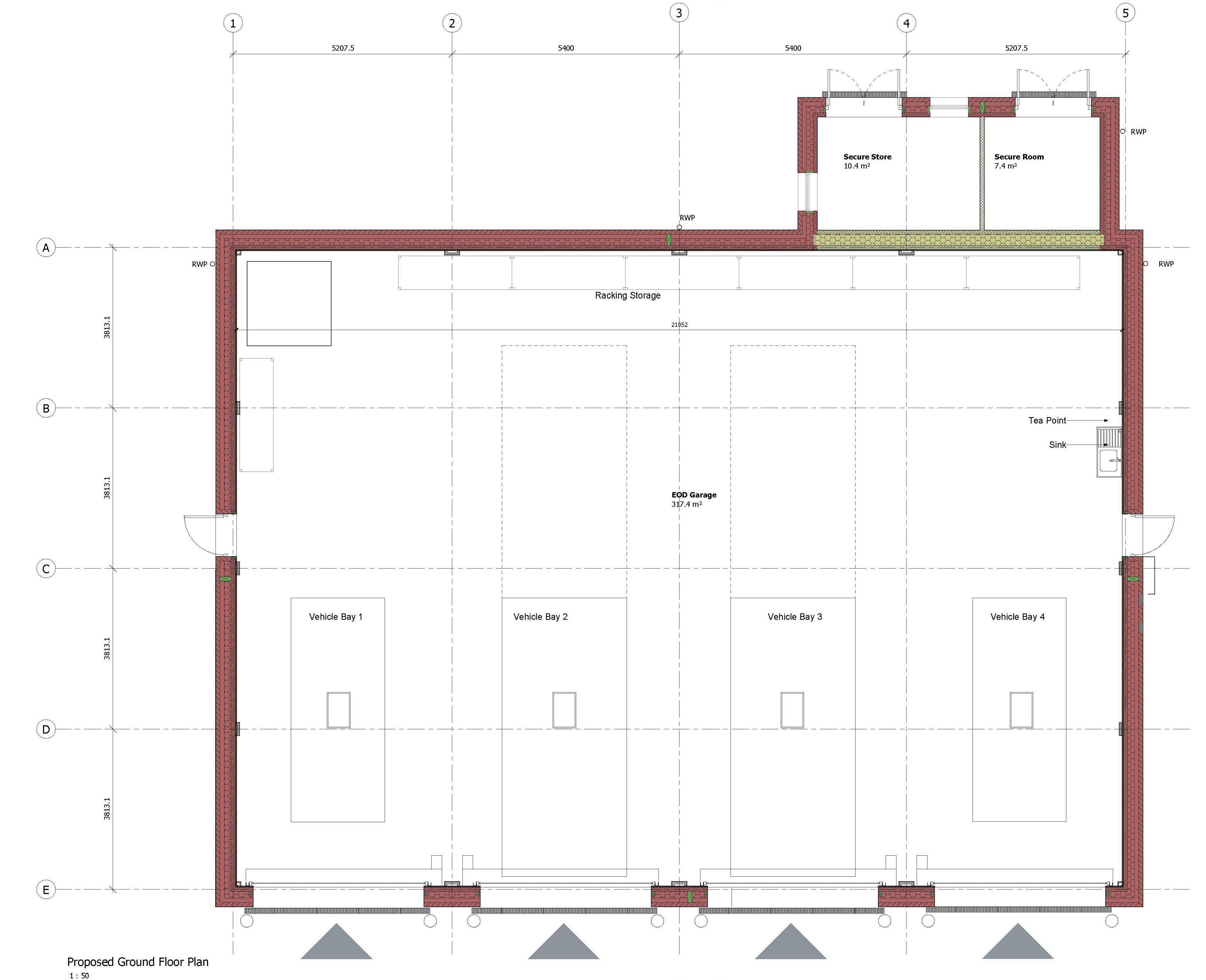
TYPOLOGY:Garage
AREA:310m²
CAPACITY :4Vehicularbays

Interiorviewfeaturing





LocationPan

ProposedGroundFoorGeneralArrangementPlan


GenericReady-mixconcrete,normalstrength, generic,C30/37
Technicalcharacteristics
Product:Ready-mixconcreteforexterna wallsand floors
Strengthcass:C30/37
Bindercontent:MostyPortandcement
Recyced/low-carbonbinders:Low(10%)
Sustainablealternative: Ready-mixconcrete C32/40,CIIIA(36-65%GGBS)HansonHCG
Technicalcharacteristics
Product:Ready-mixconcreteforexternalwalsand floors
Strengthclass:C32/40(similarstructuralperformance)
Bindercontent:ReducedPortandcement GGBS( owcarbonalternative)content:Hgh(36–65%)


Much owerembodedcarbon 0065kgCO₂e/kg Hgherembodiedcarbon011kgCO₂e/kg)

Genericconcretereliesheavilyontraditionalcement;theHansonmixreplacesmuchofthecementwithGGBS, significantlyreducingembodiedcarbonwhilemaintainingstructuralstrength.
COLUMNS
Structuralsteelprofiles,generic,40%recycled content,I,H,U,LandTsections,S235,S275 andS355

Technicalcharacteristics
Product:Rolledstructuralsections(I,H,U,L,T)
Stee grades S235,S275,S355
Recycledcontent:Fixedassumption–40%
Datatype:Genercproxydataset
Hgherembodiedcarbon(2603kgCO₂e/kg)

Sustainablealternative:Structuralsteelsectionsand plates,S235-S960(bauforumstahl)

Technicalcharacteristics
Product:Rolledsections+steelpate
Steelgrades:S235uptoS960
Recycledcontent:Hgh(typically85–100%)
Datatype:IndustryEPDbasedonrealproductiondata
Much owerembodedcarbon 113kgCO₂e/kg

Genericsteelassumesore-basedproductionwithlimitedrecycling,Bauforumstahlreflectsreal,scrap-based EAFsteel,cuttingcarbonbyabouthalf.


INITIALNETZEROCARBONSTUDY






TYPOLOGY: Officewing
AREA:400m²
CAPACITY:Maximumof30people


Exteriorfacadebeforerefurbishing Scaffoldinginstalledonsite

Photocapturedonsiteduringhandover







Client type & Name : Confidential
Status : Completed My role covered RIBA Stages 03 / 04
Typology : Office Area : 280 m²
Capacity : Maximum of 60 people
Council : Westminster City Counci
LandLaw:TenureType-Freehold
OriginalOwnership(1922):
SirGeorgeEspecJohn Manners
QueenAnnesGate Syndicate(No2)
Limited
Coutts&Company
OwnershipChanges(1923):
Coutts&CompanywasreplacedbyThe WestminsterTraningSchoolandHome forNurses
Subsequentownersincluded: ThePrudentalAssuranceCompany
Limited
JosephBrowneMartn TheCommissionersofHM Worksand PublicBuldngs(May1923)
ScopeofWork/Myrole:
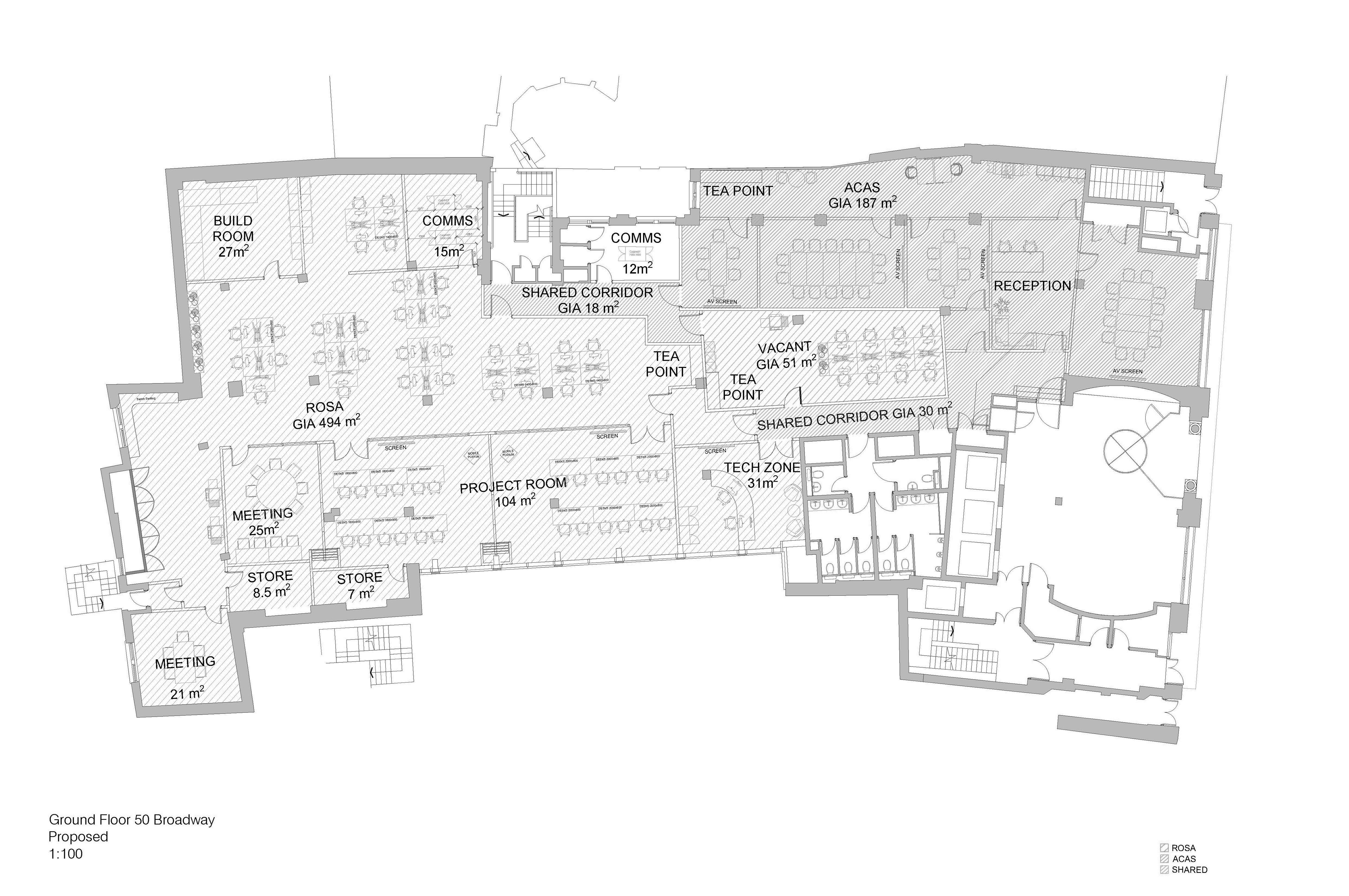
The50BroadwayStreetprojectisanofficerefurbshmentfocusedontheredesigningofthegroundfloorplanlayout.TetraTechwasappontedduringRIBAStage2and3toredesgntheexistingfloorplananddeliver drawngpackagesforbothstages. IwasdirectlyinvolvedfromRIBAStage3toRIBAStage4:
TechnicalContributions:Produced,revewed andcoordinatedtechnicaldrawingpackagesforinternalreviewandclientapproval
SiteInspections:Atendedmonthlyste nspectionsandobservedkeyconstructionmlestones
TeamCoordination:WorkedunderthesupervisonofaPrincipa Architectandcollaboratedwithamultidiscpinaryteam,ManagedBIMcoordinaton nRevit,includinglinkedmodes synchronization and multidiscpinarycolaboraton
DESIGNDEVELOPMENT
ExistingGroundFloorGAPlan
Scale1:500
LatestRegistrationDate: 24092021
PropertyDescription:50to64
Broadway,London DateofLease:10092021
Term:20yearsfromand incuding30June2021

ExistingGroundFloorGAPlanlayoutdetailsketch
Scale1:250
RestrictiveCovenants:Adeed dated18October2022made between
BroadwayJerseyTrustees1 Limited
BroadwayJerseyTrustees2 Limited
TheCorporateOfficerOf TheHouseOfCommons CarterVictoriaFreehold Limited
CarterVictoriaLimited contansrestrictivecovenants. (Inthecontextoflandlaw covenantsarelegallybinding promisesoragreements writtenintodeedsorleaseslimitwhatthe andownercan dowiththeirproperty)

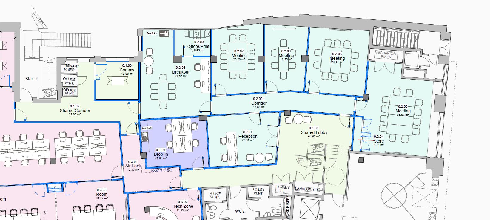
ProposedGroundFloorGAPlan
Scale1:500

ProposedGroundFloorGAPlanlayoutdetailsketch
Scale1:250

RIBASTAGE3/4DELIVERABLES
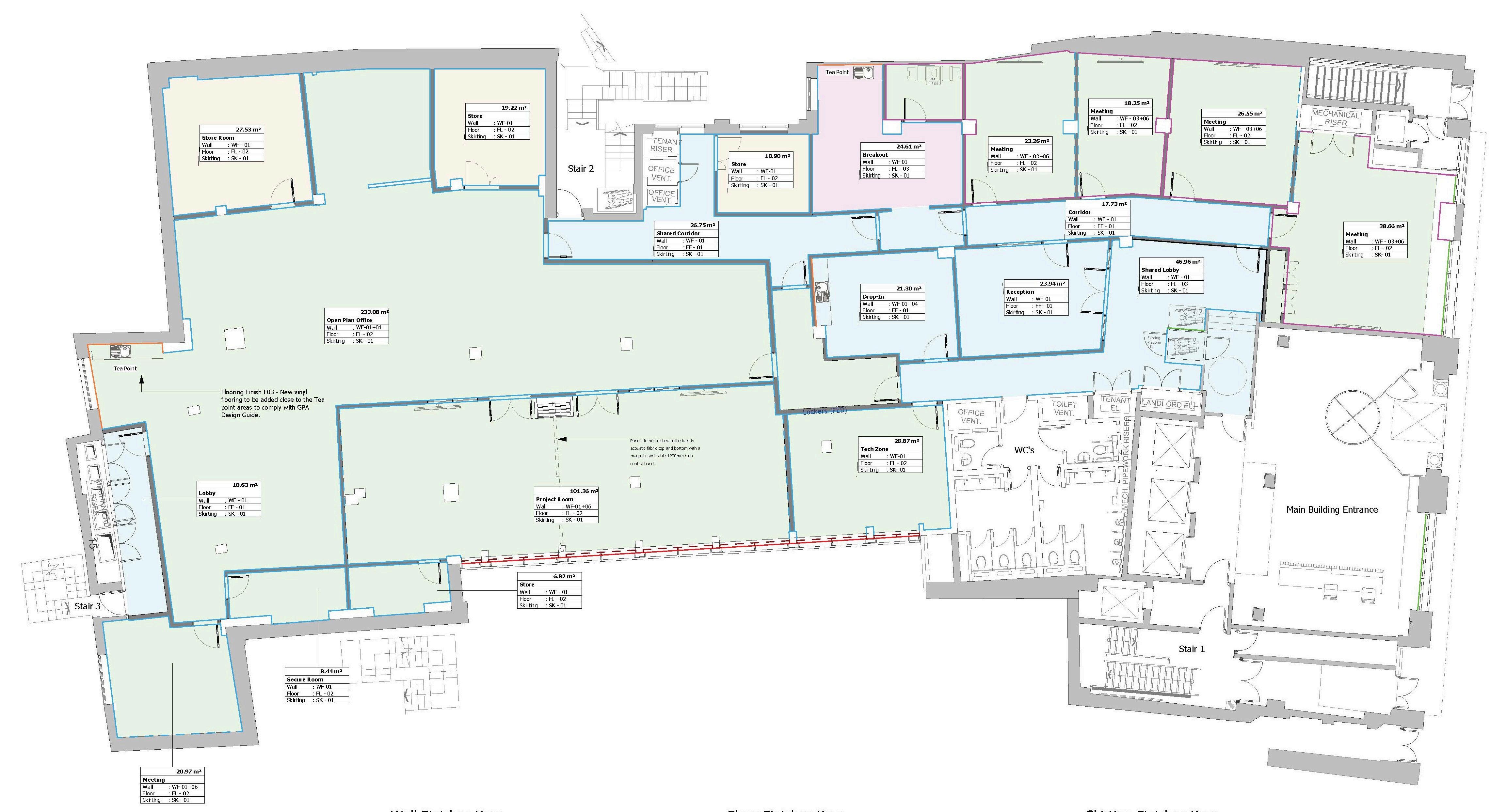
TheReflectedCelingPlanwasdevelopedinaccordancetotheProposedGenera arrangementplan Thisdesignwas donewhiletakingintoaccounttheductspacerequredforMEPintheceiling Anotherpracticalaspectthatwas consideredisthedesignofthelayinceilingtilewhichis600mmby600mm.ThePlasterboardceilingwasdeveopedto makesuretheLay nceilnggrisisalways600mmtoavoidirregularcuttingoffofthegridwhichwouldresultintile waste/havingtomeasureandcutbespoketilemeasurementsonceonsitepostRIBAStage4








understandngtheconstructionworkthatneeds tobedoneonstewhlecreatingthedrawingsin stage2,savngtmeeffortandmoneyspenton thetilecountsrequiredonsite


tonsEe atons WF-06Magne cw teabepanes TKTEAMRadaGassWhteboa d Tobe 1500mmhghby1180mmwde se out700AFFL P pa essng obe ncuded o fixng









MEP team confirmed that the server room cooling condensers need to be nstalled externa ly The landlord will need to give permission as to where they go. They could go on the first floor external area but there is a chance they cou d have to go on the roof.
Note : The Cooling condensers w l a so need to have a ma ntenance schedule w th roof accessibil ty shown for which working on he ght could again be an hazard.








LafoneStreet:ResidentialRenovation,UK
Status:CompletedMyrolecoveredRIBAStages04-05
Value:£350,000
Size:60m2
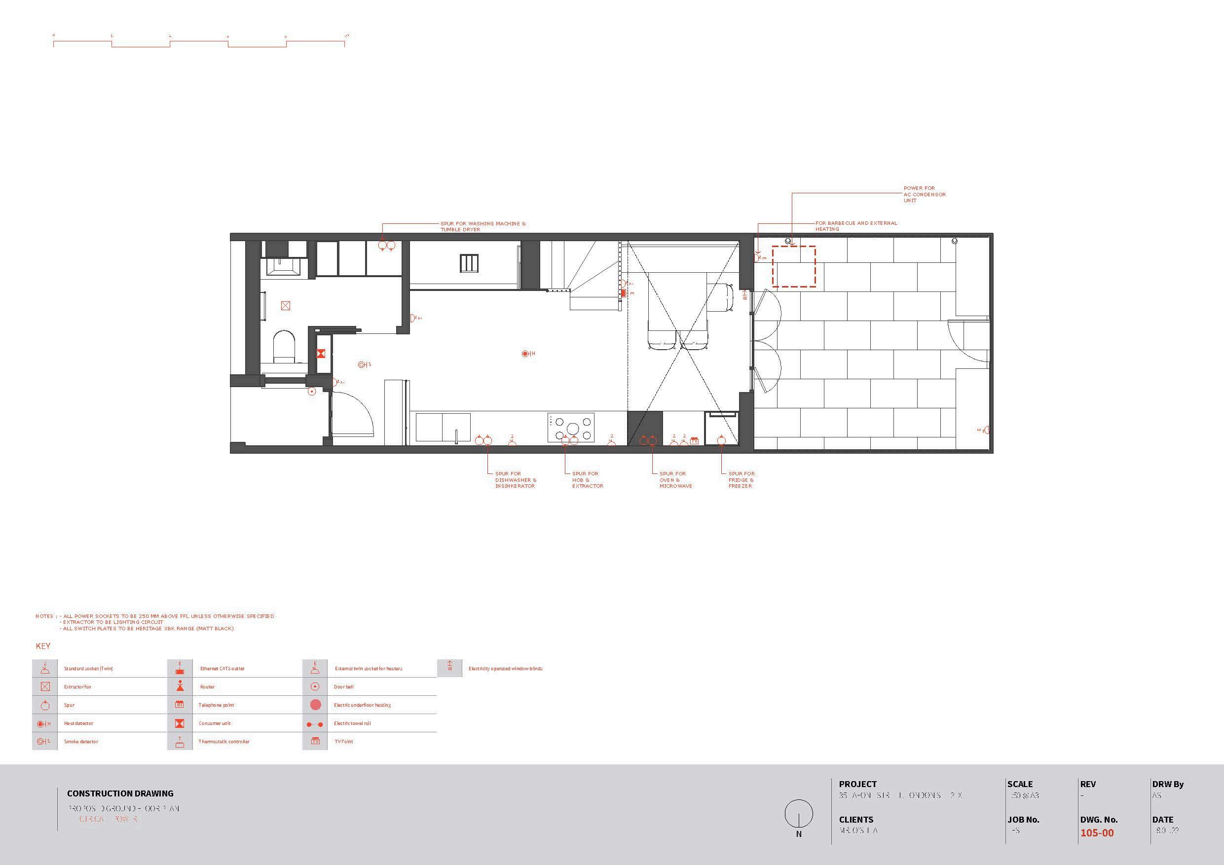
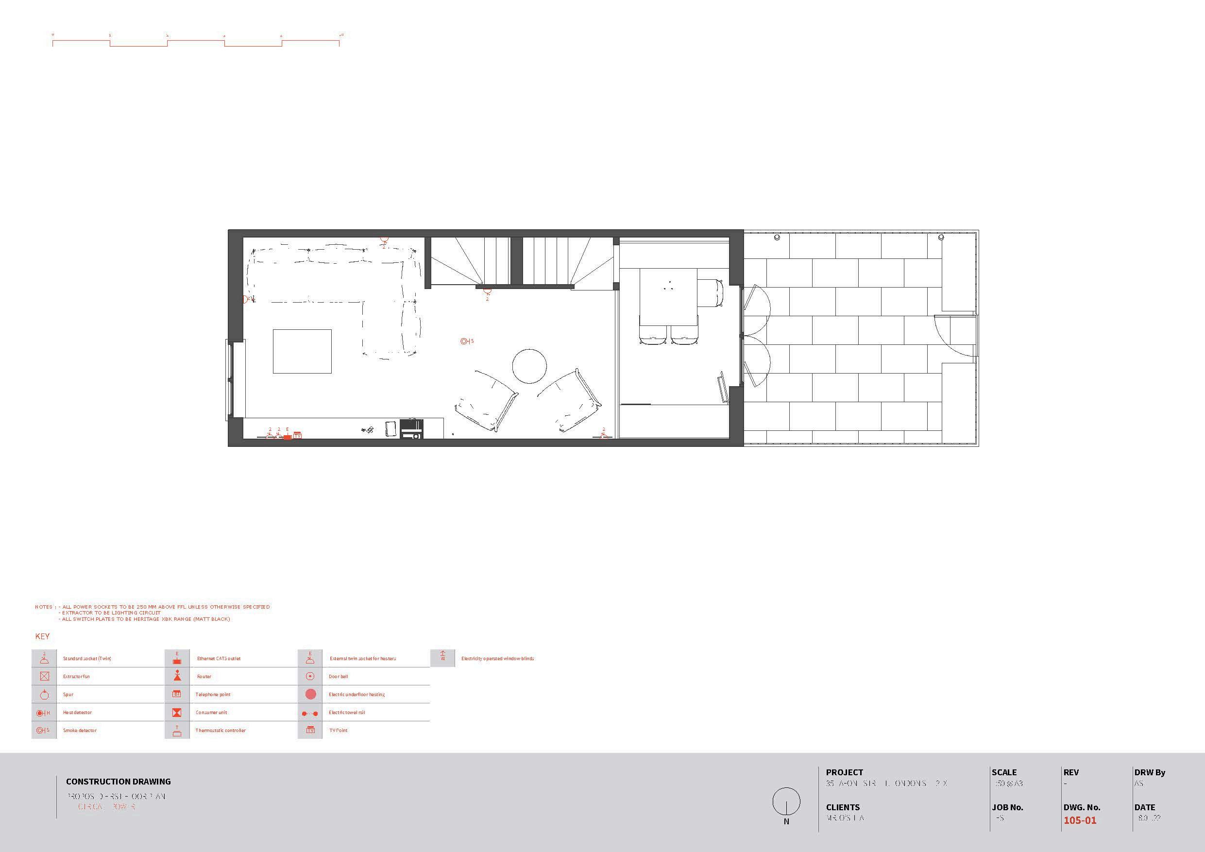
ScopeofWork:Theresdentalrefurbishmentprojectinvolvedthe preparationofplanningpermissondocumentationandthe productonofdetailedconstructiondrawings, ncludinglayoutsfor electricalsystems(powerandlighting) floorandwal finishes, skrtingandarchitraves,joineryreferences,anddoorandwndow schedules Thescopealsoincludedregularsitevisitstomonitor constructonprogressandtotakeandverifysitemeasurements.

LookandFeeldocument/MoodBoard











