Client type & Name : Ministry Of Defense , Defense Infrastructure Organizat on
Status : Completed My role covered RIBA Stages 02 - 06
Typology : Office Store and Garage buildings
Value : £5 mill on Size
Bui d ng 01: EOD Office, Store, and Training - 400 sqm
Bui d ng 02: EOD Garage - 300 sqm
Bui d ng 03: LEAT Office Refurbishment -110 sqm
ProjectOverview:
TheinfrastructureprojectamstorelocatetheNottinghamEODTroop(20personnel)andLEAT(9personnel)fromChetwyndBarracksto GamecockBarracksbyJanuary2025 Thisinvolvesrefurbishnganexistingofficebuiding(B04,approx 110sq m)andconstructingthreenew structures,includingofficesandworkshops(B01,B02,B03 approx 440sq m),garages(approx 300sq m),andastore(approx 80sq m) The projectadherestopassvehousestandardsandaimstoachieveExcelentDREAM(DefenceRelatedEnvironmentalAssessmentMethodology) certificaton Building02RIBAStage4Drawingsareprovidedbelow
ScopeofWork/Myrole:
Iwasdirectly nvovedfromRIBAStage2throughtothepracticalcompletion(PC)oftheLEATBuilding Myresponsibilitiesincluded:
TechnicalContributions:Produced,reviewed andcoordinatedtechnica drawngpackagesforinterna reviewandclentapproval,and preparedrecorddrawngsbeforethehandoverprocess
SiteInspections:Atendedmonthlysiteinspections supportedhandoveractivities,andobservedkeyconstructionmlestones
TeamCoordination:WorkedunderthesupervisonofaPrincpa Architectandcollaboratedwithamultidiscplnaryteam ManagedBIM coordination nRevit incudinglinkedmodels,synchronizaton,andmultidisciplnarycollaboration.
SustainabilityInitiatives:Identifiedhigh-emissionelementsandproposedsustainabealternativesusingtheLCAPlatform,suchas recycledstee incolaborationwththeStructuralEngineer.












ConceptrenderofEODbuildngs

Genera Arrangementsectionwthzoning




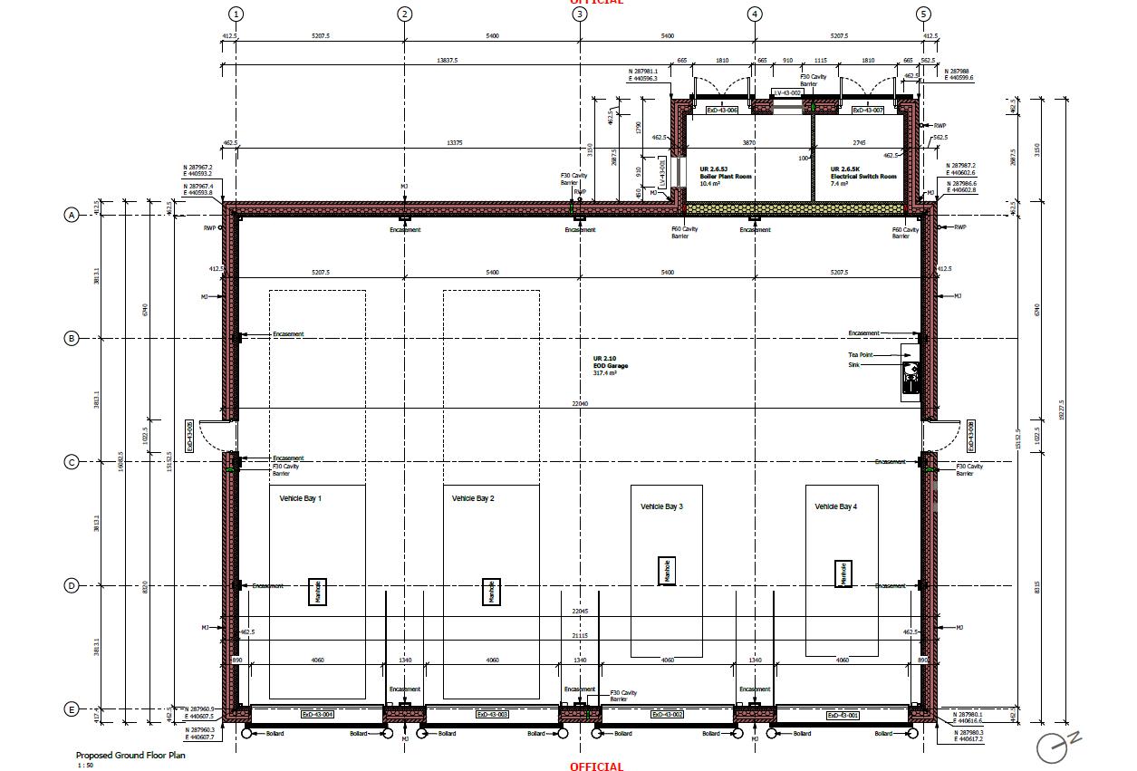
TYPOLOGY:Garage
AREA:310m²
CAPACITY :4Vehcularbays
Location:GamecockBarracks,Nuneaton
ProjectOverview:
The nfrastructureprojectaimstorelocatetheNottinghamEODTroop(20personnel)andLEAT(9personnel)fromChetwynd BarrackstoGamecockBarracksbyJanuary2025.Thisinvolvesrefurbishinganexistingofficebuilding(B04,approx.110sq.m) andconstructingthreenewstructures, ncludingofficesandworkshops(B01 B02 B03 approx.440sq.m) garages(approx.300 sq m),andastore(approx 80sq m) TheprojectadherestopassivehousestandardsandamstoacheveExcelentDREAM (DefenceRelatedEnvironmenta AssessmentMethodoogy)certfication Bulding02RIBAStage4Drawingsareprovidedbelow
MyRole:
Iwasdirecty nvolvedfromthetechnicalstagethroughtothepractca completion(PC)oftheLEATBuilding Myresponsibiites included:
SiteInspections:ConductedsitevisitsalongwiththeTeamLeadandparticipatedinthehandoverprocessfortheLEAT building,aswel asthetoppng-offceremonyfortheEODnewbulds
TeamCoordination:WorkedunderthesupervisionofaPrincpalArchtectandcolaboratedwithamultidisciplinaryteam, ncludingMEP,structural,lghting andelectricaldepartments
SustainabilityInitiatives:Identfiedhgh-emissioneementsandproposedsustainableaternativesusingtheLCAPlatform, suchasrecycledsteel ncolaboratonwiththeStructura Engineer
TechnicalContributions:Draftedsections,revieweddrawingsfromStage3to6withotherarchitectureassistantsforclient approval andpreparedrecorddrawngsbeforethehandoverprocess





Interiorviewfeaturing therollershutter



GenericReady-mixconcrete,normalstrength, generic,C30/37
Technicalcharacteristics
Product:Ready-mixconcreteforexternalwalsand floors
Strengthclass:C30/37
Bindercontent:MostlyPortlandcement
Recycled/low-carbonbinders:Low(10%)
Higherembodiedcarbon0.11kgCO₂e/kg)

Sustainablealternative: Ready-mixconcrete, C32/40,CIIIA(36-65%GGBS)HansonHCG
Technicalcharacteristics
Product Ready-mxconcreteforexternalwallsand floors
Strengthclass:C32/40(similarstructuralperformance)
Bindercontent:ReducedPortlandcement
GGBS(lowcarbonalternative)content:High(36–65%)
0065kgCO₂e/kg)

Genericconcretereliesheavilyontraditionalcement;theHansonmixreplacesmuchofthecementwithGGBS, significantlyreducingembodiedcarbonwhilemaintainingstructuralstrength.
COLUMNS
Structuralsteelprofiles,generic,40%recycled content,I,H,U,LandTsections,S235,S275 andS355

Technicalcharacteristics
Product:Rolledstructuralsectons(I,H,U L,T)
Steelgrades S235,S275,S355
Recycledcontent Fixedassumption–40%
Datatype:Genericproxydataset
Higherembodiedcarbon(2603kgCO₂e/kg

Sustainablealternative:Structuralsteelsectionsand plates,S235-S960(bauforumstahl)

Technicalcharacteristics
Product Roledsections+stee plate
Steelgrades:S235uptoS960
Recycedcontent:High(typically85–100%)
Datatype:IndustryEPDbasedonrealproductondata

Genericsteelassumesore-basedproductionwithlimitedrecycling,Bauforumstahlreflectsreal,scrap-based EAFsteel,cuttingcarbonbyabouthalf

lGovernmentBuyingStandards(GBS) ,OurprojectistocomplywithDefenceRelatedEnvironmental hod(DREAM)forNewBuildConstructionandMajorRefurbishments.
yandEnvironmentAppraisalTooldevelopedbytheDefenceInfrastructureOrganization(DIO)to stheuniquenatureofMODbuildingsandprovidetheMODwithanequivalenttotheindustrystandard
BAScopeofwork,NetZeroCarbonStudiesonLCAOneClickweredoneduringeveryRIBAStagewith nablematerialselectionsforvariousspecifiers.Theworkflow,teamstructureandliabilitytoimplement ecertificationisshowninthediagrambelow








Note:zoomedinpdfsaddedtotheAppendices
Client type & Name : Confidential
Status
Typology : Office Area : 280 m²
Capacity : Max mum of 60 peop e Council : Westminster C ty Council
LandLaw:TenureType-Freehold
OriginalOwnership(1922):
SirGeorgeEspecJohn Manners
QueenAnne'sGate Syndicate(No.2)
Limited
Coutts&Company
OwnershipChanges(1923): Coutts&CompanywasreplacedbyThe WestminsterTrainingSchoolandHome forNurses
Subsequentownersincluded:
ThePrudentia AssuranceCompany Limited
JosephBrowneMartin TheCommissionersofH.M.Worksand PublicBuidings(May1923)
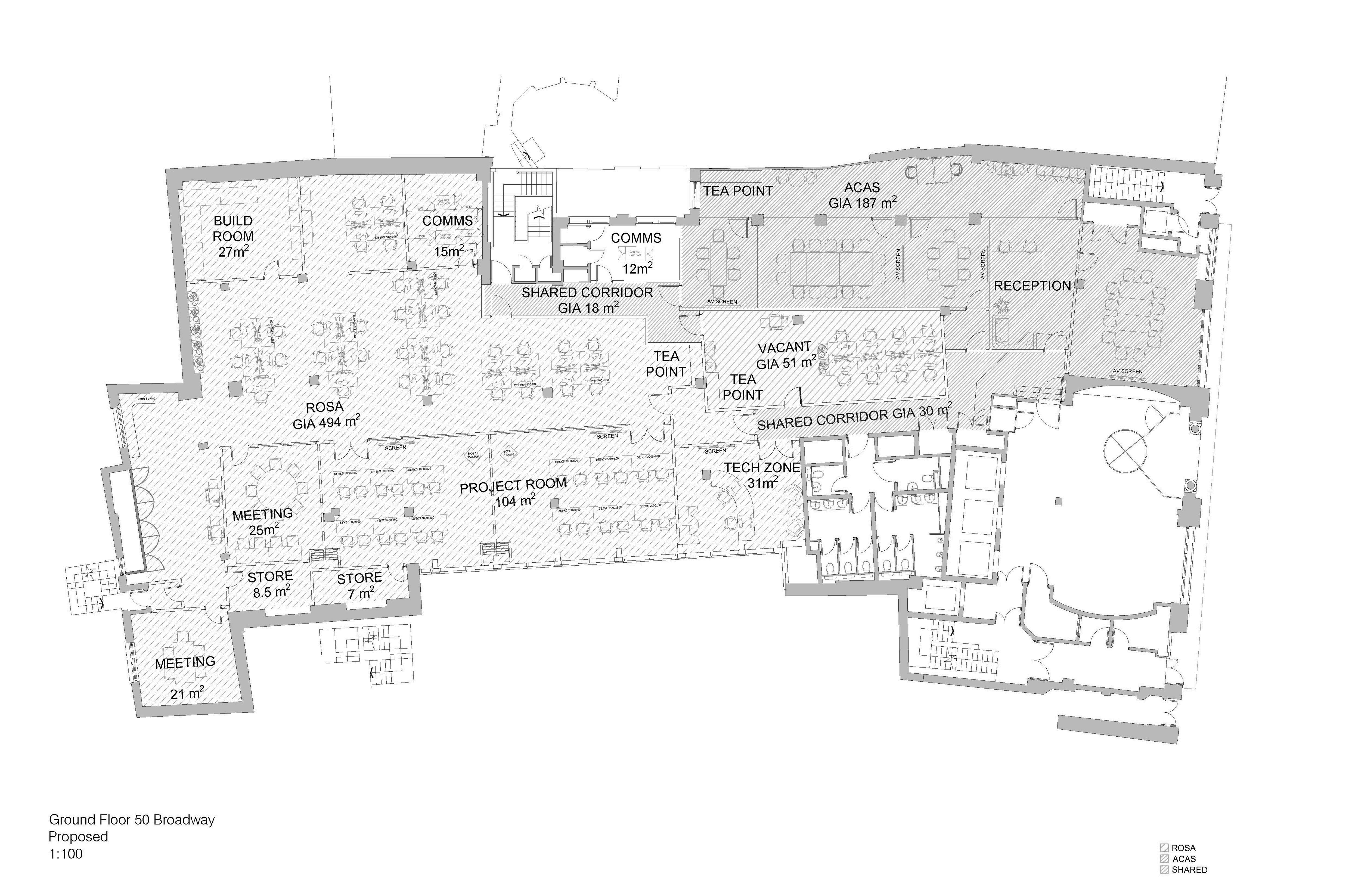
ScopeofWork/Myrole: The50BroadwayStreetproject sanofficerefurbishmentfocusedontheredesgningofthegroundfloorplan ayout TetraTechwasappointeddurngRIBAStage2and3toredesigntheexistngfloorplananddeliver drawingpackagesforbothstages IwasdrectlyinvovedfromRIBAStage3toRIBAStage4:
TechnicalContributions:Produced reviewed,andcoordinatedtechnicaldrawingpackagesforinternalreviewandcientapproval
SiteInspections:Atendedmonthlysiteinspectonsandobservedkeyconstructionmlestones
TeamCoordination:WorkedunderthesupervisionofaPrincpa Architectandcollaboratedwithamultidisciplnaryteam,ManagedBIMcoordnationinRevit,incudinglinkedmodels,synchronzation,and multdsciplinarycollaboration
DESIGNDEVELOPMENT
ExistingGroundFloorGAPlan
Scale1:500
LatestRegistrationDate: 24.09.2021
PropertyDescription:50to64
Broadway,London DateofLease:10092021
Term:20yearsfromand including30June2021

ExistingGroundFloorGAPlanlayoutdetailsketch Scale1:250
RestrictiveCovenants Adeed dated18October2022made between BroadwayJerseyTrustees1 Limited BroadwayJerseyTrustees2 Limited
TheCorporateOfficerOf TheHouseOfCommons CarterVictoriaFreehold Limited
CarterVictoriaLimited containsrestrctivecovenants (Inthecontextof andlaw, covenantsarelegallybinding promisesoragreements writtenintodeedsorleaseslimitwhatthelandownercan dowiththeirproperty)

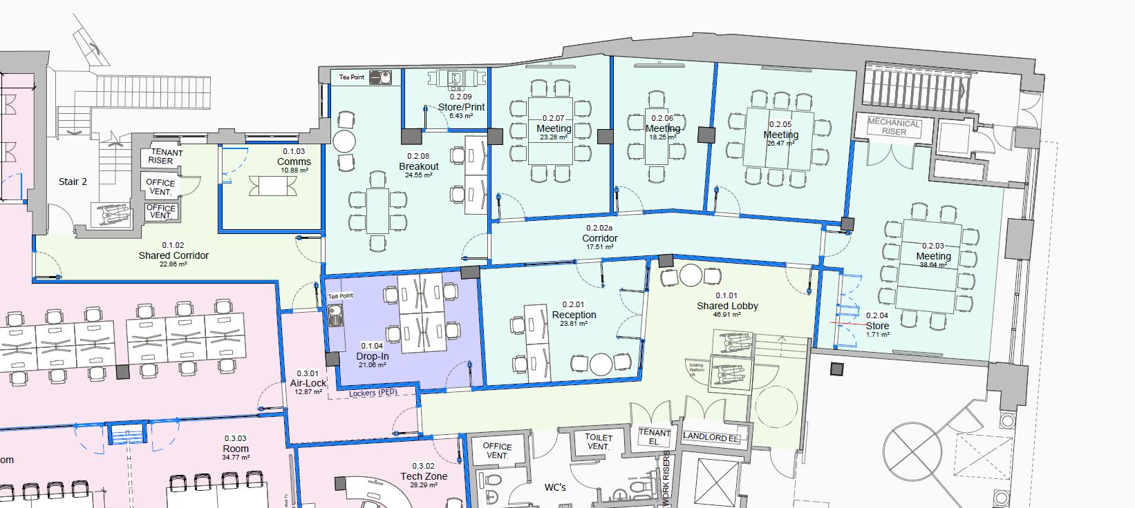
ProposedGroundFloorGAPlan
Scale1:500

ProposedGroundFloorGAPlanlayoutdetailsketch
Scale1:250

RIBASTAGE3/4DELIVERABLES
TheReflectedCeiingPlanwasdeveopedinaccordancetotheProposedGeneralarrangementplan.Thisdesignwas donewhiletakingintoaccounttheductspacerequiredforMEPintheceilng Anotherpractcalaspectthatwas consideredisthedesignofthelayinceiingtilewhichis600mmby600mm ThePlasterboardceilngwasdevelopedto makesuretheLayinceilinggrs saways600mmtoavoidirreguarcuttingoffofthegridwhichwouldresultintie waste/havingtomeasureandcutbespoketilemeasurementsonceonsitepostRIBAStage4








understandingtheconstructonworkthatneeds tobedoneonsitewhilecreatingthedrawingsin stage2,savingtimeeffortandmoneyspenton thetilecountsrequiredonsite



















RIBAStages2-4
Thisofficerefurbishmentprojectprovidedtheopportunitytoworkonthedetaiedcoordinatonofbespokepartitionsystemsdesignedtoextendfromfloorto ceiingwhilemeetingacousticperformancerequirementsandresolvingMEPserviceinterfaces Theprojectrequiredcarefulintegrationofarchitecturaland buildingservceselements,offeringvaluableexperienceintechnicalcoordinationandconstructondetailingwithinaconstrainedrefurbishmentcontext
AsLeadArchitect,ImanagedtheproectthroughRIBAStages3–4,overseengdesigndevelopmentandensuringcompliancewithBuldingRegulations,fire strategyandsecurityrequrementswhilerespondingtoclientobjectives Theroleinvolvedcoordinatingmultidiscpinaryconsultants,leadnginternaldesign revewsandqualityassuranceprocesses,anddelverngcoordinatedarchitecturalpackagesincludngGAdrawings,reflectedceilingplans furniturelayouts finishesschedules,signageandfirestrategydrawngs Thisexperiencestrengthenedmytechnicalapproachtodesigncoordinationandprojectdeivery

ExistingGeneralArrangementPlan

ProposedGeneralArrangementPlan

ExistingRCPPlan

ExistingMEPPlan



InternalGlazedParttionandAcoustcDownstanddetai 110

CashngFCUUnts
InternalGlazedParttiondetail-whereinsuationclasheswithFCUunts above. 110

InternalGlazedDoorPartton-requresadditionalbracngsystem 110
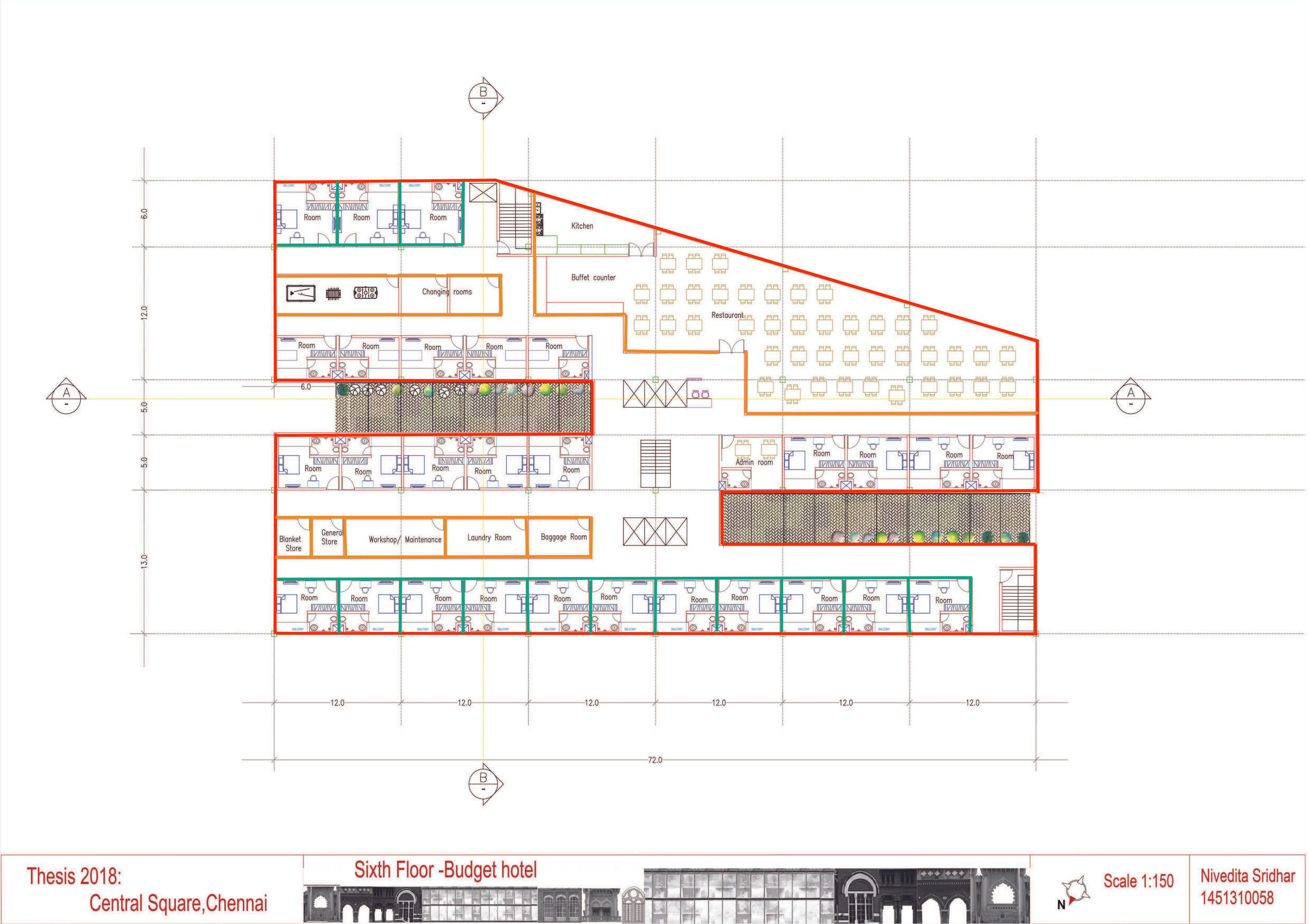
ChennaiMetroStation:MasterPlanning
FeasibilityStudy
Thisstudyinvolvedthedetaileddocumenta anapproximately1kmradiussurrounding stationinChenna,India Thework nclude analytca mappingtounderstandtheurba landusedistrbution,figure-groundreato heights,buildingfootprints,pedestrianwa patterns,streetlightinglocationsanddrain Theresearchinformedthedeveopmentof Development(TOD)proposa aimedatrevi stationandimprovngthefunctionaltyoft urbanenvironment Theproposa focused pedestrianaccessibility,reducingcongestio marketstreetsandactivatingunderutilsed aroundthestaton





ChennaiMetroStation:MasterPlanning
MarketInstallationProposal
AspartoftheTransitOrientedDevelopmentstrategy,atemporary marketinstallationwasproposedtorelocateinformalstreetvendors currentyoccupyingandcongestingsurroundingmarketroads.
The nterventionintroducedmodular4m×4mstal untspostioned atthestreetlevelofthemetrostaton,provdnganorganized platformforhawkerswhleimprovingpedestriancirculationand accessibiity Theproposalaimedtoreducecongestioninthemarket streets,supportlocalvendorsandcreateamorestructuredand enjoyablestreetretailexperienceforcommutersusingthemetro station





Locato :C e a ,Sout da

EcecticArchtecture:CentralSquare(8100m²),Chennai safinalyearstudioprojectatSRMSchoolofArchitectureandInterorDesign Kattankuathur,India Thebriefwaschosenanddraftedbythestudentsbasedonafocusarea Recenty Chennaiwasdeclaredaheritagecityby UNESCO makingitourresponsibiltyto ncorporatetheheritagevaueofthecityandenhanceitsarchtecturalcharacteraswell
MyfocusareainvolvedstudyingsignificantbuildingsandtheirarchtecturalcharacteristicsinChennaitodeterminehowbesttoenhancetheminline withUNESCOsrecognition.
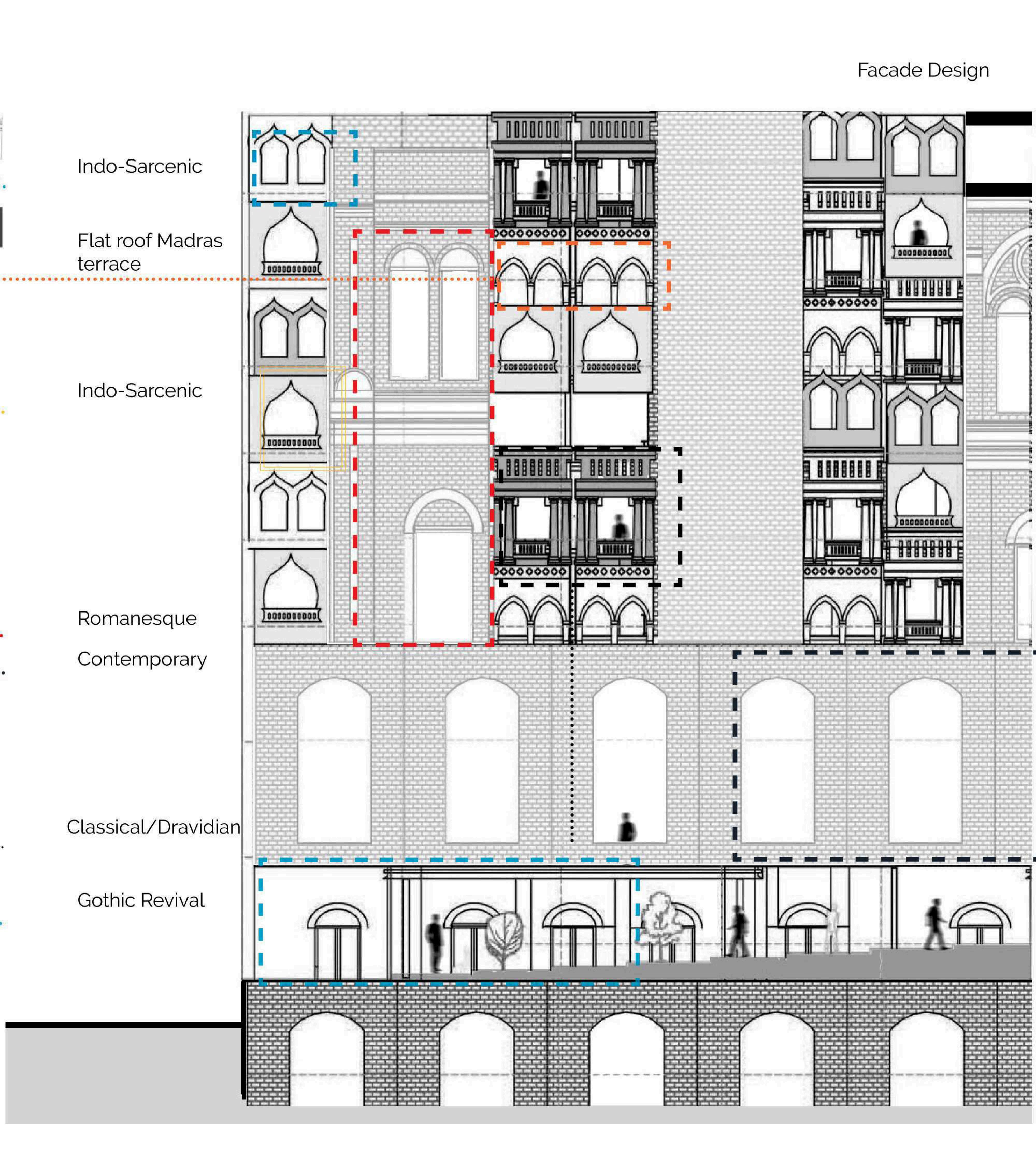
IchoseasitenearChennaiCentra Staton,asymboiclandmarkforSouthInda,featuringheritagebuidngsfromdifferentperiods(1860s-1913) withdiversearchitecturalstylessuchasNeo-Classical,Romanesque,GothcRevival,Classical/Dravidian,Indo-Saracenc Modernwithtraditonal details,andFlatRoofMadrasterrace Theproject'sthrustareainvolveddesigningamaster-plannedmixed-usedevelopment,integrating differentarchitecturalstylesthroughtheyearsandincorporatingthemintothefacade
Thedesgnprojectspanned20weeks,progressingthroughconcept,feasibilty,andproductionphases Todevelopacomprehensivebrief,Iengaged ndscussionswitharchtects,INTACHrepresentatives,andotherexperts,alongsidedata-drivenanaysesofdverseuserneedsandthestesdaily activity Thscolaboratveapproach,coupedwthanexaminationofsurroundingbuildings functona typoogies,providedvaluableinsights nto creatingan nformed data-drivenbriefwhileexploringvariousinvestgativemethodologies Thishasalsobeenreflecteduponpost-graduationto meetUKstandards.
Ar.Abhinaya,UrbanDesgnCollective
ArNivedthaVoyantsConsutantCMDA Architect
ArRajaakshmi,VoyantsConsutant,CMDA ChiefArchitect
DesignnginaccordancewiththeFoorSpaceIndex(FSI)requrementssetby theChennaiMetropoltanDevelopmentAuthority(CMDA)
TheprojectbriefandobectivesestablshedbyVoyantConsultantemphasized heritagesensitivityAdditonaly,rawstatisticaldataandcrucialinformation regardingthestecolectedfromVoyant
Constituentsofthegovernmentproposasdiscussed


PTKrishnan(Referredtoanartclewritten onsubject)
TheimportantofHeritageconservationandhowitcansaveacty,andits hstorydscussed
VSriram,MadrasMusingsHistorian
Theimportanceofheritageconservatonandtsimpactonfuturegenerations werediscussed.Thegovernmentproposalfora33-floorbuldingwascritically debated
Dr.S.Suresh,ConveyorINTACHTamlNaduCasestudyoptionswerecompared,andtheprovisionofamentiesfor stakeholderson-stewasdiscussed
MeenaBhaskaranDYChefPersonnelOfficer SouthernRaiwayHeadquarters
Thefaclitiesofthebuildingandtherpotentialupgradeswerequestioned




Fig4:Photostakenbytheauthorofsomeofthesurroundingbuidngsdurngstevisi




































