Niko Hur 2025 Selected Works

Page 1


NIKO HUR RA, LEED AP BD+C

EDUCATION CORNELL UNIVERSITY MASTER OF ARCHITECTURE 2016

UNIVERSITY OF CALIFORNIA, BERKELEY BACHELOR OF ARTS IN ARCHITECTURE 2012 MINOR IN SUSTAINABLE DESIGN

CONTENT

PROFESSIONAL

LOS ANGELES HARBOR COLLEGE, SOUTHEAST HALL

PROJECT TYPE: NEW CONSTRUCTION, 2-STORY, TYPE-IIB STUDENT SERVICES AND NURSING PROGRAM

WORK

HGA ARCHITECTS AND ENGINEERS, SANTA MONICA CA

ASSOCIATE, PROJECT DESIGNER MAR 2016 PRESENT

DEPARTMENT OF ARCHITECTURE, CORNELL UNIVERSITY, ITHACA NY

TEACHING ASSISTANT | JAN 2015 DEC 2015

BSC ARCHITECTURE, BROOKLYN NY

SUMMER INTERN JUN 2014 AUG 2014

RECOGNITION

NONARCHITECTURE COMPETITIONS, “EATING” - FINALIST

NONARCHITECTURE COMPETITIONS COMMITTEE 2017

AIA DALLAS KEN ROBERTS MEMORIAL DELINEATION - FINALIST

KROB COMPETITION COMMITTE, AIA DALLAS 2016

NONARCHITECTURE COMPETITIONS, “MAKING” - HONORABLE MENTION

NONARCHITECTURE COMPETITIONS COMMITTEE 2016

EISNER PRIZE IN ARCHITECTURE RECIPIENT

EISNER PRIZE COMMITTEE, UNIVERSITY OF CALIFORNIA BERKELEY 2011-2012

RAYMOND L. WATSON PRIZE - RECIPIENT

DEPARTMENT OF ARCHITECTURE, UNIVERSITY OF CALIFORNIA BERKELEY 2009-2010

PROFICIENCY

BIM REVIT

NAVISWORKS AUTOCAD

BIM 360

3D & RENDERING RHINO SKETCHUP V-RAY ENSCAPE GRAPHIC PHOTOSHOP ILLUSTRATOR INDESIGN

DOCUMENTATION OFFICE ACROBAT BLUEBEAM

DELIVERY TYPE: DESIGN-BUILD (IN CONSTRUCTION)

LOS ANGELES SOUTHWEST COLLEGE, STUDENT UNION

PROJECT TYPE: NEW CONSTRUCTION, 2-STORY, TYPE-IIB STUDENT UNION AND DINING PROGRAM

DELIVERY TYPE: DESIGN-BUILD (IN CONSTRUCTION)

UC RIVERSIDE, STUDENT HEALTH & COUNSELING CENTER

PROJECT TYPE: NEW CONSTRUCTION, 2-STORY UNDERGROUND LEVEL, TYPE-IIB STUDENT HEALTH AND COUNSELING PROGRAM

DELIVERY TYPE: DESIGN-BUILD (COMPLETE SEP 2023)

CAL POLY SAN LUIS OBISPO, CENTER FOR CREATIVE ENGINEERING

PROJECT TYPE: PRE-DESIGN & PROGRAMMING STUDY, FABRICATION SHOP AND INSTRUCTION PROGRAM

DELIVERY TYPE: FEASIBILITY REPORT (COMPLETE MAR 2020)

CAL POLY SAN LUIS OBISPO, ANIMAL HEALTH CENTER

PROJECT TYPE: PRE-DESIGN & PROGRAMMING STUDY, TEACHING & CLINICAL PROCEDURE AND SUPPORT PROGRAM

DELIVERY TYPE: FEASIBILITY REPORT (COMPLETE MAR 2020)

CSU BAKERSFIELD, ENERGY AND ENGINEERING INNOVATION

PROJECT TYPE: PROGRAMMING & FEASIBILITY STUDY, ENGINEERING AND NATURAL SCIENCE INSTRUCTION PROGRAM

DELIVERY TYPE: FEASIBILITY REPORT (COMPLETE DEC 2019)

CSU FULLERTON, ENGINEERING & COMPUTER SCIENCE

PROJECT TYPE: PROGRAMMING & FEASIBILITY STUDY, ENGINEERING AND ADMINISTRATIVE SUPPORT PROGRAM

DELIVERY TYPE: FEASIBILITY REPORT (COMPLETE MAY 2019)

CSU DOMINGUEZ HILLS, INNOVATION & INSTRUCTION

PROJECT TYPE: NEW CONSTRUCTION, 4-STORY, TYPE-IIB BUSINESS ADMINISTRATION AND PUBLIC POLICY PROGRAM

DELIVERY TYPE: CM AT RISK WITH GMP (COMPLETE MAY 2022)

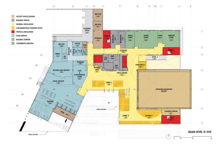
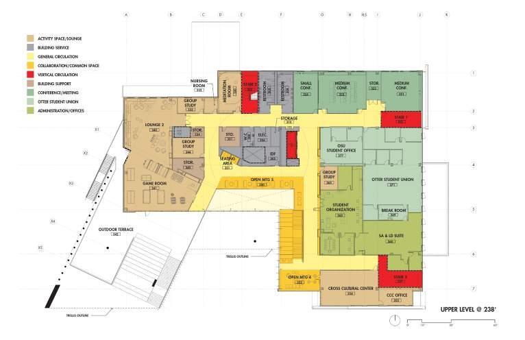
CSU MONTEREY BAY, OTTER STUDENT UNION

PROJECT TYPE: NEW CONSTRUCTION, 3-STORY, TYPE-IIB STUDENT SERVICES, STUDENT DINING, MULTI-PURPOSE PROGRAM

DELIVERY TYPE: DESIGN-BUILD (COMPLETE MAY 2020)

ACADEMIC

VACANCITY

FALL 2015 CORNELL UNIVERSITY

THESIS STUDIO, HONG KONG

FOODTOPIA

SPRING 2015 CORNELL UNIVERSITY

OPTION STUDIO, ALBANY NY

TRANSIT COMPLEX

FALL 2014 CORNELL UNIVERSITY

OPTION STUDIO, DAR ES SALAAM TANZANIA

URBAN MAKER LAB

SPRING 2014 CORNELL UNIVERSITY

COMPREHENSIVE STUDIO, NEW YORK NY

REPRESENTATION

2007-PRESENT

DRAWINGS & SKETCHES, MODELS & SCULPTURE, GRAPHIC DESIGN

LOS ANGELES HARBOR COLLEGE, SOUTHEAST HALL

LOS ANGELES SOUTHWEST COLLEGE, STUDENT UNION

UC RIVERSIDE, STUDENT HEALTH & COUNSELING CENTER

LOBBY & PRIMARY CARE RECEPTION
LINDEN STREET (NORTH) VIEW

3.2 Site Plan

Responding to Program and Site

Responding to Program and Site

The College of Engineering has identified program and support spaces that are required to be on the ground level, some of which also need direct access to the outdoor. By prioritizing

The College of Engineering has identified program and support spaces that are required to be on the ground level, some of which also need direct access to the outdoor. By prioritizing their placement on the given extent of the site, L-shape building form that hugs the existing Engineering 13 Building emerged as the optimal strategy to respond to both the programmatic requirements and the site constraints.

The northeast corner was identified as the primary entry point with potential outdoor plaza. Along the east face of the proposed building, there would be opportunities for building activities and users to spill out for extended making and assembly. The primary service zone would be situated on the south with service access provided off of California Blvd.

Fabrication programs will be located along the western edge of the site with large area of glazing, exposing the interior space and activities to California Blvd. The student work and engineering projects on display will be the new face for the College of Engineering.

PROJECT DETAILS

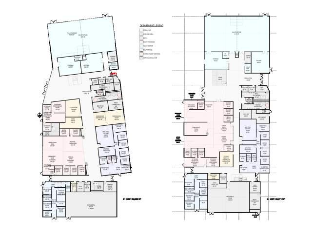
CAL POLY SAN LUIS OBISPO, ANIMAL HEALTH CENTER

CLIENT: CAL POLY SAN LUIS OBISPO, COLLEGE OF AGRICULTURE, FOOD AND ENVIRONMENTAL SCIENCES

AHJ: N/A

BUILDING AREA: 20,400 SF SCOPE OF WORK: PRE-DESIGN AND PROGRAMMING STUDY OF NEW VETERINARY CLINIC AND INSTRUCTION

BUILDING FOR COLLEGE OF AGRICULTURE, FOOD AND ENVIRONMENTAL SCIENCES, INCLUDING PRELIMINARY ARCHITECTURAL,CIVIL, STRUCTURAL, AND MECHANICAL DESIGN. AS PART OF THE REPORT, ROOM DATA SHEETS, COST ESTIMATE, AND SCHEDULING WERE PRODUCED.

PROJECT ROLE: PROJECT DESIGNER

SITE ANALYSIS

ENVIRONMENTAL CONSIDERATIONS

DIAGRAM

SITE FEATURES

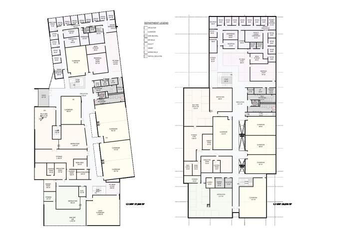
CSU BAKERSFIELD, ENERGY AND ENGINEERING INNOVATION

PROJECT TYPE: PROGRAMMING & FEASIBILITY STUDY, ENGINEERING AND

PROJECT DETAILS

CLIENT: CSU BAKERSFIELD, SCHOOL OF NATURAL SCIENCES, MATHEMATICS, AND ENGINEERING (NSME)

AHJ: N/A

BUILDING AREA: 77,500 SF

SCOPE OF WORK: PROGRAMMING AND FEASIBILITY STUDY OF NEW BUILDING TO HOUSE INSTRUCTION, LABORATORY, FABRICATION SHOP, FACULTY OFFICES, AND ASSEMBLY SPACE FOR SCHOOL OF NATURAL SCIENCES, MATHEMATICS, AND ENGINEERING. THE STUDY TO INCLUDE CONCEPTUAL BUILDING AND LANDSCAPE DESIGN, PROGRAMMING, ROOM DATA, COST ESTIMATE, AND SCHEDULING.

PROJECT ROLE: PROJECT DESIGNER

QUAD VIEW,
QUAD VIEW, DUSK

CSU FULLERTON, ENGINEERING & COMPUTER SCIENCE

COMMONS

INNOVATION & INSTRUCTION

NORTHWEST VIEW FROM DOMINGUEZ HILLS PKWY
ATRIUM VIEW
LOWER PLAZA VIEW (EAST)
OUTDOOR TERRACE, QUAD LEVEL LOBBY
PEARL

THE

EXCEPT

COLUMNS, CIRCULATION CORES AND MECHANICAL/ELECTRICAL

BUILDING BLOCK OF THE

MODULES MAY VARY IN DIMENSION, NUMBER OF FLOORS, AND CAPACITY DEPENDING ON THE PROGRAM. THE GENERAL DIMENSION MAY BE DEFINED BY THE COLUMN GRID BUT NOT NECESSARILY CONFINED TO. MODULAR UNITS THAT MAY FIT INTO ANY BUILDING IN THE DISTRICT OF KWUN TONG WILL BE THE

URBAN INTERVENTION. MODULAR UNITS THAT VARY IN DIMENSION AND PROGRAM WILL GET FURTHER DEVELOPED WITH SPECIFICITY INTO PREFABRICATED UNITS THAT ARE FLEXIBLE, MODIFIABLE, MOBILE AND RECONFIGURABLE. EACH UNIT WITH ITS OWN UNIQUE CHARACTERISTICS WILL START TO OCCUPY VACANT STRUCTURES, GIVING THEM THE “SECOND LIFE”. MODULAR UNITS ARE THUS THEORETICALLY ADJUSTABLE TO ANY CONFIGURA

FOODTOPIA

OF FOOD NEIGHBORHOOD

VISUALIZATIN

SHELVES + BOXES

RETAIL + FOOD VENDORS:

IMPLEMENTATION OF IDEAL SCENARIO:

ALTERATION OF EXISTING ROUTES + ADDITION OF NEW BUS STOPS AND EXPRESS ROUTES FOR NEW “FOODBUS”

- BRINGING BACK THE IDEA OF MODULAR NEIGHBORHOOD FROM IDEAL CITY SCENARIO, EACH FOODSTATION WILL SERVE AN AREA WITH RADIUS OF 500FT, AN IDEAL DISTANCE FOR PEOPLE TO WALK AND PICK - UP GROCERY.

- LOCATIONS AND NUMBER OF FOOD STATIONS ARE BASED ON DISTANCE AND INTERVAL, THUS EACH STATION WILL DEAL WITH VARYING SCALES, POPULATIONS, CONTEXT, AND FOOD DELIVERY CAPACITY.

SHIPPING CONTAINERS

DESIGN STRATEGY: - SYSTEMATIC DESIGN APPROACH USING SHELVES, CABINETS, AND SHIPPING CONTAINERS THAT THEORETICALLY BECAME OBSOLETE DUE TO ELIMINATION OF SUPERMARKETS.

- CELEBRATE AND UTILIZE THE STRICT DIMENSIONALITY AND MODULARITY OF THESE CONTAINERS TO DEFINE SPACE, THRESHOLD, PROGRAM, AND INHABITATION. THROUGH AGGREGATION, THEY ALSO DEFINE ARCHITECTURAL FORM, STRUCTURE, AND CIRCULATION.

URBAN MAKER LAB

GOWANUS CANAL, BROOKLYN

COLLABORATIVE STUDIO

ACCESS TO GOWANUS CANAL
SATHER
KOUENJI HOUSE INK ON BRISTOL, 2” x 4” 2007
JAMIE RESIDENCE INK ON BRISTOL, 2” x 3” 2008
HOUSE ON HIGHLAND AVENUE INK ON BRISTOL, 1” x 5” 2008
x
DOE LIBRARY, UC BERKELEY
ON BRISTOL, 14” x 21”
BANK OF CHINA, HONG KONG
ON BRISTOL, 7” x 7”

MODELS & SCULPTURE

PROJECT FOCUSES ON THE ARTICULATION OF PRIMITIVE FORMS INFLUENCED BY NATURE AND SHAPED BY A GENERATIVE PROCESS. DRAWING FROM GEOLOGICAL PRECEDENTS THAT ARE INTRINSICALLY INFORMED BY SCIENCE YET ORGANIC AND UNPREDICTABLE, THE MODELS SEEK TO RELEASE THE POTENTIAL ENERGY FROM THE RIGIDITY OF THE PRIMITIVE FORMS AND CREATE TENSION BETWEEN THIS MOVEMENT AND ITS BOUNDARIES. THE PRECEDENTS INFORMED THE OPERATIONS ENACTED UPON THE PRIMITIVE FORMS. THE MODELS THAT RESULTED ARE MANIFESTATIONS OF REACTIONS TO A FORCE: EXCAVATION, SEDIMENTATION, GROWTH, TWISTING, ROTATION, WEATHERING, CRYSTALLIZATION, PUNCTURE. SUCH GENERATIONS IMPLY KINETIC MOVEMENT AND TENSION ARISES FROM THIS FROZEN MOMENT IN TIME - THE MODELS ARE COMPROMISE BETWEEN THE ORIGIN, AND RELEASE FROM ARCHAIC FORM.

DIGITAL TRANSLATION AND REPRESENTATION OF PHYSICAL PROCESSES AND GEOLOGICAL CONDITIONS MATERIAL STUDY USING PAPER,

STRUCTURAL SYSTEMS FALL 2013 CORNELL UNIVERSITY

TWO LOAD BEARING SUSPENSION STEEL CABLES AND THE NATURAL CURVATURE THEY CREATE ARE THE PRIMARY FEATURES THAT DICTATE THE BUILDING’S UNIQUE DESIGN. SELF - SUPPORTING ROOF STRUCTURE SHELTERS THE INTERIOR SPACE, WHICH ALSO ACTS AS BRIDGE OVER ARTIFICIAL WATERFALL. CAREFUL STUDY OF THE BUILDING’S UNIQUE STRUCTURE, MATERIAL, AND ASSEMBLY WAS CARRIED OUT IN ORDER TO FULLY UNDERSTAND THE STRUCTURAL SYSTEMS OF BUILT PROJECT, FOLLOWED BY PRECISE REPRESENTATION/RECREATION OF THE ARCHITECTURE AT A MODEL SCALE.

GROUP PROJECT WITH ALLEN CHHAV, M. ARCH 15’

MOLD + ROCKITE CASTING
MINIATURE GLULAM
PRECISION + DETAIL
EXHIBITION
CRYSTAL BRIDGES MUSEUM OF AMERICAN ART, BENTONVILLE, AR DESIGNED AND COMPLETED IN 2011 BY SAFDIE ARCHITECTS

GRAPHICDESIGN

NONARCHITECTURE COMPETITIONS “EATING”

NONARCHITECTURE COMPETITIONS “MAKING”

NONARCHITECTURE COMPETITIONS COMMITTEE 2016

SELECTED AS ONE OF TWELVE HONORABLE MENTION SELECTIONS FOR THE ENTRY ‘MACHINAPOLIS’. A CONCEPT FOR AN ALTERNATE FACTORY TYPOLOGY WHERE THE ARCHITECTURE ITSELF BECOMES THE MACHINE AND VISE VERSA

Turn static files into dynamic content formats.

Create a flipbook
Issuu converts static files into: digital portfolios, online yearbooks, online catalogs, digital photo albums and more. Sign up and create your flipbook.