Architecture Portfolio ARB RIBA Part 2 Nicolas Ap Iwan

Page 1

PORTFOLIO

Nicolas Ap Iwan

WORK EXPERIENCE

NICOLAS AP IWAN

PROFILE

28-year old architectural assistant

CONTACT

Kingston upon Thames, London, KT2 6RZ 07442878718

ILLUSTRATOR SKILLS

ARCHITECTURAL ASSISTANT: L+ ARCHITECTS

Responsibilities included being an architectural assistant:

ARCHITECTURAL ASSISTANT: OFICIA WORKPLACES

March 2022 -August 2022

Responsibilities included being an architectural assistant:

TECHNICAL / COMMERCIAL SUPERVISOR: VENTUM

Preparing quotations; Technical detail of projects; May 2021 - March 2022

Responsibilities included being a technical and commercial

PROJECT DESIGNER: ELIZABETH MONTERO ARCH.

January 2021 - May 2021

Responsibilities included being a Project architect: layout and interior design.

DESIGN INTERNSHIP: GES DEVELOPER

January 2018

EDUCATION

MASTER OF ARCHITECTURE - KINGSTON UNIVERSITY

September 2022 - June 2024

Kingston University, London, UK

POSTGADUATE IN LANDSCAPE ARCHITECTURE

February 2021 - July 2022 University of Buenos Aires, Argentina

BACHELOR’S OF ARCHITECTURE

March 2014 - December 2020 University of Buenos Aires, Argentina

LUMION
REVIT
InDesign

Selected Works

SELECTED WORKS 2014-2024

Restored Spaces: Office Units, London

ACCESSIBLE OFFICE DESIGN: Office units, London

IDENTITY:

Stratford Art Gallery, London

Art Fusion: Art Gallery, London

CIVIC AND HISTORIC RENOVATION: Master Plan in Tigre, Argentina

From Factory to Future: Faculty building, Sheffield

RAISING UP:

Annual “SOS Cities” in Valparaiso, Chile Architecture and urban competition.

Appendix: Complementary works

APPENDIX: Complementary design works

CONTENTS
01
02 03 04 05 CONTENTS
01 02 03 04

Restored Spaces: L+ Architects

ACCESSIBLE OFFICE DESIGN : L+ Architects

Committed to safeguarding London's industrial heritage, engaging in the restoration and conversion of a former brewery building that holds Grade II listed status.

Committed to safeguarding London’s industrial heritage, engaging in the restoration and conversion of a former brewery building that holds Grade II listed status.

02 01
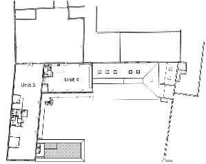
Industrial Heritage Exploded Axonometric, 1:100 Axonometric view Unit 4
Unit 5 Unit 3B Unit 2 Unit 3A

Units : Ground Floor

Units : Ground Floor

Ground Floor Plan, Units location 1:200

First Floor Plan, Units location 1:200

Units : First Floor (FL10,90)

Units : First Floor (FL10,90)

Built-In Storage, Isometric View, 1:20

Storage Plan View, 1:20

Mezzanine Floor Plan, 1:20

Stairs Front Elevation, 1:20

Unit 4 perspective Unit 2 perspective Unit 2 perspective Unit 4 perspective
Unit 5 perspective Unit 3 perspective Unit 5 perspective Unit 3 perspective

Art Fusion:

Studio Work

The building reflects the evolving dynamic of Stratford, East London. It is designed to be respectful to its surroundings and to attract people to the site with activities related to arts, culture, and leisure.

02

Local Context:

There is a complexity of different layers that are analysed in the design. From the public space, the in front of the Gallery, the characteristic factories, and the importance of the high street.

Within a wider environmental context, the project reacts with the surrounding landscape. The proposal incorporate itself with the local town’s centre history, creating a dialogue between both.

Heritage and Culture

Heritage and cultural Memory: Constructions

Accessibility:

Heritage and cultural Memory: Constructions

There is a complexity of different layers that are analysed in the design. From the public space, the in front of the Gallery, the characteristic factories, and the importance of the high street.

Accessibility:

Relationship

Relationship

Accessibility Buildings City +

in front of the Gallery, the characteristic factories, and the importance of the high street.
High Street Thames River Mill Meads Aerial view of Stratford

the train station

to preserve

Constructions to preserve:

Constructions to preserve:

proposal will seek to the train station

City-River:

Bicycle paths

Bicycle path:

Bicycle path:

City-River:

+ River

Public space relationship:

Public Space

Public space relationship:

Aerial view of Stratford, London Borough of Newham Aerial view of Stratford, London Borough of Newham West Ham Park Queen Elizabeth Olympic Park Aerial view of Stratford, London Borough of Newham Queen Elizabeth Olympic Park
Ground Floor Plan (+0,28m) 1:200

Floor Plan (+4,50m)

1:200

Construction Sequence:

Construction Sequence:

1. The current utilization rate is very low, and the individual buildings on the site are isolated and disconnected.

2. Determine the scope of renovation. Conserve the exterior walls and structure of the existing buildings.

Abandoned building Temporary parking Railway Religious African Congregation
3. Programmatic the Gallery are South and West
2.
1.
References: 3.
4.
8. Concrete Slab 6. Deck - Substrate 9- Concrete Beam 300x600mm Substrate
Vegetation
Filter fleece DSE Board 12. Polished Concrete Floor 11. Framed aluminium window 10. Glulam Column with bottom knife plate 225mm x 225mm
5.
1 2 3 4 5 6 7 8 9 10 11 12
7. Timber crossed-section beam 200mm x 600mm Edge retention / drainage trim

Extensive Green Roof

Conserve original walls

Structural Connection

Isometric View 1:20

3D Isometric Drawing

Programmatic functions of are located on new West buildings.

4. A new grid embraces the abandoned constructions

5. Both the existing and the new buildings are linked by a timber structure and a Green Roof

South-West Elevation, 1:200

South-East Elevation, 1:200

Detail, 1:20

Section A-A’, 1:200

Section B-B’, 1:200

New timber structure and reclaimed building

Auditorium perspective

Flexible utilisation of space

Gallery under Concrete Extention

From Factory to Future:

Final degree project

The new faculty building is located in the post-industrial landscape of Don Valley in Sheffield. Designed from collective spaces, the project encourages community participation. The design of the building takes into consideration the existing layers of the past and the old sheds on the site.

03

Site Plan 1:5000

Site with the surrounding context 1:500

TinsleyCanal IKEA Sheffield Forgemasters Meadowhall DonRiver Don Valley Bowl
0 25 50 100 200
Tram

Introduction to the site:

Currently, the site is underutilized and is surrounded by several scrap yards and auto parts shops. The construction materials were chosen to complement the area, the building also aims to showcase Sheffield’s history of steelmaking to visitors, while reflecting the city’s evolving focus on new technologies and teaching dynamics.

Echoes of Industry Images of the Lower Don Valley

Industrial Legacy Exploded Axonometric, 1:100

Construction Detail

Existing detail between sheds, 1:20

0 1 2
Workshop Interactive Workshop 1 110m 110m WC BUS 62m 80m COMMUNITY REGENERATIVE Public Lobby WC 75m Interactive Workshop 110m 03 02 01 04 BUS STOP
GF Plan 1:200
55m OPEN 1 2 5 0 FRONT ELEVATION

Mezzanine Plan 1:200

BUS BUS STOP 03 02 01 04 COMMUNITY Workshop Interactive Workshop 1 110m 110m WC 62m REGENERATIVE Public Lobby WC 75m Interactive Workshop 110m COLLABORATION
OPEN ROOM 3 70m Collaboration Space 1 2 5 0 FRONT ELEVATION

Site proposal

Urban Axonometric of the Don Valley

View towards Clifton Road

Rendering proposal

View towards Attercliffe Road Rendering proposal

West facing Section: Perspective Section, 1:200

South facing Section: Perspective Section, 1:200

Care
its
and Contemplating
and
respect future occupation

Detail 1:20

2-

3- OSB layboard

4- insulation

5-

6- interior finish

7-

8-

1 2 3 4 5 6 7 8 10 9 11 12 14 15 16 17 18 20 21 22 23 19
1- Zinc standing seam roofing waterproof membrane vapour control layer Existing Steel purlins
13-
15-
18-
20-
Primary Steel frame
9-
Mezzanine floor finish
10-
Mezzanine flooring 11- Timber Framed mezzanine
12-
Glulam column Stiffeners
14-
Existing steel column, painted Vapour control layer
16- Insulation 17- Waterproof membrane
Timber handrail
19-
Existing staircase Floor finish over heating pipes

27-

28-

24 25 26 27 28 29 30 31 32 33 34
21- Ground slab 22- Sub-base 23- Brick footing on concrete foundation 24- Bronze panel cladding
25-
Glulam column
26-
CLT beam Insulation over structure
32-
33-
34-
OSB layboard
29-
Zinc Standing seam roofing
30-
column on footing 31- Anchor point Base plate Concrete foundation Dowels

Resilient Structures

Axonometric drawing, 1:100

Urban Acupuncture Exploded Axonometric

APPENDIX: Complementary design work

Linford Office:

Linford Office:

L+ Architects 08.2023

L+ Architects 08.2023

APPENDIX: Complementary design work

Byeways House:

Byeways House:

Civic Hub: Study Work 09.2020

L+ Architects 06.2023

L+ Architects 06.2023

Linford Office:

RENDER VIVIENDA:

Covid-19 Memorial:

L+ Architects 08.2023

Dodero Architects Honorable mention 07.2022

Civic Hub: Study Work 09.2020

05
04

Rosmi:

Bio Corridor Masterplan:

Oficia Workplaces 08.2022

Municipality of Trenque Lauquen 06.2021

Cultural Complex:

Royal Canin:

Study Work 12.2019

Alumine House:

Oficia Workplaces 05.2022

Dodero Architects 03.2020

Bio Corridor Masterplan:

Supply Solutions:

Municipality of Trenque Lauquen 06.2021

Oficia Workplaces 03.2022

Cultural Complex:

Study Work 12.2019

Turn static files into dynamic content formats.

Create a flipbook
Issuu converts static files into: digital portfolios, online yearbooks, online catalogs, digital photo albums and more. Sign up and create your flipbook.
Architecture Portfolio ARB RIBA Part 2 Nicolas Ap Iwan by Nicolas Ap Iwan - Issuu