Nicholas MacIntyre - (2023-2024)

Page 1

PORTFOLIO

Nicholas MacIntyre

Education

SCI-Arc (Southern California Institute of Architecture)

Bachelor of Architecture 2022

SCI-Arc (Southern California Institute of Architecture)

Pop-Arc Class of 2019

Work Experience

No Eevil Exhibition - Los Angeles, CA

Jan 2023 - March 2023

Apprentice/Intern

Constructing Jennifer Chen’s SCI-Arc Exhibition

Southern California Institute of Architecture - Los Angeles, CA

July 2022 - Aug 2022

Assistant Teacher

Teaching the international ACG program with Natou Fall

Hoechitecture Studios - Los Angeles, CA

October 2021 - 2023

Apprentice/Intern

Sculpture: “Surreal SeaWorld”

Je Blanc - Los Angeles, CA

October 2021 - November 2021

Complexcon Booth Design under Hoechitecture Studios

Sculpture: “Seated in Stone”

Booth: “Je Blanc”

The Colectve (Student Led Design Firm) - Brampton, ON, CAN

September 2016 - 2020

Co Founder

NOMAS (National Organization of Minority Architects Students) - Los Angeles, CA

December 2021 - Current

Member/Voulenteer

Chris Kwock (World Chocolate Master) - Brampton, ON, CAN

October 2018 - July 2018

Apprentice

3D printing, Moulding and casting

Chocolate Sculpture: “Futropolis”

Make + (Make Plus) - Los Angeles, CA

November 2021 - December 2021

Intern/Fabricator

RCSCC Illustrious (Royal Canadian Sea Cadet Corps)

Brampton, ON, CAN

September 2016 - December 2020

Rank: Petty Officer Second Class (Po2)

Instructor

SEVA Food Bank - Brampton, ON, CAN

September 2016 - 2020

Daily Voulenter

Skills

Languages: English, Spanish,French

Proficient in the following software and applications:

Rhino, Unreal Engine, VRay, Revit, Fusion, Solidworks, Blender, Adobe Creative

Suite (Illustrator, Photoshop, InDesign, AfterEffects, Premier).

3D Printing, Laser Cutting, Machining, Woodcraft.

Strong Communication, Discipline, and Leadership skills

Profficient concept developement skills.

Analog modeling skills, proficient in the following materials: silicone (various kinds), foam-core, wood, polyurethane, paper, 3D print, plaster, clay, chocolate

natural ingredients, Steel.

Awards

Student Scholarship (SCI-Arc)

September 2021

Espirit de Corps (RCSCC Illustrious)

June 2019

Top Cadet (Connaught, Military Primary Training Centre)

Aug 2019

Exhibitions

SCI-Arc Spring Selection (Spring Semester)

April 2023

SCI-Arc Spring Selection (Fall Semester)

April 2022

SCI-Arc Spring Selection (Spring Semester)

April 2022

Complex Con (Je Blanc, Hoechitecture and Commun Conduct Booths)

Nov 2021

References

Jennifer Chen

Studio Professor at Sci-Arc

Jennifer_Chen@sciarc.edu

Phone: 213-524-8536 Email: NicholasMacIntyre98@gmail.com

Linked In

CV

BALANC3

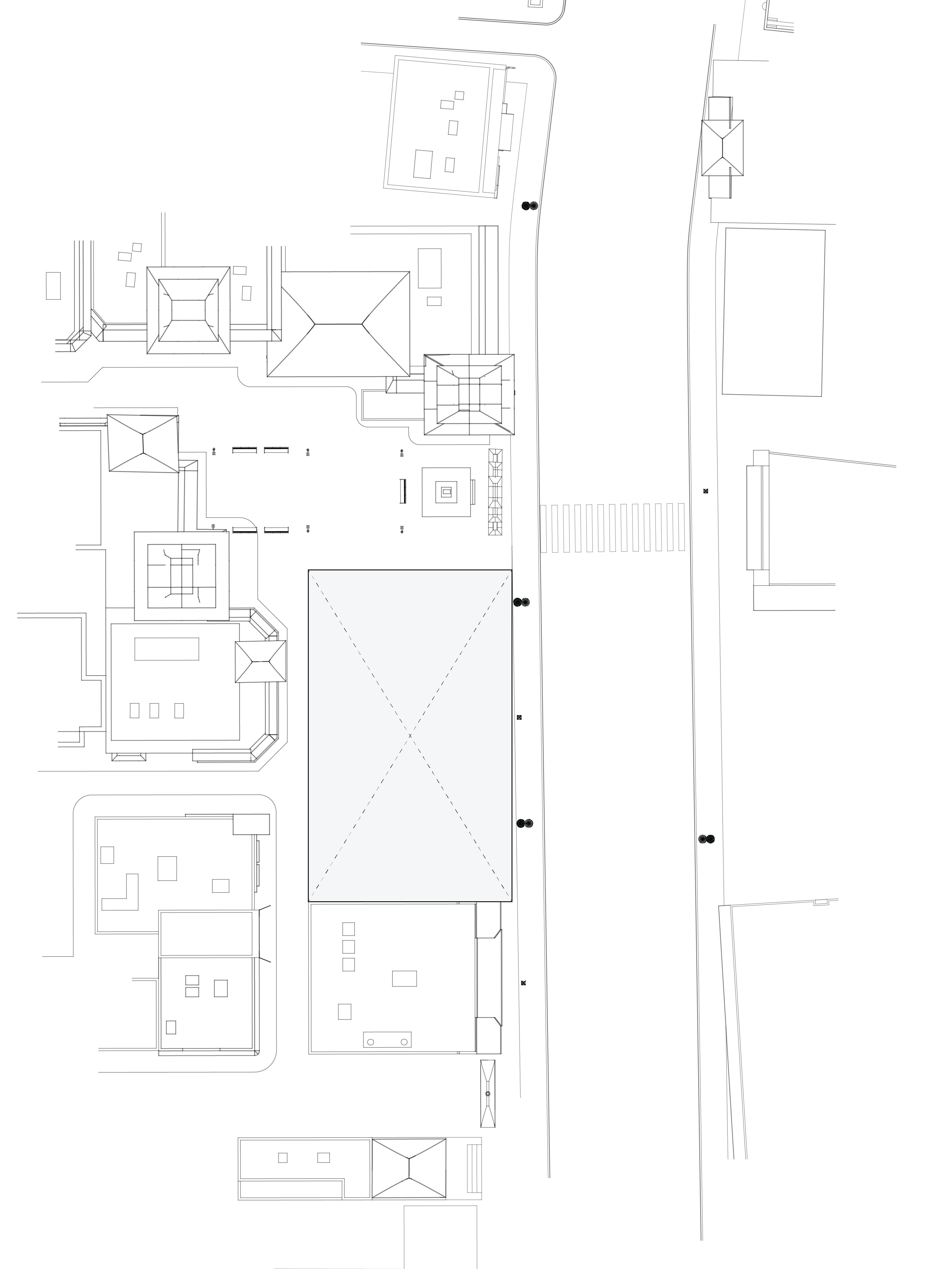
BALANC3 explores the ever growing conversation between analogue and digital, highlighting the potential co-existence of our digital and analogue realities. Located in Downtown Los Angeles, The structure acts as both a library and data center. The architecture of the structure is a documentation of how we know analogue and digital. The analogue expresses freedoms, artistic inefficiencies, and flaws. The digital; restriction, maximum efficiency, and beyond physical form. BALANC3 focuses on spaces that allow for the two to not only affect each other but encourage a harmonized spatial conversation in program and experience. The most prominent of such is the use of infrastructure. Clearly visible in the garden, where the massive Infrastructure of the data center, HVAC, and cooling systems not only line the walls but in some cases act as sculpture and spatial objects. But furthermore to be seen as an object of beauty in the same way a flower from a typical garden is seen and felt. Serenity not created by the gentle breeze or by a flower field, but rather a garden of slow spinning fan blades, and the gentle humming of the HVAC.

4
Nicholas MacIntyre
BALANC3 Studio 2B 5 BALANC3 Studio 2B
6
Nicholas MacIntyre
Studying The Digital Deconstruction of The Image Kim Asendorfs ; Pixel Sorting Moment Models, Designed to Capture Spatial Conversations Found in The Pixel Sorted Image
BALANC3 Studio 2B 7
Plan Drawing 45’ Plan Drawing 15’
Street View Section Drawing
Nicholas MacIntyre
BALANC3 Studio 2B
10
Nicholas MacIntyre Still from “FINDING BALANC3” - Server Room Still from “FINDING BALANC3” - Library’s Open Stack
BALANC3 Studio 2B 11
Still from “FINDING BALANC3” - Reading Space Still from “FINDING BALANC3” - Garden Space Nicholas MacIntyre Still from “FINDING BALANC3” - Garden Space
BALANC3 Studio 2B

...ALMOST

ALMOST is a study of spatial intimacy, exploring vast and extremely tight sensations of space through contrasting program and form. The large rusted blades seemingly pierce the school, becoming both individual objects and one, through proximity to not only one another but also the relation of the viewer to the form. Behaving as a rooftop learning space, the blades separate spaces and begin to function not only as walls but as objects that cut, hide, and bend space. Certain moments the blades span 8’ apart from one another yet bend to form a 3’ bottleneck, almost too close to walk through. Contrasting the completely open floor plan of the classrooms and learning spaces below. The primarry School, located in Boyle Heights Los Angeles, is designed to encourage space to be treated not as non-existent but rather an invisible solid that is defined and shaped by walls, roofs and ceilings.

14
Nicholas MacIntyre
15 ...ALMOST Studio 2A
16
Nicholas MacIntyre Focusing on the local architecture’s use of intimate spaces throughout the neighborhood Site Study Diagram
...ALMOST Studio 2A 17
Foam Concept Model
18
Nicholas MacIntyre Roof Massing model Directional Study Diagram Focused on intersecting form and its creation of intimate space
...ALMOST Studio 2A 19
Roof Massing Model
20
Drawing 10’
25’
Plan
Plan Drawing
...ALMOST Studio 2A 21
Massing Render Nicholas MacIntyre Courtyard view into the 3rd and 4th grade Classrooms. 2nd Grade classroom stairs leading to the outdoor play space Model Renders
...ALMOST Studio 2A 23
View of the Rooftop Garden Nicholas MacIntyre East Courtyard, View of the East Building hall space and courtyard
...ALMOST Studio 2A

STEP & “STEP: 1”

Step & “Step: 1” is a developing project that explores the moment in which the unquantified, free movement of humans becomes defined in space while simoultaniously defining that same space. The study of “the step” (physical), heavily inflences the form of the structure through a design based on the annotation of motion. The structure is inhabbited by both a market space as well as dance studio. Both use “the step” in different ways, the market in means of arriving, touching, and collecting. In dance it is used as a means to achieving a specific experience, a specific language expressed through motion. Step & “Step: 1” is a project dedicated to the co-existance of “The Step.”

26
Nicholas MacIntyre
27 STEP & “STEP: 1” Studio 1B
Nicholas
28 1 4 7 10 2 5 8 11 3 6 Still Frames Focusing on Doccumentng “The Step” 9 12
MacIntyre
STEP & “STEP: 1” Studio 1B 29
Frame By Frame Study of The Step Diagram Studying the 2D Form of “The Step”
30
Nicholas MacIntyre 3D Form Study, Derrived From 2D Diagram
STEP & “STEP: 1” Studio 1B 31
Paper Section Model Internal Tented and Ejected Figure Studies
32
Nicholas MacIntyre Massing Papper Model
STEP &
1” Studio 1B 33
“STEP:
Site Diagram
34
Nicholas MacIntyre 4’ Plan Drawing 24’ Plan Drawing
1” Studio 1B 35
STEP & “STEP:
Model Photo - Top
36 Front Section Cut Right Section Cut
Nicholas MacIntyre
37
STEP & “STEP: 1” Studio 1B
Model Photo - Frontside, Removed roof Nicholas MacIntyre Model Photo - Backside, Looking into the Dance studuo and market
&
1” Studio 1B
STEP
“STEP:

“ACID BOOM”

ACID BOOM is a sharp, fuzzy, loud, and slightly obnoxious language. That uses material and form to express these characteristics. I explored forms that I encounter in day to day life, and studied them to create a unique language. This furthers the ever-growing conversation between form and its relationships to space. ACID BOOM is focused on the study of these objects and furthering our relationship to space influenced by the plasticity of objects. Through the use of materials used to construct the “world” we rediscover the negative space as volume through form.

40
Nicholas MacIntyre
41 “ACID BOOM” Studio 1A

2D Graphic Collection

Studying and combining artworks and architecture from Corbusier, Robert Rauchenberg with anime core style imagery. Studying formal and material relations across mediums and styles.

Nicholas MacIntyre
“ACID BOOM” Studio 1A 43

Material Study

A material Study of the forms and materilas used in the Graphic Collection.

Nicholas MacIntyre
“ACID BOOM” Studio 1A 45
Nicholas MacIntyre Model Photos 2’x2’x4’ Model
“ACID BOOM” Studio 1A 47
48
Nicholas MacIntyre
Model Photos - Front
“ACID BOOM” Studio 1A 49
Model Photos - Back Nicholas MacIntyre 2023-2024

Turn static files into dynamic content formats.

Create a flipbook
Issuu converts static files into: digital portfolios, online yearbooks, online catalogs, digital photo albums and more. Sign up and create your flipbook.