Nicholas MacIntyre Portfolio 2025-2026

Page 1


Education

SCI-Arc (Southern California Institute of Architecture) Bachelors of Architecture Graduating class of 2026

SCI-Arc (Southern California Institute of Architecture) Pop-Arc Class of 2019

Work Experience

Zeno Renewables

Apr 2024 - Aug 2024

Sales Representative

Selling Residential Solar Systems

Southern California Institute of Architecture - Los Angeles, CA

Teaching Assistant Writing I Sep 2022 - Apr 2023

Teaching Assistant Writing II Sep 2022 - Apr2023

Teaching Assistant Rhetoric Sep 2024 - Dec 2024

Teaching Assistant Writing II Jan 2025 - Current

No Evil Exhibition - Los Angeles, CA

Jan 2023 - March 2023

Apprentice/Intern

Constructing Jennifer Chen’s SCI-Arc Exhibition

Southern California Institute of Architecture - Los Angeles, CA July 2022 - Aug 2022

Assistant Teacher

Teaching the international ACG program with Natou Fall

Je Blanc - Los Angeles, CA October 2021 - November 2021

Complexcon Booth Design under Hoechitecture Studios

Sculpture: β€œSeated in Stone” Booth: β€œJe Blanc”

The Collective (Student Led Design Firm) - ON, CAN September 2016 - 2020

Co Founder

NOMAS (National Organization of Minority Architects Students) - Los Angeles, CA

December 2021 - Current

Member/Voulenteer

Chris Kwock (World Chocolate Master) - ON, CAN October 2018 - July 2018

Apprentice

3D printing, Moulding and casting

Chocolate Sculpture: β€œFutropolis”

Make + (Make Plus) - Los Angeles, CA November 2021 - December 2021

Intern/Fabricator

Skills

Languages: English, Spanish, French Proficient in the following software and applications: Rhino, Revit, VRay, Fusion, Solidworks, Blender, Adobe Creative Suite (Illustrator, Photoshop, InDesign, AfterEffects, Premier). 3D Printing, Laser Cutting, Machining, Woodcraft.

Strong Communication, Discipline, and Leadership skills Profficient concept developement skills.

Analog modeling skills, proficient in the following materials: silicone (various kinds), foam-core, wood, polyurethane, paper, 3D print, plaster, clay, chocolate natural ingredients, Steel.

Awards

Student Scholarship (SCI-Arc)

September 2021 - Current Gruen Scholarship (SCI-Arc)

September 2022 - Current1

Espirit de Corps (RCSCC Illustrious)

June 2019

Top Cadet (Connaught, Military Primary Training Centre)

Aug 2019

Exhibitions

SCI-Arc Spring Selection (Spring Semester)

Spring Semester Apr 2024

Spring Semester Apr 2023

Spring Semester Apr 2023

Fall Semester Apr 2021

Complex Con (Je Blanc, and Commun ConductBooths) Nov 2021 - Dec 2022

References

Jennifer Chen Studio Professor at Sci-Arc

Jennifer_Chen@sciarc.edu

Phone: 213-524-8536

Email: NicholasMacIntyre98@gmail.com

Linkedin
1_ SCI ARC EXTENSION
2_KIHID CENTER

3_ 50’ NEIGHBORHOOD

TABLE OF CONTENT

1_SCI ARC EXTENSION

2_KIHID CENTER

3_ 50’ NEIGHBORHOOD 1 15 31

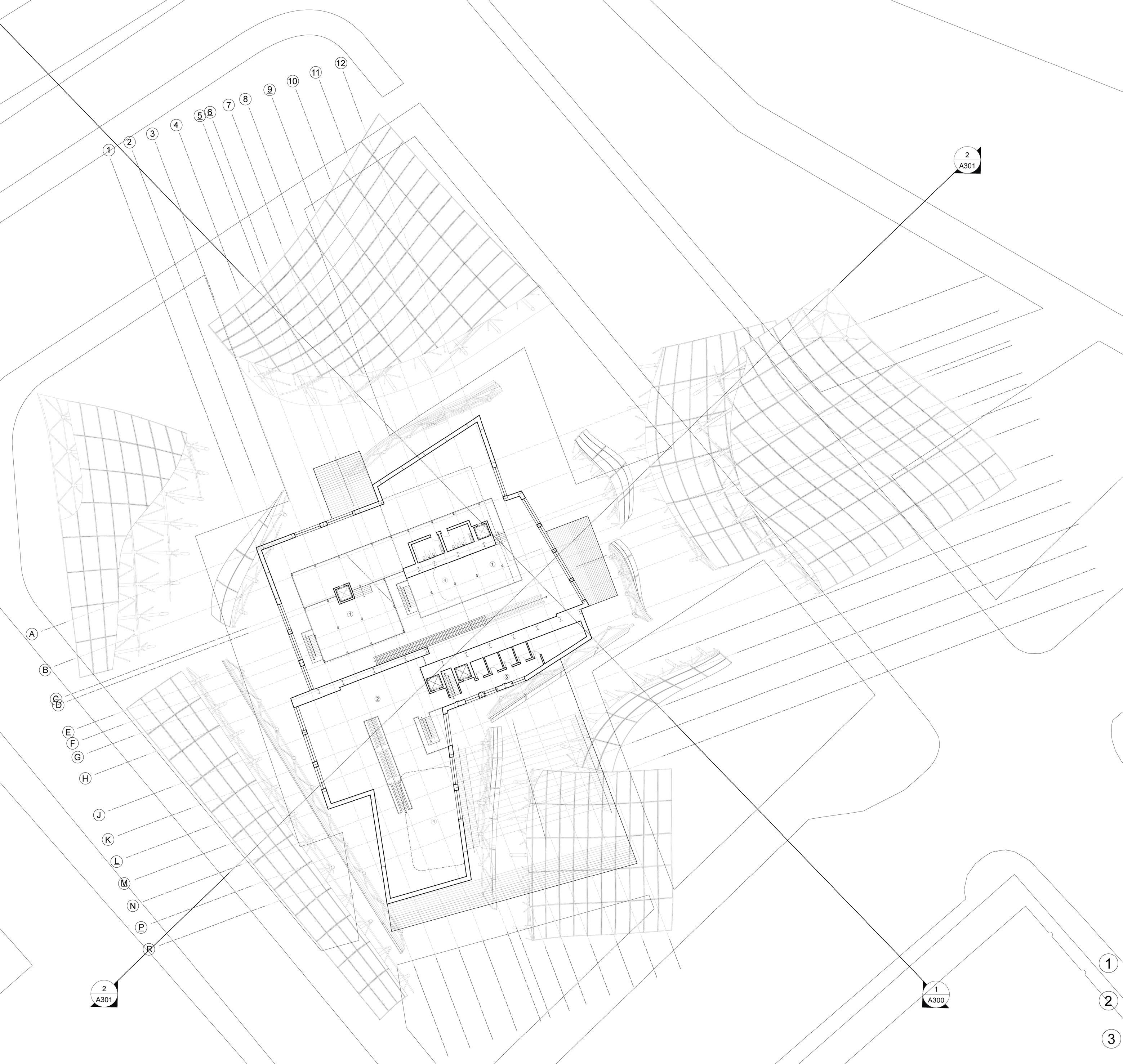
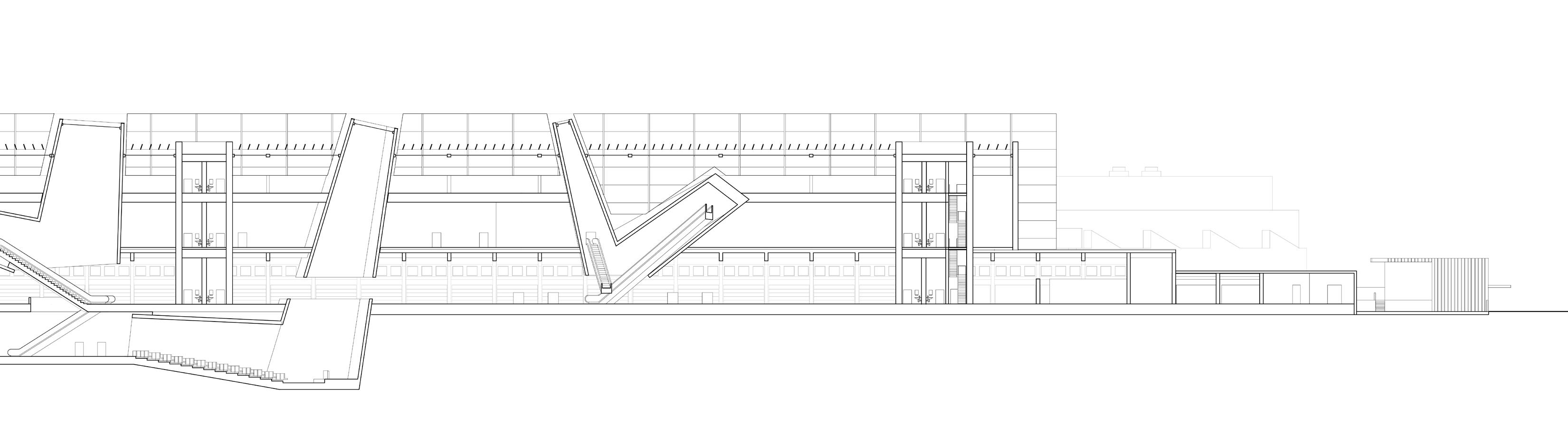
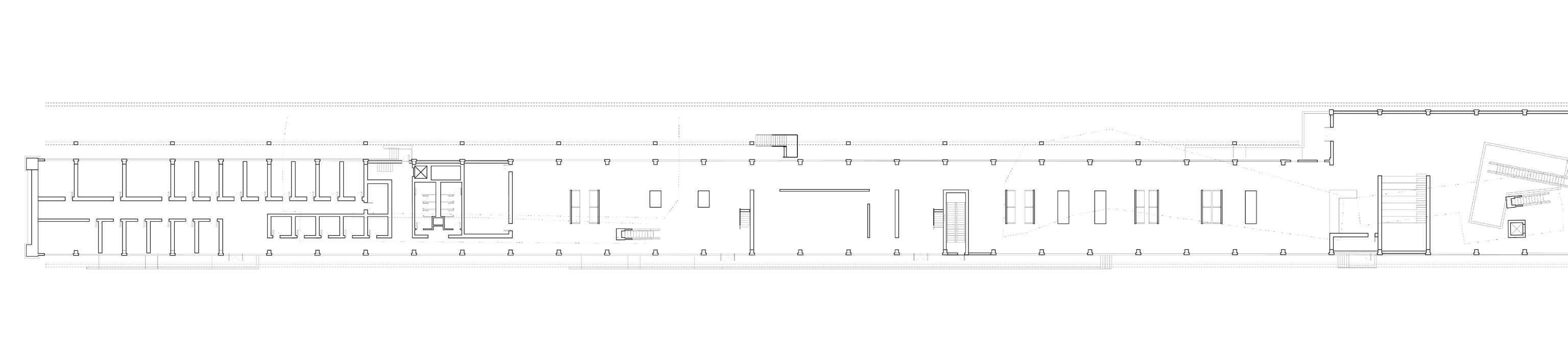
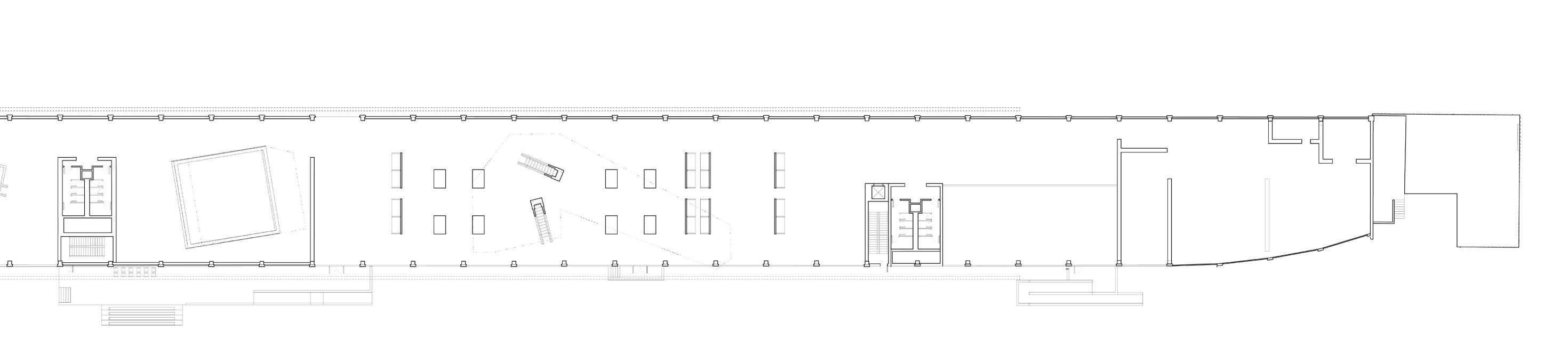
SCI-Arc Extension

The current Linear condition of sci arc, results in multi-use spaces that promote original thought through the constant exposure to foreign work, language and ideas.

Engagement between a creative and work that is beyond their scope of understanding, results in a natural displacement, between the creator’s own interpretation and the understanding of the uninformed viewer. At best an interpretation is formulated based on an individual’s prior understanding and experience. The Analysis of foreign ideas based on one’s own experiences and logic, results in an interpretation that is completely autonomous and independent to the original.

The Extension encourages the natural displacement of creative ideas, in order to supply the opportunity for original creative thought. The figures curate exposure to works of different media, and forms of viewing. behaving both as vessels for works such as the library or auditorium, as well as curating the exposure to gallery space and site context.

Location: Arts District, Los Angeles Instructor: Russel Thompson Program: Public Library, Research Facility, and Museum

Concept Model Close Up
Oil Board, Pristol Paper
Dim: 2” x 10” Nicholas

Section Models

Concept
Oil Board, Pristol Paper Dim: 2” x 10

Bass Wood Section Model

Site Model Street View
Site Model Close Up
West Entrance
Scale 1:200
Dim: 57”x4”
North Entrance
Scale 1:200
Dim: 57”x4”

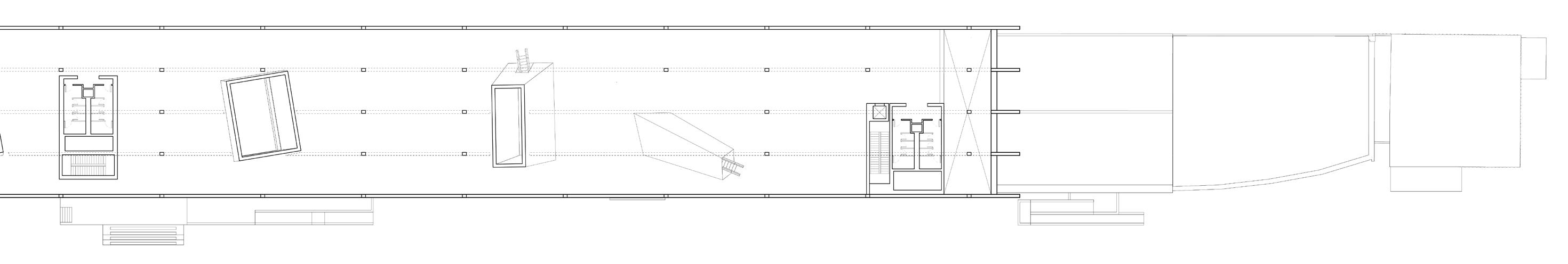
Kihid Cultural Center

The technical efficiency and ability of the 21st century trends toward the development of homogenous architectural systems. Where the facade articulates the buildings Envelope, and the envelope defines the program. Creating a uniform architectural assembly, relating to one another, only in their uniformity. The Kihid cultural center explores the spatial opportunities in the autonomy of primary architectural systems; the facade, envelope, and program.

The site is located in the heart of tartu Estonia, bordering on what is called β€œTartu old town” and the newer suburban developments of the city. Furthermore, it is adjacent to a large pedestrian walkway on the SouthEast border of the site.

The project seeks to provide a new form of architectural assembly that challenges the automatic uniformity between the primary architectural systems while preserving Tartu’s history, and knowledge as an active research facility, public library and modern art Museum.

Location: Tartu, Estonia

Instructor: Ramiro DiazGranados

Program: Public Library, Research Facility, and Museum

Partner: Houd Al Kazemi

Drawing team: Ghaliah Almaqhawi, Shih-Yun Tseng, Dayou Du, Thomas Lee, Yuxi Zhang, Zhou Fu.

Selected Work for Exhibition at Spring Show 2024

Fabric Concept Model Close Up
Fabric Concept Model
Fabric, Foam Blocks
Dim: 8” x 8”
Fabric, Foam Blocks
Dim: 8” x 8”
Floor Plate Model
Matt White 3D Print
Dim: 8” x 8”
Site Model
Matt White 3D Print
Dim: 1’2” x 1’7”
Nicholas MacIntyre & Houd Al Kazemi

Plan Drawing

Drawn By: Thomas Lee, Ghaliah Almaqhawi, and Nicholas MacIntyre

South East Elevation

West Elevation

Drawn By: Shih-Yun Tseng, and Nicholas MacIntyre
Drawn By: Shih-Yun Tseng, and Nicholas MacIntyre
Nicholas MacIntyre & Houd Al Kazemi
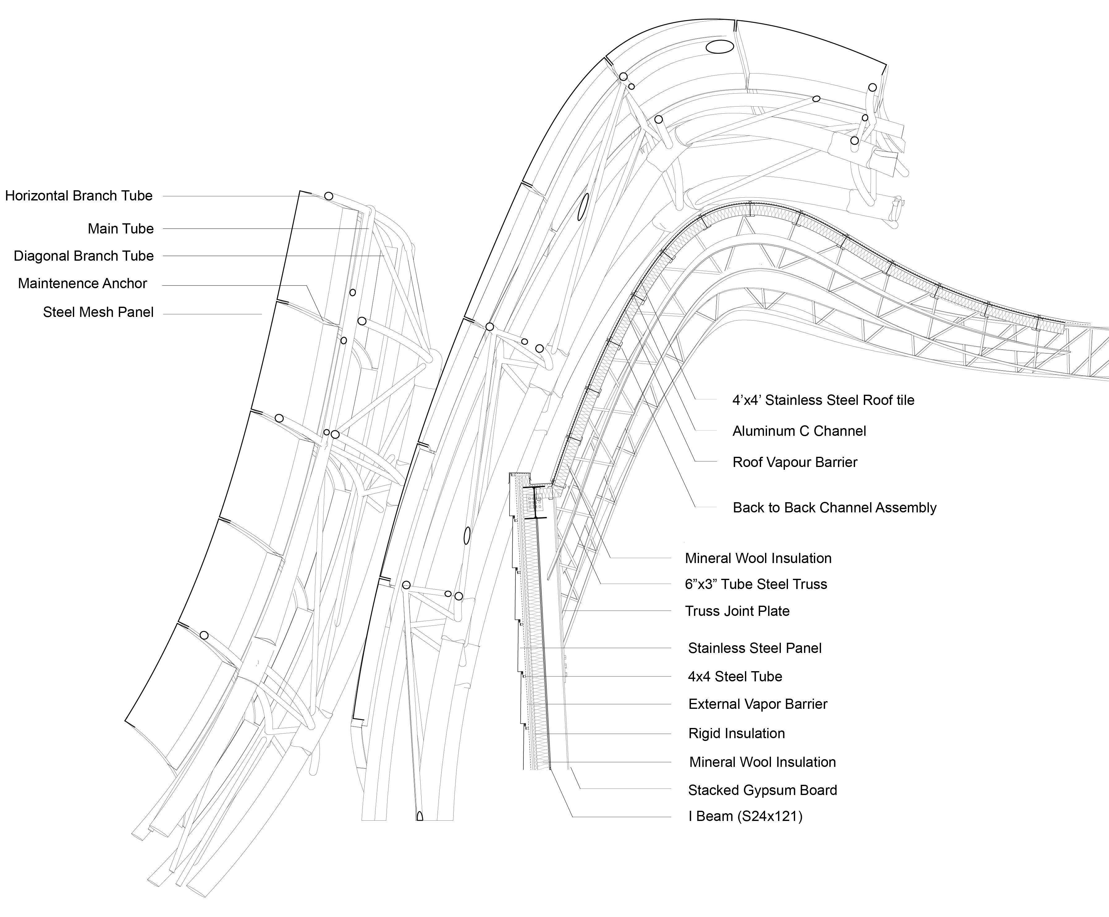
Concrete Core
Steel Framing
Canopy Framing

Plan Drawing

Drawn By: Thomas Lee, Ghaliah Almaqhawi, and Nicholas MacIntyre
Nicholas MacIntyre & Houd Al Kazemi

The Canopies blur the boundary of the public space and envelope of the building, While simultaneously providing shade to the pedestrian walkway, public space, and Amphitheatre. The envelope of the building is intentionally disconnected from the floor plates and walls, allowing for a collective acoustic condition across the gallery, and public library.

By: Thomas Lee, and Nicholas MacIntyre

Drawn
Site Model Photo
Matt White 3D Print
Dim: 1’2” x 1’7”
Nicholas
Section Peel Away Model
Matt White3D Print, Matt Mylar Paper
Dim: 3’7” x 1’3”
Nicholas MacIntyre & Houd Al Kazemi
Section Peel Away Model
Matt White3D Print, Matt Mylar Paper
Dim: 3’7” x 1’3”
Nicholas MacIntyre & Houd Al Kazemi

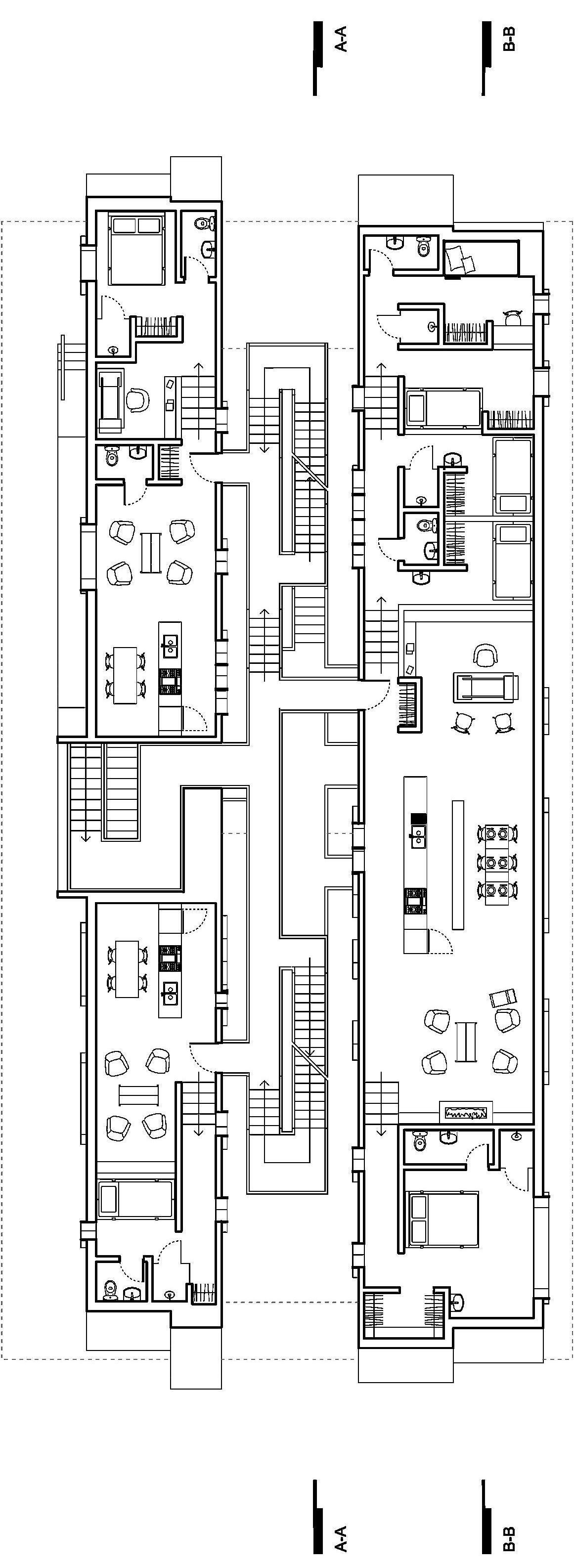
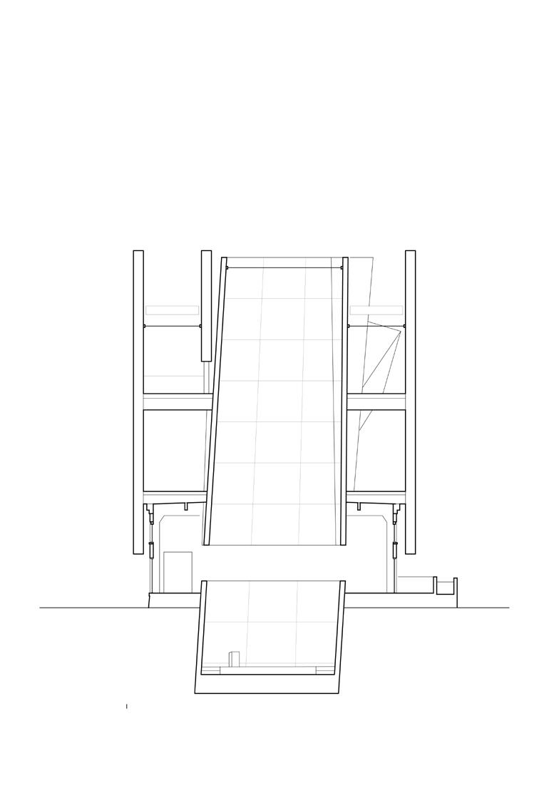
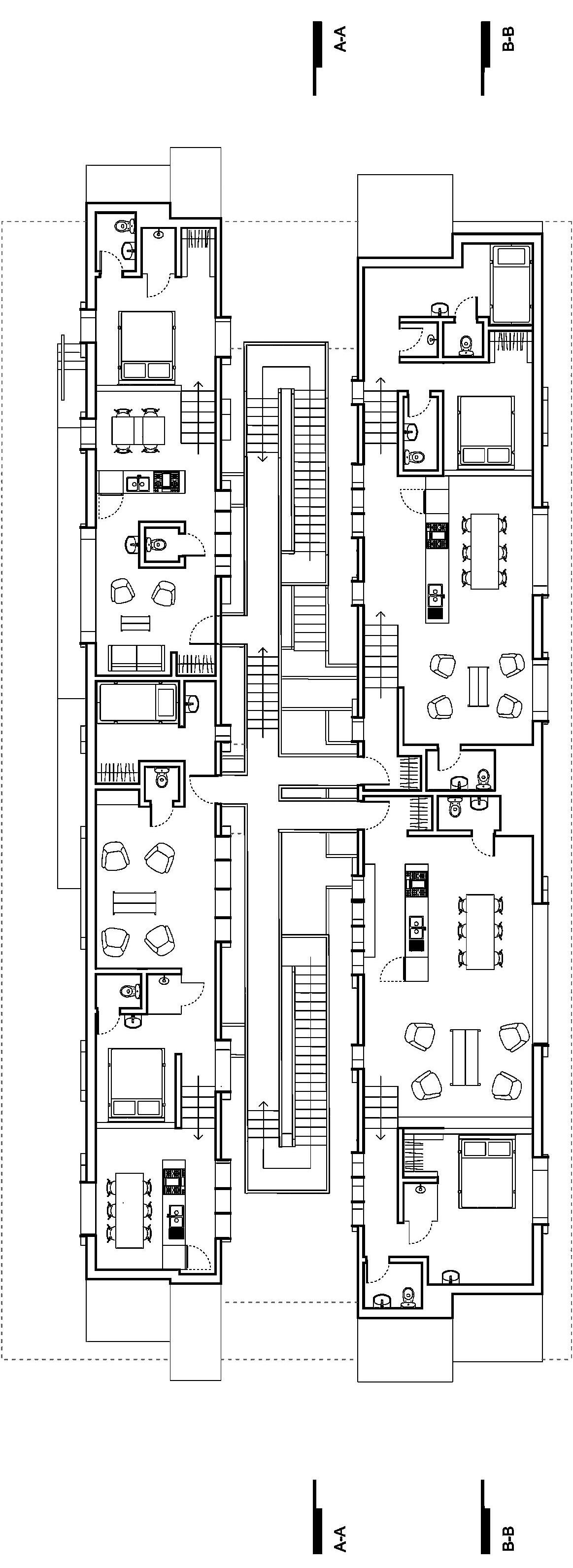
50’ Neighborhood

The 50’ Neighborhood explores the re-introduction of a third space in The urban landscape of Los Angeles. One of many differences between the urban and suburban, is the neighborhood or lack thereof, the β€œneighborhood” in urban context is often used to determine location or commercial syndicate such as a Flower district, fashion district, ect. Whereas in suburban context the β€œneighborhood” is used to describe, community, and a local culture specific to the spatial and social context of an individual.

Local communities can only occur if spatial conditions allow for interaction, In the suburban landscape the road becomes not only a means of travel but serves as a third space. owned by noone, the street is inhabited with social interactions across all ages and types.

The 50’ Neighborhood reintroduces the Third space of suburban Living in the standard 50’ x 100’ Lot size. Encouraging the Social interaction through means of vertical circulation. The Primary stair serves as a shared space that offers a variety of social opportunities, such as a walking track, communal seating, and event space.

Location: West Adams, Los Angeles

Instructor: Margaret Griffin

Program: Residential Building

Concept Sketches
Paper
1’=1/8” Scale Model
1/8”,1/16”, 1/32” Bass Wood Sheet
Dim: 1’2” x 8”

Drawing A-A

Drawing B-B

Section
Section
1’=1/8” Scale Model (West Facade)
1/8”,1/16”, 1/32” Bass Wood Sheet
Dim: 1’2” x 8”

1/8”,1/16”,

1’=1/8” Scale Model (South Facade)
1/8”,1/16”, 1/32” Bass Wood Sheet
Dim: 1’2” x 8”
1’=1/8” Scale Model (East Facade)
1/32” Bass Wood Sheet
Dim: 1’2” x 8”
Tectonics Model
1/16”, 1/32” Bass Wood Basswood Dowel
Dim: 1’6” x 1’2”
Tectonics Model
1/16”, 1/32” Bass Wood Sheet
Basswood Dowel
Dim: 1’6” x 1’2”

Online Portfolio

Nicholas MacIntyre 2024-2025

Turn static files into dynamic content formats.

CreateΒ aΒ flipbook
Issuu converts static files into: digital portfolios, online yearbooks, online catalogs, digital photo albums and more. Sign up and create your flipbook.