Skip to main content

Nguyên lý thiết kế công trình công cộng

Page 1


TRƯỜNG ĐẠI HỌC KIẾN TRÚC

THÀNH PHỐ HỒ CHÍ MINH

KHOA KIẾN TRÚC

TIỂU LUẬN

Học kỳ: 1 - Năm học: 2022-2023

Học phần: Nguyên lý thiết kế CTCC Mã HP: 0300090-01

Nội dung: “Nghiên cứu & phát triển lý thuyết của Nguyên lý thiết kê CTCC bằng sưu tầm và phân tích Công trình kiến trúc”

SVTH: Mai Như Ý GVHD: thầy Văn Tấn Hoàng MSSV: 21510201655

CÂU 1

Yêu cầu thích dụng và kinh tế trong thiết kế kiến trúc Một công trình kiến trúc thành công là một công trình đáp ứng được những yêu cầu của con người, của xã hội. Đông thời, vận dụng tốt các mối quan hệ giữa chúng. Đặc biệt là mối quan hệ gữa thích dụng và kinh tế

Yêu cầu thích dụng

Đây được xem là yêu cầu tiên quyết hàng đầu khi muốn

thiết kế một công trình kiến trúc nhằm đảm bảo rằng công

trình sẽ được sử dụng tiện nghi, đáp ứng được mục đích

xây dựng công trình.

Yêu cầu thích dụng thay đổi trong từng giai đoạn hoàn

cảnh lịch sử, không ngừng phát triển theo sự phát triển của

cơ sở vật chất và tinh thần của xã hội.

Thích dụng còn cần đáp ứng hợp lý việc sử dụng vật liệu,

giải pháp kết cấu, để đảm bảo công trình có tính bền vững,

có hiệu quả thẩm mỹ cao.

Yêu cầu kinh tế

Công trình kiến trúc đáp ứng nhu cầu kinh tế là đảm bảo

chất lượng, nhu cầu sử dụng, bền vững và mỹ quan.

Một số vấn đề ảnh hưởng đến kinh tế:

Lập dự án đầu tư

Lựa chọn phương án thiết kế

Giải pháp thi công và quá trình tiến độ thi công, thời gian

thi công

Xác định sự khai thác sử dụng công trình hiệu quả lợi

nhuận cao

Mối quan hệ giữa thích dụng và kinh tế có thể được gọi như là mối quan hệ kéo theo. Bởi vì để có thể làm cho một công trình kiến trúc

đạt được sự tiện nghi, các nhà thiết kế sẽ phải suy nghĩ đến việc sử dụng vật liệu nào, tận dụng các yếu tố tự nhiên làm sao,… Từ đó tạo ra một bài toán kinh tế để có thể giải quyết các vấn đề trên.

Khách sạn Tepoztlán / Taller Carlos Marín

Cảnh quan xung quanh đa phần

là được giữ lại nguyên hiện trạng

vừa giúp điều hòa không khí vừa có thể tiết kiệm chi phí.

Công trình muốn tránh nắng và

tận dụng ánh sáng tự nhiên nên

đã sử dụng những lam gỗ được

tái chế từ khi khai thác công

trình. Ngoài ra, các vật dụng như bàn, ghế, hàng rào, sàn nhà…đều

được làm từ gỗ tái chế.

Để phụ thuộc và chi trả ít nhất vào nguồc nước uống do chính quyền thành phố cung cấp, nên các nhà thiết kế đã tạo nên các hệ thống thu gom nước mưa từ các mái nhà, sau đó được phân phối qua các kênh và sau đó lắng

đọng trong các bể chứa để được

xử lý và tái sử dụng.

Tóm lại, như đã nói, mối quan hệ giữa thích dụng và kinh tế như một mối quan hệ kéo theo. Vậy nên, khi người thiết kế ban đầu không xác định được mục đích, hoạt động của công trình hay việc giải quyết bố cục mặt bằng không đảm bảo dây chuyền sử dụng hợp lý, giao thông chồng chéo, lãng phí diện tích hoặc không nhìn ra được những thứ có thể tận dụng từ tự nhiên nhằm chống ồn, tránh nắng,.. Thì về sau khi thi công nhất định sẽ dẫn đến sự phát sinh của nhiều vấn đề chẳng hạn như không gian bị cắt xén, vật liệu xây dựng không hợp lý có thể dẫn đến nắng hay thấm nước,… Từ đó sẽ phải tốn rất nhiều chi phí để sửa chữa dẫn đến công trình có thể bị chậm tiến độ.

CÂU 2

Các không gian chức năng

Không gian chính

Để xác định không gian chức năng chính trong công trình công cộng cần phải trả lời được hai

câu hỏi:

_Mục đích xây dựng của công trình?

_Hoạt động chính của công trình đó là gì?

Không gian chức năng chính giữ vai trò quan trọng thể hiện được mục đích sử dụng của công

trình nên được bố trí ở vị trí chủ yếu, trọng tâm.

Không gian phụ

Được bố trí ở xung quanh khu vực chính, đóng vai trò bổ trợ cho không gian chính, thực hiện các hoạt động thứ yếu.

Không gian đặc thù

Là không gian rất đặc thù về kích thước, kiểu dáng, cách bố trí, vị trí bố cục. Ngoài ra, chức năng không gian không thể thay đổi mà chỉ được sử dụng theo

đúng như thiết kế

Không gian giao thông

Đây là không gian mang chức năng kết nối không gian chính và phụ. Đóng vai trò quan trọng nên

không được đề chồng chéo, giao căt, kéo dài

Trường trung học phổ thông Mansueto

Không gian chính

Không gian phụ

Không gian đặc thù

Giao thông ngang Giao thông đứng

1. Lối vào

2. Hành lang

3. Văn phòng

4. Phòng học

5. Phòng học thực hành

6. Nhà bp ế

7. Nhà đa năng

8. Wc ni b ộộ

9. Wc hc sinh ọ

10. Phòng y tế

11. Kho

Không gian chính

Không gian phụ

Không gian đặc thù

Giao thông ngang

1. Lối vào

Giao thông đứng

2. Hành lang

3. Văn phòng

4. Phòng học

5. Phòng học thực hành.

6. Nhà bp ế

7. Nhà đa năng

8. Wc ni b ộộ

9. Wc hc sinh ọ

10. Kho

Giao thông giáo viên

Giao thông học sinh

Giao thông nhân viên

1. Lối vào

2. Hành lang

3. Văn phòng

4. Phòng học

5. Phòng học thực hành.

6. Nhà bp ế

7. Nhà đa năng

8. Wc ni b ộộ

9. Wc hc sinh ọ

10. Kho

Các không gian được sắp xếp hợp lý đối với một công

trình trường học. Tuy nhiên phần giao thông còn chồng

chéo một phần

3

bước thiết kế trong không gian mặt bằng

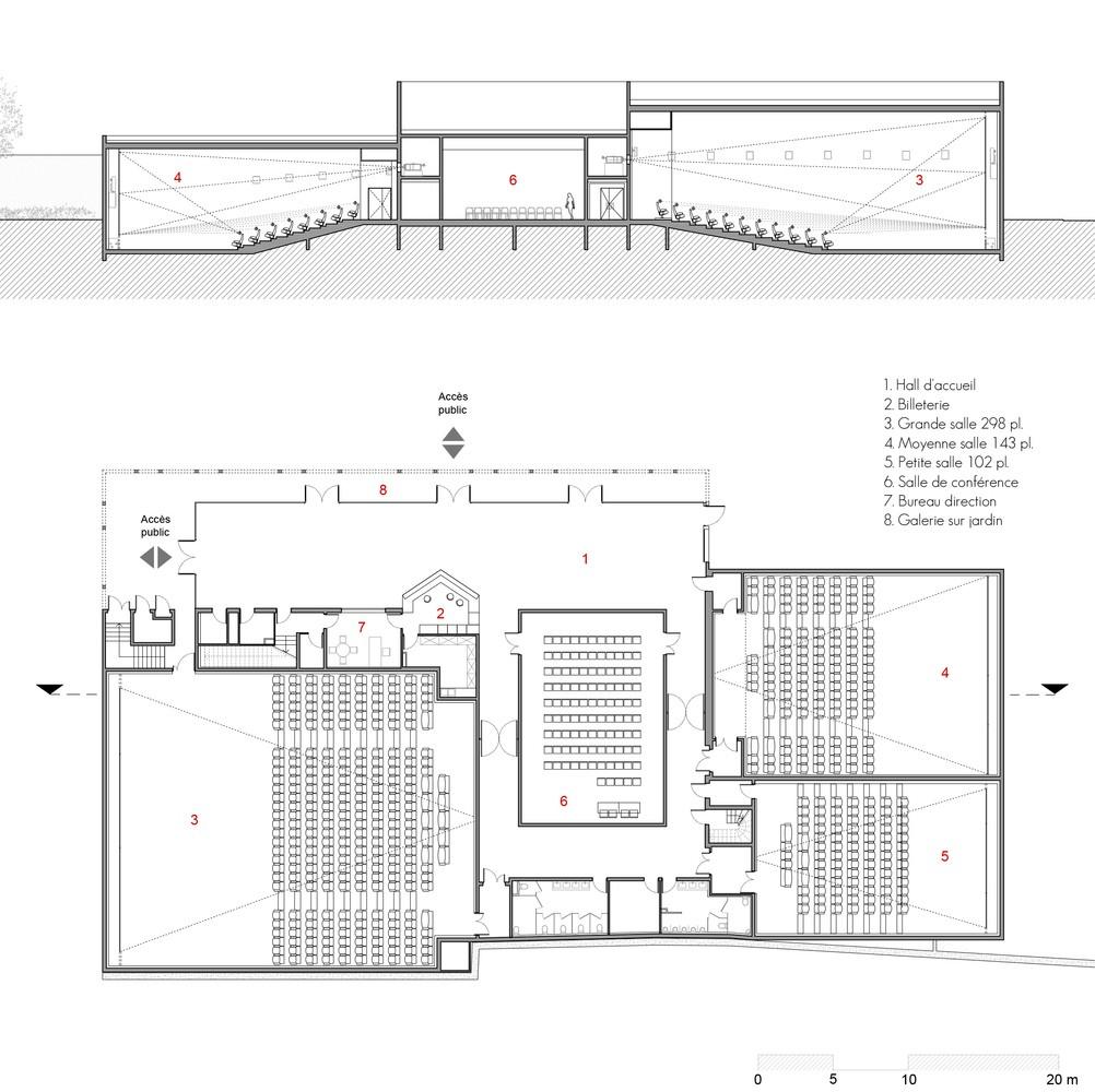
Rạp chiếu phim

Arcadia

Các khu chức năng

5.

298 người

chiếu phim trung 143 người

chiếu phim nhỏ 102 người

thuật

1. Sảnh đợi
2. Khu vực bán vé
3. Phòng chiếu phim lớn
4. Phòng
Phòng
6. Phòng họp
7. Phòng quản lý
8. Wc khách
9. Wc nội bộ
10. Kho
11. Phòng nghỉ và phòng thay đồ nhân viên
12. Phòng kỹ

1. Bộ phận chức năng của rạp chiếu phim Arcadia

Phòng xem phim Quản lý và nghiệp vụ phòng phim

2. Sắp xếp các phòng có công năng giống nhau, tương tự, có quan hệ với nhau vào từng nhóm bộ phận chức năng

1. Sảnh đợi

2. Khu vực bán vé

3. Phòng chiếu phim lớn 298 người

4. Phòng chiếu phim trung 143 người

5. Phòng chiếu phim nhỏ 102 người

8. Wc khách

6. Phòng họp

7. Phòng quản lý

9. Wc nội bộ

10. Kho

11. Phòng nghỉ và phòng thay đồ nhân viên

12. Phòng kỹ thuật

3. Định vị các bộ phận chức năng

4. Bố cục vào khu đất XD, xác định lối vào chính

Lối vào chính

Phòng xem phim

Phòng xem phim

Phương án 1

Quản lý và nghiệp vụ phòng phim

Quản lý và nghiệp vụ phòng phim

1. Xác định các bộ phận chức năng

+ BPCN chính

Phòng xem phim

Bước 2. Xác

định bộ phận chính _ phụ

+ BPCN phụ

Quản lý và nghiệp vụ phòng phim

2. Định dạng các bộ phận chức năng

Phòng xem phim

Quản lý và nghiệp vụ phòng phim

3. Xác định & lựa chọn sảnh chính

Lối vào phụ

Lối vào chính

Sảnh chính

Phòng xem phim

Quản lý và nghiệp vụ phòng phim

Lối vào chính

Sảnh chính

Phòng xem phim

Quản lý và nghiệp vụ phòng phim

Lối vào phụ

4. Phương án chọn bố cục MB

Lối vào chính

Sảnh chính

Phòng xem phim

Lối vào phụ

1. Xác định các luồng giao thông

2. Xác định sơ đồ, tổ chức các luồng giao thông Xác định hệ thống giao thông

Nhân viên

Phòng kỹ thuật

Phòng quản lý Wc nội bộ

Phòng chiếu phim lớn 298 người

bán vé Kho

Phòng nghỉ nhân viên Sảnh chính

Phòng chiếu phim nhỏ 102 người

Phòng thay đồ nhân viên

Phòng chiếu phim trung 143 người

Đối chiếu trình

tự từng bước

với công trình

1. Bộ phận chức năng của rạp chiếu phim Arcadia

Phòng xem phim Quản lý và nghiệp vụ phòng phim

2. Sắp xếp các phòng có công năng giống nhau, tương tự, có quan hệ với nhau vào từng nhóm bộ phận chức năng

1. Sảnh đợi

2. Khu vực bán vé

3. Phòng chiếu phim lớn 298 người

4. Phòng chiếu phim trung 143 người

5. Phòng chiếu phim nhỏ 102 người

8. Wc khách

6. Phòng họp

7. Phòng quản lý

9. Wc nội bộ

10. Kho

11. Phòng nghỉ và phòng thay đồ nhân viên

12. Phòng kỹ thuật

3. Định vị các bộ phận chức năng

Quản lý và nghiệp vụ phòng phim

Phòng xem phim

4. Bố cục vào khu đất XD, xác định lối vào chính

Lối vào chính

Quản lý và nghiệp vụ phòng phim

Phòng xem phim

Bước 2. Xác

định bộ phận chính _ phụ

1. Xác định các bộ phận chức năng

+ BPCN chính

Phòng xem phim

+ BPCN phụ

Quản lý và nghiệp vụ phòng phim

2. Định dạng các bộ phận chức năng

Quản lý và nghiệp vụ phòng phim

Phòng xem phim

3. Xác định & lựa chọn sảnh chính

Lối vào phụ

Lối vào chính

Lối vào phụ

4. Phương án chọn bố cục MB

Sảnh chính

Quản lý và nghiệp

vụ phòng phim

Phòng

xem phim

Lối vào chính

Sảnh chính

Quản lý và nghiệp vụ phòng phim

Phòng xem phim

1. Xác định các luồng giao thông

Giao thông khách xem phim Giao thông nhân viên

vào

2. Xác định sơ đồ, tổ chức các luồng giao thông

Xác định hệ thống giao thông

Lối vào chính

Nhân viên Khách

Khu quản lý

Phòng xem phim Phòng

Wc khách

Phòng xem phim

Phòng xem phim

Bước 4. Bố cục phòng ốc theo dây

Phòng chiếu phim lớn 298

người Phòng chiếu phim trung

Phòng chiếu phim nhỏ

CÂU 4. CÁC GIẢI PHÁP BỐ CỤC MẶT BẰNG

Không gian lớn

Không gian lớn có thể được thiết kế theo kiểu:

+Một phòng lớn duy nhất

+Một phòng lớn và nhiều phòng nhỏ khác

Ưu điểm:

MB có bố cục linh hoạt dễ bố trí

Kiến trúc mặt bằng, mặt đứng có thể thiết kế phong phú đa

dạng gây ấn tượng mạnh

Giao thông đơn giản ít chồng chéo

Nhược điểm:

Giải pháp kết cấu phức tạp, tốn nhiều chi phí

Khó giải quyết các vấn đề thông thoáng chiếu sáng bên trong

Khó giải quyết hợp lý về không gian có chức năng khác nhau

Trung tâm thể dục dụng cụ

Ariake

Công trình bố trí một không gian lớn và xung quanh là nhiều phòng nhỏ khác.

Kết cấu mái vòm với hệ thống khung gỗ.

Hạn chế: chiếu sáng tự nhiên và khả năng thông thoáng.

Không gian tập trung

T hp b cc mt bng: Toàn b các

không gian chc năng liên kt cht

ch, không gian chính trong phòng ẽở

ln, các không gian chc năng ph b ớứụố trí xung quanh lkhông gian chính.

Kiến trúc có MB, MĐ đa dạng, đồ sộ

MB có giao thông ngắn, rõ ràng, chặt chẽ.

Dễ quản lý, bảo vệ công trình

Kết cấu, nền móng phức tạp tùy vào hình công trình.

Giải pháp thông gió, chiếu sáng kém

Sân vận động Cù Châu

Sân vận động Cù Châu với một không gian chính để hoạt

động ở trung tâm thì xung quanh được bố trí các phòng phụ

nhỏ và ghế ngồi .

Mái vòm bao gồm một khung thép hoành tráng, nhưng nó có vẻ nhẹ nhờ màng PTFE polyme tổng hợp truyền ánh

sáng bao quanh nửa dưới của cấu trúc bao gồm các lỗ siêu

nhỏ để cải thiện hiệu suất âm thanh trong toàn bộ sân vận

động.

Không

gian xuyên phòng

Không gian trong các mặt bằng

được bố trí liên tục, thông nhau.

Ưu điểm

Kiến trúc có mặt bằng phong phú, đẹp mắt.

Diện tích giao thông ít

Khuyết điểm

Các giải pháp thông thoáng và chiếu sáng tự nhiên khó xử lý .

Cách ly phòng không tốt

Bảo tàng kính trẻ em K

Các không gian trưng bày được thiết kế thông nhau, mặt

bằng công trình thông thooáng, giao thông đơn giản

Không gian hành lang (phân tán)

ợc bố trí về 1 hoặc hai bên , cách xa

hoặc liên hệ với nhau thông qua hệ thống giao thông.

Mặt bằng dễ bố trí, phân chia rõ ràng.

Giải pháp kết cấu, thông thoáng, chiếu sáng tốt

n điệu và mặt bằng có

thể bị trải dài dẫn đến tốn chi phí khi thiết kế các hệ thống

Trường Tây Ninh

Các phòng học được bố trí về 1 bên của hành lang

Hành lang cũng là tuyến giao thông nối các khối chức năng lại với nhau

Tuy MB bị kéo dài nhưng công trình vẫn gây ấn tượng với lối thiết kế đẹp mắt

Giải pháp đường viền

Các đường nét bao quanh công trình làm nổi bật các hình khối của nó.

Những đường nét đề cao sự mạnh

mẽ, dứt khoát trên những hình khối

đơn giản tạo sự ấn tượng, thu hút

Giải pháp diện

Công trình nằm ngay ngã ba

đường, góc nhìn cục bộ nhưng

vì đường nét khối quá mạnh mẽ nên phần giải pháp về diện

cũng được hạn chế chỉ còn lại những đường zic zac đồng đều

Giải pháp khối

Công trình có thế quan sát được từ nhìu hướng nên xử lý hình khối ở mỗi góc nhìn có những giải pháp khối khác nhau. Bởi công trình là một tổ hợp khối xếp ngẫu nhiên nên mặt đứng các goc cũng không giống nhau

Về ý tưởng thì nhà thiết

kế muốn tạo ra một công

trình mang tính cổ điển.

Vậy nên các vật liệu gạch

đá tự nhiên với màu vàng

đất sắp xếp theo kiểu bất qui tắc là lựa chọn hợp lý

để làm nổi bật sự cổ kính

thô sơ nhưng vẫn mang nét tinh tế

Các vật liệu của

công trình sử dụng

các màu tinh giản

nhất để phù hợp với một không gian cần

sự tập trung như thư viện

Sàn được ốp từ gỗ để tăng sự cách âm, tạo không gian thoáng đãng, sạch để việc đọc sách trở nên hiệu quả hơn. Ngoài ra, ốp kính cũng là giải pháp hiệu quả trong việc tận dụng ánh sáng tự nhiên giúp căn phòng đủ sáng để đọc sách.

Café Zolaism

Với ý tưởng tạo ra một không gian giúp con người có thể thư giãn

hòa mình vào thế giới nội tâm hơn, công trình sử dụng những cây

cột làm từ bê tông với hình dáng như những hòn đá khổng lồ, kết

cấu tự nhiên của bê tông đã làm lộ ra kết cấu thô và nặng của đá

đồng thời tạo ra một sự tương phản thị giác mạnh mẽ với độ sáng

và độ trong suốt của kính siêu trong xung quanh để nhấn mạnh

cảm giác về không gian. sức mạnh của hình thức.

Các bức tường kính toàn bộ chiều cao không khung mang nhiều

ánh sáng mặt trời vào không gian trong nhà, và cách chơi năng

động của ánh sáng và bóng tối thay đổi theo thời gian.

• https://www.archdaily.com/941774/hotel-tepoztlan-taller-carlos-marin-plus-p asquinel-studio?ad_medium=gallery

• https://www.archdaily.com/990244/quzhou-sports-park-mad-architects/6342f 2167a532720457cdfde-quzhou-sports-park-mad-architects-photo?next_projec t=no

• https://issuu.com/hoanghuynguyn/docs/btcm1

• https://www.archdaily.com/966591/kids-museum-of-glass-coordination-asia?

ad_source=search&ad_medium=projects_tab

• https://www.archdaily.com/962862/igc-tay-ninh-school-kientruc-o?ad_source =search&ad_medium=projects_tab

• https://www.archdaily.com/950343/pelissanne-media-library-park-andpublic-passage-dominique-coulon-and-associes?

ad_source=search&ad_medium=projects_tab

Turn static files into dynamic content formats.

Create a flipbook
Nguyên lý thiết kế công trình công cộng by Như Ýy - Issuu