Landscape Portfolio / 2021 - 2022

Page 1

Aqua

Concept stage DD & CD stage Construction

01
Central Mall

Project: From Concept to Construction

Scope of work

Building idea for masterplan

Drawing DD & CD package

Involve into building spec. for material and planting

PERSPECTIVE RENDER

Project: From Concept to Construction

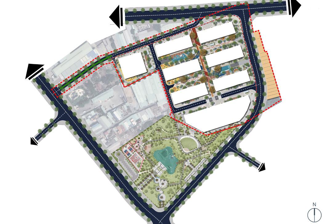
MASTERPLAN DESIGN

Plan

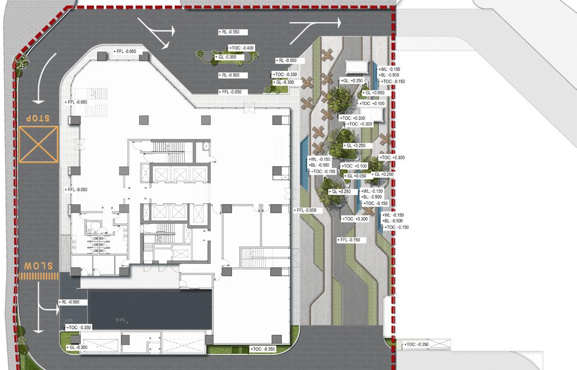
GA Plan

Detail

Project: From Concept to Construction
Drainage
Material
Planting schedule CONSTRUCTION DRAWING

Project:

to

From Concept
Construction SITE VISITING

Novaworld

5

Concept stage - Park & CH

DD & CD stage Construction

02
Phase

Project: From Concept to Construction

Scope of work

Building idea for masterplan

Drawing DD & CD package

Involve into building spec. for material and planting

PERSPECTIVE & MASTERPLAN

Project: From Concept to

Construction GA Plan CONSTRUCTION DRAWING

Project: From Concept to

Paving Detail Typical Detail

Curb Detail Playground Drawing
Construction CONSTRUCTION DRAWING

to

Pavillion Detail Green Arbor Detail Railing Detail Typical Detail Project: From Concept
Construction CONSTRUCTION DRAWING
Project: From Concept to Construction PERSPECTIVE RENDER

GA Plan

Project: From Concept to Construction
Sections Shrub Plan Signage Detail CONSTRUCTION DRAWING
Project: From Concept to Construction PERSPECTIVE RENDER

Project: From Concept to

Construction MASTERPLAN DESIGN

Toan Viet School

Ha Noi

Concept stage Support in DD & CD stage Construction

03

Project:

Concept to

From
Construction MASTERPLAN DRAWING

to

Project: From Concept
Construction PERSPECTIVE RENDER
Project: From Concept to Construction RENDERING - SITE VISITING

Project:

to

From Concept
Construction SITE VISITING

Dragon Hill

Hotel-Villa resort

Concept stage Construction

04

Project: From Concept to Construction

GRAPHIC ANALYSIS
Project: From Concept to Construction PERSPECTIVE RENDER

Project: From Concept to Construction

PROJECT IN REAL LIFE

Project: From Concept to

Construction PROJECT IN REAL LIFE

Ngo May courtyard

Concept stage

05
DD & CD package: ongoing Construction

Project: From Concept to Construction

GRAPHIC ANALYSIS

Project: From Concept to Construction

MASTERPLAN DESIGN

Project:

From Concept to Construction PERSPECTIVE RENDER - SECTIONS
Project: From Concept to Construction PERSPECTIVE RENDER - SECTIONS
06 Ho Tram Ixora 2 Concept stage DD & CD package: ongoing Construction: ongoing

Project: From Concept to Construction

Scope of work

Building idea for masterplan

Support another member in building DD & CD package

ANALYSIS

GRAPHIC

to

Project: From Concept
Construction RENDERING

Opal Park View

Concept stage

07

Project: Concept Only

Scope of work

Building idea for masterplan

Prepare and present the report

GRAPHIC ANALYSIS

Project: Concept Only MASTERPLAN DESIGN
Project: Concept Only PERSPECTIVE RENDER
Project: Concept Only PERSPECTIVE RENDER

Support Landscape Design for Architect / Urban team

08 Others

Project: Concept Only

Project name: Sakura Masterplan

Scope of work: Building idea for masterplan

GRAPHIC ANALYSIS

Project: Concept Only

MASTERPLAN DESIGN

Project: Concept Only

Project name: An Binh - Hanoi Hotel

Scope of work: Building idea for Landscape area

Turn static files into dynamic content formats.

Create a flipbook
Issuu converts static files into: digital portfolios, online yearbooks, online catalogs, digital photo albums and more. Sign up and create your flipbook.
Landscape Portfolio / 2021 - 2022 by Nhật Huy - Issuu