Nguyen - Quy Phu | Architecture Portfolio

Page 1

ARCHITEKTUR-PORTFOLIO 2019-2023

UFERHALLEN

NACHHALTIG WEITERBAUEN

Berlin, Deutschland

DATA CHAPEL

COMMUNITY RECHENZENTRUM

Sant’Anna d’Alfaedo, Italien

ALTE SEILEREI

KREATIVE NACHBARSCHAFT

Frankfurt, Deutschland

RURAL FLOWERS

COAF SMART CENTER

Armavir, Armenien

POTTERY STADTHOLZHAUS

Frankfurt, Deutschland

ERIWAN ZENTRUM

FÜR KUNST & GEMEINSCHAFT

Eriwan, Armenien

CV - LEBENSLAUF Inhalt 01 19 21 33 35 39 45

UFERHALLEN NACHHALTIG WEITERBAUEN

Standort

Berlin, Deutschland

Master-Abschlussarbeit

Umbau - Mischnutzung

Jahr | Note 2023 | 1.0

Autor Nguyen, Quy Phu

Betreuer Prof. Dr. -Ing. Wolfgang Jung Prof. Joris Fach

Bestand Die Uferhallen, die ein Teil der Stadt sein wollen, die modernisiert und profitabel sein wollen, die weiterhin Kunst machen wollen, stehen vor dem schwierigen Problem, eine Lösung für die Koexistenz all dieser Kräfte zu finden. Wie können wir eine Architektur entwickeln, die allen Anforderungen gerecht wird, wie können wir eine Architektur entwickeln, die ausgewogen und überzeugend ist!

01 | 02 Uferhallen | Master-Abschlussarbeit
 Morgen an der Uferstraße  Gottschedstraße

 Übersicht, Hinzufügen •

 Studienmodell, 1:1000

 Entwurfsdiagramm,

 1. Offene Räume

 2. Verbinden

 3. Gärten

 4. Erweiterung auf bestehender Grundfläche

 5. Kontextualisierung

 6. Harmonisierung

03 | 04

Die Halle

Da die Halle im Zentrum des Geländes liegt und das Herz des Viertels sein soll, muss sie größer sein, mehr Licht und eine größere Flexibilität haben. Da sie nun fast doppelt so hoch ist, kann sie den kulturellkünstlerischen Bedürfnissen des Viertels und der Stadt gerecht werden. Sie kann nun das kulturelle Ziel Berlins sein, in dem große und kleine Veranstaltungen stattfinden und Kunst in größerem Maßstab präsentiert wird.

 Isometrie, Die Halle

Abbruch

Hinzufügen

Eingangplatz

 Bestehendes Foto

 Innenbereich, die Halle

05 | 06 Uferhallen | Master-Abschlussarbeit

• 
• 
Berlin | Deutschland Individuelle Arbeit | 2023

Abbruch

07 | 08 Uferhallen | Master-Abschlussarbeit 
Ost 
• 
• 

Wohngruppe
Hinzufügen
Künstlerarbeitsplatz
Bestehend
Berlin | Deutschland Individuelle Arbeit | 2023

Wohnen

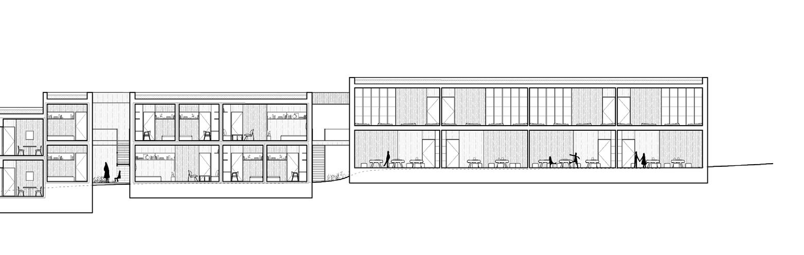
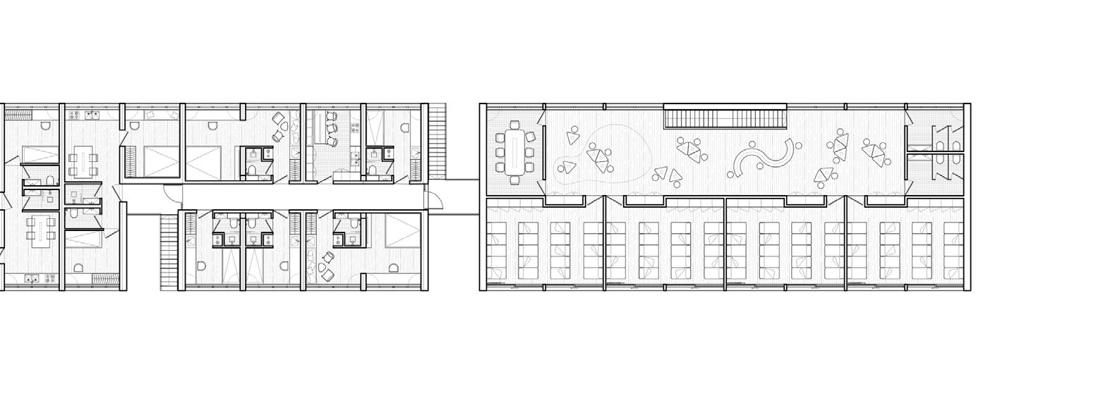
Das Haus wird im Einklang mit dem vorhandenen Gebäudebestand errichtet. Es folgt der Berliner Blockbildung, wenn es nötig ist, es verändert seinen Maßstab, um die Anforderungen der Verdichtung zu erfüllen, wenn es kann, es reagiert auf den vorhandenen Baustil, um mit der Geschichte in Harmonie zu sein.

09 | 10 Uferhallen | Master-Abschlussarbeit +18.200 +14.900 +11.600 +7.530  Wohngruppe Ost  Grundriss + Ansicht
Berlin | Deutschland Individuelle Arbeit | 2023 +24.800 +21.500 +18.200 +11.600 +11.600 +12.000 +8.300 +8.150 +7.830 +7.930 +14.900

 Wohngruppe West

 Abbruch •

 Hinzufügen •

 Garten, gemischte Nutzung und neuer Wohnort

Berlin | Deutschland Individuelle Arbeit | 2023
13 | 14 Uferhallen | Master-Abschlussarbeit +8.300 +11.600 +8.300 +11.600 +14.900 +18.200 +14.900 +21.500 +18.200  Wohngruppe West  Grundriss + Ansicht  Studienmodell, 1:200
+34.700 +31.400 +28.100 +24.800 +21.500 +18.200 +14.900 +8.300 +18.200 +14.900 +11.600 Berlin | Deutschland Individuelle Arbeit | 2023

Wohntypologie

Die Uferhallen ist von Ost nach West unterschiedlich, und deshalb sind auch die verschiedenen Wohnungstypen angeordnet: mehr gemeinschaftliches Wohnen auf der Ostseite und mehr standardmäßiges, komfortables Wohnen auf der Westseite.

15 | 16 Uferhallen | Master-Abschlussarbeit
Berlin | Deutschland Individuelle Arbeit | 2023

 Details der Fassade, Hinzufügen •

Thesis Austellung

Pianohalle, Innenbereich

Pianohalle

Die Form des neuen Wohngebäudes ist so gestaltet, dass die bestehende “lange” Klavierhalle erhalten bleibt.

17 | 18 Uferhallen | Master-Abschlussarbeit


Berlin | Deutschland Individuelle Arbeit | 2023

DATA CHAPEL

COMMUNITY RECHENZENTRUM

Standort

Sant’Anna d’Alfaedo, Italien

Wettbewerb

Umbau - Rechenzentrum

Jahr | Ergebnis

2023 | 2. PREIS

Autor Nguyen, Quy Phu

Jury

YAC - Young Architects Competitions

 Explodierte Übersicht

 Perspektiven, Übersicht + Data Chapel

19 | 20 Data Chapel | Wettbewerb
Sant’Anna d’Alfaedo | Italien Individuelle Arbeit | 2023

ALTE SEILEREI KREATIVE NACHBARSCHAFT

Standort

Frankfurt, Deutschland

Akademisches Entwurfsstudio

Umbau - Wohnanlage

Jahr | Note 2022 | 1.3

Autor Nguyen, Quy Phu

Betreuer Prof. Dr. -Ing. Wolfgang Jung

 Konzeptskizze, Hinzufügen •

Studienmodell, Markthalle

21 | 22 Alte Seilerei | Akademisches Entwurfsstudio - Bestehender Designkontext


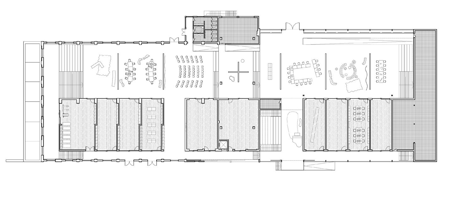
Die Alte Seilerei ist eine Seilfabrik, die in den 90er Jahren ihre Produktion eingestellt hat. Dieses Projekt gehört zu den Bemühungen, das industrielle Erbe am Leben zu erhalten, indem es neue Nutzungen vorschlägt und es zu einem lebendigen, kreativen Viertel macht. Neben der grundlegenden Renovierung werden die Gebäude in eine kohärentere Stadtsprache integriert und das architektonische Erbe besser in den Mittelpunkt gerückt. Durch die Umgestaltung und den Umbau sollen neue Raumerfahrungen geschaffen werden, wobei das Erbe und die Kapazität der Gebäude respektiert werden. Neue Strukturen werden nach dem Motto "weniger ist mehr" modular entworfen und gebaut.

Eine Nachbarschaft

Als Fabrik wurden die Arbeitshallen früher von Westen her betreten. Als öffentliches Ziel sind die Menschen nun eingeladen, die Hallen direkt von Norden her zu betreten. Dort können sie durch die Geschäfte und die offenen Veranstaltungsräume schlendern oder sich in den großzügigen Grünanlagen im Süden aufhalten.

 Gestaltungsstrategie, Markthalle

 Abbruch •

 Hinzufügen •

 Grundrisse

 Perspektive, Eingangshalle

23 | 24 Alte Seilerei | Akademisches Entwurfsstudio - Bestehender Designkontext
Mehrzweckhalle  Dachterrassengarten  Geschäfte  Musikübungsräume  Technik / Lagerung  Halle 1
Halle 2 Halle 3
I. Markthalle

Zusammenschaltung

Von außen scheint die Fabrik unverändert zu sein. Bei näherer Betrachtung zeigt sich das erneuerte Innere, da die trennenden Wände entfernt wurden, um die drei Hallen miteinander verbinden zu können. Wer durch das Gebäude reist, besucht verschiedene Zeitepochen, erkundet das wechselnde Tageslicht, erlebt die aufschlussreichen räumlichen Qualitäten und landet schließlich in der attraktiven südlichen Grünanlage.

25 | 26 Alte Seilerei | Akademisches Entwurfsstudio -
Bestehender Designkontext
Halle 1 Halle 2 Halle 3
 Ansichten und Schnitte  Perspektive, Markthalle, Halle 1

Die Interventionsstrategie ist die gleiche für die alte Seilerei. Zusätzliche Strukturen werden mit Rücksicht auf das bestehende Gebäude errichtet und nur bei Bedarf hinzugefügt.

 Schnitt, Ansicht, Grundriss  Gestaltungsstrategie, Seilerei

 Abbruch •

 Hinzufügen •

 Detail, Seilerei

BestehendeGebäudehülle
28 Alte Seilerei | Akademisches Entwurfsstudio - Bestehender Designkontext Kindergarten Play + Dining room Community shared space II. Die alte Seilerei
GemeinschaftlichgenutzterRaum Kindergarten Windschutzraum Küche
Frankfurt | Deutschland Individuelle Arbeit | 2022
Ropery workshop 6750

III. Modulares Wohnhaus

Bei einer Hanglage von 6 Prozent sind die neuen Gebäude so konzipiert, dass sie sich sanft an die Topografie anpassen.

 Schnitt, Ansicht, Grundrisse

 Gestaltungsstrategie, modulares Wohnhaus

 Hinzufügen •

29 | 30 Alte Seilerei | Akademisches Entwurfsstudio - Bestehender Designkontext
Frankfurt | Deutschland Individuelle Arbeit | 2022
Kindergarten Erster Stock - Schlaf- und Lernbereich Kindergarten Erdgeschoss - Spielbereich 6750 6750

Mäandernd

Holz als Hauptbaumaterial, die wirtschaftliche Modulbauweise, die Erhaltung des vorhandenen Grüns und die "mäandrierende" Architektur bilden zusammen ein erstrebenswertes Wohnumfeld.

 Detail, Eine vertikale Baugruppe

 Wohnumgebung

 Modul-Typen, von rechts nach links

 3x Modul, Familie

 2x Modul, Ehepaar

 1x Modul, Gemeinsame Küche

 1x Modul, Einzeln

32 Alte Seilerei | Akademisches Entwurfsstudio - Bestehender Designkontext
3375

RURAL FLOWERS

COAF SMART CENTER

Standort

Armavir, Armenien

Wettbewerb

Neues Gebäude - Lernzentrum

Jahr | Ergebnis

2022 | TOP 5 FINALISTEN

Autor Nguyen, Quy Phu

Vorsitz der Jury Architekt. Michel Mossessian

 Isometrische Zeichnung

 Aussenperspektive, Studienbereich

 Gemeinsame Halle

Ararat und Aragat

Das zentrale Thema des Entwurfs ist das sich ständig verändernde Raumerlebnis, während es die wunderschönen Ausblicke auf die berüchtigte Berglandschaft Armeniens einrahmt.

|

33 | 34 Ländliche Blumen
Wettbewerb
Armavir | Armenien Individuelle Arbeit | 2022

POTTERY STADTHOLZHAUS

Standort Frankfurt, Deutschland

Akademisches Entwurfsstudio

Neues Einfamilienhaus

Jahr | Note + Ergebnis

2022 | 1.3 + BDA 1. PREIS

Autor

Nguyen, Quy Phu

Betreuer

Prof. Joris Fach, Enno Maass

 Studienmodell  Garten im Untergeschoss

Ein Familienleben

Dieses 6 x 18 große Haus ist das Zuhause einer dreiköpfigen Töpferfamilie im städtischen Kontext von Frankfurt. Trotz der kleinen Grundfläche und der begrenzten Belichtung verspricht die Architektur ein vergleichbares Wohnerlebnis wie bei einem Einfamilienhaus, mit großzügigen Gärten und reichlich Tageslicht.

35 | 36 Pottery Stadtholzhaus | Akademisches Entwurfsstudio - Entwerfen 9 + BDA Hamburg Studienpreis

 Schnitte und Ansichten

 Perspektiven

 Diagramm, Temperaturzonen

Synergie

Die Arbeitsräume werden tagsüber genutzt, die Privaträume nachts. Die von den Arbeitsräumen erzeugte Wärme wärmt die privaten Bereiche. Diese Synergie sorgt dafür, dass das Haus Tag und Nacht einen angenehmen Wohnkomfort bietet, und das auf effiziente Weise.

37 | 38 Pottery Stadtholzhaus | Akademisches Entwurfsstudio - Entwerfen 9 + BDA Hamburg Studienpreis
Warm
Milde 19-24
Kühl
Offene 5-20 oC
21-26 oC
oC
18-22 oC
Frankfurt | Deutschland Individuelle Arbeit | 2021-2022

ERIWAN ZENTRUM

FÜR KUNST & GEMEINSCHAFT

Standort

Eriwan, Armenien

Wettbewerb Umbau

Jahr | Ergebnis

2019 | 1. PREIS

Autor

Nguyen, Quy Phu

Vorsitz der Jury

Architekt. Phillip Gumuchdjian

 Isometrische Zeichnung, Übersicht

 Aussenperspektive, Haupteingang

| Wettbewerb

39 | 40 Kunst-
Gemeindezentrum
und
Eriwan

Aufgabe des Wettbewerbs Das bestehende Gebäude, das international als NPAK - "Armenisches Zentrum für zeitgenössische experimentelle Kunst" bekannt ist, wurde in den 1980er Jahren erbaut. Das NPAK soll das neue Kunst- und Gemeinschaftszentrum von Eriwan werden. Das Gebäude soll als Treffpunkt zwischen der Kunstgemeinde, der Jugend, der breiten Öffentlichkeit, den Kreativen und der Wirtschaft fungieren. Das Zentrum soll ein Vermittler zwischen innovativem künstlerischem Denken, Massenkultur und Industrie werden.

Eriwan | Armenien Individuelle Arbeit | 2019

Es sind Licht und Luft, die in das Wohnzimmer der Gemeinschaft eingeladen werden. Auf der Plattform der Künstler, die auf das Unbekannte hinarbeiten, sind die Mount Ararats eingeladen, präsent zu sein.

 Gemeinschaftshalle der Kunst

 Schnitt

 Vorhandener Zustand, Halle

 Vorhandener Zustand, Rundfenster

41 | 42 Kunst- und Gemeindezentrum Eriwan | Wettbewerb
Natur

Konservieren

Die Erhaltung des architektonischen Erbes ist ein wesentlicher Punkt des Vorschlags. Bestehende architektonische Merkmale sollen in der neuen Architektur eine wichtige Rolle spielen.

Verbinden

Ebenerdige Wände werden entfernt, um Eingänge in alle Richtungen zu schaffen. Die Menschen sind eingeladen, die Räumlichkeiten frei zu betreten

Multifunktional

Die große Ausstellungshalle fungiert gleichzeitig als Wohnzimmer der Gemeinschaft. Die Halle ist als Gemeinschaftszentrum, als Treffpunkt und als Ausstellungsraum für Kunst konzipiert.

Kunst & Kultur

Das neue Symbol von NPAK ist eine Struktur auf der Kippe, leicht schwebend, der Zukunft zugeneigt. Die Struktur steht für die ständige Bewegung in der kulturellen Entwicklung.

43 | 44 Kunst- und Gemeindezentrum Eriwan | Wettbewerb
 Isometrische Explosionszeichnung  Skizze, Programme  Konzeptfindung Piktogramme

Geburtstag: 31 Januar 1995 in Vietnam

Adresse: 60323 Frankfurt am Main

Tel: +49 162 56 11 566

E-mail: nguyenquyphu29@gmail.com

IG: @nguyen.quyphu

Online Portfolio: nguyen-quyphu.com

Copyright © 2023 Nguyen, Quy Phu

NGUYEN, QUY PHU

AUSBILDUNG

Seit 12.2022

Entwurfsarchitekt - PLANQUADRAT Elfers Geskes Krämer PartG mbB

· Projekttypen (LP 1-4): Wohnen, Büro, Labor

· Erstellung von Fallstudien, Visualisierungen und Präsentationsunterlagen

2018 - 2021

Entwurfsarchitekt - TAA Design + MIA Design Studio

· Projekttypen (LP 1-5): Wohnen, Büro, Hotel & Hospitality

2019 Daiwa Industry, Tadao Ando Office

· Praktikant bei Daiwa Industry, Architektur-Feldstudie in der Region Kansai

· Org.: Tadao Ando Office, Osaka-Stiftung für internationalen Austausch

BILDUNG

04.2021 - 02.2023

Advanced Architecture (M.Sc) - Frankfurt University of Applied Sciences

· Masterarbeit Note: 1.0

· Empfänger eines DAAD-Studienstipendiums

2013 - 2018

Bachelor-Abschluss in Architektur - Hanoi Architektur Universität

· Erstklassiger Absolvent

AKTIVITÄTEN & WETTBEWERBE

2023

2022

2021

2020

2019

2. Preis + Green Tech Preis - YAC Manni Group Data Landscape

1. Preis - BDA Hamburg Studienpreis

Top 5 - COAF Armavir Campus

· Jury: Architekt. Michel Mossessian

Waterscape Sommerschule

· Arbeit in einem Team für das Wasserlandschaftskonzept von Kortrijk

1. Preis - Alternative 33 Wettbewerb für Stadtgestaltung

Merit Preis - 54th Central Glass Wettbewerb

· Jury: Prof. Hiroshi Naito, Kengo Kuma

1. Preis - Reviving NPAK Internationalen Wettbewerb

· Jury: Architekt. Philip Gumuchdjian

AAC Spring Workshop

· Arbeit in einem Team für das Konzept des Japanischen Palais in Dresden

· Org.: aac Academy for Architectural Culture, gmp Foundation

2017

1. Preis - Arcasia Studentenwettbewerb

2. Preis - Schwebend Siedlungen im Mekong-Delta

· Jury: Professoren von BTU Cottbus & Vietnam Association of Architects

EDV KENNTNISS (Fortgeschrittene Benutzer)

Revit, Autocad, Sketchup, Enscape3D, Lumion

Adobe Creative Suite, MS Office

(Allgemeine Kenntnisse)

Vectorworks, Archicad, Rhino, Grasshopper

SPRACHKENNTNISSE Englisch (C2)

Deutsch (A2-B1) Vietnamesisch

Turn static files into dynamic content formats.

Create a flipbook
Issuu converts static files into: digital portfolios, online yearbooks, online catalogs, digital photo albums and more. Sign up and create your flipbook.