Ng Hou Ming Architecture Portfolio

Page 1


Portfolio

Ng Hou Ming, Year 4, University of Hong Kong

(Expected to graduate Aug 2025)

1. Aberdeen Municipal p. 03

Instructor: Yeung, Jonathan T.H

HKU Y3 Spring

Architecture studio

Individual work

2. Minimal surface museum p. 09

Instructor: Yeung, Jonathan T.H

HKU Y3 Spring

Architecture studio

Individual work

4. Reimagining Venice p. 15

Instructor: Marie Isabel

AA School Y4 Spring

Exchange architecture studio

Individual work

3. Dongguan Remiges p. 18

Instructor: Chang, Su HKU Y3 Summer

Architecture competition

Group work

5. Slim House p. 22

Instructor: Ho, Wesley H.L.

HKU Y2 Fall

Architecture studio

Individual work

7. House of Porosity p. 28

Instructor: Ratoi, Lidia V. HKU Y2 Spring

Architecture studio

Individual work

8. Constructing Landscapes p. 31

Instructor: Echeverri, Natalia HKU Y2 Spring

Landscape studio

Individual work

6. Making ways and the ways of making p. 25

Instructor: Ottevaere, Olivier HKU Y3 Summer

Architecture elective course

Individual work

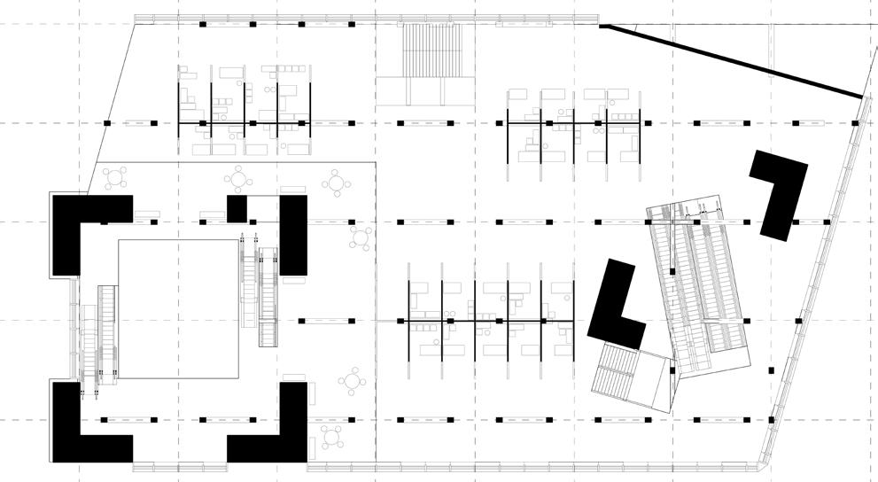
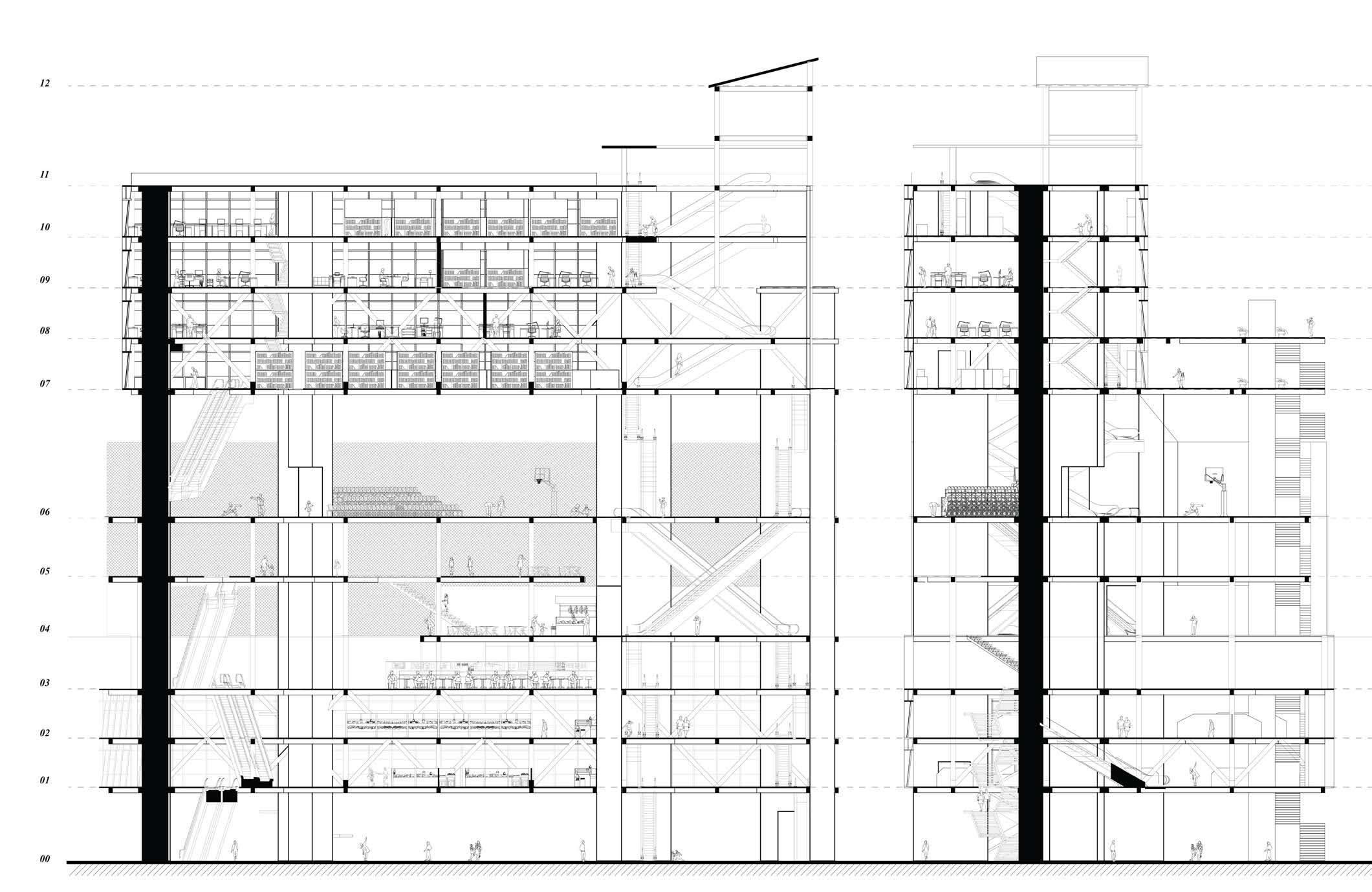
| Aberdeen Municipal |

HKU Year 3, Semester 2, Tutor: Yeung, Jonathan T.H., Individual project

The Aberdeen Municipal Project encourages dynamic interaction and exploration of the verticality of the structure. It focuses on three main circulation cores of different accessibility, including - a direct access escalator that allows fast and direct travelling to each function,

- long escalators that avoids repetitive functions which allow more direct access to different functional spaces,

- and a meandering atrium that encourages slow movement and visual connectivity across different levels, with escalators and elevators enhance accessibility and foster accidental encounters.

The three circulation cores

The building’s massing is rotated to create engaging spatial sequences and interactions. This rotation facilitates unique user experiences and also contributes to the building’s interaction with its urban context, providing shaded outdoor areas for community engagement.

The central focus is on how the three core circulation areas interact with public and functional spaces, defining their purposes and create unique experiences within these areas, and of these transitional spaces between these cores and the functional areas. This ambiguity allows users to interpret and determine the use of these intermediary spaces themselves.

Site ground condition
The three cores

Three cores - two masses

Structurally, the building is divided into two solid masses, creating two open spaces between them. The two solid masses are attached to the core support, enclosed and utilizing slanted trusses in two directions on the first floor, followed by slanted trusses in one direction on the second floor, and finally, only straight columns on the third and fourth floors to maintain structural integrity. The entire structure is connected through metal beams to provide additional support.

The ground floor features a completely open plan, where the bottom mass is floating, supported only by the three cores, creating an expansive open area at the ground level for maximum circulation such as weekend markets, performances, or resting places. The central open space between the two solid masses is encapsulated, ensuring safety while maximizing porosity and air circulation, creating a harmonious balance between solid masses and open spaces.

1/F Wet Market
2/f Dry Market

The design intentionally incorporates ambiguous spaces between the core circulation and the functional spaces, as highlighted by the grey tile texture in the provided images. These spaces serve to smooth out the threshold between circulation and functional areas, creating a transition and versatile, breathing spaces that users can adapt to their needs.

Three circulation cores - direct/semi-direct/meandering

Steel structure model
Three cores - threshold spaces

The Museum - an indepth analysis on minimal surfaces and grid.

| min-museum | HKU Year 3, Semester 1, Tutor: Yeung, Jonathan T.H., Individual project

A Space/Form experiement of grid, surfaces and structure

The concept of this museum project starts with the creation of various massings through a grid system, each consisting of volumes of different areas and floor heights for specific functions. These volumes are then interconnected and relaxed by fixing the outermost boundary. This relaxation process generates a minimally tense surface that metaphorically reflects the interplay of functions within the space, promoting a seamless transition between them. The minimal surface grid shell, consisting of just two faces, offers two contrasting experiences: one emphasizes a minimalist interior, while the other reveals the structural framework that supports the form and opens up to the exterior environment.

The project addresses the challenge of merging a grid system with minimal surfaces to shape a nearly free-form structure. By aligning the shape’s edges to a grid, a structured perimeter is established. A quad grid is then projected vertically to create a gridshell, supported by columns at each grid intersection, enhancing structural stability. Throughout the project, the grid is essential, guiding initial volume creation, ensuring logical edge alignment, and providing necessary support for the structure.

Massing iterations
the role of minimal surface - using grid as a starting point

/As a loop/

An intrinsic attribute of minimal surfaces is their ability to create seamless bridges between volumes, which feed back into themselves, the resulting minimal surface forms a loop, reminiscent of a torus but with varying levels. It defines the interior and exterior of the loop, playing with the grid to create spatially intriguing inside-outside moments.

/As a connection/

It provide a means to join two regular spaces. A relaxed mesh spanning two clear boundaries creates a transition between spaces of distinct functions, forming a tunnel, a liminal space, or a connection. Rather than conforming to the grid, it punctures through, creating shortcuts, stitching moments together, and smoothing transitions.

/As a boundary/

This relates more to the metaphysical experience within a large confined space, defined not by lines and shapes but by a borderless surface that morphs and blurs the multiple volumes within the grid system.

Pattern and Rhythm: A Tidal Dance

This project interrogates the liminal condition between “terra firma” and aqueous territory along Venice’s Riva degli Schiavoni, proposing a parametric exoskeleton that mediates between static architectural vernacular and dynamic environmental flux. The intervention operates as both infrastructure and social condenser, challenging conventional binary relationships between wet/dry conditions through a nuanced exploration of threshold spaces.

The project’s theoretical framework emerges from a critical analysis of Venice’s existing urban matrices—where the rigid geometry of historic facades interfaces with the fluid dynamics of acqua alta. Rather than approaching flooding as a problem to be solved, the proposal leverages these hydrological forces as generative agents in spatial production, manifesting as a responsive membrane

that oscillates between structure and void.

Through computational analysis of existing facade patterns—fenestration rhythms, structural grids, and circulation vectors—the design synthesizes parametric templates that respond to both contextual and performative imperatives. The programmatic strategy deliberately blurs traditional venetian spatial hierarchies, allowing functions to transform in response to water levels: market spaces become elevated public forums, while circulation paths morph into social condensers. This fluid programming suggests a new paradigm where architectural intervention becomes an active participant in the city’s ecological and social metabolism while preserving its cultural essense.

| DongGuan Remiges |

Tutor: Su Chang, Group competition, as team leader, in charge of modelling, rendering and conceptual design

Ascending Common Horizon Square

A Continuous Ground Plane for Collective Engagement

Our project creates a continuous public gathering plane beyond mere functionality, serving as a dynamic hub for Hong Kong and Macau’s youth to converge and interact. The concept of “collectiveness” transforms the space into a realm for connection and community engagement, responding to the area’s fragmented urban fabric by establishing connectivity within chaos.

Anchored by an existing station, the design establishes two dynamic axes guiding site circulation. Two mass clusters emerge as public remiges, their slanted roofs integrating with the station to form a cohesive public ground plane. This approach harmonizes with existing infrastructure while creating new spatial experiences.

Dongguan Remiges functions as an art and cultural hub that prioritizes publicness through its continuous ground plane, fostering interaction while balancing retail, community, and natural elements. It stands as a threshold between nature and culture, local and global, past and future.

| Slim House |

HKU Year 2, Semester 1, Tutor: Ho, Wesley H.L., Individual project

The Slim House project accommodates an entire house within a constrained 6-meter wide space. By twisting the floor elevation, the design manipulates the narrow floor space to create divisions that feel more expansive than they physically are. This twisting not only delineates spatial boundaries but also varies the elevations within the house, optimizing the use of vertical space for storage, seating, and other functional moments.

Back Elevation
Front Elevation
Slope as a floor
Slope as a partition
Slope as a roof

Inside, outside, intertwin

The dwelling is divided into 4 levels, each serving a specific purpose and catering to the occupants’ needs for both openness and privacy. The ground floor garden and second floor working space are designed as open, permeable spaces that promote natural ventilation and a connection to the external environment. Conversely, the first floor, housing the shared kitchen and living room, and the third floor, containing the bedrooms, are enclosed volumes that provide a sense of refuge and security. I use an interplay of open and closed spatial configurations, coupled with the intertwining circulation paths of the two families to create a dynamic and adaptable living environment. The residents can modulate their level of interaction with others based on their individual preferences, allowing for a balance between communal living and personal retreat within the home.

| The making ways and the ways of making |

HKU Year 3, Summer semester, Tutor: Ottevaere, Olivier, Individual project

This innovative residential design showcases a captivating interplay of form, space, and context through the strategic use of four distinct masses divided into three compartments. The symbolic partitioning is expressed through the slits formed by the intersecting roof planes, each employing a rule-based triangulation technique for a seamless transition between varying slopes.

The design integrates with its surroundings through a geometric approach, with roof surfaces generated through lofting between different inclinations. Pure timber as the primary structural material enhances the natural translation between the built form and its context. Strategic placement of slits ensures optimal sunlight exposure and natural air circulation.

The varying roof inclinations create diverse overhang spaces, ranging from single to double floor heights, resulting in captivating moments in relation to the fragmented ground conditions. The rule-based

construction system enables precise fabrication of timber elements, accommodating specific angles for each frame, resulting in a dynamic and fluid transition between structural components.

This negotiates between the boundaries of residential design, blending form, function, and context through innovative use of massing, roof planes, and structural systems. At the end a harmonious integration with the landscape with dynamic and engaging spaces is created that elevate the human experience.

Structurally speaking, composed of 11 frames with a gradual change in the angle of the beams, the timber structure is assembled using an A|B|A method, where the B plane acts as joints and is sandwiched between two A frames, connected by bolts. All the frames are then connected in series to reduce buckling, and a triangulated roof is deployed to showcase the gradual change in degree.

The site - mountainous terrain in Yun Nan

Section/dynamic/tectonics

Plan (without roof)
Plan (with triangulated roof)
Structural model
Front elevation

| House of Porosity |

HKU Year 2, Semester 2, Tutor: Ratoi, Lidia V., Individual project

This project involves putting a house together from a series of distinct moments, beginning with the design of various intersecting massings or blocks. Each intersection is then examined at a microscale to create interventions or devices that facilitate diverse interactions with the natural environment through experimental spatial sequences.

The house is divided into blocks of varying elevations and sizes, guided by a central tangent curve. This curve, composed of arcs generated by focal points and joined at their tangents, symbolizes the experience

and interaction with the three primary experiences of nature: sunlight, which is captured through: - an atrium - giant ficus microcarpa tree - and a lake.

Each element is strategically integrated into the design to offer different perspectives, whether it’s framing views, providing a panoramic experience, or focusing attention on specific details. These viewpoints are to enhance the interaction with these natural features and enrich the occupant’s experience of the space.

the Lake
The Tree
The Atrium

Sketch plan diagram

Sketch section diagram

Journey/curvature/ normals/directionality

Partition iterations

Sectional model - interior facing the tree
Sectional model - exterior facing the lake

| Constructing landscapes: Park Tai Tau Chau |

HKU Year 2,

1,

The park is a phenomenological approach to landscape architecture through strategic topographical manipulation and programmatic layering. The design methodology interrogates the site’s existing geological conditions to create two parts: an observational circuit of elevated pavilions and a curated tree museum.

The intervention operates at multiple temporal and spatial scales, responding to the existing rhythms while engaging with the site’s inherent tectonics. Through careful articulation of ground conditions, the project creates a gradient of experiences that focuses on circulation, marking specific moments through architectural insertions that respond to the terrain’s natural inflections.

Existing site illustration
Top section model

Turn static files into dynamic content formats.

Create a flipbook
Issuu converts static files into: digital portfolios, online yearbooks, online catalogs, digital photo albums and more. Sign up and create your flipbook.
Ng Hou Ming Architecture Portfolio by epsilon matt - Issuu