Skip to main content

S25_Human Factors for Design

Page 1


Ballard, Kathryn Marie

Ballenger, Carrie Denise

Baskin, Aubyn Zae

Bommarito, Sydney Jane

Brady, Macy Paige

Brandt, Burton Jeffares

Brighton, Blakely Anne Brobston, Parker Grace

Brown, Isabella Rose

Burns, Emmalyn Morrand

Callaway, Claire Madeline

Chiartosini, Sofia

Clark, Shelbe Bronwyn

Clubine, Brennah

Condon, Finley Grace Cook, Riley C

Costley, Alexandra Riley

Crum, Monroe McKinley

Dabney, Caroline M

Dedmon, Olivia E

Deramus, Lindsay A

Duperroir, Carlyn

Embrey, Kenleigh Rhea

Foley, Emerson S Garcia, Halley C

Gaston, Sydney Claire

Gomez Hincapie, Maria Isabel

Goodwin, Savannah M

Green, Camilla L Herring, Madden S Hill, Katie E Hopkins, Presley Turner

Howard, Macey J Hughes, Eryn Marisa

Hulbert, Kami Elizabeth Jernigan, Katelyn M

Kalkstein, Dakota Nathaniel Kane, Turner Joseph Keaton, Olivia L Kennish, Madelyn Rose Lee, Maggie Elizabeth Lundien, Emerson ZhenLi Maloney, Saylor E Martinez, Wendi Alene

McNeil, Mary Virginia Lee

McWethy, Gavin Pate

Meith, Gabriella K

Meredith, Brandi L

Morales Morales, Maria Valentina Mos, Morgan Lilith

Nguyen, Tram Hong

Normand, Caroline Rose

Osier, Campbell W

Phelan, Olivia Randall

Pointer, Macie

Purcel, Benjamin Scott

Reidy, Summer G Rice, Taylor Elizabeth Riley, Madilyn L Romero, Lauren Grace Rye, Savannah Avery Sanchez, Isabella Grace

Sanders, Anna Isabella Sexton, Mikala M

Shillings, Drew Joseph Siebenmorgen, Elijah Patrick Simpson, Caroline Grace

Smith, Alexa Michelle

Smith, Andrea Lee

Stringer, Tristan Alexander Swan, Audrey F Swanson, Caitlin D Torres, Margarita Vite, Maria G Wall, Anna Claire

Webb, Avery Cate

Williams, Ann-Elizabeth Ryan Wixson, Grace K

Yelverton, Margaret Parker

Young, Abigail Kathleen Young, Kara Jean Young, Lauren Paige

Zenthoefer, Emma Marie

CONTRIBUTORS

Course

IARD 48103 Human Factors for Design in Spring 2025

Students

Brobston, Parker Grace

Callaway, Claire Madeline

Clubine, Brennah

Herring, Madden S

Hill, Katie E

Meith, Gabriella K

Instructor Jinoh Park

Teaching Assistant Esta Hasa

*. There is no restriction on academic use of the contents of this book.

*. The copyright of all design results contained in this book belongs to each (student) designer.

01 CONTENTS

02 APPLIED CIDA STANDARDS

04 Brobston, Parker Grace
82 Callaway, Claire Madeline
162 Clubine, Brennah
186 Herring, Madden S
210 Hill, Katie E
288 Meith, Gabriella K

APPLIED CIDA STANDARDS

Standard 4. Global Context - Interior designers have a global view and consider social, cultural, economic, and ecological contexts in all aspects of their work.

4c – Student work demonstrates understanding of how designers consider the inter-dependence of multiple contextual elements related to a design solution and their holistic, potential impact on the user(s).

-> Assignment #2-13 by analyzing environmental and human factors

4e – The interior design program provides exposure to a variety of cultural norms.

-> Lectures and reviews

4f – The interior design program provides opportunities for developing multi-cultural awareness

-> Lectures and reviews

Standard 6. Business Practices and Professionalism - Interior designers understand the principles, processes, and responsibilities that define the profession and the value of interior design to society.

6a – Students have awareness of the contexts for interior design practice.

-> Assignment #2-13 by analyzing environmental and human factors with expectation

6c – Students have awareness of the breadth and depth of interior design’s impact and value.

-> Assignment #2-13 by analyzing environmental and human factors with expectation

6n – The interior design program provides exposure to the role and value of life-long learning.

-> Lectures, Assignments, and Reviews

Standard 7. Human-Centered Design - Interior designers apply knowledge of human experience and behavior to designing the built environment.

7a – Student work demonstrates understanding of theories related to the impact of the built environment on human experience, behavior, and performance.

-> Assignment #2-13 by analyzing environmental and human factors through abstract, sequence diagram, and axonometric

7b – Student work demonstrates understanding of the relationship between the designed environment and human experience, wellbeing, behavior, and performance.

-> Assignment #2-13 by analyzing environmental and human factors through abstract, sequence diagram, and axonometric; especially in Assignment #7, 12, and 13

7c – Student work demonstrates the ability to gather and apply human-centered evidence.

-> Assignment #2-13 by analyzing environmental and human factors through abstract, sequence diagram, and axonometric

7d – Student work demonstrates the ability to analyze and synthesize human perception and behavior patterns to inform design solutions.

-> Assignment #2-13 by analyzing environmental and human factors through abstract, sequence diagram, and axonometric

7f – Student work demonstrates the ability to apply wayfinding techniques to design solutions.

-> Assignment #2-13 by analyzing environmental and human factors through abstract, sequence diagram, and axonometric; especially in Assignment #10-11

Standard 8. Design Process - Interior designers employ all aspects of the design process to creatively solve a design problem.

8i – Students understand the importance of evaluating the relevance and reliability of information and research impacting design solutions.

-> Lectures, Assignments, and Reviews

Standard 9. Communication - Interior designers are effective communicators.

9a – Students are able to effectively interpret and communicate data and research.

-> Assignment #2-13 by analyzing environmental and human factors through abstract, sequence diagram, and axonometric

9b – Students are able to effectively express ideas and their rationale in oral communication.

-> Presentation in Reviews

9c – Students are able to effectively express ideas and their rationale in written communication.

-> Assignment #2-13 by analyzing environmental and human factors through abstract

9e – Students are able to effectively express project solutions using a variety of visual communication techniques and technologies appropriate to a range of purposes and audiences.

-> Assignment #2-13 by analyzing environmental and human factors through sequence diagram and axonometric

Standard 12. Light and Color - Interior designers apply the principles and theories of light and color effectively in relation to environmental impact and human wellbeing.

12e – Students understand how light and color impact health, safety, and wellbeing in the interior environment.

-> Assignment #2-13 by analyzing environmental and human factors through abstract, sequence diagram, and axonometric; especially in Assignment #3, 7, 12, and 13

12f – Students have awareness of a range of sources for information and research about color.

-> Assignment #2-13 by analyzing environmental and human factors through abstract, sequence diagram, and axonometric; especially in Assignment #3, 7, 12, and 13

Standard 16. Regulations and Guidelines - Interior designers apply laws, codes, standards, and guidelines that impact human experience of interior spaces.

16b – Students work demonstrates understanding of standards and guidelines related to sustainability and wellness.

-> Assignment #2-13 by analyzing environmental and human factors through abstract, sequence diagram, and axonometric; especially in Assignment #3 and 13

16c – Students work demonstrates understanding of sector-specific regulations and guidelines related to construction, products, and materials.

-> Assignment #2-13 by analyzing environmental and human factors through abstract, sequence diagram, and axonometric; especially in Assignment #5

My Workstation + Typical

1 1 2 2 2 3 3 3 1 Water Bottle Laptop Pen and Paper

Parker Brobston

Where

am I most likely to unconsciously buy something?

ProjectInformation

Items Your Answers base on your selected project

Project Name

Hershey’s Chocolate World

Designer or Architect JGA

Project Address

Google map link to the project

Human Factor(s)

Environmental Factor(s)

Social Factor(s)

Outcomes expected as a result of the combination of the factors above

Reference for expected outcomes above (APA style)

New York-New York Hotel & Casino

3790 South Las Vegas Boulevard Las Vegas, NV89109 United States

https://www.google.com/maps/place/Hershey's+Chocolate+World/@36.1017883,115.1761405,16z/data=!3m2!4b1!5s0x80c8c5ccd9a72d1b:0xe888db598d649aeb!4m6!3m5!1s0x80c8c43 32e598b2d:0x9182a78eb66986e1!8m2!3d36.101784!4d115.1735602!16s%2Fg%2F11b697y3t3?entry=ttu&g_ep=EgoyMDI1MDIxOS4xIKXMDSoASAFQAw%3D%3D

The space utilizes oversized elements to make occupants feel immersed in the scale of the project.

The space uses wayfinding techniques such as flooring changes, signage, and color coding to move users through the space.

The space is designed for a wide variety of people to enjoy and mingle in the space, through the creation of pockets and themed areas.

Combined, these factors create an immersive environment where everyone can find enjoyment, while giving subtle cues to make purchases.

Hershey’s Chocolate World. JGA. (n.d.-b). http://jga.com/portfolio/hersheys-chocolate-world/

The façade of the building is covered in illuminated, oversized candy bars to draw attention to the building.

When you enter the space, you are greeted by a glass elevator, a winding staircase, and displays shaped like Hershey Kisses, filled with merchandise.

Walking further into the lower floor, you reach a pastry display filled with enticing treats, and a counter to purchase then at.

Circling back towards the stairs, you pass a wall full of different flavored Hershey kisses, and a space that allows you to create your own goodie bag.

After ascending the staircase, you are greeted by the Reese’s area of the store, which is complete with a chocolate Empire State Building, and full of merchandise.

Continuing around the upstairs, there is an area that allows you to create personalized candy bars.

Back downstairs, on your way past one of the many check-out areas, you pass many gondolas full of merchandise, and a chocolate Statue of Liberty.

Finally, you reach the interior entrance/exit of the store, which acts as a threshold between the New York, New York Casino, and Hershey’s World of Chocolate

I chose to highlight Hershey’s Chocolate World for its immersive design. Having visited the Las Vegas location, I even found myself unintentionally purchasing a candy bar proof of its captivating experience.

JGA aimed to create an environment that seamlessly blends with the bold energy of Las Vegas, drawing in a diverse range of visitors. The store’s over-thetop façade immediately catches your attention, leading you into a meticulously themed space. The terrazzo flooring mimics a flowing river of melted chocolate, subtly guiding guests through the store, while merchandise displays take the silhouette of a Hershey’s Kiss. These thoughtful details craft an enticing atmosphere, designed to encourage purchases.

The organic curves of the staircase naturally invite visitors to explore the upper level, while color-coded sections enhance wayfinding. The Jolly Rancher area bursts with vibrant greens, purples, pinks, and blues, while the Reese’s section is unmistakably orange and brown, matching the brand’s signature look. These visual cues ensure a seamless shopping experience, making the space both engaging and easy to navigate.

ABSTRACT

I chose to highlight Hershey’s Chocolate World for its immersive design. Having visited Vegas location, I even found myself unintentionally purchasing a candy bar proof captivating experience.

JGA aimed to create an environment that seamlessly blends with the bold energy of drawing in a diverse range of visitors. The store’s over-the-top façade immediately catches attention, leading you into a meticulously themed space. The terrazzo flooring mimics river of melted chocolate, subtly guiding guests through the store, while merchandise take the silhouette of a Hershey’s Kiss. These thoughtful details craft an enticing atmosphere, designed to encourage purchases.

The organic curves of the staircase naturally invite visitors to explore the upper level, coded sections enhance wayfinding. The Jolly Rancher area bursts with vibrant greens, pinks, and blues, while the Reese’s section is unmistakably orange and brown, matching brand’s signature look. These visual cues ensure a seamless shopping experience, making space both engaging and easy to navigate.

SEQUENCE DIAGRAM

visited the Las of its of Las Vegas, catches your mimics a flowing merchandise displays atmosphere, level, while colorgreens, purples, matching the making the

CASEWORK DISPLAY AXONOMETRIC

GLASS DISPLAY CASE

CORNER DISPLAY

CIRCULAR CEILING DROPDOWN

INTERIOR COUNTER

REFERENCE

Hershey’s Chocolate World. JGA. (n.d.-b). http://jga.com/portfolio/hersheys-chocolate-world/

What is the LDK (Living-Dining-Kitchen) setting of the housing that allows me to communicate with my college friends during my college life?

ProjectInformation

Items Your Answers base on your selected project

Project Name

Designer or Architect

Project Address

Google map link to the project

Human Factor(s)

Environmental Factor(s)

Social Factor(s)

Outcomes expected as a result of the combination of the factors above

Reference for expected outcomes above (APA style)

The Fairways at Fayetteville

Lindsay Management Co. Fugitt and Associates Architects

3600 W. Player Avenue Fayetteville, AR 72704

https://www.google.com/maps/place/3600+W+Player+Ln,+Fayetteville,+AR+72704/data=!4m2!3m1!1s0x 87c96e1409e99df7:0x418030bcc376731d?sa=X&ved=1t:242&ictx=111

The public spaces in my apartment are very open and visually connected, causing a lack of privacy.

There is not much sunlight because the covered balcony in the living room blocks sunlight. We live on the third floor, so there is no upstairs neighbor noise, but we have loud downstairs neighbors we can hear through the floor.

There is not really a dining room in my apartment. This means that we lose a social space, but it allows for a larger living room for gathering.

We have set up our apartment to be a comforting and welcoming place for all visitors. The more open plan allows for communication and connection through spaces.

hFloor plans of the fairways at Fayetteville in Fayetteville, AR. (n.d.).

https://www.fairwaysatfayetteville.apartments/floorplans.aspx

• When you enter the apartment, you enter into a hallway, where you can see the living room at the end of the hallway.

• As you walk through the space, you will walk past the kitchen on your left, with rows of cabinets, a fridge, oven, stove, microwave, and a peninsula. There is also a door leading into the laundry room.

• On one edge of the peninsula, there is a bar counter. We have placed a cedar chest for seating.

• Finally, you reach the living space, with a couch, coffee tables, a door leading to the balcony, and a tv (not pictured).

You enter the space, and immediately walk through a narrow hallway. This helps separate the outside from the inside world. You are then deposited at the entrance to the kitchen and given a choice to enter or continue into the living room.

As a base, the apartment is not very welcoming. My roommate Katie and I have added furniture, ambient lighting, and personal touches to create a comfortable and welcoming space to live and connect with friends.

AXONOMETRIC

ABSTRACT

You enter the space, and immediately walk through a narrow hallway. This helps separate the outside from the inside world. are then deposited at the entrance to the kitchen and given a choice to enter or continue into the living room. As a base, the apartment is not very welcoming. My roommate Katie and I have added furniture, ambient lighting, and personal touches to create comfortable and welcoming space to live and connect with friends.

hFloor plans of the fairways at Fayetteville in Fayetteville, AR. (n.d.). https://www.fairwaysatfayetteville.apart ments/floorplans.aspx

What is the Waiting

Place & Diagnosis Room

of the

healthcare

facility that makes people more comfortable and less nervous?

ProjectInformation

Items

Project Name

Designer or Architect

Project Address

Google map link to the project

Human Factor(s)

Environmental Factor(s)

Social Factor(s)

Outcomes expected as a result of the combination of the factors above

Reference for expected outcomes above (APA style)

Your Answers base on your selected project

Allegheny Health Network Wexford Hospital

HKS

12351 Perry Hwy, Wexford, PA 15090

https://www.google.com/maps?rlz=1C1CHBF_enUS1012US1012&um=1&ie=UTF8&fb=1&gl=us&sa=X&geocode=KdlPMMJziTSIMeZ0CQHXN0D&daddr=12351+Perry+Hwy,+Wexford,+PA+15090

Space planning creates optimized flow between spaces to allow for ease of use for occupants. Varied seating allows for comfort for all occupants.

Floor to ceiling windows provide optimal natural lighting, and help rooms feel larger and more connected to the natural world.

Varied seating in waiting area to allow for optimal social interactions. Varied seating in diagnosis rooms to ensure optimized patient-caregiver interactions.

Combined, these factors create an open and welcoming space, that is flexible and easy to navigate. The space provides comfort to those going through hard times in their health, and allows for social interactions through seating areas.

Author, H. G. (2024, January 4). Four design strategies to extend the lifespan of healthcare facilities. HCD Magazine. https://healthcaredesignmagazine.com/trends/interior-design/four-design-strategies-toextend-the-lifespan-of-healthcare-facilities/

You enter the space through the doors under the overhang. This area has a car loop for ease of access.

After entering, you are met with the reception desks. This is a clearly marked area, and is strategically placed to allow for maximum convenience.

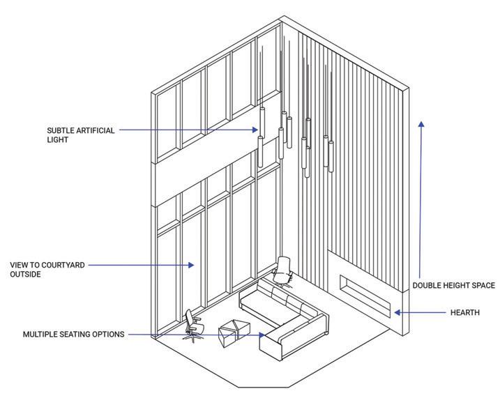
Adjacent to the reception area, there is a waiting area with a variety of seating options, and a fireplace.

The Allegheny Health Network Wexford Hospital is a well planned out space. The entrance is located beneath an overhanging portion of the building, right next to the vehicle loop. This allows for ease of access to all. Once you enter, the reception desk is right in from of you, to aid in checking in, finding directions, and answering questions. The waiting area is directly adjacent to the reception desk, complete with a variety of seating options and a fireplace. This allows for people to do many different activities while waiting. Finally, the diagnosis rooms are full of natural light, due to the large floor to ceiling windows. These windows also make the room feel larger. There are several seating options in the diagnosis rooms, allowing for flexibility when utilizing the space.

The diagnosis rooms are large with ample natural lighting coming in through floor to ceiling windows. There are also varied seating options to meet the needs of the patient and care provider.

AXONOMETRIC

SMALL COUCH

ARMCHAIR

MEDICAL EQUIPMENT

LARGE COUCH

PATIENT TABLE

ABSTRACT

The Allegheny Health Network Wexford Hospital is a well planned out space. The entrance is located beneath an overhanging portion of the building, right next to the vehicle loop. This allows for ease of access to all. Once you enter, the reception desk is right in from of you, to aid in checking in, finding directions, and answering questions. The waiting area is directly adjacent to the reception desk, complete with a variety of seating options and a fireplace. This allows people to do many different activities while waiting. Finally, the diagnosis rooms are full of natural light, due to the large floor to ceiling windows. These windows also make the room feel larger. There are several seating options in the diagnosis rooms, allowing for flexibility when utilizing the space.

SEQUENCE DIAGRAM

AXONOMETRIC

LARGE COUCH MEDICAL EQUIPMENT

PATIENT TABLE

Author, H. G. (2024, January 4). Four design strategies to extend the lifespan of healthcare facilities. HCD Magazine. https://healthcaredesignmagazine.com/tren ds/interior-design/four-design-strategies-toextend-the-lifespan-of-healthcare-facilities/

What is the role of Level, Height, and Scale (or others) in governmental and religious spaces to display power and build relationships with the public?

ProjectInformation

Items Your Answers base on your selected project

Project Name FrihamnskyrkanChurch

Designer or Architect Elding Oscarson

Project Address Frihamnen 14, 417 70 Göteborg, Sweden

Google map link to the project

Human Factor(s)

Environmental Factor(s)

Social Factor(s)

Outcomes expected as a result of the combination of the factors above

Reference for expected outcomes above (APA style)

https://www.google.com/maps/place/Smyrnaf%C3%B6rsamlingen+i+G%C3%B6teborg/@57.7166134,11. 9577199,17z/data=!3m1!4b1!4m6!3m5!1s0x464ff36ec831f987:0xddb8059330ced260!8m2!3d57.716610 6!4d11.9602948!16s%2Fg%2F1yg4fb2df?entry=ttu&g_ep=EgoyMDI1MDMxMi4wIKXMDSoASAFQAw%3D %3D

Ground level seating allows those with mobility issues to still participate in religious ceremonies, and the sound system allows for those with hearing disabilities to still be able to hear.

Large windows allow natural light to enter the space, and natural colors and materials bring a grounded feeling to the space.

The raised stage at the front allows for the religious leader to be seen from anywhere, while staggered seating and the lack of columns allows for everyone to have the best view.

This space is very welcoming and is very well designed for religious ceremonies. The space allows for all to participate in the ceremony, and to have visual connection to the religious leader.

Scruton, R. (2025, February 8). Religious Architecture Encyclopædia Britannica. https://www.britannica.com/topic/architecture/Religious-architecture

The raised worship space allows the ground level to be transparent and it can be entered from all sides.

Once you enter the space, you have the option to go up a staircase to access the worship space.

The worship space has several seating levels, allowing comfort for all who occupy the space.

The remaining seating in the space is staggered to allow for a connection to nature and giving a nod to traditional practices of worshipping outdoors.

The raised stage allows all participants to see the religious figure.

Above the worship space, there are educational and social spaces to allow for connections in smaller group settings.

This religious building is a mixed-use facility that holds worship and educational spaces, cafes, music studios and more. The worship space creates connections to nature, allowing a grounded sanctuary with ample natural light. It has a raised stage at the front to allow the religious figure to be seen by all. The staggered seating levels in the worship space emulate the landscape of Sweden. The upper levels are full of various social spaces, allowing for connections in smaller group settings.

Raised Stage

Natural Design Elements

Ground Level Seating

ABSTRACT

This religious building is a mixed-use facility that holds worship and educational spaces, cafes, music studios and more. The worship space creates connections to nature, allowing a grounded sanctuary with ample natural light. It has a raised stage at the front to allow the religious figure to be seen by all. The staggered seating levels in the worship space emulate the landscape of Sweden. The upper levels are full of various social spaces, allowing for connections in smaller group settings.

SEQUENCE DIAGRAM

Scruton, R. (2025, February 8). Religious Architecture Encyclopædia Britannica. https://www.britannica.com/topic/archit ecture/Religious-architecture

AXONOMETRIC

Raised Stage Natural Design Elements

Wall for Screen Pulpit

Ground Level Seating

Wall for Screen Pulpit

What are the ways that design (environmental factors) can support wayfinding and (sequential) information to ensure safety and on-time travel in your transportation precedent? ProjectInformation

Items Your Answers base on your selected project

Project Name Narita International Airport

Designer or Architect Nikken Sekkei, PARTY, Ryohin Keikaku

Project Address 148-1 Tokko, Narita, Chiba 286-0106, Japan

Google map link to the project

Human Factor(s)

Environmental Factor(s)

Social Factor(s)

Outcomes expected as a result of the combination of the factors above

Reference for expected outcomes above (APA style)

https://www.google.com/maps/place/Terminal+3,+148-1+Tokko,+Narita,+Chiba+2860106,+Japan/data=!4m2!3m1!1s0x6022f37959fadf61:0xefe73655680fdcf3?sa=X&ved=1t:242&ictx=111

The airport creates a sequence that allows occupants to reach the stages they need to in the correct order.

To keep the project budget friendly, the designers opted to install running tracks instead of moving walkways. This allowed them to create wayfinding strategies at a low cost.

There are several spaces built for socialization, allowing those in the airport to connect, including lounge areas and restaurants.

The combined factors stated above creates a clear path through the airport to help user navigate safely and quickly.

Berti, A. (2024, October 4). The evolution of airport wayfinding. Airport Technology. https://www.airporttechnology.com/features/airport-wayfinding/

After entering the airport, you are greeted with clear signage and a blue track directing you towards the security checkpoint.

Once through security, you pass by the clearly marked information desk, and there is now a red track leading people out of the airport.

Following along the blue track, you pass by a food court with lots of seating for eating, working, or socialization.

Continuing past the food court, there is a retail space, and the blue track continues to lead you toward the gates, while the read track leads you to the exit.

Once you reach the gates, there are plenty of comfortable seating options to wait for your flight,

The red track leads you from your arrival gate, through the airport, to the baggage claim, and continues on to the exit of the airport and the parking area.

The Narita International Airport was built with a tight budget, so in order to keep costs low, they utilized running tracks as walking paths. This also allowed for a very clear, wayfinding forward design. The blue tracks lead users into the space and directs them to their gate, while the red track helps occupants find the way to the exit. The tracks take users past retail and food options, and there are several areas to stop and rest or socialize. The blue track terminates at the gates, while the red track terminates at the baggage claim and parking.

ABSTRACT

The Narita International Airport was built with a tight budget, so to keep costs low, they utilized running tracks as walking paths. This also allowed for a very clear, wayfinding forward design. The blue tracks lead users into the space and directs them to their gate, while the red track helps occupants find the way to the exit. The tracks take users past retail and food options, and there are several areas to stop and rest or socialize. The blue track terminates at the gates, while the red track terminates at the baggage claim and parking.

BLUE

AXONOMETRIC

BLUE TRACK TO GATES

RED TRACK TO EXIT

In what ways can design (environmental factors) support wayfinding and sequence to convey cultural content in your cultural project precedent?

ProjectInformation

Items Your Answers base on your selected project

Project Name Goethe-InstitutRenovation

Designer or Architect Yemail Arquitectura

Project Address Cra. 11a # 93-52, Bogotá, Colombia

Google map link to the project

Human Factor(s)

Environmental Factor(s)

Social Factor(s)

Outcomes expected as a result of the combination of the factors above

Reference for expected outcomes above (APA style)

https://www.google.com/maps/place/Goethe-Institut+Kolumbien/@4.675395,74.0506419,17z/data=!3m1!4b1!4m6!3m5!1s0x8e3f9a8dfc8ff7e5:0x1942b3641f724404!8m2!3d4.67538 97!4d-

74.0480616!16s%2Fg%2F11r8_f7qr?entry=ttu&g_ep=EgoyMDI1MDMyNS4xIKXMDSoASAFQAw%3D%3D

This is primarily a library, so care will need to be taken with the heights of shelves to best display books and allow for maximized ease of human interaction.

The curvilinear design helps lead users through the space, allowing for wayfinding through the plan.

Spaces designed for social interactions are embedded into the library.

The curvilinear design of the library lends itself to the wayfinding aspect of the library, allowing the curves to lead users through the space, from library shelves to social areas.

Beneicke, A. (n.d.). Wayfinding and Signage in Library Design Wordpress https://ratnacahayarina.wordpress.com/wp-content/uploads/2014/02/wayfindingsignage.pdf

First, , you u are e met t withhthe e reception n desk. .

Tooyour r right, , you u can n enter r the e curvilinear r library y area

Throughhhere, , you u can n access s sociallseating g areas.

Across s the e corridor , there e is s a flexible e community y space

Afterrgoing g arounddthe e community y space, , there e is s a restroom m anddbuilt-in n alcove e to o the e left t offthe e reception.

The Goethe Institut in Bogotá, Colombia highlights natural materials and curvilinear forms. The curved walls lead users through the space. This space is primarily a library, but also houses a community space. The library design highlights human factors through its distribution of books on shelves. It highlights social factors through integrated seating areas. The community space utilizes flexible furniture, causing it to be a multi-purpose area. This space highlights the use of recycled materials, adding to the positive environment of the library.

TABLE ATTACHED TO WALL
BUILT IN SEAT
BUILT IN SEAT
BUILT-IN LIGHT (NOT PICTURED)
ALCOVE

The Goethe Institut in Bogotá, Colombia highlights natural materials and curvilinear forms. The curved walls lead users through the space. This space is primarily a library, but also houses a community space. The library design highlights human factors through its distribution of books on shelves. It highlights social factors through integrated seating areas. The community space utilizes flexible furniture, causing it to be a multi-purpose area. This space highlights the use of recycled materials, adding to the positive environment of the library.

TABLE ATTACHED TO WALL
BUILT IN SEAT
BUILT IN SEAT
BUILT-IN LIGHT (NOT PICTURED)
ALCOVE
"How can symbolic elements in space promote equity,

inclusion, and social justice through design?"

ProjectInformation

Items Your Answers base on your selected project

Project Name

The Legacy Museum National Monument for Peace and Justice

Designer or Architect Local Projects

Project Address

Google map link to the project

400 N Court St, Montgomery, AL 36104

https://www.google.com/maps?sca_esv=6d12a8ccc70c01a9&rlz=1C1CHBF_enUS1012US1012&cs=1&sxsrf=AHTn8zqnN3DsRXTU9NTPw4Af4Y0oPq7iGw:1743889575674&uact= 5&gs_lp=Egxnd3Mtd2l6LXNlcnAiHnRoZSBsZWdhY3kgbXVzZXVtIGFkZHJlc3MgbWFwczIFECEYoAEyBRAhGKABMgUQIRigATIFECEYoAEyBRAhGKABMgUQIRifBUiBIVCWC1idHXABeA GQAQCYAYABoAGFBKoBAzIuM7gBA8gBAPgBAZgCBqACpQTCAgoQABiwAxjWBBhHwgIGEAAYFhgewgILEAAYgAQYhgMYigXCAgUQABjvBcICCBAAGIAEGKIEwgIFECEYqwKYAwCIBgG QBgiSBwMyLjSgB6UesgcDMS40uAehBA&um=1&ie=UTF-8&fb=1&gl=us&sa=X&geocode=KdmwgRJvgY6IMR9UTo7ZVcM6&daddr=400+N+Court+St,+Montgomery,+AL+36104

Human Factor(s) There are built in seating areas for people to rest and take a moment as they walk through this very emotionally heavy space.

Environmental Factor(s)

Social Factor(s)

Outcomes expected as a result of the combination of the factors above

Reference for expected outcomes above (APA style)

The design is very inclusive, with accessible ramps, and bathrooms. All signage is easily readable and all video media has captions for vision and auditory impaired people.

This monument is designed as a reminder of lynching victims during the civil rights era of the united states.

The monument is designed to be very inclusive to people from all walks of life, so all can experience and understand the social impact of the monument.

Inclusive design toolkit. What is inclusive design? (n.d.). https://www.inclusivedesigntoolkit.com/whatis/whatis.html

You are met witha space withintegratedseating to allowyou to sit andbe immersedin the space and readthe words on the walls.

The uplighting in the floor highlights the ceiling elements, anddraws attention to the names ofthose we needto remember .

Asyou continue up throughthe space, you walkbeneathmetal rectangularprisms, andpass by smallpedestals withexhibits, and thepatheventually leadsyou backup to the surface.

The Legacy National Memorial for Peace and Justice is a beautiful space that brings attention to the social issues in our country. The space is designed to be inclusive, allowing everyone to come and experience it. I have personally been to this memorial, and it is very emotionally heavy. The use of the metal rectangular prisms with names etched into them represents the weight of the acts that have been done in history. They designed ramps in place of stairs, to ensure people of any ability can access and enjoy the memorial. All of the video media elements have captions, so individuals with auditory impairments can access the information without needing special accommodations. Everyone is treated with equity, and inclusivity was clearly an important piece of the design idea for this space.

Sloped Floor

The Legacy National Memorial for Peace and Justice is a beautiful space that brings attention to the social issues in our country. The space is designed to be inclusive, allowing everyone to come and experience it. I have personally been to this memorial, and it is very emotionally heavy. The use of the metal rectangular prisms with names etched into them represents the weight of the acts that have been done in history. They designed ramps in place of stairs, to ensure people of any ability can access and enjoy the memorial. All of the video media elements have captions, so individuals with auditory impairments can access the information without needing special accommodations. Everyone is treated with equity, and inclusivity was clearly an important piece of the design idea for this space. Abstract

Sequence Diagram

ENTRY

SEATING

Seating Element

Sloped Floor

LIGHTING DISPLAY

Ramp to Seating Element Metal Rectangular Prism Celing Element

“How did practitioners apply Reference Standards (LEED, WELL, IBC, ADA, etc.)

in their project in a

creative way?”

ProjectInformation

Items Your Answers base on your selected project

Project Name

Designer or Architect

Project Address

Google map link to the project

Human Factor(s)

Environmental Factor(s)

Social Factor(s)

Outcomes expected as a result of the combination of the factors above

Reference for expected outcomes above (APA style)

Phipps Center for Sustainable Landscapes

The Design Alliance Architects

Phipps Conservatory and Botanical Gardens: Center for Sustainable Landscapes, 1 Schenley Drive, Pittsburgh, PA 15213

https://www.google.com/maps?sca_esv=a9c8f54881be008e&rlz=1C1CHBF_enUS1012US1012&sxsrf=AHTn8zoKf0x8_jhMdUVWGqaZYliU5432Q:1744514445057&fbs=ABzOT_BF2BQKolEz0Jz2KKb_4ZjDCZ_x-TyanL0zjQssP_aU5-3XZkx6K65LG_EkdshPaX4hEilRKHYXCmkK6cciAcBRtvL1zWNCXFVCtqagmZ7eloPNEQRJyb6MF2nZUyCbius5Bm3NlqtfZeT0XOrTQY_6WqX7I9Wa96GKWJAyEkL5mJw5VJQoGX5zDldPYg1dZjTvSZeC2rBbF5c1B7Uedeh2BmjCuxflGxeb91aJXPhMQ3jdo&biw=1707&bih=825&dpr=1.5&um=1&ie=UTF8&fb=1&gl=us&sa=X&geocode=KTNvNpeJ8TSIMZwKIuVSMUEy&daddr=Phipps+Conservatory+and+Botanical+Gardens:+Center+for+Sustainable+Landscapes,+1+Schenley+Drive, +Pittsburgh,+PA+15213

This building included numerous informational signs, allowing occupants to learn about the regenerative design techniques used in the project.

This building utilizes lots of natural light and real plants to keep the air quality clean. They also generate their own power and are a net 0 water waste building.

This building holds several teaching classrooms for educational content to be shared, and several small sitting areas for conversations.

This building has a very environmentally friendly design, which allows the space to benefit the occupants and the environment it exists in.

Well building standard - well V2. (n.d.-b). https://v2.wellcertified.com/en/wellv2/overview

The e entrance e has s lots s offwayfinding g signage e andda a seating g area a for r conversation, , anddwindows s to o allow w in n naturalllight.

Assyouugo o throughhthe e space, , you u findda a smalllroom m thatthas s interactive e elements s allowing g you u to o learn n abouttenvironmentallfactors

The office spaces on upper floors house live plants to help clean the air

On the thirdfloor , there are teaching classrooms thatallow educationalcontentto be shared

The Phipps Center for Sustainable Landscapes is WELL Platinum Certified, as well as LEED Platinum Certified. The space creates its own renewable power through its solar panels and wind turbines. It reuses all water, and collects rainwater. The building houses informational areas to teach occupants, such as classrooms and signage. The light is adjustable per WELL guidelines, to provide comfort to occupants. The goal of the building is to create a zero-waste space.

HEIGHT

ADJUSTABLE DESKS

PLANTS FOR CLEAN AIR
NATURAL LIGHTING
ERGONOMIC CHAIR

Abstract

The Phipps Center for Sustainable Landscapes is WELL Platinum Certified, as well as LEED Platinum Certified. The space creates its own renewable power through its solar panels and wind turbines. It reuses all water, and collects rainwater. The building houses informational areas to teach occupants, such as classrooms and signage. The light is adjustable per WELL guidelines, to provide comfort to occupants. The goal of the building is to create a zero-waste space.

Sequence

Diagram

Axonometric

HEIGHT

ADJUSTABLE DESKS

PLANTS FOR CLEAN AIR NATURAL LIGHTING

ERGONOMIC CHAIR

Final Project

The HONESTY space is where guests are greeted at an information desk. It has clear wayfinding, to help occupants navigate the space, and seating for socializing (Berti). The EMPATHY space allows occupants to rest and relax with friends. It includes a lounge space and a balcony for connections to nature (Gensler). The RESPONSIBILITY space allows occupants to complete work at height adjustable and ergonomic desks. It provides live plants to promote healthy air quality (WELL). The GRIT space allows occupants to be active. It provides a place to exercise by providing a track, allowing users to run, perform exercises in the center space, or walk and converse with other users (Byrd). The COURAGE space allows guests to speak publicly about issues that concern them and other society members. The raised stage allows for all audience members to see the speaker, while promoting a connection to nature through natural wood design elements (Scruton). The SYMPATHETIC space allows occupants to get cared for by professionals in medical fields. It provides floor-to-ceiling windows, providing ample natural light and a connection to nature (Author H). The GENEROUS space allows guests to sit and socialize together and share life experiences. It has adjustable lighting for user comfort, and a built in table for writing, working, or playing games (Beneicke). The QUALITY space allows guests to purchase fresh pastries. The glass counter allows for visibility and transparency between guests and workers, and allows users to visibly choose their pastry (Forbes). The DETERMINATION space allows occupants to reflect on the spaces and experiences they have traveled through in their life. It includes a slightly sloped floor, which is ADA compliant, and a seating area with a ramp so all can socialize on equal levels (Inclusive).

Reference (APA style)

Berti, A. (2024, October 4). The evolution of airport wayfinding. Airport Technology. https://www.airport-technology.com/features/airport-wayfinding/

Gensler. (2021, March 31). Residential: Design strategies for a post-COVID world [Webinar]. Gensler.

Well building standard - well V2. (n.d.-b). https://v2.wellcertified.com/en/wellv2/overview

Byrd, K. (2023, August 15). How to design practice facilities centered on athletes’ mental health. Gensler. https://www.gensler.com/blog/how-to-design-practice-facilities-athletesmental-health

Scruton, R. (2025, February 8). Religious Architecture Encyclopædia Britannica. https://www.britannica.com/topic/architecture/Religious-architecture

Author, H. G. (2024, January 4). Four design strategies to extend the lifespan of healthcare facilities. HCD Magazine. https://healthcaredesignmagazine.com/trends/interior-design/four-design-strategies-to-extend-the-lifespan-of-healthcare-facilities/

Beneicke, A. (n.d.). Wayfinding and Signage in Library Design Wordpress. https://ratnacahayarina.wordpress.com/wp-content/uploads/2014/02/wayfindingsignage.pdf

Forbes Business Council. (2025, January 3). The psychology of retail: How store layout impacts sales. Forbes. https://www.forbes.com/councils/forbesbusinesscouncil/2025/01/03/the-psychology-of-retail-how-store-layout-impacts-sales/

Inclusive design toolkit. What is inclusive design? (n.d.). https://www.inclusivedesigntoolkit.com/whatis/whatis.html

Sequence Diagram

Axonometric

K. (2023, August 15). How to design practice facilities centered on athletes’ mental health Gensler. https://www.gensler.com/blog/how-to-design-practice-facilities-athletes-mental-health

Rubber Track for Walking and Running
Turf Center Area for Exercises
Benches for Rest and Socialization
Byrd,

Abstract

The HONESTY space is where guests are greeted at an information desk. It has clear wayfinding, to help occupants the space, and seating for socializing (Berti). The EMPATHY space allows occupants to rest and relax with friends. a lounge space and a balcony for connections to nature (Gensler). The RESPONSIBILITY space allows occupants work at height adjustable and ergonomic desks. It provides live plants to promote healthy air quality (WELL). allows occupants to be active. It provides a place to exercise by providing a track, allowing users to run, perform the center space, or walk and converse with other users (Byrd). The COURAGE space allows guests to speak issues that concern them and other society members. The raised stage allows for all audience members to see while promoting a connection to nature through natural wood design elements (Scruton). The SYMPATHETIC occupants to get cared for by professionals in medical fields. It provides floor-to-ceiling windows, providing light and a connection to nature (Author H). The GENEROUS space allows guests to sit and socialize together experiences. It has adjustable lighting for user comfort, and a built in table for writing, working, or playing games

The QUALITY space allows guests to purchase fresh pastries. The glass counter allows for visibility and transparency guests and workers, and allows users to visibly choose their pastry (Forbes). The DETERMINATION space allows reflect on the spaces and experiences they have traveled through in their life. It includes a slightly sloped floor, compliant, and a seating area with a ramp so all can socialize on equal levels (Inclusive).

occupants navigate friends. It includes occupants to complete The GRIT space perform exercises in publicly about see the speaker, SYMPATHETIC space allows ample natural together and share life games (Beneicke). transparency between allows occupants to floor, which is ADA

Axonometric

Benches for Rest and Socialization

Byrd, K. (2023, August 15). How to design practice facilities centered on athletes’ mental health. Gensler.

https://www.gensler.com/blog/ how-to-design-practicefacilities-athletes-mental-health

Rubber Track for Walking and Running

Turf Center Area for Exercises

My Workstation + Typical

Where am I most likely to unconsciously buy something?

ProjectInformation

Items Your Answers base on your selected project

Project Name AESOP Downtown Los Angeles Store

Designer or Architect Brooks + Scarpa

Project Address

Google map link to the project

Human Factor(s)

Environmental Factor(s)

Social Factor(s)

Outcomes expected as a result of the combination of the factors above

862 S Broadway, Los Angeles, CA 90014

Aesop DTLA Google Maps

Guidance through the store by placement of products along one wall, tester sink unconsciously convinces customers to buy more product

Natural recycled materials throughout the store, located in downtown LA (large city), connected to community and easy access to store (first floor corner in a busy area)

Very strong brand presence and design, small store (cozy, tight ambiance), high end design means people want the product more (popularity), tester sink is an engagement tool between people

The natural, recycled theme of the space, combined with the layout of the products and testing sink engagement, all unconsciously guide people in to wanting to buy Aesop’s products. The natural environment helps people believe the products are also natural and healthy, unconsciously leading them to want to buy the products. The product layout is minimal, and unconsciously makes people want to purchase what is in the store with a scarcity mindset (if there is not much to buy from, people want to have it to be popular and on trend). Lastly, the testing sink shows people how good the products actually are, which also convinces people to buy more.

Reference for expected outcomes above (APA style) Hoskins, D., & Cohen, A. (n.d.). Dialogue 35: TRANSFORMING THE URBAN EXPERIENCE THROUGH DESIGN. Gensler. https://www.gensler.com/dialogue/35

The store is on the first-floor corner of a Downtown L.A. highrise building.

To enter, you walk through a single glass door in the middle of the facade.

After entering, you can see the entire store, as it is only one open space.

Directly after you walk in, to the left, is a wall of Aesop products. All of the products for sale are on this left wall (the right side of the store is all windows), so you are naturally drawn towards the product display.

Next, a customer would head to the other side of the space, directly across from the product display, to test the products in the sink. The entire store is made of natural and recycled materials (the tubes are recycled cardboard), so the sink also draws a customer’s eye. Because it is a different style, color, and material, it also draws customers to it. The customers are able to see how good the products are in store, which could persuade them to buy more.

After viewing the products and testing them in the front of the store, you head to the back of the store. The checkout counter is discreet and uses the same materials as the entire store, but customers can tell it is the checkout area because of the large, focal-point lighting fixture above the counter.

Last, you exit through the same door you entered through, passing the display and testing area as you leave.

The natural, recycled theme of the space, combined with the layout of the products and testing sink engagement, all unconsciously guide people in to wanting to buy Aesop’s products. There are natural recycled materials throughout the store. The tubes lining the walls are recycled cardboard tubes, and other amenities such as the counter are made from recycled, cross-laminated paper. The natural environment helps people believe the products are also natural and healthy, unconsciously leading them to want to buy the products. The store is also located in downtown LA and is connected to the community with easy access to the store. Customers are guided through the store by placement of products along one wall which eliminates wandering and indecisiveness. The product layout is minimal, and unconsciously makes people want to purchase what is in the store with a scarcity mindset (if there is not much to buy from, people want to have it to be popular and on trend). Lastly, the testing sink shows people how good the products actually are, which also convinces people to buy more. The Dialogue by Gensler piece about transforming the urban experience through design is a great reference for this store. It talks about how a brand’s measure of success is now engagement, and how stores should create belonging. The Aesop LA store does both of these well. The unique design of the space through natural materials and minimalist elements creates a very strong sense of place and belonging within the brand. Each of their stores is very unique but all are eclectic. The store is also very engaging with the testing sink and unique display types.

The natural, recycled theme of the space, combined with the layout of the products and testing sink engagement, all unconsciously guide people in to wanting to buy Aesop’s products. There are natural recycled materials throughout the store. The tubes lining the walls are recycled cardboard tubes, and other amenities such as the counter are made from recycled, cross-laminated paper. The natural environment helps people believe the products are also natural and healthy, unconsciously leading them to want to buy the products. The store is also located in downtown LA and is connected to the community with easy access to the store. Customers are guided through the store by placement of products along one wall which eliminates wandering and indecisiveness. The product layout is minimal, and unconsciously makes people want to purchase what is in the store with a scarcity mindset (if there is not much to buy from, people want to have it to be popular and on trend). Lastly, the testing sink shows people how good the products actually are, which also convinces people to buy more. The Dialogue by Gensler piece about transforming the urban experience through design is a great reference for this store. It talks about how a brand’s measure of success is now engagement, and how stores should create belonging. The Aesop LA store does both of these well. The unique design of the space through natural materials and minimalist elements creates a very strong sense of place and belonging within the brand. Each of their stores is very unique but all are eclectic. The store is also very engaging with the testing sink and unique display types.

Hoskins, D., & Cohen, A. (n.d.). Dialogue 35: TRANSFORMING THE URBAN EXPERIENCE THROUGH DESIGN. Gensler. https://www.gensler.com/dialogue/35

What is the LDK (Living-Dining-Kitchen) setting of the housing that allows me to communicate with my college friends during my college life?

ProjectInformation

Items Your Answers base on your selected project

Project Name Claire’s College House

Designer or Architect

Project Address

Google map link to the project

Human Factor(s)

Environmental Factor(s)

Social Factor(s)

Outcomes expected as a result of the combination of the factors above

Reference for expected outcomes above (APA style)

Unknown (owned by Partner’s Property Management)

943 S Rupple Road Unit 2 Fayetteville, Arkansas 72704

943 S RuppleRd

There are lots of different activities happening in the LDK (cooking, entertaining, relaxing, eating, etc.), there are noises, smells, and sights that will be open to all if it is open between the LDK areas

Place attachment is important to help residents feel truly at home in their college space, open layout will provide a large space for gathering and entertaining (important for college age), LDK layout can be amazing for communicating with friends or completely ruin how interacting and entertaining feels

Privacy is an important social factor (my house LDK is completely open between all spaces, levels of seating and interaction

I believe that all human, environmental, and social factors of my current college house provide a very good LDK layout for college entertainment. The LDK feels spacious, there is a good flow between the three spaces, it is large and ideal for entertaining/communicating with my college friends, and it feels safe and homey (place attachment).

https://www.amlegendhomes.com/blog/the-benefits-of-open-floor-plans-enhancing-space-andconnectivity

First, you walk through the back hallway and enter the kitchen near the fridge and pantry

Next, you can enter the kitchen and do your kitchen tasks (cooking, cleaning, eating, etc.)

After you pass the kitchen, you are in the dining area and can either sit at the table or the stools at the bar. Either option allows you to visit and communicate with friends that are in the kitchen or living room because it is open concept.

Adjacent to the dining room is the living room. With direct sightlines to the kitchen and dining area, you can easily communicate with, hangout with, and entertain friends.

Last, you exit through the same hallway you entered through

The layout of my college house is ideal for entertaining friends, as it seamlessly integrates the living room, dining area, and kitchen into an open concept LDK design. The open flow between these spaces allows for easy movement and conversation, ensuring everyone feels included whether they are cooking, dining, or relaxing. This connectivity enhances my friends and I’s social interaction, and it makes our hangouts more engaging and enjoyable. Beyond functionality, the space fosters a sense of comfort and place attachment. Natural lighting, open sightlines, and a welcoming atmosphere all contribute to a homey space.

The layout of my college house is ideal for entertaining friends, as it seamlessly integrates the living room, dining area, and kitchen into an open concept LDK design. The open flow between these spaces allows for easy movement and conversation, ensuring everyone feels included whether they are cooking, dining, or relaxing. This connectivity enhances my friends and I’s social interaction, and it makes our hangouts more engaging and enjoyable. Beyond functionality, the space fosters a sense of comfort and place attachment. Natural lighting, open sightlines, and a welcoming atmosphere all contribute to a homey space.

https://www.amlegendhomes.com/blog/the -benefits-of-open-floor-plans-enhancingspace-and-connectivity

What is the Waiting Place & Diagnosis Room of the healthcare facility that makes people more comfortable and less nervous?

ProjectInformation

Items Your Answers base on your selected project

Project Name Blue Ridge Orthodontics

Designer or Architect Clark Nexsen

Project Address 1915 Hendersonville Rd, Asheville, NC 28803

Google map link to the project Google Maps - Blue Ridge Orthodontics

Human Factor(s)

Environmental Factor(s)

Social Factor(s)

Outcomes expected as a result of the combination of the factors above

Reference for expected outcomes above (APA style)

Staff has open sightlines to waiting area and all patients in exam area, warm/light/biophilic materials increases comfort, large/open hallways with clear sightlines

Large access to nature views and daylighting, medical tools are concealed in casework unseen by patients until needed

Open treatment area with other patients, ample waiting area seating, seating is comfortable and encourages social activity, welcoming check in desk promotes equality and trust, bench seating in exam space for parents/siblings to comfort patients

All of the factors above help create a comfortable, welcoming, and safe waiting and exam area for patients. This clinic uses biophilic and daylighting principles to create this safe feeling in the healthcare setting. They focus on hospitality minded goals to create this safe space. Overall, patients in this space would ideally feel less stressed and more comfortable while waiting for and receiving their treatment. This was proven true, as patient appointments increased 20% after completing this space (cited from Clark Nexson website).

Hospitality in Healthcare MillerKnoll. (n.d.-b). https://www.millerknoll.com/articles/hospitality-inhealthcare

You first enter the building from the parking lot.

You immediately see the check-in desk as you walk in. The waiting room is to the right, and the hallway to the exam space is on the left.

After checking in at the desk, you sit in the waiting room. This area is designed for maximum comfort with large amounts of natural light, soothing colors, and soft non-clinical feeling seating.

Next, you visit the exam/treatment space. This area is designed to soothe patients and make them comfortable while receiving treatment. By treating all patients in one open space, patients feel safe and not cornered, like they would in a small enclosed room. The integration of views to nature and ample daylighting is another device used to make patients feel reduced stress and comfort.

Last, you exit through the same entry door. The view from the entry/exit door provides sightlines to the treatment space and waiting room at the same time, making the space feel open, trustworthy, and safe.

Blue Ridge Orthodontics was thoughtfully designed to foster a comfortable, welcoming, and safe environment for patients. By incorporating biophilic design elements and daylighting principles, the space promotes a sense of safety and wellness. The clinic also prioritizes hospitality-driven goals, ensuring that every aspect of the patient experience is inviting and reassuring. Features such as an open treatment area, ample and comfortable seating that encourages social interaction, and a welcoming check-in desk all contribute to a sense of equality and trust. Additionally, the integration of bench seating in exam rooms allows parents or siblings to provide comfort and support, reinforcing a patient-centered approach to care. The design enhances both patient experience and operational efficiency. Expansive windows and access to natural views, combined with warm, light materials, create a soothing atmosphere that reduces stress. Concealed medical tools keep the clinical side hidden until necessary, further enhancing patient comfort and reduced stress. Staff members benefit from open sightlines to both the waiting and exam areas, allowing for attentive and responsive care. Wide hallways with clear visibility improve navigation and accessibility, reinforcing a seamless and reassuring healthcare experience. The success of these design strategies is evident, as patient appointments increased by 20% after the space was completed, demonstrating the tangible impact of a well-planned healing environment (cited from Clark Nexson website).

Blue Ridge Orthodontics was thoughtfully designed to foster a comfortable, welcoming, and safe environment for patients. By incorporating biophilic design elements and daylighting principles, the space promotes a sense of safety and wellness. The clinic also prioritizes hospitalitydriven goals, ensuring that every aspect of the patient experience is inviting and reassuring. Features such as an open treatment area, ample and comfortable seating that encourages social interaction, and a welcoming check-in desk all contribute to a sense of equality and trust. Additionally, the integration of bench seating in exam rooms allows parents or siblings to provide comfort and support, reinforcing a patientcentered approach to care. The design enhances both patient experience and operational efficiency. Expansive windows and access to natural views, combined with warm, light materials, create a soothing atmosphere that reduces stress. Concealed medical tools keep the clinical side hidden until necessary, further enhancing patient comfort and reduced stress. Staff members benefit from open sightlines to both the waiting and exam areas, allowing for attentive and responsive care. Wide hallways with clear visibility improve navigation and accessibility, reinforcing a seamless and reassuring healthcare experience. The success of these design strategies is evident, as patient appointments increased by 20% after the space was completed, demonstrating the tangible impact of a well-planned healing environment (cited from Clark Nexson website).

Hospitality in Healthcare. MillerKnoll. (n.d.-b). https://www.millerknoll.com/articles/hospitalityin-healthcare

What is the role of Level, Height, and Scale (or others) in governmental and religious spaces to display power and build relationships with the public?

ProjectInformation

Items Your Answers base on your selected project

Project Name MIT Chapel

Designer or Architect Eero Saarinen

Project Address

Google map link to the project

Human Factor(s)

Environmental Factor(s)

48 Massachusetts Ave, Cambridge, MA 02139

https://maps.app.goo.gl/LsELuSzjLR7uid7M8

Single entrance/exit is simple, central alter and circular design gives power to alter

Windowless except for skylight over the alter, located on a college campus

Social Factor(s) Serves a general college/town community and serves any religion (non-denominational)

Outcomes expected as a result of the combination of the factors above

Reference for expected outcomes above (APA style)

The space creates a sense of power and connection to a person’s religion through the elements of the design of the MIT Chapel. The raised alter with wire installation and light from above is the central focal point of the chapel and is the main emphasis of power. The chapel serves as a powerful, spiritual place to worship for the surrounding community. It is effective for the community because it efficiently creates a powerful religious space.

Gattupalli, A. (2023, March 13). The Phenomenology of Light in Contemporary Religious Architecture ArchDaily. https://www.archdaily.com/997853/the-phenomenology-of-light-in-contemporary-religiousarchitecture

You first enter the building from the door on the side. You do not immediately enter the chapel. You enter into a hallway that leads to the chapel.

Next, you proceed through a stained-glass hallway and walk through the secondary doors. Going from the low ceiling of the hallway to the massive height of the chapel is a good example of scale. The chapel feels more grand and powerful when you go from compressed to open.

After entering, you can choose a seat to observe, pray, meditate, etc. When participating in your activities, you are oriented towards the central alter which is a different material than the rest of the chapel (marble), raised, and is highlighted through lighting and the hanging wire elements.

The central alter creates a feeling of power and builds a spiritual relationship with its visitors through the elements of scale, level, and light. With the wire installation, the alter spans the entire height of the chapel and people are drawn to focus on it because of how monumental it is. The alter is also raised a few stair levels off the floor. When a priest or religious figure stands on the platform, they are above the guests sitting in front of them, reinforcing their power. Light is also a big power aspect of this chapel. There are no lights in the chapel aside from the natural light coming through the aperture above the alter. This light symbolizes light coming from the heavens and emphasizes power as well as creating a very spiritual atmosphere that improves one's religious connection to the space.

After visiting the chapel, you exit through the same doors you entered through, back into the hallway.

Last, you exit the entire space through the first entry doors.

The MIT Chapel creates a profound sense of power and spiritual connection through its intentional design elements. The raised altar, constructed from marble, serves as the dominant focal point, enhanced by the hanging wire installation and a singular skylight that directs light from above. This aperture symbolizes divine presence, reinforcing the altar’s sacred significance and drawing attention to religious ceremonies. The chapel’s scale and height create contrast with the human occupants, emphasizing the grandeur of faith and the authority of the space. The enclosed, windowless design removes distractions, fostering contemplation, while the central altar placement and its elevated position further establish it as the spiritual and visual anchor of the space. By integrating light, scale, and materiality, Saarinen’s design successfully crafts an intimate yet powerful environment for worship, strengthening the community’s connection to faith.

The MIT Chapel creates a profound sense of power and spiritual connection through its intentional design elements. The raised altar, constructed from marble, serves as the dominant focal point, enhanced by the hanging wire installation and a singular skylight that directs light from above. This aperture symbolizes divine presence, reinforcing the altar’s sacred significance and drawing attention to religious ceremonies. The chapel’s scale and height create contrast with the human occupants, emphasizing the grandeur of faith and the authority of the space. The enclosed, windowless design removes distractions, fostering contemplation, while the central altar placement and its elevated position further establish it as the spiritual and visual anchor of the space. By integrating light, scale, and materiality, Saarinen’s design successfully crafts an intimate yet powerful environment for worship, strengthening the community’s connection to faith.

Gattupalli, A. (2023, March 13). The Phenomenology of Light in Contemporary Religious Architecture. ArchDaily. https://www.archdaily.com/997853/thephenomenology-of-light-in-contemporaryreligious-architecture

What are the ways that design (environmental factors) can support wayfinding and (sequential) information to ensure safety and on-time travel in your transportation precedent? ProjectInformation

Items Your Answers base on your selected project

Project Name

Designer or Architect

Project Address

Human Factor(s)

Environmental Factor(s)

Social Factor(s)

Outcomes expected as a result of the combination of the factors above

Reference for expected outcomes above (APA style)

Kansas City International Airport New Terminal

Skidmore, Owings & Merrill

42 Kansas City Blvd, Kansas City, MO 64153

Accessible elements (desks, pathways, ramps, etc), minimalistic and clear signage with universally understood symbols, open spacious layout that decreases human congestion, abundant seating, well-lit pathways and areas, digital check-ins to streamline process

Linear open layout, clear and natural special progression from arrival to security to gates, lots of windows and glass to increase natural light and openness, long and clear pathways help reduce confusion

Comfortable materials and furniture, local restaurants and amenities to help with place connection

The Kansas City International Airport New Terminal enhances wayfinding and efficiency through design elements that improve both safety and navigation. Wide pathways, ramps, and accessible desks support ease of movement, while clear signage and digital check-ins reduce congestion and streamline the travel process. The terminal’s open, linear layout, natural lighting, and thoughtfully placed amenities create an intuitive flow, helping passengers move smoothly through each stage of their journey while fostering a welcoming and stress-free environment.

Ready, B., & Osbaugh, T. (2020, May 11). It’s time to rethink signage and wayfinding for transportation hubs. Gensler. https://www.gensler.com/blog/time-to-rethink-signage-and-wayfinding-for-transportation

You enter at the covered departure terminal doors. The entrances are clearly marked with each airline’s name and logo, making sure guests start their journey going in the right direction.

Next, you check in for your flight at the digital kiosks or with an agent at the desks. This area is very large and pushed far back from the entry doors to help avoid congestion and lines that block circulation.

After checking in, you head to security. There is one security checkpoint, which is in the middle of the check-in stations. This condensed, centralized method allows for no confusion over where to go- all gates go through the same security line.

After security, you are met with a central convergence of where the airport splits the gates. There is a marked information desk in the middle and amenities lining the area. The 3 directions a person can go (left, right, straight) are clearly marked with their gates to ease confusion.

Going straight, you travel through the sky bridge to your gate. This bridge is straight and has one beginning and end. There are natural wayfinding elements like the linear lights and ceiling tiles that guide you forward.

Once you are off the bridge, you follow the long pathways to find your clearly marked gate. The layout of the terminal and sections of the gates are long and linear to provide clear sightlines and lower confusion. The circulation paths are also very wide to help lower congestion. There are again natural wayfinding elements that help guide you down the corridors such as the linear lights and ceiling panels.

Lastly, you sit in the waiting area until you board your flight. This area is filled with open seating and digital screens to provide guests with comfort as well as ample information of their flights.

The design of the Kansas City International Airport New Terminal prioritizes wayfinding and sequential information through a combination of human, environmental, and social factors that enhance both safety and efficiency. Human factors play a critical role in ensuring accessibility and ease of movement, with wide pathways, ramps, and height-appropriate desks that accommodate all travelers. Minimalistic signage with universally recognized symbols reduces cognitive strain, while digital check-ins streamline the process, minimizing wait times and congestion. The terminal's open, spacious layout, complemented by abundant seating and well-lit pathways, allows for intuitive navigation, helping passengers move seamlessly from one stage of their journey to the next.

Environmental and social design elements further support intuitive wayfinding and an efficient passenger experience. The terminal’s linear, open layout naturally guides travelers through a clear spatial sequence from arrival to check-in, security, and departure gates, reducing confusion and unnecessary detours. Expansive windows and extensive use of glass maximize natural light, creating a sense of openness while reinforcing directional cues. Long, unobstructed pathways enhance visibility, ensuring travelers can easily locate key areas. Additionally, comfortable furniture, thoughtfully designed waiting areas, and local restaurants contribute to a welcoming atmosphere that fosters both social engagement and a sense of place, making navigation feel more intuitive and reducing travel stress. Through these integrated design strategies, the terminal ensures both safety and efficiency, supporting smooth and timely travel for all passengers.

The design of the Kansas City International Airport New Terminal prioritizes wayfinding and sequential information through a combination of human, environmental, and social factors that enhance both safety and efficiency. Human factors play a critical role in ensuring accessibility and ease of movement, with wide pathways, ramps, and height-appropriate desks that accommodate all travelers. Minimalistic signage with universally recognized symbols reduces cognitive strain, while digital check-ins streamline the process, minimizing wait times and congestion. The terminal's open, spacious layout, complemented by abundant seating and well-lit pathways, allows for intuitive navigation, helping passengers move seamlessly from one stage of their journey to the next.

Environmental and social design elements further support intuitive wayfinding and an efficient passenger experience. The terminal’s linear, open layout naturally guides travelers through a clear spatial sequence from arrival to check-in, security, and departure gates, reducing confusion and unnecessary detours. Expansive windows and extensive use of glass maximize natural light, creating a sense of openness while reinforcing directional cues. Long, unobstructed pathways enhance visibility, ensuring travelers can easily locate key areas. Additionally, comfortable furniture, thoughtfully designed waiting areas, and local restaurants contribute to a welcoming atmosphere that fosters both social engagement and a sense of place, making navigation feel more intuitive and reducing travel stress. Through these integrated design strategies, the terminal ensures both safety and efficiency, supporting smooth and timely travel for all passengers.

Ready, B., & Osbaugh, T. (2020, May 11). It’s time to rethink signage and wayfinding for transportation hubs. Gensler. https://www.gensler.com/blog/time-torethink-signage-and-wayfinding-for-transportation

In what ways can design (environmental factors) support wayfinding and sequence to convey cultural content in your cultural project precedent?

ProjectInformation

Items Your Answers base on your selected project

Project Name Linde Center for Music & Learning

Designer or Architect

Project Address

Google map link to the project

Human Factor(s)

Environmental Factor(s)

Social Factor(s)

Outcomes expected as a result of the combination of the factors above

William Rawn Associates

3 W Hawthorne Rd, Lenox, MA 01240

https://maps.app.goo.gl/ZWmXX9BmNKAPtFbd7

Substantial access to nature and other people increases community and health, spaces are adaptable and can be used for multiple people, wayfinding is a natural sequence following one outdoor path (feels comfortable and natural)

Shaped around existing, large, and historic red oak tree, spaces are open to the outside, circulation is outside of the buildings, the different spaces are stops along the trail, goal for the spaces is to engage community in harmony with the surrounding landscape

Large spaces for community & connection, the spaces encourage exploration and learning from others, main purpose of the space is to promote knowledge exchange and learning between students, artists, and visitors which is achieved through the open wayfinding and spaces

The Linde Center for Music & Learning uses design and wayfinding to seamlessly connect people with their surroundings and cultural context. Its layout follows an organic outdoor path, guiding movement between buildings and encouraging exploration. Centered around a historic red oak tree and open to the landscape, the design fosters a strong connection to nature, enhancing creativity, focus, and well-being. Flexible spaces promote social interaction and collaboration among students, artists, and visitors. By treating buildings as waypoints along a trail, the center creates an engaging and immersive learning experience that integrates architecture, movement, and community.

Reference for expected outcomes above (APA style)

Godderidge, M. (2024, October 16). Blending spaces: Integrating nature into educational design. Henning Larsen. https://henninglarsen.com/news/blending-spaces-integrating-nature-into-educational-design

First, you enter the journey where the covered pavilion starts. You then walk along this outdoor path to access the buildings.

The first pavilion along the path is the Gordon Family Studio. All of the studios act as multipurpose learning and performance spaces. With retractable walls, the spaces are directly open to nature and the community.

The second space is the Volpe Family Studio. It is the smallest space, and is situated parallel to the path. For this pavilion, you access the space from a small door along the path, and the large retractable doors face towards nature and the oak tree.

The second space is the Volpe Family Studio. It is the smallest space, and is situated parallel to the path. For this pavilion, you access the space from a small door along the path, and the large retractable doors face towards nature and the oak tree.

The third pavilion is Studio E, the largest venue. With retractable bleachers, this space can be transformed for practices and performances of all different sizes. It reinforces the connection to community and nature with the retractable doors and large windows. This space also faces the large oak tree.

The last stop along the path is the main community gathering space. There is the large historic red oak tree that the facility was modeled around, as well as a community café. This spaces emphasizes the facility’s goal of connection between people and nature.

The Linde Center for Music & Learning shows how design and wayfinding can convey an area’s culture by seamlessly integrating humans and their environment. Rooted in nature, the center’s layout follows a natural outdoor path, where circulation occurs between buildings rather than within them. This intuitive sequence creates a comfortable and organic movement around the spaces, reinforcing a sense of exploration, learning, and discovery. By shaping the design around an existing historic red oak tree and ensuring that spaces remain open to the landscape, the center fosters a deep connection between visitors and their surroundings. This connection enhances cognitive engagement, as access to nature has been shown to improve focus, creativity, and overall well-being in learning environments. The adaptability of the spaces further supports community interaction and knowledge exchange. Large, flexible areas accommodate multiple users and functions, ensuring that the environment can evolve based on the needs of students, artists, and visitors. This adaptability strengthens the center’s primary goal of promoting collaboration. By treating each building as a stop along the trail, the design fosters a continuous and immersive learning experience. The harmony between architecture and landscape reinforces the idea that learning is not confined to a single space but is instead a fluid process shaped by movement, interaction, and engagement with both people and place.

The Linde Center for Music & Learning shows how design and wayfinding can convey an area’s culture by seamlessly integrating humans and their environment. Rooted in nature, the center’s layout follows a natural outdoor path, where circulation occurs between buildings rather than within them. This intuitive sequence creates a comfortable and organic movement around the spaces, reinforcing a sense of exploration, learning, and discovery. By shaping the design around an existing historic red oak tree and ensuring that spaces remain open to the landscape, the center fosters a deep connection between visitors and their surroundings. This connection enhances cognitive engagement, as access to nature has been shown to improve focus, creativity, and overall well-being in learning environments.

The adaptability of the spaces further supports community interaction and knowledge exchange. Large, flexible areas accommodate multiple users and functions, ensuring that the environment can evolve based on the needs of students, artists, and visitors. This adaptability strengthens the center’s primary goal of promoting collaboration. By treating each building as a stop along the trail, the design fosters a continuous and immersive learning experience. The harmony between architecture and landscape reinforces the idea that learning is not confined to a single space but is instead a fluid process shaped by movement, interaction, and engagement with both people and place.

Godderidge, M. (2024, October 16). Blending spaces: Integrating nature into educational design. Henning Larsen. https://henninglarsen.com/news/blending-spaces-integrating-natureinto-educational-design

"How can symbolic elements in space promote equity, inclusion, and social justice through design?"

ProjectInformation

Items Your Answers base on your selected project

Project Name New York State Equal Rights Heritage Center

Designer or Architect

Project Address

Google map link to the project

Human Factor(s)

Environmental Factor(s)

Social Factor(s)

Outcomes expected as a result of the combination of the factors above

Reference for expected outcomes above (APA style)

nArchitects

25 South St, Auburn, NY 13021

https://maps.app.goo.gl/iCUxSs1NZYDd1RvN6

universal accessibility, clear sightlines through building for orientation, height-appropriate displays, interactive and multisensory exhibits to support different learning styles, comfortable seating and rest areas, flexible exhibits to accommodate group activities, visual storytelling that promotes social justice education, educational programming for community, lighting designed for comfort and visibility, calming, inclusive color palette that avoids overstimulation

large windows with views of community and historic sites and lots of natural light, use of local materials that match the existing community buildings to root the project in place, integration with landscape (outdoor plaza), use of daylighting for wellbeing

visual representation of diverse historical figures and movements, inclusive narrative of marginalized voices (BIPOC, women, LGBTQ+, immigrants), spaces that encourage dialogue and learning (social justice table, open gathering zones), free public access to resources and information, incorporates local history and landmarks

Symbolic elements in design promote equity, inclusion, and social justice by creating spaces that are accessible, comfortable, and responsive to diverse needs and backgrounds. Through environmental integration like natural light, local materials, and views of historic landmarks spaces become rooted in community and invite reflection and belonging. Socially, inclusive storytelling, representation of marginalized voices, and open, dialogue-driven areas turn the built environment into a platform for learning, empathy, and collective empowerment.

Ferreira, D. B. (2024, December 20). Designing for all: Exploring empathy, inclusivity, accessibility and spatial equity in architecture. ArchDaily. https://www.archdaily.com/1024539/designing-for-all-exploring-empathy-inclusivityaccessibility-and-spatial-equity-in-architecture?ad_campaign=normal-tag

First, you enter from the main entry doors into the foyer. These doors are clearly marked with the center’s name above the doors.

Next, you are met with the reception desk. You also have a view through the building to the exhibitions.

After the stopping at the reception desk, you are free to explore and learn freely throughout the center. The first space is around the corner to the left of reception, and it introduces New York State sites important to different equal rights movements (on the screens).

The next area introduces key figures in New York State’s equal rights history. Through the images and text on the wall, visitors learn about the history and what impact each person had on the state’s equal rights movements. The seating area in the middle in called speech island and allows visitors to engage with the built-in tablets to learn even more.

The next space houses the social justice table and is an informational desk with tablets that allows users to explore more. This space is central between two of the building’s sections and has views to multiple exhibits.

The last exhibition space shares the history of social movements in New York State. All of the exhibitions within the building are meant to acknowledge the consistent fight towards equality from the people of New York, as well as to continue to bring awareness social equality and justice to the community. The space also acts as a community gathering space where social justice events are held.

Last, you can exit through the back doors near the last exhibit.

At the New York State Equal Rights Heritage Center, symbolic design elements create an accessible and welcoming space that actively shine a light on the region’s legacy of social justice. Every element of the center is designed to honor the individuals and movements that fought for equal rights, from abolition and women’s suffrage to civil and LGBTQ+ rights. Human-centered design features like interactive exhibits, height-appropriate displays, and inclusive storytelling invite visitors of all backgrounds to engage with these histories in a personal, meaningful way, fostering empathy and awareness.

The building itself becomes a vessel for activism through intentional environmental and spatial choices. Expansive windows frame views of nearby landmarks tied to the social justice narrative, while local materials and the outdoor plaza root the center in the very landscape where these movements unfolded. Inside, communal zones like the “social justice table” create space for dialogue and learning, echoing the collective nature of these struggles. By blending inclusivity, education, and symbolism, the design doesn’t just reflect history it continues the work of equity and justice through space.

At the New York State Equal Rights Heritage Center, symbolic design elements create an accessible and welcoming space that actively shine a light on the region’s legacy of social justice. Every element of the center is designed to honor the individuals and movements that fought for equal rights, from abolition and women’s suffrage to civil and LGBTQ+ rights. Human-centered design features like interactive exhibits, height-appropriate displays, and inclusive storytelling invite visitors of all backgrounds to engage with these histories in a personal, meaningful way, fostering empathy and awareness.

The building itself becomes a vessel for activism through intentional environmental and spatial choices. Expansive windows frame views of nearby landmarks tied to the social justice narrative, while local materials and the outdoor plaza root the center in the very landscape where these movements unfolded. Inside, communal zones like the “social justice table” create space for dialogue and learning, echoing the collective nature of these struggles. By blending inclusivity, education, and symbolism, the design doesn’t just reflect history it continues the work of equity and justice through space.

Ferreira, D. B. (2024, December 20). Designing for all: Exploring empathy, inclusivity, accessibility and spatial equity in architecture. ArchDaily. https://www.archdaily.com/1024539/designing-forall-exploring-empathy-inclusivity-accessibility-andspatial-equity-in-architecture?ad_campaign=normaltag

“How did practitioners apply Reference Standards (LEED, WELL, IBC, ADA, etc.) in their project in a creative way?”

ProjectInformation

Items

Project Name

Designer or Architect

Project Address

Google map link to the project

Human Factor(s)

Environmental Factor(s)

Perkins&Will Dallas Studio (Old Dallas High School)

Perkins&Will

2218 Bryan St #200, Dallas, TX 75201

https://maps.app.goo.gl/opisXWvZDFnVpyJR6

access to daylight, ergonomic furnishings and height adjustable desks, good indoor air quality (low-VOC materials and enhanced HVAC systems), thermal comfort, acoustic panels and white noise machines for auditory comfort, easy access to water fountains, clear signage, mix of open areas/focus rooms, mental health support (quiet rooms)

adaptive reuse project, LEED Platinum and WELL certified, daylighting strategies to increase access to natural light, good indoor air quality (low-VOC materials and enhanced HVAC systems), bike storage and access to public transit (encourages alternative, sustainable commuting), communal garden promotes health

Social Factor(s) Adaptive reuse of building and preservation of historic school (sustainable), diverse spaces for diverse users, open collaboration zones (central area encourage spontaneous collaboration), transparency in design (curtain walls and visible meeting spaces), strong sense of place in Dallas (historic building downtown)

Outcomes expected as a result of the combination of the factors above

Reference for expected outcomes above (APA style)

Perkins&Will’s Dallas office creatively applies LEED and WELL standards through adaptive reuse of a historic school, integrating daylighting, sustainable commuting options, and communal wellness features. Human-focused design elements like ergonomic furniture, mental health support, and open collaborative spaces foster well-being, inclusion, and connection.

Causeartist. (2023, September 14). Green Building Certifications: Transforming Workplaces Design. Causeartist. https://www.causeartist.com/green-building-certifications/

This graphic from Perkins&Will outlines how their Dallas office uses creative methods to implement sustainability standards (LEED, WELL, etc.) into their building. From water access and the historic building site, to having an office garden to promote health, Perkins&Will achieves an incredibly sustainable minded office.

Sourced from: https://issuu.com/perkinswill/docs/welcome_to_downtown_book

Perkins&Will Dallas is an adaptive reuse project, and is located inside the historic Dallas High School, built in 1908. The project is LEED Platinum and WELL certified. The location and choice of building is special because of its history as well as its proximity to public transportation (a sustainable alternative to driving cars). On their LEED score card, P&W received maximum points for site selection and alternative transportation (public and bike storage).

You first walk up the front steps into the second floor of the building.

You enter the building and are met with reception as well as a large, doubleheight gathering area. This area is great for building community, increasing transparency, and holding different events. Another reason for behind the design of the space is preserving the historical structure and purpose of the building. Perkins&Will acted sustainably by not removing any existing structural elements of the high school building and keeping the entry as an open gathering space. On the LEED scorecard, the got maximum points for building reuse - maintain interior nonstructural elements.

Behind the central open area is another communal collaboration space with a kitchen. This space meets a lot of WELL Building Standards. Under the Nourishment category, Perkins&Will provides communal dining areas, onsite food production, access to fruits and vegetables, and healthier food/snack options. Under the Community category, Perkins&Will provides an integrative design process (collaboration), health benefits, new mother support, and civic engagement.

Walking up the stairs leads to additional workspaces and amenities. On this second level, you can see through to the central, open gathering space below as well as to the studio spaces through windows. You can see the original structure and how Perkins&Will has kept true to adaptive reuse and sustainability.

Next you enter your workspace, collaboration area, or workshop. There are ample areas for community and collaboration. There is also ample access to natural light, which the studio satisfies on both the LEED and WELL standards.

Perkins&Will’s Dallas office exemplifies a creative and thoughtful application of sustainability and wellness standards (LEED & WELL) through its adaptive reuse of the historic Dallas High School building and thoughtful design of the office. Instead of demolishing the building, the team preserved its original structure and interior elements, earning maximum LEED points for building reuse and site selection. The design integrates daylighting strategies, bike storage, and proximity to public transit to promote energy efficiency and sustainable commuting. Communal gardens and healthy food options contribute to WELL’s Nourishment standards, while maintaining the building’s civic identity and creating collaborative spaces supports the Community category.

Human and social factors were equally central to the design. The office includes ergonomic furniture, mental health and new mother support spaces, and access to drinking water throughout the building. The central double-height gathering area and adjacent kitchen promote transparency, spontaneous collaboration, and social connection. Acoustic comfort, and visual access to workspaces enhance usability and inclusion, while diverse spatial layouts accommodate different working styles. By creatively implementing sustainability and wellness standards, Perkins&Will shapes their Dallas office as a workplace that is both high-performing and deeply rooted in place.

Perkins&Will’s Dallas office exemplifies a creative and thoughtful application of sustainability and wellness standards (LEED & WELL) through its adaptive reuse of the historic Dallas High School building and thoughtful design of the office. Instead of demolishing the building, the team preserved its original structure and interior elements, earning maximum LEED points for building reuse and site selection. The design integrates daylighting strategies, bike storage, and proximity to public transit to promote energy efficiency and sustainable commuting. Communal gardens and healthy food options contribute to WELL’s Nourishment standards, while maintaining the building’s civic identity and creating collaborative spaces supports the Community category.

Human and social factors were equally central to the design. The office includes ergonomic furniture, mental health and new mother support spaces, and access to drinking water throughout the building. The central double-height gathering area and adjacent kitchen promote transparency, spontaneous collaboration, and social connection. Acoustic comfort, and visual access to workspaces enhance usability and inclusion, while diverse spatial layouts accommodate different working styles. By creatively implementing sustainability and wellness standards, Perkins&Will shapes their Dallas office as a workplace that is both high-performing and deeply rooted in place.

Causeartist. (2023, September 14). Green Building Certifications: Transforming Workplaces Design. Causeartist. https://www.causeartist.com/greenbuilding-certifications/

Final Project

Diligence

Love Trust

Pleasure

Friendship

Collaboration

Accountable Order

Consistency

https://www.gensler.com/dialogue/35

https://storymaps.arcgis.com/stories/ce5a 13a968b843958294e4f3031f0a00

https://www.payette.com/equitabledesign/spatial-equity-equitable-designstrategies-and-standards/

Diligence

Love Trust

Pleasure

Friendship

Collaboration

Accountable Order

Consistency

https://www.gensler.com/dialogue/35

https://www.amlegendhomes.com/blog/t he-benefits-of-open-floor-plansenhancing-space-and-connectivity

https://www.gensler.com/blog/time-torethink-signage-and-wayfinding-fortransportation

https://www.causeartist.com/greenbuilding-certifications/

https://www.amlegendhomes.com/blog/t he-benefits-of-open-floor-plansenhancing-space-and-connectivity

https://storymaps.arcgis.com/stories/ce5a 13a968b843958294e4f3031f0a00

https://www.payette.com/equitabledesign/spatial-equity-equitable-designstrategies-and-standards/

https://www.gensler.com/blog/time-torethink-signage-and-wayfinding-fortransportation

https://www.causeartist.com/greenbuilding-certifications/

https://www.millerknoll.com/articles/hosp itality-in-healthcare

https://henninglarsen.com/news/blending -spaces-integrating-nature-intoeducational-design

https://www.millerknoll.com/articles/hosp itality-in-healthcare

https://henninglarsen.com/news/blending -spaces-integrating-nature-intoeducational-design

Steady Vision

This space is a journey through the values I live by- each phase revealing how people work, connect, and grow. As one moves through it, the sequence not only reflects my personality, but shows how human, environmental, and social design factors shape meaningful experiences. The nine phases summarized below reflect my passion, reliability, and creativity. As one experiences the space, they experience sustainability, openness, and acceptance, where people feel empowered to collaborate, express themselves, and be supported. Each environment highlights a unique part of who I am- from my love of structure and consistency to my appreciation for joy, trust, and meaningful relationships.

Accountable: The accountability phase centers on an entry space that integrates sustainable transportation and clear reception. Located adjacent to public transit, the design encourages eco-conscious commuting and reduces reliance on cars. The open reception area enhances transparency and creates a welcoming atmosphere for all visitors. This phase reflects my belief sustainability, supporting accessible systems, and being mindful of my environmental and social impact. Causeartist. (2023, September 14). Green Building Certifications: Transforming Workplaces Design. Causeartist. https://www.causeartist.com/green-building-certifications/

Order: The order phase is a check in point organized around clear wayfinding and efficient flow. Visitors intuitively understand where to go, supported by signage, layout, and central positioning of key features. The system-oriented design reflects my appreciation for structure, clarity, and eliminating confusion in both physical spaces and life tasks. Ready, B., & Osbaugh, T. (2020, May 11). It’s time to rethink signage and wayfinding for transportation hubs. Gensler. https://www.gensler.com/blog/time-to-rethink-signage-and-wayfinding-for-transportation

Pleasure: The pleasure phase is a retail space where guests are invited to interact directly with products. Tactile engagement, clean organization, and natural materials enhance sensory experience and encourage discovery. The WELL-certified use of recycled surfaces and strategic layout fosters creativity and joy, mirroring my passion for exploration and design. Dialogue 35. Gensler. (n.d.). https://www.gensler.com/dialogue/35

Love: The love phase is embodied in an exhibit that centers inclusivity, empathy, and representation. Colorful storytelling, accessible displays, and visual framing of social justice narratives encourage emotional connection. This reflects my values-driven mindset and belief in designing spaces and relationships with care and intention. Holmen, A. (2022, May 6). Spatial equity: Equitable design strategies. Payette. https://www.payette.com/equitable-design/spatial-equity-equitable-design-strategies-and-standards/

Collaboration: The collaboration phase takes place in a flexible performance and practice space. Retractable seating, an open studio zone, and visual connection to nature allow for movement, creativity, and teamwork. This spatial adaptability supports shared experiences and mirrors how I thrive when learning from and working alongside others. Godderidge, M. (2024, October 16). Blending spaces: Integrating nature into educational design. Henning Larsen. https://henninglarsen.com/news/blending-spaces-integrating-nature-into-educational-design

Diligence: The diligence phase, which was not matched to an existing axon, becomes the highlight of the journey. It unfolds as a focused work area designed for deep concentration and intentional effort. This space features natural daylight, acoustic control, and ergonomic furniture to minimize distractions and support prolonged engagement. It represents how I approach every task with full energy, attention to detail, and an unwavering commitment to improvement. Thompson, T., & Wegner, J. (2025, February 26). The nature of work: How light and greenery drive productivity and well-being. The Nature of Work: How Light and Greenery Drive Productivity and Well-Being. https://www.pagethink.com/publication/2025/nature-work-howlight-and-greenery-drive-productivity-and-well-being

Friendship: The friendship phase is expressed through an open-concept living area where boundaries between kitchen, dining, and lounge blur. This space promotes conversation, casual collaboration, and shared routines, reflecting how I value relationships that keep me grounded and uplifted. The environment balances privacy and community, supporting both individual comfort and group interaction. Benefits of open floor plans: Enhance Space & Connectivity: American legend homes. Benefits of Open Floor Plans: Enhance Space & Connectivity | American Legend Homes. (n.d.). https://www.amlegendhomes.com/blog/the-benefits-of-open-floor-plans-enhancing-space-and-connectivity

Consistency: The consistency phase is represented by a chapel, where structured rhythm, symmetry, and material repetition offer spiritual and visual balance. A single light source from above draws the eye and centers attention, reinforcing patterns of routine and reflection. This echoes the way I use discipline and predictability to anchor my personal growth. Elli Stogiannou, P. (2020, September 14). Journeys into light. ArcGIS StoryMaps. https://storymaps.arcgis.com/stories/ce5a13a968b843958294e4f3031f0a00

Trust: The trust phase unfolds in a healthcare clinic where material warmth, daylight, and intuitive layout reduce anxiety. Human-centered design is evident in the soft furnishings, visible check-in desk, and private-yet-open exam pods. This space models how consistency and transparency build trust principles I carry into every responsibility I take on. Hospitality in Healthcare. MillerKnoll. (n.d.). https://www.millerknoll.com/articles/hospitality-in-healthcare

Benefits of open floor plans: Enhance Space & Connectivity: American legend homes. Benefits of Open Floor Plans: Enhance Space & Connectivity | American Legend Homes. (n.d.). https://www.amlegendhomes.com/blog/the-benefits-of-open-floor-plans-enhancing-space-and-connectivity

Causeartist. (2023, September 14). Green Building Certifications: Transforming Workplaces Design. Causeartist. https://www.causeartist.com/greenbuilding-certifications/

Dialogue 35. Gensler. (n.d.). https://www.gensler.com/dialogue/35

Elli Stogiannou, P. (2020, September 14). Journeys into light. ArcGIS StoryMaps. https://storymaps.arcgis.com/stories/ce5a13a968b843958294e4f3031f0a00

Godderidge, M. (2024, October 16). Blending spaces: Integrating nature into educational design. Henning Larsen. https://henninglarsen.com/news/blending-spaces-integrating-nature-into-educational-design

Holmen, A. (2022, May 6). Spatial equity: Equitable design strategies. Payette. https://www.payette.com/equitable-design/spatial-equity-equitable-designstrategies-and-standards/

Hospitality in Healthcare. MillerKnoll. (n.d.). https://www.millerknoll.com/articles/hospitality-in-healthcare

Ready, B., & Osbaugh, T. (2020, May 11). It’s time to rethink signage and wayfinding for transportation hubs. Gensler. https://www.gensler.com/blog/timeto-rethink-signage-and-wayfinding-for-transportation

Thompson, T., & Wegner, J. (2025, February 26). The nature of work: How light and greenery drive productivity and well-being. The Nature of Work: How Light and Greenery Drive Productivity and Well-Being. https://www.pagethink.com/publication/2025/nature-work-how-light-and-greenery-driveproductivity-and-well-being

Your axonometric

Thompson, T., & Wegner, J. (2025, February 26). The nature of work: How light and greenery drive productivity and well-being. The Nature of Work: How Light and Greenery Drive Productivity and Well-Being. https://www.pagethink.com/publication/2025/nature-work-how-light-and-greenery-drive-productivity-and-well-being

Steady Vision

This space is a journey through the values I live by- each phase revealing how people work, connect, and grow. As one moves through it, the sequence not only reflects my personality, but shows how human, environmental, and social design factors meaningful experiences. The nine phases summarized below reflect my passion, reliability, and creativity. As one experiences space, they experience sustainability, openness, and acceptance, where people feel empowered to collaborate, express themselv and be supported. Each environment highlights a unique part of who I am- from my love of structure and consistency to my appreciation for joy, trust, and meaningful relationships.

Accountable: The accountability phase centers on an entry space that integrates sustainable transportation and clear reception. Located adjacent to public transit, the design encourages eco-conscious commuting and reduces reliance on cars. The open reception area enhances transparency and creates a welcoming atmosphere for all visitors. This phase reflects my belief sustainability, supporting accessible systems, and being mindful of my environmental and social impact.

Order: The order phase is a check in point organized around clear wayfinding and efficient flow. Visitors intuitively understand where to go, supported by signage, layout, and central positioning of key features. The system-oriented design reflects my appreciation for structure, clarity, and eliminating confusion in both physical spaces and life tasks.

Pleasure: The pleasure phase is a retail space where guests are invited to interact directly with products. Tactile engagement, organization, and natural materials enhance sensory experience and encourage discovery. The WELL-certified use of recycled surfaces and strategic layout fosters creativity and joy, mirroring my passion for exploration and design.

Love: The love phase is embodied in an exhibit that centers inclusivity, empathy, and representation. Colorful storytelling, accessible displays, and visual framing of social justice narratives encourage emotional connection. This reflects my values mindset and belief in designing spaces and relationships with care and intention.

Collaboration: The collaboration phase takes place in a flexible performance and practice space. Retractable seating, an open studio zone, and visual connection to nature allow for movement, creativity, and teamwork. This spatial adaptability supports shared experiences and mirrors how I thrive when learning from and working alongside others.

Diligence: The diligence phase, which was not matched to an existing axon, becomes the highlight of the journey. It unfolds focused work area designed for deep concentration and intentional effort. This space features natural daylight, acoustic cont and ergonomic furniture to minimize distractions and support prolonged engagement. It represents how I approach every with full energy, attention to detail, and an unwavering commitment to improvement.

Friendship: The friendship phase is expressed through an open-concept living area where boundaries between kitchen, dining, lounge blur. This space promotes conversation, casual collaboration, and shared routines, reflecting how I value relationship keep me grounded and uplifted. The environment balances privacy and community, supporting both individual comfort and interaction.

Consistency: The consistency phase is represented by a chapel, where structured rhythm, symmetry, and material repetition spiritual and visual balance. A single light source from above draws the eye and centers attention, reinforcing patterns of r and reflection. This echoes the way I use discipline and predictability to anchor my personal growth.

Trust: The trust phase unfolds in a healthcare clinic where material warmth, daylight, and intuitive layout reduce anxiety. centered design is evident in the soft furnishings, visible check-in desk, and private-yet-open exam pods. This space models consistency and transparency build trust principles I carry into every responsibility I take on.

moves factors shape experiences the themselves, my reception. open understand my engagement, clean recycled values-driven

open supports unfolds as a control, every task dining, and relationships that and group repetition offer routine Humanmodels how

Thompson, T., & Wegner, J. (2025, February 26). The nature of work: How light and greenery drive productivity and well-being. The Nature of Work: How Light and Greenery Drive Productivity and Well-Being. https://www.pagethink.com/publication/2025/nature-work-howlight-and-greenery-drive-productivity-and-well-being

45 1/2”. 18 1/2” 13 1/2”. 13 1/2”.

MONITOR LAMP

My Workstation + Typical

CLUBINE

44”. 14”. 16”.
2”. 44”. 9”. 11”. BRENNAH

ABSTRACT:

Self Maker Showroom in Sinsa-dong, Gangnam-gu, Seoul. It is a customizable curtain and blinds company. They help clients design curtains that can help their everyday use. I chose the building and design because of the way they utilized the materials to allow the experience through the building. When entering the building, clients are greeted with a cushioned wall and fabric curtain covering the wall. The feeling of coming into the building is already allowing the clients to feel relaxed because of the materials and the color palette. The space is very neutral colors and very black and white. The only time you see color is in the back area leading employees to the pantry. Walking through the space is more of an open floor plan with soft curved walls.

SEQUENCE DIAGRAM

They really want the clients flow and have them not being stopped or “trapped”. bar area have curved furniture Within those spaces, curtains around the walls and between lounge space. Curtains close off for privacy. However, an easy pull system allowing clients to struggle. This stood out to me because and the way it was set curved areas and curved small space was interesting. keep it as calming, warm and it is well shown.

clients to go with the not feel as if they are “trapped”. The lounge and furniture as well. curtains are hung between the bar and are for clients to However, they are on allowing employees or This design had just because it of the reading up. Continuing the curved furniture in the interesting. They tried to warm and comforting

AXON DIAGRAM

Abstract: AXON DIAGRAM:

This space is located bedrooms Weddington in Fayetteville, AR. The housing complex is called The Row where it has 4 bedrooms and 3 whole bathrooms. The living-dining-kitchen area is all on the first floor where the roommates can talk amongst themselves or have enough space for social gatherings. Each area has enough space to put enough furniture for a dining room table, full size kitchen set and a couch with an ottoman and tv. Each space allows everyone get around easily without feeling crammed. It has enough space in the kitchen to hold more than three people if all people need to cook. The living room allows people to hold social events and not feel like some are on top of each other. Then if people want to have a formal dining, there is space to sit at the kitchen table and not go up to one's room or sit at the kitchen bar top. The Row allowed each set of floor plans to have open areas to one another so that people can see all three areas at once.

SEQUENCE

DIAGRAM:

DIAGRAM:

DIAGRAM:

Abstract:

The Adamsville Regional Health Center offers a variety of clinical spaces within the building. It has areas for all ages and helps with behavioral health disorders, primary care clinic, dental clinic and workforce area. This building is wanting to grow within the community and have all sorts of ages come in the building. The inspiration of the building had come from African American culture surrounding the area. The materials of the building had been inspired by the jazz culture from the African Americans. They incorporated art pieces all throughout interior and exterior space. The space has allowed it to be welcoming for everyone and wants to grow.

Sequence Diagram:

The Abstract:

The Tile Chapel churches, Taquil, Ecuador. It is a church that is for the Catholics and other religions as well. It is used to help acknowledge the deceased and bring people together. It is an outside church that holds a mass once a year but other than that, it is used for a tourist site. It is not big and has many other traditional Catholic churches, but they are still celebrating God in their own way. This church was used from earth materials to indicate the local land. It wanted to reduce the amount of waste on materials and keep it reusable. The structure of the building was to help enhance the design of the landscape surrounding the building. It also allows light to enter the building through the thresholds.

SEQUENCE

DIAGRAM:

THE ABSTRACT:

I picked the Kansas City, MO airport because it is where I am from. I have traveled in and out of this airport many times and to be able to study it has shown me the types of wayfinding to get from the entrance to the exit. This airport set people up for success when it comes to finding their next spot. It has given different types of lighting methods, change in flooring and the use of color within the space. It was easy to know what was the women vs mens restroom because of color finding. Not only was the signage important, but the way they set up the colors, helped many people out. It also allowed lighting to lead the way for people who might’ve not known where they are going. It helped that the lights were going in the same direction the people where going.

SEQUENCE DIAGRAM:

THE ABSTRACT :

The Rural Memory Museum is not like other museums. It had honored people on the way they lived. It was the narratives of peoples lives, and it wanted to show the locals. The second floor held pieces of people's stories and had emotional stories from birth to death. It can serve as a place for people to hold social events as well. The navigation of the building was that the first floor was more of a social area then going up to the second floor was the narratives and stories of past people.

SEQUENCE DIAGRAM :

AXONOMETRIC :

THE ABSTRACT

SEQUENCE DIAGRAM

AXONOMETRIC

THE ABSTRACT :

The ADA Lovelace Secondary School is a school for many people of many desires. It is a welcoming place that allows students and teachers to come together and work on schoolwork together. This building is ADA and Well approved by the materials that they have used. They have used most man -made materials and considered most Earth materials as well. Many people here are able to get through the building with no issues, having classrooms accessible for others and enough spaces to get through areas.

SEQUENCE

DIAGRAM

AXONOMETRIC :

Final Project

Supporter

Tolerance

Faithfulness

Responsibility

Generosity

Appreciation

Honesty Trust

Careless

Supporter

Tolerance

Faithfulness

Responsibility

Generosity

Appreciation

Honesty Trust

Careless

http://archdaily.com/1025790/self-maker-showroom-blurke

https://www.archdaily.com/1026511/tile-chapeljimenez-arquitectos-plus-fb-plusestudio?ad_source=search&ad_medium=projects_ta b

https://www.archdaily.com/1024684/babass u-breakers-reference-center-estudioflume?ad_source=search&ad_medium=proje cts_tab

https://www.therowatarkansas.com/#PROPERTYDETAILS

https://www.archdaily.com/997237/kansas -cityinternational-airport-new-terminal-skidmoreowings-andmerrill?ad_source=search&ad_medium=projects _tab

https://www.archdaily.com/932942/adalovelace-secondary-school-a-plusarchitecture?ad_source=search&ad_medium= projects_tab

https://www.archdaily.com/320120/adamsville-regionalhealth-center-stanley-beamansears?ad_source=search&ad_medium=projects_tab

https://www.archdaily.com/1028291/fw -jistar-the-rural-memory-museumiara?ad_source=search&ad_medium=projec ts_tab

In this final sequence diagram, I have put together nine words that best describe who I am as a person. Each of these words a re connected to the assignments that I have worked on throughout the semester. Eight of the words are connected and will describe who I am as a person.

To start off, the first word is generosity and that was connected to a hospitality project I researched. It is the entrance of the building that allows anyone of any ag e to come through the building to seek help. It had natural light, enough space for people to wait and a welcoming entrance.

Next word is supporter, and that was a retail area that allowed people to sit down and relax. This space was a pop up shop that supported a designer curtain business. It allowed people to sit down and relax within their space, have workspaces for employees and a space where both employees and guests can customize their own curtains.

Following supporter is the word faithfulness, and this space that I studied was my own college apartment. It featured where we would have our meals as a whole. We tend to hangout a lot in that space and really grow with each other's faithfulness.

Continuing is the word appreciation, and this space was a religious area for locals and visitors. This space was made for the local people to honor the dead and bring together those in mourning. It was a space that let people appreciate the living and dead. It held church services every so o ften and brought many travelers to come and see the outdoor church.

Then the next word is honesty, and this word is connected by a community of people coming together to share their space. It had tested people with trust and honesty within the space by allowing the community area for everyone in the town to use. It had an area for people to work together, a prayer wall and water for the community.

After is the word trust, and it was a classroom that accommodated ADA and L \EED AP certified. The classroom had held enough spaces for any one with a disability to travel around the room and not feel cramped. It was also LEED AP certified so it had lots of natural materials and recycled m aterials within the space.

Second to last word is tolerance, and this space was a native museum to local people in their town. This space allowed locals to come in and look at how life h ad changed from the past century.

The last word is responsibility, and this study was in the airport at luggage claim. Right before people leave the building. This space had finished with lots of natural light, space for people to get all of their belongings and say their hello or goodbye to others. Whether they are saying good bye to the person they have just met or hello to the person picking them up to go to a new destination.

Self Maker Showroom / BLURKER. (2025, January 19). ArchDaily http://archdaily.com/1025790/self -maker-showroom-blurker

\r\n Best Student Property | The Row@Arkansas | Fayetteville\r\n. (2022). Therowatarkansas.com. https://www.therowatarkansas.com/#PROPERTYDETAILS

Adamsville Regional Health Center / Stanley Beaman & Sears . (2013, January 18). ArchDaily https://www.archdaily.com/320120/adamsville -regional-health-center-stanley-beamansears?ad_source=search&ad_medium=projects_tab

Tile Chapel / Jimenez Arquitectos + FB+ estudio. (2025, February 5). ArchDaily https://www.archdaily.com/1026511/tile-chapel-jimenez-arquitectos-plus-fb-plusestudio?ad_source=search&ad_medium=projects_tab

Kansas City International Airport New Terminal / Skidmore, Owings & Merrill . (2023, March 1). ArchDaily https://www.archdaily.com/997237/kansas-city-international-airport-newterminal-skidmore-owings-and-merrill?ad_source=search&ad_medium=projects_tab

FW JI·The Rural Memory Museum / IARA. (2025, March 27). ArchDaily https://www.archdaily.com/1028291/fw -ji-star-the-rural-memory-museumiara?ad_source=search&ad_medium=projects_tab

Babassu Harvesters Reference Center / Estudio Flume. (2024, December 13). ArchDaily https://www.archdaily.com/1024684/babassu -breakers-reference-center-estudioflume?ad_source=search&ad_medium=projects_tab

Ada Lovelace Secondary School / A+Architecture. (2020, February 4). ArchDaily https://www.archdaily.com/932942/ada -lovelace-secondary-school-a-plusarchitecture?ad_source=search&ad_medium=projects_tab

Home - Fayetteville Public Library. (n.d.). Www.faylib.org. https://www.faylib.org/

THE ABSTRACT:

This sequence diagram represented eight of the nine words that had described me. They were connected with the eight precedents that I studied over the semester and how people had interacted within the space. Generosity related to the check in area from the hospital in Atlanta, GA. Supporter was shown by the retail pop up store that had featured custom curtains. Faithfulness was my own college apartment and how we all sat at our kitchen table. It was an area where we could open up to others and connect. Appreciation was presented by the religious area where people would come and celebrate the dead or come for church. Honesty was shared with the community area that brought people together. It was a space where the local town people would come to do their daily activities with each other. Trust was connected with the ADA and LEED AP building. It had been built for people with disabilities to be able to roam around the building without feeling cramped. Tolerance was connected with the native museum in a local town. Last is responsibility and this was at an airport in my hometown. It had not only shown the exit to end things off but also the baggage claim. This was my sequence diagram.

SEQUENCE DIAGRAM:

My Workstation + Typical

REFERENCES

Zillow, I. (2025).2431 E Magnolia Dr, Fayetteville, AR 72703 | Zillow. Zillow. https://www.zillow.com/homedetails/2431-E-Magnoli a-Dr-Fayetteville W., & McCoy, J. M. (1998). When Buildings don’t work: the Role of Architecture in Human Health.Journal of Environmental Psychology,18(1), 85–https://doi.org/10.1006/jevp.1998.0089

Fayetteville-AR -72703/72871786_zpid/ Evans, G. –94.

A blended kitchen and living space that allows for gathering and engagement

Fora Health is an addiction treatment center located in Portland, Oregon. The design of the building and the spaces within use a trauma -informed approach that creates dignified design. The facility is designed in a way that creates a welcoming, calm, and safe environment for patients and staff. To create in a trauma -informed and dignified way, the design must prioritize the physical and psychological safety of a person and space. Ways that the Fora Health design does this is through the use of natural materials, intentional colors, multiple seating options, and clear sightlines, and thoughtful lighting. These allow for the patients to make many decisions in order to feel more as ease.

REFERENCE

Fora Health. Holst. (2025, January 17). https://holstarc.com/portfolio/fora -health Shopworks Architecture et al. (2025). Designing for Dignity. ORO Editions.

The Community Church Knarvik is located in the village of Knarvik in was designed by Reiulf Ramstad Architects and built in 2014. The building unique form thatis influenced by traditional Norwegian stave churches, upliftment,as well as the landscape thebuilding sits in, a hillside that the towns center. The material used is predominately wood, creating with thelandscape . The form is a welcoming embrace that also allows light to enter the sacred spaces in the church . Thebuilding consists of theground floor having cultural and spiritual functions and the housing administrative offices. These floors are connected by a grand thatallows the space to feel more open to everyone. Beyond a place Community Church Knarvik serves as a cultural and social hub, inclusivity and communal interaction . It is a landmark in the village that communityunited on religion and culture.

REFERENCE

Community Church Knarvik / Reiulf RamstadArkitekter.(2014, December https://www.archdaily.com/574811/community-church-knarvik-reiulf-ramstad

in Norway. It building has a churches, spiritual that overlooks creating a harmony allows for natural two stories, lowerfloor atrium stair of worship, hub, fostering that createsa

Sanctuary space with seating, platform, stained glass window, and angles to allow a lot of natural light to enter December 8). ArchDaily. ramstad-arkitekter

The Pool Meadow Bus Station is the primary bus and coach terminal United Kingdom, serving as the key transportation hub for local and travel . The location of the station is central to the city center. In 2021 MUTT refurbished the 1990s bus station, creating a space that was not station but a place to show art and revitalize the city. The passenger accessibility, and efficiency were improved . Also included are murals, areas, ticket offices, clear signage, and real-time travel information. While things were all important, the primary focus of the project was a route the building that created a promenade. The center of the ‘promenade’ atrium that has top lighting and plants, as well as seating . In terms of through the station, Studio MUTT created a graphic identity for all of that are in the retail spaces, helping passengers easily identify what each

REFERENCE

Pool Meadow / Studio MUTT . (2022, March 24). ArchDaily. https://www.archdaily.com/978840/pool-meadow -studio-mutt

in Coventry, and national 2021, Studio not only a bus passenger facilities, murals, seating

While these route through ‘promenade’ is an of wayfinding the tenants each store is .

Graphic signage to clearly signal to patrons what the tenants in the retail spaces are

The Rijksmuseum isin Amsterdam, Netherlands and is dedicated showcasing Dutch art and history.The museum serves education,artisticappreciation, and historical exploration . human,environmental, and social factors, the museum enhances through accessibility, digital engagement, and interactive commitment tosustainability ensures the long-term preservation while minimizing its ecological footprint. Additionally, the inclusivity through community outreach, diverse historical educational programs . As a result, it remains a vital institution heritage conservation with modern innovation, contributing community and the local economy.

REFERENCE

Rijksmuseum / Cruz y Ortiz Arquitectos . (2013, April 10). ArchDaily. https://www.archdaily.com/357590/rijksmuseum arquitectos

dedicated to preserving and serves as a hub for cultural

Designed with a focus on enhances visitor experience interactive exhibitions. Its preservation of its collections the Rijksmuseum fosters historical narratives, and institution that balances contributing to both the global art

https://www.archdaily.com/357590/rijksmuseum-cruz-y-ortiz-

Machines located throughout the museum and gallery spaces to provide information for guests in multiple languages.

The Smithsonian National Museum of African American History and Culture Washington DC was designed by Adjaye Associates, Freelon Adjaye and SmithGroup and was completed in 2016. This building combines human, environmental, and social factors in the design to promote equity, inclusion, and social justice. Through symbolic elements, the building shows cultural representation, accessibility, community engagement, and sustainability doing so, this shows how design can address historical injustice and create an inclusive community where all are welcome to learn and grow. Some symbolic elements used in the Smithsonian National Museum of African American History and Culture are the exterior facade that is inspired traditional carved wooden column from West Africa and ironwork that inspired by the intricate ironwork that enslaved southern African Americans made. The position of the building is also symbolic and welcoming as positioned near the Washington Monument as a part of the narrative American history and create an inclusive space.

REFERENCE

Castro, F. (2019, June 4). Smithsonian National Museum of African American History and Culture Freelon Adjaye Bond/SmithGroup . ArchDaily. https://www.archdaily.com/794203/smithsonian national -museum-of-african-american-history-and-culture-adjaye -associates

The Contemplative Court is a space for reflection and meditation. It is a cylindrical fountain that goes into a pool and has a skylight above. Culture in Bond, human, inclusion, cultural sustainability. In create of the African inspired by a that is Americans as it is narrative of Culture /

-

ABSTRACT

TheEdge was designedby PLP Architecture in 2015 in Amsterdam, Netherlands. Thisbuildingstands asan example of sustainable architecture thatintegrates human,environmental, and social factors through IBC, ADA, and LEED Gold. The Edge uses advanced smart technologies, biophilic design, as well as open and flexible workspaces to enhance the well-being, productivity, and comfortofthe building users. Through the use ofsolar panels, rainwater collection, and smart buildingtechnologies, the buildinghas a net-positive energy performance. Due to this, ithas been awarded LEED Gold standard and BEEAM Outstanding. The building also creates a sense of inclusivity, transparency, and collaboration with theintention of creating a healthy workplace culture and environment . By combining human, environmental, and social factors, The Edgehas created a space that improves employee satisfaction, has a strong identity, has significantly reduced operational costs, and leadscommunity engagement. TheEdgedemonstrates how sustainable design can drive innovation, wellness, and social value in the built environment .

SEQUENCEDIAGRAM

ArchDaily. (2016, April 22). The Edge / PLP Architecture. ArchDaily. https://www.archdaily.com/785967/the-edge-plp-architecture

EDGE. (2025). EDGE | The Edge. EDGE. https://edge.tech/buildings/the-edge PLP Architecture. (2024). The Edge, Amsterdam, The Netherlands – PLP Architecture. PLP Architecture. https://plparchitecture.com/the-edge/

AXONOMETRIC

This axonometric showcases some ofthe open concept workspace. The area gives optionsfor different seating types with different size tables and chair types. This allows for choice for the occupants and a more collaborative environment.

Final Project

A design should start with clear wayfinding in a graphic are artistic, imaginative way. Then providing open workspace seating allows people to feel optimistic as they work together. Next, is a double-high space with lots of natural light and the opportunity for visitors and others to have the ability of choice. The ability to have options is based on trauma-informed design and empathy Then moving into a blended living-dining-kitchen space provides a caring environment that provides space for engagement and communication. Then there is a innovative informational screen that provides information in multiple languages and ways (i.e. sound on if blind, captions if deaf, etc.) for ease and accessibility Next is a spiral stair that adds an artistic flare to the space as it leads to the more grounded and spiritual spaces. A space that could help someone learn about me, Madden Herring, is a space for rest after an activity like walking/standing for long periods of time or stairs. I have a medical condition that requires me to need frequent rest in these situations. Having spaces like this creates understanding for people who may also have invisible disabilities or may need rest. Then the use enters the contemplative court that provides a space for meditation and relaxation. Through the use of light and water, the space helps people feel empowered in their feelings. Finally, the use enters the sanctuary space where a person can go in determined in their beliefs in a space to leave better than they entered.

1. Pool Meadow / Studio MUTT. (2022, March 24). ArchDaily https://www archdaily com/978840/pool-meadow -studiomutt

2. ArchDaily. (2016, April 22). The Edge / PLP Architecture. ArchDaily. https://www.archdaily.com/785967/the-edge-plparchitecture

EDGE. (2025). EDGE | The Edge. EDGE. https://edge.tech/buildings/the-edge PLP Architecture. (2024). The Edge, Amsterdam, The Netherlands – PLP Architecture. PLP Architecture https://plparchitecture com/the-edge/

3. Fora Health Holst. (2025, January 17). https://holstarc com/portfolio/fora -health Shopworks Architecture et al (2025). Designing for Dignity. ORO Editions

4. Zillow, I. (2025).2431 E Magnolia Dr, Fayetteville, AR 72703 | Zillow Zillow https://www.zillow.com/homedetails/2431-E-Magnolia-Dr-Fayetteville-AR-72703/72871786_zpid/ Evans, G. W., & McCoy, J. M. (1998). When Buildings don’t work: the Role of Architecture in Human Health Journal of Environmental Psychology,18(1), 85–94 https://doi org/10 1006/jevp 1998 0089

5. Rijksmuseum/ Cruz y Ortiz Arquitectos.(2013, April 10). ArchDaily https://www archdaily com/357590/rijksmuseumcruz-y-ortiz-arquitectos

6. Libe Flagship Store / red5studio. (2021, April 29). www.archdaily.com/960722/libe-flagship-store-red5studiomooool. (2021, December 280 Libe Flagship by Red5studio-moool com Mooool com/en/libe-flagship-by-red5studio html

7. Dysautonomia International: Classroom Accommodations for Children with Dysautonomia (n.d.). Www.dysautonomiainternational org https://www dysautonomiainternational org/page php?ID=107

8. Castro, F. (2019, June 4). Smithsonian National Museum of African American History and Culture / Freelon Adjaye Bond/SmithGroup. ArchDaily. https://www.archdaily.com/794203/smithsonian-national-museum -of-african-americanhistory -and-culture-adjaye-associates

9. Community Church Knarvik / Reiulf Ramstad Arkitekter. (2014, December 8). ArchDaily https://www archdaily com/574811/community-church -knarvik-reiulf-ramstad-arkitekter

A seating nook in the hallway that is large enough for the ability to lay down. Allows for people with medical conditions to rest after the stairs.

REFERENCE

Dysautonomia International: Classroom Accommodations for Children with Dysautonomia (n.d.). Www.dysautonomiainternational.org. https://www.dysautonomiainternational.org/page.php?ID=107

A design should start with clear wayfinding in a graphic are artistic, imaginative way. Then providing open workspace seating allows people to feel optimistic as they work together. Next, is a double-high space with lots of natural light and the opportunity for visitors and others to have the ability of choice. The ability to have options is based on trauma-informed design and empathy. Then moving into a blended living-dining-kitchen space provides a caring environment that provides space for engagement and communication. Then there is a innovative informational screen that provides information in multiple languages and ways (i.e. sound on if blind, captions if deaf, etc.) for ease and accessibility. Next is a spiral stair that adds an artistic flare to the space as it leads to the more grounded and spiritual spaces. A space that could help someone learn about me is a space for rest after an activity like walking/standing for long periods of time or stairs. I have a medical condition that requires me to need frequent rest in these situations. Having spaces like this creates understanding for people who may also have invisible disabilities or may need rest . Then the use enters the contemplative court that provides a space for meditation and relaxation. Through the use of light and water, the space helps people feel empowered in their feelings. Finally, the use enters the sanctuary space where a person can go in determined in their beliefs in a space to leave better than they entered.

REFERENCE

Dysautonomia International: Classroom Accommodations for Children with Dysautonomia . (n.d.). Www.dysautonomiainternational.org. https://www.dysautonomiainternational.org/page.php?ID=107

A seating nook in the hallway that is large enough for the ability to lay down. Allows for people with medical conditions to rest after the stairs.

My Workstation + Typical

Crossbody bag

Where am I most likely to unconsciously buy something?

Project Information

Items

Your Answers base on your selected project

Project Name World of Disney Store Disney Springs

Designer or Architect Pinbar Architecture and Design

Project Address 1486 E Buena Vista Dr, Lake Buena Vista, FL 32830

Google map link to the project

Human Factor(s)

Environmental Factor(s)

Social Factor(s)

Outcomes expected as a result of the combination of the factors above

Reference for expected outcomes above (APA style)

https://g.co/kgs/TfAvLrF

The space is grand and large and affects the person’s sense of scale. The displays are all shorter, making the space feel even more grand. The space uses warm lighting to create a sense of comfort.

The building is in the heart of a shopping district. There are ample windows and a skylight allowing for a connection to the outdoors. The large area allows for the center to be guidance through the space.

The merchandise is always pulled to the front of the space to allow people to view and ask about products easily. There are several spaces within the store to pause and gather.

People will enjoy their experience in the store and have a desire to stay for an extended period of time. The picture-perfect displays will encourage people to make purchases of the products. The space is large enough to allow for a feeling of exploration, keeping people constantly looking around. The double-height space provides the person with awe when they first walk in, inspiring them to look around further.

World, Medling. “World Of Disney , What’s Inside. Full Tour From Disney Springs.” YouTube, YouTube, 5 Oct. 2024, www.youtube.com/watch?v=fBxim2mf39Q.

You u enter r the e building g through h a set t of f three e glass s doors s into o a double e height t space

Once e inside, , you u are e greeted d by y a center r mezzanine e level l with h colorful l lights

Continuing g into o the e store, , you u enter r another r double-height t space e with h colored d windows, , exposed d ducts, , and d exposed d lighting.

Towards s the e back k of f the e store, , you u access s the e holiday y section n that t is s changed d regularly There e is s a projected d screen n on n the e back k wall l playing g films s and d songs

To o the e left, , there e is s a more e formal l section n with h home e goods, , mugs, , bags, , and d jewelry It t features s simple e casework, , spinning g displays, , large e windows, , and d an n exposed d ceiling

In n the e bag g area a on n the e left, , there e is s a casework k display y of f the e bags s kept t at t a constant t full l stock k to o add d to o the e appearance.

There e are e several l exits s from m the e space, , typically y just t one e double e glass s door r from m one e of f the e side e spaces.

I chose to highlight the main center space because of its double -height space, skylight, and how it organizes the store. This point is like a center point of guidance from within the store. The store is quite large, so moving your way around the circle can help ensure customers see everything within the space while also maintaining that they don’t get lost. The skylight highlights this center space and allows for extra lighting to shine in, so your eye is drawn to it and upwards. This center space also allows for displays of new arrivals which directs people directly to what the store wants. The double height also provides awe and amazement when someone walks into the store, increasing an interest in exploring the rest of the space. The center space gets to act as a major architectural element so that the spaces on the sides can be simpler and emphasize the product more than the architecture. There are also many bright colors in this center space, adding visual interest and allowing the store to change the lighting to fit the colors of the season, as well as adapting lighting to different needs.

Pumpkin Decoration
Exposed Shelving
Enclosed Shelving
Display Shelf
Exposed Shelving

I chose to highlight the main center space because of its double -height space, skylight, and how it organizes the store. This point is like a center point of guidance from within the store. The store is quite large, so moving your way around the circle can help ensure customers see everything within the space while also maintaining that they don’t get lost. The skylight highlights this center space and allows for extra lighting to shine in, so your eye is drawn to it and upwards.

This center space also allows for displays of new arrivals, directing people directly to what the store wants. The double height also provides awe and amazement when someone walks into the store, increasing an interest in exploring the rest of the space. The center space acts as a major architectural element so that the spaces on the sides can be simpler and emphasize the product more than the architecture. There are also many bright colors in this center space, adding visual interest and allowing the store to change the lighting to fit the colors of the season, as well as adapting lighting to different needs.

Sequence Diagram

What is the LDK (Living-Dining-Kitchen) setting of the housing that allows me to communicate with my college friends during my college life?

Project Information

Items Your Answers base on your selected project

Project Name

The Fairways at Fayetteville

Designer or Architect Fugitt & Associates Architects

Project Address

Google map link to the project

Human Factor(s)

Environmental Factor(s)

Social Factor(s)

Outcomes expected as a result of the combination of the factors above

Reference for expected outcomes above (APA style)

3600 W. Player Lane Fayetteville, AR 72704

https://maps.app.goo.gl/fURnDDF2aEfqGDKN7

The space is very open and allows for people to interact from any area across the room, preventing lots of privacy within the space. The furniture within the space is comfortable and relaxing.

The apartment is very dark because of a balcony just off the living room, but the balcony allows for a connection to the outside. The apartment is on the upper floor, so there is a removal from the sound of the ground level.

The very open space encourages interaction and discussion, as people can be heard clearly from one side of the room to the other, however, there is not much area to sit and dine and speak together.

When people visit, they will feel comfortable engaging within the space, as well as be comfortable in the furniture. The balcony space will provide some respite and allow for a connection to the outside, while inside will set up a different feeling entirely.

The fairways at Fayetteville | Apartments in Fayetteville, AR. The Fairways at Fayetteville. (n.d.). https://www.fairwaysatfayetteville.apartments/

You enter the apartment and walk down the hallway into the LDK area

You turn left and enter the kitchen area, a long line of cabinets with a peninsula between the area and the living room

The peninsula area serves as a dining area for the apartment, but dining typically occurs in the living room.

The living space is small and is accompanied by a couch, chair, rug, and TV. It ’s close-knit and comfortable.

The space feels very closed off from the front door, you walk down a long hallway to get to the living -dining-kitchen area.

Once you reach the space, it’s very open, but the space is rather small, which makes it feel intimate and enclosed. There is a space laid out for a slightly more formal dining area, but with the current setup, there is no very formal dining area, just a small chest to sit on at the peninsula. The living area can very comfortably sit 3, but could sit up to 5 or more. The couch and chair are laid back and comfortable for the space. You can engage with someone from the living room to the kitchen due to the compactness of the apartment.

Sequence Diagram

Abstract

The space feels very closed off from the front door, you walk down a long hallway to get to the living-dining-kitchen area. Once you reach the space, it’s very open, but the space is rather small, which makes it feel intimate and enclosed. There is a space laid out for a slightly more formal dining area, but with the current setup, there is no very formal dining area, just a small chest to sit on at the peninsula. The living area can very comfortably sit 3, but could sit up to 5 or more. The couch and chair are laid back and comfortable for the space. You can engage with someone from the living room to the kitchen due to the compactness of the apartment.

Sequence Diagram

The fairways at Fayetteville | Apartments in Fayetteville, AR . The Fairways at Fayetteville. (n.d.). https://www.fairwaysatfayetteville.apartments/

What is the Waiting Place & Diagnosis Room of the healthcare facility that makes people more comfortable and less nervous?

Project Information

Items

Project Name

Designer or Architect

Project Address

Google map link to the project

Human Factor(s)

Environmental Factor(s)

Social Factor(s)

Outcomes expected as a result of the combination of the factors above

Reference for expected outcomes above (APA style)

Your Answers base on your selected project

Children’s Hospital of Richmond at VCU Children’s Tower

HKS Architects

1000 E Broad St, Richmond, VA 23219

https://maps.app.goo.gl/PsbvStUMgii7KYob8

The warm materials in the room bring a sense of comfort to the person, as well as the blue colors, as blue is typically associated with calm. The room is spacious, allowing for plenty of personal space, giving the person more comfort.

The rooms are all located on higher floors away from noise, and they have large windows allowing for plenty of natural light to enter the rooms and impact the person. The waiting areas also contain ample natural light, as it is important for people to have.

The seating arrangement in most of the waiting areas encourages interaction, as well as the seating within the room and the reception area. The room allows for spacious seating so people can sit together or have distance.

People will feel comforted, relaxed, and at ease when visiting this hospital space. The waiting areas are all comfortable and feel like they could be located in any project, not just this hospital. The room itself is very comforting, and even for people who do not enjoy hospitals in the slightest, there’s a chance to feel comfort here since the space doesn’t follow the traditional materials and colors of a hospital room.

Henderson, R. by E. (2022, October 17). Certain hospital room features may influence patient outcomes after high-risk operations. News. https://www.news-medical.net/news/20221017/Certain-hospital-roomfeatures-may-influence-patient-outcomes-after-high-risk-operations.aspx

You enter the building from the ground level with broad reflective windows and bright colors

The e reception n area a has s a few w seats s to o wait t in n before e heading g back k into o a larger r a waiting g area a after r being g checked d in

The waiting area is a double-height space and features a variety of seating arrangements.

This is another area for waiting featuring more formal tables but comfortable for a kids size.

The e diagnosis s room m is s bright t colored d and d features s warm m materials s and d several l different t seats

The hospital is large and looming when you first enter from the outside. However, once you enter, you are immediately greeted by a lot of bright, colorful scenery. There is a mix of warm materials and cooler materials throughout the space. Since it is a children’s hospital, there is seating for adults as well as seating that is more comfortable for the children. There is also a variety of spaces to wait in so you can use them to your needs. Once you progress through the waiting areas, you reach a very comfortable diagnosis room. The bed is in the center, and there is a variety of seating spread around the room to accommodate several people and allow for different levels of comfort. The rooms have warm materials and bright, fun colors to engage with the children staying in the room.

Ceiling Panels
Mezzanine Level
Children’s Table
Adult’s Table

ABSTRACT

The hospital is large and looming when you first enter from the outside. However, once you enter, you are immediately greeted by a lot of bright, colorful scenery. There is a mix of warm materials and cooler materials throughout the space. Since it is a children’s hospital, there is seating for adults as well as seating that is more comfortable for the children. There is also a variety of spaces to wait in so you can use them to your needs. Once you progress through the waiting areas, you reach a very comfortable diagnosis room. The bed is in the center, and there is a variety of seating spread around the room to accommodate several people and allow for different levels of comfort. The rooms have warm materials and bright, fun colors to engage with the children staying in the room.

Sequence Diagram

What is the role of Level, Height, and Scale (or others) in governmental and religious spaces to display power and build relationships with the public?

Project Information

Items Your Answers base on your selected project

Project Name

Designer or Architect

Project Address

Google map link to the project

Human Factor(s)

Environmental Factor(s)

Social Factor(s)

Outcomes expected as a result of the combination of the factors above

Reference for expected outcomes above (APA style)

Oklahoma State Capitol

Solomon Andrew Layton

2300 N Lincoln Blvd, Oklahoma City, OK 73105

https://maps.app.goo.gl/4zRYtcYdNY2AnhmQ7

The space makes the person walking into it and through it feel very small with how large the ceilings and other spaces are. The materials used makes the space feel rather luxurious and can make someone feel powerful themselves, or uncomfortable at the luxury of it all.

The space uses a lot of natural light through skylights and other factors, so sunlight is common in the area which can make people feel important with concentrated sunlight on them. The building also feels heavy and secure, which is important in a state like Oklahoma with bad weather frequently.

The height changes in the space show it is an area of power and strength, with many large double height spaces and level changes lifting people of power within the house and senate chambers. The space is also large and has several stopping spots to sit and have a conversation while waiting for something else.

Anyone who walks into the space will understand that there is an importance to it, even if they have no idea what the space is. The space will help establish social cues through lifting the higher ranking people and establishing their status over others in the space. It also will allow for people to have a feeling of grandness and importance as they navigate the space themselves.

Archspace, T. (2022, September 22). Importance of hierarchy in architecture. THE ARCHSPACE. https://thearchspace.com/hierarchy-in-architecture/

You walk up a large grand staircase on the way to the entrance of the capitol space.

Once inside, you follow up another set of stairs, making you feel very high up and important

The staircase leads to the rotunda, a grand space with a high ceiling. The materials and paintings make the space feel expensive.

The long hallway leads to doors at the end, and while the doors aren’t overwhelming grand the space that leads just to them makes them feel important

The e senate e chamber r holds s most t people e on n ground d level, , some e in n the e “nose e bleeds” ” and d the e leaders s on n an n elevated d platform m in n the e front t and d center r of f the e space.

The Oklahoma State Capitol is very large and grand. It makes people interacting with the space feel a little small with how large most of the spaces are. It establishes itself as a building of importance and leadership through this height as well as the luxury in the space through paintings and materials. The capitol establishes hierarchy through the way the seating is within the space. If sitting in the seats in the upper level of the senate chamber, you could feel removed from the rest and that space feels the least important to the room. Next, the chairs sitting at ground level have the second most important status in the room. Finally, the ones on the elevated platform feel the most important in the space since they are front and center. This space is also double height, adding to the importance and grandness of the people sitting in that area.

Entrance Staircase Rotunda Hallway Chamber
Entrance Staircase Rotunda Hallway Chamber
Entrance Staircase Rotunda Hallway Chamber
Entrance Staircase Rotunda Hallway Chamber

Entrance Staircase Rotunda Hallway Chamber

Second in Command Seats

Podium for speaker

Head of Senate seat Elevation raise displaying importance

The Oklahoma State Capitol is very large and grand. It makes people interacting with the space feel a little small with how large most of the spaces are. It establishes itself as a building of importance and leadership through this height as well as the luxury in the space through paintings and materials. The capitol establishes hierarchy through the way the seating is within the space. If sitting in the seats in the upper level of the senate chamber, you could feel removed from the rest and that space feels the least important to the room. Next, the chairs sitting at ground level have the second most important status in the room. Finally, the ones on the elevated platform feel the most important in the space since they are front and center. This space is also double height, adding to the importance and grandness of the people sitting in that area.

Sequence Diagram

T. (2022, September 22). Importance of

https://thearchspace.com/hierarchy

Entrance Staircase RotundaHallway Chamber

What are the ways that design (environmental factors) can support wayfinding and (sequential) information to ensure safety and on -time travel in your transportation precedent? Project Information

Items Your Answers base on your selected project

Project Name

Heathrow Airport International Arrivals Terminal

Designer or Architect Luis Vidal + Architects

Project Address

Google map link to the project

Human Factor(s)

Environmental Factor(s)

Social Factor(s)

Outcomes expected as a result of the combination of the factors above

Reference for expected outcomes above (APA style)

Heathrow Airport, Hounslow, Middlesex, TW6 1NG, United Kingdom

https://maps.app.goo.gl/Sub66BJaZXVDHWh39

The path through the international terminal is very straightforward but very compact. This keeps people in very close proximity together which can make the situation uncomfortable but also keeps people moving to avoid the uncomfortable situation.

There is a lot of large windows and connections to the outdoors, which, considering this is the international terminal, this allows for people to start getting a grasp on their bearings within the area and connect to their new location.

The space is quite linear, and there’s not much space to adjust by speaking with others. There are factors such as adapting to walking on the left side instead of the right side, and other elements such as this that require adjustment from some of the international travelers.

People will quickly begin adjusting to their new environment and move quickly through the space, reaching the destination they need. There will be some social cues to come from the lines that you have to wait in to pass through customs and security, and other elements like this, and exposure to the outdoors can help with adjustment from a long flight.

Berti, A. (2024, October 4). The evolution of airport wayfinding. Airport Technology. https://www.airporttechnology.com/features/airport-wayfinding/

Immediately y stepping g off f the e tarmac, , there e are e wayfinding g signs s guiding g you

The e hallway y continues s but t gives s a detailed d analysis s of f how w the e process s of f leaving g the e airport t will l go.

When n you u come e back k down n from m the e skywalk, , you u are e greeted d with h more e signs s directing g you u in n whichever r direction n you u need d to o go

Finally y you u come e to o where e you u may y split t for r different t needs, , with h the e bright t signs s helping g you u leave e and d the e purple e signs s helping g you u to o your r next t flight

Once e at t passport t control, , there e are e distinct t lines s for r different t passports s and d signs s helping g direct t people e based d on n their r passport.

Finally, , you u reach h the e area a at t the e end d that t helps s guide e you u to o other r terminals, , shopping, , or r the e exit.

In the Heathrow International Arrivals terminal, there is very distinct wayfinding and direction to help the people coming in understand how to get where they are going. There is an understanding by the architect that most people arriving here likely have never been to London or haven’t been recently, and may need help with adjusting to the way things work in the city. There is distinct wayfinding paths as well as signs directing people straight down these paths to try and limit confusion as much as possible. This allows for people to feel more comfortable as they adjust to their surroundings for the first time and begin to understand where they are and what they are doing in the area. This allows keeps the space safer and more secure as people are guided very distinctly so they can’t end up wandering around or in the case of a threat, sneaking out and causing harm to others.

Entrance
Big Split Walkway
Door to Customs Customs Exit area
Entrance
Big Split Walkway
Door to Customs Customs Exit area
Entrance
Big Split Walkway
Door to Customs Customs Exit area
Entrance
Big Split Walkway
Door to Customs Customs Exit area
Entrance
Big Split Walkway
Door to Customs Customs Exit area
Entrance
Big Split Walkway
Door to Customs Customs Exit area
Entrance
Big Split Walkway
Door to Customs Customs
area

Abstract Sequence Diagram

In the Heathrow International Arrivals terminal, there is very distinct wayfinding and direction to help the people coming in understand how to get where they are going. There is an understanding by the architect that most people arriving here likely have never been to London or haven’t been recently, and may need help with adjusting to the way things work in the city. There is distinct wayfinding paths as well as signs directing people straight down these paths to try and limit confusion as much as possible. This allows for people to feel more comfortable as they adjust to their surroundings for the first time and begin to understand where they are and what they are doing in the area. This allows keeps the space safer and more secure as people are guided very distinctly so they can’t end up wandering around or in the case of a threat, sneaking out and causing harm to others.

Entrance Big Split Walkway

Axonometric

Berti, A. (2024, October 4). The evolution of airport wayfinding . Airport Technology. https://www.airport -technology.com/features/airport-wayfinding/

Door to Customs Customs Exit area

In what ways can design (environmental factors) support wayfinding and sequence to convey cultural content in your cultural project precedent?

Project Information

Items Your Answers base on your selected project

Project Name Arlington Museum of Art

Designer or Architect Duvall Decker

Project Address 1200 Ballpark Way, Arlington, TX 76011 Google map

Human Factor(s)

Environmental Factor(s)

Social Factor(s)

Outcomes expected as a result of the combination of the factors above

https://maps.app.goo.gl/Xhm9QPhitfvXiRcZ9

The space is very clean, minimal, and compact, making the person in the space feel like they need to keep to themselves and remain in a solid spot. The space has a distinct path guiding someone throughout the space and ensuring they see all of the art.

The space is very large and within a popular part of the city, so it feels like a little hideaway from the sports in the surrounding area. It is also a great spot for rest and reflection as it is quiet and focused for the area.

The space has spots to sit and chat, but typically tries to keep people moving through most of the spaces. The space is very quiet so any conversation must be kept pretty hush so you don’t disturb others around you.

The space will guide people throughout without too much signage having to guide them through the space. There are areas for rest in the area but it is not the main focus, the main focus is to view the art and continue through to be able to see everything on display within the area. The space is open in some areas and a little more compact in others to accommodate different exhibits that may pass through.

Reference for expected outcomes above (APA style) Walshaw, E. (2022, March 8). An architect’s guide to: Museum planning . Journal. https://architizer.com/blog/practice/details/architects-guide-museum-planning/

This is the back half of the large room, there are two major sides you are able to walk down but you can freely choose which path to take first

This room displays a variety of dressed from different Cinderella movies, there is a small doorway at the back of the first room guiding you straight into this one, there is a distinct path to circle around this room

(Sorry for the poor picture, I couldn’t find an image of the hallway) This is a part with costumes on display behind glass that winds back and forth through the rest of the costuming part of the exhibit, guiding you one way down a distinct path

This is another large room with three paths that you are able to choose freely which one you go down, but similar to the first room you are guided by one doorway into the next space

(Sorry again for the poor picture, couldn’t find the whole room) This is the last room in the exhibit, similar to the Cinderella room there is a distinct circle path to guide you through the room to the exit.

This museum space is one of the best I’ve been in when it comes to sequence throughout a space as it has a very distinct path to follows and makes it simple to ensure the visitor is able to see of the art on display within the area. There are two rooms large enough to have several paths you can follow, giving the user some choice in the experience and allowing them to experience the space they want, but most of the space are very distinct and linear guiding you directly through while allowing you to see everything so that you can ensure you don’t miss a thing on your visit. The space has several spots to stop and rest and a few short videos you are able to watch but the museum does well in driving you to continue circulating throughout the space to make the most of your time and to see everything you can. The enclosed exhibit is the most distinct path, as it winds back and forth display art on both sides but guiding you directly through the space.

Entrance Back half
Cinderella Exhibit Enclosed Exhibit Jewels Exhibit Exit
Entrance Back half
Cinderella Exhibit Enclosed Exhibit Jewels Exhibit Exit
Entrance Back half
Cinderella Exhibit
Enclosed Exhibit Jewels Exhibit Exit
Entrance Back half
Cinderella Exhibit Enclosed Exhibit Jewels Exhibit Exit
Entrance Back half
Cinderella Exhibit Enclosed Exhibit Jewels Exhibit Exit
Entrance Back half
Cinderella Exhibit Enclosed Exhibit Jewels Exhibit Exit
Signage
Signage
Mannequins
Entrance Back half
Cinderella Exhibit
Enclosed Exhibit Jewels Exhibit Exit

Abstract Sequence

This museum space is one of the best I’ve been in when it comes to sequence throughout a space as it has a very distinct path to follows and makes it simple to ensure the visitor is able to see of the art on display within the area. There are two rooms large enough to have several paths you can follow, giving the user some choice in the experience and allowing them to experience the space they want, but most of the space are very distinct and linear guiding you directly through while allowing you to see everything so that you can ensure you don’t miss thing on your visit. The space has several spots to stop and rest and a few short videos you are able to watch but the museum does well in driving you to continue circulating throughout the space to make the most of your time and to see everything you can. The enclosed exhibit is the most distinct path, as it winds back and forth display art on both sides but guiding you directly through the space.

Entrance Back half Cinderella Exhibit

Walshaw, E. (2022, March 8). An architect’s guide to: Museum planning . Journal. https://architizer.com/blog/practice/details/architects-guide-museum-planning/

"How can symbolic elements in space promote equity, inclusion, and social justice through design?"

Project Information

Items

Project Name

Your Answers base on your selected project

IBTASEM PLAYGROUND

Designer or Architect CatalyticAction

Project Address

Google map link to the project

Human Factor(s)

Environmental Factor(s)

Social Factor(s)

Outcomes expected as a result of the combination of the factors above

QWJ6+FH4, Bar Elias, Lebanon

https://maps.app.goo.gl/raHjHxfHAS9Fq7wG6

This space is a comforting space for refugee children, allowing them a space to themselves while they are adjusting to the path that their lives have taken. The space is rather open and has shelter and spaces to engage with each other and themselves, giving a safe space to people who may no longer have one.

The space is rather minimal and pulls heavily from the environment, create a safe space with relatively little maintenance. It allows the children in this space to adapt to their environment, be exposed to healthier situations, and have the opportunity to run around freely and be as loud as possible.

The environment gives the children a space to gather and play, engaging with each other and people from the place they’ve had to relocate to, integrating them into the community and giving them a chance to make new connections and friendships while they adjust to their new life and work on restarting it.

This space will help people going through a very difficult time in their life adjust to a new location, make new connections, and let them have a safe space while they’re going through a lot of scary changes. This space gives them a place to do things that remind them of home while also being in an environment that slowly adapts them to their new location, and is a great space for changing and evolving during the time they are in.

Reference for expected outcomes above (APA style) Akanni, N. (n.d.). An overview of social justice architecture - RTF | rethinking the future. Re-thinking the Future. https://www.re-thinkingthefuture.com/architectural-styles/a7490-an-overview-of-social-justicearchitecture/

This is a continuation of the play space, with interactive elements, a slide and colorful elements.

This space has a small awning for rest, arts, and other activities, adapting to the different things the children might be interested in.

This is an outdoor activity space for sports which opens the space to a larger age group and also allows the s

This activity space was built sustainably and with minimal supplies for refugees in Lebanon. This space has some adaptable spaces to fit more or fewer people and allow for more activities, bringing in people of different ages. This is a safe space for these kids, and is also a gathering space, allowing them to be able to interact and gain a sense of home while also adjusting to their new location through the open environment and ability to interact with people local to the area. This space promotes equity through the open space and anyone being able to come and utilize it, it promotes inclusion through making the space available for different activities, allowing for greater groups of people to want to utilize the space, and it promotes social justice through inspiration for the project coming from wanting to give refugee children a space to play and be kids for themselves.

Playground Space Continued Playground Court Awning

Playground Space Continued Playground Court Awning

Abstract

This activity space was built sustainably and with minimal supplies for refugees in Lebanon. This space has some adaptable spaces to fit more or fewer people and allow for more activities, bringing in people of different ages. This is a safe space for these kids, and is also a gathering space, allowing them to be able to interact and gain a sense of home while also adjusting to their new location through the open environment and ability to interact with people local to the area. This space promotes equity through the open space and anyone being able to come and utilize it, it promotes inclusion through making the space available for different activities, allowing for greater groups of people to want to utilize the space, and it promotes social justice through inspiration for the project coming from wanting to give refugee children a space to play and be kids for themselves.

Sequence Diagram

Playground Space

Axon

Flexible seating area

Outdoor exposure

Awning

Flexible activity area

Akanni, N. (n.d.). An overview of social justice architecture - RTF | rethinking the future. Re-thinking the Future. https://www.re-thinkingthefuture.com/architecturalstyles/a7490-an-overview-of-social-justice-architecture/

Playground Court Awning

“How did practitioners apply Reference Standards (LEED, WELL, IBC, ADA, etc.) in their project in a creative way?”

Project Information

Items Your Answers base on your selected project

Project Name International WELL Building Institute Headquarters

Designer or Architect CookFox

Project Address 220

Google map link to the project

Human Factor(s)

Environmental Factor(s)

Social Factor(s)

Outcomes expected as a result of the combination of the factors above

Reference for expected outcomes above (APA style)

https://maps.app.goo.gl/A7oHE7yT6N8JvYAP7

The space utilizes a lot of the Well Standards to help people working in the area. The space uses lighting that encourages natural rhythms within people and texture to help with following patterns and recognition within the space.

The space incorporates lots of greenery to make the people within the space feel more comfortable and promote healthier standards. There is a lot of exposure to natural sunlight through abundant windows, and it maintains a lot of the integrity of the original building.

There is a variety of spaces within the office, allowing people to work in a variety of ways. There are several areas that can easily generate conversation through the seating arrangements, and the space is adaptable to allow for interaction or to step away and remain on your own.

The space will help people tune in to their needs and help their bodies go through the workday in a more natural way. The variety of seating options will allow people to use the space as they need, encouraging them to be as comfortable as possible within the office. The space will promote people living healthier lifestyles through making things such as bike racks and water stations easily accessible.

Well building standard®. WELL Building Standard® | WELL Standard. (n.d.). https://standard.wellcertified.com/well

This s shows s the e entrance e desk, , how w the e lighting g is s used d in n the e space, , as s well l as s the e defined d circulation n paths

This s space e highlights s the e adaptable e desks, , the e bike e rack, , the e storage e made e for r the e employees, , and d the e exposure e of f the e natural l building.

This s shows s a small l area a to o sit t with h yourself, , as s well l as s the e ability y for r an n employee e to o adapt t a space e to o be e more e comfortable e for r them.

This s space e heavily y highlights s the e natural l building, , as s well l as s the e comfortable e seating g reminiscent t of f a home. . The e room m shows s access s to o water r and d the e greenery y in n the e space.

This s highlights s the e comfortable e space e in n the e office e and d promotes s lots s of f natural l light t and d greenery This s is s one e of f the e space e that t encourage e conversation n through h the e seating

In this space, the design simplifies a person’s desire and ability to lead a healthier lifestyle. It encourages people to adapt the space to their needs, wanting them to feel as comfortable as possible within the space. It encourages people to engage with each other through its comfortable settings reminiscent of a home, letting them engage in comfort and conversation. The space highlights the natural building and promotes utilizing spaces as they are and not being wasteful. There is also abundant natural lighting, promoting well-being through the daylight being a primary focus within the space. There are water bottle filling stations, storage, and bike racks that make sustainable and healthy lifestyles simple for the people inhabiting the space.

Tackboard for personalization

Abstract

In this space, the design simplifies a person’s desire and ability to lead a healthier lifestyle. It encourages people to adapt the space to their needs, wanting them to feel as comfortable as possible within the space. It encourages people to engage with each other through its comfortable settings reminiscent of a home, letting them engage in comfort and conversation. The space highlights the natural building and promotes utilizing spaces as they are and not being wasteful. There is also abundant natural lighting, promoting well-being through the daylight being a primary focus within the space. There are water bottle filling stations, storage, and bike racks that make sustainable and healthy lifestyles simple for the people inhabiting the space.

Final Project

The reliable section of the sequence has seating for socialization, is laid out in a way that accommodates an average person, and has sunlight from the windows in the space trickling in (Maxx Designers). The cheerful section leads a person into the next section of the building, it displays interesting artifacts to look at, gives people something to talk about, and has signage to assist with wayfinding (Walshaw). The attentive section has a space for working, with lots of natural light and greenery to help people, as well as height adjustable desks and task chairs to accommodate different levels of comfort. It also is very open, allowing conversation and connection (WELL Building Standard). The upbeat section is a socializing space with chairs and tables scattered throughout. It is double height allowing people to have a different sense of scale from the other locations. It has lighting from above and large windows sur rounding it (Henderson). The good section is a place for people to come together and help each other. It is a location with different things available to the people who come and visit the space. People can interact with each other, give each other things, and help with life e vents. The space is cozy and comforting, helping people feel safe in the space. It is bright and inviting through greenery and natural light (USA Shade). The trust section raises people up, giving them height over their peers. It establishes power but is also open enough to allow trust. It is in an open double height space, allowing people to feel important. It is open for communication, and it has wind ows around the top letting sunlight trickle in (Archspace). The reputable section is a section to stop and take in. The display shelf holds interesting artifacts, making for conversation. The shelf is a little bit taller than a person, giving it importance. It is an open space , connecting to the outdoors and the next section (World). The sympathetic section is the next outdoor section. It has a direction connection to nature, with only a small awning to shade from the sun. This section is largely for socialization, with plenty of chairs and tables and ad aptable to different formats for different types of gatherings. The space is adaptable to fit everyone and whatever needs are needed at the time (Akanni). The authentic section is the exit to the space, where you see yourself out. It allows for one last stop and pause before you exit a space. It also directs you to your next location, with signage located around the space to guide you. It is a direct connecti on into the environment. There are spaces to stop and converse with the people you met along the way through the space and have a final conversation before you go your separate ways (Berti).

Reference (APA style)

Walshaw, E. (2022, March 8). An architect’s guide to: Museum planning. Journal. https://architizer.com/blog/practice/details/architects -guide-museum -planning/ Maxx Designers. (n.d.). The essentials of apartment building design: Key elements and considerations . Maxx Designers. https://www.maxxdesigners.com/essentials -of-apartment -building-design/

Well building standard®. WELL Building Standard® | WELL Standard. (n.d.). https://standard.wellcertified.com/well

Henderson, R. by E. (2022, October 17). Certain hospital room features may influence patient outcomes after high -risk operations. News. https://www.news-medical.net/news/20221017/Certain -hospital-room-features-may-influence-patientoutcomes-after-high-risk-operations.aspx

USA Shade. (n.d.). A full guide to designing a community center . USA Shade. https://www.usa-shade.com/blog/communitycenter-design/

Archspace, T. (2022, September 22). Importance of hierarchy in architecture . THE ARCHSPACE. https://thearchspace.com/hierarchy -in-architecture/

World, Medling. “World Of Disney , What’s Inside. Full Tour From Disney Springs.” YouTube, YouTube, 5 Oct. 2024, www.youtube.com/watch?v=fBxim2mf39Q.

Akanni, N. (n.d.). An overview of social justice architecture - RTF | rethinking the future . Re-thinking the Future. https://www.re-thinkingthefuture.com/architectural-styles/a7490-an-overview -of-social-justice-architecture/

Berti, A. (2024, October 4). The evolution of airport wayfinding. Airport Technology. https://www.airporttechnology.com/features/airport -wayfinding/

Abstract

The reliable section of the sequence has seating for socialization, is laid out in a way that accommodates an average person, and has sunlight from the windows in the space trickling in (Maxx Designers). The cheerful section leads a person into the next section of the building, it displays interesting artifacts to look at, gives people something to talk about, and has signage to assist w ith wayfinding ( Walshaw ). The attentive section has a space for working, with lots of natural light and greenery to help people, as well as height adjustable desks and task chairs to accommodate different levels of comfort. It also is very open, allowing convers ati on and connection (WELL Building Standard). The upbeat section is a socializing space with chairs and tables scattered throughout. It is double height allowing people to have a different sense of scale from the other locations. It has lighting from above and lar ge windows surrounding it (Henderson). The good section is a place for people to come together and help each other. It is a location with different things available to the people who come and visit the space. People can interact with each other, give each ot her things, and help with life events. The space is cozy and comforting, helping people feel safe in the space. It is bright and inv iting through greenery and natural light (USA Shade). The trust section raises people up, giving them height over their peers. It establishes power but is also open enough to allow trust. It is in an open double height space, allowing people to feel impor tant. It is open for communication, and it has windows around the top letting sunlight trickle in ( Archspace). The reputable section is a section to stop and take in. The display shelf holds interesting artifacts, making for conversation. The shelf is a little bi t taller than a person, giving it importance. It is an open space, connecting to the outdoors and the next section (World). The sympathetic section is the next outdoor section. It has a direction connection to nature, with only a small awning to shade from the sun. This se ction is largely for socialization, with plenty of chairs and tables and adaptable to different formats for different types of gatheri ngs . The space is adaptable to fit everyone and whatever needs are needed at the time (Akanni). The authentic section is the exit to the space, where you see yourself out. It allows for one last stop and pause before you exit a space. It also directs you to your next location, with signage located around the space to guide you. It is a direct connection into the environment. There are space s to stop and converse with the people you met along the way through the space and have a final conversation before you go your separate ways (Berti).

Sequence

Reliable CheerfulAttentive Upbeat Good

Shelving of supplies

Windows letting in light

Seating area to have communication

Help desk to give assistance

Varied seating for comfort

USA Shade. (n.d.). A full guide to designing a community center . USA Shade. https://www.usa-shade.com/blog/communitycenter-design/

My Workstation + Typical

Put your assignment

assignment #10

Final Project

Spaces have the power to reveal not just where we are, but who we are. They influence our movements, shape our emotions, and create the conditions for connection to others, to the environment, and to ourselves If someone wanted to truly understand me, they would need to experience a carefully designed space where human, environmental, and social factors come together to support self expression and growth Moving through this space reveals important aspects of my identity, each tied to a key quality: original, trust, genuine, compassion, empathy, individual, rare, love, and sincere As the sequence unfolds, the space invites discovery, until ultimately arriving at a rare moment of transformation, a moment where everything comes together and you see the person I am meant to be

The journey begins with originality in a space that encourages fresh thinking right from the start Natural light filters in, furniture is placed intuitively, and materials are soft and sustainable. This original design does not call attention to itself; rather, it responds thoughtfully to the human need for ease and inspiration Every corner invites choice and imagination, shaping an environment where being yourself feels natural

As you move forward, trust becomes essential There is a place to lay out your belongings, to leave your essentials while you prepare for the day The environment offers quiet security, designed to make you feel that nothing will be disturbed or lost Trust is not just felt in human relationships here; it is built into the structure itself, with thoughtful organization, privacy, and an invitation to be unguarded.

In the next part of the space, the atmosphere feels genuine There are no harsh lines or artificial distractions; everything is honest in its materials and forms Wood shows its grain, light changes throughout the day, and textures invite touch This authenticity builds a connection between human experience and the environment, making it impossible to be anything but your real self.

As you move toward the center of the space, compassion is subtly woven in There are places to sit if you need a break, mirrors that reflect without judgment, and lighting that flatters rather than exposes This space recognizes that getting ready is not always just about appearance It can also be about building confidence, healing, or preparing for difficult moments The environment offers quiet support, acknowledging the social and emotional realities we carry with us.

The pathway then leads to a gradual ramp, embodying empathy It is designed for all bodies and abilities, ensuring that no one feels left out of the experience The flow is smooth, respectful of different speeds and needs In this moment, the human desire to belong and move with dignity is fully supported by thoughtful environmental design and a socially inclusive attitude

As you reach the area where personal choices come to the forefront, individuality shines. Here, options for self expression are abundant. A range of clothing, accessories, scents, and finishing touches are offered without pressure or judgment The environment celebrates difference, encouraging each person to prepare in a way that feels most true to them Socially, this space affirms that uniqueness is not only accepted but honored

And then, you step into the heart of the experience, the rare moment This is a small, luminous space designed just for you It is quiet but full of light, simple but rich with possibility Here, everything slows down You see yourself clearly, not the hurried, everyday version, but the version full of intention and hope The human factor is self acknowledgment; the environmental factor is the beauty of simplicity; the social factor is the permission to focus inward before stepping outward This rare space is where you feel the strongest, most centered version of yourself take shape

After this rare moment, you emerge into a space that naturally fosters love. It is communal and warm, a place to meet others if you wish, to exchange encouragement, compliments, or simply shared energy The design invites conversation, laughter, and connection Human relationships, environmental flow, and social care create a web of support that strengthens and lifts

Finally, the sequence ends in a place where sincerity is the closing note. A simple mirror, positioned just before the door, offers a last reflection, not just of how you look, but of how you feel. There are no tricks of lighting here, no distortions. Just you, honestly facing yourself, ready to step into the world with integrity It is a quiet, powerful goodbye to the space and a sincere greeting to the day ahead

In moving through this space, you do not just see my morning routine You experience the values that shape me originality, trust, genuineness, compassion, empathy, individuality, love, and sincerity all culminating in a rare and transformative moment The human, environmental, and social factors built into this space show that becoming our best selves is never random. It is shaped by where we are, who we are with, and how we are supported along the way

Reference (APA style)

Alvar Aalto Foundation. (2023). Appendices CMP: Colour research part I. [PDF document]. https://www.alvaraalto.fi/wpcontent/uploads/2023/04/APPENDICES-CMP-_-Colour-research-part-I.pdf

Design is a social justice issue. LMS. (n.d.). https://lmsarch.com/studio/stories/design-social-justice-issue/

Eliade, M. (1957). The Sacred and the Profane: The Nature of Religion.

Gambelin, A.-M., & Gambelin, A.-M. (2022, February 3). Getting dressed for the day can make you feel happier. Motherly. https://www.mother.ly/health-wellness/mental-health/its-science-benefits-of-getting-dressed/

History - camper USA. Camper Shoes - Official Online Shop USA. (n.d.). https://www.camper.com/en_US/content/history?_gl=1%2A70aa6a%2A_up%2AMQ..%2A_gs%2AMQ..&gclid=Cj0KCQiAq-u9BhCjARIsANLjs1Go8uEWKYBk0vbLAQ-ZSedjXjNo-_vIiS5jrxpXGCIafcO6dq63ykaAqqdEALw_wcB

Maggie’s Cancer Caring Centre. Maggie’s Cancer Caring Centre – Snøhetta. (n.d.-b). https://www.snohetta.com/projects/maggies-cancer-caring-centre

Sal Moslehian, A., Warner, E., & Andrews, F. (2023). The impacts of kitchen and dining spatial design on cooking and eating experience in residential buildings: A scoping review. Journal of Housing and the Built Environment, 38(3), 1983–2003. https://doi.org/10.1007/s10901-023-10027-z

Santos, P. (2011, August 13). Rstudio: Alboraya Palmaret train station. designboom. https://www.designboom.com/architecture/rstudio-alborayapalmaret-train-station/

Gambelin, A.-M., & Gambelin, A.-M. (2022, February 3). Getting dressed for the day can make you feel happier. Motherly. https://www.mother.ly/healthwellness/mental-health/its-science-benefits-of-getting-dressed/

My students in IARD 4813 Human Factors for Design 1) evaluate the built environment for its dynamic potential to affect human behavior, demonstrating an understanding of how the design of the built environment can support or impede human transactions, individually or in social or cultural groups, 2) demonstrate an understanding of how the natural and artificial environment supports human wellbeing, and 3) apply an observation research technique used by social scientists, environmental psychologists, and designers of the built environment to analyze different environmental settings demonstrating how to collect and evaluate knowledge gained through observing physical traces, and individual and group behaviors.

Turn static files into dynamic content formats.

Create a flipbook
S25_Human Factors for Design by Jinoh Park - Issuu