Skip to main content

S21_IARC425/ARCH523_WELL-Certifiable Workplace

Page 1


WELLCertifiable Workplace

Elraheb, Amir Keys, Andrew Kuntz, Caroline Mull, Rebecca Poff, Brooklyn Thompson, Trevor Warren, Katherine Weekly, Camryn

Course

IARC 425 | ARCH 523 WELL-Certifiable Workplace in Spring 2021

Students

Elraheb, Amir

Keys, Andrew Kuntz, Caroline Mull, Rebecca Poff, Brooklyn

Thompson, Trevor

Warren, Katherine

Weekly, Camryn

Publisher/Instructor

Jinoh Park

Contact newnormalist@gmail.com

© The copyright of all design results contained in this book belongs to each (student) designer.

INSTRUCTOR’S NOTE

It was the last of the 2020-2021 school year, with more excitement and responsibility. As a faculty, the biggest concern was how to manage this experimental course newly developed. Because this is an initiative try to combine the WELL Building Standards with Design in a seminar course. Along with this concern, I have finished writing a research paper “Enabling Health and Wellness in the Interior Architecture and Design Studio: A Proposal for Scaffolding Based on the WELL Building Standard,” hoping that students can experience what the practice requires.

This class aims to develop students’ capacities to demonstrate the ability to enable the WELL Building Standard and coordinate workplace design projects for WELL Certification. They understand how the built environment can positively impact the health and wellness of its occupants. Ultimately, this class aims to reduce the gap between education and the current health trend in practice and increase opportunities for improved built environments in terms of health and wellness by educating future design practitioners.

Making this book is a way to review my instruction through my students’ processes and outcomes. By looking at each phase of the process and its outcome, I feel like I might have had to help or teach my students more at some points. This book gives me feedback on student achievement. Also, I hope to help 1) my students apply what they have learned to the following years, 2) the future faculties in charge of the students I have taught to understand the students’ outputs, and 3) my future students understand my expectations. Lastly, I wish this book can be used as a base for creating my students’ portfolios.

Many thanks to my students and colleagues for giving me this opportunity at the University of Tennessee, Knoxville.

COURSE SCHEDULE

#1 Concept Wheel

- Explore

#3 Lectures about WELL Building Standard and Designing WELL-certifiable workplace

- Based on the research, each student develops concepts and sequences to communicate the concepts developed through the developed sequence to people.

#5 WELL Application | Floor Plan

- According to the plan, students apply the WELL Building Standard to their project. Students must indicate on floor plans to demonstrate that the WELL Building Standard has been applied to their project.

#2 Concept wheel about your workplace project

- Each student reviews their previous workplace projects and organize structures of programmatic and design concepts

#4 Plan what criteria of WELL Building Standard will be implemented

- By considering the organized structures, students investigate and plan which criteria of the WELL Building Standard apply to their projects.

#6 WELL Application | Elevation

- According to the plan, students apply the WELL Building Standard to their project. Students must indicate on elevations to demonstrate that the WELL Building Standard has been applied to their project.

#7 WELL Application | Specification

- According to the plan, students apply the WELL Building Standard to their project.

Students must indicate on specifications to demonstrate that the WELL Building Standard has been applied to their project.

#9 WELL Application | Iteration

- Students complete a full set of floor plans, elevations, specifications, and sections

#10

Visualization

#11

Portfolio

- Students create their design portfolio for their future career

#8 WELL Application | Section

- According to the plan, students apply the WELL Building Standard to their project.

Students must indicate on sections to demonstrate that the WELL Building Standard has been applied to their project.

- After the completion of WELL package, students visualize their design with WELL building standard to present their innovative and creative design solutions

Elraheb, Amir

Uniqueness

Al-Hakim the Seeker

I consider myself to be an innovative person because I like to make things, alter things, find solutions for problems, and I am generally inquisitive about the things that interest me. I believe that my ability to innovate has developed from the urge to understand the things that interest me. I generally have the confidence to reach any goal I put myself behind, and I think that is a unique trait, there’s nothing I, or anyone, can’t do if they work for it. I am also a friendly individual, but I’m pretty picky about who I let into my life fully. I am attracted towards people who are inspiring, peaceful, and loving, because those are qualities that I also aspire to have. My compassion and durability with people contribute to my friendliness, I think people appreciate it. I have faith in myself, just as I have faith in others.

Adept Humanist Refinement

Transparent surfaces providing views

Access provided forall patrons, includingtheelderly and disabled. Strongunderstandingofclientintention/ideas

Attentive Cohesion

Cohesive organization of spaces. useAestheticmaterialof methods.architecturalwithPrecise providedElegance by simplicity

Balanceof material, texture, color, light.

highRefinedmaterials, levelofcraft. Qualitymaterial choice.

The material choices for both the interior and exterior of the ASI Reisen Headquarters, there is both a notion for unity and equality. The interior spaced are mainly a beautiful balance of cozy woods and crisp black metalware. The exterior of the building is coated with a chain-link skin that provides a sense of order for the lush greenery to scale the facades. Large windows provide paths for light to penetrate the interior spaces and comfortably illuminate the rooms. The architects were very mindful about the organization of space and have a comprehension of the benefits of providing a space that integrates the landscape within the architecture. The Interior programs provide agreeable places for employees to relax, read, eat and drink, and most importantly work effectively. There is a level of complexity with the organization of spaces and architectural detail, but I believe that there is a sincere minimalist approach to the material choice used in this structure.

Guided WELL Building Standard v2 Criteria

What is your plan after this semester?

Continue to explore the many facets of architecture and design, as well as the tools used to express ideas and create.

What problems did you encounter in your design internally and externally?

This class was especially challenging for me because of a lack of prior knowledge in the tools used for creating construction documents. In saying that, I am grateful that I was able to participate as much as I could in the course to learn by fire, and accumulate a higher level of familiarity with Revit, and the WELL Building Standard in the Workplace.

How was your experience implementing the WELL Building Standard in your workplace?

I was able to think about the interiority of architectural spaces and how they affect people who habitually inhabit the building.

What role do you think the experience of applying the WELL Building Standard to your project will play a role in your future interior architecture/architecture work?

Architectural design of spaces correlate intricately with many facets of our lives. If designers were more people focused, instead of placing the importance on budget and restraints, spaces would improve the livelihood of its occupants.

What would you like to tell your instructor?

Thank you for your support and efforts in this course. I wish you the best in your pursuits!!

Keys, Andrew

Adventurous Diligent Thoughtful Consistency

Passionate Purpose

Innovative Creative Determined Original Ambitious Attentive Capacity Considerate

I think that it is important to maintain a consistent attitude. Being patient and having perseverance are two things that take time to learn. Collaboration is a key part of expanding your ideals and creative energy. Be thoughtful in everything you do, learn to appreciate everything in life. Make sure everything you do is done with Purpose. Selflessness helps maintain a state of mind that exposes you to seeking out opportunity.

Viable Vessels

Viable Vessels

Innovative

Creating office spaces for people whose homes are not adequate in helping them complete their work. Resolving an issue of sufficient remote workplace. Making spaces where innovation, creativity and critical thinking are present. An office does not just have to be an office; it can be a space that evokes creativity, critical thinking, collaboration and/or passion. Based on situation, personality, and interests, a Viable Vessel will provide people with a customized office that fits the needs for their occupation. Using a resource that there is an abundance of to create something new, viable and purposeful. These vessels provide a new sense of well-being when working remotely from the typical office.

Viable Vessels

Viable Vessels aims to support and solve the workplace issues that evolved from the pandemic of COVID-19, while also providing a viable office solution for the future. Viable Vessels solves these issues by having a maker space where guests can come and design / build their own prototype office to be fabricated out of shipping containers that are no longer in use. Using shipping containers as the structural frame work for these offices is a sustainable design decision and provides a way for anyone to have any office of their making to be shipping wherever they work best. These vessels are designed and fabricated at the main site in Knoxville. Viable Vessels uses a team of designers to design a kit of parts that are able to slide right into the structural framework of the shipping containers. Based on the choices of the client the shipping container can be manipulated to add windows, doors and niches.

Viable

Vessels

Viable Purposeful Reliability Comfortable

Sufficient Collaboration Passionate Deliberate

Innovative

Unique Creativity Well-being

Design

Concept

Sufficientspacefor Everytask workspacesCollaborative Engaging workspace

New capacity For users

Offices Spaces For those with insufficient workplace Well fabricated

Furniture and Spaced according To user needs

Individual Workspaces

Viable Vessels

New use of unneeded

Shipping containers

Placement of objects and areas Design according to Individual’s preferences

NaturalPlentyoflighting

Customizable offices

Module System

These vessels are made up of three layers:

1. The site. The vessels are small enough and modular that they can be transported to any location the user wants. These locations include but are not limited to: personal plot of land or one of our shipping container communities.

2. The exterior shell, the shipping container itself. This shell acts as the structural membrane for the vessel.

3. The inserts consisting of all of the furniture and finishes. The main space that is designed based on the users working style and interests.

Space Sequence

Guided WELL Building Standard v2 Criteria

1st Floor (Main Floor)

What is your plan after this semester?

After the semester, my plan is to do research in to what I desire to pursue during the Master of Architecture program. I am also planning to take a few classes this summer that will help me build stronger portfolio materials and website for my design outcomes.

What problems did you encounter in your design internally and externally?

I unfortunately was not able to devote as much time as I would have liked to because of the requirements I had for my studio work.

How was your experience implementing the WELL Building Standard in your workplace?

This class has shown me how easy it can be to implement the WELL into a project from the beginning , but I found it especially difficult to implement it into a space that I had already designed out. I have become quite intrigued by the practicality of the points that can be received to obtain WELL on a project.

What role do you think the experience of applying the WELL Building Standard to your project will play a role in your future interior architecture/architecture work?

I think it will for sure play a larger role in the my future projects, the knowledge that I gained in this course has opened up an avenue of new resources and practical thinking to help me accommodate for the end users of projects I am involved with.

What would you like to tell your instructor?

Jinoh, I can’t thank you enough for the countless hours you have spent helping me become the best designer and professional I can be. You by far my favorite professor that I have been able to work with/ learn from, here at UT. I am overwhelmed with gratitude to have been able to have you as my instructor and mentor for the past two years. I hope I can continue to learn from you and work with you in the future. You are an inspiration for me!

Kuntz, Caroline

Compassion Understanding Empathy Respect Self-determination Friendship Cleanliness Credibility Innovation Passion Courage Devotion

Creative Humanist

Family and friendship are the two most important things in life to me. I respect my parents immensely. They have taught me from a young age how important it is to have self-determination and passion for everything i throw myself into. They also taught me how important is to have compassion for others which is something i strive to do every day. My devotion to this makes it easy to understand others and see their point of view. However, I am quick to worry about others misunderstanding me or even my work. I have always been creative/innovative but sometimes it is not easy for me to relay my ideas unto others. This is when I must use my cleanliness and organizational skills to my advantage. Credbility is also extemely important to me. It is not our of the norm for me to do extensive research to make sure I am relaying the correct information,

Keys, Andrew

Idealistic Thoughtful Researched

Masterly Determination Practical Inventiveness

Purposeful Intent

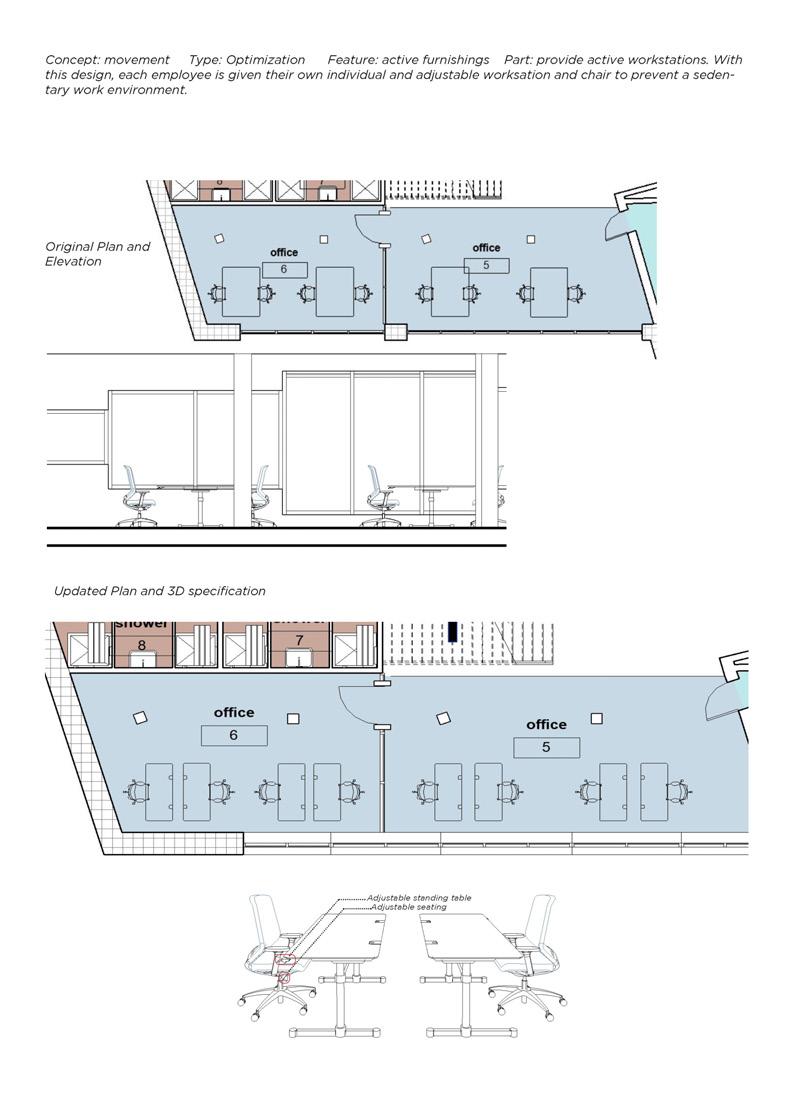
In order for your project to be comprehended by others, it must be very orderly. My project’s intent was to create workplace space that revolved around communication and collaboration. I had to research a lot about real time companies and how their offices are equipped. I was determined to create a sense of hierarchy but also bring each division of work together with the intent of community. The workplace I ended up with was not a practical or a normal office environment, however it was all about learning. There was a wide range of flexibility within the project since the site was so large. However, the wide range of possibilities made it hard to be inventive and creative at times. My personal goal in this project was to master detailed section drawings. It would be ideal to go back and edit my drawings during this class!

The Workplace | VOGUE

The goal of this project was to create an office space follwoing certain concept ideas from a real time company.

Guided WELL Building Standard v2 Criteria

What is your plan after this semester?

I am graduating this semester. I am currently looking for jobs but am hopefully moving to Atlanta!

What problems did you encounter in your design internally and externally?

Sometimes it was difficult to get the work done in a timely manner, just because my studio was a lot of work this semester.

How was your experience implementing the WELL Building Standard in your workplace? It was really helpful that you allowed us to use an existing project. Since we already had most of the drawings done, implementing the WELL Building Standard was not that tedious.

What role do you think the experience of applying the WELL Building Standard to your project will play a role in your future interior architecture/architecture work?

Applying the WELL Building Standard to my project gave me a more realistic view of my future interior architecture work. I am sure the WELL requirements will play a direct role in most of my future projects.

What would you like to tell your instructor?

Jinoh, thank you so much for all the help this semester! Taking the time out of class to look over our work so you could give us feedback the very next week is so appreciated! You are one of my favorite professors I have had, I learned so much!

Mull, Rebecca

Genuine Original Thoughtful Accountability Responsibility Community Considerate Passion Empathy Humbled Capability Listener

Authentic Versatile

I believe that being considerate of the people around you and listening to what they have to say is important to live a happy and healthy lifestyle. To have empathy for others allows you to understand what they may be going through and use their experiences to be thoughtful in how you talk to others. However, I believe you must still be original in how you express yourself and not succumb to others actions by making them your own. Being original and genuine in my actions is how I try to constantly live my life, while also considering the community around me and how different communities have individual experiences. Although my expectations for myself are very high and I strive to incorporate my passions in every decision I make, it is also important to look at the reality of things and be reasonable. Even when making mistakes in decisions, I have to keep myself accountable for every action I make so I am able to learn from them and constantly grow as a person.

Understanding Work

Being patient means to stop and understand every detail of a project and spend a useful amount of time on everything. Having empathy for each community and understanding that they are all different, allows me to be generous to them to create a happy atmosphere for everyone involved. Not only do I take pride in being constant in the high level of design I create, but I also strive to be original in each project which makes me excited to create something new every time. Having a wide variety of diverse ideas and works, I am able to communicate with many different people to understand their point of views. For each design decision to communicate with each other, they are able to relate and have a sense of consistency throughout the space. I strive to use biophilic design in each projects I work on, because it provides health and calmness to spaces and psychologically improves the viewers experience.

The Process of Flexibility

Guided WELL Building Standard v2 Criteria

Poff, Brooklyn

I try to be as optimistic as possible in every situation because it helps me to focus on what is important and how to accomplish the task at hand. I believe that consistency in action and word is very important because it says a lot about who you are as a person and your character. Being empathetic towards others helps me to appreciate other perspectives and stimulates open-mindness, which is something I also strive to do. To be sincere in everything that I do is a goal to mine because I pride myself on being an individual who is authentic always. Selflessness is a character trait that I seek to embody, because it shows having a genuine care for people and thinking outside of yourself. I seek to be purposeful because I want to leave my mark on the world and create an impact bigger than just me. With any task that I set out to accomplish, I do so with determination because I am committed to excellence. Creativity has been a mainstay in my life because I need creative outlets to express myself.

Innovative Multiplicity

Lively spaces are activated by the users of the space. Flexibility allows for user autonomy and self-determinism. Sustainable and green spaces provide an intervention to the workplace program. Personalized workspaces allow for multiple workstyles. Serenity is created by the green space intervention. Fresh and forward thinking space to stimulate a flow of ideas and practices. Multifaceted interior is equipped to handle multiple styles of working. Creativity is infused within the space to allow for maximum productivity. Order allowed for the program to be neatly organized. Generative design provided a unique form to the interior of the building.

knoxCOLLECTIVE

knoxCOLLECTIVEDue to the pandemic, the workplace was forced to undergo a transformation that saw a complete overhaul of the office and how it is utilized. That in mind, this studio sought to tackle what the post-pandemic office landscape looked like while incorporating generative design as an iterative and exploratory process. Beginning with a case study on Google Plex in Mountain View, California, the research phase helped to inform the following design methodology. Drawing on concepts of flexibility, community, and developing an understanding of work typologies, knoxCOLLECTIVE became realized as a coworking experience suitable for entrepreneurs and freelancers alike.

Design

Office space User -determination

Active vs. Inactive Zones

Space Innovative Research-based design

Sustainability and Greenspace workSpecialized zones furnitureAccommodating

Informed Coworking

Generative

Guided WELL Building Standard v2 Criteria

What is your plan after this semester?

Looking to complete an internship this summer, and then continuing to my fourth and final year of undergrad!

What problems did you encounter in your design internally and externally?

I couldn’t devote enough time to this class because of studio. If this were a studio course, I could’ve been more successful.

How was your experience implementing the WELL Building Standard in your workplace? I thought it was a really great experience, and it made me think about how important the systems within a building are.

What role do you think the experience of applying the WELL Building Standard to your project will play a role in your future interior architecture/architecture work?

Hopefully one day I can become WELL certified, so it would definitely influence how I design because if I make sure that I hit all the pre conditions with the original design, it will make implementing the other aspects much easier.

What would you like to tell your instructor?

Jinoh, THANK YOU times a million! You are truly one of my favorite professors that I have ever had. I appreciate the knowledge you have given me and the time you have poured into reviewing my work.

Thompson, Trevor

Purpose Drive Intelligent

Creative Patient Impact

CREATIVE SERVANT

Work

Passion for my work and purpose wakes me up each and every morning.. In order for me to make it through the day I must love what I’m doing. That’s the highlight of my passion and purpose overlapping each other, it’s my motivator to get me up and going. I always tell myself that if you love what you do no matter what you are doing and work hard you will be successful. As an entrepreneur, it is challenging sometimes to challenge my ambition. But over time I’ve learned the power of manifestation and to be patient with time. I’ve learned that it’s not all about how intelligent you are, but finding truth in your work and yourself. Are you doing what you have been called to do ? Does your life have meaning ? I’ve been able to look myself in the mirror and evaluate a flaw in my life, and that is being consistent. In the most respectful way and manner I take this evaluation and look at others who judge and tell them they have flaws as well and we are not perfect. Finding meaning in my life brings me joy but my impact on others is the most fulfilling

Creative Immunity

The idea behind this creative village was to create a place where artist could live and work in the same environment. The spaces within create a medium for ideas to be shared through co-working spaces/offices, cubicles, fablab, and studios. This environment inspires creativity and collaboration between artist that live and work in the same environment daily. Because of changing times due to the pandemic, we need flexibility in our workspaces. These times are what spurred the thoughtfulness ideas behind what to create and how to create it. Creative culture is one that exists through many mediums. Whether it’s online through virtual platforms or within the city, this creative village is all about connectivity. It offers pleasure by providing artist needs in one place. This village creates an opportunity for artist and creatives alike to share their work with the world because their work is purposeful. This place inevitably is an experiential paradise of a creative world for any artist that has vision.

Creative Village

The idea behind this creative village was to create a place where artist could live and work in the same environment. The spaces within create a medium for ideas to be shared through co-working spaces/ offices, cubicles, fablab, and studios. This environment inspires creativity and collaboration between artist that live and work in the same environment daily. Because of changing times due to the pandemic, we need flexibility in our workspaces. These times are what spurred the thoughtfulness ideas behind what to create and how to create it. Creative culture is one that exists through many mediums. Whether it’s online through virtual platforms or within the city, this creative village is all about connectivity. It offers pleasure by providing artist needs in one place. This village creates an opportunity for artist and creatives alike to share their work with the world because their work is purposeful. This place inevitably is an experiential paradise of a creative world for any artist that has vision.

Programmatic Concept

Medium

Creativity

Collaboration Performance Opportunity Culture

Creative

Immunity

Flexibility Connectivity

Experiential Community Purposeful Design Concept

Juice Bar

Live/Work

Fabrication Lab Co-WorkingSpaces

CREATOR

WORK-SHOP

Concept Walls EfficientWorkspaces

Artist

Bowling Alley

Art Market

StudioSpaces

Meeting Areas

Previous Project

Guided WELL Building Standard v2 Criteria

What is your plan after this semester?

After this semester I plan on interning and taking classes during the summer. I also plan to travel once restrictions are lifted.

What problems did you encounter in your design internally and externally?

I wish that some assignments where two to three week assignments so I could focus and understand the credits more and apply them to my project. But because of studio there was an imbalance of time and commitment.

How was your experience implementing the WELL Building Standard in your workplace?

I enjoyed implementing the WELL Building standards into my workplace project because I was able to expand on an already growing design concept and program I was passionate about.

What role do you think the experience of applying the WELL Building Standard to your project will play a role in your future interior architecture/architecture work?

Going forward, the ideas and concepts I learned will be implemented into future projects and research. I hope I get another opportunity to implement the WELL Building standard into a project.

What would you like to tell your instructor?

Thank you Jinoh for being a great professor and offering great insight into architecture as a profession and allowing me to grow as a designer. I appreciated learning more about myself as a designer and my projects through your class and assignments.

Warren, Katherine

Lifelong

Learner Reflective Studious Curiosity Appreciation Self-determination Passionate Genuine

Deeper Understanding

Mindful Harmony Patient Courageous

I believe that finding harmony within is the ultimate goal in life. I have confidence that if I can learn how to be truly genuine with myself and stay devoted to my passions, I will prevail in life. Taking courageous actions can lead to some of the best successes. Being thoughtful and patient are keys to becoming an open-minded individual. Reflecting reinforces professional work and personal growth. Loyalty brings confidence and stability in your life. Any goal can be reached with self-determination.

Community Hub

Community hub

The Laundry is a community based workplace that aims to create an environment that is supportive and kind. Keeping the trueness of the building’s history helps convey a feeling of connection in the community. Designed for determined individuals, spaces are purposefully crafted to meet the needs of the users. Flexible configurations creates diversity in programs. Having loving community that believes in new businesses generates self-respect.

Marley Artist Studios and Offices

Marley Artist and Offices is a collaborative space for local artists and creatives to gather and share their works. The ground floor features two gallery spaces that can be rented out for exhibits b y members of the studio and the public. Moving up to the work stations, the second floor provides individual desk and collaborative tables for larger work. Ergonomic workstations provides flexibility for the occupant’s individual needs. The third floor focuses on socializing through community spaces. Occupants can grow plants in the sun room lounge, hold a meeting in the private meeting room, or cook a meal together on lunch break.

Love

Adaptable Community Purposeful Supportive Respect

Community hub

Creative Flexible Determined Planning

Love Drive

Local materials

Local foods

Team building collaborative

Design Concept

Innovative Central hub designThoughtful Local shops

Clear wayfinding

EasyAccess ProgramsEntroperner

Exchangeable furniture Focusareas

Collaborative spaces

Guided WELL Building Standard v2 Criteria

What is your plan after this semester?

This summer I have an internship with Goodwill Industries and the Chattanooga Furniture Bank. Part of the internship is redesigning the current Goodwill stores in Chattanooga and I will definitely implement as many WELL Building Standards as possible.

What problems did you encounter in your design internally and externally?

I wasn’t able to spend as much time as I wanted to on this project. I wish this was a studio project.

How was your experience implementing the WELL Building Standard in your workplace?

It was really interesting seeing how simple changes and additions to a workplace can improve it so much. When redesigning my project from last semester, I focused the new iterations around the WELL Building Standards. Letting the standards guide the design process was both frustrating and fun.

What role do you think the experience of applying the WELL Building Standard to your project will play a role in your future interior architecture/architecture work?

For future projects, I want to try to use aspects from the WELL Building Standards and also LEED Building Standards to guide the design process again. I struggle making final decisions and having certain criteria to follow will help narrow the options. It also made me more aware of areas I need to pay attention to that I never put too much thought in before.

What would you like to tell your instructor?

I’m really glad I got the opportunity to take a course on this subject. I want to design for human health, physically and mentally, and that starts with the spaces we occupy the most. I also have a new appreciation for google slides thanks to Jinoh. :)

Weekly, Camryn

In my day to day relationships, I strive to be truthful and reliable with others; I seek to be understanding of others’ situations without compromising my ideals. Living as openly as possible will hopefully bring me pleasure. I hope in the future that I can have the strength to be unique and stick to my goals. My family history and previous friendships throughout my life have drastically impacted my development as an individual, and it is difficult to precisely state “this is who I am,” but I’m working on making progress in the right direction.

Flourishing Community

Flourishing

Community

Independence

My workplace project consists of a culinary school and a grocery co-op. Its polished, cohesive appearance welcomes in Park City residents while providing a dependable location to find fresh produce. The culinary school aspect of the project aims to provide balance— students can learn new life skills like cooking and business while simultaneously making food that they can sell. Green spaces scattered throughout the large site allow residents to empathize with each other and build a stronger community. Both my partner and I and the community members involved in the design were passionate in creating a kind, accessible result. It required persistence and bravery for residents of Park City to come forward with what issues they saw the most in their community.

Flourishing Community

My workplace project consists of a culinary school and a grocery co-op. Its polished, cohesive appearance welcomes in Park City residents while providing a dependable location to find fresh produce. The culinary school aspect of the project aims to provide balance— students can learn new life skills like cooking and business while simultaneously making food that they can sell. Green spaces scattered throughout the large site allow residents to empathize with each other and build a stronger community. Both my partner and I and the community members involved in the design were passionate in creating a kind, accessible result. It required persistence and bravery for residents of Park City to come forward with what issues they saw the most in their community.

Programmatic Concept

Balance

Flourishing Community Independence Improvement Accessibility Passion Persistence

Cohesive Dependable

Brave Welcoming Kind Empathy Design Concept

Pinpointing challenges

User-baseddesign +Accessibility Inclusivity Tailored to specific needs

Trial and error

Self -dependence

Flourishing Community

Meets+surpasses ADAguidelines expectationsExceeds

Fostering growth

Unique approach Dedication to entire community

Community-driven decisions

Guided WELL Building Standard v2 Criteria

Nourishment

https://www.kitchenaid.com/major-appliances/microwaves/countertop/p.24-countertop-microwave-oven-with-printshield-finish-1200-watt.kmcs3022gbs.html?

Nourishment

Black

https://www.recycleaway.com/Black-Tie-Kaleidoscope-Square-Three-Stream-Recycling-Station_p_2012.html?utm_medium=cpc&utm_source=google&utm_campaign=&utm_content=&utm_ke yword=&utm_product_group=&gclid=CjwKCAjw9MuCBhBUEiwAbDZ-7q0z81DGFtNGpWbSmZEa2jUKxbSepS0mCeDt_KNSl7g3I77jZYhLChoCyAQQAvD_BwE https://www.recycleaway.com/assets/specifications/Kaleidoscope-BlackTie_SpecSheet.pdf

Nourishment

https://www.williams-sonoma.com/products/balmuda-the-toaster/?pkey=ctoasters-ovens

Bathroom

Ponte Giulio O.D. Antimicrobial Vinyl Coated Heavy Duty Grab Bar, Black

Bathroom

ruiling Round Bathroom Hook in Stainless Steel Matte Black

https://www.homedepot.com/p/ruiling-Round-Bathroom-Robe-Hook-and-Towel-Hook-in-Stainless-Steel-Matte-Black-2-Pack-ATK-194/314495138

https://www.us.kohler.com/us/kennon-33-x-22-x-9-5-8-neoroc-top-under-mount-double-equal-kitchen-sink/productDetail/kitchen-sinks/1159368.htm?skuId=1159314&brandId=1284253

https://www.torkusa.com/product/552528/dispenser/paper-towel

https://www.homedepot.com/p/Glacier-Bay-Modern-Single-Hole-Touchless-Bathroom-Faucet-in-Matte-Black-HD67688W-6010H/311893465

What is your plan after this semester?

After this semester, I’m hoping to have an internship this summer and keep working towards graduation! Only one year left!

What problems did you encounter in your design internally and externally?

Because I’m taking 19 credit hours, this class tended to fall to the bottom of priority list, and I had less time to do each assignment due to my time planning.

How was your experience implementing the WELL Building Standard in your workplace? It was significantly harder than I thought it would be! Although the process seems straightforward, there are many more intricacies that I didn’t anticipate.

What role do you think the experience of applying the WELL Building Standard to your project will play a role in your future interior architecture/architecture work?

Having the knowledge of how to apply WELL Building Standard into my future projects will give me an edge in my future work; because I aim to go into adaptive reuse, being aware of how the WELL Building Standards are applied will help me immensely.

What would you like to tell your instructor?

Thank you so much for your two years here! I’m so glad I was able to have you as an instructor twice, and I appreciate all of the feedback you’ve provided!! Good luck in your future endeavors!!

A LETTER TO MY STUDENTS

Dear my students,

Hi, everyone.

First of all, I am sorry for the late completion of the coursebook publishing. I have spent more time finalizing my contract with UT and preparing for my next career at UArk. Now I finish making this book by entering my time in Knoxville. How is your summer break? I hope you enjoyed your time and are ready to tackle the next semester and your future career.

How was this course? I wish you had learned something well and enjoyed it. Since this class is the first design seminar including WELL + Design contents as I know. I might have made too many requests to you because I wanted to teach you as much as possible. Even after this class, I am writing this letter because I have more guides I want to give you.

First, don’t limit the scope of your work just because you are a student. Of course, since you are a student, you can excuse the quality of the design outcomes. However, the scope of work is the reality you will have to face on the job once you graduate and earn this pre- and/or post-professional degree. This class was a design seminar class of only 3 hours a week during this semester, but I know that compared to other classes, I demanded more tasks from you guys and ladies. However, this is only comment from an academic point of view. Only a basic process has been performed from the point of view of practitioners. In practice, since many things are divided into labor, it is not necessary to do everything well, but at least you need to be able to do basic things to be ready for collaboration. This is my perspective and approach to this class.

Second, reconsider the purpose of visualization. In my opinion, there are two types of visualizations you should consider. One is for your clients without architectural background, helping them to understand your design. The other is for your colleagues with any architectural background, assisting you to communicate with them. In other words, you can think about what types of visualization contents you should include in your portfolio for each purpose. For the internship and other schematic design-centered positions, the spectacular and conceptual visualizations can be helpful to catch the job search committees’ eyes, but also it is necessary to think about how you can present yourself describing your capacities as a professional colleague with an in-depth understanding of knowledge and experience.

Lastly, don’t limit your potential just in Knoxville, Tennessee, and the US. If you want to challenge and compete with internationals globally, you should seek opportunities endlessly to work at international architecture and design firms even though they are not as big as Gensler, aiming to see how they collect, verify, and implement inspirations. Even if you just want to stay in Knoxville, you must prove your design capacity; when proving your design capacity, there is an extreme difference between remaining local even though you can compete with others in the world and remaining local because you can’t compete with them because of your design capacity. Even if you work as a designer locally, there are people like Rick Joy who work locally but make a name for themselves worldwide. Keep thinking about what you need to have to compete globally while you have the privilege of taking on a challenge. A balanced work-life status is good, but that also means that there is a lot more chance that you will have to live a life of constantly working for someone, not for yourself.

All the time I was with you was so special and thankful to me. This class is my last class with you, but contact me whenever you need me. I will gladly respond to your request. Thank you for being with me the last semester.

Have a great summer break.

Sincerely,

BACHELOR OF SCIENCE IN INTERIOR ARCHITECTURE | UNIVERSITY OF TENNESSEE, KNOXVILLE

YEAR ONE

ARCH 171 Design Fund. I ARCH 172 Design Fund. II

ARCH 121 Representation I ARCH 122 Representation II

IARC 101/107 Intro to Built Environ IARC 200/207 Human Environment Relations

IARC 221 Theory of Color

YEAR TWO

IARC 276 Context, Concept, Input & Interaction

IARC 275 People, Spaces, Experiences & Politics ARCH 221 Representation III IARC 321 Representation IV

ARCH 211/217 History/Theory I ARCH 212/218 History/Theory II

IARC 211/217 History of Interior Design

IARC 261 Materials, Resources and Textiles

YEAR THREE

IARC 375 Experimenta -tion & Innovation IARC 376 Design Development & Construction Detailing

IARC 460 Lighting

IARC 331 Construction Docs

IARC 360 Business Principles and Practice

IARC 475 Comprehensive Capstone Studio IARC 475 Comprehensive Capstone Studio

YEAR FOUR IARC 476 Elective Studio IARC 476 Elective Studio

IARC 480

Furniture Design

Prof Design Elective (IARC, LAR, ARCH, INDS)

(Summer) IARC 420 Practicum or IARC 491 International Study

Prof Design Elective (IARC, LAR, ARCH, IDS)

Prof Design Elective (IARC, LAR, ARCH, INDS)

My students in IARC 425 | ARCH523 Enabling the WELL Building Standard in the Workplace demonstrate the ability to enable the WELL Building Standard and coordinate workplace design projects for WELL Certification. They understand how the built environment can positively impact the health and wellness of its occupants. Ultimately, this class aims to reduce the gap between education and the current health trend in practice and increase opportunities for improved built environments in terms of health and wellness by educating future design practitioners.

Turn static files into dynamic content formats.

Create a flipbook