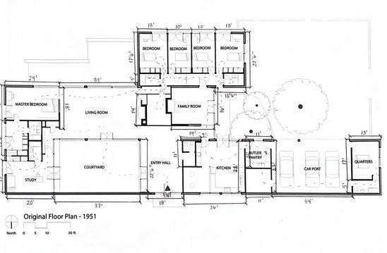
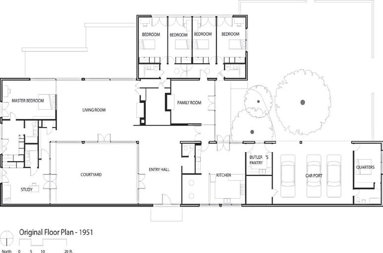
S24_IARD_1045 | Prairie House

Page 1


Course

IARD 1045 Fundamental Design Methodology in Summer 2024

Students

Brainard, Genevieve Marie Charlene

Chavez-Razo, Marilyn

Cochran, Mason Dell

Crain, Jocilyn Rose

Dudley, Lily

Dula, Landry E

Eargle, Haley Nicole Gunn, Bentley Noel

Henry, Peyton E

Hudgins, Anna-Claire E

Lambeth, Jericha

Coordinator Webb, Jennifer

Section Instructor Park, Jinoh

Publisher Park, Jinoh

*. There is no restriction on academic use of the contents of this book.

*. The copyright of all design results contained in this book belongs to each (student) designer.

Cochran, Mason
Haley Eargle
Genevieve
Anna-Claire E. Hudgins Portfolio
Jericha Lambeth
Marilyn Chavez Portfolio
Lily Dudley
Bentley Gunn
Mason Cochran
Landry Dula

What I learned...

Series of Precedent study

- I learned how to develop the necessary research skills when it comes to learning about inspiration that can be helpful when creating an interior for a client.

Series of Client Persona Development

- I learned how to be more specific when developing the necessary details for a project and how difficult it is to meet the requirements someone wants in a home, even though I was the one making them up.

Series of Space Program Statement

- Using bubble diagrams and parti diagrams, I was able to generate a few ideas and understand how spaces interact with each other in a house.

Series of Design Statement Development

- The design statement development allowed me to put my thoughts into words to help me establish my intention and to maintain that intention as I continued on in the project.

Series of Architectural Drawings

- I learned how to make architectural drawings more professional and it was a nice practice for a more professional project over the space cube.

Overall

- I made a house! Obviously I still have a lot to learn but I think designing an entire house was a huge step in my education.

If you could talk to you before these five weeks, what would you like to share with you?

- I would tell myself that I should work more efficiently because I would have saved myself from pulling a lot of all-nighters trying to do things perfectly that were just for practice.

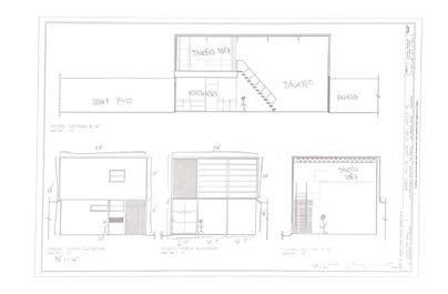
Studio East and West Elevations
Studio North and South Elevations
House East and West Elevations
House North and South Elevations
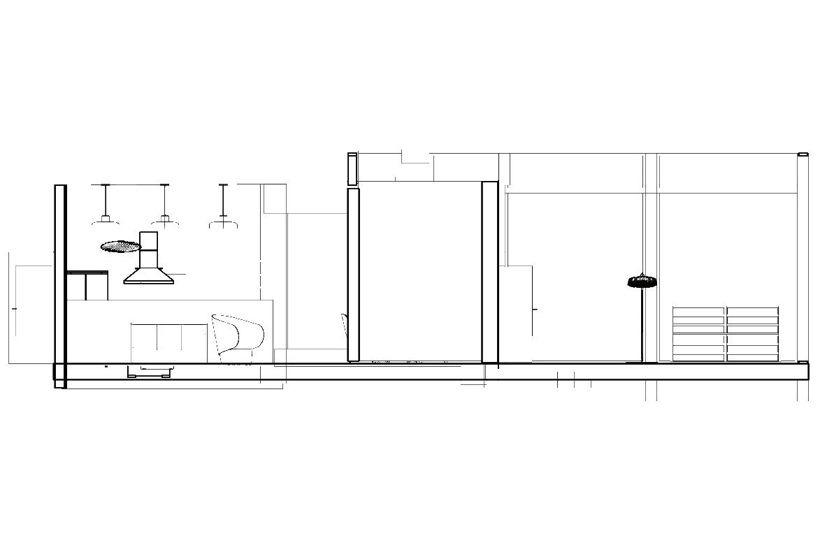
House and Studio Section Facing East
Drawing of Eames House
Measurements and Materials in Living Room
Charles and Ray Eames in their Living Room
Courtyard Between Studio and House
Charles and Ray Eames in their Kitchen
Measurements and Materials in Studio
Exterior of House
Living Room
Materials Collage
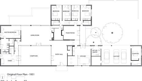
Floor Plan
Living Room Measurements and Materials Study Measurements and Materials
Entry Way Measurements and Materials Site Plan
Living Room Measurements and Materials
Living Room and Entry Way Measurements and Materials
Living Room Measurements and Materials

Precedent

Dining Room Maaterials
Dining Area Materials
Living Room Materials Study
Color Palette
Color Palette
Color Palette
Color Palette

Site Analysis

-Copan, Oklahoma -Rural area

- North of Tulsa

-Tall grass prairie biome

-Located in between the Ozarks and the tall grass prarie regions of Oklahoma

Tall Grass Prairie

-Diverse Ecoregion

-Trees consist primarily of oak and hickory

-Depends on prairie res for its survival and renewal

-Sub humid, mesic, and temperate climate

-East-west precipitation gradient

- North-South Temperature Gradient -Distinct dry and wet seasons -Located in Tornado Alley

Common Animals

-White-tailed deer -Bobcats -Armadillos -Beavers -Woodchucks -Badgers -Coyotes

-A lot of small mammals like squirrels, groundhogs, rabbits, etc.

For Project 4, my clients are a semi-retired business couple that is moving to a rural part of Oklahoma called Copan. During the entirety of their careers as businessmen and women, they have been collecting modernist artwork ranging from sculptures to paintings. They additionally appreciate modernist architecture and furniture with a keen interest on designers Charles and Ray Eames.

As mentioned earlier, they are a semi-retired business couple, so they are on the older side. Their main visitors would be their occasional business clients and their children who have both graduated from college. They are primarily morning people but love looking at the sunset. They are very private people who value their occasional social gatherings with their children or with their friends. They appreciate the outdoors so moving to a tallgrass prairie was a no brainer for them. They highly value their art collection and love to show it off to others.

In their modern art collection, they especially enjoy works from abstract expressionism, conceptual art, fauvism, and dadaism. Their paintings are displayed in almost every room in the house while their sculptures are primarily in the living room with one used as a dining room table ornamentation.

Their expected living experience is a space that uses a lot of natural elements to touch in with their outdoorsy side while also keeping with the modern architecture that they like. They love natural lighting and appreciate large windows that bring in light from the outside into their rooms and onto their art collections. They emphasize their space in the living room so they can socialize with each other.

Living Room Furniture
Bedroom Furniture
Dining Room Furniture

I chose building D because I think it matches my clients needs while also relating to my precedent study. The tall floor to ceiling windows is not only a feature in the Eames house but it matches my clients enjoy of natural lighting. It additoinally matches their life style as morning people, so allowing a lot of lighting from the east to brighten their house was a nice feature from this house.

Parti Diagram 1
Parti Diagram 3
Parti Diagram 5
Parti Diagram 2
Parti Diagram 4

Chipboard Model & Materials and Color Collage

Chipboard Model Picture

Materials and Color Collage 1

In the Menil House, they use a lot of accent colors to highlight the art collection. In the living room, the blue walls emphasizes whatever piece is currently in their collection, so in this example a wooden sculpture. The art becomes the primary focus of the household and it looks more like a liveable gallery than an art collectors home.

Chipboard Model

Materials and Color Collage 2

In Da Licensa, the designers used the furniture as the primary artwork with not a lot of typical paintings and sculptures one might assume would be in an artisitc hotel. They use a lot of natural and beige colors to create a nice natural and wooden effect, also allowing the furniture to blend in with the rest of the hotel room so it does not stick out as much.

The Secret Garden House connects the natural elements to the inside of the house. It’s a very versatile house that can become an overlapping space from the interior to the exterior.

Space Program Statement

In the entry foyer, you are welcomed into the home It leads directly into an open living and dining room so that the space feels larger than it looks. A few feet away from the foyer, you are met with an office so that the occasional business client can quickly be lead into the workspace. The entry way is not meant to be used for long, only for welcoming people and sending them off However, the space is still pleasurable because of the large windows created from the door and the space above.

In the office, there is a desk looking out of a window. This acts as the primary working space for the clients. It allows for one person to be working from home either with a client or without while the other goes to the office. The best way to enjoy the office is in the morning or afternoon when the sun is the brightest so natural lighting comes into the office so it is not too distracting while you work.

In the living room, there are no walls blocking off the space so that it can be easily accessed. This space is where most of the socializing happens between the couple and with guests over. It is the part of the house where the clients can enjoy their time together after working. The best way to enjoy this space is at sunset when the sun shines through the large curtain windows with the fireplace on before going to bed.

The patio/terrace to the side of the house is used for social gatherings during the warmer seasons, like fourth of July or Memorial Day. It has seating available for four people while the rest of the shaded area can be stood in. The best time to enjoy this space is during sundown when the lighting is warm, and the temperature is not too hot. I think it would best be used for outdoor dinners so you can appreciate nature and watch the grass blow in the wind with a glass of lemonade.

The dining room, like the living room, is open so that it can be easily accessible for guests. It is also primarily used for large gatherings like Thanksgiving or Christmas. This is not their main eating space because it is supposed to be more formal. The best time to enjoy this space is during the late afternoon when the sun hasn’t set yet but the lighting is still strong enough to create a nice warm and dim lighting in the space for a romantic dinner.

In the galley kitchen, there is an opening so that you can see into the dining room and living room without obstruction. There are two countertop stools that the clients use to eat at so as to not disturb the fine dining space. The kitchen is used once a day to cook dinner after a long day of work while the outside of the kitchen provides seating for breakfast and dinner. The best way to enjoy this space is during the morning and evenings when the light is not too bright so you can enjoy a dimly lit dinner or a soft morning breakfast and coffee.

The primary bedroom is where the clients reside. They have a nice walk in closet that they use to store their clothes, a chair for reading, and a queen sized bed. They use this space primarily to relax and to sleep in every day and night. The best time to enjoy this space is in the morning when the windows let in a lot of morning lighting so that you can read in the nice chair in the corner.

The secondary or guest bedroom is used for whenever guests visit from out of town, like their children or other family members. It is used primarily for sleeping every few months when the clients have visitors. The best way to enjoy this space is in the morning when you get to look out the window and inspect the unfamiliar landscape to get you motivated for the day.

The bathroom is at the end of the hallway in between the two bedrooms. This space is used multiple times a day by the client and their guests when they come over. To enjoy this space, I would recommend playing music either while you shower or while you get ready for the day at the vanity.

The last space is a combined mechanical and laundry room. This space not only houses some of the most important appliances in the house, but it also acts as an additional entryway to enter from the side of the house where the car is parked. This space is used at least once a day so the clients can enter more quickly, but it is also used once a week to use the washer and dryer. I think the best way to enjoy this space is at 5pm when you first get home from work and you are met with the familiarity of home.

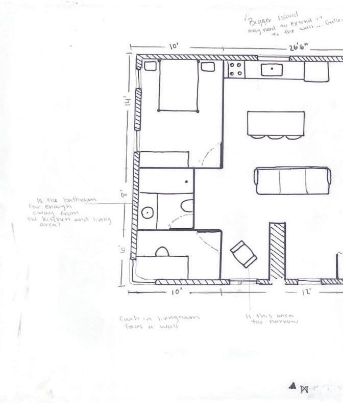
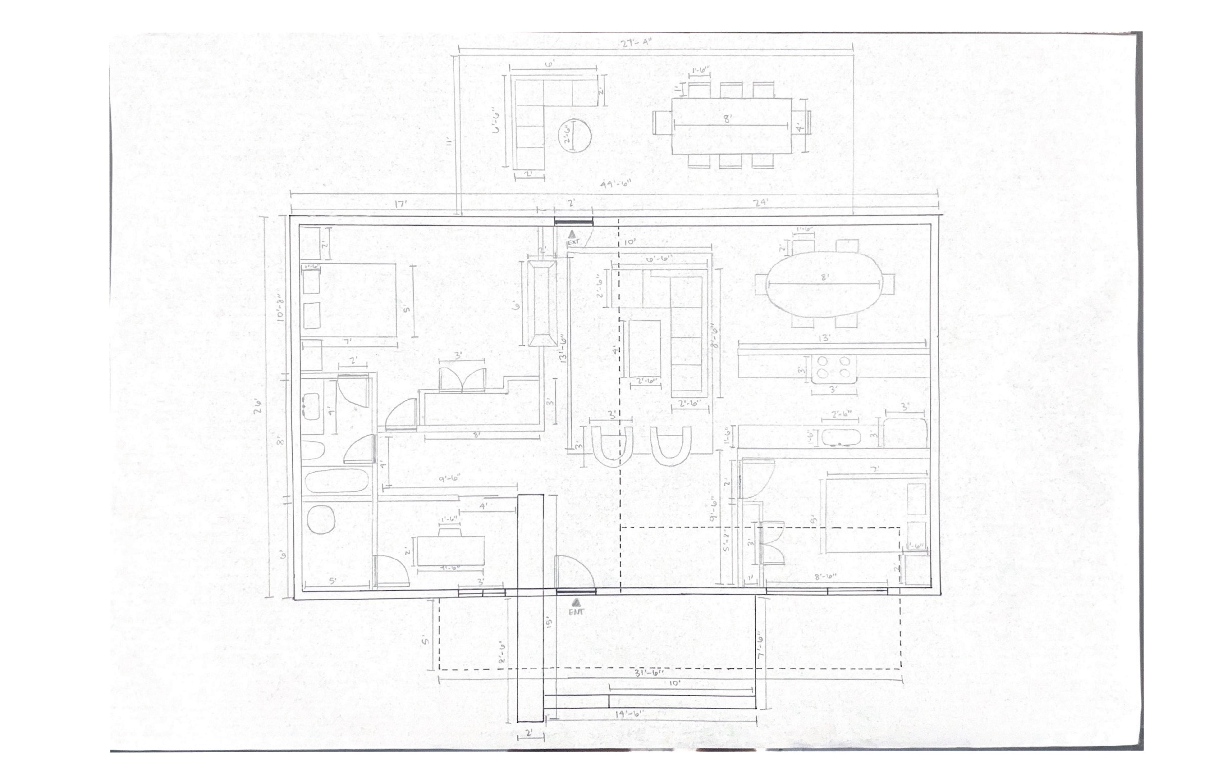
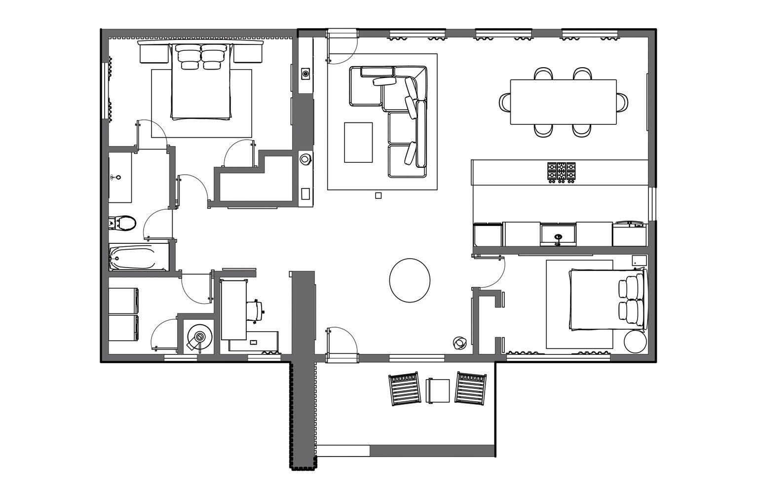
Design Statement with Floor Plan

My clients Louisa and John Baker value modern art, architecture, and furniture and want these elements implemented into their new home. They are fairly private people who live a quiet life in the tallgrass prairies of Oklahoma. The Bakers are semi-retired entrepreneurs who work part time from home and in an office. Outside of work, they value their social life but like to maintain a balance with their private life. They enjoy showing off their art collections to the occasional guest, whether it be their children or a business client. The Bakers are pretty down to earth people. They have a golden retriever named Biscuit and enjoy taking him on walks.

With all that being said, I believe my design perfectly matches my clients’ needs and wants for their new home. The entryway, dining room, kitchen, and living room are all open so that people can easily flow through the spaces. Because these spaces are more social areas in the house, they are all placed in the same general area for easy access. It also emphasizes their values of balancing their social and private life: separating the social aspects of their home from the more private areas. Adjacent to their more open areas is the outdoor patio that again can be used for gatherings and events. The living room is opposite to the kitchen and dining room and is not closed off so that you can easily go from the dining room to the living room once you are done eating. The couch creates an implicit boundary that guides people into the hallway that leads the Bakers into their more private spaces. The first private area of the house is their office space where they can work on their business endeavors or bring home the occasional client. I made the office a closed off space because I believe it helps them not only balance their social and private life but also their home and work life. The two bedrooms are also on the west side of the house to emphasize their privacy. The primary bedroom is for the Bakers, so it has access to a closet. The last area of the house is the combined mechanical and laundry room which is also located on the west side of the house so that it cannot be easily accessible by guests. The laundry room and mechanical room are necessary appliances for the home that do not match the aesthetic of their modernist home, so I tucked it away in a corner so it does not ruin the atmosphere created from the rest of their house. The laundry/mechanical room is not completely closed off because I added a doorway that can easily lead from the house to their car and vice versa. The entry way on west side of the house directly leads into the hallway into the rest of the house without obstruction.

For Project 4, my clients are a semi-retired business couple named Louise and John that is moving to a rural part of Oklahoma called Copan with their golden retriever Biscuit. During the entirety of their careers as businessmen and women, they have been collecting modernist artwork ranging from sculptures to paintings. They additionally appreciate modernist architecture and furniture because it matches the aesthetics from their art collection.

As mentioned earlier, they are a semi-retired business couple, so they are on the older side. They work part time from home and from an office in a nearby city. Their main visitors would be their occasional business clients and their children who have both graduated from college. They are primarily morning people who enjoy having their daily coffee but also appreciate looking at the sunset in the evenings. They are very private people who value their occasional social gatherings with their children or with their friends. They love the outdoors but didn’t want to leave their home state of Oklahoma, so moving to a tallgrass prairie was a no brainer for them.

They highly value their art collection and love to show it off to others. Louise always enjoyed the arts and when she met John, they began collecting modern art to display in their homes. Of the types of modern art, they especially enjoy works from abstract expressionism, conceptual art, fauvism, and dadaism. Their paintings are displayed in almost every room in the house while their sculptures are primarily in the living room with one used as a dining room table ornamentation.

Their expected living experience is a space that uses a lot of natural elements to touch in with their outdoorsy side while also keeping with the modern architecture that they like. They love natural lighting and appreciate large windows that bring in light from the outside into their rooms and onto their art collections. They emphasize their space in the living room so they can socialize with each other and so their dog as room to roam around the space. Because they are pretty private people, they like keeping their social life and private life separate.

Updated Design Statement

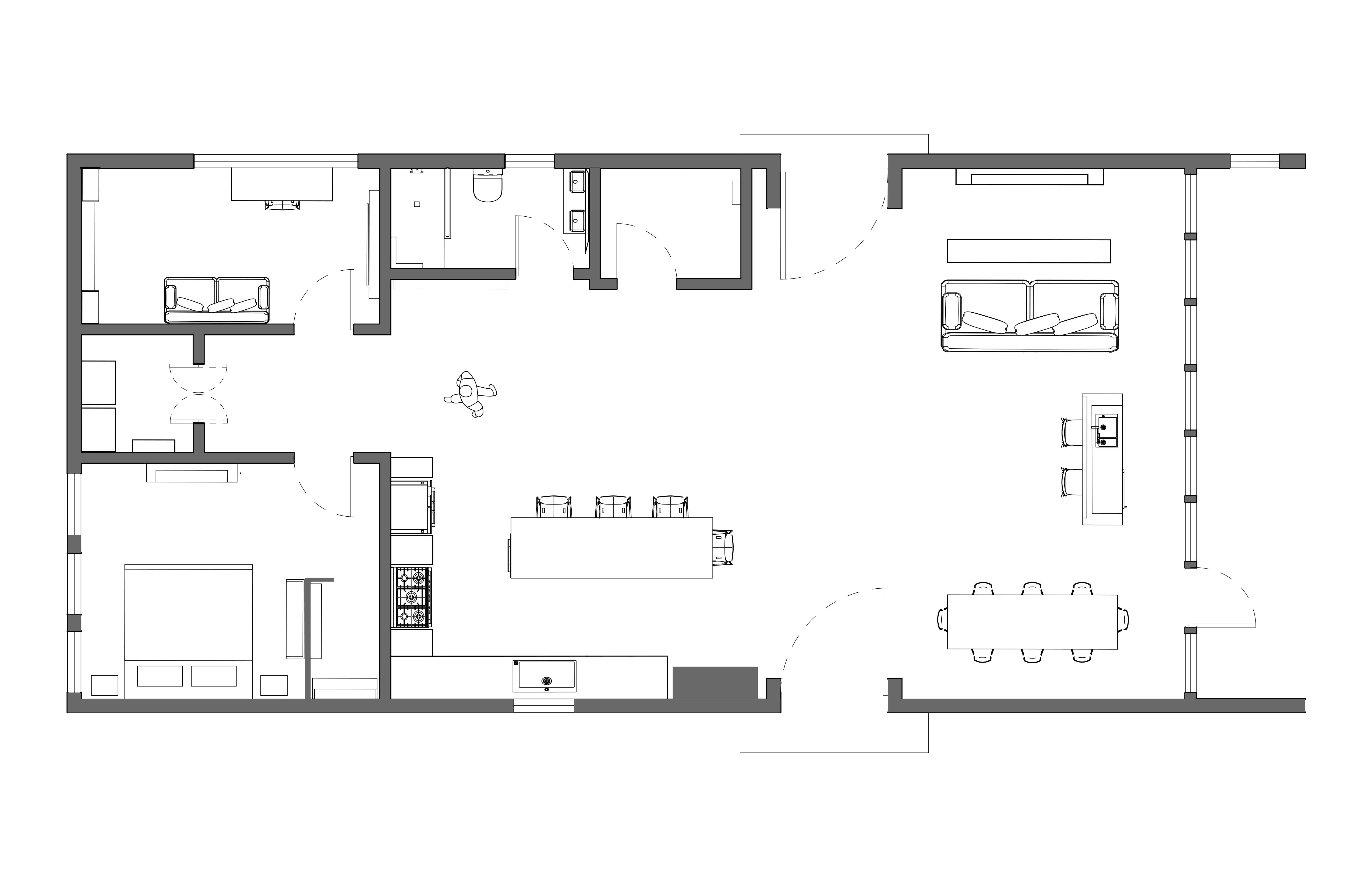
My clients Louisa and John Baker value modern art, architecture, and furniture and want these elements implemented into their new home. They are fairly private people who live a quiet life in the tallgrass prairies of Oklahoma. The Bakers are semi-retired entrepreneurs who work part time from home and in an office. Outside of work, they value their social life but like to maintain a balance with their private life. They enjoy showing off their art collections to the occasional guest, whether it be their children or a business client. The Bakers are pretty down to earth people. They have a golden retriever named Biscuit and enjoy taking him on walks.

With all that being said, I believe my design perfectly matches my clients’ needs and wants for their new home. The entryway, dining room, kitchen, and living room are all open so that people can easily flow through the spaces. Because these spaces are more social areas in the house, they are all placed in the same general area for easy access. It also emphasizes their values of balancing their social and private life: separating the social aspects of their home from the more private areas. Adjacent to their more open areas is the outdoor patio that again can be used for gatherings and events. I decidedly changed the placement of the patio door so that the kitchen would not act as a hallway and interrupt someone’s cooking. Placing the patio doors at the dining room allows for the Bakers to choose if they would like to sit at the kitchen counter, the dining room table, or the outdoor seating on the patio. The living room is opposite to the kitchen and dining room and is not closed off so that you can easily go from the dining room to the living room once you are done eating. The couch creates an implicit boundary that guides people into the hallway that leads the Bakers into their more private spaces. The first private area of the house is their office space where they can work on their business endeavors or bring home the occasional client. I made the office a closed off space because I believe it helps them not only balance their social and private life but also their home and work life. Keeping one separate from the other helps create peace of mind so that once the workday has finished, they can step out into the living space and feel relaxed. The two bedrooms are also on the west side of the house to emphasize their privacy. The primary bedroom is for the Bakers, so it has access to a small walk-in closet and access to the singular bathroom in their home. The bathroom has entryways from both the primary bedroom and the hallway, so that guests can use it without entering the Bakers private space all while the Bakers can use it without having to leave their private space. The last area of the house is the combined mechanical and laundry room which is also located on the west side of the house so that it cannot be easily accessible by guests. The laundry room and mechanical room are necessary appliances for the home that do not match the aesthetic of their modernist home, so I tucked it away in a corner so it does not ruin the atmosphere created from the rest of their house. The laundry/mechanical room is not completely closed off because I added a doorway that can easily lead from the house to their car and vice versa. The entry way on west side of the house directly leads into the hallway into the rest of the house without obstruction.

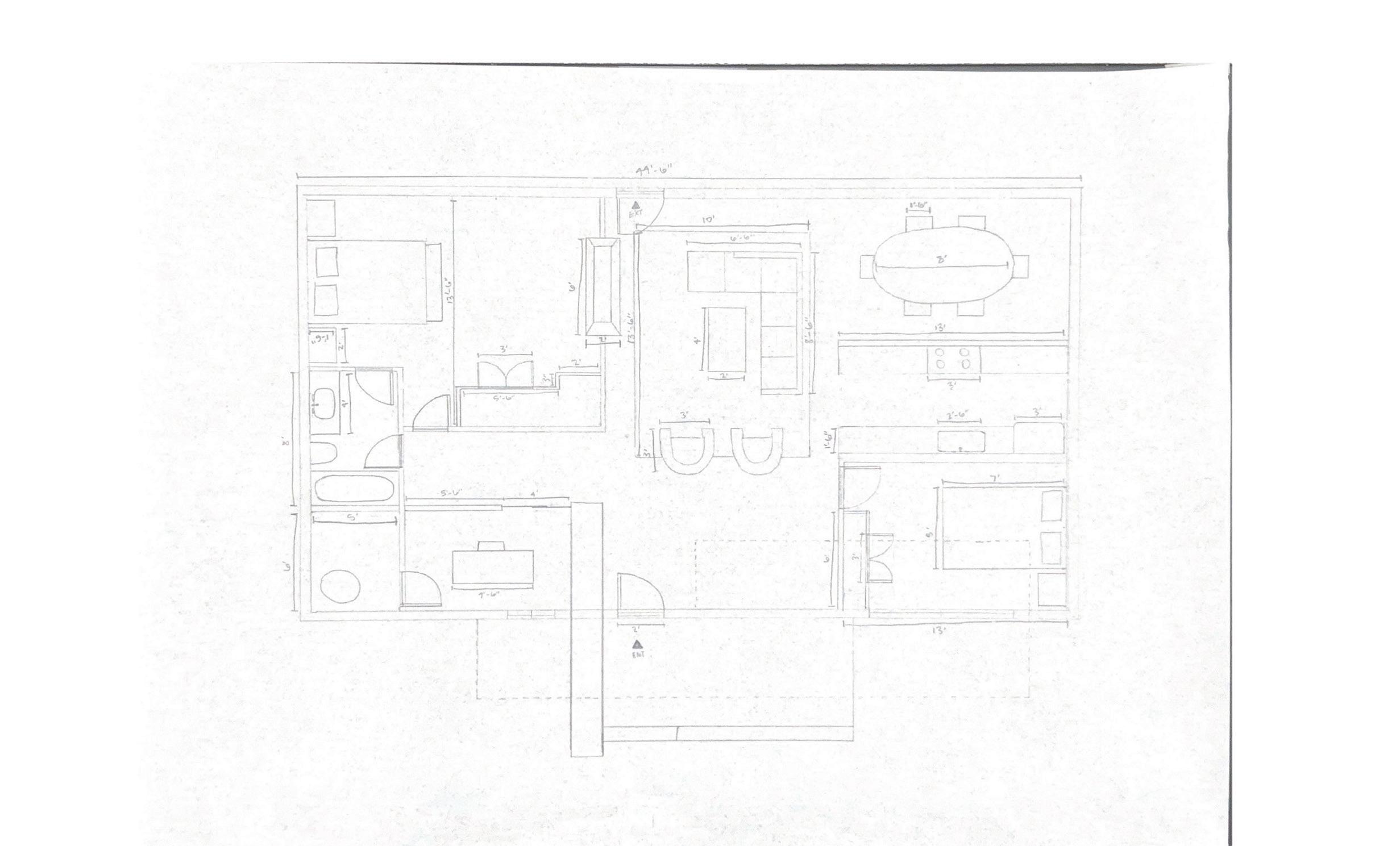
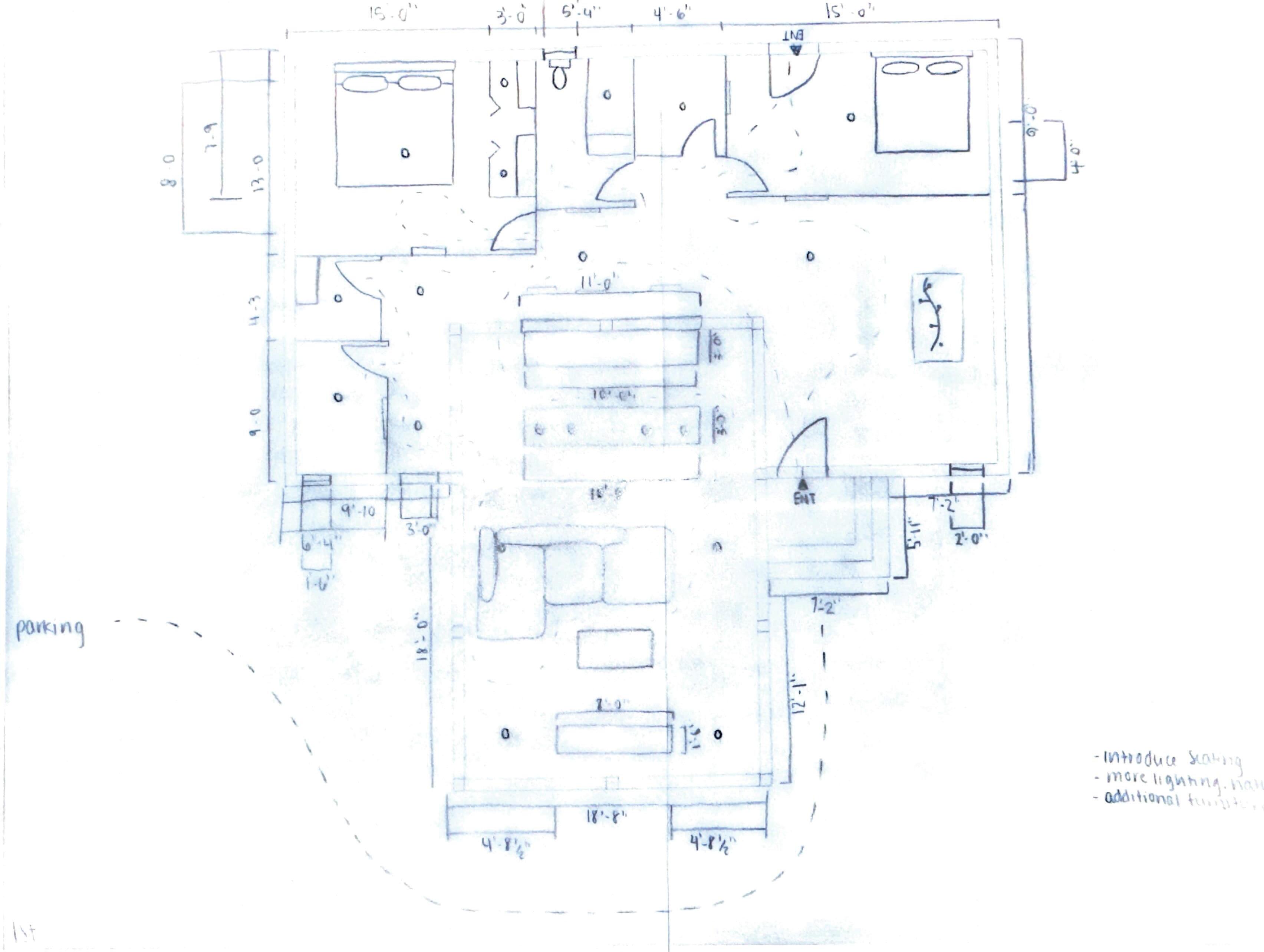
Scanned Floor Plan with your annotation

Floor plan with 1’=1/4” scale

Digital Version Architectural Drawing

Elevation with 1’=1/4”

Digital Version Architectural Drawing

Elevation with 1’=1/4”

Digital Version Architectural Drawing

Elevation with 1’=1/4”

Digital Version Architectural Drawing

Elevation with 1’=1/4”

Digital Version Architectural Drawing

Digital Version Architectural Drawing

Digital Version Architectural Drawing

For Project 4, my clients are a semi-retired business couple named Louise and John that is moving to a rural part of Oklahoma called Copan with their golden retriever Biscuit. During the entirety of their careers as businessmen and women, they have been collecting modernist artwork ranging from sculptures to paintings. They additionally appreciate modernist architecture and furniture because it matches the aesthetics from their art collection.

As mentioned earlier, they are a semi-retired business couple, so they are on the older side. John and Louise have decided to move to a rural area of Oklahoma to prepare for their retirement that they are planning on in a few years. They work part time from home and from an office in a nearby city. Their main visitors would be their occasional business clients and their children who have both graduated from college. They are primarily morning people who enjoy having their daily coffee but also appreciate looking at the sunset in the evenings. They are very private people who value their occasional social gatherings with their children or with their friends. They love the outdoors but didn’t want to leave their home state of Oklahoma, so moving to a tallgrass prairie was a no brainer for them.

They highly value their art collection and love to show it off to others. Louise always enjoyed the arts and when she met John, they began collecting modern art to display in their homes. Of the types of modern art, they especially enjoy works from abstract expressionism, conceptual art, fauvism, and dadaism. Their paintings are displayed in almost every room in the house while their sculptures are primarily in the living room with one used as a dining room table ornamentation. Although they are private people, they love hosting for holidays and events like birthdays, Easter, Thanksgiving, and Christmas because it gives them a chance to show off their art collection.

Their expected living experience is a space that uses a lot of natural elements to touch in with their outdoorsy side while also keeping with the modern architecture that they like. They love natural lighting and appreciate large windows that bring in light from the outside into their rooms and onto their art collections. They emphasize their space in the living room so they can socialize with each other and so their dog as room to roam around the space. Because they are pretty private people, they like keeping their social life and private life separate.

Space

1. What experience are you expecting from this space?

2. How does you family utilize [insert space] and how often?

3. Are there any hobbies that overlap with the uses of these spaces?

4. What emotions do you want people to feel in your space?

5. How do you want your artwork to affect your spaces?

6. What is the most important aspect of this project?

7. Do you want overlapping spaces, multifunctional spaces, open spaces, or closed spaces?

Personality

1. What do you do as businessmen and women?

2. Why are you moving to Copan, Oklahoma/what prompted you to move here?

3. Do you have any specific requirements you want fulfilled?

4. Are there any outside elements you want incorporated with your modernist aesthetic?

5. What sequences do you typically find yourself taking once entering your home?

6. What kinds of lighting do you like?

7. What is your favorite season?

8. Do you enjoy using planted elements in your home?

9. How often do you have guests/clients over?

10. Is there anything you are not willing to compromise?

Artwork

1. How do you want colors to interact with your collection?

2. Is there anything you want to avoid with the artwork?

3. Why do you love modernism?

4. What got you into collecting art/what do you love about it?

5. Do you want your artwork to purely be on display or to have some functionality?

6. How do you envision your artwork being presented in your new home?

7. What kind of lighting do you prefer to use on your artwork?

8. How often do you add to your collection?

9. Which piece do you consider to be your favorite/least favorite?

Scanned Floor Plan with Selfreview

In reviewing my design solution, there is a clear connection between the precedent study and the final solution. This can be observed in the following details (write clear descriptions): My precedent study was the Eames house, so I chose house option D because it was the exact same setup. I used the same concept of cold materials as a structural basis but warming up the environment through the furniture.

In reviewing my design solution, I can see where I both fulfilled the programmatic requirements and used my best judgement. Such common sense can be seen in: The square footage of each room. I fulfilled the requirements in staying within that 20% but did have to compromise in some spaces. I also combined the laundry and mechanical room to save some space.

How could you better engage the site, the views, and considered the physical context in your solution?

I put all of the important rooms on the south side of the building to get better views, so maybe I could change the layout of the guest bedroom and move the laundry and mechanical room to be on the south end of the building for better views.

How could you better provide for the important activities identified by the clients (work, entertainment, collecting).

I think I could have extended the terrace to meet the original square footage requirements while having a terrace wrap around to the rear end of the building for more areas of social gatherings.

How could you better provide for comfort in leisure for the couple together and individually?

I think I could have created a more realistic client narrative and make the couple disagree about some things for a better challenge, but also, I think that I should have focused more on the bedrooms. Outside of the kitchen, living, and dining room, I put little to no effort on how I arranged them because I was more focused on the social areas. I also forgot to add a rug at the entry way to separate the space even though I explicitly mentioned it in my design description.

The greatest challenge I confronted in creating an effective design solution was (be clear and explicit and explain the challenge):

Arranging the space I think was the most challenging part. Because of the house I chose, it was quite literally a rectangle, so trying to create space while maintaining the square footage requirements. I think the guest bedroom is the perfect example of that, it’s so long and because of how large the primary bedroom is, I had to maintaining the 3 foot hallway but had to maintain the 20% range of the square footage, so I ended up with a very horizontal room.

The greatest success I experienced in creating an effective design solution was (be clear and explicit and explain the success):

I think the greatest success was my focus on the artwork. The living spaces that I created perspectives of I think really capture the atmosphere I intended to create. The paintings become the focal point of the room and the space interacts with the artwork to emphasize their role in the room. I also built stuff around them to maintain that focal point, like the screen and projector in the living room and the dresser underneath the painting in the living room.

To improve my project, I must make the following changes:

The main critique I received was about the technicalities of my floor plan, so the orientation in which I printed it, the lack of annotations, and fixing line weights for more depth. I also want to try and see if it’s possible for me to change where I place the guest bedroom or I could follow the suggestions of Alyssa Kuhns and break the horizontality of the bedroom by adding furniture to make it feel not as long but still meet the square footage requirements. I also want to change the layout of the primary bedroom as well for the same reasons because there’s a lot of empty, or “generous” space that I could fill with some furniture and take the opportunity to extend the closet to be a walk in. I also forgot to draw the fridge in the floor plan so I plan on updating that as well.

Marilyn Chavez

Series of Precedent study

- I learned the importance behind the background information in a design

Series of Client Persona Development

- I learned that the client and their persona are an impoortant factor in contructing a design to be able to implement their needs and wants while creating a pleasing design

Series of Space Program Statement

- I learned that space programing helps see ideas more clearly in order to accurly see if our thoughts and ideas will work

Series of Design Statement Development

- I learned that being able to connect your design to your ideas and process shows the clients the motive behind the decisions.

Series of Architectural Drawings

- I learned that architectual drawings provide a logical image of the design. These drawings help see the the intentions clearly without the interuption of colors and patterns.

Overall

- Overall, I learned the basis of the adobe family allowing me to further my career in design with the ability to use them. additionally, I learned the many factors that go into design and the designing processs. Things like color, scale, enviromental factors, and cleint peronas.

If you could talk to you before these five weeks, what would you like to share with you?

- “Focus on the details that matter and don’t fight ht elearning curve”

The house has a large window wall with steel framiming
The House is split with a courtyard to seperate home and work. This is still connected throungh the large windows that allow views between buildings
The use of large windows continues throughout the house such as the kitchen
The Eames had a kitchen in both their home and studio
The Eame’s had a warm space created by the amunt of warm colors and objects that filled the room
The large windows allowed for natural lighting to light up the house.
They used planar elements to create simplicity in their design
The kitchen was made of plywood and laminated tops to create affordable homes
The Eames hosted small parties one notible one was a nun party
The living room was snugged away in a corner to make it feel welcoming with the soft lighting and warm colors
The house on a hill near the coast of california
The two two-story buildings are rectilinear structures that allow for simplicity to blend into the enviroment
The couple left their bedroom to be the simpliest room in the house
They used three different kinds of glass for the windows. Translucent glass was used in the bathroom for privacy.
They stored many of the larger peices in the studio such as the elephant and whale.
The house lays on the side of a hill, this was made unhabitable later on due to the possiblity of landslides
The hotel has a building of common spaces
All rooms have views to the outside
Seats are placed around the house for encouraging people to gather but for art in furnature
The hotel sits on land outside of the city as a retreat experience. This was a personal choice by the architect. The land is preserved from multiple decades of history.
use of wood with white washed walls creates a calm enviroment
The architect strived to have each room curated for diffrent peoples needs
Each furnature is strategically placed
Every room has an element that makes it unique
The doors where replaced with arches to allow smooth transition allowing people to travel through easily.
Even though art is displayed the designer wanted it to not “ be exhibition-like and imposing,”
The simplicity of the design makes the person look at the nature aroun
All rooms are built around a courtyard
Every room has a pool to see the views in
The curated arches and curves allow for a calm and reflective time which the designer wanted
Dining tables and chairs are dotted in between, allowing the space to also be used as a 30-cover restaurant.
There are two suits and two guest rooms
The usse of vasst colors due to the placement still compemented eachother
Their art was donated after dominiuqes death
They collected art from Cubist, Surrealist, African sculpture, Mediterranean antiquities and contemporary works
The change of colors transition the circulation smoothly
The couples displayed their art throughout the house
Many peices iof furnature were made by the interior designer
buillt by french immigrants Dominique and John de Menil,
The north and front end of the house, is composed of a 160-foot brick wall broken only by a three-panel glass entryway along with two double paned horizontal awning windows.
The architect also designed Glass House implementing the same prinicples through the large windows
heavier textures such as dark grey walls, dark floors, and a richness of pink and crimson velvets in the hallway
Last of charles design that is preserved
The menil foundation was created after their death and their home was and is still preserved.
Designed by Charles Jameswho deigned menils gowns
mix of elegance and modernism
the flat top design was created due to the use of it in some designs of the time. The Menils wanted to add a twist to modernism and did so through the interior

Site Analysis

The grassland praies in Oklahoma remain dry and experience direct sunlight due to the lack of veggetation and elevation. The Land allows for full views of the horizon which provides beutiul scenery in the mornings and afternoons but lack variation in views in other ways. Due to the lack of vegetation the main wildlife consist of insects.

The Highway lies on the North fron of the home creating a possible consern for privacy and quiet.
The site has come small hills in the distance
There is a small creek and pond like site nearby aswell.
There are occational wildfires but mainly in the fall and spring this is due to grazing which effects the air quality in the rural areas becasue the state controld the air qulity in city parts only.
These are some of the other veggetaion that grow in the area. The main veggetation is oak and hickory trees.
The land extends far allowing the couple to take long walks or runs. This suits their fit lifestyle.
The average precipitation in the ares is 30-40” annually. This creates dry grass and no habitible soil for veggetation. When there are storms it is mainly around april to june. These also being the months for tornadoes
Due to the land being mainly flat this provides no natu mo natural protection fro the sun. This with the fact summers get between 90 and 100 degreees farenhite creates uncomftorable enviroments.

The clients are a modest, semi-retired couple who collect all art but mostly photographyand sculptures. This comes from their love for modernism in architecture, furniture, andart. The young-looking couple are in their early 50’s with no children. They are fit morningpeople who enjoy starting their days early. They love hosting small dinners, and drinknights for the occasional social drinking but mainly spend their time alone. They enjoytraveling together to collect art from various places but love relaxing at home.They want a house where they relax and get away. The bath is used leisurely and thekitchen on daily use for breakfast and dinner.Their art collection comes from small artists from around the world or given to them byartists they have made friends with during their lifetime

Building Analysis

After revieiwing the three building options and the location of every element in them I was able to come to a decision on the best shell for the design.

Design E had little to no existing structures within the building. At the entrance a small window is on the left and a larger one on the right letting the person entering view within the house before entering. Additionally there is a colum in the center of the home.

Design C had the noticable glass room near one of the entrances. This lowered privicy within the home. the interior had an elevated surface and a window above.

Design D waas the best option for the design planned. The entrance had glass windowns bordering the door. The inside was a blank slate and a large floor to ceiling glass wall with framing. With the site analysis in consideration regarding the sun this design had the least direct sunlight entering the home.

Model & Materials and Color Collage

statement of intent describing the behaviors, spatial outcomes, and creative ideas

Chipboard
Chipboard Model

statement of intent describing the behaviors, spatial outcomes, and creative ideas

statement of intent describing the behaviors, spatial outcomes, and creative ideas

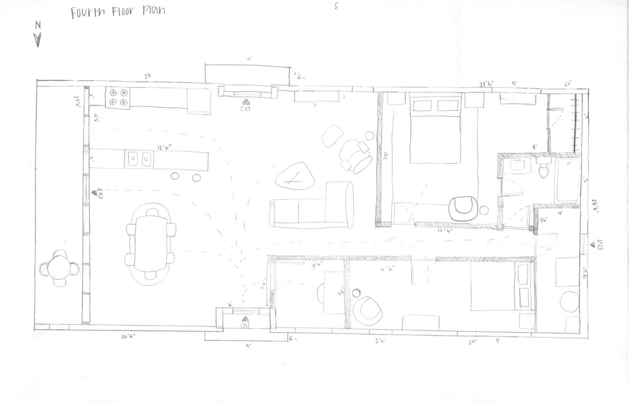
Space Program Statement

kitchen:

Kitchen for 2 (3 with limited movement)

Grocery shopping once to twice a month

Used in morning and for evening dinners

Used lightly in mornings

For coffee & tea

Simple breakfast: oatmeal, cereal, toast/bagel, omelet.

Use more in evenings for prepping dinner and drinks

The best way to enjoy the kitchen is early in the morning in time for sunrise or dusk, getting morning coffee or breakfast as the sun starts to warm up the kitchen to start the day. The kitchen also leads outside where you then can enjoy your mornings there during sunrise.

Living Room:

Used for comfort and hosting people for drinks in evenings

Mainly used for comfort and nights in Can seat 5 people

View into kitchen and dining room

Both entrances lead to living room

The mornings are lit up by the sunrise

Receives direct sunlight from 9-10am Big space allows for display of art

The space can comfortably be enjoyed during the evening while you both reflect on your day and relax. Secondly this space can be enjoyed more socially with a small group of guests filling the room as you prepare drinks for everyone to enjoy.

Dining:

Seats 6

Easy access to kitchen

Next to window

Lightly used

The dining room is most enjoyed on your monthly dinner nights when the table is full of laughter from the ongoing conversation. The windows reflect the lively atmosphere to further the experience in this space.

Bathroom:

Small

One person bathroom

Two people uncomfortably

Easy access from all rooms

Its main use is for guests, the room is practical and welcoming to the guest who uses it.

Primary suite:

Easy access to the living space of the house

The suit has a small, long rectangular cut on the ceiling allowing you to star-gaze as you fall asleep at night. This gives you something to look at on restless nights.

2nd bedroom/work area:

Across primary bathroom

Both office and guest bedroom

Not used as guest bedroom often

The best use for the room is as an at-home home office space. It best enjoyed keeping them at home to enjoy each other’s company instead of having to leave.

Laundry & mechanical:

Combined Mechanical in back

Small space

Room for one

The mechanical and laundry room are the loudest rooms in the house, placing it in the back corner prevents disruption in the peace to the rest of the house.

Design Statement with Floor Plan

House D seemed like the best option for the clients due to the large glass windows on the east side of the building to connect the people with the tall grass prairies and the hills off into the distance. This will create a lovely view for them in the mornings when they start their day. Although the large window is shielded on the sides creating privacy from the highway in the distance. During the mornings they will receive the morning light but, in the day, it will not directly hit the windows, preventing excessive heat within the home. This also allows the heat within the home. This also allows them to display their artwork still. T when viewed from the highway prioritizing the privacy they value. Meanwhile, the back entrance with more windows allows them to view the land from any room. This also creates an easier entrance for them when walking from the driveway and leads to the vast land for their runs/walks. The back door is never hit with direct sunlight, being the perfect placement for more windows.

The tall ceilings allow for the display of their sculptures and more room for artwork

Updated Client Persona

Clients:

The clients are a private, modest, semi-retired couple who collectcollecting all art but,mostly photography and sculptures. This comes from their love for modernism inarchitecture, furniture, and art. The young-looking couple are in their early 50’s with nochildren. They are fit morning people who enjoy starting their days early. They love hostingsmall dinners, and drink nights for the occasional social drinking but mainly spend theirtime alone. They enjoy traveling together to collect art from various places but love relaxingat home50s with no children due to dedicating their lives to art.They want a house where they relax and get away. The bath is used leisurely and thekitchen on daily use for breakfast and dinner.Their art collection comes from small artists from around the world or given to them byartists they have made friends with during their lifetime.

Occupation: Collect & auction/sellart

Lifestyle:

The couple has a very disciplined lifestyle. They wake up right before sunrise to enjoy it with their morning coffee or small breakfast. Ted and Lynda also like to start their day highly actively and productively. After breakfast, they go outside and enjoy a long walk or short run around the property. There for they like to have some storage around the door to keep their outdoor shoes and gear on rainy days to not drag in mud. Additionally, they are clean people who prefer to not have shoes in the house so on top of a place for their outdoor shoes they like to have enough storage for their guest’s shoes as well.

They have a small breakfast and lunch and use the kitchen for dinner, especially if they are hosting a small dinner/drink gathering with clients or friends. They love to have people over on occasion, so they also enjoy their 6-person dining table.

Relative to their love for hosting small dinners, and drink nights for the occasional social drinking they also love spending time alone. A living area accommodating both parts of their social life makes their home feel welcoming for them and anyone who enters. They like having a living room near the window for natural lighting but not directly against it for their privacy. Additionally, they have sculptures and other artwork throughout the living and dining area to filter light and block interior views from the outside.

They also like the idea of separating the living spaces such as the dining room, kitchen, and living rooms from the more private parts of their house such as the bedrooms. This further prioritizes their privacy by having guests only exposed to the public parts of the house.

The primary suit is on the west side of the house, being away from the large window wall makes their room darker. This creates a more comfortable environment as the best sleep is in complete darkness. Nevertheless, there is a window for light to shine through in the day and a skylight above the bed to allow them to appreciate the stars at night without lighting the room too much due to the small size. Allowing the bedroom to be a place of relaxation, there is not much art and furniture in the space due to just the two of them only having bare necessities. They also enjoy having less art in their bedroom to reduce stimulation and increase sleep. which resembles the color schemes and style of the art they collect. The bedrooms are primarily used for sleeping and changing. To avoid leaving their intimate space in the evenings they have a closet and bathroom within the room.

The second bathroom is next to the home office/guest room and living area. This bathroom’s placement continues to add to the privacy the clients value, keeping the public and private spaces apart. The bathroom being in front of the suite also allows for an easy commute in case Lynda or Ted are in the restroom in the bedroom and the other also needs to use it the other bathroom is across the hall.

The guest room is in the work area to allow the clients to take advantage of every square footage. The room has a Murphy bed to allow the bed to be pulled out for guests at night when the workspace is no longer being used. The couple like to have people over for gatherings but rarely have people stay overnight therefore the space is mainly used as a workspace.

Lastly, they keep their laundry and mechanical rooms at the end corner of the house to keep the noise away from distracting guests and near the wall outside for outdoor fixtures to be added or connected if necessary.

Updated Design Statement

The final floorplan seemed like the best option for the clients due to the large glass windows on the east side of the building to connect the people with the tall grass prairies and the hills off into the distance. This will create a lovely view for them in the mornings when they start their day. To add to the experience, the large window is shielded on the sides with an extention of the North and South walls creating privacy from the highway in the distance. Additionally this will provide a filter for the light due to the roofs extension as well form the mornings they will receive the morning light. Taking direct sunlight into consideration, the sun will directly shine towards the east between nine and ten in the morning. This will allow heat within the home but for a short period of time after they started their day causing little to no interuption in their day. These large windows creates the best lighting to brighten up the living spaces that hold their art collections. With the tall ceilings allowing for the display of their sculptures and more room for artwork makes these spaces the best for living and Art.

The use of woods from the land its self, such as oak and hickory, will warm the space adding the influence of the precedence house, Ray and Charles Eames, with the additives of the orange and tans used within their home as well. The use of blue walls are used to create a blank slate for the art without leaving white walls. White walls do not express the style of these art collectors. To keep the design concise I used diffrents hues of blues to express the mood in the rooms. Such as the bedroom being darker to create and intimate and dark space for sleeping. This also provides contrast to the tans and oranges and brings out the colors used in the art.

Collectively, the design creates a blank slate for the clients to fill with any and every art type without the wall colors being disruptive.

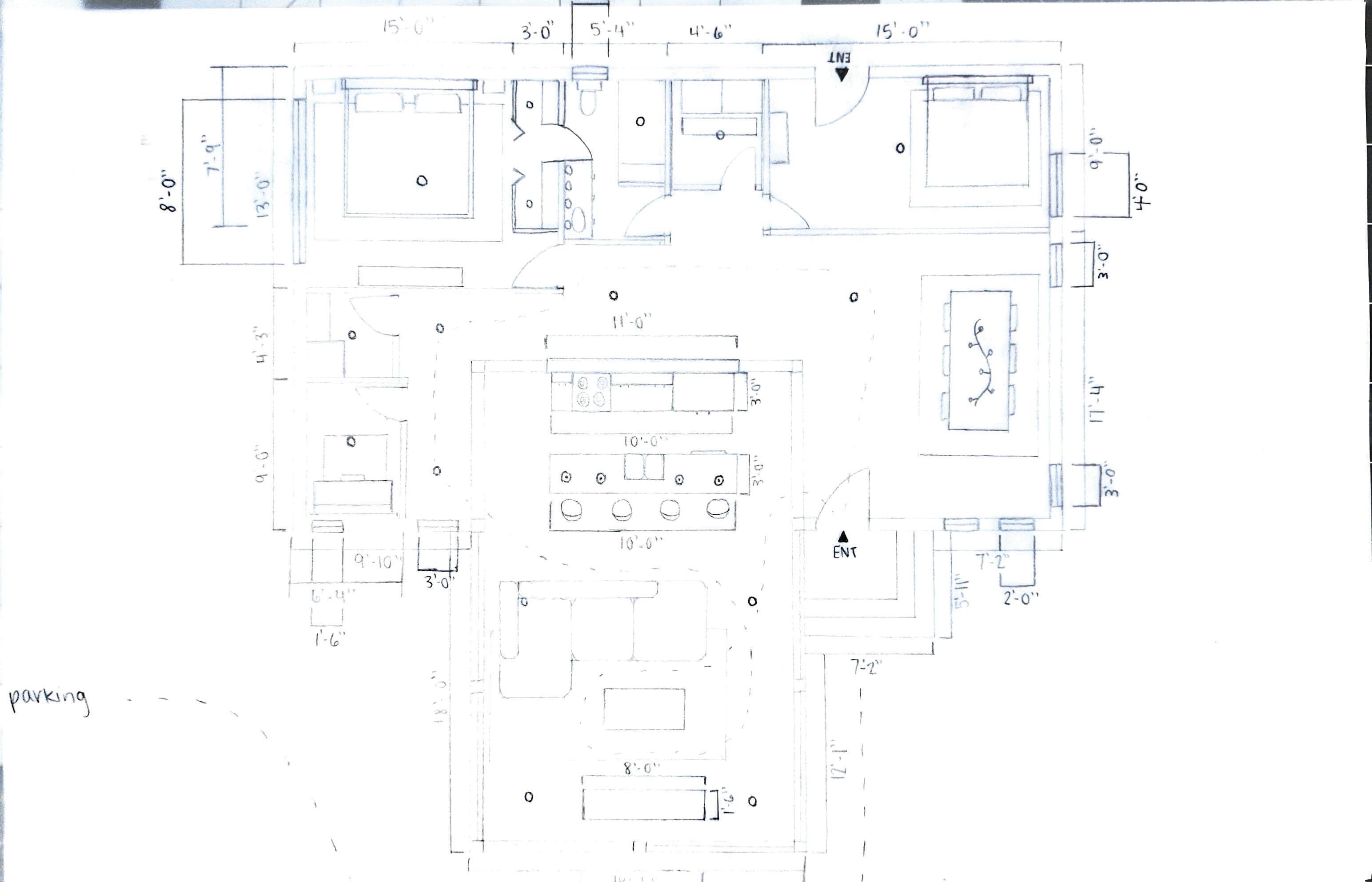
Floor plan with 1’=1/4” scale

Section From South

1/4”=1’-0”

Section Facing East

1/4”=1’-0”

Interview Questions

How old are they?

Are they fit or have physical issues?

When do they wake up?

Does this change the way they enjoy different rooms?

How do they use their kitchen?

How often do they use it?

How often do they go grocery shopping and how much space do they need for storage?

Do they have art displayed in the kitchen?

Where do they display their art?

What is the best place for their art? And why?

Why is this art used?

How is their love for modernism and art portrayed throughout the house?

Do they have children or pets?

How is their lifestyle portrayed in the design?

How often do they have guests?

Where are guests allowed in the house?

Floor Plan

1/4”=1’-0”

Section From South 1/4”=1’-0”

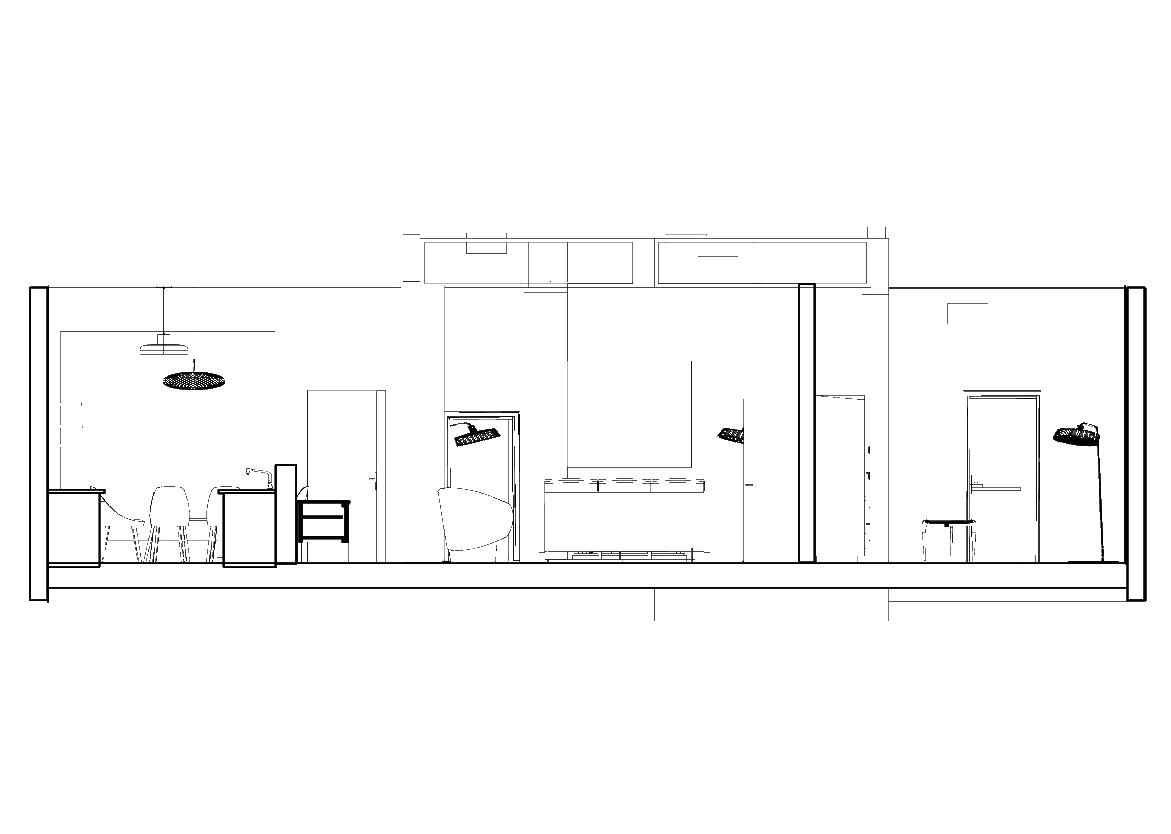
Interior Elevation into Bathroom 1/4”=1’-0”
Interior Elevation into Living Room and Kitchen 1/4”=1’-0”
FF&E

Perspective Images of Living Room

Perspective Image of North wall in Dining Room

Perspective Image of South wall in the Kitchen

Series of Precedent study

- I learned how to analyze a house in order to be �er understancd its purpose beyond simple shelter and the ideas behind it.

Series of Client Persona Development

- I learned how to solidify my client in order to be�er understand how to create a se�ng that meets all their needs.

Series of Space Program Statement

-

Series of Design Statement Development

-

Series of Architectural Drawings

Overall -

If you could talk to you before these five weeks, what would you like to share with you? -

Precedent Study #1: Farnsworth House

Cap�on
Cap�on
Cap�on
Cap�on
Cap�on
Cap�on
Cap�on
Cap�on
Cap�on
Cap�on
Cap�on
Cap�on
Cap�on
Cap�on
Cap�on
Cap�on

Precedent Study #2: Menil House

Cap�on
Cap�on
Cap�on
Cap�on
Cap�on
Cap�on
Cap�on
Cap�on
Cap�on
Cap�on
Cap�on
Cap�on
Cap�on
Cap�on
Cap�on
Cap�on
Cap�on
Cap�on
Cap�on
Cap�on
Cap�on
Cap�on
Cap�on
Cap�on

Building Analysis

I chose this house shell because it most alligned with the wants and desires of my clients. Having large windows that allow plenty of natural light into the home while s�ll preserving a sense of privacy is somthing that works near perfectly with my clients.

Cap�on
Cap�on
Cap�on
Cap�on
Cap�on
Cap�on
Cap�on
Cap�on
Cap�on
Cap�on
Cap�on

Chipboard Model & Materials and Color Collage

Materials and Color Collage 1

statement of intent describing the behaviors, spa�al outcomes, and crea�ve ideas

The Natural colors of the home brings the occupants a�en�on to the exterior environment surounding the home.

Chipboard Model

Materials and Color Collage 2

statement of intent describing the behaviors, spa�al outcomes, and crea�ve ideas The Home mixs a sense of so �ness and roughness in a way that creates a sense of balance and unity.

Materials and Color Collage 3

statement of intent describing the behaviors, spa�al outcomes, and crea�ve ideas

The home uses is small space with the combina�on of art to create a nice and comfortable experience that contrasts the assump�on of such a small space.

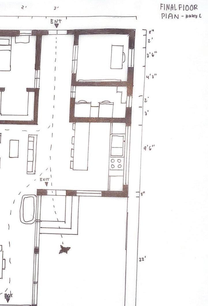
Design Statement with Floor Plan

design statement describing what you have achieved through the floor plan on the third version of your floor plan

Floor plan with 1’=1/4” scale

Digital Version Architectural Drawing

Digital Version Architectural Drawing

a set of interview ques�ons that can help you develop the current client profile

Jocilyn Crain Portfolio

Series of Precedent study

-

Series of Client Persona Development

-

Series of Space Program Statement

-

Series of Design Statement Development

-

Series of Architectural Drawings

OverallIf you could talk to you before these five weeks, what would you like to share with you? -

Precedent Study #1: Farnsworth House

Floor Plan Section

East Elevation

South Elevation

Site Analysis

FarnsWorth House

The Menil House

My clients Kent and Guin Monroe are a married couple who retired young in their mid-thirties and are financially free. Kent worked in real estate and still enjoys doing business on the side. They are both morning people who enjoy waking up to the sun through their windows. Their love language is quality time, so they spend a lot of time doing basic tasks together such as cooking, sitting outside, and collecting art. They also enjoy having small groups, a couple of friends, over for meals, cocktails, and card games. Typically, they spend time outside with their friends. Kent prefers neutral earth-toned colors while Guin likes subtle pops of colors. They both also like intergrading inside and outside elements like plants in their spaces. They do not plan on having kids. They are aware of their impact on the environment, so they compost and reduce waste when possible. Guin likes to garden and bake. Kent does his best work at night and Guin will frequently sit with him and read. When spending time outside they like to go on walks and observe nature so they want an entrance into their laundry/mud room so they can immediately throw dirty shoes and clothes in the wash without tracking it around the house to minimize cleaning. They both like unique materials and patterns. Kent and Guin relaxed but to not typically have people over unwarranted

Parti 01
Parti 02
Parti 03
Parti 04
Parti 05
Chipboard Model
The FarnsWorth house has an open floorplan with Windows on every wall that exposees the nature surrounding the house the onyl inclosed space in the house is the bathroom. He used natural eath toned colors to not take away from the scenery. Plus a lot of woods, metal, and concrete in his deisgn.

I chose Design C for my shell becasue I liked the spacial qualities of the house and the hirarchy built into the space. I felt it resembled my precedent house with big picture windows and a lot of natural openings.

The use of colors in this house is what grabbed my attention and drew my eye to the qualities of the house. There are a lo t of pinks, greens, and golds throughout the house . As well as fun shaped furniture and a lot of embelishments.

Space Program Statement

Fixtures

Entry

- Sconces

To provide lighting outside so that they can comfortably see while leaving or arriving at the house.

- Lighting along path

To lead a clear path to the door

Living Room

- Chandlier

To add décor and lighting at the same time

- Can lighting

So they can adjust the lighting to their own needs

- Fireplace stove

A heat source and eye catching Kitchen

- Hanging lighting over island

Decoration and lighting

- Can lighting

Extra lighting

- Island

Extra counter space to do projects and cook

- Cabinets

For storage

- Vent hood

Proper ventilation

- Sinks

- Fridge

- Stove

- Oven

Basic kitchen tasks

Bathrooms

- Lighting over the sink

So you can clearly see yourself in the mirror while getting ready

- Bathtubs

For bathing

- Toilets

To use the bathroom

- Proper ventilation

Counters and cabinets

- For space to store things

Sinks

- To wash hands and face

Bedrooms

- Ceiling fans

To further adjust the temperature and airflow

Study

- Lighting + ceiling fan

Additional lighting at night and airflow during the day

Laundry

- Washer and dryer

So they can properly be set up and placed

- Counters

Space to fold and sort clothes

Mechanical

- Proper space and conditions

Design Statement with Floor Plan

In my Final floor plan I created an open floorplan for the kitchen, dinning, and living room. I seperated the primary bedroom from the secondary bedroom for privacy as well as adding in a primary bathroom too so that guests could have a seperate bathroom. I changed the main entrance to the west side of the house for a close walking distance from the parking. I used the orginal entrance as an entrace to the laundry room so that the couple could have an entrance for when they have been outside and are presumbly dirty. The offcie is at the end of the house off of the livning room and close to the primary bedroom so that he can work and still easily access the rest of the house.

My clients Kent and Guin Monroe are a married couple who retired young in their mid-thirties and are financially free. Kent worked in real estate and still enjoys doing business on the side. They are both morning people who enjoy waking up to the sun through their windows. Their love language is quality time, so they spend a lot of time doing basic tasks together such as cooking, sitting outside, and collecting art. They also enjoy having small groups, a couple of friends, over for meals, cocktails, and card games. Typically, they spend time outside with their friends. Kent prefers neutral earth-toned colors while Guin likes subtle pops of colors. They do not plan on having kids. Guin likes to bake so a large island was a must for her. Kent does his best work at night and Guin will frequently sit with him and read. When spending time outside they like to go on walks and observe nature so they want an entrance into their laundry/mud room so they can immediately throw dirty shoes and clothes in the wash without tracking it around the house to minimize cleaning. They both like unique materials and patterns. Kent and Guin relaxed but to not typically have people over unwarranted. It was important to them to have a private bathroom so that they did not have to share their private spaces with their guests. Some of their favorite artists to collect from are El Anatsui, Haegue Yang, and Lilian Thomas Burwell. They requested large wall space to present their artwork.

Floor Plan 1

In my first floorplan design I organized the house so that the Kitchen, Living, and Dining room were very open and flowed together to open the main portion of the house. The main entrance is through the laundry room that then leads to the kitchen. In the laundry room there is a door to the mechanical room to hide it away but still keep it accessible. The main bathroom has a sliding pocket door to the secondary sleeping area for guests. Then in the primary bedroom I have a long closet for his and her clothes and a private door that leads outside. The work study is at the end of the house off of the living room and it is going to have a stained-glass wall in order to provide some privacy while keeping an open feel.

Floor Plan 2

In my second floorplan I recreated the same main layout but switched the secondary sleep area and the main bathroom so that the bathroom was further from the kitchen and dining area. The main entrance remains the same as the main living area. However, in the primary bedroom I added a small private bathroom for the couple so that when guests are present, they can use their own lavatories or have an extra bathroom for guests to use as well.

Floor Plan 3

In my third floorplan I left the layout the same as the second but added a door that will now be used as the main entrance into the living room. I added the same set of stairs to the front entrance to match the private entrance from the primary bedroom. This makes the most sense to be the main entrance because it is the closest walk from the parking space and allows you to walk into an open space. I moved the fireplace stove to the other side of the living room to accommodate the new entrance. I added a sliding glass door out of the study so Kent can access the terrace from his office space to take breaks if needed.

Floor plan with 1’=1/4” scale

Digital Version Architectural Drawing

My clients Kent and Guin Monroe are a married couple who retired young in their mid-thirties and are financially free. Kent worked in real estate and still enjoys doing business on the side. They are both morning people who enjoy waking up to the sun through their windows. Their love language is quality time, so they spend a lot of time doing basic tasks together such as cooking, sitting outside, and collecting art. They also enjoy having small groups, a couple of friends, over for meals, cocktails, and card games. Typically, they spend time outside with their friends. Kent prefers neutral earth-toned colors while Guin likes subtle pops of colors. They do not plan on having kids. Guin likes to bake so a large island was a must for her. Kent does his best work at night and Guin will frequently sit with him and read. When spending time outside they like to go on walks and observe nature so they want an entrance into their laundry/mud room so they can immediately throw dirty shoes and clothes in the wash without tracking it around the house to minimize cleaning. They both like unique materials and patterns. Kent and Guin relaxed but to not typically have people over unwarranted. It was important to them to have a private bathroom so that they did not have to share their private spaces with their guests. Some of their favorite artists to collect from are El Anatsui, Haegue Yang, and Lilian Thomas Burwell. They requested large wall space to present their artwork.

Questions for clients

- What is your morning routine?

- Nightime routine?

- How often do you do laundry?

- How much time do you spend outside?

- Do you prefer to explore or relax outside?

- Do you prefer your company inside or outside?

- How frequently do you leave your house?

- How much control do you want over the lighting?

- What are your cooking habits?

- Do you plan on anymore pets?

- How do you plan on expanding your art collections

- Environmental habits?

- Do you grow a garden?

- Spaces do you use most?

- What size gathering do you have?

What I learned...

Series of Precedent study

- The prescedent study of the Farnsworth house taught me alot about the power of simplicity. In my design I focused on using natural elements to help push the focus toward outside instead of what is inside. The farnsworth house used minimal surniture and colors to focus on the nature outside which taught me how to acheieve that.

Series of Client Persona Development

- The client persona helped me learn how to clearly iden�fy all the wants and needs a client wants. I learned how to ask specic ques�ons so I can make a house to perfectly t the client in need.

Series of Space Program Statement

- This program taught me how to iden�fy behaviors in specic rooms. Each room has a specic need and there are different ways people will act in those rooms. Being able to iden�fy the needs that each room has for the people in them helps you pick how rooms are arranged next to eachother and what each room needs in it to help people navigate through the space.

Series of Design Statement Development

- Making a desing statement taught me how to thouroughly plan out every aspect of my model. It was important to me that every aspect of my design had a clear inten�on and t the needs of the resident. making a design statemnt helped me make sure that through each design I had clear inten�ons with every step and I was able to document each step as well.

Series of Architectural Drawings

- The arcetectural drawings were an amazing way of teaching me how to put a nal product together. By making these archetectural drawings it made it easier for me to see every sigle bit of my model and helped me add every nishing touch that may not have been visible in a drawing. Mapping out my oorplan and actually execu�ng it was so fun and taught me how much I really love this major!

Overall

- I had an amazing �me learning all of the new ways I can curate my designs. With learning all the computer so�ware comes great trial but I am so proud of myself for perservering and making it through with fun designs. This class taught me how I can make real ideas come together in a nal product.

If you could talk to you before these ve weeks, what would you like to share with you?

- Prepare to have a pa�ent mind when learning new computer so�ware!!

Precedent

Study #1: The Farnsworth House

farnsworth house
Floor plan analysis
inside farnsworth house

Precedent Study #2: Manil house

inside farnsworth house
annotated
conservatory

MENIL HOUSE

Site Analysis: Rural Oklahoma

-Rolling Grassy Hills

-Lots of views all around

-Trees and creek to the east

-open plains in the west

-Highway to the north and west

-Very diverse eco system

-Large and small animals everywhere

-Fires and Tornados are common

-House will sit 500’ from the raod in the north

-Must be able to have fires around

-Sun rises in the east

-Sun sets in the west

-Sun is tilted slightly toward the south making the south sides of the house bright

-Fairly flat and horizontal horizon

-Driveway is not directly connected to the house

-greenery all around that dries out in the summer

-Heavy winds and extreme weather

Client Analysis

-50’s couple

-Retired buisiness people

-Love modern art and houses

-Collect art

-Like to have family over for holidays

-Drink minimally

-love the outdoors

-morning people

-love to have coffee early

-spend days outside and on adventures

-spend nights watching movies and cooking together

-like to have space to call family and friends

-dont take baths so standing showers are a must

-yoga in the mornings either outside or inside

-healthy budget

-most time will be spent in the living area and outside

-the bedroom is meant for sleeping

-want 2 sinks

-has dogs

-health freaks

Building Analysis

These bubble diagrams were the rst step in nding out the different ways I can organize space and how I can use design elements to achieve a cohesive plan.

Chipboard Model & Materials and Color Collage

Chipboard Model
Materials and Colors for my future modern home
Inspiration Photos: Rural Oklahoma

MENIL HOUSE

Dá Licença

Da Licenca materials and colors

Space Program Statement

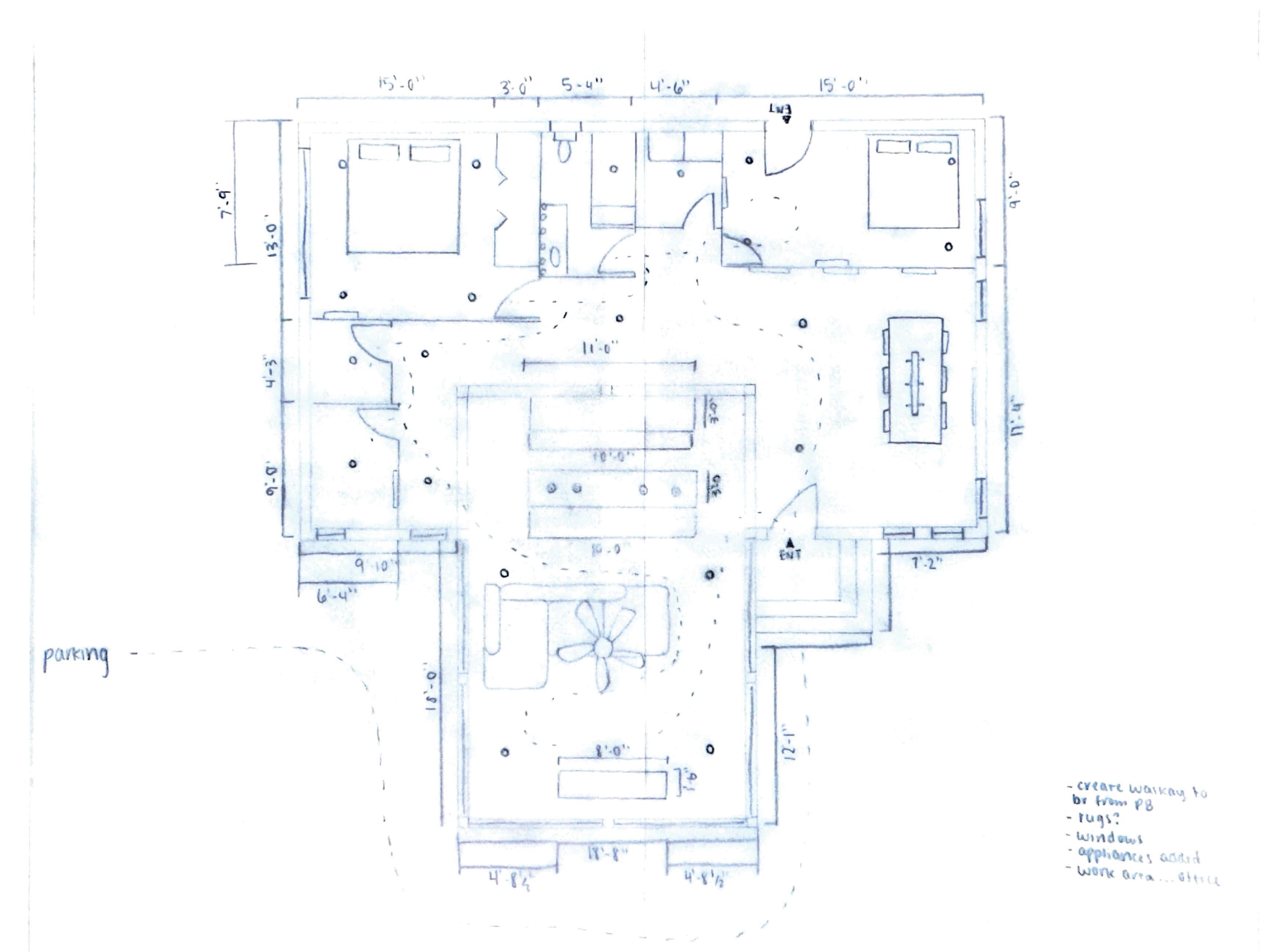
The floor plan placed below is my final floor plan and I have many different ideas that go into this particular arrangement. I chose to put the living room in the south end of the home to create a sun room effect. I kept the other public spaces including the dining room and kitchen in the same entrance and south area of the house. I wanted to put the primary suite on the north east corner so the sun comes up into the room in the morning. to wake up the owners. On the opposite corner is the guest room to divide the private space between the owners and their guests. The machanical and laundry room are on the west side of the house to limit noise in the main living spaces. the bathroom and office divide the guest and primary suites.

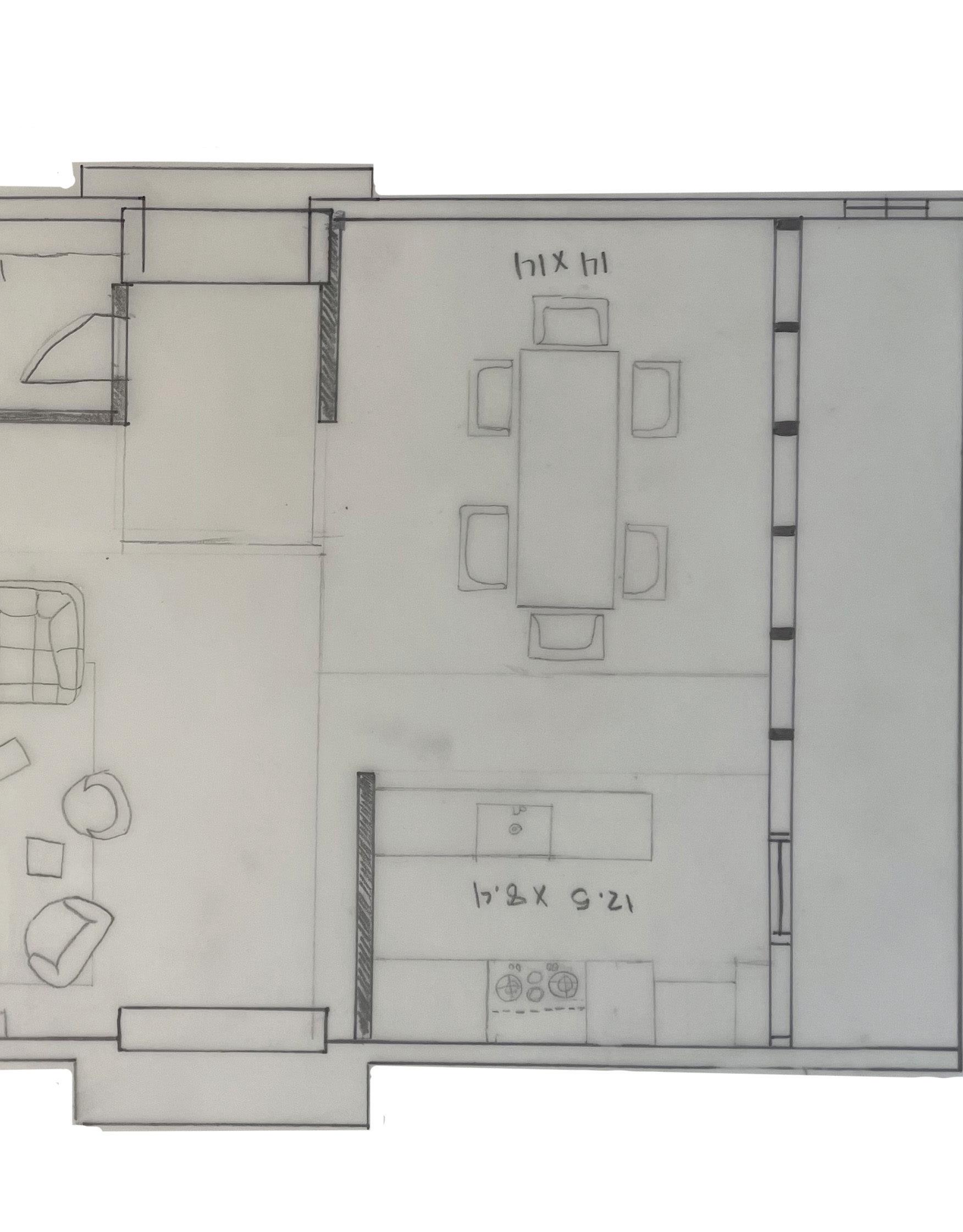
Client Analysis

-50’s couple

-Retired buisiness people

-Love modern art and houses

-Collect art

-Like to have family over for holidays

-Drink minimally

-love the outdoors

-morning people

-love to have coffee early

-spend days outside and on adventures

-spend nights watching movies and cooking together

-like to have space to call family and friends

-dont take baths so standing showers are a must

-yoga in the mornings either outside or inside

-healthy budget

-most time will be spent in the living area and outside

-the bedroom is meant for sleeping

-want 2 sinks

-has dogs

-health freaks

For my nal oor plan I wanted to nd the best path for all the rooms to be on. I wanted to focus on the differencia�on between public and private space. One of the main ways I changed my oor plan to achieve this was I put up a wall in between the living space and the bedrooms. I wanted to leave a clear opening/ door for people to pass through when they want to go into the private living space. I kept the bedrooms in a rela�vely similar space as before to allow for the sunlight to hit the rooms in the right spots.

Client Analysis

-50’s couple

-Retired buisiness people

-Love modern art and houses

-Collect art

-Like to have family over for holidays

-Drink minimally

-love the outdoors

-morning people

-love to have coffee early

-spend days outside and on adventures

-spend nights watching movies and cooking together

-like to have space to call family and friends

-dont take baths so standing showers are a must

-yoga in the mornings either outside or inside

-healthy budget

-most time will be spent in the living area and outside

-the bedroom is meant for sleeping

-want 2 sinks

-has dogs

-health freaks

For my nal oor plan I wanted to nd the best path for all the rooms to be on. I wanted to focus on the differencia�on between public and private space. One of the main ways I changed my oor plan to achieve this was I put up a wall in between the living space and the bedrooms. I wanted to leave a clear opening/ door for people to pass through when they want to go into the private living space. I kept the bedrooms in a rela�vely similar space as before to allow for the sunlight to hit the rooms in the right spots.

- Sun rises in the east

-Sun sets in the west

-Sun is tilted slightly toward the south making the south sides of the house bright

-Fairly flat and horizontal horizon

-Driveway is not directly connected to the house

-greenery all around that dries out in the summer

-Heavy winds and extreme weather

Speddaysoutsdeoade

-Spend nights watching mov

-Cook together often

-Like to have space to call fam friends

-Dont take baths

-Yoga in the mornings outsid -Healthy budget

-Most time spent in living roo

-Bedroom is only meant for sl

-Health freaks

Floor plan with 1’=1/4” scale

SECTION

Client analysis:

Couple in their 50s

Retired business people

Love modern art and houses

Collect art

Like to have family for holidays

Has dog

Drink minimally

Love the outdoors

Morning people

Love to have coffee early

Spend days outside on adventures

Spend nights watching movies

Cook together often

Like to have space to call family and friends

Dont take baths

Yoga in the mornings outside or inside

Healthy budget

Most time spent in living room

Bedroom is only meant for sleeping

Health freaks

Questions:

What is your favorite house style?

Do you plan on expanding your art collection?

How often do you plan on working if at all?

What guests will be in your home and how often?

How often do you drink/party?

Do you enjoy the outdoors?

How much of your time do you spend outside?

What do your days typically look like?

Are you morning or night people?

How do you like to spend your nights?

Do you have family you talk to often?

Do you prefer to take baths/showers/both?

What does your ideal morning look like?

What does your ideal night look like?

Do you work out and if so how often and what do you do?

What is the budget?

Do you have any dogs or health concerns?

PRESCEDENT ANALYSIS

The Farnsworth House is a mid century modern home that was made in the 1940’s-50’s. Ludwig Mies van der Rohe is the creator of the home and his overall goal of the Farnsworth House was to make a small area that feels open to nature. The colors and materials of this structure tie in to this space. The natural colors and elements take the focus away from the home and put it out toward the world around. In the modern home I created I wanted to incorperate those same ideas. The natural colors and elements in the home are meant to point the eye to the vast colors outside the home, not inside. It was important to me to make sure the walls had large windows to allow people to always be looking out. The similarities between the Farnsworth House and mine are slight but still noticable.

PROCESS WORK

Site Analysis: Rural Oklahoma

-Rolling Grassy Hills

-Lots of views all around

-Trees and creek to the east

-open plains in the west

-Highway to the north and west

-Very diverse eco system

-Large and small animals everywhere

-Fires and Tornados are common

-House will sit 500’ from the raod in the north

-Must be able to have fires around

-Sun rises in the east

-Sun sets in the west

-Sun is tilted slightly toward the south making the south sides of the house bright

-Fairly flat and horizontal horizon

-Driveway is not directly connected to the house

-greenery all around that dries out in the summer

-Heavy winds and extreme weather

Client analysis:

-Couple in their 50s

-Retired business people

-Love modern art and houses

-Collect art

-Like to have family for holidays

-Has dog

-Drink minimally

-Love the outdoors

-Morning people

-Love to have coffee early

-Spend days outside on adventures

-Spend nights watching movies

-Cook together often

-Like to have space to call family and friends

-Dont take baths

-Yoga in the mornings outside or inside

-Healthy budget

-Most time spent in living room

-Bedroom is only meant for sleeping

-Health freaks

Questions:

-What is your favorite house style?

-Do you plan on expanding your art collection?

-How often do you plan on working if at all?

-What guests will be in your home and how often?

-How often do you drink/party?

-Do you enjoy the outdoors?

-How much of your time do you spend outside?

-What do your days typically look like?

-Are you morning or night people?

-How do you like to spend your nights?

-Do you have family you talk to often?

-Do you prefer to take baths/showers/both?

-What does your ideal morning look like?

-What does your ideal night look like?

-Do you work out and if so how often and what do you do?

-What is the budget?

-Do you have any dogs or health concerns?

EXTERIOR ELEVATION

EXTERIOR ELEVATION

SECTION

SECTION

AXONOMETRIC

FLOOR PLAN

INTERIOR ELEVATION

INTERIOR ELEVATION

Landry Dula
Chipboard Model

With this diagragram, there is functinality however, it is not idea in regards to my clients. There needs to be more of a dedicated walking area rather than everything slapped into the building.

This diagram is very functional and I dont have any particular issues with its positioning. I dont love that the living room doesn’t touch any exterior walls becasue there is not any direct windows, but other than that this diagrama is very logical for my clients.

With this diagragram, the positioning of the laundry and utilities room being off the living and dining room makes for weird access point. I like how the more private areas are on the East side of the home, where the ceilings are lower, resulting in a cozier, more itntimate space.

This diagram logically makes the most sense for my clients, their requests, and their needs. I feel satsfied with the design and the functionality of it.

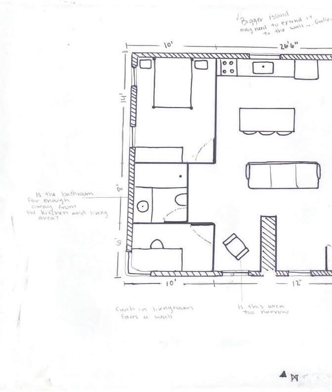
Design Statement with Floor Plan

I feel like I am headed in the correct direction in terms of this home beig perfect for my clients, however, I am not completely satsified with the placements with the more private areas on the west side of the home ans well as the view blockage as soon as you enter the home due to the partition wall in the kitchen.

Updated Design Statement

I feel like I am headed in the correct direction in terms of this home beig perfect for my clients, however, I am not completely satsified with the placements with the more private areas on the west side of the home ans well as the view blockage as soon as you enter the home due to the partition wall in the kitchen.requests and square footage requirements whilst still allowing for a large open area in the public spaces to collectively mingle beten all, and private sense that positionally make sense. Where doors ar elocated, the direction they open, the area in which bedrooms are places, etc. I am feeling confident in my desing and the likeness of it.

Digital Version Architectural Drawing

-What colors would you interpret as mid-century?

-Do you plan on expanding your art collection?

-Do you have any health concerns?

-Do you plan to retire in this home?

-How often do you have visitors?

-Are you morning or evening people?

-Do you enjoy the outdoors?

-Do you have pets? if so, what size?

-What is your price rance?

-What are a few materials you would like to see?

-Will you be needing a home workspace?

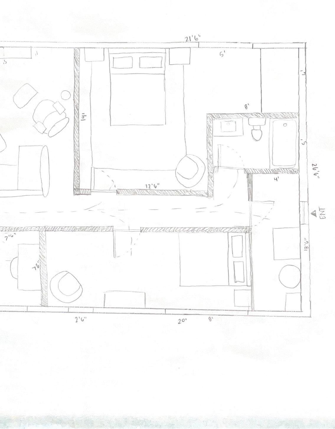
Scanned Floor Plan with Selfreview

What I learned...

Series of Precedent study

- During the precadent study, I learned how to base a design off of previos designs. Drawing insparation from the Menil House and Villa Savoye helped me to examine materials, floor plans and space programs to incoorparate in my design.

Series of Client Persona Development

- Writing and creating client persona helped me to learn how to create within the bounds of the personality I created as well as normal human factors.

Series of Space Program Statement

- Learning how as your design improves and changes, to articulate your ideas in to writing and contiue to change those as well.

Series of Design Statement Development

- Learning how to express your creation through words not just the design itself. Communicating your ideas helps to grow your design as well.

Series of Architectural Drawings

- Working to create a functional building with materials and purpose that all function together was the biggest learning lesson of them all. I learned to iterate and continue working thorugh problems to perfect my ideas and design.

Overall

- I learned so much this semester about color working in spaes, floor plans, and most of all how to work though the design prossess.

If you could talk to you before these five weeks, what would you like to share with you?

- If I could talk to myself 5 weeks ago, I would tell myself to take a deep breath and not get discouraged.

Insparation Images Floor
Furniture
Insparation Images
Furniture
Elevation 1
Elevation3
Insparation Images
Materials
Elevation 2
Caption
Insparation Image
Materials
Insparation Images
Inspiration Image
Insparation Images
Site Plan
Elevation
Furniture Insparation Material
Color Insparation Material

Site Analysis

Large hills and open landscape affect the views of the home. THe sunlight teaveling path and sunset and sunrise diagram help for me to decide where to place elements within the house. The elevation of the hill and trees effect optimal views.

Liz and Kevin Jones are moving from the big city of Detroit, Michigan, where Kevin was originally from and Liz was raised in the small town of Elk Rapids not too far away. They met at the University of Michigan where they both received degrees in business. Liz became an Art dealer and Kevin became a financial advisor. They are moving now to rural Oklahoma to escape the noise and chaos of living in Detroit and to be closer to family. Their 31 year old daughter, her husband and their 7 year old granddaughter live in Tulsa. Liz with an experienced history of dealing art has grown a collection of paintings supporting Michigan locals with a wide range of abstraction and realism. She has collected pieces from artist Chris Turner and wants them displayed within the house. Kevin after retiring from being a Financial advisor, has decided to splurge after years of working on his and his wife’s happiness and passions. The couple wakes up early and “with the sun”, out of habit and out of age. They own a 2 year old weiner dog, Francisco, that is their pride and joy that they take on walks outside. They enjoy time with family cooking and making cocktails.

Sketches and thoughts from my analysis of the building and ideas I had for each room

Sunlight Path
Room function
Room function and doors
Path and Sunlight
Room function
Room separation in building
Final Parti diagram

Chipboard Model & Materials and Color Collage

Chipboard Model
Drawing ideas of windows and shapes within the house. Colors and materials to inspire my house.

Focusisng on colors and material that stuck out to me . Finind furniture to fi t my ides within the range of the project.

Discovering how artwork is displayed and colors worked within the space.

Program Statement

The final floor plan I accomplished creating the space I envisioned within the bounds of the square feet requirements. In the entryway, it presents a clear view of the outdoors and the best views to create the feeling that you aren’t trapped. The entryway will be used to access the rooms on each side as well as a pathway to the living room and kitchen. An overhead light so the residents can see when they walk in during hours when the sun isn’t up. The office when you first arrive is bright with open doors to create an enclosed space that still creates flow within the home. The laundry room gives views to the sunrise and nature outside as well as being placed where access to the entire home to move and fold laundry is easy. The kitchen gives views to both the outdoors and morning sunrise during breakfast, as well as ample space to cook and spend time with family. Room to cook and clean in an organized manner. The living room is an open space that connects to the kitchen and dining room so family oriented time can be enjoyed as well as views of the entire landscape are present. Watching tv, reading, spending time with family are all key activities that the living room will host. The living room is located in a space that can feel enclosed but still can view the activities within the house. The glass windowed dining room has views of sunset and sunrise to spend any meal with perfect views. The dining room leads to an outdoor space where the dog and grandchild can have fun and still be watched by the family. The master bedroom is to the side of the home with bright lighting as well as a large private bathroom and closet for maximum comfort and alone time. The mechanical closet/ room is located across the laundry room, making it easily accessible. The second bedroom is located at the beginning of the hallway with a small closet and twin bed. The large window in the room allows for natural light and views for the residents or guests who stay. The extra bathroom is located next to the extra bedroom and front door allowing easy and quick access.

Design Statement with Floor Plan

I wish to create a living environment that is welcoming and fits in with the earth. Good materials for the young grandchild and dog as well as ample space for them to spend time together in. A warm kitchen for the family to cook and hang out in as well as a large enough extra bedroom for visitors. Incorporating elements from Detroit as well as their new home in Oklahoma will create the precise dream they have envisioned.

Liz and Kevin Jones are moving from the big city of Detroit, Michigan, where Kevin was originally from and Liz was raised in the small town of Elk Rapids not too far away. They met at the University of Michigan where they both received degrees in business. Liz became an Art dealer and Kevin became a financial advisor. They are moving now to rural Oklahoma to escape the noise and chaos of living in Detroit and to be closer to family. Their 31 year old daughter, her husband and their 7 year old granddaughter live in Tulsa. Liz with an experienced history of dealing art has grown a collection of paintings supporting Michigan locals with a wide range of abstraction and realism. She has collected pieces from artist Chris Turner and wants them displayed within the house. Kevin after retiring from being a Financial advisor, has decided to splurge after years of working on his and his wife’s happiness and passions. The couple wakes up early and “with the sun”, out of habit and out of age. They own a 2 year old weiner dog, Francisco, that is their pride and joy that they take on walks outside. They enjoy time with family cooking and making cocktails. They wish to pull inspiration from the Oklahoma landscape as well as their pervious home of Detroit. They wish to escaped the trapped concrete jumgle of Detroit and enjoy open windows with views to the specific points of best sunlight. The family will rarely use the guest room due to their relatives living so far away. They enjoy the peace and quit of their own home an the peace it brings.

I wish to create a living environment that is welcoming and fits in with the earth. Good materials for the young grandchild and dog as well as ample space for them to spend time together in. A warm kitchen for the family to cook and hang out in as well as a large enough extra bedroom for visitors. Incorporating elements from Detroit as well as their new home in Oklahoma will create the precise dream they have envisioned.

Entering the house appears open with direct views to the backyard through the glass dining room. The office on the left has clear doors to separate the space but also keep it as a part of the house. The laundry room right past it allows space for collaboration and views of the whole home while in the living room. The kitchen has space for 6 people at the bar as well as big views of the outdoors and sunrise, as well as access to the back door. The dining room has views of sunrise, sunset and the entire backyard and best views. The bedroom faces the sunset as well as the best views. The living room has the darkest area and views of the whole house to be a part of any space in the household. The second bedroom has access to the bathroom as well as views to the front yard.

Floor plan with 1’=1/4” scale

SECTION LOOKING WEST

1/4 = 1’0

SECTION LOOKING SOUTH

1/4 = 1’0

Liz and Kevin Jones are moving from the big city of Detroit, Michigan, where Kevin was originally from and Liz was raised in the small town of Elk Rapids not too far away. They met at the University of Michigan where they both received degrees in business. Liz became an Art dealer and Kevin became a financial advisor. They are moving now to rural Oklahoma to escape the noise and chaos of living in Detroit and to be closer to family. Their 31 year old daughter, her husband and their 7 year old granddaughter live in Tulsa. Liz with an experienced history of dealing art has grown a collection of paintings supporting Michigan locals with a wide range of abstraction and realism. She has collected pieces from artist Chris Turner and wants them displayed within the house. Kevin after retiring from being a Financial advisor, has decided to splurge after years of working on his and his wife’s happiness and passions. The couple wakes up early and “with the sun”, out of habit and out of age. They own a 2 year old weiner dog, Francisco, that is their pride and joy that they take on walks outside. They enjoy time with family cooking and making cocktails. They wish to pull inspiration from the Oklahoma landscape as well as their pervious home of Detroit. They wish to escaped the trapped concrete jumgle of Detroit and enjoy open windows with views to the specific points of best sunlight. The family will rarely use the guest room due to their relatives living so far away. They enjoy the peace and quit of their own home an the peace it brings. They will be doing work still in to retirement buying and selling artwork as well as Kevin will continue working his job as a financial manager for a few more years. Between the two of them they don’t do much laundry. They prefer not to bathe due to their growing age. They don’t own much clothing after selling their heavy winter clothes when leaving the north.

Interview Questions

What will the office be used for?

How much laundry do you typically do

Do you prefer a bathtub or shower?

How much clothing do the both of you have? How many people do you plan on having? Do you cook a lot?

Do you like the heat or cold better? Do you need any covered areas outside?

Do you get lots of visitors? What will you miss about Detroit? How old is your Grandchild?

Do you or any possible visitors have disabilities?

Best time for design is summer sunset - Kids out of school more time for them to come over and spend time with family outside.

Bentley Gunn

Series of Precedent study

- I have expanded my knowledge with art while studying these Precedents. I really appreciate the Villa Savoye and its simplicity. It is really encouraging to notice that not every design has to be so detailed and abstract. Designs can be simple and still give off great effects.

Series of Client Persona Development

- While creating Persona Developments it was very exciting to imagine working for a client. It was great to get to create a client and design a house I love as well.

Series of Space Program Statement

- This space program statement really helped me figure out what each room should be used for and how. Taking traffic into consideration was a big understanding of mine. It is always frustrating when a space isn’t planned out right and there are jams within spaces. That is one thing I really focused on when thinking about each space.

Series of Design Statement Development

- When focusing on my floor plans I wanted to convey my ideas right to the viewers so in order I wanted to perfect my floor plans.

Series of Architectural Drawings

- The architectural drawings really helped me convey my ideas in a organized way. These drawings really also taught me focus on the details and to highlight the amazing points in each space.

Overall

- I am really impressed and happy with the outcome of every project I had this semester. I understood how hard I needed to work> I took this semester very seriously and loved how great the outcome was.

If you could talk to you before these five weeks, what would you like to share with you?

- In order to produce work that you love you need to put in the work. It might take all day, but after those long hours you will be happy with the results.

PLANS

ground floor floor 1

floor 2

ELEVATIONS

COLOR ANALYSIS

INTERIOR PICTURES WITH COLOR AND MATERIAL

Floor Plan

Elevations

Site Analysis

Color Palette

Site Analysis

While creating this site analysis I really wanted to focus on all assets of weather, landmarks, natural elements. I think the better your site analysis is the better your house design will end up. Thinking about all these elements when creating your design help create a comfortable space.

My clients have stated they really want a comfortable space for living. They have stated they are not morning people so in order to satisfy my clients I will add the primary suite to the west side of the house. The clients have stated they are down to earth people. In order to create a comfortable home for my clients I will focus on the comfortability of their space. The last demands my clients had was to create an open space for entertaining purposes. They love to have friends and family over for dinners and hangouts. I like having open features in a home because it really feels very friendly and welcoming to guest.

Building Analysis

With these building Analysis I wanted to experiment plans on where rooms would go. Thinking about what room you have to cross to get to another was challenge but fun. These analysis really helped get the ideas flowing and helped understand the layout of floors.

Parti #1
Parti #5
Parti #2
Parti #4
Chipboard Model
Villa Savoye collage
House collage
Menil Collage

Space Program Statement

Entrance Fixtures:

Above head chandelier

A chandelier will create a fancy feeling when first entering the house. This light will light up the house from the inside but also give out light to the outside. This light fixture can be used for both casual and formal use.

Outside lighting by door

To help guide guest and residents with comfort outside while dark

Living Room Fixtures:

Fireplace

To add comfort and heat for the winter seasons

Dim Can lighting

In ceiling above to provide light when needed

Kitchen Fixtures:

Dim Can lights

For lighting when needed

Island with base cabinets

Preparatory station but also can be used at seating. Cabinets included for hidden storage

Sink/faucet

Garbage disposal

Dishwasher

Oven

Refrigerator

Microwave

wall shelves

In order for storage and easy access to anything needed. Above the head to create more space

Base cabinet

For more space and storage

Bathroom Fixtures:

Dim can lighting

Lighting on edge of mirror to help with great lighting

Toilet

Walk in Shower

Walk in shower to give more room for the residents

Vanity with sink

For any storage, cleaning, and getting ready

Drains

Bedrooms

Primary suite:

Ceiling fan

Fire place

Both used for climate control

Dim Can lighting

Secondary Sleeping/Work Study:

Dim can lighting

Ceiling fan

Both used for climate control

Built in work desk

Build in Murphy bed

Creates a bedroom quickly and can be very easily cleaned up

Built in shelving

For storage and visual decorations

Design Statement with Floor Plan

I have achieved a floor plan that I really think is going to work and still fulfill the needs of my clients. It was difficult in order to create a plan that doesn’t clutter up the house. The floor plan I first came up with was very cluttered and didn’t seem like a good plan. I was placing rooms that faced the sunrise which is the opposite of what my clients wanted. I was just placing spaces in the house to just try and fit everything in but I wasn’t thinking about the site and which direction spaces should be facing what way. I learned quickly that it is very important to focus on the site plan and to not forget about the site while creating the inside of the space. It was very easy to lose focus but when understanding the site and keeping it in the front of my mind it was easier to place spaces in the right spots.

While talking more with the clients I learned they have no kids and no pets. They live a simple life with no extra worries. This will make it easier to design the inside of this space due to the fact I am designing for 2 people and not any extras. It will be crucial to separate the primary suite from the secondary in order to be more private and away from when the residents do host guest. When adding materials to the space I didn’t have to think about wear and tear from any pets or any kids which is nice.

Design Statement

Updated Design Statement (Floor plan)

When creating those floor plan I needed to focus on space. Not cluttering the spaces was my main goal for the end. While still creating a comfortable space. I came up with the revision to make one side of the house more for entertaining purposes and more public and for the other side of the house to be more private. This gives the effect that there are 2 different living spaces in one house, creating a bigger feel. I like the idea where if one resident is entertaining guest or watching a movie loudly and the other resident can go into a more private and quite place of the house. I wasn’t totally happy with the first 2 floor plans I created because it wasn’t feeling functional to me. With these new thoughts and revisions I believe I have achieved a floor plan I am happy with. The layout gives the residents a nice and welcoming space to live in and to entertain all their guest.

Meet the clients, Ashton and Harper. This couple is in their mid-forties. For work they both paint landscapes and get to travel the world and paint some of the most beautiful views. When they aren’t traveling and are settled down at home they love to entertain. My client’s lifestyle is relaxed but loves to keep their space clean. Harper loves to cook and the kitchen is where she spends most of her time. Ashton loves watching sports with a cocktail and spends most of his time in the living room and at the bar. The clients requested to have a big open space in their house in order to entertain guests easily. Ashton and Harper love having their close friends and family over for drinks, dinner and more. Every design aspect of this house is intended to focus on the entertaining part of Ashton and Harper’s lives.

INTERVIEW QUESTIONS

1. What is your short and long-term plan for this space?

2. What is your budget?

3. What is your morning and night time routine?

4. What type of lifestyle do you live? (Relaxed, busy, party, etc)

5. Do you like to entertain friends and family?

6. What level of privacy do you desire?

7. What type of colors and patterns are you looking for?

8. What kind of rooms/ spaces do you want? (Bedrooms, dining, family, kitchen, garage, etc)

9. What spaces will you be using the most?

10. Are there any must have requirements for your new home?

What I learned...

Series of Precedent study

- From the precedent studies, I learned about some of the main apsects of interior design planning in more depth than I had before. We really took the time to look into and analyze the important things like site plans, floor plans, and architectural drawings.

Series of Client Persona Development

- Through the client personas, I was able to assign a client for myself, and listed requirements. This gave me the challenge of not doing my design as I would like it and with unlimited possibilities, I was forced to think differently and use these requirements as a guide.

Series of Space Program Statement

- The space program statements really made me focus and think deeply about the spaces I was curating. I was forced to really dive into my thought process on why I had decided to do one thing a certain way or another.

Series of Design Statement Development

- Each time I did an updated design statement, I felt I was really able to build on the original ideas I had, but with more exact thoughts and critiques from my peers to better each model.

Series of Architectural Drawings

- The architectural drawings helped with being able to clearly see and visualize my thought process and understand whats been put on the page.

Overall

- I’ve felt that this last 5 weeks has been successful, and I’ve had a lot of good experiences and advice to help further my education and prowess as a designer.

If you could talk to you before these five weeks, what would you like to share with you?

- I would tell myself, “it’s not that bad, you’ll make it through it”, because I was very intimidated by the amount of software and technology we would be using in this session. However, I actually found I grasped the concepts of the software and programs quite quickly. I would also tell myself to not let myself get behind on work, especially written assignments.

C:\Users\Peyton Henry\Downloads\Design C fourth.3dm

The couple who will be living in this house is an older, retired couple, Arthur and Debbie. Arthur is a retired art curator and collector, Debbie is a retired professor from University of Colorado at Boulder, teaching art history. The couple has decided to build a house in the prairie grasslands of rural Oklahoma, where they can enjoy their alone time to slow down as they age. They both enjoy modernist architecture, with Art Deco and Mid-Century interiors. The kitchen is sized tightly but comfortable for Arthur to cook for himself and his wife, which he enjoys. The open dining room, kitchen, and living room are all open concept, with the kitchen having a half wall to add divide from the front foyer and the kitchen while still being airy and open. I’ve added double doors for the front entrance door with a console table next to them to place keys, mail, etc. The primary bedroom and guest bedroom have an en suite full bathroom attached, with a shower/tub combo, large walkways between the whole of the room.

Building Analysis

I chose House C because I really liked the feeling I got from looking at the models in Rhino. The large open space, tall ceilings, and wrap around windows all made me feel like I would be able to do something I really enjoyed for this project. The shape of the window frames felt very mid century to me, which would tie back into the precedent study of the Eames House. I felt the structure and layout of the house would translate very well into being based off the two precendent studies prior.

Each collage is based on a different Mid-Century home, I wanted to emphasize the materials, colors, textures, and plant species each home had to offer. I did this by adding color and material swatches, and different species of plants in the collages.

Terracotta rocks Honed stone Birch wood
California Pepper Tree Eucalyptus Delphiniums
Mini Geraniums Foxgloves Rye Grass

Program Statement

Statements Per Room

Kitchen and Dining-

The kitchen and dining areas are combined for maximum space to socialize and entertain while cooking and dining. The husband that lives here likes to cook for his wife and they both enjoy entertaining, so the linear flow from the kitchen to the dining table to the deck creates a very welcoming and intentional use of space. The edge of the kitchen facing the living room is a half wall to help the space feel not as cramped.

Living-

The living room in this home is adjacent to the kitchen and the dining table. The fireplace is used as the center point of the living space, with the three-seater couch across it. I added a coffee table in between the couch and fireplace for a more useful area. An armchair is placed diagonally next to the couch for extra seating.

Bathrooms-

To make the most of the small bathrooms, I made each bathroom have a shower/ tub combo and double sink vanities. A standard porcelain toilet is placed with ample space to move through the bathroom.

Bedrooms-

The primary bedroom walls are floor to ceiling windows for maximum amount of light. A queen size bed is against the west wall of the bedroom with a floor lamp and nightstand on either side of the bed. An oversized dresser is placed opposite the bed on the east wall, where another armchair is diagonal between the bed and dresser. The guest bedroom has another queen bed against the west wall of the bedroom with another lamp and nightstand on either side. I’ve added another, smaller dresser against the south wall for extra storage from the couple or a place for guests to put their belongings.

Office-

I’ve added built-in bookshelves to either side of the desk against the west wall, another desk was added to the left side of the room with another built-in. The built-ins are for the couple’s personal items, work documents, etc. The two desks create a valuable double workspace for the couple to use however they please.

Utility/Laundry-

The laundry and utility room is a small room to the far west side of the house, next to the guest bedroom. This space is used to be functional and not necessarily aesthetically pleasing. The washer and dryer are against the back wall with the electrical units and boxes against the south wall.

Design Statement with Floor Plan

Firstly, I decided to expand the guest bedroom to be larger to allow for better movement flow around the room and get to the bathroom attached. I also changed the stand shower in the guest room to be another shower/tub combo like the one in the primary bedroom, as I felt this would add accessibility to the home. The front entrance door was changed to a large set of French doors to add more emphasis on the front entrance of the home. The kitchen is slightly larger in size for maximum usage of countertops and storage. Due to widening the guest bedroom, the couch, fireplace, and other furniture in the living space had to be shifted over to the right. The dining room remained fairly the same, only adding a few additional windows to brighten and open the space more. A small transitional hallway next to the living room leads to the office and the primary bedroom. The office was given smaller built-in shelves to better accommodate the size of the desks for a larger workspace for both Arthur and Debbie. The primary bedroom and en suite remained true to the original design, but I added another armchair to the room for a place to sit up, tie their shoes, etc. Overall, I feel my final design and floorplan has achieved many of the goals from the client’s intent. The repetition of making the floorplan multiple times helped me make mistakes, find them, and fix them in the next version.

Kitchen and Dining- I’ve added three industrial style hanging pendant lights over the walkway of the galley kitchen, hanging shelves above the countertop, and a large hanging light over the dining table that seats six.

Living- The living room has a limestone and iron fireplace used as the center point for the living room furniture. The couch, armchair, and coffee table are across the fireplace for symmetry and a focal point. I have another large standing floor lamp in the corner of the space next to the fireplace. I’ve added a small cabinet for extra storage and as decor.

Bathrooms- The primary bedrooms bathroom has a double vanity sink for both the husband and wife to have their own space within the compact bathroom. Both bathrooms feature shower/tub combos that are lowered specifically for the clients and accessibility purposes.

Bedrooms- The guest bedroom features a new side table, and a tall wardrobe for any guests’ belongings. I added a standing floor lamp, the same one from the living room and primary bedroom. A painting hangs on the back wall next to the queen size bed. The primary suite includes a large rug, queen size bed, a large dresser, standing floor lamp, and a nightstand next to the bed.

Office- I moved the desks to face back-to-back of each other to allow better flow in the room and concentration if both are in the office.

For my final version of the floorplan for the couple to live in, I moved around the desks in the office by having the two desks face back to back to allow for better flow and symmetry in the space. The guest bedroom, living room, and primary bedroom all have the same standing floor lamp to add light and more physical elements to take up space. The flow throughout the whole home is extremely open while having clear sectioned spaces for the main living, kitchen, and dining rooms.

-Outside Tulsa, OK

-Diverse eco-region

-Tall prairie grass

-Various reptiles, birds, bugs, and trees

-Mainly blackjack oak and post oak trees

-Bison a dominant species

-Biome health depends on prairie res

Creek
Pond

Floor plan with 1’=1/4” scale

Original Section 1

C:\Users\Peyton Henry\Downloads\Design C fourth.3dm

Original Section 2

North

C:\Users\Peyton

Kitchen and Dining- The kitchen and dining rooms are still very open concept, with added lighting, and miscellaneous items.

Living- The living room still has the same layout and furniture.

Bathrooms- The bathrooms of the house both have shower/tub combos for the accessibility of the couple. A vanity with double sinks are for comfort and maximal space/storage.

Bedrooms- The primary bedroom has the same standing floor lamp as the living room and guest bedroom, an oversized dresser for the client’s clothes and other belongings, a painting hanging on the wall backing towards the bed, a queen size bed, and nightstand next to the bed. The guest bedroom has the same layout and furniture as the previous versions.

Office- The office remains having the same layout with the desks facing back-toback and built in bookshelves on the far back wall, and two more bookshelves next to the desks.

Interview Questions

What kind of interior styles do you like? Are there any genres of art you particularly like? What are some of your favorite colors? Materials? Do you have any special needs or special accommodations that needs to be met? Do you usually have guests over? Do you like to cook often? How would you want to feel in this space?

Exterior Elevation- South
Exterior Elevation- East
Section 1- North
Section 2- West
Axonometric
FF + E
Interior Elevation
Interior Elevation

In reviewing my design solution, there is a clear connection between the precedent study and the final solution. This can be observed in the following details (write clear descriptions):

I believe there is a clear connection between my precedent study and my final design, a few examples being that I used similar materials and color palettes as the original house of my study in the final product. I attempted to follow similar thought processes of the Eames’ when they were building their home in 1949.

In reviewing my design solution, I can see where I both fulfilled the programmatic requirements and used my best judgement. Such common sense can be seen in: In fulfilling the programmatic requirements of the assignment, I’ve used basic design processes and completed the final turn in deliverables. I have used my best judgement on some decisions in my final design regarding the execution of adding materials and using scale with my design elements.

How could you better engage the site, the views, and considered the physical context in your solution?

I forgot to add background to my perspective views, which allows for a lot better understanding of the environment the home is around and within, it is my fault for not adding them in, and I’ll be changing the photos to fix this problem.

How could you better provide for the important activities identified by the clients (work, entertainment, collecting).

I should make the living space from the front (North) entrance of the house a bit smaller by shifting the walls of the office larger to better accommodate for space in the relatively tight office space between the living room and the primary bathroom. I felt the office ended up being a bit small and potentially difficult to navigate for this couple.

How could you better provide for comfort in leisure for the couple together and individually?

I would add more seating in the living space, as well as add a new armchair and stool or bench to put at the end of the bed in the primary bedroom. I think this extra seating and resting space would be nice for the couple to have, as it allows for more individual seating, which there is a lack of in the design.

The greatest challenge I confronted in creating an effective design solution was (be clear and explicit and explain the challenge): I was challenged with the scaling of my drawings; it was difficult to correctly scale them after I finished. I also had issues with the layout of the house, I felt I was having a hard time with deciding how large the added rooms would be and how many new walls should be added.

The greatest success I experienced in creating an effective design solution was (be clear and explicit and explain the success):

I was quite proud of my rendered perspectives because I felt they had shown a good, eye-level view of each intended space as well as having a nice amount of the entire room, like being able to see the ceiling and having straight vertical lines from the walls.

To improve my project, I must make the following changes: I’ll be adding background images in my perspectives to add more depth and allow to see the environment as a whole, add shadows to my human figure in the perspectives, add poche, door swings, and window sills to my floor plan to allow for a clearer drawing that will be easier to understand.

Anna- Claire E. Hudgins
Portfolio

Series of Precedent study -

Series of Client Persona Development

- By developing these client personoas, I learned that notonly do clients care about what the space looks and feels like, they also care about how well it the space works with their lifestyle, abilities and disabilities, likes and dislikes etc.

Series of Space Program Statement

- I learnd from this that once you let all of oyour ideas out it is important to gather them and then compare to see which one fits the assignment best.

Series of Design Statement Development

- These exercises taught me that writing down what you have done or accomplished helps you understand how you csn improve.

Series of Architectural Drawings

- I learned that it is important to include as much information as possible into your architectural drawings but also making sure that your drawing is still readable and makes sense.

Overall

- Throughout all of this, I learned that iteration is key to creating something great.

If you could talk to you before these five weeks, what would you like to share with you?

- I would share with myself that it is okay to be scared and nervous for new things, but to trust that it will all work out! I have learned so much in these past 5 weeks and can now accomplish things I never imagined I would be capable of.

ground floor
2nd floor
1st floor site plan
interior view with material and color
interior view with material and color
interior view with material and color
interior view with material and color
interior view with material and color
interio rview with material and color color palette
32082 orange pale
32080 orange
4320K bleu outremer 59
32040 4320J terre d’ombre
32024 outremer gris
32021 outremer moyen
32082 orange pale
32080 orange
4320K bleu outremer 59
32040 vert anglais
4320J terre d’ombre brulee 50
4320B blanc ivoire
32024 outremer gris
exterior elevation
exterior view of sidewalk

The site is located in the tallgrass prairies in Bartlesville, Oklahoma. The tallgrass praries are located in an ecological region known for its rich biodiversity and distinctive landscape. The climate is classified as humid and subtropical, with super hot summers and mild winters. The grasses in this region can reach heights of up to 6 feet. The praries support a variety of wildflowers too which contribute to the biodiversity and aesthetic value of the area.

The clients are coming from Chicago, Illinois to Bartlesville, Oklahoma as a semi-retired couple. They take pride in their private art collection and love a large amount of open space. They enjoy outdoor activities as well as indoor ones. The clients do not plan on having guests over often but when they do, they want them to feel at home. They love natural lighting and are definitely morning people who love to sit in the living area drinking some coffee.

#6-#10
#1-#5
#1
#3
#2
#4
#5

Chipboard Model & Materials and Color Collage

Chipboard Model Picture

statement of intent describing the behaviors, spatial outcomes, and creative ideas

Chipboard Model

statement of intent describing the behaviors, spatial outcomes, and creative ideas

statement of intent describing the behaviors, spatial outcomes, and creative ideas

Space Program Statement

Space program 1 - For the first program I was trying to find a way to make all rooms fit wit the exact dimensions while still having comfortability and accessability in my mind.

Space program 2 - I like the idea of having an open living and kitchen to keep the spaces feeling connected so I chose to stick with that. I started adding the more private rooms towards the back and the less private but still not too social of areas in the middle area.

Space program 3 - After looking at my last two programs I realized that the bathroom should be in a more convienent spot. That was my main priority with this space program, to make the area make sense.

Space program 4 - I went back to making the kitchen and living combined and switched some of the more private rooms to see how they went together. I knew I liked the dining, kitchen, and living being in the same area.

Space program 5 - For my final space program I kept the main public spaces in the same area and put the bathroom in the middle between the primary and secondary sleeping spaces. I still was not sure where to put the laundry so I tried to fit it inbetween the dining area and second sleeping space.

After looking through all of my ideas I went with one that made sense and used a few parts from other diagrams too. I chose to keep the living and kitchen together and put the dining to the right in its own area to give it some privacy. I then put both secondary sleeping spaces on opposite sides of eachother on the northwall with the bathroom and laundry spaces inbetween the two. I wanted to keep the big windows in the living area to fulfill thw clients wishes on having a lot of natural light.

Entrance/dining:

Fixtures

- Chandelier

- Can lights

Behavior

- Laughter/talking

- Eating

- Quality time at the table

- Bringing in groceries

Contextualized Needs:

- 6 people sitting at the table

- Needs outside lighting by doors

- Coat/hat rack

- Entry way rug

Living Room: Fixtures

- Can lights

- Lamp - Fireplace

Behavior

- Cozy time

- Relaxed - Watching movies

- Conversating

- Sleeping Contextualized Needs

- Rug for coziness

- Blankets

- Plants - TV

- Pillows

- Curtains Kitchen: Fixtures

- Pendent lights

- Can lights

- Led lights under the wall cabinets

- Sink faucet

- Disposal

- Dishwasher

- Range - Sink

Behavior

- Cooking - Doing dishes - Packing groceries

- Eating Contextual needs

- Trash can

- Wash cloths

- Stools

- Cleaning supplies

Bathroom: Fixtures

- Can lights - Toilet

- Shower

Behavior

- Toilet use

- Getting ready

- Washing hands

- Showering Contextual Needs

- Soaps - Wash cloths

Bedroom: Fixtures

- Can lights - Ceiling fan - Lamps Behavior

- Sleeping - Getting dressed

- Talking - Resting `Contextual needs

- pillows

- Art collection

- Greenery

Once I got to my third floor plan my intentions were clear. I made this home very open and full of natural light. The house is facing south with nothing in sight but the prairie. On the north side of the house there is a road but it can’t be seen anywhere from inside the home except for the bathroom window. The home has plenty of nice pieces of furniture and appliances yet nothing can take away from the clients art collection that is scattered all throughout the main parts of the house. I ended up adding more furniture and doorways on the final floor plan as well to make use of the extra space.

Digital Version Architectural Drawing

The clients Dave and Sally Smith are a semi-retired couple from Chicago, Illinois. They are moving from Chicago to Bartlesville, Oklahoma in hopes of spending, if not the rest of their lives, a long time in the land of the tall grass prairies. They want to have a home that influences and reflects the lifestyle they have.

They both take pride in their private art collection and want this home to reflect their love for modernism and art. Their private art collection consists of abstract works by Jade Fadojutimi, an artist from London. The Smith’s would like the colors from their art collection to be the main use of color in this space while keeping it minimal, so it doesn’t draw the attention away from the actual pieces. They enjoy watching the sunrise and love the thought of having natural light beam through their home all hours of the day. The Smiths are big nature people and want to feel connected to the outdoors. In their spare time you can find them engaging in outdoor activities like hiking, and indoor ones like trying out new recipes, watching movies and showing off their art collection to guests. They live a very relaxed lifestyle.

The Smith’s requested that the secondary bedroom has a way for guests to come and go from the home with ease without having to disrupt the rest of the spaces. I created a door on the north wall of the secondary room so guests can enter and exit as they please. The door also makes it easier for guests to bring luggage directly to their room. With cooking and lounging being some of the client’s biggest hobbies, the kitchen and living room have a nice open floor plan.

- What is your budget?

- What are your cooking habits?

- What is your main room for socializing?

- Do you use the dining room for meals or another space?

- What are your hobbies?

- Do you have pets or see yourself having them in the future?

- Do you enjoy the open floor plan or like your areas more closed off?

- What are your technical needs for this space

- what are your goals for this space?

- How do you feel about natural lighting?

24 x 36 Sheet EXTERIOR ELEVATION

1/4” = 1’

EXTERIOR ELEVATION

1/4” = 1’

SECTION 1

1/4” = 1’

SECTION 2

1/4” = 1’

AXONOMETRIC SE VIEW

FLOOR PLAN

1/4” = 1’

INTERIOR ELEVATION - WORKSPACE

1/4” = 1’

INTERIOR ELEVATION - DINING

1/4” = 1’

PERSPECTIVE

PERSPECTIVE - KITCHEN & DINING

Series of Precedent study

- Gave me a platform to refrence my design ideas too because I wanted to keep my design similar to the precedent study.

Series of Client Persona Development

- Having a client personal helps you strengthen your design by having a foundstion of design requrements to build off of.

Series of Space Program Statement

- Having a guideline of space requirements is a challenge but helpful becuase you know what you can’t exceed.

Series of Design Statement Development

- Creating a design statement strenghtens the assignment overall and is necessary when presenting to your clients.

Series of Architectural Drawings

- Architectural drawings are necessary documents when designing and building a structure. Without these, it would be very difficult to build and design. These drawings help bring your imagination to life.

Overall

- I feel that this was a great project that allwoed me to get a sense of what my career will look like one day.

If you could talk to you before these five weeks, what would you like to share with you?

- You can do anything you put your heart and mind do. This is your deram and you will make it!

Top Floor
Interior Room With Labels
Entry Hall
Living Area
Living Room With Labels
Dining Area
Living Room With Labels
Living Room With Labels

The north will have indirect lighting. The south will have natural lighting. The west will have the view of the sunset and it will also have warmer sun. The east will have the morning sun. Thunderstorms will typically travel from north/east diagonally to the southwest. Snow storms will travel typically from the west to the east. There is a river on the east side where animals will be traveling towards for a water source. In the southwest corner there are some hills in the distance. Trees take up the majority of the east side. Direct access to the highway that runs west to east.

My clients are morning people who enjoy drinking a hot cup of coffee either outside or on the couch while the sun rises They are scenic people and love watching nature do its thing Their favorite times of day are when the sun is rising and when the sun is setting They enjoy watching nature, watching the beautiful views, and watching thunderstorms They find these views to be very calming and relaxing Their goal for this house is to create a calming, peaceful, and inviting space within their home

They aren’t a big fan of insects and want a good bug-protectant system that keeps nasty bugs out of their house, and away if possible They also don’t want any step-ups or ramps Would prefer the house to be completely flat This will be the last home they ever build and want to make sure it will still be accessible when older.

They enjoy reading books, doing yoga, and cooking.

Because they are in a rural area and it takes some time to get into town, they only shop for groceries once a week They like to buy in bulk to verify that they have enough goods for cooking every day

They also have grandchildren who visit at least once a week The grandchildren are from ages 7-15 and enjoy spending the night The grandchildren can be rowdy at night and they would prefer the bedrooms to be a distance away from each other if possible

These clients are very simplistic and minimalist They don’t need much to be happy but they do want plenty of natural lighting throughout their home They are open to all layouts but would prefer a more closed layout rather than open to create more wall space for their artwork

Dining Table
Kitchen
Layout 2 Layout 4
Living Room
Layout 1
Layout 3
Diagram 1
Diagram 3
Diagram 5
Diagram 7
Diagram 2
Diagram 4
Diagram 6
Diagram 8

Chipboard Model & Materials and Color Collage

These materials are natural, providing an organic feeling. The red brick is a statement and contrasts with the blue and black. The concrete is a nutral color that will look good against paintings. The hard wood flooring will be consistant throughout the house. Unique furniture will also be placed throughout the house to provide extra detail.

Chipboard Model

This diagram feels more inviting and calming. Natural elements like wood, stucco, and plants are all elements that are calming and inviting. The cool tones, green and brown are earthy tones. This collage connects with nature. I also enjoy the black tile flooring. The many different patterns create special outcomes. For example, the chevron creates movement and makes the space feel busy.

This diagram has multiple colors. Mostly cool tones tied in with bright warm yellow tones. The blue feels big, almost never-ending. The yellow couch against the dark wall makes the couch pop and the area feels inviting. The plants add a natural feeling to this space. The brown, green, and natural colors give this collage an earthy tone. The wood in the middle directs your eyes upward.

All openings face the west, which is the hottest sun which means that the house will heat up quickly The layout of my house doesn't accommodate well with one glass wall For example, if I placed the office and dining room on that wall, then the rooms would feel overly bright When studying, you want a calm light that your eyes can adjust to In a dining room, it isn't recommended to have a significant amount of light If I were to place the kitchen there, there would be less room for cabinets

Having three walls covered in glass completely doesn't allow me to utilize the space If I placed a living room in that opening, there would be no place to put a TV or fireplace. The room would be too bright for a dining room and doesn't accommodate well for a galley kitchen The space is too open, and it also faces the north, which means people would be able to see right in when approaching the house.

The third option accommodates well with my layout because I can place the kitchen dining and living room in the same area. This is the main focus of the house. You also enter the house will a wall to your left This helps the entrance feel like its own separate room instead of walking into one big room

Design Statement with Floor Plan

design statement describing what you have achieved through the floor plan on the third version of your floor plan

Floor plan 1

The first thing I did was flop the master bedroom to the other side of the wall (south wall) because I could tuck in the master bathroom better while still keeping the laundry and utility area close to the master room I also rearranged the kitchen, dining, and living area Since the living room is the biggest room, I wanted to make sure I used my space efficiently I wanted the kitchen and dining room adjacent to each other and the thick wall allowed me to create the galley kitchen while also creating a space for an entryway I also needed to find a way to easily access the bathroom without putting it right in the main hangout area Since the office and bedroom, 2 are larger rooms, I was able to tuck the second bathroom away, that way you feel like you have more privacy The bathroom is still in the perfect position, right next to the main hangout area and right off the second bedroom

Floor Plan 2

I switched the office and second bedroom because the second bedroom allowed me to have a longer wall in the kitchen area. Since the office wall is shorter than the bedroom, I felt like the shorter wall still allowed the small space between the thick entry wall and the office wall to feel open and roomy. I didn't want that area to feel super enclosed or claustrophobic. I flipped the dining and living area because I didn't want people to walk right into a table Instead, I wanted the space to feel more open and inviting. Dining tables are also more formal and don't need to be in your direct view when walking into a house Putting it to the side allowed it to have a more sacred atmosphere I kept the same layout of the master, bathroom, and utility area, however, I did rearrange the dimensions of the rooms to help it flow better This floorplan is very open and all of the private areas are visible from the open areas

Floor Plan 3:

When drawing this floorplan and fitting this layout with my client’s needs and desires, I first noticed that there was only one bathroom drawn in this first floorplan I still really liked the layout and wanted to adjust it to accommodate my client's needs better I ended up leaving the kitchen, living, and dining in the same area, but I resized them to utilize my space more effectively When entering, I added a wall to both sides The entrance is slightly narrow but I feel like shoe cubbies within the thick wall and adding tall mirrors might be a way to make the space feel more open I could also add arches on the wall that leads to the dining room This would make the entryway not feel so tight and would open up the layout slightly.

To the left, I added the laundry room because that opened up a better flow of the master suite and allowed me to add in that missing bathroom. I wanted the laundry room near both bedrooms and I felt that that was the best space because I didn't want to put the restroom right next to the entrance.

My clients are morning people and would enjoy having windows in their master suite that face the sunrise They would prefer to have a kitchen that is open where people can easily get in and out. They request a larger porch attached to the back of the house so that they can sit outside and watch nature They don’t necessarily need a TV but aren’t opposed to having one Would like a couple of fireplaces because they enjoy the crackling noise. Having a large window in the living area is a must They would like hardwood floors and a monochromatic color on the walls throughout the house They must have lots of natural lighting and a place that feels calm They will have grandkids over frequently and occasionally will host gatherings. They will spend the majority of their time together in the living room, kitchen, and outdoors They don’t want a whole mixture of colors, and would like to keep the design simple. They also request that there is plenty of wall space to hang paintings.

design statement describing what you have achieved through the floor plan on the third version of your floor plan

When walking through the door there will be walls on each side of you that extrude to the ceiling. This will provide wall space where Mr. and Mrs. Fox can hang their paintings. Straight ahead you will see a living room that looks out into an open field. Once past the entrance wall, you will see an open floorplan style, where the main living areas (kitchen, dining, and living room) are closely together The kitchen overlooks the living room so that whoever is cooking at the time is still able to engage in conversations that are happening in the living room or dining room The kitchen is very functionable, you can access the kitchen from both sides Since there will be lots of activity when the grandchildren are over, I made sure you could easily get what you need For example, if the fridge door is wide open, one could easily walk to the other side of the kitchen and enter that way I also extended the countertop to create bar seating along the edge of the counter Since Mr and Mrs Fox love to cook, I thought adding more countertop room would benefit them Right off the kitchen is the dining room The table is out of the way for a more private and formal setting while still being easily accessible from the living room and kitchen Adjacent to the living room is an office The office will most prominently be used by Mr Fox who will often utilize this space throughout the day when Mrs Fox sits on the couch to read her book Two couches occupy the living room One couch faces the windows so that Mrs Fox can enjoy the scenic views

Down the hallway, you will first come to the guest bathroom on your right In the guest bathroom are skylights that provide lots of natural lighting since there are no windows in this room The bathroom is close enough to the main gathering area for guests while still being tucked away.

Down the hallway, and on your right again, will be the guest bedroom. The guest bedroom has a queen-sized bed that will easily sleep 3 young kids. This will be handy for when the grandkids stay overnight.

At the end of the hallway will be the utility and laundry room. The laundry room has natural light from the window and countertop space to fold laundry. The laundry room is also in between the master bedroom and guest bedroom so that you don’t have to carry your loads of laundry very far.

When walking back to the living room area you will come across a door on your right This will be the master bedroom The master bedroom has two large windows that face the sunrise Mr and Mrs Fox enjoy waking up to the sunrise every morning In the middle of their suite is a wall where a fireplace sits inside of that wall This wall adds privacy from the bathroom and closet so that you can't see directly into those rooms In the suite, you have a nice walk-in closet and a bathroom right next to the closet The master suite also has a door that leads to a patio Mr and Mrs Fox love being a part of nature Every day they will sit outside to watch the wildlife, sunset, or storms blow through

Floor plan with 1’=1/4” scale

Tom and Glenda Fox have decided it's time to retire from their oil company and enjoy their lives together Tom and Glenda were always on the go, as their company had high demands They are ready to find some peaceful property in a rural area where they can relax and enjoy scenic views The Fox’s are morning people who enjoy drinking hot coffee outside or on the couch while watching the sunrise They both are fascinated by watching nature and wildlife and would love to have a big window to look out of Their favorite times of the day are when the sun is rising and when the sun is setting They love the bright warm colors created by the sun They enjoy watching nature, beautiful views, and thunderstorms that roll in They find these views to be very calming, relaxing, and entertaining The Oklahoma Prairies are the perfect place for them, as they have always dreamed of living on lots of acreage. The prairies have a large variety of animals and direct access to the highway in case they need to get somewhere quickly

They lived a lavish lifestyle in the city and both are ready to declutter and live simply. They prefer elements that connect with nature to create an organic feeling throughout their home They want their house to feel calm, relaxing, and welcoming

Throughout the day Tom likes to read magazines in his office while Glenda sits on the couch to read books and looks out at the gorgeous views Together, they enjoy cooking and yoga Tom is often joins Glenda in the kitchen Since their land on the prairie is away from the city, they will only be leaving once a week to go into town for groceries. They like to buy in bulk to verify they have enough goods for cooking each day

Tom and Glenda are very family-oriented and often have their grandkids visiting. They have three grandchildren, ages 7-13, who spend the night each week on Thursdays When the grandkids visit, they like to hang out in the kitchen and living area or outdoors When in the kitchen, they bake cookies and assist Grandma with lunch They congregate in the living room to play board games or talk When outside, the kids like to run around the land with the golden retriever, Harry When the sun goes down they make smores around the firepit The grandkids are rowdy at times and Mr and Mrs Fox request that the second bedroom be close by but not right next to the Master suite.

Tom and Glenda request that there be plenty of natural lighting throughout the house They would like an open floorplan, but not too open Wall space for their artwork is a must They have a simplistic and minimalist style and like everything to be clean

Entrance:

i List of Fixtures: Long and narrow Not too bright, a nice accent wall with wall art

ii. List of Behaviors: Welcoming environment, not overbearing. Simple and elegant.

iii List of Contextualized Needs: An enclosed space that opens to an inviting floor plan A place to be greeted

b. Living room:

i List of Fixtures: Large windows, a fireplace, couch, ottoman

ii List of Behavior: An open space with plenty of views Natural lighting is key Calm and relaxing

iii List of Contextualized Needs: Connected with the outdoors

c Kitchen:

i List of Fixtures: Refrigerator, oven, microwave, dishwasher, sink

ii. List of Behaviors: Inviting, open, easily accessible, not enclosed

iii List of Contextualized Needs: To be able to engage with people in the living room To have plenty of space for cooking and food prepping

d. Guest Bathroom:

i List of Fixtures: toilet, tub, sink, vanity, faucets

ii List of Behaviors: natural lighting to feel a part of the environment, calming, clean

iii List of Contextualized Needs: Plenty of lighting for getting ready Will need to feel like they are in a private space when in the bathroom

e Guest Bedroom:

i List of Fixtures: Bed, nightstand, window, closet

ii. List of Behavior: Relaxing

iii List of Contextualized Needs: A place to sleep, private

f Master Bedroom:

i. List of Fixtures: bed, nightstand, dresser, back door, windows, big closet, bathroom, fireplace

ii List of Behaviors: Relaxing, connecting with nature

iii List of Contextualized Needs: A place to sleep, outdoor access, calming

g Dining:

I List of fixtures: Table, chairs

Ii List of Behavior: Will be eating or crafting, want different types of lighting for different settings

Iii Contextualize Needs: wants to feel a part of what's going on in the kitchen while still having private space. A place to gather and eat.

g Office:

i List of Fixtures: desk, chair, bookshelf, window

ii List of Behavior: A place to study, focused, quiet

iii List of Contextualized Needs: Lighting, quiet atmosphere

d Laundry:

I List of Fixtures: washer, dryer, countertop, window,

ii. List of Behavior: Loud machines, a place to clean and organize

Iii Contextualized needs: Away from everything, secculuded, tucked away

AXO - SOUTHWEST

My students in IARD1045 Fundamental Design Methodology experience fundamental design skills, use of precedents for understanding principles of design and natural and formal ordering systems, design development using both iterative and alternative methods of exploration in 2-dimensions and 3-dimensions using analog and digital tools, and continued development of visual and verbal communication skills.

Turn static files into dynamic content formats.

Create a flipbook
Issuu converts static files into: digital portfolios, online yearbooks, online catalogs, digital photo albums and more. Sign up and create your flipbook.