6Degrees

Page 1


Hassan Sharif Museum

Professor: George Newlands

Partner: Roula Alnidawi

Site: Dubai, UAE

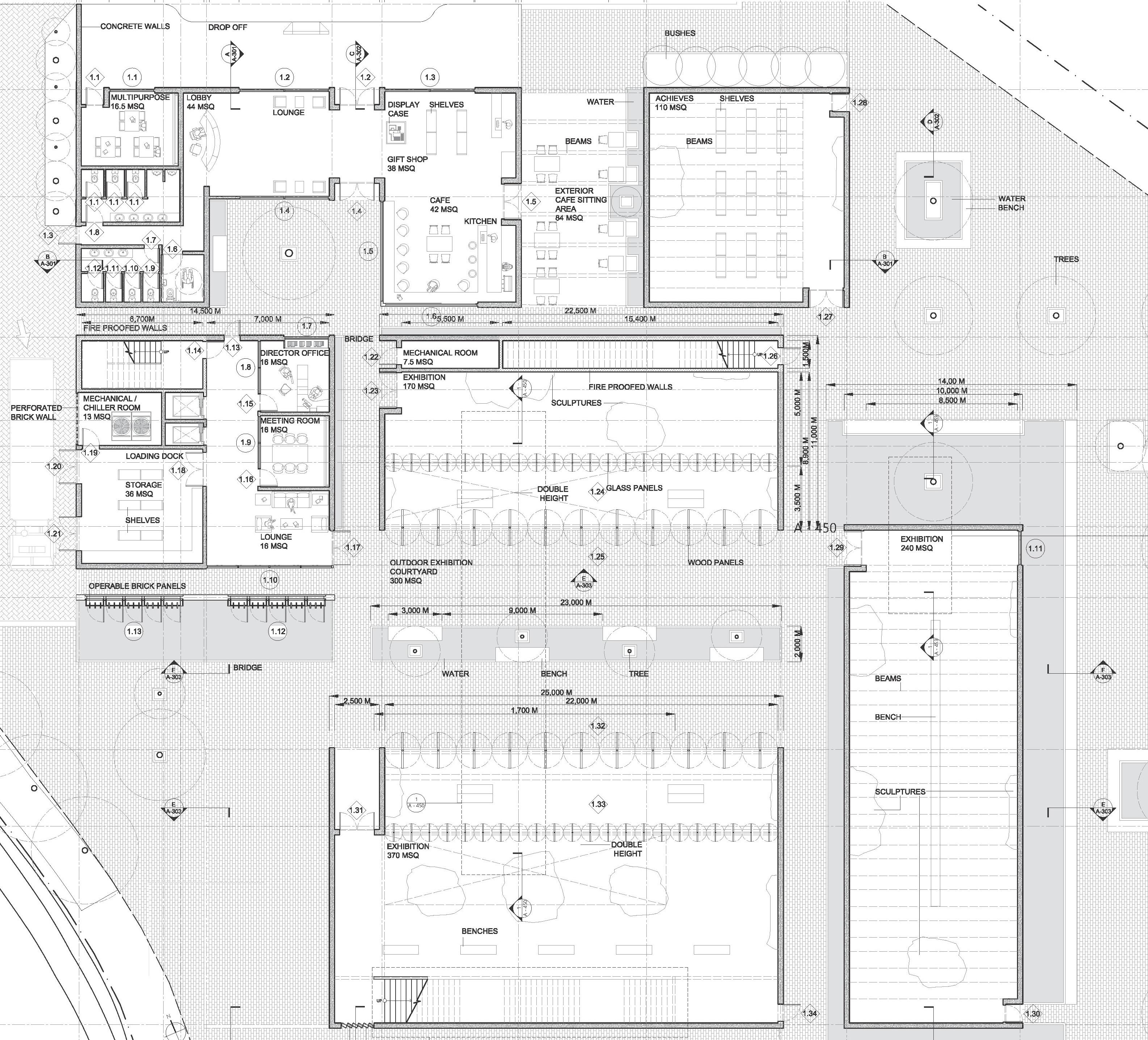
This museum honors Emirati artist Hassan Sharif. It sits on a man-made island in Dubai, accessible by a vehicle bridge, and surrounded by the Versace Hotel, Art Jameel, and residences. The program includes a lobby, four exhibitions, an archive, library, café, offices, and storage. The design draws from traditional Emirati Sikkas, narrow alleys, arranged around a central courtyard that evokes local urban patterns.

The layoutis a cluster formation organized along a main axis. Each exhibition is color-coded: white, yellow, red, and a dark/light room. In winter, the courtyard becomes an interactive space by opening large doors, merging it with adjacent galleries.

The gaps betweenbuildings reference the near by mangrove landscape, while a pavilion surrounded by water symbolizes the island itself. The roof is designed to filter sunlight during the day, and at night, exterior lighting placed on the roof provides ideal museum illumination.

This spatial and environmental sensitivity reflects both Sharif’s experimental spirit and the site’s natural context.

Rehabilitation of Turkish Hammam

Partners:

Site: Istanbul, Turkey

Our proposal for the rehabilitation of Istanbul’s historic Cibali Ayakapi Hamam, originally designed by the legendary architect Mimar Sinan, reimagines it as a vibrant center for agricultural innovation. By combining historical preservation with contemporary design, the transformed space will foster pioneering research focused on sustainable agriculture. The program integrates dynamic zones such as an inviting lobby, versatile multipurpose green areas, collaborative discussion spaces, an essential laboratory for research activities, and a café. Additionally, the preserved historical area of the hamam will house an interactive hologram room, highlighting the interplay between past achievements, and future possibilities. This adaptive reuse not only respects the hamam’s architectural legacy, but actively enriches it, creating an engaging environment dedicated to exploring the next frontier in agriculture.

Eternal Hearth Keeper

Individual Project

Site: Iraq Al-Amir, Jordan

It surpasses all wonders that a day goes by wherein the whole world is not consumed in flame. For concave mirrors turned toward the sun ignite more easily by its rays than does any other fire.

- Pliny, Natural History 2.239

In a world where electric light sputters, and fossil fuels dissipate, “Eternal Hearth Keeper” begins with a simple truth: Fire is life. The project imagines a future where fire, once a divine gift, returns to its sacred status, with the requisite keeper of the hearth. In other words, the project is designed for a distant future, where the world has gone dark, and fire resuscitates the potential to illuminate civilization. Five separate volumes float above an existing well, supported by an exoskeleton composed of scaffolding and circulation systems. While each volume encloses the various programs of a culinary school, consisting of a gathering area, a classroom, an administrative kitchen, a well, a columbarium for pigeons, and a dining room. Finally, the hearth-keeper’s house balances precariously on top of the entire apparatus, reminding us of fire’s fragility. As the main protein for preparing Hamam Mahshi bil Burghul (stuffed pigeon), the birds provide both sustenance for the village and fertilizer for the farms. Like an anatomical diagram of pigeon bones and organs, the spherical origins flatten, and slice into each other in response to the site’s steep topography and their individual uses. Not only does the building function as a culinary school, it also serves as a gathering space for the people of Iraq-al-Amir where villagers gather to develop other survival skills. This isn’t just about memorizing recipes or learning cooking techniques. It is intangible heritage, about passing down knowledge, keeping traditions alive, and finding warmth in community. As with the circularity of Pidgeon feces into farm supplements, the project maintains a waste control system which collects refuse to feed the fire. A parabolic mirror, patterned after the one Pliny mentions and Archimedes is said to have designed, stands ready to ignite the fire by solar rays, should the flame blow out.

Turn static files into dynamic content formats.

Create a flipbook
Issuu converts static files into: digital portfolios, online yearbooks, online catalogs, digital photo albums and more. Sign up and create your flipbook.