Architecture Portfolio

Page 1

SUNY

DELHI - ARCHITECTURE

DESIGN AND BUILDING

ARCHITECTURE PORTFOLIO
2022-2024
NICHOLAS MAN

RESUME

917-587-9940

nicholasman03@gmail.com

EDUCATION

-SUNYDelhi,Delhi,NY—(BT)ArchitecturalDesignandBuilding August2021-Present

WorkingtowardsanArchitecturedegree

VicePresidentoftheArchitectureClub(August2023-present)

-BenjaminN.Cardozo,Bayside,NY—Graduate September2017-June2021

GraduatedwithAdvancedRegentsDesignation

EXPERIENCE

-DolphinSwimming,Flushing,NY—SwimmingInstructor December2017-March2020

TeachKidsages7-16thebasicsofswimming Teachaboutwatersafety

-CommonpointQueens,LittleNeck,NY—Lifeguard July2022-August2022,June2023-August2023

Watchoverthesafelyofpeopleinapublicpool

Helpelderlyenjoythepublicpoolsafely

SKILLS

-AutoCAD

-Revit

-Photoshop/Illustrator/InDesign

-Sketchup

-Endscape/Lumion

-Microso Office

-3-DModeling

TABLE OF CONTENTS

MIX-USE PROJECT p.g 1-10 02 GLACIAL GATEWAY p.g 11-18 03 01 REMOTE FAMILY HOUSE p.g 19-26
53-24 Little Neck Parkway Little Neck, NY
MIX-USE PROJECT p.g 27-36 04

MIX-USE PROJECT

Delhi, NY

SPRING 2023

PROFESSOR HO

2 1

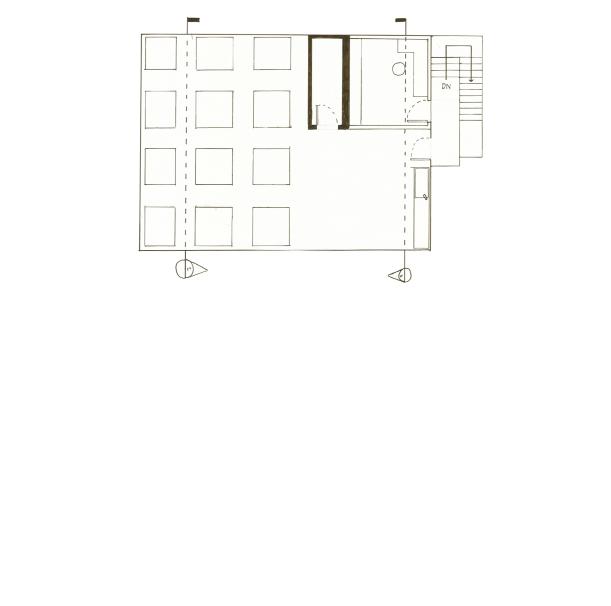
FORTH FLOOR PLAN

THIRD FLOOR PLAN

SECOND FLOOR PLAN

GROUND FLOOR PLAN

PROJECT OVERVIEW

This project was to design a building that has the opportinity to add addition housing space and commercial space that would help with the needs of the small village of Delhi. For the commercial space, I decided that a Taco Bell, Thrift store, and a nick-nack store

Muji would bring attraction while prices being low. The residential space holds one, 6 bedroom apartment, two 4 bedroom apartments, two 2 bedroom apartments, and one studio apartment.

SECTION 1

SECTION 2

3 4

The centralized floor plan allows an atrium design that also allows a large space for a lobby. With Delhi, NY being a largly forested area, multiple plant boxes with greenery and one large plant box for a tree helps the building feel like it belongs in its place. A large sky light is also placed to provide a vast amount natural sunlight for the indoor grennery and for the large lobby. All the floors are designed to be ADA Assessable with an elevator bringing you to every floor.

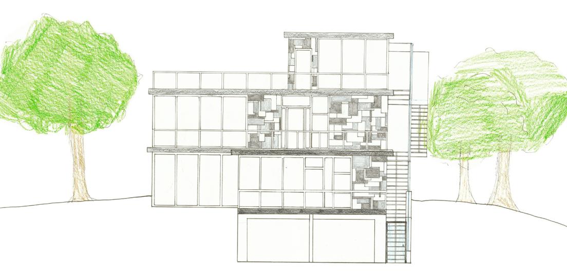
WEST ELEVATION
6 5
NORTH ELEVATION

The overall form of the mix-use building was inspired by a step-form which allows a great space for an outdoor balcony for every apartment and have a centralized floor plan. The entrances to the apartment is opposite to the entrances to the commerical side as this would allow more privacy for the residents as it is faced away from the street side.

EAST ELEVATION
SOUTH
ELEVATION
8 7
INTERIOR PERSPECTIVE 9 MODEL 10

GLACIAL GATEWAY

LEMON CREEK, JUNEAU, ALASKA

FALL 2023

PROFESSOR TWEED

11 12

PROJECT OBJECTIVE

This was a class base project to re-design a city and make it an urban-friendly and sustainable city in Juneau, Alaska. We used the existing site of Lemon Creek, Juneau, Alaska as our location and re-design the city. Each student was assigned a building which my building would be the first building of the proposed University. It’s determined mixed uses is an arcade, canoe store, and education buidling as it was appropiate for an urban-friendly environment.

SITE SECTION SITE PLAN SITE MAP
13 14

Along with the building, I was also assigned to work with my neighboring classmates and design the outdoor space. The existing site has a river that flows through Lemon Creek and with the previous quarry, debris has effected the rivers water. The solution to this problem, as well as tackling a firendly environment, was to implement a riparian edge. We then decided to bring some of the riparian edge closer inland to also harvest attraction. This then introduced the idea of a dock area for an addition outdoor attraction. Along the path, a basketball and tennis court was put an addition due to the courts being next to a campus and right off the main street.

EXPLODED ISOMETRIC 15 16
MODEL
17 18 EXTERIOR PERSPECTIVE

FARNSWORTH GUEST HOUSE

PLANO, IL

FALL 2022

PROFESSOR HO

PROJECT OBJECTIVE

This project focuses around the study of the Farnsworth House by Mies Van Der Rohe and designing a guest house for people to temporarly live and study the Farnsworth House. In doing so we had to do a site analysis and figure out the best optimal design and placement of the guest house. Our requirements were to have two bedrooms with each having a bathroom, closet space, and a private space for working as well as a livingroom, dining, kitchen and a shared space for two of the residents to have a space where they can work together.

20 19

SECTION A1

FLOOR PLAN
FLOOR PLAN
FLOOR PLAN 21 22
SECTION A2 1ST
2ND
3ND

With the Farnsworth House being close to the guest house, the design of the guest house was inspired by the open, glassy space the Farnsworth House has. The elevated platform was due to the flood zone as the guest house was placed in a 50-year flood plane. Being in a heavily forested area, a green roof was designed to make the house feel like its part of the area it is located in.

SOUTH-WEST ELEVATION SOUTH-EAST ELEVATION NORTH ELEVATION
23 24

INTERIOR PERSPECTIVE

EXTERIOR PERSPECTIVE MODEL

25 26
GREENBUSH,
27 28
REMOTE FAMILY HOUSE EAST
NY SRING, 2023 PROFESSOR HO
29 30
GARAGE LEVEL1ST FLOOR PLAN 2ND FLOOR PLANROOF PLAN SECTION 1
SECTION 2

The primary design would be the exterior staircase as this helps with the slope of the site as well as having a bigger space allowing a large open space in the livingroom which also allows a small “playgroud” for kids to run around. With the first floor being the most public space, ontop of the garage level, there is a complete separate structure which would act as the private space required for adults to work at home.

PROJECT OVERVIEW

This project was based around the recent occurance of covid-19 and the quarantine situation. Many familys around the world were affected and had to balance between work at home and taking care of children. We were required to design a 4 member family house primarily focusing on the private vs. public space that is required for work at home experience

31 32 NORTH ELEVATION
SOUTH ELEVATION
33 34
EAST ELEVATION WEST ELEVATION

EXTERIOR PERSPECTIVE

35 36
MODEL

Turn static files into dynamic content formats.

Create a flipbook
Issuu converts static files into: digital portfolios, online yearbooks, online catalogs, digital photo albums and more. Sign up and create your flipbook.