INTERIORARCHITECTURE
Portfolio
NedaInsodaite

![]()

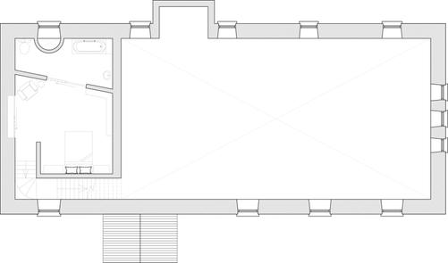
BALLYFARNONISACHURCHLOCATEDINCO.ROSCOMMON, IRELAND.THEBRIEFFORTHISPROJECTTODESIGNAPRIVATE SPACEFORADESIGNOFOURCHOICE.
THEDESIGNERTHATICHOSEFORTHISPROJECTISVINCENT VANDUYSEN.ICHOSEHIMBECAUSEILIKEDHISMINIMALISTIC DESIGNS.THISPROJECTISINSPIREDBYHISCASAMPROJECT IN2019.
MYCONCEPTFORTHISPROJECTISSHAPEANDFORM.I WANTEDTOFOCUSONDIFFERENTSHAPESANDCURVES, WHICHISSEENINTHISPROJECT.




KEY:
1.STUDYSPACE
2.BATHROOM
3.LIVINGROOM
4.KITCHEN
5.BEDROOM
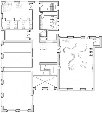
FIRSTFLOORPLAN KEY: 1.STUDYSPACE

2.BATHROOM
3.LIVINGROOM
4.KITCHEN
5.BEDROOM





GROUNDFLOORPLAN


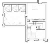
INTERMEDIATEPLAN
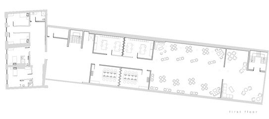
FIRST FLOOR PLAN



















