

Oh, that you would bless me and enlarge my territory! Let your hand be with me… 1 Chronicles 4:10
Dear Close Friends,
For over 55 years, Feed the Hunger (formerly New Directions International) has been based in the Burlington, North Carolina, area. Over all these years, countless lives worldwide have been touched through your prayers and support, and we are most grateful for you and your partnership. Together, we are one family—a Feed the Hunger family united through Christ to serve and make an eternal impact.
The book of Ecclesiastes reminds us that there is a time for everything (3:1). As Feed the Hunger has grown to keep pace with its mission of feeding the spiritual and physical hunger of the needy, especially at-risk children, we now struggle with the limitations that our current facility and location have put on that growth. Through prayerful and careful consideration, examination of current operations, programs, and the ever-increasing unmet needs shared by our partners, the Board of Directors and staff have concluded that the time has come to expand our footprint to better meet these needs for God’s glory.
The need for this expansion is four-fold:
• Growth—We need to be around a larger number of people in general, and churches in particular, to meet the growing need for global outreach.
• Standard of quality—We are known for having a superior standard of excellence in conducting food packing events that our present warehouse struggles to match.
• Functionality—It is hard for trucks to navigate our current parking lot. Additionally, not having loading docks and sufficient temperature-controlled warehouse space decreases efficiency
• Consolidation of space—We need the necessary office, warehouse, and packing space on the same property to serve staff, shipping, and Packathon commitments.
Our presence will continue in Alamance County through staff residences, new office space: 2505 S Mebane Street, Suite D, Burlington, North Carolina 27215, nurturing pre-existing partnerships, and ongoing Packathons. So, as we continue to stand on the shoulders of our founders, Dr. J.L. and Patt Williams, relocating our headquarters is the next major step to fully focus on what God has called us to do: feed the spiritual and physical hunger of the needy.
When we started praying and looking for a new location, we listed the following primary needs:
• Larger population center
• Near Interstates 40 and 85
• Approximately 30,000 square feet for warehouse, permanent packing, and offices
• Sufficient space for parking and shipping operations
And then, praise God, He provided a buyer for our facility. We sold at the end of 2023 after a unanimous Board vote and went under contract for a property in Greensboro that checks these boxes. Between the sale and the purchase of a new property, $3.37 million will be needed to make this expansion possible. Just as it takes all of us working together to feed the spiritual and physical hunger of those in need, your prayers and financial support are crucial as we move forward in this expansion that will further advance the mission. We are excited to share this journey with you and invite you to partner with us so that we can reach even more lives for Christ.
Serving with you,
After 55 years in the Burlington, North Carolina, area, Feed the Hunger is moving its headquarters 20 miles west to Greensboro to expand the ministry’s outreach (a satellite office will remain in Burlington). Operating out of a betterequipped facility in a larger metropolitan area will allow us to touch more lives for God’s glory. Through selling the previous property and receiving a favorable bank loan, we purchased a 37,500-square-foot facility at 1200 East Lindsay Street in Greensboro in March 2024. Now, Feed the Hunger is looking for funding partners to settle this $3.37 million goal so that we can fully focus on expanding the outreach to impact more lives, feeding the spiritual and physical hunger of the needy, especially at-risk children.
What started as a mission trip to Mexico led by J.L. and Patt Williams in 1968 quickly morphed into an interracial singing group and later to a cross-cultural ministry, which continues today. While outreach methods have changed over the years, the mission has remained the same. For over 55 years, the lives of the suffering and most vulnerable around the world have been transformed, and hope for a brighter future has been given to them through the faithfulness of God and Feed the Hunger’s committed partners and supporters.
Starting an interracial singing group at the end of the Civil Rights era without funding
Taking the message of Christ to unreached ethnic groups in tough and dangerous locations
Executing nationwide food-packing events and global foodshipping operations
Changing our ministry name after 45 years to better reflect God’s calling
Holding large Packathons in the middle of a pandemic using novel safety procedures
Expanding with added staff, packing, and warehouse space near Charlotte, Dallas, and Houston
“Having personally seen in Bangladesh how much our partners have used our food to open doors for ministry, I’m more convinced that we had maxed out our current location for packing, storage, and shipping. Our partners have been urging us to send more food, Hygiene Packs, and school supplies. It’s exciting to think that the Greensboro facility will provide exactly what is needed to help meet the many pressing needs among at-risk children and others in crisis.”
—Patt Williams, ministry co-founderThe Lord has done this, and it is marvelous in our eyes.
Psalm 118:23
Our food packets give us access to communities where we otherwise would not be allowed. While in Bangladesh, our team was invited into the country’s two largest brothels, one housing over 2,000 women and their children. These women live in horrific conditions in alleyway-like slums. Once in the brothel, women are not allowed to leave.
These meals were a lifeline for these women and children during the pandemic and continue to be vital in keeping them alive. What started out as just a meal has led to Bible distributions, schools being built in the brothels, and young girls rescued from the brothels by our partner and given hope for a different future! At a safe house, they continue to receive nutritious meals, an education, psychological support, and freedom to just be kids. As needs increase around the world, the need to produce more meals also increases. We are thankful for your interest in supporting our mission to feed more at-risk children across the globe!
“Thank you for the Bible. As a Muslim, I have been reading it secretly. I like what I read from it. It teaches me about life, keeps me up in whatever I do, and helps me not give up on God. The Bible can lead one to heaven, and I am very lucky to have one. It teaches me things I wouldn’t have known about God, morals, manners, and prayers, which is the key. Although I am a Muslim, I enjoy reading the Bible, not just to know God but to know more about Him and to believe in Him.” —College student in Ghana
Our partners across the world contact us for immediate assistance when natural disasters strike. One such request came after a devastating fire broke out last spring in the Rohingya refugee camp in Bangladesh. (It is the largest refugee camp in the world—home to around 1.2 million Rohingya Muslims who fled their home country of Myanmar due to extreme persecution. Now living on just 600 acres, they face unsanitary conditions and lack access to clean water and nutritious food.)
Unfortunately, the fire left at least 12,000 people homeless, and many went missing. Aid and Relief funds allowed our partner to purchase clothing, blankets, mosquito nets, bedding, kitchen utensils, and soap to distribute to families who lost everything. Thankfully, our partners had already been working in the camp to equip refugees with wells, Feed the Hunger Meal Packs, Hygiene Packs, Bibles, and educational opportunities. The needs are more than we can currently meet, which is why expanded capacity on our end is greatly needed!
“My name is Surangika and I am 7 years old. I thank you so much for giving me the bag, stationery, and food! I am so happy! My parents find it hard to buy these for us. This will be very helpful to use when school starts. Thank you so much once more.”
—Sri Lanka student
Edu-Packs for Kids in Sri Lanka“Greetings in the name of Jesus. My name is Mosa and I study in class five. I’m very thankful for those who provided me this Bible. I share with my siblings at home the story of how Christ died on the cross. I also pray to God for those who provided me this Bible: “Holy Lord and Creator of skies and everything, I am thankful for this Bible. Loving Father, thanks for those who provided us this Bible; touch them all and bless them all. Amen.”
—Bible recipient in Pakistan
“During these challenging times for Ukraine, we strive to offer nourishing meals to those in need. Our compassionate staff and volunteers exemplify God’s loving provision and support. Every day, we extend warm hospitality to Internally Displaced Persons and homeless individuals who seek refuge at our care center in Odessa. Through Feed the Hunger, we provide meals that not only satisfy hunger, but also offer depth of nutrition. Our goal is not only to provide sustenance and hope, but also to share the love of Christ and offer eternal salvation to those in need.”
“Feed the Hunger’s commitment to providing Hygiene Packs to needy children in Sri Lanka is greatly appreciated. Children’s lives are definitely improved by this. It is a reminder of the importance of personal cleanliness and hand washing, especially for those who live near the beach and are prone to flood-related illnesses. Financially distressed people do not always have access to soap, water, and other personal care items. The children know the importance of brushing their teeth and washing their hands after receiving these packs. Their parents told us that now they enjoy brushing their teeth and taking care of their personal hygiene with enthusiasm. They also wash their hands with much happiness, which is a good sign that they understand that washing hands will stop the spread of bacteria and sicknesses.”
—Sri Lanka partner“Abduali is a Fulani herdsman who lives with his wife, Amina, and four children in southern Ghana The family is poor and could hardly provide for their children’s education and health needs. For lack of funds, their children had not been to school for a while. Thankfully, we have provided them Edu-Packs for school needs, including feeding support to keep them in school. Two boxes of Feed the Hunger rice and beans have been given to the family, for which they are grateful.”
—Ghana partner
20 million of those meals were packed in under four years. It took 10 years of packing to cross the 25-million-meal mark.
Worldwide, we are witnessing significant cultural changes and challenging times brought about by persecution, poverty, and conflict. God is using Feed the Hunger and its family of partners and supporters to meet these needs and impact lives for His Kingdom.
Feed the Hunger has already grown and added staff, packing space, and warehouse space near Charlotte, Dallas, and Houston.
Despite a substantial reduction in global poverty over the last 30 years, the COVID pandemic and a string of regional conflicts have stalled progress in many areas and reversed progress in others. This means over 700 million people are struggling with hunger and poverty, with some 70–90 million of these because of the recent increase in need. And children are more than twice as likely as adults to live in extreme poverty.
As we diligently strive to meet increasing needs, we have maxed out our capacity due to inadequate facilities and location (see 2023 Packathon statistics and financial data). At the same time, South Africa, Bangladesh, and other partner countries need DOUBLE the food we are sending them.
Our partners repeatedly tell us that our food is the tool that opens doors to the Gospel. As needs (and opportunities) continue to multiply, Feed the Hunger must also advance with growth to meet these needs. A new facility with better production capacity (and ability to contain costs) and a location with greater population and visibility will help overcome these limiting factors. It will also help us expand brand awareness, build a larger community, and raise funds to impact more lives for Christ.
*Unaudited. **Includes sale of current Feed the Hunger headquarters for $900,000; applied to purchase of new property.
• Greensboro has the fourth-most churches per capita of any city in the nation, giving us fertile ground to pursue church partnerships.
• It is in the county immediately to our west and only 20 miles from Burlington.
• It is the third-largest city in North Carolina (behind only Charlotte and Raleigh).
• It is also the closest major city to Burlington and its population is five times larger: Greensboro: 302,000 (Guilford County: 557,000)
Burlington: 61,000 (Alamance County: 177,500)
• Interstates 40 and 85 go through Greensboro and Guilford County, making for convenient shipping and ministry operations.
• It brings us to the heart of the Piedmont Triad and close to two other large cities:
Winston-Salem: 256,000 (30 miles)
High Point: 114,500 (20 miles)
Total metropolitan area population: 1.7 million
• It is near several airports we frequently use for ministry travel:
Piedmont Triad International (15 miles)
Raleigh/Durham International (65 miles)
Charlotte Douglas International (90 miles)
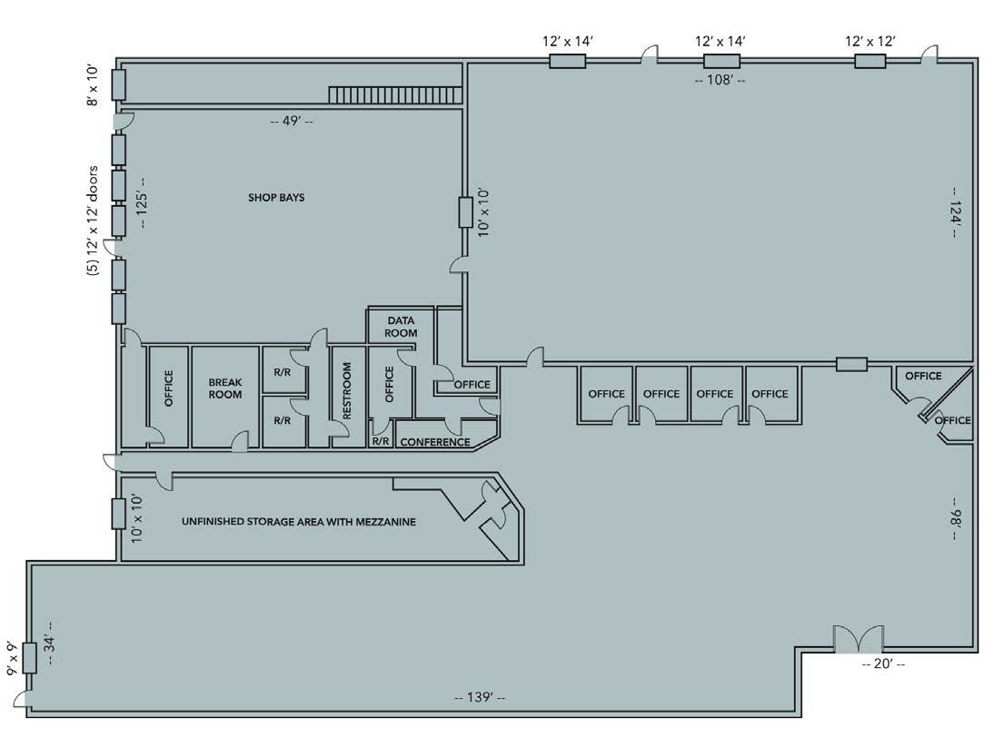
• 1200 East Lindsay Street Greensboro, NC 27405
• At the crossroads of US Highways 70 and 29
• Convenient to Interstates 40 and 85 (3 miles away)
• Only 22.5 miles (a 25-minute drive) west of our current headquarters
• 160,000+ population in a five-mile radius
• 4 acres, with over 1,000 feet of road frontage
• Totally renovated, paved, and fenced
• Plenty of parking and space for delivery trucks
• 37,500 square-foot building (over 31,000 square feet with HVAC)
• Warehouse, offices, and permanent packing space
• Two billboards
Is this a relocation or an expansion of our headquarters?
This move is an expansion. Just as we have added staff and ministry space near Charlotte, Dallas, and Houston, we want to expand to another larger city to have broader access to more churches, businesses, volunteers, etc.
Why not build a new construction instead?
A new construction would have to be smaller than a pre-existing space to reduce initial costs, and even then, it would still cost more. We received an estimate of $3.6 million for the cost of purchasing land and building a basic 20,000 square-foot space.
Why not renovate the current property in Graham (approximately 16,000 sq. ft.)?
Even if we completely renovate the current headquarters, it does not resolve parking space or adequate room for trucks to navigate. The property is simply not large enough, and there isn’t the possibility to expand in any direction.
Why not relocate elsewhere in Alamance County?
Staying where we are does not resolve the fact that we need to be located within a much larger metro population to help us meet our growing needs and the ever-increasing needs of those suffering around the world. Burlington is the seventeenth-largest city in the ninth-largest state. Greensboro is the thirdlargest city and close to #5 (Winston-Salem) and #9 (High Point). We are already growing our footprint in #1 (Charlotte).
Was renting space a viable option?
The Board of Directors decided it was more favorable to purchase an asset for the ministry (own the property) rather than give an indefinite flow of substantial rent payments to someone else. We also believe this will be our long-term headquarters, so it makes sense to purchase rather than rent for several years or decades.
How much of our existing support base is in Alamance County?
Since 2010, 18–22 percent of total annual revenue has come from this county. We do not view this as a small percentage and are committed to continuing to nurture these faithful supporters.
What presence will remain in Alamance County to help with nurturing?
For the foreseeable future, we will continue here with the following: office space, staff residential presence, pre-existing partnerships, and ongoing Packathons.
Will there be a capital campaign for the new location?
We know debt is not ideal (Proverbs 22:7b). By God’s grace, we have been debt-free for a few years now and have a three-month operational reserve. Regardless of the how or the where of this move, without God bringing us a seven-figure provision (which He can do), a period of bank financing is necessary. The Quiet Phase of Expand the Outreach began in January 2024 to start eliminating this debt. Our Board of Directors has led the way, and all Board members have pledged to support the campaign.
This decision was made through prayerful and careful consideration, examination of Feed the Hunger’s operations, ministry projects, increasing unmet needs globally, our growth projections, readiness for a campaign, and months of deliberation and seeking wisdom. We serve a BIG GOD with limitless resources (Psalm 50:10). We believe by faith He will meet this financial need, whether through one ministry supporter or hundreds of supporters. We pledge to be sensitive to however the Lord leads throughout this journey.
Commit to the Lord whatever you do, and he will establish your plans.
Proverbs 16:3
As with all we do, we are seeking and following God’s direction in this Expand the Outreach campaign. His ways are different than our ways . . . and better! Thus, we are doing something different at Feed the Hunger for this giving campaign.
We are not utilizing a massive “campaign” structure that turns the focus of Feed the Hunger away from providing hope for brighter futures and changing lives for Christ. Our focus will remain steady on feeding the spiritual and physical hunger in the needy, especially in at-risk children.
We are raising funds in a manner that fits with Feed the Hunger and our family of prayer partners and supporters.
As we move through the first phase, the Quiet Phase, of the Expand the Outreach campaign, we are visiting with individuals, honoring their meeting preference (in person, virtual, by phone, or over email). We are sharing the plans, answering questions, gathering feedback, and asking people to consider making Leadership Commitments to Expand the Outreach.
Leadership Commitments of financial support from key individuals, businesses, and foundations play an important role in the success of the campaign. Feed the Hunger is blessed to be united with co-workers for Christ who are striving together to advance His Kingdom. We celebrate our Board of Directors, who have all committed financially to supporting the campaign, and others who pledged their leadership gifts. These Leadership Commitments provide a unified base of support as we expand our requests, seeking those with a willing heart to reach the most vulnerable around the world, impacting lives for Christ.
As we move into the Public Phase, we will celebrate achieving over 75–80 percent of our goal and announce the campaign publicly.
Feed the Hunger will share the overall expansion plan, and the ongoing success of the campaign, through various outlets including hosted gatherings. We will also create opportunities to request support from those who have not yet committed financially.
Investing in the Expand the Outreach campaign means far more than relocating the Feed the Hunger headquarters. It is an investment in expanding outreach and increasing our capacity, and ability to meet the ever-increasing needs of those suffering and share the love of Christ.
In Exodus 35, God’s plan for the Tabernacle was understood, and those with willing hearts brought forth their gifts and skills all for the work of the Lord.
)
As you prayerfully consider giving, please note that our annual Operations Budget is $1.6 million. Therefore, we ask that your potential participation in this campaign not affect your regular giving to the ministry. This is a working goal. Estimates are as of March 1, 2024.
The charts below demonstrate one path to meet the funding goal. God can use and multiply any size gift at any time, and even deliver gifts larger than $500,000 as He speaks to hearts to give their best gift. Giving our best gifts together will produce a dynamic outcome as we Expand the Outreach in His Holy name.
Quiet Phase (two-year pledges)
Public Phase (two-year pledges)
• See what God is doing and where He is working. Ponder the history of progress and growth of God’s work in and through Feed the Hunger and its family of partners and supporters.
• Comprehend the needs of those suffering around the world. Consider how God is using Feed the Hunger and its partners to share the love of Christ and impact lives around the world for His Kingdom.
• Seriously and prayerfully consider the importance of expanding the outreach— people are suffering and need to know and experience the love of Christ.
• Consider the Expand the Outreach plan, its importance, and its impact in lives today and for eternity.
• Understand the importance of Leadership Commitments and participation with gifts of all sizes.
• Prayerfully seek God’s leading in how you will engage and respond to this effort through your commitment to give.
• Respond to God’s leading.
• Pray for, commit to, and invest in the Expand the Outreach campaign.
Expand the Outreach is the next major faith step to broaden what God has called you and us to do together: demonstrate the love of Jesus by feeding spiritual and physical hunger, especially in at-risk children. Successful achievement of our $3.37 million goal will ensure Feed the Hunger is equipped and positioned to keep better pace with the ever-increasing needs of those suffering around the world.
Faith is the evidence or confidence in the things not yet seen (Hebrews 11:1), so we want to be found faithful! As believers, we know that “without faith, it is impossible to please God” (verse 6). As Feed the Hunger faithfully follows God’s direction to expand to reach even more in His name, we ask that you consider financial support of Expand the Outreach.
Multiple opportunities are available for you to help Expand the Outreach and realize tax and income benefits for yourself or your business. Please prayerfully consider the following to make your most effective gift:
Cash gifts now or pledged over a two-year period. A pledge often enables supporters to contribute a larger gift by spreading it over an extended period.
Stocks, bonds, real estate, life insurance, charitable trusts, or other forms of securities.
There is also the ongoing opportunity for Legacy Giving beyond the scope of the campaign.
Please also help us Expand the Outreach and impact lives for Christ by:
• Sharing this proposal with people you know
• Host a home meeting where we can share this proposal in person
• Schedule a visit to see the new headquarters (move-in scheduled for April 2024)
• Come pack food at the open-house Packathon
Your support matters! Together we can Expand the Outreach and impact more lives!