Vollversion_2024

Page 1

NIANRU BEI PORTFOLIO

SELECTED WORKS

2020-2024

+49 15238430886
59, 52072 Aachen 2 / 49
nianru.bei@outlook.com
Lousbergstraße

INHALT

1. adaptive Gemeinschaftshäuser

Flexibilität und Nachhaltigkeit im Wohnungsbau

Typologie: Wohnungsbau

Nominierung zum Euregionaler Architekturpreis 2024

2. Zirkulär

Kreislaufgerechtes Entwerfen und Konstruieren

Typologie: Bürogebäude, Falkultätsgebäude

3. Futur[AHR]

Ahrtal nach der Flutkatastrophe

Typologie: Masterplan, Stadtzentrum

4. Finkenstraße Olpe

Umbau der Fabrikhallen als Erweiterung des Koch's Hotels

Typologie: Gewerbe, Hotelbau

5. Schwebebahnmuseum

Museum in Wuppertal Zoologische Garten

Typologie: Museum

6. bewegliche Kuppelstruktur

transformable architectures Typologie: parametrisches Entwerfen durch Programmierung in Grasshopper 04-15 16-29 30-37 38-43 44-47 48-49 3 / 49

adaptive Gemeinschaftshäuser

Flexibilität und Nachhaltigkeit im Wohnungsbau

Nominierung zum Euregionaler Architekturpreis 2024

Prof. Hatwig Schneider

Lehrstuhl Baukonstruktion RWTH Aachen

09.2023 - 02.2024

Die Gesellschaft und das Leben der Menschen unterliegen einem steten Wandel: Die demografische Verschiebung in städtischen Gebieten, zunehmend dynamische und diverse Lebensstile sowie verändernde Wohnstrukturen fordern eine Neuausrichtung des Wohnkonzepts.

Größenveränderbare Wohnungen bieten Flexibilität, um auf diese Entwicklungen einzugehen. Sie fördern langfristige Wohnverläufe, den Aufbau von Gemeinschaften und effiziente Raumnutzung, was sowohl wirtschaftliche als auch soziale Vorteile mit sich bringt. Flexible Wohnkonzepte ermöglichen Vielfalt und erfüllen die unterschiedlichen Bedürfnisse verschiedener sozialer und Altersgruppen. Sie unterstützen generationenübergreifende Wohngemeinschaften und fördern soziale Vielfalt und Integration.

Die Stadt Aachen hat das Thema nachhaltige Wohnraumentwicklung aufgegriffen und das Konzept 'Bauen und Wohnen in Gemeinschaft' als Handlungsleitfaden formuliert. In diesem Kontext habe ich für meine Abschlussarbeit ein Grundstück in Aachen ausgewählt. Dabei liegt der Fokus auf der Umsetzung flexibler Konzepte, sowohl in der räumlichen Gestaltung als auch in der Bauweise. Das übergeordnete Ziel besteht darin, auf diesem Grundstück möglichst viele bezahlbare, bedarfsorientierte und hochwertige Wohnräume für verschiedene soziale und Altersgruppen zu schaffen, die Bildung widerstandsfähiger Gemeinschaften zu fördern und gleichzeitig die Attraktivität des urbanen Umfelds zu steigern.

4 / 49

Ortsanalyse

Planungsrecht - stadtlich städtebauliche Anforderungen

Für das Grundstück gilt ein gültiger Bebauungsplan. Dieser schützt die Frischluftzufuhr vom Westpark in die Innenstadt, indem er vorschreibt, dass Bebauung an der Nordseite der Lochnerstraße mindestens 10 Meter von der Grundstücksgrenze entfernt sein muss. Die Platanen an der Lochnerstraße sollen erhalten bleiben, um die Straßenqualität zu bewahren. Eine Radvorrangroute von der Welkenrather Straße zur Lochnerstraße ist geplant. Es gibt derzeit keine festgelegten Anforderungen bezüglich der Geschossflächenzahl (GFZ) oder der Grundflächenzahl (GRZ).

Legende

Baulinien

Frischluftbahn

Platanen

zu erhalten

Radvorrangroute

5 / 49

ortsbedigtes Konzept

Vorgartenzone EG

Die Vorgartenzone im Erdgeschoss wird effizient genutzt, indem die zurückgesetzten Flächen optimal genutzt werden. Zusätzlich bereichert das Erdgeschoss den Stadtraum durch öffentliche und gemeinschaftliche Einrichtungen wie Gemeinschaftsküchen, Werkstätten und Eiscafés. Diese verschiedenen Nutzungsmöglichkeiten bringen Leben in die Straße und fördern die Belebung der Stadt.

Klinker

Wiese Wiese

6 , 5 0

Beete

Die Häuser sind jeweils um 66 cm in der Höhe versetzt, um sich an die Topographie anzupassen. Dadurch sind alle Zugänge im Erdgeschoss barrierefrei zugänglich.

Bezüge der Grünflächen

Die Bereiche, die sowohl Zugang zum Vorgarten an der Vorderseite als auch zum Innenhof an der Rückseite haben, sind so gestaltet, dass die Bezüge von vorne und hinten verstärkt werden, was dem Gebäude eine durchlässige Wirkung verleiht. Die Verbindung zwischen den Innenhöfen wird durch eine durchgehende Verkehrszonen definiert.

Höhenanpassung 0cm 66cm 132cm 198cm 6 / 49

1.Gemeinschaft als Potenzialfläche

Wir werden bald ein neues Kind bekommen. Es wäre schön, wenn wir zusätzlich ein Kinderzimmer hätten könnten.

2.Zimmer kann verhandelt/ausgetauscht werden

Die Co-Working-Flächen sind derzeit untergenutzt. Wir könnten mit unseren Nachbarn absprechen, ein Zimmer für unsere eigene Wohnung zu nutzen.

Meine Freundin möchte gerne zu mir ziehen. Ich hätte gerne ein zusätzliches Wohnzimmer.

Wir haben jedoch leider keinen Bedarf.

Mein Freund hat sich von mir getrennt und ist ausgezogen. Zurzeit habe ich eigentlich zu viel Platz und würde gerne etwas davon weitergeben.

3. Ein große Wohneinheit kann in zwei kleine Wohneinheiten aufgeteilt werden

Vorteil: 1.Familien könnten getrennt wohnen, aber dennoch immer nebeneinander (sozial)

2.Zimmer kann separat vermietet werden ohne Abstimmung mit Nachbarn (wirtschaftlich)

Ich gehe dieses Jahr an die Universität. Daher möchte ich selbstständiger werden und von meinen Eltern ausziehen. Nächstes Jahr habe ich ein Auslandssemester geplant.

4. Vielfältige Wohnungstypen für jede spezifische Zielgruppe

S S S S S S S A D C 4 3 3 4 6 C B A E D C E D A 3 4 5 6 E D C A 6 3 B C 6 4,35 4,35 4,35 4,35 4,35 4,35 3,60 3,60 3,60 3,60 2,10 B E 5 3 3 C A D 6 A 3 B C 3,60 3,90 4,35 3 B 3 B 5 3 A E 85m² 78m² 34m² 37m² G E 8 7 5 4 3 2 1 D C A 71m² 57m² 57m² 43m² F 6 B 3-Zimmer Apartment Nutzerprofil: 1-2 Bad, 1 Küche 1-Zimmer Apartment Nutzerprofil: 1 Bad, 1 Küche S S S S S S S 3 A 6 4 B 3 C C B 3 4 6 B A E 3 6 A B A 3 4 6 4 6 E C B C B C 6 4,35 4,35 4,35 4,35 4,35 4,35 3,60 3,60 3,60 3,60 2,10 D E F 1 3 A E B D B 3 4 5 6 6 G C 3,60 3,90 4,35 3 5 B 3 C 5 E 5 79m² 85m² 43m² 37m² G E 8 7 2 1 D C 71m² 57m² 22m² F B 3-Zimmer Apartment Nutzerprofil: 1-2 Bad, 1 Küche 1-Zimmer Apartment Nutzerprofil: 1 Bad, 1 Küche 1-Zimmer Apartment Nutzerprofil: 1 Bad, 1 Küche 3 5 C B C B E D C E D A 3 4 C B D 5 4 B C D 1 5 4 E D E B 100m² 79m² 85m² 57m²
Konzept der Flexibilität
a a b b c c b c
a
C B D A 6 5 4 3 4 5 6 B C E D 4 A B C 6 5 3 B C 4 4,35 4,35 B 4 3 4 5 6 C A 3 C 3 B 3 A E 4 100m² 79m²
43m² 37m² G 71m² 57m² 3-Zimmer Apartment Nutzerprofil: 1-2 Bad, 1 Küche 1-Zimmer Apartment Nutzerprofil: 1 Bad, 1 Küche 1-Zimmer Apartment Nutzerprofil: 1 Bad, 1 Küche 43m² 37m² 1-Zimmer Apartment Nutzerprofil: 1 Bad, 1 Küche 1-Zimmer Apartment Nutzerprofil: 1 Bad, 1 Küche
85m²
7 / 49

Konzept: Struktur

Raster + Bauteile Kategorie

Kern - tragend (Ausstreifung) - Stahlbetonfertigteilewände

Querrichtung - nichttragend - Wohnungstrennwände

adaptive Öffnungen dauerhafte Türen

S S S S S S 6 5 4 B C 3 4 5 6 C 4,35 4,35 3,60 3,60 3,60 3,60 3,60 3, 9 0 2 , 1 0 4,35 B 3 A 34m² 37m² 8 7 6 4 3 D C B A 5
E 1 F E 1
Haushalt 1 Co-Working Haushalt 2 Haushalt 3 Haushalt 4 Haushalt 5 Haushalt 6 8 / 49
Anpassungsmaßnahmen 1 2 9 / 49
Rasengitterstein 5% 5% Rasengitterstein 5% Gästezimmer Gästezimmer Gästezimmer Gästezimmer Gemeinschaftsküche Lager Waschsalon Waschsalon Eiscafé Lager B
10 / 49
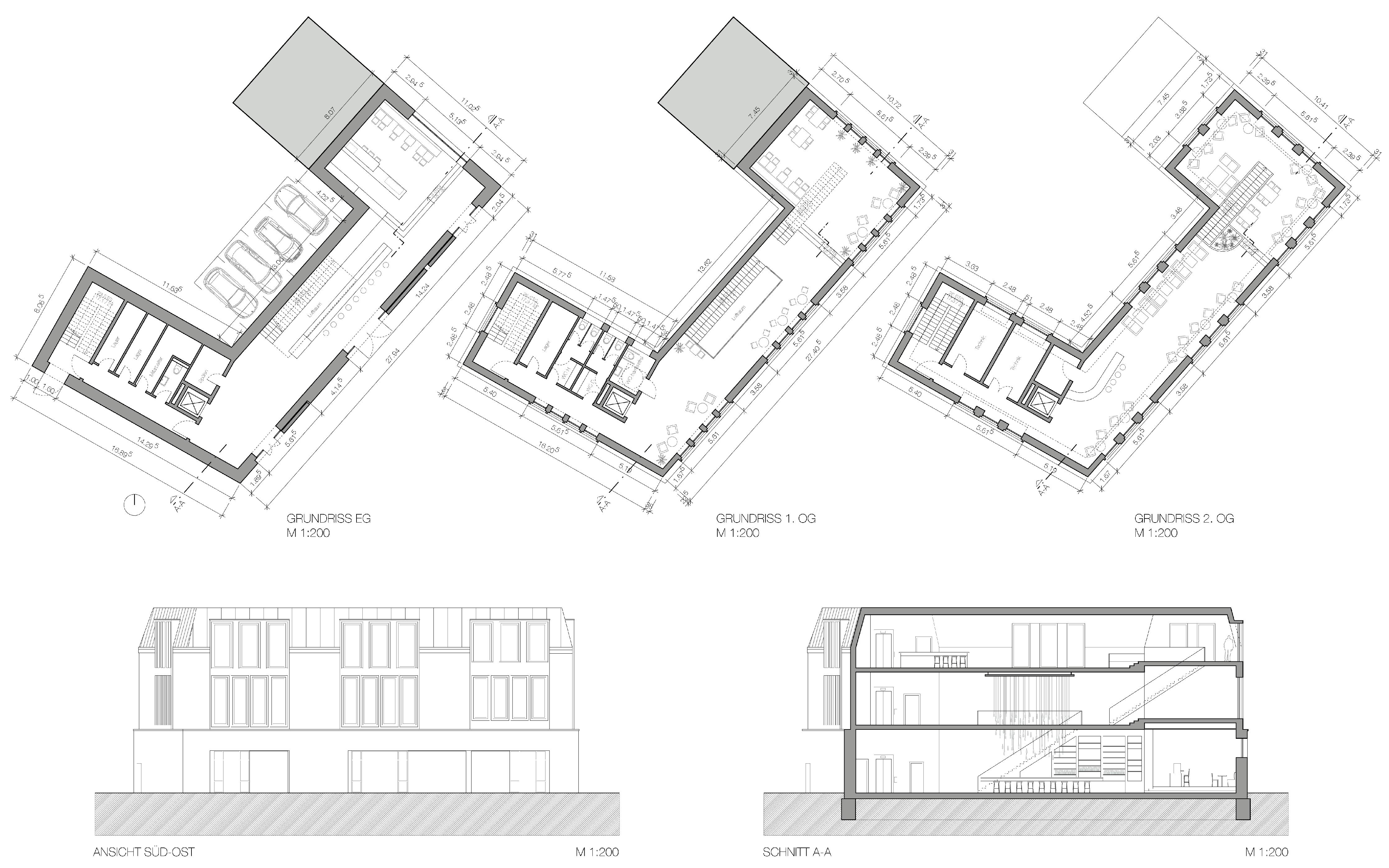
Schnitt B-B
Zeichnungen Grundriss EG
+ 20,00 + 20,00 + 10,15 + 13,30 + 7,00 + 3,85 + 16,45 + 10,15 + 13,30 + 7,00 + 3,85 +/- 0,0 + 3,85 + 13,30 + 10,15 +/- 0,0 + 7,00 +/- 0,0 + 16,45 5% Rasengitterstein 5% Rasengitterstein 6% Werkbank Werkbank Schneider- tisch Werkbank Anreißplatte Fräse Hobelbank Hobelbank Säge Hobelbank Hobelbank Tischfräse Kantschleifer Material Schleiftisch Empfang Folienplotter Transfer- presse Lasercut 3D-Drucker Säge Schleifer Schweißgeräte Werktisch Werktisch Werktisch Werktisch Drehbank Kappsäge Drechselbank Werkzeugbank CNC Fräse Werkbank A A B Werkstatt Holz Gemeinschaftsküche Werkstatt Elektro / Textil Fablab urban farming Lager Waschsalon Waschsalon Werkstatt Metall 11 / 49
B 12 / 49
Anischt Lochnerstraße Zeichnungen Grundriss OG
A B A 13 / 49
Begrünung extensiv Kiesschüttung Schutz-/Drän-/Filterschicht Abdichtung Kunststoffbahn Wärmedämmung EPS im Gefälle min. 2% Dampfsperre Brettsperrholzdecke 1 schwimmender Estrich Trennlage, PE-Folie Trittschalldämmung Kork WU-Beton Perimeterdämmung Sauberkeitschicht, Magerbeton frostsicherer Kies 7 80 mm 250mm 25mm 25mm 55 80mm 20mm 40 mm 80 mm 70 mm Dielen Weißtanne druckimprägniert Lattung Stelzfüße Elastomerlager Betonplatten Sand Sauberkeitsschicht Rieselschutzflies 6 Boden Außen 25mm 25mm 55 80mm 20mm 100mm 250mm 15mm 60mm 40mm 250 mm 200 mm 15mm Bodenbelag Parkett Eiche schwimmender Estrich mit Fußbodenheizung Trennlage PE-Folie Trittschalldämmung Kork Betondecke Wärmedämmung EPS Deckschicht Gipsfaserplatte Vertikalschalung Weißtanne druckimprägniert, Nut und Feder Konterlattung, Hinterlüftung Lattung, Hinterlüftung diffusionsoffene Fassadenbahn Polyestervlies Konstruktionsholz dazwischen Mineralwolle Brettsperrholzplatte BSP, luftdicht verstoßt Installationsebene Gipsfaserplatte GF Holzmassivbau BSP gedübelt 22 mm 30mm 30mm 240mm 240mm 100mm 40mm 2 x 12,5mm 9 8 2 Fußboden 3 französisches Fenster Dreifachverglasung in Holzrahmen Fichte 7 Kellerwand 6 5 4 Balkon 2 1 Dach Pflanzquartier 1 m³ Bodenbelag Parkett Eiche schwimmender Estrich mit Fußbodenheizung Trennlage PE-Folie Trittschalldämmung Kork Splittschüttung (Installationsebene) Brettsperrholzdecke 80mm 130 330mm 20mm 150 330 mm 180mm Dielen Weißtanne druckimprägniert Lattung Stelzfüße Elastomerlager Abdichtung Kunststoffbahn Brettsperrholzplatte Träger Brettschichtholz b = 150 mm Weißtanne druckimprägniert Stirnbrett Weißtanne druckimprägniert 24 mm Fassadenstützen Ø 150mm Brettschichtholz Weißtanne druckimprägniert 15mm 60mm 40mm 40 mm 180mm 4 9 Fassade 8 Kellerboden 5 Fußboden Erdgeschoss 60 mm 40 mm 250mm 80mm 50mm Perimeterdämmung WU- Beton 3 14 / 49
15 / 49

Kreislaufgerechtes Entwerfen und Konstruieren

Prof. Hatwig Schneider

Lehrstuhl

Baukonstruktion RWTH Aachen

10.2022 - 07.2023

In der heutigen Welt, die zunehmend von Umweltproblemen und Ressourcenknappheit geprägt ist, gewinnt die Nachhaltigkeit in der Architektur unaufhaltsam an Bedeutung. Unsere Fakultät hat sich zum Ziel gesetzt, innovative Lösungen zu entwickeln, die die Umweltauswirkungen von Gebäuden minimieren und gleichzeitig den Komfort und die Funktionalität für die Nutzer maximieren. Besonderes Augenmerk liegt dabei darauf, wie sich diese Zielsetzung in einem konkreten Projekt auf den Entwurfsprozess auswirkt. Welche Möglichkeiten haben Planerinnen und Planer, Einfluss auf die Umweltfreundlichkeit eines Gebäudes zu nehmen? Wie lässt sich die Nachhaltigkeit eines Bauwerks konkret definieren und umsetzen?

Die Entwurfsaufgabe bestand darin, ein Bürogebäude für die Fakultät für Bauingenieurwesen zu planen, da die Tragstruktur des aktuellen Fakultätsgebäudes nicht mehr tragfähig ist. Dieser Entwurf wurde insbesondere mit dem Ziel entwickelt, durch die Qualität von Entwurf und Konstruktion eine lange Nutzungsphase des Gebäudes zu ermöglichen und gleichzeitig die Vermeidung von grauer Energie in der Rückbau- und Wiederverwendungsphase zu berücksichtigen. So wird bereits im Entwurfsprozess der gesamte Lebenszyklus des Gebäudes in Betracht gezogen und entsprechend darauf reagiert.

Zirkulär
16 / 49

Lageplan

Recyclingbeton

- hohe Vorfertigungsgrad möglich

- robust

Raumklima

Kork

- Trittschalldämmung

- ökologisch

Streckmetall

- Sonnenschutzlamellen aus recycltem Aluminium

Bestand

Entwurf

Aufbau

Nutzung

Umnutzung

Rückbau

MATERIALITÄT

- Materialeinsatz reduzieren durch effiziente Konstruktion

- Verwendung von Materialien aus etablierten Kreislaufsystemen

- sinnvoller Einsatz von biolitischen, mineralischen und metallischen Materialien

17 / 49
Büro Büro Büro Café Büro Büro Büro Seminaraum Cip-pool Bibliothek

Nutzung

Hörsaal

Seminarraum

Cip-Pool

Caféteria

Teilküche

Zeichenübungsraum

Bibliothek

Besprechung

Büro

Versuchshalle

Nebenraum

Treppenhaus

PRIVAT

ÖFFENTLICH

ZONIERUNG

- strukturiende Kerne

WARTBARKEIT & AUSTAUSCHBARKEIT

- Revisionsöffnungen im Bodenaufbau

- Unabhängigkeit von Subsystemen

- Lösbarkeit in der Konstruktion

- mobile Möbeln verwenden

ABFALLVERMEIDUNG

- Sortenreinheit

- Verwendung von Materialien aus etablierten Kreislaufsystemen

Heiz- und Kühldeckensegel

- aufwendige Installationen im Fußboden verzichten

- eingebaut Deckenleuchten

- einfach revisionierbar

Linoleum-Fußbodenpaneele im Klicksystem

- Verzicht auf Verklebung

- langlebig

- einfach zum Rückbau und wiederverwendbar

- Zugänglichkeit für die Wartung der daunterlegenden Installationen

18 / 49

MODULARITÄT

- Skelttbauweise / freier Grundriss ermöglicht

Nutzungsflexibilität

- gleichmäßiges Raster ermöglicht kategorisierte Bauteile sowie hoher Vorfertigungsgrad

ROBUSTHEIT

- Resiliente Materialien

19 / 49
Raster

Serverraum Pumi Archiv

Lager Lager Lager

Technik

Zeichenübungsraum

Vorbereitungsraum

Vorbereitungsraum

Zeichenübungsraum

Versuchshalle

Zeichenübungsraum Zeichenübungsraum

20 / 49
21 / 49
Cafeteria Bibliothek Serverraum Pumi Archiv Lager Druckerei Zeichenübungsraum

offen: abwechselnde Arbeitsbereich und Austauschsbereich

7,2 m

offen: abwechselnde Arbeitsbereich

Hörsaal Seminarraum

Cip-Pool Caféteria Teilküche

7,2 m

halb-offen: leichte Trennung

Besprechungsraum Teilküche Cip-Pool Bibliothek
Serverraum
Zeichenübungsraum 22 / 49
Bibliothek

Hörsaal Seminarraum Cip-Pool Caféteria Teilküche Bibliothek Zeichenübungsraum Büro Besprechung Versuchshalle Nebenraum Treppenhaus

offen: abwechselnde Arbeitsbereich und Austauschsbereich

halb-offen: leichte Trennung

geschlossen: Zellenbüro

Szenarien Bürobereich

und
m
m
m
Besprechungsraum Teilküche M 1:200 Arbeitsbereich
Austauschsbereich 7,2
7,2
7,2
7,2 m 7,2 m 7,2 m
23 / 49
o.M.
24 / 49
25 / 49
26 / 49

Dach

PV-Anlage

Kiesschüttung

Bitumenabdichtung

Gefälledämmung EPS-Platte

Dämmung EPS-Platte

Dampfsperre PE-Folie

Voranstrich

TT-Platte Stahlbetonfertigteile Akustikplatte Holzwolle aufgehängt

Innenausbau

Trennwand Flur - Büro

Glas- und Holz- Trennwandsysteme abwechselnd, davon Holzständerwand 15 mm, ZR mit Zellulosefasern Dämmplatte als Schaschutzdämmung, Holztür wird integriert davon Glastrennwand zweifach-Verglasung, 6 + SZR 8 + 8 mm 12 mm

Innenfassade

Holz-Alu Elementfassade, Raster von 1,20m mit Wärmeschutzverglasung 6 + SZR 12+ 6 + SZR 12 + 6 mm, Low-E-Beschichtung ein Schiebeelement je drei Achsen, regelmäßig, Handbedienung, 1200 x 2400 mm

Elektrisch betriebener Aluminium Raffstore als Sonnenschutz Glasbrüstung, in Elementfassade integriert, VSG 21 mm, 1200 x 1100 mm

Mobiliar

Sofa, Stühle, Tische, Schränke...

Hohlraumboden

Bodenbelag, Linoleum-Fußbodenpaneele im Klicksystem 10 mm

Trittschalldämmung, Holzfaserplatte 20 mm

Hohlbodenplatte: faserverstärkte Calciumsulfatplatte mit Verzahnfräsung 25mm

Bodenstütze 225mm

Stützenfüßen mit Gummischrot-Plättchen

Außenfassade OG

Holz-Alu Pfosten-Riegel Fassade, Raster von 1,20m mit Wärmeschutzverglasung 6 + SZR 12+ 6 + SZR 12 + 6 mm, Low-E-Beschichtung ein Drehkippelement je drei Achsen, regelmäßig, Handbedienung, 1200 x 2400 mm

Elektrisch betriebener Aluminium Raffstore als Sonnenschutz

Stahlgeländer, in Stahlbeton Träger gebohren,1270 x 1300 mm

Tragwerk

Fertigteil-Stützen 30cm x 30cm

Hauptträger 30cm x 30cm mit Konsolen

TT-Platte 240cm x 720cm, umgedreht

Außenfassade EG

Holz-Alu Pfosten-Riegel Fassade, Raster von 1,20m mit Wärmeschutzverglasung 6 + SZR 12+ 6 + SZR 12 + 6 mm, Low-E-Beschichtung ein Drehkippfensterelement je drei Achsen, regelmäßig, elektronisch automatisch, Handbedienung auch möglich, 1200 x 2400 mm

27 / 49
28 / 49
29 / 49

Ahrtal nach der Flutkatastrophe

Prof. Anke Naujokat

Lehrstuhl für Architekturgeschichte RWTH Aachen

04.2022 - 07.2022

Nach Flutkatastrophen sind die Zerstörungen verheerend, oft aufgrund der Begrenzung der horizontalen Überflutungsflächen. Große Flutkatastrophen treten auf, wenn starke Niederschläge weitläufige Flusseinzugsgebiete treffen und das Wasser durch kurze, tief eingeschnittene Bachtäler in tiefer gelegene Flusstäler geleitet wird, wie am 14. Juli 2021 im Ahrtal geschehen. Flutwellen bauen sich auf und reißen Hindernisse mit, was zu noch größeren Fluten flussabwärts führt. In den unteren Bereichen des Tales kann nicht mehr reagiert werden, daher leiden Siedlungen unter den Versäumnissen in der Hochwasservermeidung in den oberen Gebieten des Einzugsgebiets.

Es ist von entscheidender Bedeutung, Konzepte zur Rückhaltung von Hochwasser zu entwickeln, um die zukünftige Situation zu verbessern. Dabei sollten diese Konzepte nicht nur auf den Hochwasserschutz an einem Tag abzielen, sondern auch dazu beitragen, die Siedlungsentwicklung über das gesamte Jahr hinweg zu fördern, die ökologische Integrität zu erhalten und die Risiken für die Bewohner zu minimieren.

Die Flut und deren Zerstörungen bedeuten für die Dörfer jedoch auch einen Neuanfang. Angesichts des Verlusts von Bauflächen durch Überschwemmungen entsteht die Frage nach einer Neugründung inmitten einer Peripherie, die ihr Zentrum verloren hat.

VOGELPERSPEKTIVE
1802-1820 Bebauungsgrenze Dernau Rech Mayschoss Altenahr AHRVERLAUF STANDORT DERNAU Ahrweiler Dernau AHRVERLAUF
30 / 49
Futur[AHR]

Zerstörung M 1:5000 Piktogramm

zerstörte Campingplatz

zerstörte Friedhof

zerstörte Sportplatz

zerstörte Brücke

zerstörte Bahnstrecke

Überflutung bis zum 1.OG

Überflutung bis zum EG

Uferverbreitung

Bäume überstanden

Bäume weggespült

zerstörte Weinbauflächen

Gebäude überstanden

Gebäude abgerissen

Bauverbotsbereich

31 / 49
M 1:1000 Aussichtsplattform Rotweinwanderweg Start Winzerfestzug ehemaliger Regierungsbunker Ferienwohnung Hotel Gastronomie Start Martinszug Weinkaufladen System 1 System 1 System 2 1. Verlegung der Bahnstrecke 2. Zugang zum Ort öffnen 4. städtebauliche Ergänzungen 3. Verlegung des Festplatzes und der Brücke System 1 System 2 32 / 49
LAGEPLAN Aussichtsplattform Rotweinwanderweg Start Winzerfestzug ehemaliger Regierungsbunker Start Weinfrühling Ferienwohnung Hotel Weinstand Gastronomie Start Martinszug Weinkaufladen PERSPEKTIVE SZENARIO 1 - WOCHENMARKT SZENARIO 2 - WEINFEST SZENARIO 3 - HOCHWASSER 33 / 49
34 / 49
35 / 49
36 / 49
37 / 49

Finkenstraße Olpe

Umbau der Fabrikhallen als Erweiterung des Koch's Hotels

Prof. Peter Karle

Fachgebiet Planen und Bauen im Bestand Universität Siegen

11.2020 - 03.2021

Das ehemalige Fabrikgelände des Unternehmens Schell in der Olper Innenstadt zwischen Kreuzkapelle und dem neuen Bahnhof soll zu einem Hotel- und Gastronomiekomplex umgebaut werden. Dies geschieht aufgrund der Attraktivität von Olpe als Zielort für regionalen Tourismus, der durch seine Nähe zur schönen Natur gefördert wird.

Die architektonischen Ziele umfassen die optimale Erfüllung der Funktionen des Gebäudes sowohl räumlich als auch konstruktiv, während gleichzeitig der industrielle Charme erhalten bleibt und die Attraktivität für den Tourismus gesteigert wird. Um die städtebauliche Durchlässigkeit zu verbessern, werden zwei Hallen abgerissen und andere Teile des Komplexes umgenutzt. Das robuste Tragwerk aus Stahlbeton sowie das mittragende Mauerwerk an der Fassade können erhalten bleiben, was flexible Umnutzungsmöglichkeiten der Räume ermöglicht.

Die frei gewordenen Grundrisse ermöglichen eine flexible Anpassung der Räume. Die Halle an den Seiten des Hotels kann durch den Einbau von Trennwänden in verschiedene Arten von Hotelzimmern umgewandelt werden, während die mittlere Halle als Veranstaltungsbereich für das Hotel und zur Vermietung an Bewohner in der Nähe dienen soll. Um den Charakter des Mauerwerks zu bewahren, wird der Innenputz entfernt und die Fassade durch zweischaliges Mauerwerk zur Verbesserung des Wärmeschutzes modifiziert. Die Öffnungen bleiben proportional als die Errinnerung von Typologie der Werkhalle, jedoch sollen die alten Fenster und Türen durch wärme- und schallgeschützte ersetzt werden.

38 / 49

Abbruch - Bestand - Neubau

Apartment (x4)

Ferienwohnung (x5)

Hotelzimmer (x54)

Einzelhandel

Verwaltung

Gastronomie

Spa-Bereich

Nebenraum

Bar Bereich

Lounge

Frühstücksbereich

Foyer / Rezeption

Städtebau: Durchwegung 2 Achse

Altstadt - Neues Rathaus - Allee Kirche - Freizeitsplatz - Haupfeingang

Nutzungsdiagramm

Grillstelle

Kinderspielplatz

Kreuzkapelle

neues Rathaus

Richtung Altstadt

Haupteingang Achse verstärken, Eingang durch den grünen Hof

Raumkonzept Ergänzung eines Lichthofs - flüssigere Wegführung, Begegnungsort

39 / 49

Einzelhandel

Einzelhandel Fahrradausleihen/verkaufen

Einzelhandel

Einzelhandel

Einzelhandel

Einzelhandel

Einzelhandel

Einzelhandel

Einzelhandel

Einzelhandel

Einzelhandel

Einzelhandel

Einzelhandel

Einzelhandel

Finkenstraße
Lager Bar UmkleideHerren(Mitarbeiter) Lager Rauch-Bereich PuMi UmkleideDamen(Mitarbeiter) Abstellraum fürGäste
Leergutlager
denKlippen
Stellwerkstraße
Werkstatt Stuhllager Auf-/Ausladenbereich
Ausstellung
Grundriss EG 40 / 49
Finkenstraße Stellwerkstraße denKlippen ELT PuMi Küche Büro HLS Grundriss 1OG 41 / 49
Foyer
42 / 49
Hotelzimmer

Dachaufbau

Dachschiefer (graphitgrau) Konterlattung 30/50 Lattung 50/50

Unterdachfolie

Holzweichfaserplatte

Sparren und dazwischen Wärmedämmung (Steinwolle) Dampfsperre Sichtschalung Weißtanne Sichtsparren

7,00 m

Wandaufbau

Riemchen Fassade

Kleberschicht - Mörtel

EPS Wärmedämmung

Außenputz

Mauerwerk (Bestand) Innenputz komplett entfernen

1. Dachaufbau

Neubau - Kaltdachkonstruktion zur verbesserung der Wärmedämmung

50 mm Pfannendach (graphitgrau)

30 mm Konterlattung 30/50

50 mm Lattung 50/50

Unterdachfolie

15 mm MDF-Platte

240 mm Sparren und dazwischen Wärmedämmung (Holzfaserplatte)

Dampfsperre

15 mm Sichtschalung Weißtanne

180 mm Sichtsparren

UKFD 3,00 m

Bodenaufbau Teppich schwimmender Estrich (Heizestrich) Trennlage, PE-Folie

EPS Trittschalldämmung

Wärmedämmung Feuchtigkeitssprre

Stahlbetonboden (Bestand)

Trennlage Kiesschüttung

Grobkies

Erdreich OKFF 4,10 m

- 1,10

Bitumenanstrich Perimeterdämmung (wasserdicht)

7,00

2. Wandaufbau OKFF +/- 0,00

Zweischaliges Mauerwerk

zur Verbesserung der Wärmedämmung

115 mm Verblendermauerwerk

40 mm Luftschicht

120 mm Holzfaserdämmplatte

250 mm Mauerwerk (Bestand) Innenputz entfernen

OKFF 4,10

UKFD 3,00

3. Bodenaufbau

15 mm Spannteppich

50 mm schwimmender Estrich (Heizestrich) trockenes Verfahren mit Lithotherm Formplatten

Trennlage, PE-Folie

30 mm Trittschalldämmung Korkplatte

200 mm Wärmedämmplatte Feuchtigkeitssperre

300 mm Stahlbetonboden (Bestand) Trennlage

100 mm Kiesschüttung - 1,10

OKFF +/- 0,00

Bitumenanstrich

12cm Perimeterdämmung (wasserdicht)

Grobkies Erdreich

Zimmer Zimmer
43 / 49

Schwebebahnmuseum

Museum in Wuppertal Zoologische Garten

Prof. Ulrich Königs

Lehrstuhl Baukonstruktion Uni Wuppertal 10.2017 - 03.2018

Der Schwebebahn über die Wpper, der in der frühen 20. Jhdt gebaut wurde, ist heutzutage immer noch das Merkmal von Wuppertal. Zum Planen war ein Schwebebahnmuseum in einer berühmten Freizeitsbereich in Wuppertal, um die Geschichte und die technische Ästhetik der Schwebebahn zu zeigen. Der Entwurf schafft einen Rundgang für die Ausstellung mit Aublick der Wupper, und eine sichtbare Stahlkonstruktion, die einheitlich mit dem Bestandteil des Schwebebahnschiene ist. In der repräsentative Halle wird die Schönheit der Konstruktion durch die Regelmäßigkeit des Tragwerks hervorgehoben und hier sollte die unterschiedliche Generationen des Schwebebahns ausgestellt werden.

44 / 49
Zulieferung Berg Stadion Zoo
Zoo/Stadion (Schwebebahnstation) |----------Wohnsiedlung----------|Wupper|----------------------Sehenswürdigkeit-------------------------| + 4,20 +/- 0,00 + 7,35 + 10,50 45 / 49
Schwebebahnmuseum
Grundriss EG Nebenräume 46 / 49

Grundriss 1OG

Grundriss 2OG

47 / 49

Bewegliche Kuppelstruktur

transformable architectures

Prof. Martin Trautz

Lehrstuhl für Tragkonstruktionen RWTH Aachen

10.2021 - 03.2022

Senkrechte Start- und Landesysteme, kurz VTOL-Systeme genannt, werden entwickelt, um die dritte, vertikale Dimension für unseren täglichen Verkehr zu nutzen, um den Verkehrsraum in unserer Stadt zu reduzieren und gleichzeitig die Lärmbelastung und Luftverschmutzung zu verringern.

Vor diesem Hintergrund kommen neue Infrastrukturen für diese Luftfahrzeuge in Frage. Eine Dachkonstruktion, die sich öffnen und schließen lässt, passt sehr gut zum Konzept von VTOL. Sie ermöglicht es VTOLs, senkrecht auf- und abzufliegen. Außerdem bietet sie einen Innenraum für die Wartung und das Aufladen von VTOLs. Diese Konstruktion in verschiedenen Dimensionen kann auch Schutz für verschiedene VTOLs bieten, integriert oder unabhängig, für persönliche und öffentliche Zwecke.

Dieser Entwurf basiert auf der parametrischen Methode. Durch die Steuerung des Winkels der Scherenstruktur in Grasshopper kann die Bewegung des Tragwerks simuliert und optimiert werden. Auch andere Parameter wie die Länge, Breite und Dicke der Scherenelemente sowie der Paneele können in der Software gesteuert werden, um die Form der Kuppel neu zu generieren.

48 / 49
49 / 49

Turn static files into dynamic content formats.

Create a flipbook
Issuu converts static files into: digital portfolios, online yearbooks, online catalogs, digital photo albums and more. Sign up and create your flipbook.