



nataleapontes@gmail.com
SOBRE MIM
(21) 97378-1958 Lins de Vasconcelos, Rio de Janeiro - RJ
Estudante de Arquitetura e Urbanismo, cursando o 3º período, com formação em Design de Interiores e paixão por desenvolver soluções criativas e funcionais. Organizada, proativa e comprometida, busco oportunidades que me permitam aplicar meus conhecimentos acadêmicos na prática, contribuindo com responsabilidade, dedicação e olhar técnico para o crescimento da equipe e da empresa. Tenho interesse em projetos colaborativos e enriquecedores que impulsionem meu desenvolvimento profissional na área de Arquitetura.
FORMAÇÃO ACADÊMICA
Graduação em Design de Interiores
Universidade Estácio de Sá
Fev. de 2020 - Dez. 2022
Graduação em Arquitetura e Urbanismo
Universidade Veiga de Almeida
Fev. de 2025 - Dez. 2029
CURSOS COMPLEMENTARES
Revit para Projetista
Leandro Amaral | 2026 | em andamento
Profissão Design de Interiores
EBAC | 2023 | 71h
Vray 4.0 para SketchUp
BM Maquetes | 2023 | 60h
Sketchup para marcenaria
Patrícia Gass | 2023 | 30h
EXPERIÊNCIA PROFISSIONAL
Estágiaria de Arquitetura
HABILIDADES






PHOTOSHOP
PACOTE OFFICE
AUTOCAD
SKETCHUP
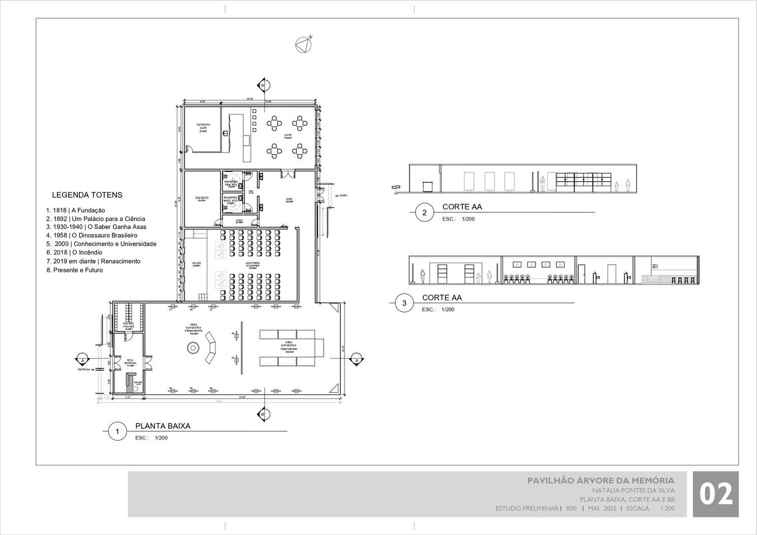
PROJETO DE ESTUDO | MAI. 2025 AUTORAL
SOFTWARE UTILIZADOS:




O PROJETO PROPÔS A CRIAÇÃO DE UM PAVILHÃO COMEMORATIVO PELOS 210 ANOS DO MUSEU NACIONAL, INCLUINDO A DEFINIÇÃO DE TEMA, PÚBLICO-ALVO, FLUXOGRAMA E PROGRAMA DE NECESSIDADES. O CONCEITO ESCOLHIDO FOI “ÁRVORE DA VIDA”, SIMBOLIZANDO O CRESCIMENTO E A EVOLUÇÃO DO MUSEU AO LONGO DO TEMPO, COM RAÍZES NA HISTÓRIA E GALHOS VOLTADOS PARA O FUTURO. A PROPOSTA BUSCOU APRESENTAR SUA TRAJETÓRIA E DESENVOLVIMENTO DE FORMA SIMBÓLICA E NARRATIVA.
A IDEIA CENTRAL FOI EVIDENCIAR O MUSEU COMO UM ORGANISMO VIVO, EM CONSTANTE EVOLUÇÃO, REFORÇANDO SUA IMPORTÂNCIA HISTÓRICA, CIENTÍFICA E CULTURAL PARA A SOCIEDADE.
PROJETO DE ESTUDO | JUN. 2025 AUTORAL

ESSE AMBIENTE FOI PROJETADO A FIM DE ESTUDAR O PROCESSO DE PROJETO COM CLIENTES FICTÍCIOS E MEDIDAS REAIS DE UM QUARTO. ELE FOI DESENVOLVIDO PARA UMA JOVEM ADULTA QUE DESEJAVA UM REFÚGIO PERFEITO PARA RELAXAR E RECARREGAR AS ENERGIAS, CADA DETALHE NO QUARTO FOI CUIDADOSAMENTE PLANEJADO.
SOFTWARES UTILIZADOS:






PARA ESSE PROJETO DE DECORAÇÃO, FOI ACRESCENTADO
TONS DE ROSA, A COR FAVORITA DA CLIENTE. UTILIZANDO ESSA
TONALIDADE COMO BASE, CONSEGUIMOS CRIAR UM AMBIENTE ENCANTADOR, REPLETO DE PEQUENOS ELEMENTOS
DECORATIVOS QUE SE DESTACAM
PERFEITAMENTE EM MEIO ÀS
TEXTURAS PRESENTES NO QUARTO.
UM DOS PONTOS ALTOS DESSE PROJETO É, SEM DÚVIDAS, A CABECEIRA ACOLCHOADA. COM UM DESIGN ELEGANTE E SOFISTICADO, ELA SE TORNOU O VERDADEIRO DESTAQUE DO AMBIENTE, PROPORCIONANDO UM TOQUE DE CONFORTO E REQUINTE AO QUARTO. SUA PRESENÇA MARCANTE COMPLETOU A COMPOSIÇÃO DE FORMA MAGNÍFICA, AGREGANDO UM TOQUE DE LUXO AO ESPAÇO.
PROJETO DE CONCLUSÃO DE CURSO |
5º PÉRIODO | DEZ. 2022
AUTORAL
SOFTWARES UTILIZADOS:






TRATA-SE DE UM PROJETO
COMERCIAL DE MARCA FICTÍCIA
CHAMADA "BLOOM". FOI
ELABORADO A IDENTIDADE DA MARCA COM A INTENÇÃO DE CRIAR
UM AMBIENTE CUSTOMIZADO QUE
PROPORCIONE UMA EXPERIÊNCIA
DE COMPRA AGRADÁVEL PARA OS
CLIENTES ALVO DA LOJA.
A BLOOM TEM UMA PEGADA MAIS
DIVERTIDA BRINCANDO COM
FORMAS CURVAS QUE REMETEM A FEMINILIDADE.
ESSE PROJETO COMERCIAL TEM
COMO OBJETIVO CRIAR UM
AMBIENTE CUSTOMIZADO E
CATIVANTE, PROPORCIONANDO
UMA EXPERIÊNCIA DE COMPRA
ÚNICA E AGRADÁVEL PARA OS
CLIENTES-ALVO DA LOJA. COM UMA
PROPOSTA INOVADORA E
DIVERTIDA, O ESPAÇO É
CUIDADOSAMENTE PLANEJADO
PARA DESPERTAR A FEMINILIDADE
E ENCANTAR QUEM O VISITA.





