CONJUNTO HABITACIONAL - ANÁLISIS DE CASOS

Page 1

TALLERDEDISEÑOVII U N S M CONJUNTO HABITACIONAL CÁTEDRAS ARQ.WILMANFERNANDEZHURTADO ARQ.LUISA.PAREDESVASQUEZ GRUPO02: DÁVILAVALDEZMIXXIG. FLORESGONZALESJORGEE. PAREDESVASQUEZLEMNISA. RENGIFOFLORESNATHALYDELP.
CONJUNTO HABITACIONAL MARCOCONCEPTUAL MARCOTEÓRICO MARCONORMATIVO ANÁLISISDECASONACIONAL ANÁLISISDECASOINTERNACIONAL

MARCO CONCEPTUAL

CONJUNTO RESIDENCIAL Ventajasdevivirenun conjuntoresidencial Grupodevariosedificiosresidenciales que bien pueden ser casas o apartamentos.(Richard,2012) Seguridad: Comunidaddevecinos. Gastoscompartidos. Mayorcalidaddevida. Revalorizacióndelavivienda. 1. 2. 3. 4. 5. Esimportantesaberqueunconjunto residencial,suelepagarvigilancia privadaysistemasdeseguridad, resguardandolaintegridaddesus integrantes.(Richard,2012) FUENTE:¿Quéesunconjuntoresidencial?(s/f).Realia.Recuperadoel18deabrilde2022,de https://www.realia.es/que-es-un-conjunto-residencial

DIFERENCIAENTREUNCONJUNTORESIDENCIALY UNCONDOMINIO

¿Quéesunconjuntoresidencial?

Másconocidoscomoapartamentos,conformanunconceptomucho másclaroacercadeunconjuntoresidencial.(Venegas,2022)

¿Quéesuncondominio?

Losestilosdediseñosdecadacondominio puedenvariar,permitiendoalpropietarioen lamayoríadecondominioshacertodotipo deremodelaciones. Su principal diferencia con los condominios es que suelen ser de un menor tamaño, además de contar con normativas y políticasestrictassobreeltipodecuidadoo seguridad que se deben tener en las áreas compartidas que son parte del conjunto residencial.(Venegas,2022)

HABILITACIÓNURBANA

¿QUÉES?

Es el proceso de convertir un terreno rústico o eriazo en urbano, donde el nivel de consolidación de los predios debe ser el 90 % del total del área útil en el predio matriz.

Para el Ministerio de Vivienda, Construcción y Saneamiento, los predios de una zona urbana debidamente consolidada deben contar con servicios públicos domiciliarios, pistas, veredas e infraestructura vial, redes de agua, desagüe y alcantarillado y alumbradopúblico.

(Fuente:MinisteriodeVivienda,ConstrucciónySaneamiento)

Buscalaintegracióndeledificiocon elentorno,espartefundamentalde laestrategiaproyectual.

Se basa en analizar el lugar considerando la topografía, visuales,accesos,trayectoriassolar, vehicular,peatonal,entreotros.

EMPLAZAMIENTO

GeoffreyH.Baker(1997)

Menciona que “la relación entre edificio y entorno se establece de la forma más positiva, considerando factores tales como las vistas, trayectoria solar, o proximidad de vías de acceso. Los factores de emplazamiento sea este colina o valle, sus fuerzas un río o una carretera, son aspectos que influyen directa o indirectamenteenlaforma”.

FUENTE: http://hicarquitectura.com/2012/11/maisabel-jimenez-biblioteca-central-delmagreb-en-fez-marruecos/

DENSIDADPOBLACIONAL

Es un indicador que nos permite saber cuánta población habita en una zona territorial, por ejemplo: un país, una región, una comuna, etc. Así como también saber cuándo la población está concentrada o dispersa, respecto al territorio que habitan.

FUENTE:https://cuentame.inegi.org.mx/poblacion/densidad.aspx?tema=P

USODESUELOS RESIDENCIAL: EQUIPAMIENTO: ACTIVIDADPRODUCTIVA: ESPACIOPÚBLICO: ÁREAVERDE: ElUSODESUELOdeterminalas actividades permitidas al interiordeunpredio. SEGÚN LA ORDENANZA DE URBANISMO Y CONSTRUCCIONES,losusosde suelo posible para zonificar el territorioson: FUENTE: https://scsarquitecto.cl/uso-desuelo-que-es/

ESTRUCTURAURBANA

Es la forma en la que el suelo se usa en la disposición de las partes de un asentamiento urbano, generalmente unaciudad.(Themes,2013)

Las viviendas, tiendas, calles, aceras, fábricas, oficinas, parques y áreas abiertas requieren ciertos tamaños y formas, por lo que se hace importante contar con una buena planificación urbana.(Themes,2013)

El tipo de carreteras, vías férreas y pequeños cuerpos de agua influyen en el uso de la tierra y la localización de losedificios.(Themes,2013)

FUENTE:https://www.geoenciclopedia.com/estructura-urbana/

INFRAESTRUCTURAURBANA
Aguapotable Manejodeaguasresidualesyaguas negras Electricidad Gestióndelabasuraydesechos materiales Comunicacionesymediosde transporteaéreos,terrestresyfluviales Comunicacionesinorgánicascomo teléfonoeinternet Seguridadydefensa Gasymediosdecalefacción Combustibles
Entendemos por infraestructura urbana a la conformación de las obras que dan un soporte funcionalyestéticoalasciudades. En función de otorgar bienes y servicios a la población, con un enfoque ético de diseñar y construirespaciosóptimosparaelfuncionamientoysatisfaccióndelacomunidad. En el desarrollo humano y social, existen varias necesidades que han sido catalogadas por la OrganizacióndeNacionesUnidascomobásicasparaeldesarrollohumano: FUENTE:https://concepto.de/infraestructura/

IMAGENURBANA

La imagen urbana es la cara o la imagen que nos da una ciudad o entidad. Incluye elementos arquitectónicos, urbanos, sociales y naturales. Estos son algunos de los elementos que contribuyen acrearlaimagenurbanay nos crean la imagen de la ciudad. Elementos menos tangibles tales como las costumbres y tradiciones de la sociedad también marcanesaimagen.

FUENTE:http://www.trcimplan.gob. mx/blog/la-importancia-de-laimagen-urbana.html

EQUIPAMENTO URBANO

El equipamiento urbano es un tipo de “mobiliario” para el espacio urbano, es decir, para espacios que el público en general utiliza, como aceras, parques, plazas públicas y estacionamientos. Los espacios públicos son accesibles para todos, por lo tanto, planificarlo,losdiseñadoresdebentenerencuentalosdiversos grupos de usuarios que interactúan con él: los ancianos, los discapacitadosytambiénlosniños.

FUENTE:https://www.yter.es/mobiliario-urbano-blog/equipamiento-urbano/

CONCEPTOARQUITECTÓNICO

El concepto de diseño es una idea que guía el proceso de diseño, y sirve para asegurar una o varias cualidades del proyecto: imagen, funcionalidad, economía, mensaje,etc.

El reto para el diseñador es, conforme al tipo de proyecto en cuestión, seleccionar el adecuado tipo de concepto que aplicará. De hecho, puede incluso señalarse que en diseño no hay buenos ni malos conceptos, sino buena o mala elección de conceptos.

FUENTE:https://proyecto2uvm.weebly.com/uploads/8/1/6/2/8162838/conceptos.pdf

“PRIMEROCONCEPTO,LUEGODISEÑO”

va de la mano con

ya que estos son los que tienen más jerarquía en el diseño.

CRITERIOESPACIAL
Pertenencia Intersección Yuxtaposición Encadenamiento LASRELACIONESESPACIAALES: FUENTE:https://es.slideshare.net/signarq/concepto-estructural-formal-funcional-y-espacial
Elconceptoespacial
elconceptoformaly estructural,

CRITERIOFUNCIONAL

La arquitectura funcional es aquella que tiene como principio diseñar los edificios atendiendo a que eran útiles, cómodos y respondan a las necesidades de sus usuarios. Todo proyecto tiene que ser, ante todo, funcional. Creemos que lo que define un buen diseño es lograr el perfecto equilibrio entre utilidadybelleza.

FUENTE:https://www.luicon.es/que-es-la-arquitectura-funcional_fb40342.html

MARCO TEÓRICO

ESPACIOPUBLICOENLOSCONJUNTOS RESIDENCIALES

AlbertoH.PapparelliyAlejandra Kurbán(2015)

Para un espacio urbano residencial toman como uno de los aspectos más importantes para que estos espacios puedan cumplir su función original ya tomada desde su diseño.

Son métodos como: Leyes de Generación Espacio-Funcional y Sistema de Umbrales

Urbanos, de utilización en entornos urbanos de complejidad media o alta, como herramientas de diseño en conjuntos habitacionales de propiedad horizontal en altura. Conforme la complejidad urbanística de la temática, éstos pueden también utilizarse en la resolución de conjuntos edilicios institucionales o comerciales.

UNSM
fuente:De,F.(s/f).UNIVERSIDADMAYORREALYPONTIFICIADESANFRANCISCOXAVIERDECHUQUISACA.Usfx.bo. Recuperadoel18deabrilde2022,dehttps://arquitectura.usfx.bo/wp-content/uploads/2016/11/Conjuntoshabitacionales.pdf
EQUIPAMIENTOURBANO UNSM Arqred(2012) El equipamiento urbano es todo un conjunto de espacios que predominan en el uso público en los cuales se realizan actividades complemen La normativa urbanística define zonas residenciales de multifamiliares o también llamadas viviendas protegidas, al sector con predominante uso residencial. Estas viviendas protegidas o edificios multifamiliares están organizados en bloques aislados. fuente:Equipamientourbano.(2020,junio20).mobiliariourbanoYTER. https://www.yter.es/mobiliario-urbano-blog/equipamiento-urbano/

ESTRUCTURAYLAFORMA

HeinoEngel,(2001)

fuente:De,F.(s/f).UNIVERSIDADMAYORREALYPONTIFICIADESANFRANCISCOXAVIERDECHUQUISACA.Usfx.bo. Recuperadoel18deabrilde2022,dehttps://arquitectura.usfx.bo/wp-content/uploads/2016/11/Conjuntos-

UNSM
La estructura sustenta la forma y le da una existencia. En la Arquitectura, la estructura es el único medio por el cual se trabaja forma y espacio en la arquitectura. La estructura puede estar oculta en la forma arquitectónica o también puede ser la misma forma, al realizarse un proyecto llega a ser un obstáculo a superar, con temas los cuales no se tiene mucho conocimiento, pero se debe resolver habitacionales.pdf

RENOVACIONURBANA

ESTUARDOGONZÁLEZ(2008)

UNSM
Es el proceso mediante el cual se toman medidas para el mejor aprovechamiento de áreas ya desarrolladas y que actualmente se encuentran en deterioro. Los objetivos de la renovación Urbana son: frenar el deterioro por medio de la demolición y reemplazo de algunas construcciones o usos del suelo, según la necesidad. Rehabilitar áreas para que tengan un mejor uso del suelo, redistribuir del sistema vial, apertura de espacios libres comunales para equipamiento urbano como áreas verdes, recreación (activa-pasiva), y servicios. ¿Quéeslarenovaciónurbana?(2021,September22).Amarilo. https://amarilo.com.co/blog/actualidad/que-es-la-renovacion-urbana/
UNSM
estas ideas
propuesta,
JuanHerreros(2007) Baseteórica.(n.d.).1Library.co.RetrievedApril24,2022,fromhttps://1library.co/article/te%C3%B3ricamarco-te%C3%B3rico-conjunto-residencial-inter%C3%A9s-social-industrial.y8gl6v0z
CONJUNTORESIDENCIALDEINTERES SOCIAL
Llevando
a la
nos aporta la intención de una implantación abierta, con espacios públicos y semipúblicos de calidad que fomenten las relaciones sociales entre los usuarios, vecinos y transeúntes de la zona.

VINCULACIONCONELINDIVIDUO

JavierMonteys(2001)

En definitiva, lo que se busca es un mayor bienestar del individuo a través del diseño y la arquitectura, dentro de un ambiente más sociable y cómodo. Creando espacios analizados previamente desde la iluminación, texturas y colores, que hagan que el diseño interior sea funcional con el edificio generando distintos ambientes en un solo lugar que satisfagan las necesidades de sus habitantes.

UNSM
ecuuve.(2018,July13).Arquitectura,diseñoyentornoparaunamejorcalidaddevida. RevistaConstruir.https://revistaconstruir.com/it_connect/arquitectura-diseno-yentorno-para-una-mejor-calidad-de-vida/

MARCO NORMATIVO

REGLAMENTONACIONALDE EDIFICACIONES-E Es A-010 ART.4: Losparámetrosurbanísticosyedificatoriosdelosprediosurbanosdebenestar definidosenelPlanUrbano. (ElPeruano,2021) -Seccionesdevías UNSM
REGLAMENTONACIONALDE EDIFICACIONES A-010 ART.8: Loselementosmóvilesdelosaccesos,alaccionarse,nopodráninvadirlasvíasy áreasdeusopúblico. (ElPeruano,2021) Elnúmerodeaccesosy susdimensionesse definendeacuerdocon elusodelaedificación. UNSM (ElPeruano,2021)
EDIFICACIONES A-010 ART.16: Toda edificación debe guardar una distancia con respecto a las edificaciones vecinas,porrazonesdeseguridadsísmica,contraincendiosoporcondicionesde iluminaciónyventilaciónnaturalesdelosambientes. (ElPeruano,2021)
ellos,porrazones de privacidad
UNSM
REGLAMENTONACIONALDE
Laseparaciónentre
e iluminación natural, se determinará en función al uso de los ambientes que se encuentranfrentea frente.
REGLAMENTONACIONALDE EDIFICACIONES A-010 ART.20: Los pasajes para el tránsito de personas deben cumplir con las siguientes características:(ElPeruano,2021) UNSM

REGLAMENTONACIONALDEEDIFICACIONES

ART.25:EscalerasProtegidas

A-010
c)Entregardirectamentealavíapúblicaoaun espacio compartimentado cortafuego que conduzcahacialavíapública.(ElPeruano,2021) d)Contarconunabarrera decontención
Las escaleras protegidas deben cumplir los siguientesrequisitos:(ElPeruano,2021)
a)Tenerunaubicaciónyundiseñoquepermita la evacuación de los ocupantes en caso de emergenciademanerarápidaysegura. b) Ser continuas del primer al último piso o azotea.
REGLAMENTONACIONALDE EDIFICACIONES A-010 ART.26:Tipologíasdeescalerasprotegidas(ElPeruano,2021) UNSM a)Convestíbuloprevioventilado V.MECÁNICA V.ALEXTERIOR b)Presurizada
A-010 UNSM
d)EscalerasCerradas e)EscalerasMixtas
REGLAMENTONACIONALDE EDIFICACIONES
c)EscalerasAbiertas(ElPeruano,2021)
UNSM REGLAMENTONACIONALDE EDIFICACIONES ART.34:Ascensores(ElPeruano,2021) Losascensoresubicadosenlasedificacionesdeben cumplirconlassiguientescondiciones. a)Sonobligatoriosapartirdeunniveldecirculación comúnsuperiora12.00msobreelniveldelingreso. b)Losascensoresdebenentregarenlosvestíbulosde distribucióndelospisosalosquesirve. ART. 44: Los ductos de ventilación para servicios sanitariosdebencumplirconlossiguientesrequisitos: (ElPeruano,2021) a) Las dimensiones de los ductos se calculan a razón de0.036m2 porinodorodecadaserviciosanitario. e) Se debe evitar que el incendio se propague por los ductosdeventilación,l A-010
UNSM
57: Los estacionamientos para bicicletas deben ubicarse a una distancia máxima de 50.00 m del accesoalaedificación. (ElPeruano, 2021) A-010
REGLAMENTONACIONALDE EDIFICACIONES ART.54:Diseñodeespaciosdeestacionamientos(El Peruano,2021) ART.
REGLAMENTONACIONALDE EDIFICACIONES A-020 ART.07: Para el cálculo de la densidad habitacional,elnúmerodehabitantesde unnúcleodevivienda,estáenfunciónal número de dormitorios, según lo siguiente:(ElPeruano,2021) UNSM ART.12 Losvanosparalainstalacióndepuertas de acceso, comunicación y salida de personas deben tener las siguientes dimensionesmínimas:(ElPeruano,2021) A-010
REGLAMENTONACIONALDE EDIFICACIONES A-020 ART.13 Los pasajes de circulación de las viviendas, permiten conectar ambientes de una vivienda o viviendas entre sí (El Peruano,2021) UNSM ART.15 Las escaleras integradas en edificios multifamiliares y conjuntos residencialesdeusocolectivoogrupos familiares, tienen las siguientes características: (ElPeruano,2021) - Deben tener un ancho mínimo de 1.20 m entre murosquelaconforman. -Elnúmerode escalerasse determinapor piso.
A-020 REGLAMENTONACIONALDE EDIFICACIONES ART.16 Los ascensores son un medio de obligatorio en edifi cios multifamiliares y conjuntos residenciales donde el acceso al quinto piso de la edificación, se encuentre a una altura superiora12.00msobreelniveldeingresoa laedificación(ElPeruano,2021) ART.21 En los casos que la norma correspondiente no determine el número de espacios para el estacionamiento de vehículos, se debenemplearlosiguiente: a) 1 estacionamiento cada (3) tres viviendas. b) 1 estacionamiento cada (5) cinco unidades de viviendas de usos colectivo. c) 1 estacionamiento para bicicletas porcada(3)tresviviendas.
A-020 REGLAMENTONACIONALDE EDIFICACIONES ART.26:RESIDUOSSÓLIDOS 26.1. Las edificaciones, deben contar con ambientesexclusivosparaalmacenamiento debasuradoméstica.(ElPeruano,2021)
d)Habilitaciónyconstrucción urbanaespecial UNSM REGLAMENTONACIONALDE EDIFICACIONES TH.010 HABILITACIONES RESIDENCIALES ART.1: LosparámetrosurbanísticosyedificatoriosdelosprediosurbanosdebenestardefinidosenelPlanUrbano. (ElPeruano,2021) Constituyen Habilitaciones Residenciales aquellosprocesosdehabilitaciónurbanaque están destinados predominantemente a la edificación de viviendas y que se realizan sobre terrenos calificados con una Zonificaciónafín. Seclasificanen: a)Habilitacionesparausode viviendaoUrbanizaciones b)Habilitacionesparauso deViviendaTaller c)Habilitacionesparauso deViviendaTipoClub
ART.6: SedenominanHabilitacionesparausodeViviendaoUrbanizacionesaaquellas Habilitaciones Residenciales conformadas por lotes para fines de edificación para viviendas unifamiliares y/o multifamiliares, así como de sus servicios públicoscomplementariosyelcomerciolocal. (ElPeruano,2021) REGLAMENTONACIONALDE EDIFICACIONES TH.010 HABILITACIONES RESIDENCIALES TIPOSDEURBANIZACIONES a)Densidadmáxima permisible; b)Calidadmínima deobras c)Modalidad deejecución.
CAPITULOII:ART.9 Las Habilitaciones para uso de Vivienda o Urbanizaciones se agrupan en seis tipos,deacuerdoalsiguientecuadro: (ElPeruano,2021) REGLAMENTONACIONALDE EDIFICACIONES TH.010 HABILITACIONES RESIDENCIALES CorrespondenaHabilitaciones Urbanasconconstrucción simultánea,pertenecientesa programasdepromocióndel accesoalapropiedadprivadadela vivienda.
CAPITULOII:ART.10 Las Habilitaciones para uso deViviendaoUrbanizaciones se agrupan en seis tipos, de acuerdo al siguiente cuadro: (ElPeruano,2021) REGLAMENTONACIONALDE EDIFICACIONES TH.010 HABILITACIONES RESIDENCIALES CAPITULOII:ART.11 Las Habilitaciones para uso de Vivienda o Urbanizaciones se agrupanenseistipos,de acuerdo al siguiente cuadro: (El Peruano, 2021)
REGLAMENTONACIONALDE EDIFICACIONES CAPITULOIII:ART.19 Son Habilitaciones conformadas por lotes destinados a edificaciones de uso mixtoviviendaseindustriaelementaly complementaria, así como de sus servicios públicos complementarios y comercio local, que se ejecutan sobre predios calificados como Zonas de ViviendaTaller: (ElPeruano,2021) TH.010 HABILITACIONES RESIDENCIALES
UNSM REGLAMENTONACIONALDE EDIFICACIONES Son Habilitaciones Residenciales conformadas por una o mas viviendas agrupadas en condominio con áreas recreativas y sociales de uso común. El (Peruano,2021) Estashabilitacionesurbanasseubican enZonasResidencialesdeBaja Densidad(R1),ZonasdeHabilitación Recreacional,oáreasdeplayao campestres.(ElPeruano,2021) CAPITULOIV:ART.23
REGLAMENTONACIONALDE EDIFICACIONES EM.30 INSTALACIONESDE VENTILACIÓN -LINEAMIENTOSDEDISEÑOPARASISTEMASDEVENTILACIÓNMECANICA. Estacionamientosensótanos a)Requisitos específicos para el diseño de sistemas de ventilación mecánica b.Estacionamientos 1. (ElPeruano,2021) Laventilacióndeestacionamientoensótanos, deberáserpermanenteyseefectuaráporun sistemamecánicodeimpulsiónyextracción FUENTE:OniriaArquitectura,2011 UNSM
REGLAMENTONACIONALDE EDIFICACIONES GH.010 CONDICIONES GENERALESDELAS HABILITACIONES CAPITULOI:ART.4 Lashabilitacionesurbanaspodránejecutarseentodoelterritorionacional,con excepcióndelaszonasidentificadascomo:(ElPeruano,2021) a)Deinterésarqueológico, históricoypatrimonio cultural d)Reservanacional g)Riberasderíos,lagosomares

ANÁLISISDE CASOS NACIONAL-INTERNACIONAL

CASONACIONAL UNIDADVECINAL MATUTE DATOSGENERALES ACCESIBILIDADYVÍAS EQUIPAMENTOURBANO ZONIFICACIÓN ANÁLISISFORMAL ANÁLISISFUNCIONAL ANÁLISISTÉCNICO-CONSTRUCTIVO ANÁLISISNORMATIVO

DATOSGENERALES UBICACIÓN

LIMA-PERÚ LAVICTORIA U.V.MATUTE

UNSM
Imp.(2020).RIZLAVICTORIA.
PROYECTISTAS 1155 NUMERODEVIVIENDAS 20HECTAREAS ÁREA 1953 INICIODECONSTRUCCIÓN 1981 FINALIZÓ IIYIIIEtapa:Arq.EnriqueCiriani IIIEtapa:Arq.SantiagoAgurto Cammp.(2015).UNIDADVECINALMATUTE–IETAPA|CatálogoArquitecturaMovimientoModernoPerú
UNSM Es.(2022).ClimaLaVictoria:Temperatura,ClimogramayTablaclimáticaparaLaVictoria-Climate-Data.org.
CLIMAENLAVICTORIA Precipitaciones Vientos Temperatura
LÍMITESTERRITORIALES NORTE DistritodeLima UNSM SUR SanIsidro ESTE SanbORJA SanLuis ElAgustino OESTE DistritodeLIma Lince EXTENSIÓN TERRITORIAL 8.74Km2 Imp.(2020).RIZLAVICTORIA.

ACCESIBILIDADYVÍAS

LAVICTORIA

UNSM
Imp.(2020).RIZLAVICTORIA.
ACCESIBILIDADYVÍAS UNSM LAVICTORIA INGRESOPEATONAL INGRESOVEHICULAR ESTACIONAMIENTOS Google.(n.d.).1442Jr.Andahuaylas-GoogleMaps.
Estadio“Matute”
HospitalGuillermoAlmenara PlazaMancoCapac Municipalidaddelavictoria Imp.(2020).RIZLAVICTORIA.
EQUIPAMIENTOURBANO ParqueUniónPanamericana

USODESUELO

UNSM Imp.(2020).RIZLAVICTORIA.

ZONIFICACIÓN

UNSM Imp.(2020).RIZLAVICTORIA.
ANÁLISISFORMAL CONCEPTO:DENSIDAD EDIFICIOSBLOQUE UNSM Eslarelación delnúmerode habitantescon launidad superficialen lazonaenla quese emplazael proyecto.Esta definicionesel elementobase parala planificación urbana VOLUMNESRECTANGULARESSOBRIOS Resolvióelproblemade viviendapara empleados,obrerosy personasdebajos recursosenelpaís PROBLEMÁTICA Habitar-arq.(2012).HABITAR:UNIDADVECINALMATUTE
ANÁLISISFORMAL CONCEPTO UNIDADVECINALMATUTE UNSM IETAPA:1953-1958 IIETAPA:1963-1966 IIIETAPA:-1981 ÁREAS TERRENO:230,000M2 A.CONSTRUIDA:140,000M2 A.EQUIP. PISTAS, VEREDAS Y ESTAC.:92,000M2 A.LIBRE:61.34% HABITANTES:6,295 Elconjuntoseproyectóparaalbergar718familias,perotraslaposterior intervencióndeCirianisellegóaconstruiruntotalde1155viviendas. Habitar-arq.(2012).HABITAR:UNIDADVECINALMATUTE
M
proyecto inicial tenía como principal criterio de implantación que los espacios se organizaran medianteladisposicióndebarrasdedepartamentos de 4 plantas de altura
la ocupación extensiva mediante casas patio de 2 plantas agrupadas en bloquessegúntipología ARQUITECTOSANTIAGOAGURTO TIPOCHALET TIPOFLAT Habitar-arq.(2012).HABITAR:UNIDADVECINALMATUTE
ANÁLISISFORMAL CONCEPTO
El
y
ANÁLISISFORMA CONCEPTO ARQUITECTOENRRIQUECRIANI UNSM Prescindedelascasaspatioydelaideadeplantabajalibre. Las barras de Ciriani son de 5 plantas, una más que en el proyecto de Agurto. La planta baja está ocupada por viviendasdetipologíasvariadasylasplantassuperioresse constituyenpordepartamentosdúplex.Laintroduccióndel dúplex, además de ser la unidad que condiciona la estructura,generaespaciosinterioresvariadosyfachadas distintivasmediantevacíosdedoblealtura. TIPOCHALET TIPOFLAT TIPODUPLEX Habitar-arq.(2012).HABITAR:UNIDADVECINALMATUTE
ANÁLISISFORMAL TIPOLOGÍADEVIVIENDA UNSM TIPOCHALET TIPOFLAT TIPODUPLEX 24BLOQUES 16BLOQUES 24BLOQUES DistribucióndeBloques Timebuilds.(2021).Timebuilds–Elcrecimientonoprogramadodelavivienda|UND.VECINALMATUTE.
ANÁLISISFORMAL ANÁLISISDEVIVIENDA UNSM T I P O C H A L E T Laorganizacióneneste tipodeviviendase caracterizaporsu agrupamientoengrupos de2 hasta4bloques. Además dequesu ubicaciónestá delimitadaporedificios colindantes. 1 2 Habitar-arq.(2012).HABITAR:UNIDADVECINALMATUTE
ANÁLISISFORMAL ANÁLISISDEVIVIENDA UNSM TIPOCHALET:DISTRIBUCIÓN C-Comedor E-Sala CO-Cocina SH-ServicioHigienico J-Jardín P-Patio D-Dormitorio TIPO1 TIPO2 AMBIENTES Chaletsde85m2con3 dormitorios,de62m2con2 dormitorios,80y100m2 con3y4dormitorios. Habitar-arq.(2012).HABITAR:UNIDADVECINALMATUTE
ANÁLISISFUNCIONAL ANÁLISISDEVIVIENDA ZONASOCIAL ZONADESERVICIO ZONAPRIVADA UNSM TIPOCHALET:ZONIFICACIÓN C-Comedor E-Sala CO-Cocina SH-ServicioHigienico J-Jardín P-Patio D-Dormitorio TIPO1 TIPO2 CIRCULACIÓN PlantaBaja SegundaPlanta Habitar-arq.(2012).HABITAR:UNIDADVECINALMATUTE
ANÁLISISFORMAL ANÁLISISDEVIVIENDA UNSM T I P O F L A T Estasviviendastipo flat,cumplenlafunción deorganizadorpor mediodelaaxialidad valiendosedela linealidad,queexiste enlasviviendasdetipo chalet Habitar-arq.(2012).HABITAR:UNIDADVECINALMATUTE
ANÁLISISFUNCIONAL ANÁLISISDEVIVIENDA ZONASOCIAL ZONADESERVICIO ZONAPRIVADA UNSM C-Comedor L-Sala CO-Cocina SH-Serviciohigienico D-Dormitorio TIPOFLAT:ZONIFICACIÓN Planta Baja Segunda Planta CIRCULACIÓN ESTACIONAMIENTO Habitar-arq.(2012).HABITAR:UNIDADVECINALMATUTE
ANÁLISISFORMAL ANÁLISISDEVIVIENDA UNSM C-Comedor L-Sala CO-Cocina SH-Servicio higienico D-Dormitorio TIPOFLAT:DISTRIBUCIÓN Plantabaja,presentaun estacionamiento,delos niveles2al5sonlas viviendas.Sonflatsde85 m2con3dormitorios Planta Baja Segunda Planta Habitar-arq.(2012).HABITAR:UNIDADVECINALMATUTE
ANÁLISISFORMAL ANÁLISISDEVIVIENDA UNSM T I P O D U P L E X Seorganizande maneraradial,en donde3hasta4 bloquesorganizana losedificiosquelos rodean. Habitar-arq.(2012).HABITAR:UNIDADVECINALMATUTE
ANÁLISISFORMAL ANÁLISISDEVIVIENDA UNSM TIPODUPLEX:DISTRIBUCIÓN C-CocinaComedor SH-Servicio higienico D-Dormitorio Planta Baja Segunda Planta Estosbloquespresentan apartamentostipoflatenla primeraplantade104m2con4 doemitorios.Losduplexestán desdelasegundaalaquinta planta,yestantienen100m2con3 dormitorios Habitar-arq.(2012).HABITAR:UNIDADVECINALMATUTE
ANÁLISISFUNCIONAL ANÁLISISDEVIVIENDA ZONASOCIAL ZONADESERVICIO ZONAPRIVADA UNSM C-CocinaComedor SH-Serviciohigienico D-Dormitorio TIPODUPLEX:ZONIFICACIÓN Planta Baja Segunda Planta CIRCULACIÓN Habitar-arq.(2012).HABITAR:UNIDADVECINALMATUTE
CUADRODEVERIFICACIÓN NORMATIVA Art.26:Tipologíasde escalerasprotegidas Art.7:Accesos Art.16:Separaciónentre edificaciones Art.20:Pasajesde circulación Art.34:Ascensores Art.44:Ductosde Ventilación Art.54:Diseñodeespacios deestacionamiento Art.57:Estacionamientos debicicletasymotos Art.7:Densidadpoblacional Art.12:Vanosdeaccesoy ventanas Art.15:Escaleras Art.21:Estacionamientos Art.26:Residuossólidos
CUADRODEVERIFICACIÓN NORMATIVA Instalacionesde ventilación ART.4 Lashabilitacionesurbanas podránejecutarseentodo elterritorionacional Art.1:Habilidades Residenciales,procesos urbanos Art.2:Clasificacióndelas habilitacionesresidenciales

CONCLUSIONES

La problemática que existía llevó al planteamiento de proyectos habitacionalesqueresuelvanlanecesidadbásicadeviviendade un usuario. Teniendo en cuenta que fue una de las primeras intervenciones urbanas de este tipo en el país, fue el ingreso de una nueva tipología de vivienda. Un proyecto que cumplió el objetivodedarleuntechoamásde1000familias.

CASOINTERNACIONAL EDIFICIO520WEST DATOSGENERALES ACCESIBILIDADYVÍAS EQUIPAMENTOURBANO ZONIFICACIÓN ANÁLISISFORMAL ANÁLISISFUNCIONAL ANÁLISISTÉCNICO-CONSTRUCTIVO ANÁLISISNORMATIVO
DATOSGENERALES UBICACIÓN
MANHANTTAN BARRIO CHELSEA Sagredo,R.(2018,1deabril).520West28th/ZahaHadidArquitectos.PlataformaArquitecturaPerú. UNSM
NUEVAYORK
ZAHAHADID PROYECTISTA 11PISOS NIVELES 5109.67m2 ÁREA 2014 AÑODECONSTRUCCIÓN JUNIO2017 INAUGURACIÓN Sagredo,R.(2018,1deabril).520West28th/ZahaHadidArquitectos.PlataformaArquitecturaPerú.

Climaen Manhanttan

Temperatura

UNSM
Precipitaciones Vientos
TiempoenManhattan-NY.(DakotadelNorte).Meteored.pe|meteorizado.

ACCESIBILIDADYVÍAS

PRINCIPAL

SECUNDARIO
UNSM
MapasdeGoogle.(DakotadelNorte).MapasdeGoogle.

ACCESIBILIDADYVÍAS

CORTEA-A(AVENIDA)

B NYCPlanificaciónZoLa.(DakotadelNorte).Nyc.Gov. UNSM
CORTEB-B(CALLE) A A B
HIGHLINE THESHED LACALLEDECHELSEA CINÉPOLIS MapasdeGoogle.(DakotadelNorte).MapasdeGoogle.
KASMINGGALLERY EQUIPAMIENTOURBANO CHELSEAPARK
NYCPlanificaciónZoLa.(DakotadelNorte).Nyc.Gov. UNSM
USODESUELOS Residencia Comercio Serviciopúblicos Parques
Residencialbaja
Residencialmediaalta (N.d.).RetrievedApril18,2022UNSM
ZONARESIDENCIAL
ANÁLISISFORMAL CONCEPTO ELRITMOA TRAVÉSDE LASCURVAS UNSM Galeríade520West28th/ZahaHadid Architects - 32 . (Dakota del Norte). PlataformaArquitecturaPerú.
CONCEPTO 06 Transformacion Ritmo Armonía PRINCIPIOS COMPOSITIVOS:
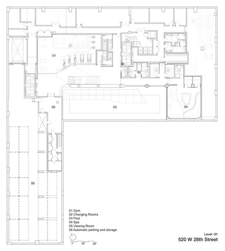
FLUJOGRAMA Plantabaja ESTACIO. CIRCULA. PASILLO CIRCULA. ESCALERA CIRCULA. PASILLO CIRCULA. PASILLO CIRCULA. ESCALERA SALADE PROYEC. LAVANDERÍA SSHH + VESTIDORES GIMNASIO SSHH + VESTIDORES SPA PISCINA ZonaSocial ZonaPrivada ZonaServicio
ZonaSocial ZonaPrivada ZonaServicio ANÁLISIS FUNCIONAL PLANTABAJA GIMNASIO VESTUARIOS PISCINA SPA CUARTODECÁMARAS GARAGE 1. 2. 3. 4. 5. 6. Galeríade520West28th/ZahaHadidArchitects-32. (DakotadelNorte).PlataformaArquitecturaPerú.
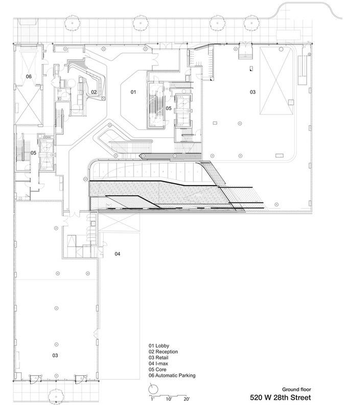
FLUJOGRAMA Nivel1 ZonaSocial ZonaPrivada ZonaServicio ENTRADA ESTACIONA LOBBY CIRCULA. PASILLO COMERCIO ENTRADA INGRESO COMERCIO COMERCIO CIRCULA. ESCALERA RECEPCIÓN CIRCULA. ESCALERA
ZonaSocial ZonaPrivada ZonaServicio ANÁLISIS FUNCIONAL NIVEL1 LOBBY RECEPCIÓN VENTAS JARDÍN INGRESOCOMERCIAL ESTACIONAMIENTO 1. 2. 3. 4. 5. 6. Galería de 520 West 28th / Zaha Hadid Architects - 32 . (Dakota del Norte).PlataformaArquitecturaPerú.
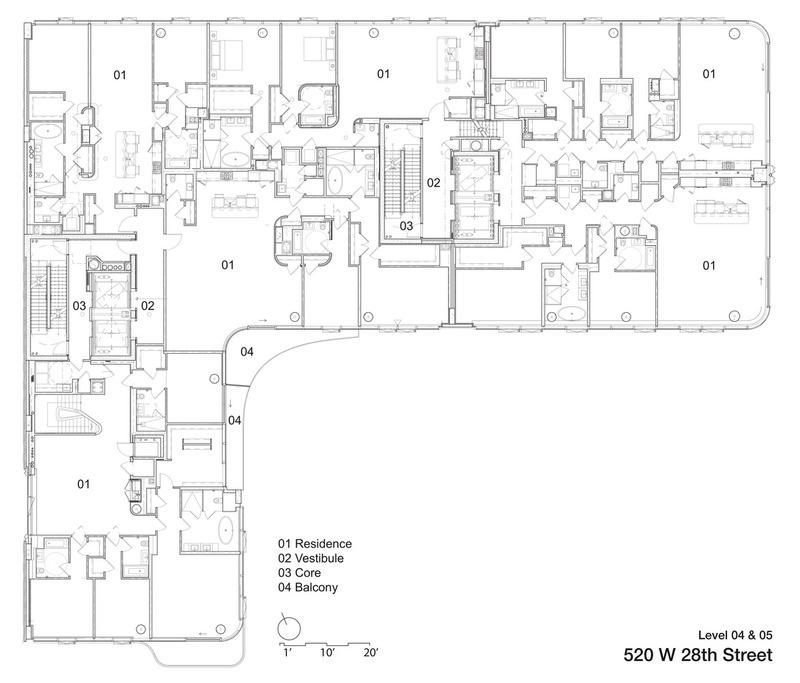
FLUJOGRAMA Plantatípica ZonaSocial ZonaPrivada ZonaServicio CIRCULA. ESCALERA CIRCULA. ESCALERA CIRCULA. PASILLO CIRCULA. PASILLO DEPARTAMENTO DEPARTAMENTO DEPARTAMENTO DEPARTAMENTO DEPARTAMENTO DEPARTAMENTO
ZonaSocial ZonaPrivada ZonaServicio ANÁLISIS FUNCIONAL PLANTATÍPICA RESIDENCIAS VESTÍBULO CENTRO BALCONES 1. 2. 3. 4. Galería de 520 West 28th / Zaha Hadid Architects - 32 . (DakotadelNorte).PlataformaArquitecturaPerú.
ZonaSocial ZonaPrivada ZonaServicio ANÁLISIS FUNCIONAL PLANTATÍPICA D O R M I T O R I O S D O R M I T O R I O S S A L A S PISCINA Galería de 520 West 28th / Zaha Hadid Architects - 32 . (DakotadelNorte).PlataformaArquitecturaPerú.
ZonaSocial ZonaPrivada ZonaServicio ANÁLISIS FUNCIONAL PLANTATÍPICA S A L A S O F I C I N A S S S H H D O R M I T O R I O S D O R M I T O R I O S PISCINA C.COMERCIAL C.COMERCIAL RECEP. Galería de 520 West 28th / Zaha Hadid Architects - 32 . (DakotadelNorte).PlataformaArquitecturaPerú.
ANÁLISIS TÉCNICO-CONSTRUCTIVO Laestructuraseorganizaenbandasde5.50metrosdeancho Horimigónarmado Contrastedecoloresclaros Fachadadeacerohechoamano Marzo2014 Junio2016 Sagredo,R.(2018,1deabril).520West28th/ZahaHadidArquitectos.PlataformaArquitecturaPerú.
ANÁLISIS TÉCNICO-CONSTRUCTIVO Sagredo,R.(2018,1deabril).520West28th/ZahaHadidArquitectos.PlataformaArquitecturaPerú.

FOTOSINTERIORES

Galeríade520West28th/ZahaHadidArchitects-32.(DakotadelNorte).PlataformaArquitecturaPerú.

FOTOSEXTERIORES

Galeríade520West28th/ZahaHadidArchitects-32.(DakotadelNorte).PlataformaArquitecturaPerú.
Art.26:Tipologíasde escalerasprotegidas CUADRODEVERIFICACIÓN NORMATIVA Art.7:Accesos Art.16:Separaciónentre edificaciones Art.20:Pasajesde circulación Art.34:Ascensores Art.44:Ductosde Ventilación Art.54:Diseñodeespacios deestacionamiento Art.57:Estacionamientos debicicletasymotos Art.7:Densidadpoblacional Art.12:Vanosdeaccesoy ventanas Art.15:Escaleras Art.21:Estacionamientos Art.26:Residuossólidos
CUADRODEVERIFICACIÓN NORMATIVA Instalacionesde ventilación ART.4 Lashabilitacionesurbanas podránejecutarseentodo elterritorionacional Art.1:Habilidades Residenciales,procesos urbanos Art.2:Clasificacióndelas habilitacionesresidenciales

CONCLUSIONES

La residencia 520 West rompe el esquema de una residencial comun, presentando en su parte externa la envolvente y de metal, creando su propia presencia arquitectónica, sin embargo mantiene la poderosa dinámicadelentorno. Fue diseñada y construida tomando en cuenta el tipo de usuarioynecesidadesquerequeriría.

RECOMENDACIONES Analizarlosdiferentesfactores Realizar un sistema estructural que vaya acorde aladistribución Usarmaterialesdeprimeracalidad Contarconlaspersonascapacitadas Para logar que un proyecto cumpla con los requerimientos necesarios para la organización distribuciónyconstrucciónesimportante:
GRACIAS

Turn static files into dynamic content formats.

Create a flipbook
Issuu converts static files into: digital portfolios, online yearbooks, online catalogs, digital photo albums and more. Sign up and create your flipbook.