Natalie Fleshman Thesis Volume II

Page 1

east harlem community library

Natalie Fleshman

Thesis Research and Design

Virginia Tech Interior Design

Spring 2023

2

thesis volume II

table of contents

volume II design

5
CONCEPT statement conditions process and parti DESIGN overall first and second floor third, fourth, and fifth floor sixth, seventh, and terrace floor SPECIFICATIONS graphics materials furniture APPENDIX sources 54 57 58 60 62 64 66 72 80 86 88 90 92 94 96

STATEMENT CONDITIONS PROCESS AND PARTI

7
8

concept statement

East Harlem has long been a home to immigrants from all over the world, a central point from which their stories radiate. The library will emanate a sunrise; a universal symbol that draws people in to its warmth, serenity, and hope. This reflects the goals of the library, drawing a diverse demographic to learning and respite from the city. The radial nature of the sun reflects the array of cultures and knowledge that the library represents. Similar to how the different wavelengths of light create the colors of a sunrise, activities in the library will disperse from a common center on each floor to facilitate wayfinding and connectivity. The colors of a sunrise will also serve to designate each floor to help with wayfinding in a large building, and the design will highlight the rich historical structure of the building.

9

rebuild and new conditions

10
REBUILD
SITE VISIT

NEW CONDITIONS

terrace existing condition

interior new construction condition

11
construction photo showing exposed brick condition

PROCESS SKETCHES

12 most private semi-private public

PARTI DIAGRAM

The original architecture of the historic building divides the floors into three groups on the facade, and the interior program is grouped accordingly. The first two floors designated in yellow provide a relaxed lobby and cafe atmosphere, and highlight the neighborhood’s culture and history. The next three are traditional literature collection floors denoted by orange, and the top two are mixed use community amenity spaces in red. The gradient points towards each floor’s organization, with more concentrated areas on the southeast wall, closest to the sunrise, and spaces get more private as one moves to the other side.

13

volume II

OVERALL

FIRST AND SECOND FLOOR

THIRD, FOURTH, AND FIFTH FLOOR

SIXTH, SEVENTH, AND TERRACE FLOOR

15

overall design

Section NTS

Graphic behind help desk designates floor colors to facilitate way finding, and each floor has a color strip outside of the elevator. The East wall, shown in the section, incorporates a gradient from the shorter wavelengths of yellow to the longer wavelengths of red as the space grows more private.

16

FLOOR BY FLOOR PROGRAM

terrace

conference space, small and large meeting rooms

technology access, job training rooms, maker’s spaces

children’s literature collection, play stage, teaching/reading areas

non-fiction literature collection, study rooms

fiction literature collection, circulation desk, soft seating, staff space

community history educational display

cafe, help desk, communal lounge and work space

17

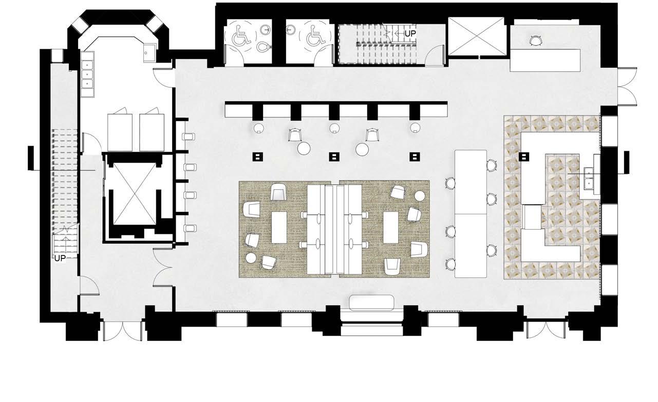
level one and two

18 Level 1 Floorplan- Lobby and Cafe NTS 1 coffee bar 2 bar seating 3 help desk 1 3 2 5 6 4 8 9 7 4 main elevator 5 community book display 6 lobby lounge 7 semi-private seating 8 service elevator 9 cafe back of house
19 1 lounge and overlook 2 neighborhood history graphic 3 lounge and overlook
NTS 1 3 2
Level 2 Floorplan- History Display

Main lobby space facing southeast wall, looking up into mezzanine. Custom built bookshelf demonstrates wavelength gradient and displays culturally relevant books. Design respects historical existing brick shell and cross beams, and uses them to aid organization.

Axon showing help desk and coffee bar, encouraging pedestrians to come in off of the street

Elevation of existing brick wall- historic windows are kept and highlighted to celebrate the building’s heritage

22
Cooper Lighting Wall Washer to illuminate history graphics Cooper Lighting high bay lighting to illuminate double height floors Level 2 RCP NTS

Second floor utilizes a gradient to lead space users down a hall displaying important cultural events in the neighborhood’s history. This serves to combine the library’s traditional purpose of education with the goal of celebrating the local community.

Along with gradient, angled panels allow for an overall view of the timeline dates at the start, but more details of the historical events are revealed as you walk along the display.

23

level three, four, and five

24
NTS 1 printing service 2 book drop 3 circulation 1 3 2 5 6 4 8 9 7 4 fidget furniture lounge 5 work table stack
in 6 fiction book
7 reading nooks 8 book storage 9 staff
Level 3 Floorplan- Fiction Literature Collection
built
stacks
space
25
NTS 1
2
1 3 2 4 3
4
Level 4 Floorplan- Non-fiction Literature Collection reading lounge non-fiction book stacks group study rooms small study rooms

Third Level holds the library’s fiction collection, while providing quiet places to read and rest away from the overstimulating city. Turf acoustic ceiling helps designate the floor as an orange one, while helping with keeping the floor quiet.

ACCESSIBLITY AND NEURODIVERSITY RESEARCH APPLIED

The detail views below reflect research based design decisions within the library on the third level. An interview with an Accessibility Strategist & Librarian for Disability Studies, and research on studies in the area, revealed key factors in design that is inclusive for neurodiverse individuals and individuals with disabilities. These include way finding strategies, clear sight lines, attention to glare and acoustics, choice in seating, accommodating movement, and accessible book stack height.

book stacks are an accessible height, with genre designated by color, and built in lighting to aid with visual impairment

rocking chair accomodates the need to fidget and helps with focus

28

niches such as above provide quiet spaces with a feeling of privacy

textures in material palette are not abrasive, and aid with acoustics, wayfinding, and a sense of place through balance

circulation desk provides space for books on hold

29
30
Level 5 Floorplan- Children’s Literature Collection NTS 1 parent reading corner 2 bean bag seating
1 3 2 5 6 4 8 7
3 story corner 4 craft/class tables 5 dress up/play stage 6 children’s book stacks 7 book storage 8 mother’s rooms

zilenzio ceiling clouds add an element of fun on the children’s floor while serving to absorb sound, with the increased sound level that comes with a children’s level

Fifth Level holds the children’s collection. Book stacks have reading niches built in, and the East wall holds more books, as well as a stage for play and bins with educational toys and costumes. Lighting fixtures aid in acoustic absorption.

31

level six, seven, and eight

32 Level 6 Floorplan- Technology Floor NTS 1 3 2 5 4 1 tech checkout 2 maker’s space 3 job training 4 tech and storage repair 5 tech access tables
33
1 3 2 5 4 1
2
3
4
5
Level 7 Floorplan- Community and Conference Center NTS
catering counter
event/conference space
event storage
large conference room
small conference room

computer access table simulates some visual and acoustical privacy in an overall larger space

aside from typical desktop computers, users can check out technology such as cameras and tablets that they may not have access to elsewhere

34

maker’s spaces allow community access to tools, materials, and creative technology in order to expand education beyond only literature

35
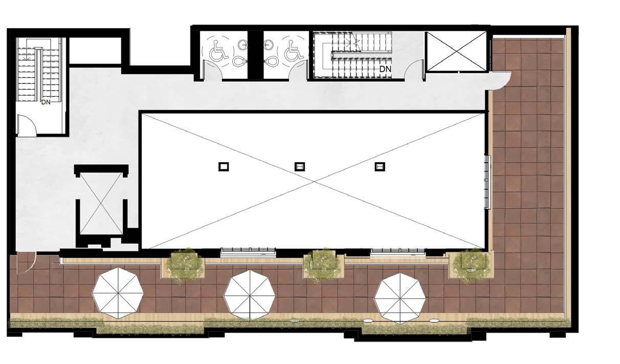
NTS
Level 8 Floorplan- Rooftop

rooftop garden provides access to nature, a respite from the city and public space with greenery to support rest and focus

existing green metal roof is kept intact, and rooftop looks down into event space on seventh floor, providing natural light

GRAPHICS MATERIALS FURNITURE

39

graphics

wayfinding graphic, placed at help desk on first floor, and designates floors off of each elevator, inspired by neurodiversity research

40
first floor cafe menu

non-fiction literature is classified with dewey decimal system, however the ficiton literature collection on level 3 is divided into genres with a graphic gradient aiding wayfinding between stacks

sample of history graphic on level 2, which provide dates, historical context and an image to make knowledge more accessible

poured concrete flooring

green metal roofing to simulate copper patina

UPHOLSTERY

designtex tiny boucle in sunbeam

100, 000 Wyzenbeek double rubs (CD)

HPD , Mindful Materials , Prop 65 Compliant , WELL

designtex kith in patina

100, 000 Wyzenbeek double rubs (CD)

HPD , Mindful Materials , Prop 65 Compliant , WELL

kravet rutledge in terracotta

Martindale - 35,000 Cycles

steel structural beams

brick exterior walls, exposed in interior

designtex stratum in ember

100, 000 Wyzenbeek double rubs (CD)

HPD , Mindful Materials , Prop 65 Compliant , WELL

designtex rein in camel

1, 000, 000 Wyzenbeek double rubs (CD)

HPD , Mindful Materials , Prop 65 Compliant , Greenguard Gold

cf stinson lorelai in dove

Exceeds 100,000 double rubs - heavy duty Enhanced soil + stain resistance Greenguard Gold

42
EXISTING
materials

FLOORING

fireclay tile aerial

100% lead-free Recycled Clay Body HPD

Contributes to LEED Credits

flor tailored touch carpet in clementine

84% recycled content

Green Label Plus Certified Protekt Soil Stain Protection

MISCELLANEOUS

filzfelt aro plank 2 in senf

100% biodegradable/ compostable minimum 60% post-consumer recycled content

Living Building Challenge Compliant

richloom romeo in harvest wallcovering

Free Of Fr Chemicals

interface video spectrum carpet in carbon

69% recycled content Certified Carbon Neutral Floors™ Green Label Plus Certified interface urban retreat sage/citrus

Protekt^2 Soil Stain Protection

Green Label Plus Certified Certified Carbon Neutral Floors™

gilasi recycled glass in tesoro

85% recycled content Contributes to LEED Credits

turf felt ceiling and covering (several colorways)

DECLARE Red List Free

Intertek Certified Clean Air GOLD REACH Compliant

perfopan acoustic perforated wooden panels

Free Of Fr Chemicals

plyboo edge grain bamboo plywood

FSC® Certified Low Emitting Material

43

furniture

steelcase montara650 rocker

BIFMA Level 2, SCS Indoor Advantage™ Gold

eko swagr bag

inner bag with water repellent finish

100% virgin expandable polymeric beads

steelcase education tenor chair

SCS Indoor Advantage Gold

JMC group kiosk

interactive kiosk for checking out technology on level 6

steelcase coalesse circa table

BIFMA Level 2, SCS Indoor Advantage™ Gold

allsteel townhall rock

SCS Indoor Advantage Gold fidget-friendly chair

44

bludot cleon sofa

solid hardwood frame

viccarbe copa stool

BIFMA Compliant, CAL 117, EN Compliant

coalesse marien chair

SCS Indoor Advantage Gold Healthier Hospital Compliant Product

coalesse lagunitas personal table

Cradle to Cradle Gold

coalesse portrero standing height table

integrated power BIFMA Compliant

connection centro bar stool

allows for swivel in maker’s space

45

sources SCHOLARLY ARTICLES

DeborahHicksaPersonEnvelopeMary F.CavanaghbAmyVanScoyc, et al. “Social Network Analysis: A Methodological Approach for Understanding Public Libraries and Their Communities.” Library & Information Science Research, JAI, 20 June 2020, https:// www.sciencedirect.com/science/article/abs/pii/S0740818819304050.

“Exploring the Latino Metropolis: East Harlem.” Exploring the Latino Metropolis: A Brief Urban Cultural History of US Latinos, https://scalar.usc.edu/works/latino-metropolis-a-briefurban-cultural-history-of-us-latinos---1/east-harlem-1.

Imrie, Rob. “‘The Lonely City’: 13: Urban Infrastructure and the Problem of Lonel.” Taylor & Francis, Taylor & Francis, 28 Sept. 2017, https://www.taylorfrancis.com/ chapters/edit/10.4324/9781315645582-13/lonely-city-rob-imrie.

Ploug, Nan Christian, and Dahlkild. “Library Architecture: History: V4: Encyclopedia of Library and Infor.” Taylor & Francis, Taylor & Francis, 15 Mar. 2017, https:// www.taylorfrancis.com/chapters/edit/10.1081/E-ELIS4-273/library-architecture-historynan-christian-ploug-dahlkild.

Public Libraries as Cultural Hubs in Disadvantaged Communities ... https://www.journals. uchicago.edu/doi/full/10.1086/697707.

Şanlı, Seda Nur, and Ayşe Sirel. “The Effects of Developing Information Technologies on 21st Century Library Architecture.” ICCAUA, https://journal.iccaua.com/index.php/ jiccaua/article/view/5.

IMAGES

“125th Street History.” Ephemeral New York, https://ephemeralnewyork.wordpress.com/ tag/125th-street-history/.

Banks, Clay. “Photo by Clay Banks on Unsplash.” Beautiful Free Images & Pictures, 28 Apr. 2019, https://unsplash.com/photos/LjqARJaJotc.

Clark, Dartunorro. “El Barrio Week Returns with Dominoes and Dance Parties.” DNAinfo New York, DNAinfo New York, 4 June 2017, https://www.dnainfo.com/new-york/20170602/ east-harlem/el-barrio-week-2017-events/.

“Iida Announces 45th Annual Interior Design Competition Finalists.” Interior Design, 16 Aug. 2021, https://interiordesign.net/designwire/iida-announces-45th-annual-interior design-competition-finalists/.

Kozinc, Matic. “Photo by Matic Kozinc on Unsplash.” Beautiful Free Images & Pictures, 15 May 2016, https://unsplash.com/photos/njYp4KqjqF8.

“Local and Family History Series.” Boston Public Library, https://www.bpl.org/local-andfamily-history-series/.

Mossholder, Tim. “Photo by Tim Mossholder on Unsplash.” Beautiful Free Images & Pictures, 22 Jan. 2020, https://unsplash.com/photos/3qglmiP1HK0.

Pieters, Lerone. “Photo by Lerone Pieters on Unsplash.” Beautiful Free Images & Pictures, 14 Jan. 2019, https://unsplash.com/photos/ Reuben, Jeff. “A Guide to the Most Iconic Libraries in Scandinavia.” Scandinavia Standard, 3 Sept. 2019, https://www.scandinaviastandard.com/a-guide-to-the-most-iconiclibraries-in-scandinavia/.

Schubert, Jörg. “Across 110th Street.” Flickr, Yahoo!, 2 Mar. 2017, https://www.flickr.com/ Spanish Harlem New York, https://hotcore.info/babki/spanish-harlem-new-york.htm.

X. “Photo by X on Unsplash.” Beautiful Free Images & Pictures, 13 July 2018, https:// unsplash.com/photos/IgUR1iX0mqM.

Y-C, Nic. “Photo by NIC Y-C on Unsplash.” Beautiful Free Images & Pictures, 12 Feb. 2019, https://unsplash.com/photos/voFYl9nvG6M.

46

ADDITIONAL WEBSITES

“About NYC Health Data.” Data - NYC Health, https://www.nyc.gov/site/doh/data/datahome.page.

Berkowitz, Melanie. “New York City and Trauma Survivors.” Downtown Somatic Therapy - Psychotherapy in New York City, Downtown Somatic Therapy - Psychotherapy in New York City, 3 Aug. 2022, https://www.downtownsomatictherapy.com/article/newyork-city-trauma-survivors.

“Designing for Neurodiversity.” DesignCurial, 26 Feb. 2021, https://www.designcurial.com/ news/designing-for-neurodiversity-8534814/.

Dr. Dave Chokshi, NYC Health Commissioner. “Op-Ed: NYC Health Commissioner Dr. Chokshi Says Covid Pandemic Has Left U.S. with New Epidemic of Loneliness.” CNBC, CNBC, 9 Mar. 2022, https://www.cnbc.com/2022/03/09/op-ed-nyc-health-commissionerchokshi-says-covid-pandemic-has-left-us-with-new-epidemic-of-loneliness.html.

“East Harlem Neighborhood Profile.” NYU Furman Center, https://furmancenter.org/ neighborhoods/view/east-harlem.

“Harlem Historic Corn Exchange.” Matterport Discover, https://matterport.com/discover/ space/harlem-historic-corn-exchange.

Harmonizing the Seen and Unseen When Designing for Neurodiversity - Stantec. https:// www.stantec.com/en/ideas/topic/buildings/harmonizing-the-seen-and-unseenwhen-designing-for-neurodiversity.

Henry, Christopher N. “Designing for Autism: Lighting.” ArchDaily, ArchDaily, 19 Oct. 2011, https://www.archdaily.com/177293/designing-for-autism-lighting.

“Industries in East Harlem, New York, New York (Neighborhood).” The Demographic Statistical Atlas of the United States - Statistical Atlas, https://statisticalatlas.com/ neighborhood/New-York/New-York/East-Harlem/Industries.

“Library Space: A Planning Resource for Librarians.” Sasaki, https://www.sasaki.com/ projects/library-space-a-planning-resource-for-librarians/.

Paciotti, Barbara. “Disability Accessibility in the School Library.” From Header Tag in Adv Settings: Looking Backwards-No Sweat Library Lessons & Management That Works, 28 June 2020, https://lookingbackward.edublogs.org/2020/01/25/disability-accessibility/. Poverty, Depression, and Anxiety: Causal Evidence and Mechanisms | Science. https:// www.science.org/doi/10.1126/science.aay0214.

Vitullo-Martin, Julia, et al. “Breathing New Life into a Harlem Treasure: Inside the Corn Exchange Bank Building Construction.” Untapped New York, 17 July 2014, https:// untappedcities.com/2014/07/17/breathing-new-life-into-a-harlem-treasure-inside-thecorn-exchange-bank-building-construction/.

47

thank you

Turn static files into dynamic content formats.

Create a flipbook
Issuu converts static files into: digital portfolios, online yearbooks, online catalogs, digital photo albums and more. Sign up and create your flipbook.