Nadya Prasetyo: Architecture + Drafting Portfolio

Page 1


PT L O F I R O O

CONTACT INFORMATION

NAME: NADYA PRASETYO

LOCATION: Huntingdale, WA

PHONE: +61 421 160 728

E-MAIL: nadyawsl@gmail.com

LINKEDIN:

https://www.linkedin.com/in/nadyaprasetyo/ INSTAGRAM: https://www.instagram.com/nadya_p_arch/

ABOUT

I am a talented and dedicated Curtin University MSc in Architecture graduate with proven experience assisting in research and design of projects at various scales. I am able to bring forth creativity, high attention to detail, extensive knowledge of design softwares and great teamwork capabilities. My particular interest lies in the role of architecture in providing lively and sustainable places that enrich and support the society and environment. With a passion for continuous exploration and innovation, I am eager to leverage my knowledge and skills into practice and contribute to the success of the architecture industry.

EDUCATION

MASTER OF ARCHITECTURE (MSC)

Curtin University, Bentley, WA February 2020 - December 2021

CWA: 73.19

INDUSTRY EXPERIENCE

BACHELOR OF APPLIED SCIENCE (ARCHITECTURAL SCIENCE)

Curtin University, Bentley, WA February 2017 - December 2019

CWA: 78.33

CO-ACADEMY

Architectural Graduate | December 2024 - January 2025 | Australia

• Co-designed project concepts, analyses, schedules and final working drawings for an office fit-out project using Revit with a team of 6

• Organized and ensured consistency of working drawings to standards

• Researched, gathered and curated site and proposal information from the team for writing a design report via InDesign

• Liaised with furniture suppliers to confirm item availability per design brief and recommend alternatives to the team when needed

• Modelled custom furniture/fixtures and annotated material/hardware for accurate implementation

REDIPODS

Architectural Drafter | October 2024 - February 2025 | Fremantle, WA

• Created and updated prefabricated house drawings using AutoCAD, and customizing from standard designs based on customer preferences

• Collaborated with directors and builders to develop detailed structural documentation based on construction standards; identified missing information and liaised with the team to complete design specifications

• Ensuring building designs are compliant to site conditions and client requirements by interpreting site surveys and integrating Housing Industry Association (HIA) guidelines

SPAX ARCHITECTURE

Architectural Assistant | March 2022 - October 2022 | Perth, WA

• Created and reviewed floor-plans and 3D visuals using Revit and Enscape for interior fit-out projects to ensure no errors upon submission to clients

• Researched and curated material, furniture and fixture collections to develop detailed scheduling documents for delivery to suppliers

• Reviewed detailed design against client brief as well as planning and building regulations for a multi-residential project; issued design queries for clarification with clients using Microsoft Word and Excel

SAZ DESIGN AND DRAFTING

CAD Draftsperson | November 2020 - February 2021 | Kewdale, WA

• Maintained accurate site information by gathering, verifying and updating technical records

• Scheduled and tracked fittings and appliances to support project timelines

• Ensured compliance with standards by reviewing project data against current regulations

OTHER EXPERIENCE EXTRACURRICULAR ACTIVITIES

PEPPER LUNCH

Restaurant Waitress | November 2022 - December 2022 | Victoria Park, WA

• Provided exceptional, friendly and prompt service within a team environment as the first point of contact, enhancing overall restaurant performance

• Managed scheduling and seating for reservations to increase service efficiency and reduce customer wait times

• Anticipated and addressed customers with personal preferences and restrictions, improving customer satisfaction

GANGNAM CAROUSEL

Restaurant Waitress | February 2022 - September 2022 | Cannington, WA

• Greeted and assisted customers in a fast-paced environment, providing friendly and attentive service

• Handled billing, table checks and cash transactions with accuracy

• Trained new staff in communication, procedures and client-facing etiquette

• Documented customer concerns and relayed them to kitchen staff for resolution, ensuring prompt follow-up

CITY OF NEDLANDS

Fieldworker | 26 - 27 February 2021 | Nedlands, WA

• Captured and delivered building photographs through digital means (Dropbox) for development of precinct plans

• Gathered qualitative data on residential buildings via survey sheets

• Gained an understanding of the Design WA Principles (SPP7.0) to assess local character of buildings

TECHNICAL SKILLS

SOFT SKILLS

CO-ARCHITECTURE (CO-ARCHITECTURE.COM/CO-ACADEMY)

Architectural Fellow | 08 April, 2024 - present

EMERGING ARCHITECTS AND GRADUATES NETWORK (EMAGN) WA

Committee Member | August 2023 - present

COHEN CONNECT (COHENCONNECT.ORG)

Graphic Design and Branding Assistant | July 2023 - November 2023

CURTIN ARCHITECTURE STUDENT ASSOCIATION (CASA)

Social Media Commitee | February - November 2021

OPEN HOUSE PERTH

Front-of-house Volunteer | 10 November 2018; 16 - 17 November 2019

CURTIN UNIVERSITY

“New to Curtin” Mentor | July 2018 - June 2019

HOBBIES

8 years, 26 projects 8 years,16 projects

8 years, 31 projects

3 years, 10 projects

1 year, 2 projects

4 years, 9 projects Attention to detail

to music/podcasts

REFEREES

KEVIN MITCHEM

Supervisor – CO-Academy 04 2020 8454 kmitchem@co-architecture.com

TIFFANY MOLLOY

Senior Architect - Hillam Architects 04 6618 7760

tiffany@hillam.com.au

U P C X All Projects Displayed Projects

University Projects Competition/ Workshop Projects Professional Projects Personal Projects

THIS PAGE IS INTENTIONALLY LEFT BLANK

1 | THE WALLS AROUND US: WALSH STREET RESIDENCE

COMPETITION PROJECT: ROBIN BOYD FOUNDATION | JULY 2022JANUARY 2023 | INDIVIDUAL WORK

This multi-residential project explores the architectural propositions of Robin Boyd (1919-71). Located on a narrow plot of land formerly occupied by the Boyd House II at the prestigious suburb of South Yarra, the inventive use of materials and structural components resulted in a distinctive, sustainable and affordable place to live for residents of different sizes and lifestyles. The proposal seeks to take advantage of the proximity of public amenities (e.g. Public open spaces, public transportation and commercial outlets) to develop a sense of community and wellbeing among the inhabitants.

290 WALSH STREET, SOUTH YARRA VIC 3141

Competition Project: Robin Boyd Foundation | July 2022 - January 2023 | Individual Work

EXTERIOR PERSPECTIVE FROM NORTHEAST CORNER

Modelling: Sketchup | Render: Twinmotion | Edit: Photoshop

Sketchup | Edit: Photoshop

DESIGN CONCEPT

General mass divided into 4m x 4m grids to accommodate easy and flexible spatial configuration

Landscaping and addition of communal terraces and underground parking

Addition of circulation core

Subtraction of form to accommodate open communal facilities

Sun and wind orientation to facilitate passive performance (e.g. North-facing windows and screens)

Western wing lowered by 1m to adapt to site topography, resulting in a split-level configuration

Application of architectural features for final outcome

Modelling: Sketchup | Edit: Photoshop + Illustrator

Modelling:

ELEVATIONS

Modelling: Sketchup | Edit: Photoshop

NORTH
SOUTH
EAST
WEST
VIEW FROM FRONT BALCONY INTO COMMON SPACE (TOP) COMMON APARTMENT SPACE (MIDDLE) ROOF TERRACE FACING NORTH (BOTTOM)
Modelling: Sketchup | Render: Twinmotion | Edit: Photoshop

THIS PAGE IS INTENTIONALLY LEFT BLANK

2 | BIOWELL SUITES

UNIVERSITY PROJECT: COMPLEX BUILDINGS RESEARCH STUDIO AND METHODS | JULY - NOVEMBER 2020 | INDIVIDUAL WORK

This medihotel project is designed around the concept of biophilia, where healthcare architecture serves more than a place for healing. It also has a role as a gathering point for culture, environment and health as it supports the vitality of Perth and the physical and psychological wellbeing of its users. The aim is to create an environment that exceeds that of typical hospitals, where users can enjoy a welcoming and comfortable experience, as it allows reconnection to nature among a heavily urbanized environment.

212 WELLINGTON STREET, PERTH WA 6000

University Project | July - November 2020 | Individual Work

VIEW TOWARDS PUBLIC PLAZA

Modelling: Sketchup | Render: Twinmotion | Edit: Photoshop

MEANS OF ACCESS

Vehicular thoroughfare

Pedestrian thoroughfare (through public plaza)

Shared zone

VIEWS + TYPE OF USE

Recreational wing (West)

Clinical wing (East)

• Recreational wing is shorter to allow unrestricted visual access to the Perth City Center from all hotel units

• Clinical wing is located closer to the Royal Perth Hospital where visual access is also gained

• Recreational wing in closer proximity to city center, accommodating different types of amenities

CLIMATIC CONDITIONS

• West-facing timber screens are applied to block out the harsh afternoon sun

• Taller clinical wing also takes an advantage of cool summer winds

• Roofs are opened for rain to access the atrium garden inside the building

INTEGRATED GREENERY

• Immediate surrounding has a small amount of greenery

• Extensive green roofs above hotel units and recreational wing provide insulation and reduce heat island effect

• Planters on atria and unit balconies increase shade from afternoon sun Modelling: Sketchup | Edit: Photoshop + Illustrator

FLOORPLANS (AXONOMETRIC)

3-6

1. Pick-up/drop-off

2. Cafe kitchen

3. Cafe

4. Public plaza

5. Lobby/reception

6. Restrooms

7. Pharmacy

8. End-of-trip facility

9. Restaurant

10. Restaurant kitchen

11. Utilities

12. Loading bay

13. Fitness center

14. Pool

15. Atrium garden 1 + play area

16. Urgent care clinic

17. GP clinics

18. Staff office 1

19. Accessible inpatient units

20. Standard inpatient units

21. Dining ares + servery

22. Atrium garden 2

23. Staff office 2

24. Consulting treatment rooms

Unit balconies

Pool restrooms

Communal lounge

End-of-trip facilities

Connecting bridge

Unlike a typical hospital layout that consists of long, continuous rows of inpatient rooms and lack of openings, the design provides intermediate spaces for users to rest and interact with their surroundings. The smooth gradience between communal and private as well as the open-air layout and incorporation of greenery reflects the concept of biophilia, which is believed to enhance human wellbeing.

Car park

Recreational wing Connecting bridge West-facing units

Modelling: Sketchup | Post-production: Photoshop + Illustrator

Lobby + reception

Atrium garden void + communal zone

Clinical wing East-facing units

Atrium garden
VIEW UP THE CLINICAL WING (TOP) GARDEN ATRIUM ON LEVEL 2 (BOTTOM)
Modelling: Sketchup | Render: Twinmotion | Edit: Photoshop

THIS PAGE IS INTENTIONALLY LEFT BLANK

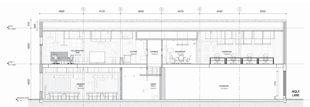
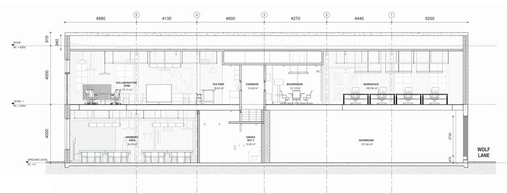
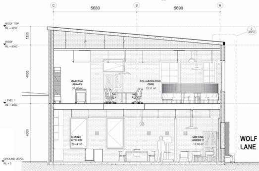
3 | ARCHIVE 808

PROFESSIONAL PROJECT: CO-ACADEMY PROJECT GROUP | DECEMBER 2024 - JANUARY 2025 | GROUP WORK

This project aims to repurpose a vacant office building into a showroom and a refurbished office for an architectural practice. The building is situated within the King Street Heritage area, and hence, provides a unique challenge to propose an interior that incorporates an open office concept while respecting the local character of the city.

The design also extends to the public realm by incorporating means of urban activation to re-purpose laneways and promote community engagement among workers and visitors alike.

808 HAY STREET, PERTH WA 6000

Professional Project | December 2024 - January 2025 | Group Work

EXTERIOR PERSPECTIVE

Modelling + Render: Revit | Edit: Photoshop

Modelling + Documentation: Revit

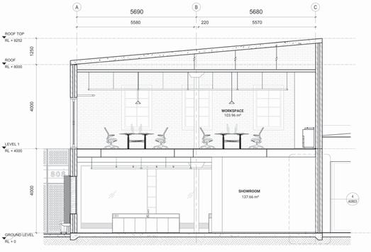
MEMBERS LOUNGE
Modelling + Render: Revit

0 2 4 8 m

INTERNAL ELEVATIONS: MEMBERS’ AREA

ELEVATION 1

ELEVATION 2

ELEVATION 3

ELEVATION 4

Modelling + Documentation: Revit

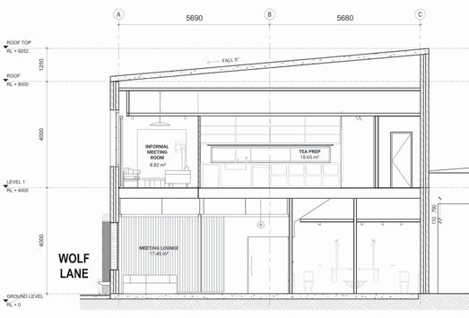
PLAN 1
ELEVATION 3
ELEVATION 2
SECTION 4
3D VIEWS

TEA PREPARATION AREA (TOP) MATERIAL LIBRARY (BOTTOM)

Modelling + Render: Revit | Edit: Photoshop

THIS PAGE IS INTENTIONALLY LEFT BLANK

4 | INTERGENERATIONAL HOUSING PROJECT

UNIVERSITY PROJECT: ARCHITECTURAL THESIS PROJECT | MARCHNOVEMBER 2021 | INDIVIDUAL WORK

This dissertation project provides a variety of solutions to overcome a new pressure in households shaped by evolving social, cultural and economic conditions. With a gradually growing and ageing population, there is an increasing importance on flexible living arrangements that are able to adapt to the family cycle over a long term. Since multigenerational households consume a larger building footprint and contribute to the urban sprawl, the densification of residential development pushes for more compact ways of living without compromising family size and functions.

40 LATHAM ROAD, FERNDALE WA 6148

University Project | March - November 2021 | Individual Work

EXTERIOR PERSPECTIVE

Modelling: Sketchup | Render: Twinmotion | Edit: Photoshop

SITE ANALYSIS

SUN PATH

Winter (21/06)

WIND PATHS

Warm winter winds

Summer (21/12) Cool summer winds

STORMWATER NETWORK

Stormwater pipes

Stormwater pits

Drawing: AutoCAD | Edit: Photoshop

VEGETATION

CIRCULATION

SITE PROPOSAL

Modelling: Sketchup | Render: Twinmotion | Edit: Photoshop

Standard resident and visitor parking

Shared and EV parking + charging stations

Pedestrian path

Community garden

Community hall

Library + cafe

Spiritual precinct

UNIT PLANS

Drawing: AutoCAD | Edit: Photoshop

Modelling: Sketchup | Edit: Photoshop

SECTION DETAILS

WALL TO CEILING/FLOOR JUNCTION (1:20)

• Structural Insulated Panels (SIPs) are selected due to their robust, lightweight and energyefficient properties for floor, wall, and roof construction. They are composed of an expanded polystyrene core sandwiched by a pair of OSB panels. There is minimal requirement for additional structures or connectors, which is beneficial for quicker construction time and long-term stability.

• Internal window blinds can helpprevent solar heat gain in summer and are motorized to control the amount of sunlight entering a space. For enhanced thermal performance, they are lightly coloured and composed of thick low-e fabric.

Drawing: AutoCAD + Photoshop

WALL SECTION (1:40)

COMMUNAL COURTYARD: BLOCK 2 (TOP) DOUBLE-HEIGHT LIVING/DINING SPACE (BOTTOM)
Modelling: Sketchup | Render: Twinmotion | Edit: Photoshop

THIS PAGE IS INTENTIONALLY LEFT BLANK

OTHER PROJECTS

ELEVATIONS

FLOOR-PLAN

ELEVATIONS

FLOOR-PLAN

ELECTRICAL PLANS

6 STIRLING ROAD, CLAREMONT WA 6010

Workshop Project: Street Level Australia + Grotto Studio | January 2024 | Group work

Perth is currently facing an issue of the “missing middle” as similarly found in other major cities with car-centric planning system. The aim is to incorporate gentle density in the form of facade design based on the classical principles of architecture.

Particularly, the West facade holds the front entrance of an existing rug store and faces a busy thoroughfare during peak hours. With respect to the cultural and historical value the rug store holds, and taking inspiration from Claremont’s urban fabric, the design concept focuses on the dynamics of light and shadow through varying depts of facade elements since shading is a crucial factor during warmer months. The podium, comprising brick, stone, and stucco, starkly contrasts with the contemporary upper levels with bladed windows in increasing folds. A trellis facade blurs the juxtaposition between the two styles while providing privacy and shade to the lowest residential units.

PHYSICAL MODEL (1:50)

THIS PAGE IS INTENTIONALLY LEFT BLANK

TRAVEL + PHOTOGRAPHY

Edit: Photoshop + Lightroom

Hanoi Opera House Hanoi, Vietnam (2020)
Darul Hana Bridge Kuching, Malaysia (2019)
Emirates Palace Hotel Abu Dhabi, UAE (2023)
Tsukiji Honganji Tokyo, Japan (2023)
Fushimi Inari Shrine Ceremonial Hall Kyoto, Japan (2023)
Garuda Wisnu Kencana Park Bali, Indonesia (2022)

Edit: Photoshop

PICA Exhibition: When Happiness Ruled (2016)
Wind Tower (2023)
Hospital Waiting Lounge (2024)
Art Deco Coffee Shop (2024)
Lawson Flats: Entrance Door (2024)
Stippled Breeze Blocks (2024)
Still Life (charcoal, 2024)
Hand Holding a Branch (watercolour, 2024)
Elements of Architecture: Circulation II: Hide and Seek (Photoshop, 2024)
Elements of Architecture: Openings I: Lantern Pavillion (Photoshop, 2024)

NADYA PRASETYO

T: +61 421 160 728

E: nadyawsl@gmail.com

L: https://www.linkedin.com/in/nadyaprasetyo/

I: https://www.instagram.com/nadya_p_arch/

Turn static files into dynamic content formats.

Create a flipbook
Issuu converts static files into: digital portfolios, online yearbooks, online catalogs, digital photo albums and more. Sign up and create your flipbook.
Nadya Prasetyo: Architecture + Drafting Portfolio by Nadya Prasetyo - Issuu