Architectural Portfolio 2023

Page 1

NADINE NABEEL ZAHRAN

SELECTED WORK 2021 - 2023

PORTFOLIO

ARCHITECTURE GRADUATE
01 02 03 04 05 06 07 08 09 Biography Nadine Zahran Ras Al-Ain Regeneration Urban Design Project 2022 Office Interior Design Project Interior Design Project 2022 Amman-Zarqa BRT Marka Station Urban Project 2022 Research Center Design 6 Project 2022 Office Building Design 4 Project 2021 Bridging the Gap Graduation Project 2023 10 11 12 Mixed-Use Building Design 5 Project 2021 Cube Atrchitects Internship 2022 Others Individual Work 2022 Towards More Participatory Urban Spaces Competition 2022 Modular House Competition 2021 CONTENT

PERSONAL IINFORMATION

Born in February 2000, USA

Mob. 962-798989098

E-mail: nadine.zahran225@gmail.com

EDUCATION

2023 University of Jordan School of Architecture, Graduate

2018 Cambridge High School

Graduated From the IB Program With GPA of 37/42 (91/100)

WORK EXPERIENCE

2022 Intern Architect Cube Architects

COMPETITIONS

- April 2022, Bridging The Gap - Towards More Participatory Urban Spaces; a Fullbright-funded project. Chosen as one of the 11 students out of 75 Architecture University students, and then elected as one of the top 6 for the opening ceremony.

- Septemper 2021, participated in The Modular House Competition organized by BUILDER ARCHITECTURE COMPETITIONS.

SOFTWARE SKILLS

Autodesk AutoCAD

Autodesk Revit

SketchUp

Lumion

Adobe Photoshp, Illustrator

Microsoft Word, Excel and Power Point

LANGUAGES

Bilingual In Both English & Arabic

Speaking, Reading and Writing

01 Curriculum Vitae

BRIDGING THE GAP - COMMUNITY CENTERGRADUATION PROJECT

02 JU / 2022-2023 Prof. Saleem M. Dahabreh Individual work

GRADUATION PROJECT

BRIDGING
GAP - COMMUNITY CENTER -
THE

«IF I CAN CREATE SOME SPACE THAT PEOPLE HAVEN’T EXPERIENCED BEFORE AND IF IT STAYS WITH THEM OR GIVES THEM A DREAM FOR THE FUTURE, THAT’S THE KIND OF STRUCTURE I SEEK TO CREATE»

02 JU / 2022-2023 Prof. Saleem M. Dahabreh Individual work
TADAO ANDO 1941

INTEGRATION, BETTER ACCESSIBILITY, CONNECTIVE TISSUE

INTERACTION BETWEEN THE SITE & THE PROJECT THROUGH EXPOSING THE EXPERIENCE

RAISING THE MASS & SUBTRACTING TO CREATE A VOID TO PROVIDE PERMEABILITY FROM THE EXISTING PARK

HIGH PHSICAL & VISUAL PERMEABILITY, SPACIAL CONTINUITY, CLEAR SPACIAL ORGANIZATION

CIRCULATION DIAGRAM SHOWING THE TRANSITIONAL SPACES, CHANGING ELEVATION, AND CROSSING POINTS OF PEOPLE PATH

LIFTING THE GLASS BOX USING 4 SHEAR EALLS, EXTERIOR STRUCTURAL SYSTEM, STRUCTURAL GRID, WAFFLE SLAB

EXISTING VEGETATION INTERPRETATION; INTEGRATION BETWEEN THE NATURE & ARCHITECTURE

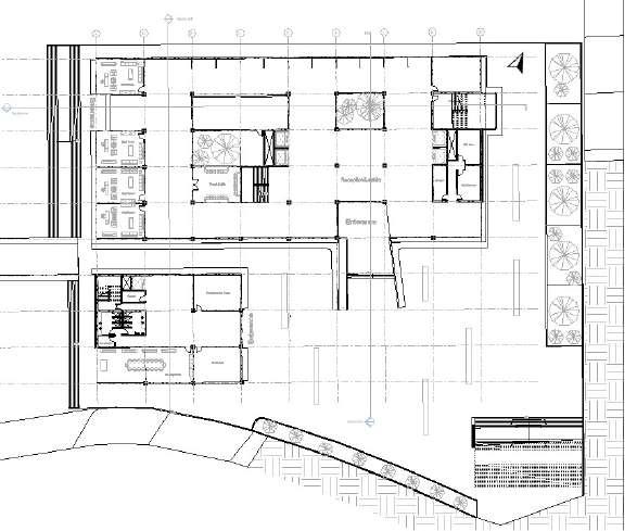
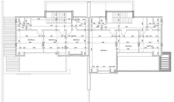
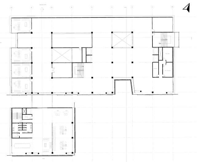
PLANS SCALE 1:100

SITE PLAN SCALE 1:500

BASED ON THE OBSERVATIONS

THERE IS A NEED FOR A BRIDGE TRANSITIONS

ELEVATIONS SCALE 1:100

NARRATIVE
LVL -4.0 LVL +0.0 LVL
+4.5 LVL +9.0

OBSERVATIONS OF THE SITE’S CONTEXT, FOR A CONNECTION BETWEEN THE TWO SIDES, TRANSITIONS PEDESTRIANS FROM THE STREET ELEVATION TO THE SITE WHICH CREATES A CROSSING POINT.

CROSS SECTION SCALE 1:200 SECTION SCALE 1:100
SECTION SCALE 1:100

RAS AL-AIN REGENERATION - ROOFTOP INITIATIVE

URBAN DESIGN PROJECT

INITIATIVE - 03 JU / Fall 2022 Dr. Deyala Tarawneh Group Project

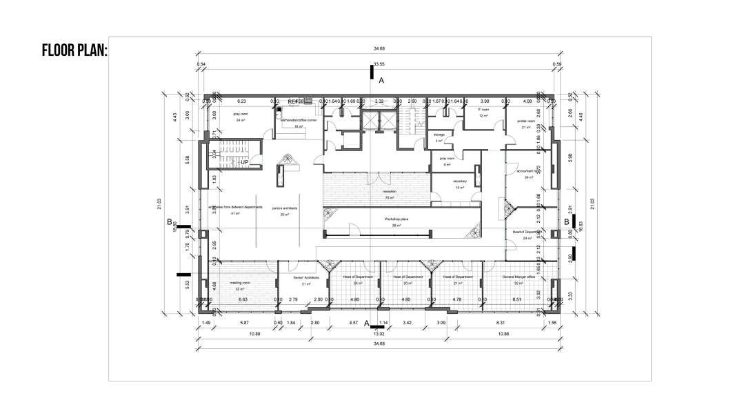
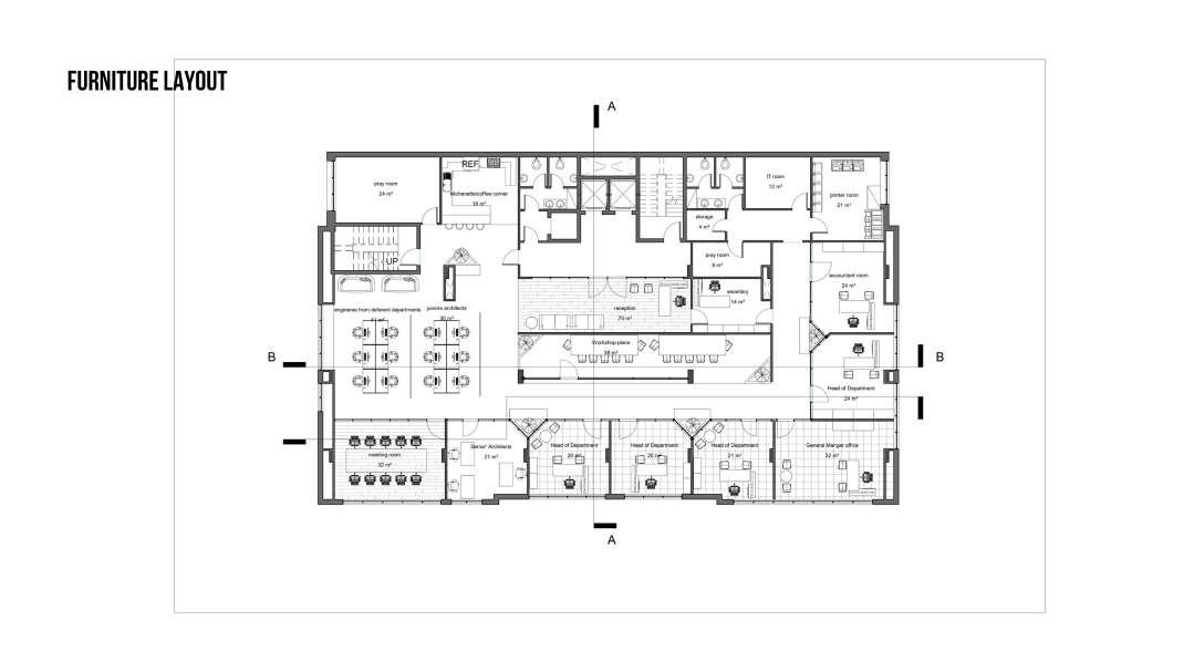
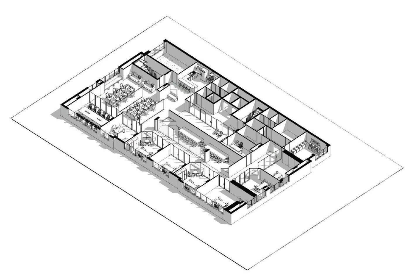
OFFICE INTERIOR DESIGN

04 JU / Fall 2022 Group Project

AMMAN-ZARQA BRT MARKA STATION - URBAN

MARKA IS AN IMPORTANT INDUSTRIAL DISTRICT IN JORDAN, SO IT HAS A HIGH PERCENTAGE OF INDUSTRIAL LAND USE, FOLLOWED BY DENSE RESIDENTAL AREAS, AS WELL AS COMMERCIAL AND EDUCATIONAL ZONES. THEREFORE, THERE IS A HIGH TIMEOUT OF USERS, WHICH COULD BE EMPLOYED IN CREATING A HIGHLY PRODUCTIVE AND EFFICIENT TOD SERVING ALL SECTORS OF THE COMMUNITY.

URBAN PROJECT 05 JU / Fall 2022 Dr. Firas Sharaf Group
Project

RESEARCH CENTER UNIVERSITY OF JORDAN

INSTEAD OF COMPARTMENTALIZING AND CATEGORIZING THE SPACE, A SHARED ENVIROMENT MORE KNOWLEDGE - VISUAL CONNECTIVITY.

JORDAN - DESIGN 6 PROJECT

ENVIROMENT WHERE LIGHT IS THE SPINE WILL BE CREATED TO EXCHANGE

06 JU / Spring 2022
Dr.
Firas Sharaf

MIXED-USE BUILDING - DESIGN 5 PROJECT

D ESIGN P HILOSHOPHY

T HE MAIN OBJECTIVE WAS TO CREATE A PRACTICAL AND AN APPEALING EXTERNAL DESIGN FOR THIS BUILDING IN ORDER TO IT BE CENTER OF ATTRACTION FOR INVESTORS AND USERS IN THIS EXPLICIT SITE . A T THE SAME TIME , ANOTHER TARGET WAS ALSO TO CREATE AN INTERNAL DESIGN THAT AIMS TO MAKE BEST USE OF THE SPACE AVAILABLE .

07 JU / Fall 2021 Dr. Rizeq Hammad Individual Work

OFFICE BUILDING - DESIGN 4 PROJECT

DESIGN PHILOSOPHY

THE FOLLOWING DESIGN WAS CHOSEN TO ACHIEVE DUALITY IN A COHERENT WAY OUT OF THE USUAL THROUGH THE USE OF:

- SIMPLE AND COMPLEX FORMS

- SOLID AND VOID

- HORIZONTAL AND VERTICAL

- THIN AND TINY VS HUGE AND BULKY

DESPITE THE MAJOR CONTRAST, YET YOU CAN FEEL THE HARMONY OF THE DESIGN. IT IS A DYNAMIC, STABLE, AND A BALANCED DESIGN. CERTAIN PARTS OF THE FACADES ARE GLAZED TO MAXIMIZE THE VIEW AND GLARE FREE DAYLIGHT. THUS, HAVING A LIGHT, TRANSPARENT, AND WELCOMING NORTH ELEVATION. IN ADDITION, A PERFORATED SKIN ENVELOPING THE UPPER PART OF THE PROJECT (OFFICE AREAS) WAS ADDED TO REDUCE GLARE AND HEAT. AND FINALLY THE DESIGN CONSISTS OF A GREEN ROOF TERRACE TO CREATE A LARGE SOCIAL INTERACTION SPACE.

08 JU / Spring 2021 Dr. Nancy Al-Assaf Individual Work

Chosen site

-

GLAZING CERTAIN PARTS OF THE FACADES TO MAXIMIZE THE VIEW & GLARE FREE DAYLIGHT. THUS, HAVING A LIGHT, TRANSPERANT, WELCOMING NORTH ELEVATION

PERFORATED SKIN ENVELOPING THE UPPER PART OF THE PROJECT (OFFICES AREA) THUS REDUCING GLARE AND HEAT. GREEN ROOF TERRACE CREATING LARGE SOCIAL INTERACTION SPACES

EFFICENT CORE WITH A GOOD VERTICAL AND HORIZINTAL CIRCULATION SPINE

Clear prismSplitting the prism Stretching the podium

B RIDGIN G T HE G AP -T OWARDS M ORE P ARTICIPATORY

BRIDGING THE GAP IS A FULLBRIGHT-FUNDED PROJECT, AIMING TO INTRODUCE AN INNOVATIVE INIATING THE DIALOG BETWEEN THE LOCAL COMMUNITY AND THE PUBLIC SECTOR THROUGH UNDERGRADUATE PUBLIC URBAN PROJECTS THROUGH RAISING AWARNESS AND BENEFITING FROM THE CURRENT

OBJECTIVE: RETHINKING DESTINATIONS, A BRT URBAN MEMORY COLLECTIVE

THE AIM IS TO ACTIVATE OR PROPOSE NEW DESTINATIONS RANGING FROM PUBLIC SPACES TO THE COMMUTING EXPERIENCE FOR USERS AND PROVIDE INSIGHTS INTO THE CITY THAT MAY HAVE

STATION

FRAMEWORK FOR PUBLIC PARTICIPATION IN URBAN DESIGN & URBAN PLANING, BY UNDERGRADUATE STUDENTS. FURTHERMORE, ENHANCING THE SENSE OF BELONGING TOWARD CURRENT ONGOING URBAN PROJECT IN AMMAN SUCH AS AMMAN’S BRT.

TO POINTS OF INTEREST ALONG THE BRT LINES. THESE POINTS OF INTEREST SHOULD ENHANCE HAVE BEEN DISREGARDED OR FORGOTTEN.

TATION NO.18: GRAFFITTI WALL

STATION NO.10 : PEDESTRIAN PROMENADE

INNOVATIVE
U RBAN S PACES - C OMPETITION 09 Individual Work Honorable Mention
ARTICIPATORY

M ODULAR H OUSE - C OMPETITION

10 Supervisor: Dr. Nancy Al-Assaf

Team: Heba Zakarnah

DEAD SEA CHALET

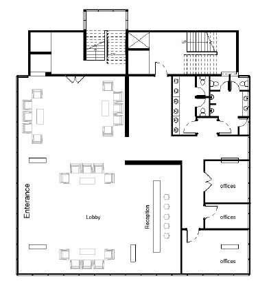
11 Cube Architects/ 2022 Internship

INTERIOR SHOTS

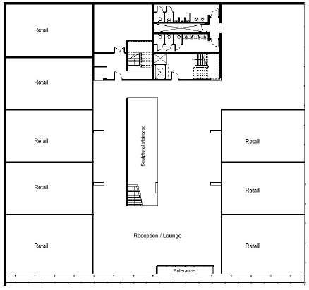
COMPOUND COMPLEX
11 Cube Architects/ 2022 Internship

ALTERNATIVE DESIGN PROPOSALS FOR A AMMAN, JORDAN

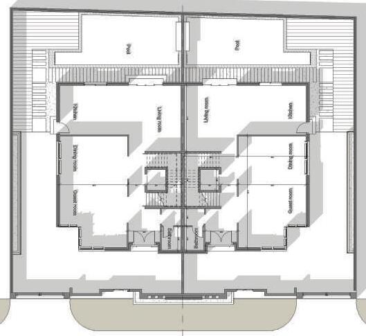
PROPOSED DESIGN FOR A TWO-STORY VILLA IN ABDOUN, AMMAN, JORDAN; CONTAINING 2 MASTER BEDROOMS, 2 BEDROOMS, GUEST ROOM, DINING ROOM, LIVING ROOM KITCHEN, OUTDOOR POOL, AND A ROOF.

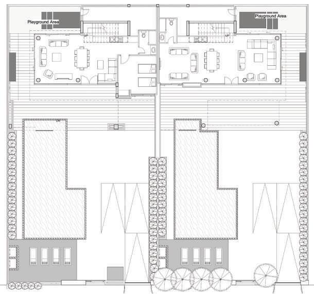
A TWO-ATTACHED VILLAS IN 12 Al-Ain Homes / 2022 Individual work
ROOM,

Turn static files into dynamic content formats.

Create a flipbook
Issuu converts static files into: digital portfolios, online yearbooks, online catalogs, digital photo albums and more. Sign up and create your flipbook.